InfoCAPBA IX

Page 1

Reflexiones de cierre de ejercicio

Estamos cerrando el primer año de la ges ón, asumiendo con honor la responsabilidad que nuestros colegas nos han encomendado para representarlos desde el Distrito IX del Colegio de Arquitectos.

Recientemente la Asamblea Anual Ordinaria del CAPBA IX convalidó por mayoría la Memoria y Balance del Ejercicio, que terminara el 30 de sep embre, y aprobó el Plan de Acción y Presupuesto 2014-2015. Desde el punto de vista de esta ges ón, esta Asamblea no significa un acto formal más. Es, sin duda, la ocasión de poner a consideración de nuestros colegas lo actuado durante el ejercicio, pero además, es la oportunidad de compar r la planificación futura de nuestra Ins tución, de deba r cómo afrontaremos escenarios para nuestro ejercicio profesional, la defensa de nuestras incumbencias, la previsión social y las acciones que nos permiten desarrollarnos como comunidad, como grupo cohesionado y con alto sen do de pertenencia que nos posiciona frente a la sociedad en toda la región.

A modo de síntesis destacamos que, durante el año instrumentamos el proceso de renovación de Delegados Distritales. Valorando que, mediante la organización y par cipación, se ha logrado consolidar un modelo de ges ón que fortalece a la Ins tución y que contrasta con los sistemas de designación polí ca que se ejercen en el resto de la Provincia.

El CAPBA ha cumplido 28 años desde su creación y como señaláramos en alguna editorial de nuestra publicación distrital, “los problemas estructurales del CAPBA se encuentran principalmente signados por la dualidad polí co-territorial de nuestra Ins tución. El ejercicio profesional de los arquitectos ha cambiado mucho en estos años, así como el contexto social, económico y polí co; y aún existen problemá cas y demandas que desde nuestra ins tución no hemos podido sa sfacer”.

Por ello, en este año hemos abordado debates complejos para nuestra colegiación, como la modificación de la Ley Nº 10405 y la creación de una Ley de Aranceles para Arquitectos que impulsará el Consejo Superior, aún siendo crí cos de los apretados empos para su discusión y que los proyectos recién tomaran estado parlamentario el 13 de noviembre pasado, ha sido la oportunidad de deba r proyectos que cambiarían nuestro ejercicio profesional y la relación con nuestra Ins tución. Sabemos que ha faltado profundidad y sociabilidad al debate, no obstante ello nos hemos dado los mecanismos para conformar una comisión Ad Hoc que estudiara los proyectos, los hemos difundido y tratado en Asamblea Extraordinaria. Sin embargo, por supuesto que aún no estamos conformes y propondremos con nuar con estos proyectos en el ejercicio siguiente. Similar situación se ha presentado con el proceso de gestación de la Caja de Previsión y Seguridad Social para Arquitectos de la Provincia de Buenos Aires, proceso que con fluctuaciones ha encontrado la oportunidad del debate abierto entre los matriculados a posteriori de la presentación en la Honorable Cámara de Senadores provincial y que, recién 6 meses después, en la úl ma sesión legisla va del año ha tomado estado parlamentario para su tratamiento. Aun así, es oportuno destacar la intensa labor que el CAPBA IX ha desarrollado en esta temá ca, el esfuerzo en el estudio de propuestas, los debates desarrollados en el ámbito del Consejo Direc vo y las reuniones con matriculados que propiciaron que la Mesa Ejecu va del Consejo Superior visitara nuestro Distrito para explicar el proyecto presentado, situación única en la Provincia a la fecha.

capba IX 02

En este período mantuvimos un rol ac vo en el ámbito del Consejo Superior, convir éndonos en uno de los distritos que más inicia vas elevara, que mayor debate propicia en las diferentes comisiones en las que par cipa. Haciendo notar la voz y la opinión de los colegas. Frente a realidades y posturas tan disímiles en toda la Provincia hemos privilegiado defender los intereses de los matriculados que representamos.

No toda la ges ón refiere a las dinámicas internas de la organización, desarrollamos un amplio campo de trabajo en la ar culación de esfuerzos conjuntos con otras Ins tuciones de toda la región. Comenzamos ges ones para el control de la matrícula de colegas en relación de dependencia, instamos a diferentes organismos para la intervención colegial en obras de arquitectura, propiciamos mesas de trabajo para el abordaje de problemá cas del ejercicio profesional y de la planificación de las ciudades, entre innumerables acciones.

La presencia del CAPBA IX ganada en diferentes ámbitos, nos ha colocado como referentes en problemá cas urbanas, recibiendo mayor can dad de invitaciones a diferentes espacios de trabajo y, adquiriendo más relevancia la opinión Ins tucional. Esto repercute además en la creciente demanda de convenios para la organización de concursos de arquitectura y urbanismo, instancia que defendemos y valoramos históricamente y que, a la luz de la diversidad de crí cas; redoblando el esfuerzo en perfeccionar el sistema y los resultados emergentes.

Además, es prioritaria la acción gremial en defensa de los intereses de los matriculados. Por eso, durante el año han sido intensas las ges ones en diferentes municipios para la mejora de los procedimientos administra vos, revisión y modificación de norma vas que condicionan nuestro ejercicio profesional y el abordaje de problemas estructurales y coyunturales que cada administración afronta.

Toda esta ges ón se complementa con el cierre de una ejecución presupuestaria en equilibrio, donde el balance de recursos y gastos nos provee un superávit de más de setecientos mil pesos y que, con una adecuada administración, nos ha permi do mantener servicios que con exclusividad este Distrito otorga a sus matriculados (descuento por pago adelantado de matrícula, seguro de accidentes personales, servicio de emergencias médicas, préstamos solidarios, compras comunitarias, encuentros de camaradería, publicaciones, presencia en los medios para difusión del rol profesional, agendas, cascos de seguridad, libro de órdenes y servicios, etc.).

Sin duda, este equilibrio presupuestario, di cil de mantener en un contexto macroeconómico que nos enfrenta a paritarias con índices mayores a los previstos, incremento de los costos opera vos por aumento de servicios e insumos necesarios e ingresos que no acompañan los índices de aumento de gastos, requiere reformulaciones y una labor de control permanente de la evolución del presupuesto. Por ello, consideramos acertada la decisión aprobada en la Asamblea Extraordinaria de mayo pasado de reestructurar el Plan de Acción y el desarrollo de tareas en comisión y/o por proyecto que en dicha oportunidad propuso la Mesa Direc va. Por eso la inversión en el desarrollo de los Ejes de Acción ha sido un 10% menor a lo presupuestado y su impacto en la estructura de costos alcanza el 10%.

Sin embargo, cabe una reflexión sobre la estructura de recursos con la que nuestra Ins tución -para atender las obligaciones de Ley que le fueran confiadas-, se man ene y sos ene. El creciente patrimonio económico del CAPBA, con fondos que se abultan año a año, sin retornos inmediatos a sus matriculados, nos lleva a pensar que es necesario revisar los importes de la alícuota de CEP vigente, debate que propiciaremos en el Consejo Superior. No obstante, también es oportuno decir que existen situaciones económicas deficitarias en otros Distritos que también deben ser tenidas en cuenta. Agradecemos a todos los colegas que han colaborado en el úl mo ejercicio desde diferentes frentes de acción, los que des nan parte de su empo en la valiosa labor de consolidar el trabajo en equipo, a los miembros del Consejo Direc vo y a nuestro Delegado al Consejo Superior.

Finalmente, debemos instar a todos los grupos polí cos con representación en el CAPBA IX a privilegiar el crecimiento y bienestar de nuestro Distrito, a respetar la representa vidad y la organicidad a los órganos de gobierno distritales y a defender los intereses y opiniones de nuestros colegas. Desde la conducción distrital hemos demostrado voluntad para el diálogo sin perder firmeza en la defensa de la Ins tución. Se han propiciado fuertes debates sin que ello signifique denostar las enves duras y roles dirigenciales, es por esto que aspiramos a la madurez de todos los sectores involucrados para fortalecer la Ins tución, sin caer en oportunismos que dividen y disgregan a la Ins tución y fundamentalmente a los Arquitectos. Éste será el desa o para el año que se inicia. A todos nuestros colegas les auguramos un próspero año 2015, deseándoles la concreción de logros personales, profesionales y laborales.

Arq. Julia ROMERO Presidente Arq. Daniel MONZÓN Secretario Arq. Bruno MAZZINI Tesorero
capba IX 03

Publicación Ins tucional del Colegio de Arquitectos de la Provincia de Buenos Aires

Distrito IX

Distribución Trimestral Gratuita

Edición 2.100 ejemplares

Año 3 | Nº 9 | Diciembre de 2014

ISSN 2346-9595

capba IX

Los ar culos publicados expresan los puntos de vista de sus autores y no necesariamente representan los de la Ins tución. Los ar culos sin firma son conocidos por el consejo Editor y su responsabilidad úl ma recae en el director a cargo.

Se autoriza la reproducción total o parcial de los ar culos contenidos en la misma con el compromiso de citar la fuente.

Si desea auspiciar en esta publicación, comunicarse a bole n@capba9.org.ar o bien consultar en la Sede del CAPBA DIX, Dorrego 1657 de la ciudad de Mar del Plata, tel (0223) 473-3031, 473-8282 o 474-3944, donde se le brindará todas las referencias de contacto.

DIRECTOR

Arq. Julia Romero

CONSEJO EDITOR

Arq. Daniel Monzón

Arq. Bruno Mazzini

Arq. Analía Benítez

COLABORADORES

Arq. Laura Romero

Arq. Alicia París

Arq. Adriana Olivera

Sra. Analía Flores

ARTE Y DISEÑO

Valeria Burkhard

FOTOGRAFÍA

Karina Beltran

Hugo Porro

Vanesa Widmer Franul

LOGÍSTICA, PUBLICIDAD Y MARKETING

Cepei Comunicación SRL

INTRO

01| CONCURSO OSSE.

02| EDITORIAL.

04| SUMARIO. STAFF. EJERCICIO PROFESIONAL

06|HONORARIOS PROFESIONALES. Nuevos Valores Referenciales.

07|MEDIOS DE PAGOS HABILITADOS.

08|ASUNTOS MUNICIPALES. Mantenimiento y conservacion de fachadas. Cambio de valores indica vos para la determinación de Honorarios Profesionales para la confección de Informe Técnico.

10|DOCTRINA DEL COLEGIO DE ARQUITECTOS. El rol del director de obra y el representante técnico.

14|OBRAS EN EL DISTRITO IX. Mezquita sunita en Mar del Plata. Arq. Germán Paulo.

20|OBRAS EN EL DISTRITO IX. Vivienda unifamiliar. Casa Strobel. Arq. Mauro Zanabre.

24|ASESORAMIENTO TÉCNICO. FORMICA® TS Estructural –Maderera San Francisco.

GESTIÓN DEL DESARROLLO URBANO SUSTENTABLE

26|INDUSTRIALIZACIÓN. Casapack. Sistema construc vo prefabricado. Arq. Eduardo Águila.

28|ACCESIBILIDAD. Consideraciones para la accesibilidad en playas.

32|PATRIMONIO. Edificios y Espacios Públicos de Balcarce incorporados al Patrimonio Histórico Nacional.

34|PREMIO BIA-AR. Vista Hotel. Obra dis nguida en la BIA- AR 2014 Arq. Antonio Carrasco.

38|CONCURSOS. Concurso Nacional de Anteproyectos para el Complejo Judicial de Necochea.

40|CONCURSOS. Resultados del Concurso Provincial de Anteproyectos para la Sede del Colegio de Psicólogos.

capba IX 04

46|III SEMANA DE LA SUSTENTABILIDAD URBANO AMBIENTAL Y CAMBIO CLIMÁTICO. “Transformación e Innovación Social para la Sustentabilidad”.

ASUNTOS PREVISIONALES

50|CAAITBA. Proyecto de Caja Propia. Debate de matriculados del Capba IX.

SOCIAL Y GREMIAL

52|DÍA MUNDIAL DE LA ARQUITECTURA Y EL HÁBITAT HUMANO 2014. “Voces de los suburbios”

54|ENCUESTA. Relevamiento de opinión. La opinión de los arquitectos sobre temas que nos incumben y preocupan.

60|NUEVOS MATRICULADOS. Entrega de credenciales a arquitectos.

62|CICLO DE ARTES PLÁSTICAS EN EL COLEGIO DE ARQUITECTOS.

CAPACITACIÓN Y ACTUALIZACIÓN

PROFESIONAL

64|CICLO DE CONFERENCIAS DE ARQUITECTURA 2014. “De la Idea a la Obra”. Conferencias Arqs. Egozcue y Sardín.

70|CAPACITACIÓN EN EL CAPBA IX. STEEL FRAMING. INCOSE.

PROGRAMA

COMUNICACIONAL

72|HOMENAJE. BUSTILLO, 75 años del Casino y Hotel Provincial de Mar del Plata.

76|HOMENAJE. Sin lágrimas y con nostalgia. Adiós a Pablo Bo o.

77|ARQUITECTURA Y CINE. Hábitat.

INSERCIÓN PROFESIONAL

80|FACTURACIÓN. Nuevas resoluciones de la AFIP para pedir facturas.

82|LA ACTIVIDAD PROFESIONAL EN EL DISTRITO IX. Estadís cas en base a tareas profesionales presentadas en el 1° semestre del 2014.

FORTALECIMIENTO Y VÍNCULOS

INTERINSTITUCIONALES

86|FORO SECTORIAL DE LA CONSTRUCCIÓN. Planificación estratégica y trabajo en equipo para el crecimiento de la ciudad.

88|ASAMBLEA ANUAL ORDINARIA PROVINCIAL Y DISTRITAL del CAPBA IX.

90|DELEGACIONES. VILLA GESELL. Emprendimiento urbano El Salvaje.

93|DELEGACIONES. MADARIAGAPINAMAR. Aprobación del Código de Preservación Patrimonial en el Par do de General Madariaga.

94|DELEGACIONES. LA COSTA. Resoluciones de Obras Privadas en el Par do de La Costa.

96|DELEGACIONES. NECOCHEA. Par cipación en la COPAP, Parque Lillo.

capba IX 05
Publicación Declarada de Interés por :

Honorarios Profesionales

Nuevos Valores Referenciales

A par r del 1º de sep embre de 2014 rigen nuevos valores referenciales para la determinación de honorarios profesionales conforme lo resuelto por Asamblea Anual Extraordinaria de Representes de la Caja de Previsión Social de Arquitectos, Agrimensores, Ingenieros y Técnicos de la Provincia de Buenos Aires. Resolución CAAITBA Nº 533-14.

Como siempre toda la información actualizada para la determinación de los Honorarios Profesionales se puede consultar en el si o web del Distrito IX: www.capba9. org.ar solapa Área Técnica.

Por otro lado, la Asamblea Extraordinaria de Representantes del 4 de diciembre, se resolvió aumentar el valor de la Cuota Mínima Anual Obligatoria, fijándose en la suma de pesos catorce mil cuatrocientos ($ 14.400) a par r del primero de marzo de 2015. Asimismo se fijó el valor referencial en la suma de pesos siete mil doscientos ($7.200) a par r de la misma fecha. El Factor de Corrección será de 0.36.

Valores referenciales desde el 1º de sep embre 2014

Valor Referencial (unidad arancelaria): $ 6.000,00

CEP Mínima: $225,00

F.C.: 300

Honorario Mínimo: $ 1.500,00

Medición e Informe Mínimo:

Vivienda Standard hasta 100 m2 $ 2.503,00

Resto de las Categorías $ 4.326,00

Timbrado: 12.5 ‰

Art. 29 (Caja)

10% de Proyecto y Dirección

CMAO: vigente a par r del 01/09/14 $ 12.000,00

capba IX 06 EJERCICIO PROFESIONAL

Medios de pago habilitados

Es mados Colegas, les informamos que con mo vo de propender a la bancarización total de los ingresos desde el 15-10-2012 no se acepta el pago de la CEP en efec vo en oficinas de la Sede Distrital ni en Delegaciones del CAPBA DIX. Asímismo les detallamos los sistemas y medios de pagos por los cuales se podrán realizar los aportes correspondientes, cuyos ckets deberán ser adjuntados a la documentación técnica al momento del visado.

DEPÓSITO BANCARIO

BANCO PROVINCIA DE BUENOS AIRES

Mediante depósito en cuenta corriente Nº 11575/1 Suc. 6100 en cualquier sucursal del banco. Consulte sucursales en h ps://www.bancoprovincia.com.ar

BANCO CREDICOOP

Mediante depósito en cuenta corriente Nº 3067-1 Filial 089 Consulte sucursales en h p://www.bancocredicoop.coop

BANCO GALICIA

Mediante depósito en cuenta corriente Nº 00002903790833 Suc. 083

TRANSFERENCIA BANCARIA

CUIT CAPBA DIX 30-68994042-7

BANCO PCIA DE BS AS. CBU 0140415301610001157512

BANCO CREDICOOP. CBU 1910089655008900306714

BANCO GALICIA. CBU 0070083220000029037937

CHEQUES

CHEQUE PERSONAL. A la orden de Colegio de Arquitectos de la Pcia. de Buenos Aires.

CHEQUE DE TERCEROS. A la orden del profesional y endosado.

OTROS MEDIOS DE PAGO

RIPSA PAGOS Únicamente con tarjeta personalizada que deberá retirarla en sede distrital o delegaciones. Consulte centros de pago en h p://www.ripsa.com.ar. Para el pago deberá indicar al cajero el concepto por el cual se realiza el depósito (01. Matrícula, 02. CEP, 03. Cursos, 04. Compras Comunitarias, 05. SUM). Es importante recordar que la empresa RIPSA no cobra boletas de aportes previsionales de la CAAITBA.

TARJETAS DE CRÉDITO (en Sede Distrital y Delegaciones) Visa o Mastercard.

TARJETAS DE DÉBITO (en Sede Distrital y Delegaciones) Visa Electrón o Mastercard.

PROVINCIA NET ¡¡¡NUEVO!!!

Se encuentra vigente como nuevo medio de pago la tarjeta personalizada de provincia Net, la cual debe ser re rada en Sede Distrital y/o Delegaciones del CAPBA IX. La modalidad de operación es mediante código de barras en el plás co a nombre del matriculado que con ene los datos de éste y quien deberá indicar al operador de caja el importe y el concepto a pagar, luego el cket original emi do debe ser anexado a la documentación a presentar o comunicarlo al área de matrícula o de tesorería según corresponda por el po de trámite.

Nuevos valores de matrícula para el año 2015

Conforme lo resuelto por la Asamblea Anual Ordinaria del CAPBA, la actualización del costo anual de matrícula será del 20%. Esta decisión la llevará al valor de $900,00 para el año 2015, vigente desde el 1º de enero próximo. Asimismo, tanto la Asamblea Provincial como la Distrital, aprobaron mantener los descuentos por pago an cipado de matrícula en forma anual o trimestral.

Por ello, el CAPBA IX ha ra ficado mediante Resolución Nº 32-14 los siguientes valores:

Pago An cipado Anual: realizado hasta el úl mo día hábil del mes de enero, aplicar el 10% de descuento a cargo del Distrito IX, sumado al descuento realizado por el Consejo Superior por igual modalidad de pago, totalizando un 20% de descuento.

Pago An cipado Anual: realizado dentro del primer trimestre del año, aplicar el 10% de descuento realizado por el Consejo Superior.

Pago An cipado del Trimestre: realizado hasta el úl mo día hábil del trimestre anterior, aplicar el descuento del 10% Estos descuentos se aplicarán siempre que el profesional haya cumplido con los pagos de las cuotas de matrícula hasta el trimestre inmediato anterior, por lo que quedan excluidos los que se acogen a planes de pago.

Finalmente, a los nuevos matriculados del Distrito IX aplicar una reducción del 50% -como máximo- en el pago an cipado de la matrícula anual, por cinco (5) años consecu vos, contados a par r de la fecha de matriculación, si la misma es abonada hasta el úl mo día hábil de enero y del 40% abonada dentro del primer trimestre del año.

capba IX 07 EJERCICIO PROFESIONAL

Mantenimiento y Conservación de Fachadas

Valores indica vos para la determinación de Honorarios

Profesionales para la confección de Informe Técnico

En función del análisis de los honorarios vigentes, la evolución de los valores referenciales y el relevamiento de precios que componen el índice de la construcción, el CAPBA IX ha decidido actualizar la tabla de valores indica vos para la determinación del monto de obra en juego para la es mación de honorarios de Informe Técnico.

Como es sabido por los colegas del Distrito IX, el método de es mación de los honorarios por Informe Técnico para dar cumplimiento a las Ordenanzas de mantenimiento de fachadas, exige determinar un monto de obra relacionado a los paramentos que cons tuyen la envolvente y aquellos que como salientes, abiertos o cerrados, cartelerías, marquesinas, etc., complejizan dicha envolvente. Además según la escala establecida por el CAPBA IX, se aplican depreciaciones y/o incrementos según la an güedad y estado de conservación del inmueble.

A con nuación transcribimos la Resolución CAPBA IX vigente sobre los valores indica vos y coeficientes de depreciación del monto de obra a informar.

RESOLUCION N° 33/14

Mar del Plata, 2 de Diciembre de 2014 VISTO las Ordenanzas Municipales N° 12652 del Municipio de General Pueyrredon, y similares en municipios de la región del CAPBA IX, referida a la inspección, conservación y mantenimiento de las fachadas y muros medianeros de los edificios públicos y privados que posean una altura superior a los nueve (9) metros y tengan además una an güedad de más de diez (10) años, contados a par r de la firma del Cer ficado Final de Obra o bien su incorporación de oficio en el catastro Municipal, Que la inspección del edificio requiere que un profesional con incumbencia efectúe un informe técnico, con renovación periódica, según lo establecido en la norma va vigente,

Que los aspectos a informar desde la implementación de la mencionada ordenanza han ido creciendo según los requerimientos de la autoridad de aplicación y que consecuentemente complejizan la tarea y las responsabilidades del profesional, y CONSIDERANDO que la úl ma actualización de los valores indica vos que determinan el monto de obra según cómputo y presupuesto para la determinación de Honorarios Mínimos de Informe Técnico para mantenimiento y conservación de fachadas, data del año 2011, y

Que la unidad arancelaria vigente desde el año 2011 a la fecha ha tenido un incremento del 272% para la es mación de montos de obra que no presentan correlatos con los valores indica vos mencionados anteriormente, y

Que el monto de obra debe contemplar la data del edificio, las superficies y caracterís cas construc vas y el estado de conservación para determinar un honorario que refleje el empo empleado en la tarea y las responsabilidades del profesional actuante, y

Que se ha realizado un estudio compara vo del incremento de los valores indica vos según publicaciones de la Revista Vivienda.

POR ELLO, el CONSEJO DIRECTIVO DEL COLEGIO DE ARQUITECTOS DE LA PROVINCIA DE BUENOS AIRES DISTRITO IX, en sesión del día de la fecha

RESUELVE

ART. 1º. Actualizar los Valores Indica vos que determinan el Monto de Obra según Cómputo y Presupuesto, Ordenanza Municipal Nº 12652 Mantenimiento de Fachadas, de acuerdo a las pologías establecidas:

b1 Con mampostería de revoques comunes o po Iggam / Salpicre e.

720,00

TIPO DESCRIPCIÓN VALOR INDICATIVO M² TIPO A Medianeras o muros expuestos con revoque común. $ 350,00 TIPO BFachadas con Carpintería sin balcones. TIPO
$
capba IX 08 EJERCICIO PROFESIONAL

TIPO b2

Con ven laciones y/o barandas y/o ornamentos y/o reves mientos aplicados po cerámica, azulejos, mayólicas, etc.

TIPO CFachadas con Carpintería con balcones

TIPO c1

TIPO c2

Anexo I

Con mampostería de revoques comunes o po Iggam / Salpicre e.

Con ven laciones y/o barandas y/o ornamentos y/o reves mientos aplicados po cerámica, azulejos, mayólicas, etc.

TIPO DMarquesinas

$ 848,00

CALCULO DE HONORARIOS

$ 1.068,00

$ 1.224,00

TIPO d1Sin instalación eléctrica. $ 286,00

TIPO d2Con instalación eléctrica. Luminosas. $ 434,00

ART. 2º. Conjuntamente a la planilla de determinación del monto de obra se deberá detallar silueta de superficies que se es man en el cómputo y presupuesto.

ART. 3º. La descripción de cómo arribar al cálculo del honorario del Informe Técnico forma parte de la presente como ANEXO I.

ART. 4º. En ningún caso se aplicará descuentos por reiteración de informe.

ART. 5º. Desde el Consejo Direc vo del CAPBA DIX se realizará un monitoreo de los alcances de la Ordenanza Nº 12652, su implementación, las responsabilidades profesionales suscriptas y la actualización de los valores indica vos a efectos de evitar la devaluación del honorario profesional.

ART. 6º. La presente Resolución tendrá vigencia a par r del 1º de Enero de 2015.

ART. 7º. Dar amplia difusión entre los matriculados del Distrito IX del CAPBA.

ART. 8º. Cumplido AR CHÍVESE.

1. Monto de Obra (Por cómputo y presupuesto) Superficie cerramiento x $ / m2 +/ - variación según estado de conservación y an güedad del edificio.

En caso de tener más de una pología de cerramiento sumar los montos de obra de cálculo. En los casos de marquesinas computar la superficie de proyección en planta o ver cal según po.

Tabla de Variación según estado de conservación y an güedad del edificio:

An güedad en años Estado de conservación E 1E 2E 3E 4

10 a 21-40% -30%-20%0%

21 a 34-35%-25%-15%+5%

34 a 50-30%-20%-10%+15%

50 a 71-25%-15%-5%+20%

Más de 71-20%-10%0%+25%

Estado 1: Bueno sin necesidad de reparaciones. Estado 2: Regular de mantenimiento con reparaciones menores sin patologías. Estado 3: Regular con patologías de bajo riesgo. Estado 4: Malo con patologías de alto riesgo.

2. Honorario

3. Con el mzonto de obra resultante aplicar la tabla vigente de Informe Técnico.

Planes especiales para arquitectos en

ASUNTOS MUNICIPALES
Comisión de Asuntos Norma vos. CAPBA IX
Arq.
capba IX 09 EJERCICIO PROFESIONAL
Con nuación. Arq. DANIEL
ANTONIO MONZON Secretario
JULIA ALEJANDRA ROMERO Presidente

Doctrina del colegio de arquitectos

El rol del director de obra y el representante técnico

Ante las dudas interpreta vas que la norma va vigente, previo a la sanción de la Resolución CAPBA Nº 67/10, había generado y los constantes requerimientos de los Juzgados en lo Civil y Comercial, Tribunales del Trabajo y Delegaciones Ministeriales del área, así como del Ministerio Público Fiscal, entre otros, solicitando aclaraciones sobre los diversos aspectos inherentes a los roles de director de obra y de representante técnico, el Consejo Superior del CAPBA resolvió determinar con precisión dichos roles. En esta publicación realizamos una síntesis de los aspectos más relevantes que los matriculados debemos conocer.

Alcances de la Dirección de Obra y la Representación Técnica

En la Resolución se expone que el desempeño de las tareas a cargo de los Arquitectos cuando actúan como profesionales liberales, retribuidas mediante honorarios, es ajeno a la creación de los riesgos y la obtención de los beneficios de naturaleza empresarial, y, por ende, en su ejercicio se comprometen siempre responsabilidades caracterizadas por factores de atribución subje vos, materializadas en obligaciones de medios. Por ello, el CAPBA en ende que no es posible prometer un resultado al asumir los roles de Proyec sta, Director de Obra (en cualquiera de sus modalidades) y Representante Técnico. Entre otras razones, porque quienes se encargan dichas funciones no poseen poder coerci vo alguno sobre los demás agentes del proceso construc vo. Y, por ende, no se concibe lógicamente asegurar el resultado de la ac vidad de un tercero. Esto adquiere especial relevancia con relación a las partes de la relación jurídica sustancial, esto es, las que celebran la locación de obra material (constructordueño de la obra) que son quienes deberán, con el debido asesoramiento de los profesionales de actuación –restringido a lo cien fico-arquitectónicoejercer las acciones per nentes con arreglo a las normas aplicables.

Responsabilidades del empresario

Asimismo, contrariamente a cuanto ocurre en el desempeño de los roles de obra precitados, en el ejercicio de la ac vidad propia de un Empresario Constructor se dis nguen las siguientes notas caracterís cas:

a) se promete un resultado concreto, es decir, se asumen responsabilidades de neto corte obje vo;

b) la ac vidad en cues ón cons tuye ejercicio del comercio;

c) la actuación como constructor no apareja ejercicio profesional de la arquitectura, y, consecuentemente, su contralor se encuentra excluido de la competencia reglada a este CAPBA;

d) la ac vidad de un empresario constructor puede ser asumida por cualquier persona sica o jurídica, sin necesidad de que esta cuente con tulo alguno, siempre y cuando al hacerlo dé cumplimento a lo

capba IX 10 EJERCICIO PROFESIONAL

dispuesto por el Art. 6º de la Ley Nº 10405 y/o en las prescripciones concordantes de otras leyes. Esto es, encontrarse representada técnicamente por un profesional con suficientes incumbencias;

e) el empresario persigue la obtención de un beneficio, para lo cual asume los riesgos.

Interpretación del Decreto Arancelario

Por otro lado, la interpretación literal de lo dispuesto por el art. 4º inc. b) del tulo VIII del Decreto Nº 6964/65 conduce a errores conceptuales. El CAPBA en ende que, no es cierto que un director ejecu vo asuma “…todas las responsabilidades del director y el constructor…”, como de allí surge, ya que:

a) esa modalidad de dirección únicamente se presta en obras ejecutadas por el sistema de administración;

b) en tal sistema, la empresa constructora es asumida por el dueño o beneficiario de la obra, que es quien crea los riesgos y ob ene los beneficios de tal ac vidad (el que estriba en realizar la obra a menor costo o, dicho de otro modo, a disminuir esos costos evitando trasladarlos total o parcialmente a terceros empresarios). Nunca por el profesional al que contrata para suplir su carencia de conocimientos cien fico-arquitectónicos;

c) que tanto la Ley Nº 4048, vigente al empo de la sanción del Decreto Nº 6964/65, como la actual Nº 10405, han estatuido la obligación para todo empresario, sin dis nción alguna, de contar con un representante técnico;

d) que, en todo caso, corresponde entender que, cuando el precepto citado en el arancel alude a la responsabilidad “del constructor”, se refiere no a la responsabilidad obje va de éste en tanto empresa (la que se encuentra integrada por un haz de factores que exceden lo estrictamente arquitectónico para ingresar en el campo de la economía en general -a saber económicos, financieros, legales, laborales, entre otros-) sino a las responsabilidades derivadas de la praxis arquitectónica, en su faz estrictamente cien fica;

e) que una escala arancelaria no es apropiada para establecer normas deontológicas, y menos aún para legislar acerca de responsabilidad de los profesionales liberales. Razón por la cual, como mínimo, las prescripciones que al respecto con ene el arancel no pueden brindan más que una orientación general acerca de cuál es la prestación que se está retribuyendo;

Cuando el Director de Obra es a la vez Empresario

En este caso, la reunión en una misma persona de los status de dueño de la obra y empresario constructor de ella ha sido recibida por la más autorizada doctrina y obtenido respaldo en los tribunales. En este punto, cabe enfa zar que en ningún caso el desempeño de los roles de director de obras (ni aún en sus modalidades “por contratos separados” o “ejecu vo”) importa asumir las responsabilidades empresarias del constructor: esta recae en cualquier caso en el comitente empresario, o en los terceros contra stas –según sea el sistema de ejecución adoptado-, pero nunca en aquellos.

En el mismo sen do, el rol de un Director Ejecu vo se integra mediante el cumplimiento de la suma de las prestaciones que hubiesen correspondido a un Director de Obra y un Representante Técnico si es que de ellas se hubiese encargado a profesionales dis ntos. Por ello, la razón por la cual se acepta que el comitente-empresario de una obra ejecutada por el sistema de administración no designe a un Representante Técnico dis nto del Director de Obra es, precisamente, porque el Director de Obra de actuación en tales supuestos (denominado “Director Ejecu vo”) es a la vez Director y Representante Técnico. Lo cual se admite en este único supuesto ya que, por no ser dueño y empresario constructor dos sujetos de derecho dis ntos, sino encontrarse reunidas tales funciones en una misma persona, un único profesional puede asumir los dos roles antes nombrados toda vez que, al hacerlo, no estará representando intereses jurídicos contrapuestos.

En el caso del desempeño de la representación técnica conlleva como misión esencial la defensa de los intereses (los estrictamente arquitectónicos) de un empresario constructor, frente a los del dueño de la obra que el director de obras representa por oposición a los de aquel. Es decir que, cuanto menos dos (2) profesionales dis ntos han de asumir en cada obra los roles de Director de Obra y Representante Técnico –salvo en las obras ejecutadas por administración, como se ha expuestolo cual no importa la transferencia a ninguno de esos profesionales de las responsabilidades que la legislación civil pone en cabeza del dueño y del guardián (Art. 1113º del citado cuerpo legal)

DOCTRINA capba IX 11 EJERCICIO PROFESIONAL

La dirección por Contratos Separados

Que el suplemento de honorarios que corresponde percibir al Director de Obra en un proceso construc vo ejecutado por múl ples contra stas (conocido como “dirección de obras por contratos separados”) se funda en la mayor complejidad que apareja para el director de actuación en el contexto del sistema de ejecución adoptado. Esa complejidad deriva de la necesidad de coordinar, seguir y controlar a un mayor número de agentes intervinientes en el proceso, sin injerencia alguna en la administración. No obstante ello, no apareja para el profesional en ningún caso la asunción de responsabilidad alguna propia de quienes celebraran esos contratos múl ples con el dueño de la obra, en tanto estos, por definición empresarios constructores de determinados rubros, son quienes asumen las mismas. En esta modalidad cabe destacar que la ley obliga también a los contra stas múl ples a contar con la debida representación técnica, ya que no se dis ngue entre contra sta total o parcial (art. 6º, Ley Nº 10405) Tales son los casos de los contra stas encargados de las instalaciones de todo po, de la albañilería, de la estructura independiente de hormigón armado, de la fabricación y montaje de estructuras metálicas re culadas, entre otros.

Alcances de la norma va laboral

En tanto, en materia laboral puede destacarse la exclusión dispuesta por la ley que rige la materia para los Proyec stas, Directores de Obra (de cualquier modalidad que esta fuere), así como de los Representantes Técnicos, respecto de las obligaciones de garan a establecidas por la legislación laboral para los empresarios constructores (cfme. arts. 2º inc. a) y 35º de la Ley Nº 22250; art. 75º de la Ley Nº 20744, y arts. 4º y 16º del tulo I del Decreto P.E.N. Nº 911/96 -texto s/S.R.T. Nº 1830/05). Vemos que, el art. 32º de

la Ley Nº 22250, que alude a profesionales cuando “actuaren como constructores”, refiere a aquellos casos en que se asumen dos roles de obra simultáneamente: la hipótesis es la de un empresario constructor que, por poseer el tulo y la matrícula per nentes, además representa técnicamente su propia ac vidad comercial. Es decir, se trata de un doble status jurídico: por un lado se es empresario, y, por otro, se ejerce profesionalmente la arquitectura en forma liberal.

Resolución Nº 67/10, la doctrina del CAPBA

1|Toda obra ejecutada por un empresario constructor único, dis nto del dueño de ella, debe contar con un Director de Obra que represente los intereses de este úl mo, así como con un Representante Técnico que haga lo propio con los del empresario. El Director de Obra de actuación en tal supuesto percibirá, como mínimo, el 40% del 100% de los honorarios, conforme a la tabla XVIII inserta en el art. 8º del tulo VIII del Decreto Nº 6964/65. Se en ende, como regla general, que la única excepción a la obligatoriedad de designar Representantes Técnicos dis ntos del Director de Obra tendrá lugar en aquellos supuestos en que los documentos estén suscriptos en carácter de “director ejecu vo” conforme al art. 3º de la presente.

2|

El director de toda obra que se ejecute mediante el concurso de terceros contra stas múl ples (“Director por Contratos Separados”) percibirá un suplemento de honorarios igual al 100% de los que correspondan al “director de obras” cuya actuación se prescribe en el contexto del art. 1º de la presente, que resultará así duplicado en su can dad. La designación de un “Director de Obra por contratos separados” no importa relevar a los dis ntos contra stas de contar con la debida representación técnica, en cumplimiento de lo dispuesto por el art. 6º de la Ley Nº 10405.

3|

Toda obra ejecutada por administración debe contar con un “Director Ejecu vo”. En tales supuestos, la representación técnica del dueño / empresario constructor se en ende incluida en las prestaciones a cargo del “Director Ejecu vo”, que percibirá un suplemento igual al 200% de los honorarios que corresponden al “Director de Obra” cuya actuación se prescribe en el contexto del art. 1º de la presente, que resultará así triplicado en su can dad.

4|

Los honorarios dispuestos para retribuir a la dirección de obras conforme al art. 1º de la presente deberán ser incrementados con el suplemento por interpretación de proyecto de ajena autoría, cuando correspondiere de acuerdo al Decreto Nº 1111/74. El suplemento prescripto en tales casos será de aplicación

capba IX 12 EJERCICIO PROFESIONAL

simultánea –y se adicionará a los mismos- con sus similares dispuestos por los arts. 2º y 3º de la presente, pero no será considerado en la base de cálculo para la duplicación o triplicación en ellos previstas, según fuere.

representación técnica de su propia ac vidad comercial, exigiéndosele en consecuencia el pago de aportes y de C.E.P. correspondientes.

5|

En ningún supuesto, y sin importar qué dispongan los reglamentos municipales al respecto, se entenderá que los profesionales a cargo de la dirección de obra (prac cada en la modalidad que fuere, conforme a los arts. 1º a 3º de la presente), así como tampoco los representantes técnicos, asumen el rol de empresarios constructores ni, consecuentemente, la calidad de empleadores de la industria de la construcción. Asimismo, la planificación y control de los aspectos de salud y seguridad regulados por el decreto P.E.N. Nº 911/96 resulta incompa ble con cualquier otro rol profesional desempeñado en la misma obra.

8| El CAPBA no otorgará ningún cer ficado que acredite que determinada persona se desempeñará como constructor en determinada obra.

9|

6|

El CAPBA no visará contratos de locación de obra material (construcción) ni exigirá la determinación del o los empresarios constructores al momento del visado.

La presente cons tuye la doctrina oficial del Colegio de Arquitectos de la Provincia de Buenos Aires, poseyendo idén co valor en sus considerandos y en su parte resolu va. Cualquier órgano colegial que deba expedirse sobre la materia aquí abordada se ceñirá a la misma y, en caso de tratarse de requerimientos escritos, acompañará copia de la presente resolución a todo pedido de informe librado por autoridad administra va o judicial que requiera opinión sobre cualquier aspecto inherente a la dirección de obra en sus dis ntas modalidades o a la representación técnica.

7|

Si el empresario constructor fuese un arquitecto, y así lo determinase en un documento presentado a visado colegial, se entenderá, salvo que el mismo opte por designar a otro profesional o técnico para encargarse de la función, que el profesional asume la

Finalmente, cabe informar a nuestros colegas que el texto completo de esta norma va colegial, así como otras que abundan en las prescripciones para el ejercicio profesional, pueden ser consultadas en el si o web del Consejo Superior del CAPBA www.capbacs.com.ar, en la solapa Ins tucional donde se puede acceder a la sección “Asuntos Legales”.

DOCTRINA 13

FICHA TÉCNICA

CATEGORÍA

Culto

UBICACIÓN

Bolívar Nº 2577 - Mar del Plata

PROYECTO Y DIRECCIÓN

Arq. Germán G. Paulo – Mat. 20623

REPRESENTACIÓN TÉCNICA

Ing. Osvaldo G. Busca – Mat. 13790

EMPRESA CONSTRUCTORA

HTMCA GROUP S.R.L.

JEFE DE OBRA

Tahar Bensadalaah

SUPERFICIES

Subsuelo: 150 m²

Planta Baja: 150 m²

1er piso: 90 m²

2do Piso: 90 m²

3er Piso: 60 m²

ARQUITECTURA RELIGIOSA

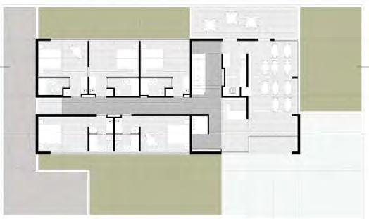
Mezquita sunita en Mar del Plata

En diciembre de 2012 recibimos la encomienda para proyectar y ejecutar un edificio de índole religiosa y con un amplio programa de necesidades sobre una propiedad muy reducida. A esta complejidad se le sumaron una serie de pautas ajenas al co diano desarrollo de la arquitectura de occidente, a saber: la orientación de ciertos locales en dirección a La Meca y el orden entre ellos respecto de ésta, dividiéndolos entre puros e impuros. La división de los espacios para hombres y mujeres, y sus circulaciones independientes también fueron requisito.

La Mezquita se sitúa en el centro de la ciudad de Mar del Plata, destacándose por su es lo colorido y ornamentación. Dadas las dimensiones reducidas del lote (8.66 m x 17.32 m) el edificio debió desarrollarse en altura para cumplir con el extenso programa. Se aprovechó la condición existente de completamiento de la planta baja y debajo de ésta se ejecutó un subsuelo también u lizando una condición, en este caso parcial, de desnivel existente.

capba IX 14 EJERCICIO PROFESIONAL
Sala de oración

Sala

DIRECCIÓNDEQIBLA

DIRECCIÓNDEQIBLA

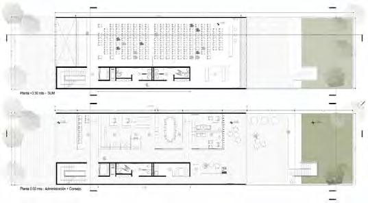
PLANTA BAJA PRIMER PISO SUBSUELO
de Oración. Vista hacia el Mihrab. BAÑO HOMBRES E.M. E.M. E.M. E.M. E.M. E.M. HABITACIÓN JANAZA HABITACIÓN JAMAAT COCINA SALAAH SECUNDARIADIRECCIÓNDEQIBLA -1.60 CIRCULACIÓN PROYECCIÓN WUDU OFICINA E.M. E.M. E.M. E.M. E.M. E.M. ENTRADA DE MUJERES Y SECUNDARIA ENTRADA PRINCIPAL REMOCIÓN DEL ZAPATO SALAAH PRINCIPAL +1.30
TOILETTE MIRHAB WUDU E.M. E.M. E.M. E.M. E.M. E.M. PATIO DE LOS NIÑOS +5.20 MAADRASSA HOMBRES LUCERNARIO WUDU
WUDU MAADRASSA DAMAS +5.25 COCINA capba IX 16 EJERCICIO PROFESIONAL
FACHADA SEGUNDO PISOTERCER PISO OBRAS EN EL DISTRITO
- abluciones, en planta
+8.30 E.M. E.M. E.M. E.M. E.M. E.M. DORMITORIO SALÓN HALL SALÓN COCINA TERRAZA SALÓN E.M. E.M. E.M. E.M. E.M. E.M. S.U.M. TERRAZA +11.25 capba IX 17 EJERCICIO PROFESIONAL
Wudu
baja

Su fachada representa a la comunidad musulmana con rasgos caracterís cos de la cultura islámica: la cúpula, el minarete u lizado para convocar a los fieles a la oración, los arcos ojivales, las cerámicas artesanales que conforman dibujos e inscripciones picas.

El acceso se ubica a medio nivel cons tuido por una gran puerta-vitral. En el hall principal encontramos un plano de agua, elemento caracterís co de este po de edificios. La planta principal cons tuye el área des nada a la oración. La religión establece ciertos rituales previos: quitarse el calzado y purificarse mediante el lavado en los Wudu o abluciones. Esta planta cuenta tambien con una oficina.

Para la Salahh o sala de oración se preparó una estructura de luz libre de 8.60 m para evitar los apoyos intermedios.

Los musulmanes rezan en cinco ocasiones durante el día, siempre orientándose hacia La Meca. El Mihrab (equivalente al altar para otras religiones) se encuentra perpendicular a esta dirección y los dibujos en las alfombras indican la posición del rezo. La precisión dada para reflejar esta orientación fue un giro horario respecto del norte de 76º con cuatro digitos, tomado con aplicaciones tecnológicas para la ubicación de Mar del Plata.

Descendiendo medio nivel se ubica el subsuelo, con una sala de oración secundaria y las áreas de servicio: duchas, baños, cocina, un lugar de intecambio (Jamaat Room) e incluso un lugar para venerar a los muertos (Janaza Room). Por mo vos religiosos, todos los locales de servicio se consideran impuros y deben estar alejados de la orientación a La Meca.

Tomando cualquiera de las circulaciones ver cales se accede al primer piso donde se encuentran las Maadrassa o aulas de enseñanza (una para hombres y otra para mujeres, con posibilidad de unificarse) y los servicios correspondientes. También en esta planta se encuentra una terraza de juego para los niños, que cuenta con una cubierta parcialmente vidriada

en una inclinacion perpendicular a la dirección de La Mecca desde donde se ilumina cenitalmente la Salaah. Esta planta cuenta con baños y abluciones.

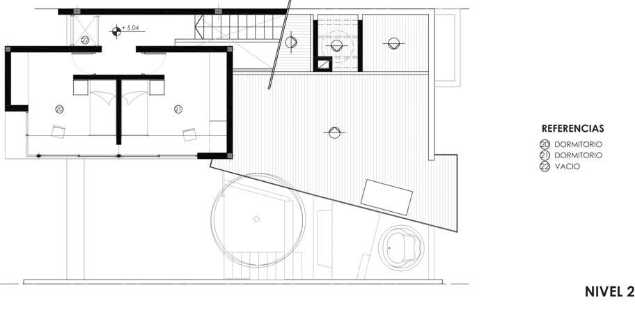
En el segundo piso se ubican tres unidades de vivienda des nadas> una de ellas a la persona encargada del edificio y las dos restantes a albergar a aquellas personas que vienen a misionar por un empo limitado. Por úl mo, el tercer piso está cons tuido por un salón de usos múl ples y parrilla.

La mezquita remata su cubierta con una cúpula de 3,5 m de diámetro coronada por la luna creciente, símbolo del Islam, y el minarete (equivalente a un campanario) que dadas las proporciones del edificio es una estructura simbólica y no es transitable.

Sobre la estructura de hormigón portante se trabajó con ladrillos de hormigón celular Retak y sobre éstos se aplicaron los enlucidos de yeso en interior y revoques, y reves mientos plás cos en exterior, contrafrente y medianeras. En la fachada hay varios elementos de compleja realización como por ejemplo las molduras curvas en los arcos de ventanas que fueron realizadas en polies reno expandido de alta densidad de forma recta y luego cortadas para su curvado. La venecita fue colocada copiando dibujos trasladados a la fachada y las inscripciones fueron pintadas a mano sobre cerámica y horneadas para su conservación. Todo esto supervisado por un especialista en iconogra a árabe enviado desde Sudáfrica.

La cúpula es una boveda de ladrillo común revocada y reves da en venecita, el minarete es una estructura de hormigón ornamentada con molduras aplicadas en saliente. La puerta principal de dos hojas de madera con vidrio pintado y horneado es también un trabajo artesanal realizado en Mar del Plata.

Los trabajos iniciaron el 30 de sep embre de 2013 y la Mezquita fue formalmente inaugurada el 5 de Sep embre de 2014.

Detalle puerta
capba IX 18 EJERCICIO PROFESIONAL
Wudu - abluciones en Planta Alta Hall principal

FICHA TÉCNICA

CATEGORÍA

Vivienda unifamiliar

UBICACIÓN

Strobel Nº 4270 - Mar del Plata

PROYECTO Y DIRECCIÓN

Estudio Moreira I Zanabre

Arq. Mariana Moreira,

Arq. Mauro Zanabre

SUPERFICIES

Superficie de terreno: 231.10 m²

Superficie Cubierta: 185 m²

Superficie Semi-cubierta: 32 m²

Inicio de Proyecto: Agosto de 2011

Comienzo Obra: Mayo de 2012

Finalización Obra: Noviembre de 2013

VIVIENDA UNIFAMILIAR

Casa Strobel

MEMORIA DESCRIPTIVA

Esta vivienda unifamiliar se encuentra emplazada en un lote entre medianeras y de acotadas dimensiones (24.25 x 9.53), en un pico barrio residencial de baja densidad de la ciudad de Mar del Plata. El programa consta de tres dormitorios, un estudio, sector social, servicios, lugar para dos autos, parrilla y expansiones.

Al momento de proyectar, surgieron las premisas de aprovechar al máximo posible la luz natural y de contar con espacios de disfrute exterior, las cuales llevaron a la decisión de volcar la vivienda hacia uno de sus laterales provocando un desarrollo en ver cal de las ac vidades, mediante un sistema de tercios de nivel, dando lugar a que todos los ambientes principales quedaran en relación a su correspondiente sector de expansión exterior ubicados hacia a la mejor orientación.

capba IX 20 EJERCICIO PROFESIONAL
capba IX 21 EJERCICIO PROFESIONAL
22

El acceso a la vivienda se da a través de un semi-cubierto levemente enterrado, en el cual se dejan los autos y a par r de allí, se proponen dos recorridos ascendentes, uno interior y otro exterior.

RECORRIDO INTERIOR

Desde el nivel de ingreso se puede acceder al sector de estudio con un baño de servicio y subiendo unos escalones se encuentra el comedor, junto a la cocina, en relación al jardín y al semi-cubierto de la parrilla. En el primer nivel, dominando las visuales hacia la calle y a la altura de la copa de los árboles del barrio, se ubica el sector de estar, con una amplia expansión lateral; relacionándose visual y espacialmente con el comedor a través de un vacío y potenciando la diagonal tanto en planta como en corte.

Siguiendo el recorrido, se disponen los sectores privados, sobre el comedor y la cocina, el dormitorio principal con su expansión privada y un baño compar mentado que puede usarse tanto en suite como de manera independiente, y sobre el estar, los dormitorios de los niños, suspendidos en un volumen de chapa que vuela hacia el frente.

RECORRIDO EXTERIOR

En paralelo al acceso al interior de la vivienda se inicia un recorrido exterior que vincula los sectores de expansión públicos, comunicando el semi-cubierto de los autos con el de la parrilla, el jardín trasero y la expansión del estar en el primer nivel, propiciando una relación fluida entre estos espacios girando alrededor un cantero central.

En la elección de los materiales se priorizó el bajo mantenimiento y la durabilidad. En su aplicación, tanto la piedra, como el hormigón, la chapa y la madera se con núan dentro y fuera de la vivienda potenciando la relación interior-exterior.

OBRAS EN EL DISTRITO capba IX 23 EJERCICIO PROFESIONAL

Desde 1971 Maderera San Francisco se destaca por ser una empresa dedicada a la venta y distribución de materiales relacionados con la industria del mueble, la construcción, la decoración y el embellecimiento del hábitat interior. En sus sucursales el profesional podrá encontrar la mejor atención y un excelente asesoramiento en las úl mas innovaciones tecnológicas de la industria.

FORMICA® TS Estructural

El laminado robusto, compacto y autoportante

Una de las novedades del mercado en laminados puede ser adquirida en San Francisco. Se trata de FORMICA® TS Estructural, un laminado compacto, robusto y autoportante, que se ha desarrollado especialmente para aplicaciones que prescindan del uso de materiales base para su sustentación. Posee estabilidad dimensional, alta resistencia al desgaste y al impacto. Indicado para áreas internas, es un material que resiste también al calor, a las manchas y al ataque de productos químicos domés cos que no sean abrasivos.

Aplicaciones Puede emplearse en mobiliario y construcción. Se puede u lizar en estanterías, divisorias (convencionales y/o sanitarias), stands, zócalos, canchas de bolos, puertas de muebles, mobiliario escolar, entre otros usos.

También está indicado para transporte público, como ómnibus, vagones de subterráneo, vagones ferroviarios y colec vos. Se usa ampliamente en placas de señalización visual (en calles, paradas de ómnibus, etc.)

Composición Su composición se basa en la impregnación de capas sucesivas de materiales celulósicos (papel) con resinas termoestables (melamínicas y fenólicas), que forman un conjunto que se prensa por medio de calor y alta presión.

Limpieza Como su superficie es lisa y sin poros, no re ene suciedad, por lo tanto dificulta la proliferación de hongos y bacterias. FORMICA® TS Estructural es an alérgico. Su limpieza y conservación es muy simple, apenas un paño humedecido con detergente o alcohol es suficiente para dejarlo como nuevo durante años.

Se recomienda no emplear productos y materiales abrasivos, del po jabón de pulir, esponja de acero o esponja abrasiva ya que estos productos rayan irreversiblemente su superficie.

De igual manera se debe evitar el uso de cera (o silicona), que aplicada en la superficie del FORMICA® TS Estructural forma una película grasosa, que dificulta la limpieza y perjudica su presentación.

DIMENSIÓN (m) 1,56 x 3,66 ESPESORES (mm) 3,0 - 4,0 - 6,0 - 8,0 - 10,0 ACABADOS
capba IX 24 EJERCICIO PROFESIONAL
Brillante(BR) - Frost (FT)Texturizado (TX)

ESPECIFICACIONES TÉCNICAS

ASESORAMIENTO
Contacto: Mar n Iriarte - 223 154 363 878 - mar nsanfranmad@gmail.com ACABADOSESPESORES (mm)ESPE SORES (mm) MODELOS (mm) MODELOS (mm) DIMENSIONES (m) Brillante (BR) 2,0/3,0/4,06,0/8,0/10,02,0/3,0/4,06,0/8,0/10,0  Todos del muestrarioConsultar 1,25 x 2,51 1,25 x 3,08 1,56 x 3,66 Brush (BS)  Cotelé (CT)  Diagonale (DL)  Frost (FT)  Lakan (LK)  Ma e (MT)  Texturizado (TX)  Top Ma e (TP)  Wood Poro (WP)  Rús co (RU)  Stone (ST)  Nature (NT)  PROPIEDADES NORMAS UNIDADES VALORES Densidad ISO 1183 Kg/m3 1400 a 1500 Resistencia a la abrasión ISO 4586 1/2 Ciclos Mín. 350 Absorción de agua (10,0 mm) ISO 4586 1/2 % Peso 2,0 máx.Espesor 2,0 máx. Estabilidad dimensional (10,0 mm) ISO 4586 1/2 % Long 0,15 Trans. 0,40 Resistencia a las manchas ISO 4586 1/2 Grupo 1+2 Grupo 3+4 Mín. 5 Mín. 4 Conduc bilidad térmica DIN 52612 Wa /m ºK 0,25 Dureza Rockwell ASTM D 785 HRE 97 ca Resistencia a la flexión ruptura: Longitudinal Transversal ISO 178 MPa Mpa 145 135 Módulo de Elas cidad: Longitudinal Transversal ISO 178 N/mm2 N/mm2 Mín. 15000 Mín. 12000 Resistencia a la compersión ISO 604 Kg/cm2 240 Resistencia al impacto ISO 4586 1/2 Mm de queda Mín. 1270 25
TÉCNICO

Casapack

Sistema construc vo prefabricado construc

Una forma diferente de construir en base a material tradicional, con libertad de modificar medidas interiores y materiales de terminaciones, para adaptarse a los requerimientos de planes de viviendas públicos y/o privados.

Contacto: 0223 155 213400

DESCRIPCIÓN DEL SISTEMA El sistema Casapack está conformado por módulos de hormigón H21 (piso, cubierta y 1 o 2 muros) con doble malla electro soldada, planchas de polies reno expandido, membrana para barrera de vapor, e instalaciones eléctricas embu das en todos los muros. Se trata de un nuevo sistema prefabricado que ya ene incorporada la cubierta, y que por u lizar hormigón en un gran porcentaje y reducida mano de obra, hace que el costo compara vo con otros materiales empleados en las viviendas tradicionales, se vea reducido en un 60% aproximadamente.

Para la concreción de la construcción, la infraestructura necesaria es similar a la tradicional pero con menor mano de obra. Precisa de uno o más moldes metálicos, una grúa de 25 toneladas, y un carretón para 11 toneladas para elaborar los módulos in situ a través de camiones po Mix o plantas móviles elaboradoras de hormigón.

Los módulos resultantes se apoyan sobre vigas de hormigón también premoldeadas, y las instalaciones sanitarias se sitúan en la cámara de aire de 25 cm entre el terreno y la losa del piso del módulo. El acople de estos módulos según el proyecto, conforma la vivienda, cuya expresión mínima es de 2 módulos (uno es baño y cocina). El sistema ofrece la posibilidad de superponer los módulos (los inferiores enen la cubierta plana), obteniéndose variantes de viviendas en planta baja y en planta alta.

Las terminaciones exteriores propuestas constan de revoque plás co con color (muros y cubierta), carpintería de aluminio natural con vidrios simples y molduras pegadas sobre las aberturas. Las terminaciones interiores propuestas consisten en pisos de cerámica 30 x 30 cm., placas de yeso pegadas, cielorraso a la vista pintado, paredes en baño y cocina con reves miento cerámico, mueble bajo mesada de 1,20 m. con mesada de granito recons tuido y una bacha de

2M 24,00 m2
Arq. Eduardo R. Águila
capba IX DESARROLLO URBANO SUSTENTABLE 26

acero; baño completo con pie de ducha, pintura interior, puertas placas con herrajes, zócalos de fibrofácil pintados e instalaciones interiores.

El acople de módulos de hormigón, puede producir variantes en los proyectos y las terminaciones exteriores agregándole valor a través del uso de otros materiales, pero manteniéndose siempre una reducción de costo del 60% en la construcción base, en relación a otras viviendas similares. El costo actualizado en Mar del Plata es de $ 2.600/m2, con las terminaciones mencionadas y sin las obras exteriores (cisterna o pozos, conexiones, muros divisorios, veredas, etc.).

VENTAJAS DEL SISTEMA Al tener cámara de aire, los interiores se man enen con ausencia de humedad y a temperaturas estables. Por otra parte, cada módulo al estar conformado por una losa con nua de hormigón en piso, paredes y cubierta, no produce grietas ni uniones de materiales y precisa de un mínimo mantenimiento. Los muros y la cubierta incluyen planchas de polies reno expandido (espesor según el coeficiente «k») y membrana de barrera de vapor, lo que permite la obtención del coeficiente térmico requerido. Al no tener los materiales de los techos tradicionales, no acarrea los problemas comunes de falta de mantenimiento, afección por fuertes vientos, etc. La pendiente de las cubiertas facilita la adaptación a «techos verdes» y la instalación de colectores solares. El sistema Casapack –de marca registrada- actualmente man ene en trámite su patente y la obtención de la e queta IRAM de ahorro de energía por las ventajas expresadas en favor del medio ambiente. Es destacable que, además del ahorro en costos y energía, brinda posibilidad de rápidas y fáciles ampliaciones de proyecto incorporando más módulos.

BENEFICIOS COMPARATIVOS El producto final es visualmente similar a una vivienda tradicional –puesto que sus materiales son tradicionales- pero con una diferente e innovadora forma de construir. En comparación con la obra habitual, el sistema propuesto otorga a la obra:

 Mayor rapidez.

 Reducción de mano de obra.

 Ahorro del 60% del costo.

 Mínimo mantenimiento.

 Mínima infraestructura e inversión.

 Durabilidad extendida por las caracterís cas del hormigón armado como material base.

 Posibilidad de elaborar el hormigón in situ de forma manual (de no acceder a los camiones mix o a plantas móviles elaboradoras de hormigón).

 Posibilidad de aumento proporcional de moldeo, con mayor can dad de moldes.

 Recupero total de los moldes.

 Ampliaciones rápidas y simples con módulos similares.

 Posibilidad de empleo del sistema para la generación de viviendas dignas de interés social, sin “vicios ocultos” y ventajas de aislación como la cámara de aire.

INDUSTRIALIZACIÓN
2 módulos 2 módulos, variante Con planta alta, dúplex individual techo inver do Con planta alta, 2 dúplex apareados
capba IX DESARROLLO URBANO SUSTENTABLE 27
3 módulos

Consideraciones para la accesibilidad en playas

La ciudad de Mar del Plata, cabecera del Par do de Gral. Pueyrredon, históricamente se cons tuyó como la villa balnearia de la elite porteña, siendo el turismo una de las bases económicas de sus habitantes. En la actualidad es una de las ciudades turís cas más importantes del país, caracterizada por su espacio público costero, que a modo de rambla se desarrolla en toda la extensión posible de costa.

Las playas son uno de los atrac vos más importantes de esta área, por esto es que la inclusividad en el acceso a las mismas cons tuye para Mar del Plata y las demás ciudades costeras de la región un enorme desa o presente y futuro.

En este ar culo trataremos de enumerar algunos requerimientos necesarios para que una playa o sector costero sea accesible. Primero, es importante saber que para que una playa sea accesible debe tener un punto de acceso al mar. Para que esto pueda acompañarse con el debido disfrute, hay que considerar cues ones básicas como el ingreso a la playa y la permanencia en la misma; esta úl ma implica transitar la arena y llegar al mar. Generalmente ambas cues ones se logran con un i nerario o circuito, a con nuación se detalla cada paso del mismo.

LLEGAR A LA PLAYA

Al menos una ruta de acceso debe conectar las paradas de transporte público, zonas de estacionamiento accesible y paseos o costaneras con la entrada accesible a la playa. En sectores de estacionamientos hay que reservar espacios señalizados para personas con discapacidad, que deben cumplir con las dimensiones correctas y estar comunicados con los accesos peatonales a la playa. Es deseable que el acceso principal no tenga diferencia de nivel y en caso de que exis era, se debe salvar con una rampa de suave pendiente.1 (Imagen 1)

1 Éstas deberán ser de superficie antideslizante, buen contraste cromático, franja táctil de advertencia al inicio y fin y pasamanos a ambos lados. Las escaleras deberán contar con las mismas caracterís cas de seguridad. Dichas caracterís cas fueron descriptas anteriormente en el ar culo “Criterios accesibles en edificios públicos” “, en Revista Info Capba IX, Nº 7.

Imagen 2
capba IX DESARROLLO URBANO SUSTENTABLE 28
Imagen 1

PERMANECER EN LA PLAYA

Pasarelas en playas

Es necesario establecer sobre la arena un i nerario que sea estable y que permita la circulación en forma autónoma de sillas de rueda o coches de niño.

Estos i nerarios pueden ser de madera u otro material que impida el atasco de las ruedas en la arena. Deberán contar con contraste cromá co en relación a la arena y extenderse desde el inicio de la rampa de acceso hasta la orilla del mar.

Parece obvio el comentario, pero diremos también que su ubicación debe ser próxima a los lugares de servicios de la playa como quioscos, mobiliario de playa, duchas, baños accesibles2, etc.

El ancho mínimo de la pasarela será de 1,20 m y la disposición de los tablones o material elegido se realizará de manera que sea siempre perpendicular al sen do de circulación.3 (Imagen 1)

Zona de sombrillas y duchas

Dentro de este i nerario es importante contemplar una zona con sombrillas reservadas para personas con discapacidad y sus acompañantes. Este espacio deberá tener un solado firme, an deslizante y estar comunicado con los restantes sectores del balneario mediante un sendero de un ancho mínimo 1,20 m. Dentro de esta plataforma se deberá garan zar el desplazamiento de una persona con discapacidad motriz en el espacio des nado a sombra (sombrillas o toldos) mediante circulaciones interiores de un ancho mínimo de 0,90 m y sectores de giro libre de obstáculos de 1,50 m de diámetro. (Imagen 2)

Dentro del mismo criterio las duchas forman parte del circuito accesible (Imagen 3)

ACCESO AL MAR

Acceder al mar es una de las situaciones más placenteras dentro de una playa, para que pueda ser disfrutada por todos será necesario des nar una zona de baño par cular debidamente señalizada (Imagen 4) y que pueda estar asis da por personal especializado. En la zona de baño deben disponerse diferentes ayudas técnicas que describiremos a con nuación: Playas de Barcelona

Muletas Anfibias: son muletas especiales para que las personas con discapacidad motora puedan meterse en el agua más fácilmente. Una vez en el agua, hay soportes especiales para dejar las muletas durante el empo del baño. (Imágenes 5 y 6)

2 Las consideraciones para los baños accesibles están descriptas anteriormente en el ar culo “Criterios accesibles en edificios públicos” “, en Revista Info Capba IX, Nº 7.

3 La separación entre tablones no podrá ser superior a los 16 mm. Previo a la colocación debe nivelarse el trayecto.

ACCESIBILIDAD
Imagen 3 Imagen 4 Imagen 5
capba IX DESARROLLO URBANO SUSTENTABLE 29
Imagen 6

Sillas anfibias: se trata de sillas de material resistente con ruedas de PVC o similar. Este servicio de sillas anfibias incluye la silla y la asistencia calificada brindada por el balneario para ayudar a internarse en el agua con la provisión del chaleco salvavidas correspondiente.

(Imagen 7)

Boyas: delimitan la zona permi da para el baño, son especialmente ú les para personas con discapacidad visual, ya que les sirve como orientación para no salirse de la zona de baño. (Imagen 8)

Escolleras accesibles: Fuera de las arenas de las playas, pero dentro de este paisaje están las escolleras, no es imposible pensar que todos podamos pasear por ellas con los mismos criterios descriptos anteriormente, como son un solado firme, barandas y sectores estancos, etc. Es posible generar esta situación y permi r la contemplación y el disfrute del paisaje. (imágenes 9, 10 y 11 ejemplos de escolleras en Puerto Mont, Chile y Miraflores)

Del mismo modo se pueden adaptar sectores donde se desarrolla la pesca, teniendo en cuenta consideraciones par culares como el ancho mínimo del i nerario de 1,60 m para permi r una circulación de dos sillas de ruedas, una en cada sen do o la incorporación de un sistema de apoyo horizontal a 0,85 m de altura para facilitar el uso de la caña de pescar de una persona en silla de ruedas. También la ubicación de bancos para personas que acompañen a los pescadores depor vos, o quieran permanecer en el lugar. Éstos deben ser ubicados fuera del recorrido peatonal, en una superficie estable, segura y an deslizante.

PLAYAS ACCESIBLES EN MAR DEL PLATA…

En nuestra ciudad, se han realizado de manera paula na acciones que permiten pensar en un futuro de Accesibilidad para las playas, aunque aún falta

Imagen 7 Imagen 8 Imagen 9 Muelle de Puerto Mont, Chile. Imágenes 10-11 Playa Miraflores, Perú.
30

mucho más. Sabemos que las condiciones geográficas -barrancas y desniveles-, suelen ser uno de los mayores condicionantes para este tema, sin embargo, existen soluciones proyectuales que minimizan su impacto y acercan a diferentes usuarios al paseo costero, como es el caso del nuevo diseño de la playa Varese en Mar del Plata. En otros complejos -como la Perla- existe como alterna va la u lización de ascensor (playa Alicante) para llegar solamente hasta el sector de carpas; mientras que en la mayoría de los balnearios no está planteado el tema siquiera.

Podemos encontrar en algunas playas estacionamiento señalizado (Punta Mogotes) y en otras -muy pocashay equipamiento específico como las ayudas técnicas mencionadas anteriormente (algunas playas del sur).

Lo cierto es que como dijéramos, las acciones enen que ser pensadas en su totalidad como si de una cadena se tratase, ya que de poco vale llegar a la playa pero no poder bañarse o ducharse. Debe planificarse y diseñarse un i nerario de ac vidades.

Nuestras ciudades costeras pertenecen a uno de los circuitos turís cos más importantes del país, es necesario plantearnos estos requerimientos y considerarlos como una necesidad, y no como un plus dentro del servicio que brindan las playas. Y, por sobre todo, instar a que estas pautas sean impulsadas por el sector público e imitadas por el privado.

La costa es “el” lugar de nuestra ciudad, hagamos que sea posible disfrutarlo entre todos.

Arq. Mariana Yeannes

Mg. en Ges ón Ambiental del Desarrollo Urbano

Bibliogra a de referencia:

h p://www.barrera-cero.com/guias-turismo-accesible/espana/islascanarias/tenerife/

h p://cermi.es/documentos/descargar/TurismoAccesible

h p://www.ada.gov/

Enrique Rovira-Beleta

ACCESIBILIDAD 31
Cuyas. Ediciones UPC / Mutua Universal. Libro Blanco de la Accesibilidad, 2006, España.

Edificios y Espacios Públicos de Balcarce

Fueron incorporados al Patrimonio Histórico Nacional

El año 2014 dejó buenas no cias para el Patrimonio de la región distrital. En el mes de agosto, la presidente de la Nación, Cris na Fernández, firmó el Decreto Nº 1138 mediante el cual se declara Patrimonio Histórico Nacional a dis ntos edificios bonaerenses, entre ellos se hallan obras de la ciudad de Balcarce.

El Decreto del P.E.N. Nº 1138/14 incluye dentro del Patrimonio Histórico Nacional a obras de la Provincia de Buenos Aires que fueron gestadas durante la gobernación de Manuel Fresco, entre los años 1936 y 1940. Durante su ges ón se inició un ambicioso programa de obras públicas tendiente a transformar a cada pueblo bonaerense en una ciudad.

Los edificios declarados mediante este Decreto forman un conjunto de diversas obras cívicas -palacios municipales, portales de cementerios, plazas, mataderos- con fuerte contenido simbólico y que enen en común haber sido encargados al ingeniero-arquitecto Francisco Salamone.

Del Par do de Balcarce fueron incluidos dos Delegaciones municipales (la de Los Pinos y San Agus n), el ex Matadero Municipal y la Plaza Libertad. Se trata de obras reconocidas por su es lo Art Decó, que hasta el momento eran parte del patrimonio provincial y a par r de este decreto ya son parte del patrimonio del país.

El Art Decó con su lenguaje geométrico fue desarrollado por Salamone en juegos de planos rectos, circulares, entrantes y salientes que crearon par culares volúmenes ar culados en el espacio. El equipamiento urbano por él ideado —fuentes, farolas, puentes, pérgolas, más les— ofrece un magnífico complemento a su obra y jerarquiza el entorno de sus plazas, con una impronta futurista.

La labor del arquitecto es resaltada en el decreto inscribiéndola dentro de las ideas y propuestas del movimiento moderno que une el concepto de funcionalidad con el uso de nuevos materiales y técnicas construc vas. También en el texto se destaca que sus palacios municipales (al menos en diez ciudades bonaerenses y ejecutados en menos de cuatro años junto a casi un centenar de obras de su autoría) son “símbolos del rol eminente del estado y de la solidez, autoridad y estabilidad de sus ins tuciones que se inspiran en los edificios comunales del medioevo tardío europeo”.

32

La obra de Salamone está viviendo desde hace un empo un merecido reconocimiento que se percibe a través de acciones de restauración y puesta en valor patrimonial. Así lo demuestran-en el caso de Balcarce- las obras ejecutadas en el ex Matadero Municipal y la plaza Libertad, junto a otros edificios importantes de la ciudad como la Escuela Normal y el Cementerio Municipal.

Los edificios de Salamone son especialmente fascinantes por cons tuir una obra única en el mundo dentro de la fase neocolonial, y por tanto se muestran atrac vos para el turismo arquitectónico.

Del DECRETO 1138/14: “Art. 5° — a) Decláranse monumentos históricos nacionales al MATADERO MUNICIPAL, ubicado en la avenida Eva PERÓN entre las calles Nros. 116 y 118 de la Ciudad de BALCARCE (Nomenclatura Catastral: Circunscripción XI, Sección A, Chacra 19), y a la PLAZA LIBERTAD, ubicada entre las calles Nros. 15, 16, 17 y 18 de la Ciudad de BALCARCE (Nomenclatura catastral: Circunscripción I, Sección B, Manzana 120). b) Decláranse bienes de interés histórico y ar s co nacional a la DELEGACION MUNICIPAL ubicado en la calle principal sin número frente a la plaza principal, en la Localidad de LOS PINOS (Nomenclatura Catastral: Circunscripción IX, Sección A, Manzana 54, Parcela 1); y a la DELEGACION MUNICIPAL ubicada en la calle HERNÁNDEZ entre las calles SAGRADA FAMILIA y MARTÍNEZ, en la Localidad de SAN AGUSTÍN (Nomenclatura Catastral: Circunscripción X, Sección A, Manzana 24, Parcela 5), todos ellos en el Par do de BALCARCE, Provincia de BUENOS AIRES.”

PATRIMONIO
33
Escuela Normal - Delegación Los Pinos - Delegación San Agus n Portal del Cementerio Municipal - Ex Matadero Municipal - Plaza Libertad

Vista hotel

Obra dis nguida en la BIA- AR 2014

La obra Vista Hotel, del arquitecto Antonio Carrasco, postulada en la Bienal Internacional de Arquitectura de Argen na (BIA-AR 2014), ha sido Dis nguida por los curadores de la Bienal para ser exhibida y publicada en la muestra y en el catálogo de la edición 2014 como una de las realizaciones integradas en la sección ‘Polí cas de oficio, tradición e innovación’.

La BIA-AR 2014 se desarrolló del 12 al 14 de noviembre con sedes en Córdoba y en Buenos Aires. El programa del simposio de esta edición se tuló “Principios”, con la intención de fijar la atención en cues ones de base en los diferentes aspectos vinculados con el desarrollo y producción de la arquitectura, las ciudades y el paisaje.

FICHA TÉCNICA

CATEGORÍA

Apart Hotel

UBICACIÓN

Paseo 137 y Costanera

Villa Gesell, Buenos Aires

PROYECTO Y DIRECCIÓN

Arq. Antonio Carrasco.

EMPRESA CONSTRUCTORA

Arq. Antonio Carrasco.

COLABORADORES

Arq. Pablo Videla - Tadeo Itzcovich

Calculo estructural: Ing. Carlos Bereilh.

Créditos Fotográficos: Diego MedinaDC fotogra a.

SUPERFICIE CUBIERTA

1200 m2.

AÑO 2011-2014

LA OBRA DISTINGUIDA, EN LA MEMORIA DE SU AUTOR

Icono

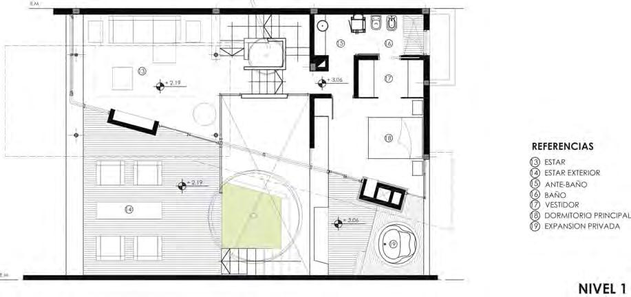
El conjunto, situado en el límite sur de la ciudad de Villa Gesell, conforma un hotel para veraneo, con sus habitaciones, zonas comunes y áreas de spa. Este programa se ordena en cinco plantas: un nivel intermedio de acceso, donde se sitúan la recepción, habitaciones, la cocina y la cafetería; un nivel inferior para salón de usos múl ples, vestuarios y cocheras; dos niveles superiores de habitaciones; un úl mo nivel de habitaciones, spa y áreas técnicas. Este nivel superior de spa, se prolonga hasta el nivel de la cubierta, donde se encuentran el solárium y la piscina exterior.

Contexto

La solución consiste en una plataforma niveladora que recibe el volumen del hotel. El mismo retranqueado respecto a la calle, se eleva desde la plataforma a la espera de otras arquitecturas que se realicen en el futuro. La plataforma equilibra el volumen ver cal del hotel con la escala del entorno asumiendo su condición de zócalo.

capba IX DESARROLLO URBANO SUSTENTABLE 34

Materia

Decía Alejandro de la Sota: “Hemos pasado ya por aquella fase de dar forma arquitectónica, hacer composiciones de volúmenes con aquellos que resultaban de las dis ntas partes de un mismo programa de necesidades. Un cubo que funcione, pesa mucho”.

Sistema

La distribución parte de la lógica de que todas las unidades tengan buena vista al mar, esto se resolvió colocando todas las habitaciones en un mismo sen do, tanto las fren stas al mar con el aventanamiento en el lado menor y las habitaciones laterales en el lado mayor, para que tengan vista de escorzo.

Vínculos

El edificio se presenta, con el basamento a modo de proa, avanzando sobre la pendiente, sobre la cual recae la responsabilidad de la presencia notoria del hotel desde el exterior. Ubicamos el acceso en el lado opuesto, vinculado al mar, para luego tener una posición privilegiada sobre el entorno.

Se tomó como premisa para el ordenamiento de relaciones visuales, que solamente el océano se viera desde las habitaciones, y el entorno sólo desde las circulaciones.

Se unificaron programas hacia el exterior, asegurándonos de que todas las circulaciones obligaran al visitante a estar en relación directa con el exterior.

Inves gación

Un edificio de hotel es un programa abandonado a la arquitectura de la piel, no hay programa con temas tan preestablecidos sobre los cuales intentamos realizar inves gaciones programá cas. Hemos definido una única unidad de habitación en la que al natural baño, se sumó una kitchene e. Según la orientación, sólo alteramos el programa de apoyo logrando una variación de relaciones internas en la propia habitación, como así en las relaciones generales.

El intento consis ó en llevar a cabo un replanteamiento claro, una volumetría sin disonancias y una fachada po contenedor que fuera capaz de diluir la ubicación de habitaciones, baños y circulaciones, en una calle donde los chalets “californianos” exhiben con dignidad su esplendor propio de otro momento del país.

PREMIO BIA-AR
Arq. Antonio Carrasco Jasón 1041 - oficina 1 - Pinamar +54 2254 480575 www.antoniocarrasco.com Planta baja Planta úl ma Vista Sur Vista Este
capba IX DESARROLLO URBANO SUSTENTABLE 35
Planta po

MINI BIO

Antonio Carrasco (1977) Es arquitecto egresado de la Universidad de Buenos Aires, realizó una Maestría en Diseño Arquitectónico en la Escuela Técnica Superior de Arquitectura, Universidad de Navarra, España. Beca Universidad Torcuato Di Tella - Universidad de Navarra. Actualmente realiza el Doctorado en Proyectos Arquitectónicos en la Escuela Técnica Superior de Arquitectura, Universitat Politècnica de Catalunya, España. Ha sido profesor en la Carrera de Arquitectura y en el Programa para Graduados, Arquitectura y Tecnologías, de la Escuela de Arquitectura y Estudios Urbanos de la Universidad Torcuato Di Tella, Buenos Aires. Ha recibido numerosos premios en concursos nacionales de anteproyectos, su obra ha sido exhibida en diversas exposiciones y publicaciones de arquitectura. Entre algunos de los premios y dis nciones recibidos se cuentan:

2012: SELECCIONADO

Argen na: Iden dad en la diversidad. Biennale de Archite ura 2012, Common Ground. Venezia. Italia.

2012: SEGUNDO PREMIO y MENCIÓN ESPECIAL

Concurso Provincial de Anteproyectos Edificio Central de la Coopera va Telefónica de Pinamar. Buenos Aires. Argen na.

2012: MENCIÓN

PREMIOS ARQ 2011, Escala Menor Nacional. Casa en Canning. Organizado por Clarín y FADEA (Federación Argen na de En dades de Arquitectos).

2011: TERCER PREMIO

Premios ARQ, Escala menor, Región Buenos Aires. Clarín - FADEA (Federación Argen na de En dades de Arquitectos).

2010: SEGUNDO PREMIO

Concurso Privado de 9 Viviendas en José Ignacio. Maldonado, Uruguay.

2006: TERCER PREMIO

Concurso Nacional de Anteproyectos para la Remodelación de Plaza de Mayo. Buenos Aires, Argen na.

2005: PRIMER PREMIO

Concurso de Ideas Estancia Jesuí ca Colonia Caroya. Córdoba, Argen na.

2005: MENCIÓN HONORÍFICA

Concurso Nacional de Anteproyectos para la sede del Concejo Deliberante de Córdoba. Argen na.

2005: PRIMER PREMIO

Concurso Nacional Estación de Transferencia de Pasajeros para Concepción. Tucumán, Argen na.

36

Concurso Nacional de Anteproyectos para el Complejo Judicial de Necochea

La aprobación de la firma del Acta Acuerdo encamina la concreción del llamado a concurso.

El pasado mes de octubre la Suprema Corte de Jus cia de la Provincia de Buenos Aires, aprobó por Resolución Nº 2854/14 la firma y el texto de un Acta Acuerdo a suscribir con el Ministerio de Infraestructura, el Municipio de Necochea, el Colegio de Arquitectos de la Provincia de Buenos Aires y el CAPBA Distrito IX, con el fin de convocar conjuntamente al “Concurso Nacional de Anteproyectos a dos vueltas” para la ejecución del Complejo Judicial del Departamento Necochea.

La acordada fue firmada por los jueces Daniel Soria, Juan Carlos Hi ers, Luis Genoud, Eduardo Pe giani y Eduardo de Lázzari, quienes en el texto de la resolución mencionan como antecedente la existencia de la Ley N° 13795, que declara en emergencia edilicia la infraestructura del Poder Judicial. También se remarcan las disposiciones de la Ley N° 14190 por la cual se aprueba el Plan de Infraestructura Edilicia elaborado por la Suprema Corte de Jus cia y la Procuración General (conforme Resolución N° 3048/08), contenido que fuera ra ficado por Decreto del Poder Ejecu vo N° 3149/08, en el marco de lo normado por el art. 31º de la Ley Nº 5827.

La Resolución de la Suprema Corte indica que “dentro de los emprendimientos consignados en el Plan aprobado, se es mó prioritaria la construcción del “Complejo Judicial del Departamento Judicial Necochea”. Por otra parte, se recuerda en el texto que el municipio cedió, a tal fin, los terrenos comprendidos entre las calles 43, 45, avenida 58 y 60, frente a la Terminal de Ómnibus.

El próximo paso es la firma del Acta Acuerdo cuyo texto establece un premio de $500.000 para el proyecto

ganador, $75.000 para el segundo, $35.000 para el tercer premio y dos menciones de $10.000 cada una. La Resolución Nº 2854/14 que incluye como Anexo el texto del Acta Acuerdo, puede ser consultada on-line en el si o web de la de la Suprema Corte de Jus cia provincial, h p://www.scba.gov.ar/

Una vez culminada la etapa de firma del Acta, los siguientes meses estarán des nados a la elaboración de las bases del concurso. Sin dudas se trata de una excelente no cia para el Departamento Judicial Necochea y para los profesionales de la arquitectura, que una vez más podrán hallar en el mecanismo de concursos, un vía propicia para manifestar pluralidad de ideas y soluciones en obras de gran necesidad para el desarrollo urbano planificado. La funcionalidad y la imagen ins tucional naturalmente serán partes fundamentales de la resolución proyectual buscada al servicio de ‘hacer ciudad’.

capba IX DESARROLLO URBANO SUSTENTABLE 38

Resultados del Concurso Provincial de Anteproyectos de

para la Sede del Colegio de Psicólogos de la Provincia de Buenos Aires Distrito X

En el mes de sep embre pasado, el jurado compuesto por los arquitectos Roberto Jakubowicz –votado por los par cipantes-, Ma as De Luigi -designado por la FADEA-, Eduardo Zak -en representación del CAPBA DIX-, Ernesto Calvo Piñón y el Lic. Sergio Genchi -en representación del Colegio de Psicólogos de la Provincia de Buenos Aires, Distrito X-, se cons tuyó para dar paso a la selección de los proyectos del Concurso Provincial de Anteproyectos para la Sede del Colegio de Psicólogos de la Provincia de Buenos Aires, Distrito X.

La mencionada sede se emplazará en el terreno ubicado en calle Castelli, entre Dorrego y 14 de Julio, de la ciudad de Mar del Plata.

En la reunión el jurado primeramente efectuó la lectura de las bases y aceptó la nómina de sesenta y seis proyectos presentados por el Asesor, Arq. Miguel Ángel Bartolucci.

Luego se definieron los siguientes puntos a modo de Criterios y Pautas de Evaluación:

1. Cumplimiento del programa planteado en las bases del concurso.

2. Carácter del edificio en función de su rol representa vo e imagen ins tucional.

3. Etapabilidad planteada en las bases, ar culada en función de su construibilidad, funcionalidad y aspecto expresivo, tanto del todo como de sus partes, ponderando la importancia de la imagen ins tucional en cada etapa.

4. Adecuación del ante-proyecto a la norma va municipal existente, respetando su espíritu y posibilitando su viabilidad reglamentaria para las dis ntas etapas.

5. Criterios de economía, guardando coherencia entre propuesta proyectual y materialidad del edificio en cada etapa según posibilidades económicas.

En el Acta el Jurado dejó constancia de que ninguno de los trabajos evaluados alcanzó a resolver la totalidad de los criterios considerados previamente como relevantes.

Entre las crí cas destacadas correspondientes a los trabajos galardonados, mencionamos:

Primer Premio: se valoraron los recursos simples y austeros propuestos para la iden dad del edificio, u lizados en frente, contrafrente y medianera de pa o central, permi endo la con nuidad de la imagen en las tres etapas principales planteadas. También se apreció la generación de acceso principal y complementario; y la ubicación de ra de servicios y área servida flexible que resuelve con simpleza los paquetes y sectores del programa. La opción por tres pa os que ayudan a generar en los sectores una relación interior-exterior que enriquece y vitaliza los espacios también fue tenida en cuenta. El jurado recomendó ajustes menores sólo al primer premio.

capba IX DESARROLLO URBANO SUSTENTABLE 40

Segundo Premio: se valoró el planteo de pór cos como respuesta expresiva y técnico construc va, que da un aspecto ‘final’ desde la primera etapa, y aporta un camino simple para los demás crecimientos. Asimismo, se vio con buenos ojos la propuesta de pór cos, tres pa os, y vacío entre el primero y segundo pisos, que generan fluidez espacial y buena relación interior-exterior. El jurado hizo observaciones sobre algunas dificultades funcionales en circulaciones y alturas de pór cos que implican superficies dudosas entre segunda y tercera etapa, inclusión del nivel intermedio y costo excesivo.

Tercer Premio: la claridad funcional de la propuesta en todos los niveles y el núcleo de servicios bien ar culado y organizador de circulaciones fluidas y jerarquizadas entre las dis ntas áreas fueron bien ponderados. Sin embargo, se observó que su dimensionamiento limita las superficies servidas en el ancho y desproporciona al SUM. Se es mó la simpleza estructural y poca u lización de mampostería interna permi endo mayor flexibilidad y economía de recursos. También la “fachada tensada liviana”, fue considerada un buen recurso al construirlo totalmente en la primera etapa proporcionando una imagen ins tucional completa (aunque se menciona como crí ca adversa la omisión a la construibilidad de la misma). El jurado también hizo observaciones sobre la ubicación del SUM en la primera planta y su consecuente mayor inversión inicial. Además menciona un espacio semi-cubierto de grandes dimensiones en planta baja, propuesto sin aclaración de uso hasta la segunda etapa; y el quincho ubicado en el subsuelo, que siendo una construcción prevista para la úl ma etapa, dificulta considerablemente la excavación.

Además de los tres premios principales el jurado otorgó menciones sin orden de mérito a los proyectos en los que consideró que algún aporte contribuía a la reflexión sobre la problemá ca abordada y su discusión disciplinar.

Entre los aportes de las dis ntas menciones valoró:

 Una propuesta de cambio de uso de espacios flexibles entre la primera y la segunda etapa, “enroque” sencillo y económico entre funciones;

 Una estructura modular mixta, de metal y hormigón prefabricado, para dar respuesta a un crecimiento racional y modular coherente acorde a las dis ntas etapas;

 La generación de una caja virtual que diera riqueza y espacialidad vital a las plantas de aulas y administración, si bien aclaró el jurado que lo que es virtud en alguna planta se transforma en problema en otras.

CONCURSOS
41

1º Premio

Autores:

Arq. Ferlan, Jaquelina / Arq. Sbarra, Leandro / Arq. Sbarra, Mauro

Equipo de Proyecto:

Arq. Mantesa, Juan Manuel / Arq. Scalise, Lila

Colaboradores:

Srta. Fuentealba, Ma. de los Ángeles / Sr. Mones Ruiz, Hernán

Sr. Mercado, Fernando / Sr. Nievas Micucci, Eduardo

Srta. Prado, Roció / Dcv. Belloro, Cris an / Dcv. Sbarra, Ignacio

capba IX DESARROLLO URBANO SUSTENTABLE 42
CONCURSOS capba IX DESARROLLO URBANO SUSTENTABLE 43

2º Premio

Autores:

Arq. Breccia, Gabriel / Arq. Bustamante, Gisela

Colaboradores:

Arq. Vignola, Mariano / Arq. Raiber , Mariana

Arq. Molina, María Belén / Sr. Wall, Felipe / Sr. Caride, Agus n

Digitalización de imágenes: Sr. Cochero, Francisco

Asesor Inst. Termodinámicas: Arq. Raiber , Gustavo

capba IX DESARROLLO URBANO SUSTENTABLE 44

Autores:

Arq. Posik, Guillermo Luis / Arq. Reynoso, Pablo Daniel

Colaboradores:

Sr. Palacios Beltrán, Franco / Sr. Scinardo Tenghi, Juan Mar n

Sr. Torres, Pablo

3º Premio

Autor:

Arq. Labbate, Fernando

Colaboradores: Arq. Sapia, Anabella Jesica

- Arq. Fortunato, Leonardo Alejandro, asesor

estructural Ing. Gurrieri, Manuel Marcelo

Menciones sin Orden de Mérito

Autor: Arq. Míguez, Álvaro Javier

Autor: Arq. Miranda, Andrés Sebas án

CONCURSOS
capba IX DESARROLLO URBANO SUSTENTABLE 45

En la semana del 15 al 17 de octubre próximo pasado, y tal como se viene desarrollando desde los úl mos tres años, se realizó en la Plaza del Agua la “III SEMANA DE LA SUSTENTABILIDAD URBANO AMBIENTAL y CAMBIO CLIMÁTICO. Convocada en esta oportunidad bajo el lema: “Transformación e Innovación Social para la Sustentabilidad”. El encuentro fue organizado por el Colegio de Arquitectos D. IX, Obras Sanitarias S.E. Mar del Plata- Batán, el Colegio de Ingenieros D. II, el Centro de Ingenieros, y el Colegio de Técnicos D. V; y contó con el auspicio del ENOSUR, la Facultad de Arquitectura, Diseño y Urbanismo, el IDS Ins tuto de Desarrollo Sustentable, Consejo Superior del CAPBA; el Colegio de Abogados y el Foro Sectorial de la Construcción.

III Semana de la Sustentabilidad

Urbano Ambiental Ambiental y Cambio Climá co

“Transformación e Innovación Social para la Sustentabilidad”
capba IX DESARROLLO URBANO SUSTENTABLE 46

El obje vo de las jornadas fue el de promover la labor educa va des nada a la comunidad en general y a los profesionales, en par cular, en la generación de una conciencia responsable sobre el uso racional de la energía, los recursos naturales, la generación de residuos y la par cipación ciudadana en el desarrollo sostenible de las ciudades.

En esta oportunidad el ciclo se programó en tres jornadas, las cuales fueron agrupadas en variadas temá cas vinculadas al obje vo central. Luego del acto formal de apertura, a cargo de las autoridades de las en dades organizadoras, el día 15 los temas rondaron acerca del tema “Agua y Saneamiento”, en los que se presentaron experiencias vinculadas a la temá ca. Los tres expositores que se presentaron por la mañana refirieron al: Programa de Ciudades Emergentes y Sustentables -Inicia va BID,Unidad Ejecutora ICE; al Ente Nacional de Obras Hídricas de Saneamiento (ENOHSA) en Mar del Plata: Agua + Trabajo, Promes y Pays- Emisario Submarino, presentado por el Ing. José María Luján; y a la Modernización en la ges ón de empresarial. La experiencia de OSSE como empresa Municipal, a cargo del Ing. Mario Dell’ Olio, Presidente del Directorio de Obras Sanitarias S.E. Mar del Plata- Batán.

Mientras que por la tarde, el Dr. Daniel Mar nez presentó la Ges ón del recurso Hídrico en el Sudeste Bonaerense y el Dr. Héctor Massone: El proceso de ges ón del riesgo de inundación en áreas urbanas y periurbanas. Ambos expositores son inves gadores de la UNMDP. Posteriormente el Lic. Marcelo Scagliola disertó acerca de la Calidad del Vuelco en el sistema Cloacal, Emisario Submarino y Futura Planta (EDAR).

Por úl mo, y como cierre de la jornada, la Dra. Inés Camilloni1 disertó sobre el tema: Argen na y el cambio climá co: proyecciones para el siglo XXI con la moderación del Arq. Horacio Goyeneche (IDS CS CAPBA).

En su presentación, la doctora, a par r del concepto de cambio climá co y cómo es reconocido como uno de los problemas ambientales globales más complejos y que mayores desa os presenta a la sociedad, presentó los escenarios climá cos previstos para Argen na para lo que resta del siglo XXI y las incer dumbres inherentes a estas proyecciones futuras. Finalmente, se discu ó

1 Centro de Inves gaciones del Mar y la Atmósfera (CIMA-UBA/ CONICET) y Departamento de Ciencias de la Atmósfera y los Océanos. Facultad de Ciencias Exactas y Naturales. Universidad de Buenos Aires y miembro del Comité Cien fico del Programa Interdisciplinario sobre Cambio Climá co (PIUBACC).

SUSTENTABILIDAD capba IX DESARROLLO URBANO SUSTENTABLE 47

acerca de la u lización de los escenarios presentados para la evaluación de impactos climá cos y en estudios de vulnerabilidad y adaptación al cambio climá co.

El día 16 se realizó el 6º Taller Temático, ac vidad que ha sido promovida desde el Ins tuto de Estudios Urbanos del CAPBA DIX con relación a incluir en el debate, a los matriculados y público en general, en el abordaje interdisciplinario de diversas temá cas y variables que deberían incorporarse en la revisión del marco norma vo de un Código de Ordenamiento Urbano Ambiental para el Par do de General Pueyrredon. En esta oportunidad se abordó la problemá ca urbana bajo el lema “Sostenibilidad y Ciudad”.

En el taller se presentaron cuatro charlas. La primera, a cargo de los Arqs. Celeste Sicardi2 y Mar n Sarasibar bajo el tulo: Polí ca Urbana y Sustentabilidad. El Escenario Costero Bonaerense, en donde fijaron lineamientos generales que hacen a los principios y obje vos de la sustentabilidad urbana y su relación con la Polí ca urbana y lo que una agenda de este po debería incorporar. En este marco se presentaron dos acciones que se vienen desarrollando en el marco del IEU, el proyecto de Desarrollo Urbano Costero y el Observatorio Ambiental

de Pinamar. Al cierre reflexionaron acerca de la necesidad de que más que hablar de ciudades sostenibles, se debe hablar de una estrategia de transición, capaz de paliar, al menos, la creciente insostenibilidad, definiendo un protocolo de presupuestos mínimos que, al establecer un marco inequívoco de prioridades, ayude a romper, e incluso a reconducir en favor de la sostenibilidad, las principales inercias mentales e ins tucionales desfavorables a ella.

La segunda, el arq. Arq. Marcelo Ar me, Presidente del Ente de Obras y Servicios Urbanos, ENOSUR, MGP; y bajo el tulo Hacia un Código de Ordenamiento Urbano Ambiental para General Pueyrredon. Desa os y Propuestas desde la Ges ón Ambiental, puntualizó acerca de la necesidad de incluir variables ambientales como nuevas consideraciones conceptuales que un COT debería contemplar. En la tercera, el arq. Arq. Guillermo Eciolaza, Decano de la FAUD- UNMDP, disertó acerca del Rol Social del Arquitecto: transformación e Innovación Social y Cultural para la sustentabilidad, y en ese marcó presentó los diversos proyectos que desde la FAUD se vienen implementado, desde la Secretaria de Extensión, como servicios que presta la Ins tución tanto a la

2 Coordinadora del Área Norte y del Área Sur, respec vamente, del IEU CAPBA D. IX.
capba IX DESARROLLO URBANO SUSTENTABLE 48

comunidad de su entorno como a la sociedad en general, para poner a su alcance el beneficio de la tecnología y del conocimiento.

Por úl mo, en la cuarta presentación, y como cierre de la jornada, la Lic. Patricia Pastore3 y el arq. Marcos Hernán Canciani, 4 ambos por la OPDS, disertaron sobre Polí cas Públicas del Ordenamiento Territorial aplicadas a la Sustentabilidad del Territorio. En donde presentaron la base jurídica ambiental de la PBA, los obje vos y principios de la polí ca ambiental, así como la historia ins tucional de la Autoridad Ambiental Provincial hasta la creación de la OPDS. Como caso de estudio y mediante un Convenio de Cooperación Interins tucional el caso del Plan de Balcarce.

El día 17, fue convocado bajo el lema: “Soñar Ciudad, Planear Ciudad, Crear Ciudad”. Durante la mañana se realizó un Taller a cargo del Comunicador Social Jorge

3 Dirección de Ordenamiento Ambiental Territorial. Coordinación Ejecu va de Fiscalización Ambiental. Organismo Provincial para el Desarrollo Sostenible. Directora.

4 Miembro de la DOAT. Arquitecto, egresado de la FAUD- UNLP y docente en dicha Ins tución en las materias de Planificación Territorial II y Procesos Construc vos I e inves gador del Centro Interdisciplinario de Estudios Complejos (CIEC - FAU/UNLP).

Melguizo, 5 y por la tarde y como cierre del evento, dictó una conferencia magistral: Medellín, un reto colec vo. En esta oportunidad presentó diferentes casos en los que ha venido trabajando desde el concepto de ingeniería cultural, tanto en Medellín como en la CABA.

Al inicio de la jornada vesper na el staff del ENOSUR, con el Arq. Marcelo Ar me, Presidente del ENOSUR, la Ing. Ambiental Gisella Arrigo, y los Ingenieros Industriales Ma as González Trigo y Nicolás Palermo, presentaron el Centro de Disposición de Residuos Sólidos Urbanos y el Proyecto de contenerización de residuos sólidos urbanos, en que la unidad viene trabajando. Los Talleres Par cipa vos del ENOSUR estuvieron a cargo del Ing. José Luis Ovcak, Director Ejecu vo ENOSUR, la Arq. María Emilia Pi aluga y la Arq. Gabriela Funes Balza, ambas del Área Técnica ENOSUR.

5 Comunicador Social, ex-Secretario de Cultura Ciudadana de la Alcaldía de Medellín (oct-2005 a ago-2007 alcalde Sergio Fajardo Valderrama y ene-2008 a mar-2008, alcalde Alonso Salaza) Con Fajardo ocupó también el cargo de Gerente del Centro entre sep2004 y oct-2005; con Salazar fue Secretario de Desarrollo Social entre mar-2009 y jul-2010. Actualmente coordina la Cátedra MedellínBarcelona, junto a Sergio Fajardo y Juan Luis Mejía Arango, y es Asesor del Gobierno de la Ciudad de Buenos Aires, desde 2012, para la Secretaría de Hábitat e Inclusión Social en proyectos de transformación de las villas en barrios. Conferencista internacional en ges ón pública, cultura y seguridad y convivencia.

Planes especiales para arquitectos en SUSTENTABILIDAD capba IX DESARROLLO URBANO SUSTENTABLE 49

Proyecto de Caja propia Proyecto

Debate de matriculados del CAPBA IX para construir un régimen de previsión y seguridad social basado en la solidaridad, equidad, responsabilidad y democracia.

El 18 de sep embre pasado hemos tenido la oportunidad de realizar la reunión de matriculados del CAPBA IX convocada para tratar el Proyecto de Caja de Previsión y Seguridad Social para Arquitectos de la Provincia de Buenos Aires, de la que par ciparon más de 80 colegas de todo el Distrito.

En la reunión par ciparon el Presidente, Vicepresidente y Secretario del Consejo Superior, quienes expusieron los aspectos centrales del proyecto que ese Consejo elevó a la Legislatura Provincial y los acuerdos polí cos suscriptos con los colegios profesionales que integran la CAAITBA para lograr la disolución del actual régimen previsional.

Vale decir que resultó mayoritario el apoyo que los colegas brindaron a la voluntad de contar con una caja propia de previsión, inicia va que históricamente ha sido impulsada por el CAPBA IX, y muy explícita ha sido la opinión referida la necesidad de con nuar con crí cas construc vas y propuestas que permitan corregir el proyecto de Ley

Los matriculados par cipantes expusieron sus inquietudes, las que giraron en torno a:

o El porcentaje de aportes previsionales futuro, su determinación y la determinación de la CMAO;

o La incorporación del servicio de salud dentro del mismo sistema previsional, tanto para ac vos como pasivos;

o Las deudas existentes con la actual caja;

o Las prestaciones futuras;

o Ar culo 29º;

o Hubo crí cas a la falta de debate previo con los matriculados de la Provincia y la falta de par cipación para la definición del proyecto;

Algunas opiniones dejaron a las claras que queda un largo camino por recorrer, que es necesario construir consensos tendientes a modificar el ar culado de la Ley presentada y fundamentalmente iniciar el trabajo de un proyecto de reglamentación que aborde los aspectos que hoy son promesas y compromisos que no se encuentran redactados ni explicitados en el proyecto de Ley, para que la opinión de los matriculados y sus propuestas puedan verse reflejadas en la nueva Ley de Caja.

Agradecemos a los colegas que par ciparon, a los que realizaron un análisis pormenorizado de algunos aspectos no definidos completamente, a los que preguntaron, a aquellos que opinaron e incluso a quienes realizaron propuestas, han demostrado madurez polí ca, tolerancia y voluntad de hacer públicas sus ideas y compar rlas con sus pares.

Desde el CAPBA IX, se ha reivindicado la labor de este Distrito, el compromiso siempre puesto en hacer conocer la opinión de sus matriculados, incluso arriesgando ser la única voz que se alza para promover una par cipación colec va, como única forma de crear un verdadero consenso. La ley es necesaria construirla entre todos.

Para los colegas que no pudieron asis r al encuentro, el registro audiovisual del mismo se encuentra a disposición en el canal Youtube del CAPBA IX: www.youtube.com/user/ capbadistrito9

capba IX ASUNTOS PREVISIONALES 50

Convalidación Proyecto de Caja Propia

La Asamblea Anual Ordinaria del CAPBA, realizada en la ciudad de La Plata el pasado 26 de noviembre, aprobó la convalidación del proyecto enviado a la Legislatura Provincial en el mes de Junio de 2014.

Si bien las adhesiones fueron mayoritarias, cabe señalar que muchas fueron las crí cas al proceso mediante el cual se gestó este proyecto y las referencias a la necesidad de realizar modificaciones que permitan corregir aspectos que no sa sfacen por completo al conjunto. Incluso vale decir que hubo votos nega vos y abstenciones a la convalidación pedida a la Asamblea Provincial, lo que demuestra que existen temas que abordar, incluso el voto posi vo del Distrito IX fue otorgado valorando la oportunidad de lograr una Caja Propia de Previsión y no por la valoración misma del proyecto al que este distrito ha cri cado públicamente y en diversas oportunidades.

Esperamos que comience una instancia de trabajo que permita atender las propuestas de los distritos, el proyecto de reglamentación para la futura Caja de Previsión y demás instancias de diálogo y par cipación necesarias para lograr el mejor sistema previsional.

Cómo se distribuye mi aporte a la CAAITBA?. Fe de erratas

En la edición Nº 8 de esta publicación, en la nota “ Trámites frecuentes ante la CAAITBA. ¿Cómo realizarlos? Preguntas habituales. Parte 3”, página nº 60, se detalló la distribución de los aportes que los afiliados realizamos conforme lo establecido en la Ley Nº 12490. Sin embargo, cabe corregir la información brindada en función de la Resolución del Consejo Ejecu vo Nº 386 del 22 de julio del 2010, mediante la cual se instrumentó lo resuelto por la Asamblea Ordinaria de Representantes del 25 de junio del mismo año.

Basado en el informe de la Comisión Asamblearia, que aconsejó reducir el porcentaje des nado a seguros, en esa resolución se fijó el porcentaje de los aportes

previsionales des nados al pago de los seguros citados en el ar culo treinta, primer párrafo, de la Ley Nº 12490, en el uno por ciento (1%). Esto comenzó a tener efecto y será aplicable a par r del día primero de enero de 2010. Los importes percibidos en demasía desde el 1º de enero de 2010 hasta la implementación de la presente resolución (equivalentes al 10%) fueron imputados del siguiente modo: a) Al fondo de capitalización individual (arts. 63º y sig. Ley Nº 12.490), b) En el supuesto de que el afiliado haya renunciado al cómputo del año (art.30º Ley Nº 12490), se le otorgará una nota de crédito en su favor (Resolución Nº 222).

ASUNTOS PREVISIONALES
51

1º LUNES DE OCTUBRE

Día Mundial de la Arquitectura y y el Hábitat Humano 2014

El día Mundial del Hábitat fue establecido en 1985 por la Asamblea General de las Naciones Unidas a través de la Resolución 40/202 y se celebró por primera vez en 1986. En consonancia, el primer lunes de octubre de cada año también se celebra desde 1996, el día Mundial de la Arquitectura. Esta conmemoración se unió a la previa por decisión de la Unión Internacional de Arquitectos (UIA) en su Asamblea tras el Congreso de Barcelona, unificando la evocación de la disciplina de la Arquitectura con el Día del Hábitat, dada la indiscu ble relación entre ambos.

El Día Mundial de la Arquitectura y el Hábitat Humano brinda cada año la oportunidad de reflexionar sobre el estado de los asentamientos humanos y el futuro que deseamos para nuestras ciudades.

Hoy día la mitad de la humanidad vive en ámbitos urbanos y las tendencias indican que la cifra aumentará

a dos tercios en las dos generaciones próximas. Con las acciones y las polí cas correctas las ciudades pueden llegar a aprovechar plenamente el potencial de vida sostenible, reducir las desigualdades y disparidades, y proporcionar un hogar para personas de todas las edades y culturas y medios económicos.

Es en relación al Día Mundial del Hábitat, que cada año Naciones Unidas elige un tema relacionado a la Agenda del Hábitat: su promoción sustentable, el desarrollo de polí cas de vivienda, servicios sociales, ambiente saludable, transporte y energía, protección de áreas verdes, creación de trabajo, ges ón de residuos, agua, entre otros. En 2014 las Naciones Unidas han decidido centrar la atención en las personas que residen o han residido en asentamientos informales y prestar oídos a “las voces de los barrios marginales”.

“Voces de los suburbios”
52

El lema 2014 es “Voces de los Suburbios”, y el obje vo es sensibilizar sobre las condiciones de vida de algunas zonas superpobladas del planeta en las cuales las viviendas no son adecuadas, las instalaciones de abastecimiento de agua y saneamiento son deficientes o inexistentes y la tenencia es insegura. Estas zonas, salvo raras excepciones, no disponen de espacios públicos ni reciben fondos para construir calles, por lo que carecen de transporte público y acceso a servicios de emergencia.

En el marco de los Obje vos de Desarrollo del Milenio, la comunidad mundial se comprome ó a mejorar las vidas de 100 millones de habitantes de barrios marginales antes de 2020. En 2010 la ONU logró la meta, pero con el aumento de la urbanización también son cada vez más las personas que nacen o se establecen en esas zonas, por lo que el total de habitantes de barrios marginales sigue

en ascenso (datos del Mensaje del Director Ejecu vo de ONU-Hábitat, Dr. Joan Clos, 2014).

Se calcula que ya hay mil millones de personas que viven en estos asentamientos, en precarias viviendas en laderas u otros lugares inadecuados y con materiales de mala calidad, lo que las hace vulnerables a deslizamientos de erra, inundaciones y terremotos. Estos barrios son la manifestación de un proceso urbanizador rápido e incontrolado, sin diseño ni regulación previos y sin tener en cuenta a sus habitantes.

En 2016 la Conferencia de las Naciones Unidas sobre la vivienda y el desarrollo sostenible (Hábitat III) nos encaminará hacia un nuevo programa urbano, mientras tanto se intenta mejorar la planificación de centros urbanos.

EFEMÉRIDES
53

Relevamiento de Opinión

de La opinión de los arquitectos sobre temas que nos incumben y preocupan

A par r de la alianza estratégica que el CAPBA IX se encuentra forjando con EPS Seguros, en esta oportunidad la empresa ha contratado a la Consultora Management & Fit para llevar a cabo una encuesta de opinión que nos ayudará a mejorar los servicios, beneficios y acciones que la Ins tución desarrolla y presta.

El CAPBA IX realizó un relevamiento de opinión, entre el 14 de agosto y el 4 de sep embre de presente año, de la que par cipó el 31% de los matriculados del Distrito. La metodología de inves gación fue de carácter cuan ta va, contando como material de base datos de la Ins tución y encuestas virtuales a través del sistema e-encuestas, y con la colaboración de la Consultora en el procesamiento.

Segmentación de la muestra

La composición demográfica de nuestra matrícula muestra que casi el 58% son hombres y que el 80% enen entre 31 y 60 años. Se advierte una importante incorporación de nuevos matriculados alcanzando el 31% los colegas que enen menos de 10 años de an güedad en el tulo.

Situación Laboral

El 80% de los matriculados ejercen la profesión en forma independiente y casi el 75% lo realiza en forma permanente. Las exigencias económicas y la modalidad de trabajo muestran que casi el 50% de los arquitectos trabaja más de 8 horas diarias.

Las principales tareas que los colegas realizan giran en torno a modalidades tradicionales del ejercicio profesional son: proyecto, dirección de obra en sus diversas modalidades, representación técnica. Es interesante

capba IX SOCIAL Y GREMIAL 54

observar que casi el 25% de los matriculados realiza tareas profesionales vinculadas al mantenimiento de fachadas. Lo que muestra la amplia inserción de los arquitectos en ese campo profesional.

Sin embargo, una mirada especial merece las tareas con poco desarrollo que podrían ofrecer oportunidades de diversificación profesional, como por ejemplo: servicios de Seguridad e Higiene, arquitectura e mera, arquitectura del paisaje, entre otras.

Servicios y Beneficios que ofrece el CAPBA

El 64% de los colegas conoce los servicios y beneficios que el Colegio de Arquitectos ofrece a sus matriculados, los más destacados por los encuestados fueron: asesoramiento, capacitación, convenios de descuentos, seguros y, en menor medida, conferencias, biblioteca, asistencia médica.

El grado de sa sfacción de los servicios que brinda el CAPBA supera mayoritariamente el 75%, siendo lo más valorado las publicaciones distritales y provinciales, así como el Centro de Documentación,

ENCUESTA
capba IX SOCIAL Y GREMIAL 55

el si o web y las gace llas electrónicas. Sin embargo, a juzgar por la poca valoración de un conjunto de servicios, entendemos que existe desinformación de los colegas sobre el total de los servicios que la Ins tución presta.

Respecto de los Beneficios que otorga el CAPBA, vemos que el descuento por pago anual an cipado, los seguros, el casco de obra, libro de órdenes y servicios y la agenda profesional, son los más valorados. Al igual que en el caso de los servicios, existen varios beneficios a disposición de los matriculados que ob enen poca valoración, ello nos llevará a revisar fundamentalmente los convenios que se ene con diversas empresas y comercios.

Resultó una gra ficación para la ges ón colegial, la valoración que los matriculados realizaron del desempeño del CAPBA IX. Las variables consultadas referidas a: calidad de las propuestas, atención a la diversidad de necesidades de los colegiados, frecuencia y calidad de la comunicación, calidez y eficiencia de la atención, planificación y organización de las ac vidades y calidad de la respuesta y resolución de problemas, responden a al simos niveles de sa sfacción. Ello sin duda nos mo va a con nuar esforzándonos para seguir creciendo y mejorando la ges ón que llevamos adelante.

Evidentemente una problemá ca a atender es la referida a los servicios de salud para arquitectos, el 31% de los matriculados señala este servicio como necesario de implementar desde el colegio. No obstante, consultados los colegas sobre las principales problemá cas a resolver, la Caja de Previsión y en menor medida los vínculos con la municipalidad y otras ins tuciones y cues ones administra vas aparecen como temas a profundizar. En este punto del relevamiento resulta llama vo el alto porcentaje, mayor al 25%, que no han querido contribuir con alguna opinión.

capba IX SOCIAL Y GREMIAL 56

Salud y asistencia

Previsión Social

El 25% de los matriculados manifiestan no tener una cobertura de salud. Sin embargo, del 75% que posee alguna cobertura, 30% la ob ene en forma obligatoria producto de su situación laboral. Las prestatarias más u lizadas por los arquitectos son IOMA, OSDE, Suma, HPC y Sami. El 75% de los matriculados considera que el Colegio o la Caja de Previsión deberían brindarles la cobertura de salud.

Sólo el 30% de los matriculados conoce los subsidios que el CAPBA otorga en diversas áreas. Los más difundidos son: el de nacimiento o adopción, el de fallecimiento y, en menor medida, el de salud.

En relación al futuro previsional de los arquitectos, el 30% de los colegas también realiza aportes a otro sistema previsional y, de ellos, solo el 30% posee alguna eximición al pago de la Cuota Mínima Anual Obligatoria.

Como releváramos en otras oportunidades casi el 40% de los colegas no alcanza a cubrir la CMAO con aportes por contratos de obra propia, lo que deja un gran segmento de la matrícula en una situación de exposición por futuros reclamos de la CAAITBA.

La voluntad de contar con un sistema previsional propio para los arquitectos ene una adhesión

ENCUESTA 57

de casi el 70% de los matriculados, quienes en el 50% manifiestan conocer el actual proyecto de Caja presentado ante la Legislatura Provincial. Otros sistemas previsionales son poco es mados por los consultados.

Respecto de los porcentajes de aportes para sostener el futuro sistema previsional, el 55% considera que no es razonable incrementar el aporte de la Caja a un 18% propuesto con la incorporación de la comunidad vinculante. Asimismo, ese segmento considera mayoritariamente que el porcentaje de aportes debería mantenerse en el orden del 10%. Consultados sobre la conveniencia de implementar el sistema de comunidad vinculante, el profesional y el comitente aportan solidariamente al régimen previsional, un al simo porcentaje no respondió a la consulta, lo que denota desconocimiento sobre el funcionamiento de la modalidad.

Los arquitectos en ac vidad profesional esperan recibir mayores beneficios del sistema previsional, reclamando en mayor medida servicios de salud, farmacia, préstamos y subsidios.

Ante la posibilidad de contar con un sistema previsional propio, los consultados desconocen ampliamente la implicancia de que el gobierno y la administración del régimen sean independientes o se encuentren bajo la tutela del Consejo Superior. Este ha sido uno de los aspectos más cues onados del Proyecto de Caja de Previsión y Asistencia Social que se enviara a la Cámara de Senadores de la Provincia de Buenos Aires y, a pesar de las aseveraciones sobre la igualdad de proyectos de todos los colegios, se advierte que otras en dades colegiales han perfilado organigramas y funcionamientos diferentes al de los arquitectos.

capba IX SOCIAL Y GREMIAL 58

Capacitación y actualización profesional

La fuerte dinámica que el CAPBA IX desarrolla en torno a la capacitación y actualización proporciona que más del 55% de los matriculados conozcan las propuestas en esta área. De quienes conocen éstas propuestas, el 63% ha concurrido a alguna charla técnica, el 44% al ciclo de conferencias de arquitectura y más del 16% han realizado algún curso de informá ca. A los efectos de planificar las propuestas a desarrollar el año próximo, los colegas requieren temá cas tales como: nuevas tecnologías y materiales, tareas de ges ón en municipalidades, aspectos legales, aspectos construc vos y patologías, entre una amplia lista de temá cas. Mayoritariamente prefieren la modalidad presencial, pero el dictado a distancia es una modalidad en crecimiento.

Protección y coberturas

Los arquitectos poseemos un abanico diverso de productos de protección en temas que van desde seguro del automotor, personales, del hogar, de mala praxis, etc. Como síntesis del relevamiento de opinión en este rubro, vemos que se busca reducir costos en este po de servicios, donde la eficacia en la prestación y atención personalizada añaden valor agregado a la variable económica

Por otro lado, la intervención del CAPBA se evalúa como un respaldo que podría dar mayores garan as para la consideración de la toma de un producto determinado.

ENCUESTA 59

Entrega de credenciales a arquitectos Nuevos matriculados

El pasado mes de sep embre se llevó a cabo en la sede del Colegio de Arquitectos de la Provincia de Buenos Aires Distrito IX, una nueva ceremonia de entrega de credenciales a profesionales recientemente matriculados.

Como en cada cuatrimestre, durante el Acto de Entrega de Credenciales se realizó la jura del Código de É ca por parte de los nuevos profesionales inscriptos.

Las autoridades del Distrito IX dieron la bienvenida a los nuevos colegas, y se les informó sobre las ac vidades del Distrito, capacitaciones, servicios, deberes y derechos, entre otros temas de importancia.

Los arquitectos recientemente colegiados son:

BENEDICTO, Mariana

BEREILH, Juan Ignacio

BLANCO, Gustavo Fabián

BONETTO, Walter Fabián

CAPRIOGLIO, Mar n

CUELLO, Diego Sebas án

CUESTA, Mar n Fernando

DIAZ VERA, Gonzalo Javier

GONZALEZ, Laura Gabriela

JAKUBOWICZ, Maia

JIMENEZ, Estefanía Agus na

KOSOBLIK ECHARREN, Eric

LUCHETTA, Jorge Daniel

MALDONADO, Carmen Graciela

MARIN, Nadia Cris na

NOVOA, Eduardo Horacio

RAMPOLDI, Walter Fabián

ROSSI, Nadia Gisele

TOMASINI, Guillermo Hernán

SAN MARTIN, Melisa

capba IX SOCIAL Y GREMIAL 60

Durante el año que finaliza el CAPBA IX llevó adelante el Segundo Ciclo de Arte “Expresiones de Arquitectos”, que se desarrolló entre los meses de Mayo y Diciembre de 2014.

En el lapso de este Segundo Ciclo se realizaron 8 muestras mensuales consecu vas:

Mayo | Arq. Ricardo Macht |/abstraccions <BCN>

Junio | Arq. Daniel Villalba | Caminos de Iden dad

Julio | Arq. Francisco Olivo | Reflejos

Agosto | Arq. So a Compañy | Otra Mirada

Sep embre | Arq. Soledad Rebaudi | Anima

Octubre | Arq. Gabriel Mariño | Fragmentos

Noviembre | Arq. Anabella Alonso | Obras 2013/2014

Diciembre | Arq. Julio Alaniz | Miradas y otros ensayos

El Ciclo de Arte “Expresiones de Arquitectos” está declarado de Interés Cultural por la Secretaría de Cultura de General Pueyrredon (Resolución Nº 0716) y es una oportunidad para los colegas arquitectos de dar a conocer su obra entre matriculados y público en general, ya que las muestras son de acceso libre durante el horario de atención de la sede distrital. El CAPBA IX alienta de este modo la difusión del arte e invita a los colegas a compar r sus “Expresiones de Arquitectos” durante el próximo año 2015.

Coordinación del Ciclo: Arq. Romina E. Chocou, expresiones.arq@capba9.org.ar

capba IX SOCIAL Y GREMIAL 62

Ciclo de conferencias de arquitectura 2014

“De la Idea a la Obra”

Las figuras de los reconocidos arquitectos María Teresa Egozcue y Horacio Sardín convocaron numerosa audiencia en el Museo de Arte Contemporáneo MAR para la anteúl ma charla del Ciclo “De la Idea a la Obra”. De carácter gratuito y abierto, el ciclo coordinado por el estudio ef.arq | Eugenio Fernández Estudio de Arquitectura y el CAPBA IX, reunió a un extenso auditorio para reflexionar sobre la arquitectura contemporánea a través de la obra de los profesionales invitados.

La anteúl ma charla del ciclo tuvo lugar el 4 de julio del pasado año y contó con dos expositores referentes de la arquitectura nacional. Primeramente la presentación estuvo a cargo de la arquitecta María Teresa Egozcue quien tuló su charla “Ideas, estrategias y tecnología de diseño para una arquitectura sustentable”. En palabras del Arq. Eugenio Fernández, coordinador del ciclo, Egozcue nos ilustró sobre ‘la gobernabilidad proyectual

como principio para realizar una obra buscando atender las variantes de complejidad en grandes edificios’. A su extensa charla le siguió la exposición del arquitecto Horacio Sardín con “Arquitectura del Paisaje”, y su “vocación por hacer una obra de arquitectura vinculada al paisaje, a la naturaleza, a su compromiso social y su relación con el arte”.

64

(Estudio Egozcue Vidal + Pastorino Pozzolo)

“La arquitectura es de la gente, de los usuarios, el arquitecto es un intérprete que transforma un programa y lo hace realidad”, con estas palabras en los primeros minutos de su charla, Teresa Egozcue avanzó sobre la filoso a de trabajo de su estudio, que “es que las ideas puedan conver rse en obras, lo que no es fácil, porque se necesita tecnología para poder construir, también se necesita interactuar con el medio y hace falta mucha convicción para llegar a los resultados”. Des nó también palabras de aliento a los presentes, arquitectos y estudiantes de la disciplina: “Los arquitectos debemos ser muy batalladores, no bajar la guardia y pensar que perseguimos obje vos nobles, que son que alguien pueda desarrollar sus posibilidades en un futuro ámbito pensado por nosotros, ges onado y que perdure en el empo, 40, 50, 100 años, más allá de nuestras vidas”.

Egozcue destacó que la selección de obras que eligió mostrar, la organizó con el fin de comentar las estrategias que ha adoptado -desde las ideas y las tecnologías-, para hacer una arquitectura sustentable. Sustentabilidad que el Estudio ha intentado aplicar en la gran diversidad de programas que abarcaron a lo largo de los años: vivienda, salud, gobierno, diagnós co, inves gación, industria, jus cia, exposiciones y convenciones, “temas diversos que nos capacitaron para no tener miedo a ningún programa”. La arquitecta señaló que su Estudio es un neto producto de los concursos y que cree firmemente en que el arquitecto por su tulo está preparado para hacer arquitectura de cualquier po de programa.

También dedicó unos minutos a contar la forma de trabajo diario, no creyendo en individualidades ni arquitectura de estrellas, sino por el contrario, trabajando en conjunto con mucha gente. Desde el año ‘73 en que trabajaban 30 personas en el Estudio, hasta hoy en que trabajan allí alrededor de 15, todos los proyectos se han desarrollado en equipo, trabajando de “manera horizontal” y escuchando con interés el pensamiento de los más jóvenes. La profesional hizo hincapié en que la arquitectura nace a la luz de una reflexión, y por eso le interesa la naturaleza de un edificio, el programa y que haya ‘ideas fuerza’, el desa o es el lograr un pensamiento unido a la pasión.

Luego, explicó los puntos que el Estudio considera de importancia: los programas, por ser la voz del comitente; el paisaje y el lugar; el contexto como herramienta de diseño (suelo, luz, entorno, etc.); el espacio urbano de transición entre iden dades (edificio-ciudad); la cultura del lugar para lograr una apropiación; y la tecnología adecuada según uso y des no. También ahondó en el concepto de bienestar; la relación hombre-hábitat (en lo

que influye mucho la escala); el equilibrio entre medios y resultado; y la concepción esté ca de la obra (sin sacrificar el obje vo funcional). Estos puntos fueron recorridos durante la conferencia a través de varias obras ejecutadas por el estudio y analizadas pormenorizadamente:

Hospital Garrahan, 1971-1987 (concurso público nacional). Edificio hospitalario para pediatría de alta complejidad que implicó la concreción de un cambio de pología en la arquitectura hospitalaria del momento, pasando de torre-ver cal a una pología orgánica, de crecimiento indeterminado, con probabilidad de cambio y flexibilidad sin límites, que en ende al edificio como ‘sistema’ e incorpore el concepto de “geogra a” .

Hospital Elizalde, 1995-2009 (concurso público del gobierno de la ciudad de Bs. As.) Edificio para pediatría de media y alta complejidad, más rescate de conjunto patrimonial existente. En esta experiencia el desa o fue intervenir en una ins tución de más de 250 años de an güedad, con pabellones en estado de obsolescencia terminal, pero con algunos edificios de valor patrimonial del siglo XIX que debían rescatarse, otros a descartar por ruina y nuevos a construir, haciéndolo en etapas para no impedir el desarrollo normal del funcionamiento del hospital.

Conjunto habitacional en Tierra del Fuego, Ushuaia, 1973-1980 (concurso nacional). Plan Alborada del Banco Hipotecario Nacional para 200 viviendas y equipamiento comunitario en zona fría. Aquí las condicionantes fueron de emplazamiento, con terreno en fuerte desnivel, heliofanía débil y vistas opuestas a la buena orientación. Por la zona climá ca el diseño debió prever antecámaras y jardines de invierno.

Consejo de Educación, sede administra va del sistema de educación de Neuquén, 1996-2004 (concurso público con financiación del Banco Mundial). En contexto patagónico con clima seco, desagües aluvionales y polvo ambiental muy elevado. También se apeló a antecámaras e ingresos protegidos, y a materiales locales resistentes.

“Ideas, estrategias y tecnología de diseño para una arquitectura sustentable”
CICLO GRATUITO DE CONFERENCIAS DE ARQUITECTURA
65 capba IX CAPACITACION Y ACTUALIZACION PROFESIONAL

Fleni-Cim, centro de diagnós co por imágenes moleculares, 2006-2010 (concurso privado con financiamiento de la Fundación Fleni). En un predio suburbano en Escobar, se dio respuesta a un complejo programa que incluyó locales protegidos contra la radiación, alojamiento de un reactor nuclear de uso humano y diversas instalaciones de gran complejidad. Al mismo empo debieron preservar un parque y dotar de gran superficie de estacionamiento al establecimiento.

ANLIS-Malbrán, laboratorio de bioseguridad, 20042006 (concurso público nacional por antecedentes y metodología). En este caso los locales del programa debían estar protegidos para el trabajo con virus de alto riesgo y ser construidos bajo estrictas normas internacionales de bioseguridad para la protección de inves gadores y del medio ambiente. Se trató de instalaciones complejas, con aislación total, tratamiento del aire y los efluentes, mientras que la obra nueva debió vincularse al conjunto de edificios en funcionamiento.

Planta Guidi, 2011-2013 (encargo privado). Se trató de

una fábrica de carrocerías con un programa de áreas de producción, oficinas, vestuarios y acceso con controles, establecido en etapas hasta completar 15.000 m2. En contexto suburbano en Zárate, Provincia de Bs.As., el proyecto con etapas de crecimiento y habilitaciones sucesivas de la producción, debía instalar grandes equipos industriales con tecnología de construcción rápida, metálica y abulonada.

Centro Judicial de Santa Rosa, Tribunales de La Pampa, 2002-2010 (concurso público nacional). Aquí la flexibilidad, durabilidad y adaptación a cambios de programa incluyendo futuros nuevos juzgados, debían imperar.

Acercándose al final de la charla, Egozcue comentó los proyectos para Os olo (accesos y servicios del campus de jus cia en Madrid), un proyecto que sobre la úl ma vuelta no ganó el concurso, pero del cual se sienten muy orgullosos; el Distrito Cívico, Sede del Gobierno municipal de la C.A.B.A.; y un Centro de Eventos en Barranquilla, Colombia.

MINI BIO

María Teresa Egozcue es arquitecta egresada de la UBA en 1968 y socia tular del estudio desde la misma fecha. Es Directora de proyecto de los emprendimientos del Estudio, especialmente en arquitectura para el Área de salud.

Obtuvo un posgrado en Planeamiento Urbano y Regional y es profesora tular semi-exclusiva de las materias Conocimiento Proyectual I y II, CBC, FADU, UBA.

Fue Presidente del Consejo Profesional de Arquitectura y Urbanismo -CPAU- (2000-2004) y ene numerosos premios obtenidos en concursos nacionales e internacionales.

Es disertante habitual en múl ples presentaciones para organismos públicos, privados y universidades, y cuenta con gran variedad de encargos proyectuales en su haber.

66 capba IX CAPACITACION Y ACTUALIZACION PROFESIONAL

Al comenzar su presentación Sardín recordó el momento de crisis que vivía el país cuando se graduó de arquitecto. Hizo memoria del escaso trabajo de esos empos, haciendo reformas para conocidos. Sin embargo, rescató que ve ahora todo aquello como algo posi vo que lo llevó a replantearse dónde quería estar y qué quería hacer desde ese instante a futuro.

A la platea le contó in mistamente que durante ese período se dedicó a leer mucho, hábito que había desplazado antes. Literatura, polí ca, sociología y arquitectura fueron sus temas de lectura, también escribió y pintó, pero de arquitectura, poco y nada.

Esas inquietudes intelectuales y ar s cas lo llevaron a observar destrucciones del paisaje urbano, en especial a ver a Buenos Aires como “expulsora de la naturaleza”. También a reparar en el tema social, tomando conciencia del 25% de pobres que habita el país, estando los arquitectos muchas veces alejados de esa realidad… Todo eso casi lo llevó a pensar que debía dedicarse a otra cosa.

Al atento auditorio Sardín le mostró fotos y dibujos de los primeros años. En ellos, el centro de Buenos Aires mostraba la hos lidad de las grandes ciudades donde la relación con la naturaleza y el cosmos se ha perdido. Terrazas muertas, fotos del riachuelo, contaminación, deforestación y desmonte en el interior del país, contrastes entre ciudad formal y no formal, eran ocasión de registro. Fruto de la observación y reflexión también escribió y gestó una serie de pinturas llamadas “huesos urbanos”, entrecruces de edificios y autopistas en tonos oscuros. Más de un “Buenos Aires en gris y sepia”.

También se dedicó a las arquitecturas imaginarias, imaginerías de ciudades tradicionales apoderadas por la naturaleza y con destacados lugares de encuentro. Poco a poco los mundos ar s cos e imaginarios comenzaron a plasmarse en par cipaciones en concursos y también a fundirse con los encargos reales.

Sardín destacó que es deber del arquitecto no sólo reflexionar sobre cómo mejorar las cosas (desde lo ambiental, social, sustentable, etc.), sino también pensar el lugar adonde se pertenece, en su caso, La noamérica - Río de la Plata - ciudad de Buenos Aires. -Por ejemplo, en Bs. As. el gran problema es la división entre ciudad pobre y rica, al sur de la av. Rivadavia- dijo, y dio ocasión para comentar su trabajo de desarrollo de inicia vas a diferentes escalas para el Sur de Bs. As. “La intención es que los gobiernos miren al sur, a las grandes manchas despobladas baldías que conforman luego asentamientos precarios”. Así, pensó nuevos barrios con parques, huertas y equipamiento público depor vo, cultural y recrea vo para no crear guetos. También contó de un proyecto de vivienda para coopera vas.

Entonces el invitado, sin sacarse las prendas de ar sta, comenzó a superponer las de arquitecto y su charla se encaminó hacia la muestra de sus obras. Por la pantalla del museo desfilaron muchos de sus proyectos mientras Sardín contaba las ideas que los generaron.

Ciudad judicial en el sur de la ciudad de Bs. As., donde es necesario equipamiento y una nueva posición de centralidad. De ese concurso resultaron ganadores con su estudio en 1999. En la propuesta exacerbaron el carácter público del edificio creando la Plaza de los Derechos en el centro y se preocuparon por la quinta fachada.

CICLO
CONFERENCIAS DE ARQUITECTURA
GRATUITO DE
67 capba IX CAPACITACION Y ACTUALIZACION PROFESIONAL
“Arquitectura del paisaje” (Estudio Del Puerto - Sardín)

Guanajuato, México. El concurso para un conjunto de 1500 viviendas y creación de nuevas centralidades, dio lugar al planeamiento de huertas colec vas y privadas, y al tratamiento del agua y los residuos.

Sede de gobierno, ciudad de Buenos Aires, allí plantearon una plaza en el corazón de la ins tución, de encuentro y de protesta. También un puente y una arcada monumental, y resultaron ganadores de uno de los premios.

Equipamiento urbano ciudad de Buenos Aires. En esa ocasión paradas de taxis, colec vos y señalaciones eran repensados, obteniendo un 2º premio con la propuesta de generación de sombra con jardines urbanos y estructuras metálicas.

Casa Pampa. Una casa horizontal en único nivel, que busca asemejarse a la casa tradicional de campo con galería, pero contemporánea. Cada espacio tuvo su expansión al exterior.

Hotel Vista Sol Iguazú. Una arquitectura que en 2004 se me ó en la selva y se cubrió de ella. Formas de hojas sueltas dispersas en el terreno (grandes pérgolas a 10 mts de altura) cubrían habitaciones y servicios debajo de ellas, mientras que generaban corrientes de aire, con la intención de evitar el aire acondicionado y favorecer el bajo impacto.

Hotel Vista Sol, Calafate. El mismo año, pero próximos al glaciar Perito Moreno, realizaron una arquitectura de dunas que se van quebrando una zona muy virgen, buscando perspec vas hacia el lago. Las habitaciones rús cas de hormigón y sin acabados contribuían a dar importancia a la vista al lago.

Universidad del Comahue, Neuquén. En un proyecto del año 2012 para dos facultades y una ampliación del campus, generaron microclimas en torno a pa os protegidos del viento, también usaron techos cubiertos con vegetación del lugar -de poco crecimiento y sin riegoy barreras de álamos, propios del paisaje neuquino.

Facultad de Psicología de la UBA. En 2006 y a través

de un Concurso Nacional de Anteproyectos obtuvieron el 3º premio con la propuesta de un edificio lomada, que da respuesta a la ciudad y al río y ene terrazas para expandir los paquetes programá cos.

Complejo ar s co-cultural en San Juan. En 2008 y también mediante un Concurso Nacional de Anteproyectos obtuvieron el primer premio, ideando pa os de encuentro cubiertos por parras lineales, pa os de sombras que contribuyen al ahorro de energía, y una plaza central conectora de 3 ins tuciones: centro cultural, auditorio e iglesia, que a la vez protege del viento zonda.

Pabellón argen no del Bicentenario. Premio obtenido en la Bienal SCA-CPAU 2010, con una propuesta cuyo espíritu fue es del crear “una gran sombra urbana para Buenos Aires”, un espacio con nada de presupuesto para exposiciones y charlas. La propuesta usó materiales económicos, elementos reciclados y de bajo mantenimiento.

Sardín se explayó luego en obras residenciales como la Vivienda Berlín en Parque Chas, un Conjunto de 9 viviendas en Belgrano con lote en esquina, un Edificio de 16 viviendas en Coghlan, el Edificio de calle Maure en Colegiales y el Edificio Moldes, todos ellos con búsqueda de inclusión del verde, parques y elementos naturales, que junto al Hotel Casa Calma en CABA, -un hotel bou que bajo conceptos de ahorro energé co y materiales reciclados-, aportan al contacto del hombre con la naturaleza aún en contextos urbanos.

Luego la charla discurrió por las Torres Mongolia, en construcción actualmente en Mongolia, para abordar sobre el cierre los proyectos sociales. Así mostró la propuesta de contenedores solidarios, elaborada junto al arquitecto Frangella, un proyecto social del año 2001 y 2002 con módulos donde instalar aulas escolares, zonas de higiene, etc., y para concluir, los “muros de leche” conformados por cartones de leche que luego se donaban. Una síntesis de arte + inquietud social.

Los detalles de su exposición como la de la arquitecta Egozcue, pueden ser revividos en el canal de You Tube del CAPBA IX.

68 capba IX CAPACITACION Y ACTUALIZACION PROFESIONAL

MINI BIO

Horacio Sardín es arquitecto y ar sta plás co, egresado de la UBA en 1991. Profesor Titular de Diseño Arquitectónico FADU UBA (2005) y Profesor Titular de Arquitectura

Taller Ver cal Roca-Sardín y de Teoría de la Arquitectura FADU UBA (2007). Es Miembro del Tribunal de Honor de la Sociedad Central de Arquitectos desde 2010, y fue Presidente de la subcomisión de Medio Ambiente de la Sociedad Central de Arquitectos 20082010. Autor de los siguientes libros:

– Homo Urbanicus-Homo Naturalis, 2004, un manifiesto que enmarca sus preocupaciones sociales y medioambientales presentes en sus obras.

– Arquitectura y Libertad, Nuevos Territorios en la Enseñanza de la Arquitectura, 2008.

– Taller Roca-Sardin, 2009.

Realizó muestras de arte individuales y colec vas en múl ples ámbitos de pres gio nacional e internacional. Dictó conferencias en congresos, en dades y facultades de arquitectura. Publicó ar culos de teoría arquitectónica en los principales medios especializados. Par cipa como integrante ac vo en acciones solidarias y en el desarrollo de viviendas de interés social para pobladores carenciados.

CICLO
DE CONFERENCIAS DE ARQUITECTURA 69
GRATUITO

Steel Framing Capacitación brindada por el INCOSE en la sede del CAPBA IX

Durante los días 23 y 24 de octubre, se realizó en la sede del Colegio una capacitación gratuita sobre el sistema construc vo Steel Framing, a cargo del INCOSE, Ins tuto de la Construcción en Seco.

La primera de las jornadas, a cargo de la Arq. Mariel Prícolo, introdujo los tópicos fundamentales para conocer el sistema construc vo: desde la historia del acero, pasando por los antecedentes del sistema, hasta temas más específicos como el proceso construc vo, fundaciones, anclajes, panelizado, rigidización, terminaciones exteriores, aislamiento y confort, norma vas, entre otros.

La segunda y úl ma jornada, a cargo de la Ing. Liliana Girardi, se basó en el comportamiento estructural, los dis ntos pos de carga, y se brindaron nociones para el predimensionado estructural, basándose en el uso de tablas de diseño y cálculo de estructuras, que permiten verificar los espesores de los perfiles seleccionados en el proyecto.

El INCOSE, en dad referente en sistemas de construcción en seco desde hace 20 años, brinda una gran can dad de capacitaciones presenciales al año, tanto en su sede de Buenos Aires, como en otros puntos del país, comprome éndose y apoyando la formación en universidades, escuelas técnicas, y colegios profesionales.

Asimismo, produce documentación técnica genérica (sin mención de marcas comerciales), que se dispone en forma totalmente gratuita dentro de su web.

Por otra parte, el Ins tuto ene una fuerte presencia en redes sociales como Facebook y Twi er, lo que le permite viralizar los contenidos y acercarse a un espectro mayor de interesados.

¿De qué se trata el sistema Steel Framing?

El sistema Steel Framing es una estructura metálica formada con perfiles de acero galvanizado conformados en frío y un cerramiento mul capa, cuya reglamentación de cálculo se encuentra detallada en el Reglamento CIRSOC 303. Por otra parte, estos perfiles estructurales se encuentran fabricados según la Norma IRAM IAS U 500-205.

La construcción en seco con perfiles de acero galvanizado liviano encuentra su origen en Estados Unidos, con antecedentes como el Balloon Frame, un sistema construc vo que u liza estructura de madera.

Claramente es en ese país -y en otros de tradición sajona como Nueva Zelanda y Australia- donde la construcción en seco ene su mayor desarrollo. En muchos países europeos como Alemania, España, Francia, Italia e Inglaterra esta tecnología también crece sostenidamente, impulsada principalmente por el “retrofit” o remodelación de edificios para adecuarlos a los nuevos requisitos de ahorro energé co.

En La noamérica, consideramos que es en Chile donde el sistema ha tenido un mayor desarrollo. Tanto en ese país como en Brasil, fue importante también el acompañamiento recibido desde el estado, aceptando y adoptando tecnologías en seco para planes de vivienda social.

En Argen na, luego de las interesantes y prósperas experiencias construc vas en la Patagonia durante el S. XIX, la construcción en seco se consolida defini vamente con la creación de la primera placa de yeso, hace ya casi 40 años.

El Steel Framing en nuestro país se u liza mayormente en viviendas, aunque existen diversas y exitosas aplicaciones en arquitectura hotelera, hospitalaria, escolar. Asimismo, con

70 capba IX CAPACITACION
Y ACTUALIZACION PROFESIONAL

este sistema es posible la resolución de fachadas en seco, incluso sobre sistemas tradicionales de construcción, como así también la ejecución de naves industriales. Por otra parte, es interesante su uso para restauración de patrimonios históricos, donde la aplicación de la construcción tradicional, dado su peso, es inviable.

El importante también mencionar el impulso que ha tenido el Steel Framing de la mano de los créditos Pro.Cre. Ar., donde gracias a ges ones realizadas por el INCOSE, el Banco Hipotecario se ha abierto a aceptar otras tecnologías construc vas. Esto facilitó que los beneficiarios del crédito puedan tener su vivienda construida en un empo mucho más reducido; op mizando así el monto recibido.

Por sus cualidades de rapidez y de aislamiento térmico, su aplicación se da principalmente en las regiones más frías de nuestro país, en las que el clima brinda poco empo para realizar la construcción. Estos sistemas permiten levantar muy rápidamente una estructura, cerrarla en su exterior y con nuar trabajando luego en las terminaciones interiores.

En lo que respecta al aislamiento térmico, la configuración propia del sistema permite que fácilmente se alcancen los requisitos de habitabilidad que exigen la Norma IRAM 11.605 para todas las zonas bioclimá cas de la Argen na, variando solamente el espesor de los elementos aislantes térmicos y acús cos y su ubicación dentro del muro externo. Por lo tanto, estableciendo claramente estos requisitos (por ejemplo, exigiendo un valor máximo de K, coeficiente de transmisión térmica de los muros) se puede determinar fácilmente si la vivienda cumplirá o no con los requisitos mínimos de aislamiento y ausencia de condensación que se establecen en las normas IRAM, algo que no se ob ene con materiales considerados como “tradicionales” en sus espesores habituales.

La Ley Nº 13059 de la Pcia. de Buenos Aires, ya reglamentada y plenamente vigente, establece que el nivel de aislamiento de muros externos en viviendas nuevas deberá ser como mínimo el equivalente al nivel B de la IRAM 11.605, condición fácilmente alcanzable en las diferentes configuraciones de paneles en Steel Framing, como lo demuestran los diferentes modelos de muros ensayados en el INTI por el INCOSE para la determinación del valor K. Cabe mencionar que el muro compuesto por bloques cerámicos de 18 cm de espesor con revoques cemen cios en ambas caras, considerado como material tradicional, no cumple con los requisitos de la Ley Nº 13059. Todos estos ensayos se encuentran disponibles para descargar desde la web del INCOSE, www.incose.org.ar

María Gabriela Malagraba Coordinadora INCOSE

CAPACITACIÓN 71

y Hotel Provincial de Mar del Plata

Muchas ciudades enen singulares obras arquitectónicas que las dis nguen, pero pocas enen verdaderas obras MONUMENTALES; obras que por su escala, por su impacto en un sector urbano y sus valores composi vos, materiales, funcionales, subyugan al espectador, al usuario, y por ello hacen que se conviertan en verdaderos íconos de esa ciudad. Mar del Plata ene una y es el Conjunto Casino-Hotel Provincial, proyectado por el Arq. Alejandro Bus llo y construido entre los años 1938 y 1950.

Un lugar con historia previa

Desde que el an guo “Puerto de la Laguna de Los Padres” viró a la “Mar del Plata, Perla del Atlán co”, se sucedieron en la Bahía Bristol dis ntas estructuras que sirvieron de nexo entre el fragmento de pampa urbanizada y el mar. Rambla Primi va (1887-1890), Rambla Pellegrini (1890-1905), Rambla Lasalle (1905-1913) y Rambla Bristol (1913-1938). De madera las primeras y de mampostería de ladrillos y hierro sólo la úl ma, cada una marcó una evolución en este po de “artefactos”, iniciando con una función meramente contempla va, e incorporando sucesivamente nuevos servicios y comodidades, como salas de baños y cines.

La Rambla Bristol, por su extensión en el empo y su calidad construc va y arquitectónica, es sin duda la más rememorada; pero además lo es por cons tuirse en un símbolo de un período de la ciudad que se construía “pictóricamente” a instancia de una determinada clase social, y que es conocido como la “Belle Époque”. Para el sector de la Bahía Bristol la construcción de esta imagen comenzó con la parquización de la Plaza Colón y el Paseo General Paz a cargo del reconocido paisajista Carlos Thays (1903), con nuó con la construcción del Torreón del Monje (1904), la integración armónica de la Rambla Bristol, y culminó con la construcción del Muelle de Pesca (1927).

Este punto además de servir de nexo entre ciudad y mar, sirvió de ar culación de dos sectores claramente definidos de la creciente planta urbana: hacia el norte la “city”, con sus edificios administra vos, religiosos, hoteleros y recrea vos, y al sur las grandes residencias de veraneo, balconeando al

Paseo General Paz. Esta ar culación comenzó a reconocer un eje composi vo en la diagonal este-oeste de la Plaza Colón. Hacia fines de la década del ´20 y comienzo de la del ´30, cambios sociales, económicos y polí cos determinaron nuevas necesidades para tal emblemá co punto. Clases sociales en ascenso reclamaban un espacio en la ciudad de la elite terrateniente. La crisis mundial repercu a en el país, y en lo polí co tras el derrocamiento de H. Yrigoyen se iniciaba una etapa de gobiernos de sesgo totalitario que algunos denominaron como “década infame” y otros como de “restauración neoconservadora”.

Por otra parte, la Rambla Bristol comenzaba a evidenciar los efectos de la agresividad del clima marí mo de la ciudad y su desfavorable ubicación a muy pocos metros del mar. En 1920 ya se reportaba la exposición de sus cimientos, en 1927 un temporal destruía parte del sector norte y un incendio la afectaba parcialmente en 1934. Si pensamos además en una arquitectura con estructura de hierro y profusión de ornatos con anclajes metálicos que se corroen y estallan con una velocidad inesperada, no es di cil pensar en que la situación de la Rambla en los primeros años de la década del ´30 era crí ca, pues implicaba un constante y costoso mantenimiento.

Esta era la situación que transitaba el emblemá co edificio cuando asumió la gobernación de la Provincia de Buenos Aires el Dr. Manuel Freso, en 1936. Como forma de reac var

Compara va de la extensión del empo de permanencia de cada una.

A poco más de 75 años del inicio de su construcción Casino
72 capba IX PROGRAMA COMUNICACIONAL
Foto: Hart Preston, Revista LIFE

la economía, bajo su mandato estableció un ambicioso plan de obra pública para todo el territorio provincial. Cientos de obras se construyeron en sus cuatro años de gobierno entre municipalidades, escuelas, mataderos, portales de cementerios, delegaciones municipales, corralones, plazas, entre otras. Para Mar del Plata se plantearon como obras necesarias una nueva Municipalidad y una nueva Rambla que incorporase entre otras funciones un Casino y un Hotel.

En localidades pequeñas y aun prác camente inexistentes, donde no había una impronta arquitectónica fuerte -por fuera del fachadismo italianizante- la mayor parte de la obra fue desarrollada por Francisco Salamone con su versión de Art Déco. Para Mar del Plata, donde se planteaba otro desa o - tanto por la función turís ca de la ciudad como por las caracterís cas de su arquitectura dominante-, el arquitecto elegido fue Alejandro Bus llo. La decisión implicó dejar de lado un concurso de anteproyectos realizados en 1928 y ganado por Andrés Kálnay y proceder a una contratación directa.

En la designación de Bus llo sin dudas pesó el hecho de que su hermano el Ing. José María Bus llo estuviera a cargo de la Dirección de Arquitectura del Ministerio de Obras Públicas en la gobernación de Fresco, y su otro hermano, el Dr. Exequiel Bus llo, fuera Director de Parques Nacionales. Esto le abrió la puerta para proyectar simultáneamente el “Gran Hotel Llao Llao” en otro de los grandes centros turís cos en expansión.

La decisión del emplazamiento y el diseño

Si bien Bus llo tuvo libertad para elegir y comprar los terrenos donde emplazar el Casino-Hotel Provincial, su decisión fue u lizar el Paseo General Paz y redefinir el punto emblemá co y ar culador antes explicado, enmarcándolo en un Plan de Urbanización de la Bahía Bristol. Con ellos se zanjaba la discusión sobre el mantenimiento de la “vieja” rambla, se consolidaba un cambio de modelo polí co-social y se economizaba al u lizar terrenos propiedad de la provincia.

La obra proyectada planteó una serie de ac vidades indispensables para una adecuación a la modernidad de este po de “artefactos”, como ser sala de deportes, de exposiciones, auditorio, pileta cubierta, hotelería y el cada vez más necesario espacio para estacionamiento, además de una sala de juegos provincial. Todo fue organizado a par r de dos

imponentes volúmenes -más de 70 mil m2-, aparentemente simétricos y dispuestos, ahora sí, uno a cada lado del eje determinado por la diagonal de la Plaza Colón.

Dos consideraciones, sin dudas, tuvo en cuenta Bus llo a la hora de definir el es lo y la materialidad construc va de los edificios. Una se hizo explicita en entrevistas que se le hicieron, y ene que ver con la monumentalidad de la obra y la necesidad de que el mantenimiento sea mínimo. De ello dependería que el gasto en estas tareas fuera también monumental o no. La otra tuvo que ver con las experiencias recogidas en la ciudad sobre la influencia del clima marí mo en la edificación.

Esto llevó a Bus llo a descartar el empleo de elementos meramente ornamentales en las fachadas y a emplear el hormigón armado en la totalidad de la estructura -incluso en la mansarda- pero extremando los cuidados, al no dejar parte alguna de la misma al descubierto, revis éndola siempre con piedra “Mar del Plata”, mampostería de ladrillos o pizarras. En el es lo quizá esté la parte más interesante. Siendo el pintoresquismo una opción dentro del academicismo para responder a programas vinculados al recreo y el descanso; habiendo Bus llo adscripto a esa corriente para resolver al encargue del mencionado Hotel “Llao Llao” en Bariloche, y siendo Mar del Plata un si o donde se levantaban residencias pintoresquistas de variado porte -incluso algunas proyectadas por él mismo, como Villa Devoto en 1918-, podría en cierta forma resultar extraño que no haya adherido dentro de esa corriente como hiciera, por ejemplo, Baldassarini para su contemporáneo y malogrado “Hotel del Mar”, en imponente es lo anglo-normando.

Sin embargo, Bus llo entendió que el pintoresquismo debía seguir respondiendo a lo extra-urbano, y el desa o tomado era, por el contrario, urbanizar la Bahía Bristol. En consecuencia, y acorde con su apasionamiento por el clasicismo, optó por una versión minimalista y de inspiración francesa del neoclásico para producir el cambio que se esperaba -un cambio de escala de ciudad pensado no sólo con el proyecto del colosal Conjunto, sino también con la pavimentación de la Ruta 2 finalizada en 1938 y que propició el turismo de masas- sin perder de vista el rol ar culador que debía seguir cumpliendo la Rambla entre dos situaciones urbanas funcional y paisajís camente dis ntas.

HOMENAJE
73 capba IX PROGRAMA COMUNICACIONAL
Rambla Bristol y Paseo Gral. Paz. Demolición de la Rambla. Foto cuadro Archivo Mitre.

De esta forma perpetuó de algún modo el “aire” afrancesado preexistente, básica y principalmente en la Rambla Bristol, aunque también en algunas otras obras diseminadas en las inmediaciones, pero dándole al edificio una impronta nueva, “genuinamente argen na o personal”, según definiría el propio Bus llo. Esto está dado por lo austero de las fachadas, el uso de la piedra local, la policromía otorgada por su combinación con el ladrillo a la vista, la pizarra y el verde agua con el que estuvieron pintadas las cor nas de enrollar. Caracterís cas tomadas como base en las disposiciones que, en relación a la terminación de fachadas se establecieron en la Ley de Urbanización de Playas y Riberas, dictada en 1939, y cuyo resultado vemos en los edificios que se levantaron posteriormente frente al Casino-Hotel Provincial.

Etapas de construcción, restauración y valoración

El primero de los edificios en construirse fue el del Casino Central, entre los años 1938 y 1941. El ritmo acelerado de

construcción para esta primera etapa, sin dudas estuvo ligado a un intento de inauguración antes de finalizar el mandato del gobernador Fresco, lo que no pudo ser y por ello se realizó una inauguración parcial en diciembre de 1939, hace exactamente 75 años. La segunda inauguración tuvo lugar, conjuntamente con la Rambla, en diciembre de 1941. La construcción del Hotel fue algo más lenta, iniciándose en 1942 y finalizándose en diciembre de 1950 bajo la gobernación de Domingo Mercante. En los años transcurridos desde su construcción la obra ha demostrado responder adecuadamente a las condiciones climá cas y a los requerimientos funcionales. Una de las primeras intervenciones de magnitud tuvo lugar en 1970 con la reparación de las mansardas, pero la más importante, por abarcar a la totalidad de la envolvente -fachadas, recovas y cubiertas- se efectuó entre 2005 y 2006. Su obje vo fue rever r el deterioro sufrido tras largos años sin mantenimiento, acondicionar la postal de la ciudad con vista a la IV Cumbre

74
Postal an gua, Bristol. Postal an gua, Hotel-Casino.

de las Américas y propiciar el llamado a licitación para dar en concesión el Hotel -quedando a cargo del ganador la restauración interior-.

En estos 75 años también ha perdurado algo de nostalgia por la demolida Rambla Bristol, producto de una suerte de “culto” por lo perdido y que se recrea constantemente en variados sistemas de recopilación de material histórico-fotográfico. Sin embargo, a la luz de las circunstancias analizadas y teniendo en cuenta que se carecía entonces del concepto y conciencia sobre el patrimonio arquitectónico que se ene actualmente, queda claro que esa pérdida no debe hacer mella en la importancia que ene la obra proyectada por Bus llo.

Hoy el Casino-Hotel Provincial está declarado por Decreto PEN Nº 349/99, CONJUNTO URBANO-ARQUITECTÓNICO NACIONAL junto con el Paseo Costero entre el Club de Pesca y el Torreón del Monje, y la Plaza Colón. De esta forma quedan reconocidos y se buscan proteger los valores de un fragmento urbano clave

en el desarrollo de la ciudad, postal consagrada con la obra de Bus llo, pero que conserva además tes monios valiosos de su proceso histórico. Entre ellos, el remanente del Paseo General Paz -con una escalinata de balaustres actualmente a la espera de una restauración- y la estatua de Cristóbal Colón -obra del escultor floren no Cesare Lapini- emplazada en el centro de la plaza en 1900 y que la convierten en una de las más an guas de la ciudad.

Arq. Cris an Andreoli Docente e inves gador, UNMDP. Bibliogra a de referencia: COVA, Roberto, “Apuntes para una Historia de la Arquitectura Marplatense”, UNMDP, 1992.

BUSTILLO, Alejandro, “La construcción del escenario urbano”, CEDODAL, 2005.

PARÍS BENITO, F. y NOVACOVSKY, A. (comp.), “Bus llo. El Hotel Provincial de Mar del Plata, su recuperación”, UNMDP, 2007

HOMENAJE
Foto actual, Casino.
75
Foto actual, Hotel.

Sin lágrimas y con nostalgia Adiós a Pablo Bo o

34 años atrás, corrían los úl mos días de noviembre de 1980, cuando la Asociación de Arquitectos de Mar del Plata obtenía su Personería Jurídica, a dos años de asumir la nueva Comisión Direc va.

La editorial del primer número de la revista “Arquitectura”, órgano de la Ins tución, daba cuenta de la buena nueva y expresaba la convocatoria a los arquitectos para trabajar en la etapa que comenzábamos a transitar.

Presidía la Asociación Pablo San ago Bo o, que a par r de ahí y por más de veinte años fue quien con su es lo visionario, tesonero, irreverente y provoca vo propulsó desde dis ntos cargos los temas que lo desvelaban: una Universidad con planes de estudio acorde a las necesidades de la ciudad y su región y un presupuesto adecuado; la necesidad de contar con un Colegio Profesional y una Caja de Previsión propios, independientes y federales; la arquitectura realizada por arquitectos; la denuncia por la especulación desmedida del suelo y los altos costos de la construcción que elevan el déficit de vivienda; las incongruencias de los códigos de edificación y los tortuosos trámites administra vos; los Concursos de Proyectos para la obra pública, y muchos temas más que privilegiaban lo gremial, pero ofreciendo respuestas a la comunidad que nos formó.

De todo esto hablaba Pablo y su pensamiento ha quedado reflejado en las editoriales de “Arquitectura”, “Arquitectura Sur” y los diarios de la época.

Su origen cuasi aristocrá co no fue obstáculo para abrazar la causa gremial por la dignificación de la profesión de arquitecto. Fervoroso admirador de Vladimiro Acosta recordaba siempre una frase del maestro: “primero hombres, después arquitectos”. No le fueron ajenos los derechos humanos, cuando hubo que ges onar por la aparición con vida de colegas presos o pronunciar un discurso contestatario y fuerte en la conmemoración del día del Urbanismo, en presencia de autoridades civiles y militares.

Casualidad o causalidad, en empos dis ntos, más o menos prolongados, muchos colegas trabajamos junto a él, al compás de su discurso é co, claro, confronta vo pero reflexivo a la vez

y no carente de valen a, considerando los empos oscuros y tenebrosos que se vivían.

Algunos de los que lo acompañamos no teníamos todavía plena conciencia de los cómo y los por qué de la lucha que planteaba, pero su apasionamiento era convincente y mo vador.

Lideró, con su equipo de colaboradores, la lucha por la Colegiación que dio sus frutos con la sanción de la ley de Colegiación en 1986. Fue el primer presidente del Distrito IX por dos períodos, comba endo desde ese lugar, el centralismo que aún hoy nos embiste e incomoda.

Incursionó en igual cargo en la Caja de Previsión y si bien en seis meses muy intensos, logró poner un poco de claridad en esa estructura hermé ca y obsoleta que no respondía a sus fines. Sin embargo, no pudo conciliar su vida en La Plata, sujeta a los empos burocrá cos, con muchos espacios “muertos” y faltos de ac vidad que lo abrumaron hasta provocar su renuncia.

Pablo era todo lo que aquí se resume, también un lírico, un bohemio hipercrí co, a veces insoportable pero tan querible que todo se le podía perdonar, si es que hubiera algo que perdonar.

Ante su inesperada par da, elegimos despedirlo como le hubiera gustado, con un brindis virtual por la maravilla de nuestra imba ble amistad.

NOSOTROS, LOS DE SIEMPRE. 1979-2014

76 capba IX PROGRAMA COMUNICACIONAL
Arquitecto Pablo Bo o Presidente CAPBA IX 1986-1989 / 1989-1992

SINOPSIS

Dirección

Ignacio Masllorens

Diseño de sonido

Rodrigo Sánchez Mariño / Diego Lezcano / Milton Rodríguez

Montaje

So a Di Paola Año 2013 Duración 40 min.

Hábitat La ciudad de los signos

1 En este tercer artículo des nado a explorar la relación entre el cine y las disciplinas del proyecto, a par r del reconocimiento de la dimensión significante de los objetos, nos encontramos con un mediometraje de cualidades excepcionales para este fin.

En el caso de “El Hombre de al lado” el referente contextual más significa vo fue la Casa Curuchet más un reducido grupo de objetos, y su propósito consis a en apoyar el perfil de los personajes, en aquella dinámica de oposición que tensionaba la historia: Víctor y Leonardo confrontaban.

En el caso de “Medianeras” esa función se depositó en el propio entorno urbano saturado de la ciudad de Buenos Aires, dado que el argumento requería un contexto opresivo y obstaculizador que jus ficara el desencuentro de los dos personajes: Mariana y Mar n se buscaban.

En estos casos a diferencia de “Hábitat”, nuestros referentes (la casa, los objetos, la ciudad…) complementaban la historia. Como se dijo, la apoyaban, colaboraban en la construcción del significado, pues sus presencias deslizaban contenidos vinculados a los contenidos de la historia que debía contarse. Interactuaban con los personajes, pero conservaban su espacio escenográfico.

Es verdad que tenían valor como textos en sí mismos (y esa es precisamente la hipótesis que anima a estos ar culos), pero esta condición “dependía” de su relación con los personajes principales.

En el caso de “Hábitat” los personajes desaparecen, y los objetos son los protagonistas. A par r de allí comienza un relato bien diferente a los anteriores, donde la ciudad con sus fragmentos urbanos, edificios, artefactos y utensilios cons tuyen en sí mismos la dimensión semán ca del relato.

2 El film comienza mostrando imágenes desde el interior de una frondosa vegetación periurbana, abriéndose paso desde lo natural hacia lo ar ficial. La cámara va registrando de a poco la aparición de grandes edificios e introduciéndose dentro de las áreas más densamente construidas. Desde diferentes ángulos y alturas muestra barrios periféricos y zonas abiertas con autopistas y ferrovías. Luego retorna al área central de la ciudad y acaba en el horizonte infinito de la costa porteña -u lizando el único plano secuencia del film-.

Su estructura narra va está formada por una sucesión ar culada de textos parciales, que consisten en imágenes fijas de múl ples fragmentos de la ciudad de Buenos Aires, y de fragmentos de esos fragmentos.

No es una descripción ingenua ni distraída. En ese extenso recorrido la mirada tampoco se dis ende, por el contrario la tensión aumenta con el transcurso del empo. Los cuadros son fotográficos, por lo cual requieren un tratamiento esté co

ARQUITECTURA Y CINE
77 capba IX PROGRAMA COMUNICACIONAL

preciso: las relaciones de simetría-asimetría, de equilibriodesequilibrio, exterior-interior, son los recursos que aporta la imagen para controlar la tensión a medida que transcurre el film.

La obra ene la par cularidad de no introducir actores o personas, por lo tanto a los pocos minutos nos invade una sensación inquietante.

Así se rompe la dialéc ca figura-fondo, o sea protagonistasescenogra a. El fondo toma el primer plano y la ciudad siempre escenográfica en apoyo al discurso, como hemos dicho, se convierte en el discurso mismo. No hay fondo porque no hay figura.

La imagen fija permaneciendo inmóvil durante varios segundos (que recuerda a los Dogmas de mediados de los ’90) y la ausencia de planos secuencia, rompen la con nuidad temporal del relato y tensionan al espectador.

Una vez que comprendemos este lenguaje, pasamos a interrogar cada imagen y en eso consiste la estrategia narra va: el espectador queda atrapado, pasa a ser el actor, en tanto sujeto ac vo que construye el sen do de un relato.

Pero además, esta estrategia se apoya en recursos claros: la secuencia de imágenes fijas y el corte que permite la alternancia de tomas aéreas, peatonales, interiores, exteriores, periféricas o centrales, dan una sensación permanente de omnipresencia del ojo visor, rompiendo la linealidad que inevitablemente impone la sucesión temporal de las imágenes creando un clima de ficción.

Por lo tanto, no se trata de la descripción de las partes de una ciudad deshabitada, sino de la curiosidad, de la intriga que produce una ciudad donde los semáforos, las escaleras mecánicas, los anuncios de los trenes, las rota vas de una imprenta, fotocopiadoras, ven ladores y demás artefactos aparecen funcionando, pese a la ausencia de habitantes.

3 La construcción retórica se apoya principalmente en el mecanismo de la metonimia, más que en la metáfora -aunque ésta se desliza permanentemente-. O sea las asociaciones se dan por la relaciones de vecindad conceptual y no por semejanza sica, mientras que la figura central es la elipsis,

dado que el tema es el hábitat humano, en un film que omite la presencia de personas. Está planteada como la presencia de una ausencia.

A par r de allí se abre un árbol de operaciones menores que juegan todo el empo: la ironía, la contradicción y las múl ples asociaciones que podemos establecer desde cada imagen.

Pero todo esto se desarrolla según pautas claramente codificadas según el manejo del empo y el espacio, considerando que tanto la imagen como el sonido quedan subsumidos dentro de estas dos categorías fundamentales, de cuyas ar culaciones nace el sen do.

Respecto al manejo del empo vemos que los planos se reparten entre siete segundos para los des nados a detalles y encuadres interiores y trece segundos para los que muestran espacios abiertos.

Los planos se alternan y juegan. Esto nos produce una sensación de interés y curiosidad, pues una vez inmersos en la estrategia discursiva propuesta, sabemos que contamos con un empo pautado para descifrar cada imagen que nos llama a interrogarla.

El empo crea el ritmo del discurso, es el compás de la estructura narra va.

Respecto al manejo de la imagen -que dependiente del empo asignado para observarla y comprenderla- los recursos empleados son múl ples y ricos.

Los mismos que en otro caso tendrían menos efecto, aquí por los empos de exposición adquieren mayor peso. La simetría, la asimetría, los escorzos y las diferentes composiciones se encargan de connotar de antemano cómo debemos percibir los objetos, y se emplean según el po de ámbito que se desea capturar.

Hay una Arqueología de los objetos. El film muestra la coexistencia y colisión de es los, formas y esté cas, así como de las é cas que se desprenden de esas esté cas.

Sin embargo, el tratamiento de la imagen intenta captar con la misma dignidad a cada uno de los objetos; es el espectador con su experiencia y conocimiento quien valora estos rastros arqueológicos de la fauna de artefactos que pueblan el espacio.

78 capba IX PROGRAMA COMUNICACIONAL

Por ejemplo: algunos planos muestran de interiores lúgubres, a pa os de aire y luz saturados de objetos descuidados -aerosoles, vajilla, mobiliarios desalineados, libros, teléfonos etc.-, que diseminados por todo el espacio revelan un “hábitat” deteriorado, mientras que en otros planos vemos el interior simétrico, limpio y despojado de un edificio neoclásico.

Lo mismo ocurre con los espacios exteriores: una terraza desgarbada de la periferia con ropa tendida, remates de ven laciones de chapa y medianeras despintadas, contrastan luego con un escorzo de las torres más altas de Puerto Madero.

Los objetos no cesan de dar pistas acerca de su vínculo con la maquinaria del habitar. Muchos de ellos aparecen realizando sus funciones anónimas y habituales con el propósito de exponer sus formas de colocación en el espacio exhibiendo todo el empo su carácter simbólico.

El estatus de los objetos ayuda a organizar un sistema de “clases”, recordando los principios de Jean Baudrillard en “El sistema de los objetos” (1968), dando lugar a esta arqueología de la ciudad con sus edificios y éstos con sus artefactos.

Aquí aparece nuevamente la dimensión significante del discurso retórico. Mientras en “El hombre de al lado” un asiento importaba por su capacidad de inves r de pres gio a uno de los personajes, en “hábitat” un asiento es el miembro de una clase de objetos que revela las diferentes formas de sentarse.

Respecto a la presencia del sonido, ocupa un lugar importante en la percepción de los espacios, dado que no hay diálogos. Crea un clima tórrido, sofocante y por momentos denso.

En los exteriores, la banda sonora está compuesta por una orquesta de pájaros, insectos y escasos animales domés cos. Al cabo de un momento comenzamos a diferenciar las palomas de los gorriones o de los benteveos y los esporádicos ladridos de perros. Este temperamento también está apoyado por la presencia de cielos luminosos y quietos. No hay viento que mueva objeto alguno y las sombras, cuando las hay, son cortas. Son sombras de mediodía.

Mientras que en los interiores este clima lo comunican el sonido de ven ladores, ascensores, escaleras mecánicas, fotocopiadoras, anuncios, maquinarias, pantallas sin señal,

o juegos para niños que funcionan solos. Esta acumulación de factores donde todos los recursos se ar culan, es lo que aporta la atmosfera de tensión permanente creando la ilusión de una ficción.

4 Hábitat” no es un texto, es un meta-texto. Es un discurso que a su vez abre a múl ples discursos apelando así a la esencia misma del lenguaje, donde el sen do se ex ende u lizando el conocimiento y la experiencia del sujeto que lo interpreta. Recuerda a la forma en que Ítalo Calvino (Las ciudades invisibles, 1990) cuenta cómo Marco Polo en su viaje a Oriente, relata a Kublai Jan su experiencia al conocer la ciudad de Tamara: “El ojo no ve cosas sino figuras de cosas que significan otras cosas: las tenazas indican la casa del sacamuelas, el jarro la taberna, las alabardas el cuerpo de guardia, la balanza al herborista. Estatuas y escudos representan leones, delfines, torres, estrellas: signo de que algo –quién sabe qué- ene por signo un león o del n o torre o estrella”

Así, como en Tamara, las imágenes de “Hábitat” catalogan fragmentos de nuestra cultura del habitar, donde la esté ca de aquello que se muestra lleva implícita una é ca de los artefactos, malos, buenos, feos, groseros, bellos, ú les, inú les, agresivos, amables. En mi opinión aquí está la esencia de esta obra. Esto permite, en su transcurso, construir una arqueología de los objetos que conduce a una antropología del hábitat urbano (humano).

El relato es lineal y cerrado. Sin embargo su sen do, metaforizado por la imagen final detenida en la infinitud del mar con un punto luminoso en el centro de la pantalla, está abierto a cada una de nuestras múl ples interpretaciones.

El dvd de ‘Hábitat’ se encuentra disponible para su préstamo en la biblioteca de la sede del CAPBA IX

ARQUITECTURA Y CINE 79 capba IX PROGRAMA COMUNICACIONAL

Nuevas resoluciones de la AFIP para pedir facturas

La Administración Federal de Ingresos Públicos, a través de dos Resoluciones (RG 3665/14 y RG 3666/14), dispuso cambios en el procedimiento para solicitar la impresión de facturas, que comenzaron a regir a par r de noviembre. El Ente recaudador aumentó los controles sobre las facturas de los monotribu stas con un nuevo procedimiento para solicitar la impresión de comprobantes y la inclusión en las facturas “C” del Código de Autorización de Impresión (CAI) con fecha de vencimiento, que hasta ahora sólo se u lizaba para las de po “A” y “B” de los inscriptos en el IVA.

Los monotribu stas y exentos en IVA recomienzan la emisión de sus comprobantes desde el número 00000001. Para los monotribu stas la novedad rige desde el 1º de noviembre de 2014, permi éndose el uso de las facturas en existencia hasta el 31 de diciembre de 2014. Para los exentos y no alcanzados, rige a par r del 1º de marzo de 2015, pudiendo u lizar comprobantes anteriores hasta el 30 de abril de ese año. Transcurridos los términos mencionados precedentemente, los comprobantes que quedaren en existencia deberán ser inu lizados mediante la leyenda ANULADO, y permanecer archivados.

Para los responsables inscriptos en el IVA también hay cambios. Si bien siguen con el procedimiento anterior, u lizando los puntos de venta que tenían habilitados, desde el 1º de noviembre de 2014 hasta el 31 de marzo de 2015, deben confirmar o rec ficar los puntos de venta en la página web de AFIP.

80

El nuevo esquema de autorización es el siguiente:

• El contribuyente solicita autorización para imprimir facturas a través de la página web de AFIP y genera el CAI.

• El contribuyente imprime la constancia del CAI en dos ejemplares, firma un ejemplar y lo entrega a la imprenta.

• La imprenta constata la validez en el servicio “Autorización de Impresión de comprobantes” y accede al servicio “Ingreso al trabajo de impresión”.

• La AFIP valida y otorga la constancia de confirmación.

• El contribuyente recibe las facturas impresas y la constancia de confirmación tramitada por la imprenta. Luego informa a la AFIP sobre los talonarios recibidos. El cumplimiento de este trámite es requisito para pedir un nuevo CAI.

Para obtener la autorización de la AFIP, el solicitante debe poseer CUIT y clave fiscal. También debe estar actualizado el domicilio fiscal y no haber inconsistencias. Debe estar declarada y actualizada la ac vidad económica. Los monotribu stas de las categorías más altas (F en adelante), deben tener presentadas las declaraciones juradas informa vas cuatrimestrales.

OBLIGACIONES TRIBUTARIAS 81
CPN Claudia Pedersen Asesora Contable CAPBA IX

La ac vidad profesional en el Distrito IX

Estadís cas en base a tareas profesionales presentadas en el 3° semestre del 2014

Como viene ocurriendo en los úl mos años los cambios en los valores referenciales fueron fijados a par r del 1º de marzo y el 1º de sep embre, lo cual mo va incrementos de presentaciones previo al cambio de valores y esto impacta, fundamentalmente, en la can dad de metros cuadrados de Proyecto, que inciden contablemente en esos meses a modo de picos en cuanto a los valores promedio. En el caso de éste tercer trimestre, es relevante hacer notar que el aumento de m² de sep embre ha sido inferior a la tendencia que se venía dando en los úl mos dos años; comparándolo con la can dad de m² de

Marzo, representa tan solo el 46.71% de aquel (Marzo: 129.443m² - Sep embre: 60.471 m²).

Es importante visualizar que, descontando los casos puntuales de marzo y sep embre, se hace evidente una clara tendencia a la baja de la ac vidad. El valor a pico de sep embre no logra superar ni siquiera el de abril, que representaba el valor promedio anual de 68.150 m². Es decir, que hace seis meses que no se logra superar el promedio anual en m² proyectados. Comparando el tercer trimestre de 2014 en relación a igual período de 2013, se

observa una disminución de 85.567 m² para la tarea de Proyecto, es decir, una baja del 36,20% (3º 2013: 236.389 m²3º 2014: 150.822 m²).

Del porcentaje total, el 82.91% corresponde al po de obra de vivienda en todas sus variantes, porcentaje que viene incrementándose trimestre a trimestre, siendo el promedio de los úl mos tres años del 73%. Por otro lado, los demás pos de obra vienen decreciendo, siendo éste otro indicio de la desaceleración de la ac vidad económica en general. Es necesario mencionar que se han presentado con valores similares en m² a construir los

capba IX INSERCIÓN PROFESIONAL 82

Con nuando con el monitoreo de la ac vidad profesional en el Distrito se han elaborado las estadís cas correspondientes al tercer trimestre del año 2014. En esta ocasión se ha realizado el seguimiento estadís co de los meses de Julio, Agosto y Sep embre del corriente año, y se analizó este trimestre en relación a los anteriores.

usos correspondientes a: Cocheras, Industria, Administración y Comercio; aunque muy por debajo si se comparan con los otros dos trimestres del año en curso (Total de usos diferentes a vivienda

1º y 2º trimestre 30,26% - 3º trimestre 17,09%).

Respecto de los pos de vivienda, se destaca una notable disminución de los m² des nados a la Vivienda Individual. Detallando para las diferentes categorías: Unifamiliar Categoría Superior: Promedio 1º y 2º trimestres: 68.287 m2 - 3º trimestre: 35.125 m2 (disminuye el 48,56%).

Unifamiliar hasta 100 m2: Promedio 1º y 2º trimestres: 12.470 m2 - 3º trimestre: 6.933 m2 (disminuye el 44,40%).

Unifamiliar Suntuosa: Promedio 1º y 2º trimestres: 8.409 m2 - 3º trimestre: 5.534 m2 (disminuye el 34,19%).

Por el contrario, las superficies des nadas a Vivienda Mul familiar han aumentado los m² proyectados, aunque en menor medida, el 11.56% con más de 4 pisos y el 1.31% de hasta 4 pisos.

En relación a los montos de los valores en juego, el total del trimestre fue de $560.401.374, implicando este monto solo un 75.01% del promedio de los otros

trimestres del 2014 ($747.131.912), a pesar de haberse registrado un aumento de 20% del valor referencial que pasó de $5.000 a $6.000.

En el rubro Informe Técnico por Mantenimiento de Fachada, se man enen valores similares a los dos trimestres anteriores, con una leve disminución de 1.78% de los montos considerados (promedio 1º y 2º trimestre: $95.661.897 - 3º trimestre: $93.960.236). Siempre superando a todas las demás variantes correspondientes a informe Técnico, afianzándose como una ac vidad de relevancia profesional.

LA ACTIVIDAD PROFESIONAL EN EL DISTRITO IX
capba IX INSERCIÓN PROFESIONAL 838383

Por el contrario, en este trimestre se observa un considerable incremento de Construcciones no declaradas de 56.77% en can dad de metros cuadrados promedio respecto a los otros dos períodos (promedio 1º y 2º trimestre: 27.683 m² - 3º trimestre 43.398 m²). Mo va esta situación la vigencia y con nuidad de las Ordenanzas de Regularización Catastral vigentes en el Par do de General Pueyrredon.

Elaboración: Arq. Bruno Mazzini | Arq. Claudia Noto

Datos: CAPBA IX | Julio-Sep embre 2014

ESCRITURACION, CREDITO HIPOTECARIO E INDUSTRIA DE LA CONSTRUCCIÓN

En cuanto a la can dad de escrituras de compra- venta, en el mes de sep embre, en el Par do de General Pueyrredon, se observa una reducción de 3.64% interanual y del 3.11% si se consideran los primeros nueve meses en relación a igual período del año anterior. Los montos de las transacciones en pesos han tenido un aumento para los mismos segmentos, de 30.25% y de 32%, respec vamente. Esta Comuna representa el 6.85% del total provincial en cuanto a can dad de operaciones.

Los Par dos de la región, a excepción de Olavarría que ha registrado un crecimiento de 9.91%, muestran caídas en la can dad de operaciones en los primeros tres trimestres de 2014, destacando los retrocesos de Balcarce 21.28%, Bahía Blanca 14.39%, Tres Arroyos 9.26%, Tandil 8.44%, Pinamar 7.50%, y Necochea 3.53%.

A nivel Provincial, si bien se incrementaron en 2.98% la can dad de operaciones interanuales, retrocedieron un 7.89% en los primeros nueve meses, el retroceso de Agosto a Sep embre es de 10.66%. También los valores en juego de las escrituraciones, se incrementaron en porcentajes similares a los antes mencionados. Respecto a la can dad de Créditos Hipotecarios otorgados el Par do de General Pueyrredon marcan una retracción de 11% interanual, con un incremento de 4.36% en los montos (valor nega vo comparado con la tasa de inflación), registrándose 890 hipotecas en el período enero-sep embre.

En cuanto a la ac vidad de la industria de la Construcción, tomando estadís cas nacionales, la compara va interanual refleja una disminución de 2.4% para los primeros tres trimestres.

Aunque se observa un incremento de 1.2% del empleo en el mes de Sep embre respecto al mes anterior, dicho aumento se da principalmente en las provincias de las regiones de Cuyo y Patagonia. Por otra parte, se advierte una fuerte contracción de 8.3% respecto de agosto, del número de empresas constructoras registradas, situación que persiste principalmente en las grandes jurisdicciones.

Este fenómeno de retracción que se ha descripto tanto para los niveles local, regional, provincial y nacional; también parece replicarse en los países limítrofes. Tal es el caso de Chile, según datos de la Cámara de la Construcción de Chile, que viene experimentando una desaceleración del sector desde fines de 2013, debido a la menor inversión produc va privada, que además impacta en el mercado laboral (en lo que va del año se registra una caída de 10.5%), comparando interanualmente en sep embre indica un retroceso de 3.6% de la inversión general, siendo de 1,6% en Vivienda Privada, y de 9.5% en la Pública. De igual modo sucede para la infraestructura con una retracción de 2.1% del sector privado y de 2.9% en la pública. De sostenerse estos guarismos, la situación podría afectar la ac vidad incluso más allá de 2015, aunque en infraestructura pública se proyecta un incremento de 14.6% para el próximo año. Para el mismo período, el Ministerio de Vivienda y Urbanismo, prevé un aumento real anual de 17% para el pago de subsidios. Como conclusión, y en función de los datos analizados, solamente de es ma un incremento del sector de 0.6% en el total de la ac vidad.

capba IX INSERCIÓN PROFESIONAL 84
Fuentes: Observatorio de Desarrollo Regional Fundación Bolsa de Comercio de Mar del Plata. Revista Vivienda. IERIC.

Agenda CAPBA IX

Como es tradicional el Colegio de Arquitectos Distrito IX distribuye su Agenda para los Arquitectos matriculados del Distrito que se encuentran en condición regular. Los colegas de Mar del Plata pueden re rar su Agenda 2015 en Mesa de Entradas de la sede del CAPBA IX en calle Dorrego 1657, en el horario de 8 a 15 hs.

La agenda también está disponible en las Delegaciones del Distrito, en los horarios habituales de cada una.

Foro Sectorial de la Construcción

Las en dades que conforman el Foro sectorial de la Construcción enen una amplia historia en la ciudad y cuentan con una larga trayectoria de trabajo conjunto. La conformación de un Foro hace muchos años que está flotando en diferentes reuniones que se realizan por las problemá cas del sector.

Si bien en otras oportunidades han cons tuido Comités y Foros coyunturales surgidos en diferentes crisis económicas, hoy no es esto lo que moviliza su integración, sino que estas en dades han resuelto la conformación permanente de un Foro que las aglu ne con el fin de deliberar y accionar estratégicamente sobre la ac vidad de la Industria de la Construcción Marplatense.

Luego de mucho empo de maduración nace este organismo enmarcado en el futuro Consejo Comunitario del Plan estratégico, en dad que fue anunciada en el mes de febrero junto a la presentación del Plan Estratégico de Mar del Plata. Es decir, que este Foro integrará el Consejo Comunitario en cuanto éste se encuentre cons tuido como consecuencia de la transformación de la Comisión Mixta.

El Foro Sectorial de la Construcción de Mar del Plata es una red de ins tuciones de la Industria de la construcción cuya misión es alcanzar un pleno entendimiento del funcionamiento del sector y sus problemá cas, formulando estrategias, proponiendo norma vas, acciones e inicia vas que permitan una ac vidad sustentable y segura para todos sus actores. Entendiendo que el desarrollo y crecimiento equilibrado de la ciudad enmarca y limita al sector.

Su visión: lograr la sustentabilidad del sector de la construcción dentro de una ciudad estratégicamente planificada, con alta calidad de vida, capaz de contener y propiciar la ac vidad de todos los sectores de la producción.

Obje vos

 Formular un Plan Estratégico para el sector de la construcción enmarcado y que colabore a la implementación del Plan estratégico de la ciudad.

 Propiciar encuentros de formación y de debate que permitan el entendimiento del funcionamiento del sector y sus problemá cas

 Ar cular su funcionamiento con otros Foros sectoriales y en dades de la ciudad.

 Difundir en la comunidad cues ones relacionadas con el sector de la construcción.

 Promover el desarrollo de la comunidad de la construcción.

86
Planificación estratégica y trabajo en equipo para el crecimiento de la ciudad

Presentación pública en el MAR

El lanzamiento del Foro, realizado el pasado 5 de sep embre, tuvo como protagonistas a los representantes de cada una de las ins tuciones que lo integran, como el presidente de la Delegación Mar del Plata de la Cámara Argen na de la Construcción, Patricio Gerbi; el presidente del Centro de Constructores y Anexos, Norberto Cánepa; la presidente del Colegio de Arquitectos, Julia Romero; el tesorero del Colegio de Ingenieros, Carlos Filippini; el presidente del Colegio de Mar lleros, Juan Carlos Donsini; el presidente del Colegio de Técnicos, Diego Peláez; el presidente del Consejo Profesional de Agrimensura, Miguel Bergonzi y el secretario general de la Unión Obrera de la Construcción de Argen na (Uocra), César Trujillo.

La apertura estuvo a cargo del gerente del Área de Desarrollo e Integración de la Cámara Argen na de la Construcción, Andrés Peña, quien presentó un mapa conceptual de la Construcción: “lo que este mapa refleja es que todos somos parte de una misma cadena de valor, de un mismo mundo de la construcción, el cual permite generar un sen do de pertenencia, un sen do de comunidad. Entendemos que aunque cumplamos dis ntos roles todos somos parte de la misma cadena, somos parte de un mismo ambiente”.

Seguido de la exposición, los representantes de cada una de las ins tuciones se ubicaron juntos en el escenario para explicar los obje vos y la metodología a u lizar en el Foro. Aseguraron que el trabajo en conjunto se remonta a varios años atrás y que esa experiencia es lo que permi ó poder representar hoy a la industria ante el desarrollo del plan estratégico en la ciudad. En relación a esto, el Presidente de la delegación de Mar del Plata de la Cámara Argen na de la Construcción, Patricio Gerbi, mencionó: “la idea del foro es trabajar mancomunadamente, generar las sinergias que se pueden lograr a través de obje vos concretos. La idea es plantear un plan estratégico para la industria, de tal forma que vaya acompañando el desa o de llevar adelante el plan estratégico de la ciudad. Sen mos que como industria tenemos que estar a la altura de las circunstancias para pensar una Mar del Plata mejor, una Mar del Plata más permanente, más

sustentable; y hacer el aporte no en forma individual, sino con todas las ventajas que significa generar las sinergias de cada una de las ins tuciones y cada uno de los actores. Además debemos tratar de fortalecer la comunidad de la industria de la construcción a través de capacitación y de tener una visión única, de asociarnos en búsqueda de mantener una industria que es vital para la ciudad y que brinda un servicio importante”. La representante del Colegio de Arquitectos, Arq. Julia Romero, señaló que se iniciará un trabajo tendiente a ampliar la can dad de en dades que par cipan del Foro a la vez que se irá trabajando en aquellos aspectos formales que den pautas claras de funcionamiento de un plan estratégico para la industria de la construcción. Además resaltó: “no menos importante es lograr que efec vamente aquella organización que reemplazará la comisión mixta dentro del plan estratégico, pueda ser finalmente creada y eso nos permita con nuar con la consolidación de aquellos obje vos trazados en el plan estratégico donde la asociación público- privada ene un rol importan simo”.

El cierre estuvo en manos del Intendente de Mar del Plata, Gustavo Pul , quien agradeció y felicitó la inicia va al destacar la capacidad del sector para unirse y pensar un futuro para la ciudad: “creo que la creación del foro sectorial de la construcción es un acto de lucidez que no está inspirado en el brillo par cular de alguien sino que está inspirado en un brillo que ene, como acá se ha dicho, el acopio de experiencias sociales que han hecho los representantes del sector a lo largo de muchos años en Mar del Plata”. Según él esa lucidez es un patrimonio para la ciudad, un recurso y un primer eslabón que concatena con otros sectores que se enen que organizar en sus diferentes foros y mirar conscientemente el futuro para poder defender el interés principal de la ciudad: crear trabajo. Finalmente reflexionó: “Qué mejor entonces que tener lucidez social, que Mar del Plata sepa que ene un reservorio de lucidez y experiencia acopiada para analizar su cadena de valor, los nuevos proyectos, y además para hacer aportes al crecimiento futuro de la ciudad”.

Fuente: Cámara Argen na de la Construcción.

CONSTRUCCIÓN
87 capba IX FORTALECIMIENTO Y VÍNCULOS INSTITUCIONALES

Asamblea anual ordinaria del CAPBA IX

Con la presidencia a cargo de la Arq. Julia Romero y la designación como secretarios de Asamblea de los Arquitectos Daniel Monzón y Analía Benítez, se llevó a cabo la Asamblea Anual Ordinaria del CAPBA IX, cuyo Orden del Día incluía:

1) Designación de dos Secretarios de Asamblea.

2) Consideración de la Memoria y Balance del Ejercicio que finalizó el 30/9/14.

3) Fijación de las Cuotas de Inscripción en la Matrícula, Matriculación Anual y Cuota de Ejercicio Profesional para el año 2015.

4) Fijación del régimen de pago de matrícula y CEP para el año 2015.

5) Consideración del Plan de Acción y Presupuesto de Gastos y Recursos para el Ejercicio Nº 29

6) Posición Distrital sobre proyecto de la ley para régimen previsional para Arquitectos de la Provincia de Buenos Aires.

7) Designación de dos Asambleístas p/refrendar con su firma el Acta de Asamblea.

En la oportunidad se resolvió:

o Se aprobó por amplia mayoría la memoria y balance del ejercicio que finalizó el día 30 de sep embre de 2014. Destacando que al cierre del mismo se registró un superávit de $ 740.000 aproximadamente, mejorando la ejecución presupuestaria a través de pautas que paliaron las fluctuaciones en los ingresos.

o Se aprobó por unanimidad llevar la postura a la Asamblea Anual Ordinaria del Consejo Superior de actualizar en un 25% la actualización del costo de la matriculación anual Dicha actualización permi rá con nuar brindando servicios y beneficios a los colegas que man enen vigente su matrícula en el CAPBA.

o Se aprobó por unanimidad proponer en Asamblea Provincial mantener los valores vigentes respecto a la Cuota de Ejercicio Profesional, y comprometer la voluntad de realizar estudios tendientes a disminuir el valor de la alícuota vigente. Es una postura histórica del CAPBA IX instalar el debate en el Consejo Superior sobre el valor de la CEP y su incidencia en los costos del ejercicio profesional.

o Se aprobó por unanimidad mantener el régimen de pago de matrícula y CEP vigentes, así como los descuentos otorgados por el Consejo Superior y el Distrito IX y la bonificación del 50% en la matrícula a los nuevos matriculados.

o Se aprobó por amplia mayoría el Plan de Acción 2014-2015 y el Presupuesto de Recursos y Gastos para el Ejercicio N° 29. En la ocasión por mayoría de los presentes, la Asamblea del CAPBA IX avaló la Resolución CAPBA IX nº 13/10, que crea el Fondo para Préstamos Solidarios de Salud para los matriculados del Distrito IX, mediante la cual este Distrito ha brindado ayuda a muchos colegas ante imprevistos y urgencias médicas. Cabe señalar que los debates sobre este punto coincidieron en la necesidad de instrumentar mecanismos que permitan atender las urgencias de nuestros matriculados, intentando que el Consejo Superior instrumente la Resolución 91/09 que crea un fondo de préstamos que a la fecha no ha sido puesto en vigencia. Lamentamos la falta de unanimidad en este tema que siempre ha sido aprobado sin objeciones en el Consejo Direc vo.

88 capba IX FORTALECIMIENTO Y VÍNCULOS INSTITUCIONALES
El pasado 20 de noviembre se desarrolló en la Sede Distrital del CAPBA IX

o Respecto del Proyecto de Caja de Previsión y Seguridad Social para Arquitectos de la Provincia de Buenos Aires, se acordó por mayoría convalidar las actuaciones realizadas tendientes a la creación de la Caja Propia e iniciar una revisión del proyecto presentado en la Legislatura Provincial con el objeto de incorporar propuestas desarrolladas en los Distritos y que contribuirían a mejorar el proyecto de Ley.

o Los colegas que rubricarán el acta de asamblea, son Arq. Erico Mavers y Arq. Gerardo Galli.

Agradecemos a todos los colegas que asis eron a la Asamblea Distrital, a quienes han colaborado en el úl mo ejercicio desde diferentes frentes de acción, los que des nan parte de su empo en la valiosa labor de consolidar el trabajo en equipo, a los miembros del Consejo Direc vo y a nuestro Delegado al Consejo Superior. Con nuaremos en el camino trazado, trabajando comprome damente en la representación de los colegas del CAPBA IX, en la defensa de sus intereses, en la jerarquización de nuestra Ins tución y en crecimiento del Colegio de Arquitectos en su conjunto. Los invitamos a conocer la memoria y plan de acción presentados en la oportunidad.

ASAMBLEA ANUAL ORDINARIA DEL CAPBA

El miércoles 26 de noviembre se desarrolló la Asamblea Anual Ordinaria Provincial del Colegio de Arquitectos, en la ocasión los representantes del Distrito IX acercamos las posiciones aprobadas en la Asamblea Distrital, las que fueron confrontadas con las de otros distritos del CAPBA. En la oportunidad ante el tratamiento del Orden del Día de la convocatoria realizada mediante Resolución Nº 95/14, se tomaron las siguientes decisiones:

o Se aprobó la Memoria del Consejo Superior y el balance consolidado de toda la Provincia. Cabe señalar que el Distrito IX fue crí co sobre el funcionamiento de algunas áreas de ges ón del Consejo Superior, valorando que éste se abocara en el futuro a proyectos y acciones de orden general sin invadir el ámbito de competencia de los Distritos, situación que ha ocasionado divergencias e innecesarias situaciones conflic vas.

o Fijación de valores de Matrícula, gastos de inscripción y cuota de ejercicio profesional. Se aprobó una actualización

del 25% para la matrícula, por ello su valor para el año 2015 será de $ 900,00, mientras que los valores de inscripción serán incrementados en la misma proporción. La alícuota de la CEP con nuará en el orden del 3,3%. No obstante ello el Distrito IX solicitó la revisión de los recursos financieros de los que dispone el CAPBA con el objeto de lograr la baja de este alícuota a través de una op mización presupuestaria.

o Fijación del régimen de pago de matrícula y CEP para el año 2015. Se mantendrán las modalidades de pago y descuentos vigentes, esto es pago de matrícula por trimestre, descuento del 10% por pago anual an cipado en el primer trimestre del año, descuento 10% por pago an cipado de CEP.

o Consideración del Presupuesto de Gastos y Recursos para el Ejercicio Nº 29. En este caso, también fue aprobado el presupuesto provincial y el específico del Consejo Superior En el tratamiento de este punto, nuevamente el CAPBA IX señaló la necesidad de rever la asignación presupuestaria tendiente a incrementar los valores de subsidios, servicios y beneficios que deben llegarle directamente al matriculado.

o Convalidación del proyecto de “Caja de Previsión y Seguridad Social para Arquitectos de la Provincia de Buenos Aires” enviado a la legislatura bonaerense. Este punto resultó el más deba do y pese a las propuestas de varios Asambleístas, entre ellos del Distrito IX, de desdoblar la votación en una más general sobre la voluntad de la Asamblea de crear una Caja Propia y luego en específico el proyecto presentado, las propuestas fueron denegadas por la mayoría que exigieron la votación sobre el proyecto de Caja que se encuentra en la Legislatura. En ese contexto, privilegiando la oportunidad de tener una Caja Propia, el CAPBA IX decidió votar posi vamente la convalidación pretendida. No obstante, se señaló la necesidad revisar el proyecto e incorporar propuestas de los Distritos en base a la opinión de nuestros matriculados.

El CAPBA IX ha par cipado como caracterís camente lo hace, acompañando con crí cas construc vas las decisiones que fortalecen la Ins tución, con paciencia a pesar de la intolerancia y seriedad y coherencia a través del empo.

Mesa Direc va CAPBA IX

ASAMBLEA ANUAL 89

Desarrollo Urbano El Salvaje

La presencia lograda por la delegación del CAPBA IX en temas inherentes a la planificación de la ciudad y el desarrollo urbano han propiciado que, tanto emprendedores como legisladores locales, quisieran conocer la opinión de nuestra Ins tución sobre un nuevo desarrollo urbano. En esta ocasión compar mos parte de los debates, aportes y acciones realizadas.

Aportes a los desarrolladores del emprendimiento Sobre fines del mes de mayo recibimos en la sede de la Delegación Villa Gesell a los representantes del emprendimiento denominado El Salvaje, junto con los profesionales responsables del proyecto. En la ocasión presentaron las caracterís cas del emprendimiento, localización, po de ocupación del suelo, morfología y demás aspectos que definen y caracterizan la propuesta. Además, intercambiaron opiniones con los colegas presentes, respondieron consultas y dejaron a disposición de la Delegación material técnico para el análisis.

A par r de ese primer encuentro colegas de dicha Delegación, con la colaboración del Ins tuto de Estudios Urbanos del CAPBA IX, se realizaron valoraciones y recomendaciones que fueron trasladadas a los responsables del emprendimiento. En tal sen do, representando nuestro Colegio la única disciplina con incumbencias para el planeamiento urbano, y en cumplimiento de los deberes que nos impone la Ley Nº 10405, señalamos que:

o La ocupación del territorio para el desarrollo de ac vidades residenciales y de uso turís co, de modo ambientalmente sustentable, es un obje vo que promueve nuestro Colegio y la legislación vigente;

o El proyecto El Salvaje, en un primer análisis y en términos generales, plantea una zona residencial extraurbana des nada a vivienda unifamiliar, y se consolidará en un área de crecimiento previsto y deseable de que el área urbana se expanda;

o Asimismo, evidencia respeto por la estructura del paisaje existente y sus par cularidades topográficas;

o Las reservas y provisión de agua, la estructura vial interna y sus caracterís cas, así como una eventual u lización de fuentes alterna vas de energía para la red de alumbrado público, es mamos que han sido consideradas con relación a la etapa del proceso en que se encuentra el proyecto.

Sin embargo, observamos que:

a) Algunas de las ac vidades y usos previstos en el proyecto de Ordenanza para la zona R1, como lo son por ejemplo el des nado al rubro gastronómico complementario de este primero, pueden resultar no compa bles con un Zona Residencial Extraurbana, en los términos que establece el art. 7º el DL Nº 8912(*). Del mismo modo, podrían resultar observadas, por parte de la DOUyT las zonas comerciales y mul familiares en un área que no deja de perder su condición de área complementaria;

Estas observaciones se hacen sin perjuicio de reconocer que sería conveniente y necesario que una zona extraurbana incorpore dichos usos, materializados en una mínima expresión des nados a atender al requerimiento funcional de una futura comunidad que no debiera tener que desplazarse 10 km. para abastecerse de insumos esenciales de la vida co diana;

(*) “ZONAS Y ESPACIOS

ARTICULO 7°. La des nada a asentamientos no intensivos de usos relacionados con la residencia no permanente, emplazada en pleno contacto con la naturaleza, en el área complementaria o en el área rural. Se incluyen en esta zona los clubes de campo. ….”

b) Independientemente de su superficie, cualquier parcela que proyecte densidades superiores a los 60 hab/ha. requerirá de un sistema de desagües cloacales, ya sea modular o integrado a una red (Art. 37º del D.L. Nº 8912 y Dec. Nº 3202);

c) El uso Residencial Unifamiliar Exclusivo, valoriza el proyecto y al paisaje por lo que es mamos adecuado que la zonificación principal preserve tal carácter, agrupando otros usos en zonas específicas; y

d) La sanción de la respec va Ordenanza y la posterior convalidación provincial permi rán iniciar el parcelamiento (Art. 83º D.L. Nº 8912). Estos procesos suelen ser de plazo incierto, y sabiendo que el Departamento Ejecu vo

90 capba IX FORTALECIMIENTO Y VÍNCULOS INSTITUCIONALES
La Delegación Villa Gesell estudia propuestas y realiza aportes para el desarrollo planificado de nuevos emprendimientos

Municipal ha enviado la consulta ante la Dirección de Ordenamiento Urbano y Territorial (DOUyT) el proyecto de la norma va aplicable, y para un mejor análisis, resulta indispensable conocer las consideraciones que dicha repar ción hubiera realizado. (Expte. Nº 22600/2782, de mayo de 2012)

Aportes al debate legisla vo

En el mes de Octubre la Delegación Villa Gesell del Colegio de Arquitectos Distrito IX concurrió a la Comisión de Obras, Servicios y Transporte Público del Honorable Concejo Deliberante, por invitación de su Presidente, para tratar el proyecto de norma va para el desarrollo urbano “El Salvaje”. En la ocasión se manifestó la sa sfacción por la invitación recibida, ya que es la primera vez desde la creación del Colegio de Arquitectos, que se pide formalmente opinión desde el Departamento Delibera vo para la confección de una norma.

En relación al tema la Delegación, en mayo de este año, señaló que: “… El proyecto de El Salvaje, en un primer análisis y en términos generales, plantea una zona residencial extraurbana des nada a vivienda unifamiliar, y se instala en ese proceso consolidará en un área de crecimiento previsto y deseable de que el área urbana se expanda” y que “… La ocupación del territorio para el desarrollo de ac vidades residenciales y de uso turís co, de modo ambientalmente sustentable, es un obje vo que promueve nuestro Colegio y la legislación vigente.”

Esta afirmación que reiteramos, incluía consideraciones en relación a usos y modalidades de ocupación del territorio, que en nuestra opinión, no resultan compa bles con el carácter extraurbano del emprendimiento. En esta instancia, y conociendo el proyecto de Ordenanza remi do por el D.E. al Honorable Concejo Deliberante, señalamos tanto el acuerdo con los lineamientos generales, como nuestra objeción con algunas de las modalidades de uso y morfológicas del proyecto en tratamiento.

En par cular creemos que resulta cues onable y debería ser revisada la zonificación denominada R2, establecida en el ar culo 26 del proyecto, que permite edificios de 25 mts. de altura (planta baja y siete pisos), a la vez que el ar culo 40 propone para esa zona los usos: “mul familiar, hotelero, Comercio de carácter turís co ...“. Por lo que entendemos que tanto la altura propuesta como el uso mul familiar, son completamente inadecuados.

Por otra parte, el proyecto plantea un uso mayoritariamente unifamiliar exclusivo, y cesiones de espacios verdes y para equipamientos superiores a las exigibles. (D.L. Nº 8912 y Ley Nº 14449)

En relación a la ap tud ambiental, esta Delegación en ende que tanto el Municipio como la Provincia cuentan con responsabilidades, atribuciones, estructura y protocolos que deben garan zar tanto su sustentabilidad como la ausencia de afectaciones significa vas al ambiente. La premisa es aportar al proceso de discusión y debate, por lo que propone que se revisen y modifiquen los temas señalados, en el convencimiento de que así se generará una norma que contemple el interés general de todo el conjunto de los ciudadanos.

Luego de esta intervención y con el tratamiento habitual de los proyectos norma vos, el proyecto de ordenanza con las modificaciones propuestas por el Colegio de Arquitectos fue aprobado por el Honorable Concejo Deliberante. Sin embargo, el señor intendente en oportunidad de la promulgación de la nueva norma va procedió al veto de la misma con argumentos fundados en las opiniones del CAPBA IX, tal vez sin considerar que las observaciones se encontraban subsanadas.

Comunicación al Intendente Municipal

En virtud del veto a la ordenanza sancionada por el Concejo Deliberante autorizando el emprendimiento urbano “El Salvaje” y ante la interpretación incorrecta de las opiniones del Colegio de Arquitectos, le fue remida al Sr. Intendente la comunicación que a con nuación se reproduce:

DELEGACIONES. VILLA GESELL 91

Villa Gesell, noviembre de 2014

Sr. Intendente Municipal

Dr. Gustavo N. BARRERA:

De nuestra mayor consideración:

La Delegación Villa Gesell del Colegio de Arquitectos de la Provincia de Buenos Aires Distrito IX quiere poner de manifiesto su opinión frente al veto por usted dispuesto mediante el Decreto Nº 2876 referido al emprendimiento conocido como EL SALVAJE.

Entre los fundamentos del mencionado veto vemos que se incluyen observaciones de ésta Delegación realizara oportunamente al proyecto de Ordenanza elevado por este ejecu vo comunal al HCD.

Consideramos que los argumentos son inapropiados y extemporáneos. En ese sen do, vale adver r que nuestros cues onamientos, expresados en reunión de Comision de Obras, Servicios y Transporte Público del HCD, se resolvieron sa sfactoriamente en la redacción final de la Ordenanza, como se puede verificar con su sóla lectura.

En ésa ocasión propusimos que se excluyera la zonificación residencial mul familiar y la posibilidad de construir edificios de 25 mts. de altura. Por ello, ni el uso mul familiar ni tal plano límite, fueron autorizados en la Ordenanza sancionada.

Valoramos que las sugerencias de este Colegio Profesional, realizadas atendiendo criterios de menos impacto urbano ambiental, fueran aceptadas y dispuestas en la norma va que autoriza el emprendimiento. Por ello, nos preocupa que tales opiniones sean fundamentos del veto.

Tambien entendemos que la Ley Provincial Nº 14449, de Acceso Justo al Hábitat, y su decreto reglamentario, será aplicable a estos procesos de planificación del territorio, pero en instancias dis ntas y posteriores a la actual, como lo señala claramente la Ley en su art 48º (“momento de exigibilidad“).

Finalmente queremos poner a su disposición nuestra Delegación, y el Ins tuto de Estudios Urbanos IUE 9, de nuestro Colegio Distrital, para colaborar y par cipar “…en el marco del Proceso de Revisión del Plan Urbano Ambiental de la Ciudad…”que se menciona en los fundamentos del veto referido.

La revisión de dis ntos Planes Directores sancionados desde el municipio, sin la inclusión de la comunidad, ni de relevantes actores sociales, sin par cipación de nuestro Colegio profesional, que aún no obtuveron la necesaria convalidación provincial, es una tarea impostergable.

Entendemos que Villa Gesell necesita con un Plan Urbano Ambiental que considere la totalidad de su territorio, y plantee los ejes y lineamientos para su manejo y ges ón de un modo integral y tendiente a establecer bases de equidad para el pleno desarrollo de la comunidad.

Su formulación y seguimiento es una tarea de toda la comunidad en la que comprometemos nuestro mejor esfuerzo y par cipación.

Sin otro par cular, lo saluda atentamente.

Arq. Mauricio Villate

Delegado Villa Gesell CAPBA IX

92

General Madariaga y su Patrimonio

Por unanimidad se aprobó el Codigo de Preservación impulsado por la Delegación de Pinamar del Capba IX

El pasado 27 de noviembre de 2014 el Honorable Concejo Deliberante del Par do de General Madariaga aprobó por unanimidad de los bloques polí cos que lo componen la Ordenanza que crea el Código de Preservación Patrimonial.

Este proyecto surge de un proceso par cipa vo impulsado por el Colegio de Arquitectos Distrito IX, Delegación Madariaga-Pinamar, conjuntamente con ins tuciones gubernamentales y de la comunidad. Días previos al tratamiento del proyecto, el medio local EL MENSAJERO entrevistó al Delegado del CAPBA Arq. Ramón Uranga, aquí compar mos parte de esa entrevista:

Sobre el proyecto de Ordenanza Uranga precisó que “siempre desde el Colegio estuvimos ocupados para que Madariaga tenga una herramienta de ges ón de su patrimonio, tanto del área urbana, como del área rural. Nos parece que es una herramienta que a la ciudad le hace falta para enriquecer su crecimiento. Madariaga ene una iden dad y una tradición que ene que perdurar en el empo. Esto se hace también como una herramienta de ges ón, porque no es lo mismo crecer perdiendo edificios y cultura, que crecer armónicamente donde conviva lo viejo con lo nuevo. Es importante también que Madariaga profundice su sello, que es el de la tradición, el folklore y el campo; no se debe perder eso, sino que se debe enriquecer”.

Asimismo añadió que “la Ordenanza lo que aporta es darle más herramientas de ges ón al ejecu vo municipal, para afrontar dis ntos pos de casos que pueden aparecer; y favorecer a aquel que ene un bien patrimonial, que quiere construir de acuerdo a lo que permite el código de zonificación, con una especie de premio, como puede ser permi rle más metros cuadrados o darle alguna exención en las tasas, por ejemplo. Siempre y cuando mantenga el basamento, por ejemplo en las zonas comerciales, de la planta baja, que es un poco lo que le

da iden dad a nuestro centro. Desde el punto de vista de las viviendas, nosotros tenemos muchos ejemplos muy buenos, que la gente se ha preocupado por mantener. También tenemos el buen ejemplo del Museo, que se compró una casa an gua y se la remodeló de manera estupenda, o el también posi vo caso de Doña Fermina, que de una vivienda se transformó en algo comercial, donde los propietarios y el proyec sta tuvieron la capacidad de enriquecer la situación. Es digamos un poco de donde proviene la ordenanza, convivir lo viejo, lo nuevo, el cambio de uso y el crecimiento. Lo mismo se puede decir de Los Vascos. Hay muchos casos de los buenos, pero como contra par da hay casas viejas que son abandonadas, y que después es muy di cil salvarlas. Lo que se hizo ya está, pero con esta herramienta de ges ón, lo que buscamos es que lo que se haga se mejore y se preserve”.

Fuente: El Mensajero

El trabajo de varios años realizado por la Delegación Pinamar-Madariaga del CAPBA IX, va consolidándose y obteniendo logros más concretos que fortalecen el camino iniciado. Resulta prometedora la aprobación unánime del Concejo Deliberante. Esperaremos la promulgación defini va de la nueva ordenanza y comenzaremos las acciones tendientes a su reglamentación, a la creación de una autoridad de aplicación y la conformación de una Comisión Honorífica de consulta para que aquellos aspectos previstos en el Código vayan siendo alcanzados y cumplidos.

DELEGACIONES. MADARIAGA-PINAMAR
93 capba IX FORTALECIMIENTO Y VÍNCULOS INSTITUCIONALES

Resoluciones de Obras Privadas en el Par do de La Costa

Reglamentaciones vigentes referidas a construcción prefabricada e índices urbanís cos en régimen de P.H.

La delegación colegial de La Costa nos acercó resoluciones del Municipio que revisten importancia para los profesionales con encargos en el Par do. A con nuación realizamos la transcripción textual de las mismas.

RESOLUCIÓN Nº 1/2014

VISTO:

Que se encuentra en vigencia la Ord. 336, Decreto Nº 119/87, donde en su sección 5 prohíbe la implantación de viviendas prefabricadas en el Par do de la Costa y

CONSIDERANDO:

 Que el gran crecimiento poblacional de nuestro distrito es notorio y constante.

 Que esta situación trae aparejada una importante demanda de viviendas para sostener este crecimiento.

 Que en la úl ma década han surgido dis ntos sistemas construc vos que se han ubicado en un rango intermedio entre lo prefabricado y lo tradicional.

 Que los dis ntos materiales que conforman estos nuevos sistemas, en muchos casos, no poseen los coeficientes necesarios para soportar estructuralmente situaciones climá cas severas (vientos) o agentes externos (fuego).

 Que es necesario reglamentar estos nuevos métodos de construcción, ya que es preocupación de este Municipio garan zar la seguridad de los bienes y las personas.

POR ELLO:

El Director General de Coopera vas y Obras Privadas del Par do de la Costa en uso de sus facultades delegadas por el Sr. Intendente Municipal:

RESUELVE:

ARTÍCULO 1º - Las construcciones en materiales no tradicionales de po industrializados deberán adaptarse a las norma vas vigentes. Actualmente deberán registrar en su conformación total hasta un 50% de sistema prefabricado, premoldeado, y/o industrializado, debiendo cumplimentar el resto con construcción tradicional.

ARTÍCULO 2º - Dentro de la construcción tradicional, deberá incluir: fundaciones, estructura independiente de HºAº, contrapisos interiores en P. Baja de hormigón pobre y mampostería perimetral elevada como mínimo 0.80 mts. desde el nivel + -0.00 interior.

ARTÍCULO 3º - Los materiales empleados en los sistemas no tradicionales no deberán ser tóxicos ni contaminantes y alcanzar una resistencia al fuego de F60. La acción del viento sobre las construcciones absorberá ráfagas de hasta 180 km/hora, según lo indica las normas CIRSOC 102-2005 y modificatorias.

ARTÍCULO 4º - Las cañerías de gas y electricidad deberán estar embu das dentro de la mampostería, de no ser así el material deberá tener la misma resistencia al fuego que el resto de los materiales no tradicionales.

ARTÍCULO 5º - En construcciones con troncos o similar, solo se aceptará el uso de madera dura o semidura, material que no podrá superar el 50% de la composición de los muros perimetrales componentes del edificio, debiendo cumplir todas las restricciones de los ar culos anteriores.

ARTÍCULO 6º - En todos los casos estas construcciones estarán estrictamente sujetas a las reglas del buen arte y el buen construir. No serán admi das terminaciones que queden a la vista denotando precariedad o que no concuerden con la imagen del entorno circundante.

ARTÍCULO 7º - Para aprobar el trámite ante Planeamiento deberá presentar:

 Nota de solicitud formada por el profesional actuante.

 Plano donde se verifique la u lización del 50% en construcción tradicional.

 Imágenes 3D (dos copias)

 Plano de obra municipal incluyendo:

a) Plantas estructurales

b) Corte ver cal en escala 1:25 donde detalle fundaciones, po de mampostería, unión de construcción no tradicional y anclaje con cubierta.

c) Nota trascribiendo el ar culo 3º firmado por el profesional y el propietario.

ARTÍCULO 8º - Para aprobar el trámite ante Obras Privadas deberá incluir dentro de la carpeta de obra, una copia del plano municipal con la estructura y el corte y las imágenes en 3D, ambos aprobados por el área de Planeamiento.

Mar del Tuyú, 22/01/2014

Dirección General de Obras Privadas y Coopera vas

Director

De Obras Privadas y Coopera vas Municipalidad de La Costa

94 capba IX FORTALECIMIENTO Y VÍNCULOS INSTITUCIONALES

VISTO:

RESOLUCIÓN Nº 3/2014

Que ante las presentaciones de dis ntos proyectos de obra, ya subdivididas por medio del régimen de propiedad horizontal Ley Nº 13512, donde la ampliación o la modificación del proyecto original en una o más unidades funcionales, se plantea cómo se ponderan los indicadores, si como un todo o por unidad funcional.

CONSIDERANDO:

 Que por dis ntas ordenanzas y/o decretos se define la zonificación según uso y ocupación de suelo.

 Que las mismas se realizan con el objeto de generar condiciones que garan cen un desarrollo de óp ma calidad urbano ambiental con equidad para los dis ntos propietarios presentes o futuros.

 Que cabe el dictado de una adecuación y mejora en la presentación de los proyectos a fin de unificar criterios.

 Que por consultas e inquietudes realizadas por la subdirección de Obras Privadas, exis endo entre ambos similar criterio a adoptar.

 Que se debe legislar al respecto a fin de mejorar y agilizar las dis ntas aprobaciones de proyectos en las dis ntas unidades funcionales.

 Que en dis ntos reglamentos de copropiedad se establece que cada propietario puede llevar a cabo ampliaciones o reformas sin el permiso de los demás o en caso de obtener un permiso par cular, no se limita el uso dándose reiterados casos donde una unidad o conjunto de unidades por realizar proyectos hacen uso de la totalidad del FOT y/o FOS, de la parcela como un todo impidiendo que a posterior nuevas solicitudes de aprobación de proyectos puedan plasmar y aprobar los mismos por superar factores. Entendiendo la dirección que se crea un conflicto ante igualdad de derechos en el uso de suelos por la mera an cipación de las dis ntas presentaciones.

POR ELLO:

El Director General de Obras Privadas y Coopera vas resuelve en uso de sus facultades delegadas por el Señor Intendente Municipal:

RESUELVE:

ARTÍCULO 1º - Todo proyecto de obra que se encuentre dividido en P.H., a los efectos de considerar los indicadores urbanís cos, deberá cumplirlos en forma individual sobre la U.F. (el o los polígonos comprendidos) tomando la base de la superficie de suelo de la U.F. más la proporción que le corresponda según el porcentaje de la mencionada U.F. de las partes comunes, según el plano de P.H., sin perjuicio de cumplirlos en un todo sobre la parcela original.

ART. 2º - De los premios: los premios que se podrán tomar y aplicar en la unidad funcional y que correspondan a la parcela en general son:

Inc. a = ancho de lote.

Inc. c = re ro de línea municipal.

Inc. e = espacio público al frente.

Inc. f = unificación de parcelas.

ART. 3º - Previo a toda modificación, ampliación y/o materialización de obras que alteren el estado original del edificio, fachadas y cercos perimetrales o protecciones que también produzcan cargas visuales, se deberá contar con el permiso de los copropietarios, o estar establecido el permiso en el reglamento de copropiedad y administra vo, y solicitar la debida autorización municipal para su ejecución.

ART. 4º - En caso de que existan ordenanzas par culares respecto al uso de suelo, se las considerará en un todo, pudiendo evaluar la Dirección Gral. De Obras Privadas y/o la Subdirección de Obras Privadas aquellos casos par culares que se presenten, considerando la U.F.

Mar del Tuyú, 9 de sep embre de 2014 Dirección General de Obras Privadas y Coopera vas

DELEGACIONES. LA COSTA
Ing. Sergio F. Mallo Director Gral. De Obras Privadas y Coopera vas Municipalidad de La Costa
95
Fernando R. F. Farías Secretario de Obras Municipalidad de La Costa

COPAP

Par cipación en la Comisión de Análisis y Planificación del Parque Miguel Lillo

Desde el mes de Julio del corriente año, invitados por las autoridades de la Municipalidad de Necochea, el CAPBA 9 Delegación Necochea viene par cipando del COPAP, espacio de ar culación comunitaria donde se estableció como metas diagnos car, elaborar propuestas y determinar la agenda de acciones futuras orientadas a ges onar el Parque Miguel Lillo.

El Parque Miguel Lillo es uno de los espacios públicos de mayor superficie (640 has.) de la Provincia de Buenos Aires bajo órbita administra va municipal. Creado como vivero, buffer dunícola y espacio público, se consolidó en sus 60 años como uno de los ejes de expansión urbana de Necochea-Quequén. En el devenir de estos años los criterios adoptados por la Municipalidad de Necochea fueron contrapuestos e incluso vulneraron su originario cargo público. Desde su municipalización dominial en el año 1994 hasta el año 2003 exis ó voluntad expresa por parte del poder público en priva zar el uso y goce privado de parte del mismo. Producto de este temperamento el municipio materializa el desarrollo del primer barrio cerrado de Necochea-Quequén.

Sin embargo a par r del año 2004 se rec fica el rumbo y en el año 2009, con mo vo de concretar el reemplazo integral del corpus norma vo en materia territorial y ambiental de la totalidad del Distrito a través del denominado “Código de Desarrollo Sostenible” (CODES), el Municipio no convalidó las Ordenanzas que promovieron aquella priva zación. Asimismo, en el año 2010, se promulgó la Ordenanza Nº 7108/10 donde se fijaron criterios específicos para el manejo integrado del soporte costero parque-playa, circunscribiendo el dominio privado sólo y estrictamente al citado barrio privado. Esta norma, la primera de su po en el orden provincial dado sus alcances en materia de manejo integrado costero, reglamenta la adhesión al Decreto Nº 3202/06.

Desde la implementación del Plan Urbano Ambiental del Par do de Necochea (2006) y del Plan de Manejo del Parque Miguel Lillo (2007) se interpreta al Parque Miguel Lillo y su litoral costero como una misma unidad ambiental al cual debe garan zarse la sustentabilidad con el fin de uso y goce público.

En el transcurso de estos meses, más de una decena de colegas par ciparon intensamente de este espacio y de la denominada subcomisión “Norma va y usos”, coordinada desde el Ins tuto

de Estudios Urbanos Distrito 9, desde donde el CAPBA emi ó dictamen y opinión en referencia. De todo lo analizado y descripto, se concluyó que es sumamente necesario revisar e impulsar el reemplazo del soporte norma vo territorial vigente, en par cular la Ordenanza Nº 2005/81 a través de un proceso de planificación estratégico-par cipa vo donde se devele el rol y se fije el perfil público del Parque Miguel Lillo. En este sen do se sugirió referenciarse en el proceso de planificación desarrollado entre los años 2003 y 2011. Finalmente, ra ficamos nuevamente lo expresado en la nota presentada por el CAPBA 9 el día 3/7/2014 a las autoridades municipales: “El estado debe supeditar toda decisión par cular, que pueda ejercer cambios sobre el territorio, a un proceso de planificación de orden general, por estas razones y en función del tema que nos convoca; el análisis y planificación sobre el Parque Miguel Lillo debe estar inscripto en el modelo de polí ca territorial que se determine para la totalidad del sistema urbano Necochea-Quequén y no focalizar su tratamiento de manera diferenciada. Desde el CAPBA asis remos a aquellas polí cas que promuevan la ges ón de este espacio público de manera sostenible, preservando su calidad ambiental y sa sfaciendo las demandas sociales que se generen, garan zando la integridad del dominio público”. Seguimos asis endo semana por medio las reuniones que se están llevando a cabo en esta Delegación, con mo vo de asis r al colega Arq. José Gaído en la par cipación que éste realiza en la Comisión de Análisis y Planificación del Parque Miguel Lillo (COPAP). En la úl ma reunión se acordó cons tuir la sub comisión “norma va” donde el IEU9 Subzona Sur elaborará el informe de análisis correspondiente. Asimismo, se está elaborando el informe diagnós co general de la presente etapa.

Arq. Mar n Sarasíbar

IEU9 Subzona SUR

DELEGACIONES. NECOCHEA
96 capba IX FORTALECIMIENTO Y VÍNCULOS INSTITUCIONALES

Turn static files into dynamic content formats.

Create a flipbook
Issuu converts static files into: digital portfolios, online yearbooks, online catalogs, digital photo albums and more. Sign up and create your flipbook.