InfoCAPBA IX

Page 1

Es mados Colegas, nos encontramos cerrando el primer trimestre del año y en esta edición de la Revista Info CAPBA IX podemos ver reflejada la intensa ac vidad que nuestro colegio distrital desarrolla en toda la región y en diferentes frentes de acción, que van desde los problemas gremiales que preocupan a nuestros matriculados a problemá cas que se presentan en nuestras ciudades de diferentes escalas.

Como es habitual, en Info CAPBA IX, desarrollamos temas inherentes al ejercicio profesional, divulgamos obras de colegas del Distrito, difundimos los concursos en ges ón o desarrollo, compar mos los encuentros de camaradería realizados, informamos sobre las capacitaciones desarrolladas o a realizar, entre otros temas.

En ese sen do, el CAPBA IX ha recopilado las resoluciones o disposiciones vigentes en un Manual Auxiliar de Visado, el que se presenta en este número, y que será compar do con nuestros matriculados a través del si o web. Este manual complementa la asistencia técnica que permanentemente brinda el Distrito para facilitar el ejercicio profesional de los colegas.

En materia previsional, el Gobernador de la Provincia de Buenos Aires ha derogado el Decreto Nº 237002 mediante el cual era exigible a los profesionales la presentación del Cer ficado de Cumplimiento de Aportes Previsionales (CCAP) emi do por la CAAITBA. Dicho requerimiento originó, oportunamente, que el CAPBA IX presentara un recurso de amparo por su aplicación, entendiendo que resultaba limitante del ejercicio profesional y por ende contrario a la libertad de trabajo garan da en la Cons tución Nacional. Sin dudas, éste es un logro para los colegios profesionales que debe ser celebrado sin mezquindades polí cas por lo

que felicitamos al Consejo Superior por la par cipación en esta ges ón.

Durante los meses de enero y febrero, además de mantener la ac vidad normal de funcionamiento, la Mesa Direc va del CAPBA IX ha visitado algunas Delegaciones del Distrito y, según la oportunidad, ha mantenido reuniones con autoridades municipales Estas ges ones fortalecen el rol de las Delegaciones y permiten poner en conocimiento de los Municipios los problemas y preocupaciones de los arquitectos en la Región.

Nos introducimos en un año complejo, de cara a un nuevo proceso electoral en todos los niveles. Muchos serán los temas sobre los que los arquitectos tendremos la oportunidad de brindar nuestra opinión. Desde nuestra Ins tución aspiramos a incluir en la agenda pública temas como: polí cas de planificación estratégica de las ciudades, atención de necesidades de servicios habitacionales, salubridad, educación, entre diversos aspectos de hacen a las condiciones de vida de nuestras ciudades. Además, consideramos indispensable promover la inserción y par cipación de los arquitectos, conjuntamente con otras profesionales, en la definición previa de proyectos de inversión pública.

Estamos transitando el segundo año de ges ón, con el mismo compromiso del primer día, con muchos proyectos que a enden diversos intereses de nuestros matriculados y jerarquizan a la Ins tución que conducimos. Esperamos con nuar con la colaboración y par cipación de nuestros colegas para, construir entre todos, las acciones necesarias con el fin de favorecer la inserción profesional de los arquitectos, atender las necesidades de nuestra comunidad y con nuar con el crecimiento de nuestro Colegio.

Segundo año de ges ón Acciones, proyectos y logros para con nuar ges onando
Arq. Julia ROMERO Presidente Arq. Daniel MONZÓN Secretario Arq. Bruno MAZZINI Tesorero
EDITORIAL

Publicación Ins tucional del Colegio de Arquitectos de la Provincia de Buenos Aires

Distrito IX

Distribución Trimestral Gratuita

Edición 2.100 ejemplares

Año 4 | Nº 10 | Marzo de 2015

ISSN 2346-9595

capba IX

Los ar culos publicados expresan los puntos de vista de sus autores y no necesariamente representan los de la Ins tución. Los ar culos sin firma son conocidos por el Consejo Editor y su responsabilidad úl ma recae en el Director a cargo.

Se autoriza la reproducción total o parcial de los ar culos contenidos en la misma con el compromiso de citar la fuente.

Si desea auspiciar en esta publicación, comunicarse a bole n@capba9.org.ar o bien consultar en la Sede del CAPBA DIX, Dorrego 1657 de la ciudad de Mar del Plata, tel (0223) 473-3031, 473-8282 o 474-3944, donde se le brindará todas las referencias de contacto.

DIRECTOR

Arq. Julia Romero

CONSEJO EDITOR

Arq. Daniel Monzón

Arq. Bruno Mazzini

Arq. Analía Benítez

COLABORADORES

Arq. Laura Romero

Arq. Alicia París

Arq. Adriana Olivera

Sra. Analía Flores

ARTE Y DISEÑO

Valeria Burkhard

FOTOGRAFÍA

Karina Beltran

Hugo Porro

Vanesa Widmer Franul

LOGÍSTICA, PUBLICIDAD Y MARKETING

Cepei Comunicación SRL

INTRO

01| EDITORIAL.

02| SUMARIO. STAFF.

EJERCICIO PROFESIONAL

04|HONORARIOS PROFESIONALES. Nuevos Valores Referenciales.

05|MEDIOS DE PAGOS HABILITADOS.

06|NORMATIVA. Manual auxiliar de visadores. Concurso auxiliares del visado CAPBA IX.

08|OBRAS EN EL DISTRITO IX. Concesionario de automóviles en Valeria del Mar. Arq. José Solla

12|OBRAS EN EL DISTRITO IX. Casa-Pa o en Necochea. Arq. Juan José Villa.

GESTIÓN DEL DESARROLLO

URBANO SUSTENTABLE

18|ACCESIBILIDAD. ¿Para qué noción de ser humano diseñamos?

24|ARQUITECTURA SUSTENTABLE. Ciudades inteligentes.

28|PREMIO ESTÍMULO CAPBA

2014. Trabajos premiados Distrito IX.

38|NUEVOS CONCURSOS. Concurso Provincial de Ideas Y Anteproyectos. Puesta en valor urbano y reacondicionamiento del predio costanero de la planta de pre tratamiento de efluentes Ing. Baltar.

40| NUEVOS CONCURSOS. Concurso Provincial. Refuncionalización del Palacio Municipal (MGP).

42|PATRIMONIO. El edificio del Ins tuto Unzué y su restauración.

46|Croquiseros urbanos en MDP.

ASUNTOS PREVISIONALES

48|CAAITBA. Asamblea extraordinaria de representantes.

51|CAAITBA. Cer ficado de cumplimiento de aportes. La provincia de Buenos Aires derogó el Decreto Nº 2370-02.

capba IX 02

Publicación Declarada de Interés por :

SOCIAL Y GREMIAL

52|MATRICULADOS. Entrega de Medallas.

53|NUEVOS MATRICULADOS. Entrega de credenciales a Arquitectos.

54|FIESTA FIN DE AÑO 2014.

56|SUBSIDIO 25 AÑOS.

58|CICLO DE ARTES PLÁSTICAS EN EL COLEGIO DE ARQUITECTOS. Todos los fuegos, el fuego.

CAPACITACIÓN Y ACTUALIZACIÓN PROFESIONAL

60|CICLO DE CONFERENCIAS DE ARQUITECTURA: “De la Idea a la Obra”. Conferencias Arqs. Bertolino –Pérez Maraviglia.

66| ACTUALIZACION PROFESIONAL. Nuevo si o web de la comisión de capacitación.

68| CAPACITACIÓN. SketchUp

2014. Curso mul media en formato videotutorial.

PROGRAMA COMUNICACIONAL

70|HOMENAJE. Lina Bo Bardi, cuando el racionalismo toca erra (americana).

74|CONVOCATORIA para publicar en Info CAPBA IX .

76|PRESENTACION DE LIBRO. Plazas Fundacionales de Mar del Plata. En busca del paraíso perdido Marta Lamas.

INSERCIÓN PROFESIONAL

78|GESTIÓN. Ges ón de FADEA sobre incumbencias de Seguridad e Higiene en el Trabajo de los Arquitectos.

80|LA ACTIVIDAD PROFESIONAL EN EL DISTRITO IX. Estadís cas en base a tareas profesionales presentadas en el 2° semestre del 2014.

83|LA ACTIVIDAD PROFESIONAL EN El Pro.Cre.Ar. Estadís cas en base a tareas profesionales.

FORTALECIMIENTO Y VÍNCULOS

INTERINSTITUCIONALES

87|DELEGACIONES. BALCARCE Homenaje Arquitecto Álvarez Manzaneda.

88|DELEGACIONES. PINAMAR. Municipalidad de PinamarDirección de Frente Mari mo. Apertura del Registro de Profesionales.

90|DELEGACIONES. NECOCHEA. El Colegio de Arquitectos mantuvo una entrevista con funcionarios municipales.

92|DELEGACIONES. MIRAMAR. Reunión con nuevo Secretario de Obras Públicas y Medio Ambiente.

94|PRESERVACIÓN PATRIMONIAL Y APORTES A LA IDENTIDAD. La Defensoría del Pueblo entregó reconocimientos a par culares, comerciantes e Ins tuciones.

SUMARIO capba IX 03

Honorarios Profesionales

Nuevos Valores Referenciales

A par r del 1º de marzo de 2015 rigen nuevos valores referenciales para la determinación de honorarios profesionales conforme lo resuelto por Asamblea Anual Extraordinaria de Representes de la Caja de Previsión Social de Arquitectos, Agrimensores, Ingenieros y Técnicos de la Provincia de Buenos Aires. Resolución CAAITBA Nº 571-15.

Como siempre toda la información actualizada para la determinación de los Honorarios Profesionales se puede consultar en el si o web del Distrito IX, www.capba9.org.ar solapa Área Técnica. También se encuentran a disposición en Sede y delegaciones en formato papel las nuevas tablas desarrolladas vigentes, las que enen un formato más completo y con referencia a las Resoluciones CAPBA Nº 03-15 y 04-15 que determinan los Valores Referenciales y CEP.

Desde el CAPBA IX se recomienda a todos los colegas u lizar el sistema CAPBA en línea, no sólo para la confección de previsados de tareas profesionales encomendadas, sino además para la es mación previa de Honorarios Profesionales. Esto es posible simulando un previsado y guardándolo temporalmente hasta la confirmación de la encomienda profesional. Esto facilitará la tarea y agilizará los empos de visado.

Referenciales desde el 1º de marzo de 2015

Valores

Valor Referencial (unidad arancelaria): $ 7.200,00

CEP Mínimo: $270,00

F.C.: 360

Honorario Mínimo: $ 1.800,00

Medición e Informe Mínimo:

Vivienda Standard hasta 100 m2 $ 3.376,00

Resto de las Categorías $ 5.623,00

Timbrado: 12.5 ‰

Art. 29 (Caja)

10% de Proyecto y Dirección

CMAO: vigente a par r del 01/03/15

$ 14.400,00

capba IX 04 EJERCICIO PROFESIONAL

Medios de pago habilitados

Es mados Colegas, les informamos que con mo vo de propender a la bancarización total de los ingresos desde el 15-10-2012 no se acepta el pago de la CEP en efec vo en oficinas de la Sede Distrital ni en Delegaciones del CAPBA DIX. Asímismo les detallamos los sistemas y medios de pagos por los cuales se podrán realizar los aportes correspondientes, cuyos ckets deberán ser adjuntados a la documentación técnica al momento del visado

DEPÓSITO BANCARIO

BANCO PROVINCIA DE BUENOS AIRES

Mediante depósito en cuenta corriente Nº 11575/1 Suc. 6100 en cualquier sucursal del Banco. Consulte sucursales en h ps://www.bancoprovincia.com.ar

BANCO CREDICOOP

Mediante depósito en cuenta corriente Nº 3067-1 Filial 089 Consulte sucursales en h p://www.bancocredicoop.coop

BANCO GALICIA

Mediante depósito en cuenta corriente Nº 00002903790833 Suc. 083

TRANSFERENCIA BANCARIA

CUIT CAPBA DIX 30-68994042-7

BANCO PCIA DE BS AS. CBU 0140415301610001157512

BANCO CREDICOOP. CBU 1910089655008900306714

BANCO GALICIA. CBU 0070083220000029037937

CHEQUES

CHEQUE PERSONAL. A la orden de Colegio de Arquitectos de la Provincia de Buenos Aires.

CHEQUE DE TERCEROS. A la orden del profesional y endosado.

OTROS MEDIOS DE PAGO

RIPSA PAGOS Únicamente con tarjeta personalizada que deberá retirarla en sede distrital o delegaciones. Consulte centros de pago en h p://www.ripsa.com.ar. Para el pago deberá indicar al cajero el concepto por el cual se realiza el depósito (01. Matrícula, 02. CEP, 03. Cursos, 04. Compras Comunitarias, 05. SUM). Es importante recordar que la empresa RIPSA no cobra boletas de aportes previsionales de la CAAITBA.

TARJETAS DE CRÉDITO (en Sede Distrital y Delegaciones) Visa o Mastercard.

TARJETAS DE DÉBITO (en Sede Distrital y Delegaciones) Visa Electrón o Mastercard.

PROVINCIA NET Se encuentra vigente como nuevo medio de pago la tarjeta personalizada de provincia Net, la cual debe ser re rada en Sede Distrital y/o Delegaciones del CAPBA IX. La modalidad de operación es mediante código de barras en el plás co a nombre del matriculado que con ene los datos de éste y, quien deberá indicar al operador de caja el importe y el concepto a pagar. Luego el cket original emi do debe ser anexado a la documentación a presentar o comunicarlo al área de matrícula o de tesorería según corresponda por el po de trámite. Importante: este medio de pago no es para u lizarse en sucursales del Banco Provincia, debe presentarse en agencias de pago BAPRO o PROVINCIA NET.

Reclamos de Deudas de CEP y Matrícula

Es mados colegas, les informamos que según lo instruido por el Consejo Superior del CAPBA por Resolución N° 85/14, actualmente se está no ficando las deudas en concepto de CEP y Matrícula que constan en los registros del sistema informá co.

Asimismo, les comunicamos que desde el Sistema de Autoges ón CAPBA en línea se puede acceder a la información sobre la deuda registrada, consultar su concepto y verificar su correspondencia. El acceso al sistema de autoges ón debe ser habilitado por el CAPBA para lo cual debe acercarse al Distrito de pertenecía a efectos de solicitar la habilitación de su usuario personalizado.

Los esperamos en Sede Distrital y/o Delegaciones del CAPBA IX para regularizar la deuda que le fuera informada.

Tesorería CAPBA IX

MEDIOS DE PAGO capba IX 05 EJERCICIO PROFESIONAL

Manual Auxiliar de Visadores

El CAPBA IX elaboró una recopilación de norma va para facilitar el ejercicio profesional

El Consejo Direc vo del CAPBA Distrito IX, por inicia va de su Mesa Direc va, aprobó por Resolución N° 01-15 el pasado mes de febrero, el Manual Auxiliar de Visado.

Se trata de un compendio de Leyes, Decretos y Resoluciones del CAPBA que condicionan el ejercicio profesional del arquitecto y que deben ser tenidas en cuenta por los visadores para el control que le compete al Colegio de Arquitectos de la Provincia de Buenos Aires, por imperio de la Ley Nº 10405 y sus modificatorias.

Para la elaboración de este Manual se ha u lizado la estructura organiza va y el detalle de resoluciones que integran el “Compendio de Resoluciones CAPBA”, creado por Resolución del Consejo Superior Nº 67/12, marco norma vo elaborado por la Comisión de Ejercicio Profesional del CAPBA y par cularmente por la Arq. Silvia Safar. Esto permite acceder a la norma va vigente a través de un agrupamiento en temas relacionados con el ejercicio profesional, visado, matriculación y procedimientos.

capba IX 06 EJERCICIO
PROFESIONAL

Asimismo, este material será de u lidad para la consulta de los colegas que así lo requieran. A la vez que será permanentemente actualizado conforme se integren nuevas resoluciones al compendio citado. En esta primera edición se incluyen Resoluciones sancionadas hasta Agosto de 2012, alcanzadas por el compendio CAPBA. Además se han incorporado Resoluciones Distritales recientes (hasta diciembre de 2014) que amplían la temá ca desarrollada.

El Manual recopila:

o las Incumbencias del Título de Arquitecto con todas las resoluciones ampliatorias de las mismas;

o las Leyes de Colegiación;

o el Compendio de Resoluciones CAPBA:

 Resoluciones del Ejercicio Profesional -con Código de É ca-

 Resoluciones de Visado

 Resoluciones de Matrícula

 Resoluciones de Procedimientos

o Resoluciones Distritales;

o Resoluciones recientes no incluidas en el Compendio;

o Decreto arancelario;

o Leyes previsionales.

La publicación digital de este Manual agilizará la labor que el CAPBA DIX desarrolla en todo su territorio de competencia y aspira a lograr una publicación provincial que unifique criterios y procedimientos en toda la Provincia, así como complemente el reciente Bole n oficial del CAPBA, creado en el año 2014.

Para la elaboración del Manual fue fundamental la colaboración de los Arquitectos Juan Figueroa y Adriana B. Olivera, en la recopilación y edición, así como la colaboración administra va de las Sras. Stella Maris Rizzardi y el personal administra vo del Consejo Superior.

C ÓMO PUEDE CONSULTARSE EL MANUAL AUXILIAR DE VISADOS?

Esta herramienta ú l para el ejercicio profesional de todo arquitecto puede consultarse en versión digital en el si o web de la Ins tución www.capba9.org.ar

Asimismo, en formato papel, puede consultarse en la Sede Distrital, en el Centro de Documentación y Biblioteca para su préstamo, o en las Delegaciones del CAPBA IX.

CONCURSO AUXILIARES DE VISADO CAPBA IX

Del 9 al 30 de enero de 2015 se recibió la inscripción de matriculados -postulantes del CAPBA DIX- para el Concurso de Auxiliares de Visado del Distrito (Resolución N° 09/14). Entre los requisitos se encontraban: tener 2 años de residencia en la localidad correspondiente a la Sede Distrital; no poseer antecedentes de sanción disciplinaria; tener más de tres (3) años en el ejercicio de la profesión; haber suscripto como mínimo cinco (5) contratos de tareas profesionales; y presentar curriculum de antecedentes laborales-profesionales.

Los profesionales inscriptos fueron provistos del Manual Auxiliar de Visadores como material de estudio, siendo esta una ocasión propicia para probar el nuevo material compendiado. Los postulantes fueron evaluados durante el mes de febrero del corriente en conocimientos generales (informá ca, redacción administra va, atención al público) y específicos (norma vas vigentes a efectos del visado, incumbencias profesionales, Código de É ca Profesional, Leyes de Previsión Social, Decreto Arancelario N° 6964/65, Es pulaciones Contractuales, tareas profesionales y aranceles correspondientes, Resoluciones y decretos del CAPBA)

La modalidad de la evaluación contó con tres instancias: examen escrito, coloquio y antecedentes. La evaluación tuvo lugar en la sede del CAPBA DIX, con una parte prác ca efectuada usando el sistema de visado on-line. Una vez sorteada y aprobada la instancia escrita, tuvo lugar el coloquio y a posterioridad la evaluación de antecedentes. Se estableció como condición que los postulantes debían superar el 60% del examen escrito para pasar a las siguientes instancias.

La selección de los profesionales fue efectuada por un jurado Ad Hoc conformado por el Secretario, el Tesorero y el Gerente Técnico del CAPBA IX zona sur, quienes luego de la evaluación completa efectuaron un dictamen conformando el siguiente orden de méritos:

1º CHOCOU, Romina Elizabeth Mat. 24447

2º FIGUEROA, Juan Alberto Mat. 21707

3º JORDÁN, María Jimena Mat. 25685

4º RUSSO, Mariana Lorena Mat. 25331

4º RAMÍREZ, Ana Laura Mat. 22775

5º BAZANO, Mónica Noemí Mat. 25147

6º NERLI, Gabriel Eugenio Mat. 16530 Dado, que la Arq. Jordán ene una relación de dependencia de jornada completa con el CAPBA IX, por lo que no podría asumir las tareas para las que fuera convocado este concurso, ha sido excluida del equipo a conformar.

Los colegas (seis miembros) que integrarán el equipo de auxiliares de visado del CAPBA IX, podrán ser convocados en forma conjunta y/o alternada según las exigencias del área de visado, respetando el orden de prelación según los méritos obtenidos.

En caso de que un profesional manifieste imposibilidad de cubrir la tarea en la oportunidad que fuera convocado se procederá a la citación del siguiente en orden. Una vez agotada la nómina, se comenzará nuevamente con el primero en orden y subsiguientes.

La tarea a desarrollar será complementaria a la del cuerpo de Visadores del CAPBA IX y se encontrará bajo la órbita del Gerente Técnico zonal, por lo que las instrucciones, tareas y funciones estarán bajo dicho mando. El Orden de Méritos del presente concurso tendrá una validez de dos (2) años, periodo a par r del cual el CAPBA IX podrá realizar una nueva convocatoria o, según las exigencias del área técnica, con nuar sólo con el personal de la planta permanente.

NORMATIVA capba IX 07 EJERCICIO PROFESIONAL

FICHA TÉCNICA

CATEGORÍA

Servicios

Concesionaría de automóviles Citroën

UBICACIÓN

Ruta N° 11 cercana a rotonda de Valeria del Mar. Colectora.

Par do de Gral. Madariaga

PROYECTO Y DIRECCIÓN

Arq. José Solla

Tel. 0223 155-252749

Mar del Plata

COLABORADORES

Tomás Calandroni

SOLANAS S.A.

SUPERFICIE CUBIERTA

1150 m2

AÑO DE CONSTRUCCIÓN

2013

ARQUITECTURA COMERCIAL

Concesionaria de automóviles

Valeria del Mar

MEMORIA DESCRIPTIVA

Ubicada sobre la Ruta N° 11 (interbalnearia), el edificio adquiere una lectura diferente a las arquitecturas urbanas, siendo el auto y la percepción lejana el modo más habitual de presentación. La propuesta se adecua a esta escala proponiendo dos elementos básicos de composición (1 edificio, 2 pór co de acceso y elementos exteriores) que merecen idén ca jerarquía ya que el funcionamiento de la concesionaria se da a par r de la llegada en auto; interpretando que tanto el espacio interior como exterior se presentan como lugares de exposición y venta de vehículos.

El pór co de acceso define la interioridad de la propuesta dando origen a una plaza de autos (exhibición y estacionamiento) que permite diferenciar los tres accesos de la propuesta: A- acceso a salón

capba IX 08 EJERCICIO PROFESIONAL
OBRAS EN EL DISTRITO capba IX 09 EJERCICIO PROFESIONAL

1. Plataforma de exposiciones

2. Acceso

3. Vendedores

4. Gerencia

5. Salon de exposicion

6. Estar

7. Repuestos

8. Atencion salon y repuestos

9. Entrega 0km

10. Taller

11. Lavado

12. Secado

13. Servicios complementarios

PLANTA BAJA

1. Administracion flexible

2. Oficce

3. Oficina

4. Archivo

5. Dormitorio de personal

6. Comedor de personal

7. Vacio sobre salon

8. Vacio sobre taller

PLANTA ALTA

CORTE TRANSVERSAL

CORTE LONGITUDINAL

FACHADA NORESTE

L.M. E.M. A A BB B E.M. +0,00 +0,35 +0,70 +0,55 L.M. E.M. E.M. B B A A 02 03 06 09 05 07 08 10 11 12 13 01 01 04 01 02 03 04 05 06 07 08
capba IX 10 EJERCICIO PROFESIONAL
FACHADA SURESTE

de ventas y administración; B- acceso a servicio; C- acceso a lavadero.

La plaza se propone como un espacio de ordenamiento funcional e intercambio comercial, ya que ésta posee lugares diferenciados para la exposición en forma jerarquizada de vehículos (plataformas), los cuales se complementan con un sistema de cartelería que refieren a la imagen ins tucional.

El edificio se presenta como un prisma de 20m x 40m x 8m, dividido en dos porciones: A-salón de venta y administración; Bservicios y taller. Estableciendo un fluido vínculo visual con el fin de comunicar la transparencia en los modos de ejecución de las tareas; y entender al taller como un espacio con similares caracterís cas de los lugares de exposición y venta.

El volumen edificado permite un crecimiento lateral sobre la plaza, llegando a duplicar lo construido actualmente y dosificando dicha ampliación de acuerdo a las futuras necesidades. Además de pequeñas ampliaciones del servicio hacia el fondo.

La ideación de la propuesta está fuertemente relacionada con su forma de ejecución y materialidad; proponiendo una volumetría elemental que obedece a una rigurosa coordinación modular de dis ntos elementos construc vos (bloques de hormigón, luces de chapas y perfiles, paneles vidriados, placas de aluminio, etc.). Esta modulación se expresa en forma reiterada en los dis ntos elementos que componen la imagen, intentando a su vez, diferenciar los elementos construc vos para que cobren iden dad propia y logren comunicar su comportamiento en el sistema total. El límite arquitectónico pretende comunicar los aspectos construc vos y produc vos de la propuesta en forma clara y despojada de elementos accesorios que confundan el mensaje, intentando así presentarse de forma sincera y adecuada al rol que les toca desarrollar.

OBRAS EN EL DISTRITO
capba IX 11 EJERCICIO PROFESIONAL

FICHA TÉCNICA

CATEGORÍA

Vivienda individual e/ medianeras

UBICACIÓN

Calle 101 N° 1146 - Necochea

PROYECTO Y DIRECCIÓN DE OBRA

Arq. Juan José Villa

Tel. 02262 15 490 310

Calle 38 N° 4774, Necochea

SUPERFICIES

Superficie de terreno: 400 m²

Superficie vivienda: 244.95 m²

Año de Proyecto: 2010

Ejecucion: 2011 - 2012

COLABORADORES:

Fotogra a: Melina Krousso si Renders: Nahuel Mancino

VIVIENDA UNIFAMILIAR

Casa-Pa o Necochea

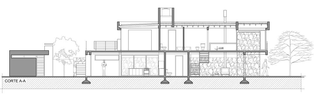
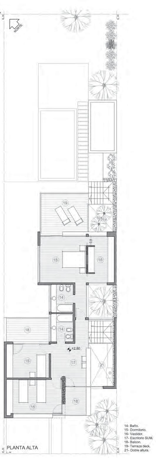
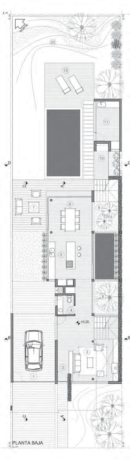
MEMORIA DESCRIPTIVA

La casa se construyó en la ciudad de Necochea, en un barrio residencial con un alto crecimiento en los úl mos años.

El terreno plano, entre medianeras y sin amplias vistas, con un frente de muros paralelos de 10 metros de ancho y una profundidad de 40 metros, nos permi a diseñar e intercalar, varias secuencias de espacios construidos y espacios vacíos.

La premisa del proyecto, era lograr una casa integrada a un entorno natural diseñado por nosotros. Las dis ntas áreas se debían proyectar de manera que hubiera una con nuidad y una conexión entre los espacios interiores y los exteriores. Por tal mo vo, se decidió hacer una implantación centralizada en el ancho del terreno, la cual nos dejó desarrollar la pología de “casa-pa o”. Proyectando espacios exteriores con caracterís cas diferentes: para estar, para mirar, está cos, dinámicos, soleados, sombríos, descubiertos, semicubiertos, etc.

capba IX 12 EJERCICIO PROFESIONAL
OBRAS EN EL DISTRITO capba IX 13 EJERCICIO PROFESIONAL
capba IX 14 EJERCICIO PROFESIONAL
OBRAS EN EL DISTRITO
especiales para arquitectos en capba IX 15 EJERCICIO PROFESIONAL
Planes
16

El pa o es un espacio que no pierde actualidad y genera una vida interior/exterior, logrando una percepción y una perspec va diferente de la casa.

La vivienda se organiza en dos plantas. En la planta baja se ubican las áreas públicas y semipúblicas tales como el hall de acceso, el estar pasante con vista hacia la calle y la cocina comedor, con salida al área de la pileta, desde donde se puede acceder por medio de una escalera de HºAº a la terraza del dormitorio principal.

El programa de ac vidades privadas se desarrolla en la planta alta: un área de estar ín mo, que cumple la función de hall distribuidor; los dormitorios que corresponden a los niños están ubicados en el frente, mientras que el cuarto matrimonial en el extremo opuesto. Privilegiado por la calidez del sol y las vistas.

Las dos plantas, se relacionan a través de la doble altura, donde se encuentra la escalera liviana, metálica con escalones de madera. La luz que ingresa a través de dos grandes carpinterías enfa za el área.

Los materiales que determinan el espacio interior son: los muros de confección tradicional de mampostería de ladrillos, revocados y pintados de color blanco; el vidrio que intenta desmaterializar el límite interiorexterior; la estructura de HºAº de columnas circulares ubicadas fuera del perímetro; y un muro de piedra Mar del Plata que recorre toda la casa y construye un paisaje en con nuidad con la vegetación.

OBRAS EN EL DISTRITO
17

En sucesivas ediciones Info CAPBA IX viene presentando en su sección sobre Accesibilidad, temas tales como pautas de accesibilidad en edificios públicos y en las playas, accesibilidad en el entorno domés co, desarrollo de conceptos como “diseño universal”, “seguridad funcional”, etc., y cobertura de visitas a la ciudad de Mar del Plata de profesionales reconocidos en el tema, entre otras notas relacionadas.

Nos gustaría en esta edición hacer una pausa reflexiva. Sin recetas, ni recomendaciones, ni sistemas de medidas. Simplemente volver al inicio, al aspecto puramente humano que mo va el pensar “soluciones accesibles”; al aspecto vivencial de la existencia humana que tan estrechamente se enlaza con lo urbano.

Qué mejor que hacerlo bajo la guía de un buen libro. “Lo urbano y lo humano”, de la Arq. Silvia Coriat nos introduce de manera ágil y rigurosa, pero también - por qué noemo va, en el mundo de las personas con discapacidad, que habitan sorteando cada día numerosos obstáculos que los desaniman, que los “dejan afuera” desde varios aspectos. De lectura recomendada, su libro es una guía imprescindible para animarnos a “dar el paso” y pensar de ahora en más, en lo accesible para cada proyecto, de forma tal que esos obstáculos no tengan que ver con el diseño urbano y edilicio que nos compete.

SER DIFERENTE, SENTIRSE DIFERENTE

“Reducir el abordaje y estudio de la discapacidad a terapia ocupacional y rehabilitación médica... es como confundir el problema de la mujer en la sociedad con la ginecología; o encarar el problema del racismo desde la dermatología...”

“Las personas con alguna discapacidad siempre supieron que ‘discapacidad’ implica mucho más que problemas

¿Para qué noción de ser humano diseñamos?
capba IX DESARROLLO URBANO SUSTENTABLE 18

sicos. Saben que éstos no son ni el único ni el más importante de los problemas. Que todo no termina al salir del hospital o del centro de rehabilitación en silla de ruedas y ni aún con un vehículo adaptado. Saben que sólo han enfrentado los primeros problemas, porque tener una discapacidad significa vivir como alguien “diferente”, “anormal”, “inferior”. Significa enfrentar problemas de gran complejidad: “...que los demás te evadan, te tengan lás ma, o te rechacen totalmente...” Significa tener mayores problemas para encontrar trabajo o vivienda. Significa quedar atrapado en la pobreza, en una jubilación o pensión miserable. Significa discriminación.

Tener una discapacidad no es sólo tener un defecto sico, psíquico o sensorial: es formar parte de una realidad socio-polí ca compleja que se vive día tras día.

Sin embargo, dejando de lado la naturaleza de la discapacidad, el abordaje de la problemá ca de las personas con discapacidades -hasta hace pocos años, y aun actualmente- se ha limitado al paradigma que sugiere que discapacidad implica sólo problemas sicos y la compensación de los mismos.

Hasta hace muy poco, este paradigma dominaba la prác ca médica y la rehabilitación. Quienes contaban con poder y control promulgaban este paradigma y ponían los límites al respecto. Era sólo este punto de vista el que aparecía en las publicaciones cien ficas, se enseñaba en las facultades, se escuchaba en las conferencias y se reconocía en los centros de rehabilitación.

Sin embargo, en las úl mas décadas (las personas con discapacidad) están emergiendo como grupo y nos dicen: “No aceptamos más ser vistos como personas ´defectuosas´ para ser reparadas, enviadas a casa y ocultadas. Esta es nuestra realidad. Ténganlo en cuenta y téngannos presente”. Y más recientemente: “Tenemos los mismos derechos a una vida plena y par cipa va que el resto de los ciudadanos. No tomen decisiones sobre nuestras cues ones sin consultarnos”.”

SER HUMANO HOY

Hace falta, pues, transgredir, modificar la visión heredada para modificar el hábitat.

“A la imagen heredada de la An gua Grecia del individuo –“noble, hermoso y perfecto”- se opone otra imagen: la del abanico de caracterís cas cada día más heterogéneas en aspectos antropométricos, funcionales, y aún mentales, afec vos, que, lejos de alejarse de la “nobleza” se acercan a ella, en la medida que podemos despojarnos de la máscara de perfección, reemplazándola por una búsqueda desprejuiciada del ser humano; con sus propias caracterís cas; tal cual es.

¿Qué ajustes deben producirse entonces en nuestra sociedad para adecuarse a las necesidades planteadas por esta nueva situación? ¿Cómo adecuarse a la inclusión plena de un sector de la población cada vez más ac vo y potente, con caracterís cas sicas y funcionales diferentes?

El mundo griego admiraba la salud, la armonía y la “belleza”. La salud era considerada como el mejor de los bienes. La enfermedad, por el contrario, era considerada una gran maldición, pues apartaba al hombre de su estado de perfección y lo conver a en un ser inferior. El hombre ideal, para ellos, era el ser cuyo armonioso equilibrio de cuerpo y alma lo hacía noble, hermoso y perfecto.

Esta concepción, heredada y dominante en nuestra sociedad, rige la mirada que uno ene de sí mismo y de los otros, y determina el valor que asignamos a las personas según su grado de aproximación a esa perfección.

En la modernidad, en tanto el sujeto pasa a ser fundamento, centro del mundo, referente y parámetro, se marcha hacia la instalación de la iden dad. La idea de “progreso” viene acompañada de logros de los más aptos, y de su contracara, la discriminación.”

ACCESIBILIDAD
capba IX DESARROLLO URBANO SUSTENTABLE 19

SOLUCIONES QUE “DES-INTEGRAN”

Personas con elementos auxiliares, tales como bastones, andadores, sillas de ruedas, revolucionan los criterios ergonómicos aplicados hasta la fecha y ponen en evidencia graves carencias en el dimensionamiento de nuestras ciudades.

La Ciudad, el concepto de vecindad, el “progreso”, la tecnología, han sido y son movimiento.

Dentro de este marco de cambios, nuestra concepción de la discapacidad está en parte signada por la forma en que nuestros antecesores crearon nuestro hábitat. En un principio, el hábitat que uno hereda es percibido como fijo, inmutable. De esta forma la realidad del medio y el concepto de discapacidad interactúan entre sí. La discapacidad es tanto una idea social como un hecho sico. Nuestra concepción de lo que cons tuye un espacio social apropiado para personas discapacitadas incide en la forma en que creamos nuestro hábitat. Hace falta, pues, transgredir, modificar la visión heredada para modificar el hábitat. Es necesario ubicarse en el lugar del otro, y oírlo.

Cuando una persona en silla de ruedas habla de que vive en un piso superior, la escalera se convierte en un lugar donde puede ocurrir cualquier cosa. Surge una imagen compleja e intrigante: la arquitectura se convierte –o se pone en evidencia como– un teatro del drama humano. Las escaleras no son solamente hos les desde un punto de vista funcional. Son fuente de problemas afec vos y conflictos familiares. Se convierten en un cartel que dice: “No se permiten discapacitados”. Enfrentar esta situación permanentemente es agobiante. Sin embargo hay quienes se ven obligados a hacerlo todos los días.

¿Cómo se juegan, en la vida co diana, las relaciones de las personas en el escenario del hábitat? ¿Qué significado encierra para un individuo, en su relación con los demás, el poder acceder o no por sus propios medios, como lo hace el resto de las personas, al espacio en que se despliegan esas relaciones? Y a la vez: ¿qué significa para los demás -amigos, parientes, y también médicos, arquitectos- esta misma exclusión, en el mejor de los casos salvable mediante la dependencia, es decir, la asistencia de otros?

Hablamos de escaleras, para mencionar tan sólo un ejemplo. La bipedestación, uno de los atributos estructurantes de la especie humana, ha definido desde siempre los requerimientos dimensionales para los espacios de recorrido. En algunas épocas esto se ha dado en forma espontánea, y en otras de manera planificada, y aun con criterios cien ficos “desde la antropometría y la ergonomía”.

Pero cuando la propia especie humana logra prolongar la vida de individuos que antes morían por enfermedades o complicaciones, y por ende les posibilita una vida ac va

capba IX DESARROLLO URBANO SUSTENTABLE 20

pese a secuelas discapacitantes, paradójicamente deja de ser la bipedestación la única postura de deambulación imaginable. Personas con elementos auxiliares (…) ponen en evidencia graves carencias en el dimensionamiento de nuestras ciudades: la ausencia de lo que llamo “coeficientes de seguridad ergonómica” -coeficientes que amplíen los márgenes dimensionales mínimos a ser previstos- .

En tanto la bipedestación es concebida tradicionalmente como la única manera posible de movilizarse, todo desnivel, en recorridos peatonales, se salva con un recurso en la historia del hábitat humano: la escalera, el escalón.

Para arquitectos, urbanistas o ingenieros es di cil aceptar y reconocer que la escalera pueda ser problema zante. Forma parte de aquello que es tomado como fijo e inmutable: una constante en el diseño del espacio urbano y arquitectónico.

En la prác ca profesional es habitual que la crea vidad se oriente a buscar nuevas formas y soluciones arquitectónicas sin necesariamente comprometerse con las necesidades y el comportamiento humano. El referente humano implícito en el diseño es considerado como una obviedad acerca de la cual no se profundiza. En todo caso, el ser humano cuyas caracterís cas subyacen es, o bien el propio profesional, o el individuo medio “standard” en buen estado de salud, o el usuario par cular en el momento circunstancial de su vida en que se topa con el arquitecto –el comitente o usuario en su “aquí y ahora” congelado en el empo–.

Lo cierto es que en las úl mas décadas, por primera vez en la historia de la humanidad, la problemá ca social de las personas con discapacidad se manifiesta de manera consciente y organizada haciendo oír su propia voz en la defensa de sus derechos como ciudadanos, reclamándonos una ciudad, un hábitat accesible.

¿Dónde nos ubicamos frente a esta creciente demanda?

¿Cuán é cos somos si no estamos plenamente convencidos de la ín ma relación, tanto intelectual como emocional, entre el ejercicio de la arquitectura y el ser humano, en sus múl ples despliegues?

LA INTERVENCIÓN DEL ARQUITECTO

¿Por qué a los arquitectos nos desconcierta tanto este tema, nos resulta tan ajeno a nuestra ac vidad co diana?...

¿Para qué noción de ser humano diseñamos?

¿A qué noción de ser humano pertenecemos o respondemos nosotros mismos?

Procuramos reducir al mínimo la generación de situaciones discapacitantes. Las personas ciegas o los usuarios de sillas de ruedas son tan sólo la porción más visible de una franja de la población que se topa con múl ples dificultades en la ciudad.

Se generan situaciones discapacitantes para un amplio rango de problemá cas a menudo no tan visibles o aparentemente no tan graves: personas ancianas que deambulan con dificultad, sin ayuda pero precariamente, con artri s o con hemiplejias; personas que u lizan muletas, bastones o andadores; personas con disminución visual severa, sordos, personas muy bajas o muy altas, u otras con dificultades para orientarse o para interpretar mensajes en carteles señalizadores, etc.

Todos tenemos o tuvimos padres mayores y abuelos. Muchos de nosotros hemos pasado el período de embarazo para que nazcan nuestros hijos; éstos han sido pequeños, y también hemos pasado por la situación de estar con un yeso durante varias semanas.

¿Por qué a los arquitectos nos desconcierta tanto este tema, nos resulta tan ajeno a nuestra ac vidad co diana?

Sabemos que hay una serie de normas, leyes, ángulos

ACCESIBILIDAD
capba IX DESARROLLO URBANO SUSTENTABLE 21

de rampas, que enen que ver con personas en sillas de ruedas. Pero, ¿por qué cuesta tanto incorporar estos conceptos a nuestra ac vidad profesional?

¿Para qué noción de ser humano diseñamos? ¿A qué noción de ser humano pertenecemos o respondemos nosotros mismos? Durante décadas, los arquitectos nos hemos formado y hemos diseñado respetando pautas y dimensiones dictaminadas desde manuales y textos de estudio. El famoso manual “El arte de proyectar en arquitectura” incluía las medidas para todo lo imaginable y lo inimaginable.

¿Quién era ese individuo perfecto, universal, de quien eran registradas sus medidas en todos sus actos; ese dis nguido señor para quien se diseñaron a medida tantas obras de arquitectura?

Era el hombre medio, o standard. El hombre que “representa” a la mayoría. Eso hicimos durante décadas: diseñar y construir para un grupo excluyente, denominado “mayoría” sin preocuparnos por dejar afuera a un vasto grupo de la población. Y aún no estamos hablando de las personas con discapacidad: nos referimos a personas algo más bajas, o más altas, o más gordas, o miopes. Consideremos las peripecias para u lizar toile es mínimos en los cuales, si hay lugar para la puerta no lo hay para entrar; el esfuerzo necesario para abrir puertas con “cierra puertas”; el problema en que se cons tuye un dormitorio en planta alta, cuando el usuario ene un esguince, o es un abuelo con cardiopa a; la altura de las ventanillas de atención en la mayoría de las repar ciones públicas; ascensores mínimos en los que no entra un cochecito de bebé...

La ergonomía aplicada a la antropometría revolucionó los criterios de dimensionamiento tradicionales al proponerse lograr diseños estándar que cubrieran franjas cada vez más amplias de usuarios.

Al introducir conceptos de accesibilidad remarcamos la necesidad de verificarlos en cada etapa del proceso de diseño y en la etapa de su culminación: el uso. En las

primeras, para generar los ajustes necesarios propios del desarrollo de todo proyecto. En la etapa de uso, para producir las correcciones per nentes y para realimentar la información necesaria en las etapas de diseño para todo otro nuevo proyecto.

La par cipación del usuario con discapacidad en ambas instancias y en cada etapa del proceso de diseño –generación de ideas, prefiguración, dis ntos niveles de concreción y en el proceso de verificación en “ida y vuelta”–, es fundamental poniendo a prueba y verificando cada decisión, par cularmente en los aspectos funcionales. La accesibilidad re-significa el sen do del proceso de diseño en su doble carácter de hipoté co-itera vo. (Lo hipoté co perdura de manera dinámica a lo largo del proceso de diseño: desde cada etapa se “re-hipote za” sobre las etapas aparentemente superadas y las siguientes.-Aclaración de la autora para esta publicación-)

Más ampliamente, el protagonismo del usuario idóneo con discapacidad en las diferentes etapas de ges ón –desde la planificación hasta la habilitación y la verificación en el uso– contribuye a la op mización y a la excelencia del producto arquitectónico resultante.

Las normas de diseño accesible incluida la legislación nacional y los antecedentes internacionales, son necesarios, pero no suficientes. La discapacidad no se vive uniformemente en todas las la tudes y en todos los sectores sociales.

PAUTAS DE DISEÑO ACCESIBLE: SU APLICACIÓN Y SUS LÍMITES

Ser crea vos inves gando y aportando criterios para la implementación de pautas de accesibilidad. Estos criterios se encuentran aún en plena elaboración en otros países y resta responder a muchos interrogantes.

Ahora bien: si no es posible establecer pautas generalizables, ¿cómo diseñar? ¿Cómo aplicar los

capba IX DESARROLLO URBANO SUSTENTABLE 22

criterios de accesibilidad, incluidas leyes, normas y decretos? ¿En qué casos sirven y en qué casos no? ¿Todo ene que ser accesible? Y si no es así, ¿cómo definir los límites?

Se trata de:

1) U lizar la información sistema zada, conscientes de la diversidad de factores en juego;

2) Aprovechar las valiosas oportunidades, con usuarios con discapacidad, de comprender la lógica de sus modalidades de comportamiento, de comunicación, de relacionarse, de moverse y de desenvolverse en diferentes tareas, a fin de ampliar y enriquecer nuestro necesario conocimiento acerca del ser humano.

3) Ser consecuentes con las premisas básicas de ergonomía, a saber: a) seguridad, b) confort, c) accesibilidad en todas las variantes posibles (al medio sico, a la comunicación, a la información); y aplicar de los conceptos enunciados en a), b) y c) a las dis ntas escalas e instancias de diseño -gráfico, objetual, arquitectónico o urbano–.

4) Ser crea vos inves gando y aportando criterios para la implementación de pautas de accesibilidad. Estos criterios se encuentran aún en plena elaboración en otros países y resta responder a muchos interrogantes.

La presente nota ha sido elaborada citando fragmentos de los capítulos 1, 2 y 4 del libro

CORIAT, Silvia Aurora, “Lo Urbano y lo Humano. Hábitat y Discapacidad” (1º ed.) CP67, Universidad de Palermo y Fundación Rumbos. Madrid, España, 2002.

Agradecemos a la autora el permiso de publicación. El libro, que fuera Mención de honor en la categoría Historia, Teoría y Crí ca de la Arquitectura y el Urbanismo, en la Bienal de Arquitectura, Quito 2002, cuenta con una 2º edición actualizada y ampliada en 2011, y puede descargarse en versión digital en: h p://www.rumbos.org.ar/lourbanoylohumano

ACCESIBILIDAD
23

Ciudades inteligentes

Nuevos conceptos de eficiencia y sostenibilidad

A par r de la paula na consolidación del concepto de “inteligencia” aplicado a las ciudades, el que se empieza a verificar en algunos ejemplos internacionales, el CAPBA IX advierte la necesidad de introducir a nuestra disciplina en la temá ca con el objeto de ampliar el campo de acción de los arquitectos y promover el desarrollo sustentable de las ciudades de nuestra región. Junto con el Director del Ins tuto de Desarrollo Sustentable comenzamos los estudios preliminares que darán marco a ges ones futuras y que hoy desarrollan en este ar culo.

ANTECEDENTES

Desde mediados del Siglo XX, más específicamente a par r de la finalización del período denominado “la guerra fría”1, se comenzó a u lizar en diversos campos de la ciencia una serie de disposi vos y tecnologías para la observación de la superficie de la erra. Dichas inves gaciones tenían múl ples aplicaciones, en el caso que nos incumbe tenían como objeto estudiar nuestras ciudades. Sus conformaciones, caracterís cas en relación al si o, formas de implantación, y fundamentalmente su crecimiento y desarrollo. Desde allí se comenzó a observar, y fundamentalmente a comprender, las lógicas urbanas desde un punto de vista inédito hasta el momento, desde el espacio exterior de la erra. Cómo crecen, cómo evolucionan hacia los modelos urbanos no sustentables de la actualidad y finalmente cómo colapsan nuestras ciudades.

Durante la primera década del Siglo XXI estos avances tecnológicos, efectuaron importantes aportes en la construcción de conocimiento, e iniciaron una ver ginosa carrera de adelantos con nuos y aplicaciones impensadas tan solo unos años atrás.

¿QUE SON LAS CIUDADES INTELIGENTES?

El término “ciudades inteligentes”, como tantos otros aplicados al estudio de las ciudades, deriva del inglés “smart ci es” y se trata de un concepto complejo conformado por la hibridación de varias concepciones urbanas sobre el tema de la ciudad. El mismo se encuentra en permanente re-definición y cambio.

1 La “cold war” o “guerra fría” es un período de alta tensión en Estados Unidos y la Unión Sovié ca desarrollado durante los años 1940-1980.

capba IX DESARROLLO URBANO SUSTENTABLE 24
Satélite LANDSAT 5 Simulación levantamiento de datos

EL APORTE DE LA INNOVACIÓN Y TECNOLOGÍA

En este punto, ¿cuál sería “la novedad” que contendría esta nueva concepción de la ciudad? Algunos de los aportes provendrían de la u lización combinada entre la tecnología informá ca, las tecnologías de la información TIC, y el marke ng actual. Cues ones como la ges ón, la eficiencia energé ca y la planificación quedan subordinadas a la noción de “eficiencia máxima” proveniente de la u lización de sistemas informá cos inteligentes cuyo obje vo es aumentar la eficacia en el funcionamiento urbano.

Las “ciudades inteligentes” u lizan tecnologías de la información y la comunicación para ser más inteligentes y eficientes en el uso de los recursos naturales, también son capaces de ahorrar energía, pero además ofrecen a las ciudades nuevos y mejores servicios que posibilitan el mejoramiento de la calidad de vida urbana, a través de la reducción del impacto ambiental, apoyando la innovación y disminuyendo la contaminación.

EXIGENCIAS Y APORTES DE LAS CIUDADES PARA SU DE SARROLLO INTELIGENTE

Las ciudades consumen casi el 70% de la energía producida: el modelo de “ciudad inteligente” implica el desarrollo de importantes mejoras en la eficiencia de los edificios, tanto en calefacción, refrigeración como en iluminación, en el transporte público y el mejoramiento radical de la ges ón de la movilidad urbana, con el consiguiente ahorro de combus ble.

Avanzar hacia un modelo de “ciudad inteligente” ene una gran implicancia en la eficiencia energé ca y por ende en la contaminación de la ciudad.

Cuando en la actualidad mencionamos a las “smart ci es” nos estamos refiriendo a un par cular po de desarrollo urbano, basado por un lado en la sustentabilidad ambiental, y por otro a la incorporación de las úl mas tecnologías de control y monitoreo urbano, así como también a la u lización del marke ng como motor dinamizante, buscando generar la capacidad de responder convenientemente a las necesidades de desarrollo de los propios habitantes, Ins tuciones y/o empresas tanto del ámbito público como del privado. Por lo tanto, se posibilita un desarrollo en el plano económico, como así también en aspectos tales como la ges ón inteligente, desarrollo social y polí cas ambientales.

Una ciudad o desarrollo urbano podrá ser calificado de inteligente en la medida que las inversiones que se realicen se encuentren direccionadas en aspectos tales como educación, programas de desarrollo social, infraestructuras, tecnologías de comunicación, de transporte y movilidad urbana. Es decir, todo po de acciones que contemplen y promuevan una calidad de vida superior para los habitantes, un desarrollo económico-ambiental durable y sostenible ambientalmente, más una ges ón par cipa va, prudente y reflexiva en la u lización de los recursos naturales.

SUSTENTABILIDAD
25
Nuestro nuevo local: Edison 1690 esq. Soler. Mar del Plata. También en Pinamar, Villa Gesel, Madariaga y Ostende.

LAS CIUDADES INTELIGENTES EN EL MUNDO

Este año (2015), la organización C40 (Ci es Climate Leadership Group) ha escogido 10 ciudades que son líderes en transporte urbano, planificación y medida de emisiones de carbono, edificios energé camente eficientes, calidad de aire, energías verdes, comunidades sostenibles, ges ón de residuos, infraestructuras eco-inteligentes y desarrollo económico El ranking mundial se encuentra encabezado por Bogotá (Colombia) aunque en un ranking diferente elaborado para ciudades americanas se encuentra ubicada en tercer lugar. No obstante este rankeo, no debemos olvidar el rol permanente que ha jugado Barcelona, la capital catalana, que no agota su capacidad de reinventarse y estar en forma permanente a la delantera en la innovación urbana. Desde su plan estratégico hasta las “smart ci es” Barcelona se encuentra en la vanguardia de estas temá cas.

El primer puesto en el ranking global y el tercer puesto en el ranking americano le fue otorgado por el desarrollo del sistema BRT (Bus Rapid Transit), o Autobús de Tránsito Rápido, que fue lanzado en el año 2000 para transportar a más del 70% de la población de Bogotá. Ha dado como resultado la reducción anual de unas 350.000 toneladas de emisiones de CO2.

El ranking es con nuado por ciudades como Copenhague (Dinamarca), Melbourne (Australia), México D.F. (México), Múnich (Alemania), Nueva York (Estados Unidos), Río de Janeiro (Brasil), San Francisco (Estados Unidos), Singapur, Tokio (Japón).

El ranking de las ciudades americanas2 se encuentra liderado por San ago de Chile, donde se premia los denodados esfuerzos realizados para evitar las emisiones de CO2 y disminuir la contaminación del aire. La ciudad de Buenos Aires se encuentra en el cuarto lugar después de San ago de Chile, Ciudad de México y Bogotá. En este caso se ha considerado los esfuerzos realizados para la mejora y eficiencia realizada en el transporte urbano. El mismo fue logrado mediante la restructuración del sistema de transporte público, la promoción en el uso de las bicicletas y la implementación de bici sendas. El ranking completo es;

1. San ago de Chile

2. Ciudad de México

3. Bogotá

4. Buenos Aires

5. Río de Janeiro

6. Curi ba

7. Medellín

8. Montevideo

Estos reconocimientos son otorgados a los esfuerzos efectuados por dis ntas ciudades y comunidades. Ahora, cuando se analizan más en profundidad reflejan tan solo un aspecto descollante logrado, tal como, movilidad urbana, ges ón

2 https://www.fayerwayer.com/2013/12/las-8-ciudades-masinteligentes-de-america-la na/

Barcelona tendrá un Smart City Campus para definir las ciudades inteligentes del futuro Sistema BRT (Bus Rapid Transit), Bogotá, Colombia. Contaminación del aire, San ago de Chile, CHILE.
capba IX DESARROLLO URBANO SUSTENTABLE 26
Buenos Aires, Argen na / Movilidad urbana

de basura o emisiones de CO2. El desa o es la obtención de parámetros de calidad de vida más altos, solamente obtenibles a través del desarrollo de la mayoría de las variables definidas anteriormente como obje vo a lograr, para poder integrar el círculo de las “ciudades inteligentes”.

Las estrategias desplegadas por los planificadores y estrategas de las ciudades inteligentes mencionadas anteriormente enen la virtud de los ejemplos concretos realizados y de las ges ones reales realizadas, pero en el campo de los desarrollos teóricos, el proyecto presentado por el estudio del arquitecto belga Vincent Callebaut Architectures para la ciudad de París, Francia es escenario futuro 2050. El proyecto resulta de una audacia proposi va extrema, diseñando edificios y fragmentos urbanos con “capacidades digestoras” de elementos contaminantes, convir endo a la “ciudad inteligente” en otro nivel muy diferente al tener la capacidad de auto eliminar sus residuos o elementos que afectan el medio ambiente aumentando la calidad de vida de los parisinos de manera extrema.

Los edificios, no son solamente eficientes, en su forma de consumir energía, sino que enen la capacidad de “atraer” o neutralizar cualquier po de emisión que pueda afectar la calidad de vida de los parisinos. Es una visión muy diferente y audaz de lo que es sustentabilidad e su “inteligencia” para lograrla. Aquí los edificios interactúan sobre el ambiente logrando un equilibrio y calidad de vida sustentable en el empo, pero con un planteo biológico y no mecanicista de control y absorción de elementos contaminantes generados en la ciudad.

REFLEXIONES FINALES

Las posibilidades que se generan desde las soluciones y propuestas urbanas provenientes de las “Smart ci es” son muy amplias pero es necesario revisar todas sus facetas y complejidades, y sobre todo sus reales implicancias, ya que este modelo de ges ón se posiciona tanto en la eficiencia energé ca, planificación urbana o la movilidad sustentable, como en otros aspectos tales como la tecnología de control, eficiencia y monitoreo urbano. Aquí es donde se incorporan los aportes generados desde la mercadotecnia (el marke ng urbano) los cuales son de gran importancia ya que por esta vía se incorporan las empresas que desarrollan tecnología de eficiencia y control como así también las estrategias generadas por los “desarrolladores urbanos” cuyos obje vos son tanto locales, como desarrollos y generación de riqueza a través de la implementación de polí cas de innovación y el posicionamiento global de la ciudad respecto a otras ciudades de la región. El éxito o fracaso de la u lización de estas propuestas está supeditado al desarrollo equilibrado de todos sus componentes y evitar la preponderancia extrema de un aspecto sobre otro. Muchas veces los desarrolladores urbanos hegemonizan estas propuestas ejerciendo sobre la dirigencia polí ca efec vas propuestas de seducción, y cuyos resultados para la ciudad y su gente son escasos quedando siempre la sensación que después de todo el esfuerzo inver do en estos programas de desarrollo sólo queda unos buenos negocios para algunos.

MSc. Arq. Horacio Goyeneche Director Ins tuto de Desarrollo Sustentable, CAPBA IDS@capba.org.ar París 2050, Vincent Callebaut
SUSTENTABILIDAD
París 2050, Vincent Callebaut / Mountain Towers at Rue de Rivoli
capba IX DESARROLLO URBANO SUSTENTABLE 27
París 2050, An -smog Towers at Pe te Ceinture

Premio Es mulo del CAPBA 2014

Provincia de Buenos Aires 2020:

Saberes Locales / Escenarios Posibles

El pasado 19 de diciembre se realizó la entrega de premios, en la Sede del CAPBA sito en la calle 53 Nº 324 de la ciudad de La Plata, a los profesionales y equipos ganadores de la presentación de proyectos de intervención.

El Premio Es mulo es convocado por nuestro colegio profesional todos los años. En esta oportunidad matriculados del CAPBA IX han sido merecedores de reconocimientos en diferentes categorías.

El Premio Es mulo promueve la inves gación e innovación en propuestas o proyectos a través de diferentes dimensiones de aproximación (regional, local, obras de infraestructura, sobre fragmentos de ciudad, objetos arquitectónicos, tecnologías, materiales y métodos de construcción) que incorporen la problemá ca urbana a través de cuatro ejes de análisis: urbano, ambiental, patrimonial y de hábitat, desde un enfoque en el cual el profesional pueda plasmar saberes propios relacionados con su lugar de origen.

Entendiendo que hacer ciudad presenta hoy un desa o y un compromiso ineludible de responsabilidad profesional que debe tener en cuenta el bienestar de la comunidad y de las generaciones futuras, se propicia el desarrollo de inicia vas de trabajo par cipa vo que den lugar a los saberes y conocimientos propios de cada localidad o región comprendiendo nuestra función de referentes sociales.

Al respecto, el CAPBA a través del área de Inves gación y Desarrollo, considera que abordar las crecientes

problemá cas desde labor profesional es hablar de futuro, por lo tanto la responsabilidad es generar las condiciones para que ese futuro sea posible.

Es importante destacar que varios de los trabajos reconocidos son producto del trabajo interins tucional que el CAPBA IX desarrolla en varias localidades de la región e involucran la labor de varios años en la convicción de lograr la ar culación entre el sector público, el sector privado y organizaciones intermedias tales como los colegios profesionales.

Desde el CAPBA IX felicitamos a los colegas dis nguidos en su producción intelectual. Desde la ges ón con nuaremos promoviendo acciones que involucren el desarrollo de las localidades del sudeste de la Provincia de Buenos Aires, donde los arquitectos enen el rol de comprometer sus esfuerzos para mejorar la calidad de vida de la población, el desarrollo sustentable de la región, fortaleciendo la iden dad de los pueblos y valorando la planificación integral de las ciudades.

capba IX DESARROLLO URBANO SUSTENTABLE 28

Los trabajos y colegas premiados dentro del Distrito IX del Colegio de Arquitectos fueron:

Categoría A. Urbana. Mención del Jurado

“Iden dad, integración y cohesión social desde la definición de los espacios públicos. Nuevos escenarios para el área de FF.CC. en la ciudad de Miramar”.

Autores: Arq. María de los Ángeles Achinelli | Arq. Laura Derisio | Arq. Silvia Rodríguez. Coordinación y Apoyo Técnico: IEU9: Arq. Julia Romero | Arq. Mar n Sarasíbar | Arq. Adriana B. Olivera

Categoría B. Ambiental. 1º Premio

“Desarrollo Costero en el S. XXI. Desde el marco norma vo vigente al desarrollo urbano- ambiental de las ciudades costeras de la Provincia de Buenos Aires”.

Coordinador: Arq. Mar n Sarasíbar. Equipo: Arq. Julia Romero | Arq. Adriana B. Olivera | Arq. Andrés Molina Favero | Arq. Carlos Ronda | Arq. Alejandro Nicolini | Arq. Juan Figueroa | Arq. Marcelo Amatrain | Arq. Romina Chocou | Arq. Celeste Siccardi. Colaboradores: Arq. Silvia Salim | Delegados CAPBA Distritos IX-X | representantes de los gobiernos municipales costeros | Lic. En Tecnología Ambiental Mariano Verón | Lic. en Geogra a Gabriel Molina Favero | Lic. en Ges ón Ambiental Florencia Slobodianinck (CPC MSaA)

Categoría C. Patrimonial. 1º Premio

“La Mar del Plata moderna”

Autor: Arq. Miguel Ángel Bartolucci. Colaboración: Arq. María Errecalde

Categoría C. Patrimonial. 2º Premio

“Nuevos desa os en la construcción de espacios de par cipación en la ges ón del Patrimonio. Inicia vas para el desarrollo local a través del patrimonio urbano-arquitectónico de Gral. Madariaga”.

Autores: Arq. Ramón Uranga | Arq. María Celeste Siccardi. Coordinación y Apoyo Técnico: IEU9: Arq. Julia Romero | Arq. Mar n Sarasíbar | Arq. Adriana B. Olivera | Arq. Laura Romero

Por medio de la Resolución Nº 04/15 con fecha 12 de febrero de 2015, el Consejo Direc vo del Colegio de Arquitectos Distrito IX resolvió aceptar la donación de los premios económicos percibidos por los equipos del IEU9 que elaboraron los Proyectos “Desarrollo Costero en el S. XXI. Desde el marco norma vo vigente al desarrollo urbano- ambiental de las ciudades costeras de la Provincia de Buenos Aires” (premio de $30.000,00) y “Nuevos desa os en la construcción de espacios de par cipación en la ges ón del patrimonio. Inicia vas para el desarrollo local a través del patrimonio urbano-arquitectónico de Gral. Madariaga” (premio de $10.000,00), siguiendo la voluntad de los autores y colaboradores de dichos proyectos ganadores.

El premio de suma mayor se des nará a ac vidades de capacitación profesion que se promoverán en el año 2015 desde el CAPBA - IEU 9; y el premio de menor suma se u lizará para la difusión del patrimonio urbano arquitectónico del Municipio de General Madariaga a nivel ciudadano, ya sea a través de publicidad, charlas con especialistas, programas educa vos, etc., y toda aquella ac vidad que resulte de común acuerdo entre el CAPBA IX, el Municipio y los actores comunitarios que acompañan la comisión de trabajo que lleva adelante la inicia va del Código de Preservación Patrimonial.

PREMIO ESTÍMULO
capba IX DESARROLLO URBANO SUSTENTABLE 29
A modo de ilustración se publican las láminas síntesis.

URBANO COSTERO EN EL SIGLO XXI”

capba IX DESARROLLO URBANO SUSTENTABLE 30
“DESARROLLO
PREMIO ESTÍMULO capba IX DESARROLLO URBANO SUSTENTABLE 31
capba IX DESARROLLO URBANO SUSTENTABLE 32
PREMIO ESTÍMULO capba IX DESARROLLO URBANO SUSTENTABLE 33

“Nuevos desa os en la construcción de espacios de par cipación en la ges ón del Patrimonio. Inicia vas para el desarrollo local a través del patrimonio urbano-arquitectónico de Gral. Madariaga”.

capba IX DESARROLLO URBANO SUSTENTABLE 34
PREMIO ESTÍMULO capba IX DESARROLLO URBANO SUSTENTABLE 35

DIAGNÓSTICO El predio del FFCC, surge como objeto del presente análisis, a par r de la intervención en un conflicto reciente, en el cuál vecinos aledaños al predio representados por una sociedad de fomento reaccionan frente a la posibilidad de la instalación de una ac vidad que consideran contaminante y degradante del medio ambiente.

CONECTIVIDAD Falta conec vidad entre dos sectores, respetando ubicación de ac vidades que hoy se prac can en forma espontánea como pista de atle smo y cancha de futbol.

Usos permi dos Ordenanza N° 155/05, que permite la paula na densificación comercial y de servicios condicionados dentro del sector A del predio.

MEDIO AMBIENTE Demanda consolidación de espacios verdes, que están previstos como uso permi do en el sector C de la Ordenanza N° 155/05.

PROTECCIÓN PATRIMONIAL Puesta en valor de la estación del tren y los galpones como hitos urbanos, revalorizar una estructura edilicia correspondiente a la etapa fundacional de la ciudad. Profundizar situaciones de arraigo, cuya iden dad da cuenta del origen de la población y su evolución, como ciudad ideal para vacacionar.

NÚCLEO INTEGRADOR Un espacio urbano esperable, como paisaje protagonista de interrelaciones con la estructura urbana puede ser posible a par r de una idea precisa y clara de su materialidad, de los llenos y vacíos producto de vinculaciones que se quieren ganar y control sobre lo que se quiere preservar y enaltecer.

GESTIÓN Ha sido nuestra intención poner el acento en las fortalezas y debilidades de este fragmento urbano, para intentar generar una base sobre la cual se comience a deba r desde un modelo de ges ón interdisciplinario, que implique la par cipación ciudadana para

una proyección sustentable a mediano y largo plazo.

Fomentar la convocatoria de los sectores involucrados y el consenso sobre miradas e intereses comunes entre Autoridades Municipales, Ferroviarias, sociedad de fomento, cámaras de comercio, y demás organizaciones intermedias involucradas, para la ges ón de un concurso de ideas como propuesta Ins tucional desde CAPBA, con el fin de avanzar empos de debate, y que estas apreciaciones y análisis tomen forma en la escena urbana.

Un Lugar no es un Dato, sino el resultado de una condensación en el empo, sobrecargado de numerosas huellas y lecturas pasadas, donde todos los accidentes enen significación, comprenderlos es darse la oportunidad para una intervencion mas inteligente.

“Iden dad, integración y cohesión social desde la definición de los espacios públicos. Nuevos escenarios para el área de FFCC en la ciudad de Miramar”
Estructura Urbana Linea de empo Zonificación sector
capba IX DESARROLLO URBANO SUSTENTABLE 36
Relevamiento sector

TODOS LOS PREMIADOS

PREMIO CAPBA 2014 ARQUITECTURA Y URBANISMO

VIVIENDA INDIVIDUAL Categoría aislada.

PRIMER PREMIO: Arq. César COZZOLINO. Colaboradoras: Arqs. Romina KUDA. Cecilia

GÓMEZ. Valeria PELLA. Vivienda en Club de Campo. “Los ceibos”

SEGUNDO PREMIO: Arqs. Fernando Alberto GIANSERRA. Luis Gonzalo LIMA. Colaboradores: Arq. Claudio MONTES DE OCA. Lucia SAR GHINI. Marianela SAR GHINI. Vivienda en Club de Campo Gran Bell

1ª. MENCIÓN: Arq. Leonardo Gabriel VALTUILLE. Colaboradora: Arq. Carolina

ANTOLINI. Vivienda en Barrio Lagos del Norte, Don Torcuato

2ª. MENCIÓN: Arq. Marcos BILBAO. Vivienda en Club de Campo “La reserva” Bahía Blanca

3ª. MENCIÓN: Arqs. Ana Paula AMADO. Miguel ANGEL MENNO. Fotos: Leandro AREVALO. Eugenia MORI. Ana Paula AMADO. Vivienda en Club de Campo Grand Bell. City Bell

VIVIENDA INDIVIDUAL. Categoría entre medianeras.

PRIMER PREMIO: Arqs. Sebas án CSEH. Juan Cruz CATANIA SUAREZ. Vivienda en Florida, Vicente López.

SEGUNDO PREMIO: Arqs. Alejandro Fabián GOYENECHE. Cris an VODANOVICH. Federico ECHEVERRIA. Colaboradora: Arq. Carla Lucía RUOTOLO. Vivienda en Gonnet. La Plata

1ª. MENCIÓN: Arq. Gonzalo CALLEGARI. Colaboradores: Arqs. Pablo LANGELLOTTI. Mar n PIBERNUS. Vivienda en Chivilcoy.

2ª. MENCIÓN: SMF Arquitectos. Arq. Juan Mar n FLORES. Colaboradores: Arqs. Ma as PECCI. Rodrigo. FABBRE. Juan José SEOANE CALVO. Vivienda en La Plata

3ª. MENCIÓN: Arqs. Fernando IGUERATEGUI. Juan OLEA. Colaboradores: Antonela MANSUR. Noelia HERNANDEZ.

VIVIENDA INDIVIDUAL. PRO.CRE.AR.

De los tres (3) trabajos presentados se otorga MENCIÓN a los Arqs. Hernán GIMENEZ. Colaboradores: Gonzalo Javier GIMENEZ. Sergio Daniel GIMENEZ. Gerardo GIMENEZ BUSCHIAZZO.

VIVIENDA

MULTIFAMILIAR ALTA Y BAJA DENSIDAD

PRIMER PREMIO: Arqs. Gabriel DE LEON. Colaboradores: Marcos MARGNI. Mirella VILLANUEVA. Viviendas en La Plata.

SEGUNDO PREMIO: Arqs. Federico CRAIG. Juan Pablo MOUJAN. Ana Inés REDKWA. Arq. Jésica BAVA. Colaboradores: Juan Pedro FILPE. Arq. Juan Manuel MENÉNDEZ PIROLA. Cálculo Estructural Ingenieros TURDÓ - DEL PANNO. Viviendas en La Plata

MENCIÓN DEL JURADO: Arqs. María Cris na CARASATORRE, Luis Federico RISSO y María Elena RISSO. Viviendas en La Plata.

MENCIÓN DEL JURADO: Arqs. Sebas án CSEH. Juan Cruz CATANIA SUAREZ. Viviendas calle Anchorena en La Lucila, Vicente López

MENCIÓN DEL JURADO: Arq. Rodolfo FROLIK. Viviendas en Tandil

MENCIÓN DEL JURADO: MONOBLOCK. Arqs. Fernando CYNOWIEC. Colaboradores: Marcos AMADEO. Juan GRANARA. Alexis SCHACHTER. Adrián RUSSO. Osvaldo CHEULA. Mar n MAYAN. Marina MAZZOCHI.

EDIFICIOS NO RESIDENCIALES

PRIMER PREMIO: Colegio Los Ceibos. Nueve de Julio. Arqs. Ignacio BALDUZZI, Arq. Luis VEGA. Colaboradores: San ago DONOVAN, Carolina BERTAGNI.

SEGUNDO PREMIO: Sede Distrito VIII. Tandil Arqs. Juan Pablo DENZOIN, María Victoria DEGUER y Luciana CICCONI.

MENCIÓN: Edificio de Inves gación UNSAM Arqs. Fabián DE LA FUENTE. Raúl PIERONI. Colaboradores: Guillermo RADDAVERO. Marta OGHIEVSKI. Dirección de Proyecto: Camila CORTI. Carlos COLOMBO. Patricio MC LOUGHIN. Federico GUELFI. Agus n GONZALEZ. Lic. Mariángeles NOVELLE. Silvina MARQUEZ PESOA. Lic. Diego. ALCÁZAR. Pablo CASAIS.

MENCIÓN ESPECIAL DEL JURADO: Museo del Mar. Mar del Plata. Estudio Monoblock. Arqs. Fernando CYNOWIEC. Colaboradores: Marcos AMADEO. Juan GRANARA. Alexis SCHACHTER. Adrián RUSSO. Yesica DEL BARRIO. Luis PITA. Juan LAGOMARSINO. Laura ZINK. Elise BON ASIS. Lucila PUGNI RETA. Ana LORDI. Luz AGUERRE. So a PARODI. Mar n MAYAN. Osvaldo CHEULA.

PREMIO ESTIMULO A LA PRODUCCION PROYECTUAL Y TEORICA

(CATEGORIA ESTUDIOS URBANOS)

PRIMER PREMIO: Arq. María Victoria DEGUER. “Corredor Verde Tandil”.

SEGUNDO PREMIO: Arqs. Esteban CORDOVA. Chantal ZEROMSKI. Colaboradores: Rosario ROMÁN. Laila AGUIRRE. Ezequiel VALVERDE. “Proyecto Urbano y Paisaje / Área Viaducto Sarandí Dock Sud y entorno. Taller CAPBA DII”.

MENCIÓN DEL JURADO: Arq. Norberto IGLESIAS. Colaboradores: Lic. Laila ROBLEDO. Dr. Pedro DEL PIERO. Arq. Daniela GARCÍA BENÍTEZ. Dr. Alejandro ROSSI. Arq. Roberto RODRÍGUEZ. Lic. Fernando GIUDICE. Ing. Sebas án SASSO. “Norma vas de Ordenamiento Territorial y de Construcciones para la zona Insular de Tigre.”

MENCIÓN DEL JURADO: (ver premio local en cuerpo de nota).

(CATEGORIA ESTUDIOS PATRIMONIALES)

PRIMER PREMIO: (ver premio local en cuerpo de nota).

SEGUNDO PREMIO: (ver premio local en cuerpo de nota).

(CATEGORIA ESTUDIOS DEL HABITAT)

PRIMER PREMIO: Arq. Luis PITES. Colaboradores: Arqs. Fermín Estrella GUTIERREZ. José María ZINGONI. Elizabeth PÉREZ. “Posibilidades del programa PRO. CRE.AR para la movilización equita va del suelo de la Ciudad de Bahía Blanca, Barrio San Carlos SRL.”

SEGUNDO PREMIO: Arq. Gustavo DUEÑAS. Colaboradores: Sres. Lionel BIONDO, Ignacio GAMÍNDEZ y Srta. Candela MORALES. “Caso Viaducto Sarandí. Taller CAPBA DII”.

(CATEGORIA ESTUDIOS DESARROLLO SUSTENTABLE)

PRIMER PREMIO: (ver premio local en cuerpo de nota).

SEGUNDO PREMIO: Arq. Sebas án INACIO. “Parque ribereño del Salado”

MENCIÓN DEL JURADO: Arqs. Leonardo VALTUILLE. Jorge MOSCATO y Natalia PANDO. Colaboradores: Agus n MOSCATO. Ignacio Ballester. Guadalupe Herrera. José BARILARI. Carolina ANTOLINI. Nancy SALVAGIOT. Adrián ZERBETTO DE PALMA. Mar n Rodrigo DI SANZO. Natalia GUTIÉRREZ. Augusto JUSTO. Emilio REPETTO. Florencia BONZINI. Marisa GIORNO. Franco Carbone.Mauro FERRAÍNA. Emiliano FERNÁNDEZ MELE. Alejandra BRISUELA. Rebeca SCHMIDT POPE. Máximo VERSACE y Sres. Mar n DI STASI. Pablo GONZÁLEZ. “Frente Marí mo Bonaerense”

p://www.capbacs.com/#!concursos/c8jq

PREMIO ESTÍMULO
capba IX DESARROLLO URBANO SUSTENTABLE 37
Las Actas del jurado pueden ser consultadas en la página web del CAPBA Consejo Superior – sección Concursos. h

Concluyó la primera vuelta del Concurso de Ideas y Anteproyectos con alcance Provincial des nado la puesta en valor urbano del predio que actualmente ocupa la Planta de pre-tratamiento de efluentes cloacales Ingeniero Alberto Baltar, al norte del Par do de General Pueyrredon.

El área se encuentra enfrentada ruta de por medio con el barrio Parque Peña, una reserva forestal de baja densidad que se iden fica bastante con improntas urbanas como las legadas por los Barrios Grosellar, Las Dalias, Alto Camet y hasta el mismo Parque Camet.

El Concurso se ha podido materializar merced al Convenio de Colaboración Ins tucional entre OBRAS SANITARIAS MAR DEL PLATA - BATÁN S.E. y el COLEGIO DE ARQUITECTOS DE LA PROVINCIA DE LA PROVINCIA DE BUENOS AIRES DISTRITO IX. Ambas Ins tuciones han trabajado durante el úl mo año con el obje vo de ges onar en forma conjunta la convocatoria al CONCURSO PROVINCIAL DE IDEAS y ANTEPROYECTOS a dos vueltas para la “Puesta en valor urbano y reacondicionamiento del predio costanero de la planta de pre tratamiento de efluentes cloacales Ing. Alberto Baltar”.

Según el cronograma de concurso, el día 18 de Febrero se entregaron las propuestas a escala de ideas para intervenir el área. En esta oportunidad, de la serie de trabajos que par ciparon, se seleccionaron un total de cinco (5) trabajos, los que deberán ajustar parte de sus propuestas a las recomendaciones establecidas por el Cuerpo de Jurados. Dicho cuerpo estuvo cons tuido por cuatro (4) representantes por OSSE: el arq. Alejandro Pozzobón, el ing. Rubén Muñoz, el ing. Juan Pablo González y el ing. Mar n Rojas; el arq. Marcelo Loreli, representante por los par cipantes; el arq. Patricio Ezcurra, representante por FADEA; y el arq. José Solla, por el cuerpo de Jurados del CAPBA IX.

Los Jurados estuvieron asis dos por los Asesores, que son quienes han trabajado junto a la Comisión Coordinadora, en el delineamiento general del Pliego de Bases y Condiciones con el que fue llamado el Concurso. El arq. Pablo Piccolini, por parte de OSSE, y el arq. Juan Manuel Escudero, por parte del CAPBA D. IX, llevaron adelante dicha tarea y asis rán a los par cipantes en la segunda vuelta atendiendo las consultas que se efectúen.

A los efectos de garan zar el anonimato de los par cipantes, las propuestas seleccionadas no pueden ser difundidas. Sin embargo desde la organización informan que el día 27 del mes de febrero se iniciará la segunda instancia de este concurso, la que culminará el día 8 de abril cuando los par cipantes deben entregar en forma final los trabajos desarrollados. El obje vo de esta segunda vuelta es que las propuestas seleccionadas puedan llevar adelante un Anteproyecto.

Se encuentra previsto que los premios a los ganadores serán:

Primer Premio: ($ 92.000.-) Pesos noventa y dos mil

Segundo Premio: ($ 15.000.-) Pesos quince mil

Tercer Premio: ($ 10.000.-) Pesos diez mil

1º Mención: ($ 5.000.-) Pesos cinco mil

2º Mención: ($ 2.500.-) Pesos dos mil quinientos

La puesta en valor del sector urbano, además de promover el diseño de un parque público costero, recuperando el predio lineal de Obras Sanitarias con bordes a la costa y la autovía Provincial Nº 11, que une Mar del Plata y Santa Clara del Mar. Incluye la intervención en la escollera y el muelle que debieron instalarse para la construcción del emisario submarino. Por otro lado, sobre esta nueva infraestructura sanitaria, Prefectura Naval Argen na emi ó un comunicado en el que se establece la prohibición de fondeo, pesca y opera vidad en la zona del emisario submarino de la ciudad de Mar del Plata, dada las par culares caracterís cas del Emisario Submarino, y a los efectos de salvaguardar la seguridad de la navegación. La medida es con el fin de prevenir acaecimientos a embarcaciones o daños a las obras sumergidas en el citado Proyecto.

Finalmente, tanto el Colegio de Arquitectos como OSSE, han destacado la importancia de este concurso para contar con una propuesta que permita la recuperación de un valioso sector de la costa marplatense. Esto permi rá dar con nuidad al paisaje, mejorar la calidad urbanoambiental del área y promover el desarrollo de los barrios circundantes. Esta inicia va ha sido posible dado el proyecto mediante el cual se construirá la Estación Depuradora de Aguas Residuales (EDAR), ya licitada, y que complementará el funcionamiento del Emisario Submarino, recientemente puesto en funcionamiento.

CONCURSOS
“Puesta en valor urbano y reacondicionamiento del predio costanero de la planta de pre tratamiento de efluentes cloacales Ing. Alberto Baltar”.
capba IX DESARROLLO URBANO SUSTENTABLE 39

Su objeto es la Refuncionalización del Palacio Municipal

En un acto desarrollado en el marco de los festejos por el 141º Aniversario de la ciudad de Mar del Plata, el Colegio de Arquitectos entregó al Intendente Municipal las bases del Concurso que permi rá el desarrollo de las propuestas para la “Renovación, Refuncionalización, Restauración y Puesta en Valor” del Palacio Municipal y los edificios anexos de la manzana delimitada por la Av. Luro y las calles Hipólito Yrigoyen, San Mar n y La Rioja.

El evento se realizó en el Museo MAR presidido por el señor Intendente, quien fue acompañado por el Presidente de Turismo Mar del Plata, Lic. Pablo Fernández, el Presidente del Bloque de Acción Marplatense, Dr. Ariel Ciano, el Secretario de Planeamiento Urbano, Arq. José Luís Castorina, el Secretario de Cultura, Dr. Leandro Laserna y la Presidente del Colegio de Arquitectos de la Provincia de Buenos Aires Distrito IX, Arq. Julia Romero. Además asis eron, legisladores provinciales, concejales, representantes de organizaciones sindicales, de colegios profesionales y miembros del cuerpo de asesores y jurados del Colegio de Arquitectos, entre otros.

En la ocasión, el Secretario de Planeamiento Urbano brindó detalles del concurso para el que se prevén 2 instancias. La primera, abarca la elaboración de “ideas”, la cual culminará el día 13 de mayo, y en la que se seleccionarán entre 3 y 5 propuestas. Mientras que en la segunda vuelta de “anteproyectos” se prevé que culminé el día 1 de julio de 2015.

Concluyendo la segunda vuelta, el ganador cobrará 330.000 pesos; el segundo premio: 40.000 pesos; el tercer premio: 25.000 pesos. Mientras que, para la primera y segunda mención, 10.000 pesos cada uno.

El Colegio de Arquitectos, en palabras de su Presidente, agradeció la convocatoria de la MGP para la organización de este concurso, destacando además que la presencia Ins tucional en diferentes ámbitos ha posibilitado actuar como referentes ante problemá cas de la ciudad con una par cipación ac va y colabora va, propiciando el trabajo en equipo y la vocación de lograr un proceso de planificación construido en forma colec va. Por otro lado, felicitó a los arquitectos Liliana Fernández, Graciela Di Iorio y Manuel Torres Cano que intervinieron como asesores en la elaboración de las bases y, quienes con nuarán trabajando en las respuestas a las consultas de los par cipantes y en la provisión de material necesario hasta el cierre del concurso.

El Intendente destacó que, “hoy se hace con el Colegio de Arquitectos la convocatoria al Concurso para la refuncionalización del Palacio Municipal. Al mismo empo, se está desarrollando el nuevo Centro Cívico en el barrio Libertad, donde vamos a trasladar las funciones administra vas del Estado. El actual Palacio Municipal dejará de ser un centro administra vo y se conver rá en un palacio de encuentro, de ac vidades sociales y culturales.” También, destacó la par cipación del Colegio de Arquitectos, a quien si bien le reconoció un espíritu crí co puesto de manifiesto en diversas oportunidades, pero siempre con una ac tud responsable y posi va. Desde el Colegio de Arquitectos informaron además que para la elaboración de las bases del concurso, un equipo de profesionales seleccionados de un registro de antecedentes realizaron un relevamiento completo del Palacio Municipal y confeccionaron los planos de la obra. En virtud que no se contaba con documentación técnica actualizada. Asimismo, destacaron que este relevamiento, incluido en las bases de concurso, le deja al municipio material técnico valioso para el Área de Preservación Patrimonial. Dichas Bases pueden ser consultadas desde el día 12 de febrero en www.capba. info/concursomgp.

Finalmente, los profesionales destacaron que el objeto del concurso es la búsqueda de propuestas para “lograr la ar culación de una centralidad urbana contemporánea, con propuestas para intervenir y actualizar el centro histórico de la ciudad con eje en los edificios históricosimbólicos”

CONCURSOS
El Colegio de Arquitectos y la Municipalidad de General Pueyrredon presentaron bases para un Concurso Provincial.
capba IX DESARROLLO URBANO SUSTENTABLE 41

Nacimiento de la modernidad en Mar del Plata

El edificio del Ins tuto Unzué y su restauración

El patrimonio cultural de la ciudad está cons tuido por el conjunto de las creaciones realizadas por nuestro pueblo a lo largo de su historia, obras que nos dis nguen de los demás pueblos y nos dan nuestro sen do de iden dad.

En esta línea de pensamiento, el conjunto Unzué (edificios, oratorio y parque) está instalado en la memoria colec va de la comunidad, en tanto exponente del patrimonio arquitectónico de Mar del Plata, pues cons tuye una representación obje va y simbólica del nacimiento de la «modernidad» en la ciudad.

La FAUD (Facultad de Arquitectura, Urbanismo y Diseño–UNMdP) a través de la Unidad Ejecutora viene colaborando desde hace más de veinte años en los proyectos y seguimientos de obra para llevar a cabo los trabajos de restauración y puesta en valor del conjunto. Los trabajos implican acciones en: fachadas exteriores e interiores, cubiertas, estructuras, refuncionalización de espacios para la adecuación de an guos y nuevos usos de trabajos, esparcimiento y estadía, a fin de que el edificio -Monumento Histórico Nacional- con núe prestando servicios para la comunidad local y nacional a par r de emprendimientos de dis ntos organismos nacionales que aportan a la defensa del patrimonio cultural del país.

En el Volumen I de “Vinculación Tecnológica. De la Universidad al medio socio-produc vo” -año 2007-, presentamos bajo el tulo “Restauración y Puesta en Valor del Ins tuto Saturnino E. Unzué”, un trabajo de transferencia en el cual se habían volcado las acciones que se proponían en el proyecto de re-uso del edificio, a par r de un marco teórico y fundamentos para una metodología lógica de abordaje de una pieza tan importante del patrimonio arquitectónico local y nacional.

Hoy siete años después nos sentimos orgullosos de poder presentar la con nuidad de un trabajo que finalizó con la primera y segunda etapa de obra ya inauguradas, la tercera a punto de culminar y la entrega final del proyecto a fines del 2014. En los empos que corren el tema de la “con nuidad” de esfuerzos, de trabajo y de logros no es una cues ón menor, máxime viniendo de dis ntos organismos estatales (Universidad Nacional de Mar del Plata Ministerio de Planificación Federal, Inversión Pública y Servicios y Ministerio de Acción Social), todos ellos del Estado Nacional.

En el 2005 presentamos un proyecto para generar la rehabilitación de un edificio con casi cien años de vida e historia frente al mar, con mantenimiento escaso, cambios en su función, intervenciones desacertadas, funcionamiento inadecuado, que evidenciaba (y aún hoy lo hace aunque en menor medida) un estado general del conjunto muy crí co. Las acciones que oportunamente se propusieron, y que hoy se sos enen, se desprenden de los contenidos del «marco teórico de la intervención» y aportan a los valores patrimoniales

capba IX DESARROLLO URBANO SUSTENTABLE 42

del bien. El criterio general de la intervención técnica es la restauración integral por sistemas y componentes, recuperando pologías, imagen del edificio y elementos ornamentales que le confieren carácter y significado. Se organizó una metodología de trabajo que incluye tres etapas:

- 1º etapa, de reconocimiento y análisis: que implicó el levantamiento dimensional de todos los edificios y relevamiento de detalles construc vos y materiales.

- 2º etapa, estructura especial de relevamiento de las patologías: reconociendo lesiones en plantas y fachadas por sistemas construc vos y componentes, volcadas luego a planos y fichas de lectura rápida en términos de lugar y caracterís cas de la lesión.

- 3º etapa, de propuesta: que incluye las acciones de resguardo y preservación de elementos originales de gran valor, tanto como acciones tendientes a la recuperación estructural del edificio y la adecuación de éste a nuevos usos que la comunidad requiere.

En tal sen do, los resultados obtenidos han sido más que sa sfactorios. El proyecto se está realizando en etapas, y algunas de ellas ya se encuentran finalizadas. La primera etapa fue licitada en el año 2006 y concluida en enero de 2010; la segunda etapa adjudicada en agosto de 2010 finalizó en el mes de marzo 2011; y la tercera etapa ya adjudicada, ha comenzado en agosto de 2012 y se encuentra a punto de finalizar. Una cuarta etapa se está ges onando en la Subsecretaría de Obras Públicas de la Nación a par r del pliego entregado por la FAUD/ UNMDP en octubre de 2014.

El sector inaugurado en 2009, de aproximadamente 1.900 m2 fue des nado a Centro Cultural y es parte de un proyecto mayor para la recreación y el esparcimiento turís co-cultural de niños, jóvenes y adultos mayores dependientes de los planes de la Secretaría Nacional de la Niñez, Adolescencia y la Familia. Este “Centro Cultural” posee espacios mul función para realizar exposiciones, conferencias, encuentros grupales, talleres de trabajo y demás ac vidades -tanto en planta baja como en planta alta-, un teatro con capacidad para 200 personas -con escenario y bambalinas-, sanitarios para ambos sexos, -ar stas y público-, calefacción, ascensores e instalaciones a nuevo. En un pa o de servicio adyacente al sector se planificó la construcción del “pa o de la cultura”, un espacio de encuentro y permanencia a modo de foyer que sirva de acceso desde la vía pública al Centro Cultural.

Los trabajos de puesta en valor y restauración que se llevaron a cabo, se realizaron en el total de los pabellones que componen el frente norte del conjunto, incluyendo los espacios perimetrales interiores y exteriores. Dentro de esta restauración se tuvieron en cuenta la reparación

PATRIMONIO
Espacio mul función en planta alta. Salón en planta baja.
capba IX DESARROLLO URBANO SUSTENTABLE 43
Inauguración sector hall teatro.

y consolidación de los aleros curvos perimetrales, considerando a su vez la reparación y reconstrucción de molduras, ornamentos y grupos escultóricos de los mismos. También se procedió a la reparación total de las cubiertas planas de ladrillos comunes y de los techos inclinados. Se trabajó en la consolidación y refuerzo estructural de lo existente, y además se recambiaron piezas irrecuperables. Se trabajó en la reparación y reconstrucción de solados en general, perfilería de dinteles y puntales, restauración de escaleras de mármol y sus estructuras de sostén.

En el sector del teatro se procedió a su puesta en funcionamiento, previa restauración de elementos, modificación y/o adaptación a las nuevas modalidades de escena. Esto incluyó proyecto de iluminación, ampliación del escenario, construcción de nuevos vestuarios y sanitarios, renovación de plateas, etc.

Se realizó la reconstrucción total de las baterías de sanitarios existentes pertenecientes a los pabellones, con la renovación de cañerías cloacales, agua fría y caliente, artefactos sanitarios y grifería, reves miento cerámicos y solados de baldosas calcáreas. Este trabajo se realizó tanto en sanitarios para hombres como para mujeres, dis ngo que antes no exis a dada la función original del edificio.

En todos los espacios se tuvo en cuenta la reconstrucción y/o reparación de cielorrasos, pisos, reves mientos, carpinterías de madera, pos gos, vidrios y herrería en general; ya sea con la restauración de las partes deterioradas, o la renovación de piezas faltantes o que se encontraban en muy mal estado y no admitían restauración, considerando siempre la mayor recuperación posible de elementos originales. Se dotó a los pabellones de nuevos sistemas de calefacción independizados por espacio y uso, de nuevas instalaciones eléctricas e iluminación, sistemas contra incendio y de seguridad.

Mucho hay para contar, mucho hemos podido lograr en el proceso de esta obra. Quizás la tarea que más sa sfacciones nos ha dado, ha sido la recuperación de una técnica artesanal que se u lizó muchísimo en nuestra ciudad y en el país, a principios del siglo XX: el reves miento po símil piedra.

Tecnológicamente, Louis Faure Dujarric, arquitecto francés que proyectó el entonces Asilo Unzué, resolvió el desa o de las fachadas frente al mar aplicando un reves miento con nuo po símil piedra con molduras corridas, almohadillado de buñas rehundidas simples, aplicación de ornatos en los paños centrales y una magnífica serie de dibujos en el reves miento, aplicando una técnica denominada taraceado, con la que realizó juegos de guardas de colores rectas y quebradas, entre el color arena del reves miento y el rojo del grafismo.

Trabajos recientes de inves gación sobre “el símil piedra”1, diferentes proyectos de inves gación, especialmente aquellos que se relacionan con “hacer” arquitectura, y la experiencia con nua en obras de preservación del patrimonio nacional y local, es lo que hemos aplicado en esta obra, tan paradigmá ca para la ciudad. El buen trabajo con la gente de la empresa, la voluntad de los obreros y los responsables técnicos, y las inves gaciones previas, nos permi eron encarar las acciones de recuperación del reves miento de fachada según las técnicas originales.

CONCLUSIONES

La rehabilitación del patrimonio precisa del conocimiento de su estado, de una clara lectura del proyecto original, de la comprensión de las técnicas constructivas

1 PARÍS BENITO, Felicidad: “EL REVESTIMIENTO SÍMIL PIEDRA, Metodología y Acciones para su Recuperación.” Facultad de Arquitectura, Urbanismo y Diseño –UNMDP. Buenos Aires, Octubre de 2006.

capba IX DESARROLLO URBANO SUSTENTABLE 44
Representación virtual del Pa o de la Cultura propuesto, exterior e interior.

originales y de los materiales u lizados. Sólo en base a esta inves gación previa, y en el contexto de un marco teórico serio y responsable, se podrán encarar tareas o proyectos de intervención patrimonial. En caso de no disponer de este conocimiento previo, toda la labor proyectual y construc va se basará sólo en una intención aproximada y en una con nua improvisación cuyos resultados en general atentarán contra los valores de auten cidad de los bienes patrimoniales.

Para finalizar, queremos expresar que en nuestra perspec va del desarrollo de una ges ón cultural para la defensa del patrimonio arquitectónico y urbano, hace falta la intervención de un municipio fuerte y fundamentalmente comprome do con el tema (en este sen do Mar del Plata no es el ejemplo a seguir),

convocante de las organizaciones intermedias, de los empresarios y comerciantes, de las Universidades y de los profesionales que se involucran en el tema. Todos inmersos en un proceso de reflexión y propuesta, con indudable tensión constante, pero en la búsqueda de la sa sfacción que darán los proyectos propios, no especula vos, sino consensuados y en la búsqueda del bien común. Donde se asocien, confronten y se sinte cen intereses, necesidades y posiciones a veces comunes, a veces divergentes y donde el Estado juegue el doble rol de garante-promotor y organizador de las demandas.

Imagen del paño terminado e imagen histórica que muestra cómo se ejecutó originalmente.
PATRIMONIO 45
Arqs. Alejandro Novacovsky y Felicidad París Benito Facultad de Arquitectura, Urbanismo y Diseño. UNMdP

Mar del Plata en tono de croquis

Croquiseros urbanos visitaron la ciudad y la registraron con diversas técnicas.

El sábado 29 de noviembre visitaron Mar del Plata el grupo de croquiseros urbanos Buenos Aires. El encuentro contó con la par cipación de más de 35 ar stas que en forma entusiasta poblaron el parque y las instalaciones del Museo Casa del Puente. El CAPBA IX, asis ó para acompañar a la Asociación de Amigos de Casa del Puente y registrar el evento en algunas imágenes que aquí compar mos.

capba IX DESARROLLO URBANO SUSTENTABLE 46
Foto: Arq. Roberto Frangella

Este grupo de arquitectos y ar stas se reúne periódicamente a registrar dis ntos sectores de la ciudad. En general la Ciudad Autónoma de Buenos Aires, aunque con algunas salidas especiales a otras localidades. El grupo nació en el año 2010 y desde entonces realizan encuentros mensuales que luego comparten en su blog y página de Facebook.

Según sus expresiones, que dieron origen a este proyecto, buscan “salir a reconocer y registrar, desde el entendimiento, pasando por el sen miento y poniendo en acción la mano para dibujar la ciudad donde habitamos. Lo haremos de una forma analí ca, cri ca y sensible, registraremos así el hábitat en que vivimos en sus valores esenciales, y sus caracterís cas. Saldremos a recoger datos que se refieran a lo construido, a los espacios abiertos, a los medios de comunicación, y no sólo a la envolvente sica de nuestro entorno, sino también a sus protagonistas, los habitantes en sus trabajos, en sus esparcimientos en sus ac vidades varias, es decir una radiogra a social completa y compleja. Nos ocuparemos de una Buenos Aires desconocida, oculta, en sus rincones alejados. Conoceremos así las riquezas y las necesidades de nuestra ciudad. Esto contribuirá a una toma de conciencia de una ciudad que ene situaciones diversas. Con este material recolectado haremos intercambio con otras ciudades del país, de La noamérica y del mundo. Con la comparación de vivencias y situaciones nos enriqueceremos todos. Este movimiento traerá conocimiento, reflexión y buena onda entre los arquitectos, y para los demás.”

En esta ocasión, programaron una salida especial que tuvo como des no nuestra ciudad y en ella especial enfoque en si os emblemá cos como la Casa del Puente y el puerto de Mar del Plata. La programación del encuentro contó con la proyección del documental “Amancio Williams”, visita a Casa del Puente con una recepción a cargo de la Directora del Museo Casa del Puente, Arq. Graciela Di Iorio, la Presidente de la Asociación de Amigos Casa del Puente, Arq. María Haydeé Pérez Maraviglia y el Secretario de Cultura de la MGP, Dr. Leandro Laserna. También visitaron el puerto y la escollera sur y el día domingo 30 de noviembre trabajaron en el parque del Hotel Santa Teresita donde se encontraban hospedados. Entre los ar stas que fueron de la par da se encontraban los arquitectos Roberto Frangella, Isaac “Coco” Rasdolsky, Sandro Borghini, entre otros. Esta también fue la oportunidad para que muchos se acercaran con sus cámaras fotográficas para obtener fragmentos de este evento. Esperamos que disfruten el registro fotográfico del CAPBA IX y se animen a tomar el block y u lizar la técnica que más los inspire para sumarse a esta movida urbana en nuestra ciudad.

capba IX DESARROLLO URBANO SUSTENTABLE 47

CAAITBA

Asamblea extraordinaria de representantes

El día 4 de diciembre de 2014 se desarrolló la Asamblea Extraordinaria de Representantes, en los términos de los ar culos 9 y siguientes de la Ley N° 12.490, en el Salón Auditorio de la Caja calle 9 Nº 796 entre las calles 47 y 48 de la Ciudad de La Plata, donde se consideró y resolvió sobre el orden del día determinado en la Resolución CAAITBA 556-14. A con nuación se detalla lo resuelto en dicha Asamblea.

a) Consideración del Anteproyecto del Presupuesto 2015, e información financiera complementaria (Cuota Mínima Anual Obligatoria y Valores Referenciales).

Se resolvió aumentar el valor de la Cuota Mínima Anual Obligatoria, en un 20% fijándose en la suma de pesos catorce mil cuatrocientos ($ 14.400) a par r del 1º de marzo de 2015.

Se fijó el valor referencial en la suma de pesos siete mil doscientos ($7.200) a par r del 1º de marzo de 2015 –significando un 20% de incremento- y el coeficiente de ajuste en 0,36. El valor de la tarea mínima aumentó a la suma de pesos un mil ochocientos ($1.800) a par r del 1° de marzo de 2015.

Respecto del Presupuesto se deberá rehacer en función de los nuevos valores que la Asamblea ha resuelto fijar.

El Distrito IX propuso en la Comisión de Previsión del Consejo Superior –ante las condiciones que han producido la caída de la ac vidad de la construcción- sólo se incrementen los Valores de Referencia y se mantenga la CMAO en el mismo valor e incluso que se Reglamente la posibilidad de que todos los afiliados puedan acceder al beneficio de abonar el 50% de la CMAO, con la intención de mantener a la mayor parte de los colegas dentro del sistema. Esta propuesta no obtuvo el consenso necesario para que el CAPBA llevara la misma a la Asamblea.

b) Consideración de las Tablas de Valores Referenciales de los honorarios profesionales de los Colegios / Consejo que integran la en dad. La tabla

capba IX ASUNTOS PREVISIONALES 48

vigente y las futuras. Ra ficar o rec ficar punto 1.2.1 del Anexo I de la Tabla de Valores referenciales.

Este punto refiere a una nota del Colegio de Ingenieros y de Técnicos en la cuales se solicita se rec fiquen errores come dos en la Asamblea anterior respecto de las Tablas, al haberse aplicado dos veces un aumento. Dadas las explicaciones del caso se aprobó por unanimidad.

c) Consideración de la solicitud de elevación del monto del préstamo aprobado al Colegio de Ingenieros de U$S1.700.000.a U$S2.500.000.- para la construcción de la nueva sede del Colegio. Dicho mo vo es por la adecuación del presupuesto de la obra a construir.

Se estudiaron la garan a real -seguiría igual- y los fondos para el otorgamiento -se toman del Fondo de Seguro que se halla en una suma cercana a los $77.000.000-. Se demostró que estos préstamos son convenientes para el movimiento económico de la Caja, ya que la tasa de recuperación alcanza el 4% anual en dólares, superando el rendimiento de cualquier inversión -por ej. el Fondo de Recomposición, que no superó el 18% anual en pesos. Se aprobó por mayoría la solicitud del Colegio de ingenieros.

Actualmente el Consejo Superior se encuentra realizando una obra para la refuncionalización y ampliación de su Sede en La Plata –con un Proyecto sin concurso, lo cual fuera objetado por el Delegado al CS del Distrito- esta obra es financiada en parte con el préstamo otorgado por la Caja.

d) Considerar el otorgamiento de préstamos personales a afiliados de la CAAITBA para la compra de instrumental y/o herramientas de trabajo por parte de los afiliados a la Caja de Previsión.

Dado que no existe consenso al respecto entre los Asambleístas por este punto, se resolvió re rar de tratamiento. El Distrito IX apoya tal propuesta, no obstante dado que aún subsisten dudas y criterios que no se comparten para la Reglamentación de dicho proyecto, acordó con la decisión aprobada.

e) Considerar la actualización de los valores de los subsidios por nacimiento y fallecimiento en porcentajes de C.M.A.O., de acuerdo al proyecto adjunto.

Se aprobó la propuesta elaborada y presentada por el CAPBA, la cual permite mantener actualizados los valores de dichos subsidios, consiste en fijar un valor de 0,15 de la CMAO para Subsidio por Nacimiento (hasta segundo hijo) y 0,18 de la CMAO para caso de adopción y de tercer hijo en adelante. En todos casos según el valor de CMAO a la fecha de nacimiento o adopción. El Subsidio por Fallecimiento se fijó en 1,5 de la CMAO.

f) Proclamación de los miembros electos por la matrícula del Colegio de Técnicos de la Provincia de Buenos Aires, para integrar los Órganos de Conducción de la Caja.

Se aprobó una vez leído el listado.

g) Consideración de la suspensión por un (1) año de la aplicación del porcentaje del aporte aplicado al seguro y que dicha suma se incorpore a las cuentas individuales de capitalización.

Se rechazó la propuesta. En función de que dicho fondo es de donde se toman los préstamos que otorga la CAAITBA a los entes colegiales, y visto el buen rendimiento que arroja dicha inversión se propone como moción no efectuar ninguna modificación.

h) Consideración del informe de la Comisión “Ad-hoc”, detallando el estado actual de la ges ón de presentación en la Legislatura Provincial de los proyectos de ley a su cargo, en cumplimiento del mandato de la Asamblea a su requerimiento.

Se procedió a la lectura del Informe de la Comisión Intercolegial Ad-Hoc, el cual abunda en detalles del procedimiento y ges ones realizadas para la elaboración y elevación a la Legislatura Provincial -Cámara de Senadores- de los dis ntos Proyectos que fueron presentados. Cabe destacar que a la fecha de la Asamblea los mismos no poseían estado Parlamentario, y se esperaba que éste se concretase en las futuras reuniones legisla vas, antes de fin de año. El sector de Jubilados votó nega vamente el informe. Se aprobó tomar conocimiento del informe.

Recordamos que la postura del Distrito IX acompaña la creación de una nueva Ley Previsional, individual, que contemple las necesidades e intereses de los arquitectos. Sin embargo, hemos objetado varios ítems del Proyecto que presentara el CAPBA, al cual le hemos propuesto dis ntas alterna vas e incluso elaborando un proyecto completo.

Respecto de la información que elabora la Comisión ad hoc, no siempre se comunica en empo y forma, hecho que hemos objetado.

i) Considerar un ajuste de los haberes previsionales incrementando los haberes actuales en el cuarenta por ciento (40%), en forma progresiva durante el transcurso del año 2015, de la siguiente forma: 1) veinte por ciento (20%) a par r del primero de enero, 2) diez por ciento (10%) desde el 1º de junio y 3) diez por ciento (10%) desde el 1º de octubre.

Se aprobó aumentar los haberes jubilatorios en un 10% a par r del 1º de enero de 2015. Este aumento tuvo un tratamiento complejo en virtud de la oposición de los representantes jubilados, que propusieron porcentajes alterna vos más elevados.

j) Conformación de la Comisión de Administración, Ges ón y Normas (Aprobada por Resolución de Consejo Ejecu vo que se adjunta).

Se aprobó. Siendo este el úl mo punto se designaron tres asambleístas para suscribir el Acta: el Arquitecto Juan Carlos Grabone, el Ingeniero N. Beliera y el Técnico Pedro Di Cataldo.

ASUNTOS PREVISIONALES
capba IX ASUNTOS PREVISIONALES 49
Arq. Roque Nóbile Comisión Asuntos Previsionales

CÓMO SE CONFORMA LA ASAMBLEA DE REPRESENTANTES DE LA CAJA?

La Asamblea -órgano máximo de gobierno de la CAAITBA-, está integrada según el Art. 9° de la Ley Nº 12490 por 8 representantes de cada ente colegial y 12 representantes de los Jubilados. Con un total de 44 miembros con 1 voto cada uno. Esto implica que para lograr la aprobación de propuestas de autoría colegial se debe construir alianzas.

Las Asambleas pueden ser de dos pos: Ordinarias y Extraordinarias. En el primero de los casos la misma se halla especificada en el Art. 13° de la Ley y establece un orden de tratamiento específico; en el segundo caso (Extraordinarias) deben o pueden ser convocadas por el Directorio, la Comisión de Fiscalización, un porcentaje de los Asambleístas (30%) o bien por los Afiliados (10%) de ellos - fijando un temario determinado.

CÓMO SE ELIGEN SUS MIEMBROS?

Cada Colegio en su elección de autoridades también elige sus representantes a la Asamblea, los que deben cumplir determinados requisitos. Cada Ente profesional reglamenta su modo de elección, en tanto la elección de los Representantes Jubilados (3 por Matrícula) está fijada por un Reglamento que es atribución de la Caja. En el caso del CAPBA puede acontecer dos posibilidades: que la lista ganadora para la conducción del Consejo Superior no obtenga los votos necesarios para sus candidatos a la Caja (Directores, Representante ante la Comisión de Fiscalización y Representantes en la Asamblea), o bien que en ambos casos obtenga los votos suficientes para imponer sus candidatos, tanto para el Consejo Superior como para la Caja (situación actual).

Como resultado de las elecciones colegiales del año 2013, el único colega del Distrito IX que integra la Asamblea de la CAAITBA pertenece a la Lista Naranja, que conduce el Consejo Superior, por lo que acompaña las inicia vas y posturas de las autoridades provinciales, la mayoría de las veces con criterios y decisiones dis ntas a las resueltas en el Distrito.

CÓMO SE FIJA LA POSTURA QUE LLEVARÁN LOS REPRESENTANTES DEL CAPBA A LA ASAMBLEA?

El Distrito IX par cipa de la Comisión de Previsión del Consejo Superior, en calidad de invitado -no de miembro pleno- y por decisión de nuestro Consejo Direc vo, dada la importancia estratégica de dicha Comisión. No contamos con la mayoría de votos en la misma

y la calidad de invitado no da derecho a voto, aunque nunca se aplicó tal reglamentación. Una nueva mecánica de funcionamiento, y que debemos destacar, es que los colegas que se desempeñan como Directores en la Caja par cipan en las reuniones de Comisión Previsional del CS, no así el Representante ante la Comisión de Fiscalización (Desde el Distrito IX hemos solicitado que este representante concurra).

En dicha Comisión se analiza el Temario propuesto tanto para una Asamblea Ordinaria como Extraordinaria -con la documentación que la Caja elabora para las mismas-, y en ella los Distritos expresan sus opiniones y criterios a aplicar en cada tema. Por lo general los temas son previamente discu dos en reunión de Consejo Direc vo del Distrito.

Los resultados no siempre son aquellos aprobados en el Distrito, aunque a veces se logra que determinados proyectos elaborados localmente se vuelquen a la Asamblea de la Caja. Por ejemplo: Reglamentación de actuación de los Abogados y Asesoría Letrada de la Caja (aprobada en Asamblea y no puesta en marcha por el Directorio), y propuesta de Modificación de la Ley N° 12490 (aprobada y dejada de lado por el Proyecto de Caja Propia).

Un tema pendiente es la instrumentación del Proyecto presentado para la u lización de excedentes de CMAO en determinados años para volcarlos a aquellos no cubiertos por vía Reglamentaria. Esta propuesta ha sido elaborada por la Asesoría Jurídica y la Comisión de Previsión del Distrito IX y aprobada por nuestro Consejo: si bien el Directorio de la CAAITBA aún ni siquiera analizó lo encomendado por la Asamblea.

Debemos destacar que el Distrito IX es uno de los que más propuestas, análisis y proyectos -incluso una Ley completa de Caja Propia- ha elaborado y presentado en la Comisión del Consejo Superior.

Siguiendo el circuito, una vez analizado el Temario de la Asamblea se elevan las conclusiones al plenario del Consejo Superior, donde se aprueban, rechazan o corrigen las conclusiones y/o criterios a llevar a la Asamblea. En este órgano de gobierno del CAPBA el Distrito IX compone la minoría.

Previamente a la fecha de Asamblea se reúnen los representantes de los entes colegiales (generalmente los Presidentes) y acuerdan determinadas propuestas a llevar a la Asamblea, esto hace que a veces en pos de acuerdos polí cos, determinadas propuestas prosperen o no.

En la Asamblea los entes colegiales disponen de mayoría (siempre y cuando se hallen aliados) por sobre los Jubilados.

50

CERTIFICADO DE CUMPLIMIENTO DE APORTES CAAITBA

La provincia de Buenos Aires derogó el Decreto Nº 2370-02

Con fecha 15 de diciembre de 2014, el Gobernador de la Provincia de Buenos Aires Daniel Scioli, ha firmado el acto administra vo que deroga el Decreto 2370-02 que imponía como condición para el ejercicio de la profesión a los afiliados de la CAAITBA la presentación del Cer ficado de Cumplimiento de Aportes Previsionales (CCAP).

Si bien, en los úl mos empos sólo algunas repar ciones públicas y/o privadas exigían este requisito, lo que derivó en la decisión de la Asamblea de Caja en la ges ón unánime para la derogación de este Decreto.

Desde el año 2006, tanto la CAAITBA como los Entes Colegiales, han solicitado la derogación de este Decreto; entendiendo la manifiesta disparidad respecto de su exigencia en toda la Provincia de Buenos Aires.

Este Decreto del año 2002 establecía: “Ningún organismo de los tres poderes (Ejecu vo, Legisla vo y Judicial), provincial, municipal y mixto; empresas concesionadas y/o concesionarias de servicios públicos, y privadas, en general; aprobará, otorgará final de obra o cer ficación de finalización de tareas, parciales o totales, sin que conste el correspondiente cer ficado de cumplimiento de aportes previsionales otorgado por la Caja de Previsión Social para Agrimensores, Arquitectos, Ingenieros y Técnicos de la Provincia de Buenos Aires - Ley 12.490”.

Vale la pena recordar la defensa extrema de sus matriculados que el CAPBA IX realizó oportunamente

acompañando la presentación de un recurso de amparo que dejó sin efecto la aplicabilidad de esta exigencia en los municipios correspondientes al distrito.

La derogación sancionada por el Gobernador de la PBA, mediante Decreto Nº 1103-14, eliminará el requisito de presentación del CCAP emi do por la CAAITBA como condición para la actuación profesional ante diferentes repar ciones.

En ese sen do, corresponde aclarar que el instrumento del Cer ficado con nuará exis endo, el que será emi do por la Caja ante solicitud del afiliado mediante el sistema de autoges ón. Asimismo, se recuerda que la presente derogación no exime a los afiliados de la ges ón de los libre de deuda previsionales por aportes de obras, debiendo ges onar su emisión conforme el estado de avance de obra de forma habitual.

Celebramos este paso importante que permite el pleno desarrollo de nuestra ac vidad profesional, sin restricciones que cercenen el derecho a trabajar.

ASUNTOS PREVISIONALES
51

Entrega de medallas por 25 y 40 años años de profesion de Arquitecto de

El jueves 04 de Diciembre, el CAPBA IX ha realizado el tradicional acto de entrega de medallas a los colegas que cumplieron 25 años de profesión. El evento se realizó en el salón de exposiciones del Centro de Constructores y Anexos de la ciudad de Mar del Plata.

En la ocasión además se entregaron reconocimientos a los matriculados que celebraban 40 años de tulación, a quienes se les obsequió un llavero grabado como recuerdo.

Además en esta oportunidad la Ins tución entregó al Arq. Carlos Cas glioni una medalla en reconocimiento por 25 años de servicio en nuestro Colegio Profesional como visador y gerente técnico. Felicitaciones a todos.

Colegas del CAPBA IX que recibieron, en el 2014, Medalla al cumplirse los 25 Años de recibir el Título de Arquitecto:

María Maldini AGUADO

Eduardo AGÜERO

Silvia ÁLVAREZ

Marcelo BOCERO

Héctor BUFFO

Sandra CABOTTI

Pablo CAMPOS

Laura CELLI

San ago COCETTA

Adrián COTTURA

Juan CHIEFARI

Juan DÍAZ MAY

Nancy DI LEO

Eduardo Silva D´HERBIL

Antonino D´ORSO

Aurora ETCHEGARAY

Luis FALCONI

Carlos GALDEANO

Gerardo GALLI

Jorge GONZÁLEZ

Agus n GUERRI

José HABU

Alejandra IZAGUIRRE

Hernán LECCE CRESTA

Silvia LÓPEZ

Ariel MAGNONI

Gabriel MARIÑO

Horacio MARTÍNEZ

Daniel MASSARO

Claudia MINETTI

Juana ODRIOZOLA

Mario PAIARDINI

María PAPPATERRA

Guido PERINOT

Susana RAMOS LLOVERAS

Carlos STANTIEN

Guido TEDESCO

Ramón URANGA

Hernán VELA

Carlos ZEDDE

Colegas del CAPBA IX que recibieron, en el 2014, llavero recordatorio al cumplirse los 40 Años de recibir el Título de Arquitecto:

Gerardo AGRA

Beatriz CALOSSO

Alfredo CORINA

Miguel CREPARULA

José CHURRUCA ULACIA

Eduardo D´AMICO

Carlos HERRERA ROY

Roberto PERALTA

Graciela SANTIAGO

Luciana SPINELLI

Manuel TORRES CANO

52

Nuevos matriculados Acta de entrega de credenciales

El pasado 29 de diciembre se llevó a cabo en la sede del Colegio de Arquitectos de la Provincia de Buenos Aires Distrito IX, una nueva ceremonia de entrega de credenciales a profesionales recientemente matriculados.

Como en cada cuatrimestre, en esta oportunidad se realizó nuevamente el Acto de Entrega de Credenciales, conjuntamente con la entrega de Subsidios CAPBA 25 años.

Las autoridades del Distrito IX dieron la bienvenida a los nuevos colegas, y se les informó sobre las ac vidades del Distrito, capacitaciones, servicios, deberes y derechos, entre otros temas de importancia.

Son ahora colegiados los Arquitectos:

DENARO, Hugo Facundo MAT. 27.726 MARTINEZ, Joaquín MAT. 27.727 MASCOLO, José Ignacio MAT. 27.656 OTERO, Noelia Sabrina MAT. 27.655 PASTORINO, María Belén MAT. 27.725 SAIZ, Jimena Clara MAT. 27.779 TESTA SOPRANO, Antonella MAT. 27.777 MATRICULADOS 53

Fiesta de Fin de Año

El sábado 13 de diciembre de 2014 tuvo lugar la ya tradicional cena y Fiesta de Fin de Año del Colegio de Arquitectos DIX. La cita fue en el Club Náu co Mar del Plata y asis eron más de 200 personas, entre colegas, familiares y colaboradores de la Ins tución.

En un clima de cordial camaradería, los presentes pudieron disfrutar de cena, animación y baile. Un papel relevante cobró este año la animación que no dejó a nadie sentado en su mesa. Juegos por equipos desinhibieron a todos los par cipantes y amenizaron los intervalos entre los pasos del menú.

La Fiesta incluyó sorteos de indumentaria, relojes, male nes, vinos, materiales de construcción, electrodomés cos, gastronomía, fotogra a, librería, telefonía, computación, accesorios femeninos y órdenes de compras. El premio más esperado fue el regalo aportado por el Colegio, un viaje en Crucero para dos personas, sorteado entre los matriculados presentes. Felicitamos al Arq. Guillermo Caimari por haber obtenido el premio más deseado.

Las empresas que con su colaboración hicieron posible los sorteos fueron Cía. Sudamericana, Núcleo, El Álamo Rent a Car, Drap Pinturerías, Tondat Sonido, Café - Café máquinas expendedoras, Puerto Joyero, Tío Gerardo, Sika, Celtop (Sika), Vinoteca Cano, El Faro Imprenta y Karina Beltrán Fotogra a. También hubo premios sorpresa en cada mesa de comensales aportados por el CAPBA DIX y Banco Galicia. A todos ellos agradecemos su importante par cipación.

capba IX SOCIAL Y GREMIAL 54
FIESTA DE FIN DE AÑO capba IX SOCIAL Y GREMIAL 55

Subsidio “CAPBA 25 años”

Se entregó a los primeros beneficiarios de este reconocimiento

El pasado 29 de diciembre en la Sede del CAPBA IX se hizo entrega a matriculados del CAPBA y jubilados del subsidio creado en el 2012.

Conforme lo establecido en la Resolución CAPBA 79/12, de creación del Reconocimiento a la permanencia en el CAPBA y complemento a los arquitectos jubilados, se hizo entrega de dicho reconocimiento a los colegas beneficiarios del mismo.

En una sencilla ceremonia encabezada por la Mesa Direc va del CAPBA IX se compar eron algunas reflexiones sobre la profesión, nuestra disciplina, la existencia del CAPBA desde su creación y las deudas pendientes camino a los 30 años desde su creación.

La ocasión propició el encuentro de colegas que compar eron anécdotas, reflexiones y el brindis de fin de año. Este año fueron beneficiados sesenta y ocho (68) colegas con matrícula ac va y vein séis (26) colegas jubilados.

56

SUBSIDIO 25 AÑOS

Los colegas matriculados del CAPBA beneficiados fueron:

MatrículaApellido Nombre MatrículaApellido Nombre

1968BERMUDEZ Héctor Luis

1746BIDOGGIA Jorge Alberto

928BOLGERI Alejandro Carlos

819BUND Elisabeth Aloisia

1847CABANAS Manuel Fernando

6744CACERES MONIEMaría Silvia

947CALEGARI Héctor Raúl

2755CARON Roberto

670CASTELLANI Luis Leonardo

2193CONTRERAS Rolando A lio

1526CORINA Alfredo José

1321DAUMAS Marcelo Daniel

4152DE MICCO Miguel Ángel

441ESCUDERO Juan Manuel

1339FERNANDEZ Hugo Alberto

2610FILATRO Omar Antonio

7252FILIPPI Armando José

1255GELEMUR José Luis

534GIMENEZ Hugo Alberto

616GIULIANO Luis María

1278GOMEZ Osvaldo

1170GONZALEZ Elsa Rosa

9603GONZALEZ Oscar Francisco

1276GUALLA Gerónimo Jorge

551JAKUBOWICZRoberto

1115LAURIZI Horacio Adolfo

2120LOPEZ PEREIROFrancisco

784DANESE Lorenzo Roberto

980LUZARRETA Ricardo Edmundo

635MARCHELLI Hugo Mario

983MARIANI Elena Inés

2066MARTIN Rodolfo Hipólito

2227MARTINEZ Mario Alberto

3419MAVERS Érico Roberto

Los Arquitectos Jubilados que recibieron el beneficio fueron:

990MAYORANO Oscar José

4547MEDINA Daniel Ricardo

1264MENDEZ Julio Ángel

820MONTES David Dalmiro

2457OMAÑA Alfredo Argen no

2067ORELLANO Roberto Edgardo

7897PAGNUSSAT Roberto Luis

6988PERALTA Roberto Mario

864PEREZ MARAVILLAMaría Haydee

1286PETRONI Hebe

2458PLENAFETA Nélida Cris na

2286PILCIC Miguel Darío

7422PODESTA Luis Oscar

7643POUSO Hugo Ernesto

2539PRARIO Raúl Alberto

1319PRYSTUPA José Antonio

547QUARATI Nelson Francisco

3737RICHARD´S Horacio Gualberto

1805RINALDI Marta Alicia

7824RUAU Lía Del Carmen

1012SALERNO Cayetano Silvio

256SAMSOLO Samuel Oscar

7810SCACCHERI Jorge Osvaldo

2456SCHEGGIA Oscar Héctor

2480SCHMIDT Axel Thorleif

3190TARCHINI Juan Carlos

3062SCHULZ Ricardo Alejandro

7548SPINELLI Luciana

4278STURNIOLO Miguel Ángel

1523TORRES CANOManuel

1661VALDEZ María Lucía

1106VILLAR María Inés

1621YANCOSKY Rodolfo Ramón

8251ZAK Eduardo

MatrículaApellido Nombre MatrículaApellido Nombre

1189AHRTZ Gustavo Guillermo

189ALESSO Juan Carlos

999ARCANGELI Elsa María

603BALLERO Oscar Jacinto

1865BAYON Miguel Ángel

149BENVENUTO Cesar Lorenzo

672CARDINALI Armando Juan

387CATUOGNO María Magdalena

73COVA Roberto Osvaldo

9414FERNANDEZ MONCORoberto Abel

725GIANGUALANOHugo Andrés

1509GOLOMB Miguel

9160IRIGOIN Amelia Teresa María

807LARRABURU Ivonne

213LA ROSA PEDERNERAJulio Javier

1030LOPEZ RIVAS José Luis

817MANDAGARANDante Omar

469MANTERO Juan Carlos

584MARCOS Julio Cesar

1042PASQUINELLIAlberto Horacio

49POLLINI Néstor Ángel

713ROUCO Luis Alberto

7795TOMEI Alberto Santos

3871TORTORA Vicente Omar

456VILLAR Irene Isabel

1309VISINTINI Oscar Guido

Arq. Pablo Oliva

Delegado al Consejo Superior CAPBA IX

capba IX SOCIAL Y GREMIAL 57

Mucho se ha hablado de la Arquitectura como síntesis catalizadora de todas las artes, aún más, se ha dicho de ella que es la “Madre de todas las artes”. Algo de cierto debe de tener esa afirmación y ejemplos sobran.

Si nos remontamos al Renacimiento, podemos ver que los grandes ar stas producían obras de dibujo, pintura o arquitectura sin hacer dis ngos disciplinarios: a Miguel Ángel, Rafael y al mismo Leonardo se les hacía importantes encargos, tanto de proyectos arquitectónicos como de pintura o escultura.

Cierto es que, conforme ha pasado el empo, las ac vidades humanas se han ido especializando cada vez más (aún con especializaciones dentro de las especializaciones), pero no menos verdadero es que una gran can dad de profesionales de la arquitectura,

Todos los fuegos, el fuego

abrevan en otras expresiones ar s cas, muchos de ellos no sólo como público sino como realizadores en esas disciplinas.

Se conoce la gran obra pictórica de un referente de la Arquitectura como Le Corbusier, la monumentalidad de la pintura del pintor mexicano Juan O’Gorman, la contundente obra dibujís ca de nuestro recordado Walter Carbajo y muchos más que han desarrollado con solidez su tarea de arquitecto, a la par de una ac vidad ar s ca dentro del campo visual.

En próximas notas publicaremos algunos de los conceptos sobre la relación Arte-Arquitectura, ver dos por los matriculados de CAPBA IX que han expuesto su trabajo ar s co en el Ciclo “Expresiones de Arquitectos”.

Ciclo de Arte

de Arquitectos” 2015

Declarado de Interés Cultural por la Secretaría de Cultura de la Municipalidad de General Pueyrredón.

Curaduría: Ar sta Plás co Cris an Dalgaard y Arquitecta Julia Romero. Coordinación del ciclo: Arq. Romina E. Chocou.

Consultas: expresiones.arq@capba9.org.ar

Mi pecado capital es estar some do a las cosas visuales. Tengo ojos y todo lo visual, el dibujo, la pintura, la escultura, la arquitectura, para mí es igual.
Le Corbusier
“Expresiones
capba IX SOCIAL Y GREMIAL 58

Fin del ciclo de

conferencias

de arquitectura 2014

“De la Idea a la Obra”

Las arquitectas Mónica Bertolino y María Haydee Pérez Maraviglia cerraron con sus charlas en el Museo de Arte Contemporáneo MAR, el Ciclo “De la Idea a la Obra” que convocó numeroso público durante 2014.

Con este 6º encuentro se dio por finalizado el Ciclo organizado por el CAPBA IX y coordinado por el estudio ef.arq, que fue declarado oportunamente de interés por el Arquisur, la secretaría de Cultura MGP, la secretaría de Turismo de MGP y la FAUD-UNMDP.

La úl ma conferencia del ciclo tuvo lugar el 9 de agosto del pasado año y contó con dos figuras femeninas referentes de la arquitectura nacional. En las palabras iniciales, el arquitecto Eugenio Fernández tular del estudio ef.arq, coordinador de las conferencias, definió al ciclo como “memorable”, en referencia a los conferencistas y su predisposición, a la calidad de ideas y obras que fueron mostradas durante el ciclo, al público que acompañó, y al CAPBA por ser quien tomó el desa o de generar este espacio de reflexión y debate.

Seguidamente se dio paso a las conferencias y al finalizar la úl ma charla, la arquitecta Julia Romero, presidente del CAPBA DIX, tuvo palabras de agradecimiento para con todos los conferencistas, organizadores, colaboradores y asistentes de este ciclo que sentó precedente.

60 capba IX CAPACITACION Y ACTUALIZACION PROFESIONAL

Desde la alteridad, exploraciones y periplos (Arq. Mónica Bertolino)

“Reconectar los discursos que han marcado la historia de la producción la noamericana” ha sido la principal mo vación del estudio, en palabras de Mónica Bertolino. La otredad y la alteridad le han marcado periplos con los que ha podido deambular, para en defini va volver al mismo si o, recargada de exploraciones.

Su trabajo a lo largo de los años estuvo pensado en relación a un contexto-paisaje, tanto humano como urbano, tanto natural como ar ficial, pero siempre geográfico, desde la pertenencia y desde un lugar –nuestro territorio- que no es precisamente un foco difusor de cultura en el mundo.

Bertolino declaró que “irse con ansiedad de conocer el mundo, sirve para poder ver desde afuera el propio contexto, cotejarnos, y volver a ver lo nuestro” ya que la arquitectura apela a valores universales, intemporales, pero también es un fenómeno del empo, la época, las putas, los valores y el lugar, con un contexto produc vo y construc vo, cultural. Y es a la vez, un fenómeno personal, de búsquedas y obsesiones que tal vez no tengan explicaciones lógicas. Por todo esto, el propio contexto es fuente de exploración. Se trata de ver lo ordinario como algo diferente, “lo verdaderamente revolucionario es la mirada sobre lo que se ve siempre”.

La expositora se adentró en su obra plás ca mostrando trabajos producto de una reflexión catár ca en relación al año 2001, año de crisis profunda en el país y momento en el que elaboró una serie de obras sobre la bandera, como símbolo nacional. Luego realizó una saga del po historieta, con reflexiones disciplinares y extra disciplinares, creando un personaje propio: “Modulor, el héroe moderno”. Se trató de un héroe adusto, culto, proporcionado, áureo, previsible, puesto a funcionar en un mundo imprevisible, desproporcionado y bastante poco áureo. Esta serie de trabajos le sirvió a la autora para pensar las condiciones propias de la cultura globalizada. Por aquel entonces, la noción de progreso fue radicalmente desmi ficada de su sen do posi vista.

Planes especiales para arquitectos en

CICLO GRATUITO DE CONFERENCIAS
61 capba IX CAPACITACION Y ACTUALIZACION PROFESIONAL
Pabellones granja

Acontecieron en el mundo los avances cien ficos más inverosímiles (por ejemplo la clonación) mientras que por otro lado se siguieron manteniendo las miserias más elementales. Todo este cocktail se plasmó en reflexiones y vivencias del personaje Modulor, al que la ar sta inventó una serie de amantes, y al que llevó también a rozar la veta humorís ca cuando hizo que este modulor cordobés reflexionase sobre ‘el diseño’.

Gran parte de la exposición de Bertolino estuvo sostenida en el arte. Mostró imágenes de obras propias y de ar stas contemporáneos, de landscape, instalaciones, grabados, arte conceptual en fotogra a, etc.

Ya pasando al plano de la arquitectura, aclaró que una de las preocupaciones del Estudio es la instalación “matérica”. También aquí tomó ciertas paradojas, como una imagen de la Casa sobre el Arroyo de A. Williams con toda su estructura de puente a la vista, confrontándola con imágenes de casas construidas espontáneamente bajos puentes, entre la estructura, para familias sin techo. Paradójicamente estas casas precarias enen las mejores vistas y locaciones, en los lugares más caros de las ciudades.

También habló de la creación de barreras de conflicto dentro mismo de la ciudad contemporánea, apartado al que tuló “Hipótesis de la violencia, estrategia de la ilusión”, haciendo referencia a la relación perversa entre el miedo y el consumo, a cómo los countries o barrios cerrados, forman parterres de segregación dentro de la ciudad, con sus lecturas de realidad global/local y condiciones xenófobas, formando cultura de guetos. En la contraparte de lo cerrado, de esta “priva zación del espacio público”, señaló que hay hipótesis de socialización de la mano del espacio público, lugares donde se puede protestar, tomar una cerveza, discu r… y mostró trabajos del Estudio referidos a espacios públicos y recorridos de ciclo vías.

Entre las obras de arquitectura e intervenciones más notables que presentó, estuvieron incluidas:

Jardín botánico de Córdoba (1996). Con mo vo de esta obra presentó reflexiones sobre las condiciones de la obra pública y la condición propia de la arquitectura ante la invasión de imágenes internacionales. Comentó que este encargo significó discu r una arquitectura más propia y con bajo presupuesto. Esto los llevó a trabajar focalizados en la estructura y en la propia materialidad de los elementos. Usaron estructura de hierro T común como en un galpón, y muros de piedra en encofrado. Estudiaron el sol, el uso de parasoles, y la idea de “caverna interior” aunque sin parecerse literalmente. El proyecto contó con un programa definido en conjunto con las facultades de agronomía y biología de Córdoba. Se empleó el uso del hormigón de tablas, para poder asumir los errores de mano de obra como parte de la esté ca de la obra.

Serie de Plazas. Comenzando con una en 1995, en un área recuperada de un basural que conecta el área periférica con el área central de la ciudad de Córdoba. Se trató de

Jardín Botánico de Córdoba Jardín Botánico de Córdoba Edificio Constenar
62 capba IX CAPACITACION Y ACTUALIZACION PROFESIONAL
Plaza de la Capitalidad

una plaza sencilla de un único solado y con chorros de agua desde el piso. Aquí el mantenimiento fue cero, lo que es sinónimo de “ni siquiera limpiar”. A par r de allí fueron convocados para hacer espacios públicos con poco dinero, de forma de dar nueva calidad a barrios olvidados.

Trabajaron entonces empleando materiales sobrantes existentes en el corralón municipal, materiales de descarte, hierro doblado aprovechado para pérgolas, etc. Comenzaron a diseñar espacios públicos con lo que había y con mano de obra de centros vecinales, así fueron concretando areneros, juegos y demás sectores programados.

A par r de estas experiencias fueron llamados en varios municipios de ciudades pequeñas y con poco presupuesto para diseñar espacios públicos y equipamiento, tal como sucedió en Las Varillas, obra de la que mostró imágenes de la intervención.

Bertolino también ilustró a la audiencia con experiencias académicas par cipa vas realizadas en barrios carenciados de la ciudad, con mesas de ges ón de vecinos para generar espacio público, y con los estudiantes. En ellas los equipos de alumnos llevaron a cabo acciones sencillas pero de importancia para el lugar: reacondicionar ciertos puntos del barrio, mejorar cercos y alambrados, generar espacios de encuentro, paradas y bancos de colec vos.

Luego la arquitecta Bertolino se introdujo rápidamente en una serie de obras importantes para el Estudio, de las que contó las caracterís cas principales. Entre otras obras se mostraron: el Concurso Nacional Plaza de la Capitalidad en la desembocadura de la Cañada (no construido); el Concurso del Memorial de los Desaparecidos; la Casa Ríos (2001) en Rosario; la Casa del Cuidador en las sierras; la Casa Carroza (2008) en Dique Los Molinos; la

Casa Carmona (Pro.Cre.Ar); el Edificio Constenar; Casas Múl ples I y II en Alta Gracia; y algunas intervenciones importantes en el paisaje natural como los Quinchos en Capilla del Monte y los Pabellones de granja educa va en el mismo lugar.

Sobre el final de su conferencia dejó explicitada una de las ideas fuertes de la charla: “Quizás la complejidad resida en la interpretación profunda de nuestros dis ntos paisajes humanos, urbanos, sociales, naturales, ar ficiales. En comprender la alteridad como potencial y sen rse comprome do en producir arquitectura como ´soporte´ social, humano, urbano y también sensorial”.

MINI BIO: Estudio Bertolino - Barrado

Mónica Bertolino (UNC, 1981) nació el 12/07/1957 y Carlos Barrado (UNC, 1978) nació el 27/06/1955. El estudio fue creado en 1982. Realizan proyectos y obras en diferentes temas y escalas, en diseño arquitectónico, urbano y paisajís co. Profesores en UNC, UNL y UCC en grado y posgrado, han buscado construir un espacio académico nacional y la noamericano. Ambos son profesores y conferencistas invitados en diversas Bienales, Foros y Universidades nacionales e internacionales. Han obtenido diversos premios: Premio Vitruvio del MNBA por el Jardín Botánico de Córdoba; Mención de Honor Bienal Panamericana de Quito 2002; Mención CPAU 2008; Premio BIAU 2010 Panorama de Obras por la Granja en Capilla del Monte; Premios ARQ Clarín 2011: 3° premio (Pasarela Las Varillas) y menciones (Casas múl ples y Casa en Potrero de Garay); Nominación Marcus Prize Milwakee 2010 EEUU; Premio Konex 2012; entre otros, así como premios en concursos nacionales de proyecto. Poseen obras publicadas en reconocidos medios nacionales e internacionales y ar culos, textos y producción teórica (summa+, a+u, Casabella, 30-60, la vanguardia).

CICLO GRATUITO DE CONFERENCIAS 63

“El camino del imaginario a la concreción”

En segundo lugar en la exposición ante el auditorio reunido, la arquitecta Pérez Maraviglia comenzó su charla con la memoria del arquitecto Carlos Mariani, destacando que fue él quien logró hacerle querer Mar del Plata. Mariani “siempre pensaba cómo mejorar y potenciar la vida en la ciudad, en sus calles, plazas, con su contexto y referencias (...) tenía respeto por la ciudad.”

Destacó que siempre trabajaron en el Estudio avocados a sa sfacer al comitente, con todo lo que este buscaba, quería y necesitaba; y a par r de allí la arquitecta se adentró en la exposición de algunas de las obras más paradigmá cas del Estudio. A pesar del poco empo que restaba para disponer de la sala del Museo MAR y del apuro que esto conllevó, Pérez Maraviglia pudo captar a la audiencia el cometario de las obras:

Casa en El Grosellar. Presenta algunas caracterís cas propias de la obra del Estudio: doble muro, cámara de aire, búsqueda de captación energía solar y conservación de temperaturas, junto a una nueva definición de vanos y aberturas.

Casa en Los Troncos. También con muros dobles, vanos pequeños, sólo con grandes aberturas en el espacio social que se expande en terraza sobre el garaje.

Fundación Bolsa de Comercio. Aquí con el ingrediente fundamental de la preservación de la casa patrimonial y su parque. El desa o consis ó en realizar una nueva construcción que acompañara la casa sin hacerle perder sus caracterís cas. Comentó los inconvenientes que presentaba el C.O.T. para el proyecto y las excepciones que debieron tramitar para seguir conservando la casa exenta. También se explayó en algunos conceptos bioclimá cos aplicados en la obra, como la ubicación de las aulas en la fachada norte para lograr iluminación y calor de forma económica, junto a un tamiz de temperaturas producido por enredaderas. También la localización del S.U.M. ubicado en forma semienterrada aprovechando los desniveles del terreno con iluminación natural.

El Aquarium, sobre la costa en el sector del faro. En este caso comentó sobre el inicio de la ges ón, que par ó de una propuesta del Estudio a un privado, observando que faltaba en la ciudad equipamiento de servicios y había ausencia de propuestas para el desarrollo de ac vidades complementarias des nadas tanto a la población estable como a la turís ca. La falta de un espacio que vinculara a Mar del Plata con la comprensión y el conocimiento de los temas del mar los llevó a ubicar una parcela ideal para el desarrollo de un parque marí mo. Este proyecto resultó todo un desa o al implicar movimiento de médanos, generación de espacios a lo largo de recorridos que mostraran el paisaje y permi eran acceder a dis ntos servicios, y por supuesto el intercambio con especialistas a nivel internacional en el tema de Oceanarios.

Hotel Sheraton Mar del Plata Mar del Plata Aquarium Casa en Los Troncos Barrancas de Playa Grande
64 capba IX CAPACITACION Y ACTUALIZACION PROFESIONAL
Ex Terminal Sud

Hotel Sheraton. Se trató de otra propuesta del Estudio a un cliente, observando el desarrollo de Mar del Plata como ciudad de escala intermedia. La intención fue pensar hotelería cinco estrellas con centro de convenciones, aunque al momento del proyecto no sabían que luego lo tomaría la cadena Sheraton para su explotación. En esta obra emplearon ladrillo visto, dobles muros, carpinterías pequeñas con DVH (hasta donde permi a la tecnología del momento -paños reducidos de DVH-), y tres circuitos diferentes para resolver las circulaciones de forma eficiente (núcleo de circulación ver cal pública, núcleo para pasajeros y núcleo de servicio). El lobby funciona eficazmente como ágora de reuniones para los pasajeros y para quienes están par cipando de convenciones.

Edificio Vistas de Playa Grande (B. Peralta Ramos y Formosa). Se trata de dos bloques del mismo edificio unidos por un núcleo circulatorio central. En esta obra probaron nuevos materiales, más plás cos, para proteger al hormigón ante una situación tan expuesta debido a su ubicación frente al mar. El edificio se promocionaba bajo la premisa de poder modificar las plantas, por eso cada piso resultó dis nto de acuerdo a los requerimientos de los compradores.

Barrancas de Playa Grande (conjunto en Aristóbulo del Valle y B. Marí mo). Aquí los departamentos enen frente y contrafrente, con mucha iluminación y ven laciones. Las cocinas están al frente, en buena posición. Posee cocheras y espacios comunes en subsuelo, con sectores con doble altura en los accesos en planta baja para no perder contacto con el mar.

Edificio Biscayne Beach (Colón y Paunero). Construido en un terreno libre entre chalets patrimoniales de Alula Baldassarinni, posee piel de vidrio espejado a imitación de los edificios de Miami -a pedido del cliente-. La fachada posterior es la que reúne al sector de servicios, mientras que las otras caras emplean una innovadora tecnología de vidrios, con gas argón como elemento central en la composición de los mismos.

Ex Terminal Sud. Pérez Maraviglia destacó la importancia de la plaza conectora entre los dos edificios, el histórico y el nuevo, cuyo programa es un centro comercial y cultural con cines. También estuvo presente la mención a la apertura de calle Rawson a dis nto nivel que el de las calles circundantes. La obra de intervención patrimonial que permi ó recuperar la estructura metálica inglesa original de la estación y las fachadas originales -varias veces intervenidas-.

Malecón Hue. La arquitecta mostró imágenes de este proyecto residencial ubicado en zona Güemes, caracterizado por una gran preocupación por el estudio climá co.

Antes de mostrar una úl ma obra, ya fuera de Mar del Plata, Pérez Maraviglia destacó la preocupación que siempre caracterizó al Estudio por ver qué equipamiento le falta a la ciudad y por recuperar espacios “dormidos”, como aconteció, por ejemplo, con el complejo Normandina. Esta polí ca busca establecer puntos de interés y de presencia que posicionen a la ciudad de Mar del Plata cada vez mejor dentro del país.

Emprendimiento Puerto Santa Fe. Esta úl ma obra presentada ene como objeto lograr la conexión entre el puerto y el centro de la ciudad de Santa Fe. Con un programa de casino, centro de convenciones y hotelería, se vale de conectores peatonales y u liza espacios del muelle y puerto. Es de interés la reu lización de los silos como hotelería y de los galpones como sector comercial. También la recomposición de los almacenes del puerto brinda un plus al proyecto.

MINI BIO: Estudio Mariani-Pérez Maraviglia

María Haydeé Pérez Maraviglia nació en Buenos Aires y obtuvo su tulo de arquitecta en la Facultad de Arquitectura y Urbanismo de la UBA en 1970. Conoció a Carlos Oscar Mariani (Mar del Plata, 1941-2008) cuando cursaba el tercer año de la facultad, en 1968, el mismo año que él se recibió de arquitecto. En 1970 se casaron y fundaron en la ciudad de Mar del Plata el estudio Mariani-Pérez Maraviglia Arquitectos. Ocuparon cargos direc vos en asociaciones profesionales y fueron miembros de los colegios nacionales de jurados y asesores de concursos. Entre los más destacados premios recibidos se cuentan: el primer premio por el proyecto del Hospital Nacional de Odontología (1970) y el primer premio por el Colegio de Escribanos de la provincia de Buenos Aires, en Mar del Plata (1980). Realizaron obras de gran significación para la ciudad de Mar del Plata, como el Aquarium del faro de Punta Mogotes, el Shopping Los Gallegos, asociados con el grupo PfZ Arquitectos, la Fundación Bolsa de Comercio, el Sheraton Hotel, la Iglesia San Benede o Már r, la Renovación del Área Casino-Paseo Hermitage y el Barrio Cerrado Rumencó. Actualmente, el estudio Mariani-Pérez Maraviglia Arquitectos está conformado por María Haydeé, Jerónimo Mariani, su hijo, egresado de la Facultad de Arquitectura de la UBA y Oscar Cañadas, egresado de la Facultad de Arquitectura de la Universidad de Mar del Plata. Recientemente terminaron el Hotel-Casino Puerto Sante Fe y actualmente enen en ejecución importantes obras.

CICLO GRATUITO DE CONFERENCIAS
65 capba IX CAPACITACION Y ACTUALIZACION PROFESIONAL
Malecón Hue Bolsa de Comercio

Nuevo si o web de capacitación

Se habilitó un nuevo si o como plataforma digital

La Comisión de Capacitación ha inaugurado el nuevo si o web des nado a la capacitación de los colegas del CAPBA IX, que reemplaza a la an gua Plataforma E-duca va.

Entender a la capacitación como un acto indispensable para la profundización y jerarquización del ejercicio profesional, nos ha llevado no sólo a la implementación de seminarios, cursos y charlas técnicas, sino también al debate, diseño y planificación de nuevas propuestas de formación.

Es por ello que, además de la u lización de medios de tele presencia en coincidencia con los lineamientos del Consejo Superior del CAPBA, esta comisión ha avanzado en la creación de plataformas de enseñanza y difusión de contenidos, como por ejemplo la Plataforma E-duca va. Profundizando este proyecto y considerando la disponibilidad de herramientas digitales que complementan los medios de e-learning (educación digital), se ha previsto como parte del Plan de Acción para el año 2015, la ampliación de instrumentos de acceso a la información, creando un canal YouTube, un si o web sobre plataforma libre, videos tutoriales, cursos virtuales y la publicación de contenidos en formato digital, entre otros.

Desde el mes de febrero, se encuentra habilitada la página web de la Comisión de Capacitación del CAPBA IX, en la que el matriculado podrá encontrar: próximas ac vidades; novedades; las presentaciones expuestas durante las charlas y cursos; además de material bibliográfico complementario; videos de las ac vidades; galerías fotográficas. Se podrá acceder a la misma en: http://capacitacioncapba9.wix.com/capacitacioncapba9

A su vez, los colegas profesionales también podrán acceder al canal de YouTube de la Comisión de Capacitación:

https://www.youtube.com/view_all_ playlists?sa=1&vmo= tle_desc&sf=name

En esta nueva plataforma, se podrá acceder a más de 35 ac vidades realizadas y elegir entre los 325 videos disponibles. A con nuación, el listado de charlas, cursos y ac vidades contenidas en el nuevo canal:

66 capba IX CAPACITACION Y ACTUALIZACION PROFESIONAL

Charla técnica sobre cómo implementar una arquitectura sostenible.

Charla técnica sobre Grou ng y Anclajes.

Charla técnica sobre Instalaciones domiciliarias de gas.

Charla técnica sobre Acús ca.

Charla técnica sobre fv -Grifería de alta tecnología.

Charla técnica sobre sistema construc vo Steel Framing.

Charla técnica sobre Instalaciones eléctricas.

Seminario internacional “Introducción a la patología en la construcción” (2014).

Charla comercial empresa Roca.

Charla técnica productos Cetol.

Charla técnica sobre Productos de medición Bosch.

Seminario Internacional “Introducción a la Patología en la Construcción” (2013).

Charla técnica sobre Construcción en seco Knauf.

Charla técnica sobre Revoque termoaislante Weber.

Charla capacitación Marco norma vo seguridad e higiene.

Charla capacitación Pro.Cre.Ar.

Charla técnica sobre Tecnologías an corrosivas.

Charla técnica sobre Ascensores para estacionamientos.

Conferencia dictada por el Arq. César Pelli.

Charla técnica sobre Acondicionamiento térmico Isover.

Charla informa va sobre Cobro de honorarios profesionales.

Charla “Los campos electromagné cos y la salud”.

Charla técnica sobre Pisos cemen cios Micro Cema.

Charla técnica Sika.

Curso Tasadores.

Charla informa va sobre Fideicomiso inmobiliario.

Charla técnica sobre Superboard.

Charla comercial empresa Alba.

Charla técnica sobre Acondicionamiento térmico.

Curso Paisajismo.

Curso sobre Contratos profesionales.

Curso sobre Costo previo.

La capacitación con nua y permanente, es un trabajo colabora vo, donde cada uno de los matriculados podemos aportar la jerarquización de nuestra profesión. Para ello, consideramos indispensable el acercamiento y la par cipación de los colegas en las dis ntas ac vidades que lleva adelante el CAPBA IX. Contamos con tu par cipación!

CAPACITACIÓN
67
Arq. Emilio Polo First Comisión Capacitación CAPBA IX

SketchUp 2014

Curso mul media en formato videotutorial

El CAPBA IX ha encargado el desarrollo de un curso en formato de videotutorial con el objeto de capacitar a sus matriculados en el uso de un so ware de diseño gráfico y modelado en 3D (tres dimensiones) que mejorará la presentación de sus tareas profesionales.

QUÉ ES SKETCHUP?

SketchUp es un programa de diseño gráfico y modelado tridimensional que permite construir y manipular todo po modelos 3D de forma sencilla y rápida. Con el Videotutorial del CAPBA XI, el alumno podrá aprender a u lizar todas sus herramientas en poco empo.

El programa presenta opciones de modelado, desde la creación de figuras geométricas básicas hasta la manipulación de vér ces y caras. Así como herramientas de materialidad, textura, iluminación o renderizado.

SketchUp permite exportar a dis ntos formatos gráficos para el renderizado (JPG, BMP, TIFF, PNG) y para objetos y escenas 3D (2D y 3DS, DEM, DDF, DWG, DXF, SKP). Además, la aplicación está pensada para subir modelos a Google Earth y así compar rlos con el resto de usuarios de este programa.

CUÁNDO COMIENZA EL CURSO?

Desde el mes de mayo se instrumentará el curso, en su nuevo formato, des nado a Arquitectos, Ingenieros, Diseñadores Industriales y de Interiores, paisajistas y estudiantes que quieran iniciarse en el modelado 3D.

El desarrollo de este curso es de 6 semanas, y se repe rá en la segunda mitad del año, logrando un dictado de 2 veces al año.

Este curso tendrá un arancel que amor zará los costos de su implementación, una vez que el colega efectúe el pago de dicho arancel el CAPBA IX habilitará su ingreso a la plataforma digital para el cursado online. El alumno habilitado tendrá acceso completo a los videos tutoriales, los que no podrán ser compar dos, ni transferidos, siendo propiedad del CAPBA IX.

EN QUÉ CONSISTE EL VIDEOTUTORIAL DE SKETCHUP?

Es un curso dinámico y entretenido que busca captar la atención de los alumnos con una mecánica teórico/prác ca par cipa va que con explicaciones claras y sencillas, relaciona todas las herramientas y aplicaciones, buscando mo var al alumnado con ejercicios inspiradores de ejemplos reales de diseño y arquitectura.

68 capba IX CAPACITACION Y ACTUALIZACION PROFESIONAL

o CONTENIDO:

31 Videotutoriales (de presentación, herramientas y ejercicios)

Imagen: full HD (1080 x 1920)

Sonido: profesional (16bit, 44100)

Formato: presentaciones animadas

Ejercicios prác cos: Para aplicar todas las herramientas aprendidas

500 Objetos Prediseñados

o DICTADO Y SEGUIMIENTO DEL CURSO

MODALIDAD: A distancia, y asincrónicas lo cual implica que los alumnos pueden organizar su par cipación de acuerdo a su disponibilidad personal y laboral, sin necesidad de tener horarios fijos y pautados. Videoturoriales guiados por el tutor quien acompaña al alumno explicándole los temas. Ejercicios prác cos para ir transfiriendo lo aprendido. Foros de debate para compar r experiencias y comentarios entre los alumnos. Foro de consultas para que los alumnos puedan evacuar dudas.

DURACIÓN: 6 módulos semanales de 5 videos c/u.

ALUMNOS: 30 can dad máxima recomendada.

SEGUIMIENTO: 2 hs. semanales, a través de la plataforma virtual.

CERTIFICADO: Diploma de asistencia al Curso.

DOCENTE Y AUTOR DEL CURSO VIRTUAL: Arq. Diego Rodríguez. Facilitador de herramientas y metodologías de trabajo para representaciones digitales.

CAPACITACIÓN 69
Arq. Julio Alaniz Comisión de Capacitación CAPBA IX

Lina Bo Bardi, cuando el racionalismo toca erra (americana)

La ortodoxia elabora reglas y regimenta las artes, pero nunca brinda comodidad. Ser ortodoxo ayuda a entrar en los libros de historia en cualquiera de las artes, pero rara vez una obra clásica es amable con el ciudadano. Hay que ser un verdadero maestro para entender a fondo las leyes formales de cualquier movimiento y saber cómo distorsionarlas para lograr ese confort que hace que una casa sea vivible, para encontrar el umbral entre la racionalidad universal que viene proponiéndose desde la Ilustración y la belleza proveniente de las par cularidades de cada región del planeta.

Lina Bo Bardi, arquitecta nacida en Roma en 1914 y emigrada a Brasil en 1946, supo cruzar ese umbral. Como caso ejemplar de esa ac tud podemos hablar de la Casa de Vidrio diseñada y construida por y para ella y su esposo en San Pablo en 1951, solamente un año posterior a la casa Farnsworth de Mies –el paradigma de la casa de cristal- y que antecede en cinco años a la fusión musical que iba a poner a Brasil en el centro del mundo, la bossa nova, con quien comparte un “espíritu de la época” brasilero: la encantadora mezcla entre universal y par cular.

Esta propuesta proyectual fue el resultado de una búsqueda intelectual consciente y premeditada, como se observa en cada proyecto, obra construida o texto como éste de Lina: “La arquitectura es creada, ‘inventada de nuevo’, por cada hombre que anda en ella, que recorre el espacio, subiendo una escalera, o descansando sobre una balaustrada, levantando la cabeza para mirar, abrir, cerrar una puerta, sentarse o levantarse y tomar un contacto ín mo y al mismo empo crear ‘formas’ en el espacio; el ritual primigenio del cual nació la danza, primera expresión de lo que será el arte dramá co. Ese contacto ín mo, ardiente, que era percibido por el hombre en el comienzo es hoy olvidado. La ru na y los lugares comunes hicieron olvidar al hombre de la belleza natural de su ‘moverse en el espacio’, de su movimiento consciente, de los mínimos gestos, de la menor ac tud…”

De un primer vistazo la Casa de Vidrio, según Marcelo Carvalho Ferraz “aquario de vidro no meio da mata”, es, como su nombre lo describe una caja de vidrio. Esta idea nos remite a los más paradigmá cos ejemplos de los maestros del Movimiento Moderno y comprendemos de donde Lina asimiló sus preceptos.

Aquello que dis ngue a esta obra y le pone sello propio, es la manera en que Lina toma las pautas de ese Movimiento y no sólo ene en cuenta el entorno sico como dato para la implantación, sino que además considera el carácter del si o como iden dad regional.

La Casa de Vidrio se encuentra en São Paulo, cuyo Estado es ocupado en un 80% por la Mata Atlán ca. Emplazada en un terreno en pendiente en el Jardim Morumbí, Lina construye la llegada sinuosa para mostrar la suspendida caja de vidrio en escorzo la cual parece volar sobre la foresta.

Este recurso de recorrido perceptual -u lizado desde la an güedad clásica hasta Mies- nos ayuda a reconocer la idea de la casa: dos planos soportados por una delgada estructura pintada de verde para que se asemeje a los árboles que la separa del rugoso suelo. Los planos están perforados por la escalera y por un espacio que da paso a la inmensurable naturaleza brasilera haciéndola presente desde todos los ángulos de la vivienda.

Así nos presenta hacia un lado su ventana corrida desde donde se observa el paisaje y en su profundidad la losa quebrada que cubre la zona principal de la casa, tanto pública como privada. Esta forma par cular de la cubierta, más allá de razones estructurales, remite a la tradicional cubierta a dos aguas del arque po de casa.

Aunque lo más singular y desafiante de la idea de Lina frente a los preceptos modernos es la decisión de encerrar ciertos usos de la vivienda y anclarlos en la pendiente del terreno, dando la sensación de ser éste el contrapeso necesario para que aquello que vuela, no abandone el si o para el que fue creado.

70 capba IX PROGRAMA COMUNICACIONAL
A 100 años del nacimiento de una arquitecta y pensadora que supo ver lo mejor de dos mundos.

Estas dis ntas respuestas al si o no quedan disociadas una de la otra, sino que se vinculan a través de un pa o/nexo entre lo aferrado a la roca y lo suspendido sobre la foresta. La sucesión espacial de abierto a cerrado y de cerrado a abierto se traduce en la escalera que resuelve liviana en el semicubierto y en la medida que se llega a la planta alta se encierra entre muros, controlando y acotando el espacio para luego abrirse y descubrir la fluidez espacial de la parte social de la vivienda. Esta sucesión nos recuerda al pasaje que se produce en la peculiar escalera de la Casa Sobre el Arroyo (Williams, 1943) desde los acotados semicubiertos de acceso hacia la galería criolla que Amancio nos propone en un primer piso junto a la copa de los robles. Ambos aprenden de los griegos: de un afuera a otro afuera.

No duda en incorporar vivos colores, rojos encendidos cerrando los laterales de la caja que se acerca a la ladera, verdes chillones en cocina y servicios, en contraste con la blancura de los planos horizontales. El brillo del solado en las salas principales, dado por un azul de venecita, da idea de reflejos infinitos que se funden en el paisaje desdibujando el límite entre interior y exterior. Esto se acentúa por la separación entre carpinterías y estructura que definen el espacio de “varanda”1, aunque todo sea espacio interior o todo espacio exterior en el caso de abrir las carpinterías.

En la biblioteca, las estanterías y sus estructuras parecen no querer estorbar la con nuidad espacial propuesta y se resuelven con estructuras metálicas de piso a techo y estantes vidriados, los libros parecen suspendidos en el espacio. Este recurso de desmaterialización Lina luego lo usará en otra de sus obras maestras: en el Museu de Arte de São Paulo, el modo de exponer las obras son apenas mojones de concreto con superficies vidriadas ancladas a los mismos, de manera de no contaminar la propuesta espacial del edificio con los soportes de exposición.

Todo define la idea de lo elevado, lo su l, lo etéreo, que resulta en la materialización de las losas que albergan las ac vidades en esta cualidad espacial que Lina llama “o pavilhão”2. A contrapunto de esto, y más amurallado, se encuentran dispuestos en ras los espacios repe vos privados y de servicio, lo que ella llama “o recinto”3, que cons tuye el cable a erra de la idea. Es donde la vivienda primero se apoya y luego se arraiga en el morro.

Estas ras abren o cierran sus extremos de acuerdo a la orientación y a las ac vidades. La primera, con lo privado, todavía se cobija bajo la losa quebrada aunque ya se limita con muros de mampostería cuyo filo exterior coincide con las carpinterías. La segunda se define en un volumen independiente y neto que con ene apenas las aberturas necesarias para el control de la luz y la circulación del aire. El cobijo necesario para recordar que el hombre además de admirar la naturaleza debe protegerse de ella.

El pabellón (lo suspendido) y el recinto (lo amurallado) dialogan a través de un pa o. Esta caracterís ca, que se repite en varias de sus obras, es aquello que la diferencia de sus contemporáneos. Consciente de la necesidad de ambas

HOMENAJE
Casa de Vidrio, Sao Paulo, 1958- Relación entre suelo y pabellón. Casa de Vidrio, Sao Paulo, 1958- Planta baja.
71 capba IX PROGRAMA COMUNICACIONAL
Casa de Vidrio, Sao Paulo, 1958- Planta alta.

cosas para construir una idea, “ella prefería mantenerse en una posición híbrida”4 que le brinda flexibilidad para responder al si o: encerrada, casi mimé ca, donde se acerca al terreno y por otra parte dominante, dialéc ca, donde se aleja del suelo para dominar el paisaje.

Esta sola obra haría que Lina fuera una arquitecta de consideración, pero entre la mul tud de proyectos que realiza se encuentran al menos otras dos obras maestras: el Museu de Arte de São Paulo, São Paulo, 1958 y la SESC Pompéia - Fábrica, São Paulo, 1977-1990.

El Museu de Arte de São Paulo es un prisma levantado ocho metros sobre el nivel del suelo, con más de setenta metros de luz entre las columnas que lo sos enen. Durante muchos años fue la planta libre más grande del mundo. Lo que podría haber sido la repe ción de un prisma miesiano –simultáneo en el empo con el edificio Seagram de Mies, en New York, terminado ese mismo 1958- se transforma en manos de Lina en un balcón a la ciudad, con frente a la avenida Paulista y fondo a la avenida 9 de julio, cuyo importante desnivel entre ambas es salvado por un basamento de servicios y una escalinata pública, en una respuesta topográfica que recuerda a la idea de Clorindo Testa para la Biblioteca Nacional en Buenos Aires, proyectada tres años después. En este edificio Lina Bo Bardi “levanta” literalmente la sala de exposiciones para brindar al nivel cero un gran semicubierto de uso público y popular, espacio que representa sus ideales y postura acompañando a las vanguardias de los años ´60. Nuevamente aparece el pabellón, suspendido y por debajo lo cerrado, lo contenido y entre estos dos conceptos espaciales un si o jerarquizado y a la vez con nuo con el resto del espacio público. Podríamos decir que es el soporte espacial por excelencia de estos nuevos pensamientos.

La SESC Pompeia, es un edificio comunitario perteneciente al Servicio Social de Comercio, ubicado en la ciudad de São Paulo y emplazado sobre el terreno de una vieja fábrica de barriles de petróleo. Así como en los años ´50 Lina había

sabido mixturar lo mejor del racionalismo internacional con el contexto local, al final de los ´70 supo tomar lo más valioso de la crí ca posmoderna –el valor del contexto urbano, el uso de las preexistencias, el concepto de ruina- y sumarlo al progresismo modernista para lograr un edificio-territorio diseñado para la gente. Un edificio que ella misma definió varios años después como “un experimento socialista”, donde lo importante es el uso que le dan los habitantes del lugar y no la belleza este zante para salir en revistas de arquitectura.

Lina también diseñó muebles, aplicando la misma visión heterodoxa que sigue vigente: La marca italiana de mobiliario Arper ha puesto recientemente en producción la Silla Bowl diseñada por Lina en 1951, un mueble que implica una visión mucho más relajada del acto de sentarse. ¿De donde salió esta mujer que se atrevió a tanto? Había estudiado arquitectura en Roma, en los ´30, y luego se trasladó a Milán, donde trabajó en varias aventuras editoriales con Gio Ponti. También conoce allí a Bruno Zevi, hoy bastante olvidado, quien fue uno de los arquitectos fundadores de la crí ca modernista y prác camente inventor de la dicotomía racionalismo-organicismo, que Lina pudo ensamblar tan hábilmente en su experiencia brasilera.

No fue una arquitecta encerrada en su torre de cristal: durante la ocupación alemana de Italia, en la Segunda Guerra Mundial, perteneció a la Resistencia a través del Par do Comunista y en Brasil, enfrentó varias veces a la dictadura militar brasilera. En el más severo de estos choques, tuvo que abandonar velozmente la ciudad de Bahía, donde estaba trabajando en un proyecto de Universidad Popular que no era del agrado del entonces gobierno de facto. En ese momento ella dirigía el Museu de Arte da Bahía, y como forma de presión la dictadura la obligó a prestar sus instalaciones para una muestra sobre la subversión. Lina no tuvo más remedio que ceder

72
Museo de Arte de Sao Paulo, 1958. Plaza de acceso. Museo de Arte de Sao Paulo, 1958. Dibujo original de Lina Bo Bardi.

el Museo para dicho fin, pero al día siguiente renunció y emigró de Bahía. No sólo dejaba atrás un lugar que amaba sino una serie de interesantes proyectos ins tucionales (la Universidad Popular) y arquitectónicos (la Residência do Administrador do Unhão) que nunca se concretaron.

Tal vez lo más interesante de Lina sea su duc lidad para enfrentar situaciones nuevas munida del rico bagaje teórico que ya proveía la Modernidad pero dispuesta a encontrarle nuevas aplicaciones, a forzarlo sin dogma smo hasta que la respuesta correcta apareciera. Así, nada es puro y ortodoxo en su arquitectura: la parte pública de la casa de Vidrio flota en el paisaje, mientras la parte privada se hunde en el morro. El prisma del Museu de Arte de São Paulo aspira formas platónicas, pero su plaza pública respira aires populares. Una especialista dice que “en la obra de Lina Bo Bardi, esa combinación de extremos es frecuente, ya que su proceso de proyecto contrapone una materia-forma específica a su propio inverso, como el cierre del muro de piedra y la ausencia de vidrio, la madera densa y la tela japonesa, el exterior y el interior, el pabellón y el recinto.”5

Decíamos al principio que la arquitectura brasileña de Lina había nacido casi junto a la bossa nova. Un crí co de música dice que este ritmo “Recogió los rasgos del samba callejero, estridente y carnavalesco pero suavizado y refinado… Surgieron nuevas y sofis cadas armonías, con irregularidades que tenían una relación directa con el espíritu de la música de posguerra estadounidense aunque su caracterís ca principal es su ritmo de raíz carioca”. La arquitectura de Lina Bo Bardi trabaja en lo mejor de esa tradición de fusión, brindando un ejemplo del cual todavía tenemos mucho que aprender.

Lina se tomó licencias, se permi ó transgresiones y convir ó la arquitectura moderna en una arquitectura regional de vanguardia, haciendo de la arquitectura un hecho social y cultural en el mejor sen do de estos conceptos. Podemos seguir aprendiendo de ella.

Arquitectos Claudia Cutrera y Guillermo Bengoa

Arq. Especialista en Paisaje | Profesora Adjunta, área proyectual Arq. Mg. en Ges ón Ambiental |Profesor Adjunto, área histórica Facultad de Arquitectura, Urbanismo y Diseño. UNMdP

Fuentes de las imágenes:

Imagen 1: © Usuario de Flickr: adilson moreira

Imagen 2 y 3: h p://diegocarrascoarquitectura.blogspot.com. ar/2011/02/casa-de-vidrio-planos-y-secciones.html

Imagen 4 y 6 : © Iñigo Bujedo Aguirre

Imagen 5 y 7: Cortesia de Ins tuto Lina Bo e P. M. Bardi

Notas

1 “varanda” palabra portuguesa que significa galería o semicubierto.

2 “o pavilhão” expresión portuguesa que significa pabellón. Con este concepto Lina hace alusión a lo elevado, al podio, lo que se reconoce como el piano nobile de la obra.

3 “o recinto” expresión portuguesa que se traduce como espacio más controlado y cerrado. Definido por una caja muraria y aberturas que acentúan la expresión de ese cerramiento.

4 Olivia de Oliveira nos explica que la obra de Lina no se puede reducir a una de esas dos posiciones o modelos, pero sí que es el resultado de una hibridación entre «por un lado, la casa natural» y mimética, evidentemente inspira Casa do Chame-Chame, y por otro, la casa ‘no-natural’ que (...) hace referencia a su propia residencia. Sin embargo ninguna de las dos casas de Lina se puede reducir a sólo unos de esos modelos. Son híbridas e incorporan, al mismo empo, ambos modelos, que Lina considera no excluyentes ni opuestos.» OLIVEIRA, Olivia de, (2006) Op. cit. nota nº 3, p. 96. Citado en: Zollinger, Carla “Lina Bo Bardi. La residencia del administrador de Unhao: un pabellón y un recinto diseñados en 1942” publicado en Perspec vas urbanas = Urban perspec ves, ISSN-e 1695-534X, Nº. 10, 2009, 15 págs. disponible en h p://www.etsav.upc.es/ urbpersp/num10/index.htm

5 Zollinger, Carla obra citada

HOMENAJE
Centro SESC, Sao Paulo, 1977/1990. Calle interior. Sillón Bowl, 1951.
73

Convocatoria a Arquitectos para publicación de notas en la Revista Info CAPBA IX

Mar del Plata, 1º de marzo de 2015.

La Revista Info CAPBA IX, publicación trimestral del Colegio de Arquitectos de la Provincia de Buenos Aires, Distrito IX, con sede en Dorrego 1657 de la ciudad cabecera distrital, Mar del Plata, Argen na, da a conocer su:

CONVOCATORIA PERMANENTE

A arquitectos radicados en el área del Distrito IX para la publicación de obras de arquitectura ejecutadas en el distrito; así como también ar culos de interés relacionados a la profesión.

1. SOBRE LOS ARTÍCULOS REFERIDOS A OBRAS DE ARQUITECTURA

Info CAPBA IX publica desde su aparición (Nº 1 en noviembre de 2012) al menos 2 obras de arquitectura por edición. Las mismas refieren, una, a vivienda –ya sea esta unifamiliar o mul familiar- y la otra, a los demás pos de obra: hotelera, comercial, servicios, salud, recreación, deporte, culto, funeraria, etc.)

Es requisito para poder publicar una obra en Info CAPBA IX, que:

 La misma esté terminada o ejecutada en un 80% a la fecha de publicación.

 El profesional responsable, o al menos un profesional del equipo a cargo de la obra, posea condición de matriculado ac vo en el distrito.

 La obra cuente con contrato visado por el Colegio Profesional.

 La obra haya sido concluida en un plazo no mayor a 5 años.

 El Colegio pueda contar con la autorización expresa del comitente y/o propietario actual de la obra para su publicación (ya sea por teléfono, mail, nota/carta firmada, fax, u otro).

Cualquier excepción a los puntos precedentes será evaluada y autorizada sólo por el Consejo Editorial de Info CAPBA IX.

Pautas base para la elaboración de ar culos de difusión de Obras de arquitectura:

Extensión máxima aconsejable de hasta 4 carillas A4 y hasta 5 piezas gráficas (fotogra as, renders, croquis, etc.), más documentación planimétrica básica para la comprensión de la obra de acuerdo a lo usual en revistas de divulgación (plantas, cortes, procurando suplir las vistas con imágenes fotográficas o maquetas volumétricas). El consejo editor se reserva el derecho de seleccionar cuáles piezas gráficas entrarán en la publicación y cuáles quedaran descartadas en razón del espacio disponible.

Las imágenes y/o gráficos tendrán una extensión no menor de 7 x 7 cm en formato JPG de 300 dpi.

El texto, a modo de memoria descrip va, será presentado en archivo Word, tamaño A4, Fuente Calibri, tamaño 11 puntos, interlineado 1,15. Acompañado del nombre completo del/os autor/es y el tratamiento (arq., mg. arq., cargo, etc.) que se quiera acompañe las firmas.

La memoria tratará de transmi r los puntos más destacados de la obra, las condicionantes del programa y aquello lo que el autor considere relevante, junto con una ficha técnica que básicamente consta de la enumeración de: proyec stas, colaboradores, superficies, empresa constructora y/o contra stas, inicio y finalización de la obra, etc.

74 capba IX PROGRAMA COMUNICACIONAL

h ps://www.facebook.com/pages/Info-CAPBA-IX/

2. SOBRE

LOS ARTÍCULOS REFERIDOS A TEMAS DE INTERÉS PROFESIONAL

Info CAPBA IX publica en cada edición, ar culos de interés para los profesionales de la arquitectura, referidos a cursos, congresos, eventos, ciclos de formación, temas de seguridad e higiene, desarrollo urbano, patrimonio, tecnología, accesibilidad, sustentabilidad, y diversos tópicos que hacen a la formación e información de la matrícula.

Es requisito para poder publicar una nota de interés en Info CAPBA IX, que:

 Las mismas sean inéditas y cuadren dentro de los siguientes ejes temá cos de la revista: Ejercicio Profesional, Ges ón del Desarrollo Urbano Sustentable, Capacitación, Programa Comunicacional, Inserción Profesional, Fortalecimiento y Vínculos Interins tucionales.

 El Consejo Editor considere que la misma es per nente, actual y de interés para los profesionales.

 Las notas de interés no requerirán que sus autores –profesionales arquitectos- estén matriculados y en condición ac va.

Pautas base para la elaboración de ar culos de interés: Extensión aconsejable entre 2 y 4 carillas A4 y hasta 4 piezas gráficas (fotogra as, tablas, croquis, cuadros, afiches, etc)

Las imágenes y/o gráficos tendrán una extensión no menor de 7 x 7 cm en formato JPG de 300 dpi.

3. GENERALIDADES Y ENVÍO

El Consejo Editor de Info CAPBA IX se reserva el derecho de aceptar o no para su publicación el material recibido.

Asimismo Info CAPBA IX deja aclarado que los autores son responsables por el contenido y los puntos de vista expresados, los cuales no necesariamente deben coincidir con el Consejo Editor.

En caso de aceptar el material para su publicación y considerar que requiera modificaciones, el Consejo Editorial podrá hacerlas, enviando luego el ar culo modificado a su autor para obtener el consen miento previo a su publicación.

Los ar culos deben ser enviados directamente al Consejo Editor de Info CAPBA IX, por correo electrónico a info.capba9@ capba9.org.ar con copia a info.capba@gmail.com aclarando en el asunto el tema o haciendo referencia a la Revista. En el mail deberá agregarse un teléfono de contacto.

Consejo Editor

Info CAPBA IX

PUBLICACIONES
75

Presentación de libro:

“Plazas Fundacionales de Mar del Plata, en busca del paraíso”

Con la Casa del Puente como escenario, fue presentado el pasado 2 de noviembre el libro “Plazas Fundacionales de Mar del Plata, en busca del paraíso”, de la Licenciada en Bibliotecología y Documentación e historiadora Marta Lamas. Una segunda oportunidad de escuchar su presentación tuvo lugar en la Feria del Libro ‘Mar del Plata Puerto de Lectura’ unos días más tarde, en fecha 20 del mismo mes.

La autora desarrolla en esta publicación la historia de los espacios públicos marplatenses, abarcando las siete Plazas Fundacionales del primi vo poblado y la creación de los parques costeros que enmarcan la clásica postal de playa, rocas, mar y vegetación de la ciudad balnearia. El libro –de 197 páginas, con textos y fotogra as- se inicia con una breve referencia a los diferentes roles de las plazas como espacios públicos de encuentro, que fueron evolucionando con la historia misma de los asentamientos, pueblos y ciudades en las que se hallaban insertas.

Desde los primi vos “huecos” de los que se enen referencias, las ágoras de la an gua Grecia, las plazas medievales en su rol de mercados y si os de reuniones populares por varios siglos, llegando a la histórica plaza mayor y el paso a espacios ajardinados y de contemplación.

Entrando en la historia local, resalta la importancia que desde el trazado del poblado en 1874 se dio a la inclusión de espacios verdes y las propuestas surgidas en dis ntas inicia vas comunales.

En principio fueron siete plazas, “las fundacionales”, que se diseñaron en el plano, aunque por la escasa población fueron tenidas en cuenta en los primeros años sólo las que se encontraban entre las actuales avenidas Independencia, Colón, Libertad y la costa, que merecieron la atención de las autoridades y lugareños.

En la medida en que se fue urbanizando y pasó a ser Par do de General Pueyrredon y ciudad, las plazas fueron escenarios de diversas ac vidades, con instalaciones depor vas, de entretenimientos y varias de ellas con viveros para la provisión de árboles, plantas y flores para calles, parques y otras plazas.

Asimismo, a través de una cronología rastreada desde de las Actas Liminares y Bole nes Municipales, surgen los nombres con que fueron llamadas a través de los años las siete plazas, siendo la Plaza España la única que no cambió su denominación original.

A par r de allí, se describe en par cular cada una y sus diversos roles, las transformaciones del diseño y la mención de las construcciones más significa vas en los barrios que las con enen.

©Patricia Bein
76 capba IX PROGRAMA COMUNICACIONAL

Se introduce luego en la evolución del poblado hacia la villa balnearia y la creación de los parques costeros y explanadas, a cargo de diversas Asociaciones de vecinos y veraneantes que elaboraron proyectos sobre el embellecimiento costero, diseñados los más importantes por el paisajista francés Charles Thays. Se destaca el rol que tuvieron en la expansión del turismo y en la construcción de mansiones veraniegas a lo largo de la ribera.

El trazado de las actuales diagonales Pueyrredon y Alberdi se debe a que debajo de ellas corre entubado el Arroyo de las Chacras a cuya vera se instaló el Saladero, describiéndose el entubado del mismo en diversas etapas, que causó por varios años serios problemas de inundaciones en la zona céntrica, hasta llegar a su actual fisonomía.

Con ene además esta publicación un capítulo sobre evolución del arbolado urbano y otro sobre las estatuas

y monumentos más destacados, con la aclaración de que el vandalismo y falta de información sobre el traslado en muchos casos, impiden una exacta información de su des no.

Se incluye asimismo un ítem con el tulo “Llegada al mar”, con una breve reseña sobre el momento histórico de la instalación de un poblado en la costa, diferenciándose de los hasta entonces pueblos pampeanos que de a poco se iban creando en la provincia de Buenos Aires.

Cabe destacar que esta publicación desarrolla una parte de la historia local que no se encontraba compilada en un solo texto, de manera que su interés reside en un recorrido los espacios verdes más destacados hasta la década del ’30 inclusive. Principalmente de las Plazas Fundacionales que, como destaca su autora, junto con la capilla de Santa Cecilia son los únicos referentes patrimoniales en pie desde el trazado del poblado.

PRESENTACIÓN DE LIBRO
77
Reformas en la década del ‘30, Plaza Mitre y Plaza San Mar n

Ges ón de FADEA en pos del reconocimiento de la incumbencia en Higiene y Seguridad en la Construcción

La Federación Argen na de En dades de Arquitectos -FADEApresentó a la Superintendencia de Riesgos de Trabajo, durante el año 2014, un pedido de derogación de la Resolución 1830/05. La misma exige a los arquitectos formación de Posgrado para la ejecución de tareas referentes a Higiene y Seguridad en la Construcción, y por lo tanto incurre en contradicción con las incumbencias profesionales reconocidas con el tulo de grado por el Ministerio de Educación. Presentamos la nota con que se dio apertura a la ges ón.

capba IX INSERCIÓN PROFESIONAL 78

2 de junio de 2014

Por medio de la presente, reunidos los representantes de las Facultades de Arquitectura Públicas y Privadas conjuntamente con las en dades miembros de la Federación Argen na de En dades de Arquitectos (FADEA) manifestamos:

En referencia a las consideraciones planteadas en la Resolución N° 498/06 del Ministerio de Educación de la Nación, donde claramente se establecen las veinte (20) incumbencias correspondientes al tulo de grado para Arquitectos determinando explícitamente que es parte de Nuestro Ejercicio Profesional pleno todo lo ateniente a la Higiene y Seguridad en la Construcción, nos preocupa la vigencia de la Resolución N° 1830/05 establecida por la Superintendencia de Riesgos del Trabajo de la Nación (SRT), que en arbitraria contradicción considera para el ejercicio de la Higiene y Seguridad por parte de los Arquitectos que se deba recurrir obligadamente a una formación de Posgrado no menor a 400 horas.

La situación citada lesiona gravemente y desconoce tanto el ejercicio pleno de los Arquitectos, así como, la formación de grado que imparten las Universidades.

En el caso de los Colegios Profesionales impide su condición de regulación en el ejercicio Pleno de la Profesión, lesionando a estos colegios como en dades de Ley en su esencia.

Es menester aclarar que las Universidades a través de la Autarquía que ejercen en la administración académica de sus planes de estudio y de sus respec vas acreditaciones a CONEAU dieron clara respuesta a la incumbencia citada desde la integralidad y transversalidad de los contenidos en los planes vigentes que garan zan con creces los conocimientos per nentes para el ejercicio de la mencionada en todo el territorio nacional.

Es loable aclarar que según la Ley N° 24591/95 denominada Ley de Educación Superior, versa taxa vamente que “Cuando se trate de tulos correspondientes a profesiones reguladas por el Estado, cuyo ejercicio pudiera comprometer el interés público poniendo en riego de modo directo la salud, la seguridad, los derechos, los bienes o la formación de los habitantes, se requerirá que se respeten, además de la carga horaria a la que hace referencia el ar culo anterior, los siguientes requisitos:

a) Los planes de estudio deberán tener en cuenta los contenidos curriculares básicos y los criterios sobre intensidad de la formación prác ca que establezca el Ministerio de Cultura y Educación, en acuerdo con el Consejo de Universidades.

b) Las carreras respec vas deberán ser acreditadas periódicamente por la Comisión Nacional de Evaluación y Acreditación Universitaria o por en dades privadas cons tuidas con ese fin debidamente reconocidas.”

El Ministerio de Cultura y Educación determinará con criterio restric vo, en acuerdo con el Consejo de Universidades, la nómina de tales tulos, así como las ac vidades profesionales reservadas exclusivamente para ellos, siendo esta, condición suficiente de una norma va con mayor jerarquía que faculta a la CONEAU en las acreditaciones mencionadas.

Dado el plausible compromiso social de las Universidades en la formación de profesionales y que en este caso, según lo manifestado anteriormente se estaría incurriendo en una inconsistencia é ca entre la formación y el ejercicio pleno de la Profesión, considerando que los arquitectos se ven impedidos de ejercer la incumbencia para la que fueron formados.

Según todo lo expresado formalmente solicitamos que se derogue la Resolución N° 1830/05 en su totalidad y/o cualquier otra forma de similar jerarquía que refiera a una condición limita va o excluyente de nuestras incumbencias.

Sin otro par cular saludamos a e.

INCUMBENCIAS PROFESIONALES
Sr. Superintendente de Riesgos del Trabajo Arq. Marta Ruarte Presidente FADEA Arq. José Luis Sala Vice Decano Facultad de Arquitectura y Urbanismo Universidad Nacional de Tucumán Representando Universidades Públicas Presentes
capba IX INSERCIÓN PROFESIONAL 79
Arq. Fernando Pini Vice Decano Facultad de Arquitectura, Diseño, Arte y Urbanismo - Universidad de Morón Representando Universidades Privadas Presentes

La ac vidad profesional en el Distrito IX

Se han analizado compara vamente los ingresos de metros cuadrados de los úl mos seis semestres consecu vos, correspondientes al 1º semestre (s.) del año 2012 y el úl mo al 2º s. del año 2014. Y en ese sen do se puede inferir que si tomamos el promedio semestral (347.122 m2) tres de estos períodos registran valores superiores, siendo el que mayor incidencia representa el 1º semestre del año 2014 en el que han ingresado un total de 462.458 m2. Es necesario mencionar que este valor se ha incrementado tan significa vamente

por la presentación de tres obras, las que en conjunto representan un total de 92.480 m2, y corresponden a: la categoría de vivienda unifamiliar categoría superior con 44.335 m2 des nado a la ampliación de un barrio cerrado; otra al rubro hotelería con 32.712 m2; y la úl ma al rubro administración, con 15.433 m2.

Si se analizan los semestres nuevamente quitando estas tres obras se puede decir que se man ene la tendencia que sos ene el incremento por encima del

promedio, el 2º s. del 2012, el 2º s. del 2013 y el 1º s. del 2014. Dándose siempre la más baja performance en el 1º s. del 2012. Por lo que se puede observar que la tendencia es a la baja.

Según el gráfico correspondiente, la can dad de metros cuadrados mensuales presentados para el año 2014 muestra que el 1º cuatrimestre es el único en los que se superó el promedio mensual, manteniéndose el resto de los meses subsiguientes con valores por debajo.

Proyecto Tipo de Obra, en monto de obra Tipo de Obra $ Vivienda de general 1.436.769.473,00 Hotelería 38.642.700,00 Comercio 36.771.542,00 Administración 35.261.373,00 Industria 27.714.037,00 Cochera 24.001.419,00 Deporte, Educación, cultura 8.826.073,00 Instalaciones 3.367.345,00 Gastromomía 3.294.880,00 Estructuras 2.942.658,00 Espacios Urbanos 2.797.557,00 Salud 1.364.776,00 Otros 405.580,00 Total 1.622.159.413,00 Proyecto Vivienda, en monto de obra Tipo Vivienda $ Unifamiliar categ. Superior 328.082.134,00 Mul familiar más 4 Pisos 232.720.351,00 Mul familiar Hasta 4 Pisos 229.384.255,00 Unifamiliar Suntuosa 83.453.885,00 Unifamiliar hasta 100 m2 71.950.113,00 Piscinas 4.610.553,00 Total 950.201.291,00 Proyecto Vivienda, en metros cuadrados Tipo Vivienda m2 Unifamiliar categ. Superior 67.402 Mul familiar + de 4 Pisos 64.749 Mul familiar Hasta 4 Pisos 60.883 Unifamiliar hasta 100 m2 19.560 Unifamiliar Suntuosa 14.158 Piscinas 1.808 Total 228.560 Vivienda de general Hotelería Comercio Administración Industria Cochera Deporte, Educación, cultura Instalaciones Gastromomía Estructuras Espacios Urbanos Salud Otros Unifamiliar categ. Superior Mul familiar más 4 Pisos Mul familiar hasta 4 Pisos Unifamiliar Suntuosa Unifamiliar hasta 100 m2 Piscinas Unifamiliar categ. Superior Mul familiar más 4 Pisos Mul familiar hasta 4 Pisos Unifamiliar hasta 100 m2 Unifamiliar Suntuosa Piscinas 88,57% 2,38% 2,27% 2,17% 1,71% 1,48% 0,54% 0,21% 0,20% 0,18% 0,17% 0,08% 0,03% 34,53% 24,49% 24,14% 8,78% 7,57% 0,49% 29,49% 28,33% 26,64% 8,56% 6,19% 0,79%
capba IX INSERCIÓN PROFESIONAL 80
Estadís cas en base a tareas profesionales presentadas en el 2° semestre del 2014

Con nuando con el monitoreo de la ac vidad profesional en el Distrito se han elaborado las estadís cas correspondientes al segundo semestre del año 2014, y se han establecido las pautas compara vas de variación inter anual para visualizar la evolución de la ac vidad en el Distrito.

En lo que respecta al comportamiento mensual la mejor performance ha sido la del mes de marzo con 129.443 m2, y le siguen en orden de ingresos los meses de enero con 91.343 m2 y febrero con 84.856 m2. Observándose un marcado decrecimiento hacia finales del año, pero con una tendencia en alza en el úl mo mes.

El Proyecto por po de Obra en metros cuadrados ha sufrido un descenso general interanual del 21%. Dentro del ítem la vivienda

concentra el 79,22% y la caída es del 18%. Le siguen las caídas de los ítems: Industria con un descenso del 43%, las cocheras con el 33% y el comercio con el 52%. Estos cuatro rubros concentran el total del 90,89% que se produce en el rubro. El volumen de obra del rubro vivienda, en todas sus categorías, ha registrado un total de metros cuadrados de 228.560 m2. Siendo variable el comportamiento de las categorías dentro del rubro. El desagregado muestra que en: la

categoría Unifamiliar superior ha descendido un 16% interanual La categoría Mul familiar de + de 4 pisos ha descendido un 31%; la de Mul familiar de hasta 4 pisos descendió un 10%; la Unifamiliar hasta 100 m2 descendió un 7%. Mientras que las dos siguientes categorías analizadas han incrementado sus valores. Estas corresponden a la categoría Unifamiliar suntuosa con un 8% y Piscinas con un 72%, de crecimiento interanual respec vamente.

ESTADÍSTICAS
Informe Técnico por Tipo de Obra, en monto de obra Tipo de Obra $ Vivienda en General 201.373.138,00 Mantenimiento de Fachada 150.176.098,00 Industria 36.523.881,00 Comercio 11.357.521,00 Administración 5.310.027,00 Educación, cultura, culto 5.006.851,00 Gastronomía 2.782.292,00 Instalaciones 1.442.696,00 Cochera 297.680,00 Cartelería 270.670,00 Estructuras 252.900,00 Salud 132.000,00 Total 414.925.754,00 Proyecto Tipo de Obra, en metros cuadrados Tipo de Obra m2 Vivienda de general 228.560 Industria 12.337 Cochera 10.759 Comercio 10.571 Hotelería 10.188 Administración 9.846 Estructuras 3.270 Deporte, Educacuón Cultura 1.834 Gastromomía 762 Salud 301 Otros 68 Total 288.496 Informe Técnico por Tipo de Obra, en metros2 Tipo de Obra m2 Vivienda de general 40.243 Industria 26.839 Comercio 2.287 Educación, Cultura, Culto 765 Gastronomía 645 Hotelería 486 Administración 457 Cochera 136 Salud 105 Total 71.963 Vivienda en General Mantenimiento de Fachada Industria Comercio Administración Educación, cultura, culto Gastronomía Instalaciones Cochera Cartelería Estructuras Salud Vivienda de general Industria Cochera Comercio Hotelería Administración Estructuras Deporte, Educación Cultura Gastromomía Salud Otros Vivienda de general Industria Comercio Educación, Cultura, Culto Gastronomía Hotelería Administración Cochera Salud 48,53% 36,19% 8,80% 2,74% 1,28% 1,21% 0,67% 0,35% 0,07% 0,07% 0,06% 0,03% 79,22% 4,28% 3,73% 3,66% 3,53% 3,41% 1,13% 0,64% 0,26% 0,10% 0,02% 55,92% 37,30% 3,18% 1,06% 0,90% 0,68% 0,64% 0,19% 0,15%
capba IX INSERCIÓN PROFESIONAL 818181

En el rubro Informe Técnico por tipo de Obra ha habido una caída inter anual del 22%, entre iguales semestres del año 2013 y 2014. En lo que respecta al destino del rubro, el mayor índice corresponde a la categoría vivienda en general con aproximadamente un 56% del ítem, pero que en lo que respecta al comportamiento interanual ha descendido un 35%. Le siguen el Informe Técnico destinado al rubro industria con un incremento del 33% interanual y el rubro comercio con un descenso en el orden del 30%.

En el rubro Informe Técnico por Mantenimiento de Fachadas se registra una caída inter anual del 61% entre iguales semestres del año 2013 y 2014. Esto se

verifica observando el monto de obra comprendido en este rubro. No obstante ello, la tarea de Informe Técnico por Mantenimiento de Fachadas implica actualmente el 37% de los valores de obra en juego en el rubro Informe Técnico, siendo de destacar que la falta de actualización en los valores unitarios para determinar el Monto de Obra impacta negativamente en este rubro.

La variación semestral de los metros cuadrados presentados de informe técnico, que refleja mayoritariamente la incorporación de construcciones sin permiso por medición e informe, ha disminuido sensiblemente arrojando una variación interanual, segundos semestres del 2013 y 2014, del 22%.

Elaboración: Arq. Bruno Mazzini, Arq. Claudia Noto | Marzo 2015

Evolución 6 últimos semestres en M2 Período m2 1º 2012 275.844 2º 2012 364.032 1º 2013 327.464 2º 2013 364.440 1º 2014 462.458 2º 2014 288.496 Total 228.560 Evolución por mes en Metros cuadrados. MES m2 1º trimeste Enero 91.343 Febrero 84.856 Marzo 129.443 2º trimeste Abril 68.654 Mayo 39.935 Junio 48.227 3º trimeste Julio 46.182 Agosto 44.169 Septiembre 60.471 4º trimeste Octubre 43.616 Noviembre 33.714 Diciembre 60.344 Total 750.954 0 50.000 100.000 150.000 200.000 250.000 300.000 350.000 400.000 450.000 500.000 1º 2012 2º 2012 1º 2013 2º 2013 1º 2014 2º 2014 Evolución 6 semestres en M2 m2
. . . . . . . . . . . . . . . . . Enero Febrero Mar o Abril Ma o J nio J lio Agosto Sep embre Oct bre No iembre Diciembre E ol ción por mes en Metros c adrados Pro ecto todas las Categorías de Obras Año m2 Exponencial (m2) . Promedio (m2) ESTADÍSTICAS capba IX INSERCIÓN PROFESIONAL 82

La ac vidad profesional en el Pro.Cre.Ar

Monitoreo de las operatorias y expedientes presentados

Desde la segunda quincena del mes de mayo se inició el monitoreo de la ac vidad profesional de arquitectos en el Distrito de la línea de Crédito Pro.Cre.Ar., a la que desde el mes de noviembre se incorporan los datos con intervención de los MMO.

MONITOREO PRO.CRE.AR

El Programa de Crédito Argen no Bicentenario (Pro. Cre.Ar.), que cons tuye un medio de financiamiento des nado a viviendas, se encuentra -desde la segunda quincena del mes de mayo- desagregado en el sistema informá co CAPBA en línea. El seguimiento del comportamiento de la operatoria lleva diez meses de procesamiento y análisis, lo cual nos permite realizar algunas primeras aseveraciones. Además, desde el mes de noviembre, y gracias a la información cedida por el Colegio de Técnicos D. V.1, se han incorporado el comportamiento de la operatoria con intervención de los MMO.2

El programa es una inicia va del gobierno nacional y ene sinté camente como obje vos: a) atender las necesidades habitacionales; b) impulsar la ac vidad económica; y c) generar empleo en todo el país; y proyecta entregar 400.000 créditos hipotecarios para las 5 líneas de créditos que ofrece el programa. Estas líneas son: Construcción; Ampliación y Terminación; Refacción; Compra de Terreno y Construcción; y Desarrollos Urbanís cos.

1 Los Par dos del D. V son los siguientes: Ayacucho, Balcarce, Benito Juárez, General Alvarado, General Guido, General Lavalle, General Madariaga, General Pueyrredon, Maipú, Mar Chiquita, La Costa, Necochea, Patagones, Pinamar, Rauch, San Cayetano, Tandil y Villa Gesell.

2 El área de influencia del Distrito del Colegio de Técnicos es mayor que la nuestra (18 Par dos y 14 Par dos el CAPBA D. IX), los datos obtenidos sólo nos permiten analizar su accionar, por el momento, en el Par do de General Pueyrredon.

A la fecha se han realizado 11 sorteos con 5 repechajes, y el último sorteo se efectuó durante la primera semana de febrero del 2015 en la ciudad de Mar del Plata. En total, y según datos publicados en la página oficial, han par cipado 955.293 familias y han sido sorteadas 487.588 familias (51%). Sin que se hayan publicado los desagregados de estos datos, como: cuántos des natarios de este porcentaje han tramitado y obtenido los créditos, las cifras inver das en cada línea, el porcentaje de cobrabilidad de los beneficiarios, etc.

A par r de la implementación de la línea de crédito Compra de Terreno y Construcción y de Vivienda a Estrenar, realizada el 22-oct-2013 en el 8º sorteo y repechaje, el precio en la oferta de terrenos y departamentos disponibles en las ciudades se incrementó significa vamente. El Estado con núa con su polí ca de no intervenir en el mercado, por lo que dichas líneas no volvieron a sortearse, y la única “solución” en ese sen do son los desarrollos urbanís cos y los lotes con servicios, como estrategia para generar suelo urbano y forma de “presionar” al mercado en las localidades en que se ha implementado y hacer descender los precios del suelo vacante.

El primero de estos desarrollos se realizó en la ciudad de San Nicolás en la PBA.3 Un relevamiento realizado

3 El 25-oct-2014 se realizó el primer sorteo que involucró 714 viviendas. Más info disponible en: h p://www.anses.gob.ar/no cia/ bossio-participo-del-sorteo-del-primer-desarrollo-urbanisticoprocrear-de-buenos-aires-32.

PRO.CRE.AR capba IX INSERCIÓN PROFESIONAL 83

al 28-feb-20154 y, nos permite referir que son 12 las Provincias de la República Argen na en donde, con diferente grado de desarrollo, se implementa esta línea con 30 desarrollos urbanís cos, que involucra: 8.035 viviendas, mayoritariamente de 2 dormitorios, 56 cocheras y 46 locales comerciales. De estos desarrollos, 22 se encuentran en etapa de inscripciones y 8 han sido adjudicados. Los sorteos se han realizado en los meses de octubre y noviembre del 2014, e implicaron un total de 3.263 viviendas (40,6%).

Además, existe la oferta de lotes con servicios. Un relevamiento, a la misma fecha que el precedente, nos permite referir que son 4 las Provincias en donde se implementó la línea con 21 desarrollos. De los que se han sorteado un total de 6.

Este úl mo se está desarrollando en la ciudad de Mar del Plata. Los desarrollos programados son tres, lo que permi rá incorporar un total de 482 viviendas. Los terrenos fueron adquiridos por Pro.Cre.Ar. a oferentes privados a través de un Concurso Público. El cierre de las inscripciones para acceder al sorteo fue el 1-feb-2015 y a la semana siguiente fueron sorteados. Si bien los predios originalmente seleccionados en el concurso de precios fueron de cinco y uno más por parte de la MGP, aún no se han incorporado formalmente a la operatoria.

BARRIODIRECCIÓNSUPERFICIE TOT. DE VIVIENDAS

Con respecto al análisis de dichos datos podemos decir que:

 El total de la operatoria muestra una disminución del total de legajos ingresados en los 10 meses analizados, con un promedio mensual de 83 legajos. En los meses de enero y febrero ingresaron, respec vamente, 78 y 77 legajos; habiéndose dado el pico de ingresos en el mes de sep embre, con 135 legajos. Factor que puede ser atribuido al cambio de la Tabla de Honorarios Profesionales, y que no ha replicado en el mes de febrero;

 En lo que respecta al total de metros cuadrados cubiertos a construir es de 64.738,00 m2 y de 5.175,90 m2 semicubiertos. Por lo que el promedio del tamaño de las unidades es de 78,09 m2. Además, un cierto porcentaje de superficie se agrega por Cómputo y Presupuesto, pero es menor;

 Si bien en números totales los legajos ingresados en el Par do de General Pueyrredon representan la mayor can dad de ingresos, si se analiza en relación a la población del Par do5 (INDEC 2010), los más beneficiados son el Par do de Mar Chiquita (0,451), Maipú (0,206) y General Guido (0,107). Siendo notorio el avance sostenido que ha tenido en los úl mos meses el Par do de Mar Chiquita como consecuencia que los beneficiaros de la ciudad de Mar del Plata están migrando hacia localidades como Camet Norte y La Caleta; y que a los efectos del Programa se permiten y se los toma como si os de proximidad. Siendo los menos beneficiados Pinamar (0,016), La Costa (0,007) y Villa Gesell (0,006). Sin que se haya registrado ningún legajo en el Par do de General Lavalle;

Fuente: Datos disponibles en h p://www.procrear.anses.gob.ar/loteservicio/mar-del-plata-10.

MONITOREO PRO.CRE.AR EN EL DISTRITO IX

Como ya se refiriera en el sistema del CAPBA desde el mes de mayo se desagrega la operatoria. Esto nos ha permi do elaborar un procesamiento que muestra en este informe: el total de los metros cuadrados a construir por Proyecto y Dirección de Obra y el total de los metros cuadrados por Interpretación de Planos y Dirección de Obra. En este úl mo, manejamos el supuesto que los metros cuadrados ingresados bajo este sistema son atribuibles a la operatoria que financia la línea de Crédito Compra de Terreno y Construcción.

 En lo que respecta a la localización se puede observar que, en el caso del Par do de General Pueyrredon mayoritariamente su emplazamiento son extraejidales y en el sector distante de la costa 20 cuadras adentro de los Acan lados al sur y desde Parque Camet hacia el norte. Una tendencia que con núa alejando el emplazamiento de las viviendas con las consecuencias en la deseconomía urbana que esto generan. El comportamiento de la intervención de los MMO es similar;

4 Disponible en h p://www.procrear.anses.gob.ar/proyectourbanis co/buscar.

5 El total de la población de los 14 Par dos del Distrito es de: Balcarce (43.823 hab.), General Alvarado (39.594 hab.), General Guido (2.816 hab.), General Lavalle (3.700 hab.), General Madariaga (19.747 hab.), General Pueyrredon (618.989 hab.), La Costa (69.633 hab.), Lobería (17.523 hab.), Maipú (10.188 hab.), Mar Chiquita (21.279 hab.), Necochea (92.933 hab.), Pinamar (25.728 hab.), San Cayetano (8.399 hab.) y Villa Gesell (31.730 hab.). Lo que implica un total de 1.006.082 hab., lo que cons tuye un 6,43% del total de la Provincia de Buenos Aires. Fuente: INDEC 2010.

AMEGHINO calles Angelelli, 9 de Julio y Av. Libertad 6,45 ha.184 EL MARTILLO Av. Peralta Ramos entre Guiraldes y García Lorca 6,46 ha.188 LOS TILOS calles Guglielmo , Nuestra Señora del Pilar y Strobel 4,12 ha.110
capba IX INSERCIÓN PROFESIONAL 84

Mapeo Proyecto: Expedientes presentados Enero y Febrero 2015. Se presume Operatoria con Terreno y/o Ampliación. Fuente: Elaboración propia en base a datos del total de legajos ingresados al CAPBA IX.

Mapeo Dirección: Expedientes presentados Enero y Febrero 2015. Se presume operatoria sin terreno. Fuente: Elaboración propia en base a datos del total de legajos ingresados al CAPBA IX.

Elaboración Estadís cas e Información Pro.Cre.Ar: Arq. Alejandro Nicolini | Arq. Adriana B.

PRO.CRE.AR
Olivera, IEU- CAPBA DIX

PARTIDOS/MESmay-14jun-14jul-14ago-14sep-14oct-14nov-14dic-14ene-15feb-15

Fuente: Elaboración propia en base a datos del total de legajos por ingresados al CAPBA 9. Arq. Adriana B. Olivera.

 Acerca de los dos grupos desagregados, la de Construcción en todas sus pos6 concentra el 72,20% de los créditos y el de Compra de Terrenos el 27,80%, siendo esta úl ma operatoria la que ha ido incrementándose progresivamente mensualmente a lo largo del análisis;

 La operatoria sin terreno (Interpretación de Proyecto y Dirección de Obra) se circunscribe a 9 Par dos, de los cuales en 5 de ellos son pocos los créditos otorgados (9). Así es que en los Par dos de General Pueyrredon (69,76%), Mar Chiquita (14,92%), Balcarce (6,45%) y General Alvarado (5,24%), se concentra el 96,37% de los créditos otorgados.

 La operatoria con terreno (Proyecto y Dirección de Obra) se circunscribe a 13 de los Par dos del Distrito, y concentrando General Pueyrredon el 51,29%, le siguen los Par dos del Necochea (25,13%) y Mar Chiquita (10,33%).

 En lo que respecta a los profesionales, un total de las 762 presentaciones se han realizado individualmente, 65 en asociación de 2 profesionales y 2 de a 3 profesionales. Concentrándose las presentaciones en 233 arquitectos con 1 vivienda, 72 arquitectos con 2 viviendas, 29 profesionales con 3 viviendas, y los profesionales que más concentran enen 16, 18 y 19 viviendas. En cuanto a la relación entre el total de viviendas del Programa y los Profesionales involucrados podemos referir que del padrón ac vo del Distrito es de 1.500 arquitectos. Del total de 829 viviendas están involucrados un total de 386 arquitectos.

6 La referencia a la línea construcción involucra las tres operatorias que incluyen Proyecto. Estas son: Construcción, Ampliación, Terminación; y Refacción.

Fuente: en base a datos del total de legajos por ingresados al CAPBA 9. Arq. Adriana B. Olivera.

Fuente: en base a datos del total de legajos por ingresados al CAPBA 9. Arq. Adriana B. Olivera.

Elaboración Estadís cas e Información Pro.Cre.Ar. Arq. Alejandro Nicolini | Arq. Adriana B. Olivera IEU- CAPBA DIX.

PRO.CRE.AR
0 50 100 150 200 250 1 viv. /Prof. 2 viv. /Prof. 3 viv. /Prof. 4 viv. /Prof. 5 viv. /Prof. 6 viv. /Prof. 7 viv. /Prof. 8 viv. /Prof. 10 viv. /Prof. 11 viv. /Prof. 16 viv. /Prof. 18 viv. /Prof. 19 viv. /Prof.
DE VIVIENDAS x PROFESIONAL con intervención de 1 Prof. 0 5 10 15 20 25 30 35 40 45 1 viv. /2Prof.2 viv. /2Prof.3 viv. /2Prof.4 viv. /2Prof. TOTAL DE VIVIENDAS x PROFESIONAL con intervención de 2 Prof. TOTAL DE VIVIENDAS x PROFESIONAL con intervención de 2 Prof.
TOTAL
Balcarce 1256341011 GeneralAlvarado 2546312232 GeneralGuido 0010100001 GeneralLavalle 0000000000 GeneralMadariaga 10 3 5021101 GeneralPueyrredon 16465140904944494641 LaCosta 0000111200 Loberia 0001102112 Maipu 2182150020 MarChiquita 274317819111510 Necochea 5121621162012171018 Pinamar 0000111100 SanCayetano 0000011001 VillaGesell 0000100100 297392841359284857877
capba IX INSERCIÓN PROFESIONAL 86
TOTALDELEGAJOSINGRESADOSPOROPERATORIAPRO.CRE.AR.

Balcarce Despedimos a Eduardo Álvarez Manzaneda

El Arquitecto Eduardo Álvarez Manzaneda, tuvo una par cipación ac va en la comunidad de Balcarce, en su vida familiar, en su vida profesional como Arquitecto y en el desarrollo de su vocación de servicio, integrando el Club de Leones, en el que fue socio ac vo por más de 35 años. Se desempeñó en varias oportunidades como Presidente de dicha Ins tución -prestando un gran servicio a la juventud- y como Asesor del Club Leo de Balcarce (el Club Leo es la rama juvenil de los Clubes de Leones). Durante toda su vida recogió el afecto de colegas, vecinos y amigos, y es de destacar el recuerdo de los jóvenes del Club Leo de Balcarce, quienes escribieron esta carta:

“Simplemente gracias. Gracias por cada momento.

Cada momento en los que nos aconsejaste, nos acompañaste, nos ayudaste y hasta cuando fue necesario nos retaste. No muchas personas dan su empo para ayudar a otros. Y muchos menos dan su empo para ayudar a unos chicos que querían servir y diver rse un poco en ese trabajo. Ese trabajo que fue mucho más fácil y entretenido porque vos estabas con nosotros.

Tantos años que se juntan con tantas enseñanzas e historias. Porque siempre vamos a agradecer que estuvieras firme junto a nosotros tantos días, tantas obras, tantos viajes.

Tuvimos la suerte de tener un fotógrafo oficial en cada fiesta y en cada baile, que con sus 80 años se quedaba hasta que todos juntos nos íbamos a dormir. Que con esos mismos 80 años se bancaba 15 horas arriba de una combi con 20 chicos que no paraban de hablar, gritar, cantar y moverse de un lado para el otro. Nunca vamos de dejar de recordar con una sonrisa todos esos momentos e historias que pasaron en este empo.

No sólo por esto, sino por muchas pero de verdad muchísimas cosas vas a estar presente en nosotros. Nosotros, afortunados de que la vida haya puesto en nuestro camino alguien como vos que nos ayudó realmente a poder ser mejores personas. «Sigan adelante trabajando» nos dijiste uno de estos úl mos días que tuvimos la posibilidad de hablar con vos, y te juramos que por vos lo vamos a hacer.

Gracias Edu. Y hasta siempre”.

Y hoy en su despedida, desde este medio aprovechamos para decirle ‘gracias Edu’. Y hasta siempre... Se fue un Amigo.

87
DELEGACIONES. BALCARCE
capba IX FORTALECIMIENTO Y VÍNCULOS INSTITUCIONALES

Municipalidad de Pinamar Dirección de Frente Mari mo Mari

Apertura del Registro de Profesionales

Recientemente se ha conformado la Dirección de Frente Marí mo de Pinamar, desde Info CAPBA IX entrevistamos a la Directora del Frente Marí mo de la Municipalidad de Pinamar, Arq. María Celeste Siccardi.

Info. Arquitecta, brevemente, cuéntenos de que se trata el Plan de reconversión del Frente marí mo de Pinamar.

Arq. Siccardi. Bien, el Plan de reconversión del frente marí mo de Pinamar, es un proceso que se viene desarrollando en Pinamar aproximadamente desde el año 2006. Cronológicamente las instancias que se fueron concretando son las siguientes:

o Plan de ges ón de calidad urbano ambiental de Pinamar, (20052008) estudio encargado por el Municipio a la UNLP;

o Plan de manejo integrado del Frente marí mo (2009). Proyecto de reconversión de UTF, liderado por el Arq. Fabián Cambre y su equipo de trabajo;

88

o Pliego de bases y condiciones para licitaciones de UTF. (10/2009);

o Creación de la Dirección del Frente Marí mo;

o Intervención fiscalía de Estado a pedido de la mesa de dialogo ambiental (MEDA-2010), suspensión del proceso licitatorio;

o Dictamen de OPDS. (Otorgando condiciones ambientales al proyecto original);

o Aprobación Ordenanza N° 4442/14. (Reapertura del proceso licitatorio);

o Instrumentación de la Dirección del Frente Marí mo.

Hoy nos encontramos en la fase de instrumentación y reglamentación de la norma citada.

Info. Vemos, por lo que nos cuenta, que es un proceso complejo y con varios actores, un gran desa o de implementación.

Arq. Siccardi. Sí, es verdad, complejo, con varios actores, y con un gran camino recorrido y con toda una ciudadanía expectante de poder ver plasmado en el territorio los cambios que Pinamar necesita en su estructura urbanoambiental-paisajís ca y de servicios turís cos.

Info. Desde su rol de Directora, ¿cuáles son las misiones y funciones de la Dirección del Frente Marí mo?

Arq. Siccardi. La Dirección del Frente Marí mo ene las siguientes misiones y funciones:

MISIONES:

1. Ser Autoridad de Aplicación de la Ordenanza N° 4442/14 en el marco del Plan de Reconversión del Frente Marí mo del Par do de Pinamar, a par r de UTF adjudicadas.

2. Ser Autoridad de Aplicación de los expedientes de obra de las nuevas UTF.

3. Ser Autoridad de Aplicación de la Ges ón Ambiental y de la Ges ón de calidad en Playas en el territorio definido como Frente Marí mo.

4. Planificar polí cas que contribuyan al equilibrio, dinámica y conservación de la biodiversidad marino costera.

5. Trabajar de manera conjunta con el Director del observatorio ambiental de playas que funciona en el ámbito de la presente dirección.

FUNCIONES:

1. Reglamentar la Ordenanza N° 4442/14.

2. Instrumentar el Observatorio Ambiental de Playas, creado bajo la Ordenanza N° 4442/14.

3. Par cipar de las reuniones de la comisión evaluadora en carácter de oyente acompañando el proceso referente a las licitaciones.

4. Generar las bases para el llamado a concurso público para la cobertura del cargo de Director del Observatorio Ambiental de Playas.

5. Instrumentar protocolos y términos de referencia para los Informes de EIA para las diferentes etapas del proceso: a) demolición, b) construcción, c) operación.

6. Crear un registro de profesionales y/o consultores con incumbencias en temas ambientales que habilite a presentar informes de EIA y toda otra documentación, y/o instrumento de la Ges ón ambiental.

7. Elaborar en forma conjunta con el Director del Observatorio de Playas la capacidad de carga de la playa donde se remitan los informes de EIA par cularizados.

8. Par cipar ac vamente en la evaluación de los procesos de desarrollo urbano que involucren la Franja costera en conjunto con el área de Planeamiento de la Municipalidad de Pinamar.

9. Promover la generación de convenios marco con Universidades y/o ins tuciones académicas y de inves gación con el obje vo de establecer las bases opera vas para la asistencia en trabajos técnicos cien ficos que requiera el área.

10. Generar el escenario adecuado para la construcción de una EIA estratégica del borde costero bonaerense.

Info. ¿Considera que este gran movimiento en Pinamar, brinda posibilidades a nuestra matrícula en su ejercicio profesional?

Arq. Siccardi. Sí, plenamente. Quiero contarles que se encuentra abierto un Registro de profesionales, mediante el Decreto N° 50/15, donde se pueden inscribir todos aquellos matriculados que tengan especialización en ges ón ambiental.

Las ofertas de los nuevos paradores son 55, todos ellos deberán contratar un gestor ambiental de la UTF, y a su vez cumplimentar los informes de EIA de cada etapa, fase demolición, fase construcción y fase operación. De manera que considero una gran oportunidad laboral para la matrícula.

Info. Cuéntenos entonces ¿dónde se puede obtener información al respecto?

Arq. Siccardi. En la web ins tucional del Municipio: www.pinamar.gov.ar . Allí está el icono de la dirección de Frente Marí mo, y cliqueando sobre él en el apartado norma va se ob ene toda la información, no obstante se pueden comunicar a la casilla de e-mail: frentemari mo@ pinamar.gov.ar, o mediante la fan page de Facebook. h ps://www.facebook.com/frentemari mopinamar

Info. Arquitecta, agradecemos la atención y le deseamos éxitos en la tarea.

Arq. Siccardi. Gracias a ustedes por difundir la tarea de la Dirección.

DELEGACIONES. PINAMAR
89 capba IX FORTALECIMIENTO Y VÍNCULOS INSTITUCIONALES

Necochea

El

Colegio de Arquitectos mantuvo una entrevista Arquitectos con funcionarios municipales

En el marco de las acciones que sos ene el Colegio de Arquitectos de la Provincia de Buenos Aires Distrito IX, autoridades distritales se reunieron con Secretarios del Gabinete Municipal para tratar temas de interés para los Arquitectos de Necochea.

Con la presencia de la Mesa Direc va del CAPBA IX, Arquitectos Julia Romero, Daniel Monzón y Bruno Mazzini, el Delegado al Consejo Superior Arq. Pablo Oliva y los representantes de la Delegación Necochea Arquitectos Mar n Sarasíbar, José Luis Ruiz y Omar del Giorgio, se efectuó una recorrida por la ciudad visitando especialmente el Complejo Casino y las obras de restauración de la Sede Local del Colegio de Arquitectos e Ingenieros que se encuentran en pleno desarrollo.

Los profesionales, previa salutación del Intendente José Luis Vidal, fueron recibidos por el Secretario de Gobierno Dr. José María Álvarez, el Secretario y Subsecretario de Obras y Servicios Públicos Ing. Carlos Samprón y Arq. Pablo Novara

En la ocasión el Colegio de Arquitectos agradeció la invitación que el Municipio realizó oportunamente para par cipar del COPAP, valorando el trabajo par cipa vo e interdisciplinario que esa comisión llevó adelante y las conclusiones arribadas. En ese sen do las autoridades colegiales adelantaron la voluntad polí ca de con nuar trabajando conjuntamente en otros temas de la ciudad, entre ellos referido a la restauración, preservación y puesta en valor del Complejo Casino de Necochea.

90 capba IX FORTALECIMIENTO Y VÍNCULOS INSTITUCIONALES

Al respecto, los arquitectos sugirieron sobre los trabajos a realizar en el Complejo Casino tomar las medidas de seguridad que fueran necesarias, la realización de un estudio exhaus vo para arribar a un diagnós co preciso del estado de conservación y promover un proyecto de intervención que no altere las caracterís cas morfológicas y espaciales del edificio que cuenta con atributos que lo han llevado a ser un patrimonio urbano arquitectónico y símbolo de la ciudad de Necochea. Las autoridades municipales comunicaron que “el municipio ha comprome do ante el Ins tuto de Lotería y Casinos la realización de tareas de mantenimiento que a la brevedad permitan la rehabilitación de la Sala de Juego del Casino local”. Sin embargo atendieron la inquietud de los Arquitectos y se acordó la con nuidad de acciones conjuntas para estudiar el tema.

Finalmente se abordó el Registro de Constructores creado por Ordenanza nº 6184/07 e instrumentado recientemente por Decreto Comunal 2877-14. Al respecto los profesionales compar eron la necesidad

de regular la actuación de diferentes actores de la Industria en el proceso construc vo, que no solo alcanza a los profesionales, sino además a empresas, contra stas, gremios y propietarios o inversores. Se sugirió, y en ese sen do se acordó, la postergación de la puesta en vigencia del mencionado decreto y la convocatoria a una mesa de trabajo interins tucional para evaluar los alcances, las exclusiones de algunos pos de obras y la instrumentación de controles que permitan hacer un seguimiento posterior del cumplimiento de la norma va vigente

Los representantes colegiales evaluaron como posi va la reunión y los temas tratados, se comprome eron a con nuar con las acciones impulsadas con la par cipación de los representantes locales y la convocatoria a los arquitectos de Necochea.

91 DELEGACIONES. NECOCHEA
Arq. Mar n Sarasibar Vocal Consejo Direc vo CAPBA IX

General Alvarado

Asumió el nuevo Secretario de Planificación, Medio Ambiente, Obras y Servicios

Ante la nueva designación del tular de la Secretaría que nuclea las áreas más importantes para la Planificación Urbana y el desarrollo de la ac vidad profesional de nuestros colegas, las autoridades Distritales mantuvieron una reunión de trabajo.

Con la presencia de la Mesa Direc va del CAPBA IX, Arquitectos Julia Romero, Daniel Monzón y Bruno Mazzini, y el representante de la Delegación Miramar Arquitecto Guillermo Caimari, se realizó la entrevista con el flamante Secretario de Planificación, Medio Ambiente, Obras y Servicios, del Municipio de General Alvarado, Arq. Alfredo Aguilar

En la ocasión el Colegio de Arquitectos expuso la voluntad de colaborar con el desarrollo de la ges ón municipal en temas inherentes a la planificación y desarrollo urbano del Par do. En ese sen do, las autoridades colegiales expusieron la voluntad de

92

trabajar en la definición del Código de Ordenamiento Urbano, ar culando algunas experiencias previas como el diagnós co realizado por el Arq. Alfredo Garay hace algunos años o el reciente Plan Estratégico de Turismo. El secretario de Planificación comentó a los arquitectos, la voluntad del municipio de realizar un concurso para la intervención en un sector del Parque de los Patricios, como obra complementaria a la realización de la “II Bienal Internacional de Arte Miramar 2015”. En ese sen do, se adelantaron voluntades para concretar este proyecto. Finalmente se abordó el procedimiento de visado previo, instancia previa en la que los profesionales someten a revisión del área de Obras Privadas la documentación técnica sin la intervención colegial. Al respecto los profesionales compar eron la necesidad de corregir este procedimiento, instrumentando un circuito que contenga primero la presentación ante el CAPBA de toda documentación que luego sea recepcionada por el municipio. Se sugirió, y en ese sen do se acordó, establecer una mesa de trabajo con la par cipación del Delegado de Miramar del CAPBA IX, a efectos de analizar el tema y tomar las medidas necesarias.

Los representantes colegiales evaluaron como posi va la reunión y los temas tratados, se comprome ó a con nuar con las acciones impulsadas con la par cipación de los representantes locales y la convocatoria a los arquitectos de Miramar.

Puesta en valor urbano y paisajís co del Paseo de las Artes

Con nuando con las ges ones interins tucionales con el Municipio de General Alvarado, el pasado 26 de febrero, se efectuó una reunión de trabajo entre el CAPBA IX y los Secretarios de Planificación, Arq. Alfredo Aguilar, y de Cultura, Lic. María Eugenia Bove, también par cipó de la reunión la Ar sta Plás ca Marité Svast. La reunión tuvo por objeto avanzar con los acuerdos que permitan desarrollar un concurso de anteproyectos para la intervención urbana de un sector del Parque de los Patricios donde se desarrolla la “Bienal Internacional de Arte Miramar” que este año se desarrollará entre los días 17 al 26 de Abril.

La realización de este encuentro ar s co, en su segunda edición, dejará instalaciones tales como murales, esculturas, equipamiento urbano, que se mantendrán en el sector específico que actúa como nexo entre el natatorio, el polidepor vo y el anfiteatro municipal. Es por ello, que las autoridades municipales, conjuntamente con el Señor Intendente, han decidido convocar al CAPBA IX para la organización de un concurso de intervención urbana, en busca de contar con propuestas que resalten los valores ar s cos de las obras, propicien la ocupación del espacio público de forma ordenada y ar culada y doten a la ciudad de un espacio de alta calidad ambiental como portal de la ciudad.

En los próximos meses se con nuarán las ges ones que culminen con la realización del concurso con la colaboración del Ins tuto de Estudios Urbanos y la Delegación Miramar del CAPBA IX.

DELEGACIONES. MIRAMAR
93 capba IX FORTALECIMIENTO Y VÍNCULOS INSTITUCIONALES

Preservación Patrimonial y aportes a la iden dad

El día lunes 2 de marzo, en un sencillo y emo vo acto realizado en los jardines del Ocean Club Mar del Plata, Pellegrini esquina Rawson, la Defensoría del Pueblo de la Municipalidad de General Pueyrredon realizó la primera entrega de Diplomas de Honor a la Preservación Patrimonial y Diplomas al Aporte a la Iden dad Marplatense.

En la ocasión el Colegio de Arquitectos recibió una de las dis nciones por la preservación y puesta en valor del inmueble donde funciona su Sede Distrital, parte del Conjunto Atalaya, con frente a la Plaza Rocha de la ciudad de Mar del Plata.

Este premio, del que se prevé tenga una entrega anual, es una inicia va de la Defensoría del Pueblo de General Pueyrredon invitando a ins tuciones y organismos de la ciudad, entre ellos el CAPBA IX, a promover la valoración y sen do de pertenencia de la arquitectura, el urbanismo, el paisaje y la iden dad marplatense.

Vemos que la problemá ca de defensa y protección de nuestro patrimonio urbano arquitectónico se encuentra atravesando escenarios de fuertes tensiones. Esto deriva en preocupantes conflictos de intereses que no cuentan con la intervención adecuada del Estado a través de acciones que hagan posible lograr el equilibrio para con nuar promoviendo el constante desarrollo de la ciudad con la protección de las iden dades consolidadas en diferentes áreas del Par do.

En este contexto la acción impulsada por la Defensoría del Pueblo pretende lograr la valoración del esfuerzo impreso por los propietarios en la preservación de bienes considerados de valor patrimonial. Seguramente, en siguientes ediciones, habrá que incorporar la ponderación de la intervención profesional y el aporte que desde la disciplina se logra en el obje vo común de la preservación de nuestro patrimonio.

La Defensoría del Pueblo entregó reconocimientos a par culares, comerciantes e Ins tuciones
94 capba IX FORTALECIMIENTO Y VÍNCULOS INSTITUCIONALES

1.1. Piazza Caffe

Chalet de Luis de Ezcurra. Alem 2427. ARQUITECTURA PINTORESQUISTA DE SESGO INGLÉS

Año: 1929

Propietario original: Luis de Ezcurra

Proyectista: Arqs. Acevedo, Becú y Moreno.

Constructor: Empresa constructora Arturo Lemmi y Hermanos.

1.2. Escribanía de María Carolina Bruno Ramayon Vegetti.

Villa Santa Lucía. Olavarría 2276.

ARQUITECTURA ECLÉCTICA

Año: 1918

Propietario original: Marcos Algier

Proyectista: Arq. Gino Aloisi

1.3. Sede del Colegio de Arquitectos de la Provincia de Buenos Aires Distrito IX.

Conjunto La Atalaya. Dorrego 1663.

ARQUITECTURA NEO-COLONIAL

Año: 1928

Proyectista: Arq. Charles Evans Medhurst Thomas

Constructor: Martín Marcó e Hijos.

1.4. Instituto Vocación Docente.

Residencia de María G. de Grisetti. Alberti 1446. ARQUITECTURA NEO-COLONIAL

Año: 1929

Propietario original: María G. de Grisetti.

Proyectista: Arq. Arístides L. Grisetti

Constructor: Alejandro Andriotti Romanín

DIPLOMA DE HONOR A LA PRESERVACIÓN PATRIMONIAL

1. Reconocimiento a los propietarios de inmuebles protegidos por la Declaratoria de Interés Patrimonial (Ord. 10075), o a las personas que los han elegido para el desarrollo de ac vidades de comercio o servicio, que han realizado intervenciones de restauración y re-funcionalización de calidad, por el respeto de los atributos que definen la categoría asignada en la Declaratoria. Se destaca el aporte al cuidado de obras destacadas.

1.5. Consulado de Italia en Mar del Plata.

Chalet Lusitania, Falucho 1416. Tel. 451-8623.

CHALET PINTORESQUISTA MARPLATENSE

Año: 1943

Propietario original: Familia Mendoça Nuñez

Proyectista: Ing. Rabuffi

Constructor: Fidel Marco

1.6 Express Ex - Almacén Buenos Aires. Hipólito Yrigoyen 1806.

ARQUITECTURA ECLÉCTICA

Año: 1911

Propietarios originales: Luis y José María López

Constructor: José Aronna

1.7. Ocean Club Mar del Plata.

Chalet de H. Aguirre de Leloir. Pellegrini 2743. ARQUITECTURA PINTORESQUISTA INGLÉS

Año: 1912

Propietario original: Hortensia Aguirre Herrera y Federico Leloir Bernal

Proyectista: Arq. Walter Basset-Smith

Constructor: Miguel Mannelli y Juan Lemmi

1.8. Consultorios Dermatológicos de la Dr. Marcela Bacchiocci. Chalet de Felipe Gottheil de Luca, Aristóbulo del Valle 2821.

Consultorios dermatológicos.

ARQUITECTURA PINTORESQUISTA VASCA

Año: 1930

Propietario original: Felipe Gottheil de Luca

Proyectista: Arqs. Jorge Birabén y Ernesto Lacalle Alonso

Constructor: Empresa Paulino Gutiérrez y Hermanos.

1.9. LOCOCO Inspiration Studio. Chalet de Clemente Lococo. Falucho 1502. ARQUITECTURA PINTORESQUISTA

Año: 1938

Proyectista: Arq. Alberto Marshall

Constructor: Lorenzo Sburlati

1.10. Agencia de viajes Test Turismo. Chalet de Pablo Saint Antonin. Hipólito Irigoyen 2011.

ARQUITECTURA PINTORESQUISTA ANGLONORMANDA

Año: 1923

Propietario original: Pablo Saint Antonin

Constructor: José Aronna

1.11. Logia Masónica “7 de junio de 1981”, San Martín 3237.

ARQUITECTURA ITALIANIZANTE

Año: aprox. 1891

Propietario original: “Logia Masónica 7 de junio de 1891”

1.12. Almacén Estación Central Bar. Viejo Almacén El Condal. Garay y Alsina ARQUITECTURA ITALIANIZANTE

IDENTIDAD MARPLATENSE
95 capba IX FORTALECIMIENTO Y VÍNCULOS INSTITUCIONALES

2.1. Villa Nuccia Bed and Breakfast.

Villa Nuccia, Brown 1134.

Propietarios actuales: Mirta Levito, María Paula Vadillo y José Salomone.

ARQUITECTURA PINTORESQUISTA

Año: 1943

Propietario original: Irene J.M. de Costa

Proyectista: Arq. Adolfo Zani

2.2. Café Di Mero Espresso

Güemes y Gascón.

CHALET PINTORESQUISTA MARPLATENSE

Año: 1942

2.3. Sede en Mar del Plata de SADAIC Sociedad Argentina de Autores y Compositores de Música. Santa Fe y Gascón.

CHALET PINTORESQUISTA MARPLATENSE.

Año: 1938

Propietario original: Sr. Mario Tiribelli

Proyectista: Arq. Auro Tiribelli

Constructor: Arturo Lemmi

2.4. El Aleph Bed and Breakfast. Chalet en Alem 2542.

DIPLOMA AL APORTE A LA IDENTIDAD MARPLATENSE

2. Reconocimiento a las personas que han elegido para el desarrollo de ac vidades de comercio o servicio, inmuebles que a pesar de su importancia para la iden dad de la ciudad, no están protegidos por una Declaratoria de Interés Patrimonial (Ord. 10075), y han realizado en ellos re-funcionalizaciones respetuosas en gran medida de las caracterís cas esenciales. Se destaca su contribución al “mantenimiento con vida” de obras de valor que de otra forma podrían haberse perdido.

CHALET PINTORESQUISTA MARPLATENSE

Año: 1937

Propietario original: Luis A. Rela

Constructor: Antonio Blumetti

2.5. Tortas Olivia. Residencia de Manuel Alberto Iriarte. Gascón y Güemes.

ARQUITECTURA NEOCOLONIAL

Año: 1937

Propietario original: Manuel Alberto Iriarte. Constructor: Arnaldo Genga.

2.6. Essenza Terminal de Diseño. Ex - Caballerizas de Sampietro. Moreno 2941.

ARQUITECTURA ITALIANIZANTE

2.7. Brüder Beer Garden. Mitre y San Lorenzo.

ARQUITECTURA ITALIANIZANTE

Año: 1924

Propietario original: Remigio Garay Constructor: Fernando Montecchia Originalmente: comercio + vivienda

2.8. Juana’s Café- Bar. Alberti 2600 esquina Córdoba. CHALET PINTORESQUISTA

ESTILO MAR DEL PLATA

Año: 1934

2.9. L’ Ecole Instituto de cocina profesional. Jujuy 1565.

ARQUITECTURA ITALIANIZANTE

2.10. Verbale Café.

Hipólito Yrigoyen esquina Gascón. CHALET PINTORESQUISTA

ESTILO MAR DEL PLATA

2.11. El Condor Coffee Shop. Viejo Almacén de Otero y Martínez. San Luis 2302. Tel. 496-1262.

ARQUITECTURA ITALIANIZANTE.

Año: 1922

Propietario original: Sr. Miguel Martínez Sánchez Constructor: Ángel Rosa Donati

Desde el CAPBA IX agradecemos a la Defensoría del Pueblo, a los señores Defensores Fernando Rizzi, Fernando Cuesta y Walter Rodríguez, por la dis nción otorgada en esta oportunidad, haciendo extensivo el agradecimiento a las organizaciones e ins tuciones que han hecho posible la creación de este premio. También deseamos compar r este reconocimiento con los vecinos del Conjunto Atalaya los que, en su mayoría, man enen sus inmuebles y contribuyen a mantener las caracterís cas del conjunto urbano de la Plaza Rocha.

IDENTIDAD MARPLATENSE 96 capba IX FORTALECIMIENTO Y VÍNCULOS INSTITUCIONALES

Turn static files into dynamic content formats.

Create a flipbook
Issuu converts static files into: digital portfolios, online yearbooks, online catalogs, digital photo albums and more. Sign up and create your flipbook.