InfoCAPBA IX

Page 1

Caja de Previsión y Seguridad Social para Arquitectos

Por un régimen previsional propio con independencia de gobierno y una administración controlada.

En esta edición de la Revista Info CAPBA IX podemos ver reflejada la intensa ac vidad que nuestro colegio distrital desarrolla en toda la región y en diferentes frentes de acción, que van desde los problemas gremiales que preocupan a nuestros matriculados a problemá cas que se presentan en nuestras ciudades de diferentes escalas.

Sólo como an cipo en este número presentamos los aspectos generales de los nuevos procedimientos tanto para el visado colegial como para la ges ón de permisos de obra ante la MGP; con nuamos con notas técnicas sobre diferentes productos y técnicas; difundimos nuevas norma vas en materia de seguridad e higiene en la construcción; compar mos obras de matriculados de nuestro distrito de diversas categorías, registramos los eventos de camaradería y las ac vidades de capacitación organizadas por nuestro colegio, contamos con la colaboración de profesionales de diversas disciplinas como columnistas sobre temas de interés y publicamos los registros de estadís cas de la ac vidad profesional en la región.

Por supuesto la difusión de las acciones que se desarrollan en las Delegaciones del CAPBA IX ocupa un lugar de relevancia, compar endo por este medio los temas que preocupan en cada una de ellas y las acciones que tanto desde nuestra Ins tución como de otras organizaciones se promueven.

Sin dudas uno de los temas que más nos ocupa es el de la Caja Previsional para Arquitectos, al respecto y dada la falta de diálogo que ha predominado sobre este tema, las autoridades de nuestro colegio distrital promovimos la realización de un encuentro de presidentes en el espacio y bajo la coordinación de las autoridades provinciales del CAPBA. De ese encuentro surgió la firma de un acuerdo en el que se reafirmaba la voluntad de los Distritos de contar con una caja previsional para los arquitectos, la necesidad de difundir entre la matrícula el proyecto presentado para conocer su opinión y elaborar las modificaciones que resulten necesarias.

Las acciones que el CAPBA IX lleva adelante en referencia al tema previsional exceden la firma del acuerdo antes enunciado. Cabe destacar que nuestro Distrito es el único que ha elevado un proyecto de Ley Previsional para Arquitectos acordado en asamblea distrital, que además

ha trabajado permanentemente en la generación de propuestas basadas en el análisis, estudio y diagnós co de esta temá ca, y que pese al re cente contexto provincial para la apertura a un debate profundo, se ha persis do en los intentos que conlleven a mejoras en la propuesta presentada.

En este número compar mos una síntesis sobre los aspectos más vinculados al ejercicio profesional y a las prestaciones jubilatorias que caracterizan el proyecto en debate en la Cámara de Senadores. Sin embargo, no se ha profundizado en uno de los aspectos que desde la conducción distrital consideramos de mayor relevancia, esto es sobre las formas de gobierno y administración del futuro sistema previsional. Al respecto, consideramos que resulta problemá ca la concepción de un sistema dependiente del Consejo Superior y fundamentalmente condicionado a la conducción de turno. Fundados en el estudio de otros sistemas previsionales, y con la convicción que la independencia de sistemas contribuiría a un adecuado control, la creación de un nuevo régimen debería ser autónomo del gobierno y funcionamiento del Consejo Superior.

Al cierre de esta edición desde el bloque de la minoría, alineado con la conducción provincial, se ha cri cado el relevamiento de opinión que nuestro Distrito ha realizado a través de una consulta on line, a cargo de una pres giosa consultora. Consideramos que esta crí ca oculta el propósito de descalificar e invalidar la opinión de nuestros colegas, la cual no ha sido tendida en cuenta previamente, prejuzgando su opinión e incluso cri cando la falta de par cipación de los matriculados en las asambleas distritales. Sin embargo, debemos explicitar que el cues onario ha sido elaborado teniendo en cuenta relevamientos anteriores, incluyendo temas esenciales para la toma de decisiones y con el objeto de evaluar el conocimiento sobre la temá ca.

Por ello, con nuaremos abocados con la misma intensidad y compromiso puesto hasta el momento en llevar adelante acciones tendientes a defender los intereses de nuestros matriculados, a propiciar los debates que conduzcan a actuar en base a las genuinas necesidades de los arquitectos de la Provincia de Buenos Aires, manteniendo el espíritu crí co y la autonomía de criterio sin que ello excluya la predisposición al diálogo y el consenso que caracteriza esta ges ón colegial

capba IX 01

Publicación Ins tucional del Colegio de Arquitectos de la Provincia de Buenos Aires

Distrito IX

Distribución Trimestral Gratuita

Edición 2.100 ejemplares

Año 3 | Nº 8 | Sep embre de 2014

ISSN 2346-9595

capba IX

Los ar culos publicados expresan los puntos de vista de sus autores y no necesariamente representan los de la Ins tución. Los ar culos sin firma son conocidos por el consejo Editor y su responsabilidad úl ma recae en el director a cargo.

Se autoriza la reproducción total o parcial de los ar culos contenidos en la misma con el compromiso de citar la fuente.

Si desea auspiciar en esta publicación, comunicarse a bole n@capba9.org.ar o bien consultar en la Sede del CAPBA DIX, Dorrego 1657 de la ciudad de Mar del Plata, tel (0223) 473-3031, 473-8282 o 474-3944, donde se le brindará todas las referencias de contacto.

DIRECTOR

Arq. Julia Romero

CONSEJO EDITOR

Arq. Daniel Monzón

Arq. Bruno Mazzini

Arq. Analía Benítez

COLABORADORES

Arq. Guillermo Eciolaza

Arq. Laura Romero

Arq. Alicia París

Sra. Analía Flores

ARTE Y DISEÑO

Valeria Burkhard

FOTOGRAFÍA

Karina Beltran

Hugo Porro

Vanesa Widmer Franul

LOGÍSTICA, PUBLICIDAD Y MARKETING

Cepei Comunicación

INTRO

01| EDITORIAL.

02| SUMARIO. STAFF.

EJERCICIO PROFESIONAL

04|HONORARIOS PROFESIONALES. Nuevos Valores Referenciales.

05|MEDIOS DE PAGOS HABILITADOS.

06|VISADO COLEGIAL. Previsado CAPBA on line.

08|ASUNTOS MUNICIPALES. Nuevo procedimiento digital de Obras Privadas.

12|ASUNTOS MUNICIPALES. Convenio Marco con Municipalidad de General Pueyrredon.

14|ASESORAMIENTO TÉCNICO. Serymat, construcción sustentable cuidando el entorno.

16|ASESORAMIENTO TÉCNICO. DN. Cercos eléctricos perimetrales de seguridad.

18|ASESORAMIENTO TÉCNICO. Desmeca, aluminio, tecnología y una empresa con historia.

20|OBRAS EN EL DISTRITO IX. Vivienda unifamiliar. Estudio Agüero-Marcenaro.

24|OBRAS EN EL DISTRITO IX. Salud, Clínica Tesler. Estudio id:arq.

28|SEGURIDAD E HIGIENE. Nueva Norma va para excavaciones.

GESTIÓN DEL DESARROLLO URBANO SUSTENTABLE

32|ARQUITECTURA ACCESIBLE. Arquitectura para todos, accesibilidad universal.

36|URBANIZACIONES COSTERAS SUSTENTABLES. El aporte de la arquitectura del paisaje. Estudio Siccardi.

capba IX 02

40|ARQUITECTURA SUSTENTABLE. Gernot Minke en Mar del Plata.

46|CONCURSOS.

Nuevos Concursos para la ciudad de Mar del Plata.

50|CONCURSOS.

Resultado: Concurso Nacional de Ideas. Consultorio desmontable de Atención Primaria de Hábitat.

52|VIVIENDA.

Desa os y perspec vas para la generación de suelo urbano.

54|VIVIENDA.

El valor del suelo para los beneficiarios del plan Pro.Cre.Ar.

ASUNTOS PREVISIONALES

58|CAAITBA. Trámites frecuentes. ¿Cómo realizarlos? Parte 3.

62|CAAITBA.

Proyecto de Caja propia.

SOCIAL Y GREMIAL

68|DÍA DEL ARQUITECTO.

69|CICLO DE ARTES PLÁSTICAS EN EL COLEGIO DE ARQUITECTOS.

CAPACITACIÓN Y ACTUALIZACIÓN PROFESIONAL

72|CAPACITACIÓN EN EL CAPBA IX. Curso de Introducción a las Patologías de la Construcción.

76|CICLO DE REFLEXIÓN Y DEBATE DE ARQUITECTURA. Profesión y Contemporaneidad. Conferencias del Arq. Caballero y del Arq. Frangella.

PROGRAMA COMUNICACIONAL

80|HOMENAJE. 100 años de la Expo Colonia 1914 de la Werkbund.

INSERCIÓN PROFESIONAL

84|LA ACTIVIDAD PROFESIONAL EN EL DISTRITO IX. Estadís cas en base a tareas profesionales presentadas en el 1° semestre del 2014.

FORTALECIMIENTO Y VÍNCULOS INTERINSTITUCIONALES

90|DELEGACIONES PINAMAR. General Madariaga trabaja sobre su patrimonio.

93|DELEGACIONES NECOCHEA. Parque Miguel Lillo. Posición del CAPBA IX sobre la ges ón del parque.

94|DELEGACIONES BALCARCE. Charla Salud y Seguridad en la Construcción.

95| DELEGACIONES MIRAMAR. Plan Turís co 12M. Plan Estratégico para el sector turís co.

96|DELEGACIONES VILLA GESELL. Redoblando esfuerzos para una mayor capacitación profesional.

capba IX 03
Publicación Declarada de Interés por :

Honorarios Profesionales

Nuevos Valores Referenciales

A par r del 1º de sep embre de 2014 rigen nuevos valores referenciales para la determinación de honorarios profesionales conforme lo resuelto por Asamblea Anual Extraordinaria de Representes de la Caja de Previsión Social de Arquitectos, Agrimensores, Ingenieros y Técnicos de la Provincia de Buenos Aires. Resolución CAAITBA Nº 545-14.

En este ejemplar de nuestra revista anexamos en formato papel las nuevas tablas vigentes, las que enen un formato más completo y con referencia a las Resoluciones CAPBA Nº 7014 y 71-14 que determinan los honorarios y CEP mínimos en relación a los nuevos valores referenciales.

Sabemos que este material es de gran u lidad en los estudios profesionales y que muchos colegas se encuentran habituados a llevarlas consigo en las agendas de trabajo para tenerlas a mano ante eventuales consultas, por ello se encuentran separadas de este ejemplar para su fácil manejo.

Como siempre toda la información actualizada para la determinación de los Honorarios Profesionales se puede consultar en el si o web del Distrito IX, www.capba9.org.ar solapa Área Técnica.

Valores referenciales desde el 1º de sep embre 2014

Valor Referencial (unidad arancelaria): $ 6.000,00

CEP Mínima: $225,00

F.C.: 300

Honorario Mínimo: $ 1.500,00

Medición e Informe Mínimo:

Vivienda Standard hasta 100 m2 $ 2.503,00

Resto de las Categorías $ 4.326,00

Timbrado: 12.5 ‰

Art. 29 (Caja)

10% de Proyecto y Dirección

CMAO: vigente a par r del 01/09/14 $ 12.000,00

Capba
IX
capba IX 04 EJERCICIO PROFESIONAL

Medios de pago habilitados

Es mados Colegas, les recordamos que con mo vo de propender a la bancarización total de los ingresos a par r del 15-10-2012 no se acepta el pago de la CEP en efec vo en oficinas de la Sede Distrital ni en Delegaciones del CAPBA DIX. Así mismo les detallamos los sistemas y medios de pagos por los cuales se podrán realizar los aportes correspondientes, cuyos ckets deberán ser adjuntados a la documentación técnica al momento del visado

DEPÓSITO BANCARIO

BANCO PROVINCIA DE BUENOS AIRES

Mediante depósito en cuenta corriente Nº 11575/1 Suc. 6100 en cualquier sucursal del banco. Consulte sucursales en h ps://www.bancoprovincia.com.ar

BANCO CREDICOOP

Mediante depósito en cuenta corriente Nº 3067-1 Filial 089

Consulte sucursales en h p://www.bancocredicoop.coop

BANCO GALICIA ¡¡¡NUEVO!!!

Mediante depósito en cuenta corriente Nº 00002903790833

Suc. 083. Consulte sucursales en www.bancogalicia.com

TRANSFERENCIA BANCARIA

CUIT CAPBA DIX 30-68994042-7

BANCO PCIA DE BS AS. CBU 0140415301610001157512

BANCO CREDICOOP. CBU 1910089655008900306714

BANCO GALICIA. CBU 0070083220000029037937 ¡¡¡NUEVO!!!

CHEQUES

CHEQUE PERSONAL. A la orden de Colegio de Arquitectos de la Pcia. de Buenos Aires.

CHEQUE DE TERCEROS. A la orden del profesional y endosado.

OTROS MEDIOS DE PAGO

RIPSA PAGOS Únicamente con tarjeta personalizada que deberá retirarla en sede distrital o delegaciones. Consulte centros de pago en h p://www.ripsa.com.ar. Para el pago deberá indicar al cajero el concepto por el cual se realiza el depósito (01. Matrícula, 02. CEP, 03. Cursos, 04. Compras Comunitarias, 05. SUM). Es importante recordar que la empresa RIPSA no cobra boletas de aportes previsionales de la CAAITBA.

TARJETAS DE CRÉDITO (en Sede Distrital y Delegaciones) Visa o Mastercard.

TARJETAS DE DÉBITO (en Sede Distrital y Delegaciones) Visa Electrón o Mastercard.

PROVINCIA NET ¡¡¡NUEVO!!!

Se encuentra vigente como nuevo medio de pago la tarjeta personalizada de provincia Net, la cual debe ser re rada en Sede Distrital y/o Delegaciones del CAPBA IX. La modalidad de operación es mediante código de barras en el plás co a nombre del matriculado que con ene los datos de éste y quien deberá indicar al operador de caja el importe y el concepto a pagar, luego el cket emi do debe ser anexado a la documentación a presentar o comunicarlo al área de matrícula o de tesorería según corresponda por el po de trámite.

05

Previsado Capba on line

Los matriculados deberán generar sus previsados desde el sistema informá co

A par r de sep embre de 2014 los matriculados del CAPBA podrán acceder al sistema informá co CAPBA en Línea, desde donde deberán cargar sus legajos y generar sus previsados.

El Consejo Superior ha resuelto abrir el acceso al sistema informá co del CAPBA a todos sus matriculados. Mediante la Resolución Nº 61-14, art. 3º, se establece “Abrir a par r del 1 de sep embre de 2014 la interfase de autoges ón del Sistema a la matrícula en general. A par r de esa fecha la única planilla de cálculo de valores referenciales válida que tomará el CAPBA es el desarrollo del visado emi do por el Sistema”.

Para opera vizar este cambio de modalidad, durante el mes de agosto se implementó un período de prueba en el que los visadores del CAPBA de toda la Provincia recibieron capacitaciones, realizaron consultas, hicieron propuestas de cambios, etc.

El primer paso para que los matriculados puedan acceder como usuarios del “CAPBA en Línea” es concurrir a las Sedes Distritales y Delegaciones y actualizar sus datos, fundamentalmente el correo electrónico donde le será remi da toda comunicación sobre el sistema. Luego deberán acercarse al área técnica donde el Visador procederá a habilitar al usuario matriculado, emi endo un cer ficado y por lo cual el sistema enviará al correo electrónico del profesional la clave de autoges ón para comenzar a operar. Desde el Consejo Superior, se hace especial hincapié en el carácter personal del manejo del sistema de autoges ón por lo cual recomiendan no ceder dicha clave a gestor o representante alguno.

Nota: La puesta en funcionamiento dependerá de la logís ca del Consejo Superior, a través del Ins tuto de Estadís cas, Costos e Informá ca, el que deberá habilitar el sistema e instruir a los distritos para su implementación.

Una vez habilitados para el uso del sistema, los matriculados ingresarán al si o de autoges ón, donde deberán registrarse con sus datos de usuario (nº de matrícula sin ceros a la izquierda) y clave provista por el sistema.

Accediendo al sistema, los matriculados podrán realizar las siguientes consultas:

capba IX 06 EJERCICIO PROFESIONAL

o Último acceso al sistema, lo cual permite chequear que no han sido víc mas del uso por terceros de su si o de autoges ón;

o Consulta de estados de matrícula, la fecha de matriculación, suspensiones o cancelaciones, así como las rehabilitaciones que durante su vida profesional tuvieran;

o Consulta de movimientos de cuenta, se divide en 3 solapas, la primera informa el saldo consolidado del usuario, la segunda permite visualizar la cuenta de CEP (expresada en U.R.) allí se visualizará el historial de expedientes, CEP por vencer, etc., además podrán emi r sus recibos de pagos, desarrollos de visado y demás ges ones que hasta hoy solo se realizaban por los visadores y la úl ma solapa es la de Cuenta en Pesos, donde a través de un sistema de filtros se puede obtener la deuda de CEP o matrícula y emi r sus propios recibos para el pago de cuentas;

o Registro de trámites de visado, Se visualizará el historial de visados obrantes en el sistema y se podrá generar un nuevo registro de visado.

NUEVO REGISTRO DE VISADO , aquí se generará el visado previo a cargo del profesional:

 Información del visado: fecha cierta, Par do de la Obra, Des no, Fecha de vencimiento, si es country o no y po de visado (regular o Pro.Cre.Ar.);

 Tareas Asignadas al Visado: se elige de entre un listado predeterminado, po de obra, superficie cubierta, superficie semicubierta, cómputo y presupuesto, porcentaje de tarea a realizar. Concluida la carga de datos se pide finalmente confirmar tarea. También se puede cargar más de una tarea. En el caso de errores o falta de datos el sistema alerta dicho error;

 Datos de la obra;

 Datos del comitente;

 Guardar Visado, terminada la carga el sistema genera el Desarrollo del Visado.

El desarrollo de visado emi do por el sistema será el único documento válido para el CAPBA, por lo que paula namente se irá reemplazando la histórica planilla anexa por este otro documento. Este desarrollo será el que deberá incorporarse junto a la documentación del legajo colegial, acompañado de los correspondientes comprobantes de pago (CEP y CAJA).

Conforme el sistema se encuentre en pleno funcionamiento el CAPBA IX, a través del Área Técnica, brindará charlas informa vas y de capacitación dirigidas a los matriculados de este distrito con el objeto de que la transición a este nuevo sistema resulte ágil y sin inconvenientes para los profesionales.

VISADO COLEGIAL
capba IX 07 EJERCICIO PROFESIONAL
Arq. Carlos Cas glioni Gerente Técnico Área Sur | CAPBA IX

Nuevo procedimiento digital de Obras Privadas

La Secretaría de Tecnología y Mejora de la Administración del Municipio, junto con la Secretaría de Planeamiento y con la par cipación de los colegios profesionales estamos trabajando para la mejora de los trámites de Obras Privadas. Dichas mejoras involucran una serie de etapas que se iniciaron con la revisión de los procesos involucrados y la rematriculación de profesionales actuantes, lo cual nos permi ó crear una base de datos actualizada con la iden ficación digital de cada uno. Ya hemos desarrollado la primera etapa del nuevo sistema informá co que permi rá la implementación de estas mejoras, capacitamos al personal involucrado en las dis ntas fases del trámite y actualmente lo estamos validando con los colegios profesionales. Para esto se están realizando en los colegios ciertos trámites siguiendo el nuevo procedimiento.

Los principales obje vos de estas mejoras son: reducir los empos de tramitación, minimizar la can dad de presencias necesarias en oficinas municipales, contar con herramientas de seguimiento para saber en todo momento en qué estado y en qué área se encuentra el trámite, y facilitar la comunicación entre los profesionales y el Municipio.

Los fundamentos en los que se basa del nuevo sistema de obras privadas son:

capba IX 08 EJERCICIO PROFESIONAL
El inicio de un proceso de mejora con nua

Visador Mesa de entradas

Mesa de entradas Mesa de entradas Preservación del Patrim.

Uso de Suelo

Lee el Expediente y envía a Preservación del Patrimonio

Registra el pase y envía

Hace informe y envía

Registra el pase y envía Registra el pase y envía

Lee el expediente y envía a Uso de Suelo

Hace informe y envía

Lee el Expediente y envía a Electromecanica

Hace informe y envía

Registra el pase y envía Registra el pase y envía Registra el pase y envía

Lee el Expediente y visa el Expediente

Mesa de entradas Visador Visador Mesa de entradas Mesa de entradas Electromecánica

Visador Mesa de entradas Mesa de entradas Electromecánica Uso de Suelo Preservación del Patrim.

Lee el Expediente y hace Hoja de Ruta Completa

PLATAFORMA DE TRÁMITES

Visador

Hace informe y envía Hace informe y envía Hace informe y envía

Registra el pase y envía

Lee el Expediente y visa el Expediente Registra el pase y envía

Consiste en una plataforma de seguimientos de trámites que fue desarrollada íntegramente por personal municipal y puede ser actualizada a medida que surjan nuevos requerimientos y se agreguen a la misma nuevos trámites. La plataforma cuenta con:

 Bandeja de Entrada única en la cual el solicitante puede iden ficar de forma rápida sus trámites y así llevar un control de las tareas pendientes y realizadas de todos los trámites Iniciados.

 Repositorio de documentos. Los documentos que se generan en los trámites quedan almacenados y pueden volver a descargarse.

 Seguimiento del expediente. El sistema de manera automá ca enviará un correo electrónico cada vez que un expediente es movido de un lugar a otro, ya sea a través de la Mesa General de Entradas como de la Mesa de Entradas de la Dirección de Obras Privadas, indicando desde y hacia donde ha sido enviado. Además se pueden ver los dis ntos movimientos en la bandeja de entrada.

El solicitante podrá observar el circuito que indicó el visador en la Hoja de Ruta y seguir el curso del expediente sobre la misma, sabiendo en todo momento dónde se encuentra.

 Comunicación de observaciones hacia el profesional. Se centralizarán dentro del trámite todas las comunicaciones que se hagan relacionadas con el mismo, ya sea desde la propia Dirección de Obras Privadas o desde las dis ntas

dependencias que intervengan en el trámite. Dichas comunicaciones se recibirán por correo electrónico y también podrán ser consultadas en cualquier estado del trámite desde la bandeja de entrada.

SISTEMA DE GESTIÓN DE SOLICITUDES DE CONSTRUCCIÓN /DEMOLICIÓN

Es un sistema que funciona sobre la Plataforma de trámites, cuenta con un formulario web donde se solicitan por única vez los datos que se van a u lizar a lo largo del trámite, muchos de los cuales son verificados en línea en las bases de datos de la Municipalidad para tener un control previo al ingreso de la solicitud.

Una vez aceptada la solicitud a par r de la información suministrada por el profesional, el sistema genera los formularios completos para que sean impresos y conformen el legajo que debe ser presentado para iniciar el trámite.

Posteriormente se realiza el seguimiento en la Plataforma de trámites, tal como fue anteriormente descripto.

CAMBIO EN EL MODO DE GESTIONAR EL EXPEDIENTE

Actualmente el expediente es analizado por el visador y registrado en el sistema de mesa de entradas de la DOP cada vez que se requiere una intervención sobre el mismo, ya sea en la propia DOP o ajena a esta, exigiendo que ante cada movimiento se deba registrar el pase en el sistema. Recién después de esto el expediente pasa al

del trámite (Ejemplo pico) Propuesta Actual
Fig. 1
Controles
Visador
capba IX 10 EJERCICIO PROFESIONAL

visador a la espera de que sea analizado para enviarlo a otro lugar y así sucesivamente.

El nuevo sistema establece un circuito con una única intervención del visador para determinar los controles que deben ser realizados por otras dependencias antes de proceder a visar el expediente. Para ello al ingresar el expediente se analiza y se genera una hoja de ruta que indica las dependencias que deben intervenir y en qué orden, no siendo luego necesario que por cada pase el expediente regrese a la mesa de entrada.

Este sistema genera una mejora de los empos de trabajo e intervención de las áreas -por tener que registrar una menor can dad de pases- y de los visadores -al analizar el expediente una sola vez en forma integral-.

A modo de ejemplo se muestra un caso pico de intervención de tres áreas (registro patrimonial, uso de suelo y electromecánica), donde con el sistema actual se realizan trece pasos y con el nuevo se reducen a siete.

(Ver Fig. 1).

SITIO WEB DE OBRAS PRIVADAS

La sección de Obras Privadas, dentro del si o web del Municipio www.mardelplata.gob.ar/obrasprivadas, ha sido rediseñada con el fin de mejorar el acceso a los diferentes servicios disponibles. Asimismo se incluyó una Guía de Trámites con el detalle de cada trámite, su descripción, los formularios y documentos requeridos y enlaces a las normas vigentes para que todos los profesionales cuenten con la información actualizada en un mismo si o.

La reingeniería de procesos, junto a la informa zación y al trabajo con las áreas municipales involucradas, han generado ya mejoras significa vas en diferentes trámites municipales, como por ejemplo es el caso de los reclamos y turnos que se ges onan a través del centro de atención al vecino, dónde se garan zan empos de respuesta y el ciudadano puede consultar en todo momento el avance de su solicitud. Es así que hoy la reparación de una luminaria que no enciende ene un plazo de cinco días hábiles de resolución y la tasa de cumplimiento fluctúa entre el 92% y 96%, pudiendo el vecino en todo momento saber en qué estado está su reclamo. Esto es sólo un ejemplo de uno de los varios servicios que se sumaron al Centro de Atención al Vecino y que muestran una cambio significa vo en el nivel de servicio ofrecido por el Municipio y en la forma de trabajo de las áreas involucradas.

Tenemos el convencimiento que la implementación del nuevo sistema de obras privadas permi rá una mejora significa va que beneficiará a los profesionales involucrados y que marcará el inicio de un proceso de mejora con nua por el cual se irán incorporando progresivamente nuevas prestaciones. Como en todo sistema, para que la implementación del mismo sea exitosa es clave la par cipación de todos quienes intervienen en el mismo, tanto dentro del Municipio como los profesionales, quienes enen un rol clave en esto.

Ing. Renato Rosselló
ASUNTOS MUNICIPALES capba IX 11 EJERCICIO PROFESIONAL
Secretario de Desarrollo Tecnológico y Mejora de la Administración Municipalidad de Gral. Pueyrredon

El CAPBA IX renovó el Convenio de Colaboración con la MGP

Convenio Marco con Municipalidad de General Pueyrredon

El pasado 15 de julio se procedió a la firma de un Convenio que renueva la intención de colaboración conjunta que ambas Ins tuciones enen desde hace varios años.

En un acto que contó con la presencia de autoridades municipales, representantes de organización intermedias, colegio profesionales y colegas, se realizó la firma del Convenio Marco de Cooperación Técnica y Cien fica entre la Municipalidad del Par do de General Pueyrredon, representada por el Señor Intendente Municipal, CPN Gustavo Pul , y el Colegio de Arquitectos de la Provincia de Buenos Aires, Distrito IX, representado por su Presidente, Arq. Julia Romero, y su Secretario, Arq. Daniel Monzón.

La instrumentación de este Convenio será a través de programas de coordinación y cooperación para la ejecución, conjunta o a pedido de una de las partes, de estudios y/o proyectos de inves gación en áreas o temas de interés de alguna de las partes, para la formación, capacitación y desarrollo del ejercicio profesional, intercambio de información cien fica y técnica y toda otra ac vidad que resulte de mutuo interés.

A par r de este convenio ambas Ins tuciones llevarán conjuntamente:

1. Actuar en el asesoramiento y consultoría, de las partes, en áreas de problemas de su competencia;

2. Contribuir al entrenamiento, capacitación y perfeccionamiento de los Profesionales de ambas ins tuciones;

3. Establecer los canales y métodos que faciliten el fluido intercambio de información en relación a los temas de incumbencias de las partes;

4. Copar cipar en acciones que contribuyan a la promoción de los temas de interés para las partes;

5. Ges onar en forma conjunta convocatorias a concursos de Arquitectura y Urbanismo, en las modalidades que cada caso par cular requiera;

6. Auspiciar aquellas acciones que signifiquen apoyo al desarrollo de la comunidad, en temas de interés para ambas partes.

capba IX 12 EJERCICIO PROFESIONAL

Las acciones a que dé lugar este Convenio serán instrumentadas en acuerdos específicos, en los que se establecerán los detalles de su realización para cumplir las finalidades específicas de los mismos. Los acuerdos específicos serán suscriptos por el Señor Intendente Municipal y la Señora Presidente e informados con ajuste a las normas internas de organización y procedimientos establecidas por las partes, en sus respec vos ámbitos.

En la Jurisdicción Municipal, cuando el plan involucre a uno o más Entes descentralizados y/o a Obras Sanitarias Mar del Plata S.E., el tular de éstos rubricará el plan de trabajo correspondiente. En el ámbito del CAPBA, los mismos serán refrendados por el Consejo Direc vo del mismo.

Mientras que para la publicación de los resultados parciales o defini vos que se logren, se requerirá la aprobación expresa de las partes y en las mismas se hará constar que han sido realizadas en marco del presente Convenio.

Con el objeto de programar, orientar y coordinar las acciones que deriven del presente Convenio, acuerdan designar al Señor Secretario de Obras y Planeamiento Urbano de la MUNICIPALIDAD y al Señor Secretario del CAPBA IX, representantes por cada una de las partes, quienes actuarán como nexo ins tucional.

Finalmente el CAPBA IX se encuentra impulsando convenios similares con el resto de los municipio que integran el Distrito IX a través de las ges ones que realizan los Delegados en cada localidad. Consideramos que estas modalidades de asocia vidad permiten fortalecer la Ins tución y acercar a la comunidad en general, y a los municipios en par cular, los aportes que desde nuestra ac vidad profesional podemos realizar en pos de atender demandas y necesidades de nuestra región.

Planes especiales para arquitectos en

ASUNTOS MUNICIPALES capba IX 13 EJERCICIO PROFESIONAL

Construcción sustentable cuidando el entorno

Los ladrillos retak® son elaborados a par r de un riguroso proceso de fabricación, en el cual se mezclan áridos, aglomerantes y un agente expansor que provoca la incorporación de millones de pequeñas burbujas de aire que no se conectan entre sí. Para finalizar se introduce el material cortado en los diferentes espesores en hornos de autoclave. El mismo permanecerá allí por 12 horas, obteniéndose un producto con dimensiones estables.

PRESENTACIÓN DE LOS PRODUCTOS

Todos los ladrillos se presentan en un formato de medidas de 50 cen metros de largo y 25 cen metros de alto, variando sólo en su espesor. Para el caso de paredes portantes: 15, 17.5 y 20 cm, respec vamente. Para tabiques divisorios, las medidas que se presentan comercialmente enen 7.5, 10 y 12.5 cm.

También se ofrecen ladrillos en forma de “U” que sirven para la realización de encadenados, dinteles, vigas de esfuerzo, refuerzos ver cales y otros usos.

En tanto, los ladrillos “O” previamente ahuecados en un extremo posibilitan la realización de refuerzos “ po tensor” en esquinas, extremos libres de muros y tabiques.

Los dinteles de HCCA son piezas reforzadas con barras internas de acero, protegidas de la corrosión, para cubrir vanos de puertas y ventanas de muros exteriores e interiores.

La gama de productos se completa con mortero adhesivo, para adherir los ladrillos.

retak® cuenta con su propia línea de reves mientos interiores y exteriores ofreciendo una solución prác ca ante cada necesidad.

CARACTERÍSTICAS

Las burbujas de aire mencionadas proporcionan las siguientes caracterís cas al producto:

 Baja Absorción de agua, permi endo realizar la protección hidrófuga simplemente con una pintura látex exterior.

 Liviandad (620 kg/m3). En pared terminada es un 50% más liviano que la mampostería tradicional.

 Gran trabajabilidad del material, permi endo de manera sencilla realizar cortes y ajustes en la mampostería, reduciendo el desperdicio.

 Gran Aislación Térmica. Una pared realizada con retak® de 15 espesor (0.60 Kcal/m2 h °C m2) ob ene una aislación ampliamente superior a la realizada en doble muro más cámara de aire de material tradicional.

capba IX 14 EJERCICIO PROFESIONAL

VENTAJAS

Debido a la exac tud dimensional que presentan las piezas retak®, los muros no necesitan el revoque grueso, permi endo aplicar la terminación (ej. yeso) directamente sobre el paramento. En zonas húmedas como baños y cocina permite la colocación de cerámicos directamente sobre el ladrillo, evitando el revoque grueso. Estas ventajas ofrecen:

 Una obra limpia, seca y ordenada.

 Ahorro en empos de ejecución y menor movimiento de materiales.

 Óp mo rendimiento: cada m2 está compuesto de 8 ladrillos.

 Gran trabajabilidad que permite, en forma sencilla, realizar paramentos rectos y curvos.

 Excelente aislación térmica en menores espesores, ganando superficie.

 Una baja absorción, resistencia al pasaje de humedad, ciclos de congelación, deshielo y ataques químicos, debido a la ausencia de la estructura capilar. Se logran paredes macizas, portantes y livianas.

Elimina:

 Los desperdicios y acopio de diferentes materiales.

 La mano de obra especializada.

 El revoque grueso y azotado en muros exteriores.

 El movimiento de grúas, herramientas y accesorios especiales dentro de la obra.

retak® apuesta a la capacitación y actualización permanente, por esta razón realiza cursos y jornadas a profesionales, constructores, desarrolladores y demás sectores involucrados en el rubro de la construcción, presentándose en diferentes puntos del país y permi endo tomar contacto directo con el producto. A través de nuestro si o web www. retak.com.ar podrá obtener más información y conocer los locales donde adquirir los productos.

Asimismo, retak® cuenta con su propio Departamento Técnico que podrá asis rlo tanto en su proyecto como en el desarrollo de la obra, brindándole el apoyo necesario, atendiendo todas las consultas, e incluso poniendo a disposición del cliente una completa documentación técnica, Manual Técnico de obra y un foro on line en el que diariamente se responde diversas consultas de los usuarios.

ASESORAMIENTO TÉCNICO
15

DN. Cercos eléctricos perimetrales de seguridad

ALARI3 es el único sistema electrónico integral que energiza y controla de modo seguro. Diseñado para dar seguridad a cercos perimetrales, se basa en su gran poder de disuasión.

CÓMO FUNCIONA?

Este equipo emite un pulso de energía controlada (máx. 58 pulsos por minuto) que circula a través de hilos especiales de acero, que le dará una descarga al posible invasor, alejándolo de inmediato sin producirle daño. ALARI3 es un sistema que le brinda la posibilidad de que no tenga que lamentar un robo, la invasión o el deterioro de un predio cercado eléctricamente. Este sistema le indicará sonoramente el momento exacto (con una demora menor a 4 segundos) en que el alambrado sea cortado, que el cercado sea puesto a erra o que por algún otro mo vo el Pulso Eléctrico de Alta Tensión (en el cercado) caiga por debajo del nivel de seguridad preestablecido y le permi rá tomar a Ud. las medidas de seguridad per nentes.

La señal sonora se silenciará después de un breve empo sólo cuando se restablezca el funcionamiento correcto del cercado eléctrico.

Simultáneamente con la señal sonora se habilita la “SALIDA ALARMA”, que ALARI3 provee y que permite darle señal para accionar una sirena (con o sin temporización) o un sistema de iluminación de emergencia para el caso de proteger un predio, y además otra salida que le permite asociarlo con una zona libre en su sistema de alarma.

Posee una indicación luminosa que le advierte que hubo una “FALLA EN CERCO”, esto le debe sugerir que se intentó violar el sistema.

ALARI3 incluye una batería interna que le brinda una autonomía de hasta 72 hs. sin suministro de energía eléctrica desde la red de 220 VCA.

16

E S LEGAL SU USO?

Siempre bajo las normas vigentes. Los pulsos de energía enviados a través de los conductores no matan ni dañan a la persona, sólo recibe una descarga que inhibe la intención de tratar de invadir nuevamente el cerco. Una vez que ALARI3 está instalado dentro su propiedad, el contacto del intruso con el sistema implica la ilegalidad de su intento. Está comprobado cien ficamente y expresado en la norma IEC 479-2 cuál es la máxima energía que puede soportar el ser humano. Los sistemas ALARI3 entregan un 20% de la energía máxima autorizada por la norma, por eso la mención de energía controlada. Y son producidos con tecnologías probadas en el país por más de 30 años. Todo esto hace que su instalación no esté prohibida.

Los sistemas ALARI3 son fabricados bajo norma IEC 603352-76 y IEC 479-2. Este organismo internacional colaboró en la formación de dicha norma como así también para el asesoramiento y confección de las normas de Australia y Nueva Zelandia a pedido de la Auditoría del Ente Regulador Australiano y el Ministerio de Comercio de Nueva Zelanda. Además es notoria la intención de decir “Permanezca Fuera” inducida por la obligatoriedad de la colocación de las señales o carteles de advertencia.

El más alto PODER DISUASIVO al más BAJO COSTO DEL MERCADO.

Seguridad, la mejor inversión:

• Gran poder disuasivo

• Menor costo por metro Instalado

• Detección de pre-intrusión

• Monitoreo local o remoto

• No requiere instalaciones bajo erra

• Rápido y fácil montaje

• Aviso automá co a central de Monitoreo

• La línea más completa de Accesorios

• Soporte técnico para proyectos

 Absolutamente seguro: los equipos ALARI3 son fabricados bajo normas IEC 60335-2-76 y IEC 479-2.

 Con cer ficación: de IRAM y BUREAU VERITAS.

 Permite aplicaciones diversas: residencias, depósitos, barrios cerrados, clubes de campo, perímetros de terrazas y medianeras, plantas industriales, si os de telefonía remotos, cárceles, centros de logís ca y distribución, etc.

 Visible: la visibilidad del cerco junto con la obligatoriedad de usar carteles señalizadores de cerco eléctrico hace que el sistema se torne el más disuasivo de los métodos de protección perimetral.

 No requiere mantenimiento: se aconseja la revisión anual de la parte del sistema a la intemperie y el testeo del equipo, por un instalador homologado.

 No es propenso a las falsas alarmas: no genera falsas alarmas por vientos fuertes, lluvia, alta humedad etc. Equipos preparados para ignorar el contacto de animales, perros, gatos, pájaros, etc., sin procesar estas señales para evitar falsas alarmas.

 Consumo: menor al 50% de lo que consume una bombita de luz tradicional de baja potencia.

ASESORAMIENTO TÉCNICO
INSTALE SÓLO EQUIPOS CON CERTIFICACIÓN IRAM. REALICE SUS INSTALACIONES SOLAMENTE CON PERSONAL HOMOLOGADO.
capba IX 17 EJERCICIO PROFESIONAL

Aluminio, tecnología y una empresa con historia

Con orgullo de sa sfacer desde hace casi 50 años las necesidades de nuestros clientes.

DESMECA S.A. es una empresa familiar fundada el 12 de Junio del año 1967 en la ciudad de ELDORADO (Prov. de Misiones), con 47 años de experiencia dedicada a la fabricación y distribución de aberturas.

Con el compromiso de siempre, el anhelo de producir y comercializar el mejor producto del mercado e incorporar nuevas tendencias vanguardistas, DESMECA ha ido ampliando sus instalaciones, y adquiriendo maquinarias de alta precisión y úl ma tecnología.

Su personal, recurso muy preciado, fue acompañando este crecimiento. Desde aquella época hasta ahora se crearon diferentes centros de distribución, ELDORADO, POSADAS, MAR DEL PLATA, para poder llegar así a dis ntos puntos del país, logrando abastecer desde Misiones hasta Tierra del Fuego y brindando una mejor respuesta al mercado.

18

Con el obje vo de seguir creciendo, innovando y mejorando cada día, DESMECA presenta hoy:

 Línea completa de aberturas en aluminio y compactos.

 Sistema de placares.

 Mamparas.

 Servicio de entrega en obra, colocación y postventa.

LINEAS DE CARPINTERÍA: Desde las más tradicionales hasta las de mayor prestación.

 HERRERO CLÁSICA: Tipología de líneas rectas que permite un vidriado simple, felpas y burletes. Compuesta por ventanas corredizas, paños fijos, puertas, proyectantes, banderolas, aireadores.

 HERRERO VISTA: Sistema corredizo clásico, en el cual su diseño permite combinar perfiles que aceptan un cierre lateral.

 SISTEMA COMPACTO: Cajón que se coloca encima de la abertura formando un bloque compacto que con ene la cor na, brindándole herme cidad. Facilita la instalación y el acceso al mecanismo en futuros mantenimientos o reparaciones. Con la capacidad de una mayor resistencia, y menor peso nos permite cubrir espacios de grandes dimensiones.

 ROTONDA: Sistema corredizo que permite vidrios de 3 mm hasta 8 mm, felpas, y burletes. Carpintería de mediana prestación.

 MÓDENA: De excelente diseño sus caracterís cas de herme cidad, estanqueidad, la posibilidad

del vidriado DVH y la calidad de sus accesorios la ubican como una abertura de alta prestación.

 A30 NEW: Carpintería de alta gama. Con perfilería que nos permite llegar a dobles alturas. La herme cidad, aislación termo-acústica (DVH), su diseño, y accesorios de última generación, dan como resultado un producto de gran calidad y performance.

 CERRAMIENTOS PARA BALCONES Y SISTEMA DE BARANDAS: Sistema moderno de protección para balcones, terrazas, escaleras y decks. Compuesto por barandas de aluminio y vidrios que permiten una mayor visibilidad.

 SISTEMA DE PLACARES: Sistema integral de frente de placares para puertas corredizas de melamina, vidrio o espejo. De rápida y fácil instalación. Ideal para armar en Obra.

 MAMPARAS: Sistema de aluminio, desmontable, diseñados a medida.

 SISTEMA DE VIDRIADO / DVH: Todo po de vidriados que acompañan y dan terminación al sistema de aberturas float / especiales / laminados / DVH.

 SERVICIO PRE Y POST VENTA / COLOCACIÓN / FLETE: Soluciones integrales para el momento de sus aberturas. Poniendo a su disposición nuestra vasta experiencia y todos los servicios pre y post venta. Toma de medidas en obra, entrega de muestras para niveles de pisos, el mejor asesoramiento, flete propio, colocación, ajustes, sellados. Encontrando siempre una solución a sus problemas.

ASESORAMIENTO TÉCNICO
Poseemos un stock de perfiles en fábrica que permiten la entrega inmediata de obras de gran embergadura y respaldan su capital.
capba IX 19 EJERCICIO PROFESIONAL

FICHA TÉCNICA

ESTUDIO

AM Arquitectos

Arq. Eduardo Agüero

Arq. Mar n Marcenaro

CATEGORÍA

Vivienda individual

UBICACIÓN

Primera Junta esq. Olavarria, Mar del Plata

SUPERFICIES

Sup. Terreno: 272,98 m²

Sup. Cubierta: 213,19 m²

Sup. Semicub: 30.65 m²

AÑO DE CONSTRUCCIÓN

2011

VIVIENDA INDIVIDUAL

Vivienda unifamiliar en Mar del Plata

PUNTOS DE PARTIDA

Con un terreno de 12,12 x 22,52 metros, ubicado en la esquina de Primera Junta y Olavarría, en un barrio residencial de baja densidad y rodeado de casas de grandes dimensiones, recibimos el encargo de esta vivienda para un cliente que la des naría a la venta.

El primer desa o fue, entonces, trabajar para un futuro usuario desconocido; situación que es común en los proyectos de propiedad horizontal, pero no tanto en viviendas individuales. Asimismo, y de acuerdo con las reglamentaciones vigentes, nos hallábamos obligados a dejar un re ro de frente de 5 metros sobre la calle Primera Junta.

capba IX 20 EJERCICIO PROFESIONAL
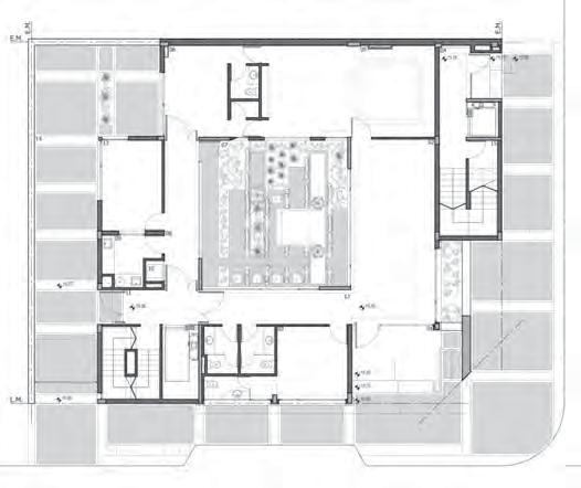
OBRAS EN EL DISTRITO
PLANTA SOLARIUM
PLANTA ALTA
capba IX 21 EJERCICIO PROFESIONAL
PLANTA BAJA
capba IX 22 EJERCICIO PROFESIONAL

FORMA E IMPLANTACIÓN

Decidimos plantear la edificación como un bloque compacto de dos niveles de altura, y que por su ubicación, dividiera claramente un pa o de accesos ubicado en el re ro de frente, de un jardín protegido orientado al buen asoleamiento.

El re ro de frente fue planteado totalmente abierto, cediendo un espacio que se adosa a la vereda y en el cual se resuelven tanto el acceso peatonal como vehicular.

El jardín posterior, en cambio, fue tomado como un espacio de uso exclusivo de la casa. Una cara está protegida de los vientos del sur gracias a la propia construcción y en la cara que linda con la calle, un plano de piedra se desprende del volumen principal dando in midad y protección climá ca a este espacio.

PROGRAMA FUNCIONAL

La distribución interna es muy simple, y si imaginamos cuatro cuadrantes, el cuadrante sur está ocupado por la cocina, toile e, escalera y acceso. Los otros tres cuadrantes restantes lo ocupan el estarcomedor, cochera doble, galería y parrilla. La cochera está planteada como un espacio de uso diario, unificable con el estar-comedor mediante cerramientos corredizos.

En planta alta se repite la ubicación de servicios al sur, esta vez con baño, escalera y lavadero. Completan el programa un estudio hacia la calle y los tres dormitorios dando hacia el jardín en busca de tranquilidad.

Por úl mo, la misma escalera sube un nivel más y reemplazamos el techo tradicional por una terraza u lizable, a la que dotamos de un pequeño semicubierto y una parrilla. Desde este lugar se logran vistas muy interesantes hacia un entorno de construcciones bajas.

En cuanto a la imagen, trabajamos con una volumetría moderna, pero u lizamos materiales como la piedra y la madera que son picos de los chalets tradicionales marplatenses, teniendo en cuenta que estos otorgan calidez y una mejor inserción en el entorno.

OBRAS EN EL DISTRITO FACHADA FRENTE FACHADA LATERAL SECCION LONGITUDINAL CONTACTO Diagonal Pueyrredón 3115, 1º piso of. 2 493. Mar del Plata Tel. 154004628 / 154001454 e-mail: info@agueromarcenaro.com.ar
capba IX 23 EJERCICIO PROFESIONAL

FICHA TÉCNICA

ESTUDIO

Id:arq, arquitectura y diseño

CATEGORÍA

Salud

UBICACIÓN

Gascón 3019 esq. La Rioja

Mar del Plata

COMITENTE

Dr. José Luis Tesler

CALCULO ESTRUCTURAL

Ing. César Cabaleiro

CONSTRUCCION

CONSCA S.A.

SUPERFICIES

Sup. Cubierta 1056,00 m²

Sup. Semicubierta 84,00 m²

AÑO DE CONSTRUCCIÓN

2008

ARQUITECTURA PARA LA SALUD

Una esquina con buena esté ca

La búsqueda de una imagen esté ca acorde a la función desarrollada siempre ha sido un desa o para los arquitectos. Acercarse a la arquitectura de esta clínica privada, ya forma parte del camino hacia la belleza anhelada.

capba IX 24 EJERCICIO PROFESIONAL

EL COMITENTE. Un reconocido médico que realiza dos ac vidades principales: una es la esté ca corporal (cirugía esté ca general) y la otra es la recuperación capilar, nos encomendó el proyecto de un edificio que concentrara ambas. Debido a que su ac vidad está relacionada con la esté ca el edificio debía reflejar una imagen moderna y atrac va.

LA UBICACIÓN. La obra se encuentra en una importante esquina del macro centro de la ciudad cuyas dos calles experimentan un fluido tránsito, ya que desembocan a avenidas troncales de Mar del Plata como son la Av. Colón y la Av. Independencia. El barrio es caracterís co de la ciudad, y en los úl mos años se ha poblado de ac vidades profesionales y administra vas.

LA IMPLANTACIÓN. El edificio se emplaza en un terreno de esquina, de 17.32 m. x 22.57 m. Se apoya sobre ambas líneas municipales -dando con nuidad al telón de fachadas que conforman la manzana- y sobre una de las medianeras, separándose de la otra mediante la generación de un acceso y pa o de servicio.

EL PROGRAMA. Dos ac vidades a resolver –como mencionamos anteriormente-, dis ntas pero dentro de la misma especialidad y que concentrarían dos públicos diferentes, eran las bases del programa. Dichos paquetes consis an en el que sería la clínica esté ca -paquete principal- y la clínica de recuperación capilar

-en segundo lugar-. Así se optó por resolver el primero con su acceso por la esquina y desarrollándose en Planta Baja las ac vidades más públicas; entre ellas: la recepción, espera y los consultorios, y en el Segundo Piso las más complejas, como son: el quirófano y las áreas de recuperación y habitaciones. La segunda ac vidad, la de recuperación capilar, se resuelve totalmente en el Primer Piso con núcleo de acceso diferenciado por la calle La Rioja. La decisión de alternar los pisos en este sen do se debió a que consideramos más apropiado ubicar el área de quirófanos y de recuperación en las plantas más altas evitando circulación y despegándola del ruido de la calle, además de lograr que ambas ac vidades mantuvieran su jerarquía y fueran de fácil acceso desde la calle.

El edificio cuenta con un subsuelo donde se localizan los servicios generales y un sector de esterilización. Como remate en el tercer piso se generó una planta de consultorios que sirven de apoyo a ambas especialidades y un complemento de esté ca corporal.

EL PROYECTO. Su desarrollo se basó en la idea de generar un espacio interior que diera a la clínica un exterior controlado, despojándola del movimiento y los ruidos de la ciudad brindando así a los pacientes y al personal de la clínica un ambiente relajado y placentero. De esta manera se concibió un edificio con un pa o interior al que se vuelcan las ac vidades públicas y de estar, entendiendo a este como “pulmón” del mismo. El

OBRAS EN EL DISTRITO capba IX 25 EJERCICIO PROFESIONAL
26

pa o se diseñó en función a las líneas rectas dominantes en este edificio, se trató de conjugar la tranquilidad que trasmite el verde con el sonido del agua generada por la cascada.

La volumetría del edificio se resolvió a través de tres elementos principales: el primero lo conforman los volúmenes más ciegos que con enen los núcleos ver cales; los mismos se trataron con un reves miento plás co texturable claro y buñado que le otorga sobriedad a la masividad. El segundo lo conforma el volumen más abierto que con ene las ac vidades más públicas, dicho volumen ene una gran abertura a manera de pantalla controlada por parasoles que le otorgan dinamismo a la fachada, a su vez baja con una ‘pata’ que enfa za el acceso por la esquina. Para darle un carácter si se quiere “brutalista”, se optó por realizarlo de hormigón a la vista,

Estudio id:arq

El estudio id:arq está cons tuido desde el año 2002 por los arquitectos Diego Agus , Gustavo Perales, Sergio Simonelli y Mauricio Te , todos graduados en la UNMDP. Algunos de sus integrantes ejercieron la docencia en la FAUD en el área de diseño y comunicación visual.

El estudio se aboca fundamentalmente proyecto y dirección de obra, habiendo desarrollado como una de las especialidades la temá ca de salud. En otros campos, ha realizado proyectos de viviendas, edificios mul familiares y de oficinas, locales comerciales y hotelería.

Actualmente se encuentra trabajando en un proyecto de escala urbana en la ciudad de Tandil, tema que también ha sido abordado en otras oportunidades.

Paralelamente desde el año 2003 ha desarrollado varios trabajos, algunos de ellos en sociedad, para un estudio de arquitectura conformado por arquitectos argen nos residentes en Orlando, Florida, EEUU, especializado en el desarrollo de parques temá cos y urbanizaciones localizadas en dis ntas ciudades de China.

El estudio ha par cipado también en diversos concursos de arquitectura locales, nacionales e internacionales.

CONTACTO

Catamarca 2633 1º A | 0223-4939188 | Mar del Plata | estudio@idarq.com | www.idarq.com

al que se le aplicó un enlucido de cemento. Como tercer elemento se realizó una trama cuya función formal fue la de otorgar unidad al conjunto. Intentando darle una imagen liviana se realizó una trama reves da en Alucobond muy vidriada, que con ene las ac vidades de espera en todos los pisos y los consultorios del remate.

Todas las circulaciones interiores dan al pa o, en este caso se optó por diferenciar las públicas de las técnicas mediante los vidrios, que en todos los casos son de piso a techo, realizando las primeras con vidrio transparente. En el caso de las circulaciones técnicas se materializaron con un sistema de perfiles de cristal “Profilit” dándoles mayor privacidad.

Estudio Id:arq Arquitectura y Diseño

OBRAS EN EL DISTRITO capba IX 27 EJERCICIO PROFESIONAL

Nueva norma va para excavaciones norma

Resolución de la Superintendencia de Riesgos del Trabajo 503/14

Desde marzo de este año, toda excavación a nivel nacional que supere la cota de 1.20 mts. deberá cumplir una serie de exigencias adicionales en materia de prevención de riesgos laborales, tanto desde el plano documental como en la seguridad operacional. Esta norma va complementa las exigencias de la Res. 550 para excavaciones no incluidas en dicha resolución del año 2011.

Resumiendo las nuevas disposiciones, el Servicio de HyS y los responsables técnicos deben preparar y completar: 1) un P.T.S. Permiso de Trabajo Seguro que, en forma diaria y una vez estudiadas las condiciones de seguridad, habilita las tareas. 2) Una capacitación diaria, conocida en la industria como la “Charla de los 5 minutos”. 3) Uso de arnés completo en excavaciones mayores a 1.80 mts., para permi r una rápida extracción en caso de derrumbe. 4) Tablestacado, en bado y vallado eficiente. 5) Personal de apoyatura obligatorio para cada frente de trabajo ac vo. 6) Ejecución de Análisis de Trabajo Seguro para tareas extraordinarias. 7) Ampliación de los elementos que conforman el Legajo Técnico. 8) Las ART deben implementar un plan de visitas especial, con un control durante la primera semana de las tareas y luego en forma quincenal.

Excavaciones menores a 1.20 mts, con núan con las usuales protecciones establecidas por el Dto. 911/96.

Arq. Darío Romero Especialista en Higiene y Seguridad Miembro de la Subcomisión de Ejercicio Profesional (SCA)
capba IX 28 EJERCICIO PROFESIONAL

MINISTERIO DE TRABAJO, EMPLEO Y SEGURIDAD SOCIAL

SUPERINTENDENCIA DE RIESGOS DEL TRABAJO

Bs. As., 12/3/2014

VISTO el Expediente Nº 77.416/12 del Registro de esta SUPERINTENDENCIA DE RIESGOS DEL TRABAJO (S.R.T.), las Leyes Nº 19.587, Nº 24.557, los Decretos Nº 779 de fecha 20 de noviembre de 1995, 170 de fecha 21 de febrero de 1996, Nº 911 de fecha 5 de agosto de 1996, Nº 1.057 de fecha 11 de noviembre de 2003, las Resoluciones

S.R.T. Nº 231 de fecha 22 de noviembre de 1996, Nº 51 de fecha 7 de julio de 1997, Nº 35 de fecha 31 de marzo de 1998, Nº 319 de fecha 9 de sep embre de 1999, Nº 552 de fecha 7 de diciembre de 2001, Nº 953 de fecha 2 de Julio de 2010, Nº 550 de fecha 26 de abril de 2011, y

CONSIDERANDO:

Que el ar culo 1°, apartado 2, inciso a), de la Ley Nº 24.557 sobre Riesgos del Trabajo (L.R.T.), estableció como uno de sus obje vos fundamentales la reducción de la siniestralidad a través de la prevención de los riesgos derivados del trabajo.

Que del mismo modo, el ar culo 4°, apartado 1 de la Ley de Riesgos del Trabajo dispone que tanto las Aseguradoras de Riesgos del Trabajo (A.R.T.), como los empleadores y sus trabajadores, se encuentran obligados a adoptar medidas tendientes a prevenir eficazmente los riesgos del trabajo para lo cual deben asumir compromisos concretos a fin de cumplir con las normas de seguridad e higiene en el trabajo.

Que asimismo el ar culo 19 del Decreto Nº 170 de fecha 21 de febrero de 1996, facultó a esta SUPERINTENDENCIA DE RIESGOS DEL TRABAJO (S.R.T.) a determinar la frecuencia y condiciones en la realización de las ac vidades de prevención y control, teniendo en cuenta las necesidades de cada una de las ramas de ac vidad.

Que el Decreto Nº 911 de fecha 5 de agosto de 1996, aprobó el reglamento de Higiene y Seguridad para la Industria de la Construcción atendiendo a las par cularidades de dicha industria, destacándose entre ellas, la coexistencia dentro de una misma obra de personal dependiente del comitente y de uno o más contra stas o subcontra stas, lo que genera situaciones especiales respecto a la determinación de la responsabilidad en el cumplimiento de las normas de seguridad e higiene en el trabajo.

Que asimismo, el ar culo 7° del Anexo del referido decreto estableció entre las obligaciones del empleador, la de implementar las acciones y proveer los recursos materiales y humanos necesarios para el mantenimiento de Condiciones y Medio Ambiente de Trabajo que aseguren la protección sica y mental y el bienestar de los trabajadores.

Que mediante las resoluciones S.R.T. referidas a la industria de la construcción se han implementado dis ntas acciones de prevención de infortunios laborales en el ambiente de trabajo que ocupan a los empleados del sector de la mencionada industria.

Que esta industria genera riesgos específicos cuya variedad y secuencia, exige un tratamiento diferenciado.

Que la prác ca en la materia ha demostrado que donde se ejecutan trabajos de movimiento de suelos, excavaciones manuales o mecánicas a cielo abierto superiores a UN METRO VEINTE (1,20 m) de profundidad para la ejecución de canales, zanjeos, pozos, subsuelos que no posean submuraciones, compactación del suelo, o rellenos, existen situaciones de riesgos que pueden derivar en accidentes graves para los trabajadores.

Que por sus caracterís cas par culares, corresponde implementar métodos diferenciados para estas ac vidades. Que en el contexto señalado, resulta necesario establecer un mecanismo de intervención más eficiente en la ejecución de tales tareas, con el fin de mejorar las medidas de seguridad preven va, correc va y de control en las obras de construcción.

Que estas disposiciones facilitarán el control del cumplimiento de las medidas de seguridad adoptadas en el programa de seguridad y de la norma va vigente para realizar los trabajos de excavaciones a cielo abierto en forma segura.

SEGURIDAD E HIGIENE
RESOLUCIÓN Nº 503/2014 capba IX 29 EJERCICIO PROFESIONAL

Que la Gerencia de Asuntos Legales ha intervenido en el ámbito de su competencia.

Que la presente se dicta en virtud de las facultades conferidas por el inciso a), apartado 1°, ar culo 36, de la Ley Nº 24.557, en el ar culo 19 del Decreto Nº 170/96 y en el ar culo 3° del Decreto Nº 911/96, sus tuido por el ar culo 3° del Decreto Nº 1.057 de fecha 11 de noviembre de 2003.

Por ello, EL SUPERINTENDENTE DE RIESGOS DEL TRABAJO RESUELVE:

ARTICULO 1° — Establécese que cuando se ejecuten trabajos de movimiento de suelos, excavaciones manuales o mecánicas a cielo abierto superiores a UN METRO VEINTE (1,20 m) de profundidad, para la ejecución de zanjas y pozos y todo otro po de excavación no incluida en la Resolución de esta SUPERINTENDENCIA DE RIESGOS DEL TRABAJO (S.R.T.) Nº 550 de fecha 26 de abril de 2011, el Empleador debe adoptar las medidas de prevención que se detallan en el Anexo de la presente resolución.

ARTICULO 2° — Apruébense las acciones establecidas en el Anexo, para los trabajos descriptos en el ar culo 1° de la presente resolución.

ARTICULO 3° — Es púlase que la documentación resultante, en razón de la aplicación de la presente resolución debe incorporarse al Legajo Técnico de la obra, prescripto en el ar culo 3° del Anexo I de la Resolución S.R.T. Nº 231 de fecha 22 de noviembre de 1996.

ARTICULO 4° — Establécese que todas las excavaciones menores de UNO CON VEINTE METROS (1,20 m) de profundidad, respetarán las medidas de seguridad es puladas en el Decreto Nº 911 de fecha 5 de agosto de 1996, en sus dis ntos capítulos.

ARTICULO 5° — Determínase que esta resolución no se aplica a los trabajos de túneles, galerías subterráneas y minería.

ARTICULO 6° — Comuníquese, publíquese, dése a la Dirección Nacional del Registro Oficial, y archívese. —

Dr. JUAN H. GONZALEZ GAVIOLA, Superintendente de Riesgos del Trabajo. capba IX
Con nuación. 30 EJERCICIO PROFESIONAL

LA IMPORTANCIA DEL ANEXO

El anexo que acompaña a la Resolución es de vital importancia para la compresión cabal de los cambios. El mismo presenta un contenido dividido bajo diversos tulos en los que se pueden encontrar las acciones preven vas generales referidas a excavaciones a cielo abierto, indicándose las tareas que debe realizar el empleador –análisis de caracterís cas sicas y mecánicas de los suelos, estudio de cercanía de edificaciones y caracterís cas de sus fundaciones, sondeos, análisis de sobrecargas, vibraciones, protocolo de tratamiento de instalaciones existentes, etc.-

También se hallan indicadas distancias de seguridad, medidas sobre circulación de maquinaria, apuntalamiento y disposición adecuada de material proveniente de la misma excavación a fin de evitar caídas, mantener el orden y la limpieza.

Los temas referidos a evacuación del agua, medidas de seguridad en caso de incendio, caída de materiales, u lización de escaleras reglamentarias u otros medios efec vos de seguridad de los trabajadores, también pueden ser consultados en el anexo. Del mismo modo que los equipos de seguridad necesarios, la previsión de protecciones colec vas, señalización, en baciones, barandas, pasarelas e iluminación.

No escapa la indicación de la presencia permanente y las tareas a ejecutar por los profesionales en cada uno de los frentes de obra, del personal técnico responsable, el responsable del Servicio de Higiene y Seguridad o Auxiliares, etc.

El segundo apartado del Anexo aborda las acciones preven vas par culares en ambientes peligrosos, mediante recomendaciones en caso de contaminación

de cualquier naturaleza o condiciones ambientales que pudieran ser perjudiciales para la salud, tales como carga térmica, vapores, gases, nieblas, polvos u otras impurezas en el aire, producidas incluso por los mismos procesos de excavación. Incluye indicaciones referidas a la ven lación adecuada y po de producción de la misma, mediciones de contaminantes, etc.

El tercer apartado trata sobre la Documentación para la ejecución de trabajos, y en él se detalla todo lo que debe quedar perfectamente definido en la memoria descrip va de los trabajos ejecutados: planos de instalaciones existentes (agua, gas, electricidad u otros), los estudios de suelo, los planos de ejecución de los trabajos, determinación del po de excavación, el método de en bado, de tablestacado, u otro medio para evitar derrumbes de las excavaciones, cálculos estructurales para el cumplimiento de las tareas, programa de seguridad, programa de capacitación, etc. Asimismo indicaciones de empos de ejecución de las ac vidades por etapa de obra, obje vos de las ac vidades, duración y contenidos.

Finalmente los úl mos tulos dan cuenta de los avisos de obra y par culares disposiciones de las aseguradoras de riesgos de trabajo (A.R.T.)

¿DÓNDE ACCEDER AL TEXTO COMPLETO DE LA RESOLUCIÓN Y SU ANEXO?

 h p://socearq.org/2.0/ejercicio/

 h p://www.srt.gob.ar/pdf/conferencias_y_seminarios/ 28_04_14/16.30hsMesasdelaIndustriadelaConstruccionSRT.pdf

SEGURIDAD E HIGIENE

Arquitectura para todos accesibilidad universal

Dr. Arq. Eduardo Elkouss en Mar del Plata

A pocos días de finalizada la XII Bienal Internacional de Arquitectura -Costa Rica, 14 al 17 de mayo- que reunió a expertos de América La na y España en torno al tema de “arquitectura para todos”, el arquitecto argen no radicado en España, Eduardo Elkouss, brindó una charla en la Facultad de Arquitectura, Urbanismo y Diseño de Mar del Plata.

Bajo la organización del Grupo de Extensión “Accesibilidad al Medio Físico” dependiente de la Secretaría de Extensión de la FAUD-UNMdP, la charla se llevó a cabo el viernes 30 de mayo con la asistencia de profesionales de la arquitectura y alumnos de la Facultad local, quienes pudieron interiorizarse de conceptos relacionados a la accesibilidad, estado de la cues ón y obras de arquitectura internacional realizadas bajo parámetros accesibles.

MINI BIO

Eduardo Elkouss, nacido en Buenos Aires en 1950, es arquitecto graduado en la UBA, con varios posgrados en su haber. Ha estudiado en el Israel Ins tute of Technology, la Universidad de Pennsylvania y Bartle School-London College. Es Diplomado Técnico Urbanista, por el Ins tuto de Estudios de Administración Local de Madrid, y Doctor Arquitecto por la Universidad Politécnica de la misma ciudad, con el tema de tesis: “La Accesibilidad: hacia la plena integración social de las personas con discapacidad en el entorno urbano y en el natural”, con la calificación de Sobresaliente Cum Laude.

Es también Ex Director del Programa Europeo de Trabajo “Arquitectura para TodosAccesibilidad Universal” de la UIA (Unión Internacional de Arquitectos), para la Región IIIAmérica.

Habitual ponente en los Congresos Mundiales de la UIA (Estambul 2005, Turín 2008 y Tokio 2011), se desempeña asimismo como Jurado Internacional de Concursos, y como conferencista internacional (conferencias recientes: Alicante, Barcelona, Bogotá, Buenos Aires, Copenhague, Djerba, Dublín, Hong Kong, Jurmala, Kyoto, Maceió, Madrid, Oslo, Paris, Pekín, San ago de Chile, San ago de Compostela, Tel Aviv, Torrevieja,Turín, Valdivia). Ha recibido numerosos premios internacionales por sus proyectos accesibles e inclusivos -algunos de ellos realizados en España, Israel, Qatar, entre otros- y ha publicado trabajos sobre arquitectura y accesibilidad.

capba IX DESARROLLO URBANO SUSTENTABLE 32
Plaza Waldo Calero - Torrevieja España

Trabajando como arquitecto, tanto en el ámbito público como privado, Elkouss comentó que debió enfrentarse regularmente con problemas referidos a la accesibilidad. En el intento por resolverlos se dio cuenta de la importancia creciente del tema y fue indagando cada vez más, “par endo de las capacidades de las personas y no sólo de sus discapacidades. Éstas surgen como propia conciencia de las limitaciones del individuo en su interacción con el medio”

Si de realidades ineludibles se trata, los números no mienten: hay actualmente entre 60 y 80 millones de personas con discapacidad en la Unión Europea, una cifra que está des nada a crecer considerablemente al incrementarse la edad de la población. Para el año 2020 se prevé que un cuarto de la población tendrá más de 60 años, y es de notar que el 70% de las personas con discapacidad corresponden a este grupo etario. Por qué son tan enormes las cifras, cabe preguntarse. Es que “la condición de discapacidad” describe una amplia variedad de limitaciones: visuales, audi vas, motrices, y las derivadas de accidentes y enfermedades como el ACV y el Alzheimer, entre otras. 1

1 “Para la mayoría de las personas el medio urbano construido les resulta accesible porque lo usan de manera natural e independiente. Para ellos éste es un hecho habitual, por lo que no reconocen la accesibilidad como una caracterís ca esencial que debe plantearse en el espacio construido (…) Sin embargo otro importante número

Par endo de datos y cifras concretas, Elkouss presentó al auditorio un rastreo histórico de la dimensión social de la discapacidad, desde las civilizaciones an guas hasta hoy, haciendo foco par cularmente en las úl mas décadas. Desde 1968 en adelante el campo de los estudios sobre discapacidad fue en aumento y en especial desde los años 80 cobró mayor importancia aún, al comenzar desde la OMS (Organización Mundial de la Salud) a hablarse de derechos individuales y establecer la importancia del medio sico como factor contextual de incidencia (CIF).

Es a fines del siglo XX y principios del XXI, cuando se afianza el cambio de paradigma, que considera a la discapacidad ya no sólo como un tema médico sino social, aprobando la ONU, la Convención sobre Derechos de las personas con discapacidad, en 2006. A par r de ella se habló abiertamente de ‘Igualdad y no discriminación’, ‘Trabajo, Educación, Mujeres y Niños con discapacidad’, ‘Discapacidad ante emergencias’, entre otros tópicos, creándose finalmente el Centro de Accesibilidad de la ONU, en 2013. En par cular el ar culo 9 corresponde a la Accesibilidad al medio sico.

de personas, mayores, niños, con impedimentos sicos o de otra índole, enen dificultades de movilidad o requieren la ayuda de otras personas, con lo cual el medio ambiente sico les resulta restric vo con numerosas barreras, nada amistoso, muchas veces excluyente, otras con posibilidades de interacción mínimas o nulas con otros individuos”. (De la Tesis Doctoral del Arq. Elkouss)

ACCESIBILIDAD
capba IX DESARROLLO URBANO SUSTENTABLE 3333
Parque Senda Viva - Navarra

Valiéndose de obras en las que intervino, como el Parque Senda Viva en Navarra, la Red de Paradas de Tranvía Accesible para la Ciudad de Murcia, y otros proyectos de edificios administra vos, plazas, parques, paseos marí mos, centros culturales, urbanizaciones, áreas peatonales, etc., el arquitecto Elkouss recorrió las bases conceptuales del diseño para todos o diseño universal -según su origen europeo o norteamericano-.

Al momento de intervenir en el espacio público, el arquitecto resaltó la importancia de lograr una “cadena de accesibilidad”, esto es, lograr que desde la salida de la casa pueda contarse con un camino sin obstáculos para la persona, a fin de que pueda desplazarse independientemente hasta arribar al punto deseado.

Planteó la necesidad de valerse de la Ergonomía (diseño personalizado a la medida del individuo, y no estandarizado), con el fin de facilitar una vida autónoma, sin olvidar las Ayudas Técnicas ante diversas discapacidades (audífonos, bastones, sillas); y el apoyo comunicacional de la Señalé ca (mapas tác les, cartelería, infogra as).

Manifestó además que “es posible incorporar criterios accesibles y de diseño universal en todas partes”, a la vez que la premisa fue confirmada con imágenes de casos con resultados exitosos en América, Europa y África. Desfilaron por la pantalla ejemplos de turismo accesible en balnearios, transporte y espacios públicos en Copenhague y Barcelona, puntualmente los sanitarios accesibles de Berlín y hasta en el Patrimonio, con intervenciones en el Coliseo.

Al concluir la conferencia, el disertante conversó con Info CAPBA IX sobre el posicionamiento de la Argen na con respeto a otros países en materia de accesibilidad, y en referencia señaló que considera a Buenos Aires como la ciudad que encabeza los avances en el tema. “El área céntrica posee el máximo nivel de desarrollo de entornos y espacios urbanos accesibles, cruce de calles y si os para el descanso, acompañando al transporte público y metro bus”. Así mismo resaltó la necesidad de una planificación estratégica y el acompañamiento a los profesionales del diseño mediante publicaciones como manuales de accesibilidad y guías para el diseño del espacio público.

Consultado sobre si generalmente es el espacio público quien marca el liderazgo en las acciones de inclusión o es el ámbito privado, afirmó las realizaciones de ambas esferas “van de la mano. Concien zación, sensibilización, no sólo es tema de los polí cos (refiriéndose a las ges ones públicas), también de los especialistas, que deben incorporar diseño en la ciudad y en las obras privadas”

Elkouss fue jurado en la Bienal de Costa Rica en la que se presentaron 94 trabajos referidos a accesibilidad. Este número demuestra un notable impulso e interés por la temá ca, lo que lo llevó a sostener que “un avance significa vo en materia de accesibilidad universal y de arquitectura para todos debe ser necesariamente el empujón y la vía que facilite el incremento y la mejora de un diseño para la diversidad”

capba IX DESARROLLO URBANO SUSTENTABLE 34
Tranvía de Murcia

Urbanizaciones Costeras Sustentables

El aporte de la arquitectura del paisaje

Nuestra Costa bonaerense ha sufrido los úl mos años un proceso sin pausa de consolidación de suelo urbano, la historia del mismo nos muestra con incontables ejemplos como la calidad ambiental del territorio (soporte) se ve disminuido progresivamente a medida que aumenta la antropización del medio.

CALIDAD AMBIENTAL VS. DESARROLLO URBANO

Podríamos decir que ambas variables –calidad ambiental y desarrollo urbano- describen una relación de proporcionalidad inversa, en la que los valores naturales se ven reducidos, fragmentados y despojados de su función homeostá ca a expensas de la creciente ar ficialización. Sin embargo, la oportunidad de intervenir desde la etapa de planificación inicial de un proyecto de incorporación de suelo urbano, hace posible minimizar y/o rever r esta relación conflic va mediante la evaluación ambiental aplicada a los procesos de planificación primaria.

FICHA TÉCNICA

CATEGORIA

Diseño de paisaje urbano

UBICACIÓN

ACCESO SUR Villa Gesell

RESPONSABLE DE PROYECTO

Estudio Siccardi.

www.estudiosiccardi.com.ar

AÑO DE INTERVENCION

2013-2014

COLABORADORES

Arq. Castellani, masterplan/renders

www.dibujocad.blogspot.com.ar/

FIGURA 1: Relación entre calidad ambiental e intervención humana con y sin medidas compensatorias.

De este modo, nos encontramos frente el desa o de comenzar a transitar la incorporación de criterios de sustentabilidad frente a la dinámica de producir suelo urbano. Par cipes de hacer convivir las esferas social, natural y económica en un todo dentro de los límites de la porción de territorio afectada y a su vez integrada en los sectores adyacentes ya desarrollados y en toda la trama de la ciudad.

capba IX DESARROLLO URBANO SUSTENTABLE 36

DESAFÍOS DE LA ARQUITECTURA DEL PAISAJE.

En este contexto la Arquitectura del Paisaje responde hoy a nuevos requerimientos de evaluación, diseño y ges ón territorial-ambiental, escenarios complejos donde se encuentran ligadas y superpuestas las problemá cas sociales, económicas, ecológicas, culturales y esté cas del hábitat contemporáneo, convir éndose en una disciplina técnico cien fica que aporta posi vamente en la cualificación de los entornos urbanos.

Impulsamos la comprensión e integración del paisaje como elemento coyuntural de la planificación urbana y territorial, ya que aporta una visión holís ca del medio, maneja conceptos y métodos para comprender el territorio, sus grados y pos de intervención, impactos alteraciones, calidades, fragilidades.

UN CASO TESTIGO

Queremos compar r como caso tes go de la prác ca concreta de la disciplina, un trabajo realizado para emprendedores par culares, dueños de la erra en el acceso sur de la localidad de Villa Gesell.

Consensuamos en primer término una filoso a que fuera soporte teórico de las posteriores decisiones de proyecto, arribando así a conceptos de “ECO BARRIO: compacidad, mezcla y flexibilidad de usos, integración de la naturaleza en el espacio urbano, consideración del espacio público como escenario privilegiado de la vida ciudadana, edificación bioclimá ca, recuperación del tejido edificado, movilidad sostenible, integración de las energías renovables, y ges ón de la demanda de los flujos metabólicos”. (Verdaguer).

El concepto elegido como MISIÓN de la propuesta es: COMPRENDER CADA CICLO Y LA ARTICULACIÓN ENTRE LOS MISMOS, (sistemas complejos).

o Estudiamos así el ciclo del carbono, calculando la masa forestal necesaria para absorber las emisiones de CO2 que se generaran con la densidad vehicular propuesta en las diferentes zonas, con fórmulas donde intervienen diferentes variables. Obteniendo como resultado que necesitamos 17.600 árboles para neutralizar las emisiones futuras.

o Estudiamos los flujos circulatorios y buscamos iden dad ecológica y per nencia funcional a las formas de la traza, ampliando veredas, generando zonas permeables o

bioswales, (zonas vegetadas de poca profundidad por donde se drena agua pluvial de reinfiltración al acuífero, generando sinuosidades en la traza tanto sea vehicular como de bicisendas, iden ficando claramente las avenidas de las calles barriales, teniendo presente que el diseño urbano sostenible crea una experiencia de alta calidad que mejorará todas las fortalezas de las cualidades de cada zona, unifamiliares, comerciales, hoteleras.

o Realizamos modelos digitales de terreno considerándolos una herramienta básica para comprender topográficamente el territorio, ubicando zonas de drenes naturales y generando trazados acordes con el soporte natural y la acción antrópica de la circulación y el hábitat.

URBANIZACIONES COSTERAS SUSTENTABLES capba IX DESARROLLO URBANO SUSTENTABLE 37
Zonificación y propuesta de arbolado

Diseño de bici senda y bioswales.

o Estudiamos el ciclo del agua, generando balances hídricos por uso y densidad poblacional, cruzándolo con datos de recarga pluviométrica del acuífero y consumo de agua por forestación.

o Propusimos conceptos de XEROPAISAJISMO: uso racional del agua de riego, u lizando especies de bajo requerimiento hídrico, con una propuesta de eliminación parcial a total de elementos fitosanitarios, como de maquinaria y combus bles. Los criterios básicos para seleccionar especies:

38

Criterios medioambientales

Criterios paisajís cos

Algunas de las elegidas:

Adaptación al clima

Requerimientos edafológicos e hídricos

Resistencia a plagas y polución

Necesidades de sol o sombra

Porte y forma

Tasa de crecimiento y desarrollo

Textura

Color y estacionalidad

La síntesis que compar mos ene como obje vo comunicar una forma de entender la manera de intervenir en el territorio diseñando, planificando y ges onándolo par endo de una comprensión profunda de su iden dad.

Creemos que pensar el Espacio Urbano y el territorio desde la Arquitectura del Paisaje permi rá individualizar lugares, estrategias y programas para equilibrar el déficit medioambiental de la ciudad, su oferta de ocio y produc vidad. Ello demanda el desarrollo de análisis e intervenciones ligados a una concepción tanto esté ca como produc va de los sistemas naturales. Desde la experimentación de metodologías en la que confluyan los aspectos económicos, arquitectónicos, urbanís cos, ecológicos y sociales, para generar nuevas visiones y concepciones de la ciudad, construyendo en suma una mirada actualizada sobre el medio territorial de nuestras sociedades contemporáneas.

Arq. María Celeste Siccardi

Acacia de Constan noplaJacarandá Gravilea robustaCrespón URBANIZACIONES COSTERAS SUSTENTABLES
capba IX DESARROLLO URBANO SUSTENTABLE 39
Diseño Calle 20 mts.
CONCLUSIÓN

Arquitectura y Sustentabilidad

Conferencia del Arquitecto Gernot Minke

Con la organización del Colegio de Arquitectos de la Provincia de Buenos Aires Distrito IX, el Centro de Constructores y Anexos, y el Colegio de Técnicos de la Provincia de Buenos Aires Distrito V, el arquitecto Gernot Minke brindó una conferencia en Mar del Plata. La ac vidad tuvo lugar en el Centro de Constructores el pasado mes de junio, en el marco del Primer Congreso Nacional de Bioconstrucción y Eficiencia Energé ca (CONABEE), que contó con la presencia del “padre de la bioconstrucción”.

El arquitecto alemán Gernot Minke se destaca por la originalidad de sus proyectos. Desde hace tres décadas es el referente mundial en construcción sustentable, concepto que comenzó a difundir en su país natal en la década de 1980 y que posteriormente se divulgó por todo el mundo.

Minke desarrolló varios proyectos de inves gación para la construcción de estructuras sustentables, eficientes y de bajo costo. U liza materiales naturales, como barro, arcilla, madera, paja, erra y piedra, para construir estructuras de bajo impacto ambiental y sin efectos perjudiciales en la salud humana. Además de eso, al final de su vida ú l, los materiales no generan residuos contaminantes.

En ocasión de presentar su charla, Minke mostró gran sa sfacción por el crecimiento del interés por la sustentabilidad. Recordó que la úl ma vez que estuvo en la región, a sus charlas asis eron entre 20 y 25 personas. En cambio en esta oportunidad el auditorio era desbordante, dato que muestra el interés que el tema despierta en los profesionales y la sociedad.

Parte de la atracción en torno a la figura de Minke tal vez esté fundada en la transmisión amena, ágil y sencilla que él mismo realiza de sus incontables inves gaciones de gran rigor cien fico. Los datos nunca se convierten en obstáculo para la comprensión, al contrario, otorgan seguridad y confianza. Brindan un respaldo cien fico que hace que el público se sienta parte de una experiencia con resultados probados; o al menos, despierta un entusiasmo que impulsa a todos a “ponerse en acción ya” trabajando por el medio ambiente.

capba IX DESARROLLO URBANO SUSTENTABLE 40

CONSTRUCCIÓN CON BARRO

Apoyado en datos, estadís cas y normas, Minke introdujo al auditorio en la importancia de la construcción con materiales naturales, comparando a éstos con materiales industrializados cuyos procesos insumen altos consumos de energía, tanto en la producción como el manejo en la obra. Así destacó a modo de ejemplo, que el ladrillo común industrializado precisa más de 1350 k Wh/m³ -kilowa s por hora por m³ - para su producción, mientras que el ladrillo elaborado a mano precisa de 1 a 10 k Wh/ m³.

Bajo esta premisa mostró decenas de ejemplos de construcciones eficientes realizadas con materiales naturales y procesos produc vos de bajo consumo energé co; muchos de ellos se trataron de ejemplos de arquitectura de erra, tales como los rascacielos de barro y la Mezquita en Yemen, la ciudad planificada en Morocco, casas en China que combinan forma circular y muros macizos de 90 cm capaces de soportar sismos; viviendas en Ghana, África -construidas con técnicas primi vas de bolas de barro y superficies alisadas para cerrar poros contra lluvia y erosión-, y una Torre en Ankara de más de 8 pisos, que edificada en erra soporta hasta 2,5 veces el peso de la torre.

Si bien el barro o erra cocida no presenta inconvenientes en los edificios en altura, Minke señaló que las normas modernas alemanas sólo permiten hasta dos pisos portantes. En 1838, se construyó en Alemania un edificio de cinco pisos que aún sigue en pie, sin embargo, la norma de 1947 (1º norma en el mundo para construcción con barro) autorizó hasta dos pisos.

El barro es mezcla de arcilla, limo, gravilla y arena, siendo la arcilla el aglu nante que hace las veces de cemento. En el caso de esta combinación, señaló como punto importante la contracción del barro durante el secado. La misma es del orden del 15% y puede mejorarse

reduciéndose hasta alcanzar el 3% si se siguen algunas técnicas.

Asimismo y en referencia a la construcción con erra, abordó los métodos de estabilización del revoque contra la lluvia, mostrando casos como el Ins tuto Panamericano de Baka en Burkina Faso y una Casa en La Paz, Bolivia, de bóvedas sin cimbra.

Al barro se lo somete a pruebas de tracción, compresión, flexión e incluso contra abrasión. Máquinas de simulación de erosión recrean los efectos de la lluvia tropical. En estas pruebas quedó demostrado que la erosión comenzó a los 60 minutos en una mezcla con 30% de es ércol de vaca. Estos datos permiten avanzar en inves gaciones para hallar soluciones que faciliten la estabilización.

Así por ejemplo, un 6% de aceite de linaza cocido en la mezcla, la estabiliza ante la erosión. También la cal y la caseína (proteína del queso) generan en la mezcla una reacción química impermeable. Del mismo modo, puede impermeabilizarse con cemento, pero en algunos países cuesta tanto que en relación a su costo, conviene directamente el empleo de ladrillo industrializado.

Minke abordó someramente diversas técnicas, como la de tapial mecanizado, con ejemplos australianos, donde la combinación de lo artesanal y la mecanización de pisones neumá cos reduce drás camente de 20 a 1 las horas de producción para 1 m³. También ahondó en la técnica del adobe, que se prac ca desde hace 6.000 años en cuevas de Egipto, y la compara va de producción entre las 300 unidades de ladrillos de adobe producidas allí por día por persona, y las 500 unidades producidas en India.

Sucesivamente expuso la técnica de bóvedas y arcos con inclinación de 65% (curva op mizada) y diversas formas de producción de mampuestos de barro, como la técnica

SUSTENTABILIDAD
capba IX DESARROLLO URBANO SUSTENTABLE 41

de la expulsión de barro, una máquina que produce barro en “lingotes” o “salchichas” en estado plás co que se superponen. Las uniones se sellan alisándolas manualmente con palitos y se cubren los poros con esponja y agua. La técnica no precisa revoque y un promedio normal de erección de muros, es de cuatro hiladas x día.

Con el ejemplo de un Jardín de Infantes en Alemania, mostró la posibilidad de construcción con cúpulas de barro sobre un pa o central, u lizando ladrillos crudos con esquinas redondeadas para op mizar la reflexión de los rayos y lograr el mejoramiento de la acús ca. Huecos distribuidos en la estructura facilitan la absorción. Distribución, reflexión y absorción fueron destacadas como tres funciones que op mizan el comportamiento acús co de la cúpula.

VIVIENDAS ANTISÍSMICAS DE TIERRA

Imágenes de sus experiencias en Guatemala, Brasil, Chile, Perú y Argen na (San Juan) ilustraron cómo se puede construir en el campo, casas de una planta an sísmicas. Una forma es por su rigidez y espesor -90 cm de ancho de erra apisonada en muros-; la otra forma es construir

de manera flexible, donde la energía ciné ca del sismo es absorbida por deformación, un truco de la sica que no necesita triangulaciones para estabilizar, a menos que la obra tenga varios pisos.

Entre los errores más comunes detectados en las casas rurales por los cuales no soportan sismos, se cuentan: la falta de encadenados sobre los muros, la posición de las ventanas horizontales -cuando ante un sismo funcionan mejor ver calmente- y los dinteles cortos, el dintel debe penetrar en muro 50 cm. Destacó que en la búsqueda de economía y prac cidad, la lógica es usar el encadenado como dintel al mismo empo.

Un video de una experiencia en Lima mostró al público el some miento de una bóveda de adobe a movimientos sísmicos mediante un simulador -mesa vibradora- con capacidad de imitar el movimiento del sismo más importante de Perú. El experimento confirmó la buena respuesta del adobe, desprendiéndose sólo en parte los morteros, pero dejando en pie y en buenas condiciones a la bóveda. Este experimento se probó con bóvedas de fábrica trabada y sin trabar, demostrando que el daño mayor ante un movimiento violento se produce en los muros sin traba.

42

TECHOS VERDES

Una vivienda en la villa ecológica de Kassel (Alemania, 1985) fue la primera casa que Minke construyó con techo verde, convenciendo a las autoridades de sus beneficios. En ella logró una diferencia de 14 grados de temperatura entre el interior y el exterior. Los techos verdes cambian con las estaciones pero no mueren, no necesitan fer lizantes. Además, si no hay lluvias se pueden regar, y evaluada la conveniencia pueden incluir plantas que sean resistentes a la sequía, como las suculentas, sin embargo es preciso evaluar el crecimiento de estos ejemplares, ya que suelen dar menor resultado al no crecer tanto como otras especies. Un escaso crecimiento no produce colchón de aire, y esto es importante para lograr buenos efectos térmicos. El techo verde no está regulado en Alemania, se considera un adicional, un plus a la construcción sustentable, sin embargo son notables sus beneficios. Los techos verdes mejoran el microclima:

 Durante el crecimiento producen oxígeno y absorben CO2;

 Absorben polvo y par culas nocivas;

 Evitan el recalentamiento de los techos y con

ello disminuyen los remolinos de polvo,

 Reducen las variaciones de humedad en el aire. Es destacable también el aporte significa vo que realizan a las “superficies de hojas verdes”:

 Un techo verde con grama silvestre aporta entre 50 y 100 m² de superficies de hojas verdes por m² de techo; mientras que

 Un parque con pasto cortado, caminos, arbustos, y árboles, aporta un promedio de 10 m² de superficies de hojas verdes por m² de área. De allí Minke desprende su teoría: suponiendo que una gran ciudad –Buenos Aires por ejemplo-posee:

 1/3 del área cubierta con edificios;

 1/3 del área pavimentada con plazas y calles;

 1/3 de áreas verdes con una superficie de hojas de 10 m² por m² de área verde; entonces, si un techo verde ene 50 m² de hojas verdes por m² de superficie, podemos deducir que si cada 5 techos de la ciudad, hubiera 1 techo verde, el área de hojas verdes en la ciudad se duplicaría. La ciudad se beneficiaría ampliamente, con un mínimo costo y sin mantenimiento.

SUSTENTABILIDAD capba IX DESARROLLO URBANO SUSTENTABLE 43

Otras ventajas de los techos verdes son:

 Protección contra incendio: en Alemania estos techos son clasificados como incombus bles.

 Reducción de costos de mantenimiento y reparación: un techo plano precisa reparación cada 7 años y ene una vida ú l de 22.5 años, según estadís cas. En cambio, un techo verde cuesta en Alemania, del 5% al 10% más que un techo común, pero su duración es de más de 100 años.

Criterios de elección de especies vegetales: las especies elegidas deben ser resistentes a las sequías, especies na vas del área o especies silvestres, con una altura de crecimiento entre 10 y 20 cm y que faciliten la formación de un colchón vegetal (alto efecto térmico).

Errores comunes en la construcción de techos verdes:

1. La colocación de un sustrato demasiado fér l, donde la vegetación crece demasiado y se convierte en desbordante, incluso su altura empieza a moverse con el viento. El sustrato debe ser erra negra mezclada con arena, evitando la excesiva fer lidad.

2. El corte. Si se corta el pasto hay que fer lizar para conservar el equilibrio.

CONSTRUCCIÓN CON FARDOS DE PAJA

Minke mostró también la construcción de cúpulas con fardos de paja y estabilizadas con estructura de madera laminada debajo. Para su terminación se aplicó revoque de barro en capas, mediante el uso de bomba.

Con la técnica de fardos exhibió imágenes de la Casa proto po en Brasil, de interés social, con reducción del 60% de costos. Sus ventanas arriba y abajo en doble hilera, para circulación natural hacen que se prescinda del aire acondicionado. El revoque exterior es a la cal.

En referencia a las debilidades del sistema, narró la experiencia en un Taller en Inglaterra, experimentando con un nuevo sistema de fardos de paja de cortadera aplicados a ambos lados de postes, dejando cámara de aire. Aquí el problema fue solucionar el punto de rocío producido por la humead interior. El punto de rocío debe producirse sobre la capa de barro y no en la de material orgánico, porque si no ésta es atacada por hongos.

CONSTRUCCIÓN CON CAÑAS DE BAMBÚ

El bambú se considera un material fantás co para la sustentabilidad ya que crece en 3 meses hasta el 90% de su desarrollo total en altura y luego en 4 años alcanza la dureza necesaria para usarlo en construcción. Además hay más de 1.000 especies diferentes. Sus fibras paralelas solamente ver cales pueden considerarse tanto ventaja como limitación. Uno de los errores más frecuentes es el empleo de clavos y tornillos que ocasionan rajaduras en las cañas, cuando en realidad debe buscarse otra forma de conexión entre partes.

Las experiencias del arquitecto Gernot Minke son sumamente valiosas para todos los profesionales interesados en la construcción sustentable, y se cons tuyen en referencia ineludible en este campo. Tanto sus obras, como estudios teóricos, experimentos e inves gaciones crean nuevos paradigmas. Su trabajo disperso en todas partes del mundo y solicitado por todas las clases sociales, des erra viejas concepciones que consideraban al barro, erra, paja, y otros materiales de bajo costo, como materiales asociados a la pobreza y a las sociedades de escaso o nulo desarrollo tecnológico.

capba IX DESARROLLO URBANO SUSTENTABLE 44

TRAYECTORIA

Gernot Minke es arquitecto e ingeniero. Cursó estudios de arquitectura en la Universidad de Hannover y en la Universidad Técnica de Berlín. Posee un Doctorado en eficiencias de las estructuras, y es catedrá co de la Universidad de Kassel, Alemania. Dirigió el Laboratorio de Construcciones Experimentales desde 1974. Ha llevado a cabo más de 50 proyectos de inves gación y desarrollos en el campo de Construcciones Ecológicas, Viviendas de Bajo Costo, Construcciones en Tierra, Fardos de Paja, Bambú, y Techos Verdes. Ha sido invitado como ponente a más de 60 conferencias internacionales y ha orientado numerosas charlas, cursos y talleres en diversos países del mundo. Ha publicado más de 300 ar culos en revistas especializadas y es autor, entre otros, de los libros “Manual de Construcción con Fardos de Paja”, “De las tensoestructuras a la Bioarquitectura”, “Techos Verdes”, “Manual de Construcción en Tierra” y “Muros y Fachadas verdes, jardines ver cales”. Los mismos han sido adquiridos por el Distrito y están disponibles en carácter de préstamo en el Centro de Documentación CAPBA IX. La nómina completa de los tulos de su autoría, así como videos relacionados pueden consultarse en su página web h p://www.gernotminke.de/

SUSTENTABILIDAD
45

Nuevos concursos para la ciudad de Mar del Plata

En un Acto realizado en el hall del palacio Municipal, el pasado 15 de julio, se realizó la Firma de dos Convenios Específicos entre la Municipalidad de General Pueyrredon y Obras Sanitarias Sociedad de Estado y el Colegio de Arquitectos de la Provincia de Buenos Aires Distrito IX para la organización de concursos significa vos para la ciudad.

Ambos Convenios corresponden a ges ones que desde hace más de un año se realizan a nivel municipal para lograr la concreción de la realización de concursos de anteproyectos que permitan la definición mediante este instrumento de las intervenciones en espacios públicos de diferente escala.

Con la presencia el evento estuvo presidido por el Sr. Intendente Municipal, CPN Gustavo Pul , acompañado por el Sr. Secretario de Cultura, Dr. Leandro Laserna, el Sr. Secretario de Planeamiento Urbano, Arq. José Luis Castorina, el Sr. Vicepresidente de Obras Sanitarias, Ing. Manuel Regidor, y por el Colegio de Arquitectos asis ó al acto su Presidente, Arq. Julia Romero.

Cabe destacar la importancia de ambos concursos que involucrarán áreas sensibles de la ciudad y permi rán a los arquitectos de la provincia de buenos Aires desarrollar ideas y propuestas de intervención que seguramente mejorarán la calidad de vida de Mar del Plata.

46
El CAPBA IX será el organizador de dos nuevos concursos de arquitectura

El Palacio Municipal de Bus llo será puesto en valor

El convenio que involucra la realización de un “Concurso Provincial de Ideas y Anteproyectos de Intervención Patrimonial para la Renovación, Refuncionalización, Restauración y Puesta en Valor del Palacio Municipal y Edificio Anexo” se trata de un concurso a 2 vueltas, de ideas y anteproyectos.

La primera etapa, denominada de ideas, comprenderá las construcciones ubicadas en las parcelas de la manzana delimitada por la Av. Pedro Luro y las calles Hipólito Yrigoyen, San Mar n y La Rioja. En esta etapa se deberá prever el po de intervención, usos generales y accesibilidad del edificio “Palacio Municipal” que reviste el carácter de Patrimonio Histórico Municipal y la propuesta de implantación, ocupación, volumetría y morfología de las construcciones a realizar en las parcelas restantes de la manzana enunciada, buscando lograr la ar culación armónica del conjunto y la exaltación de los valores patrimoniales del Palacio Municipal. De esta primera instancia se seleccionarán 5 propuestas que realizarán la segunda etapa del concurso para el desarrollo de anteproyectos.

En cambio la segunda etapa, denominada de Anteproyectos, comprenderá el anteproyecto arquitectónico de Renovación, Refuncionalización, Restauración y Puesta en Valor del Edificio del “Palacio Municipal”. En esta etapa se deberá profundizar en las especificaciones técnicas de intervención patrimonial así como con la documentación gráfica a diferente escala de todo el inmueble.

El cuerpo de Asesores estará integrado por 3 miembros, la Arq. Liliana Fernández en representación de la Secretaría de Planeamiento Urbano de la MGP, la Arq. Graciela Di Iorio en representación de la Secretaría de Cultura de la MGP y el Arq. Manuel Torres Cano en representación del Colegio de Arquitectos de la Provincia de Buenos Aires Distrito IX.

Los premios a otorgar en las diferentes etapas del concurso son:

Concluida la primera vuelta de Ideas, se abonará a los autores de los trabajos seleccionados -que no podrán exceder el número de cinco (5)- un monto de pesos VEINTE MIL ($ 20.000,00), para el posterior desarrollo de los Anteproyectos en segunda vuelta.

Los premios resultantes de la finalización de la segunda vuelta son:

Primer Premio: ($ 330.000,00)

Pesos trescientos treinta mil

Segundo Premio: ($ 40.000,00)

Pesos cuarenta mil

Tercer Premio: ($ 25.000,00)

Pesos vein cinco mil

1º Mención: ($ 10.000,00)

Pesos diez mil

2º Mención: ($ 10.000,00)

Pesos diez mil

CONCURSOS
capba IX DESARROLLO URBANO SUSTENTABLE 47
NUEVO CONCURSO

CONCURSOS

NUEVO CONCURSO

El Convenio firmado con OSSE MdP-Batán, ene por objeto la realización de un “Concurso Provincial de Ideas y Anteproyectos a 2 vueltas para la Puesta en Valor Urbano y Reacondicionamiento del Predio Costanero de la Planta de Pre Tratamiento de Efluentes Cloacales MDP”, este concurso será también a dos vueltas.

Ante la proximidad de la construcción de una nueva planta de tratamiento de efluentes, complementaria a la construcción del emisario submarino, la actual planta de pre-tratamiento quedará fuera de opera vidad. Por esta razón OSSE se ha propuesto la recuperación del sector costero donde se encuentra la Planta Ing. Alberto Baltar. Se buscará una propuesta que logre la puesta en valor del área, su integración al entorno urbano existente y la incorporación de nuevos sectores de playa, muelle y puerto de abrigo. El cuerpo de Asesores estará integrado por 3 miembros, el Arq. Pablo Piccolini y el Ing. Flavio Franco en representación de Obras Sanitarias Sociedad de Estado Mar del Plata-Batán y el Arq. Juan Manuel Escudero en representación del Colegio de Arquitectos de la Provincia de Buenos Aires Distrito IX.

Concluida la primera vuelta de Ideas, se abonará a los autores de los trabajos seleccionados -que no podrán exceder el número de cinco (5)- un monto de pesos OCHO MIL ($ 8.000,00), para el posterior desarrollo de los Anteproyectos en segunda vuelta.

Los premios resultantes de la finalización de la segunda vuelta son:

Primer Premio: ($ 92.000,00)

Pesos noventa y dos mil

Segundo Premio: ($ 15.000,00)

Pesos quince mil

Tercer Premio: ($ 10.000,00)

Pesos diez mil

1º Mención: ($ 5.000,00)

Pesos cinco mil

2º Mención: ($ 2.500,00)

Pesos dos mil quinientos

Ambos concursos se ajustarán al Reglamento Nacional de Concursos de la FADEA, quien auspiciará los mismos, y contará con la colaboración de la Secretaría de Concursos del CAPBA mediante la u lización de la Plataforma Digital de Concursos, Resolución CAPBA Nº 70/14.

La zona norte costera costera recuperará su calidad ambiental con espacios públicos para turistas y para turistas vecinos de la ciudad
capba IX DESARROLLO URBANO SUSTENTABLE 49

Concurso Nacional de Ideas

Consultorio Desmontable de Atención Primaria de Hábitat

G A N A D O R E S

1er PREMIO PREMIO:

Autor: Nicolás Hernán Oteiza, estudiante de la Facultad de Arquitectura, Diseño y Urbanismo de la Universidad Nacional de Mar del Plata.

2do PREMIO PREMIO:

Autoras: Macarena Belén Bressany Cindy Dallegre, estudiantes de la Facultad de Arquitectura, Diseño y Urbanismo de la Universidad Nacional de Córdoba.

3er PREMIO PREMIO:

Autores: Mar n Caracoche, Tomas Eracovich y Mariana Chalde, estudiantes de la Facultad de Arquitectura y Urbanismo de la Universidad Nacional de La Plata.

MENCIÓN HONORÍFICA HONORÍFICA:

Autores: Yesica soledad Lamanna y Marisol Florencia Sotera, estudiantes de la Facultad de Arquitectura, Diseño y Urbanismo de la Universidad de Buenos Aires.

MENCIÓN HONORÍFICA HONORÍFICA:

Autores: Agus n Mango, Mariana Aleksandrowicz y Mar na Frachia, estudiantes de la Facultad de Arquitectura, Diseño y Urbanismo de la Universidad de Buenos Aires.

El 29 de mayo de 2014, en presencia de representantes de la Asesoría se reunió el jurado para otorgar los premios y menciones honoríficas del Concurso Nacional de Ideas para Estudiantes “Consultorio Desmontable” organizado por Proyecto Habitar. El jurado fue conformado por los arquitectos San ago Bozzola, Ariel Jacubovich, Cris an Cordara, Rodrigo Aramburu, Eugenia Jaime y Julián Salvarredy.

En la ocasión resultó ganador del Primer Premio Nicolás Hernán Oteiza, estudiante de la Facultad de Arquitectura, Diseño y Urbanismo de la Universidad Nacional de Mar del Plata.

‘Proyecto Habitar’, un equipo integrado por profesionales de disciplinas referentes al hábitat, que buscar la construcción de la igualdad social y espacial, convocó al Concurso Nacional de Ideas “Consultorio desmontable de Atención Primaria de Hábitat”, des nado a estudiantes de arquitectura y diseño de universidades públicas de Argen na.

El principal obje vo fue incen var el ejercicio crea vo de aquellos que quisieran asumir el desa o de proyectar en contextos de desigualdad, proponiendo un espacio para atender de manera par cipa va la Producción Social del Hábitat que se desarrolla en nuestro territorio.

La atención primaria de hábitat es un concepto que sinte za la propuesta de implementación de una polí ca pública urbano habitacional integrada. En esta propuesta, resulta determinante la instalación de espacios de atención o salas que permitan trabajar junto a las familias y sus organizaciones en la resolución del hábitat. Debido a esto se planteó el desa o de diseñar consultorios desmontables para la población en situación de emergencia. Las pautas de valoración del Jurado fueron planteadas en las bases:

 La adecuación al programa social;

 La riqueza y versa lidad de la propuesta espacial;

 La simpleza del sistema construc vo, su sencillo armado y desarmado, y la u lización de herramientas de fácil acceso;

 La facilidad en el traslado;

 La adaptabilidad a diferentes solados para su ubicación.

capba IX DESARROLLO URBANO SUSTENTABLE 50

CONCURSOS

De la Memoria del autor del Primer Premio

CRITERIOS DE DISEÑO

Para el diseño se toman los Pallets de madera estandarizados para Sudamérica de 1,00 m x 1,20 m u lizados para pisos y muros como Módulo Base del proyecto. Cada una de las dimensiones es proporcionada en base a este material de uso industrial. El proyecto otorga mucha libertad a la hora del armado; los pallets pueden agruparse de diversas maneras, dando como resultado un sin n de asociaciones posibles dependiendo de la ac vidad a realizar. Dada la poca complejidad en el montaje, se puede rearmar el consultorio en cues ón de minutos si se decide cambiar la ac vidad a desarrollar.

OPTIMIZACIÓN DE LOS RECURSOS DISPONIBLES

Se decidió la u lización de productos estandarizados presentes en los principales distribuidores de materiales de construcción y otros disponibles en zonas de emergencia; los 45 pallets de madera u lizados se consideran de segunda mano y de fácil obtención. La cubierta está conformada por una lona impermeable de color llama vo, mientras que su estructura es de caños de acero tubular redondo. El sistema prescinde de una empresa para su ejecución y da como resultado una obra de bajo coste y rápido montaje. La tecnología construc va u lizada es apropiada y para nada compleja, siendo la construcción del consultorio económicamente viable.

Piso: se compone de pallets de madera de pino arrimados unos con otros. Los pallets se colocan sobre un film de polie leno de 200 micrones para evitar el contacto directo de la madera con el terreno. Se recomienda completar los espacios vacíos entre las maderas superiores de los pallets.

Muros: se arman con los pallets del suelo colocados de manera ver cal. Se unen con grampas de hierro fabricadas con sobrantes del sistema construc vo Steel Frame. El cerramiento ver cal se completa con los tres paneles OSB.

Cubierta: fue diseñada a par r de la Cercha Jawerth para tela. Está conformada por una lona no tensada y una estructura de caños tubulares redondos de 1,5”. Los caños son de 4,00 m como máximo y se unen entre sí para lograr mayores longitudes. Para evitar que la cubierta se desprenda está sujeta por 8 prismas de hormigón.

Transporte: el volumen total del consultorio se puede transportar fácilmente en una camioneta F 350, Dodge 200 o similares. El volumen ocupado por los pallets, los caños y la lona es menor a su capacidad de carga.

capba IX DESARROLLO URBANO SUSTENTABLE 51

Desa os y perspec vas para la generación de suelo urbano

El Lic. Duarte par cipó como expositor junto al Arq. Álvaro Reese en el Segundo Taller Temá co sobre Ordenamiento Territorial organizado por el Ins tuto de Estudios Urbanos del CAPBA distrito IX –IEU9 el pasado mes de mayo.

CONTEXTO ACTUAL

El acceso a suelo urbano dotado de infraestructura y equipamiento comunitario, a precios accesibles a los ingresos de los diferentes estratos de la población, cons tuye un desa o evidente para los gobiernos en sus diferentes escalas territoriales. La generación de suelo urbano es fundamental para poder dar respuesta a las demandas y necesidades habitacionales de la población. Los datos de las necesidades habitacionales, centradas en la calidad de la vivienda, surgen del Censo Nacional de Población, Hogares y Viviendas de 2010. Dichos resultados muestran que en la provincia de Buenos Aires casi 1,3 millones de hogares, lo que equivale al 27% del total de hogares, padece alguna situación de déficit habitacional, guarismo similar al del total del país. Los resultados también permiten visualizar que el déficit habitacional no implica necesidades similares para todos los hogares. El análisis de los componentes de ese déficit permite evidenciar que 673.966 hogares (el 14,1%) no necesitan una vivienda nueva sino que requiere del mejoramiento de la vivienda que habitan (mejorar el aislamiento, u lizar materiales adecuados en pisos, paredes o techos ó bien la construcción de una o dos habitaciones adicionales para adecuar la superficie construida a la can dad de habitantes de la vivienda). La otra parte del déficit está centrada en aquellos hogares que requieren de una vivienda nueva, los que se descomponen en 174.830 hogares que habitan viviendas irrecuperables y 444.387 hogares que comparten la vivienda con otro hogar, lo que se considera como hacinamiento de hogares. Estos números indican que la necesidad de viviendas para eliminar el déficit en este ítem asciende a 222.193 viviendas nuevas, ya que se requiere darle una vivienda nueva a uno de los dos hogares que comparten la vivienda.

capba IX DESARROLLO URBANO SUSTENTABLE 52

Es así que para resolver el déficit habitacional en la Provincia de Buenos Aires se requiere la construcción de casi 400 mil viviendas nuevas, a lo que habría que sumarle los hogares formados entre 2010 y 2014 y que no han podido acceder a una vivienda adecuada. Pero si ampliamos la mirada sobre lo que se en ende por déficit habitacional e incorporamos los elementos que hacen a la vida urbana, en línea con lo definido en la ley de Acceso Justo al Hábitat de la provincia de Buenos Aires, el número de hogares en situaciones deficitarias sería mayor, y allí cobran un papel singular las polí cas de suelo urbano.

En la actualidad, en la mayor parte de las ciudades del país, el acceso de la población a suelo urbano está regido por las leyes de un mercado donde predomina la generación de suelo para sectores de alto poder adquisi vo. Así, la necesidad de generar suelo urbano se enfrenta al menos a otras dos condiciones: por un lado, fuertes incrementos de precios del suelo y, por otro lado pero relacionado a lo anterior, la carencia o debilidad de las regulaciones del mercado de suelo por parte del Estado, y par cularmente de los Municipios.

La solución al problema de la vivienda requiere del desarrollo de múl ples y diversas polí cas para dar respuesta a familias que enen diferentes caracterís cas y diferentes necesidades para resolver el problema. Así, el Programa Federal de Vivienda está dirigido a segmentos de la población de escasos recursos socio económicos, el programa Pro.Cre.Ar apunta a sectores medios y mediosbajos, mientras que el Programa Nacional de Lotes con Servicios “Un Terreno para tu Casa” apunta a aquellas familias que imposibilitadas de acceder a estos programas, necesitan contar con un terreno donde poder edificar su vivienda de manera progresiva o a través de algún po de crédito.

VIVIENDA
53
Lic. Juan Ignacio Duarte Director de Generación de Suelo Urbano, ANSES

Notas sobre el problema del acceso al suelo urbano

A propósito del Pro.Cre.Ar

La problemá ca del acceso al suelo urbano cons tuye, sin lugar a dudas, uno de los ejes nodales del desarrollo urbano de la ciudad de Mar del Plata. Como ha señalado Irigoin, el origen mismo de la ciudad “parece incluirse en el fenómeno generalizado de los negocios de erras a “urbanizar”” (1991:47). Tal presunción resulta más que sugerente para explicar no sólo el origen sino la dinámica de urbanización de la ciudad, que ha estado ín mamente vinculada a la producción y concentración de suelo urbano.

En relación a este fenómeno, Núñez sos ene que en 1879 toda la extensión de la región pertenecía a aproximadamente 15 propietarios que iban subdividiendo las erras e incorporándolas al mercado, impulsando así un desarrollo parcelario centrado en la obtención de rentas y anterior a los procesos de asentamiento de la población. También Mariano, centrándose en la interfase urbano-rural entre 1874 y 1910, analiza la incidencia que tuvieron propietarios y mediadores en la subdivisión y venta de erras y en la generación de nuevos polos de urbanización1

Entre las décadas de 1930 y 1960 los sectores populares pudieron acceder al suelo bajo diversas formas: a través de la subasta y el alquiler de erra, primero; y mediante la compra de lotes en mensualidades, después; aunque lo hicieron en zonas sin infraestructura de servicios ni aptas para la localización residencial (Núñez; 2000). A par r de 1970, se desarrollaron diversas formas de hábitat popular en pequeños lotes adquiridos con financiamiento, aunque también con condiciones crí cas de equipamiento, accesibilidad e infraestructura (Fernández et al; 1996). Asimismo, la producción de vivienda de interés social orientó las polí cas habitacionales en el período 19701990, siendo predominantes los conjuntos habitacionales financiados tanto por el Banco Hipotecario Nacional como por el Fondo Nacional de la Vivienda (Guardia)2. Sin embargo,

1 Ambas autoras destacan además la connivencia con el poder polí co provincial que no sólo avaló la transgresión de la norma va para fundar el pueblo - que no se hizo sobre erras públicas, tal como lo establecía la Ley de Ejidos - sino que prosiguió con esta impronta en otras intervenciones rela vas a la movilización de erras (Mariano; 2000, Núñez; 2000).

2 Guardia (2009) se pregunta por la incidencia de dicha polí ca habitacional en el proceso de formación-realización de la renta del suelo; y concluye en que aquella estuvo ligada a los intereses del capital inmobiliario, a los propietarios de suelo en áreas periféricas y a la formación de rentas territoriales. Así, la localización de los conjuntos habitacionales siguió un patrón de ocupación periférico, alejado del centro y adyacente al ejido urbano, requiriendo la incorporación de nueva erra urbana al ejido – reforzando nuevamente el proceso de valorización anteriormente señalado -. Cabe señalar que, más allá de las falencias edilicias que muchos conjuntos presentan, es recurrente

ello no pudo contrarrestar el creciente déficit habitacional de la ciudad y, en paralelo, fueron emergiendo diversos asentamientos, tanto en erras privadas como fiscales cuyo crecimiento ha sido significa vo en los úl mos años.

De manera progresiva, los principales procesos de acceso al suelo señalados - compra de lotes en mensualidades, acceso a vivienda de interés social y ocupación de erras - confluyeron en una expansión de la periferia como “zona reservada” a los sectores de bajos recursos. Un elemento central en esta dinámica fue la aprobación, en 1977, del Decreto-Ley de Uso de Suelo (8912) de la provincia de Buenos Aires, que fijó condiciones para la producción del suelo urbano, introduciendo restricciones y exigencias en cuanto a la zonificación, el tamaño de los lotes y las obras de infraestructura; entre otros. Ello trajo consigo un doble efecto: el encarecimiento de la erra y, consecuentemente, la emergencia de loteos clandes nos e irregulares, en tanto no exis a una demanda solvente para ello (Clichevsky; 1997). Lo paradójico es que la mayoría de la producción norma va realizada a posteriori se ha sustentado en excepciones a la Ley 8912; no sólo legi mando la trasgresión – por ejemplo, en el caso de aprobación de loteos que quedan por fuera de aquella - sino legalizando su excepcionalidad.

En tal sen do, Clichevsky señala que hasta la década de 1990 no exis ó una polí ca urbana explícita vinculada a la problemá ca del suelo urbano3. En el caso de Mar del Plata, se destacó la creación del Banco Municipal de Tierras, en 1991, con el obje vo de promover la movilización de erras que la tenencia de la vivienda no haya podido ser regularizada. Esta situación que no es exclusiva del caso de Mar del Plata sino que se vincula a las caracterís cas que han asumido este po de operatorias en la región.

3 La inexistencia de polí cas de producción de suelo urbano es un fenómeno extensivo a todo el país y a la región. En tal sen do, si bien se produjeron diversas modificaciones cons tucionales con la reforma en 1994, estas se subsumieron al derecho a la vivienda -que ya estaba incluido en el ar culo 14 de la Cons tución de 1853 pero ahora adquiere otra dimensión a par r de la adhesión a diversos tratados internacionales (por ejemplo, el Pacto de San José de Costa Rica), alcanzando así status cons tucional - pero no problema zaron en la cues ón del acceso al suelo.

capba IX DESARROLLO URBANO SUSTENTABLE 54

de origen público (Ordenanza 8442). Sin embargo, su limitado margen de acción ha quedado restringido al cumplimiento de leyes vinculadas a escrituraciones gratuitas (Ley 10830), aprobaciones de loteos y subdivisiones por excepción (decretos 2210/80 y 3736/91), transferencia de erras privadas al municipio a cambio de la condonación de deudas de par culares (Ley 11622), etc. En defini va, sos ene una polí ca de corte par cularista que apunta a la resolución de problemá cas a escala de situaciones de hogares par culares, vinculadas principalmente a cues ones burocrá cas; y que no se complementa con una polí ca integral que busque soluciones defini vas al problema del acceso al suelo.

En este contexto, las polí cas de suelo más importantes de la década de 1990, como el Pro-Tierra y el Programa Arraigo, no fueron implementadas exitosamente en la ciudad4. Incluso si bien las polí cas de regularización se erigieron como vede es de la polí ca habitacional, a par r de la creación de programas de mejoramiento barrial diseñados por organismos mul laterales, las sucesivas postulaciones que se hicieron para lograr su ejecución no fueron exitosas5

Recién entrada la década siguiente, la polí ca de vivienda se reac vará midamente de la mano del Programa Dignidad – ideado bajo la órbita provincial para la relocalización de los habitantes de la Villa de Paso – y, con mayor énfasis, del Programa Federal de Vivienda, que marcó un viraje hacia la recentralización de la misma. Esta úl ma inicia va, concebida en el 2003 con el doble obje vo de sa sfacer la necesidad de vivienda de los sectores de menores ingresos y, con ello, de dinamizar la industria de la construcción cons tuye, junto al Programa de Emergencia Habitacional (“Techo y trabajo”), la operatoria des nada a viviendas de interés social de mayor envergadura en los úl mos años.

4 En relación al Pro-Tierra, las par cularidades históricas del mercado de erras, sumadas a otras dificultades de dis nta índole, incidieron en la baja repercusión de dicho programa. La misma suerte corrió el Programa Arraigo, para el cual se invir ó en un significa vo diagnós co y recomendaciones para su ejecución en la zona pero que finalmente logró concretarse sólo en una experiencia a pequeña escala (Fernández et al; 1996).

5 En 1994 y en 2002 se realizaron propuestas para ejecutar el PROMEBA, financiado por el Banco Interamericano de Desarrollo, en la Villa de Paso, en los barrios Las Américas, Autódromo, Belgrano, etc. y en los asentamientos de Las Heras, Jorge Newbery, Nuevo Golf y Juramento, entre otros. Sin embargo, ninguno de ellos fue seleccionado para su ejecución.

Bajo esta modalidad, a diferencia de la producción masiva de las décadas anteriores, la provisión de erra mayoritariamente ya no corre por cuenta del Estado sino de los privados que ofertan un proyecto urbano6. Según Vio (2008), ello incen vó un doble proceso en beneficio de aquellos: de valorización del suelo, antes rural y ahora incorporado al ejido urbano; y, con ello, de provisión de servicios a la zona, que impulsó a los operadores inmobiliarios a adquirir mayores extensiones de erras que las necesarias para desarrollar los proyectos, en vistas a retener áreas vacantes que se valorizan, en virtud de la creciente urbanización, y luego pueden vender a mayores precios. Ello trae consigo la reproducción de un patrón de localización de la población beneficiaria que es similar al que se estructura a par r de la distribución de las rentas de suelo urbano (Vio; 2008)7.

En este marco, la creación del Programa Crédito Argen no del Bicentenario para la Vivienda Única Familiar (Pro.Cre. Ar) cons tuye una novedosa polí ca de acceso al suelo y la vivienda para los sectores medios, que hasta el momento habían quedado por fuera de las operatorias masivas de los úl mos años. Sancionado a par r del Decreto Nacional 902/2012, y bajo la figura de fondo fiduciario, se planteó con el obje vo de “facilitar el acceso a la vivienda propia de la población y la generación de empleo como polí cas de desarrollo económico y social”. En su inicio, a nivel nacional, se proyectó la entrega de 400 mil créditos hipotecarios para la construcción, ampliación, terminación y refacción de viviendas, como así también para la adquisición de viviendas en el marco de desarrollos urbanís cos8 . Posteriormente, se añadieron otras dos modalidades: la compra de viviendas

6 Tal como sucede en la modalidad TPU: Tierra y Proyecto Urbano, que ha sido la predominante.

7 Vale señalar, por ejemplo en el barrio Belisario Roldán de nuestra ciudad, la existencia de vicios en la construcción (materiales u lizados, terminaciones varias, etc.) y del incumplimiento en la dotación de infraestructura de servicios y equipamiento comunitario (principalmente, escuelas y salas de salud), que estaba previsto en los pliegos de licitación de las obras y debía ser concretado antes del traslado de los habitantes al lugar.

8 En nuestra ciudad, esta modalidad aún no está habilitada para la inscripción de los posibles beneficiarios ya que se había previsto llevarla a cabo en el predio conocido como “Canchita de los Bomberos” en el barrio Parque Luro pero, en virtud de la judicialización impulsada por un grupo de vecinos que se oponen a ello y que impide por el momento el inicio de las obras, no hay des no alterna vo definido.

VIVIENDA
55

a estrenar, primero; y la compra de terreno y construcción, después.

En Mar del Plata se es mó que, apenas transcurridos dos meses desde su sanción, exis an más de 400 grupos familiares inscriptos para las diversas líneas de crédito. Recientemente, el tular de la ANSES9 ha manifestado que es la “ciudad récord en Procrear de la Argen na”, donde mayor can dad de créditos para la construcción de vivienda se están efec vizando 10 Sin embargo, la dimensión adquirida por la modalidad de compra de terreno y construcción, ha puesto nuevamente en jaque el histórico problema de acceso al suelo y, con ello, de las escasas intervenciones del Estado en vistas a regular un mercado altamente especula vo. Conocidas son las dificultades que los beneficiarios han venido sorteando para concretar la compra de un terreno, cuyo meollo central no es tanto la escasez como los elevados precios a los que ha trepado el “suelo accesible” en los úl mos meses. En función de ello, la búsqueda de un terreno apto de crédito no se realiza en zonas centrales – a pesar de la existencia de algunas áreas vacantes11

9 Es uno de los principales organismos que par cipa del financiamiento del Programa, junto al Ministerio de Economía y Finanzas Públicas y a otros inversores privados.

10 “Mar del Plata es récord en los planes Procrear”. Diario La Capital, 07-05-14.

11 Valdría la pena incorporar al análisis, aunque no sea objeto de estas líneas, la peculiaridad que presenta el parque habitacional marplatense: sostenidamente, en las úl mas décadas ha permanecido desocupado en alrededor de un 40%, mayoritariamente en inmuebles ubicados en la franja costera.

-sino más bien en zonas periféricas que, en la mayoría de los casos, carecen de infraestructura y equipamiento colec vo, o lo enen en forma deficitaria. Sin embargo, también en aquellas zonas se ha disparado un proceso especula vo en donde los terrenos llegaron a triplicar sus precios12.

Frente a ello, el propio intendente declaró la existencia de erras municipales viables de ser des nadas al Programa y también la facultad de generar más. Con ese propósito, el municipio firmó un convenio con la ANSES para poner a disposición terrenos fac bles de ser u lizados para la construcción de viviendas, previendo la adquisición de 800 parcelas, en una primera etapa, para alcanzar un total de 3 mil, posteriormente. Asimismo, se llamó a una licitación para la presentación de oferentes de terrenos aptos para el loteo13, e incluso se planteó que en el caso de aquellos que carezcan de servicios y, en sen do estricto, no puedan ser loteados, se trabajará “en generar esa infraestructura y como compensación se cederán erras y así habrá más suelo urbano”.14

Las complejidades en la ejecución del programa traen al 12 “Triplican precios de terrenos para construir viviendas tras la implementación del Procrear”. Diario La Capital, 08-04-14.

13 La ANSES también firmó un acuerdo de precios con empresas de materiales para la construcción, en vistas a contrarrestar la especulación que también se da en ese mercado. Vale destacarse que, en función del creciente proceso inflacionario, en los úl mos meses se amplió en un 30% los montos de los de créditos a solicitar para sus dis ntas líneas, conjuntamente con una actualización de los ingresos familiares necesarios para acceder a los mismos.

14 “General Pueyrredon, primer Municipio en ceder terrenos para viviendas del ProCreAr”, Diario El Atlán co, 22-11-2013.

56

debate la imposibilidad de diseñar un programa de vivienda sin intervenir en el mercado de suelo, dejando que el acceso al mismo se resuelva, en defini va, en la esfera privada. Más aún, ante el planteo de estrategias tendientes a contrarrestar las prác cas especula vas que lo obstaculizan, valdría hacerse algunas preguntas respecto a qué definiciones subyacen a la toma de decisiones en el estado de situación descripto: ¿dónde y cómo producir suelo urbano?, ¿quién debe decidir qué suelo poner a disposición?, ¿bajo qué parámetros?, ¿cuál es el impacto que esta decisión ene sobre otros sectores que no acceden al suelo y que tampoco “califican” para el ProCreAr?, ¿qué patrón de distribución de la población subyace?, ¿qué efectos tendrá en el mediano y largo plazo en la estructura y dinámica urbana de la ciudad?, entre otras.

La lista de inquietudes sería interminable. En úl ma instancia, todas remiten en mayor o menor medida a los efectos de las polí cas y a las tensiones entre la universalización y/o focalización de las mismas; y a la necesidad de concebirlas de manera integral. Ello nos conduce inexorablemente a la importancia de avanzar hacia una planificación urbana que, con el Estado a la cabeza, se sustente en principios de equidad y jus cia social. Y en lo que hace específicamente al suelo urbano, que garan ce la producción de suelo urbano para todos los sectores sociales, democra zando su acceso.

De lo contrario, tal como queda evidenciado en una estrategia como la del Pro.Cre.Ar, los méritos de cons tuirse como una esperada polí ca de crédito para la vivienda se ponen en tensión al reproducir e, incluso, reforzar una dinámica urbana segregacionista, manteniendo casi intacta la lógica especula va del mercado de suelo urbano, cuyo acceso se erige como el puntapié inicial en el derrotero del “sueño de la casa propia”.

Enhorabuena, podemos destacar que existen algunos instrumentos legisla vos recientes que pueden contribuir a ese proceso como la “Ley de Acceso Justo al Hábitat” (Ley Nº 14449) de la provincia de Buenos Aires. Sancionada a fines de 2012 y promulgada a principios del 2013, ene como propósito promover el derecho a la vivienda y a un hábitat digno y sustentable a par r de cuatro principios rectores para la implementación de polí cas habitacionales: el derecho a la ciudad y a la vivienda, la función social de la propiedad, la ges ón democrá ca de la ciudad, y el reparto equita vo

BIBLIOGRAFÍA

CANESTRARO M. LAURA (2010); “Entre el hecho y el derecho...De actores y prác cas en tres procesos de producción del hábitat (Mar del Plata, 1983-2009)”, Tesis para obtener el tulo de Doctor de la Universidad de Buenos Aires, en Ciencias Sociales, mimeo.

CLICHEVSKY NORA (1997); “Regularización dominial: ¿solución para el hábitat “popular” en un contexto de desarrollo sustentable?” en Cuenya Beatriz y Falú Ana (comp.); Reestructuración del Estado y polí ca de vivienda en Argen na; Colección CEA-CBC; Buenos Aires.

------ (1999); “Polí cas de regularización en Argen na: entre la euforia y la frustración”; CONICET/UBA; Buenos Aires; mimeo.

de cargas y beneficios. Tal como se describe en sucesivos ar culos de la Ley, estos suponen: en primer lugar, el derecho a un lugar adecuado para vivir que favorezca la integración a la vida urbana, el acceso a equipamientos sociales e infraestructura y servicios, el desenvolvimiento apropiado de ac vidades sociales y económicas y el usufructo de un hábitat culturalmente rico y diverso. En segundo, que la propiedad cumpla con su función social, respetando exigencias generales y regulaciones en la producción del hábitat que garan cen la calidad de vida, el uso ambientalmente sostenible del territorio y la jus cia social. Seguidamente, que la ciudad se ges one a par r de un proceso de toma de decisiones par cipa vo, que asegure la deliberación y autoges ón de la comunidad en general y de los ciudadanos en par cular, especialmente de las organizaciones o asociaciones civiles que fomenten el acceso al hábitat. Finalmente, la u lización justa y razonable de la facultad regulatoria por parte del Estado, tanto provincial como municipal, en los procesos de planificación y ordenamiento urbano, evitando la producción de desigualdades que fomenten la concentración del suelo (Capítulo II, arts. 10 al 14).

Con este horizonte, es necesario poner el foco en estrategias que permitan la efec va concreción de las herramientas ins tucionales es puladas en la ley que, como tal, cons tuye un marco geneWral para la acción y requiere de instrumentos que la viabilicen. Sólo la organización social y, con ello, la exigencia a los gobiernos locales para que adecuen sus norma vas a los principios que rigen la ley, garan zará el camino hacia una planificación urbana centrada en la equidad y la jus cia social, contrarrestando una histórica dinámica especula va que a par r de la configuración de entramados de actores ha delineado proyectos y modelos de ciudad sustentados en procesos de valorización del suelo acordes con sus intereses par culares.

María Laura Canestraro

Lic. en Sociología (UNLP), Mg. en Ciencia y Filoso a Polí ca (UNMDP), Dra. en Ciencias Sociales (UBA). Inves gadora Asistente del CONICET. Docente, inves gadora y extensionista de la UNMDP. Integrante de la Asociación Civil Hábitat y Vida.

FERNÁNDEZ ROBERTO, et al (1996); Habitar Mar del Plata. Problemá ca de vivienda, erra y desarrollo urbano en Mar del Plata. Diagnós co y propuestas; Presidencia de la nación, Comisión de Tierras Fiscales Nacionales; Programa Arraigo, Mar del Plata.

GUARDIA CARLOS ENRIQUE (2009); “La renta del suelo y la polí ca habitacional entre 19701990. El caso de los Conjuntos Habitacionales en la ciudad de Mar del Plata”; Tesis para optar por el tulo de Maestro en Planificación Urbana y Regional, Universidad de Buenos Aires; mimeo.

IRIGOIN M. ALEJANDRA (1991); “La población, los habitantes y la trama social urbana, 18801940”; en AA.VV.; Mar del Plata. Una historia urbana; Fundación Banco de Boston; Buenos Aires.

MARIANO CECILIA (2000); “Actores y prác cas económicas en las erras rurales de Mar del Plata, 1874-1910”; ponencia presentada al VI Congreso Argen no de Antropología Social, UNMDP, Mar del Plata; sep embre.

NUÑEZ ANA (2000); Morfología social. Mar del Plata, 1874-1990, Editorial Grafikart, Tandil.

VIO MARCELA (2008); “La producción de la Ciudad Metropolitana: reflexiones sobre el desarrollo urbano de la Región Metropolitana de Buenos Aires entre 1990 y 2008”; ponencia presentada a las V Jornadas de Sociología de la UNLP, diciembre.

Ley 14449/ Ley de Acceso Justo al Hábitat de la Provincia de Buenos Aires. Texto de la norma y fundamentos.

VIVIENDA
capba IX DESARROLLO URBANO SUSTENTABLE 57

Trámites frecuentes ante la CAAITBA

¿Cómo realizarlos? Preguntas Habituales. Parte 3

Las ges ones que los arquitectos debemos realizar ante la CAAITBA hacen a nuestro quehacer profesional co diano. Conocer que se tramita, dónde, con que documentación, etc. facilita nuestra labor. Por ello en esta publicación desarrollamos la tercera parte de algunos temas que con mayor frecuencia se consultan en las áreas técnicas y de matriculación del CAPBA IX.

EL SISTEMA PREVISIONAL

Las Jubilaciones Ordinarias

¿Cuáles son las condiciones mínimas para acceder a la jubilación ordinaria? Contar con un mínimo de 65 años de edad y por lo menos 35 años con aportes iguales o superiores al mínimo (CMAO) establecido para cada año o superiores al mínimo establecido para cada año.

¿Cómo se liquida el beneficio jubilatorio?

1. Se tomarán los aportes realizados por el afiliado (de los que enen que exis r por lo menos 35 años con coeficientes iguales o mayores a 1 CMAO). A los mismos se le aplicará la Tabla de Adecuación correspondiente. Si los valores “adecuados” superara el coeficiente 3 se les aplicará la Tabla de Corrección. SI superarán el coeficiente de 10 se tomará este coeficiente como corrector. Una vez establecida la corrección se les aplicará a cada aporte anual la Tabla de Ponderación. Esta establece un valor de acuerdo a la fecha del primer aporte y la relación con el año en que se jubilará. La sumatoria de todos estos resultados determinará el Coeficiente de Jubilación Individual. La fórmula final de liquidación es mul plicar este valor por un coeficiente “F”.

2. A par r del año 2006 y por los aportes realizados a par r de dicha fecha, el haber jubilatorio es una renta vitalicia de acuerdo con los aportes capitalizados.

capba IX ASUNTOS PREVISIONALES 58

¿Cuándo se procede al pago de la jubilación?

El pago de la jubilación procede cuando se ha efectuado el acuerdo del beneficio y se ha cancelado la matrícula profesional correspondiente. No deben exis r deudas pendientes con la Caja. La fecha desde cuando se abonará la jubilación es a par r del día siguiente de la cancelación de la matrícula o de la regularización de cualquier situación de deuda que el afiliado mantuviera con esta Caja, o de la regularización de todas las condiciones exigidas para jubilarse previo acuerdo del Consejo Ejecu vo.

Si tengo más de 35 años con aportes y no he cumplido aún los 65 años, ¿puedo jubilarme?

No. Porque la ley es explicita: dice que hay que tener la edad y los aportes.

Si tengo más de 35 años con aportes iguales mayores a la CMAO y más de 65 años de edad, puedo dejar de abonar la CMAO.

No. Para dejar de abonar la CMAO una vez cumplidas las condiciones mínimas es necesario hacer el trámite administra vo de acuerdo jubilatorio, aún cuando no tenga intención inmediata de acceder a la jubilación. Quiero asegurar mi jubilación pero no dejar de trabajar, ¿qué es lo que tengo que hacer?

Si ya ene las condiciones mínimas cumplidas (edad: 65 años o más y aportes: 35 años o más y que sean iguales o mayores a la CMAO y no tener deudas de ningún po) puede solicitar el acuerdo jubilatorio. Este se le comunicará y Ud. puede seguir trabajando. Una vez que decida, acceder a cobrar la jubilación, cancela la matrícula y presentando la misma a la Caja se procede al alta del beneficio jubilatorio.

CAPITALIZACIÓN. CONSIDERACIONES

¿Qué es la capitalización de los aportes?

La capitalización de los aportes se origina en la ley 12490 de modo que a par r de la fecha que se indique (2006) todos los aportes realizados por los afiliados se reserven en un porcentaje determinado en un Fondo de fideicomiso creado en el Banco de la Provincia de Buenos Aires.

¿Cómo se utiliza?

El fideicomiso creado en el Banco de la Provincia sólo quedará disponible para el afiliado en el momento en que se le acuerde un beneficio previsional (Jubilación ordinaria, pensión ordinaria o jubilación extraordinaria). En ese momento serán re rados los fondos de su Cuenta Individual para ser transferidos a la cuenta pagadora (Reserva Matemá ca) de los haberes previsionales o Renta Vitalicia.

CUENTA INDIVIDUAL DE CAPITALIZACIÓN

¿Qué es la cuenta de capitalización individual?

La cuenta de capitalización individual es aquella cuenta en la que se iden fican sus fondos capitalizados y donde se acreditan o debitan, según sea el caso, los importes generados por la rentabilidad posi va o nega va.

¿Cuándo se crea la cuenta de capitalización individual?

A par r del año 2006 por disposición de la Asamblea de Representantes de la Caja (máxima autoridad resolu va)

RENTABILIDAD

¿Con qué frecuencia se informa a los afiliados?

La obligación de la Caja es informar al afiliado que no ha completado su Cuota Mínima Anual Obligatoria (CMAO) a los efectos de que decida su cumplimiento. No obstante lo dispuesto por el marco legal, la Caja desea mantener informado al afiliado sobre los aportes realizados y aquellos que han capitalizado. Esta información se encuentra en el si o, autoges ón, capitalización.

¿Ha habido rentabilidad durante los años 2006 y 2007? Dado que la primera imposición al fideicomiso se realiza en mayo del 2007, los aportes capitalizados desde el 1/1/2006 hasta la fecha citada han generado una rentabilidad vinculada con los plazos fijos en los que fue acreditado el dinero. De ahí que se tenga:

a) rentabilidad por capitalización en el año 2006. No hubo fideicomiso.

b) intereses ganados por plazo fijo: 8.33 %.

c) rentabilidad por capitalización en el año 2007 = 0,25%.

¿Por qué tan baja rentabilidad en el año 2007?

La crisis de los mercados hizo que en general la mayor parte del por olio de inversiones – indicado oportunamente por la Asamblea – tuviera baja o nula rentabilidad durante el año. Para el año en curso, las variables apuntan a empeorar la rentabilidad

ADMINISTRACIÓN DE FONDOS

¿Cómo se administran mis fondos?

De acuerdo al aporte, se capitaliza un porcentaje y el resto se des na al Fondo de Recomposición Provisional (30%), Gastos Administra vos (9%), y Seguros para atender las pensiones y jubilaciones extraordinarias (11%).

ASUNTOS PREVISIONALES
capba IX ASUNTOS PREVISIONALES 59

Para consultas telefónicas el número es: 0221- 4120613 y para enviar fax es: 0221- 4120608

Para solicitar Cer ficado Final de Aportes el mail es: ccapobra@caaitba.org.ar

¿Si no completé la CMAO, capitalizo?

NO. Para capitalizar ene que cumplir con la CMAO igual a 1.00. La capitalización se produce en el monto que se encuentra totalmente integrado.

¿Si renuncio al pago de la CMAO que pasa?

No capitaliza, su aporte queda en 0 (cero)

¿Si pago por la opción del 50% de la CMAO que pasa?

Capitaliza en las mismas condiciones como si cumpliera la CMAO, solo que el porcentaje es menor.

¿Qué pasa con mis aportes capitalizados, donde se encontrarán?

En su cuenta individual depositados en un Fondo Fiduciario administrados por el Banco de la Pcia. de Bs. As.

¿Cómo se distribuye mi aporte?

30% Fondo de Recomposición Previsional

9% Gastos Administra vos

11% Seguros

El resto integra la cuenta de capitalización individual ¿Qué es el Fondo de Recomposición Previsional?

Es el dinero con el que se pagan las actuales jubilaciones y o pensiones actuales y futuras por el sistema de reparto ¿Qué es el Fondo Fiduciario?

Es el fondo donde se depositan la parte proporcional de los aportes de los afiliados des nados a la cuenta de capitalización individual.

¿Si tengo aportes anteriores a 2006 que cálculo se aplicará?

Hasta el 31/12/2005 rige el sistema de cálculo de reparto, por lo tanto considerando los aportes realizados hasta ese momento se calculará la proporcionalidad que corresponda según los años aportados. Con los aportes realizados con posterioridad al 1/1/2006 se realizará el cálculo de renta vitalicia, por lo tanto tendrá un haber mixto sumándose las sumas proporcionales de cada sistema.

capba IX ASUNTOS PREVISIONALES 60

DUDAS

¿Cuál ha sido la rentabilidad correspondiente al 2006?

La rentabilidad correspondiente al 2006 ha sido del 8.33%

¿Cuál ha sido la rentabilidad correspondiente al 2007?

La rentabilidad correspondiente al 2007 ha sido del 0.25%

¿Por qué resulta tan baja la rentabilidad?

La rentabilidad, mirada en el corto plazo y en función de la crisis de los mercados a la que estamos asis endo, resulta de valores bajos y hasta nega vos. En cambio, si se espera al largo plazo, tal como fueron realizadas las inversiones, los guarismos pueden cambiar.

¿Cómo se abonan los beneficios previsionales?

Los beneficios previsionales son las jubilaciones ordinarias, las pensiones ordinarias y las jubilaciones por incapacidad. Las jubilaciones ordinarias se abonarán de acuerdo con el siguiente esquema:

Por los aportes hasta el año 2005 inclusive: corresponde al régimen de reparto por lo que se calcula el haber proporcional por todos los años aportados hasta esa fecha.

Por los aportes desde el año 2006 en adelante se abona lo capitalizado en la “cuenta de capitalización individual” mediante el cálculo de “renta vitalicia”.

¿Cómo se abonan las pensiones ordinarias?

Las pensiones ordinarias se calculan con el mismo esquema otorgando el 70 % de lo que correspondía a la jubilación ordinaria. Cuando se trata de la “pensión de un afiliado fallecido en ac vidad” después del año 2006, el sistema calcula lo que debía haber aportado el afiliado como Cuota mínima hasta cumplir los 65 años de edad.

En consecuencia, la pensión ordinaria se abona hasta el año 2005 por el sistema de reparto, por los años que faltan a la edad de 65 años, lo hace el Fondo de Seguro y por el régimen de capitalización se abona lo capitalizado en la cuenta individual desde el 2006 en adelante.

¿Cómo se abonan las jubilaciones extraordinarias?

Del mismo modo que las pensiones. Sólo cambia el hecho de que el afiliado es el que se ha incapacitado y se debe cer ficar dicha situación en una junta médica. El esquema del pago es similar a las pensiones.

Arq. Roque Nóbile Comisión de Asuntos Previsionales

Fuente: Caja de Previsión Social para Arquitectos, Agrimensores, Ingenieros y Técnicos de la Provincia de Buenos Aires. www.caaitba.org.ar

ASUNTOS PREVISIONALES
61

Proyecto de Caja Propia

Se encuentra presentado ante la Legislatura Provincial el proyecto de los Arquitectos

El proyecto presentado por el Colegio de Arquitectos de la Provincia de Buenos Aires, conjuntamente con los proyectos presentados por los otros entes colegiales, dará término al Régimen Jubilatorio creado por la ley Nº 12490. Para lograr la disolución completa de la actual Caja de Jubilación se debió acordar con el resto de los colegios profesionales la creación de sistemas individuales, lo cual comenzó a gestarse con un Acta Acuerdo firmada en junio del año 2013.

Desde la firma de ese acuerdo y hasta junio de este año se elaboraron los proyectos que, en términos generales, fueran aprobados en la Asamblea Extraordinaria de la CAAITBA el 15 de mayo pasado. Treinta días después fueron presentados ante la Legislatura Provincial los cuatro proyectos de Cajas.

En dicho período el CAPBA IX, a través de su comisión de Asuntos Previsionales, ha trabajado incansablemente en la revisión y elaboración de propuestas que permitan conformar un sistema previsional inclusivo, solidario y de equidad. Se mantuvieron reuniones con matriculados, en ejercicio y jubilados, se difundieron los proyectos preliminares y las resoluciones adoptadas a nivel distrital como a nivel provincial y se estudiaron exhaus vamente otros proyectos de Ley

El trabajo realizado y el seguimiento a todo el proceso nos permite afirmar que el proyecto de caja propia para los arquitectos de la Provincia de Buenos Aires se ha

62
El 18 de junio pasado los Presidentes de los colegios Profesionales de Arquitectos, Agrimensores, Ingenieros y Técnicos de la Provincia de Buenos Aires entregaron al señor Vicegobernador los proyectos de Caja Previsional Individuales.

perfeccionado desde las primeras propuestas, e incluso resulta superador que los proyectos de Ley de otros colegios.

Desde un aspecto económico-financiero la nueva caja previsional tendría su sustentabilidad asegurada por un interesante período de años, y permi ría otorgar beneficios jubilatorios y asistenciales mejores que los actuales, según los análisis elaborados por el Consejo Superior del CAPBA y los estudios actuariales requeridos

Sin embargo quedan muchos aspectos para mejorar y modificar, pero fundamentalmente compar r con los colegas de la Provincia el contenido de este proyecto para que obtenga una autén ca legi midad que lo fortalezca ante el debate parlamentario.

En este número queremos compar r con nuestros matriculados, de manera sinté ca, los aspectos más importantes del proyecto que se encuentra en discusión en la Cámara de Senadores.

DENOMINACIÓN : Caja de Previsión y Seguridad Social para Arquitectos de la Provincia de Buenos Aires.

OBJETO : administrar un Sistema de Previsión y Seguridad Social, fundado en los principios de solidaridad, la equidad en el esfuerzo y responsabilidad individual de sus afiliados, mediante la instrumentación de un Sistema Solidario Previsional de Reparto y de un Sistema de Capitalización Individual de Aportes Excedentes.

AFILIADOS : Todos los matriculados en el Colegio de Arquitectos de la Provincia de Buenos Aires

BENEFICIARIOS : los jubilados y sus causahabientes.

OBLIGACIONES DE LOS AFILIADOS :

o Abonar los aportes que determina la ley.

o Suministrar toda información requerida por la Caja.

o Informar todo cambio de estado o de situación.

o Declarar y conservar actualizado el domicilio real y legal.

o Dar cumplimiento en empo y forma a las obligaciones emergentes de esta ley.

o La regularización en caso de incumplimiento de los incisos precedentes previo al otorgamiento de cualquier prestación.

RECURSOS :

o Cuota Mínima Anual Obligatoria (CMAO). La propuesta es que esta sea de pago mensual, en base a un Modulo- El Modulo será la unidad de medida para determinar el monto de los aportes mínimos y las prestaciones básicas de los beneficios - y podría variar su monto en base a escalas por edad y an güedad matricular.

o El aporte obligatorio del 18%. Nueve (9%) a cargo del afiliado y el nueve por ciento (9%) restante a cargo del comitente.

o Las cuotas que la Asamblea resuelva establecer.

o Los intereses y recargos que se impongan a los afiliados y beneficiarios.

o Los intereses y frutos civiles de los bienes de la Caja.

o Las donaciones, legados y todo otro po de aportes o contribuciones.

o Las sumas correspondientes a prestaciones y demás beneficios dejados de percibir por los beneficiarios.

o En toda obra pública se deberá realizar el aporte obligatorio del 18%.

o Las Empresas Consultoras de Servicios Profesionales deberán realizar el aporte obligatorio del 18%.

o El aporte obligatorio del 18% de los honorarios mínimos de las obras privadas que los profesionales arquitectos asuman en relación de dependencia, cualquiera fuere la forma contractual de la relación entre empleadores y/o comitentes y profesionales. Los profesionales arquitectos son responsables del pago a la caja de los aportes sobre los honorarios percibidos en su condición de dependencia y los empleadores son responsables del pago a la caja de los aportes sobre la diferencia de los honorarios mínimos.

o La contribución del nueve por ciento (9%) del resarcimiento o compensación de cada profesional que ocupe un cargo direc vo en el Colegio de Arquitectos de la provincia de Buenos Aires y en la Caja.

o El aporte obligatorio del 18% de los honorarios judiciales que en cada caso se regulen en toda actuación como peritos que estará a cargo del condenado en costas.

o El aporte obligatorio del 18% de los honorarios equivalentes a Proyecto y Dirección, a cargo del dueño de la obra o el beneficiario de la misma, en obras y/o instalaciones existentes no declaradas. (Art. 29 Ley Nº 12490 modificado por la Ley Nº 13753) y su efec vo pago será previo al momento de la intervención del colegio de arquitectos.

EXCEPCIONES:

o Todo afiliado podrá optar por realizar aportes inferiores a la CMAO, pero iguales o superiores al cincuenta (50) por ciento computándosele tales años en la proporción correspondiente y en este caso acceder a una Jubilación Proporcional Reducidad. También se podrá completar ese porcentaje disminuido en el transcurso de los treinta

ASUNTOS PREVISIONALES
capba IX ASUNTOS PREVISIONALES 63

y cinco (35) años de aportes requeridos y acceder al beneficio de una jubilación proporcional ordinaria.

o El afiliado en relación de dependencia y acredite afiliación obligatoria a otro régimen previsional podrá optar por ser exceptuado del aporte.

o Llegado el afiliado a los setenta (70) años de edad, y no habiendo cumplido los requisitos establecidos en la presente Ley, podrá acogerse a los beneficios de la Jubilación ordinaria reducida, jus ficando los quince (15) úl mos años de aporte efec vos iguales o superiores a la C.M.A.O. debiendo mantener la con nuidad matricular y admi endo en dicho lapso la renuncia al año establecida en el Ar culo 30.

PRESTACIONES:

o Jubilación Proporcional Ordinaria.

o Jubilación Proporcional Reducida.

o Jubilación Extraordinaria por Incapacidad Total y Permanente.

o Compensación por Gran Invalidez.

o Pensión.

o Beneficio Anual Complementario de las prestaciones detalladas equivalente a la doceava parte de lo devengado en cada semestre y con pago semestral.

OTROS PROGRAMAS Y/O PRESTACIONES:

o Programas para op mizar las prestaciones.

o Prestaciones e inversiones que a endan a otros aspectos de la solidaridad y de los otros aspectos que hacen al desempeño y al desarrollo profesional.

REQUISITOS PARA EL ACCESO AL HABER JUBILATORIO:

Jubilación Proporcional Ordinaria

o Edad mínima de sesenta y cinco (65) años

o Treinta y cinco (35) años con aportes previsionales.

o Para el caso de contar con mayor edad y no acreditar los años de servicio profesional, por cada dos (2) años de edad excedente se reconocerá un (1) año adicional.

o Cómputo de Año con Aporte: Se computarán como años con aportes aquellos en los cuales los afiliados hayan depositado, en el año calendario, un valor igual o superior a una CMAO.

Jubilación Proporcional Reducida

o Edad mínima de sesenta y cinco (65) años

o Treinta y cinco (35) años con aportes previsionales, en cada uno de ellos, iguales o superiores al cincuenta por ciento (50%) de la CMAO.

o Llegado el profesional a los setenta (70) años de edad podrá acogerse a los beneficios de la Jubilación Proporcional Reducida aunque no cumpla con los treinta y cinco (35) años de aportes, si reúne en los úl mos quince (15) años, aportes efec vos iguales a una (1) CMAO anual, como mínimo.

Jubilación Extraordinaria por Incapacidad total y permanente

La jubilación extraordinaria por incapacidad total y permanente es voluntaria y se acordará al afiliado que

64

se incapacite sica o intelectualmente en forma absoluta para el ejercicio profesional, cualquiera sea su edad, y siempre que concurran los siguientes requisitos:

o Que la causa de incapacidad sea posterior a la afiliación.

o Haber sa sfecho el pago de la CMAO del año inmediatamente anterior al de su incapacidad, y por lo menos cuatro (4) de los cinco (5) años precedentes al de su incapacidad.

o Si el profesional incapacitado tuviera menos de treinta y cinco (35) años de edad y se hubiera afiliado dentro de los cinco (5) años de expedido su tulo, no se exigirá an güedad mínima de afiliación, pero si el cumplimiento de los aportes mínimos anuales desde su afiliación hasta el año inmediato anterior al de su incapacidad.

o Haber sa sfecho la cuota de integración al seguro colec vo por incapacidad total y permanente.

o Desaparecida la Incapacidad cesará el beneficio.

Compensación por gran invalidez

o El afiliado que obtuviere esta prestación, que requiera la atención permanente de su incapacidad con el auxilio de terceros y cumplimente los requisitos que a tal efecto fije el reglamento que establezca el Consejo Superior tendrá derecho a una compensación pecuniaria complementaria, no vitalicia, por gran invalidez.

o La Comisión de Administración, en forma periódica, constatará la necesidad del auxilio al que alude el ar culo precedente.

o El valor pecuniario de la compensación por gran invalidez, será graduado en el reglamento a que hace referencia esta ley.

Pensión

A la muerte de un afiliado o a su presunto fallecimiento judicialmente declarado:

o Los causahabientes del afiliado que estuviere gozando de una Jubilación Proporcional Ordinaria, Reducida o Extraordinaria por Incapacidad.

o Los causahabientes del afiliado que se encontrare en ac vidad y reuniere los requisitos exigidos por la presente ley para acceder a una Jubilación Proporcional Ordinaria Reducida o Extraordinaria por Incapacidad.

o Los causahabientes del afiliado que se encontrare en ac vidad y no reuniere los requisitos exigidos por la presente ley para acceder a una Jubilación Proporcional Ordinaria.

DEL SISTEMA DE CAPITALIZACIÓN DE APORTES

EXCEDENTES:

Recursos

o Los recursos provenientes de la Ley Nº 12490 según lo dispuesto en esta ley.

o Aportes por contratos que superen una CMAO. Los fondos a capitalizar serán depositados en el Banco de la Provincia de Buenos Aires en un fondo fiduciario cuya administración estará a cargo de esa en dad financiera dicho régimen se mantendrá durante cinco (5) años, al final de dicho periodo la Asamblea Extraordinaria

ASUNTOS PREVISIONALES
65

convocada al efecto decidirá la con nuación o no de dicho fideicomiso.

Cuentas individuales. Los fondos del Sistema de Capitalización de Aportes Excedentes ingresarán en cuentas individualizadas de los afiliados depositantes y estarán a su disposición cuando ellos o sus causahabientes accedan a un beneficio en las condiciones establecidas en la reglamentación que se dicte al efecto.

Disponibilidad de los fondos capitalizados. Los fondos capitalizados sólo podrán ser dispuestos y/o re rados por:

o Los afiliados ac vos que hubieran alcanzado los sesenta y cinco (65) años de edad y cumplimentado, como mínimo, diez (10) años de cuota mínima anual, no reúnan los requisitos y den de baja su matrícula.

o Los afiliados que se hubieren incapacitado, una vez que el Comisión de Administración hubiera determinado el carácter permanente de su incapacidad.

o Los causahabientes.

Modalidad de las prestaciones. Los afiliados ac vos, los incapacitados y los causahabientes que cumplieron los requisitos, podrán disponer del saldo de la cuenta de capitalización individual, de acuerdo a las modalidades que se detallan en los incisos siguientes:

o Renta vitalicia previsional normal.

o Renta vitalicia extensiva a sucesor.

o Renta vitalicia temporaria por quince (15) años como haber pensionario de los causahabientes por fallecimiento del afiliado ac vo.

DEL FONDO SOLIDARIO PREVISIONAL DE REPARTO:

Se reconocerán los derechos adquiridos y en expecta va de los pasivos y afiliados hasta la sanción de la presente ley y los derechos emergentes de la capitalización individual durante el período de transición. El monto resultante lo definirá un estudio actuarial y se conocerá como déficit. El mismo será cubierto por el Fondo Solidario Previsional de Reparto cuyos recursos provendrán de:

o Lo establecido en el ar culo 30º, de los recursos del sistema, de la presente Ley.

o Los intereses, recargos y similares que se impongan a los afiliados y beneficiarios por infracción a la presente Ley y sus reglamentaciones, cuyas tasas e intereses serán fijados por la Asamblea.

o Los intereses y frutos civiles de los bienes de la Caja.

o El importe de las donaciones, legados y todo otro po de aportes o contribuciones que realicen los afiliados u otras personas sicas o jurídicas.

o Las sumas correspondientes a prestaciones y de más beneficios dejados de percibir por los beneficiarios.

o La contribución por regularización de obras en contravención.

o Todos los fondos existentes provenientes del sistema regido por las Ley Nº 12490 correspondientes al Fondo de Recomposición Provisional.

En el presente ar culo no se ha profundizado en los aspectos relacionados con el Gobierno y la Administración de nuestra Caja de Previsión Social, lo cual demanda una publicación específica dada su relevancia y par cularidades.

66
Arq. Roque R. Nóbile Comisión de Asuntos Previsionales CAPBA IX

Luego de la inicia va propuesta por el CAPBA IX al Presidente del Consejo Superior, para lograr un ámbito de diálogo provincial que permi era expresar la opinión de los Distritos sobre temá cas de profundo interés para los arquitectos de la Provincia de Buenos Aires, el pasado martes 5 de agosto se realizó una reunión de Presidentes y Mesas Direc vas Distritales convocada por el Presidente del CAPBA.

En la ocasión concurrieron las autoridades de nueve de los diez distritos que componen el CAPBA y se mantuvo una jornada de trabajo que duró más de 9 horas de debate. Se abordaron temas referidos al ejercicio de la profesión, al funcionamiento de los Ins tutos Provinciales de Inves gación, Desarrollo e Innovación, Proyectos de Leyes Colegiales, situación económica del CAPBA, entre otros temas.

El tema de mayor trascendencia fue el proyecto de Ley de Caja Propia recientemente presentado en la Legislatura Provincial, sus alcances y acciones, porcentajes de aportes, el gobierno y su administración fueron algunos aspectos deba dos. Desde el CAPBA IX se insis ó en la necesidad de promover la par cipación de los matriculados en la discusión e introducir modificaciones que lo mejoren sustancialmente, teniendo en cuenta la realidad de los arquitectos de cada región.

Finalmente, y a los efectos de fortalecer a la Ins tución, se acordó la firma de un acta acuerdo por unanimidad de los distritos que par ciparon en este encuentro, los puntos acordados fueron:

1. Apoyo unánime al proyecto de Ley de Caja Propia para Arquitectos de la Provincia de Buenos Aires.

2. Compromiso unánime de difusión e impulso del Proyecto de Ley de Caja Propia para Arquitectos de la Provincia de Buenos Aires (2014) enviada a la H. Legislatura, por los medios de difusión disponibles a tal fin, promoviendo las modificaciones que pudieran surgir.

3. Propender a las ges ones necesarias con los Legisladores desde cada conducción Distrital, Provincial y de la actual Caja en pos del proyecto de Ley de Caja Propia para Arquitectos de la Provincia de Buenos Aires.

Consideramos que, a pesar de las crí cas que aún mantenemos respecto al proceso desarrollado en la definición del proyecto de Caja y de algunos aspectos del ar culado que lo componen, este es el comienzo de una nueva etapa en la creación de un sistema previsional para los arquitectos bonaerenses. Es la oportunidad de par cipar ampliamente en un debate que permita realizar modificaciones y redefiniciones para garan zar un régimen solidario, inclusivo, equita vo, eficiente, económicamente sustentable y fundado en valores democrá cos y par cipa vos

Realizaremos reuniones de matriculados del CAPBA IX, con par cipación de autoridades provinciales, a los efectos de compar r con los arquitectos de la región el proyecto presentado y concluir en las modificaciones que a entender de nuestros matriculados resulten necesarias

Como siempre, los convocamos a acercarse al Colegio, par cipar y acercar su opinión.

El CAPBA IX impulsa la apertura del debate provincial sobre el proyecto de Caja Propia
ASUNTOS PREVISIONALES
Arq. Daniel Monzón Secretario CAPBA IX Arq. Bruno Mazzini Tesorero CAPBA IX
capba IX ASUNTOS PREVISIONALES 67
Arq. Julia Romero Presidente CAPBA

El Colegio de Arquitectos de la Provincia de Buenos Aires Distrito IX convocó a sus matriculados a par cipar del brindis que con mo vo de celebrarse el Día del Arquitecto Argen no se realizó en la Sede Distrital y delegaciones del CAPBA IX el martes 1° de Julio.

En la oportunidad se inauguró la 4º muestra del Ciclo de Artes Plás cas 2014 denominado “Expresiones de Arquitectos” que ene como objeto valorar y difundir la producción ar s ca de los arquitectos, con una rotación mensual de las obras y ar stas expuestos. En esta ocasión la Muestra Fotográfica inaugurada se denominó “Reflejos”, del Arquitecto Francisco Olivo. La misma estuvo abierta al público del 1º de julio al 4 de agosto. Este ciclo de Artes Plás cas es coordinado por la Arq. Romina Chocou.

Además en la ocasión se hizo entrega de credenciales a nuevos matriculados quienes fueron recibidos por las autoridades de la Ins tución y recibieron los carnets que los iden fican como profesionales habilitados para el ejercicio de la profesión en el ámbito de la Provincia de Buenos Aires. Para finalizar se compar ó un brindis de camaradería celebrando la ocasión.

En las Delegaciones del CAPBA IX, como ya es tradición, se organizaron cenas, encuentros y agasajos a cargo de los Delegados, permi endo compar r opiniones y experiencias en un ámbito distendido.

Desde la Ins tución señalaron que, “contamos con la amplia par cipación de nuestros colegas de la región del CAPBA DIX, así como también con el acompañamiento de la comunidad, lo cual permite estrechar vínculos que ubican a los arquitectos como actores significa vos de la vida en las ciudades, en la búsqueda permanente de mejorar el hábitat, la calidad de vida y condiciones de equidad e igualdad para los ciudadanos”.

1º de Julio | Día del Arquitecto ¿Por qué se celebra el “Día del Arquitecto Argen no”?

Durante años se celebró internacionalmente el 1º de julio como Día del Arquitecto, fecha que ene su origen en 1985, cuando la Unión Internacional de Arquitectos (UIA) dispuso establecerla como Día Internacional de la Arquitectura, recordando así la fecha de creación de esta en dad: en Suiza, el 1° de julio de 1949.

Pero en 1996, una nueva asamblea de la UIA decidió trasladar el festejo del Día Internacional de la Arquitectura. La celebración recaló en el primer lunes de octubre (este año será el 7 de octubre), con el objeto de hacerla coincidir con el Día Internacional del Hábitat, intentando con ello fortalecer la responsabilidad de los arquitectos en la construcción de ciudades y comunidades más saludables.

El primer lunes del mes de octubre quedó establecido entonces, el Día Internacional de la Arquitectura y el Hábitat Humano. No obstante este cambio a nivel internacional, la Federación Argen na de En dades de Arquitectos (FADEA) decidió mantener en nuestro país, el Día del Arquitecto Argen no el 1º de julio, por hallarse ya enraizado en el Calendario Fes vo Local.

Los Arquitectos celebramos nuestro día con un encuentro de camaradería 68
Día del Arquitecto Argen no

Con ocasión de la inauguración de la muestra fotográfica “Reflejos”, ocurrida el mismo Día del Arquitecto Argen no, el arquitecto Francisco Olivo decía: “Veo en el acto del reflejo, en esa “reflexión” de la imagen de un edificio sobre otro, no sólo un hecho esté co apreciable, sino también una metáfora potente de esta condición del lenguaje de las formas y sus infinitas expresiones. El reflejo es la figura que mejor captura ese concepto de significación infinita. ¿Lo captura? o simplemente permite que viaje de espejo en espejo, de mente en mente, siempre cambiante, veloz, resbaladizo, lábil y camuflado: la imagen de las cosas que necesitamos para construir cada una de nuestras nociones, se desvanece al mismo empo que la capturamos. Por suerte siempre permanece en libertad, allí fuera de nosotros.”

Con nuando con este espacio, en el mes de agosto también tuvo lugar la muestra fotográfica “Otra Mirada” de la arquitecta So a Compañy quien expresaba: “En cuanto a la relación entre la arquitectura y el arte, pienso que no están separados, hay una estrecha relación ya que la arquitectura es una rama del arte. En ambas disciplinas existe una CREACIÓN-COMPOSICIÓN que conlleva una expresión. Tanto una fotogra a como una obra arquitectónica enen sus hilos composi vos y puntos fuertes que nos transmiten sensaciones y emociones al vivenciarlos.”

Francisco Olivo - Con-fusión Boston 2007 So a Compañy -En perspec va
capba IX SOCIAL Y GREMIAL 69

Consideraciones

Dime y lo olvido, enséñame y lo recuerdo, involúcrame y lo aprendo.

Todo edificio, desde el momento mismo de su diseño y selección de materiales, comienza un proceso de deterioro que afecta la vida ú l del mismo. Durante esta vida ú l, un inmueble puede verse afectado por diversos procesos patológicos que aceleran los mecanismos de envejecimiento, precipitando en ciertos casos su obsolescencia.

Pero, ¿Que ocurre en los ambientes marinos?

En este po de entornos -extremadamente agresivos-, los procesos de envejecimiento edilicio se potencian, haciendo necesario una reflexión profunda sobre los mecanismos de diagnós co y prevención en la aparición de lesiones construc vas con el objeto de prolongar la habitabilidad de nuestros edificios y op mizar el uso de recursos.

Es por ello que desde la Comisión de Capacitación del CAPBA IX, entendemos a la formación, como un acto de profundización de los conocimientos necesarios para el ejercicio profesional. Y es dentro de esta concepción, tendiente a fortalecer la capacitación con nua y permanente, que se ha llevado adelante por tercer año consecu vo el Seminario Internacional “Introducción a las Patologías de la Construcción”.

El encuentro, realizado en forma conjunta por el Colegio de Arquitectos de la Provincia de Buenos Aires Distrito

IX; el Consorcio Erasmus Mundus -European Master in Diagnosis and Repair of Buildings-; la Facultad de Arquitectura Urbanismo y Diseño de la UNMDP y la Universidad de Sevilla, y que ha permi do la par cipación de profesionales y docentes tanto de Argen na como de España, conforma una instancia de capacitación profesional dirigida a los arquitectos pertenecientes a los dis ntos distritos que componen el Colegio de Arquitectos de la provincia de Buenos Aires, mediante la implementación del dictado de clases teóricas por Teleconferencia, logrando así llegar a todos los rincones de la provincia.

Este programa de capacitación, se estructuró en torno a 4 jornadas de 3 horas cada una, las cuales se dictaron en el transcurso de la semana comprendida entre el lunes 30 de junio al jueves 3 de julio. Donde se buscó introducir al matriculado, en la problemá ca de las patologías propias de obras de arquitectura; conocer los conceptos fundamentales de la especialidad (lógica cien fica con la que se aborda la problemá ca, contenidos básicos, vocabulario específico, etc.); comprender la metodología de aplicación de un Protocolo de Análisis y Diagnosis de lesiones en la evaluación construc va de la edificación. Además de comprender, las dis ntas etapas de los procesos patológicos y discernir los pos posibles de lesiones y causas.

El desa o de la capacitación con nua
72 capba IX CAPACITACION Y ACTUALIZACION PROFESIONAL
sobre el Seminario Internacional “Introducción a la Patología de la Construcción” edición 2014

Sobre el desarrollo del Seminario Internacional…

Ante la presencia de más de 80 colegas, distribuidos en dos salas pertenecientes a la sede del CAPBA IX sumado a los par cipantes por video-conferencia en los demás distritos y delegaciones, la presidente del Colegio de Arquitectos de la Provincia de Buenos Aires Distrito IX, arquitecta Julia Romero, pronunció las palabras que dieron inicio al Seminario Internacional “Introducción a la Patología de la Construcción”.

Donde, la arquitecta María Teresita Falabella -Docente de la Facultad de Arquitectura, Urbanismo y Diseño de la UNMdP -, realizó una breve introducción a la problemá ca de la patología construc va en la edificación. Instancia que permi ó definir un marco conceptual y metodológico, sustentado en estadís cas desarrolladas u lizando casos existentes en Mar del Plata.

El Arq. Fernández habló del deterioro progresivo al que se ve expuesto el hormigón armado potenciado por las condiciones par cularmente agresivas como a las que nos enfrentamos en Mar del Plata, situación que se ve agravada por la corrosión en sus armaduras. También se habló sobre las posibles consecuencias y riesgos que pueden presentar para las estructuras de Hº Aº, la desidia y la falta de mantenimiento.

La presentación fue ejemplificada con el análisis de diversos casos pertenecientes a Mar del Plata, relacionado a elementos estructurales.

Lesiones construc vas en entornos marinos.

Luego, el Arq. Emilio Polo -Magister en Diagnosis y Reparación de Edificios de la Universidad de Sevillaprofundizó en los procesos patológicos más habituales en la ciudad del Mar del Plata, haciendo hincapié sobre la importancia de realizar un profundo proceso de inspección y evaluación de las lesiones construc vas que pudiéramos hallar en los edificios a intervenir.

El arquitecto Polo, también se refirió al estudio de lesiones y realizó recomendaciones a la hora de llevar adelante una inspección, profundizando en los pos de daños más frecuentes en entornos marinos: como grietas y fisuras, humedades, asentamientos diferenciados, desplomes, desprendimientos, etc. El profesional también se refirió a la influencia que producen los entornos con alto contenido de cloruro, en nuestras edificaciones.

El Hormigón Armado y sus complejidades.

La segunda jornada comenzó con la presentación del Arq. Lelis Fernández -Docente de la Facultad de Arquitectura, Urbanismo y Diseño de la UNMdP-, quién abordó el tema de los Procesos de Corrosión en estructuras de Hº Aº en la ciudad de Mar del Plata.

La tercera jornada, en su primera etapa dio con nuidad al tema de daños en el Hº Aº abordado el día anterior, donde la Arq. Sabine Asis -Docente de la Facultad de Arquitectura, Urbanismo y Diseño de la UNMdPprofundizó, a par r del análisis de casos, el análisis de los procesos patológicos y aplicación de dis ntos esquemas de reparación en refuerzos estructurales.

CURSO DE PATOLOGÍAS
73 capba IX CAPACITACION Y ACTUALIZACION PROFESIONAL

La inspección técnica de edificios desde una mirada internacional.

Como eje central de la tercera jornada, el Arq. Enrique Soler -disertante español, docente en la Maestría Erasmus Mundus en Diagnosis y Reparación de Edificios de la Universidad de Sevilla- abordó los criterios, reglas de análisis, caracterización y evaluación de lesiones presentes en el Protocolo de Inspección Técnica de Edificios.

El Protocolo ITE, es un instrumento técnico redactado por una comisión especializada perteneciente a la Fundación FIDAS - Fundación para la Inves gación y Difusión de la Arquitectura de Sevilla, España-, que ene por objeto ofrecer al arquitecto, un procedimiento sistemá co para emi r informes con alto grado de certeza, así

como las herramientas para proponer la realización de las mediciones y ensayos recomendables. Como procedimiento sistemá co que cons tuye un conjunto de recomendaciones, de carácter voluntario, que puede ser seguido en su totalidad o en parte.

Sobre la reparación de lesiones construc vas. Como cierre del Seminario Internacional, durante el úl mo encuentro, el arquitecto Soler realizó un profundo análisis y evaluación de los criterios de reparación de las lesiones construc vas que más frecuentemente afectan la estabilidad de las envolventes y sus acabados. También ahondó en los criterios a u lizar, a la hora de resolver daños que afectan la habitabilidad y el ornato de los locales.

74

El reto de la capacitación descentralizada… Como parte del desa o de lograr una mayor integración con las delegaciones, el arq. Jorge Luis Méndez -Coordinador de Capacitación en Delegaciones- organizó una versión abreviada e intensiva del Seminario Internacional.

Esta inicia va, que tuvo lugar el día viernes 3 de julio, se formalizó en la Delegación de Villa Gesell, donde colegas de esa ciudad y de la localidad de Pinamar, pudieron concurrir a las presentaciones del arq. Enrique Soler y el arq. Emilio Polo que abordaron temas relacionados con los procesos patológicos más frecuentes en entornos marinos.

También se realizaron estudios de casos reales a fin de realizar recomendaciones de índole prác ca, referidas

a la detección y accionar sobre daños construc vos producto de ambientes con altos niveles de agresividad climá ca.

Redoblando esfuerzos.

El éxito obtenido por el Seminario Internacional -tanto en su desarrollo en sede, como en la delegación de Villa Gesell- sumado a la inquietud existente en los colegas por la temá ca que refiere a reparación de lesiones construc vas, nos permite plantear nuevos desa os en el diseño, planificación y desarrollo de futuras propuestas de capacitación, con el objeto de lograr un mayor desarrollo técnico del profesional interviniente.

CURSO DE PATOLOGÍAS 75
Comisión Capacitación Colegio de Arquitectos de la Provincia de Buenos Aires Distrito IX

El Ciclo “De la Idea a la Obra” que pone el acento en la teoría de la arquitectura, su producción y la retroalimentación del proceso proyectual, contó con la presencia de los arquitectos Gerardo Caballero y Roberto Frangella, quienes en sendas presentaciones en el auditorio del Museo de Arte Contemporáneo -MAR- expusieron su pensamiento y obra.

La profesión en la contemporaneidad en la contemporaneidad “De la Idea a la Obra”

De carácter gratuito y abierto, el Ciclo coordinado por el estudio ef.arq | Eugenio Fernández Estudio de Arquitectura y el CAPBA IX, convocó nuevamente a centenares de par cipantes. Durante el mes de junio, las conferencias de los arquitectos Caballero (13/6) y Frangella (19/6) transcurrieron a sala llena y con un auditorio que mostró profundo interés por conocer dis ntas vías del pensamiento y de la prác ca proyectual actual, a través de la obra de estos referentes nacionales.

MINI BIO

Gerardo Caballero se graduó de arquitecto por la Universidad Nacional de Rosario en 1982. Entre los años 1983 y 1985 vivió y trabajó en Barcelona, España. En 1986 obtuvo su Master en Arquitectura en los Estados Unidos.

A par r del año 1988, de regreso en el país, estableció su prác ca arquitectónica en Rosario; y en 1993 se asoció con la arquitecta Maite Fernández, estudio que con nua hasta la actualidad.

Es miembro fundador del grupo R - Rosario, profesor invitado y conferencista de universidades de Estados Unidos, Europa y Sudamérica, y ha recibido varios premios. Entre los úl mos se cuentan:

2011: Premio Arquitectura Argen na en la XIII Bienal de Arquitectura, realizada en Bs. As.; Premio SICA, del Comité Internacional de Crí cos de la Arquitectura; y Gran Premio Nacional de Arquitectura Clarín - FADEA.

2012: Premio Konex (Fundación Konex).

MINI BIO

R. Frangella: “He nacido en el año 42, estudié arquitectura y desde allí crecí en toda forma crea va de expresión plás ca. Mi camino par ó del dibujo lineal, a conquistar los espacios de las tramas, las manchas y finalmente el color. He realizado obras en éstas disciplinas y en trabajos de volumen, actualmente después de la crisis del 2001 soy un cartonero reciclador que construye con ese material su obra. Anteriormente modelé cerámica y soldé hierros en desuso. Me apasiona la construcción casi casual, de ensamblados y pegados construir con elementos y partes componiendo, creo que me queda del arquitecto. Igualmente mis obras llevan un concepto que maneja imágenes de figuración, pero siempre apunto al mensaje, con la idea de la igualdad, la jus cia y el bienestar de todo el planeta. En realidad por el camino del arte expreso mis convicciones de ser humano que aspira a un mundo mejor. Es el arte del entendimiento entre los hombres. He realizado varias muestras individuales, sobre estos temas, trabajo de los albañiles, vida de los cartoneros lucha de las coopera vas, también he par cipado en numerosas muestras colec vas, algunas en el extranjero, Madrid, Paris, Milán. He obtenido algunos premios menores, en Buenos Aires y Provincia”.

76 capba IX CAPACITACION Y ACTUALIZACION PROFESIONAL

CICLO GRATUITO DE CONFERENCIAS DE ARQUITECTURA

“TRAVESÍAS Y MESTIZAJE”

ESTUDIO CABALLERO FERNÁNDEZ, ROSARIO

“¿Por qué alguien que observa algo por primera vez, ve cosas que alguien que lo observa todos los días no ve?” se preguntó Gerardo Caballero casi al inicio de su charla. La pregunta retórica surgió al mostrar al público un croquis que Le Corbusier hizo en su viaje al Río de la Plata. Cuando llegaba a Buenos Aires en barco hizo ese croquis al que tuló “el cielo argen no”. No es su dibujo más conocido, pero manifiesta lo que le ha llamado la atención. Le Corbusier como gran observador percibió la grandeza del cielo argen no y acentuó la línea bajo el dibujo del cielo, la línea del horizonte, de la pampa. “Para ver la casa de uno, hay que ir a la vereda de enfrente”, reforzó Caballero, profundizando en el desplazamiento necesario ‘para verse uno mismo’. Conceptualmente esto implica un viaje que puede ser sico o intelectual.

En su experiencia “la vereda de enfrente” fue su estadía en los Estados Unidos. Estando lejos se empezó a interesar por la observación de cosas simples y co dianas, banales, sin interés aparente. Cuando estaba en su erra no le daba importancia a las casas de campo -explicó-, a los galpones parabólicos, las estructuras tradicionales y sencillas. Pero al regresar, la topogra a pampeana lo cau vó y la eligió como escenario poé co para su obra, tal vez, por ser “como una escenogra a que se va corriendo, en la que se camina y se camina, pero el horizonte nunca se alcanza”.

De este modo vio que los galpones picos del campo y ldados de poco valor, poseen cierto interés estructural con posibilidades espaciales. Así en su primer encargo, un quincho al fondo de una casa, intentó conjugar formalmente un galpón pampeano con los conceptos de fluidez y liviandad del pabellón de Barcelona de Mies van der Rohe. La anécdota, contada con mucho humor y autocrí ca, deleitó al auditorio por la sinceridad con que expuso todas las pretensiones de lo que quiso lograr frustradamente: no quedó sa sfecho, ni él ni el cliente. El recuerdo de esta obra lo llevó a reflexionar sobre el ensimismamiento que perjudica al arquitecto y que no le permite ver todas las cosas del entorno sobre las que no ene poder de decisión, pero que influirán -atentarán, a vecescontra la obra perfecta que pretende construir.

Transcurriendo la charla, Caballero presentó varias de sus obras, como la Concesionaria de Implementos Agrícolas

sobre la ruta 34, en la cual empleó como terreno conceptual un cono visual que relaciona la ruta con el edificio y que hace las veces de plataforma exhibidora de los objetos a la venta. A propósito de esta obra, habló también del trabajo en maqueta, de lo que se produce cuando se prac can cortes en ella. Apariciones imprevistas que para ser detectadas con todas sus posibilidades, se debe estar atento y hasta “alejado conceptualmente”. Sólo así uno puede asombrarse de lo que no pensó y surgió espontáneamente.

Al contar el encargo de una bicicletería sobre una avenida de transito rápido, donde el producto -las bicicletas- debía ser observado desde el auto, logrando interés suficiente para “parar y ver”, explicó que se basó en el mismo concepto: un galpón. Esta vez camuflado bajo el nombre de “showroom” y con una vidriera sobrenivel para que la visión no fuera interrumpida.

Tomando a los pueblos pampeanos como referencia, con sus casas de líneas severas y esquina con ochava, reforzando la manzana, ideó la Casa Puerto Roldán. El Estudio la pensó con elementos formales mínimos al servicio de una idea potente: sinte zar la relación campo-ciudad, que se ve plasmada en las casas de los pueblos pampeanos. La casa representa un fragmento de pueblo, cerrada al sur, abierta al note. Una casa de ladrillo, alargada sobre el terreno, achaparrada, con pocos detalles y reconstruyendo a propósito y literalmente la ochava. Al pasar ya a la escala urbana, Caballero abordó el tema de la ciudad con mucho humor y contagió a la platea. Consideró a las ciudades argen nas como un “caos controlado” gracias a la cuadrícula que involucra a todos como en un ‘guiso’ que reúne todas las pologías y funciones juntas. Ponderó este hecho tan nuestro, al contrario de otros casos que mencionó, como Detroit, donde la ciudad ha desaparecido y la gente acude a ella sólo para trabajar pero vive en otra parte. Aquí, por el contrario, todo convive “edificios altos y bajos, casas, estaciones de servicios, casas de pasillo, escuelas, hospitales, shoppings, supermercados, almacenes (…) para altos, flacos, gordos, rubios, morochos (…) (la cuadrícula) acepta edificios mejores y peores, pero todos juntos, como la sociedad: junta”. Así valorizó a nuestras ciudades como hecho y construcción pública.

77 capba IX CAPACITACION Y ACTUALIZACION PROFESIONAL

De esta forma dio paso a la presentación del edificio Brown, en Rosario, una esquina que “mejora las condiciones miserables de la especulación inmobiliaria”. Aquí también imperó el concepto de cono visual, sin restringir espacio para los lugares de uso común. Los tabiques de HºAº, las losas sin vigas, las instalaciones, los muros de ladrillos y sus cámaras de aire, ocuparon los siguientes minutos.

El edificio de calle Güemes, también en Rosario, siguió en la lista. Se trata de un proyecto que debió amoldarse a grandes cambios, pasando de tener pisos enteros a dos departamentos por piso, lo que implicó la revisión completa del proyecto para que ambas unidades pudieran aprovechar el norte con vista al río.

Acercándose al final, Caballero presentó el gran desarrollo Ciudad Ribera, emprendimiento mixto en Puerto Norte, Rosario, en un privilegiado terreno de 26.000 m2 sobre el río Paraná donde estaba el puerto cerealero Agro Export. Bajo el concepto de master plan, aquí se par ó de decidir qué edificios existentes conservar y cuáles no, cuáles donar para dar paso a la construcción de una avenida y qué sector des nar a espacio público, con plaza de libre acceso, debiendo compensar con más metros al desarrollador. El plan de 100.000 m2 y dos años de trabajo en conjunto con la municipalidad, cuenta con locales comerciales en planta baja y edificios residenciales en planta alta, entre ellos torres, más un hotel construido sobre los silos, una plaza que llega al río, y tres niveles de cocheras (más de 1.000 coches).

Para concluir mostró el “Paseo del Caminante”, una intervención en el borde costero rosarino que abarcó 800 mts., y fue una de sus primeras obras en la década del 80, cuando trabajó en el equipo técnico de la Secretaría de Planeamiento del municipio de Rosario. También la Escuela de Ingeniería en la Ciudad Universitaria de Rosario (finalizada 14 años después de haber ganado el concurso en 1999) tuvo unos minutos. Como despedida humorís ca, Caballero contó al es lo Landriscina, la tragicómica par cipación del estudio en el concurso municipal para repensar las entradas de su pueblo natal. Concurso que no despertó interés y del que fue el único par cipante, ganando el 1º Premio, aunque nunca llegó a construirse.

“BUSCANDO SER ÚTIL CON LA PROFESIÓN”

ESTUDIO FRANGELLA SARDÍN DEL PUERTO COLÓN BERSON

Desde el comienzo de su conferencia, el arquitecto Roberto Frangella expresó sus ideas basadas en la iden dad, más específicamente, en la búsqueda de la iden dad del arquitecto. Dejó entrever que trascurrir la vida a través del rol del arquitecto conduce a veces a ciertos esquema smos. Por lo general “el arquitecto es un personaje un tanto parado en sí mismo, soberbio, lo sabemos todo, podemos indicarle a la gente lo que le gusta, lo que debe hacer y lo que no”. A par r de allí Frangella se cues ona cómo ser ú l a la sociedad, cómo compar r el saber pero brindando un servicio. Una visión muy dis nta del “profesional liberal que sólo piensa en sí mismo, en sus obras, que quiere tener su estudio y salvarse él solo”. Propone entonces un cambio, el reemplazo de arquitecto por otro, que busca ser ú l y comprender al interlocutor que ene delante, el cliente y la sociedad.

Adentrándose ya en las obras, narró sus primeros pasos a los que llamó “caminar en las huellas de los maestros”. Al estar formado en la facultad por las pautas del Movimiento Moderno, las recetas de Le Corbusier se seguían al pie de la letra. De este modo uno de los primeros encargos, el Colegio Kennedy, dentro de un programa denominado Módulo 67, se gestó “en la postura del arquitecto que quiere sobresalir y aparecer en la revista Suma”, del arquitecto que “con miedo a equivocarse camina por las huellas del maestro con religiosidad”

Le siguió el Concurso convocado por el ministerio de Salud Pública para su Programa Hospitalario, bajo conceptos de flexibilidad y posibilidad de crecimiento al 100%. Así ganaron con su Estudio, el proyecto del Hospital de la Matanza, de estructuras bajas, orgánicas, sin ascensores y numerosos pa os. El proyecto resultó un autén co desa o cuando el Ministerio resolvió que no lo construiría a menos que el Estudio lograra bajar el presupuesto de realización al 50%.

78 capba IX CAPACITACION Y ACTUALIZACION PROFESIONAL

CICLO GRATUITO DE CONFERENCIAS DE ARQUITECTURA

Frangella mostró además el Concurso del Banco Central del Paraguay, también concebido bajo las recetas del Movimiento Moderno. Se trata de un edificio de 100.000 m2, con teatro y sala de ópera para 1.500 espectadores, planta libre y núcleos exteriores. Aquí destacó que lo mejor de todo fue vivir un año en Paraguay con su familia. Describió su experiencia como la de “un porteño paquete con todas las ideas modernas en la cabeza, que fue a vivir allí”, lugar que mostraba crudamente la realidad la noamericana. En Paraguay debió enfrentarse a una decisión: ¿soy europeo o americano? Todo lo que veía lo llevaba a la reflexión, y también a no querer actuar como el resto de los argen nos que vivían riéndose de la pobreza paraguaya. Optó entonces por la búsqueda de la jus cia social y el equilibrio de la sociedad, una comunicación más fluida y el intercambio de conocimientos. Encontró un principio de iden dad propia, aceptando que ésto es América y que a ella pertenecía. Encaró de este modo la búsqueda de una ac tud más valiente y sincera, más de u lidad y menos de vanidad y de figuración.

El Concurso del Teatro Provincial de Salta, ganado con un “proyecto muy tranquilo y respetuoso, una arquitectura sin estridencias”, lo consideró entre sus mejores recuerdos por respetar un edificio existente, algo muy ponderado por los salteños en el proyecto. Sin embargo, el gobierno no lo pudo llevar adelante y no fue construido.

Frangella se adentró luego en las experiencias de autoconstrucción, que le permi eron afianzar la decisión de brindar conocimiento y llegar a la gente que sueña con tener algún profesional a su servicio. Habló de las experiencias de coopera vismo en las que “los técnicos aprendemos a trabajar de otra manera, consultando todo y consensuando, un camino que sigue hasta hoy, ayudando a ges onar ( ) Todos hacen la casa de todos por etapas, allí hay conceptos de fraternidad y solidaridad, es un proceso forma vo y educa vo”.

Más tarde llegó la hora del Concurso FONAVI y la propuesta del Estudio para Corrientes, con proto pos flexibles que debían crecer desde 1 a 4 dormitorios. Este concurso tampoco se construyó. Lo mismo sucedió con el Concurso de la Ciudad Judicial, su gran plaza urbana en el sur de la ciudad de Buenos Aires y su complejidad programá ca.

La Casa en Bariloche, otro encargo par cular, lo llevó a convivir irreverentemente con la arquitectura de Bus llo, planteando una casa moderna de dos plantas inserta en una ladera, con vistas al lago en bajada zigzagueante. Otra obra, una Casa en el Lago Yehuin, en Río Grande, Tierra del Fuego, le permi ó una ejecución completamente en madera con sistema baloon frame y una fundación a la usanza chilena.

Frangella llevó al auditorio a recorrer la propuesta para Hoteles en Misiones y Calafate. En el primer caso, un hotel bajo enormes pérgolas en forma de hojas. Con bungalows elevados en medio de la selva y sistemas de pasarelas para observar animales, flora, sen r el calor, y vivir, en defini va, la selva misionera. El otro hotel, en cambio, fue proyectado al cobijo de las ondulaciones de la ladera sobre el Lago Argen no, de forma aterrazada.

Casi concluyendo exhibió los bocetos del Concurso de Paradores en la ciudad de Buenos Aires, con la idea de lograr pequeños jardines con sus perfumes, mientras se espera el colec vo. También hubo diaposi vas del Tercer Premio para la Facultad de Psicología de la UBA, propuesta con balconeos y espacios de encuentro para el intercambio, el diálogo y el fomento de la vida interior universitaria.

El reciclado de un edifico an guo en Avenida de Mayo, con el agregado de terraza para restaurant y planta baja permeable fue el úl mo ejemplo abordado antes de reflexionar sobre su trabajo ar s co.

Frangella mostró muchas de sus acuarelas producto de viajes por ciudades del viejo y nuevo mundo y reflexionó sobre el dibujo; para él “el dibujo es la respiración. Si no dibujo no lo comprendo, no lo en endo bien, el dibujo es un elemento de conocimiento. No importa si es bonito, vale en la medida en que ayuda a comprender y mostrar al otro lo esencial”.

Y ahora sí, ya finalizando, mostró las obras de su “fase cartonera”: figuras, objetos, volúmenes, hechos con productos de descarte, cartones, rollos de papel higiénico, fragmentos de envoltorios. Podemos decir que sobre el fin del día, se cerró el círculo que comenzó con las primeras reflexiones de su charla: la búsqueda de la propia iden dad y el poder desarrollar “otra mirada sobre lo que se descarta”.

79 capba IX CAPACITACION Y ACTUALIZACION PROFESIONAL

La Deutscher Werkbund 1907–1914

A 100 años de la Exposición de Diseño e Industria en Colonia, Alemania la en Colonia,

El Werkbund, más que un movimiento ar s co o de diseño, fue un movimiento alentado por el Estado y ejecutado por asociaciones de industriales y jóvenes diseñadores, con el fin de aumentar la calidad, la compe vidad, y la presencia internacional del producto industrial alemán moderno. Ya desde fines del siglo XIX, en Alemania se dio un proceso tecnológico rápido y con conceptos cien ficos que ponía en evidencia una estrecha relación entre las universidades y la industria.

El impulso inicial de este grupo estuvo dado por la encomienda dada a Walter Muthesius, quien desde la embajada alemana en Inglaterra, es comisionado para “espiar e informar”, sobre los procedimientos y las polí cas llevadas a cabo por el gobierno y la industria inglesas y los mecanismos de ges ón de los mismos. Muthesius, ponderó superla vamente el movimiento Arts and Cra s, de Morris, su acción, difusión y propaganda, pero observó crí camente el divorcio entre este movimiento y la gran industria británica. Asimismo fue muy crí co con la producción de la industria alemana muy apegada a modelos formales del pasado historicista. El informe, expuesto ante los industriales alemanes, es pondera vo y crí co, sentando las bases para la fundación de una asociación, la “Deutscher Werkbund “, que impulsara en Alemania las acciones, los encuentros, y la difusión en forma de exposiciones de sus resultados. El pensamiento de Muthesius, se basaba en un estricto racionalismo y en la pureza formal. Ya an cipaba

el despojo de ornamentos y formas caprichosas, la preeminencia de la u lidad y la forma esencial y despojada: “Muebles prác cos sin adornos con formas simples, pulidas y ligeras, cómodas para las amas de casa”1

Su lema “Von sofakissen zum stadtebau” (‘desde los almohadones de sofá hasta la construcción de las ciudades’), ya da una idea moderna del diseño como expresión de conformación del mundo contemporáneo. Esta idea del diseño con calidad y esté ca del siglo XX, ya no lo asocia simplemente a las calidades formales del producto, sino que lo involucra con la empresa industrial, su ambiente, sus edificios, sus amoblamientos, sus productos, y su imagen corpora va. Con mentalidad racionalista germánica impone la Norma Din como pauta y expresión del nuevo espíritu racionalista, industrial y celoso de la calidad de las manufacturas germánicas.

80 capba IX PROGRAMA COMUNICACIONAL
1 Oscar Salinas Flores, Historia del Diseño Industrial, Universidad Autónoma de México, 1992.

En los estatutos del Werkbund se propone con palabras del propio Muthesius: “El objeto de Bund es el ennoblecimiento del trabajo profesional con una acción combinada con el arte, la industria y la artesanía lograda por medio de la educación, la propaganda y un criterio de unidad con respecto a las cues ones de este ámbito “. Entre sus integrantes exis a también un debate plural no exento de contradicciones internas. Por un lado, ar stas consagrados -que aportaban su pres gio así como su ascendiente académico y ar s co- como el caso de Henry Van de Velde, ar sta art nouveau avanzado, sostenía posiciones individualistas y de preeminencia del genio individual, lo que contrastaba con posiciones como la de Peter Behrens, que en esta etapa postulaba la integración del ar sta al complejo industrial, expresándose en el diseño de papelería, de mobiliario, de la imagen de la empresa, de la arquitectura fabril, así como de los productos industriales producidos. Sus principios, expresados en debates y documentos, fueron entre otros los de promover un debate sobre el diseño y el producto alemán, mejorar la calidad y en consecuencia la compe vidad de los productos alemanes, y favorecer el contacto y el debate entre diseñadores e industriales. Por otra parte, los empresarios alemanes, como Emil Rathenau de la empresa AEG, fabricante de productos eléctricos tanto para la industria, como para el naciente consumo privado, apostaron en una audaz asociación con Behrens para idear la imagen, la gráfica y los productos

de su empresa. En 1883, Emil Rathenau había fundado la empresa AEG, en ese año compró para Alemania las patentes de productos eléctricos a Thomas Alva Edison, y se propuso fabricarlos y venderlos en Alemania y Europa. La fabricación de calentadores, planchas, teteras, y por cierto, lámparas eléctricas lo colocó ante el problema de la presentación, la imagen y el diseño moderno de todos estos productos.

En 1907, contrata a Peter Behrens quien diseña para la empresa los edificios de fábricas, la imagen corpora va, logo pos, folletos, cartelería, envases, y por cierto, la serie unificada y sistémica de los productos eléctricos. Así Bherens se fue alejando de su experiencia como ar sta Jugends l, de principios de siglo, y se cons tuyó en un moderno diseñador industrial integral siendo responsable del diseño gráfico y de imagen empresaria de la AEG, tanto como de su arquitectura y del diseño depurado y despojadamente moderno de sus productos.

En la exposición abierta el 16 de mayo de 1914, en Colonia a la vista del Rhin, estuvieron presentes muchas personalidades de la élite de Alemania, atentos a esta primera y ambiciosa exposición de la confluencia de ar stas e industriales que mostraban un amanecer de la industria y la innovación del diseño. Curiosamente en octubre de ese año, se iniciaba la Primera Guerra Mundial y estas ideas darían lugar a las bombas y la destrucción.

HOMENAJE
La Deutscher Werkbund, Asociación de diseñadores e industriales de Alemania, en su ciclo anterior a la primer guerra mundial, fue una experiencia breve (1907–1914), muy vinculada al proyecto nacional de la burguesía industrial alemana como potencia industrial moderna.
81 capba IX PROGRAMA COMUNICACIONAL

PABELLÓN DE CRISTAL

Bruno Taut, diseñó el Pabellón de Cristal, en la Exposición de 1914 en Colonia Alemania. Este pabellón de la industria del vidrio y el acero, diseñado con un fuerte acento didác co, fue presentado y explicado por su autor, el expresionista Bruno Taut, con par cipación del poeta Paul Scheerbart. Su ejecución contó con materiales modernos, vidrio y acero, forma de cúpula facetada y una concepción y espacialidad resuelta con el uso ascé co y formalmente riguroso de estos materiales.

Taut estaba convencido de que la luz y la transparencia eran los componentes esenciales de la arquitectura del futuro y en esa dirección se planteaba el stand. En su interior fue una explosión de luz y color, el suelo era de vidrio y las paredes y aberturas, lucían mosaicos espejados, con información sobre la industria del vidrio que era el tema de la muestra.

Es un stand de exposición donde su resolución -como forma y como objeto- cons tuye su fuerza comunicacional, y así se convir ó en la forma más emblemá ca de esta muestra, a la vez que también se planteó como una arquitectura e mera ya que fue demolido ni bien terminó la muestra.

FÁBRICA MODELO

Esta exposición tuvo construcciones emblemá cas y demostra vas del pensamiento y el ideal del grupo de Capitanes de la industria y los ar stas y arquitectos asociados, tal fue el caso de la Fábrica modelo diseñada por los jóvenes Walter Gropius, y Adolf Meyer, discípulos de Peter Behrens.

Este era un proyecto representa vo del edificio ideal para este grupo, la fábrica moderna, que expresara las formas, los materiales y las ideas sociales de esta

82

vanguardia. Gropius puso una inscripción como lema en la entrada de las oficinas: “La materia está en espera de la forma”.

FÁBRICA FAGUS

El edificio de la fábrica de hormas de calzado en Alfeld, de Walter Gropius y Adolf Meyer (Alemania entre 1910 y 1911), es un ejemplo depurado de la arquitectura industrial moderna, que propiciaban los arquitectos alemanes comprome dos con el proceso de modernidad, cuyo punto de par da era la fábrica como protagonista y como ejemplo de modernización.

El uso moderno, despojado y de formas rigurosas que exhibe el edificio, muestra el bloque de ladrillos de máquina, un acceso de precisa geometría, y el perímetro acristalado con un prisma de rigurosa geometría y transparencia.

Esta fugaz, pero exitosa muestra de 1914, de la que se cumplen cien años, sería el eslabón inicial del movimiento de ar stas e industriales alemanes, que en la agitada y compleja Alemania de principios del siglo XX, construyeron unas ideas, una é ca, una esté ca y un proyecto, que tuvo a la industria y sus productos como eje y que fue tozuda y sistemá camente retomado, cons tuyendo la base de la Alemania industrial del siglo XX.

HOMENAJE
83
Arq. Manuel Torres Cano Profesor tular del Taller de Historia FAUD - UNMdP

La ac vidad profesional en el Distrito IX

Estadís cas en base a tareas profesionales presentadas en el 1° semestre del 2014

La can dad de metros cuadrados presentados por la tarea de proyecto en todas las categorías de obra presenta una variación posi va inter anual del orden del 41%. No obstante, este crecimiento no es sostenido en todo el Distrito, ya que en varias Delegaciones el índice es nega vo. Cabe destacar, como se observa en el gráfico correspondiente, que la presentación de 3 obras en los rubros, vivienda, hotelería y administración, concentran el 20% de la superficie total ingresada en todo el semestre, situación que altera la muestra pero que debe ser señalada.

El volumen de obra des nada a vivienda, en todas sus categorías, ha registrado un incremento del 44% respecto del primer periodo del año 2013 para la tarea de proyecto. En este rubro observamos que el

88% del volumen de obra a construir corresponden a las categorías de vivienda superior y mul familiares de hasta y más de 4 pisos de altura.

Un dato relevante en el rubro vivienda se observa en la presentación de una ampliación de la planta urbana de un barrio cerrado en la ciudad de Mar del Plata que aporta el 32% de la superficie ingresada en la vivienda de categoría superior

Se registró un incremento en la categoría mul familiar de más de 4 pisos, alcanzando un 69% de aumento respecto de igual semestre del año anterior. Este aumento se visualiza tanto en la can dad de m2 ingresados como en el monto de obra declarado en las contrataciones correspondientes.

capba IX INSERCIÓN PROFESIONAL 84

Con nuando con el monitoreo de la ac vidad profesional en el Distrito se han elaborado las estadís cas correspondientes al primer semestre del año 2014, y se han establecido las pautas compara vas de variación inter anual para visualizar la evolución de la ac vidad en el Distrito.

En el rubro Informe Técnico por Mantenimiento de Fachadas vemos que ha habido una alarmante caída inter anual del 61% entre iguales semestres del año 2013 y 2014. Esto se verifica observando el monto de obra comprendido en este rubro. No obstante ello, la tarea de Informe Técnico por Mantenimiento de Fachadas implica el 50% de los valores de obra en juego en el rubro Informe Técnico, mostrando que en nuestro Distrito es una ac vidad profesional de gran relevancia y buena inserción profesional.

La variación semestral de los metros cuadrados presentados de informe técnico, que refleja mayoritariamente la incorporación de construcciones sin permiso por medición e informe, ha disminuido

sensiblemente arrojando una variación interanual del 1º semestre del 2013 al 1º semestre del 2014 del 50%, siendo significa vo el 62% de volumen de obra concentrado en la categoría vivienda. Sin embargo, cabe reflexionar acerca de lo preocupante que resultan las cifras que aún ingresan para la regularización de obras clandes nas, demostrando la deficiente performance del estado municipal en el control y, creemos la necesidad de instar a los municipios a realizar un mejor seguimiento y control tendiente a erradicar la obra sin permiso.

NOTA: Los importes monetarios totales han sido determinados con el mes de referencia de la Tabla de valores referenciales vigentes. Por lo cual, a los meses de enero y febrero se le aplicó el U.A. de $4.000 y los subsiguientes de marzo a junio la U.A. es de $5.000.

LA ACTIVIDAD PROFESIONAL EN EL DISTRITO IX
capba IX INSERCIÓN PROFESIONAL 858585

EJERCICIO PROFESIONAL EN LA REGIÓN

La elaboración de un cuadro compara vo de las superficies presentadas en el 1º semestre del año y los montos de obras originados por estas superficies permite visualizar la demanda de servicios profesionales en cada municipio, agrupados por su Delegación del CAPBA IX de pertenencia, lo cual denota además los niveles de control de cada municipalidad e indica la necesidad de implementar acciones futuras desde nuestro Colegio Profesional.

Fuente: Elaboración propia en base a datos del CAPBA.

Vemos que la delegación Mar del Plata concentró el 73% de la superficie presentada, correspondiendo a General Pueyrredon el 94% de esa superficie. Este dato es coincidente con las evaluaciones que realiza la revista ARQ en su publicación del 25 de julio pasado, donde colocan a este municipio como uno de los de mayor can dad de presentaciones en el corte eneroabril 2014.

Por otro lado, la superficie en construcción en el Par do de Mar Chiquita ha incrementado significa vamente, ubicando a ese municipio con una mejor performance que otros de mayor población y superficie.

La Delegación La Costa ha presentado en el primer semestre del año un movimiento que aporta el 8% del total ingresado en el Distrito IX, no obstante ello resulta preocupante los datos de municipios como General Lavalle y General Guido donde prác camente no existen legajos presentados por obras en jurisdicción de ambos municipios.

La delegación Pinamar ha disminuido en el porcentaje individual respecto del volumen general de tareas presentadas, con una fluctuación mes a mes con grandes al bajos lo que se empieza a estabilizar en los úl mos meses del semestre. Por otro lado la Delegación Villa Gesell ha mantenido un nivel regular destacándose el punto más bajo de la ac vidad en el mes de marzo.

Hacia el sur del Distrito las Delegaciones de Necochea y Miramar, junto con la Delegación Balcarce hacia el centro, muestran los niveles más bajos de ac vidad nucleando todas ellas el 7,5%. Esto resulta preocupante en virtud de agrupar 5 municipios y el 15% de la matrícula del Distrito IX, ello implica la necesidad de ampliar esfuerzos tendientes a contribuir a una mayor inserción profesional de nuestros colegas.

Tabla. Superficie y monos de obra por Municipio y Delegación del CAPBA IX. Arq. Bruno Mazzini - Arq. Claudia Noto
capba IX INSERCIÓN PROFESIONAL 86
Elaboración: Arq. Bruno Mazzini, Arq. Claudia Noto | Agosto 2014

CRÉDITO HIPOTECARIO Según el Informe de junio de 2014 del Observatorio de Desarrollo Regional de la Fundación Bolsa de Comercio el comportamiento del financiamiento con garan a hipotecaria en el mes de Junio y en el primer semestre del año, muestra que: “se registraron en el Par do de General Pueyrredon 161 hipotecas por un valor global de $58,62 millones, lo que representa un incremento de 38,79% en la can dad de operaciones y de 53,63% en el monto total de las mismas respecto a Junio de 2013, cuando se habían contabilizado 116 operaciones por $38,15 millones. De este modo, en el primer semestre de 2014 se registraron en el Par do 522 hipotecas por un monto total de $194,31 millones, con una caída interanual de 28,59% en el número de operaciones y de 8,52% en el monto total involucrado en las mismas respecto al primer semestre de 2013. En la Provincia de Buenos Aires se registraron durante Junio un total de 2.003 hipotecas por un valor de $1.169,76 millones. El Par do de General Pueyrredon concentró el 8,03% del total de operaciones hipotecarias realizadas en el distrito.”

EL

MERCADO INMOBILIARIO EN OTRAS LOCALIDADES DE LA REGIÓN También este Observatorio ha relevado “la información relacionada con las operaciones de compraventa de inmuebles escrituradas durante Junio y el primer semestre de 2014 en localidades seleccionadas de la Provincia de Buenos Aires. En el balance del primer semestre sólo Olavarría presenta un comportamiento posi vo con un crecimiento de 5,88% interanual en el número de operaciones escrituradas. En el resto de las localidades la tendencia del semestre es nega va, resultando las caídas más significa vas las de Balcarce (-23,32%), Bahía Blanca (-22,21%) y Tres Arroyos (-19,85%)”.

EL MERCADO DE LA CONSTRUCCIÓN, EN BAJA

La ac vidad está dando evidencias de una desaceleración que se verifica con la caída en el índice ISAC. La venta de materiales también registra un descenso respecto del año pasado.

Según la Revista ARQ, luego de haber alcanzado un nivel récord de ac vidad al promediar el 2013, el Indicador Sinté co de Ac vidad de la Construcción (ISAC) que elabora el INDEC está registrando una curva descendente. En el mes de mayo, el úl mo dato disponible, el ISAC marcó una retracción de 2,9 % (serie desestacionalizada) con relación a abril. Y muestra una caída del 3% durante los cinco primeros meses del año respecto al mismo período de 2013

“La ejecución de las obras nuevas ene inercia, hasta el momento la recesión sectorial no ha sido tan significa va como en otros períodos”, jus fica Pablo Lara, de la consultora Estrateco. En efecto, la serie del ISAC para la construcción de edificios para viviendas se ubica en un nivel similar al de los úl mos tres años.

Respecto a lo que viene, las cifras muestran que los desarrolladores están aletargados y a la espera. Según los datos del INDEC, entre enero y mayo de 2014 se autorizaron un total de 3,25 millones de m2 en el conjunto de los 42 municipios que releva habitualmente el organismo. Esta superficie que resulta un 7,3% mayor a la registrada en los primeros cinco meses de 2013. En este punto, Lara destaca un dato: “Se trata de es maciones del ente oficial de estadís cas, porque cuando se analiza la información desagregada

VARIACIÓN INTER ANUAL

(con datos para el primer cuatrimestre del año) surge que sólo 31 de los 42 municipios contaban con datos completos”.

De todos modos, aun cuando estos proyectos puedan no ser ejecutados en forma inmediata, el especialista apunta que los guarismos analizados ponen en evidencia que en las diferentes regiones del país “existen inversores y desarrolladores que evalúan en forma posi va el mediano plazo” y, por ello, están posicionándose para poder ponerlos en marcha cuando las condiciones lo permitan. Lo cierto es que en 13 de los 31 municipios con datos completos (un 42% del total) se autorizaron mayores superficies que en enero-abril de 2013. Y los que mostraron mayor crecimiento fueron General Pueyrredón (Mar del Plata), Neuquén, Santa Rosa (La Pampa), Río Cuarto (Córdoba) y San Isidro (provincia de Buenos Aires).

Por otro lado, la desaceleración en el ritmo de la venta de materiales que registra el Índice Construya (IC) marca, de alguna manera, una retracción en las obras pequeñas y reformas que usualmente no se registran en las cifras oficiales. El IC mide la evolución de los volúmenes vendidos al sector privado de los productos que fabrican las empresas del grupo (ladrillos, cemento, cal, acero, carpintería de aluminio, pisos y reves mientos cerámicos, adhesivos y pas nas, pinturas, sanitarios, grifería y caños). En junio, el índice mostró una caída de un 2,5 % respecto a mayo. Sin embargo, el IC logra mantener su nivel para el acumulado anual.

Fuente: Revista ARQ Publicado: 25-07-2014

En la comparación inter Anual del 1º semestre del año 2014 con igual período del año 2013 se observa:

o Una significa va disminución en la Tarea de Informe Técnico de Mantenimiento de Fachadas, tendencia que ya se visualizaba en el 2º semestre de este año 2013, que podría ser atribuida a la implementación del Plan de Regularización Catastral de la MGP;

o La implementación del Plan de Regularización Catastral de la MGP tuvo su mejor performance en el 1º semestre de este año 2013;

o La tarea de Proyecto tuvo un incremento del índice que tuvo un pico en febrero y marzo de 2014. No obstante ello se visualizan variaciones si se desagrega desagregando las categorías de obras según las más frecuentes.

Estadís cas: datos propios | Referencias: IERIC, Observatorio de Desarrollo Regional Fundación BCMdP

LA ACTIVIDAD PROFESIONAL EN EL DISTRITO IX
capba IX INSERCIÓN PROFESIONAL 87

Monitoreo

El Programa de Crédito Argen no (Pro.Cre.Ar.) cons tuye un medio de financiamiento que desde la segunda quincena del mes de mayo se encuentra desagregado en el sistema informá co CAPBA en línea. Ello permite realizar un seguimiento de las obras que por este programa son financiadas y que cuentan con la intervención profesional de arquitectos.

En ese sen do, se han podido elaborar en estos primeros meses una síntesis que muestra: el total de los metros cuadrados a construir por Proyecto y Dirección de Obra y el total de los metros cuadrados por Interpretación de Proyecto y Dirección de Obra. En este úl mo, es necesario mencionar que manejamos el supuesto que los metros cuadrados ingresados bajo este sistema son atribuibles a la operatoria que financia la línea de Crédito Compra de Terreno y Construcción.1

1 Las líneas de Crédito que incluye el Programa Pro.Cre.Ar. son 5: Construcción; Ampliación, Terminación; Refacción; Compra de Terreno y Construcción; y Compra de Vivienda a Estrenar.

Con respecto al análisis de dichos datos podemos decir que:

 El total de la operatoria muestra una tendencia ascendente en los meses analizados con porcentajes que van del 14,95% (29 leg.) para mayo, 37,63% (73 leg.) para junio y 47,42% para julio de 2014 (92 leg.). En lo que respecta al total de metros cuadrados construidos en el total del trimestre se han erigido un total de 14.762,94 m2 cubiertos y de 1.053,11 m2 semicubiertos.

 De los dos grupos, la de Construcción en todas sus pos2 y la de Compra de Terrenos, este úl mo se viene comportando con valores similares. Lo que es necesario de destacar son el notable incremento que se ha dado en las operatorias des nadas a las líneas de construcción en el Par do de Necochea.

2 La referencia a la línea construcción involucra las tres operatorias que incluyen Proyecto. Estas son: Construcción, Ampliación, Terminación; y Refacción.

88

Fuente: Elaboración propia en base a datos del total de legajos ingresados al CAPBA IX. El número del total de legajos representados es por Interpretación de Planos y Dirección de Obra.

 Si bien en valores absolutos el total de legajos ingresados en el Par do de General Pueyrredon representa la mayor can dad de operatorias, si se analiza la totalidad de los legajos en relación a la can dad de habitantes de los Par dos des natarios (INDEC 2010) se destaca el Par do de Maipú como el más beneficiado (10,80%) y el menos beneficiado, General Pueyrredon (1,8%).3

 En lo que respecta a la localización se puede observar que, en el caso del Par do de General Pueyrredon, mayoritariamente su emplazamiento son extraejidales de los Acan lados al sur, a lo largo de Monseñor Zabala y desde Parque Camet hacia el norte. (ver plano may-a jun-2014 CAPBA);

3 El total de los habitantes de los 8 Par dos analizados es de Balcarce (43.823 hab.), General Alvarado (39.594 hab.), General Guido (2.816 hab.), General Madariaga (19.747 hab.), General Pueyrredon (618.989 hab.), Maipú (10.188hab.), Mar Chiquita (21.279 hab.) y Necochea (92.933 hab.). Fuente: INDEC 2010.

 Se observa que en la clasificación adoptada diferenciada por operatorias con terreno (Proyecto y Dirección de Obra) y sin terreno (Interpretación de Obra y Dirección de Obra), siguiendo el caso de General Pueyrredon, no se observan operatorias para compra de terreno a lo largo de Monseñor Zabala y siempre son las más alejadas del ejido urbano. (ver plano Proyecto y Dirección may-a jun-2014 CAPBA)

NOTA: La diferencia en los totales de los legajos se debe a que en el mes de mayo hay 1 legajo presentado solo en el ítem Dirección en Maipú; 2 en el mes de junio y 1 en el mes de julio, estos úl mos tres en el Par do de General Pueyrredon.

NOTA II: Los metros cuadrados por el ítem correspondiente a Cómputo y Presupuesto, que podrían estar correspondiendo a la operatoria Refacciones y/o Ampliaciones, no han sido agregados. En el mes de mayo se han presentado un total de $64.000, que de acuerdo a la U.A. vigente podría es marse como 12,80 m2 construidos, en el mes de junio de $108.645 (21,73 m2) y en el mes de julio, de $132.800 (26,56 m2). En total los tres valores incorporarían unos 26,56 m2 construidos al total de 14.762,94 m2 cubiertos y 1.053,11 m2 semicubiertos.

Elaboración Estadís cas e Información Pro.Cre.Ar-: Arq. Alejandro Nicolini | Arq. Adriana B. Olivera, IEU- CAPBA DIX

LA ACTIVIDAD PROFESIONAL EN EL DISTRITO IX
capba IX INSERCIÓN PROFESIONAL 89

General Madariaga trabaja sobre su patrimonio

Se presentó el proyecto de Código de Preservación Patrimonial

“El patrimonio con ene la historia de un lugar y, por lo tanto, las raíces de su dis nción, de su par cularidad. Es un espacio de encuentro y de iden dad, un valor que forma parte de la riqueza de los pueblos y ciudades, así como un mo vo de orgullo para sus habitantes y de placer para sus visitantes”.

El pasado 18 de julio, la Municipalidad de Gral. Madariaga, por intermedio de la Dirección de Turismo, Secretaría de Obras Públicas y Secretaría de Cultura, en forma conjunta con el Colegio de Arquitectos de la Provincia de Buenos Aires Distrito IX (Delegación Pinamar–Madariaga) y profesionales del medio, se presentó el anteproyecto de la Ordenanza del Código de Preservación Patrimonial del Par do de General Juan Madariaga.

Durante el encuentro, desarrollado en la Casa de la Cultura, se presentó a la comunidad la propuesta de preservación y protección del patrimonio cultural tangible (histórico, arquitectónico, urbanís co, paisajís co y ambiental) del Par do de General Madariaga que será elevado al Honorable Concejo Deliberante como inicia va vecinal.

Cabe destacar que la inicia va de este proyecto ha sido de la Delegación Pinamar–Madariaga del CAPBA IX, y el intenso trabajo que junto a la Subzona Norte del IEU9 vienen desarrollando para lograr consensos y acuerdos comunitarios para la definición de este proyecto que permi rá preservar, poner valor y ges onar el patrimonio urbano arquitectónico y rural del Par do de Gral. Madariaga.

La propuesta del Código de Preservación Patrimonial, que reviste el carácter de inicia va vecinal, fue elaborada por un grupo mul disciplinario conformado por funcionarios municipales, ins tuciones intermedias y profesionales locales teniendo en cuenta las necesidades de nuestro par do y ciudad de Madariaga. El equipo interdisciplinario estuvo integrado por los arquitectos Ramón Uranga, Celeste Siccardi, Marina Pasini y Lía Ruau; las licenciadas, Marta Muro y Celeste Volpi; la profesora Rosaria Veríssimo y la directora de Turismo, Ana Rosa Arancedo.

Desde los inicios del trabajo, en Agosto de 2013, este grupo ha inves gado los antecedentes en la materia, verificado la situación de edificios, si os y bienes culturales de la ciudad y el área rural, corroborado la documentación existente en el catastro municipal de 1940/44 y la Dirección de Turismo y ha elaborado un proyecto de Ordenanza que con ene todos los aspectos -a nuestro criterio relevantes- para conservar y proteger nuestro patrimonio.

90 capba IX FORTALECIMIENTO Y VÍNCULOS INSTITUCIONALES

ANTECEDENTES CONSULTADOS PARA LA DEFINICIÓN DEL PROYECTO PRESENTADO :

Municipalidad de Gral. J. Madariaga

- ORDENANZAS N° 15/79 - 14/84 - 651/93 - 857/961524/04 - 1757/08 y 1190/2000.

- Catastro Parcelario Urbano 1940/44 de la Secretaría de Obras Públicas.

- Recorrido Histórico Arquitectónico “Si las paredes hablaran...” 2006 y ss., de la Dirección de Turismo.

Municipalidad de Rosario

- ORDENANZAS N° 8243 y N° 8245/08: Inventario y Catalogación de Bienes del Patrimonio Histórico Arquitectónico y Urbanís co de la Ciudad de Rosario.

- Programa de Preservación y Rehabilitación del Patrimonio.

- Sumando Patrimonio - Secretaría de Planeamiento.

- La preservación del patrimonio como instrumento para el desarrollo.

Municipalidad de Córdoba

- ORDENANZA N° 10626/03 Y 11202/07: Acciones de protección del Patrimonio construido de la Ciudad de Córdoba.

- ORDENANZA N° 11190: Protección del Patrimonio arquitectónico, urbanís co y de Áreas de valor cultural de la Ciudad de Córdoba.

Municipalidad de Gral. Pueyrredon

- ORDENANZA Nº 10075/95. Texto Actualizado con las modificaciones de las Ordenanzas 10881; 11130; 12917; 12959; 14579,14612; 15095; 15693; 15694; 15729; 15738, 16740; 17521; 17688, 19660: CÓDIGO

DE PRESERVACIÓN PATRIMONIAL

- DECRETO Nº 1063/2003 reglamentario ORDENANZA

Nº 10075

Municipalidad de La Plata

- DECRETO 1579/2006. Catálogo de Bienes que integran el patrimonio del Casco fundacional de La Plata.

- Ciudad, memoria, patrimonio: El caso de la preservación patrimonial en La Plata. Laura de Leão Dornelles, Universidad Nacional de La Plata.

ALGUNOS ASPECTOS PARTICULARES SOBRE LA LEGISLACIÓN DEL PATRIMONIO:

Un aspecto que mo vó consultas y preocupaciones de vecinos por la situación de “restricciones” que implicaría la categorización de un bien como “de interés patrimonial” nos llevó a un análisis par cularizado de ello.

Para aclarar tal cues ón, se apeló a la opinión de una experta, la Dra. Ana María Bóscolo ver da en el trabajo

“LA LEGISLACIÓN DEL PATRIMONIO ARQUITECTÓNICO

URBANO Y NATURAL, las limitaciones y restricciones

administra vas al dominio. El Catálogo de los bienes culturales/ ambientales como limitación al dominio”, en 2005:

“….Como primera conclusión dejar sentado que el máximo Tribunal argen no ene reconocido al derecho de dominio de ninguna manera en forma absoluta, sino que sujeto a criterios “razonables” conforme las leyes que reglamentan su ejercicio (art.28 CN) mediante el ejercicio del poder de policía municipal, en el caso de este bajo examen dictar las normas urbanís cas y del patrimonio arquitectónico, urbano e histórico. En ese marco, las normas citadas no implicarían cercenamiento o desmembramiento del derecho de propiedad.”

…. Las restricciones y límites del dominio se encuentran regulados por el Código Civil, Libro III “De los derechos reales” en su Título VI, que lo son por interés público y por interés privado “en mira de salvar derechos de otras propiedades con guas...”

Por lo tanto, nos encontramos frente a dos pos de restricciones al carácter absoluto del derecho de propiedad, como es la derivada de un interés público, regulada por el derecho administra vo y la otra restricción son las “impuestas a los propietarios vecinos por su interés respec vo” (sic. nota al art. 2611 CC)”

…”Beltrán Gambier, señala que las leyes urbanís cas y los códigos de la edificación establecen limitaciones vinculadas con la necesidad de proteger determinadas condiciones de vida en la ciudad…. En cuanto a la naturaleza jurídica de estas limitaciones, siguiendo a Gambier, se ha dicho, que estas restricciones no modifican el derecho de propiedad sino que le imponen condiciones para su ejercicio Otros autores también han señalado que la restricción al dominio impuesta por la “zonificación” no es la simple restricción de la doctrina clásica, donde el propietario tolera sin disminuir el goce y uso efec vo de su inmueble y que es impuesta en la necesidad de adecuar el dominio privado al interés de la comunidad .

Que si bien es cierto, que el Urbanismo, a través del Plan Urbano Ambiental, instrumento de Ordenamiento local, rebasa la mera restricción al dominio sin que sea necesario resarcir ni alterar los atributos del derecho de propiedad (en su carácter absoluto, exclusivo y perpetuo), éste se aplica por extensión a los Planes Especiales de protección del patrimonio arquitectónico urbano, que formando parte del Plan General delimita el dominio situando al propietario en el ejercicio “normal” de su derecho de propiedad.

… “en la naturaleza jurídica de las limitaciones al dominio fundada en el califica vo Cultural otorgado por el tejido social, según mi criterio habría que completarla con la inclusión de ese bien cultural en un Planeamiento Urbano Ambiental y en una zonificación especial, que lo contenga

DELEGACIONES PINAMAR 91 capba IX FORTALECIMIENTO Y VÍNCULOS INSTITUCIONALES

y a la vez observe los principios cons tucionales de igualdad ante la ley, razonabilidad y proporcionalidad.

En síntesis, se requiere ineludiblemente la ley local y solamente la Nación podrá definir los “presupuestos mínimos” de la protección del patrimonio natural y cultural como lo ordena el ar culo 41 de la Cons tución Nacional. Se puede señalar, que el contenido normal del derecho de propiedad en materia de protección del patrimonio cultural y natural, en la legislación argen na está circunscripto a una ley nacional de presupuestos mínimos de protección, al Código Civil en sus ar culos 2611 y 2613 y ss., a las leyes provinciales y a las norma urbanís ca y de protección del patrimonio cultural y natural de las municipalidades.

…”Se puede afirmar, conforme la norma va municipal en vigencia en Argen na que el Catálogo de los bienes que conforman el patrimonio arquitectónico debe necesariamente responder a un Plan especial de protección contenido en Ordenanzas Municipales y, en su caso también a una ley provincial que complemente “los presupuestos mínimos de protección del patrimonio natural y cultural” (art.41 C.N.).- Sólo resta, preguntarse la naturaleza jurídica del Catálogo creado por las municipalidades, al respecto cabe señalar que existen en la mayoría de los casos Inventarios o bien Listas de Bienes cuya clasificación responde a la tularidad del Estado Nacional, de la provincia y del Municipio. En este caso, ese Inventario ene efectos jurídicos en relación con las funciones de los organismos de aplicación ya sea provincial o municipal.

En los casos en que el Inventario o la lista de Bienes haga referencia a la tularidad de las personas sicas

o jurídicas privadas, se lo u liza para llevar adelante un convenio para asegurar la preservación del patrimonio del área así declarada y no opera como una limitación al dominio atento sino que se pone “a prueba” la voluntad del propietario para que ceda en la finalidad de preservar el bien.

CONCLUSIONES FINALES

Cuidar el patrimonio que habitamos y crear conciencia sobre sus valores, requiere de la par cipación ac va de toda la comunidad y esta ordenanza será una herramienta para ges onar el crecimiento de nuestra ciudad. Es por eso que la convocatoria, amplia y abierta, busca el involucramiento de todos los vecinos para avanzar en la construcción de la iden dad, tanto histórica como cultural.

La presentación al HCD, formalizada el 29 de julio de 2014, incluyó el siguiente material técnico:

o Proyecto de Ordenanza.

o Anexo I. Inventario de Bienes Municipales de Valor Patrimonial.

o Anexo II: Categorización de Bienes Patrimoniales.

o Anexo III: Modelo de Convenio de Preservación Patrimonial.

o Listado de Bienes del Patrimonio Histórico Arquitectónico y Urbanís co de la ciudad de General Juan Madariaga.

o Antecedentes consultados.

o Patrimonio Cultural – Un poco de historia.

o Algunos aspectos par culares sobre la legislación del patrimonio.

DELEGACIONES PINAMAR 92
Arq. Ramón Uranga Delegado Pinamar CAPBA IX

Parque Miguel Lillo

delegación Necochea del CAPBA IX

ón del parque.

Ante el debate comunitario sobre el des no del Parque Miguel Lillo, la delegación Necochea del CAPBA IX ha iniciado la discusión a nivel interno respecto del uso, ocupación y ges ón de esta unidad paisajís ca de alto valor natural y cultural en un marco de Planificación Integral.

Las reuniones se realizan todas las semanas en la sede de la Delegación, con la par cipación abierta de todos los colegas interesados en la problemá ca.

Las primeras reuniones han logrado llegar a una postura unánime respecto de la necesidad de evaluar la situación en un marco de planificación integral. Por ello se ha elaborado un documento al respecto que ha sido elevado al Intendente Municipal y presentado a la Comisión de Análisis y Planificación sobre el parque Miguel Lillo (Copap) para su conocimiento.

Esta comisión, convocada desde el Municipio, se reúne semanalmente y cuenta con la par cipación de funcionarios públicos, concejales, Colegio Profesionales y en dades de la comunidad.

A con nuación transcribimos la nota presentada por la Delegación Necochea del CAPBA con la firma de su Delegado, Arq. José Gaido.

Sr. INTENDENTE MUNICIPAL PARTIDO DE NECOCHEA

Sr. Jose Luis Vidal

S / D:

Necochea, 3 de Julio de 2014

Referencia: par cipación del CAPBA, Colegio de Arquitectos de la Provincia de Buenos Aires Distrito 9 Delegación Necochea, en la Comisión de Análisis y Planificación sobre el Parque Miguel Lillo (COPAP).

Atento al asunto en referencia y visto la invitación formulada para par cipar como integrante en este espacio de debate, agradecemos en primer lugar su deferencia para con todos nuestros matriculados, a quienes representamos desde el CAPBA. Asimismo y con la firme convicción de ser consecuentes con los principios que iden fican a nuestra en dad, decimos:

1-Entendemos que el planeamiento del territorio y sus instrumentos de ges ón, deben necesariamente ar cularse como soporte de estrategias en la promoción de un desarrollo urbano equilibrado y equita vo con el uso sostenible de los recursos naturales.

El modelo de polí ca territorial del distrito debe ser asumido a través del liderazgo del Estado local a través de instrumentos de ges ón actualizados y en sintonía con el contexto actual; en este sen do y para la fac bilidad de este modelo, promovemos como principios: la función social y ambiental del territorio; la prevalencia del interés general sobre el par cular; la racionalidad ambiental en la planificación territorial; la internalización del concepto de desarrollo sostenible; la preservación del patrimonio cultural y ambiental; la distribución equita va de las cargas y los beneficios del desarrollo urbano y la par cipación de la comunidad en los procesos de planeamiento del territorio.

2-En este marco, interpretamos que el estado debe supeditar toda decisión par cular, que pueda ejercer cambios sobre el territorio, a un proceso de planificación de orden general, por estas razones y en función del tema que nos convoca; el análisis y planificación sobre el Parque Miguel Lillo debe estar inscripto en el modelo de polí ca territorial que se determine para la totalidad del sistema urbano Necochea-Quequén y no focalizar su tratamiento de manera diferenciada. Desde el CAPBA asis remos a aquellas polí cas que promuevan la ges ón de este espacio público de manera sostenible, preservando su calidad ambiental y sa sfaciendo las demandas sociales que se generen, garan zando la integridad del dominio público.

Agradeciendo nuevamente su invitación, los saludamos a Ustedes muy atentamente.

DELEGACIONES
NECOCHEA
La
fija su posición sobre la ges
93 capba IX FORTALECIMIENTO Y VÍNCULOS INSTITUCIONALES
Arq. Jose Gaído CAPBA Distrito IX - Delegación Necochea

Charla de Salud y Seguridad en la Construcción

Ante las inspecciones que el Ministerio de Trabajo realiza en la zona

Organizado por la Delegación Balcarce del CAPBA IX, con el Auspicio del Colegio de Técnicos Distrito V y el Colegio de Ingenieros Distrito II, se desarrolló una charla del Ministerio de Trabajo de la Provincia de Buenos Aires en el Microcine de la Fundación Fangio.

El encuentro se llevó a cabo el día 28 de mayo pasado, con la par cipación de responsables provinciales del Ministerio de Trabajo, disertaron el Ing. Carlos Ríos, el Ing. Roberto Tomasino y el Dr. Daniel Salomón. También se encontraron presentes el Delegado de Balcarce del Ministerio de Trabajo Dr. Ernesto Orsi y el Subsecretario de Planeamiento y Obras Privadas Arq. Javier Aranda.

En la oportunidad se realizó una capacitación sobre aspectos a verificar sobre seguridad y salud en la Construcción con material audiovisual y folletería des nado a informar a los profesionales sobre las obligaciones a cumplir en la construcción de obras.

También se abordaron aspectos relacionados al protocolo de actuación para la inspección de obras que realiza el Ministerio de Trabajo Provincial mediante opera vos específicos.

Los colegas que asis eron a esta charla expusieron sus preocupaciones y las dificultades originadas en el criterio del Ministerio que considera a los Arquitectos empleadores de los operarios que desarrollan trabajos en la obra. Al respecto los representantes del organismo insis eron con la postura respecto de la responsabilidad solidaria del profesional en las condiciones de empleo de los trabajadores y el procedimiento que obliga al inspector a tomar nota del cartel de obra de los datos de un responsable de la construcción.

El debate fue intenso y se reflexionó sobre la idiosincrasia local en la industria de la construcción, la escala de las edificaciones y el grado de informalidad de los contra stas de la zona.

Finalmente se acordaron una serie de acciones a desarrollar:

o Revisar y modificar el formato del cartel de obra reglamentario para incorporar los datos del comitente y los contra stas que intervienen en la obra;

o Implementar un formulario de Declaración Jurada a efectos de que el profesional pueda comunicar ante el Ministerio de Trabajo de la Provincia de Buenos

Aires, el inicio de una obra y quien es el comitente que lleva adelante la obra;

o Difundir entre la matrícula la conveniencia de que se verifique la existencia de contratos entre comitentes y contra stas únicos o por tareas parciales;

o En ocasión de realizarse una inspección que implique la confección de un acta, remi r copia del acta labrada a la Delegación del Colegio Profesional correspondiente a efectos de comunicarle al colega que ha recibido tal no ficación y pueda realizar el correspondiente descargo en empo y forma.

Estas acciones con nuarán definiéndose en colaboración con la Delegación Balcarce del Ministerio de trabajo y la Subsecretaría de Planeamiento y Obras Privadas de la Municipalidad de Balcarce.

DELEGACIONES BALCARCE
94 capba IX FORTALECIMIENTO Y VÍNCULOS INSTITUCIONALES
Arq. Jorge Trivigno Delegado Balcarce CAPBA IX

Plan turís co 12M co

La Municipalidad de General Alvarado presentó un Plan Estratégico para el sector turís co

El intendente Germán Di Cesare, acompañado por la Secretaria de Turismo y Cultura MGA, María Eugenia Bove; y por el director de Promoción Turís ca MGA, Carlos Pagliardini; par cipó de la Jornada de Validación del Plan Turís co 12M que se llevó a cabo el miércoles 16 de julio en las instalaciones del Alto Miramar Spa & Resort.

En la jornada, Di Cesare señaló que “para nuestro distrito de General Alvarado es fundamental el turismo y por eso nos parece muy serio lo que planteó el Municipio de realizar un plan estratégico a 10 años, que se llama Plan 12M” porque “es importan simo generar trabajo todo el año, no sólo en los meses de verano”.

“Es muy bueno estar trabajando con la Consultora Singerman - Makon, de muy vasta experiencia, y también con los prestadores de servicios de nuestra comunidad que es la mejor forma de evaluar un proyecto estratégico para llevar adelante el crecimiento territorial a largo plazo y lograr una Miramar o Mar del Sud respetuosos del medio ambiente”, agregó.

En este sen do, el intendente Germán Di Cesare remarcó: “Reunidos con toda la comunidad es la mejor manera de llevar adelante este proyecto estratégico serio”, y añadió que “corresponde que trabajemos con estrategias a largo plazo, no con medidas que enen que ver con lo inmediato, que sólo buscan réditos polí cos. Esta es una cues ón seria para toda nuestra comunidad”. Además, el jefe comunal sostuvo: “Yo en endo que la única forma que podemos trabajar es desarrollando un proyecto que piense en un General Alvarado a futuro” y afirmó que “para nosotros el desarrollo del turismo a largo plazo es una cues ón de Estado”.

“El turismo es un generador de empleo y es fundamental para el crecimiento de la economía local. Por eso estamos trabajando conjuntamente con la Secretaría de Producción y Empleo MGA para generar empleo genuino y tengamos trabajo todo el año para todos los habitantes de General Alvarado”, indicó.

Por úl mo, el intendente de General Alvarado dijo que “soy op mista por lo que se viene dando en el Sector Industrial Planificado de nuestra ciudad de Miramar. Ya firmamos con una empresa y estamos a punto de firmar con otra, lo único que falta es la tasación defini va del predio del SIP. Y estamos apuntando a generar trabajo genuino en todas y cada una de

las localidades de nuestro distrito” porque “el crecimiento de nuestro Municipio ene que ver con la generación de trabajo, y el trabajo habla de la felicidad de la gente”, finalizó.

La Jornada de Validación del Plan Turís co 12M tuvo una importante concurrencia de prestadores de servicios, especialmente hoteleros, gastronómicos, balnearios, entretenimientos, responsables de diversos emprendimientos produc vos y representantes de ins tuciones intermedias. Allí, la Secretaría de Turismo y Cultura MGA dio a conocer los obje vos de esta planificación a largo plazo.

Este evento tuvo lugar el miércoles 16 de julio en las instalaciones del Alto Miramar Spa & Resort, donde se realizó el anunció el Plan Turís co 12M pensado desde la Municipalidad de General Alvarado con una proyección de crecimiento a 10 años.

Posteriormente, especialistas de la consultora Singerman - Makon, brindaron detalles de las cues ones territoriales analizadas en nuestro distrito de General Alvarado que permi eron elaborar un diagnós co para comenzar a trabajar sobre lineamientos concretos de cara al futuro, y destacaron especialmente que, “debe haber un compromiso conjunto entre el sector público y privado para conseguir los obje vos”. Luego, se originó un taller dividido en dis ntos grupos quienes mediante ciertas consignas dadas a conocer por los profesionales expositores, expresaron sus ideas al resto para potenciar una planificación general. Esto generó un interesante debate y se espera incorporar próximamente algunos de los conceptos para sumar al diagnós co ya elaborado.

Fuente: Dirección Comunicación Social MGA

Publicado: 17 de Julio de 2014

Para conocer más datos del plan visitar: h ps://www.youtube.com/ watch?v=1tbGDMo-mZU&feature=youtu.be&a

DELEGACIONES
MIRAMAR
95 capba IX FORTALECIMIENTO Y VÍNCULOS INSTITUCIONALES

Seminario internacional

En estos empos que corren, ninguna profesión se encuentra exenta de las exigencias de la especialización técnica, donde la demanda de la capacitación con nua se transforma en un desa o.

Como parte del reto que significa lograr una mayor integración entre las delegaciones y la sede del CAPBA IX, el Arq. Jorge Luis Méndez -Coordinador de Capacitación en Delegaciones- ha organizado conjuntamente con la Delegación de Villa Gesell, el dictado del Seminario Internacional “Introducción a las lesiones construc vas”.

Esta inicia va tuvo lugar el día viernes 3 de julio, permi endo que colegas de Villa Gesell y de Pinamar, pudiesen par cipar de las presentaciones que el Arq. Enrique Soler Arias -disertante español, docente en la Maestría Erasmus Mundus en Diagnosis y Reparación de Edificios de la Universidad de Sevilla- y el Arq. Emilio Polo -Magister en Diagnosis y Reparación de Edificios de la Universidad de Sevilla- realizaron como parte de este seminario internacional, donde abordaron temas relacionados con los procesos patológicos más frecuentes en entornos marinos.

Ante la presencia de más de 30 colegas y como eje central de la jornada, los disertantes analizaron casos concretos sobre la influencia de los ambientes costeros en el envejecimiento prematuro de los edificios.

Este Seminario Internacional ene por objeto ser el inicio de una serie de charlas y disertaciones a dictarse en nuestra Delegación, y que estarán orientadas a la profundización de los conocimientos necesarios para el ejercicio profesional por parte de nuestros matriculados.

DELEGACIONES VILLA GESELL
Delegación de Villa Gesell Colegio de Arquitectos de la Provincia de Buenos Aires
Redoblando esfuerzos para una mayor capacitacion profesional
El arquitecto Enrique Soler Arias, invitado español, durante su presentación.
96 capba IX FORTALECIMIENTO Y VÍNCULOS INSTITUCIONALES
“Introducción a la Patología de la Construcción”

Turn static files into dynamic content formats.

Create a flipbook
Issuu converts static files into: digital portfolios, online yearbooks, online catalogs, digital photo albums and more. Sign up and create your flipbook.