InfoCAPBA IX

Page 1

Repensar el rol del CAPBA

Articular la visión de la disciplina y la institución a la realidad socio-política de la región, el país y el mundo

Cumplimos 30 años. Iniciamos la cuarta década de vida institucional, no sin antes expresar nuestro mejor reconocimiento y recuerdo para aquellos colegas que con convicción y visión de futuro trabajaron por la creación del Colegio de Arquitecto de la Provincia de Buenos Aires, logrando la sanción de la ley 10405, allá por junio de 1986.

El rumbo de las próximas décadas, quizás, nos permita de acuerdo a la dinámica de los tiempos, de la arquitectura y el urbanismo, repensar el rol que tendrá el Colegio, los cambios en el ejercicio de nuestra profesión y las nuevas modalidades que irán apareciendo como respuesta a nuevas demandas sociales y del mercado laboral. Para ello es que debemos estar preparados, adelantarnos y proponer las acciones necesarias para ese contexto futuro.

La realidad hoy, sin embargo, nos muestra distintas situaciones tanto en el plano de lo socio-político como en el campo de la economía, que suceden en el país, en la provincia de Buenos Aires y en los distintos municipios que componen nuestro distrito. Eso nos lleva a tener una posición expectante y prudente frente a nuevos escenarios emergentes. No obstante ello, ante la desaceleración de la producción en general y la del campo de actuación de los arquitectos en particular, nos exige alertar la situación e incrementar el esfuerzo y agudizar el ingenio en búsqueda de mejores condiciones y oportunidades para todos.

En este contexto, es necesario trabajar conjuntamente para impulsar políticas que promuevan el desarrollo de la construcción a nivel local y en la región, con las particularidades y necesidades de cada uno de los municipios que integran el territorio de cada delegación en particular y distrital en general. Potenciando las oportunidades para tratar de mitigar el déficit a nivel social, así como dentro de nuestro trabajo disciplinar y

permitan, además, el desarrollo de nuevas modalidades del ejercicio profesional.

La obra de acondicionamiento en la sede distrital -para la mejor atención de los matriculados- el trabajo permanente del IEU9, las comisiones de trabajo, la difusión de los temas profesionales a través de la publicación Info CAPBA IX, el programa televisivo Espacio 9TV, nos instala en la comunidad con opinión profesional, responsable y seria. Siendo referente, y oferente, de un trabajo a nivel regional que nos permite contribuir con propuestas y proyectos a las problemáticas requeridas.

Si a eso lo cumplimentamos con la actualización permanente y el perfeccionamiento de los matriculados, estaremos en mejores condiciones de dar respuestas a los requerimientos de una sociedad que demanda soluciones a sus problemas en lo socio urbano ambiental, infraestructuras, vivienda, entre otros aspectos. En la Asamblea Extraordinaria, realizada a mediados de marzo, hemos puesto a consideración de los matriculados del Distrito IX el Plan de Acción para el año 2017. Esta Asamblea estuvo llamada a tratar el curso de acción a seguir, planificado para transitar un año particular, con una merma en el trabajo de los profesionales y de la construcción en su conjunto. La aprobación por unanimidad del Plan de Acción propuesto nos da mayor confianza y apoyo para continuar en el camino elegido. Finalmente, iniciamos un nuevo mandato y como siempre convocamos a todos a continuar comprometidos con la tarea de consolidar un colegio profesional que siempre puede superarse para dar más y mejores servicios, a través de sus matriculados, a las comunidades que los cobijan.

Este es el desafío, es difícil asegurar el cumplimiento total de los objetivos, si podemos asegurar poner todo el esfuerzo y empeño posible en llegar a realizarlos.

EDITORIAL
capba IX 01

Publicación Institucional del Colegio de Arquitectos de la Provincia de Buenos Aires

Distrito IX

Distribución Trimestral Gratuita

Edición 2.100 ejemplares

Año 6 | Nº 18 | Marzo de 2017. ISSN 2346-9595

capba IX

Los artículos publicados expresan los puntos de vista de sus autores y no necesariamente representan los de la Institución. Los artículos sin firma son conocidos por el Consejo Editor y su responsabilidad última recae en el Director a cargo.

Se autoriza la reproducción total o parcial de los artículos contenidos en la misma con el compromiso de citar la fuente.

Si desea auspiciar en esta publicación, comunicarse a boletin.capba9@hotmail.com ó boletin.capba9@gmail.com o bien consultar en la Sede del CAPBA DIX, Dorrego 1657 de la ciudad de Mar del Plata, tel (0223) 473-3031, 473-8282 o 474-3944, donde se le brindará todas las referencias de contacto.

INTRO

01| EDITORIAL.

02| SUMARIO. STAFF. EJERCICIO PROFESIONAL

04|VALORES REFERENCIALES. Reclamos de deuda.

05|MEDIOS DE PAGOS HABILITADOS.

06|LEGISLACIÓN. Resolución CAPBA. Opinión del CAPBA sobre la aplicación del Art. 1274 del CCyC de la Nación.

GESTIÓN DEL DESARROLLO URBANO SUSTENTABLE

28|PREMIO ESTÍMULO 2016. La divulgación de la obra de los primeros arquitectos marplatenses es reconocida a nivel provincial. Premio Estímulo del CAPBA 2016, vivienda y ciudad.

32|IEU9. Registro de profesionales. Convocatoria para la constitución de grupos de trabajo en el Instituto de Estudios Urbanos del CAPBA IX.

34|SUSTENTABILIDAD. Acueducto del Oeste de Mar del Plata. El Colegio de Arquitectos participó de la Audiencia Pública.

DIRECTOR

Arq. Daniel Monzón

CONSEJO EDITOR

Arq. Analía Benítez

Arq. Bruno Mazzini

Arq. Julia Romero

COLABORADORES

Arq. Alicia París

Arq. Adriana Olivera

Sra. Analía Flores

ARTE Y DISEÑO

Arq. Valeria Burkhard

FOTOGRAFÍA

Karina Beltrán

LOGÍSTICA, PUBLICIDAD Y MARKETING

Cepei Comunicación SRL

Impreso en Imprenta El Faro

10|ASESORAMIENTO TÉCNICO. DRAP sigue apostando al crecimiento en la ciudad y la zona.

12|ASESORAMIENTO TÉCNICO. La solución en revoques es proyectar con Knauf.

14|OBRAS EN EL DISTRITO IX. Casa Severa. Arq. Silvina San Martín.

18|OBRAS EN EL DISTRITO IX. Planta de elaboración de cerveza Antares. Estudio Palestini y Asociados.

22|REGULACIÓN FISCAL. Nuevas Escalas para la determinación del Monotributo

24|INCUMBENCIAS. Nueva resolución de competencias profesionales (52/16).

38|CIUDAD. Villas y Asentamientos. El estado del Acceso Justo al Hábitat en General Pueyrredon.

42|OBRAS PÚBLICAS. Una mirada socio-espacial a los presupuestos de Obras Públicas. El caso de la V Sección Electoral y la región del Distrito IX. Primera parte

48| PATRIMONIO. Excepciones sobre los inmuebles de valor patrimonial. Gestiones del CAPBA IX.

50|PATRIMONIO. Esplendor moderno. El edificio Terraza Palace del Arq. Antonio Bonet

52|CONCURSOS. PREMIO CAPBA. El Colegio de Arquitectos de la Provincia de Buenos Aires reconoció obras en una nueva edición del tradicional premio.

capba IX 02

ASUNTOS PREVISIONALES

56|ASUNTOS PREVISIONALES. Estado de situación del proyecto de caja propia.

58|ASUNTOS PREVISIONALES. Resoluciones de la CAAITBA.

SOCIAL Y GREMIAL

60|NUEVOS MATRICULADOS. Acto de entrega de credenciales.

62|DISTINCIÓN A MATRICULADOS. Entrega de medallas por 25, 40 y 50 años de profesión.

64|FIESTA DE FIN DE AÑO. Fiesta del CAPBA IX en el Club Náutico de Mar del Plata.

66|BENEFICIOS. SUBSIDIO CAPBA

25 AÑOS. Colegas jubilados y en actividad recibieron el beneficio por la antigüedad en la matrícula y la permanencia en el CAPBA.

68|EXPRESIONES DE ARQUITECTOS. CICLO 2017 Muestra fotográfica [Mar del Plata, en detalle].

CAPACITACIÓN Y ACTUALIZACIÓN PROFESIONAL

70|TIC’S EN EL EJERCICIO PROFESIONAL. Libro de obra. Nueva aplicación para el ejercicio profesional.

PROGRAMA COMUNICACIONAL

72|HOMENAJE. Rafael Iglesia, el último provocador.

76|DISTINCIÓN INTERNACIONAL. Paulo Mendes da Rocha recibe la Rayal Gold Medal de Arquitectura 2017.

INSERCIÓN PROFESIONAL

78|ESTADISTICAS. Actividad Profesional en el Distrito IX. Revisión de los índices de actividad en el último quinquenio, las dificultades del año 2016 y las expectativas futuras.

FORTALECIMIENTO Y VÍNCULOS

INTERINSTITUCIONALES

84 |ASAMBLEA ANUAL ORDINARIA. 30 de noviembre se realizó la Asamblea Anual Ordinaria Distrital.

85 |HOMENAJE. Adiós al Arq. Miguel Golomb.

86 |ELECCIONES 2016. Resultados de las elecciones CAPBA, Consejo Superior y Distritos.

90 |GESTIÓN CAPBA IX. EL CAPBA IX TIENE NUEVAS AUTORIDADES. Asumieron las nuevas autoridades distritales.

92 |DELEGACIÓN PINAMAR. DERECHO A LA CIUDAD. Opinión de la Delegación ante nuevos loteos.

94 |DELEGACIÓN NECOCHEA. Ordenanza Nº 9047/16. Nueva normativa de mantenimiento de fachadas en Necochea.

95|DELEGACIÓN LA COSTA. Siniestro en la Dirección de Obras Privadas del Municipio de La Costa.

GUÍA DE PROVEESORES

96 | Auspiciantes Info CAPBA IX

Publicación Declarada de Interés por :

SUMARIO
capba IX 03

VALORES REFERENCIALES MÍNIMOS

Nuevos Valores Referenciales a partir del 1° de abril de 2017

Valor Referencial

(unidad arancelaria): $ 12.420,00

CEP Mínimo: $465,75

F.C.: 621

Honorario Mínimo: $ 3.105,00

Medición e Informe Mínimo:

Vivienda Standard hasta 100 m2 $ 6.210,00

Resto de las Categorías

$ 9.936,00

Timbrado: 12.5 ‰

Art. 29 (Caja)

10% de Proyecto y Dirección

CMAO: vigente a partir del 01/04/17

$ 24.840,00

A partir del 1º de abril de 2017 rigen nuevos valores referenciales para la determinación de honorarios profesionales conforme lo resuelto por el Consejo Superior en su Resolución 11/17. También se establece nuevo valor de CEP mínima a través de la Resolución 12/17. Los valores de la CMAO también aumentan un 15% a partir del 1/4/17 por Resolución de la CAAITBA Nº 662-17.

Como siempre toda la información actualizada para la determinación de los Honorarios Profesionales se puede consultar en el sitio web del Distrito IX, www.capba9.org.ar solapa Área Técnica. También se encuentran a disposición en Sede y delegaciones, en formato papel, las nuevas tablas desarrolladas vigentes, las que tienen un formato más completo y con referencia a las Resoluciones que determinan los Valores Referenciales y CEP.

Desde el CAPBA IX se recomienda a todos los colegas utilizar el sistema CAPBA en línea, no sólo para la confección de previsados de tareas profesionales encomendadas, sino además para la estimación previa de Honorarios Profesionales. Esto es posible simulando un previsado y guardándolo temporalmente hasta la confirmación de la encomienda profesional. De este modo se facilitará la tarea y agilizará los tiempos de visado.

Podés retirar las tablas en versión papel en la sede del CAPBA IX y en las delegaciones.

Para consultar la versión digital: http://www.capba9.org.ar/AreaTecnica.html

Reclamos de Deudas de CEP y Matrícula

Estimados colegas, les informamos que según lo instruido por el Consejo Superior del CAPBA por Resolución 85/14, se está notificando las deudas en concepto de CEP y Matrícula que constan en los registros del sistema informático.

Asimismo, les comunicamos que desde el Sistema de Autogestión CAPBA en línea se puede acceder a la información sobre la deuda registrada, consultar su concepto y verificar su

correspondencia. El acceso al sistema de autogestión debe ser habilitado por el CAPBA para lo cual debe acercarse al Distrito de pertenecía a efectos de solicitar la habilitación de su usuario personalizado.

Los esperamos en Sede Distrital y/o Delegaciones del CAPBA IX para regularizar la deuda que le fuera informada.

Tesorería CAPBA IX

capba IX 04 EJERCICIO PROFESIONAL

Medios de pago habilitados

Estimados Colegas, les informamos que con motivo de propender a la bancarización total de los ingresos desde el 15-10-2012 no se acepta el pago de la CEP en efectivo en oficinas de la Sede Distrital ni en Delegaciones del CAPBA DIX. Asímismo les detallamos los sistemas y medios de pagos por los cuales se podrán realizar los aportes correspondientes, cuyos tickets deberán ser adjuntados a la documentación técnica al momento del visado

DEPÓSITO BANCARIO

BANCO PROVINCIA DE BUENOS AIRES

Mediante depósito en cuenta corriente Nº 11575/1 Suc. 6100 en cualquier sucursal del Banco. Consulte sucursales en https://www.bancoprovincia.com.ar

BANCO CREDICOOP

Mediante depósito en cuenta corriente Nº 3067-1 Filial 089

Consulte sucursales en http://www.bancocredicoop.coop

BANCO GALICIA

Mediante depósito en cuenta corriente Nº 00002903790833

Suc. 083

TRANSFERENCIA BANCARIA

CUIT CAPBA DIX 30-68994042-7

BANCO PCIA DE BS AS. CBU 0140415301610001157512

BANCO CREDICOOP. CBU 1910089655008900306714

BANCO GALICIA. CBU 0070083220000029037937

CHEQUES

CHEQUE PERSONAL. A la orden de Colegio de Arquitectos de la Provincia de Buenos Aires.

CHEQUE DE TERCEROS. A la orden del profesional y endosado.

OTROS MEDIOS DE PAGO

RIPSA PAGOS Únicamente con tarjeta personalizada que deberá retirar en sede distrital o delegaciones. Consulte centros de pago en http://www.ripsa.com.ar. Para el pago deberá indicar al cajero el concepto por el cual se realiza el depósito (01. Matrícula, 02. CEP, 03. Cursos, 04. Compras Comunitarias, 05. SUM). Es importante recordar que la empresa RIPSA no cobra boletas de aportes previsionales de la CAAITBA.

TARJETAS DE CRÉDITO (en Sede Distrital y Delegaciones) Visa o Mastercard.

TARJETAS DE DÉBITO (en Sede Distrital y Delegaciones) Visa Electrón o Mastercard.

PROVINCIA NET Se encuentra vigente como nuevo medio de pago la tarjeta personalizada de provincia Net, la cual debe ser retirada en Sede Distrital y/o Delegaciones del CAPBA IX. La modalidad de operación es mediante código de barras en el plástico a nombre del matriculado que contiene los datos de éste, quien deberá indicar al operador de caja el importe y el concepto a pagar. Luego el ticket original emitido debe ser anexado a la documentación a presentar o comunicarlo al área de matrícula o de tesorería según corresponda por el tipo de trámite. Importante: este medio de pago no es para utilizarse en sucursales del Banco Provincia, debe presentarse en agencias de pago BAPRO o PROVINCIA NET.

MEDIOS DE PAGO
05

Resolución CAPBA

Nº 94-16

Opinión del CAPBA sobre la aplicación del Art. 1274 del Código Civil y Comercial de la Nación

Desde la aplicación del nuevo Código Civil y Comercial de la Nación, y aún previo a ello, el Colegio de Arquitectos de la Provincia de Buenos Aires ha emitido Resoluciones que contienen la opinión, interpretación y posición de la institución sobre los alcances y competencias de dicha norma jurídica en el ejercicio de la profesión de Arquitectos.

Conforme se avanza en la aplicación de este Código surge la necesidad de abundar en estas interpretaciones doctrinarias del CAPBA, por ello, en esta edición publicamos la más reciente de las opiniones emitidas -en este caso respecto de la Dirección de Obra- para el conocimiento de nuestros matriculados.

06

RESOLUCIÓN Nº 94/16

Grupo 3-c

LA PLATA, 12 de octubre de 2016

VISTO lo dispuesto por el artículo 1274 inciso b) del Código Civil y Comercial, por cuyo conducto se extiende la responsabilidad del constructor “a toda persona que, aunque actuando en calidad de mandatario del dueño de la obra, cumple una misión semejante a la de un contratista”

Las consultas que este CAPBA ha recibido en tal sentido, acerca de qué interpretación cabe realizar a ese dispositivo; y Considerando que, en ejercicio del rol de director de obra en cualquiera de sus modalidades (simple, por contratos separados, o dirección ejecutiva) es posible que, como contrato accesorio, se celebre ente el comitente y el profesional a cargo del rol, un contrato de mandato. Para lo cual habrá que estar a las circunstancias de cada caso en particular, ya que el mandato no es inherente al rol;

Que, no obstante, aun cuando se celebrara tal contrato accesorio, el art. 1274 inciso b) del C. C. y Com. no podría ser aplicado al director de obra (ni siquiera al director ejecutivo, que actúa en una obra ejecutada por administración del comitente / empresario constructor de su propia obra, como se dispuesto en la Res. CAPBA 41/15) porque los actos del mandatario que actúan dentro de los poderes otorgados, se imputan al mandante, no a aquel (arts. 358 y 1328 -incisos b) y c)- del Código Civil y Comercial);

Que tampoco un director de obra, en ninguna de sus modalidades (tampoco en aquella denominada ejecutiva, como lo ha expresado este CAPBA consecutivamente en sus Resoluciones 67/10 y 41/15) cumple jamás "una misión semejante a la de un contratista" ni siquiera intelectual, porque el contrato de dirección de obra es claramente un contrato de servicios, por las siguientes razones: a) no es posible en su desempeño prometer un resultado (más allá de que, fáctica y lógicamente, deviene imposible prometer el resultado de la actividad de un tercero como el constructor, a cuya empresa se es ajeno, y del cual se debe tener total y absoluta independencia) ello se encuentra éticamente vedado por el anexo II) apartado A) inciso 11) de la Res. CAPBA 41/15. Lo cual todo matriculado se encuentra legalmente obligado a cumplir, por imperio de lo dispuesto en los art. 14 inciso 9) y 16 de la Ley 10405 -todo lo cual hace a los "servicios especialmente regulados" a los que alude el art. 1252, párrafo final, del C. C. y Com.-; b) el Director de Obra tampoco realiza un producto reproducible o susceptible de entrega: quien lo realiza es el constructor, e aquel solo lo inspecciona en representación del comitente. No entregando, manifiestamente, nada, sino por el contrario, asesorando a quien lo contrata en el acto jurídico de recepción, y c) en consecuencia, el Director de Obra nunca puede confundirse con el constructor, ni asemejarse en modo alguno a este, porque el primero ejerce la profesión de Arquitecto, a cambio de honorarios de naturaleza alimentaria (arts. 1768, 1269, y 774 inciso a), C. C. y Com., y Resolución CAPBA 41/15 mientras el segundo no: comercia con la construcción, por un precio, y su actividad es ajena a la competencia de este CAPBA (arts. 1757, 774 inciso c) y ccdtes., C.C. y Com., y Res. CAPBA 67/15);

Que, a mayor abundamiento, el Director de Obra (en cualquiera de sus modalidades, incluso la dirección ejecutiva) se encuentra incluido en el inciso c) del art. 1274 del C. C. y Com., de donde surge además que ello es así únicamente "según la causa del daño", lo cual conduce inexorablemente a un supuesto de responsabilidad subjetiva (arts. 727 2do párrafo, 1720, 1721 y 1722 -interpretación en sentido contrario. Del C. C. y Com.-. De donde no es posible pensar que el Legislador actúa irracionalmente diciendo lo mismo en dos incisos consecutivos de un mismo artículo, y, además, contradiciéndose; Que, así planteada la cuestión, el CAPBA hace suya la opinión vertida en la publicación "El nuevo Código, los procesos constructivos, y la responsabilidad civil de empresarios, comitentes y profesionales liberales: un modelo para armar, y para desarmar", Arquitecto y Abogado Bertone, S., ed. La Ley, Doctrina Judicial, año XXXI, Nº 03, 21/1/15, págs, 1 a 20, apartado VI, en el sentido de que la norma en cuestión -en el sentido ínsito en que la fuente mediata de la norma es el artículo 1792-1 del Código Civil de Francia, texto s/Ley 78-12 de ese Estado, y que la disposición del art. 1274 inciso b) del C. C. y Com. argentino alude al contrato de promoción inmobiliaria, innominado entre nosotros, que en el Code se ha definido en los siguientes términos: "El contrato de promoción inmobiliaria es un mandato de interés común por el que una persona llamada “promotor inmobiliario” se obliga ante el propietario de una obra a proceder, por un precio convenido y mediante contratos de arrendamiento de obras, a realizar un programa de construcción de uno o varios edificios y a proceder por sí mismo o hacer que se proceda, por medio de una remuneración convenida, a la totalidad o parte de las operaciones jurídicas, administrativas y financieras que concurran al mismo objeto. Este promotor es garante de la ejecución de las obligaciones puestas a cargo de las personas con las que ha tratado en nombre del propietario de la obra. Es principalmente responsable de las obligaciones derivadas de los artículos 1792, 1792-1, 1792-2 1972-3 del presente código. Si el promotor se comprometiere a ejecutar por sí mismo parte de las operaciones del programa, adquirirá, en cuanto a estas operaciones, las obligaciones de un contratista” (artículo 1831-1 del Código Civil Francés) Que, concordantemente, los artículos a los cuales reenvía la norma francesa establecen la responsabilidad decenal por ruina u obra impropia para su destino, entre otras. Ese era, y es, su sentido: responsabilizar a un sujeto que actúa como un empresario constructor, y que celebra un contrato de mandato, pero en interés no solo del mandante, sino también del mandatario, lo cual también explica por qué este contrato (innominado en nuestro ordenamiento) encaja perfectamente en lo dispuesto por el art. 1274 inciso b) del Código Civil y Comercial Argentino;

LEGISLACIÓN
capba IX 07 EJERCICIO PROFESIONAL

Que, por lo expuesto, el CAPBA emite su opinión institucional, en el sentido de que el art. 1274 inciso b) podría resultar aplicable a los empresarios desarrolladores inmobiliarios, y tal vez a los fiduciarios, pero nunca a los directores de obra; Que es competencia de este CAPBA “Asesorar a los poderes públicos, en especial a las reparticiones técnicas oficiales, en asuntos de cualquier naturaleza relacionados con el ejercicios de la profesión de Arquitecto”, y “Emitir opinión y formular propuestas sobre cuestiones relacionadas con el ámbito de la actividad profesional y con el análisis de los problemas del medio y de la comunidad” (art. 26 incisos 7) y 21) de la Ley 10405;

Que los arts. 1, 3, 15, 26 incisos 7) y 21) y 79 2do párrafo de la Ley 10405, art. 21 del Título I del Decreto 6964/65, los arts. 3 y 103 del Decreto Ley 7647/70, y el art. 41 de la Constitución de la Provincia de Buenos Aires, facultan para el dictado de la presente

Por ello, este CONSEJO SUPERIOR del COLEGIO DE ARQUITECTOS DE LA PROVINCIA DE BUENOS AIRES, en uso de su competencia reglada, y en sesión del día de la fecha:

RESUELVE

Art. 1) Es opinión de este Colegio que el artículo 1274 inciso b) del C. C. y Com., no se aplica a los directores de obra. Especialmente, no se aplica a los directores ejecutivos que actúan en las obras realizadas por administración del comitente - empresario constructor de su propia obra, conforme lo dispone la Res. CAPBA 41/15.

Por las razones expuestas en los considerandos de la presente, el ente de la colegiación emite criterio entendiendo que aquel dispositivo aplica a los promotores inmobiliarios, en el sentido en que a ese contrato, entre nosotros innominado, lo define el artículo 1831-1 del Código Civil de Francia. Y, posiblemente en nuestro ordenamiento -tal vez analógicamentea los empresarios desarrolladores inmobiliarios, y a los fiduciarios de los fideicomisos inmobiliarios.

Art. 2) Siempre que se requiera su opinión en la materia como consultor estatal en los términos del art. 475 del C.P.C. y del art. 26 inc. 7) de la Ley 10405, el CAPBA acompañará como respuesta copia certificada de la presente resolución, cuyos vistos y considerandos, así como su parte resolutiva, constituyen la doctrina oficial del CAPBA.

Art. 3) publíquese en el Boletín Oficial y en las páginas web del Consejo Superior y de los Colegios de Distrito. Cumplido, archívese.

Arq. Santiago PÉREZ Secretario
capba IX 08 EJERCICIO PROFESIONAL
Arq. Adolfo CANOSA Presidente

DRAP sigue apostando al crecimiento en la ciudad y la zona

Nueva central de logística y distribución

PINTURERIAS DRAP despidió un año muy particular apostando al crecimiento, inaugurando las instalaciones de su nueva central de logística, que cuenta con una superficie cubierta de 1300 m2 .

Estas nuevas instalaciones, proyectadas por el Estudio ef.arq, han sido diseñadas para operar en forma mecanizada, con una amplia capacidad de almacenamiento y un sector dedicado especialmente al acopio de materiales de obra gruesa.

Su conveniente ubicación, Victoriano Montes esquina Bolívar, presenta un beneficio estratégico, dado que permite una fácil distribución del reparto a obras en la ciudad y un ágil acceso a las Rutas 2, 88, 226 y 11 para atención a obras en toda la zona. También ofrece una interesante posibilidad de estacionamiento y sus múltiples áreas de carga de materiales lo convierten en una excelente opción tanto para el profesional como para el gremio en general.

Esta central de logística cuenta además con un local comercial, de atención enfocada principalmente a la asistencia de las particulares necesidades de la obra.

Diciembre también marcó para DRAP el inicio de la comercialización de abrasivos, máquinas y herramientas de nivel internacional; la incorporación de yesos proyectables y toda la línea de construcción en seco Knauf; y también una amplia gama de pisos vinílicos y pisos flotantes de PVC.

Los invitamos a conocer este nuevo centro, de lunes a viernes de 8 a 13 y de 14 a 18 hs., y los sábados de 8:30 a 13 hs.

✓ 1300 m2

✓ 3 accesos para camiones

✓ Zonas de carga

✓ Local comercial

✓ Stock permanente en pinturas, revestimientos, membranas, aislantes, morteros, yesos, placas de yeso y pisos flotantes.

Victoriano Montes 2060 - esq. Bolívar. 0223 470 4847
capba IX 10 EJERCICIO PROFESIONAL

KNAUF MP75

Revoque monocapa de alto rendimiento. Aplicación proyectable.

Revoque monocapa aditivado proyectable de alto rendimiento, con tiempo extra de fragüe para optimizar las terminaciones en revoques y lograr mejor acabado de superficie. Ideado para resultados impecables en todo tipo de trabajo interior, con extrema dureza, resistencia y durabilidad.

Proyectar marca la diferencia. El yeso proyectado muestra amplias ventajas con respecto a la aplicación manual:

• 3 veces más rápido.

• menor desperdicio

• buena densidad (no chorrea)

• excelente adhesión y plasticidad

• menor esfuerzo para reglear y alisar

• aplicación más sencilla

Con el yeso proyectado a máquina Knauf MP75, se cubre 150 m2 al día de pared, el triple que lo que se alcanza con el yeso manual.

KNAUF ROTBAND

Revoque de base yeso, secado controlado

Aplicación manual.

El yeso Knauf Rotband es un revoque monocapa premezcaldo con aditivos a base de yeso para ser aplicado en interiores, de forma manual. Knauf Rotband se destaca particularmente para el uso en mejoras y reparaciones de pequeñas superficies. Se ajustan a tiempos cortos de trabajo, contrariamente a los yesos de máquina ideales para el trabajo sobre grandes superficies.

KNAUF BAUGIPS

Yeso tradicional de secado rápido para revoques y enlucidos

Aplicación manual.

Aplicable sobre todo tipo de paredes interiores y cielorrasos. Ideal para:

• Trabajos de reparación

• Trabajos de instalación

• Para incorporar cantoneras metálicas, perfiles para revestimientos y cajas de enchufes eléctricos.

capba IX 12 EJERCICIO PROFESIONAL
La solución en revoques es proyectar con KNAUF

El camino al confort está hecho de yeso. Las obras frías y húmedas terminadas con cemento ya no responden a los requerimientos actuales de confort, ahorro energético, seguridad y sustentabilidad. El revoque de base yeso es el siguiente paso natural hacia una mejor construcción: más rápida, más segura y más ecológica. Basados en una materia prima natural y 100% ecológica, los revoques de yeso proveen superficies cálidas que regulan el clima del ambiente y son permeables, por lo que controlan naturalmente la humedad interior. Además de ofrecer mayores prestaciones de seguridad contra el fuego y la humedad, los espacios revocados con yeso se sienten más cálidos y confortables, al mantener las temperaturas de superficie y de ambiente cercanas y equilibradas entre los 18°C y 20°C, por lo que también se logran importantes ahorros de energía en climatización del aire.

exteriores de 12.5 mm.

Esta placa de cemento resuelve de manera sencilla todas las necesidades para refacción de fachadas y cerramientos exteriores en obras nuevas. Al conformar una envolvente más delgada, permite ganar hasta un 8% de espacio interior.

El ahorro no sólo se logra con los menores requerimientos estructurales por el menor peso y con el aprovechamiento de una mayor superficie interior, sino también con una reducción significativa de los tiempos de construcción, alcanzando hasta un 27% de rapidez por sobre la construcción tradicional.

Entre sus virtudes podemos enumerar el óptimo aislamiento térmico que presenta, una resistencia total al agua, una respuesta confiable en caso de sismos y una mayor posibilidad de diseño.

Knauf Aquapanel posee el Certificado del Sistema Ambiental que describe su eficiencia energética, el Certificado de la Declaración Ambiental de Producto (EPD) otorgado por el Instituto de la Construcción de Edificios y Medio Ambiente (IBU), el Certificado del Instituto Rosenheim de Alemania (IBR) y el Certificado Blauer Engel, una prestigiosa institución alemana que garantiza los parámetros de respeto al medio ambiente.

TABIQUES KNAUF Versatilidad y simpleza

Los tabiques Knauf cumplen con todas las exigencias de solidez y estabilidad, Asegurándole una fácil y rápida colocación. Los sistemas de tabiques divisorios autoportantes Knauf permiten un mejor aprovechamiento del espacio e integran fácilmente todas las instalaciones. La versatilidad del sistema proporciona total libertad a la hora de diseñar y reestructurar ambientes. Brinda superficies aptas para cualquier tipo de acabado. Por su escaso peso se instalan sin refuerzos estructurales y poseen un alto rendimiento térmico y acústico.

Son construcciones altamente resistentes y estables, con gran capacidad de carga. Resoluciones creativas, formas originales y ángulos imposibles son situaciones en las que los tabiques Knauf encuentran su mejor aplicación. Así, son ideales para la creación de ventanas, aberturas, estantes, bibliotecas y nichos para luminarias.

BENEFICIOS sistema de tabiquería Knauf:

• Control ignífugo

• Control acústico

• Control térmico

• Resistencia a los impactos

• Resistencia a la humedad

• Efecto purificador del aire

• Blindaje antirradiación

• Creatividad y funcionalidad

ASESORAMIENTO TÉCNICO
08/2016 HOJA TÉCNICA KNAUF AQUAPANEL
Adquirí estos productos en todas las sucursales
OUTDOOR PLACA DE CEMENTO PARA EXTERIORES DE 12.5 MM
PINTURERÍAS DRAP ha incorporado para su comercialización la línea completa de productos Knauf y pone a disposición asesoramiento y asistencia técnica para el desarrollo de tus proyectos, con el respaldo de una empresa de jerarquía internacional
7 capba IX 13 EJERCICIO PROFESIONAL

FICHA TÉCNICA

VIVIENDA UNIFAMILIAR

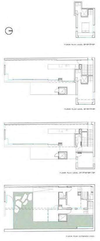
CASA SEVERA

Ubicación: Necochea, Buenos Aires, Argentina

Tipología: Vivienda unifamiliar

Autor:

Arq. Silvina San Martin arq.silvinasanmartin@gmail.com

Fecha de finalización de obra: 2016

Superficie Construída: 126 m²

Casa Severa

Necochea

La belleza en la naturalidad de la desnudez

MORFOLOGIA

En un barrio residencial, en un terreno en esquina, con medianeras consolidadas, se buscó una construcción amigable con su entorno.

La vivienda persigue una estética de arquitectura contemporánea, conseguida con una autentica armonía de combinar prismas simples y potenciar la línea, el plano y el volumen. Se refleja una precisión en la síntesis y expresividad, dando como resultado una vivienda de aparente sencillez y contundencia tectónica junto a su materialidad.

MATERIALIDAD

Vivienda de vanguardia; el mayor requerimiento fue captar la esencia de los materiales, mostrándolos al desnudo, en su estado crudo, para representar una arquitectura sin pretensiones y con un atractivo visual imponente y discreto. De manera natural, al estar basada en un estilo lleno de texturas e irregularidades, se busca destacar una elegancia racional con las imperfecciones de los materiales. La cualidad del material garantiza la permanencia de la imagen a través del tiempo.

capba IX 14 EJERCICIO PROFESIONAL
OBRAS EN EL DISTRITO PLANTA BAJA + 0.00 + 0.90 + 2.30 + 3.30 + 0.20 + 2.50 + 2.65 gas + 0.00 + 0.90 + 2.10 + 2.65 + 2.95 + 3.55 + 3.10 + 3.80 + 2.50 + 2.65 E.M. E.M. 0.00 Cocina Comedor Estar +2.40 - 0.05 + 0.20 + 2.50 + 2.65 Estar + 0.00 + 2.30 + 3.30 + 0.20 + 2.50 gas + 0.00 + 0.90 + 2.10 + 2.65 + 3.55 + 3.10 + 3.80 + 2.50 + 2.65 E.M. E.M. Cocina Comedor Estar + 0.00 +2.40 - 0.05 + 0.20 + 2.50 Estar + 2.65 + 2.95 + 3.55 E.M. E.M. FACHADA CORTE capba IX 15 EJERCICIO PROFESIONAL

- La fuerza del hormigón con su textura tosca y áspera;

- La calidez de la piedra, naturaleza pura con caracoles incrustados;

- La suavidad del cemento alisado;

- La solidez del ladrillo visto;

- La sensual veta de la madera pinotea;

PROGRAMA

El programa fue definido con la premisa de satisfacer las necesidades de una pareja joven, sumando un estudio para el desarrollo de la actividad profesional de uno de sus miembros.

El desafío radicó en resolver un diseño de planta con la mayor cantidad posible de actividades, mediante el trabajo estratégico de las circulaciones, de modo de combinar los ambientes, optimizando la cantidad de los mismos; es decir, alcanzar un balance perfecto, generando menores costos de obra con mayor rendimiento.

Vivienda compuesta por un hall de acceso, punto de inicio a la vivienda, donde se distribuye hacia un lado la parte pública de la vivienda, y hacia el otro lado la parte privada. Junto al hall, se da el acceso al estudio profesional.

Se logró conseguir, que desde el estar-comedor se integrara el exterior con la parrilla, y contar con la cercanía del toilette, de manera que estos ambientes actúan como el ¨quincho de la vivienda¨;

También hay proximidad desde el estudio al toilette, de manera de brindar el servicio al cliente sin necesidad de recorrer la parte privada de la vivienda;

El doble acceso al ante-baño, consigue que el dormitorio principal sea en suite, a la vez que mantiene un baño principal compartimentado.

capba IX 16 EJERCICIO PROFESIONAL
OBRAS EN EL DISTRITO capba IX 17 EJERCICIO PROFESIONAL

INDUSTRIA Y ALMACENAJE FICHA TÉCNICA

ANTARES Fabrica

Ubicación:

Calle 8 esq. 5, Parque Industrial Mar del Plata

Equipo Profesional

Arq. Carlos Stantien

Arq. María Eugenia García

Mmo. Luciano Di Rago

Arq. Fernando Palestini

Gerenciamiento:

Arq. Marcelo Silberman.

Asesor Calculista:

Ing. Eduardo Benitez.

Asesor Estructuras metalicas:

Arq. Adrián Cottura.

Asesor Hormigón:

Arq. Axel Diez. Asesor en Seguridad e Higiene:

Arq. Nestor Machado

Superficie del Predio: 21.600 m2

Sup. Total Cubierta: 8.046,88 m2

Exterior Consolidada: 2.911 m2

ANTARES

Fábrica de Cerveza

Artesanal

Mar del Plata

MEMORIA DESCRIPTIVA

De una vieja fábrica de anchoítas a la cervecería artesanal modelo en Argentina

La frase que nos antecede es el espíritu del trabajo que fue encomendado al estudio, la transformación de estructuras con usos diametralmente opuestos y la generación de nuevas superficies con programas muy precisos. En ese sentido, las características sobre la utilización de espacios y su función, requirieron la conformación de un equipo de trabajo multidisciplinario, con el objeto de cumplir con los altos estándares de exigencia que la marca “ANTARES” nos impuso respecto a arquitectura, construcción y tiempo de ejecución.

capba IX 18 EJERCICIO PROFESIONAL
OBRAS EN EL DISTRITO VISTA SUDOESTE NAVE 1 NAVE 2 VISTA NORESTE NAVE 2 NAVE 1 VISTA NORTE NAVE EXISTENTE NAVE EXISTENTE CORTE A-A CORTE B-B CORTE C-C CORTE D-D capba IX 19 EJERCICIO PROFESIONAL

Con el fin de cumplir con las consignas del comitente se propuso una modalidad distinta y más amplia que la realización de las tareas de proyecto y dirección de obra, por medio de la figura de GERENCIAMIENTO. Este servicio tuvo como objetivo:

-Consumar la obra en los plazos previstos;

-Alcanzar la calidad de obra requerida;

-Lograr el equilibrio económico de inversión.

De esta manera, con un equipo integral de proyecto se abordaron problemáticas específicas estructurales, de durabilidad y mantenimiento, como así también de imagen colectiva, posibilidad de la repetición en futuras ampliaciones y equilibrio económico de la inversión.

Asimismo, resultó de gran importancia el armado de grupos de trabajos, con expertos en distintas áreas de la construcción, así como también en montaje y puesta en funcionamiento de fábricas, elaboradores de cerveza, especialistas en procesos mecánicos, automatismos, entre otros aspectos, que permitieron asumir este importante desafío de manera solvente y eficaz. Es por ello que vale destacar que se arribó a un producto terminado tres meses antes de la fecha prevista y por ende una fábrica produciendo para todo el país antes del inicio del verano.

Respecto a la formalización del proyecto, este es el resultado de tres decisiones fundamentales. En primer lugar, lograr espacios funcionales que permitan el desarrollo de un perfecto Layout con posibilidades de crecimiento en producción y, a su vez, multiplicar su capacidad operativa. En segundo término, prever que una vez culminadas las tres etapas de obras previstas el frente del edificio se invierta con vista a la calle posterior, con el fin de lograr una imagen en convivencia con el parque y el campo. La tercera decisión, fue generar un lenguaje arquitectónico de industria, con una arquitectura fabril, pero que permita el desarrollo de actividades humanas en un ámbito de confort y bienestar.

Respecto a la materialidad, se plantea la expresión de los materiales en sí mismos, chapa, hormigón, vidrio -que otorguen al espacio características simples y naturalessumadas a esto las grandes aberturas vidriadas mirando el campo que generan una fantástica convivencia entre el interior y el exterior.

capba IX 20 EJERCICIO PROFESIONAL
PLANTA BAJA PLANTA ALTA CÁMARA FRIO E E.M L.M ZONA DE CARGA LLENADO DE BARRILES CARGA Y DESCARGA A CÁMARA FRIO CÁMARA FRIO E E.M L.M ZONA DE CARGA LLENADO DE BARRILES CARGA Y DESCARGA proyección alero A CÁMARA FRIO OBRAS EN EL DISTRITO capba IX 21 EJERCICIO PROFESIONAL

Nuevas escalas para la determinación del Monotributo

Modificaciones a la Ley 27346

La AFIP reglamentó una serie de cambios al Régimen Simplificado que incluyen la recategorización de oficio, la determinación de medios de pago para cumplir con las obligaciones fiscales, la emisión electrónica de comprobantes originales y la constitución del domicilio fiscal electrónico.

Junto a los cambios en el impuesto a las Ganancias, también entran en vigencia modificaciones en el Monotributo . Según se estableció, habrá un aumento del 75% en las cuotas y en el máximo de facturación anual para ser considerado en el régimen.

Con las modificaciones introducidas por la ley 27.346, la recategorización en el régimen de Monotributo que

originalmente vencía el día 20 de enero de 2017, pudo efectuarse hasta el día 31 de enero de 2017. Para ello se consideraron los nuevos parámetros de la tabla.

La AFIP indicó que realizaría una categorización de oficio, en la cual se encuadra a los contribuyentes en la categoría inmediata inferior a la que estuvieran inscriptos en diciembre de 2016. Los monotributistas deberán

22

confirmar esta categorización de oficio hasta el 30 de abril de 2017 y deberán descargar su nueva credencial que le servirá para el pago mensual. No obstante, los monotributistas podrán recategorizarse en más o en menos, en forma voluntaria, de acuerdo a los nuevos valores, y efectuada esa recategorización, realizar el pago mensual que surge de su nueva categoría.

Se incorpora la categoría “A”, y se permite el reingreso a los sujetos excluidos de oficio, y los autoexcluidos, durante el año 2016.

A partir del mes de enero se deberán ingresar los nuevos valores del impuesto integrado y cotizaciones previsionales establecidos.

REGULACIÓN FISCAL
Categ.Ingresos Brutos Impuesto Integrado Aportes al SIPA Aportes Obra Social Total Servicios Venta de Cosas Servicios Venta de Cosas A Hasta $ 84.000 $ 68 $ 300 $ 419$ 787$ 787 B Hasta $ 126.000 $ 131 $ 330 $ 419$ 880$ 880 C Hasta $ 168.000$ 224$ 207$ 363$ 419$ 1.006$ 989 D Hasta $ 252.000$ 368$ 340$ 399,30$ 419$ 1.186,30$ 1.158,30 E Hasta $ 336.000$ 700$ 543$ 439,23$ 419$ 1.158,23$ 1.401,23 F Hasta $ 420.000$ 963$ 709$ 483,15$ 419$ 1.865,15$ 1.611,15 GHasta $ 504.000$ 1.225$ 884$ 531,46$ 419$ 2.175,46$ 1.834,46 H Hasta $ 700.000$ 2.800$ 2.170$ 584,60$ 419$ 3.803,60$ 3.173,60 I Hasta $ 822.500 No aplicable $ 3.500$ 643$ 419 - $ 4.562 JHasta $ 945.000 No aplicable $ 4.113$ 703,30$ 419 - $ 5.239,30 K Hasta $ 1.050.000 No aplicable $ 4.725$ 778,03$ 419 - $ 5.922,03 23
CPN Claudia Pedersen Asesora contable CAPBA IX

provincial

Premio Estímulo del CAPBA 2016, vivienda y ciudad

Anualmente el Colegio de Arquitectos de la Provincia de Buenos Aires premia la labor de sus profesionales en diferentes categorías en lo que se denomina como Premio Estímulo. En esta oportunidad ha sido premiado en 2º lugar el trabajo presentado por arquitectos del Instituto de Estudios Urbanos IEU CAPBA IX en la categoría Investigación y Teoría.

Esta convocatoria promovió la investigación y la innovación a través de iniciativas y proyectos desarrollados como trabajo colaborativo de los colegas que participaron de las distintas instancias Distritales de los Institutos integrantes del sistema I+D+i orientados a posibilitar que los saberes y conocimientos propios de cada localidad o región se formalicen como propuestas que tiendan a incidir en las agendas públicas locales, a partir de diferentes dimensiones de aproximación: urbanística, ambiental, habitacional y patrimonial.

Bajo el título "Vivienda y ciudad: El Legado Urbanístico, Arquitectónico y Tecnológico de los Arquitectos Córsico Piccolini y Auro Tiribelli. Miradas, Interpretaciones y Apropiaciones", este proyecto de divulgación articula diferentes trabajos que parte del reconocimiento y la valoración del importante legado de los arquitectos Alberto Córsico Piccolini y Auro Tiribelli en para la Ciudad de Mar del Plata, en dos registros: en primer lugar el patrimonio integrado por las obras concretas en su materialidad y apropiación actual -constituido por decenas de edificaciones de diferentes programas, estilos y desarrollos tecnológicos-; en segundo término a partir de los archivos privados de ambos arquitectos, cuya guarda -cedida por sus descendientes- honra al CAPBA Distrito IX.

En ese sentido, el proyecto consiste en sistematizar la comunicación de acciones que en el ámbito del Colegio de Arquitectos de la Provincia de Buenos Aires Distrito IX y de la Facultad de Arquitectura, Urbanismo y Diseño de la Universidad Nacional de Mar del Plata (FAUD- UNMdP) se han realizado y se realizan en pos de la investigación, registro, difusión y apropiación de la arquitectura moderna en MdP. Por ello, se ha elaborado un marco que promueve desde una mirada historicista y crítica de la obra de ambos arquitectos en la conformación de la ciudad y la vivienda y, por otro lado, que reconozca la diversidad de formas para su registro y divulgación.

El equipo de autores -quienes recibieron un estímulo económico que fue donado al CAPBA IX para continuar financiando iniciativas vinculadas al proyecto- se encuentra integrado por los arquitectos: Adriana OLIVERA; Julia ROMERO; Alejandro NICOLINI; Alicia PARIS; María de las Mercedes FASINATO y María Ester MORANI. Mientras que los colaboradores, quienes se encuentran trabajando en diferentes iniciativas, han sido los arquitectos: Claudio ERVITI, Manuel TORRES CANO, Eugenio FERNÁNDEZ, Martín SARASÍBAR y Celeste SICCARDI.

La divulgación de la obra de los primeros arquitectos marplatenses es reconocida a nivel
capba IX DESARROLLO URBANO SUSTENTABLE 28

ANTECEDENTES

El legado de estos primeros arquitectos locales, de prolífica producción en el arco temporal desde medidos de los años treinta -cuando se reinstalaron en su ciudad natal, después de haber realizados estudios en Córdoba y Buenos Aires- hasta los años setenta, abarca las dimensiones urbana, arquitectónica y tecnológica.

La obra de estos profesionales, desde la dimensión urbana, contribuyó a la configuración y caracterización de barrios, calles y lugares -tal el caso de sus arquitecturas modernas de los años treinta en torno al área central y a Plaza Mitre, o las numerosas residencias veraniegas que realizaron en clave pintoresca rústica en La Loma y el Barrio de Playa Grande. La dimensión arquitectónica abarca de modo predominante la vivienda individual (de veraneo o permanente), pero también alcanzó el programa hotelero, las viviendas para renta y, hacia los años cincuenta, la Propiedad Horizontal. Fue particularmente relevante -en la dimensión tecnológica- el aporte de ambos profesionales en la implantación y desarrollo del "Chalet estilo Mar del Plata" y del carácter urbano rustico en los mencionados barrios. Aporte que, entre otras estrategias, se fundará en la experimentación con la piedra local, en residencias cuya materialidad está dada por muros de piedra de canteras locales, carpinterías de madera hachada, cubiertas de fuerte pendiente de tejas o pizarras y revestimientos de troncos en la fachada, caracterizando al desarrollo de oficios e identidades locales.

MIRADAS, INTERPRETACIONES Y APROPIACIONES

La riqueza de la obra de Córsico Piccolini y Tiribelli, considerados por muchos como representativos de la construcción más tradicional de la ciudad- la que ha posibilitado un trabajo multidisciplinario y que se ha ido construyendo a partir de diferentes miradas y abordajes. Por un lado, la que estudia y exalta sus construcciones

por el alto legado de valor patrimonial -en términos históricos, arquitectónico-urbanos y ambientales; otra la construida a partir de la mirada especializada del arte fotográfico habiéndose realizado a la fecha el 3º Concurso Fotográfico organizado por el CAPBA entre cuyos objetivos se halla el de mostrar distintos momentos de la obra de estos profesionales y destacando las singularidades que representan en el conjunto urbano en el que se emplazan; otra, la de compartir estas obras mediante el uso de la tecnología y el mapeo georeferenciado de sus obras, sean existentes o demolidas, y las que servirán como aporte a la construcción de una app de arquitectura marplatense que desde el Taller Vertical de Diseño Arquitectónico “C”, cuyo adjunto es el Arq. Eugenio Fernández de la FAUD, están construyendo; y por último, la de registrar, promover la conservación, inventariar, digitalizar y difundir las obra en diferentes libros de formato electrónico. La articulación de esta serie de trabajos -al que se sumará en breve el legado de otro de los exponentes locales, el arquitecto Raúl Camusso -se utiliza como excusa para dar a conocer parte de las obras de estos "maestros" de la arquitectura local.

El pasado 2 de diciembre se realizó la ceremonia de entrega de premios, en la Sede del CAPBA sito en la calle 53 nº 324 de la ciudad de La Plata.

Desde el CAPBA IX felicitan iniciativas como estas, ya que entendemos que hacer ciudad presenta hoy un desafío y un compromiso ineludible de responsabilidad profesional que debe tener en cuenta el bienestar de la comunidad y de las generaciones futuras, se propicia el desarrollo de iniciativas de trabajo participativo que den lugar a los saberes y conocimientos propios de cada localidad o región comprendiendo nuestra función de referentes sociales.

Más info: http://ieu9capba.wixsite.com/ieu9/premio-estimulo-2016

PREMIO ESTÍMULO
COT_obras Piccolini -Tour
capba IX DESARROLLO URBANO SUSTENTABLE 29
COT_obras Tiribelli-Tour

Jurado compuesto por Arqs. Horacio Morano, Pablo Rescia y Julio Villamonte

CATEGORÍA PROYECTO DE INTERVENCIÓN TERRITORIAL

QUINTA MENCIÓN

Título: "Intervención en grandes espacios vacantes: Hipódromo de Tandil"

Autores: Marisa Rosana Pernice, Gabriela Alsina, Daniel Oscar Egusquiza, María Eugenia Gómez Erpelding, Ana Ricarda Levy, Juan Ignacio Maurel y Diego Riva (D VIII).

CUARTA MENCIÓN

Título: “Nueva centralidad en Bernal”

Autores: Héctor Hugo Lucas, Marta Julia Oliva y Flavia Tesoriero (DII).

Colaboradores: Melani Filello y Franco Ruggero.

TERCERA MENCIÓN

Título: “Programa de Integración Física y Social de la ciudad de Arrecifes”

Autores: Julia Bellotti, Marina Bosco, Regina García Díaz y Evangelina Salgado (D VI)

Colaboradora: Adriana Pellerino

SEGUNDA MENCIÓN

Título: “Ordenamiento de loteos en el corredor San PedroVuelta de Obligado”

Autores: Hugo Santiago Barceló, Gladys Elisabet Gastóy Ana Edelina Grande (D VI).

Colaborador: Enrique Sierra.

PRIMERA MENCIÓN

Título: “Desarrollo de nuevos polígonos empresariales dentro del distrito tecnológico de Villa Lynch, Gral. San Martín.”

Autores: Florinda Frank y Paula Canavese (D IV)

3º PREMIO:

Título: "Proceso de Urbanización Barrio 17 De Noviembre, Cuartel Noveno, Lomas De Zamora"

Autores: Arqs. Juan Carlos Sánchez y Ricardo Ortíz (DII)

Colaboradora: Srta. Ayelén Fichera

2º PREMIO:

Título: "Consolidación Barrios Alte. Brown y La Celeste de Junín"

Autor: Arq. José Luis Arlotta (DVI)

1º PREMIO:

Título: "Revitalización urbana del centro fundacional de Avellaneda: planificación, gestión y concertación"

Autores: Silvia Beatriz Bruzzo, Rubén Adrián Lisanti, Martin Manuel Otero y María Cristina Senlle (DII)

Colaborador: Sr. Ezequiel Vespa

capba IX DESARROLLO URBANO SUSTENTABLE 30

CATEGORÍA INVESTIGACIÓN Y TEORÍA

TERCERA MENCIÓN

Título: “Proyecto L.U.P.A, linterna urbana de patrimonio arquitectónico. Rescatar y hacer lucir nuestra herencia”.

Autora: Luciana Soledad Comesaña (DII)

Colaboradora: Rosario González Nieto.

SEGUNDA MENCIÓN

Título: “La arquitectura y el urbanismo hecho desde el Estado, el caso de la ciudad de Mar del Plata”.

Autores: Miguel Ángel Bertolucci (DIX).

PRIMERA MENCIÓN

Título: “Ciudad y arquitectura hacia densidades más altas”.

Autores: Daniel Antonio Pussó (DI).

Colaboradora: Adriana Delia Fessia.

3º PREMIO

Título: Nodo de Infraestructura de datos espaciales del Municipio de Lanús. Innovación y Desarrollo Tecnológico para la Gestión y Planificación del Territorio.

Autora: Arq. Griselda Galeano (DIII).

Colaboradores: Arq. Juan Manuel Ruarte, Geógrafo Juan Pablo Venturini, Geógrafo Martin Lorenzo Díaz, Desarrollador Geomático Javier Díaz, Urbanista Amín Ali, Técnico en Gestión Ambiental Abel Iturralde, Arq. Santiago Petroccelli, Arq. Alejandra González, Arq. Gisela Del Grosso y Arq. Raúl Peney.

2º PREMIO

Título: "El Legado urbanístico, arquitectónico y tecnológico de los arquitectos Córsico Piccolini y Auro Tiribelli. Miradas, Interpretaciones y Apropiaciones."

Arqs. Adriana Olivera, Julia Romero, Alejandro Nicolini, Alicia París, María de las Mercedes Fasinato y María Ester Morani.

Colaboradores: Arqs. Claudio Erviti, Manuel Torres Cano, Eugenio Fernández, Martín Sarasíbar y Celeste Sicardi (DIX).

1º PREMIO

Título: "Parque para el asado. Política económica, urbanismo y vivienda social en la Argentina 1870-2015"

Autor: Arq. Carlos Andrés Juárez (DIV).

El Legado Urbanístico, Arquitectónico y Tecnológico de los Arquitectos Córsico Piccolini y Auro Tiribelli. Miradas, Interpretaciones y Apropiaciones.

- Aportes a la construcción de la ciudad, la vivienda y el desarrollo de oficios e identidades locales

Dimensión Urbana: [configuración y caracterización de barrios, calles y lugares]

Dimensión Arquitectónica: [vivienda individual -permanente y de veraneo-, vivienda colectiva -propiedad horizontal- y programas hoteleros]

Dimensión Tecnológica: [muros de piedra de canteras locales, carpinterías de madera hachada, cubiertas de fuerte pendiente de tejas o pizarras y revestimientos de troncos en la fachada]

- Proyecto de Comunicación Sociabilización y Divulgación

Inventario y Digitalización

[proyecto de conservación de los archivos profesionales]

Catalogo virtual

[1930 a 1980 Archivos Planos de Obras primeros Arquitectos Marplatenses | Década ´30 a ´70]

Publicación papel

[Colección Arquitectura de Mar del Plata

1930-1970. Arquitecto Alberto Córsico Piccolini]

Concurso Fotográfico

[Arquitectos Córsico Piccolini y Tiribelli. Su aporte a la identidad barrial marplatense]

Tours Patrimoniales

[circuitos de recorrido con identificación de obras de autor]

APP

[Arquitectura Moderna Marplatense]

- Plan de Acción para la Promoción de la Preservación del Legado Arquitectónico y Cultural. ACCIONES A DESARROLLAR

PROYECTO DE ORDENANZA

Promover el reconocimiento social -incluyendo el gubernamental- del aporte a la identidad marplatense de la obra de los primeros arquitectos locales. Presentando un proyecto de ordenanza ante el Municipio que permita su reconocimiento formal;

ÁREAS DE PROTECCIÓN HISTÓRICO- CULTURALES.

Instar a la preservación de las obras existentes que en su conjunto se constituyen en parte del patrimonio local, su contexto y los valores identitarios de zonas consolidada promoviendo la creación de Áreas de Protección Histórico- Culturales (APHC) en el marco de la normativa local la que reúne aisladamente obras patrimoniales en el marco de la Ordenanza MGP nº 10075 y nº 19960, sin una revisión periódica ni actualización de las obras incluidas y sin que existan otros instrumentos de gestión urbana de las obras en conjunto;

FONDO DE RECURSOS DE ORIGEN PÚBLICO Y/O PRIVADO.

Sociabilizar y concientizar sobre los valores tecnológico- constructivos de la obra pintoresquista y moderna, entre los años ´30-70, y contribuir a la consolidación de un fondo de recursos de origen público y/o privado para ello;

PROYECTO DE COMUNICACIÓN Y DIVULGACIÓN.

Continuar con la divulgación, socialización y comunicación de la obra de éstos profesionales y otros arquitectos a incorporar, como la obra de Camusso, Basset Smith, Baldassarini, Barroso, Coll, Rodríguez Etcheto, entre otros;

ACCIONES DE DIFUSIÓN.

Promover la difusión entre todos los sectores de la sociedad, no sólo los profesionales, mediante la realización de los Concursos de Fotografías y los tours turístico- patrimoniales y los bicitours; y

SINERGIA Y COLABORACIÓN.

Articular el trabajo interinstitucional orientado a generar sinergia y trabajo colaborativo.

PREMIO ESTÍMULO
concluido concluido en armado en armado concluido concluido
capba IX DESARROLLO URBANO SUSTENTABLE 31

Registro de Profesionales Convocatoria para la constitución de grupos de trabajo en el Instituto de Estudios Urbanos del CAPBA IX

El Instituto de Estudios Urbanos del Colegio de Arquitectos Distrito IX realizó el llamado para integrar los grupos de trabajo del Instituto, dado el creciente volumen de trabajo que van desde la atención de consultas, el análisis de propuestas principalmente normativas, los proyectos propios de la Institución, entre otras tareas. Situación que se ve incrementada por la necesidad del Estado de contar con asistencia técnica en materia de planificación urbano-ambiental.

El Colegio de Arquitectos de la Provincia de Buenos Aires nuclea a profesionales que desarrollan sus actividades en el ámbito privado del ejercicio de la profesión, en forma individual o asociada, pero que a la vez nuclea a aquellos que se especializan en temáticas referentes a la planificación urbano-ambiental, tanto en el ámbito público como privado.

Mientras que, el IEU9 –como instrumento de gestión del CAPBA IX- aspira a constituirse en una alternativa disciplinar para todos aquellos organismos gubernamentales y no gubernamentales que formalicen su solicitud de participación. En los últimos 8 años fueron crecientes las consultas -en particular de los municipiospedidos de opinión y solicitudes de propuestas para intervenir en asuntos vinculados a la planificación sostenible de nuestra región. Pero, especialmente el IEU 9 propone constituirse en un espacio de participación activa de los matriculados de toda la región dado que el citado perfil de demandas, en general, es dirigido a las instituciones educativas universitarias.

Por ello, se realizó una convocatoria a matriculados para constituir equipos de trabajo para diferentes iniciativas que llevará adelante según las siguientes pautas:

MARCO CONCEPTUAL

Entendemos a la ciudad como un sistema dinámico y complejo que se construye a partir de la urdiembre de

relaciones entre los diferentes agentes que la componen, cada uno de los cuales actúan con sus correspondientes lógicas e intereses compitiendo sobre un mismo espacio. Por lo que la construcción del espacio material y su transformación se manifiestan en la organización del espacio territorial, siendo la Arquitectura y el Urbanismo instrumentos de esta organización.

Los proyectos propuestos para llevar adelante están vinculados a generar conciencia y aportar nuestra mirada disciplinar sobre las temáticas que hacen al desarrollo del conjunto de los Partidos que integran el Distrito IX, tanto a escala local como regional; promoviendo instalar nuestras inquietudes en los organismos decisores de gobierno y, así, contribuir en la implementación de políticas públicas que sean inclusivas y beneficiosas para la sociedad en su conjunto. Las temáticas estarán vinculadas a problemáticas urbanas, medio-ambientales, patrimoniales y de los servicios habitacionales.

FUNCIONAMIENTO

Mayoritariamente el funcionamiento de los componentes será por proyectos a término, los que deberán ser presentados para su aprobación en el seno del Consejo Directivo y de la Coordinación de Concursos que funcionará por tareas específicas.

Una referencia particular requiere el funcionamiento del IEU que cumple triple función: la de programar

capba IX DESARROLLO URBANO SUSTENTABLE 32

acciones que engloben el trabajo de todos ellos, la de responder a las necesidades particulares que puedan presentarse como Audiencias Públicas, Convocatoria de las Instituciones, Charlas, etc. y, a la vez, desarrollar proyectos

En su estructura general el IEU9 funciona con coordinadores por zonas. Esta propuesta de zonificación se basa en calificar y multiplicar la atención que las demandas y realidades particulares que el Distrito requiere. Por ello, es que las zonas son 3 (tres): centro, norte y sur. En cada una de ellas, se trabaja con colaboradores para el desarrollo de las tareas que se impulsen, sin dejar de mencionar el rol y el trabajo en conjunto que deberá cumplimentarse con los Delegados comprendidos en cada una de las zonas. La Coordinación General está a cargo del Presidente de la Institución.

CONVOCATORIA Y EVALUACIÓN

Inscriptos en el registro: 31.

Criterios de Evaluación: Dado los perfiles de CV recibidos se estableció agrupar las propuestas por delegación y determinar a futuro los criterios de selección por tarea específica en función de los términos de referencia requeridos.

Conformación de Equipos: con las inscripciones recibidas, luego de su ponderación, se elaboró un registro que será utilizado en diferentes instancias buscando en todos los casos garantizar rotación y la pertinencia de los perfiles profesionales. Se prevé considerar en la ponderación la especialización de los postulantes que se presenten.

REGISTRO 2016 (Sin orden de mérito)

La conformación de la cantidad de integrantes para el desarrollo de cada uno de los proyectos será determinado por el IEU.

Futuras Convocatorias: esta convocatoria, así como el registro de profesionales, se realizará una vez al año con el objeto de renovar dicho registro y posibilitar la inclusión de nuevos aspirantes.

Convalidación del Registro: al finalizar la convocatoria, evaluación y registro, todas las actuaciones fueron elevadas al Consejo Directivo del CAPBA IX para su conocimiento y publicación.

Remuneración o compensación: a priori la participación en proyectos es ad honorem salvo que el producto a elaborar implique un convenio con percepción económica o la asignación de recursos de la institución para el desarrollo de un proyecto puntual en cuyo caso se establecerá una compensación por proyecto y tarea a realizar que será tratada particularizadamente.

Propiedad Intelectual: todo lo producido en el marco de las actuaciones del IEU9 serán propiedad del CAPBA IX. En caso de convenios con otras instituciones los frutos intelectuales de las tareas se regirán por las clausulas convenidas en tal oportunidad. No obstante ello, la participación y colaboración como autor, co-autor o colaborador le será reconocido explícitamente.

Más info: para conocer el perfil de trabajo y los antecedentes del IEU9 se recomienda visitar el sitio web del instituto http://ieu9capba.wixsite.com/ieu9

ACHINELLI, Ma. de Los Ángeles; ALCÁNTARA BRAIDOT, Jorgelina; ALONSO IRIART, Micaela; BARCIA, Analía; BERARDO, Maia Ludmila; BERENJENO, Jorgelina; CABEZÓN, Cintia; CALDARONE, Juan Manuel; CARÉ, Daniel; DERISIO, Laura; DI LEO, Nancy; DOLADE, Adrián; FACAL, Carlos; FERNÁNDEZ FAHEY, Silvia; FERRARI, Sergio; GIULIETTI, Sergio; GONZÁLEZ, Julio Roberto; LABRUNEE, María Inés; MARQUEZ, Elisa; MARTÍNEZ, Leonardo; MOLINA FAVERO, Andrés; MONETTI, Verónica; NICOLINI, Alejandro; ODRIOZOLA, María Emilia; OTAMENDI, Candela; PERUZZO, Carolina; POLO FRIZ, Emilio; REGIDOR, César; RODRÍGUEZ, Silvia; SITTNER Germán; VILLA, Juan José.

IEU9
capba IX DESARROLLO URBANO SUSTENTABLE 33

Acueducto del Oeste de

Mar del Plata

El Colegio de Arquitectos participó de la Audiencia

Pública

El Colegio de Arquitectos de la Provincia de Buenos Aires Distrito IX, a través de su Instituto de Estudios Urbanos (IEU9) participó de la audiencia pública consultiva convocada por la Municipalidad de General Pueyrredon para el tratamiento del proyecto del Sistema de Acueducto Oeste (SAO) para el Partido de General Pueyrredon.

El encuentro, desarrollado el pasado 2 de diciembre, fue presidido por el ingeniero Mario Dell’Olio (Presidente de Obras Sanitarias) y durante el mismo –en el recinto de sesiones del HCD- se expusieron los alcances y beneficios del emprendimiento que fuera confirmado por Decreto de Presidencia de la Nación (Nº 797/16) y ya publicado en el Boletín Oficial con una inversión prevista en $610 millones.

Tomaron parte como expositores la arquitecta Adriana Olivera -Instituto de Estudios Urbanos del CAPBA IX-, los ingenieros José Luis Ovcak y Carlos Filippini (por el Centro y el Colegio de Ingenieros de la ciudad respectivamente), la arquitecta Julia Romero -Foro Sectorial de la Construcción de Mar del Plata- y los vecinos Emilio Mosquera (Corredor Norte de la Ruta 2), Carlos Riveros (Sociedad de Fomento del barrio 2 de Abril) y Arturo

34

Otero (Las Margaritas y Cooperativa Camet). Todos coincidieron en reconocer los beneficios del proyecto Acueducto Oeste que tenía en esta Audiencia Pública un paso fundamental respecto a su prosecución.

El CAPBA IX presentó un documento con un análisis de los antecedentes que hacen a la obra proyectada según el expediente que se tuvo a disposición y se realizaron algunas consultas que fueron evacuadas en la exposición realizada en la audiencia tanto por personal de OSSE como de los responsables de la Evaluación de Impacto Ambiental.

Ver documento: http://media.wix.com/ugd/cddf0a_549a4a18e3f24490961a3 5d3c6c125ef.pdf

DESCRIPCIÓN DEL SISTEMA DE AGUA DEL PARTIDO

En la actualidad el radio servido de agua y cloaca en el ejido urbano de la ciudad de Mar del Plata, al año 2013, es del 97%.

El sistema de abastecimiento de agua está compuesto por tres subsistemas: el Acueducto Norte (SAN); el Acueducto Sur (SAS); y el de los Pozos en Red. El SAN se abastece por medio de 96 pozos de extracción, tiene una longitud de 24,5 km. y el diámetro de las cañerías varía entre 600 a 2.000 mm. Sobre este sistema el pozo de extracción más cercano se ubica en el Partido de Mar Chiquita, corre paralelo a la ruta nº 2, finalizando en la intersección de la av. Colón y San Luis. El sistema cuenta con 5 Estaciones Elevadoras – Centro de Abastecimiento Szpyrnal; Uruguay y Ayacucho; Plaza Mitre; Torre Tanque Falucho; y Tucumán y Almafuerte.

El Acueducto Sur (SAS) se abastece por medio de 26 pozos de extracción que se ubican en la zona comprendida por las calles Vértiz, La Costa, M. Bravo y la ruta nº 88 y mediante 13 válvulas derivadoras se abastece a la red. La zona entre J. B. Justo, Vértiz, Ruta 88 y La Costa cuenta con pozos de red para suministro directo. En las zonas en que no es posible alimentarlas desde las estaciones elevadoras se abastecen desde pozos en red.

LA AMPLIACIÓN DEL SISTEMA DE ABASTECIMIENTO DEL PARTIDO

El proyecto, según consta en el Resumen Ejecutivo, está destinado a la provisión de agua potable a implementar en dos etapas. La 1ª es una batería de 25 pozos y la 2ª de 48 (todos al acuífero Pampeano) que alimentarán el SAO, el cual reforzará el Sistema SAN (Sistema Acueducto Norte) existente. La etapa 1ª, que es la sometida a esta Audiencia Pública, se produce en el contexto de la Ley

Nacional General del Ambiente nº 25.675 y de la Ley Marco de la Provincia de Buenos Aires nº 11.723.

El mismo se desarrolla sobre un área rural cercana al Partido de Mar Chiquita y Balcarce y se implementará sobre la vera de caminos rurales excepto un tramo, ciego, sin pozos que aporten agua, por la Ruta provincial nº 2, entre Estación Cobo y Bº El Casal, que es el que sirve de empalme entre el SAO y el SAN (C1:pp. 38).

SUSTENTABILIDAD
capba IX DESARROLLO URBANO SUSTENTABLE 35

Dentro de las ponderaciones generales del proyecto se destaca:

+ AGUA: Incremento en la producción para brindar servicio a más barrios;

- CONSUMO ENERGÉTICO: Con nuevas tecnologías se prevé reducir el consumo energético y luego con energía renovable (Parque Eólico) alimentar directamente el SAO;

- CANTIDAD DE POZOS EN ACTIVIDAD: Reemplazo de pozos antiguos, de las áreas urbanas, por otros de mayor eficiencia;

+ AÑOS DE RESERVA DEL ACUÍFERO: la extracción balanceada y sustentable facilita la recuperación del acuífero.

capba IX DESARROLLO URBANO SUSTENTABLE 36

REFLEXIONES FINALES

Visto los antecedentes, las características del emprendimiento, las ventajas y desventajas enunciadas inicialmente desde el Colegio de Arquitectos de la Provincia de Buenos Aires Distrito IX, consideramos oportuno expresar que además de los beneficios que en materia de saneamiento, así como también y en concordancia con lo establecido como objetivo del Proyecto del SAO, y citando textualmente el Estudio que expresa que: se persigue el de mejorar la salud y calidad de vida de la población estable y turística del Partido de General Pueyrredon apuntando a garantizar la provisión de agua potable de mayor calidad y con mayor continuidad que en la actualidad, como asimismo posibilitando la ampliación de redes, que ya tienen un alto grado de cobertura, 95%. (C.1, pp. 34) y en virtud de que el Estudio de Impacto Ambiental arroja que el mayor impacto, aproximadamente un 58%, se producirá en la etapa de construcción y que ya desde el diseño se contempla la componente ambiental (C.3, pp. 78) es que se verán minimizados los impactos potenciales generados negativos por la obra.

Y en virtud de que la Constitución Nacional, reformada en el año 1994, incorporó en su art. 41º "el derecho de todos los habitantes de gozar de un ambiente sano, equilibrado, apto para el desarrollo humano y para que

las actividades productivas satisfagan las necesidades presentes sin comprometer las de las generaciones futuras; y tiene el deber de preservarlo. El daño ambiental generará prioritariamente la obligación de recomponer, según lo establezca la ley

Las autoridades proveerán a la protección de este derecho, a la utilización racional de los recursos naturales, a la preservación del patrimonio natural y cultural y de la diversidad biológica, y a la información y educación ambientales.” (pp. 70 C1)

Tal como expresa el informe (C.3, pp. 152) el proyecto tendrá beneficios directos para toda la población del Partido y más allá de las recomendaciones enunciadas a cumplir esta Institución considera pertinente recomendar la implementación de las medidas de mitigación indicadas (minimización de pérdidas en la conducción y una utilización eficiente del agua en todos los sectores de la población), así como el monitoreo continuo de las diferentes etapas de construcción y operatividad del Acueducto; y destacar nuevamente la Metodología de la Audiencia Pública que garanticen la posibilidad de participación ciudadana.

Instituto de Estudios Urbanos CAPBA IX

SUSTENTABILIDAD 37

Villas y asentamientos

El estado del Acceso Justo al Hábitat en General Pueyrredon

El Instituto de Estudios Urbanos del Colegio de Arquitectos de la Provincia de Buenos Aires Distrito IX ha venido registrando en un mapa digital los asentamientos precarios y villas del Partido.

38

INTRODUCCIÓN

Desde hace unos años el Instituto de Estudios Urbanos del Colegio de Arquitectos de la Provincia de Buenos Aires Distrito IX (IEU9) ha venido registrando en un mapa georreferenciado del Partido de General Pueyrredon distintos datos que hacen a su caracterización general. Entre dichos datos, y a pedido del trabajo desarrollado en colaboración con Mar del Plata entre Todos, Red de Monitoreo ciudadano -de la que el CAPBA IX forma parte- es que se han elaborado diferentes mapas de la localización de los asentamientos precarios y las villas de emergencia de diferentes fuentes.

Cabe mencionar que si bien se los suele denominar de la misma manera existen diferencias entre ambos términos. Las villas se producen por la ocupación irregular de tierra urbana vacante, respondiendo a prácticas individuales, diferidas en el tiempo y que dan cuenta de su precaria materialidad. Por lo general, poseen alta densidad y buena localización respecto a los centros de producción y consumo. Mientras, que los asentamientos precarios están constituidos por predios en vías de regularización, en donde quienes los habitan no lo perciben como una solución habitacional transitoria, sino como una mejora a largo plazo; que buscan mediar con el Estado su legitimación, su oportunidad de ser propietarios.

REGISTRO PÚBLICO DE VILLAS Y ASENTAMIENTOS DE LA PROVINCIA DE BUENOS AIRES

Asimismo, en los últimos días se han difundido masivamente datos actualizados en distintos medios periodísticos del Registro Público de Villas y Asentamientos emitido por la Subsecretaría Social de Tierras, Urbanismo y Vivienda, el que fuera creado a instancias de la Ley de Acceso Justo al Hábitat (art. 28º). El Registro, tal como se expresa en la página web del organismo: “es una iniciativa para publicar información del déficit urbano-habitacional y de las distintas intervenciones públicas referidas a procesos de regularización urbana y dominial, producción de loteos sociales, financiamiento de programas habitacionales, planes de integración socio-urbana y demás acciones en materia de mejoramiento habitacional”.

Recientemente se ha introducido una modificación a dicha normativa en su articulado, por la cual los barrios registrados recibirán una protección por el término de un año en el que se suspenderán los juicios de desalojo; incorporando en esta oportunidad, además, un artículo que vincula con el Código Procesal Civil y Comercial provincial pertinente por el cual el juez antes de ordenar el desalojo de familias que habiten en una villa o asentamiento precario "deberá oficiar al Ministerio de

Infraestructura de la Provincia de Buenos Aires a fin de constatar si dicha villa o asentamiento está incluido en el Registro Público".

En este registro se menciona que actualmente, en el caso de la Provincia de Buenos Aires, existen 854 asentamientos precarios, 415 villas y 316 sitios signados en la categoría de “otros”, habitando en ellas 419.000 familias. De este total se distribuyen 1.134 villas y asentamientos en el conurbano y 451 en el interior. Es decir, el 28% del total.

En lo que respecta a su distribución la mayor cantidad se encuentra en la capital, La Plata, con 129, y le siguen los asentamientos localizados en los Municipios del conurbano bonaerense los que concentran un total de 1134 villas mientras que en el interior sólo existen 451. La localidad con mayor cantidad es La Matanza, en donde residen más de 2 millones de personas, con 115. Le siguen: Almirante Brown, 78; Lomas de Zamora 64; Florencio Varela 66; Quilmes 65; Avellaneda 44; Esteban Echeverría 38; Lanús 31; Berazategui 17.

En lo que respecta al interior bonaerense en cantidad de emplazamientos de este tipo se encuentra Mar del Plata, con 80 villas y asentamientos precarios; le siguen, Bahía Blanca, con 32; Zárate, con 22; Pergamino y Escobar, con 20; San Pedro y Berisso, con 18; Ensenada, con 17; San Nicolás, con 15; y Necochea, con 12. Si bien es necesario asociar estos números a los totales de población que residen en dichas ciudades y en este caso la ciudad de Mar del Plata se encontraría en el 4º lugar.

CIUDAD
capba IX DESARROLLO URBANO SUSTENTABLE 39

LAS VILLAS Y LOS ASENTAMIENTOS EN LA CIUDAD DE MAR DEL PLATA

Según el trabajo realizado desde el IEU, hacia mediados del año 2015, este tipo de nucleamientos ascendían a 103 en los cuales residían 8.361 familias, ocupando un total de 346, 25 has. (Tabla anexa con datos y mapa georreferenciado) Mientras que en el trabajo comparativo del Relevamiento de la ONG sin Techo 2013 y 2016 se detallan 37 registros en ambos años con algunas pequeñas variaciones.

Actualmente, cinco (5) asentamientos han iniciado el proceso de regularización: La Herradura (24), Villas (36 y 38); Villa de Paso (81) y Villa Evita (93), en diferentes marcos legales: La Ley nº 24374 los tres primeros –conocida como Ley Pierri-; la Ley de Expropiación nº 13158 el cuarto, y por último, la Ordenanza MGP nº 19995 declaración de utilidad pública sujeta a expropiación. Proyecto de urbanización de Villa Evita (Ord. Nº 19994). Red de agua y cloacas. (En paréntesis se indica el número de referencia en la planigrafía georreferenciada)

En la información disponible en el sitio web de la Subsecretaría no se registra cómo que se ha iniciado el Plan de Escrituración dominial al barrio Nuevo Golf, trámite que según datos del Instituto de la Vivienda ingresara con fecha dic-2015. En dicha información se refiere que más de 60 viviendas estaban incorporadas al Plan de Escrituración y otras viviendas del Partido de General Pueyrredon están en similares condiciones de escriturar. (Partido de General Pueyrredon http://www.vivienda.mosp.gba.gov.ar/varios/diciembre2015/ GENERAL%20PUEYRREDON.pdf)

Hacia mediados del año 2016 en la Comisión de Obras del Concejo Deliberante se ha analizado como incorporar este Barrio a la regularización dominial. La urbanización fue iniciada por la firma Cabo Corrientes S.A. la que proyectó el loteo y la comercialización de tierras y por diversas circunstancias fueron apareciendo inconvenientes que derivaron en la actual situación. Por el momento el déficit habitacional continúa incrementándose y sin que se vislumbren soluciones ni propuestas integrales a la vista en una ciudad con una alta capacidad ociosa de vivienda durante todo el año. El Estado, en sus diferentes estamentos, aún no ha encontrado los medios para articular los intereses de los diferentes actores que operan sobre esta problemática y los datos registrados no parecieran reflejar la vasta realidad local, en la que según datos de investigadores de la universidad pública existen más de 200 asentamientos y villas en la ciudad.

Ver documento completo y anexos gráficos en: http://ieu9capba.wixsite.com/ieu9/ relevamiento-asentamientos-mdq

40
Arq. Adriana B. Olivera y Arq. Julia A. Romero Mapeo georreferenciado realizado por el Arq. Alejandro Nicolini Instituto de Estudios Urbanos CAPBA IX

Una mirada socio-espacial a los presupuestos de Obras Públicas

El caso de la V Sección Electoral y la región del Distrito IX

PRIMERA PARTE

Durante los últimos meses se han debatido, y finalmente aprobado, los presupuestos de recursos y gastos de las jurisdicciones nacional y provincial que incluyen las partidas destinadas a obras públicas de diferente escala y envergadura. El Instituto de Estudios Urbanos ha analizado la composición de estos presupuestos y su impacto en la Quinta Sección Electoral, región de competencia del Distrito IX, a través de una mirada socio-espacial y de la función social de estos instrumentos presupuestarios. En esta edición de Info CAPBA IX publicamos la primer parte de este análisis abordando el presupuesto nacional 2017.

El presente informe centra su descripción y análisis en los montos destinado a la Ejecución de Obras incluidos en los Presupuestos 2017. En el caso nacional, que se aborda en este primer informe, el procesamiento de análisis multivarial socioespacial (BUZAI, 2003) se ha realizado agrupando los montos de Obra por la división político-administrativa de Provincias y otros apartados, y valorándolo en relación a la población

residente según datos del Censo INDEC 2010. En el caso del nivel provincial, el cual se presentará en la próxima edición de esta publicación, la cuantificación se ha agrupado por Distritos Electorales, asociándose como en el caso nacional con igual metodología de análisis los que relacionan montos de inversión con tamaño poblacional de los diferentes Partidos.

42

EL PRESUPUESTO NACIONAL y SUS OBRAS

La construcción, expresan algunos especialistas, es el mejor medio de acción social y ha tenido un incremento en el PBG de la PBA, que pasó del 3,1% para el año 2004 al 4,9% para el 2015.1

El Presupuesto Nacional de Obras 2017 previsto de realizar, y que fuera presentado el 15-sep-2016 y aprobado por el Congreso por Ley nº 27431 el 16-nov-2016-, anuncia una inversión total para el país que asciende a la suma de $51.275.900.236, y para los próximos años esta inversión se incrementará en un 363% lo que implicará una inversión de Obras del Estado Nacional que ascenderá a la suma de $175.036.838.290. Este valor representa un aumento del 43% de la inversión en obra pública, según refieren desde el Ministerio del Interior en la presentación ante la Cámara de Diputados.

Es un Programa de Obra Pública y cuyas principales prioridades de obras en el campo de infraestructura para el Plan 2016- 2019 es el de generar crecimiento y desarrollo, Estas prioridades son2:

a) El Plan Nacional de Agua y Saneamiento3 (PNAPyS) orientado a mejorar la calidad de vida de las personas y el acceso a los servicios básicos y a tener un nivel de cobertura del 100% en agua potable, hoy Argentina tiene el 83%, y del 75% en cloacas en áreas urbanas, hoy se cuenta con un 45%, para el período 2016- 2019 en donde se estima cumplir con un 40% del objetivo. Para cubrir el déficit actual se instalarán 55.000 km de tuberías para la provisión de agua potable y 30.000 km para cloacas; (Mapa

1. Obras de saneamiento y agua. Fuente: subsecretaria de recursos hídricos / La Nación).

b) El Plan Nacional de Transporte cuyo objetivo principal es equilibrar la matriz de transporte de carga aumentado el transporte ferroviario y fluvio- marítimo, en aras de mejorar la logística regional e impulsar a las cadenas

1  La estructura del PBG que ha sido elaborada en base a DPE e INDEC por Gutiérrez Cabello (2016), pp. 9, quien además analiza las variaciones que el PBG ha tenido entre el período 2014 al 2015.

2  En este apartado solo se mencionan las principales Obras materiales, pero en el comunicado se refiere a otras prioridades referidas a cuestiones: de salud; de pobreza cero; la asignación universal por hijo, etc.

3  La Misión del Plan del Agua comprende: a) Proveer de agua potable y saneamiento a todos los habitantes del país; b) Proteger a la población frente a las inundaciones y las sequías; c) Promover el desarrollo productivo teniendo como base el riego; y d) Ejecutar proyectos de aprovechamiento y preservación de recursos hídricos. Mayor desarrollo del Plan disponible en: https://www.mininterior. gov.ar/plan/plandelagua.php.

de valor del interior. Asimismo construir 2.800 km. de autopistas;

c) La Red de Expresos Regionales (RER) que agilizará el transporte y descomprimirá el tránsito de superficie;

d) La mejora de la infraestructura social donde sobresale la construcción de Jardines Maternales;

e) El Plan Nacional de Vivienda el que prevé una solución para cada tipo de familia, previendo la construcción de 120.000 viviendas nuevas y la entrega de 175.000 créditos subsidiados, que incluye los Créditos Pro.Cre.Ar. en los próximos 3 años;

f) El Plan Belgrano destinado a las Provincias del Norte y cuyo objetivo es ser “el plan más ambicioso de la historia Argentina”;

g) La Construcción de los Centros Penitenciarios Federales;

h) El Diseño, construcción, lanzamiento y Operación de dos satélites de órbita polar; y

i) Los Emprendimientos Hidroeléctricos. (2017:3 a 11)

EL PRESUPUESTO NACIONAL PARA LA PROVINCIA DE BUENOS AIRES

El Presupuesto Nacional 2017 (PN 2017) contiene 3 columnas con datos cuantitativos del monto de inversión de obras. En la 1º columna se detallan las Fuentes Internas; en la 2ª columna las Fuentes Externas; y en la tercera columna, suma ambas Fuentes de Financiamiento.

Asimismo, se han agrupado las obras en cinco apartados de acuerdo el destino de las Obras, sean: Provinciales, Interprovinciales; Nacionales; Binacionales y No Clasificadas; y, además, se encuentran desagregado por Ministerio. En esta presentación sólo se hace referencia a las obras de forma directa ya que de los últimos cuatro apartados no se especifica en el Presupuesto los destinos directos por lugares o Provincias.

Los montos totales de Obras previstos de realizar en el PN 2017 son los siguientes:

Cuadro 1. Monto de Obras Plan Nacional 2017

Fuente: elaboración propia en base a Ley Nacional nº 27431/2017. Arq. Adriana B. Olivera

Del total de las inversiones que se realizarán en el país, la Provincia más beneficiada es la de Buenos Aires con un monto total de inversión del 31% ($15.890.275.475) del total del PN

OBRAS PÚBLICAS
FUENTES INTERNAS FUENTES EXTERNAS TOTAL GENERAL montos expresados en pesos ($) CABA y PROVINCIAS 38.894.159.6045.078.597.70943.972.757.313 INTERPROVINCIAL 5.632.738.32928.870.4216.661.608.750 NACIONAL 1.280.794.86422.026.7221.302.821.586 BINACIONAL 200.547.991134.145.034334.693.025 NO CLASIFICADO 4.019.562 4.019.562 total 46.012.260.3505.263.639.88651.275.900.236
capba IX DESARROLLO URBANO SUSTENTABLE 43
Mapa 1. Obras de saneamiento y agua. Fuente: subsecretaria de recursos hídricos / La Nación.

2017, y le siguen las Provincias de Río Negro (6,6%); la Ciudad de Buenos Aires (5,1%); Córdoba (4,8%) y Jujuy (3,7%). Mientras que las que menos aportes de inversión monetaria recibirán son las Provincias de: Misiones (1,1%); Tierra del Fuego, Antártida e Islas del Atlántico Sur (1,0%); Catamarca (0,6%); Santa Cruz (0,5%); y Santiago del Estero (0,5%).

Fuente: Elaboración Propia en base al Presupuesto Nacional 2017. Arq. Adriana B. OLIVERA.

Cuadro 2. Monto de Obras Plan Nacional 2017. Desagregado por Apartado.

Otra forma de analizarlo es refiriéndolo al monto destinado por habitante ($/hab), y bajo esta mirada cuantitativa las Provincias de: Río Negro ($5.328), Tierra del Fuego ($4.147); Chubut ($3.481); Neuquén ($2.859) y Jujuy ($2.823) son las que más reciben per cápita. Mientras que los menores ingresos se darán en la Provincias de: Córdoba ($746); Tucumán ($599); Santa Fe ($537); Misiones ($493); y Santiago del Estero ($280). Ahora bien, si se relaciona el monto de la inversión con el total de la población censada por Provincia (INDEC 2010) algunas de estas relaciones se ven alteradas dada la baja cantidad de población que algunas de nuestras provincias tienen. El análisis multivarial socio- espacial nos permite decir que la Provincia de Buenos Aires es la más beneficiada; y le siguen las Provincias de Santa Cruz; Tierra del Fuego, Antártida e Islas del Atlántico Sur; Catamarca; y La Pampa. Es decir, que transforman esta relación las Provincias de: Catamarca y Tierra del Fuego, Antártida e Islas del Atlántico Sur. Mientras que las más desfavorecidas son Chubut; Mendoza; Jujuy; Santa Fe; y Río Negro. (Mapa 2- Análisis Multivariado Presupuesto Nacional en relación a la Población por Provincia).

NOTA: En el análisis multivarial socio- espacial se ha graficado sólo el monto de obras previstos de realizar en las Provincias, ya que de los últimos cuatro apartados no se especifica su distribución territorial, siendo este faltante del 14% del total del Presupuesto 2017.

PROVINCIA FUENTES INTERNAS FUENTES EXTERNAS GENERAL POBLACIÓN 2011 ÁREA (km2) CABA $ 2.415.776.044 $ 200.083.324 $ 2.615.859.368 2.890.151 200 BUENOS AIRES $ 13.315.271.006 $ 2.575.004.469 $ 15.890.275.475 15.625.084 307.571 CATAMARCA $ 249.601.723 $ 55.518.801 $ 305.120.524 367.828 102.602 CÓRDOBA $ 2.394.927.906 $ 73.506.649 $ 2.468.434.555 3.308.876 165.321 CORRIENTES $ 741.767.707 $ 42.317.076 $ 784.084.783 992.595 88.199 CHACO $ 1.088.072.254 $ 116.086.795 $ 1.204.159.049 1.055.259 99.633 CHUBUT $ 1.663.335.725 $ 108.973.752 $ 1.772.309.477 509.108 224.686 ENTRE RÍOS $ 1.335.732.173 $ 55.703.925 $ 1.391.436.098 1.235.994 78.781 FORMOSA $ 619.499.536 $ 60.781.820 $ 680.281.356 530.162 72.066 JUJUY $ 1.600.461.313 $ 300.608.721 $ 1.901.070.034 673.307 53.219 LA PAMPA $ 618.422.504 $ 9.197.183 $ 627.619.687 318.951 143.440 LA RIOJA $ 757.372.535 $ 69.754.320 $ 827.126.855 333.642 89.680 MENDOZA $ 1.422.505.233 $ 418.364.706 $ 1.840.869.939 1.738.929 148.827 MISIONES $ 472.542.342 $ 70.623.579 $ 543.165.921 1.101.593 29.801 NEUQUÉN $ 1.505.806.790 $ 70.155.628 $ 1.575.962.418 551.266 94.078 RÍO NEGRO $ 3.152.159.142 $ 250.805.606 $ 3.402.964.748 638.645 203.013 SALTA $ 625.167.579 $ 114.317.988 $ 739.485.567 1.214.441 155.488 SAN JUAN $ 951.239.577 $ 94.635.260 $ 1.045.874.837 681.055 89.651 SAN LUIS $ 716.111.115 $ 11.511.120 $ 727.622.235 432.310 76.748 SANTA CRUZ $ 215.708.048 $ 56.854.286 $ 272.562.334 273.964 243.943 SANTA FE $ 1.712.151.476 $ 4.280.235 $ 1.716.431.711 3.194.537 133.007 SGO. DEL ESTERO $ 225.675.832 $ 19.420.840 $ 245.096.672 874.006 136.351 TUCUMÁN $ 605.164.160 $ 262.307.333 $ 867.471.493 1.448.188 22.524 T. DEL FUEGO, ANTÁRTIDA e ISLAS SUR $ 489.687.884 $ 37.784.293 $ 527.472.177 127.205 1.002.445 subtotal provincias $ 38.894.159.604 $ 5.078.597.709 $ 43.972.757.313 INTERPROVINCIAL $ 5.632.738.329 $ 28.870.421 $ 5.661.608.750 NACIONAL $ 1.280.794.864 $ 22.026.722 $ 1.302.821.586 BINACIONAL $ 200.547.991 $ 134.145.034 $ 334.693.025 NO CLASIFICADO $ 4.019.562 $ - $ 4.019.562 total PN 2017 $ 46.012.260.350 $ 5.263.639.886 $ 51.275.900.236
Mapa 2. Análisis Multivariado Presupuesto Nacional | Población por Provincia
capba IX DESARROLLO URBANO SUSTENTABLE 44

EL PRESUPUESTO NACIONAL EN LA V SECCIÓN ELECTORAL DE LA PROVINCIA DE BUENOS AIRES

Por último, en particular, se han desagregado los montos de obras incluidas de ejecutar en la V Sección Electoral4. Del monto total de inversión destinado a la Provincia de Buenos Aires, que casi alcanza los 16 mil millones de pesos ($15.890.275.475), la V Sección Electoral recibirá el 4,2% ($663.282.263). En conjunto son 21 obras directas para los 27 Partidos, las que fundamentalmente se concentran en el Partido de General Pueyrredon, en donde se destinarán 7 obras, que en total representa el 60,4% ($400.805.348) de dicho monto.

Cuadro 3. Obras del Presupuesto Nacional para el V Distrito Electoral de la PBA

4  La V Sección Electoral está conformada por 27 Partidos de la Provincia de Buenos Aires; y estos son: Ayacucho; Balcarce; Castelli, Chascomús; Dolores, General Alvarado; General Belgrano; General Guido; General Lavalle; General Madariaga; General Paz; General Pueyrredon; La Costa; Las Flores, Lezama; Lobería; Maipú; Mar Chiquita, Monte; Necochea; Pila; Pinamar; Ranchos; Rauch, San Cayetano, Tandil; Tordillo y Villa Gesell.

OBRAS PÚBLICAS
JURISDICCIÓN PARTIDO PROYECTO FUENTES INTERNASFUENTES EXTERNAS GENERAL ORGANISMO OBRA SUBTOTAL SUBTOTAL AYACUCHO $ - $BALCARCE $ - $CASTELLI $ - $CHASCOMÚS M. de Educación y Dep. Construcción de Jardín N° 908 $ 9.154.229,00 $ - $ 9.154.229,00 DOLORES $ - $ - $GRAL. ALVARADO Ministerio de Educación y Deportes Construcción de Jardín N° 901 en Miramar $ 9.154.229,00 $ - $ 9.154.229,00 Ministerio de Educación y Deportes Construcción de Jardín N° 906 en Miramar $ 9.154.229,00 $ - $ 9.154.229,00 Ministerio de Educación y Deportes Construcción de Jardín en Miramar, Bº Oeste $ 9.154.229,00 $ - $ 9.154.229,00 GRAL. BELGRANO $ - $ - $GENERAL GUIDO $ - $ - $GENERAL LAVALLE $ - $ - $GRAL. MADARIAGA $ - $ - $GENERAL PAZ M. de Educación y Dep. Construcción de Jardín B° Obrero $ 9.154.229,00 $ - $ 9.154.229,00 GENERAL PUEYRREDON Ministerio del Interior, Obras Públicas y Vivienda Restauración y Puesta en Valor del Conjunto Edilicio Instituto Saturnino Unzué $ 80.000.000,00 $ - $ 80.000.000,00 Ente Nacional de Obras Hídricas de Saneamiento Construcción de Sistema de Acueducto Oeste (PAYS II) $ - $ 2.375.000,00 $ 2.375.000,00 Ente Nacional de Obras Hídricas de Saneamiento Estación Depuradora de Aguas Residuales (BID 2343) $ - $ 225.783.667,00 $ 225.783.667,00 Gendarmería Nacional Construcción Hangar Estación Aérea $ 25.186.320,00 $ - $ 25.186.320,00 Ministerio de Turismo Saneamiento Basural a Cielo Abierto Existente GISU BID Nº 3249/OC-AR $ - $ 41.200.000,00 $ 41.200.000,00 Ministerio de Transporte Construcción de Espigones VIII y IX - Puerto $ 25.000.000,00 $ - $ 25.000.000,00 Ministerio de Salud Instalación Sistema de Ventilación en Laboratorio del Instituto Nacional de Epidemiología (INE) $ 1.260.361,00 $ - $ 1.260.361,00 LA COSTA Ministerio de Ambiente y Desarrollo Sustentable Construcción de 2 viviendas para Guarda parques, Parque Nacional campos del Tuyú $ 549.530,00 $ - $ 549.530,00 Ministerio de Ambiente y Desarrollo Sustentable Mejoras e Infraestructuras en PN Campos del Tuyú $ 4.074.445,00 $ - $ 4.074.445,00 LAS FLORES Ministerio de Transporte Autopista Ruta Nac. Nº 3, Cañuelas, Azul Sección Acceso Gorchs Las Flores $ 75.177.046,00 $ - $ 75.177.046,00 Ministerio de Transporte Autopista Ruta Nac. Nº 3, Sección Las Flores - Cachari $ 56.192.062,00 $ - $ 56.192.062,00 LEZAMA M. de Educación y Dep. Construcción de Jardín Nº 901, Lezama $ 9.154.229,00 $ - $ 9.154.229,00 LOBERÍA $ - $ - $MAIPÚ $ - $ - $MAR CHIQUITA $ - $ - $MONTE Ministerio de Educación y Deportes Construcción de Jardín en Monte, Bº Las Salinas $ 9.154.229,00 $ - $ 9.154.229,00 NECOCHEA Ministerio de Transporte Acortamiento Escollera Norte Puerto Quequén $ 50.000.000,00 $ - $ 50.000.000,00 PILA $ - $ - $PINAMAR Ente Nacional de Obras Hídricas de Saneamiento Construcción de Planta de Desagües Cloacales $ 3.250.000,00 $ - $ 3.250.000,00 RAUCH $ - $ - $SAN CAYETANO $ - $ - $TANDIL M. de Educación y Dep. Construcción de Jardín Bº La Movediza $ 9.154.229,00 $ - $ 9.154.229,00 TORDILLO $ - $ - $VILLA GESELL $ - $ - $Total Distrito Electoral $ 393.923.596,00 $ 269.358.667,00 $ 663.282.263,00 Total Provincia de Buenos Aires $ 13.315.271.006,00 $ 2.575.004.469,00 $ 15.890.275.475,00
Fuente: Elaboración personal en base a datos de Ley Nacional nº 27431. arq. Adriana B. OLIVERA
capba IX DESARROLLO URBANO SUSTENTABLE 45

Asimismo, con igual metodología de análisis multivarial socio- espacial en donde se relaciona monto de obra con población es posible decir que los Partidos más beneficiados que componen la V Sección Electoral son: Tordillo; General Lavalle; General Madariaga; Castelli y Rauch; y los que menos beneficiados son: Tandil; Necochea; La Flores; La Costa y General Pueyrredon. (Mapa 3. Análisis Multivarial de la Inversión en Obras por Partido de la 5º Sección Electoral en relación a la Población)

POLÍTICAS PÚBLICAS y MODELOS DE GESTIÓN

Las políticas públicas territoriales podemos definirlas como aquellas decisiones que desde el Estado se implementan con el objetivo de regular para el bien común las actividades que sobre su ámbito jurisdiccional se demandan. Estas decisiones, en tanto directrices político- ideológicas de la administración

de turno, se implementarán como soporte de los “modelos de gestión” públicos.

Existe consenso respecto de las consecuencias que surgieron del reciente proceso de incorporación de nuevas competencias en los municipios bonaerenses, la redefinición de sus roles y del cambio en las estrategias de intervención que comenzaron a coexistir entre los tres estamentos públicos.

A la hora de definir las “nuevas competencias”, se menciona el papel del municipio como agente de promoción económica; el cuidado del ambiente y el mejoramiento de la calidad ambiental; pero las dos nuevas incumbencias municipales que fueron adquiriendo gravitación creciente -hasta hace poco prestados con exclusividad por el ámbito provincialson la seguridad y la salud. Efecto directo de los impactos de la políticas neo conservadoras de los ’90. Estas dos nuevas competencias indudablemente fueron adquiriendo relevancia primaria llegando incluso en varios municipios a demandar más de la mitad del presupuesto anual ejecutado.

Sin embargo, la fragilidad de este proceso de descentralización de competencias derivó de la falta de descentralización tributaria. Al aumentar el gasto y las transferencias, los municipios redujeron la correspondencia fiscal y los últimos datos disponibles indican que apenas pueden financiar con recursos propios menos del 50% de sus erogaciones (promedio provincial). La autonomía restringida, la escala jurisdiccional, la ausencia de articulación regional, la falta de financiamiento y la debilitación progresiva de las estructuras organizacionales condicionan crecientemente a las gobernanzas municipales.

El ajuste de la coparticipación bonaerense desde la última reforma tributaria en compensación a los déficits de otras regiones nacionales es un tema de profundo debate, en particular porque el sistema de gestión estatal de asignación de recursos viene mutando –y confirmando hoy esta tendenciadesde los ‘90 hasta la actualidad.

La forma en que se desenvuelve la gestión pública del conjunto Nación- Provincias- Municipios, ha pasado de un modelo que suele denominarse como “dual” -en donde el ámbito nacional por un lado, y las provincias y municipios por otro, actuaban

46
Mapa 3. Análisis Multivarial de la Inversión en Obras por Partido de la 5º Sección Electoral en relación a la Población

de forma independiente– a otra conocida como “federalismo cooperativo o coordinado”, en el cual los tres niveles de Estado trabajan de manera conjunta.

Esta realidad, común en varios países federales, se internalizó a nuestra idiosincrasia fortaleciendo la voluntad decisional del estamento superior por sobre los provinciales, donde el escenario políticamente más sensible es la provincia de Buenos Aires.

El 25% de la población se concentra en el Gran Buenos Aires por lo tanto la asignación directa de recursos queda fuera de la órbita regional. Esta lógica obliga a los municipios a romper el sistema federal de responsabilidades gestionando en dos direcciones, interfiriendo la matriz vincular que debemos poseer con La Plata.

ALGUNAS REFLEXIONES FINALES

Este análisis inició cuando nos empezamos a preguntar acerca de cómo sería el impacto del presupuesto público en obras nuestro Distrito. Al sancionarse cada uno de los Presupuestos, en los diferentes estamentos de gobierno, las discusiones se focalizan fundamentalmente en el análisis fiscal y nada se discute acerca de la composición de las políticas públicas por finalidad, función, programa, proyectos de inversión, las políticas territoriales. Es decir, que primero deberían analizarse las políticas sectoriales y luego asignarse los recursos y gastos Esta forma de realizar los Presupuestos contradice la letra y el espíritu del art. 75º inciso 8 de la Constitución Nacional, la cual expresa:

8. Fijar anualmente, conforme a las pautas establecidas en el tercer párrafo del inc. 2 de este artículo, el presupuesto general de gastos y cálculo de recursos de la administración nacional, en base al programa general de gobierno y al plan de inversiones públicas y aprobar o desechar la cuenta de inversión. (CN: 1994)

Los diferentes Programas Generales y los Planes de Inversiones Públicas no suelen analizarse y la legislatura no interviene en las políticas sectoriales, y de ser así, tanto a nivel nacional como provincial la pregunta sería: ¿cómo asigna el Poder Ejecutivo el Plan de Inversiones Públicas en las Provincias, en los Partidos?

Si como viene ocurriendo en las últimas décadas la Provincia de Buenos Aire es la que más contribuye a la generación de producto nacional, como refiere la introducción del Presupuesto Provincial, a priori es simple enunciar acerca de lo desfavorable que resultan los montos que el Presupuesto Nacional destina a nuestra Provincia, en donde se pierden un 5% con este aporte.

Es claro, que lo que es necesario en la Argentina es un debate serio y profundo sobre el federalismo fiscal para que el sistema de transferencias intergubernamentales, en un país con enormes desequilibrios económicos, sociales y territoriales, permita que todos los habitantes tengan un acceso similar en cantidad y calidad de bienes públicos, independientemente del lugar donde vivan. Ese es el verdadero desafío de la coparticipación federal. (López Acotto; et al., 2016)

En este sentido, y si bien los datos revelados son elocuentes, el tema central es como distribuímos y priorizamos las finalidades presupuestarias.

El análisis de los números de las diferentes vertientes nos permiten concluir que si bien el Partido de General Pueyrredon es el 3º en lo que respecta a la concentración de población de la Provincia, después de La Matanza y La Plata, donde la mayor cantidad de Intendentes de igual color político de la Provincia y la Nación se encuentran, lo que tampoco ha sido un espaldarazo que nos haya beneficiado a todo el Distrito Electoral.

BIBLIOGRAFÍA y NORMATIVAS:

BUZAI, G. (2003): Mapas Sociales Urbanos. Lugar Editorial S.A., Buenos Aires.

CÁMARA ARGENTINA DE LA CONSTRUCCIÓN. ÁREA DE PENSAMIENTO ESTRATÉGICO (2015): Pensar el Futuro. Construcción y Desarrollo 2016- 2025. Disponible en www. camarco.org.ar/File/GetPublicFile?id=3648. (Consultado el 11-feb-2017).

DIRECCIÓN DE ANÁLISIS FISCAL (ASAP): Informe del Proyecto Presupuesto de la Adminsitración Nacional 2017. La estimación de recursos. Disponible en: http://www. asap.org.ar/wordpress/wp-content/uploads/2016/10/ infoproypptorecursos2017.pdf

GUTIÉRREZ CABELLO, Adrián (2016): Análisis del Producto Bruto Geográfico de la Provincia de Buenos Aires. Dic. Disponible en http://www.unsam.edu.ar/escuelas/ economia/economia_regional/Estudio_PBG.pdf. (Consultado el 11-feb-2017).

LÓPEZ ACCOTTO, A. MARTÍNEZ, C. y MANGAS, M. (2016): “Fondo del Conurbano, ¿miramos para adelante o para atrás?”, en Diario Página 12, Columna de Opinión de la Sección de Economía, publicado el 26-jul.

LEY DE PRESUPUESTO NACIONAL nº 27431

COMUNICADO DE PRENSA DE LOS ASPECTOS RELEVANTES DEL PROYECTO DE PRESUPUESTO DE LA ADMINISTRACIÓN NACIONAL (2017)

Arq. Adriana B. Olivera

Arq. Martín Sarasibar Georreferenciación: Arq. Alejandro Nicolini

Instituto de Estudios Urbanos CAPBA IX (IEU9)

OBRAS PÚBLICAS capba IX DESARROLLO URBANO SUSTENTABLE 47

Excepciones sobre los inmuebles de valor patrimonial

Gestiones del CAPBA IX ante la Municipalidad de Gral. Pueyrredon

El Colegio de Arquitectos de la Provincia de Buenos Aires Distrito IX, ve con preocupación los pedidos de excepción que se elevan al HCD para la construcción de edificios en predios de inmuebles declarados de interés patrimonial. En los últimos meses diversos casos han cobrado estado público alertando a la ciudadanía y a las instituciones. Por esto mismo el CAPBA IX ha realizado gestiones ante el Municipio a fin de poner en relieve la urgencia de atender a estos temas más allá de las excepciones.

La opinión pública ha conocido en los últimos meses las tramitaciones ante la municipalidad que realizan propietarios de bienes patrimoniales con el fin de lograr permisos de construcción en inmuebles protegidos por el Código de Preservación Patrimonial del municipio. En particular los casos del chalet Ave María, la Villa Santa Paula y la Villa Lococo, avivaron el tema nuevamente y alertaron a la ciudadanía que expresó su opinión por distintos medios.

Para el CAPBA IX los casos mencionados (que podrían ser estos u otros), hablan claramente de metodologías que demoran la cuestión de fondo: la revisión del Código de Preservación Patrimonial en el marco de la reforma del COT. Primeramente la vía de excepción utilizada fue la desafectación de aquellos inmuebles cuyo Distrito Urbano de emplazamiento permite indicadores de construcción altos y que se hallan bajo impedimento de ser aprovechados al máximo debido a la declaratoria patrimonial, de forma tal que desafectado el inmueble, el predio vuelve a adquirir los indicadores normales del Distrito con una mayor capacidad edificatoria (a modo de ejemplo de esto podemos mencionar el caso del chalet Rodríguez Etcheto ubicado en Catamarca esquina Av. Colón).

Luego la vía de excepción adquirió otro cariz; el de lograr el permiso excepcional de construcción en los amplios parques circundantes a los bienes declarados de interés patrimonial, completando de ese modo la capacidad constructiva del lote para lo que se necesita la asignación de indicadores y normas

de tejido especiales. De esta manera, se argumenta proteger el bien patrimonial (pero no integralmente, ya que se resienten los espacios verdes característicos de cada propiedad que dan calidad ambiental al bien y esa zona de la ciudad) y a la vez beneficiar al propietario del inmueble que tiene restringidas las posibilidades de uso del bien.

En este contexto, no es menor el argumento de favorecer la industria de la construcción en áreas centrales de la ciudad dotadas de todos los servicios, y en una coyuntura económica que entendemos merece la instrumentación de criterios generales por sobre los particulares y una firme determinación del Estado de generar condiciones plenas de desarrollo en todo el territorio de General Pueyrredon.

Desde la institución Colegial (y así lo hemos hecho saber el Ejecutivo Municipal) creemos que las vías de excepción -si bien son leAgales y factibles, se han convertido en mecanismo de rutina, y esto no hace más que demorar la revisión y actualización del Código de Preservación Patrimonial y la determinación de herramientas normativas claras para estos casos. A la luz de los ejemplos mencionados y tantos otros, es manifiesto que la norma precisa ser modificada; que debe fijarse una postura crítica y a la vez contemplativa de las distintas necesidades con herramientas genuinas que garanticen la preservación del patrimonio, algo que a la fecha se muestra más como un mero enunciado con resoluciones particularizadas que una política de práctica generalizada.

capba IX DESARROLLO URBANO SUSTENTABLE 48

El Colegio de Arquitectos ha realizado pedidos al municipio en diferentes oportunidades (nota formal marzo de 2016, publicaciones en medios locales manifestando la opinión institucional en septiembre del mismo año, presentación en enero de 2017), solicitando la revisión de la Ordenanza 10075 Código de Preservación Patrimonial, en forma conjunta con instituciones y actores relacionados con la temática patrimonial, es decir convocando a una Comisión que, de por sí, establece el mismo Código en su artículo 20°. Dichos reclamos se amparan en la Ordenanza registrada bajo el nº O-16747, del 13-11-2015, por medio de la cual se anima a la conformación de la comisión referida.

Hasta el momento no se convocó a la misma ni se generó una mesa de diálogo para promover la actualización o modificación de la ordenanza. Es imperiosa la revisión del listado de inmuebles declarados de interés patrimonial y la definición de Áreas de Protección Patrimonial (APP) ya previstas en el Plan de Gestión Territorial del año 2010; asimismo deben revisarse las facultades de la Comisión Honoraria y del Área de Preservación del Patrimonio del Municipio, que contando con profesionales altamente capacitadas, sus recomendaciones y decisiones resultan no vinculantes y no se las atiende debidamente.

Por todo esto, el CAPBA D.IX solicitó durante enero de 2017 al Secretario de Planeamiento Urbano, la conformación de la Comisión Evaluadora del Código de Preservación Patrimonial, espacio de trabajo integrado por los diversos sectores involucrados y los colegios profesionales, y articulado por la SPU. De este modo se daría comienzo al -hasta ahora anunciado pero incumplido- trabajo de modificación de la Ordenanza 10075 en el marco de la discusión mayor de reforma del Código de Ordenamiento Territorial y de la efectivización del Plan Estratégico Mar del Plata-Batán, favoreciendo así la tan anhelada planificación integral de ciudad.

Dicho pedido que se hiciera público en los medios locales, no ha contado aún con respuesta por parte de funcionarios del municipio.

Por otra parte, días más tarde y ante el tratamiento en la Comisión de Obras del HCD del Expediente 2314-D-2016 referido al otorgamiento de las excepciones solicitadas por la Secretaría de Planeamiento Urbano, sobre plano límite y eximición del requisito de estacionamiento vehicular, para su posterior aprobación, el CAPBA IX presentó formalmente y por escrito ante el cuerpo de ediles, su consideración. En ella se expresó que el caso mencionado, previo a ser sometido a votación requería de un mayor estudio debido a que el análisis que se desprende del expediente manifiesta inconsistencias; es decir, se considera que no están dadas aun las instancias adecuadas para su resolución, debiéndose otorgar más tiempo a su estudio.

En la misma oportunidad el CAPBA IX reiteró el pedido realizado en ocasiones previas, sobre la necesidad y conveniencia de convocar a la Comisión Honorífica contemplada en el Art.20º del Código de Preservación Patrimonial, Ord. 10.075 para atender estos casos especiales que requieren excepción al código, dando así participación a actores externos a la Municipalidad de Gral. Pueyrredon cuya opinión es importante conocer.

Estas actuaciones las lleva adelante el CAPBA D.9 conforme lo establecido en la Ley Nº10405, art. 26º inc.7) que indica el deber colegial de "asesorar a los poderes públicos, en especial a las reparticiones técnicas oficiales, en asuntos de cualquier naturaleza relacionados con el ejercicio de la profesión de arquitecto", e inc.21) "emitir opinión y formular propuestas sobre cuestiones relacionadas con el ámbito de la actividad profesional y con análisis de problemas del medio y la comunidad."

Desde el CAPBA D.IX anhelamos una pronta convocatoria para trabajar conjuntamente con el Municipio y actores representantes de diversos sectores, brindando aportes al preocupante tema patrimonial en el partido de Gral. Pueyrredon.

PATRIMONIO
capba IX DESARROLLO URBANO SUSTENTABLE 49
Mesa Directiva CAPBA IX

Esplendor Moderno

El edificio Terraza Palace del Arq. Antonio Bonet

La posibilidad de almorzar en un jardín flotante frente al mar parece ser el producto de un sueño onírico o una ilusoria estrategia de venta, pero es en realidad el proyecto que hace Antonio Bonet para resolver una propuesta de vivienda colectiva en la costa de Mar del Plata.

El desafío propositivo al que se enfrentó el autor contemplaba la escala urbano-arquitectónica, a la que propone resolver a través de una fusión de dos tipologías distantes como son la casa con patio y el departamento de propiedad horizontal. En sus propias palabras: “pretendo realizar un tipo de obra totalmente nueva, muy adecuada a la vida de Mar del Plata, ya que intenta realizar una síntesis entre la casa y el departamento sumando ventajas.”

En Marzo de 1957, Bonet presenta su primer anteproyecto a la Dirección de Arquitectura de la Provincia de Buenos Aires, producto de esta fusión. Si bien respetaba la Ley 4739/39 de Urbanización de Playas y Riveras respecto de alturas y retiros, los materiales propuestos para la obra no estaban contemplados en dicha ley.

A menos de diez años de vigencia de La ley de Propiedad Horizontal, existía una clara vacancia propositiva en la resolución de edificios en el frente costero en una ciudad que valoraba las soluciones de arquitectura pintoresquista, tanto para la resolución de vivienda individual, como en el perfil urbano resultante de la aplicación de dicha arquitectura.

Consciente del desafío que significaba la aceptación de esta tipología “…totalmente nueva…”, no sólo por ser portadora de una estética moderna, sino también por su adecuación a la reglamentación municipal-provincial, decide presentar el anteproyecto para ser verificado ante ambas instancias de gobierno.

Resulta interesante hacer una evaluación de este anteproyecto, que difiere parcialmente con el proyecto construido, resultado de una ardua gestión ante las autoridades municipales y provinciales.

Presentado en un dibujo a mano alzada, el anteproyecto contiene una alta definición de sus componentes, dimensionado en plantas, cortes y vistas, y equipado en todos los ambientes por lo que resulta claro el destino de cada uno de ellos, precisando alturas, distancias a línea municipal y medianeras; e incluyendo por ejemplo en la terraza del último piso, un sillón BKF (Bonet-KurchanFerrari Ardoy) que luego ubica como único equipamiento en el hall de planta baja.

En la propuesta se evidencia su adhesión al discurso Corbusierano:

- Planta baja libre sobre pilotes -en esta instancia no contaba con subsuelo de cocheras ni unidades de vivienda en planta baja-

- Separación entre la carpintería en el hall de acceso y la estructura portante.

- Carpinterías corridas y parasoles modulan su fachada principal, así como el escalonamiento en sus fachadas laterales definen su particular composición.

- Quinta Fachada, los jardines mediando entre la casa y el mar, representan la característica distintiva del Edificio dándole su nombre: Terraza Palace.

Posee una doble modulación. El frente costero tiene seis módulos de 7 metros, las fachadas laterales están divididas en cinco módulos de 3,50m, es decir una proporción 2-1. Esta matriz se completa con un plano inclinado que a partir de los 10 metros -altura permitida para el volumen saliente- y respetando un ángulo de 45º, comienza a escalonarse dando como resultado las fachadas laterales.

capba IX DESARROLLO URBANO SUSTENTABLE 50

Probablemente el mayor desafío de este anteproyecto, no era la adhesión a las condiciones del discurso moderno, sino resolverlas en este lugar particular de Mar del Plata -Playa Grande-. El marcado desnivel del lugar nos da un indicio del respeto al topos en el que se ancla el proyecto, el vacío de sus linderos y la costa en general nos muestra la desafiante soledad de esta propuesta en el horizonte costero de la Mar del Plata de fines de los´ 50.

Si bien no fueron explicitados cuáles serían los atributos que aportarían cada una de las tipologías que se complementarían, seguramente la posibilidad de contar con un jardín propio en altura en un edificio de departamentos, es un indudable aporte de la vivienda individual.

El escalonamiento por niveles y la policromía de las fachadas hacen singular cada una de las unidades de vivienda, y al conjunto le otorgan diversidad producto de su simetría compleja.

El anteproyecto mantenía una medianera sobre la carafachada de la calle Primera Junta, pero el retiro de 1.65m en el proyecto definitivo permitió resolver ambas fachadas como planos de gran abstracción y valor plástico, además de poder ventilar e iluminar directamente.

El conjunto esta armado por tres núcleos verticales de dobles ascensores abasteciendo a dos departamentos por núcleo y de allí resultan seis unidades por planta, siendo la planta baja el único nivel de circulación horizontal que unen los núcleos verticales.

Todas las unidades forman parte de la gran fachada marítima, dado que se alinean en forma perpendicular a la misma. Esta solución obliga a utilizar patios intermedios

para resolver la iluminación de los dormitorios, resultando de una profundidad inusual los estares de las dos primeras plantas.

Como vimos, las restricciones de la Ley vigente afectan al proyecto en sentido transversal, retiro de la avenida costanera y alturas máximas. Pero esta reglamentación no propone restricciones en sentido longitudinal, por lo que resulta aceptable pensar en la continuidad del proyecto ya sea por la anexión de núcleos verticales de semipiso o por la repetición del bloque completo. Si bien esto no fue explicitado por el autor, no es difícil imaginar este prototipo como el inicio de una serie que nunca fue completada. Los motivos por los cuales esta propuesta no llegó a continuarse son múltiples, pero basta con recorrer la costa marplatense, para comprender el bajo rendimiento en términos inmobiliarios del proyecto, que no pretendía cambiar las relaciones productivas –capitalistas en relaciones simbólicas, sino constituirse en el fruto de un momento de esplendor moderno que permitía resolver un equipamiento mobiliario –BKF-, una particular vivienda individual en altura y un ambicioso programa urbanístico para la ciudad de Mar del Plata.

PATRIMONIO
capba IX DESARROLLO URBANO SUSTENTABLE 51

Se conocieron los resultados del Premio CAPBA 2016 a la Obra Construida, que contó con la participación de 221 estudios de toda la provincia. Los premios, entregados en noviembre pasado, en un acto celebrado en la Sede del CAPBA en la ciudad de La Plata. Profesionales del Distrito IX del CAPBA obtuvieron 7 premios en diversas categorías.

Premio Capba 2016

Obra Construida

La convocatoria 2016 al Premio CAPBA, destacó en sus bases que se trata de "una instancia de estímulo, debate y premiación para los arquitectos y una oportunidad de difusión de los logros, singularidades e innovaciones obtenidas en distintos campos de la actuación profesional."

En esta última edición del premio los participantes pudieron concursar en siete categorías que luego fueron agrupadas en cuatro grupos para su evalución por los jurados. Las categorías fueron: vivienda individual con límites medianeros parciales o totales; vivienda individual aislada; vivienda multifamiliar (planta baja más 3 niveles); vivienda multifamiliar (más de 4 niveles); edificios no residenciales (administrativos, equipamientos, comercios, arquitectura efímera); Intervenciones en obras de valor patrimonial/interés histórico-cultural; vivienda Pro.Cre.Ar.

Si bien los premios son honoríficos y no incluyen ningún tipo de compensación económica, la motivación es que la convocatoria anual permite visibilizar el esfuerzo de los estudios por lograr obras destacadas por su calidad arquitectónica, y generar reflexión personal, intercambio y aprendizaje. Asimismo los premiados tienen la oportunidad de difundir su obra a nivel provincial.

En esta nota damos a conocer todos los ganadores, y particularmente destacamos a los profesionales galardonados del Distrito IX.

52

CATEGORIA 1.- VIVIENDA UNIFAMILIAR E/ MEDIANERAS

El Jurado integrado por los Arqs. Matías de Luiggi, Adrián Sebastián y Jorge Moscato otorgó los siguientes premios.

Tercera mención: Autor: Arq. César Adrián Cozzolino – Distrito I. Colaboradores: Arqs. Valeria Pella / Romina Kuda / Cecilia Gómez Monroy.

Segunda mención: Autor / autores: FILM OBRAS DE ARQUITECTURA

Arqs. Carlos Fernández / Jorge Isaías / Gabriel Lanosa / Claudio MaslatDistrito IV. Colaboradores: Romina Aira/ Nicolás Waldman/Calculista: Pedro Gea.

Primera mención: Autores: Arqs. Martin Barreneche / Nicolás Saravi Cisneros/ Paula Violeta D´argenio / Federico Miguel García - Distrito I. Colaboradores: Arq. Valeria Cecilia Maugeri.

Primer premio: Autor / autores FILM OBRAS DE ARQUITECTURA Arqs. Carlos Fernández / Jorge Isaias / Gabriel Lanosa / Claudio MaslatDistrito IV. Colaboradores: Arq. Romina Aira/ Arq. Nicolás Waldman/ Calculista: Pedro Gea.

CATEGORIA 2.- VIVIENDA UNIFAMILIAR AISLADA

El Jurado integrado por los Arqs. Salvador Squillacioti y Mario Pérez otorgó los siguientes premios;

Menciones sin orden de mérito

Mención: Autor: Arq. Ariel Galera – Distrito IX. Colaboradores: Arq. Francisco Villamil. MMO Diego Ballario / MMO Cásar Amarante (Casa Álamos, Pinamar).

Mención: Autor: Arq. Antonio Carrasco - Distrito IX. Colaboradores: Arq. Juan Rubén Choque / Ing. Carlos Bereilh, estructura (Casa Nyds, Pinamar).

Mención: Autores: Arqs. Carlos Augusto Busso / Eloy Jorge Galarregui–Distrito I. Colaboradores: Srta. Florencia Merino.

Mención: Autor: Arq. Carolina Aiello - Distrito VI. Colaboradores: Arq. Tabora Leandra (autora) Arq. Aida Vargas / Ing. Cristian Gres / Ing. Adrián Arino.

Segundo premio: Autor: Arq. Luciano Kruk - Distrito III. Colaboradores: Ekaterina Kunzel / Josefina Pérez Silva /Andres Conde Blanco /Pablo Magdalena /Belén Ferrand /Denise Andreoli.

Primer premio: Autor / autores: Arqs. Carlos Ramón Galíndez / Santiago Alric /Federico Lloveras - Distrito IV Colaboradores: Srtas. Sofia Superti / Florencia Mosteiro / Natasha Rodriguez Mozetich.

CATEGORIA 3.- VIVIENDA MULTIFAMILIAR DE BAJA DENSIDAD

El Jurado integrado por los Sres. Arqs. Lisando González Ojinaga, José Solla y Santiago Aguerrebehere otorgó los siguientes premios:

Menciones sin orden de mérito

Mención: Autores: Arqs. Mauro Zaretti / Lucas Rodríguez / Diego Mellado - Distrito I. Colaboradores: Arq. María Belén De Grandis. Asesoramiento estructural: Ing. Oscar Clivio Fotografía: Florencia Reccia.

T O D O S L O S G A N A D O R E S
PREMIO CAPBA
CONCURSOS.
Vista Hotel Vista Hotel Centro Cultural y Comercial, ex Estación Sud Casa Álamos
capba IX DESARROLLO URBANO SUSTENTABLE 53
Casa Álamos

Mención: Autores Arqs. Emanuel Lupeik / Arq. Emanuel Rubén Melniko / Marcos Raymundo - Distrito I. Colaboradores: Arqs. María Anabella Lorenzi /Carolina Bottega- Distrito I

Mención: Autores: Arqs. Pablo Manuel Abate / María Victoria Ravassi de Uriarte / Esteban Daniel Rozado - Distrito I

Mención: Autores: Arqs. Paula Luchelli / Adriana Randazzo - Distrito V Segundo premio: Autores: Arqs. Fernando Gianserra / Luis Gonzalo Lima – Distrito I Colaboradores: Arqs. Claudio Montes de Oca / Lucia Sarghini / Marianela Sarghini

Primer premio: Autor: Arq. Rodolfo Frolik – Distrito VIII

CATEGORIA 4.- VIVIENDA MULTIFAMILIAR DE ALTA DENSIDAD

El Jurado integrado por los Sres. Arqs. Lisando González Ojinaga, José Solla y Santiago Aguerrebehere otorgó los siguientes premios: Segundo premio: Autores: Arqs. Sebastián Mariano Balbuena / Miguel Ángel Mc Cormack/ Jaime Alejandro Donaldson / Fernando Damián Robirosa / Florencio Beccar Varela - Distrito IV. Colaborador: Arquitecto Pedro Wofcy

Primer premio: Autores: Arqs. Jerónimo Mariani / Maria Haydeé Pérez Maraviglia /Oscar Cañadas/Eduardo Agüero / Martín MarcenaroDistrito IX (Edificio Palcos del Golf, Mar del Plata)

CATEGORIA 5.- EDIFICIOS NO RESIDENCIALES ADMINISTRATIVOS, COMERCIALES Y ARQUITECTURA EFIMERA

El Jurado integrado por los Sres. Arqs. Pablo Rescia, Alberto Sbarra y Rodolfo Frolik procedió a otorgar los siguientes premios: Menciones sin orden de mérito

Finalista: Autor: Arq. Mariana Villanueva –Distrito IV. Colaboradores: Arqs. Pablo Lapieza / Gerardo Gebetsberger /Maria Jimena Valencia/ Marina Isla Casares /Emanuel Ibañez

Finalista: Autor: Arq. Andrés Rodolfo Ferrari (para Ferrari-Frangella Arquitectos). Colaboradores: Arqs. Diego García / Pablo Milosevitsch / Francisco Bilbao Fotografía: Fernando Schapochnik - Ferrari-Frangella Arquitectos.

Finalista: Autor: Arqs. Luis Daniel Passantino / Juan Manuel Escudero – Distrito IX. Colaboradores: Arqs. Facundo Andrés García / Ing. Alfredo De Pablo (Centro de Día, Mar del Plata)

Finalista: Autor: Arqs. María Eugenia Aguerre / Mariela Casaprima / María Juliana Fullone Colaboradores: Arqs. Antonella Schiavi /Ana Laura Guimil /Luciana Borguez Sritas. Flavia Stefanía Ortiz /Melina Castelao / Sr. Rodríguez Alvarez.

Concesionario Citroën Casa Nyds Concesionario Citroën Palcos del Golf
capba IX DESARROLLO URBANO SUSTENTABLE 54
Casa Nyds

Menciones sin orden de mérito

Mención: Autor: Arq. Juan Martín Urgell - Distrito IV. Colaboradores: Arqs. Enrique Lynch / Andrea López / Juan Pablo Rodríguez / Débora Bellagio / Guadalupe Herrero / Valeria Lafon / Lucas Pulice / Marina Buldrini / Mariana Bach / Ezequiel Mill / Josefina Torello / Milagros González Echeverría Estructura: AHFsa Alberto Hugo Fainstein y Asociados Ingenieros Estructurales. Instalación termomecánica: GF / Estudio Grinberg - Feliz, Ingenieros consultores.

Mención: Autor: Arq. Antonio Carrasco – Distrito IX. Colaboradores: Sr. Tadeo Itzcovich / Arq. Pablo Videla (Vista Hotel, Villa Gesell)

Segundo premio: Autor: Arq. José Solla - Distrito IX. Colaborador: Sr. Tomás Calandroni, SOLANAS S.A. Primer premio Autores: Arqs. Carlos Jones / Pablo Lilli - Distrito I (Concesionario Citroën, Valeria del Mar)

CATEGORIA 6.- INTERVENCIONES EN OBRAS DE INTERÉS HISTORICO CULTURAL.

El Jurado integrado por los Sres. Arqs. Alberto Sbarra y Rodolfo Frolik procedió a otorgar los siguientes premios:

Finalista: Autores: Arqs. Santiago Aguerrebehere / Agustín Lundin / Joaquín Oleastro - Distrito I.

Finalista: Autor: Francisco S. M. Cadau – Distrito V. Colaborador: Arq. Andrea Lanziani

Mención: Autores: Jerónimo Mariani / María Haydeé Perez Maraviglia / Oscar Cañadas - Distrito IX (Centro Cultural y Comercial, ex Estación Sud, Mar del Plata)

Segundo premio: Autores: Arqs. Sebastián Mariano Balbuena / Miguel Angel Mc.Cormack - Distrito IV. Colaborador: Arq. Pedro Wofcy

Primer premio: Autor: Arq. Felipe de Ocampo - Distrito VII. Arq. Jose Ignacio Miguens Colaboradores: Sol Juarez / Nicolas Baratelli / Dolores Rego / Ing. Rogelio Percivati / Helena Cabrera

CATEGORIA 7.- PRO.CRE.AR

El Jurado integrado por los Arqs. Matías de Luiggi y Adrián Sebastián otorgó los siguientes premios:

Segunda Mención: Autor: Arq. Matías Lloveras - Distrito IV. Colaboradores: D.I. Ángeles Quiroga / Arq. Agustina Riera / Arq. Agostina Demarchi.

Primera Mención: Autor: / Arq. Agustín Giménez - Distrito IV. Colaborador: Arq. Luciana Andrea Russo

Primer premio: Autor: Arq. Lucía Daniela Hollman - Distrito V. Colaboradores: Arq. Agustín Moscato

Palcos del Golf Centro de Día Centro de Día
CONCURSOS. PREMIO CAPBA capba IX DESARROLLO URBANO SUSTENTABLE 55
Palcos del Golf

Estado de situación del proyecto de caja propia

El Proyecto de Caja de Previsión y Seguridad Social para Arquitectos de la Provincia de Buenos Aires ya cuenta con media sanción en la Cámara de Senadores.

En la Sesión de la Honorable Cámara de Senadores del día miércoles 21 de Diciembre, se procedió a dar media sanción legislativa al proyecto de creación de la Caja de Previsión y Seguridad Social para Arquitectos de la Provincia de Buenos Aires, que se gestiona bajo expediente nº E 183 2016 – 2017. Luego el Proyecto fue remitido a la Cámara de Diputados de la Provincia de Buenos Aires, que deberá dar su aprobación final o efectuar correcciones –si es este último caso, deberá entonces volver a Senadores para su aprobación final– y posteriormente será elevado a la Gobernación para su promulgación.

Junto con la aprobación de este proyecto también fueron aprobadas la creación de las respectivas cajas para los Agrimensores, Ingenieros y Técnicos, quienes conjuntamente con el Consejo Superior del Colegio de Arquitectos de la Provincia de Buenos Aires impulsaban la derogación de la Ley 12490 y la disolución del actual régimen previsional.

A pesar del permanente seguimiento que este Distrito ha realizado de los avances legislativos, se desconoce si las comisiones de trabajo que le dieron tratamiento introdujeron o no las modificaciones al proyecto que la Mesa Ejecutiva del Consejo Superior presentó en su momento, también de contenido desconocido para el resto de los colegios de distrito.

Las acciones futuras en materia de gestión distrital estarán centradas en la revisión del proyecto aprobado para su reglamentación y la realización de aportes al colegio provincial para garantizar la protección de los intereses de

capba IX ASUNTOS PREVISIONALES 56

nuestros matriculados, y los afiliados actuales y futuros en el nuevo régimen. Estas acciones se llevarán adelante en virtud de que el Distrito IX mantiene –de acuerdo a lo resuelto en las distintas Asambleas distritales en las cuales se trató el tema- disidencias respecto a puntos claves como sistema de gobierno de la Caja, aplicación de los porcentajes de aportes, entre otros.

COMISIÓN DE PREVISIÓN DEL CONSEJO SUPERIOR, LA PARTICIPACIÓN DEL DISTRITO IX.

Como es habitual y luego de la pausa del mes de enero, se retomó en el Consejo Superior la actividad de las Comisiones, en este caso que nos ocupa, la de Previsión. En esta comisión la participación del Distrito IX tiene un carácter no oficial, ya que según el Reglamento del Consejo Superior, componen la misma los Consejeros Titulares, en este caso los arquitectos representantes del DIII, DVI y DX presididos por el Arq. Rojo, Vicepresidente del CS. No obstante, participan de ella enviados prácticamente de todos los Distritos e inclusive asisten los representantes titulares del CAPBA en el Consejo Ejecutivo de la CAAITBA, Arq. Claudio Videla y la Arq. Silvia Safar.

Nuestra labor se centrará como se mencionó previamente, en la Revisión y Propuestas de Reglamentación de la futura Caja Propia y alternativas para el mejoramiento y flexibilización de la Caja actual –criterio que hemos sostenido permanentemente-. En este sentido el D.IX está elaborando para presentar en dicha Comisión, un Proyecto para otorgar Subsidio de Fallecimiento para los Jubilados y Pensionados, y reiterar el Proyecto para

que en caso de existir deudas de aportes previsionales en el momento de solicitar la Jubilación o Pensión, exista la opción de descuento en el futuro haber, entre otros temas.

Asimismo se buscará expresar nuestro punto de vista –constructivo, como siempre – en los diversos temas que se presenten.

ASUNTOS PREVISIONALES 57
Arq. Roque Nóbile Comisión Previsión CAPBA IX

Resoluciones de CAAITBA de interés para el desarrollo de la profesión

Presentamos una serie de Resoluciones promulgadas por la CAAITBA que resultan de interés para la profesión y la cobertura previsional de los matriculados.

LOS PAGOS A CUENTA DE LA CMAO SE PUEDEN IMPUTAR LUEGO A APORTES POR UN CONTRATO DETERMINADO

Así lo expresa la Resolución 631 del 23 de marzo del 2016. En su artículo primero se especifica que los afiliados tendrán la opción de aplicar los pagos realizados en carácter de pago a cuenta de la CMAO, al pago de aportes por tareas Profesionales durante el transcurso de cada año según lo determinado en el artículo 26 inciso B.

Cada pago a cuenta de la CMAO que se realiza en un año, cancela partes porcentuales de la CMAO de ese año de acuerdo al valor vigente en el momento y es considerado como pago a cuenta del total.

El beneficio de aplicar dichos pagos realizados a cuenta de la CMAO para cancelar aportes de tareas profesionales que deban abonarse dentro del mismo año, podrá ser utilizado por los afiliados en todas las tareas, dentro del mismo año calendario de los pagos a cuenta y hasta agotar el monto abonado.

ACTUALIZACIÓN Y FORMA DE PAGO CMAO DESDE AÑO

2014 Y SUCESIVOS

De acuerdo a la Resolución 655 el valor de la deuda se fijará en partes de CMAO – al valor de ese momentoequivalentes al faltante para alcanzar el coeficiente CMAO 1 o 0,50, y a dicho valor se le adicionará el porcentual correspondiente a la tasa actuarial del 4%, desde el 1º de enero del año siguiente de la CMAO adeudada y hasta la fecha de cada cuota, en caso de financiación.

Se puede optar por abonar al contado o hasta en 24 cuotas mensuales, no debiendo la cuota ser inferior al 5% de la CMAO vigente. El valor de las cuotas se establece en partes

capba IX ASUNTOS PREVISIONALES 58

de CMAO, más un interés del 4% sobre cada cuotas, más el 0.20% de gastos administrativos.

Esta Resolución tiene vigencia desde el 1º de Noviembre del 2016.

Para este caso el Distrito IX propuso que el porcentual de gastos administrativos no tuviera ese destino, sino el de un Seguro que cancele la deuda en caso de fallecimiento del afiliado. Esta propuesta no fue aceptada.

APORTES POR VIVIENDA PROPIA

Mediante la Resolución 657 del 16/11/16 se han fijado nuevas normas para solicitar la eximición de aportes, cuya característica principal es la disminución de algunas exigencias para que CAAITBA otorgue tal beneficio.

VALOR DE CMAO A PARTIR DEL 1 DE ABRIL DEL 2017

En la Resolución 662 se especifica que el valor de la Cuota Anual Obligatoria será de $24.840 a partir de la fecha mencionada.

FORMA DE PAGO DE DEUDAS EN CASO DE ACCIÓN JUDICIAL INICIADA

La Resolución 667 del 8/2/17 indica que en caso de haberse iniciado acción judicial para el cobro de deudas de CMAO o de contribuciones y aportes previsionales, se podrá regularizar mediante los regímenes establecidos (de contado en las Resoluciones 603 y 592), previo pago de las costas judiciales y gastos administrativos que se fijan en el 10% de la CMAO vigente al momento del pago.

DEPÓSITOS DE APORTES ERRÓNEOS

En función de que los afiliados en diversas oportunidades realizan pagos de aportes en forma errónea y al comprobarse esta situación, los mismos solicitan su reintegro, CAAITBA dictó al respecto la Resolución 667 del 22/2/17 contemplando esta situación.

Los pagos erróneos serán imputados siguiendo el siguiente orden:

a) Cancelación de deudas en mora del afiliado bajo cualquier concepto.

b) Pago de aportes previsionales derivados de una nueva tarea profesional, generado dentro de los treinta días de efectuado el pago.

c) De no existir los supuestos anteriores, el importe será puesto a disposición del afiliado, previa deducción de la suma equivalente al 10% de la CMAO vigente más el costo bancario o de cobranza.

En caso del inciso c) el profesional podrá solicitar que se impute su crédito a valores nominales para futuros aportes.

Esta situación deberá ser analizada en la Comisión de Control de Aportes de la CD y posteriormente aprobada por CD.

ASUNTOS PREVISIONALES
capba IX ASUNTOS PREVISIONALES 59
Arq. Roque Nóbile Comisión Previsión CAPBA IX

Cada año, el primer lunes de octubre se conmemora el Día Mundial del Hábitat instituido por las Naciones Unidas. La invitación es reflexionar sobre la situación de nuestros pueblos y ciudades y el derecho básico de todos a una vivienda adecuada. Asimismo tiene el propósito de recordar al mundo su responsabilidad colectiva para el futuro del hábitat humano.

El pasado año 2016 el Colegio de Arquitectos de la Provincia de Buenos Aires Distrito IX, aprovechó la fecha para la promoción de la reflexión y la mirada crítica sobre el proceso de desarrollo urbano y de la construcción del hábitat, a la vez que celebró el día con una nueva entrega de credenciales a matriculados recientes.

Arq. ALVO, Luis María

Arq. AMBROJ, Gustavo Javier

Arq. ARCAMONE, María José

Arq. CARRACEDO, Julieta

Arq. CONTINO, Laura Virginia

Arq. DOMENICO, Nicolás

Arq. DUARTE, Julián

Arq. EDREIRA, Lucía

Arq. FASSINATO, María Laura

Arq. GOMERO FLORES, Enrique J.

Arq. GRASSI, María Leandra

Arq. JOOSTEN, Maira Sofía

Arq. LOPEZ EZCURRA, Lucas M.

Arq. LORUSSO, Rocío Alejandra

Nuevos Arquitectos matriculados Acto de entrega de credenciales

En instalaciones de la sede distrital se realizó la Ceremonia de Entrega de Credenciales, la última del año 2016. En la ocasión, con la entonación previa del Himno Nacional Argentino, los nuevos matriculados fueron recibidos por las autoridades distritales. La Mesa Directiva tuvo a su cargo las palabras de bienvenida y la entrega de credenciales.

Recibieron su credencial 26 colegas, quienes ya se encuentran en actividad profesional y a los cuales se homenajeó con un encuentro de camaradería al finalizar el acto. Los profesionales que recibieron las Credenciales son:

Arq. MACEIRAS, Maximiliano J. Arq. MORETTI, Federico Raúl Arq. MULINETTI, Martín Andrés

Arq. NOGUEIRA, Hugo Rodrigo Arq. OTEIZA, Nicolás Hernán Arq. PAZ, Miguel Arq. PEDONE, Francisco

Arq. RUSSO, Fabricio

Arq. SAN PEDRO, Daiana Estefanía

Arq. UNALES, Sergio Javier

Arq. VEGA ISSEL, Gonzalo

Arq. ZELAYA, Darío Sergio

capba IX SOCIAL Y GREMIAL 60

Como se realiza tradicionalmente, el Colegio de Arquitectos de la Provincia de Buenos Aires Distrito IX entregó a sus matriculados medallas y diplomas en recordatorio de haber recibido el título de Arquitectos.

El Colegio de Arquitectos entregó reconocimientos a

Esta ceremonia que comenzara en el año 1995 con el reconocimiento a los 25 años de la titulación, se ha mantenido vigente en los años posteriores. Al diploma que originalmente se entregara, se sumó luego el otorgamiento de una medalla grabada y, más recientemente, desde el año 2013 se ha ampliado el reconocimiento alcanzando a los colegas que celebran 40 y 50 años de arquitectos.

Cabe señalar que la Institución continúa acompañando activamente a sus matriculados, en este caso con un sentido reconocimiento, pero fundamentalmente con acciones que representan los intereses y preocupaciones de los arquitectos en toda la región.

Debido a la gran cantidad de homenajeados en 2016, el agasajo que incluye un brindis de camaradería, se dividió en dos. Ambos actos fueron realizados en la Sede del Colegio de Martilleros y Corredores Públicos del Departamento Judicial Mar del Plata, sito en calle Bolívar Nº 2958. El día 3 de noviembre tuvo lugar el reconocimiento a los colegas que cumplieron 25 años de profesión, y el 10 de noviembre, el destinado a quienes cumplieron 40 y 50 años de arquitectos.

Desde el CAPBA IX felicitamos a todos los colegas que en dichas oportunidades recibieron reconocimientos y destacamos que en sus treinta años de existencia, el CAPBA ha acrecentado su acervo profesional, comprendido en buena medida por la experiencia y aporte que los matriculados han realizado a la Institución, por lo que resulta imprescindible conservarlo y protegerlo, y en este caso particular acompañar a los colegas en tan importante momento de sus vidas.

Juan Manuel Escudero recibe medalla y diploma al cumplir 50 años de Arquitecto.
sus matriculados
Se realizaron las entregas de medallas por los 25, 40 y 50 años de ejercicio profesional
capba IX SOCIAL Y GREMIAL 62

Colegas del Colegio de Arquitectos de la Provincia de Buenos Aires Distrito IX que recibieron Medalla y Diploma recordatorios al cumplirse en 2016 los 25 Años de recibir el Título de Arquitectos

ALANIZ, Julio Cesar

ARROSIO, Luis Horacio

BOCCHI, Carlos Hernán

BROWN, Guillermo Daniel

CALO, José

CAMARERO, María Helena

CASTRO, Jorge Fabián

CEA, Claudio Erasmo

DEMO, Daniel Horacio

ETCHEGOYEN, Ariel

FACAL, Carlos José

FLORIO, Alberto Alejandro

FRASCONA, Darío Ignacio

GILETTO, Vicente Enrique

GORSIN, Claudio Walter

GRECO, Norma Nilda

LA ROSA, Carmen Daniel

LÓPEZ, Gabriela Emma

LÓPEZ HIDALGO, Daniel Darío

LUCERO, Silvia Nora

MANZÍN, Dino Gustavo

MARTÍN, Mariana

MARTÍNEZ, Mario Luis

MATEO, Graciela Beatriz

MAZZINI, Bruno Daniel

MILLER, Claudia Isabel

MONTI, Pablo Alejandro

NATALIZIA, Walter

NAVARRO, Marcelo Domingo

NOALES, Diego Manuel

ODRIOZOLA, Rubén Oscar

OSTELLINO, Juan Gabriel

OTTER, Patricia Viviana

OVEJERO, Horacio Fabián

PALESTINI, Fernando José

PATRICIO, Julio Alejandro

PRIOLO, Gustavo Fabián

PULTI, Fabián Darío

RESCIA, Pablo Fidel

RUIZ, Mariela Andrea

RUIZ, José Luis

SALGUEIRO, Gustavo Adolfo

SCERBO, Gisela Diana

SICCO, Fabiana Beatriz

SILVA, Patricia Noemí

SPINELLI, Gonzalo María

STANELONI, Mariela Esther

TRAVAGLINI, Mónica Esther

VISCARRA, Daniel Héctor

VISINTIN, José María

ZACCANTI, Katia Beatriz

ZUBIARRAIN, María Silvina

Colegas del Colegio de Arquitectos de la Provincia de Buenos Aires Distrito IX que recibieron Reconocimiento y Diploma recordatorios al cumplirse en 2016 los 40 Años de recibir el Título de Arquitectos

BERMUDEZ, Héctor Luis

CAIMARI, Guillermo

CARRERA, Ricardo Alberto

CONTRERAS, Rolando Atilio

CORDONNIER, María Griselda

COSTE, Néstor Roberto

CUTRERA, Daniel Eduardo

DEL GIORGIO, Omar Roberto

DEL RIO, Marcelo Adrián

DI IORIO, Graciela María

FASINATO, Ma. de las Mercedes

GARESE, Jorge Joaquín

GÓMEZ, Eduardo

GUARINO, Adriana Rosa

GUERRA, Juan Alfredo

LEOFANTI, Ricardo Alberto

MARTIN, Rodolfo Hipólito

MARTÍNEZ, Mario Alberto

MICONI, José María

MONTONE, Juan Antonio

ORELLANO, Roberto Edgardo

ORTIZ, Sabina Noemí

OTERO, Roberto José

PILCIC, Miguel Darío

PODESTÁ, Luis Oscar

PRARIO, Raúl Alberto

RABINO, María Cristina

RAGO, Roberto Omar

REYNA, Antonio

RIGANTI, Víctor Esteban

RUCQ, Laura Beatriz

SCHULZ, Ricardo Alejandro

SERRANO, Arnoldo Segundo

VIDAULI, Gabriel Amílcar

Colegas del Colegio de Arquitectos de la Provincia de Buenos Aires Distrito IX que reciben Reconocimiento y Diploma recordatorios al cumplirse en 2016 los 50 Años de recibir el Título de Arquitectos

ESCUDERO, Juan Manuel

Entrega de medallas por 25, 40 y 50 años de profesión
ENTREGA DE MEDALLAS capba IX SOCIAL Y GREMIAL 63

Fiesta de Fin de Año

En el salón Bicentenario del Club Náutico Mar del Plata y con la participación colegas, familiares y colaboradores de la Institución, tuvo lugar la Fiesta de Fin de Año del Colegio de Arquitectos DIX. La cita fue el pasado lunes 19 de diciembre y contó con alrededor de 150 personas.

Mediante una copa de recepción, se dio la bienvenida a los asistentes entregándoles como obsequio la tradicional agenda personal que este Colegio acostumbra confeccionar para sus matriculados. La velada contó con animación, sorteos y baile, lo que la convirtió en un agradable encuentro de camaradería. La Fiesta incluyó sorteos de importantes firmas que acompañaron la velada: Drap Pinturerías; RVA Rent a Car; Tondat, tecnología y servicios en proyección y sonido; Imprenta El Faro, Cía. Sudamericana, fotocopiadoras-plotter; Puerto Joyero, joyería; Tío Gerardo, servicio de lunch; Vinoteca Cano Hnos.; Ferretería Iturria, distribución Profesional Bosch; Crear, Arquitectura & Diseño; Ferva; ARPO; Sika CAT y Sika CELTOP, y TTS Viajes.

El premio más esperado fue el regalo que cada año aporta el Colegio: un viaje para dos personas sorteado entre los matriculados presentes. En 2016 se dejó de lado el habitual Crucero que solía regalarse y se varió en favor de una estadía en Colonia, Uruguay. Felicitamos al Arq. Carlos Castiglioni por haber obtenido el premio sorteado.

La animación del encuentro estuvo a cargo del Arq. Jorge Luis Méndez, quien divirtió al público con momentos de humor y juegos por equipos. Como otros años, la fiesta contó con mesa de tortas y barra libre de tragos habilitada durante los momentos de baile.

El brindis estuvo a cargo de la Mesa Directiva del CAPBA IX, encabezada por su presidente Arq. Daniel Monzón acompañado por los arquitectos Analía Benítez y Bruno Mazzini, Secretaria y Tesorero de la institución respectivamente, quienes invitaron a acompañarlos a la Arquitecta Julia Romero, ex presidente que recientemente había dejado su mandato.

La arquitecta Romero expresó: "les deseo a los presentes un cierre de año lo mejor posible en el contexto económico y social que nos ha tocado vivir a todos en la Argentina y particularmente

en la ciudad de Mar del Plata. Para la institución ha sido un año difícil, complejo, en el que hemos tenido que afrontar muchos temas y que creemos que a nivel personal y profesional ha sido de similares características, pero que como siempre le hemos puesto garra y empuje, a partir de eso hemos dado nuestro mejor esfuerzo”. También señaló, "Debemos continuar con ese espíritu para lograr un nuevo año de Paz, de trabajo, de prosperidad para todos nosotros, para nuestras familias, nuestros amigos, para la familia de los arquitectos, y en este contexto apoyar a la nueva gestión del Colegio de Arquitectos de la Provincia de Buenos Aires Distrito IX para que también hagan su mejor esfuerzo, que seguramente así va a ser”.

Se agradeció el acompañamiento de los colegas en la ocasión, a las empresas y proveedores que acompañan todo el año las diferentes propuestas del Colegio de Arquitectos y los representantes de muchas instituciones de la ciudad con las que en forma conjunta trabajan comprometidos en pos del beneficio de Mar del Plata y los vecinos de la ciudad.

A su turno el Presidente de la institución, Daniel Monzón, señaló: "Recordando las palabras de asunción, acá hay equipo y hay que agradecerlo, porque son muchos los que trabajan todo el año y cuando son muchas las manos el esfuerzo se reparte y los beneficios se comparten y así también la satisfacción de ello. Por eso, a pesar que hace mucho que empezamos en la gestión parece que fue ayer, de esta última conducción es la que quiero agradecer y, aunque hoy cambiamos los roles, ninguno de los colaboradores se va de esta gestión. Es mucho lo que tenemos que hacer, fortalecer acciones para todos los arquitectos, para la comunidad y todos los municipios de la región. Terminamos una gestión pero es la continuidad de la anterior, con nuevas incorporaciones y con colegas experimentados, estamos preparados para los desafíos futuros”. Finalmente, expresó: "Quiero saludar a todos para estas fechas y desearles una feliz navidad y un mejor año nuevo que seguramente, si cada uno de nosotros está mejor, ello se verá reflejado en el conjunto”.

El colegio de Arquitectos cerró el año con sus matriculados y referentes institucionales en una fiesta
capba IX SOCIAL Y GREMIAL 64
FIESTA DE FIN DE AÑO capba IX SOCIAL Y GREMIAL 65

Subsidio "CAPBA 25 años"

Colegas jubilados y en actividad recibieron el beneficio por la antigüedad en la matrícula y la permanencia en el CAPBA

El objeto del Subsidio "CAPBA 25 años" es ampliar el Fondo Solidario del CAPBA ya creado por Resolución del Consejo Superior que es el Fondo Compensador. El mismo se instrumenta por vía de un Subsidio Anual, que el CAPBA abona a los colegas que lo soliciten, siempre que cumplan con los requisitos establecidos en la ordenanza de creación, Resolución CAPBA 79/12.

Este año fueron beneficiados cien (100) colegas con matrícula activa y cuarenta y dos (42) colegas jubilados. A diferencia de años anteriores en esta oportunidad no se realizó el tradicional encuentro de camaradería dado el cambio de autoridades del CAPBA lo que llevó a comprimir los tiempos administrativos ante el cambio de firmas para la emisión de los valores correspondientes.

LOS ARQUITECTOS JUBILADOS QUE RECIBIERON EL BENEFICIO FUERON:

Apellido, Nombres

AHRTZ, Gustavo Guillermo

ALESSO, Juan Carlos

BALLERO, Oscar Jacinto

BAYON, Miguel Ángel

BENVENUTO, Cesar Lorenzo

BOLGERI, Alejandro Carlos

CABANAS, Manuel Fernando

CARDINALI, Armando Juan

CATUOGNO, María Magdalena

CHURRUCA ULACIA, José Ignacio

COVA, Roberto Osvaldo

COVA VON KOTSCH, Hernán Alberto

FERNÁNDEZ MONCÓ, Roberto Abel

FERRO AMADO, Horacio Daniel

GELEMUR, José Luis

GIANGUALANO, Hugo Andrés

GIMÉNEZ, Hugo Alberto

GOLOMB, Miguel

IRIGOIN, Amelia Teresa María Roja

JAKUBOWICZ, Roberto

LA ROSA PEDERNERA, Julio Javier

LÓPEZ RIVAS, José Luis

LUZARRETA, Ricardo Edmundo

MANDAGARAN, Dante Omar

MANTERO, Juan Carlos

MARCOS, Julio Cesar

MARTÍNEZ BADO, José Luis

MÉNDEZ, Julio Ángel

MONTES, David Dalmiro

PASQUINELLI, Alberto Horacio

POLLINI, Néstor Ángel

RICHARD’S, Horacio Gualberto

ROUCO, Luis Alberto

SALERNO, Cayetano Silvio

SCHMIDT, Axel Thorleif

TALAMONTI, Osvaldo Humberto

TOMEI, Alberto Santos

TORTORA, Vicente Omar

VILLAR, Irene Isabel

VISINTINI, Oscar Guido

WAGNER, Elsa Liliana

YANCOSKI, Rodolfo Ramón

capba IX SOCIAL Y GREMIAL 66

A fines de diciembre pasado y conforme a lo establecido en la Resolución CAPBA 79/12, de creación del Reconocimiento a la permanencia en el CAPBA y complemento a los arquitectos jubilados, se hizo entrega del mismo a numerosos colegas beneficiarios.

AGRA, Gerardo Ramón

ÁGUILA, Eduardo Ricardo

ÁLVAREZ ITURREGUI, Alicia Élida

BAIUNCO, Miguel Ángel

BECERRA MANYA, Luis Miguel

BERMÚDEZ, Héctor Luis

BONOMI, Alberto

BRUNO, Gustavo Daniel

BUND, Elizabeth Aloisia María

BUSTEROS, Roberto Esteban

CÁCERES MONIÉ, María Silvia

CALEGARI, Héctor Raúl

CAPURRO, Pablo Alberto

CARON, Roberto

CARPINELLI, José Luis

CASTELLANI, Luis Leonardo

CASTILLO, Susana Hilda

CERNADAS, Diana Araceli

CIURCA, Carlos Eduardo

COBOS, Osvaldo Francisco

CONTRERAS, Rolando Atilio

CORDONNIER, María Griselda

CORINA, Alfredo José

CORVALAN, Hugo Atilio

COSTE, Néstor Roberto

CUTRERA, Daniel Eduardo

D’AMICO, Eduardo

DANESE, Lorenzo Roberto

DAUMAS, Marcelo Daniel

DE MICCO, Miguel Ángel

DEFEO, Miguel Oscar

DEL GIORGIO, Omar Roberto

DEL HOYO, Vicente Oscar

DEL RIO, Marcelo Adrián

ESCUDERO, Juan Manuel

FERNÁNDEZ, Hugo Alberto

FILATRO, Omar Antonio

GARESE, Jorge Joaquín

GIULIANO, Luis María

GÓMEZ, Osvaldo

GONZÁLEZ, Elsa Rosa

GONZÁLEZ, Oscar Francisco

GUALLA, Gerónimo Jorge

GUERRA, Juan Alfredo

JULIANO, Roberto Roque

KUCIC, Jorge Orlando

LAURIZI, Horacio Adolfo

LEOFANTI, Ricardo Alberto

LÓPEZ PEREIRO, Francisco

MARANGONI, Hernán Alberto

MARCHE, Marta Juana

MARCHELLI, Hugo Mario

MARIANI, Elena Inés

MARTIN, Rodolfo Hipólito

MARTÍNEZ, Mario Alberto

MAVERS, Erico Roberto Guillermo

MAYORANO, Oscar José

MEDINA, Daniel Ricardo

NOAIN, Raúl Alberto

NÓBILE, Roque Rodolfo

OMAÑA, Alfredo Argentino

ORELLANO, Roberto Edgardo

OROFINO, Guillermo Raúl

PAGNUSSAT, Roberto Luis

PERALTA, Roberto Mario

PEREIRA, Beatriz Irene

PÉREZ MARAVIGLIA, María Haydee

PETRONI, Hebe

PILCIC, Miguel Darío

PLENAFETA, Nélida Cristina

PODESTÁ, Luis Oscar

POUSO, Hugo Ernesto

PRARIO, Raúl Alberto

PRYSTUPA, José Antonio

QUARATI, Nelson Francisco

RIMOLDI, José Luis

RINALDI, Marta Alicia

RÍOS, Stella Maris

RODARO, Alberto Santos

RODRÍGUEZ, Luis María

ROMAGNOLI, Raúl Omar

ROSSI, Enrique Luis

RUCQ, Laura Beatriz

SALM, Roberto Horacio

SAMSOLO, Samuel Oscar

SANTIAGO, Graciela Carmen

SCACCHERI, Jorge Osvaldo

SCHEGGIA, Oscar Héctor

SCHULZ, Ricardo Alejandro

SPINELLI, Luciana

STURNIOLO, Miguel Ángel

TARCHINI, Juan Carlos

TORRES, Graciela Etel

TORRES CANO, Manuel

URRUTIA, Eduardo Luciano

VALDEZ, María Lucia

VALLO, Mario Alfredo

VIDAULI, Gabriel Amílcar

VILLAR, María Inés

ZAK, Eduardo

BENEFICIOS CAPBA
LOS COLEGAS MATRICULADOS DEL CAPBA BENEFICIADOS FUERON:
capba IX SOCIAL Y GREMIAL 67

En el mes de abril el CAPBA IX dará comienzo al Ciclo 2017 de “EXPRESIONES DE ARQUITECTOS”, luego de un 2016 de gran actividad en la remodelada sala de exposiciones de la sede distrital. Durante el pasado año en las instalaciones se dieron cita la Pintura en las muestras “Espontánea” de la Arq. María Florencia Gómez Falcón y “Entre el pasado y el presente…” del Arq. Daniel Materazzi, el Arte digital del Arq. Héctor De Schant (“Entre el orden y la monotonía”) y la Fotografía, con el Arq. Gabriel Mariño en “Así te vi vi”, para cerrar con una idea curatorial producida por el Ciclo que se cristalizó en la exposición “Mar del Plata en detalle”, para la cual los arquitectos Sofía Compañy, Julio Alaniz, Laura Romero, Ricardo Macht, Gabriel Mariño, Patricia Muñoz, Francisco Olivo y Emilio Polo abordaron la ciudad con sus cámaras en busca de esos detalles que le dan forma y pertenencia a lo urbano. Es de destacar el alto acompañamiento que este Ciclo -Declarado de Interés Cultural por la Secretaría de Cultura de General Pueyrredon, Resolución Nº 0716, viene teniendo por parte de matriculados, artistas, prensa y público en general.

Para este ciclo 2017, reiteramos la invitación a todos los matriculados del Capba IX que junto a su actividad específica en la Arquitectura, desarrollen disciplinas artístico-visuales. Quienes lo deseen deben comunicarse a expresiones.arq@capba9.org.ar

capba IX SOCIAL Y GREMIAL 68
“Expresiones de arquitectos” da inicio a su quinta temporada

“Lo que trato de buscar siempre con la fotografía (…) es ver en los objetos, lo que tradicionalmente los objetos no muestran (…) hacer el esfuerzo de encontrar cosas que digan algo distinto de lo que los objetos normalmente dicen. En estos dos trabajos hay una reflexión en sentido de la escala. Por un lado una imagen muy concentrada de una parte de un objeto y por otra, una fragmento de un tejido que es un conjunto muy amplio de objetos urbanos” Arq.

“La obra está inspirada en pensar la otra ciudad, habitar la otra ciudad. Intento capturar una imagen de contraste entre la ciudad que habitamos y la otra ciudad oculta si se quiere, que es el cementerio. Se muestra una bóveda que rompe con los cánones clásicos con los cuales se pensaban las bóvedas a partir de estilo y lenguajes nuevos que rompe con las ideas que se tenían de cómo habitar en el cementerio, podríamos decir que es una arquitectura de vanguardia. Es una arquitectura moderna, pensada, diseñada a tal fin” Arq. Laura Romero

“El espíritu de la muestra ha sido tomar fragmentos de la ciudad que podrían estar en otros lugares. En el caso de la obra ‘sol y luna’ me evoca a otros sitios, a Estambul a Marruecos, a otros lugares muy distantes; y es un sentimiento que me resulta muy agradable” Arq. Emilio Polo

“La pregunta es ¿por qué ese recorte? Lo que uno expresa en una foto, en un cuadro o en una escultura, lo expresa porque no lo puede decir en palabras. No hay muchas más palabras de ese recorte, aún más si lo emblemático es el Torreón, su ubicación, sus texturas, sus sombras” Arq. Julio Alaniz

“Esta fotografía es del Cementerio Parque de la ciudad de Mar del plata, una obra paradigmática de la arquitectura moderna argentina, del arquitecto Baliero y su equipo. Es un sector que se llama “de los floristas”, que está en el acceso del cementerio, creo que lo que buscaron los arquitectos con la construcción de este paraboloide hiperbólico es una metáfora de las flores. Esta fotografía tiene un paso de las tres dimensiones reales al plano 2D donde se generan nuevas geometrías” Arq. Ricardo Match

“Participo con dos fotografías, una es la puerta de Don Orione, que es un ejercicio de geometría: valores, curvas, rectas, tonos y semitonos. Luego, la otra es monocromática del Chateau Frontenac, en este caso lo que busqué es un mensaje del estado de abandono, hace falta un superhéroe para salvarla”. Arq. Gabriel Mariño

“Esta foto surgió desde que vi el edificio en Libertad y Salta. Trato de abstraerla y ver lo que me representa. Luces, sombras, curvas, es lo que me manifestaba el edificio, por eso es en blanco y negro, es una fotografía abstracta” Arq. Sofía Compañy

“Hace años que estoy en la búsqueda de detalles, especialmente de edificios de valor patrimonial. Participé en la muestra con dos fotografías, de la Torre Tanque y el edificio Villa Normandy. En ambos casos busqué detalles constructivos que hablaran de la identidad de estos edificios” Arq. Patricia Muñoz

CICLO DE ARTE. CONVOCATORIA
capba IX SOCIAL Y GREMIAL 69

El desarrollo de las tecnologías de la informática y la comunicación (TIC-s) han impactado en diversos aspectos de la vida moderna transformando las formas de vincularnos, organizarnos y proyectarnos en diversos ámbitos.

El ejercicio profesional del arquitecto no es ajeno a ello, por lo que desde el CAPBA IX hemos incursionado en el desarrollo de herramientas que faciliten la labor de nuestros colegas.

LIBRO DE OBRA

Nueva aplicación para el ejercicio profesional

Que son las TIC’s?

Las Tecnologías de la Información y la Comunicación (TIC) son recursos, herramientas y programas que se utilizan para procesar, administrar y compartir la información utilizando variados soportes tecnológicos, como por ejemplo: computadoras, dispositivos móviles, notebooks, tablets, smartphone, cámaras digitalesgrabadores de audio y video, entre otros.

El gran desarrollo de las TIC´s en la última década, ha llevado a que sus servicios sean utilizados cotidianamente, tanto en las comunicaciones como en trámites y gestiones, comercio electrónico, búsqueda e intercambio de información, etc. Siendo, además, una herramienta cada vez más utilizada en la educación, con diversas plataformas, modalidades y alcances que han permitido trascender fronteras tanto físicas como culturales.

Las TIC’s en el proceso constructivo

El proceso constructivo de una obra inicia mucho antes que la materialización de la misma. En ese sentido, entendemos que dicho proceso comienza con el reconocimiento de la necesidad, de la demanda del futuro comitente que encargará -en principio- la tarea intelectual que le dará paso al proyecto arquitectónico, donde los avances tecnológicos permiten mostrar la idea en diferentes formas de expresión, cada vez más complejas y con apelación a recursos sensoriales que facilitan su comprensión.

También el desarrollo de nuevos softwares ha permitido agilizar el cómputo y presupuesto de la obra, así como su dimensionamiento, contando hoy con programas o plataformas en línea para la cuantificación de los rubros y gremios que componen una obra.

Los recursos y herramientas disponibles permiten, además, optimizar esfuerzos y recursos en la labor profesional del seguimiento de obra. Los dispositivos para el registro del avance de obra, la fluidez en las comunicaciones, el intercambio de datos, entre otros aspectos, han derivado en procesos cada vez más ágiles, abreviando tiempos, acercando soluciones con inmediatez y, por supuesto, incrementando las exigencias en la performance profesional.

70 capba IX CAPACITACION Y ACTUALIZACION PROFESIONAL

Desde hace varios años, a través de diferentes gestiones, el CAPBA IX ha alentado la utilización del Libro de Obra como herramienta para el seguimiento de la obra, el registro de las comunicaciones y el respaldo profesional ante eventuales diferendos en el proceso constructivo. Por ello, en diferentes oportunidades ha editado la versión papel del compendio que contaba con actas de inicio, recepción provisoria, recepción final y actas numeradas de comunicaciones diarias; este material era entregado con cada legajo colegial de representación técnica y/o dirección de obra.

Sin embargo, aún no hemos logrado instalar definitivamente el hábito de realizar este registro y naturalizar un acción que seguramente mejoraría el resultado final de la obra y ante eventuales conflictos legales resultaría un instrumento valioso para el profesional.

No obstante ello, se ha reformulado el soporte sobre el que se editaba esta herramienta y se han empleado las nuevas tecnologías de la informática para la creación de una aplicación para dispositivos móviles que permita realizar hoy con dichos elementos la tarea de registro y comunicación que anteriormente se efectuaba en papel.

La posibilidad de realizar el relevamiento fotográfico con el mismo teléfono móvil de uso personal, las disponibilidades de almacenaje de información y la conexión permanente a redes motivaron que se desarrollara esta plataforma con el asesoramiento técnico de profesionales de la programación con la asistencia de arquitectos que aportaran los datos sobre las diferentes formas de trabajo que se desarrollan en obra.

El pasado 7 de noviembre se realizó en las instalaciones de la Sede Distrital la presentación de la versión beta de esta aplicación. A cargo de la Arq. Julia Romero, quien presentó un video explicativo de las funciones de esta herramienta y expuso algunas razones que hacen indispensable la instrumentación de la documentación de las indicaciones de obra.

Desde el CAPBA IX, invitan a sus matriculados a utilizar este nuevo servicio que ha sido diseñado y desarrollado especialmente para facilitar su ejercicio profesional y los invitan a acercar propuestas para la instrumentación de nuevas herramientas para el conjunto de los arquitectos.

Idea y Producción por CAPBA IX: Arq. Julia Romero | Arq. Adriana B. Olivera

Diseño y Programación: Sergio Kobalenko y Javier Luján.

El Libro de Obra del CAPBA IX

La aplicación para dispositivos móviles (apps) y en plataforma web que denominamos [Libro de Obra CAPBA IX] es una herramienta informática que transforma la versión papel que tradicionalmente se editaba a un soporte tecnológico moderno y dinámico. Esta app es de uso exclusivo para matriculados del CAPBA IX, quienes la podrán descargar del Play Store, para sistemas operativos Android, Windows Phone o Apple.

DESCARGA E INSTALACIÓN:

1. Descargar la aplicación desde el Play Store;

2. Enviar un correo a ieu9capba@gmail.com pidiendo la activación de la APP en donde se consigne Apellido y Nombre; Nº de matrícula y correo registrado en el Colegio (de no ser el mismo del que se ha enviado el correo);

3. Les llegará un Código de activación como respuesta al correo;

4. Pide un usuario y un Código de Activación;

5. Cargar como usuario el correo registrado en el Colegio;

6. Cargar la clave que les llegará por correo electrónico; y

7. Entrar a la página: www.librodeobra.com.ar y realizar los mismos pasos.

Debe tenerse en cuenta que, la primera vez que se accede a la aplicación se debe estar conectado a una red de wi-fi o mediante transferencia de paquete de datos. Sin embargo, esta aplicación admite su edición sin conexión a internet en sus sucesivas acciones.

FUNCIONALIDADES:

− Pantalla de inicio personalizada;

− Activación mediante correo electrónico;

− Datos personalizables;

− Exportable a PDF, e-mail o impresión.

OPERATIVIDAD:

1. Carga de datos profesionales;

2. Creación de nuevo libro o edición de uno existente;

3. Carga de datos de la obra, legajos y contratista;

4. Creación de acta de inicio de obra;

5. Creación de acta de obra (descripción, observaciones, incorporación de fotos desde dispositivo móvil);

6. Guardado en línea o fuera de línea;

7. Creación de acta imprimible en PDF.

TIC’S EN EL EJERCICIO PROFESIONAL 71 capba IX CAPACITACION Y ACTUALIZACION PROFESIONAL

En el último día del invierno del año 2015 fallece en Rosario el Arquitecto Rafael Iglesia, de forma temprana y luego de resistir al tiempo, dejando un profundo pesar en la comunidad profesional.

Rafael Iglesia

El Último Provocador

Rafael Iglesia

Rafael Iglesia fue el último provocador de la escena contemporánea arquitectónica argentina. Gustaba decir o disparar, que la Arquitectura le resultaba intrascendente, a la luz de una producción profesional irrelevante, sobre la cual entiende que solo guarda o aspira un sentido meramente reproductivo dejando irresolutos o sin tensionar los problemas de nuestra sociedad. Estas palabras pudieron resonar de manera incómoda en el seno de nuestra comunidad, más aún si consideramos que, en algunos casos, sus integrantes tienen un elevado aprecio por sí mismos. Pero esta incomodidad debería impulsarnos a cierta obligación a repensarnos en términos disciplinares y profesionales. En ese sentido, Iglesia reclama entre otras cosas, recuperar el rol social de la arquitectura, ser social o no ser nada. Iglesia, en tanto, se ha animado o atrevido a cuestionar a los mismísimos Le Corbusier o Mies Van der Rohe, de la misma manera que gustaba de pelear con J. L. Borges, aunque, como él decía, generalmente perdiera. Se entiende que la ascendencia que adquiere en tan poco tiempo el pensar y la obra de Iglesia en el colectivo profesional, radica en que sus apreciaciones a veces provocadoras se presentan como verdaderas. Por otra parte se vislumbra la existencia de una dinámica de coherencia, profundidad, sensibilidad, rigurosidad, belleza y calidad entre la obra del Arquitecto y su pensar/decir, o sencillamente entre Idea y Obra. Es la obra la que habla por él, tensando al límite la relación entre disciplina y profesión, lo cual conforma un par indiviso de retroalimentación. Su obra, si bien no ha sido de gran profusión en comparación con la de los grandes estudios nacionales, establece lazos profundos en tanto conceptualización de la Arquitectura. De la misma manera resulta de interés la mirada política sobre los problemas del hábitat, y por extensión de la profesión, tales como son los procesos de apropiación de renta urbana, o los procesos de gentrificación y segregación socio espacial en los que estamos inmersos. Iglesia solía insistir en la necesidad de recuperar el rol social y político que si supo tener la Arquitectura Moderna, desde lo ético y lo estético.

Rafael Iglesia aparece con fuerza en la escena arquitectónica argentina en los últimos veinte años, en forma tardía según sus propias palabras, recibiendo críticas extraordinarias a su labor, acompañadas de diferentes reconocimientos y premios tanto de la esfera Nacional como Internacional. El caso de Iglesia no es único en la historia de la Arquitectura, el maestro Louis Khan también alcanzo reconocimiento en su

"La arquitectura todavía no dio todo lo que puede dar. Tenemos que recuperar la arquitectura como rol social, no como forma"
72 capba IX PROGRAMA COMUNICACIONAL

madurez. Esto nos indica que nuestra disciplina requiere de dilatados tiempos de ejercicio para alcanzar algún grado de maestría u oficio, salvo honrosas excepciones donde el talento innato acorta las distancias y los tiempos, por lo cual es imperativo el ejercicio paciente y reflexivo de la práctica profesional, máxime en este tiempo de inmediateces dado el impacto que tienen nuestras ideas y acciones sobre el conjunto social. Iglesia ha tenido un lugar destacado en el ámbito Latinoamericano reciente junto a arquitectos como Solano Benítez, Aravena, Undurraga, Radic, Mendes da Rocha, Angelo Bucci, por mencionar algunos, los cuales tienen en común el grado de experimentación y sofisticación que han alcanzado en su labor. Muestra de ello resulta el edificio Altamira,

el cual le permitió a Iglesia alcanzar la instancia final del premio Mies Crown Hall Prize junto a arquitectos de la talla de OMA, Steven Holl, Herzog & De Meuron, Alvaro Siza, Undurraga y Radic.

La obra de Iglesia debe comprenderse como un emergente de lo colectivo y de su contexto. La autonomía de Rosario ha producido acciones altamente valorables en torno a la cultura, léase, la pintura, música, literatura, etc. De igual manera la Arquitectura rosarina ha obtenido históricamente un lugar destacado en el panorama nacional, y con mayor intensidad en las últimas décadas, sea desde el ámbito de lo privado como de lo público. Iglesia es miembro fundador e integrante del

HOMENAJE
73 capba IX PROGRAMA COMUNICACIONAL

Grupo R junto a Gerardo Caballero, Marcelo Villafañe, Sánchez Hermelo entre otros. El mismo fue creado con posterioridad a la organización del Congreso denominado “La Construcción del Pensamiento” . Este grupo tuvo un destacado desarrollo de actividades del tipo cultural llevando adelante un Ciclo Anual de Conferencias de Arquitectura que se sucedieron en la década del 90, donde interesaba interpelar a la disciplina y abordar a la Arquitectura desde el pensamiento. En ese sentido Iglesia se plantea la necesidad de tener una mirada crítica de la realidad abandonando la certidumbre profesional para reposicionarse en términos intelectuales. Esta inquietud y avidez inconformista es la que se constituye como actitud ideológica proyectual.

Lo proyectual comienza en Iglesia a partir de un concepto que toma cuerpo a través de la materialización de una idea, un disparador que no necesariamente puede provenir de la especificidad de la disciplina, en cambio puede proceder de diferentes vectores tales como, la cultura, la naturaleza, los objetos, la técnica, por mencionar algunos. De esta manera, se trata de decodificar el mundo de lo real y aparente para luego codificarlo en términos de Arquitectura. Es la búsqueda constante de lo desconocido, lo incierto, y la experimentación que va a permitir encontrar aquello que se busca, el sino mismo de su método, hacer lo que no hay, según sus propias palabras.

En ese sentido la singularidad se posiciona por sobre lo genérico, replicable, extrapolable, universal y sistemático, ya que Iglesia entiende que lo posible es lo singular, de alguna manera, lo artesanal. Se trata pues de una arquitectura de lo inestable y lo inesperado, lo austero e

ilusorio, lo arcaico y primitivo como posibilidad polémica de la contemporaneidad. En ocasiones se buscara subvertir o revisar la primera función de lo establecido, por ejemplo cuando lo que debe sostener resulta y debe ser sostenido. La forma en que se asumen y adoptan riesgos es distintivo en la obra de Iglesia, a punto tal que el mismo se ha preguntado si su producción no se encuentra más cercana a la escultura que a la arquitectura. En algún punto esto se encuentra en sintonía con lo desarrollado por Liernur cuando expresa que en términos generales la escena arquitectónica argentina es conservadora, libre de estridencias, lo cual entiende como valorable en relación a la forma en que se configura el paisaje y espacio urbano, pero que requiere de actitudes y pensares que renueven y se establezcan como paradigmas disciplinares. En esta última condición es que se inscribe la obra de Iglesia, más cerca de la revolución que de la evolución.

Interesa aquí desgranar sus obras más galardonadas, las cuales han sido: la Casa en la Barranca ubicada en Arroyo Seco, Santa Fe, realizada en el año 1999; el edificio Altamira ubicado en la ciudad de Rosario realizado en el año 2001; y el conjunto de obras en el Parque de Diversiones Internacional Park en el Parque Independencia de Rosario realizado en el año 2003.

La Casa en la Barranca es según su autor “un aerolito caído del cielo, una roca tirada en el campo”. Nuevamente la metáfora como inicio. Como en otras obras de Iglesia la estructura del edificio tiene un énfasis especial, dirá, el edificio es la estructura. Desde allí se plantean que vigas, losas, tabiques y columnas deban asumir además funciones suplementarias a la estructural, es decir el elemento ya no es estructural es total. Se trata de una

74 capba IX PROGRAMA COMUNICACIONAL

vivienda mínima con una piscina, la cual se ubica con su propia pendiente en consonancia con la pendiente del barranco, de alguna manera la piscina resuelve la llegada al llano para ubicar la vivienda de cara a la vastedad del paisaje. La piscina, infinita, vuelca sus aguas a manera de cascada sobre el plano de la casa buscando refrescarla. Se establecen cuatro niveles diferenciados que se resuelven el acceso, la piscina, la vivienda y el muelle.

El edificio Altamira se presenta como una especie de caja de hormigón troquelada habitable, donde se extreman las posibilidades de las relaciones, estructura / cerramiento, soporte / soportado. Aquí el cierre es la estructura y el soporte es lo soportado, se difuminan los elementos triliticos de losas, vigas y columnas en un conjunto de piso pared techo estructural, ¿el antepecho es viga o la viga es antepecho? ¿Cuelga o apoya?, es decir que estas vigas serán subjetivadas según el rol que le dicte su ubicación espacial y no en relación a su eficiencia estructural. Al mismo tiempo reinterpreta la idea de vivienda en altura a partir de introducir a los espacios intermedios como gradiente escalar de lo público a lo privado. Esto se consigue subvirtiendo el orden establecido de que palier, escalera y ascensor conforman una unidad cerrada, aquí se disgregan, el ascensor se separa de la escalera contraincendio y el palier se convierte en patio terraza. Por otra parte se extreman las posibilidades espaciales de la escalera de incendio, ora incendio ora interna, permitiendo la incorporación de un local mas a la unidad, en este caso un dormitorio. El edificio busca resolver desde la flexibilidad los cambios en cuanto al uso de la vivienda o modos de habitar, el cual es actualmente utilizado como edificio de oficinas. El edificio se presenta

como una reinterpretación tipológica de la casa chorizo, esa sucesión de locales de cara a una galería.

En el Parque de Diversiones, Iglesia diseña dos pabellones, uno de sanitarios y otro de usos complementarios. Se trata de una obra donde se radicalizan las ideas en torno a la estructura y a la materialidad, aquí la idea de lo arcaico se presenta en el uso de los troncos de madera a manera de columnas primitivas, y como los dólmenes, éstas se sostienen porque son sometidas al peso del elemento horizontal. En esa misma dirección se busca subvertir el orden de las cosas, aquello que generalmente se plantea al resguardo de vistas pudorosas (el área de sanitarios) se ilumina y se configura como faro ordenador. Se busca diluir o cuestionar las capacidades semánticas de los elementos arquitectónicos. Para ello se cuelga todos los tabiques de hormigón para ejercer presión sobre las columnas y de esa manera estabilizarlas ante los empujes horizontales, el camino de las cargas en su búsqueda del suelo será motivo de engaño consciente por parte de Iglesia, buscando generar la inestabilidad del “espectador” o el usuario. Aquí un simple bloque de servicios se vuelve espectáculo latente o ilusorio.

El legado más importante que nos ha dejado Iglesia, además de su obra paradigmática, creativa y controversial, es su actitud crítica provocativa de lo real. Iglesia nos advierte en forma desafiante que la Arquitectura aun no ha entregado todo lo que puede hacerlo, siendo entonces dicha advertencia, un llamado a las presentes y futuras generaciones a desentrañar ese desafío.

HOMENAJE
75 capba IX PROGRAMA COMUNICACIONAL

Paulo Mendes Da Rocha

Royal Gold Medal de Arquitectura 2017

El Premio anual del RIBA fue entregado este año al arquitecto paulista por adopción, Paulo Mendes da Rocha en una ceremonia llevada a cabo el 1º de febrero pasado. Al momento de la premiación, la presidente de RIBA y del comité de selección, Jane Duncan señaló que “la obra de Paulo Mendes da Rocha es muy inusual en comparación con la mayoría de los arquitectos más celebrados del mundo. Es un arquitecto con una increíble reputación internacional. Sin embargo, la mayoría de sus obras están construidas exclusivamente en su país natal. Revolucionario y transformador, la obra de Mendes da Rocha tipifica la arquitectura de Brasil de la década del 50: el hormigón expuesto y bellamente trabajado”.

En efecto, a pesar de su reputación internacional, son pocas las obras de Mendes da Rocha construidas fuera de Brasil, como el Pabellón de Brasil en la Expo ‘70 de Osaka (Japón) o el Museo Nacional de los Coches (2015) en Lisboa (Portugal).

Asimismo, la presidente agregó en la premiación que al ser Paulo Mendes un arquitecto de clase mundial y una verdadera leyenda viviente, sentía un gran honor al hacerle entrega de la medalla de oro real del mundo de la arquitectura.

Revolucionaria y transformadora, la obra de Mendes da Rocha muestra al mundo la arquitectura de la década de 1950 en Brasil y suma este galardón a la historia del país, considerando que Oscar Niemeyer era hasta el momento, el único arquitecto brasileño que había recibido ese honor (1998).

Mendes da Rocha, quien en anteriores oportunidades recibió el Premio Mies van der Rohe (2000), el Premio Pritzker (2006), el León de Oro de la Bienal de Venecia por su trayectoria (2016), el Premio Imperial de Japón (2016), y recibió dos veces la Ordem do Mérito Cultural de Brasil (2004 y 2013), comentó durante la ceremonia: “Después de tantos años de trabajo, es una inmensa alegría recibir este reconocimiento del Royal Institute of British Architects por las contribuciones que mi obra y experimentos llevaron al progreso de la arquitectura y la sociedad”.

Agregó luego que le gustaría enviar sus mejores deseos a todos los que comparten su pasión, en particular, los arquitectos británicos y compartir ese momento con todos los arquitectos e ingenieros que han colaborado en sus proyectos.

76 capba IX PROGRAMA COMUNICACIONAL
El Arquitecto brasileño de renombre internacional Paulo Mendes da Rocha recibió el 1º de febrero de este año la Royal Gold Medal de Arquitectura 2017, distinción que se le otorgó en reconocimiento a la obra realizada a lo largo de toda su trayectoria.

SU TRAYECTORIA

Paulo Mendes da Rocha nació en octubre de 1928 en Vitória, puerto y capital de Espírito Santo, Brasil. Hijo de un ingeniero naval y un ama de casa de origen italiano cuya familia había emigrado a Brasil, se mudó con sus padres a San Pablo cuando su padre asumió la coordinación de la formación naval y portuaria en la Escuela Politécnica de la Universidad de San Pablo en 1940.

Paulo se graduó en 1954 en la Mackenzie University Architecture School y se dedicó al proyecto de casas, edificios de apartamentos, museos, proyectos urbanos, estaciones y equipamiento deportivo, mobiliario y sets de teatro.

En 1957 ganó un concurso para la construcción de un gimnasio –el Clube Atlético Paulistano- y a partir de allí comenzó su reconocimiento público, ganando el premio principal de la 6º Bienal de San Pablo en 1961. Más tarde, en 1968 ganó el concurso para el Pabellón Brasileño en la Expo Osaka 70. Le siguieron numerosos trabajos célebres como la capilla de San Pedro (1987), la escultura brasileña Museo MuBE (1988), Patriarca Plaza (19922002), la Pinacoteca do Estado galería (1993) y el Centro Cultural FIESP (1997). Fuera de Sao Paulo, edificios notables incluyen el estadio de fútbol Serra Dourada en Goiás (1973), la Capilla Señora de la Concepción en Recife (2006) y Cais das Artes, centro de artes en Vitória (2008).

Sus edificios culturales son notables, construidos en un particular estilo brutalista brasileño, de estructuras de hormigón a la vista y acabados rugosos, ampliamente acreditados en la transformación de la ciudad de Sao Paulo.

Ya en referencia a otra escala, entre los muebles que ha diseñado es reconocida la silla ‘Paulistano’, publicada en la revista magazine ‘New Furniture, Neue Möbel, Meubles Nouveaux, Verlag Gerd Hatje’, Stuttgart, 1958. Mendes da Rocha también incursionó en el mundo académico, al que se unió en los ’60 cuando fue invitado a enseñar en la Escuela de Arquitectura y Urbanismo de la Universidad de San Pablo (períodos 1960 a 1969 y 1980 a 1998). En 2010 recibió el título de profesor emérito. Además fue presidente del Instituto Brasileño de Arquitectos entre 1972 y 1986.

Sobre la Medalla de Oro Real

Es la distinción que entrega RIBA (Royal Institute of British Architects) a una persona o grupo de personas que tengan una significativa influencia “ya sea directa o indirectamente en el avance de la arquitectura”. Se otorga desde 1848 en reconocimiento no a una sola, sino a un conjunto de obras. Entre los galardonados se encuentran Zaha Hadid (2016), Frank Gehry (2000), Oscar Niemeyer (1998), Norman Foster (1983), Frank Lloyd Wright (1941) y Sir George Gilbert Scott (1859).

Fuentes:

https://www.architecture.com/Awards/RGM/RGM2017/PauloMendesDaRocha.aspx

http://www.plataformaarquitectura.cl/cl/804581/paulo-mendes-da-rocha-recibe-la-royal-gold-medal-de-arquitectura-2017

http://noticias.arq.com.mx/Detalles/22137.html#.WKmmJG_hCM8

DISTINCIÓN INTERNACIONAL
77

ACTIVIDAD PROFESIONAL EN EL DISTRITO IX

Revisión de los índices de actividad en el último quinquenio, las dificultades del año 2016 y las expectativas futuras

Desde hace 5 años, el CAPBA IX realiza sistemáticamente el análisis de la actividad profesional en el territorio distrital. En ese sentido, periódicamente se publica en esta revista la información de mayor relevancia y se la contrasta con los índices de la construcción y las políticas macroeconómicas que inciden en la industria. Por ello, en este número profundizamos algunos análisis que preocupan por el empobrecido escenario de la actividad profesional de los arquitectos.

EL PERÍODO 2012-2016

Desde el 1º semestre de 2015 los registros de proyectos de obras a construir en el ámbito distrital han ido en franco retroceso, desde entonces hasta fines del año que recién culmina la merma ha sido del 24%. En efecto, el año 2014 presenta el mayor registro de metros cuadrados a construir del quinquenio 2012-2016 con una superficie de 750.954 m2 anuales, desde entonces la tendencia ha ido en baja con leves repuntes en los segundos semestres de cada año pero que no recomponen una tendencia positiva. [Ver gráfico Registro Proyecto 2012-2016 con tendencia]

Registro de la actividad 2012-2016 por semestre. Linea de tendencia polinómica.

Evolución semestral 2012-2016

Semestre m2

1º 2012 275.844,00

2º 2012 364.032,00

1º 2013 327.464,00

2º 2013 364.440,00

1º 2014 462.458,00

2º 2014 288.496,00

1º 2015 326.891,00

2º 2015 351.938,00

1º 2016 258.154,00

2º 2016 313.982,00

TOTAL 3.333.699,00

Por otro lado, el año 2016 presenta el registro más bajo de los últimos 5 años, con 572.136 m2 por proyecto casi 200 mil metros cuadrados menos que aquel del año 2014; mientras que el 1º semestre del año 2016 ha sido el de menor cuantía desde el año 2012. [Ver Cuadro Registro Proyectos 2012-2016]

w
capba IX INSERCIÓN PROFESIONAL 78

EL AÑO 2016. PROYECTO, INFORME TÉCNICO Y MEDICIONES

En un análisis de los niveles de actividad durante todo el año 2016 vemos que el 62% de la superficie presentada por proyecto corresponde al rubro vivienda, le siguen industria [10%], cocheras [7.8%] y comercio [6.3%], mientras que el resto de los tipos de obra no tienen casi incidencia en el cuadro general. Resulta preocupante la baja cantidad de superficies destinadas a rubros vinculados a actividades productivas, fundamentalmente industria y comercio; sin embargo, algunos emprendimientos de gran escala anunciados en la ciudad de Mar del Plata se encuentran en etapa de anteproyecto y factibilidad por lo que entendemos aún no se reflejan en este análisis estadístico. [Ver Cuadro Proyecto Tipo de Obra, Cuadro y Gráfico de Incidencia Anual 2016 en Proyecto por Tipo de Obra]

ESTADÍSTICAS
Proyecto Tipo de Obra (por semestre en m2 y monto de obra) Tipo de Obra 1º semestre 2º semestre Total Año 2016 Sup. (m2) Monto de Obra ($) Sup. (m2) Monto de Obra ($) Sup. (m2) Monto de Obra ($) Administración 5.705 $ 24.846.618 18.403 $ 185.248.191 24.108 $ 210.094.808 Bancos y Finanzas 61 $ 1.785.038 336 $ 3.780.338 397 $ 5.565.375 Carteles de Propaganda 0 $ 50.000 0 $ 405.108 0 $ 455.108 Cocheras 8.029 $ 29.720.410 36.427 $ 109.995.531 44.456 $ 139.715.940 Comercio 12.273 $ 75.603.297 23.707 $ 157.947.096 35.980 $ 233.550.394 Culto, Arquitectura Funeraria- Cementerios 104 $ 768.742 74 $ 813.780 177 $ 1.582.522 Cultura, Esparcimiento y Espectáculos 0 $ - 794 $ 15.948.130 794 $ 15.948.130 Deportes y Recreación 3.210 $ 12.494.262 1.007 $ 4.906.981 4.216 $ 17.401.243 Educación 2.865 $ 13.542.543 1.689 $ 12.715.235 4.554 $ 26.257.778 Espacios Urbanos 0 $ 3.341.218 10.285 $ 4.569.093 10.285 $ 7.910.311 Estaciones de Servicio 0 $ - 139 $ 750.125 139 $ 750.125 Estructuras Comunes para Edificios 378 $ 468.698 2.688 $ 3.728.247 3.065 $ 4.196.944 Gastronomía 4.653 $ 28.351.679 3.578 $ 26.811.213 8.232 $ 55.162.892 Hotelería 9.885 $ 56.113.728 5.395 $ 62.352.406 15.280 $ 118.466.134 Industriales y Almacenaje 28.270 $ 81.027.461 28.556 $ 90.584.377 56.826 $ 171.611.838 Instalaciones para Edificios 184 $ 6.235.844 643 $ 2.121.129 827 $ 8.356.974 Salud 4.867 $ 36.401.793 2.772 $ 15.994.719 7.639 $ 52.396.512 Vivienda en General 177.670 $ 1.291.166.331 177.490 $ 1.405.436.163 355.160 $ 2.696.602.495 Totales por Semestre 258.154 $ 1.661.917.661 313.982 $ 2.104.107.860 572.136 $ 3.766.025.521 79

Incidencia anual 2016 en proyecto por tipo de obra

Dentro del rubro vivienda, la categoría que mayor porcentaje presenta es la Vivienda Unifamiliar Categoría Superior [30%], luego Vivienda Multifamiliar hasta 4 pisos [26%], Vivienda Multifamiliar de más de 4 pisos [23%], Vivienda Unifamiliar Categoría Suntuosa [11%] y finalmente Vivienda Tradicional de Albañilería hasta 10m2 [9%]. [Ver Cuadro Proyecto Vivienda]

Cabe mencionar que a partir del 1º de septiembre de 2016 el Consejo Superior del CAPBA estableció, en criterio coincidente con la CAAITBA, nuevas categorías de obra en el rubro vivienda que en este caso han sido asimiladas a las categorías pre-existentes para unificar el criterio de publicación.

Proyecto Vivienda (por semestre en m2 y monto de obra)

En el análisis de la tarea de informe técnico o peritaje, vemos que los montos de obra más significativos siguen siendo los correspondientes al rubro Mantenimiento de Edificios [83%] lo que resulta constante a través de los años; sigue a este rubro el de vivienda [14%], dejando al resto de las categorías de obra casi sin incidencia en esta tarea profesional. [Ver Cuadro Informe Técnico Tipos

Tipo de Obra Total Año 2016Total Año 2016 Sup. (m2)Porcentaje (%) Vivienda en General 355.16062,08% Industriales y Almacenaje 56.8269,93% Cocheras 44.4567,77% Comercio 35.9806,29% Administración 24.1084,21% Hotelería 15.2802,67% Espacios Urbanos 10.2851,80% Gastronomía 8.2321,44% Salud 7.6391,34% Educación 4.5540,80% Deportes y Recreación 4.2160,74% Estructuras Comunes para Edificios3.0650,54% Instalaciones para Edificios 8270,14% Cultura, Esparcimiento y Espectáculos7940,14% Bancos y Finanzas 3970,07% Culto, Arquitectura Funeraria-Cement.1770,03% Estaciones de Servicio 1390,02% Carteles de Propaganda 0 0,00% Total 572.136,44100,00%
Tipo de Obra 1º semestre 2º semestre Total Año 2016 Sup. (m2) Monto de Obra ($) Sup. (m2) Monto de Obra ($) Sup. (m2) Monto de Obra ($) Unifamiliar hasta 100m2 13.692 $ 76.958.317 17.336 $ 111.628.226 31.028 $ 188.586.543 Unifamiliar de Cat. Superior 64.056 $ 473.668.693 43.079 $ 347.769.443 107.135 $ 821.438.136 Unifamiliar de Cat. Suntuosa 16.111 $ 166.888.370 23.152 $ 231.627.592 39.263 $ 398.515.962 Multifamiliar hasta 4 pisos43.503 $ 277.920.369 48.126 $ 345.456.844 91.629 $ 623.377.213 Multifamiliar más de 4 pisos37.576 $ 276.961.173 42.518 $ 356.133.381 80.094 $ 633.094.554 Industrializada 130 $ 555.171 137 $ 741.749 268 $ 1.296.920 Vivienda Interés Social 515 $ 163.383 229 $ 71.996 744 $ 235.380 Mantenimiento de edificios 0 $ 10.024.445 0 $ 707.000 0 $ 10.731.445 Piscinas 2.086 $ 8.026.410 2.913 $ 11.299.932 4.999 $ 19.326.341 Totales por Semestre 177.670 $ 1.291.166.331 177.490 $ 1.405.436.163 355.160 $ 2.696.602.495
de
Informe Técnico Tipo de Obra (por semestre en m2 y monto de obra) Tipo de obra 1º semestre 2º semestre Total Anual Sup. (m2) Monto de Obra ($) Sup. (m2) Monto de Obra ($) Sup. (m2) Monto de Obra ($) Administración 89 6.834.848 0 3.091.73289 9.926.580 Bancos 0 2.580.412 0 0 1 2.867.361 Cartelería 192.372 0 0 0 192.372 Cocheras 69 186.084 1 286.95070 473.034 Comercio 706 4.702.564110 1.383.860816 6.086.423 Educación 1.918.355396 6.261.729396 8.180.084 Estrucutras comunes edificios 88 118.800 88 118.800 Gastronomía 0 02 36.144 2 36.144 Hotelería 0 1.368.804 0 1.955.437 0 3.324.241 Industria 1.678 6.986.8311.919 6.717.4843.597 13.704.315 Instalaciones para Edificios 1.384 348.82668 218.0911.453 566.917 Mantenimiento de Fachadas 0 449.898.129 0 547.662.412 0 997.560.540 Salud 0 2.480.000324 1.213.037324 3.693.037 Vivienda en General 4.527 66.368.0205.660 103.654.71210.187 170.022.732 Totales por Semestre 8.383 534.190.3298.479 669.102.90516.862 1.203.293.234 capba IX INSERCIÓN PROFESIONAL 80
Obra]

Dentro del tipo de obra vivienda y siempre observando el monto de obra implicado -dado que por esta tarea habitualmente se informan modificaciones internas o pericias que no aplican a la superficie construida-, se advierte que la mayor incidencia corresponde a vivienda multifamiliar en todas sus modalidades [85%], sin contabilizar el mantenimiento edilicio, seguido por la vivienda unifamiliar de categoría superior [10%]. [Ver Cuadro Informe Técnico Vivienda]

Respecto de las mediciones, se analizaron aquellas que registran aporte por Art. 29, las que corresponden a obra a regularizar por ser construidas sin permiso municipal. En este caso, durante el año 2016, se presentaron en el Colegio de Arquitectos 272.363 m2 de superficie; el tipo de obra con mayor incidencia en esta tarea fue el de vivienda [40%], luego industria y almacenaje [28%], deportes [16%], mientras que el resto de los ítems de obra no presentan incidencia significativa. La cantidad de metros cuadrados a regularizar representa casi el 50% de la superficie que se presenta a construir, lo que resulta una cifra alarmante y denota la falta de control sobre la obra clandestina. [Ver Cuadro Mediciones con Artículo 29]

ESTADÍSTICAS
Informe Técnico Vivienda (por semestre en m2 y monto de obra) Tipo de Obra 1º semestre 2º semestre Total Año 2016 Sup. (m2)Monto de Obra ($)Sup. (m2)Monto de Obra ($)Sup. (m2)Monto de Obra ($) Unifamiliar hasta 100m2 137 $ 727.503 728 $ 6.163.840 865 $ 6.891.343 Unifamiliar de Cat. Superior 1.594 $ 13.763.371 405 $ 2.692.720 1.999 $ 16.456.091 Unifamiliar de Cat. Suntuosa 0 $ - 188 $ 2.439.720 188 $ 2.439.720 Multifamiliar hasta 4 pisos 1.962 $ 14.076.591 1.521 $ 15.820.390 3.483 $ 29.896.982 Multifamiliar más de 4 pisos 807 $ 37.721.805 2.818 $ 76.538.041 3.626 $ 114.259.846 Piscinas 26 $ 78.750 0 $ - 26 $ 78.750 Totales por Semestre 4.527 $ 66.368.020 5.660 $ 103.654.712 10.187 $ 170.022.732
81

En cuanto al rubro vivienda, se registró en forma desagregada por categoría, observando que la mayor incidencia la registra el tipo vivienda unifamiliar categoría superior [39%], a la que le siguen vivienda multifamiliar de más de 4 pisos [23%], vivienda multifamiliar hasta 4 pisos [21%], vivienda unifamiliar hasta 100 m2 [9%] y vivienda unifamiliar categoría suntuosa [7%]. Teniendo en cuenta que la vivienda multifamiliar corresponde a un tipo de obra de mediana a gran escala y que en este análisis suman el 46%, nuevamente se denota la falta de control que existe sobre las construcciones sin permiso. [Ver Cuadro Mediciones Vivienda con Artículo 29]

Mediciones con Artículo 29 Categoría de Obra 1º semestre 2º semestre Anual 2016 Sup. (m2) Monto de Obra ($) Sup. (m2) Monto de Obra ($) Sup. (m2) Monto de Obra ($) Administración 6.738 $ 22.172.680 3.029 $ 52.591.530 9.767 $ 74.764.210 Bancos y Finanzas 324 $ 1.497.866 0 $ - 324 $ 1.497.866 Carteles de Propaganda 0 $ 77.000 0 $ - 0 $ 77.000 Cocheras 2.744 $ 14.167.994 479 $ 3.869.953 3.222 $ 18.037.948 Comercio 9.700 $ 103.604.524 8.869 $ 198.391.952 18.568 $ 301.996.476 Culto, Arquitectura Funeraria-Cementerios 201 $ 1.839.875 0 $ - 201 $ 1.839.875 Cultura, Esparcimiento y Espectáculos 50 $ 1.992.978 1.522 $ 28.270.994 1.571 $ 30.263.972 Deportes y Recreación 43.757 $ 43.642.636 942 $ 22.699.723 44.699 $ 66.342.358 Educación 1.399 $ 40.329.616 862 $ 24.015.159 2.261 $ 64.344.775 Espacios Urbanos 0 $ 100.000 0 $ 754.471 0 $ 854.471 Estaciones de Servicio 1.163 $ 967.896 0 $ - 1.163 $ 967.896 Estructuras Comunes para Edificios 0 $ - 0 $ - 0 $Gastronomía 718 $ 9.644.345 1.020 $ 13.839.946 1.738 $ 23.484.291 Hotelería 727 $ 9.462.002 1.490 $ 29.960.726 2.217 $ 39.422.729 Industriales y Almacenaje 40.637 $ 217.488.539 34.672 $ 238.615.913 75.309 $ 456.104.452 Instalaciones para Edificios 0 $ 455.000 160 $ 2.265.327 160 $ 2.720.327 Salud 486 $ 7.687.918 622 $ 13.301.783 1.109 $ 20.989.701 Vivienda en General 56.122 $ 616.486.515 53.931 $ 1.004.921.225 110.053 $ 1.621.407.740 Totales por Semestre 164.765 $ 1.091.617.384 107.598 $ 1.633.498.702 272.363 $ 2.725.116.086
Mediciones Vivienda con Artículo 29 Categoría de Obra 1º semestre 2º semestre Anual 2016 Sup. (m2) Monto de Obra ($) Sup. (m2) Monto de Obra ($) Sup. (m2) Monto de Obra ($) Unifamiliar hasta 100m2 8.705 $ 39.659.750 11.751 $ 106.191.091 20.456 $ 145.850.841 Unifamiliar de Cat. Superior 23.472 $ 305.601.361 18.803 $ 332.026.169 42.274 $ 637.627.530 Unifamiliar de Cat. Suntuosa 1.486 $ 27.065.768 1.862 $ 77.410.217 3.348 $ 104.475.985 Multifamiliar hasta 4 pisos 16.021 $ 158.676.663 15.417 $ 180.691.616 31.438 $ 339.368.280 Multifamiliar más de 4 pisos 1.388 $ 76.486.948 3.240 $ 299.193.257 4.628 $ 375.680.205 Industrializada 0 $ - 0 $ - 0 $Vivienda Interés Social 2.287 $ 101.621 455 $ 173.202 2.742 $ 274.822 Mantenimiento de edificios 0 $ 5.505.721 73 $ 5.955.162 73 $ 11.460.883 Piscinas 2.763 $ 3.388.683 2.331 $ 3.280.512 5.094 $ 6.669.195 Totales por Semestre 56.122 $ 616.486.515 53.931 $ 1.004.921.225 110.053 $ 1.621.407.740 capba IX INSERCIÓN PROFESIONAL 82

Reflexiones del escenario presente y futuro

El crítico escenario hasta aquí expuesto se agudizó durante el año 2016 frente a una devaluación del poder adquisitivo de los sectores medios y la falta de desarrollo de la obra pública en diferentes niveles y regiones. Dicho escenario ha impactado negativamente en la actividad de los arquitectos y por ende es una constante preocupación del Colegio de Arquitectos.

Ante lo analizado y desarrollado, vale decir que además de la disminución de presentación de legajos en toda la región, los legajos que se identifican con financiamiento Pro.Cre.Ar. son casi nulos desde hace más de un año. Esta situación, también se refleja en la recaudación que la Institución percibe por Cuota de Ejercicio Profesional (CEP) la que casi se ha mantenido en valor nominal y que representa una caída del 30% interanual.

Pese al problemático escenario, en términos económicos, el Colegio de Arquitectos ha mantenido los servicios y beneficios que brinda a sus matriculados ofreciendo descuentos en matrícula por pago adelantado, seguro de accidentes personales, préstamos solidarios, compras comunitarias, asesorías, cursos, entre otras acciones. Sin embargo, pese a los esfuerzos realizados permanentemente la situación de mayor preocupación refiere a la generación de oportunidades de inserción profesional para los arquitectos.

Entendemos que es necesario instrumentar políticas públicas que creen condiciones de mejoras al sector de la construcción, lo que debe estar acompañado de devolver capacidad de ahorro para diferentes segmentos de la población, la recuperación del salario, oferta de crédito hipotecario -no sólo para la movilización del mercado inmobiliario- sino además para la construcción nueva y ampliaciones con destino a la vivienda y a emprendimientos productivos, entre otras iniciativas.

Por otro lado, en virtud de las nuevas modificaciones que redefinen el perfil del Programa de Crédito Argentino (Pro.Cre.Ar.) es necesario señalar que, además de recuperar la operatoria para el financiamiento de obra nueva o ampliación, es necesario resolver las dificultades de acceso al suelo urbano para los beneficiarios del programa, así como atender las dificultades de centenares de familias que han quedado con los trámites incompletos o con obras sin concluir por diferentes situaciones. También resulta alentador el paulatino movimiento económico que genera el complejo agroexportador, lo que impacta en la región y con mayor énfasis se advierte en la zona de Necochea-Quequén, Balcarce y Lobería y que entendemos su potencial alcanza a toda la región del Distrito IX.

Asimismo, como todo período de crisis resulta una oportunidad para rever escenarios y planificar acciones de corto, mediano y largo plazo. Estas acciones, desde la perspectiva del desarrollo de las ciudades, como ámbito de ejercicio de la actividad de los arquitectos, deben estar centradas en planificar el desarrollo urbano con equilibrio social y ambiental, para lo cual desde nuestro Colegio Profesional debemos instar a la creación de los espacios de participación que nos permita realizar los aportes disciplinares que propicien la concreción de objetivos acordados.

Por ello, desde el CAPBA IX manifestamos que resulta imperioso concretar las mejoras antes enunciadas, promover el mejoramiento de la industria de la construcción, alentar la inversión pública y privada con un fuerte rol del Estado en todos sus niveles -que actué tanto de promotor como agente de control- para garantizar crecimiento y desarrollo con equidad, igualdad y nuevas oportunidades para todos los sectores de la población.

ESTADÍSTICAS 83

Con la presidencia a cargo de la Arq. Julia Romero y la designación como secretarios de Asamblea de los Arquitectos Daniel Monzón y Adriana Lucchetti, se llevó a cabo la Asamblea Anual Ordinaria del CAPBA IX, cuyo Orden del Día incluía:

1) Designación de dos Secretarios de Asamblea.

2) Consideración de la Memoria y Balance del Ejercicio que finalizó el 30/9/16.

3) Fijación de las Cuotas de Inscripción en la Matrícula, Matriculación Anual y Cuota de Ejercicio Profesional para el año 2017.

4) Fijación del régimen de pago de matrícula y CEP para el año 2017.

5) Consideración del Presupuesto de Gastos y Recursos para el Ejercicio Nº 31

6) Designación de dos Asambleístas p/refrendar con su firma el Acta de Asamblea.

En la oportunidad se resolvió:

o Se aprobaron la memoria y el balance del ejercicio que finalizó el día 30 de septiembre de 2016. El Arq. Horario Goyeneche de la Comisión Revisora de Cuentas intervino finalizada la exposición de la CPN Claudia Pedersen solicitando aclaración sobre la posibilidad de pago de remesas atrasadas al Consejo Superior, recursos disponibles para ello y plazos, lo que dio lugar a intercambio de información y posibilidades por parte de la Presidente, el Tesorero y algunos presentes.

En la Asamblea se tomó el compromiso de regularizar el pago desde la fecha, hasta el 31 de marzo de 2017.

o Se aprobó por unanimidad llevar la postura a la Asamblea Anual Ordinaria del Consejo Superior de actualizar en un 25% la actualización del costo de

Asamblea Anual

Ordinaria del CAPBA IX

El pasado 30

en la Sede Distrital del CAPBA IX

la matriculación anual. Dicha actualización permitirá continuar brindando servicios y beneficios a los colegas que mantienen vigente su matrícula en el CAPBA.

o Se acordó por unanimidad llevar como postura a la Asamblea Anual Ordinaria del Consejo Superior, el mantener la alícuota vigente para la CEP y promover la realización de un estudio sobre la estructura económico-financiera del CAPBA con el objetivo de tender a bajar la presión tributaria sobre los colegas.

o Se aprobó por unanimidad mantener el régimen de pago de matrícula y CEP vigentes, así como los descuentos otorgados por el Consejo Superior y el Distrito IX y la bonificación del 50% en la matrícula a los nuevos matriculados.

o Se aprobó el Presupuesto de Recursos y Gastos para el Ejercicio N° 31. En esta oportunidad no se trató en la Asamblea Plan de Acción para el año siguiente como tradicionalmente ocurre. Considerando que esta Asamblea Anual Ordinaria era la última presidida por la gestión saliente, se trató el presupuesto 2016-2017 para el ejercicio nº31 pero no así el Plan de Acción que se dejó librado a la propuesta de las autoridades entrantes. Una vez elaborado, se convocaría a Asamblea Extraordinaria.

o Los colegas que fueron designados para rubricar el acta de asamblea, fueron los Arqs. Martín Sarasíbar y Martha Pérez Schneider.

Agradecemos a todos los colegas que asistieron a la Asamblea Distrital, a quienes han colaborado en el último ejercicio desde diferentes frentes de acción, destinando parte de su tiempo a la valiosa labor de consolidar el trabajo en equipo, a los miembros del Consejo Directivo y al Delegado al Consejo Superior.

de noviembre se desarrolló
84 FORTALECIMIENTO Y VÍNCULOS INSTITUCIONALES capba IX

Nuestro ‘hasta luego’ al arquitecto

En el mes de febrero el CAPBA IX recibió la noticia del deceso de Miguel Golomb, amigo, arquitecto, profesor y miembro de la Primera Mesa Ejecutiva del Consejo Superior CAPBA. Desde Info CAPBA y a través del recuerdo del Arq. Daniel Medina, nos despedimos con una semblanza que conmemora su entrañable paso por las vidas de tantos colegas.

El fallecimiento de Miguel Golomb ha producido tremenda desazón en nuestra matrícula y también en otros sectores de esta ciudad de Mar del Plata, a la que se sumó a principios de los años sesenta. Es que su desempeño en distintos ámbitos estuvo siempre caracterizado por su compromiso y responsabilidad con la actividad que asumiera, que lo llevaron a multiplicar sus esfuerzos y -por ende- a recibir el reconocimiento de quienes lo acompañaron, lo observaron o recibieron los beneficios de sus acciones.

El auge de la industria de la construcción en Mar del Plata lo atrajo y determinó que aquí se radicara a principios de los años sesenta, dejando interrumpidos sus estudios de Arquitectura en Buenos Aires, su ciudad de origen. Desde entonces, trabajó proyectando y dirigiendo obras de distinto tipo, algunas construidas asociado al ingeniero Toha -durante las décadas del ’60 y ’70- entre las que se cuentan los valorados edificios en propiedad horizontal de las calles San Luis y Falucho, en los que entre sus cualidades arquitectónicas se destacan las resoluciones expresivas, la calidad de los materiales y estudiados detalles constructivos.

Para entonces, ya afincado definitivamente en nuestra ciudad, abordó la difícil y esforzada tarea de reiniciar sus estudios de Arquitectura en la Facultad local, con treinta y tres años y sus tres -aún pequeños- hijos. Quienes lo conocimos en esos sus primeros años en la Facultad, nos encontramos con un compañero capaz, aplicado, que con esfuerzo encomiable llevaba al día la carrera y trabajaba, sosteniendo a su familia, en empresas constructoras y/o asociado a otros profesionales. A esa época correspondió la ya demolida Boîte “Banana”, en la Avda. Constitución, publicada por la revista SUMMA en un número dedicado a la arquitectura de Mar del Plata. Sus compromisos con la vida profesional no impedían que se integrara como uno más entre los estudiantes en los cursos y grupos de estudio. Y aún cuando a algunos casi nos doblaba en edad (condición acentuada por sus prematuras canas), toleraba las impuntualidades o el discontinuo compromiso con que unos u otros de sus compañeros (no) correspondían al ejemplo que él bridaba, de contracción al estudio. Su condición de algunos años mayor que el promedio lo convirtieron en referencia, punto de apoyo en el quehacer estudiantil y en otros aspectos de la vida de unos varios de nosotros, dado el espíritu generoso y solidario que siempre lo caracterizó. ¿Quiénes de aquellos no le hemos quedado debiendo algo a Miguelito?

Entre finales de los ’60 y mediados de los ’70, cuando la participación política estudiantil fue tan intensa, no le conocimos militanciao adhesión explícita a una u otra agrupación, pero siempre estuvo atento al devenir de los tiempos, expresando su voluntad por una sociedad democrática, más justa e igualitaria. Seguramente, tales convicciones determinaron que fuera

cesado en sus funciones como docente universitario con la irrupción de la Dictadura Militar, al poco tiempo de haberse recibido.

La recuperación de la Democracia lo tuvo entre quienes participaron activamente en la reorganización de nuestra Facultad de Arquitectura y de la Universidad Nacional de Mar del Plata. Así es que se desempeñó como consejero académico en los primeros años de la normalización, interviniendo en la reestructuración del Plan de Estudios.

Poco después se sumó como docente en las cátedras de Urbanismo y de Economía y Organización de Obras, de la que fue titular. También ocupó durante un período el cargo de Secretario de Extensión Universitaria de nuestra Facultad.

Durante esos primeros años del restablecimiento de la vida democrática en nuestro país participó activamente de la Asociación de Arquitectos de Mar del Plata, desde la cual contribuyó a la sanción de la Ley de Colegiación de los Arquitectos de la Provincia de Buenos Aires. Asumió luego el cargo directivo de Tesorero del Consejo Superior, en la primera Mesa Ejecutiva, período que implicó la puesta en funcionamiento y la organización inicial del CAPBA, en cuanto a su sistema económico financiero.

Paralelamente, realizó tareas de asesoramiento ad honorem a las comisiones del Honorable Concejo Deliberante, en temas propios de la profesión, particularmente en los referidos a la modificación y/o sanción de normativas urbanísticas.

Durante sus últimas épocas de ejercicio profesional abordó obras de diferentes temáticas y complejidad, siendo premiado con el segundo premio de la Categoría Edificios en Altura del año 1995 del Colegio de Arquitectos por el edificio de Lamadrid entre Gascón y Falucho.

Quienes tuvimos la oportunidad de desempeñarnos profesionalmente junto a él en una u otra época, supimos reconocer y admirar su contracción al trabajo, su afán perfeccionista y su capacidad para resolver integralmente los aspectos proyectuales y técnico-constructivos de las obras con solvencia y oficio.

Esta breve semblanza de Miguel Golomb procura dar cuenta de su condición de arquitecto sólido y apasionado de su profesión, pero especialmente de un ser humano querido y querible -de los que llamamos irremplazables- que seguirá guiando las acciones individuales y colectivas de quienes tuvimos la oportunidad de valorar sus ejemplos. Su ausencia la seguiremos lamentando profundamente, pero sin dejar de tener al mismo tiempo, una sonrisa agradecida cada vez que recordamos su legado.

M I G U E L G O L O M B a r q u i t e c t o 1931-2017
HOMENAJE
85 FORTALECIMIENTO Y VÍNCULOS INSTITUCIONALES capba IX

El CAPBA

renovó Autoridades en el

Distrito y Provincia Reseña de los comicios desarrollados el 15 de noviembre

El pasado 15 de noviembre, se desarrollaron los comicios para la elección de nuevas autoridades para el período 2016-2019 del CAPBA a nivel provincial y distrital. Por ello, en esta edición realizamos una reseña del resultado de dicha elección y la nómina de autoridades electas en la oportunidad.

Elecciones Provinciales

Como resultado de la elección realizada en toda la Provincia de Buenos Aires en la que se encontraban habilitados 14.407 matriculados, concurrieron a votar 7.005 arquitectos [48%] en los diez distritos que integran el CAPBA.

Sobre los votos emitidos casi el 10% correspondieron a las categorías blancas y nulas, los que no son considerados para la distribución de cargos electivos.

Asimismo, la Lista Naranja, Azul y Blanco -Arquitectos a las Cosas- obtuvo 3550 votos, lo que le permitió imponerse sobre la Lista Blanca -Red de Arquitectos- a la que le correspondieron 2807 votos.

Votos emitidos para elección de autoridades provinciales

86 FORTALECIMIENTO Y VÍNCULOS INSTITUCIONALES capba IX
Distribución de votos válidos emitidos CAPBA CS

Por ello, según los porcentajes electorales, la composición de autoridades provinciales es la siguiente:

Presidente

Arq. Adela Margarita MARTÍNEZ

Vicepresidente

Arq. Ramón Alberto ROJO

Secretaria

Arq. María José BOTTA

Tesorero

Arq. Darío Néstor MACCAGNO

Consejeros

Titulares

Arq. Gustavo CASCO (DI)

Arq. Gustavo REGGIO (DIII)

Arq. José SERPI (DV)

Arq. Raúl SOTELO (DVII)

Arq. Pablo OLIVA (DIX)

Suplentes

Arq. Héctor LUCAS (DII)

Arq. Liliana MEDINA (DIV)

Arq. Guillermo BOCANERA (DVI)

Arq. Oscar CIOTTA (DVIII)

Arq. Jorge LUCAS (DX)

Tribunal de Disciplina

Titulares

Arq. Fernando P. BENGOA (DIV)

Arq. Karina CORTINA (DI)

Arq. Alfredo V. MARTINO (DII)

Arq. Marta QUAGLIA (DIX)

Arq. Gastón MICHEL (DIII)

Suplentes

Arq. Sergio LABARBA (DIV)

Arq. Roxana GONZÁLEZ (DII)

Arq. Eugenia OSTINELLI (DV)

Arq. Daniel BACIGALUPE (DIV)

Arq. Raúl H. ALBERDI (DX)

En el mismo acto comicial fueron electos los representantes del CAPBA en la Caja de Previsión Social para Agrimensores, Arquitectos, Ingenieros y Técnicos de la Provincia de Buenos Aires (CAAITBA). Los cargos electos, de acuerdo al sistema electoral previsto en la Ley 12490, son adjudicados en su totalidad a la lista que obtuviera la mayoría de los votos. Por ello, la lista de representantes proclamada fue la siguiente:

REPRESENTANTES CAAITBA

Asamblea de Representantes

Consejo Ejecutivo

Arq. Claudio VIDELA (DIII)

Arq. Silvia SAFAR (DVI)

Arq. Rosa DRAGO (DII)

Arq. Diego RIVA (DVIII)

Comisión de Fiscalización

Arq. Julio PATRICIO (DIX)

Arq. Héctor ABIUSO (DIX)

Miembros Titulares

Arq. Juan Carlos GRABONE (DIV)

Arq. Juan Carlos CARRIVALE (DII)

Arq. Eduardo PEROTTO (DIV)

Arq. Claudio COLLETTA (DVIII)

Arq. Gustavo REGGIO (DIII)

Arq. Sergio PODESTÁ (DVI)

Arq. Miguel MEDICI (DI)

Arq. Javier REY (DII)

Miembros Suplentes

Arq. Leandro TORINO (DI)

Arq. José BIAGIONI (DI)

Arq. Jorge CANEPA (DII)

Arq. María ALVISO (DIII)

Arq. Luis STRATICO (DIII)

Arq. Jorge RAPANA (DII)

Arq. Oscar FRAGAS (DII)

Arq. Héctor LUCAS (DII)

ELECCIONES 2016
AUTORIDADES CONSEJO SUPERIOR 2016-2019 87

Elecciones CAPBA IX

A nivel Distrital el padrón de matriculados habilitados para votar era de 1856 electores, concurriendo a emitir su voto 1110 colegas, lo que representa el 60% del padrón. En esta ocasión los votos de las categorías Nulos y Blancos ascendieron a 17 votos [1.5%], lo que no son considerados para la distribución de cargos electivos.

La Lista Blanca -Integración para la Gestión Colegial- que presentaba candidatos para la renovación en la conducción del CAPBA IX obtuvo la mayoría alcanzando 653 votos [60%], lo que representa un incremento respecto del porcentaje obtenido en la elección del año 2013. Por otro lado, la Lista Naranja y Verde -Apertura Colegial- consiguió 440 votos [40%].

Votos emitidos para elección de autoridades distritales Distribución de votos válidos emitidos CAPBA IX

Para el sufragio se habilitaron 10 (diez) mesas correspondientes a cada una de las sede de Delegaciones y 4 mesas en Sede Distrital, lo que permitió que la jornada se desarrollara en forma ágil y sin demoras para los matriculados. En virtud del resultado electoral, corresponde a la Lista Blanca la totalidad de los cargos de la Mesa Directiva y el Delegado al Consejo Superior; mientras que, la nómina de consejeros distritales se distribuye 50% para cada una de las listas presentadas. Por ello, la composición de las nuevas autoridades distritales queda determinada de la siguiente manera:

AUTORIDADES CAPBA IX 2016-2019

Presidente

Arq. Daniel MONZÓN

Secretaria

Arq. Analía BENÍTEZ

Consejeros Titulares

Arq. Martín SARASÍBAR

Arq. Ramón URANGA

Arq. Diego DOMINGORENA

Arq. Emanuel PEREDO

Tesorero

Arq. Bruno MAZZINI

Consejeros Suplentes

Arq. Horacio LAURIZI

Arq. Silvia RODRÍGUEZ

Arq. Adriana LUCCHETTI

Arq. Pablo VILAS

Delegado al CS

Arq. Pablo OLIVA

88 FORTALECIMIENTO Y VÍNCULOS INSTITUCIONALES capba IX

Fueron electos, además, los miembros de los Cuerpos de Jurados y Asesores del CAPBA IX los que se distribuyen de acuerdo al sistema de repartición de cargos del Consejo Directivo. Por ello, las nóminas de jurados y asesores para el período 2016-2019 quedan integradas de la siguiente forma:

CUERPO DISTRITAL DE JURADOS Y ASESORES 2016/19

Cuerpo de Jurados

Titulares

Elizabeth Aloisia María BUND

María Haydeé PÉREZ MARAVIGLIA

Alicia Elida ÁLVAREZ ITURREGUI

Luis Horacio ARROSIO

Manuel TORRES CANO

Eugenio Mario FERNÁNDEZ

Fernando Ariel GALERA

Daniel Eduardo CUTRERA

Marcelo Gabriel DORZI

María de los Ángeles ACHINELLI

José SOLLA

Eduardo ZAK

María Inés VILLAR

Miguel Ángel BERTOLUCCI

Diego Manuel NOALES

Antonino Alberto D´ORSO

Suplentes

María Silvia GRILLI

Nelson Francisco QUARATI

María Ofelia GONZÁLEZ RODRÍGUEZ

Carmen Beatriz SALERNO

Gabriel Amílcar VIDAULI

Eduardo Cesar AGÜERO

Jorge Luis GONZÁLEZ

Ernesto Ramón CALVO PIÑÓN

Cuerpo de Asesores

Titulares

Carlos Alberto RONDA

Esteban ROSSI

María Celeste SICCARDI

Alejandro Héctor NOVACOVSKY

Lelis René FERNÁNDEZ

Nora Gabriela DEMARCHI

Roxana Edith SOPRANO

Oscar Arturo CAÑADAS

Daniel Ricardo MEDINA

Norma Nilda GRECO

Pablo Fidel RESCIA

Juan Manuel ESCUDERO

Darío Héctor LEMMI

Patricia LENIZ

Silvestre CASTELLANI

Pablo MASTROPASQUA

Suplentes

Silvia Yolanda ROMA

Norberto Pablo CANEPA

Guillermo Osvaldo ECIOLAZA

Katia Beatriz ZACCANTI

Julia Alejandra ROMERO

Augusto Arnaldo URRIZOLA

Gustavo Arnaldo FABBRI

Luis Oscar PODESTA

La junta Electoral del CAPBA IX estuvo integrada por los Arquitectos

Laura Romero, Daniel Villalba, Daniel Remaggi –que asumiera por Renuncia del Arq. Pablo Mastropasqua-, como titulares, y Flavio Pittilini y Horacio Goyeneche, como suplentes, quienes fueron designados por Resolución CAPBA IX 14-16.

ELECCIONES 2016
89

La nueva mesa de conducción está presidida por el Arq. Daniel Monzón acompañado por los arquitectos Analía Benítez (secretaria); Bruno Mazzini (tesorero); Martín Sarasibar, Ramón Uranga, Diego Domingorena, Emanuel Peredo, (vocales titulares); y Horacio Laurizi, Silvia Rodríguez, Adriana Lucchetti y Pablo Vilas, (vocales suplentes), quienes fueron puestas en funciones por el delegado al Consejo Superior, Arq. Pablo Oliva.

En primer lugar, la presidenta saliente, Arq. Julia Romero, agradeció la presencia de todos, en especial a su familia que le permitió dedicarse durante nueve años a su labor colegial, a sus compañeros de Mesa y del Consejo Directivo en distintas gestiones, “valorando el trabajo en equipo que debe darse en estas instituciones” -dijo-, al personal de este Colegio y a todas las entidades con las que en los últimos años han logrado fortalecer vínculos, con una madurez y un capital social que muchas ciudades y regiones del país no tienen.

“Me encuentro a disposición de los colegas desde un rol diferente para continuar siendo parte de esta institución como un matriculado más con el cual codo a codo podamos construir y poder ayudar a nuestro Colegio en los propósitos que así acuerden y en la decisiones que tome este Consejo Directivo y que entre todos nosotros podamos llevar adelante”, concluyó.

Finalmente hizo uso de la palabra el flamante titular, Arq. Monzón quien después de agradecer a sus colegas de Consejo, familia, amigos y a la matricula en general expresó: “estamos celebrando un acto totalmente democrático donde días atrás la matrícula dijo que teníamos que seguir en el Consejo Directivo de este distrito para los tres años venideros”

“Hay equipo para trabajar, para desarrollar tareas, para afrontar problemas y eso lo fuimos viendo en los últimos tiempos. Hemos tratado de instalar al Colegio en

El CAPBA IX tiene nuevas autoridades

Asumieron las nuevas autoridades distritales

Ante una sede colmada de colegas, amigos y familiares se llevó a cabo el acto de asunción de las nuevas autoridades del Colegio de Arquitectos de la Provincia de Buenos Aires Distrito IX, para el período 2016-2019.

la comunidad, siendo partícipes en todas las actividades que nos demandan, un referente claro y eso tiene que ver con trabajar mucho con las instituciones intermedias, con los colegios y consejos profesionales, con los foros que cuando vamos todos juntos nos prestan más atención”, apuntó.

“También tenemos acciones puertas adentro como el Instituto de Estudios Urbanos que prepara material para que llevemos a esos lugares y representaremos a este Colegio con una propuesta seria, clara, firme, renovada. Por otro lado tenemos que capacitarnos para resolver aquellos requerimientos de la comunidad y tenemos que estar a punto con la arquitectura que va cambiando, con el planeamiento que día a día se modifica. Y esto se relaciona con la tercera cuestión que es el tema de la defensa gremial. Nos llamarán en tanto y en cuanto tengamos respuestas concretas, precisas y responsables y por eso tenemos que capacitarnos. Vamos buscando que esas demandas que la sociedad nos pide y la vamos trasmitiendo como en otras ocasiones a la Facultad de Arquitectura con la que también trabajamos en varias oportunidades y cuando detectamos una falencia o vemos en la calle una actividad o una tarea nueva que nace podemos transferirla a aquello del aprendizaje para que la actualización de nuestros matriculados sea un servicio lo más amplio posible frente a esa necesidad”.

Por otro lado quiero recordar que el arquitecto Roberto Cova, ha elegido al Colegio de Arquitectos para donar sus bienes materiales y su inmueble con un encargo que es que esa casa permanezca en las mismas condiciones que se encuentra hoy en día, que sea el “Museo Casa Roberto Osvaldo Cova”. Es un compromiso inmenso que hemos recibido pero que nos llena de orgullo, de satisfacción, por ser los receptores de esta elección. Se hablaba de la Municipalidad, de la Universidad pero recayó en nuestra institución y creo que debemos hacer

90 FORTALECIMIENTO Y VÍNCULOS INSTITUCIONALES capba IX

honor a esta donación del mencionado arquitecto quien es un profesional de excelencia y docente de muchos de nosotros, que sabe mucho de historia de Mar del Plata y tiene muchísimas cosas para alegarnos. Tenemos que tomar el compromiso porque es un bien que debemos valorarlo como tal y vaya nuestro agradecimiento al arquitecto Cova”.

“Asimismo deseo notar la generosidad de este grupo de trabajo que hemos formado hace unos años que decidió que yo sea el que tome una silla diferente para intentar conducir a este nuevo equipo y quiero ser público mi agradecimiento hacia ellos”.

“Les recuerdo que esta casa es de todos, está pensada para replantear nuevas tareas y actividades. Aquí y ahora el arquitecto puede venir a hacer prácticamente

toda su tarea profesional, hasta existe una sala para hacer su ejercicio y recibir sus comitentes y por eso debemos adaptarnos a los tiempos y a las tareas que nos demanda. Hay un colegio abierto para todos, ésta es la conducción del Distrito IX de todos los arquitectos”.

“Estamos terminando el año y siempre hablar de la esperanza es un buen tema yo creo fervientemente que hay que renovarla y hacerla posible. No podemos afirmar el logro o el éxito de aquellos proyectos o ideas que planteamos en la Mesa pero sí nos podemos comprometer a poner todas las ganas para llevar adelante esos proyectos independientemente que si salen o no. Ojalá que todo se dé para que tengamos un colegio mejor, una sociedad mejor y seamos mejor cada uno de nosotros", concluyó.

GESTIÓN CAPBA IX
91

Recientemente, la Empresa Pinamar S.A. presentó ante el Honorable Consejo Deliberante los proyectos de loteos para la localidad de Pinamar identificados como: EXPTE 4123-2973/16 - AGR. TRIANA PINAMAR S.A. LOTEOS LA HERRADURA NORTE Y SUR, las que constituyen ampliaciones urbanas colindantes con el loteo conocido como “Barrio La Herradura”. En el proyecto de ordenanza adjuntado se disponía el acceso restringido a estos barrios, más la conformación de consorcio de vecinos del barrio quienes se harían cargo de su administración, seguridad, recolección de residuos y mantenimiento de los espacios públicos, entre otros cargos.

El proyecto de urbanización, que debía aprobarse por ordenanza en el Concejo Deliberante local, preveía un trazado “orgánico” interrumpiendo la continuidad de la trama urbana pre-existente, el cierre perimetral de todo el barrio –aunque fuera presentado como barrio abierto-, la restricción y control de accesos condicionando la libre circulación por espacios públicos tales como calles y veredas, determinando características propias de las urbanizaciones cerradas. Por ello, ante el tratamiento de esta iniciativa en el CAU, la Delegación Pinamar del CAPBA IX expuso argumentos sobre la preocupación que despertaban algunos criterios y la posición sobre algunos principios ineludibles.

Algunas de las reflexiones expuestas fueron que:

− Considerando la situación irregular del loteo “La Herradura”, debería haber servido la situación para

Derecho a la Ciudad

Opinión de la Delegación ante nuevos loteos

Ante la iniciativa presentada por la Empresa Pinamar S.A. para la aprobación de dos nuevos barrios dentro del ejido urbano de la localidad de Pinamar, la Delegación local del Colegio de Arquitectos realizó aportes al debate previo en el seno del Consejo Asesor Urbanístico (CAU). tratar legalmente de resolver esta transgresión a la normativa actual, y también de experiencia de cómo debe actuar el Estado Municipal.

− Todo nuevo loteo que se presente como ampliación de la trama urbana actual, debería continuar armónicamente con el trazado de la misma.

− Dado proyecto presentado para aprobación de loteo abierto, con cesión de calles y espacios verdes públicos, no debería el Ejecutivo Municipal, ni el Concejo Deliberante, autorizar su privatización a manos de un consorcio de vecinos, con restricción del libre acceso público.

− El Estado Municipal no debería delegar, o tercerizar, responsabilidades sobre la manutención del espacio público y provisión de servicios de su entera responsabilidad.

− Se debería haber considerado en el articulado restricción de venta hasta tanto se efectúe la apertura de calles, obras de infraestructura, cesión de predios comprometidos según las distintas reglamentaciones provinciales.

− Defendemos y abogamos el derecho a la ciudad de todo habitante del Partido de Pinamar.

Asimismo, considerando la problemática Ambiental del Territorio se instó a incluir el aspecto ambiental en toda ordenanza de loteo a aprobar, presentando algunas iniciativas tales como:

92 FORTALECIMIENTO Y VÍNCULOS INSTITUCIONALES capba IX

− Parquización: establecer el 30% del terreno a conservar en situación natural, terreno libre restante a parquizar y/o forestar con especies de bajo requerimiento hídrico, según normativa a implementar estrictamente para los nuevos loteos presentados, en trámite de aprobación y/o los futuros a presentar.

− Planta de tratamiento Domiciliario: determinar su implementación obligatoria para todas las construcciones a realizarse en nuevos loteos.

− Zonificación Multifamiliar: subordinar su posibilidad de aprobación y densidad a aplicar, a la determinación de la capacidad de carga del Partido de Pinamar, considerando la planta urbanizada actualmente y las expansiones urbanas en trámite y futuras para cada localidad del partido.

− C.O.U./Normativa Ambiental: deberán cumplir con todas las normativas ambientales adicionales redactadas en la modificación del actual Código de Ordenamiento Urbano.

Luego del tratamiento en el Consejo Asesor Urbanístico, el Honorable Consejo Deliberante finalmente sancionó la ordenanza aprobatoria eliminando los ítems propuestos que habían generado controversias -que limitaban el pleno uso y usufructo de la ciudad- e incorporando algunas de las recomendaciones observadas por el CAPBA IX. Sin embargo, se añadió en uno de sus artículos la posibilidad que el Departamento Ejecutivo Municipal pueda acordar con la empresa loteadora algún convenio

por el manejo de la seguridad en los respectivos loteos, lo que representa una vaguedad y la posibilidad de criterios discrecionales para su aplicación.

Si bien la localidad de Pinamar cuenta con un Plan Director aprobado en el año 1987, creemos que la situación actual demanda la planificación integral del territorio del Partido, que estime la capacidad de carga del territorio en función del estudio pormenorizado del acuífero -a cargo del Dr. Geólogo Leandro Rodríguez Capitulo- y de la estimación óptima de carga del frente marítimo. Considerando, además, las continuas expansiones urbanas a las que se ve sometida la urbanización actual, tanto por parte de la empresa Pinamar S.A., como las futuras y/o en proyecto por parte de Dunas de Pinamar, localidad de Cariló, Valeria del Mar y localidad de Montecarlo, cuando pueda resolver esta última las restricciones actuales.

En ese sentido, vista la centralidad que debe asumirse respecto a la problemática del acuífero, amerita que esta situación se resuelva en forma urgente, dado que la capacidad del acuífero tiene un límite natural, y no se puede comprometer el futuro de la comunidad del partido con decisiones políticas sin el necesario respaldo técnico.

DELEGACIÓN PINAMAR
93 FORTALECIMIENTO Y VÍNCULOS INSTITUCIONALES capba IX
Arq. Ramón Uranga Delegado Pinamar CAPBA IX

El primer antecedente que tuvo registro municipal aconteció en el año 2003, donde el Departamento Ejecutivo (DE) recibió la propuesta, por parte de la Delegación Necochea del CAPBA IX, de regular el mantenimiento de los planos frentistas al espacio público –veredas especialmente- de los inmuebles que integraban el listado de bienes patrimoniales de la Ordenanza nº 4238/00. En esta misma propuesta ya se advertía la necesidad de impulsar una legislación específica que estableciera las condiciones y obligaciones de los consorcios de edificios en altura en el mantenimiento de sus perímetros colindantes a parcelas contiguas y espacios públicos.

En el año 2004 ingresó la segunda propuesta, esta vez como proyecto de ordenanza en el HCD, donde se convocó por primera vez a los administradores de los consorcios de edificios en altura quienes expresaron lo inoportuno de la misma alegando que no era “el momento socio económico ideal” para implementar los alcances de la misma. Esta línea de pensamiento se mantuvo hasta el año 2015 donde nuevamente ambos colegios profesionales volvieron a formalizar el pedido tanto al DE como al HCD.

Finalmente, en el año 2016, después de varias reuniones de trabajo entre representantes del DE y los delegados colegiales, se formulan cambios en el proyecto normativo, incorporando aportes de las experiencias existentes en la región, en particular las de General Pueyrredón, General Alvarado y Pinamar. Esta propuesta finalmente es la tratada en la Comisión de Infraestructura, Obras y Servicios Públicos del HCD.

Los principales alcances de la norma son comunes a los ya vigentes en la región: a) declara de interés público la conservación y mantenimiento de fachadas y muros

Ordenanza Nº 9047/16

Nueva normativa de mantenimiento de fachadas en Necochea

Después de más de 13 años de gestiones conjuntas de los representantes locales de los Colegios de Arquitectos e Ingenieros de Necochea, en una de las últimas sesiones del Honorable Concejo Deliberante (HCD) de la Municipalidad de Necochea del año 2016, fue aprobada la Ordenanza nº 9047/16, normativa que regula el mantenimiento y conservación de las fachadas de los inmuebles en altura.

medianeros de los edificios públicos y privados que posean una altura superior a los 9 metros y tengan una antigüedad mayor a 10 años; b) obliga a los propietarios, a través del asesoramiento profesional, a presentar informes técnicos periódicos sobre el estado y conservación de las fachadas y muros medianeros; y c) conmina a los mismos a verificar, reparar y mantener sus inmuebles en forma permanente.

El Distrito IX CAPBA, pionero en el diseño de un nomenclador específico para esta tarea profesional desde hace más de 15 años, aportó su experiencia en la implementación de este tipo normativo en la región dejando expresamente establecido la gran significancia que representa la apertura de un nuevo campo laboral independiente para sus matriculados.

Como bien se enuncia en los considerandos de la norma, la Ordenanza nº 9047/16 propone contribuir con el mantenimiento del patrimonio urbano arquitectónico de nuestra ciudad. Se estima que en el Partido de Necochea alrededor de 800 inmuebles están supeditados a los alcances de la misma, por este hecho, y en consideración del objeto de la medida legislada, se propenderá a una mejora de la calidad edilicia y estética de los mismos; pero fundamentalmente, a la determinación de un marco preventivo de seguridad pública de potenciales accidentes tanto de los usuarios de los inmuebles como del espacio público circundante.

Contacto HCD:

94 FORTALECIMIENTO Y VÍNCULOS INSTITUCIONALES capba IX

A partir del lamentable incidente que afectó parte del Archivo de la mencionada Dirección, el Colegio de Arquitectos a través de la delegación La Costa, se puso en contacto con el Ingeniero Sergio Mallo, responsable de la Dirección General de Obras Privadas y Cooperativas del Municipio, a fin de manifestar interés en conocer cómo y con qué procedimientos abordará la Dirección el proceso de reconstrucción del archivo siniestrado; al mismo tiempo que poner a disposición el archivo de expedientes visados con el que cuenta la Delegación, para el restablecimiento de los expedientes afectados.

La nota presentada por el Delegado de La Costa, Arq. López Rivolta, fue agradecida por el titular de la Dirección, quien también agradeció las muestras de solidaridad de todos los colegios profesionales que manifestaron su voluntad de colaboración con la reconstrucción del archivo.

Siniestro en la Dirección de Obras Privadas del Municipio de La Costa

El 24 de enero del corriente tuvo lugar un siniestro en la Dirección de Obras Privadas del Municipio de La Costa, un incendio parcial afectó parte de su Archivo.

La Resolución Nº 1/2017 dada a conocer por el Municipio días después del sinietro, da cuenta de la imposibilidad de acceso y consulta del Archivo por al menos 20 días y expresa que se lo irá habilitando paulatinamente una vez que estén avanzados los trabajos de limpieza, reacondicionamiento y reconstrucción de lo dañado, tanto referido a lo ediflicio como a la documentación. Se expresa asimismo en la Resolución aludida, que para propietarios, inquilinos o profesionales que requieran copia de planos de antecedente se iniciará la búsqueda pertinente y en caso de que la documentación haya resultado dañada, se extenderá una constancia de 2 meses de validez. La misma servirá a efectos de iniciar el pedido de copia, apelando a recuperar el expediente con información procedente del propietario, profesional interviniente anterior o colegio profesional donde se haya efectuado el visado.

DELEGACIONES
95 FORTALECIMIENTO Y VÍNCULOS INSTITUCIONALES capba IX

Guía de Proveedores

EMPRESA CONSTRUCTORA CONSCA

Mar del Plata

www.consca.com info@consca.com

MATERIALES DE CONSTRUCCIÓN

JUAN MANUEL LANDA

Av. Champagnat 1717

Mar del Plata

(223) 477 - 0333 www.juanmanuellanda.com.ar

MATERIALES DE CONSTRUCCIÓN CORRALÓN LOS HORNEROS

Av. Colón 10246

Mar del Plata

(223) 4871202

154 066371

Fb:/ corralon los horneros

PINTURERÍAS

DRAP PINTURERÍAS

Belgrano 3997 /Constitución 5601

J.B. Justo 2392 / Vict. Montes 2060

Mar del Plata

Facebook:/ Pinturerias Drap

ASCENSORES

ASCENSORES ATLAS S.A.

Victoriano Montes 1450

Mar del Plata

(223) 477 - 1430

www.ascensoresatlas.com.ar

CARPINTERÍAS DE ALUMINIO

ARCEN S.A.

Italia 4191

Mar del Plata

(223) 472-8777

CLIMATIZACIÓN

FRAVAMA CALEFACCIÓN

Alberti 3737

Mar del Plata

(223) 472-9629

Facebook:/ fravama

MADERERA

MADERAS MISIONES

Av. Luro 3435

Av. J.B. Justo 5808

Mar del Plata

(223) 472-8236 482-3536

www.maderasmisiones.com.ar

EQUIPOS Y MAQUINARIAS GRUMAR

Mar del Plata

(223)154-063085

154-003060 ID: 621*405

www.grumar com.ar

CORTINAS

METALICAS Y DE ALUMINIO

MEDIAVILLA

Gascón 6105

Mar del Plata

(223) 478-1015 cortinasmediavilla@yahoo.com.ar

CARPINTERÍAS DE ALUMINIO

MAC ALUMINIO

Gascón 6099

Mar del Plata

(223) 477-1273 (223) 5 492273

Fb:/maccarpinteriadealuminio

www.macalumnio.com

MATERIALES ELÉCTRICOS

CASA BLANCO

Av. Independencia 1964

Av. J. B. Justo 5758

Edison 432

Mar del Plata

www.casablanco.com

MATERIALES DE CONSTRUCCIÓN CERROSUD

Av. Juan B. Justo 2751

Mar del Plata

(223) 4952627 / 4930423

www.cerrosud.com

REVESTIMIENTOS ESSIG

Alberti 3254

Mar del Plata Tandil

(223) 410-7840 / 41 www.essig.com.ar

CLIMATIZACIÓN

GELSO CALEFACCIÓN

Av. Colón 5950

Mar del Plata

(223) 410-3395 478-5535 www.gelsocalefaccion.com.ar

MADERERA

FÁBRICA FADON S.A.

José Martí 445 12 de octubre 4787

Mar del Plata [223] 489-2033 www.fabricafadon.com.ar

MADERERA

SAN FRANCISCO

Av. J. B. Justo 5115

Av. Paso 3853

Mar del Plata

(223) 474-2407 474-2919

Fb:/ Maderera San Francisco

CONCRETO CELULAR LIVIANO HECELL

Ruta Pcial 77 Km. 4,5

Parque industrial Mar del Plata y Miramar

(223) 474-1893 154362500

155 325549 ID 175*1318

hecellsrl@gmail.com

CLIMATIZACIÓN

CLIMA TOTAL Mar del Plata

(223) 154-061662 ID254*2288 alfredoblanco@climatotalmdp. com.ar

ALAMBRES

BALAGNA

Av. Luro 6607

Mar del Plata

(223) 477-1578

alambresbalagna@hotmail.com

CONSTRUCCIÓN EN SECO GUIDOTTI

Av Jara 762

Mar del Plata

(223) 473-7337 475-7367

dursecogp@gmail.com

fb:/guidotticonstrucciones

ABERTURAS / CORTINAS

PVC ALUMINIO

RUSSOMANDO E HIJAS

Balcarce 5940

Av. Jara 1220

Mar del Plata, Argentina

(223) 478-5066 155-254469 danielrussomando_ amoblamientos@hotmail.com

GRIFERÍAS

FV 0810 555 5300 www.fvsa.com fvresponde@fvsa.com

MARMOLERÍA

MARIA MARTA

Victoriano Montes 1384

Mar del Plata

(223) 477-5846 478-0266

www.marmolesmariamartha. com.ar

IMPRENTA

IMPRENTA EL FARO

Dorrego 1401

Mar del Plata

(223) 473-5468 /476-2563

Facebook:/ faroimp

96 capba IX GUÍA DE PROVEEDORES
El CAPBA DIX agradece a las siguientes empresas por apoyar nuestra publicación.

Turn static files into dynamic content formats.

Create a flipbook
Issuu converts static files into: digital portfolios, online yearbooks, online catalogs, digital photo albums and more. Sign up and create your flipbook.