InfoCAPBA IX

Page 1

30 Años, 10 Períodos, 27 Concursos, 30 Obras Elegidas

Esta publicación especial de Info CAPBA IX constituye un valioso compendio de proyectos, obras y acciones que caracterizaron las últimas tres décadas del sudeste bonaerense. Junto con la edición de junio de este año, conforman una colección única pensada para profesionales, investigadores, docentes, estudiantes y, por supuesto, para la comunidad de la región.

El consejo editorial de Info CAPBA IX ha abordado la edición de esta publicación en forma participativa y plural, donde se recogió la opinión y reflexiones de aquellos colegas que presidieran el Distrito y realizaran aportes al crecimiento institucional de nuestro Colegio. En ese sentido, las semblanzas que, a manera de reconocimiento, se realizan sobre la labor de insignes colegas de diferentes localidades es una manera de fortalecer el acervo cultural de la institución y poner de relevancia la convicción de que la arquitectura, y sobre todo las ciudades, son producto de acciones e intervenciones que sedimentan día a día, año a año, década tras década; y en esta región ello es visible y reconocible.

En ese sentido, la reflexión efectuada por Claudio Erviti -como introducción al registro de obras de la región- refleja un proceso de investigación, que se remonta a la década del ´50, y un aporte teórico que a la fecha no se había incorporado en ninguna publicación de arquitectura y que, seguramente, será una referencia nacional sobre la arquitectura de la zona. Además de ello, las obras compendiadas -muchas de ellas sólo registradas en antiguas publicaciones del distrito y tantas otras casi inéditas- que intentó exponer "30 años en 30 obras” son apenas un recorte de la producción arquitectónica de la región que ha tenido a los arquitectos como protagonistas de la conformación de las ciudades y su paisaje urbano.

Finalmente, las perspectivas aportadas por prestigiosas instituciones tales como la Facultad de Arquitectura, Urbanismo y Diseño de la UNMdP, el Centro de Constructores y Anexos o la Cámara Argentina de la Construcción, exponen el camino del trabajo interinstitucional ya desarrollado y el sendero próximo a transitar para lograr fortalecer lazos, acordar objetivos y propósitos y asegurar logros en beneficio de la comunidad en su conjunto.

Agradecemos a todos los que han colaborado con las dos ediciones especiales del Info CAPBA IX, que han hecho posible estas publicaciones para celebrar de manera productiva y proactiva el 30 aniversario del CAPBA, que nos han permitido compartir opiniones, obras y sobre todo trabajo en equipo siendo parte de esta publicación.

PROLOGO

DIRECTOR

Arq. Julia Romero

CONSEJO EDITOR

Arq. Daniel Monzón

Arq. Bruno Mazzini

Arq. Analía Benítez

capba IX

COMITÉ ASESOR

PUBLICACIÓN ANIVERSARIO

Arq. Adriana Olivera

Arq. Alicia París

Arq. Laura Romero

Sra. Analía Flores

DELEGADOS CAPBA 9

Arq. Jorge Trivigno, Balcarce

Arq. Cristian López Rivolta, La Costa

Arq. Guillermo Caimari, Miramar

Arq. Juan José Gaido, Necochea

Arq. Ramón Uranga, Pinamar

Arq. Carlos Schifano, Villa Gesell

Publicación Declarada de Interés por :

INVITADOS PARTICIPANTES

Arq. Daniel Cutrera

Arq. Claudio Erviti

Arq. Horacio Goyeneche

Arq. Roberto Guadagna

Arq. Roberto Jakubowicz

Arq. Juan Carlos Mantero

Arq. Ma. Haydee Pérez Maraviglia

Arq. Daniel Medina

Arq. Alejandro Novacovsky

Arq. José Solla

ARTE Y DISEÑO

Valeria Burkhard

DISEÑO DE TAPA

D.G. Cristian Dalgaard

FOTOGRAFÍA

Karina Beltran

LOGÍSTICA, PUBLICIDAD Y MARKETING

Cepei Comunicación SRL

IMPRESIÓN

Imprenta El Faro

02 Especial Aniversario CABPA 30 años

Los artículos publicados expresan los puntos de vista de sus autores y no necesariamente representan los de la Institución. Los artículos sin firma son conocidos por el Consejo Editor y su responsabilidad última recae en el Director a cargo. Se autoriza la reproducción total o parcial de los artículos contenidos en la misma con el compromiso de citar la fuente.

Si desea auspiciar en esta publicación, comunicarse a boletin.capba9@hotmail.com ó boletin.capba9@gmail. com o bien consultar en la Sede del CAPBA DIX, Dorrego 1657 de la ciudad de Mar del Plata, tel (0223) 473-3031, 473-8282 o 474-3944, donde se le brindará todas las referencias de contacto.

ARQUITECTURA

32| LAS DÉCADAS PREVIAS AL CAPBA Una crónica de la arquitectura en Mar del Plata, 1957-1986

50| LOS ÚLTIMOS 30 AÑOS . Arquitecturas en Mar del Plata, 1986-2016.

58|30 AÑOS / 30 OBRAS

58|Casa Anuncibay (MdP).

60|Casa Pla (MdP).

62|Casa D’Orso (MdP).

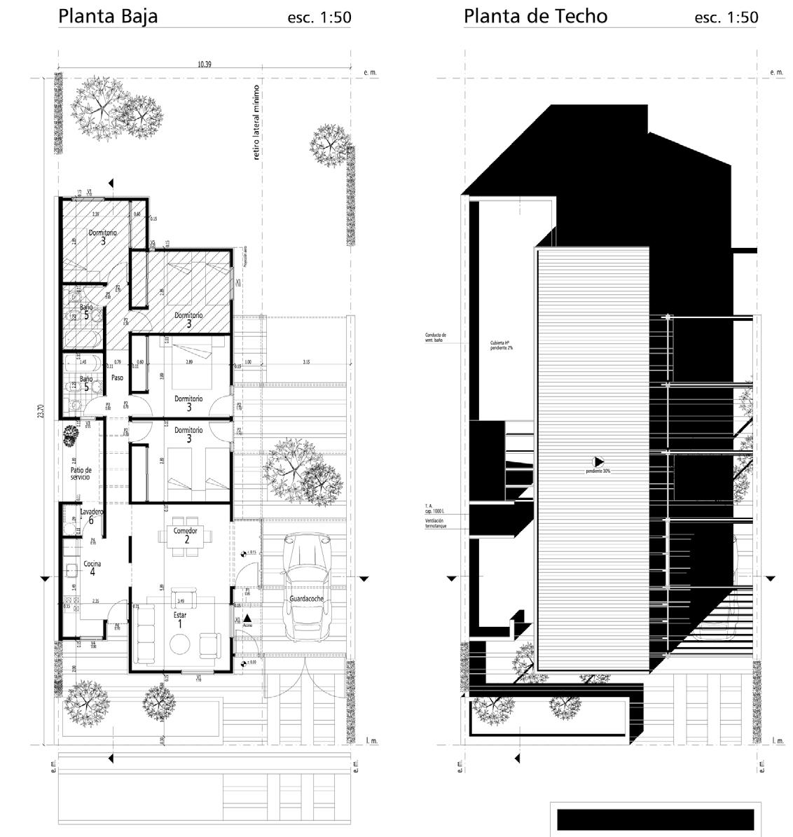
64|Viviendas en calle Guido (MdP).

66|Edificio Tanagüe (MdP).

68|Conjunto 31 viviendas (MdP).

70|Vivienda Evolutiva (MdP).

72|Colegio Albert Einstein (MdP).

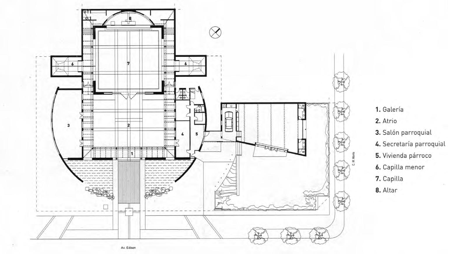
74|Parroquia San Benedetto Mártir y Jesús Niño (MdP).

76|Hotel Sheraton (MdP).

78|Pescadería Victoria (MdP).

80|Café Divina Gula (MdP).

82|C.E.M.A. (MdP).

104|Centro comercial Down Town (Miramar).

106|Casa Arrosio (Necochea).

108|Villa Juana (Necochea).

110|Casa en la Playa (Pinamar).

112|Casa Martín Pescador (Pinamar).

114|Edificio Norte 4 (Villa Gesell).

116|Casa Pioneros (Villa Gesell).

120| INTENCIONES CONSTRUIDAS . Estudio Mariani - Pérez Maraviglia. 30 años de arquitectura y ciudad.

IMPRONTA

128| LA LABOR DEL CENTRO DOCUMENTAL CAPBA IX.

132| PARTICIPACIÓN CAPBA IX EN LA COMUNIDAD.

SEMBLANZAS.

137|Arq. Osvaldo ‘Cholo’ Cedrón (MdP).

138|Arq. Enrique ‘Pete’ Echarte (Balcarce).

139|Arq. Daniel Hugo Falvello (La Costa).

140|Arqs. Guillermo Gabriel Linares y Héctor Luis Bermúdez (Miramar).

141|Arq. Manuel Carlos Rosso (Necochea).

142|Arq. Ricardo A. Schulz (Pinamar).

143|Arq. Carlos Alberto Defelice (Villa Gesell).

PERSPECTIVAS

145| FAUD-UNMDP Arq. Guillermo Eciolaza.

146| CÁMARA ARGENTINA DE LA CONSTRUCCIÓN . Sr. Patricio Gerbi.

148| CENTRO DE CONSTRUCTORES Y ANEXOS. Arq. Norberto Cánepa.

Publicación Institucional Colegio de Arquitectos de la Provincia de Buenos Aires Distrito IX Distribución Trimestral Gratuita - Edición 1.500 ejemplares - ISSN 2346-9595

Año 5 | Nº 17 | Diciembre de 2016 - Especial Aniversario 30 años. Vol 2

SUMARIO INTRO 01|PROLOGO. 02|SUMARIO. STAFF. PRESIDENTES 07| LOS EX-PRESIDENTES OPINAN . Reflexiones desde la conducción del CAPBA IX. 08|Pablo Botto. Homenaje. 09|Domingo Barilaro. 10|Antonio Reyna. 11|Manuel Torres Cano. 12|Carlos Ronda. 13|Julia Romero. CONCURSOS 16| CONCURSOS ORGANIZADOS POR EL DISTRITO IX . 18| ARQUITECTOS PREMIADOS DEL DISTRITO IX EN CONCURSOS 18|Premio ASAMP. 20|Premio CAPBA, obra construida. 28|Premio CAPBA, investigación y teoría.
84|Sede O.A.M. (MdP). 86|Mar del Plata Aquarium (MdP). 88|Piazza Café (MdP). 90|Asilo Saturnino Unzué (MdP). 92|Fachada Hotel Provincial (MdP). 94|Casa Cacho (Balcarce). 96|Museo Juan M. Fangio (Balcarce). 98|Apart Sabina del Mar (La Costa). 100|Paseo Portal del Sol (La Costa). 102|Café Van Dyke (Miramar).
03

Presidencias

Richard
“Liderar es una acción, no una palabra”
P. Cooley (1923-2016) CEO estadounidense
1986-2016

Los Ex-Presidentes opinan

Reflexiones desde la conducción del CAPBA IX

“Los analfabetos del siglo XXI no serán aquellos que no sepan leer y escribir, sino aquellos que no puedan aprender, desaprender y reaprender”.

En esta edición -que completa las publicaciones relacionadas con el 30º Aniversario de nuestra Institución- no podía faltar la voz de quienes han tenido el honor y la responsabilidad de conducir, en diferentes etapas, los destinos de nuestro colegio en nombre de los matriculados del Distrito IX.

Hemos pedido a ex presidentes del CAPBA IX que compartan con la matrícula una breve caracterización de la época, contexto y desafíos de la gestión que llevaron adelante, entendiendo que compartir sus experiencias es parte del proceso de aprendizaje institucional que nos permitirá establecer las nuevas metas y logros a obtener.

Lamentablemente, no todos los colegas que presidieron el CAPBA IX nos acompañan físicamente hoy, pero su aporte e impronta se encuentran presente y son reconocidos por esta editorial dado que, sin su esfuerzo y dedicación, ésta historia hubiese sido muy distinta.

Agradecemos a quienes se tomaron la preocupación de escribir las líneas que a continuación leeremos, toda la colaboración en esta edición, y que aceptaron con gratificación la propuesta aunque expresar opiniones siempre signifique aceptar una exposición ante nuestros pares que condiciona y limita.

Valoremos y disfrutemos estas reflexiones…

Aristóteles

(384 -322 a.C.) Filósofo griego

03 1989-92 1992-95 1998-01 Pablo
Pablo
Domingo Barilaro Antonio
Graciela
Manuel
Cano 1986-89 1995-98 2001-04 01 02 04 05 06 09 2007-10 2010-13 Graciela
José
Julia
2004-07 2013-16 07 08 10
Botto
Botto
Reyna
Gómez
Torres
Gómez
Luis Castorina Carlos Ronda
Romero
“No hace falta un gobierno perfecto; se necesita uno que sea práctico”
07

PABLO BOTTO

Corrían los últimos días de noviembre de 1980, cuando la Asociación de Arquitectos de Mar del Plata obtenía su Personería Jurídica, a dos años de asumir la nueva Comisión Directiva. La editorial del primer número de la revista “Arquitectura”, órgano de la Institución, daba cuenta de la buena nueva y expresaba la convocatoria a los arquitectos para trabajar en la etapa que comenzábamos a transitar.

Presidía la Asociación Pablo Santiago Botto, que a partir de ahí y por más de veinte años fue quien con su estilo visionario, tesonero, irreverente y provocativo propulsó desde distintos cargos los temas que lo desvelaban: una Universidad con planes de estudio acorde a las necesidades de la ciudad y su región y un presupuesto adecuado; la necesidad de contar con un Colegio Profesional y una Caja de Previsión propios, independientes y federales; la arquitectura realizada por arquitectos; la denuncia por la especulación desmedida del suelo y los altos costos de la construcción que elevan el déficit de vivienda; las incongruencias de los códigos de edificación y los tortuosos trámites administrativos; los Concursos de Proyectos para la obra pública, y muchos temas más que privilegiaban lo gremial, pero ofreciendo respuestas a la comunidad que nos formó.

De todo esto hablaba Pablo y su pensamiento ha quedado reflejado en las editoriales de “Arquitectura”, “Arquitectura Sur” y los diarios de la época.

Su origen cuasi aristocrático no fue obstáculo para abrazar la causa gremial por la dignificación de la profesión de arquitecto. Fervoroso admirador de Vladimiro Acosta recordaba siempre una frase del maestro: “primero hombres, después arquitectos”.

No le fueron ajenos los derechos humanos, cuando hubo que gestionar por la aparición con vida de colegas presos o pronunciar un discurso contestatario y fuerte en la conmemoración del día del Urbanismo, en presencia de autoridades civiles y militares.

HOMENAJE

Casualidad o causalidad, en tiempos distintos, más o menos prolongados, muchos colegas trabajamos junto a él, al compás de su discurso ético, claro, confrontativo pero reflexivo a la vez y no carente de valentía, considerando los tiempos oscuros y tenebrosos que se vivían.

Algunos de los que lo acompañamos no teníamos todavía plena conciencia de los cómo y los por qué de la lucha que planteaba, pero su apasionamiento era convincente y motivador. Lideró, con su equipo de colaboradores, la lucha por la Colegiación que dio sus frutos con la sanción de la ley de Colegiación en 1986. Fue el primer presidente del Distrito IX por dos períodos, combatiendo desde ese lugar, el centralismo que aún hoy nos embiste e incomoda.

Incursionó en igual cargo en la Caja de Previsión y si bien en seis meses muy intensos, logró poner un poco de claridad en esa estructura hermética y obsoleta que no respondía a sus fines. Sin embargo, no pudo conciliar su vida en La Plata, sujeta a los tiempos burocráticos, con muchos espacios “muertos” y faltos de actividad que lo abrumaron hasta provocar su renuncia.

Pablo era todo lo que aquí se resume, también un lírico, un bohemio hipercrítico, a veces insoportable pero tan querible que todo se le podía perdonar, si es que hubiera algo que perdonar. Ante su partida, elegimos despedirlo recordando la maravilla de nuestra imbatible amistad.

Arqs. Miguel Golomb, Dante Mandagarán, Mario Marchelli, Daniel Monzón, Roque Nóbile

Arq. Pablo Botto Mat. CAPBA nº 224

1986-89 1983-92

Con la derrota de Malvinas, a la Dictadura le resultó difícil contener a la sociedad que desempolvaba los sellos de Asociaciones que habían sido prohibidas.

Esa necesidad de encontrarnos, de debatir, nos llevó a un grupo de colegas a pedirle a la última conducción que había tenido la ASAMP la convocatoria a elecciones para normalizar la institución.

Realizadas éstas ingresamos como minoría en un período en que diversas Asociaciones de la Provincia comenzaron a trabajar en pos de conseguir la Ley de Colegiación que diera a los Arquitectos la identidad que teníamos diluida dentro del Consejo Profesional de la Ingeniería (CPI).

No se nos dio participación en ese proceso (al cual apoyábamos), y desde donde cuestionamos el proyecto en elaboración, que se hacía desde la mirada del ejercicio libre de la Profesión, obviando otras formas, entre ellas la de relación de dependencia (con el Estado, las Empresas y Estudios de Arquitectos) que venía creciendo constantemente. Esta mirada se apreciaba desde la primera definición de la remuneración por nuestro trabajo:

“El concepto honorarios se vincula a la remuneración que recibe un profesional liberal por su trabajo. Los honorarios, por lo tanto, equivalen a la paga o el sueldo que percibe una persona que ejerce su profesión de manera independiente (y no bajo relación de dependencia)”.

Cuando se aprobó la Ley, éramos la única Lista opositora de toda la Provincia y fuimos minoría durante los dos primeros períodos dentro del DIX. Éramos adversarios del oficialismo, pero estábamos en el mismo bando: Democracia vs. Dictadura, Colegialistas vs. Anticolegialistas, por esto nos unía un enorme respeto y un gran compromiso por lo que estábamos construyendo. Eso sí: éramos expertos en perder elecciones. No es fácil ser oposición. Vivíamos con una piedra dentro del estómago.

El oficialismo impuso su condición y TODAS las resoluciones del primer período en el Distrito se tomaron con voto dividido donde perdíamos inexorablemente 2 a 5.

El segundo período, donde me tocó ser consejero, transcurrió más amablemente, superadas las primeras pasiones. Y en el tercer período me tocó asumir la Presidencia.

Había llegado el momento de aplicar nuestras convicciones.

• Que el Colegio debía estar conducido por colegas que trabajaran en la profesión:

o La primera decisión que tomamos, entendiendo esa responsabilidad como una cuestión de Servicio hacia los colegas, fue la reducción de las compensaciones en un 20% y que el trabajo en comisiones fuera ad honorem.

o La segunda decisión fue que el Colegio, en tanto responsable del Control de la Matrícula por delegación del Estado, operara en el horario de la Municipalidad, y el de la Conducción fuera a partir de las 17 hs., de modo que no entorpeciera nuestra actividad laboral.

• Que el Colegio debía ser el espacio de Encuentro de los colegas, para lo cual:

o Construimos el SUM previo llamado a concurso entre los matriculados.

o Organizamos la 1ª Olimpíada Provincial para Arquitectos, donde participaron 1.000 colegas de toda la Provincia.

o Llenamos el Colegio de colegas jóvenes, egresados de la primera camada de ingreso irrestricto a la Universidad, que fueron el motor de toda nuestra gestión.

• Que debíamos hablar a la comunidad con datos ciertos evitando las posturas personales y/o subjetivas:

o Elaboramos un Censo de todos los matriculados del Distrito para conocer la situación laboral, el tipo de trabajo que realizaban, el origen de sus ingresos, etc.

o Elaboramos Estadísticas para monitorear la evolución de nuestra actividad.

o Ocupamos la Banca 25 del HCD donde expresamos la mirada de los arquitectos a través de muchos años de debate sobre la ciudad, sus crisis, sus temas irresueltos, su carácter polifuncional, y sus condiciones no suficientemente conscientes de Ciudad Universitaria, Turística, Industrial, Deportiva, de la Tercera Edad, de Convenciones. Estos temas los habíamos comenzado a desarrollar en 1980 a través del Primer Seminario de la Ciudad que promovió el arqutiecto De Schant, y que se adelantó una década al concepto de Plan Estratégico que inauguraría Barcelona en 1992.

• Que debíamos mostrar nuestra producción tanto de obras como de opinión y de teoría a partir de nuestra práctica:

o Para eso creamos la revista “Espacios” donde también se publicaban las estadísticas de nuestra actividad.

• Que debíamos apoyar a los arquitectos jóvenes a integrarse al medio laboral:

o Creamos el Curso de Iniciación al Ejercicio Profesional: decenas de colegas recibieron charlas sobre los diversos enfoques de la profesión, y fascículos de cuidadoso contenido elaborados por los colegas responsables del dictado.

o En ocasión de la sanción de la Ordenanza 8818/93 de regularización de obras sin permiso convocamos a la comunidad al Colegio donde decenas de jóvenes colegas recibían encargos de trabajo por el honorario mínimo: la cola de vecinos de los barrios frente al Colegio legaba a tener 50 metros de largo, y cada colega se llevaba una decena de encargos que, en muchos casos fue su primera práctica laboral.

• Que debíamos integrarnos a la comunidad:

o Organizamos la primera reunión interprofesional en el Colegio de Escribanos, donde surgió la creación del Foro Interprofesional, que se reunió mensualmente, y del cual fuimos los Coordinadores durante todo nuestro mandato.

• Que debíamos expresar nuestra opinión sobre los temas de nuestra incumbencia en la ciudad:

o Organizamos múltiples encuentros para tratar el problema de la Seguridad en el Espacio Público, donde se gestó el embrión de lo que sería la Ordenanza 12562 de Mantenimiento Edilicio.

TODAS las Resoluciones que se dictaron durante nuestra gestión surgieron por unanimidad, porque siempre se escucharon las opiniones de la minoría y se llegó al consenso.

En esas terceras elecciones del CAPBA ganamos con el 50% más 2 votos. Al asumir prometí no presentarme a ninguna reelección sino que se debía abrir camino a las nuevas generaciones.

Al terminar nuestro mandato, en las cuartas elecciones nuestra Lista ganó con el 80% de los votos.

PRESIDENTES
1992 1995 REFLEXIONES 09
Arq. Domingo Barilaro Mat. CAPBA nº 831 DOMINGO BARILARO

A treinta años de la creación de nuestro Colegio, intentaré hacer algunas breves reflexiones del rol que nuestra institución ha tenido, en el contexto de las transformaciones sociales que ha sufrido nuestra comunidad.

Quizá, no sea yo el mejor observador de los procesos de transformación de nuestro Colegio, llevo ausente de esta ciudad catorce años, viviendo fuera del país, pero de todos modos, puede que una visión más alejada permita ver el conjunto con otra interpretación de la realidad distinta y tal vez, sea una manera de contribuir a la generación de otras opiniones.

Al inicio de nuestra gestión, en el año 1995, un diagnóstico (censo) de la inserción laboral de los arquitectos, mostraba que en nuestra matrícula sólo el 25 % realizaba un ejercicio liberal de la profesión y que el 57 % durante ese año, no había presentado expedientes nuevos en nuestro Colegio; insertándose, en cambio, en otras formas de ejercer la profesión, en trabajos de dependencia, en la comercialización de productos, la investigación, la docencia, etc.

Nos propusimos, entonces, dos hipótesis de trabajo: una de alto contenido gremial, que en síntesis, significaba devolverle al matriculado sus aportes en la mayor cantidad y calidad de servicios, garantizando un marco legal para aquellos colegas que no hacían ejercicio liberal de la profesión; y la otra, de profundo contenido institucional en relación con nuestra comunidad, acercándonos a otras instituciones intermedias de la comunidad a fin de generar opinión sobre las transformaciones del espacio urbano.

La compra de la casa contigua a la sede del Colegio fue la puntada inicial para generar nuevos espacios y ámbitos de trabajo. La intención era que los colegas se apropiaran de estos espacios y que no vieran al Colegio como un ente burocrático que sólo ponía sellos reclamando sus

aportes, sino que se formaran comisiones de trabajo de todas las temáticas posibles desde donde salieran las propuestas para la transformación del colegio. Por otra parte se propició la creación de un Instituto de Estudios Urbanos para iniciar ese camino hacia donde el Colegio se convirtiera en el ente protagonista de las decisiones estratégicos que se tomaran en las instituciones públicas a cerca de los problemas urbanos de nuestra ciudad. En estos últimos años, la profundización de las políticas económicas neoliberales, la explosión del globo inmobiliario con su hipoteca basura, la crisis financiera y los recortes aplicados como receta generalizada, han puesto más en crisis nuestra profesión, no sólo en el ámbito de nuestro país, sino también en realidades similares del resto del mundo, en todo el continente latinoamericano o europeo. Los lobby de las grandes corporaciones empresariales y financieras han ganado camino en las decisiones urbanísticas y hoy vemos que la participación de los colegios profesionales en la formación de opinión y en la toma de estas decisiones es igual o menor que en la década de los noventa.

En este contexto, el desarrollo de las tareas profesionales liberales o de dependencia, también es compleja, en un mercado de la construcción donde la tendencia es que haya una masa de desocupados que supera el 15 %, con muchas limitaciones para el consumo básico, con ningún acceso a la vivienda, sin créditos accesibles, es lógico que los arquitectos encontremos dificultades para llevar adelante nuestro trabajo.

Por todo esto, ahora, a la distancia, no sé cuánto hemos avanzado en estos años por ese camino que nos propusimos. Quizá haya sido un camino utópico, quizá no haya sido el camino de una mayoría realmente implicada en llevarlo adelante, de todos modos, creo que sigue siendo un irrenunciable objetivo de participación y solidaridad con nuestros iguales (los arquitectos) y también un mensaje de compromiso hacia el resto de la sociedad.

Quiero agradecer y recordar a todos los colegas que participaron en aquellos años de nuestra gestión, a los que depositaron su confianza en nosotros, algunos todavía en el Colegio y a todos los que de alguna manera estuvieron cerca.

Es enorme el orgullo que siento de haber pertenecido y presidido en esos años el Distrito IX del Colegio de Arquitectos.

Arq. Antonio Reyna Mat. CAPBA nº 1846
1995 1998 10 Especial Aniversario CABPA 30 años
ANTONIO REYNA REFLEXIONES

MANUEL TORRES CANO

En nuestra gestión de conducción del Distrito IX del CAPBA, en el período 2001 a 2004, nos tocó pasar por una experiencia nueva y extrema.

Cuando viajábamos a La Plata a tomar posesión del cargo en la Asamblea Provincial, escuchamos en la radio de la combi, el anuncio de aquel fatídico corralito, que fuera el inicio de la crisis final del gobierno de De la Rúa, y de las movilizaciones populares con muertos en la Plaza de Mayo. En aquel viaje no lo comprendíamos, pero nos tocó asumir en el inicio de una profunda crisis nacional, económica, social y por cierto del Colegio de Arquitectos como parte de este país.

Nos tocó también aprender y ejecutar el rol de contención y supervivencia del Colegio, de contención a los colegas, como institución social, profesional y comunitaria.

Así en lo económico desde el primer mes, verificamos que ante los ingresos casi nulos en la delegación debíamos recurrir a las reservas, que nuestra antecesora Gachi Gómez había previsoramente depositado. Mi pregunta a la tesorera fue, a este ritmo ¿para cuánto tiempo tenemos? La respuesta fue ‘cuidando mucho los gastos hasta fin de año’.

Con mucho dolor y bronca, acotamos al mínimo gastos, eliminamos horas extras, comisiones y todo gasto prescindible y apretamos los dientes ante lo duro de la crisis.

Nuestro diálogo con los colegas, se convirtió en una especie de confesionario de la angustia, la pobreza y la subsistencia. Un gran número de cartas de recomendación para ser presentadas en el exilio laboral.

En esos días de angustiada reflexión, mirábamos por la ventana. La calle y plaza de enfrente, nos mostraban que no estábamos solos en el doloroso trance, las manifestaciones de protesta arrancaban en la plaza. En la misma había una espontánea feria de la pobreza, ropa usada y comida casera, supervivencia mínima e intercambio. En días de lluvia nos pedían el SUM para realizar asambleas vecinales del barrio.

En el marco de nuestras relaciones institucionales, con los socios del naciente Plan Estratégico, tratamos y analizamos la profunda crisis, y en ese marco nos tocó ver cómo esta devoraba a la autoridad municipal, con la renuncia del intendente Elio Aprile, a quien conocíamos y apreciábamos. De este frente salió y maduró el inicio del Plan Estratégico como un proyecto hijo de la crisis, participativo, democrático y horizontal en ese momento. La crisis cedió y la construcción fue una actividad temprana de reactivación.

El Distrito IX del CAPBA fue activo participante de este proceso y empezamos a recuperar la confianza en la institución y el tiempo perdido. Se ejecutó la obra de ampliación de la sede, y retomamos las actividades de comisiones de trabajo. Editamos un modesto boletín. Nuestro Colegio siguió siendo parte importante en la puesta en marcha del Plan Estratégico, en la defensa y representación de los arquitectos y como opinión crítica en la ciudad

Arq. Manuel Torres Cano Mat. CAPBA nº 1523

PRESIDENTES
REFLEXIONES 2001 2004

En el 30º Aniversario del CAPBA intentaré plasmar algunas reflexiones, en el marco de la experiencia personal, que caractericen el período en el que me ha tocado presidir el Distrito IX. En este contexto, también es importante señalar que en los períodos previos, primero 2004-2007 y luego 2007-2010, integré el Consejo Directivo como Vocal y Tesorero respectivamente.

Pertenezco a la ciudad de Coronel Vidal, Partido de Mar Chiquita, donde nací, crecí, ejercí mi profesión activamente y, actualmente, revisto el cargo de Intendente de ese Partido. Siempre ha sido para mí una inquietud y un propósito lograr una plena integración de la región que comprende el CAPBA IX.

Durante la gestión 2010-2013 que llevamos adelante junto a los arquitectos Pablo Monti y Julia Romero, quienes me acompañaron como Secretario y Tesorera, respectivamente, intentamos fortalecer la presencia de la Institución en toda la zona. Con ese objetivo, en ese período iniciamos un fuerte proceso de inversión en equipamiento, mejoras edilicias y encuentros de camaradería en todas las Delegaciones del CAPBA IX. Esta labor también fue posible por una renovación de Delegados donde se sumaron colegas que hasta la fecha no habían tenido participación en el Distrito y aportaron una mirada renovada tanto en las delegaciones como en el consejo directivo.

Los buenos niveles de actividad en la construcción de los años previos, y de ese período en menor medida, permitieron que la institución pudiera administrar los recursos suficientes para desarrollar una actividad con amplia presencia en la zona y en la comunidad en forma creciente., Se gestionaron varios concursos en ese período, algunos con entidades privadas, logrando consolidar un viejo propósito del CAPBA.

Sin embargo, a principios del año 2011, a pocos meses de iniciada la gestión, la decisión de suspender los permisos de demolición y cambiar abruptamente los indicadores para los distritos de media densidad por parte de la gestión municipal del entonces intendente de General Pueyrredon, Gustavo Pulti, derivó en profundos conflictos que perjudicaron a la matrícula y afectaron seriamente a la industria de la construcción. Nuestra gestión debió

lidiar con ese proceso, donde se promovió el trabajo articulado con otras instituciones del sector procurando exigir al Estado la determinación de normas claras que además respetaran los derechos adquiridos. Se realizaron reuniones con matriculados, petitorios, jornadas de trabajo del Instituto de Estudios Urbanos, entre otras acciones, y paulatinamente la aprobación de obras fue regularizándose.

También, desde lo político, vale mencionar que en ese período se consolidó a través de un proyecto político participativo e integrador, el trabajo mancomunado de sectores que otrora estuvieran enfrentados en el ámbito distrital. Entonces, la gestión tuvo un trabajo fuerte que no revistió contradicciones o diferencias en la conducción y eso permitió establecer los lineamientos básicos de la gestión trienal.

En relación con el Colegio Provincial nuestra conducción mantuvo una oposición constructiva frente a una gestión centralista que ponía especial énfasis en una visión que privilegiaba las realidades del conurbano bonaerense, postergando al interior de la Provincia. En ese período, un claro ejemplo de esa visión unitaria fue la creación de la secretaría de concursos desde donde se pretendió centralizar la gestión y organización de los concursos, desplazando el rol de los distritos y que finalmente, a partir de una fuerte resistencia y reclamo de algunos distritos logró encontrarse un marco de convivencia.

Para un colega proveniente de un pueblo chico de la región, ha sido una gratificante experiencia haber presidido una institución prestigiosa y reconocida, el trabajo realizado y la voluntad puesta en el proceso ha sido desde la buena fe, compromiso y conocimiento al servicio de todos los colegas.

Agradezco al Comité Editorial de la Revista Info CAPBA IX, la que tuvo su origen en el periodo 2010-2013 por invitar a quienes hemos presidido la institución a ser parte de este número especial que celebra los primeros 30 años de nuestro Colegio de Arquitectos.

2010 2013
12 Especial Aniversario CABPA 30 años
Arq. Carlos Ronda Mat. CAPBA nº 4434
CARLOS RONDA
REFLEXIONES

Es raro, estoy intentando escribir estas breves líneas imaginando un balance como Presidente en el período 2013-2016 y aún no he cerrado este mandato al frente del CAPBA IX. Sin embargo, es un ensayo que intentaré realizar y será parte del cierre de un ciclo que ha tenido infinidad de gratificaciones y por supuesto algunos escollos.

Personalmente, tengo que ir un poco más lejos y comentar que me gradué 1999 pero antes de ello ya estaba interesada por temas que tenían que ver con la gestión colegial. Acompañando a la Arquitecta Claudia Rodríguez, participábamos de los debates sobre la nueva Ley Previsional para Agrimensores, Arquitectos, Ingenieros y Técnicos. Luego, ya graduada, durante la gestión del Arq. Torres Cano 2001-2004, en medio de complejas situaciones económico sociales que no fueron ajenas al Colegio, junto con otros colegas fuimos responsables del boletín informativo del CAPBA IX, en esa época, al igual que ahora, producir esa publicación costaba mucho esfuerzo y dedicación pero logramos tener continuidad y mantenerlo vigente los tres años de gestión.

El ciclo al que me refería en el primer párrafo se inicia en el año 2007 cuando fui electa vocal del Consejo Directivo del CAPBA IX y allí llevé durante tres años –mientras ejercía la profesión en forma independiente y llegaba mi segundo hijo- la expresión más joven de ese cuerpo en una época donde se iniciaron debates como la modificación de la Ley de Previsión Social, la creación de un vademécum del ejercicio profesional o los ajustes de CEP en contratos abiertos, asuntos en los que el Distrito IX siempre tuvo una mirada divergente a la impulsada por el Consejo Superior.

Más adelante, en el período 2010-2013, fui electa Tesorera del Distrito IX y bajo la conducción del Arq. Ronda conformamos un equipo que abrió las puertas de la Institución en forma literal tanto a la matrícula como a toda la comunidad. En ese período la lista que condujo el distrito, integrada por grupos políticos de diferentes segmentos etarios, diversos ámbitos de campo profesional y que en algunos casos compitieran en espacios contrarios por la conducción del colegio, se propuso un proceso de integración que diluyera las diferencias y potenciara las coincidencias respecto de las políticas colegiales para el beneficio de los matriculados.

Este último período, en el que me ha tocado el honor de presidir el CAPBA IX, a partir de contar con un equipo sólido de gestión –que incluye el Consejo Directivo, los delegados, coordinadores de ejes de acción, responsables y miembros de comisiones- hemos consolidado y fortalecido un rol preponderante de Colegio de Arquitectos en los temas del crecimiento de las ciudades, los déficits estructurales

del soporte territorial para su desarrollo, de los problemas de la industria de la construcción y de las problemáticas propias de nuestra disciplina y su ejercicio profesional. Esta vocación de priorizar causas comunes y establecer criterios de trabajo en equipo nos ha permitido ganar un reconocimiento que creemos debe ser defendido y profundizado por futuras gestiones tanto a nivel distrital como provincial.

Asimismo, mantuvimos el perfil de “puertas abiertas”, donde los matriculados encontraron permanentemente un espacio donde acercar sus dificultades, propuestas e iniciativas sobre diferentes temas. Entre el abultado compendio de gestiones y acciones, durante esta gestión nos propusimos hacer eficiente el funcionamiento técnico administrativo de las diferentes áreas y generar mejoras edilicias y de equipamiento en todas las sedes del CAPBA IX. Por ello, durante los tres años de gestión se realizaron inversiones que permiten hoy el usufructo de todos los matriculados.

Complementariamente, el avance de las herramientas de comunicación han sido una de las principales características de los últimos años, ello ha permitido desarrollar un Plan Comunicacional y mantener informado permanentemente al matriculado sobre todos los temas referidos a la institución, lo que imprime además tiempos que cada vez más exigentes y demandantes para cualquier gestión. Los avances en telecomunicaciones, la utilización de las redes sociales, la digitalización de publicaciones, entre otros temas, ha impactado de lleno en el modelo de gestión de las instituciones. Esta transformación tecnológica claramente tiene un impacto enorme en la sociedad, sus formas de vinculación, la cultura y la producción, comprender estos cambios ha resultado esencial para adaptarnos a estas condiciones y proponernos nuevos desafíos.

Creo que a futuro nuestra institución debe afrontar profundos debates sobre el estado y proyección de la disciplina, las modalidades del ejercicio profesional, el modelo organizacional del CAPBA y la adaptación a nuevas demandas sociales, entre otros temas, donde la capacidad de asociatividad y trabajo en conjunto debiera ser el principal pilar a desarrollar. Es allí donde debemos posicionar al CAPBA, en convertirlo en un claro articulador de trabajo cooperativo, promotor de acciones que beneficien al conjunto de la sociedad y que transfiera la experiencia y el conocimiento que tanto el saber disciplinar como la gestión institucional le han provisto las últimas tres décadas.

PRESIDENTES
JULIA
2013 2016 REFLEXIONES 13
Arq. Julia Romero Mat. CAPBA nº 19027
ROMERO

Concursos

Philip Johnson

(1906-2005) Arquitecto estadounidense, Premio Pritzker

“El ejercicio de la arquitectura es la más deliciosa de las labores”

CONCURSOS

Los concursos de arquitectura estimulan eficazmente las facultades creadoras del arquitecto y constituyen un necesario complemento de la carrera. Son una continuación de la formación, un desafío para graduados, una herramienta de discusión y debate social, una reflexión sobre el contenido práctico y espiritual de la arquitectura; una usina de ideas.

Los concursos de Arquitectura tienen, además, una alta misión educativa de trascendencia colectiva. Educan al concursante en la creación y en la disciplina; educan a los jurados en la crítica y en el ejercicio de la justicia; educan al público en general sobre el sentido, la aplicación de la arquitectura y la función social de los arquitectos.

En 30 años del CAPBA, muchos fueron los concursos organizados por la institución, y muchos los arquitectos distinguidos por sus proyectos. El aniversario nos presenta una buena ocasión para recordarlo.

“Creo en una arquitectura que parta de la realidad, que elabore una interpretación crítica de ella y que vuelva a la realidad, modificándola, con dialéctica incesante”

Carlos Raúl Villanueva

(1900-1975) Arquitecto venezolano

15

Concursos organizados por el CAPBA IX

DISTRITAL

1998

Diseño de Boletería y Hall Paseo Explanada

1997

DISTRITAL

Remodelación Banquina de Pescadores

San Clemente del Tuyú

PATROCINANTE: Municipalidad de la Costa

GANADORES: Guillermo De Paz, Diego Noales, Oscar Romussi, Javier De Rosa

1998

DISTRITAL Anteproyectos

Ampliación Sede

CAPBA D IX

PATROCINANTE: CAPBA DIX

GANADORES: Guillermo De Paz, Diego Noales, Oscar Romussi, Javier De Rosa

2012

PROVINCIAL

Anteproyectos Sede Cooperativa Telefónica Pinamar

PATROCINANTE: TELPIN

GANADORES: Guillermo Lesch, Leticia

Alfaro, Pablo Vilas, Juan Pablo Porta.

Colaboradores: Lucas Meneghetti, Veronica Wong, Manuel Salvioni, Mariela Stanelloni

2012

NACIONAL Ideas y Anteproyectos Complejo Judicial Departamento Mar del Plata

PATROCINANTE: Suprema Corte de Justicia Pcia. Buenos Aires

GANADORES: Guillermo Castellani, Juan Martín Flores, Gabriel Martínez, Leandro Moroni, Alberto Sbarra y Enrique Speroni.

1999

DISTRITAL Ideas Complejo de Punta Mogotes

PATROCINANTE: Municipalidad de Gral. Pueyrredon

GANADORES: Carlos Mariani, Ma. H. Perez Maraviglia, Pablo Rescia, Fernando Mendizábal, Jerónimo Mariani

NACIONAL Anteproyectos

2011

“Paseo Cultural, Recreativo y Comercial de la Escollera Norte de la Ciudad de Mar del Plata”

PATROCINANTE: Municipalidad de Gral. Pueyrredon

GANADORES: Adolfo Mondéjar, Pablo Mondéjar

2014

PROVINCIAL Anteproyectos Sede del Colegio de Psicólogos de la Provincia de Buenos Aires

PATROCINANTE: Colegio de Psicólogos de la Pcia. de Buenos Aires

GANADORES: Jaquelina Ferlan, Leandro Sbarra, Mauro Sbarra. Juan Manuel Mantesa y Lila Scalise.

1989

Convocatoria de Ideas

Urbano Arquitectónicas para la Ciudad

PATROCINANTE: M.G.P.

1997

LOCAL Anteproyectos

Parador de Ómnibus

San Clemente del Tuyu

PATROCINANTE: Municipalidad de la Costa

GANADORES: Hernán Sirio, Sergio Audine

1999

DISTRITAL Ideas

Intervención Espacial en el Área

Costera Punta Piedra-VareseCabo Corrientes

PATROCINANTE: Municipalidad de Gral. Pueyrredon

GANADORES: Guillermo De Paz, Diego Noales, Florencia Gioia, Oscar Romussi

2009

NACIONAL Anteproyectos Sede del Museo de Arte Contemporáneo MAR

PATROCINANTE: Ministerio de Infraestructura. Pcia. Buenos Aires

GANADORES: Marcos Amadeo, Fernando Cynowiec

PROVINCIAL Ideas y Anteproyectos

2015

Refuncionalización y Puesta en Valor del Palacio Municipal

PATROCINANTE: Municipalidad de Gral. Pueyrredon

GANADORES: Gabriel Santinelli, Salvador Squillacioti

16 Especial Aniversario CABPA 30 años

1991

Traslado y Nuevo Emplazamiento Monumento al Pescador

PATROCINANTE: Asoc. Fomento Puerto

GANADORES: Daniel Fiszner, Gustavo Mendes, Fernando Mendizabal

DISTRITAL

1997

Anteproyectos para la Remodelación Alianza Francesa

PATROCINANTE: Alianza Francesa

GANADORES: De Paz Guillermo, Javier De Rosa, Diego Noales, Miguel Rótolo

1999

DISTRITAL Ideas Revalorización del Conjunto Playa Grande

PATROCINANTE: Consorcio de Consesionarios Playa Grande

GANADORES: Guillermo De Paz, Diego Noales, Florencia Gioia, Oscar Romussi

PROVINCIAL Anteproyectos

2006

Ampliación y Remodelación de la Terminal de Ómnibus NecocheaQuequén y Área Adyacente

PATROCINANTE: Munic. de Necochea

GANADORES: Pablo Fidel Rescia

2015

PROVINCIAL Ideas y Anteproyectos

Ex Planta de pretratamiento de efluentes cloacales, Gral Pueyrredon

PATROCINANTE: Obras Sanitarias Mar del Plata-Batán S.E.

GANADORES: Pablo Fidel Rescia, Jennifer Fernández, María José Díaz Varela, Guadalupe Bahl. José Manuel Álvarez, Eduardo Arrepol, Carlos Roldán, Patricio Bellagamba.

1991

DISTRITAL Convocatoria de Ideas Puesta en Valor Galería Lafayette

PATROCINANTE: Administración Galería Lafayette

1997

PROVINCIAL

Remodelación Peatonal San Martín

PATROCINANTE: Asociación Propulsora de la Calle San Martín

GANADORES: Guillermo de Paz, Diego Noales, Florencia Gioia, Oscar Romussi

2002

DISTRITAL / ABIERTO Ideas Conjunto La Atalaya

PATROCINANTE: CAPBA DIX

2005

NACIONAL Anteproyectos Edificio del Área de Investigación en Agronomía del INTA

PATROCINANTE: I.N.T.A.

GANADORES: Julián Carlos Sirolli, María Claudia Resta

1992

DISTRITAL

Anteproyecto Ampliación Sede S.U.M. CAPBA DIX

PATROCINANTE: CAPBA DIX

GANADORES: Guillermo De Paz, Diego Noales, Oscar Romussi, Javier De Rosa

1996

ABIERTO Ideas

Renovación y Revalorización

Ambiental y Física de la Plaza San Martín

PATROCINANTE: M.G.P.

GANADORES: Juan Pablo Ferri, Sergio Cairoli,Carlos Iriarte, Cristian Willemoes

2002

LOCAL Ideas Asociación de Fomento San Bernardo

PATROCINANTE: Asoc. Fomento San Bernardo

GANADORES: Guillermo De Paz, Diego Noales, Florencia Gioia, Oscar Romussi

2005

PROVINCIAL Anteproyectos

Biblioteca Central de la UNMdP

PATROCINANTE: U.N.M.D.P.

GANADORES: Pablo Rescia, Darío Lemmi, Rubén Oxarango

2015

NACIONAL Ideas y Anteproyectos Complejo Judicial Departamento Necochea

PATROCINANTE: Suprema Corte de Justicia Pcia. Buenos Aires

GANADORES: Agustín E. Mendiondo y Christian Moroni. L. Lingeri, J. M. Galleano, M. Padula, S. Passallacqua, F. Riccheri. S. Berdichevsky, M. Di Pelino, C. Martínez, B. Ciovini.

CONCURSOS
17

Premio ASAMP 1987

1ºPREMIO

Vivienda social

Osvaldo "Cholo" Cedrón

Ortega y Gasset 2579, MdP

1ºMENCIÓN MENCIÓN

Vivienda multifamiliar

Carlos Mariani

Ma. H. Perez Maraviglia

Alberto Álvarez

San Luis 2246, MdP Reciclaje valor patrimonial

Alejandro Sosa Cazales

14 De Julio 1311, MdP

En los inicios del CAPBA y aún un tiempo después nuestro Colegio Profesional co-existió con la Asociación de Arquitectos de Mar del Plata. Esta entidad tuvo a su cargo la organización de algunos concursos y premios hasta que el CAPBA formalmente asumió la designación de sus cuerpos de jurados y asesores y la realización de las nuevas convocatorias. Detallamos el resultado del premio de arquitectura realizado durante el año 1987 según los registros y publicaciones de la época.

1ºPREMIO

Vivienda individual hasta 120 m2

Miguel Ángel Bartolucci

Ma. Inés Villar

Azcuénaga 666, MdP

2ºMENCIÓN

Vivienda multifamiliar

Mario Marchelli

1ºPREMIO

Vivienda individual más de 120 m2

Nelson Quarati

Roberto Jakubowicz

Mendoza 3657, MdP

Vivienda individual más de 120 m2

Guillermo Orofino

Paunero e/Vieytes y Larrea, MdP

1ºPREMIO

3 de Febrero e/14 de Julio y Dorrego, MdP Edificios comerciales

David Dalmiro Montes

Av. Constitución esq. Rojas, MdP (Supermercado Elefante)

3ºMENCIÓN MENCIÓN

Vivienda multifamiliar

Nelson Quarati

Roberto Jakubowicz

San Luis 3250, MdP

1ºPREMIO

Reciclaje valor patrimonial

Susana Mastaglio Silvestre Catamarca 1755, MdP

Edificios comerciales

Luis Antonio De Luise

Bvard. Marítimo esq. Rivas, MdP (Gastronomía)

Edificios institucionales

Carlos Mariani

Ma. H. Pérez Maraviglia

Av. Colón esq. Av. Independencia, MdP (Colegio de Escribanos)

1ºPREMIO MENCIÓN
18 Especial Aniversario CABPA 30 años

Premio CAPBA

Arquitectura, Urbanismo, Investigación y Teoría, "a la obra construida"

1ºPremioDistrital

1996

Vivienda individual hasta 150 m2

Diego Noales

Florencia Gioia

Pellegrini esq. Vieytes, MdP

1ºPremioDistrital

1996 No residencial comercio

Juan Manuel Escudero

Antonino D’orso

Luis Salles Av. Independencia y Garay, MdP

Desde el año 1997 el CAPBA ha instrumentado una instancia de concurso orientada a reconocer la producción proyectual y teórica de sus matriculados. Por ello surge el Premio CAPBA a la "Obra Construida" y a la "Investigación y Teoría".

El premio a obra construida contó con una instancia distrital, hasta el año 2005, y una provincial hasta la actualidad. En esta nota, realizamos una compilación de todas las obras y trabajos que han obtenido reconocimientos en diferentes categorías.

1996

Vivienda individual + 150 m2

Carlos Mariani

Ma. H. Pérez Maraviglia

R. Peña 786, MdP

1996 Vivienda colectiva

Carlos Mariani

Ma. H. Pérez Maraviglia

Av. Colón 2920, MdP

1996 Locales comerciales

Javier Saez

Alejandro Vitali Güemes 2732, MdP

1996 No residencial centro comercial

Carlos Mariani

M. H. Pérez Maraviglia

Oscar Zurdo - Juan Pfeifer Belgrano y Catamarca 1880, MdP (Shopping)

1996 Reciclaje no residencial

Carlos Mariani

M. H Pérez Maraviglia

Olavarría 2264, MdP. (Fundación Bolsa de Comercio)

1996 Edificaciones p/recreación

Carlos Mariani

Ma. H. Pérez Maraviglia

Paseo Costanero Sur 5150, MdP (Aquarium)

1997

Vivienda Individual hasta 150 m2

Luis Villalon González

Roldan Nº 1055. MdP

1997

Vivienda individual + 150 m2

Nelson Quarati

Roberto Jakubowicz

Laura Scarfone

Calle 44 y Av. Costanera, Mar Azul

1997

Vivienda individual + 150 m2

Matías De Luigi

Emilio Schargrodsky

Lambertiana Nº 209, Cariló

1997

Vivienda Colectiva

Miguel Golomb

Daniel Medina

Lamadrid Nº 2448, MdP

1997

Vivienda Colectiva

Nelson Quarati

Roberto Jakubowicz

Alem Nº 4317, MdP

1997

No Residencial hasta 500 m2

Jorge Luis González Av. Independencia esq. Almafuerte, MdP

1997

No Residencial hasta 500 m2

Silvia Martin

Balcarce Nº 3102, MdP

1997

No Residencial 500 m2 a 2000 m2

Nelson Quarati

Roberto Jakubowicz

Laura Scarfone

INSTANCIA DISTRITAL 1996-2005 / INSTANCIA PROVINCIAL E/ 2001 Y 2013 BIENAL / FADEA desde 2013
MenciónProvincial 1ºPremioDistrital 1ºPremioDistrital 1ºPremioDistrital
Falucho Nº 2953, MdP (Plaza Club) 1ºPremio Provincial 1ºPremioDistrital 1ºPremioDistrital 1ºPremio Provincial 1ºPremioDistrital 1ºPremioDistrital 1ºPremioDistrital 1ºPremio Provincial 1ºPremioDistrital 2ºPremioDistrital 3ºPremioDistrital Mención 2ºPremioDistrital 1ºPremioDistrital 20 Especial Aniversario CABPA 30 años

Premio CAPBA

1997

No Residencial

500 m2 a 2000 m2

Nelson Quarati

Roberto Jakubowicz

Córdoba Nº 1948, MdP (Open Spa)

3ºPremioDistrital

1997

No Residencial + 2000 m22

Luis Castelani

Juan Carlos Pellegrini

Av. Juan B Justo Nº 1776, MdP

MenciónDistrital

1998

Vivienda Individual + de 150 m2

Gustavo Fabbri

Curie 6555, MdP

1ºPremioDistrital

1997

2ºPremioDistrital MenciónDistrital

No Residencial Administración

Nelson Quarati

Roberto Jakubowicz

Ortiz de Zárate Nº 2950, MdP

1ºPremioDistrital

1998

Vivienda Individual hasta 150 m2

Ignacio Gamboa

Juan J. Vicario

Avutarda Nº 488 - Cariló

MenciónDistrital

1998

No Residencial Administrativo

Gustavo Smirnoff

Sergio Giulietti Av. Constitución 5151, MdP (Coop. Telefónica)

1997

No Residencial Administración

Jorge Luis González Colón Nº 3073, MdP

1ºPremioDistrital

1998

Vivienda Individual hasta 150 m2

Mariano Efron

Marcelo Del Torto Cariló

2ºPremioDistrital

1997

No Residencial + 2000 m2

Nelson Quarati Roberto Jakubowicz Av. Juan B Justo Nº 5758, MdP (Oficinas Moscuzza)

MenciónDistrital

1998

Vivienda Individual hasta 150 m2

Susana Mastaglio

Rubén Zoppi Mirlo 1621 e/Avellano Y Araucaria, Cariló

1ºPremioDistrital

1998

No Residencial Culto

Carlos Mariani

Ma. H. Perez Maraviglia

Av. Edison Nº 2851, MdP (Pquia San Benedetto Mártir)

1ºPremioDistrital

1ºPremio Provincial

1998

No Residencial Hotel

Carlos Mariani Ma. H. Perez Maraviglia

Alem Nº 4221, MdP (Sheraton)

1ºPremioDistrital

1998

No Residencial Comercio

Gustavo Fabbri

Av. Juan B. Justo Nº 4646, MdP (Vivero)

1ºPremioDistrital 1ºPremio Provincial

1999

Reciclado en obras residenciales

Roberto Kuri

José Solla

Corrientes y Falucho, MdP (Estudio Carnicero)

2ºMención Provincial

MenciónDistrital

1999

Vivienda Individual hasta 150 m2

Antonino D’orso

Darío Lemmi

Calle Almafuerte, MdP

MenciónDistrital

2000

Vivienda de Interés Social

Osvaldo Mario Cedrón

Conjunto de 30 Viviendas

Barrio Caisamar, MdP

1ºPremioDistrital 1ºPremio Provincial

1999

Vivienda individual + 150 m2

M. Inés Villar

Elena Mariani Cariló

MenciónDistrital

2000

No Residencial Reciclado

José Solla

Dario Lemmi

Catamarca 1755 e/ San Martin y Rivadavia, MdP (Local Osh Kosh)

MenciónDistrital

1999

Vivienda Individual

Tomás Barry

Juan Garamendy Bosque Peralta Ramos, MdP

MenciónDistrital

2000 Comercio

Guido Tedesco Jujuy Nº 3106. MdP

22 Especial Aniversario CABPA 30 años

Arquitectura, Urbanismo, Investigación y Teoría, "a la obra construida"

2000

Vivienda individual + 150 m2

Carlos Mariani, Ma. H. Pérez Maraviglia

Jerónimo Mariani

Club de Campo Marayui. Chapadmalal. MdP

2000

Vivienda individual + 150 m2

Miguel Ángel Bartolucci Castelli Nº 366, MdP

2000 Comercio

1ºPremioDistrital 1ºPremioDistrital MenciónDistrital 1ºPremioDistrital

Gustavo Fabbri

Calle Belgrano Nº 3417, MdP (Pescadería Victoria)

2000

Uso deportivo Manteola - Sánchez

Gómez- Santos - SolsonaSalaberry Natatorio, MdP Copan '95

2000

Intervención en espacios públicos

M. A. Álvarez - R. Asiain -

H.Bermudez - G. Caimari -

I. Ferrari- A. Mihelic -

S. Rodriguez - L.Spinelli

Paseo 9 de Julio, Miramar

2001

Vivienda Individual hasta 150 m2

Miguel Rótolo Haya 995 E/Zorzal y Tucán, Cariló

2001

Vivienda Individual hasta 150 m2

MenciónProvincial NominaciónDistrital 2ºPremio Provincial NominaciónDistrital NominaciónDistritalMenciónProvincial

Jorge Galarregui Carlos Busso

Casa Soria, Pinamar

1998

Vivienda Individual + 150 m2 Eduardo Agüero. Colab.: Martín Marcenaro Juan Carlos Díaz May

Las Heras y Laprida, MdP

2001

Reciclaje

Javier Sáez Chacabuco 3291, MdP

2001

Reciclado en obras No residenciales

Elena Mariani

M. Inés Villar Roca 1404 y Olavarría, MdP (Los Cuencos)

2001 Comercio

NominaciónDistrital NominaciónDistrital NominaciónDistrital NominaciónDistrital

Patricia Anuncibay Cerrosud Av. J.B.Justo 2751, MdP

2001 Comercio

Patricia Anuncibay Cerrosud Diag. Canosa 251, MdP

2001

Intervención en espacios públicos

Guillermo De Paz -

Florencia Gioia- Diego

Noales - Oscar Romussi

Peatonal San Martín, MdP

2003

Vivienda Individual hasta 150 m2

Luis Villalon González MdP

2003

Vivienda Individual hasta 150 m2

NominaciónDistrital 1ºPremio Provincial NominaciónDistrital NominaciónDistrital NominaciónDistrital

Martín Volpi MdP

2003

Vivienda Individual hasta 150 m2

Cecilia Monópoli

Daniel Mateos MdP

2003

Vivienda Individual hasta 150 m2

Juan José Garamendy MdP

2003

Reciclaje Comercial

José Solla MdP

2003

Reciclaje Comercial

NominaciónDistrital NominaciónDistrital NominaciónDistrital NominaciónDistrital

Dario Lemmi MdP

2003

Reciclaje Residencial

Daniel De Martino MdP

CONCURSOS
23

Premio CAPBA "a la obra construida"

Premio CAPBA "a la obra construida"

2003 Reciclado en obras residenciales

Juan Manuel Escudero Casa Chorizo en MdP

Reciclado en

2003

Susana Mastaglio Rubén Zoppi Piazza Café, MdP

2005

Vivienda Individual hasta 150 m2

María Silvia Caceres Monie - Gabriel Vidauli Casa en Pinamar.

2005

Vivienda Individual hasta 150 m2

Héctor Fabián Schulz. Colaborador:

Ricardo Javier Schulz Casa en Pinamar.

2005

Vivienda Individual hasta 150 m2

Darío Lemmi Casa en Mar del Plata

2005

Vivienda Individual hasta 150 m2

Luciana Guglielmotti

Diego Quarati Casa en Mar del Plata

2005

Vivienda Individual hasta 150 m2

Antonino D`Orso Casa en Caisamar, MdP.

2005

Edificios No residenciales

Carlos Mariani

Ma. H. Perez Maraviglia

Oscar Cañadas Hotel en Tandil

2005

Vivienda Individual hasta 150 m2

Gabriel Amílcar Vidauli Laurel Nº 359, Cariló.

2007

Viv. Individual e/medianeras

Jerónimo Mariani

Calle Bernardo de Irigoyen. Mar del Plata

2007

Viv. Multifamiliar baja densidad Darío Lemmi Vivienda Colectiva. Calle Guido. Mar del Plata

2007

Reciclaje en obras residenciales

Martín Volpi

Casa en Sierra de los Padres

2009

Vivienda Individual aislada

Darío Lemmi Casa en Mar del Plata

2009

Vivienda multifamiliar media densidad

Carlos Mariani

Ma. H. Perez Maraviglia. Edificio Matheu 131. Mar del Plata

2009

Vivienda Multifamiliar de Alta densidad

Carlos Mariani

Jerónimo Mariani

Vivienda Multifamiliar en Mar del Plata

2009

Vivienda Multifamiliar de Alta densidad

Carlos Mariani. Colab:

M. H. Perez Maraviglia, Jerónimo Mariani, Oscar Cañadas

Edificio Bvard. Marítimo.

Mar del Plata

2009 Edificios

No residenciales

Martín Volpi

Edificio Comercial Mar del Plata

2011

Vivienda Individual c/ límites medianeros parciales o totales

Juan Manuel

Rodríguez Llanos Casa en Balcarce

2011

Vivienda Individual c/ límites medianeros parciales o totales Antonino D’orso Casa Barrio El Grosellar. Mar del Plata

CONCURSOS
2003 Edif. No Residencial Jerónimo Mariani MdP
residenciales
obras No
NominaciónDistrital 1ºPremio Provincial 2ºPremio Provincial 2ºPremio Provincial 3ºPremio Provincial 2ºMención Provincial 2ºMenciónDistrital 2ºMención Provincial 1ºPremio Provincial 2ºPremio Provincial MenciónDistrital MenciónProvincial 1ºPremio Provincial 1ºPremio Provincial MenciónProvincial 1ºPremio Provincial 2ºPremio Provincial 1ºMención Provincial MenciónProvincial 2ºMenciónProvincia 25

Premio CAPBA "a la obra construida"

1ºPremio Provincial 1ºPremio Provincial

2011 Vivienda individual aislada Fernando Iglesias. Cecilia Monópoli. Colab: María

Candela Caruso. Oriol Palou

Casa en Sierra de los Padres

2013 Edificios

Eugenio Fernández. Equipo: Arqs. A. Macchi

- P. Palauro - I. Niz - Sr. E. Cepeda. Colab: Duffard

-D’elia - Brankevich

Edificio Funes y Belgrano, Mar del Plata

2013 Comercio

Eugenio Fernández. Equipo: Arqs. A. Macchi

- P. Palauro - I. Niz - Sr. E. Cepeda

Drap Pinturerías, MdP

2013

Equipamiento público Guillermo De Diego. Colaborador Marcelo Bejanele Skate Park, MdP

2014

Edificio Cultural Estudio Monoblock

Fernando CynowiecMarcos Amadeo -

Juan Granara - Alexis Schachter - Adrián Russo.

Museo Mar. Mar del Plata

1ºPremio Provincial

2015

Vivienda Individual aislada

Leonardo Jáuregui

Leandro Zapata

Casa en Barrio Colinas

Verdes. Mar del Plata

2015

Vivienda Individual con límites medianeros parciales o totales2

Guillermo Elgart

Silvia Tammone

Calle Andrade esq. Cardiel. Mar del Plata.

2015

Viviendas Pro.Cre.ar Guillermo Elgart Silvia Tammone. Colab. Juan Manuel

Albarenque - Andrés López

Lorenzini Nº 1030. Barrio

La Florida, MdP

2015

Viviendas Pro.Cre.ar Fernando Ariel Galera Vivienda en Villa Gesell

2015 Intervenciones en Obras de Valor Patrimonial Guillermo De Paz

Oscar Romussi Paseo Celso Aldao Complejo Playa Grande. Mar del Plata

1ºPremio Provincial

2015

Equipamiento José Solla

Eduardo Zak

Obra UTF - Varese Mar del Plata

MenciónProvincial
MenciónProvincial
2ºPremio Provincial
MenciónEspecial Provincial 2ºPremio Provincial
MenciónProvincial
MenciónProvincial
1ºPremioFADEA

Premio CAPBA

1996

Ensayos teóricos

Arq. Javier Sáez “Las lógicas proyectuales.

Apuntes sobre los componentes del proceso proyectual en el siglo XX”

2ºPremio Provincial

1996

1ºPremio Provincial 1ºPremio Provincial

Investigaciones urbanas

Arq. Miguel Carlos Rótolo “Mar del Plata, intervenciones urbanísticas y estrategias de regulación”

2000

Área propuesta urbana

Arqs. Ariel Magnoni, Guillermo Bengoa, Miguel Carlos Rótolo “Plan Director para la Unidad Turística Chapadmalal”

1999

Investigaciones sobre proyecto

Arqs. J.M. Escudero, G. Badillos, A. D’Orso, R. Echarte, G. Irazábal, D. Passantino, H. Rigone, H. Santella. Lic. en Sociología: L. Halperin Weisburd, C. Barbieri, R. L. Serrano, A. Ruszkowski. Asistente social Ma. C. Suárez, Contador Público Nacional R. Vega, Abogado E. Mayorano, Lic. Asesor Encuestas J. López, Médico Asesor Gerontología D. Schavrosky, “Necesidades y respuestas posibles para el alojamiento de adultos mayores”

2001

Propuestas urbanas, territoriales, ambientales, patrimoniales Arqs. Alejandro Novacovsky, Felicidad París Benito, Silvia Roma, Manuel Torres Cano. Asesores: René Longoni, Ramón Gutiérrez, Alberto Nicolini, Jorge Ramos, Graciela Viñuales. Colaboradores: Rosana Álvarez, Cristian Andreoli, Alejandra Domínguez, María Eugenia Millares, Fernando Redivo. Estudiantes: Romina Fiorentino, Julio César Guerrero/ “Tecnología y estrategias en la planificación de la restauración del patrimonio arquitectónicourbano. Reconocimiento de la obra del Ingeniero Arquitecto Francisco Salamone en la Provincia de Buenos Aires”

2001

Investigaciones sobre el ejercicio profesional Arqs. Jorge Luis Cottura, Leonardo Perissinotto, Silvina Rancich. Colaboradores: María Elena Méndez, Nilda Sapag, Francisco Spadafora, Juan Guerra, Damasia Bustamante, Ricardo Asiain, Fernando Iglesias, Roque Lucero, Héctor Calegari “Planificación urbana y regional en el ámbito del Colegio de Arquitectos de la Provincia de Buenos Aires, Distrito IX. Hacia la construcción de un política institucional para la participación en planes estratégicos”

2001

Investigaciones históricas

Arqs. María Alicia Bergna, Roberto Mario Peralta, Graciela Ponce de León, Vivian Alicia Ponce de León Barton. Comunicador Social Santiago Albina. Cámara y edición: Andrés Guariste “Ensayo en video”

2005

Categoría investigadores patrocinados

Arqs. Manuel Torres Cano, Viviana Mastrogiácomo, Laura Romero. Colaboradores: Arqs. Ana Zagorodny, Claudio Erviti, María de las Nieves Rizzo, Melecia Granero, Hernán Lecce

Cresta, Analía Benítez, Silvia Torrisi, Roberto Peralta “El Ferrocarril del Sud: configuración del territorio, pueblos y ciudades. Arquitectura, patrimonio industrial y legado socio-cultural en el sudeste bonaerense, 1880-1930”

2001

Invest. urbanas, territoriales, ambientales Arqs. L.Perissinotto, M. Ciancaglini, M. Etchegoyen, J.Odriozola, M. Yagüe “Los espacios de recreación en el núcleo urbano Necochea-Quequén”

2003 Categoría investigadores independientes

Propuestas urbanas

Arq. Juan José Garamendy

“La perspectiva ambiental para la gestión diversificada de un espacio urbano-regional corredor sur.”

2005

Cat. investigadores independientes

Arq. Miguel Ángel Bartolucci

“Mar del Plata. Reflexiones sobre la historia, la teoría y las prácticas. El pinto-racionalismo”

2007 Invest. patrocinados Invest. tecnológicas

Arq. Felicidad Paris Benito “El revestimiento símil piedra y ornamentación de fachadas. Periodo 1890-1930. Metodología y acciones para su recuperación”

MenciónProvincial 1ºPremio
2ºPremio Provincial
MenciónProvincial MenciónHonorífica Provincial 1ºPremio Provincial 1ºPremio Provincial 1ºPremio Provincial 28 Especial Aniversario CABPA 30 años
Provincial
3ºPremio Provincial

Arquitectura, Urbanismo, Investigación y Teoría "Investigación y Teoría"

2007 invest. patrocinados Investigaciones urbanas, territoriales y ambientales

Arqs. Hector De Schant, Agustina Jewkes

“Estudios urbanos para la gestión sociocultural. Caso: “Antiguo Barrio de la Estación”

2009

Cat. investigadores independientes

Arq. Daniel R. Medina

“MdP, Desarrollo Urbano e Imaginarios Vinculados. Observaciones para su ponderación en los procesos de transformación espacial”

2009

Cat. investigadores patrocinados Arq. Adriana B. Olivera, Colaboradores: Arq. José Luis Castorina, Analía G.Flores “Algunas consideraciones para una normativa urbana sobre el Ordenamiento Territorial y Uso del Suelo en la Provincia de Buenos Aires”

2011

Historia y Crítica Arquitectónico y Urbanística Dr. Arq. Pablo Mastropasqua “Amancio Williams y la Casa del Puente. Una crónica de su historia, el abandono, la puesta en valor y de algunas frustraciones”

2014

Categoría A. Urbana Arqs. M. Ángeles Achinelli, Laura Derisio, Silvia Rodríguez Coordinación y Apoyo Técnico: IEU9: Arqs. Julia Romero, Martín Sarasíbar, Adriana B. Olivera “Identidad, integración y cohesión social desde la definición de los espacios públicos. Nuevos escenarios para el área de FF.CC. en la ciudad de Miramar”.

2014

Categoría B. Ambiental

Coordinador: Arq. Martín Sarasíbar. Equipo: Arqs. Julia Romero, Adriana B. Olivera, Andrés Molina Favero, Carlos Ronda, Alejandro Nicolini, Juan Figueroa, Marcelo Amatrain, Romina Chocou, Celeste Siccardi. Colaboradores: Arq. Silvia Salim, Delegados CAPBA Distritos IX-X, representantes de los gobiernos municipales costeros, Lic. en Tecnología Ambiental Mariano Verón, Lic. en Geografía Gabriel Molina Favero, Lic. en Gestión Ambiental Florencia Slobodianinck (CPC MSaA)

“Desarrollo Costero en el S. XXI. Desde el marco normativo vigente al desarrollo urbanoambiental de las ciudades costeras de la Provincia de Buenos Aires”

2014

Categoría C. Patrimonial

Arqs. Ramón Uranga, María Celeste Siccardi. Coordinación y Apoyo Técnico: IEU9: Arqs. Julia Romero, Martín Sarasíbar, Adriana B. Olivera, Laura Romero

“Nuevos desafío en la construcción de espacios de participación en la gestión del Patrimonio. Iniciativas para el desarrollo local a través del patrimonio urbano-arquitectónico de Gral. Madariaga”.

2016

Categoría Proyecto de Intervención Territorial

Arqs. Adriana Olivera, Julia Romero, Alejandro Nicolini, Alicia París, María de las Mercedes Fassinato, María Ester Morani. Colaboradores: Claudio Erviti, Manuel Torres Cano, Eugenio Fernández, Martín Sarasíbar y Celeste Sicardi. “Vivienda y ciudad: El Legado Urbanístico, Arquitectónico y Tecnológico de los Arquitectos Córsico Piccolini y Auro Tiribelli. Miradas, Interpretaciones y Apropiaciones”.

2014 Categoría C. Patrimonial Arq. Miguel Ángel Bartolucci. Colaboración: Arq. María Errecalde “La Mar del Plata moderna”

2015

Categoría 2 Arqs. Adriana B. Olivera, Julia Romero, Alejandro Nicolini. Colaboradores: Arqs. Martín Sarasíbar, Celeste Siccardi “Desarrollo de las Políticas habitacionales del PRO.CRE.AR. en relación al sistema de movilidad Subregional del Sudeste Atlántico. El caso General Pueyrredon hacia General Alvarado y Mar Chiquita”.

CONCURSOS
MenciónProvincial MenciónProvincial 2ºPremio Provincial 1ºPremio Provincial 1ºPremio Provincial 1ºPremio Provincial 2ºPremio Provincial MenciónProvincial 2ºPremio Provincial 29
MenciónProvincial

30 Años, 30 Obras

Breve repertorio de la producción local para el testimonio y la reflexión sobre la arquitectura

que construimos.

“La Arquitectura es acto social por excelencia, arte utilitario, como proyección de la vida misma, ligada a problemas económicos y sociales y no únicamente a normas estéticas. (…) Para ella, la forma no es lo más importante: su principal misión: resolver hechos humanos”

Carlos Raúl Villanueva

(1900-1975) Arquitecto venezolano

El CAPBA cuenta ya con 30 años de obras nacidas bajo el marco institucional que regula la profesión del arquitecto. Este notable volumen de producción, nos da oportunidad para un repaso por obras de diferentes rubros. ¿Cuáles elegir y cómo elegir? A este fin se convocó a un Comité Asesor Editorial1, conformado por profesionales reconocidos de la arquitectura y del urbanismo locales, a fin establecer criterios de selección de Intervenciones Urbanas y Obras de Arquitectura. Del trabajo en conjunto durante todo el año 2016 surgió esta selección de obras que presentamos y que abarcan los 30 años de vida colegial.

El Comité Asesor priorizó, para realizar esta selección de obras, los proyectos que tuvieran un reconocimiento previo en concursos de diferente escala, el Premio CAPBA en su instancia distrital o provincial, o publicación en medios reconocidos. En algunos casos, como por ejemplo en las Delegaciones, se consultó a los matriculados del lugar. Muchas de estas obras no presentan su estado original, el paso del tiempo y los cambios en sus usos ha transformado la arquitectura para adaptarla a nuevas demandas lo que exalta aún más la labor del proyectista y nos permite abrir una instancia de reflexión a partir de esta sección.

En ese sentido, previo al compendio de obras, consideramos necesaria una introducción que nos pusiera en contexto tanto para conocer el escenario de la arquitectura en las décadas anteriores a la creación del CAPBA como en las tres décadas de existencia de nuestro Colegio. Agradecemos al Arquitecto Claudio Erviti por la colaboración, el trabajo de investigación desarrollado y fundamentalmente las reflexiones compartidas.

Finalmente, en la nota "intenciones construidas" agradecemos al arquitecto Pablo Rescia la colaboración para realizar un reconocimiento especial al Estudio MarianiPérez Maraviglia (MPM) cuya obra e intervenciones urbanas resultan características y significativas la ciudad de Mar del Plata.

Lao Tsé

(605-531 a.C.) Filósofo chino

1 Miembros del Comité Asesor Editorial: Guillermo Caimari, delegado Miramar / José Manuel Gaido, delegado Necochea / Cristian López Rivolta, delegado La Costa / Carlos Schifano, delegado Villa Gesell / Jorge Trivigno, delegado Balcarce / Ramón Uranga, delegado Pinamar / Daniel Cutrera / Claudio Erviti / Horacio Goyeneche / Roberto Guadagna / Roberto Jakubowicz / Juan Carlos Mantero / Ma. Haydee Pérez Maraviglia / Daniel Medina / Alejandro Novacovsky / José Solla. Adriana Olivera, Laura Romero, Alicia Paris y Analía Flores. Miembros del Consejo Editorial: Julia Romero, presidente DIX / Daniel Monzón, secretario DIX / Bruno Mazzini, tesorero DIX / Analía Benítez, editora Revista Info CAPBA IX.

“La Arquitectura no son cuatro paredes y un tejado sino el espacio y el espíritu que se genera dentro”

Las décadas previas al CAPBA

Una crónica de la arquitectura en Mar del Plata, 1957-1986

Estos apuntes abordan algunas manifestaciones arquitectónicas que tuvieron a Mar del Plata como ámbito de emergencia en el transcurso de las décadas previas a la creación del CAPBA, período que se corresponde, en gran parte, con el momento de institucionalización, profesional y académica, de lo que ha dado en llamarse arquitectura moderna. En efecto, hacia la segunda mitad de la década del cincuenta se impusieron, de modo excluyente, las diversas derivas de dicha modernidad y los arquitectos, independientemente de su posicionamiento, postularon mayoritariamente el compromiso social de la arquitectura y su potencialidad transformadora. Esta primacía del modernismo iniciaría su declinación precisamente hacia el final de la fase aquí tratada, alrededor de 1980, con el paulatino despliegue de la así llamada “posmodernidad” cultural.

El recorrido se inicia con algunas consideraciones de índole extradisciplinar en torno a las condiciones de posibilidad socio-productivas de la arquitectura local en esos años -entre las cuales el despliegue de la modalidad turística masiva nos parece relevante-, para aproximarse posteriormente a un puñado de episodios arquitectónicos de aquella Mar del Plata que era una y era dos: “la de los veraneantes” y “la de los marplatenses”, interdependientes y, en ciertas dimensiones, superpuestas. Entendemos que estas líneas son demasiado extensas para una publicación de este tenor y, a la vez, fragmentarias e incompletas. Esto último encuentra una de sus excusas en el hecho de que publicaciones y registros sobre la historia de la arquitectura en Mar del Plata han estado –desde los trabajo pioneros de Roberto Cova– fuertemente centrados en la primera mitad del siglo XX, dejándose de lado -vaya uno a saber a causa de que prejuicios históricos o arquitectónicos- el segundo tramo del siglo pasado. Condición también verificable en los trabajos de investigación académicos realizados en los últimos 30 años en el ámbito de la FAUD, salvo pocas excepciones. Surgen de aquí dificultades en el reconocimiento de autores y de obras: sirva esto como disculpa toda vez que, seguramente, obras y autores destacables se nos hayan pasado por alto.

30 AÑOS. LAS DÉCADAS PREVIAS.

1.- “MAR DEL PLATA ´70” O EL BALNEARIO DE MASAS

El período tratado -posterior al derrocamiento del gobierno peronista en 1955- se caracterizó por una sucesión de gobiernos democráticos continuamente abortados por dictaduras militares crecientemente violentas –que ha dado en llamarse eufemísticamente “democracia controlada”hasta 1983, cuando se produjo la recuperación definitiva de la democracia. Independiente de este vaivén político, se desplegó hasta 1976, un modelo productivo de tenor industrialista, que acompañó el Estado de Bienestar en su versión local, cuya liquidación iniciaría la dictadura surgida ese año, a partir de la instauración de un régimen neoliberal. El gobierno que inauguró la reconstrucción democrática intentó, con dificultades, remontar esa sí pesada herencia.

Este modelo de acumulación constituyó una intensificación del modelo Sustitutivo de Importaciones que impactó en la arquitectura y en la construcción, por ejemplo con su apuesta al desarrollo de sistemas industrializados y a la diversificación de materiales. Resultó beneficioso para la ciudad y también para la región balnearia bonaerense, de modo directo e indirecto: Mar del Plata devino un balneario abierto a grupos medios y populares, en tanto se expandieron urbanizaciones en playas alternativas como Pinamar o Villa Gesell. En este marco la ciudad fue receptora de inversiones que impulsaron exponencialmente la industria de la construcción y la densificación de su sector costero, verificándose la demanda de nuevos servicios y actividades de ocio y entretenimiento, nuevos programas arquitectónicos y la expansión de la vivienda individual y agrupada, tanto especulativa cuanto social. Cuantitativamente significó que el millón de visitantes de mediados de la década de 1950 llegara, por caso, a más de 2.800.000 en la temporada 1972/73. La ciudad “estable” creció significativamente, pasando de algo más de 200.000 habitantes en 1960 a más del doble en 1980. El crecimiento turístico redundó en una de las reconversiones urbanas más impactantes acaecidas en nuestro país, con centro en la Bahía Brístol y el sector costero, a partir de la reproducción de la mercancía “departamento”. El crecimiento demográfico expandió la ciudad, a partir de un contado número de tipologías habitativas, multiplicando la demanda de infraestructuras y equipamientos.

Si bien es hoy un lugar común aceptar que esta transformación constituyó en nuestro país un rasgo de

igualación social -al permitir el acceso progresivo de nuevos grupos al consumo de prácticas recreacionales- y que la vitalidad urbana y la sociabilidad que proponía entonces el balneario eran de una gran riqueza, el despliegue sociourbano propio del “balneario de masas” fue objeto de análisis de tono muy crítico por aquellos años: tal es el caso de dos publicaciones de alcance nacional, de tenor sociológica una, arquitectónica la otra.

En Mar del Plata, el ocio represivo -una crítica de tono frankfurtiano al consumismo- de Juan José Sebreli señalaba la puesta en vigencia de la Ley de Propiedad Horizontal como el desencadenante de la “Era de las masas” en el balneario, lo que habría redundado en una hipertrofia de la industria de la construcción, representada por actores sociales como Nicolás Dazeo, uno de los principales actores del “boom”. En su mirada este desarrollo centrado en el turismo era irracional, y el balneario mera propuesta consumista e instrumento de alienación: “Las altas torres de Mar del Plata, serán vistas algún día, en una futura y posible sociedad racional, como grandes monumentos de la inutilidad y el desperdicio, lujosa dilapidación de energías, al estilo de las pirámides egipcias”, afirmaba. No escapó sin embargo a su mirada la riqueza de la vida urbana de “la Bristol”: la comida en los grills y en la playa, la actividad comercial y teatral o la intensa utilización de espacios de encuentro, como las confiterías Colombia o la Jockey Club. Su lectura del balneario como espacio, para el turista, distinto de lo cotidiano, asociado al concepto de fiesta y de juego, con sus rituales, vestimentas y objetos, es, hoy, lo más interesante de su análisis. Entre los rasgos socio-culturales destacó el proceso de “juvenilización” del turismo: son los jóvenes, desde los sesenta, quienes dictan las formas dominantes del consumo veraniego, impulsando la “industria de la diversión” y la emergencia de áreas especializadas, como Av. Constitución.

La edición que la revista Summa dedicó a Mar del Plata en 1971 -Mar del Plata. Arquitectura y Entorno, a cargo del Arq. J. M. Boggio Videla, habitualmente crítico con el fenómeno marplatense- incluyó textos en los que, si bien se reconocía la excepcionalidad del mismo, se ponían de manifiesto sus contradicciones -algunas de relevancia como el “déficit” habitacional: con 100.000 hogares y más de 130.000 viviendas unifamiliares, ya existían, hacia los años sesenta, varias villas miseria en la ciudad-. La estructura urbana se visualiza escindida en dos: la “ciudad de tránsito”, sobre la

34 Especial Aniversario CABPA 30 años

costa, y la “franja interior”, la ciudad estable, de carácter análogo al de otras ciudades pampeanas El artículo de cierre -una reflexión sobre el desarrollo futuro de Mar del Plata, con citas a propuestas sistémicas del grupo Archigram y Yona Friedman– postulaba la necesidad de revertir las contradicciones urbanas -la impostación de la cuadricula sobre la topografía de lomas, el crecimiento monocéntrico de la ciudad, etc. Las obras arquitectónicas publicadas -unas cuarenta, de diversos programas- correspondían, bien a profesionales entonces destacados, bien a obras públicas realizadas en las gestiones socialistas.

Ambos registros dejaron constancia de la preeminencia de la industria de la construcción en la cultura urbana marplatense. En el caso de Summa encontró también expresión la Facultad de Arquitectura y Urbanismo surgida en ese contexto y, por entonces, con menos de una década de existencia.

A partir del golpe cívico-militar ocurrido en 1976 se fueron clausurando las condiciones de posibilidad de la fase expansiva mencionada, dando inicio a un ciclo de “desmasificación” de la actividad turística, evidenciado, entre otros aspectos, en la disminución de la capacidad de gasto y la duración de las estadías de los visitantes, y en la menor rentabilidad de la temporada. La pérdida del monopolio marplatense en el movimiento turístico estival -en favor de ofertas que proponían formas de consumo

ribereño connotadas por lo “natural”- se vio reforzada por conflictos ambientales como la erosión de playas o la contaminación de sectores de baño. La estrategia local fue inicialmente “redoblar la apuesta al turismo” convocando un “turismo de calidad” y privilegiando el sector ribereño como área de intervención –con infraestructuras para el acrecentamiento de playas, la renovación de los accesos costeros a la ciudad, la transformación de Punta Mogotes, etc.- continuando de este modo la fase 1976/78, cuando la ciudad, sede del Mundial de Futbol, fue destinataria de grandes inversiones para la modernización y construcción de equipamientos, como el aeropuerto o el Estadio.

2.- ARQUITECTURA: LA MODERNIDAD Y SU CRISIS

El desarrollo de la arquitectura local –programas, agentes, formas de producción- dio cuenta, naturalmente, de las condiciones mencionadas. La “ciudad de los veraneantes” fue escenario de una insólita “refundación” y densificación, proceso en el cual la vivienda agrupada en propiedad horizontal sumó, a la abrumadora repetición de edificios entre medianeras, la utilización del tipo torre y produjo, hacia mediados de los años sesenta, un puñado de “rascacielos”. Por su parte, la expansión de la “ciudad de los marplatenses” fue correlativo al crecimiento de su población -causado, de modo predominante, por migración interna- y según tres modalidades habitativas dominantes:

30 AÑOS.
LAS DÉCADAS PREVIAS.

a partir de la extensión indiscriminada de la cuadricula sobre el territorio rural con un tejido de vivienda individual en parcelas acotadas y una baja densidad. Por medio del desarrollo de barrios según las pautas del suburbio jardín (o barrios parque). Y, por último, a partir de conjuntos de vivienda social. En todos los casos implicó la demanda de infraestructuras, equipamientos sociales y espacios públicos. Los habitantes, toda vez que pudieron, optaron por el chalet como ideal de arquitectura doméstica -con cubiertas inclinadas y retiros ajardinados-, modalidad que fue excluyente en los barrios parque destinados a grupos medios -como Constitución, La Florida o el Bosque de Peralta Ramos.

Algunos rasgos de la producción arquitectónica del período son propios del conjunto de la arquitectura argentina de entonces. Por ejemplo, la utilización de la tipología torre en el desarrollo de la vivienda agrupada, la renovación de la arquitectura escolar según nuevas pautas pedagógicas, o la modernización de programas asociados al terciario –como los bancos- que, en ocasiones, redundó en la demolición de las antiguas sedes y su reemplazo por edificios plenos de significaciones de modernidad, tal el caso el Banco de la Nación Argentina (1965).

Los equipamientos industriales, favorecidos en el contexto desarrollista, siguieron la tendencia que recomendaba localizarlos en los bordes externos de la ciudad y sobre vías de rápido acceso, concretándose, hacia mediados de los setenta, un viejo anhelo: la creación del Parque Industrial -cuya Dirección Técnica de proyecto estuvo a cargo del Ing. Sanguinetti- con una propuesta esquemática, en la que la participación de los arquitectos parece haberse concentrado en los sectores social y administrativo.

Las referencias arquitectónicas -teóricas, ideativas, formales- presentes en obras y proyectos, fueron variadas y actualizadas -cabe recordar aquí que la ciudad fue,

junto con Bariloche y Buenos Aires, una de las sedes del Congreso UIA´69-. Entre las más relevantes es posible advertir en numerosas obras y proyectos, por ejemplo, la claridad geométrica y volumétrica propia de las propuestas khanianas, como así también ideas y principios presentes en la obra de Alvar Aalto, de James Stirling y del ala progresista de la escuela inglesa de los años sesenta. En muchos casos están presentes las herramientas de la arquitectura de sistemas –regularidad, control modular, uso de componentes industrializados- utilizadas con el objetivo de lograr regulación plantística y espacial, flexibilidad y transformación en el tiempo.

La experimentación en torno a la dimensión estructural -en la agenda arquitectónica desde fines de los cincuentano estuvo ausente. Bonet utilizó, de modo pionero, un paraboloide de importante luz para la cubierta de su Galería Rivadavia y, poco después, en el Edificio de las Américas, las cuarenta columnas de su torre cruciforme se reducirán, por medio de pentápodos, a ocho pilares de apoyo, liberando de columnas la galería y permitiendo abrir cuatro patios de iluminación. Los 45 pisos del Edificio Elíades -entonces el “rascacielos” más alto de nuestro país- constituyeron un desafío estructural que requirió la utilización del sistema francés Outdinord para su concreción. En los años setenta la sede de ESEBA, sobre Av. J.B. Justo, utilizará en sus naves una estructura hipostática de vigas de gran luz y losas tensadas -haciendo además alarde de esbeltez en su columna/tanque-. Un lugar destacado ocupa la excelente cubierta del Estadio Mundialista, resuelta con una estructura espacial de tubos de acero sostenida por tensores anclados a seis mástiles de hormigón de 50 metros de altura.

Así como el campo disciplinar encontró en estos años una sede en la creación de la FAU –que conjuntamente a la carrera de Ciencias Económicas constituyó el núcleo fundante de la Universidad local- el campo profesional tendió a estructurarse en torno a la Asociación de

Arquitectos Marplatenses (ASAMP), creada en 1968 y “precursora” de la actual sede distrital del CAPBA. La asociación, en los casi 20 años que congregó a la matrícula, se destacó por la realización de numerosas actividades y publicaciones. A partir de 1970, año en que egresaron los primeros arquitectos formados aquí, el incremento de profesionales locales instituyó progresivamente a este grupo como un actor social relevante, local y regionalmente.

Es complejo describir la transformación disciplinar –ya no solo en nuestro medio- acaecida hacia fines de los setenta y los primeros ochenta, momento en que se registra la crisis del ideario modernista, correlativamente al despliegue del neoliberalismo. Se transformó progresivamente la agenda arquitectónica con la entrada de “nuevos” temas -como el contextualismo, la indagación urbano-tipológica o el “renacimiento” de signos más o menos clasicistas, desde el retorno de la simetría al uso de tímpanos-, y la desaparición de otros –como la vivienda social o la mencionada apuesta a la industrialización de la arquitectura-. Deriva que replanteará nada menos que el status mismo de la profesión en el nuevo contexto socio-productivo de caída del estado de bienestar.

3.- Arquitectura: programas y obras

La vivienda agrupada

El desarrollo de este programa tuvo, como vimos, su impulso en la Ley de Propiedad Horizontal (1948) –que convirtió definitivamente la vivienda en pura mercancía e impactó en la Industria de la Construcción al canalizar el ahorro de clases medias a través de Consorcios y Empresas constructoras-, en tanto la expansión de los créditos hipotecarios fue el otro pilar del proceso, produciéndose entre ambos una sinergia que ya ha sido destacada.

Si bien el término Propiedad Horizontal remite a una forma jurídica y no a una tipología arquitectónica, esta condicionó su diseño -por ejemplo, a partir de la clasificación espacial que postuló: espacios propios y espacios comunes- también fueron determinantes el orden normativo vigente, que “acompañó” el proceso, y las características de la industria de la construcción local, formada mayoritariamente por empresas familiares que devinieron en SRL, con una tecnología “probada” de baja complejidad, mano de obra relativamente artesanal y escasa participación de profesionales arquitectos. Cientos de edificios construidos en este contexto presentan plantas abarrotadas de unidades comercializables –de un promedio de 30 m2 y con algunas unidades que no llegan a los 11 m2-, una drástica disminución de las áreas comunes y carencia de estrategias organizativas, en las cuales el espejamiento, la mecánica de subdivisión de la superficie, el desorden estructural y la repetición -que no diferencia unidades al frente de aquellas situadas en patios de aires y luz; unidades de tramo de aquellas situadas en esquinason las únicas “estrategias proyectuales”. Sus fachadas -que junto con el hall fueron los únicos elementos que demandaban signos arquitectónicos de “representación”fueron predominantemente murarias, con balcones o ventanas recortadas y más o menos polícromas según los casos.

Unos pocos de estos episodios resultan memorables en relación a indagaciones de tipo formal o lingüístico. Cabe mencionar la Torre Chacabuco 3123, esquina Catamarca, sobre Plaza España, exenta, de gran claridad formal y expresiva a partir de su lenguaje racionalista. Dos edificios esquineros -el Edificio Rioja 1721 (Pollini, Aleman) en Rioja y San Martín, y el Edificio Rosemar I, en Catamarca y Av. Colón- utilizaron análoga estrategia: dos volúmenes de diferentes alturas, uno sobre cada calle, articulados por el hall de acceso/núcleo de circulación. Su tratamiento

30 AÑOS. LAS DÉCADAS PREVIAS.
37
Edificio y Locales Colón – CEPA / R. Pesci

lingüístico es disímil, el primero posee un despojado lenguaje racionalista, en tanto el segundo, de sabor brutalista, muestra su estructura de hormigón a la vista con cerramientos ladrilleros.

Hacia el inicio de período, durante la administración del Comisionado Aldao, se introdujo en carácter de excepción la novedosa tipología torre exenta, con o sin basamento. Una Comisión de Urbanización, establecida en el Reglamento de 1937 y creada en 1957, otorgaba las excepciones, vistas sus atribuciones respecto de la aprobación de obras especiales con independencia de lo normado en el mismo. Esta situación perduró hasta la aprobación de la Ordenanza de Edificios en torre, ocurrida en 1966. Aquí radicó, entendemos, la variedad y la distancia formal y dimensional de experiencias construidas en esos 10 años: compárese por ejemplo la propuesta del Terrace Palace (Bonet, 1957/58) -una sucesión de innovadoras torretas escalonadas hacia el mar de raigambre corbusierana, con una intensa ocupación del suelo-, con la del Palacio Edén (Dompe,1958/60) -dos placas dispuestas en L que liberan el corazón de manzana, a la vez que diferencian situaciones frente a plaza y a calle-. Predominó, de todos modos, la utilización de volumetrías simples, con base en plantas cuadradas o rectangulares, que aseguraron un perímetro económico, pudiendo mencionarse pocas excepciones: la planta cruciforme de la Galería de las Américas (Bonet, 1960), o el excelente edificio Diagonal Pueyrredón 3200 (Méndez Torrecilla, 1966) de planta “semicircular”, organizada radialmente, y con un excelente remate superior.

Entre los edificios que utilizaron esta tipología se pueden observar las diversas posibilidades de articulación de sus dos componentes -la torre vertical privada y el basamento horizontal público o semipúblico-, con plantas y estructuras transicionales o sin ellas. Se experimentó también en las posibilidades proyectuales del basamento, verdadero mecanismo adaptativo del edificio con respecto al nivel público. En el área central se construyeron edificios de vivienda con basamentos destinados a servicios, en ocasiones de gran riqueza espacial: la sede del Banco Popular Argentino (Rocca, Dompé, 1960) –cuyo luminoso

hall de trabajo contó con una importante obra de Quinquela Martín- y el Banco de la Nación Argentina (1965) -que, en clave internacional style, enriqueció con sus transparencias la esquina por entonces más significativa de la ciudad-, son buenos ejemplos.

De gran complejidad organizativa y espacial son algunos basamentos destinados a galerías comerciales –programa inscripto en la modalidad de la PH que, entre 1955 y 1975, modernizó y multiplicó la trama peatonal de la centralidad-, cuyos ejemplos más destacados, independientemente de su diverso éxito comercial, son la Galería Rivadavia (Bonet, 1958) con su plaza-patio cubierta por un paraboloide, la Galería de las Américas y la Galería Lafayette (1975) que aprovecha en sus circulaciones las vistas a Plaza San Martín.

Las expresiones más audaces, no necesariamente las más felices, de “rascacielos” destinados al público veraneante fueron el edificio Cosmos (1961) y el D. Elíades (1965) ambas obras del inefable Dompé, verdadero artífice del skyline marplatense. La acumulación de torres con basamento dio por resultado la densa manzana situada entre Avenida Luro, Diagonal Alberdi y calle Santa Fe, como también su peor fracaso urbano, aun sin solucionar: el Bristol Center (Ing. Ricciotti y Albinati, 1969). Con esta tipología se resolverá, en los primeros setenta, uno de los ejemplos más destacados del programa hotelero gremial, la nueva sede del Hotel 13 de Julio, en la esquina de Mitre y 9 de julio. De gran complejidad funcional y con más de 300 habitaciones, apeló al hormigón y a la exposición de ciertas instalaciones –tanque, núcleos, conductos- para la construcción de su expresión.

La concreción de fragmentos urbanos caracterizados por la tipología de torres exentas fue escaso, estas tendieron a insertarse en un sistema de relaciones público/ privado preexistentes, a veces con resultados negativos –ruptura de la fachada telón, discontinuidad del tejido, etc.- No es imposible que el fragmento paisajísticamente más cualificado –independiente de la calidad de los distintos episodios- sea el borde superior del Parque San Martín entre Alvarado y Roca, donde se destaca la Residencia Veramar (Gutiérrez y Urquijo,1967).

Casa Baliña, CEPA / R. Pesci / H. Rossi
38 Especial Aniversario CABPA 30 años
Edificio Aldebarán – H. Deschant/M. Marcus

Las indagaciones en torno a la innovación y mejora de la calidad de las unidades no abundaron. Al mencionado Terrace Palace puede añadirse, del mismo autor, la pionera Torre Rivadavia (1958), con todas sus unidades al exterior y su propuesta de una nueva forma de habitar el área central -más acorde con cierta informalidad propia de la vida de balneario- a partir de la introducción de viviendas en dúplex. Hacia 1970 el estudio Pesci/ Rossi realizarán el Edificio y Locales Colón, frente a la sede del ACA, cuya estructura organizativa y formal de tenor khaniano, en su separación servicios/servido, aborda las unidades, provistas de terrazas/jardines, con una importante intencionalidad espacial. Ya en los setenta un conjunto de obras realizadas por arquitectos formados en la década anterior presentan valores urbanos y búsquedas tipológicas tendientes a una mayor calidad habitativa. Tal es el caso del Edificio Aldebarán (De Schant, Marcus, 1975) en calle Alem, con comercios en planta baja, tipológicamente novedoso al reintroducir el tema del patio central para iluminar las circulaciones y proponer solarios/terrazas apropiables por los departamentos del piso superior, mientras su expresión retorna a la mejor modernidad local, en clave yacth style, de los años treinta. En los primeros ochenta el estudio Mariani - Pérez Maraviglia (MPM) realizará, en Boulevard Marítimo y Formosa, en una parcela de privilegiadas visuales, sobre el mar y el Golf Club, el exento Edificio Bitter End, con una clara diferenciación de sus paquetes funcionales -articulados en torno al núcleo- y cuyas áreas sociales se abren plenamente el paisaje. Su volumen de envolvente ladrillera, en línea con búsquedas morfológicas contemporáneas, constituye un hito en el paisaje costero del sector.

A partir de las normas establecidas en el C.O.T –en línea con el Decreto Ley 8912/79- cobró impulso en los primeros ochenta, las tipologías de semiperímetro libre o con retiros laterales, alternativa en que se inscriben algunas obras que replantearon las relaciones entre el espacio urbano público y el espacio urbano privado. Se destacan en este registro el Edificio Plaza I, en San Luis 2240 frente a Plaza Mitre (MPM, Álvarez) con una planta libre ajardinada y 10 pisos con balcones terrazas y el Edificio en 3 de Febrero (Marchelli), entre 14 de Julio y Dorrego, cuyo volumen en

L resuelto con una envolvente ladrillera, libera un jardín semipúblico y permite vistas y buena orientación a la mayoría de las unidades.

Una ruptura en el tema se produciría a principios de los años ochenta con la construcción del apart Torres de Manantiales (Korn, Lopatín, 1981), un emprendimiento que resultó prácticamente inaugural en nuestro país en la temática de las torres “gemelas”, y que implicó nuevas formas habitativas y formas de gestión.

El capítulo correspondiente a la vivienda agrupada popular contabiliza numerosos emprendimientos –predominantemente en la forma de “conjuntos habitacionales”-, en directa relación a gremios y mutuales de gran protagonismo local, como Empleados de Comercio o Personal de Casino, y a las diferentes políticas y operatorias implementadas por el Estado, entonces agente privilegiado de provisión de vivienda social, como por ejemplo el FONAVI, en los primeros setenta.

Numerosos barrios fueron caracterizados por la acumulación de estos conjuntos: el Bº Carlos Pellegrini, el sector de Chile, Bronzini y Rodríguez Peña o el sector de 9 de julio y Los Andes, entre otros. También la producción de muchos arquitectos, como O. Cedrón, E. Urquijo o M. Torres Cano, fue signada por estos emprendimientos. La variedad de propuestas urbanas ensayadas -desde trazados urbanos segregados de la cuadricula tradicional, hasta completamientos de manzana- es equiparable a la diversidad de tipologías arquitectónicas puestas en juego para su resolución -torres, tiras y bloques, viviendas apareadas, etc.-. Ambas remiten a tendencias de tenor internacional, desde los presupuestos de la modernidad canónica hasta los postulados críticos del Team X o indagaciones en la vivienda progresiva.

Las escalas de intervención fueron transformándose: hacia los años sesenta y setenta se priorizaron conjuntos de gran tamaño -estrategia rentable para las empresas constructoras que los materializaron-, como por ejemplo las torres cruciformes del Edificio Los Andes, sobre calle 9 de Julio (Piccolo, 1969, 500 unidades, a las que se incorporaron en 1983 dos bloques, totalizando 784

30 AÑOS. LAS DÉCADAS PREVIAS.
39
Casa Pedernera – H. Oddone

unidades), tendencia que tendrá su punto culminante, y por demás crítico, en las 1.600 viviendas -para 10.000 habitantes- del Bº Centenario (Egozcué, Vidal, 1979/83). Hacia los ochenta, la reflexión disciplinar, en vistas a notorios fracasos precedentes, derivó en intervenciones de menor escala y estrategias de completamiento urbano. En este proceso las abstractas innovaciones en la relación público-privado de los sesenta, fueron reemplazadas por modos de relación edificio-calle más propios de nuestra ciudad, por ejemplo la recuperación de la “galería y hall de acceso” en las excelentes torres del consorcio de empleados de casino Complejo Los Andes (MPM, 1984, 228 unidades) situadas en Los Andes e Ituzaingó, o las propuestas en torno a edificios/consorcios de pocas unidades -apostando a una mejor apropiación social y gestión de mantenimiento a largo plazo- por ejemplo en los claros volúmenes de envolvente ladrillera del Sindicato de Prensa de MDP (1975-83, 26 unidades), en V. López y Pellegrini.

Entre las intervenciones que optaron por la alta densidad habitacional se destacan el Conjunto de Pescadores (operatoria VEA, 1972/73), entre calles Acha, Gaboto y Av. Edison, y las torres de Empleados de Comercio (1983, 250 unidades) situadas sobre calle Cerrito. Por su parte el edificio Costas Argentinas (1975, 70 unidades) -con una trabajada morfología de torres exentas conectadas por puentes, propia de aquellos años- aprovechó su excepcional localización en el cruce de Alem y J.B. Justo. Entre las propuestas estructuradas en torno a la densidad media, y cuatro o menos pisos de altura, pueden mencionarse el conjunto Parque América (Lázaro, Porco, 1969), en calle Mariani y Av. F.U. Camet, que, resuelto en ladrillo, piedra y cubiertas inclinadas, constituye una pionera búsqueda de integración con la arquitectura pintoresca del Bº circundante; El conjunto Almirante Brown de la Asociación Obrera Textil (1976, 350 unidades) próximo a las avenidas Constitución y Della Paolera, y el conjunto UTA 1 (1978, 240 viviendas), en Bordabehere y Alberti se destacan por sus adecuados espacios semipúblicos y la configuración de ámbitos urbanos reconocibles. Se realizaron asimismo intervenciones con viviendas en lote propio –apareadas o en hilera- tales como el conjunto Empleados de Comercio (1974, 72 unidades) en Alvarado y Tres Arroyos y el conjunto del IVBA (1974, 96 unidades) en Tierra del Fuego, entre R. Peña y Matheu.

En demasiados casos la calidad urbana, ambiental y habitativa de estos conjuntos se vio resentida desde su origen –independientemente de la imposibilidad de sus moradores de sostener en el tiempo un adecuado mantenimiento tendiente a evitar su degradación físicapor la inadecuada propuesta tecnológica o por la ausencia de servicios habitacionales, equipamientos y conformación de sus espacios públicos.

LA VIVIENDA INDIVIDUAL

Si bien el desarrollo de la vivienda individual se enmarcó en las pautas del modernismo arquitectónico, el contexto

marplatense -caracterizado históricamente por la vivienda en clave pintoresca: el chalet estilo Mar del Plata- exigió su consideración, sea para afirmarlo, negarlo o dialogar con él. Sea en la rusticidad dominante de la dimensión material –dada por el empleo de la piedra local -paulatinamente abandonada por su creciente costo-, sea en la organización formal en base a volúmenes articulados y contrastantes, con cubiertas en pendiente. En los casos más interesantes se puede observar la continuidad, más o menos explícita, de una actitud de tipo “regionalista” –a la vez distante del racionalismo abstracto y del pintoresquismo– que habían iniciado aquí arquitectos modernos como Bonet -con su casa Daneri (1940)-, Vilar -con varias casas de veraneo en clave rústica en los primeros cuarenta- o SEPRA -con la casa Mentasti (1949)-. En este sentido Mar del Plata fue temprana receptora de corrientes como el casablanquismo, como lo atestigua la Casa Requena, situada en Pellegrini al 3900, que figuró en la exposición “14 Casas Blancas” realizada en el MAMBA (1964). De líneas simples y un interior intimista, la vivienda introdujo reinterpretaciones programáticas como los dormitorios-camarote para los niños. Un número importante de casas en este registro arquitectónico –con sus cubiertas abovedadas, sus muros enrazados y sus solados cerámicos- fueron proyectadas y construidas por distintos profesionales, particularmente en los barrios jardín. Es observable también cierta relación con la tradición vernácula, en este caso de la arquitectura rural, en la Casa E. Bullrich (F. Bullrich, 1968) -situada en Chapadmalal, próxima a la estancia Santa Silvina- con su estructuración en L, sus dos cuerpos unidos por medio de una galería y el área social cubierta por una bóveda de ladrillos cerámicos.

Las viviendas de este período, hasta mediados de los setenta, manifiestan a la vez una mirada atenta a las formas de producción local mencionadas y su pertenencia a los debates arquitectónicos del momento. En el marco de planteos distributivos ya probados desde los años treinta -con la habitual segregación en las tres áreas social/privada/servicios- es notable la insistencia de los proyectistas en la indagación de la problemática espacial, sean relaciones interior/interior -a partir de “balconeos” e interrelaciones entre niveles- o relaciones interior/ exterior, en este caso a partir del tratamiento protagónico del patio y la búsqueda de una relación intensa del mismo con el área social.

El estudio Pesci/CEPA realizó, hacia 1970, la Casa x que, dirigida y construida por Héctor Rossi, “crece en altura, incorporando patios, galerías, terrazas y techossombra, ganando transparencias y visuales”, según reza su memoria. Resuelta en relación a un patio de tres niveles, presenta una planta/zócalo de cocheras/quincho/ accesos en directa relación al patio posterior. Se destaca su resolución tecnológica, cerramientos en piedra local irregular y madera, de donde proviene su toda expresión. Por su parte, H. Rossi realizó hacia fines de los setenta la Casa Kalksm -de sabor organicista- donde incorporó, vistas sus preocupaciones de acondicionamiento ambiental, importantes techos-sombra para proteger el área social y sus terrazas-expansiones.

40 Especial Aniversario CABPA 30 años

La Casa Grebol, realizada por Escudero, con la colaboración de Lenci, (1971-73) en Barrio Pinos de Anchorena se resolvió con un esquema en L, a medios niveles con respecto al acceso, estructurándose a partir de una “plaza-patio” sobreelevada, presidida por una parrilla y su leñera. La Casa Vega (Oddone, 1970), situada en Gral. Paz y Saavedra, cuya expresión urbana lo aproxima al tipo chalet de cubiertas inclinadas y volúmenes verticales, esta rigurosamente estructurada con un esquema el L, abierto a un patio y cuyo corazón posee una interesante relación espacial. De expresión racionalista, es la excelente Casa Pedernera (1978), también de Oddone, ubicada en una parcela entre medianeras y cuyo esquema en U se organizada en torno a un “patio” interior -que rememora a la vez la patio-haus de Loos y la Casa Curutchet- hecho de terrazas y expansiones cubiertas y descubiertas, alguna con cerramientos móviles, espacialmente interrelacionados, que dan por resultado una inédita relación interior/exterior.

Las viviendas de los primeros setenta del estudio Quaratti–Jacubowicz se caracterizaron por el trabajo en torno a las relaciones interior/interior e interior/exterior, a partir de incorporar en sus casas generosas terrazas bien orientadas y sin solución de continuidad con el livingcomedor –apostando a un importante outliving de la vida doméstica-, una resolución formal en base a la articulación de volúmenes de cubiertas inclinadas independientes y una materialidad ladrillera de sabor casablanquista Estas cualidades están presentes en la Casa Polverino,

localizada en la esquina de Peña y Arenales y en la Casa Jacubowicz, en Alsina al 3800, ésta de una voluntad formal más totalizadora y cuyo esquema configura un patio, verdadero corazón de la vivienda. Construida con posterioridad, la Casa Pologna, en Quintana al 4100, se sitúa en una parcela cuya excelente forestación no sólo fue respetada, sino que habilitó un planteo distributivo -situando el sector de living-comedor en planta superiorpor el cual éste expande sobre una muy generosa terraza a nivel de las copas de los árboles.

De Schant -quien hacia los primeros ochenta, aportó a la conceptualización de la vivienda individual al postular como indivisible la tríada formada por las ideas de hogar-casa y familia- realizó, junto a M. Marcus, la Casa Schoeder, en el Barrio Bosque Peralta Ramos -donde construyeran varias residencias-. La vivienda se caracteriza exteriormente por una envolvente continua de ladrillos. Es interesante en tanto repropone el programa doméstico y su distribución espacial habitual al colocar en distintos niveles el dormitorio principal y el de los niños –entendido éste último como un ambiente de disposiciones múltiplesy colocando un generoso playroom en el nivel inferior, que permitió sobreelevar la casa.

Interesante recreación de la casa cajón es la acotada Vivienda Bartolucci/Villar, que estos arquitectos realizaron en carácter de propietarios, incorporando a esa estricta tipología una bohardilla y una importante cochera/parrilla. Atentos también a la materialidad rústica marplatense,

30
AÑOS. LAS DÉCADAS PREVIAS.

fue realizada con una rica paleta de materiales: piedra, hormigón y pinoteas de demolición, entre otros. Un interesante ejercicio proyectual en relación a la vivienda entendida como secuencia de espacios interconectados a partir de un eje, materializados por planos murarios estructurales y cubiertas inclinadas de chapa es la Casa Barrenechea (Barilaro, Rodríguez, 1977), situada en el Bº El Grosellar.

Hacia los ochenta el estudio MPM realizó, a través de una serie de viviendas, indagaciones proyectuales que remiten, simultáneamente, a las experiencias modernas de L. Khan, a las que contemporáneamente desarrollaba M. Botta y a ciertos rasgos de la arquitectura inglesa que están en el origen del pintoresquismo marplatense. Emergerán así expresiones menos centradas en las búsquedas espacialistas de algunos de los ejemplos precedentes –más próximos, tal vez, a la escuela platense- y más ocupadas en lo que estos arquitectos denominaban atributos profundos de la ciudad existente, tal el caso de cuestiones referidas a la dimensión material. En general, a partir de una estructuración compacta son buenos ejemplos la Casa Grondona (1984) estructurada a partir del hall-escalera y la Casa Gómez-Gerbi (1984), en el Barrio Grosellar, dispuesta en la parcela en función de la orientación y caracterizada por su planta compacta expresada como volumen dominante de cubierta a dos aguas, al que se adicionaron espacios subsidiarios. Algo posterior es la Casa De Langhe (1987), de resonancias palladianas, resuelta como volumen cuyo espacio central, de cubierta a dos aguas, tiene fuerte protagonismo la escalera y que utiliza cocheras y servicios como zócalo para sobreelevar la vivienda. El registro particular de la vivienda individual popular, contabiliza diversos casos, tal la Casa Rey, en Ortega y

Gasset 2500, proyectada por Cedrón y construida por mano de obra no calificada, cuyos 60 m2 dan lugar a una unidad de perímetro controlado pero que admite crecimiento, que utiliza las circulación como espacio de uso y aprovecha los escasos elementos disponibles –el tanque de agua, el patio de servicio- para construir un lenguaje.

LOS EQUIPAMIENTOS SOCIALES EDUCACIÓN, CULTURA, SALUD

Los programas de equipamiento social -en sus diferentes registros- se encuentran, naturalmente, localizados en su mayoría en la Mar del Plata estable e instrumentados por las administraciones locales en las diferentes instancias del desarrollo de los barrios. Cabe destacar aquellos realizados al inicio del periodo que estamos repasando -en coincidencia con las gestiones socialistas, entre 1958 y 1966-, que centraron su atención en los sectores urbanos con déficits más críticos.

En esta dirección, en la primera mitad de los años sesenta y en el marco de un inconcluso Plan de Escuelas para Mar del Plata, se construyeron nuevas Escuelas Municipales, en Plaza Sarmiento y Barrio Faro Norte (Borthagaray, Castellú, Marre, 1964). Inscriptas aún en una conceptualización de tipo “escuela-casa” –con un importante patio-SUM organizador iluminado por un shed corrido, cubiertas inclinadas sobre cabriadas de madera y cerramientos ladrilleros– resultan muy innovativas en aspectos tales como su crecimiento programado, el podio de proyecciones en el patio, la incorporación de aulas de ciencias y audiovisuales, y en la estructura programática de sus aulas, complementadas cada una con depósitos de material didáctico, sanitarios para ambos sexos, y escritorio

42 Especial Aniversario CABPA 30 años
Casa Langhe – C. Mariani / H. Pérez Maraviglia Casa Rey – O. Cedrón

para el docente y una pequeña cocina para la preparación de la ración alimenticia prevista para el alumnado. Por su parte, en vistas a formas contemporáneas de renovación de criterios programáticos y pedagógicos y su impacto en los espacios dedicados a la enseñanza, se realizará la nueva sede de la Escuela Piloto-EEM Nº 1 (1970) destinada a la implementación del bachillerato especializado. Esta escuela, que funcionó hasta ese año en la parcela donde hoy se encuentra la Biblioteca Municipal, aprovechó su directa relación con la Plaza Revolución de Mayo –acondicionada con juegos, sector deportivo y anfiteatro- y se estructuró claramente con un patio central de dos niveles, repropuso por medio de una rampa los movimientos internos e incorporó un excelente Salón de actos para 1.000 asistentes, como también aulas-laboratorios equipadas. En la primera mitad de los sesenta, en el marco de las mencionadas gestiones se construyó el Museo de Ciencias Naturales, proyectado por la Dirección General del Plan Regulador. Localizado en Plaza España, debió apelar a una planta baja transparente para no obturar las vistas al mar -condición hoy modificada- y colocar sobre ella el salón de exposición, cerrado al exterior e iluminado cenitalmente. De fines de los setenta es la construcción de la Biblioteca Municipal MGP -que funcionó históricamente en el Palacio Municipal- inscripta en la arquitectura de sistemas y que acrecienta la calidad del espacio público con el aporte a la ciudad de una plaza de acceso sobreelevada y

en contraesquina. La nacionalización de la Universidad de Mar del Plata en los primeros setenta no aportó ningún equipamiento educativo o cultural de valor arquitectónico a la ciudad, perdiéndose una interesante oportunidad con la construcción, hacia 1980, del anodino Complejo Manuel Belgrano, cuya principal virtud es haber respetado algunos de los añosos árboles de la quinta preexistente.

F. Lerena, Taboada y Traine -quienes realizaron desde mediados de los años sesenta una valiosa obra en la ciudad, que contabiliza por ejemplo la Casa Bruzzone (1965)realizaron dos obras destacables del programa salud. Por un lado, el Centro de Trabajo Social APROME, resuelto con un esquema en U, cuyo importante salón de usos múltiples presenta una estructura de cubierta en pendiente, soportada por pórticos y vigas de madera laminada. En el área central realizarían la Clínica de Fracturas y Ortopedia, sobre Av. Independencia 1400, cuyos principales desafíos proyectuales fueron su ubicación en una acotada parcela, la construcción por etapas (primero la ambulatoria, luego la operatoria y finalmente la internación general) y una accesibilidad prescindente de escaleras, vista su especialidad. El conjunto, de sabor corbusierano, se resolvió con una rigurosa planta pública a medio nivel sobre la vereda, accesible por rampa, y dos pisos superiores con un esquema de núcleo central. Retirada la construcción de línea municipal, aporta a la calle un inesperado jardín que contenía un polícromo volumen de servicios. Este

30 AÑOS. LAS DÉCADAS PREVIAS.

programa incorporó dos equipamientos relevantes para la atención de esta dimensión social: el Hospital Materno Infantil –resuelto con neutros volúmenes de envolvente ladrillera que remiten a la tipología pabellonal– y el Hospital Privado de Comunidad que, a partir del núcleo inicial de los años sesenta, fue ampliado entre 1978 y 1982 por un equipo de arquitectos locales comandado por Cedrón –con una postura de fuerte participación de los usuarios- que devino una de las estructuras hospitalarias más importantes de la región.

Entre los edificios institucionales más destacados de la ciudad se encuentra la sede del Colegio de Escribanos (MPM, 1978) cuya estratégica localización en el cruce de las avenidas Colón, Independencia y Diagonal Alberdi, lo instaura como hito y referencia de la centralidad. Con un gesto de superación de las condiciones normativas de la parcela en que se halla, se distingue por su clara filiación khaniana y una adhesión plena a postulados modernos como el carácter objetual, la separación entre estructura y cerramiento, la utilización de parasoles o la flexibilidad de las plantas. A la vez, que el empleo de la tipología de semiperímetro libre aporta a la ciudad un jardín, que dialoga con el verde de la diagonal.

BANCOS, COMERCIOS, RECREACIÓN

La tipología bancaria, como viéramos precedentemente, presentó el pasaje de los tradicionales edificios cerrados hacia estructuras arquitectónicas abiertas con nuevas propuestas de relación arquitectura/ciudad, en particular por medio de la torre/basamento, resultando ejemplares los casos mencionados del Banco Popular Argentino y del Banco Nación. El progresivo desplazamiento de la actividad bancaria a localizaciones pericentrales dio lugar a obras de calidad destacable. Tal es el caso de la excelente sede local del Banco de Londres y América del Sud (Larumbe, Rault, 1969) que se inscribe en la estrategia de reposicionamiento de este banco a nivel nacional. Ésta

utiliza de modo sui generis la tipología torre/basamento para ubicar las operaciones bancarias en subsuelo y planta principal y la vivienda del gerente y club de empleados en la “torre”, en tanto una generosa marquesina de hormigón ofrece protección a los paseantes, destacándose su materialidad, que utiliza piedra local martelinada. En la parcela colindante sobre Av. Independencia, se instaló casi simultáneamente la sucursal local de la Empresa Olivetti (Hevia, Van del Poll, 1970) que continuó la marquesina del banco y postuló un infrecuente contrapunto visual -hoy inexistente- entre sus aleatorios expositores circulares y la regularidad de la vidriera del banco. Especial consideración merecen dos edificios bancarios inscritos en la modalidad de la arquitectura de sistemas. El primero de ellos, la Sucursal del Banco Nación, en Av. Independencia y Saavedra, presenta una clara separación entre la estructura y los cerramientos integrales que lo limitan, y una cubierta plegada sobre el hall de trabajo. El segundo, la Sucursal del Banco Provincia de Buenos Aires, situada en Av. Independencia y San Lorenzo, aprovecha su localización esquinera para generar un acceso sobreelevado, en tanto su volumetría -inscripta en un paralelepípedo retirado de la línea divisoria- se destaca por unos pocos elementes: su regular estructura de hormigón a la vista, los parasoles metálicos y las escaleras.

La acelerada modernización en las formas de consumo -que en los sesenta privilegió el mencionado desarrollo de las galerías comerciales en el área central-, encontró aquí, a fines de los setenta, un campo de indagación proyectual en el programa del supermercado –donde Mar del Plata fue pionera con La Estrella Argentina–. Se destacan en este rubro los Supermercados Elefante realizados por D. Montes. En primer término la instalación, sobre avenida J. B. Justo y Santa Fe, que trabajó las demandas de esta forma de comercialización –estacionamientos, autoservicio con góndolas, etc.- incorporándole como atractores una galería comercial en relación al acceso público y un shopping en planta superior –accesible por

44 Especial Aniversario CABPA 30 años
Banco de Londres, Sucursal Mar del Plata – A. Larumbe / Rault

medio de escaleras mecánicas-. Se destaca el tratamiento de la iluminación a partir de tragaluces de cañón corrido sobre el espacio central, en tanto su lenguaje se apoya fuertemente en un tratamiento publicitario de los elementos arquitectónicos, el color, la gráfica y la exposición de los sistemas de acondicionamiento. Algo posterior es el local en Av. Constitución, caracterizado por su sencillo salón de ventas y la sucesión de cubiertas livianas a dos aguas que enriquecen su espacialidad. Este profesional inició la reconversión inicial de la tradicional Tienda Los Gallegos -después de su incendio en 1978- realizando un proyecto del que se construyó el sector correspondiente a la esquina de Catamarca y Belgrano, caracterizado entonces por un espacio central (hoy inexistente), y una envolvente ladrillera: una pieza algo híbrida, típica de aquellos años, por su espacialidad modernista y ciertos estilemas posmodernistas –como los arcos y el tímpano de su acceso, recursos entonces de moda en la arquitectura comercial. Al final de esta fase se realizó algún episodio inscripto en el programa galería comercial ya no en el área central, sino en la entonces naciente vía comercial Alem, destacándose la galería a cielo abierto La Palmera (MPM, 1985), tipología escasamente trabajada en nuestra ciudad. El registro de arquitectura recreativa –abarcativa de programas destinados al paseo y al entretenimiento, al ocio en relación al mar o al desarrollo deportivo- encontró en la Mar del Plata de masas múltiples posibilidades de manifestación urbana y arquitectónica, desde pequeñas instalaciones para diversión nocturna hasta las intervenciones costeras más importantes de la ciudad de aquellos años, el Complejo Balneario Punta Mogotes y el Conjunto Balneario La Perla (Testa, 1985)1

1  Sobre este equipamiento véase INFO CAPBA IX, número especial, junio 2016.

El entretenimiento nocturno, cuyo despliegue en los sesenta cristalizó sectores urbanos espacializados como la Avenida Constitución -aún caracterizada por sus eucaliptus-, fue oportunidad de varios encargos. Entre ellos podemos contar la ampliación de la Boite Canela (Quaratti–Jacubowicz, 1968) o la subterránea Bananas (Golomb, Toha) con su pista de baile/escenario, ambas de fines de los sesenta, caracterizadas por sus recorridos y zonas diferenciadas a partir de los cambios de nivel. A fines de los setenta el bar Satchmo (Rabino) introdujo atípicamente en esta vía un edificio cuyo lenguaje –de expresión maderera- remitirá a la tradición pintoresca. A mediados de los años sesenta -teniendo como objetivos la valorización y el reordenamiento funcional y paisajístico del Laguna de los Padres, se encargó un proyecto –que quedaría en el nivel de las ideas- al estudio MSSGSPV. Este proponía reforestar densamente el sector, incorporar un anfiteatro y servicios gastronómicos e implementar una secuencia de unidades “balneario” en torno a pequeñas “playas”. Algo posterior es la Pileta y Confitería Laguna de los Padres, proyectada por la Dirección de Estudios de la MGP. Por su parte, con una estrategia análoga a la que utilizaron sus autores en Punta Mogotes, el Balneario el Balcón (MPM, Álvarez, 1984) utiliza las áreas de servicios como zócalo para elevar las áreas sociales y ganar visuales hacia el paisaje marino.

Cabe mencionar asimismo el proyecto inicial del Autódromo Mar del Plata (Piccolo, 1969), localizado en Ruta 11, a 20 km. de la ciudad, proyecto que contó con un ambicioso programa que sumaba a las 5 circuitos un centro de esparcimiento para el que se preveía un acuarium, pistas de karting y una laguna artificial.

30 AÑOS. LAS DÉCADAS PREVIAS.

ESPACIO PÚBLICO E INTERVENCIONES URBANO-PAISAJÍSTICAS

Durante las gestiones del socialismo fueron proyectadas y realizadas en terrenos fiscales numerosas plazas barriales, entendidas como espacios de encuentro, de fortalecimiento físico y como foros de formación ciudadana. Estas se situaron en diversos barrios marplatenses: barrios populares tradicionales ya consolidados como el puerto, áreas en consolidación, como el Barrio Don Bosco, o nuevos Barrios jardín en expansión, tal el caso de Caisamar. En el primero de los mencionados se realizó la Plaza/ Auditorio Italia (Vigilante, 1966), denominado así en homenaje a la importante colectividad de esa nacionalidad en Mar del Plata. Su proyecto, que aprovecha los pronunciados desniveles naturales del lugar, se estructuró en una secuencia de plataformas/terrazas interconectadas, en tanto en la parte inferior se ubicó un escenario definido por planos calados y planos cerrados. Un cuidadoso

diseño incorporó vegetación, el uso del agua y de la iluminación en términos estéticos. La Plaza Revolución de Mayo (García Raya, 1966), en Villa Primera, a la que nos referirnos ya por su articulación con la Escuela Piloto, incorporó juegos infantiles, un sector deportivo con cancha de básquet y un anfiteatro. Otros ejemplos destacados de esta política de acrecentamiento de espacios públicos fueron la Plaza Mariano Moreno, en Barrio Don Bosco, la Plaza Sant´Angelo in Vado, en Barrio Puerto y la Plaza Comandante Tomás Espora, de importante forestación preexistente, en Caisamar.

A fines de los años setenta tuvo lugar la transformación del espacio público comercial más significativo que por entonces tenía la ciudad: la concreción definitiva de la Peatonal San Martin (1979/80), no restringiéndose ya su peatonalidad a la estación estival. Esta fue consecuencia

46 Especial Aniversario CABPA 30 años
Cementerio Parque y Cementerio Israelita – H. Baliero / C. Córdoba

de una importante corriente en torno a la priorización del peatón por sobre el vehículo automotor que en Argentina se visualiza desde la década anterior -materializada en numerosas calles porteñas o en la transformación del centro cordobés, entre otros-. El proyecto, impulsado por la Secretaría de Obras y Servicios Públicos del MGP, reemplazó desde calle Buenos Aires hasta el edificio de la Catedral, las calzadas, cordones y veredas, unificando a partir de un solado articulado la superficie de tránsito. Esta conversión de la calle comercial en una “sala de estar” urbana implicó, además de la resolución de problemas infraestructurales, la provisión de espacios de descanso, mobiliarios urbanos, luminarias, elementos de comunicación y forestación. En el proyecto se complementan criterios de repetición y variedad: unos pocos elementos se repiten en el desarrollo lineal del espacio de la calle -por ejemplo bancos de hormigón con canteros y luminarias- con la intención de dar variedad y “sorpresa” al recorrido en la disposición de los mismos. El lenguaje fue deudor de la materialidad de los elementos –hormigón, tubos metálicos, acrílicos-, con notas de color y dando relevancia a ciertos elementos del sistema -como los artefactos de iluminación y las burbujas de ENTELsignados por un diseño industrial contemporáneo.

En el nivel infraestructural la ejecución de dos intervenciones viales transformó extensos tramos del paisaje costero de la ciudad: las Autovías Norte y Sur. Esta última resultó de mayor calidad en tanto se articuló, como veremos, con la reestructuración paisajística de Punta Mogotes, el primero puso en riesgo la continuidad, finalmente lograda, de un valioso patrimonio arquitectónico: el Instituto S. Unzué.

Tres emprendimientos, con programas y escalas muy disimiles, realizados en estos años, presentan en común el abordaje de la escala urbano-paisajística: el Cementerio Parque de Mar del Plata, el Estadio Mundialista en el Parque Municipal de Deportes y la intervención del Complejo Balneario Punta Mogotes, al sur de la ciudad.

El Cementerio Parque –localizado en una parcela suburbana de más de treinta hectáreas y producto del concurso que ganaron H. Baliero y C. Córdoba en 1961- significó la novedosa introducción de una tipología de raigambre anglosajona, abandonando de este modo la tradición de cementerios cerrados -pequeñas “ciudades” de diseño geometrizado- y, por otro, enriqueció la arquitectura local con una de las líneas de la modernidad arquitectónica de entonces, de fuerte expresión formal, factible de ser relacionada con experiencias de la arquitectura brasileña contemporánea, como también con cierto imaginario de tenor expresionista. Dos son las dimensiones que la obra –cuyo tema reclama el tratamiento simbólico- indaga articuladamente: el registro paisajístico, ineludible en una intervención que abarca esta escala, y el tratamiento formal de los diferentes episodios programáticos –accesos, crematorio, panteones, puestos flores, etc.-. El trabajo proyectual hace foco en las posibilidades escultóricas de diferentes sistemas estructurales –bóvedas catalanas, paraboloides, losas curvadas, etc.- muy al tono de las indagaciones arquitectónicas entre forma y estructura de

aquellos años que ya comentamos. En la construcción del paisaje del cementerio –abierto y expansivo- es destacable la preocupación por los recorridos, los taludes y las terrazas, como también los valores plásticos y cromáticos de la vegetación que incorpora –desde pinos Paraná, sauces y jacarandás hasta araucarias- a los diferentes sectores y recorridos. Poco después se añadió, en el ángulo más elevado, el Cementerio Israelita (1963), un ejercicio sobre la forma arquitectónica, verdadera escultura hecha con unos pocos muros curvilíneos que definen el ámbito ritual. El proyecto del Estadio Mundialista (Antonini, Schon; Zemborain, 1975/78) uno de cuyos puntos más altos fue, como ya mencionamos, la arriesgada propuesta estructural de la platea cubierta- fue concretado en la ciudad en función del carácter de subsede del Mundial ´78 y se incluyó en el preexistente Parque Municipal de los Deportes. A pesar de su complejidad programática –que abarcó desde los servicios para deportistas hasta las salas de prensa- el proyecto asumió su compleja condición urbano-paisajística, insertándose de modo novedoso y sutil. En este sentido la principal estrategia proyectual consistió en colocar el nivel de cancha por debajo de la cota de parcela, de modo de que el estadio no constituyera una “barrera” en la transición urbano-rural en la que se localizaba: por el contrario se desciende a las tribunas desde una gran explanada a la que se arriba por medio de “promenades” graduales -evitando las saltos de nivel bruscos- obteniéndose una notable continuidad en los espacios públicos y semipúblicos de acceso. La obra implicó el acondicionamiento de ciertos sectores del Parque: la avenida peatonal de acceso al estadio, equipada con un anfiteatro, nuevas luminarias y forestación, entre otros, como también un sistema de acequias perimetrales de ladrillos y la incorporación de mobiliarios urbanos. Entre estos se destacan las excelentes cubiertas modulares de PRFV para los puestos de venta y las paradas de ómnibus (hoy inexistentes) diseñadas por el estudio Méndez Mosquera/Bonsiepe, de cuya autoría eran también las ergonómicas butacas de poliamida del estadio.

A fines de los años setenta, en el marco de la crisis del turismo de masas que señaláramos, se realizó la intervención más extensa de todo el sector costero marplatense: el Complejo Balneario Punta Mogotes. La gestión de la obra fue realizada por una Sociedad de Estado -Proyectos Especiales Mar del Plata- integrada por los niveles provincial y municipal y el proyecto original –no el que se construyó hacia 1980– correspondió al estudio MPM. Aun hoy asombra la dimensión cuantitativa de la operación: urbanizar más de cien hectáreas, con un frente marítimo de 2 km. y un programa de múltiples prácticas recreativas para una previsión de 80.000 usuarios diarios en temporada alta, con estacionamiento para 10.000 vehículos.

El proyecto se caracterizó por aplicar la estrategia sistémica en todas las escalas: en la dimensión urbanoterritorial a partir de la estructuración del conjunto en relación a la nueva autovía ribereña de acceso y el reacondicionamiento de los accesos y las lagunas. En la

30 AÑOS. LAS DÉCADAS PREVIAS.
47

escala arquitectónica, por medio de una organización lineal de unidades balnearias conceptualizadas como espaciostipo y enlazadas por un conector lineal sobreelevado –una calle-paseo con sectores de estar y comercios-. Y en la resolución tecnológica a partir de un tramado estructural y constructivo modulado, materializado con componentes industrializados. El proyecto -con la línea de horizonte como referencia- presenta operaciones paisajísticas, tendientes a dar identidad, a la vez que variedad, a los lugares: ondulaciones y fluctuaciones, presencia de puntos focales, perspectivas con vistas simultaneas del aquí y el allí, cambios de nivel que resuelven cuestiones funcionales. En este sentido, la documentación publicada hace explícito el diseño de una calculada y dinámica secuencia perceptiva en los recorridos: una visión serial según la cual el paisaje se nos revela en los recorridos.

Estos proyectos constituyeron, en mayor o menor medida, un aporte al patrimonio arquitectónico y paisajístico urbano. Como contrapartida cabe recordar la destrucción de dos paisajes con los que la ciudad contó hasta fines de los años setenta, y que fueran demolidos en la administración de facto de Saint-Jean: el antiguo centro comercial/gastronómico de la Banquina de Pescadores –funcionalmente reemplazado por un descontextualizado conjunto-; y las edificaciones sobre las barrancas de Playa Varese, entre las que se contaban, por ejemplo, los históricos hoteles BellaVista y Centenario.

IEHPAC, FAUD, UNMdP

Referencias Bibliográficas

AA.VV. (1996): Habitar Mar del Plata. Mar del Plata, Programa Arraigo. FAUD UNMdP.

Bullrich, Francisco (1969): “Arquitectura argentina 19601970”, en Revista SUMMA nº 19, Buenos Aires, Ediciones Summa.

Cicalese, Guillermo. (1999): “La implantación del modelo económico aperturista en los 70 y la crisis del turismo masivo en la ciudad de Mar del Plata, 1976-1987”, en Actas de la II Jornadas de Historia Económica, Montevideo, Uruguay.

Falabella, Teresita (edit.) (2010): Los Conjuntos Habitacionales en Mar del Plata. Problemas de la Precariedad. Mar del Plata, FAUD UNMdP.

Pastoriza, Elisa (2001): La conquista de las vacaciones. Breve historia del turismo en la Argentina, Buenos Aires, Edhasa.

Sebrelli, Juan José (1970): Mar del Plata, el ocio represivo Buenos Aires, Editorial Tiempo Contemporáneo.

Zagorodny, Ana (2015): “Imaginarios Urbanos del Socialismo Democrático. Las ideas sobre la ciudad y la arquitectura”, en Revista I + A Nº 17. FAUD UNMdP.

CUADERNOS a + a, nº 1 (1984): Vivienda Individual Experiencias/Enfoques de arquitectos marplatenses. Mar del Plata.

Revista SUMMA nº 33 (1971): “Mar del Plata. Arquitectura y Entorno”, Buenos Aires, Ediciones Summa.

Revista ARQUITECTURA nº 1 a 8 (1981-1987): Publicación de la Asociación de Arquitectos de Mar del Plata, Mar del Plata.

Revista ARQUITECTURA SUR (1990- 1992): Temas de Arquitectura, ciudad y diseño en Argentina y Latinoamérica, nº 1-4, Publicación del CAPBA, Distrito IX, Mar del Plata.

Revista INEX (2013): Arquitectura, Arte diseño (https:// issuu.com/inexrevista/docs/inex), nº 1-4, Mar del Plata.

48 Especial Aniversario CABPA 30 años
Peatonal San Martín, 1980 Estadio Mundialista - Antonini / Schon / Zemborain y Asoc.

Los últimos 30 años

Arquitecturas en Mar del Plata, 1986-2016

Las obras correspondientes a la ciudad de Mar del Plata incluidas en esta edición especial de Info CAPBA IX –seleccionadas por la Comisión conformada a tal fin– constituyen un significativo repertorio de la producción de arquitectura local del período 1986/2016, habiendo merecido la mayoría de ellas, distinciones en instancias distritales y/o provinciales del Premio CAPBA. Son también una muestra, no exhaustiva pero sí importante, de las diversas modalidades de abordaje conceptual/ proyectual que la arquitectura, en tanto disciplina, posibilita, como también de distintos posicionamientos en relación a la arquitectura como profesión, y al arquitecto como actor social relevante en la construcción del hábitat.

Tel (223) 481-4882 - Nextel 54*795*1 - Cel 2234066176 Domicilio: Int. Camusso 654 - Mar del Plata www.aluhouse.com.ar info@aluhouse.com.ar MÓDENA 1 Y 2 - A30NEW Y A30NEW CON RUPTURA PUENTE TÉRMICO - A40 MÓDENA 1 Y 2 - A30NEW A30NEW CON RUPTURA PUENTE TÉRMICO - A40

Los ejemplos de vivienda agrupada en propiedad horizontal muestran un positivo salto de calidad proyectual que da cuenta de que este rubro, tradicionalmente en manos de empresas constructoras, tiene como protagonistas, al menos desde las dos últimas décadas, a los arquitectos. Tal es el caso del Edificio Tanagüe I, situado una parcela de esquina a la cual contribuye a consolidar; con un programa -comercio, oficina, viviendas de diversa superficie- resuelto con una clara volumetría de dos cuerpos que, con su intersección, asume la condición esquinera mencionada. Además de la variedad compositiva en las unidades, resulta especialmente destacable la materialidad del edificio y su envolvente –que utiliza hormigón visto y móviles parasoles metálicos como tema dominante- de una impecable factura técnica. El Edificio Multifamiliar en Guido 2142, desarrollado en una acotada parcela entre medianeras, utiliza diferentes tipologías para desarrollar tres viviendas dotadas de generosas áreas de estar/ comedor. Entre las virtudes del proyecto se cuenta que las viviendas aprovechan las diferentes condiciones que les asigna su situación particular en el sistema general: en tanto la vivienda inferior se aproxima a la idea de “casa” individual -y expande al patio posterior-, los “dúplex”, a los que se accede por escalera, ganan terrazas propias en la cubierta superior.

En lo que respecta a la vivienda individual los ejemplos seleccionados asumen, cada uno a su manera, el desafío de trabajar entre medianeras y a partir de esquemas compactos. La Casa Anuncibay -en una parcela de generosas dimensiones y con la mejor orientación hacia el fondo- se resuelve con un volumen principal, en cuya espalda hacia la calle se ubican accesos y servicios, y en cuyo frente hacia el patio/jardín se abren los sectores social y privado. La inserción de un ala subsidiaria –con quincho en relación al patio y biblioteca en la planta superiorconfigura una volumetría en L que, simultáneamente da continuidad a la galería y posiciona el patio/jardín como verdadero corazón de la casa. La Casa Pla, por su parte, se instituye como boîte à miracles a partir de un trabajo proyectual en torno a un volumen cúbico y a los desafíos geométricos del cuadrado y sus diagonales, en tanto la khaniana separación de algunos servicios permite reservar el cubo base para los usos nobles. La claridad formal, el

carácter objetual, la compacidad –ratificados por una continua envolvente ladrillera- y sus cálidos interiores no son los únicos atributos de modernidad que esta vivienda posee: cabe destacar la opción por trasgredir el orden más tradicional de distribución de funciones -optando por localizar el área diurna en planta alta-– como también las acotadas y precisas relaciones interior/interior e interior/ exterior que propone. La Casa D´orso, en barrio Caisamar comparte con la anterior dos aspectos: la inversión del orden tradicional de las actividades –colocando la zona íntima en planta baja- y su inscripción en un volumen compacto, predeterminado y geométricamente simple, atento, en este caso, a ciertos arboles preexistentes. Incorpora atributos que enriquecen la vida doméstica, como el generoso garaje/salón multifunción, en relación al patio posterior, y un área social abierta a tres direcciones, aprovechando las visuales hacia el entorno barrial, y con continuidad en una generosa terraza.

El campo de la vivienda social fue escenario, a partir de los años ochenta del pasado siglo, de un importante cambio en sus paradigmas: se abandonaron paulatinamente las propuestas de grandes conjuntos habitacionales y altas densidades, optándose por intervenciones de menor escala, operaciones de sutura urbana, la baja densidad y, en muchos casos, la vivienda individual en lote propio. Excelentes ejemplos de esta modalidad son las obras aquí publicadas. Las Viviendas Individuales Evolutivas –producto de un concurso en el que merecieran el primer lugar- se inscriben en un concepto de trasformación de la casa familiar que, atento a las crecientes demandas de espacio que los núcleos familiares requieren en su devenir, está presente al menos desde los años sesenta. En este caso el desafío se resuelve satisfactoriamente en las dos tipologías utilizadas: la vivienda lineal y la vivienda en torno a patio. Los prototipos –sustentados en una racional elección e implementación tecnológicarecuperan para su formalización elementos propios de la arquitectura popular: la volumetría aditiva, las cubiertas inclinadas con aleros, los espacios intermedios pergolados, los aventanamientos acotados, entre otros. Las 31 Casas en Caisamar –en cuatro emplazamientos de 15, 9, 4 y 3 viviendas respectivamente- fueron proyectadas por un equipo encabezado por “Cholo” Cedrón cuya militancia

ARQUITECTURA. REFLEXIONES
53

en el campo de la vivienda social se remonta a los años setenta, cuando participó nada menos que en la mítica experiencia de “Villa 7”. Varios fueron los objetivos socio-productivos y urbanos en los que se insertaron las viviendas construidas en Caisamar: apoyar acciones de pequeña escala tendientes a contrarrestar el monopolio de las grandes empresas constructoras en este campo, multiplicar las fuentes de trabajo local, insertar la vivienda en barrios preexistentes a fin de evitar la segregación social y también adecuar los “prototipos” a las cualidades ambientales de cada localización. Las viviendas son en su mayoría apareadas, compactas, de semiperímetro libre y comparten la medianera donde apoyan servicios, resolviéndose formalmente con cubiertas inclinadas, y se insertan “naturalmente” en el entorno barrial caracterizado por casas individuales y una importante forestación. El registro programático correspondiente a los equipamientos sociales –que contó históricamente en nuestra ciudad con interesantes ejemplos- está aquí representado por cuatro destacadas obras. En primer lugar el proyecto para el Colegio A. Einstein –cuyo complejo programa incorpora plenamente lo deportivo- que retoma, en su clara estructuración espacial/funcional, uno de los recursos paradigmáticos de la arquitectura de sistemas: la “calle interior conectora”. En este caso la misma es el instrumento que permite resolver diversas cuestiones: aprovecha y potencia la parcela en la que se emplaza, abierta a tres frentes y de generosas dimensiones, con un pasaje entre calles Catamarca y Rioja; enlaza en horizontal áreas programática y tipológicamente diferenciadas –los aularios en torno a patios cubiertos y los grandes volúmenes de usos deportivos-; y finalmente, multiplica y enriquece las instancias de encuentro y socialización de los estudiantes. Materializado con un sistema tradicional racionalizado –de paramentos ladrilleros, carpinterías y estructura de hormigón armado- utiliza esta última para señalar el riguroso orden modular subyacente. El edificio sede de la Obra Asistencial Mutual (OAM) para agentes municipales de MGP, involucró un complejo programa multifuncional (con actividades sociales, educativas, deportivas y de salud) para cuya resolución se optó por un único volumen totalizador, de planta rectangular, de tipo basilical. En sus extremos se sitúan el acceso

principal, sobre la esquina, de importante escala y, en el otro extremo, la circulación privada y los servicios, asegurando de este modo amplias planta libres y flexibles, como por ejemplo la que corresponde al Gimnasio/SUM del segundo nivel, con pasarelas para el público. Solo los jardines maternal y de infantes tienen acceso diferencial por medio de una rampa/jardín desde calle Balcarce. La parroquia y Capilla de San Benedetto Mártir y Jesús Niño responde a las demandas rituales y a las practicas parroquiales comunitarias haciendo de dicha dualidad una virtud, y proponiendo una configuración consecuente: un espacio sacro cerrado y un espacio comunitario/atrio, que lo antecede. Configuración ésta de larga tradición en la arquitectura religiosa latinoamericana, al menos desde los atrios con capillas y fachada-retablo coloniales. Aquí los espacios de la capilla y del atrio resultan formal y dimensionalmente equivalentes, y se encuentran enlazados por una galería perimetral de cambiante carácter –que pasa de galería semicubierta a “nave lateral” de la capilla-, todo ello resuelto, geométricamente, a partir de figuras dentro de figuras. El Centro de Especialidades Médicas Ambulatorias (CEMA), -cuyo extenso programa fue sistemáticamente resuelto- debió situarse en una parcela cedida oportunamente por el ONABE a la MGP, que fuera parte de la Estación de Cargas MDP y cuya complejidad urbana estuvo dada por su forma trapezoidal, su adyacencia a la vía del ramal a Miramar y su ubicación en una interface entre el barrio residencial/industrial y los amplios espacios desestructurados y abiertos de la estación. De allí el mérito de la solución urbana adoptada: una gran claridad formal, una revalorización del trazado urbano allí donde estaba ausente y la conformación de la calle Pehuajó –la cual, en un futuro improbable, podría rectificarse–, estrategias que, junto al espacio de acceso, constituyen una apuesta a cualificar el espacio urbano público del sector.

Las obras pertenecientes al programa comercial aquí presentadas, tienen en común el ser operaciones proyectuales de remodelación/reutilización de arquitecturas preexistentes –por cierto de calidad arquitectónica disímil-. La Pescadería Victoria constituye una renovación de instalaciones, a la par de su ampliación, vista la incorporación de una parcela lindera que resultó

54 Especial Aniversario CABPA 30 años

oportunidad para que el local de ventas tuviera salida a dos calles. Un plano curvo divide lo público de lo privado y da continuidad espacial al local de exposición y venta. La modalidad de exposición de productos en directa relación al consumidor, el uso de los colores primarios, la oportuna iluminación cenital en la intersección de la L son elementos relevantes en la cualificación espacial de un local comercial intensamente frecuentado por su (fiel) clientela. El Cafébar Divina Gula es resultado de la conversión al uso gastronómico de una modesta casa. Situado en una parcela en esquina, próxima a una universidad privada, se apuntó a su uso continuado día/noche, creando lugares de estar diferenciados. La intervención fue materializada recuperando materiales de la obra original y, toda vez que fue necesaria la incorporación de nuevos materiales, se optó por aquellos más austeros -tal el caso de la chapa ondulada o las carpinterías de hormigón- condición que caracteriza la expresión de la obra y remite a episodios del patrimonio modesto marplatense. En el polo opuesto se encuentra el Caffe Piazza, una refuncionalización de la Villa Ezcurra (Acevedo, Becú y Moreno, 1929), valiosa desde lo arquitectónico y también desde lo urbano-paisajístico. En este sentido la obra es una operación de valorización patrimonial, en una ciudad predominantemente indiferente, cuando no francamente agresiva, para con el mismo. Los nuevos usos implementados mantienen, en cierto modo, la distribución funcional original al ubicar las dependencias de servicios en el cuerpo subsidiario y los salones en el cuerpo principal, éste de importante envolvente muraria de piedra con aparejo irregular. Conservando el “patio de honor” y aprovechando la galería como acceso a las instalaciones, la intervención incorpora una espléndida rambla/terraza frente al mar, que oficia de moderno zócalo para la arquitectura pintoresca y potencia la cualidad de casa/mirador implícita en la villa original. El tótem publicitario establece sutiles relaciones con uno de los miradores del paseo peatonal costero.

Las dos obras inscriptas en programas de servicios y recreación –la sede local de la cadena hotelera Sheraton y el Aquarium de Mar del Plata- poseen en común no solo la autoría, sino también las articulaciones con el paisaje costero en el que se insertan. El Sheraton Hotel resuelve su programa 5* por medio de la tipología en torre -caracterizada aquí por un espectacular vacío sobre el lobby, estrategia poco frecuentada en la arquitectura hotelera de nuestro país- y ordena el paisaje urbano, instaurándose como hito y referencia desde las diferentes direcciones de la ciudad en la que puede ser apreciado: el Golf Club y el paseo costanero, el eje de calle Alem y la Avenida J.J. Paso. Los diferentes ámbitos de su interioridad están cualificados por el cuidadoso tratamiento arquitectónico de “elementos como la luz, el agua, el color y las texturas”, según reza su memoria. El Aquarium de Mar del Plata -situado en una privilegiada parcela de dunas y rocas de la costa marplatense, entre las instalaciones del Faro y el mar- se inscribe en la tradición paisajística pintoresca de raigambre inglesa, cuyas raíces se sitúan en la esfera pictórica, y en la cual la arquitectura se subordina a la lógica

de construcción del paisaje; este debe cumplir, a su vez, con ciertos imperativos como la secuencialidad, la creación de lugares, el movimiento de masas, la sorpresa, el carácter agreste y la expresión material rústica. En esta dirección fue resuelto el programa del acuario, por medio de un paseo/recorrido que eslabona piletas, estadios y plazas de diverso carácter -configurados de modo predominante con geometrías circulares, una materialidad ladrillera y fuerte cromatismo- y que remata en una laguna de mayor jerarquía. La omnipresencia del mar y la tensión entre la propuesta pintoresca y la necesidad de ordenamiento del soporte natural son algunos de los atributos de este espléndido parque costero.

La problemática patrimonial, urbana y arquitectónica, encontró en nuestra ciudad un grupo de trabajo conformado por profesionales locales, que han desarrollado, desde hace más de 25 años una relevante tarea de investigación, intervención y puesta en valor de edificios y conjuntos arquitectónicos, a la vez que ha estado comprometido con tareas de formación académica, tanto en el grado como en el posgrado, en la FAUD. Entre las obras relevantes del patrimonio local intervenidas por dicho grupo -ambas localizadas en paisaje cultural más característico de Mar del Plata: su sector costero- se cuentan el Instituto Saturnino Unzué (L.F. Dujarric, 1908-10) -cuya declaratoria como Monumento Histórico Nacional correspondió inicialmente al Oratorio y posteriormente a la totalidad de la obra- y el Conjunto Casino-Hotel Provincial (A. Bustillo, 1938-46). La intervención en los edificios de la “Urbanización de Playa Bristol” -declarado “Conjunto Urbano Arquitectónico Nacional” por Decreto PEN 349/99- tuvo como horizonte la Cumbre de Presidentes 2005, e implicó diversas fases y propuestas: Relevamiento y Diagnóstico de Fachadas de los edificios Hotel Provincial y Casino; El Proyecto de Puesta en Valor y Consolidación de fachadas y espacios perimetrales de los edificios Casino y Hotel Provincial, como así también la realización de un Manual de Mantenimiento para el Edificio del Hotel Provincial, con sus protocolos de inspecciones y acciones preventivas y correctivas. Por su parte la secuencia de intervenciones en el Instituto S. Unzué es fruto de un proceso de gestión jalonado por diversos convenios, estudios históricos e investigaciones tecnológicas, diagnósticos y proyectos de intervención y restauración material y significativa de las obras, durante más de veinte años, aún en proceso de desarrollo. Esta intervención involucró numerosos profesionales, técnicos y artesanos que, en diferentes fases, han puesto de relieve los valores de una obra única, de tenor academicista y de una proyectualidad ecléctica en sus opciones tipológicas y estilísticas, que van desde su envolvente de filiación Secesión Vienesa, hasta los interiores Neobizantinos del oratorio. La restauración y puesta en valor ha permitido, asimismo, desde hace unos años, una nueva apropiación social del conjunto -los pabellones y salón de actos sobre calle Rio Negro como también el parque- a partir de su apertura al público visitante.

56 Especial Aniversario CABPA 30 años

FICHA TÉCNICA

Proyecto y dirección:

Arqs. Nelson Quarati y Roberto Jakubowicz

Ubicación:

Mendoza Nº 3657

Localidad:

Mar del Plata

Superficie cubierta: 438 m2

Premio ASAMP:

1987

RESIDENCIAL

Casa Anuncibay

Mar del Plata

Programa: familia de 5 integrantes; dependencia de servicio; garaje para dos autos; parrilla de uso intenso; quincho con parrilla, asador y depósito; estudio con estar para la hija (por entonces estudiante de Arquitectura).

Terreno: entre medianeras, situado en la zona residencial conocido como “Barrio Los Troncos”, con abundante vegetación pública y privada, pero sin vegetación propia, prácticamente plano y con los linderos paralelos construidos hasta la medianera.

Sus mejores visuales hacia el norte, con vegetación tupida en el lindero del fondo.

Proyecto: La vigencia del Código anterior permitía tomar ambas medianeras ya construidas, y con esta posibilidad, se generó un partido en “ele” con la creación natural de un gran patio/jardín bien orientado.

Se cumple así la premisa prioritaria de lograr una intensa relación interiorexterior, en correspondencia con los ambientes principales de la casa con total intimidad, y a resguardo de las inclemencias del sur.

58 Especial Aniversario CABPA 30 años

Otra importante premisa fue la de integrar el quinchoparrilla, como una continuidad orgánica de la casa. Para este fin, se dispuso el estudio-estar en la planta alta, conformando la “pata corta” de la “ele”, creando de esta manera un puente que al mismo tiempo, en planta baja es lugar de sombra para actividades exteriores, tanto de living como de quincho.

Este cobertizo y la galería de planta baja tamizan, como espacio de uso y de transición, la buscada relación interiorexterior.

Debido a los múltiples movimientos de llenos, vacíos y espacios virtuales el tratamiento del frente interno se realizó íntegramente con revoque liso. Este lenguaje expresivo aseguraba la continuidad de la “ele” y la imagen de la unidad como conformadora del gran patio-jardín.

La obra recibió el Primer Premio en la categoría viviendas

individuales de más de 120 m2, otorgado por el CAPBA en su Premio Anual de Arquitectura 1987. En ese entonces, el jurado valoró en la obra la idea equilibrada “que estructura sin estridencias el diálogo entre espacios internos construidos y espacios arquitectónicos externos, con una gradación de sus relaciones intermedias que compatibiliza los usos propuestos con la posibilidad del sitio.

La organización nace, de un reconocimiento lúcido de la existencia de muros medianeros y se estructura mediante un ajuste ponderado de los medios expresivos, materiales, medidas adecuadas, iluminación natural, valores y texturas que armónicamente conjugados originan un conjunto espacial en el que la sobriedad y la contención priman sobre cualquier tentación del uso excesivo de los recursos. El jurado destaca la síntesis alcanzada ante un programa particularmente complejo”.

ARQUITECTURA. OBRAS - SEDE MAR DEL PLATA Planta Baja
59
Planta Alta

FICHA TÉCNICA

Proyecto y Dirección:

Arqs. Florencia Gioia - Diego Noales

Ubicación:

Pellegrini esquina Vieytes

Localidad:

Mar del Plata

Superficie terreno:

229,48 m²

Superficie construida:

148 m²

RESIDENCIAL

Casa Pla

Mar del Plata

La vivienda se construyó para una familia numerosa con cuatro hijos en edades que iban desde los 2 años hasta los 16.

Las reducidas dimensiones del lote (10.39 x 22.50) obligaron a explotar al máximo las posibilidades de ocupación dadas por la normativa municipal que permite en este tipo de terrenos en esquina, invadir el retiro sobre el lado de mayor dimensión. Dicho beneficio traía como contrapartida un problema a resolver: la falta de privacidad en gran parte de su perímetro asoleado. Estos datos, más ciertas visuales indirectas al mar sobre la orientación S.E., y una medianera existente en el fondo de 9 metros de altura, se asocian para elevar los lugares de estar a un nivel por sobre la cota de acceso, de modo de recuperar la privacidad cedida al construir al límite de la línea municipal.

Formalización

En oposición al entorno construido se buscó que una volumetría compacta sintetizara el programa en un cubo de ladrillo como envolvente de los ambientes interiores y sus expansiones, adosándole un prisma más bajo revocado, que contiene los servicios y lo separa de su vecino. Este cubo es a su vez seccionado en los dos niveles por un plano de carpintería que ahueca la masa de ladrillo, prolongando las horas de sol en el interior. Sobre el sur,

60 Especial Aniversario CABPA 30 años

hacia la calle Pellegrini, la fachada se destaca horadando en doble altura el muro macizo. En tanto sobre la calle Vieytes se repite el mismo criterio de volumen socavado que, en este caso más protegido, permite contener el espacio semicubierto de la terraza-parrilla.

Organización espacial

A una planta baja ¨trabada¨ con grandes requerimientos en cuanto a rendimiento (cinco dormitorios con tres baños), se opuso una planta alta casi sin obstáculos que entorpecieran su continuidad. La diagonal completa del gran plano de carpintería prolonga los lugares de estar hacia el exterior y dinamiza un ambiente único que, inscripto en un cuadrado de 8.10 m. se amplía hasta 11.40 m. En la planta baja esta misma diagonal, interrumpida para albergar los dos dormitorios-camarotes, resuelve la proximidad de los aventanamientos de la zona de dormir con la línea municipal.

Planta Baja

1. Dormitorio Principal

2. Dormitorio

3 Dormitorio de servicio

4. Jardín

Planta Alta

1. Estar

2. Comedor

3 Terraza Parrilla

La necesaria fluidez entre el ingreso (0.00 m.) y la zona pública (3.10 m.) es potenciada por el espacio de triple altura que, conteniendo las escaleras, remata en el lucernario que da acceso al último nivel de la vivienda (5.90 m.)

Materialidad

Un presupuesto acotado hizo optar por materiales nobles y de bajo costo de mantenimiento: ladrillo visto exterior, estructura de hormigón armado con losa a la vista, evitando así la yesería en obra. Las instalaciones se concentraron en la esquina sur encolumnando caldera y tanque de agua. Dos rejas perimetrales corredizas en doble altura, resuelven la seguridad en los espacios semicubiertos, a la vez que reconstruyen la volumetría del cubo.

La vivienda obtuvo la distinción del Distrito IX como Primer Premio en categoría Vivienda Unifamiliar hasta 150 m2, en 1996; y el mismo año la Primera Mención en la igual categoría en el Premio CAPBA otorgado por el Consejo Superior.

ARQUITECTURA. OBRAS - SEDE MAR DEL PLATA Planta Baja Vista Lateral Planta Alta
61
Corte

FICHA TÉCNICA

Proyecto y Dirección:

Arq. Antonino Alberto D’Orso

Ubicación:

Olegario Andrade 1560

Localidad:

Mar del Plata

Superficie cubierta:

154 m²

Ejecución:

2001-2003

RESIDENCIAL

Casa en Caisamar

Mar del Plata

Estrategias

- Compactar la casa, en un volumen limpio, simple y mínimo, economizando al máximo los metros cuadrados construidos, manteniendo restricciones de un perímetro regular.

- Ocupar del mismo modo el menor territorio posible en planta, preservando la mayor cantidad de suelo y forestación existente.

- Obtener las mejores orientaciones y visuales del entorno.

Emplazamiento

Ubicada en barrio Caisamar de la ciudad de Mar del Plata, caracterizado por sus espacios verdes y vegetación, la casa responde al lugar y se implanta en sus 15 m de frente, liberando otros 15 m de fondo de jardín privado.

Un único y claro volumen, aloja todas las actividades de la casa, mientras que una línea de eucaliptos existentes en el límite medianero sur, condicionaron su sustracción.

Programa

El programa de un matrimonio y dos hijos, con el deseo de contar con un lugar para reuniones diferenciado de la casa, sumado al paisaje del barrio y la

62 Especial Aniversario CABPA 30 años

abundante vegetación propia y circundante, posibilitaron plantear la vida social de la familia en planta alta, con mejores visuales y transparencias.

En contraste, la planta baja es mas cerrada y privada, de aberturas controladas, con dormitorios que miran el jardín casi a nivel de césped, y con un estudio, circulación funcional y vinculación espacial de la vivienda.

El guardacoche o sala multiuso con sus servicios, relacionado con el exterior, posibilita la conexión del frente con el fondo de la parcela.

Espacialidad

Se pretendió que las visuales se extendieran, descubriendo perspectivas interiores-exteriores que superen el limite de la caja muraria. Para ello se comprende y percibe espacialmente y desde el acceso, la profundidad total del lote, y desde su interior, el ancho, el largo y alto de sus plantas.

Lenguaje

Las fachadas expresan claramente la idea generadora de la casa, con aberturas como “ojos” al entorno de manera diversa.

Una gran ventana continua interior-exterior hacia el frente y a la mejor orientación, (colector solar en invierno) y diferentes aberturas cuadradas y apaisadas en toda la continuidad de la envolvente, permiten enmarcar el entorno.

Las aberturas cuentan con postigos y puertas corredizas (por razones de seguridad y brindando protección solar en verano), lo cual modifica el frente de la vivienda diariamente y de acuerdo a la estación del año.

Materialidad

Una geometría precisa, hace una construcción sencilla. Un volumen, algunos planos, distintas líneas, construyen y materializan esta vivienda. Contrastan diferentes texturas y colores que exaltan todos estos elementos, definiendo las terminaciones.

La presente obra ha sido distinguida como “2º Mención Compartida, categoría vivienda individual Premio Bienal de Arquitectura, Urbanismo, Investigación y Teoría CAPBA 2005”

63
ARQUITECTURA. OBRAS - SEDE MAR DEL PLATA

FICHA TÉCNICA

Proyecto y Dirección:

Arq. Darío H. Lemmi

Colaboradores:

Arqs. Mario Savino y Nadia Barleta

Ubicación:

Guido 2142

Localidad:

Mar del Plata

Superficie cubierta: 334 m2

Superficie semicubierta: 15 m2

Año de terminación: 2006

RESIDENCIAL

Vivienda multifamiliar de Baja Densidad

Mar del Plata

Las limitaciones de medida en el predio estimularon la investigación de ejemplos con la misma problemática, junto con una idea clara de generar unidades que no fuesen “Departamentos” sino “Viviendas unifamiliares”.

La incorporación de un lugar para el auto fue una decisión que estructuraba la implantación de la construcción. Con un retiro obligatorio de cinco metros se optó por llevar a ocho metros el comienzo de la edificación lo que permitió generar un espacio de transición entre el auto y los accesos. El barrio no presenta retiros por ser una consolidación vieja pero con el Código vigente la vía se nomencló como sujeta a ensanche, lo que planteaba una doble respuesta: la Línea de Frente consolidada, existente y el Código. Este lugar “Guardacoches”, al no estar dividido, permite, cuando no está ocupado brindar una expansión para los niños, entendiéndose como espacio unitario sólo alterado por un camino lateral de acceso peatonal. El lugar está semicubierto por un plano de lona tensada traslúcida la misma de los carteles back light, que lo protege y baña de una luminosidad pareja.

Un árbol existente nos dio la idea de utilizarlo como un elemento que profundice y verticalice el espacio que aparece como posterior a los autos. Como es una especie de hoja caduca, nos aseguraba que no iba a perjudicar el asoleamiento en los meses de invierno –ya que el norte está adelante–; por otro lado, desde el interior de las unidades nos proporciona una mayor estratificación del espacio hacia la publicidad de la vereda.

Desde la vereda hasta las puertas, el mismo solado, hormigón in situ, reglado, llaneado y lavado a presión hasta descubrir la piedra superficial. Las puertas de

64 Especial Aniversario CABPA 30
años

entrada son de madera, más altas de lo “normal”, para que en la escala del frente no se desproporcionen. Los accesos a las viviendas están conjugados con una depresión en el límite, que ayuda a entender el ingreso, a escala del edificio, casi urbana.

El retiro también nos proporciona una mejor perspectiva, ya que el Espacio Urbano ganado se suma a la calle y los casi once metros de altura no agreden los límites vecinos. El edificio se presenta así como metido dentro del espacio de la manzana. Para continuar con la línea de edificación de vecinos, un solo portón –levadizo, metálico, gris/azul – consolida el perfil de la cuadra.

La idea de dinamismo en la fachada es importante, porque no limita la geometría a una cara y la medianera intenta despenderse de ella. Los vanos están relacionados geométricamente entre sí por líneas que se recomponen en todos los niveles.

En la configuración del remate se tuvo en cuenta no perder el control de la altura del edificio. Las terrazas de las unidades superiores nos permiten generar un retranqueo en el volumen. En el contrafrente, los criterios generales son similares. La necesidad de tomar el fondo del terreno por la unidad de Planta Baja, generó una sustracción que articulamos al exterior con una pérgola de madera en altura y cuarto, reforzando la idea de permeabilidad de la planta – frente/fondo – y continuidad espacial. Otro árbol existente ayuda a dar una escala humana al exterior. Continuamos el deck desde el invernáculo al patio.

La unidad de Planta Baja toma todo el ancho del terreno. Se tuvo especial cuidado en lograr la mayor permeabilidad posible en

ARQUITECTURA.

la zona de estar. Desde el fin del deck, en la parrilla, se puede apreciar el movimiento de la calle. La privatización de visuales desde el espacio público se reguló por la elevación del nivel interior de piso de la unidad (+ 0,72 mts.). Se entra por detrás del hogar, a una recepción con un nivel de piso más bajo (+ 0,18 mts.), para luego reconocer el estar o seguir hacia las habitaciones o cocina/comedor. El resto de la vivienda se resuelve en medios niveles.

Las unidades de Planta Alta son parecidas pero no idénticas. Después de un palier de llegada de la escalera común, se entra a las unidades de frente, a un pequeño recibidor de altura y media. Esta es la altura del estar, que se vincula con el comedor con un pliegue en el piso, “gradas” que dan continuidad espacial y sirve además de equipamiento (Tienda PRADA de Koolhaas). Todo un solo piso, unificado, una membrana que se articula para dar escala al comedor. El cielorraso, ahora, es constante y continuo, y es el referente del pliegue del piso. Siguiendo con el criterio de la doble orientación, los dormitorios están combinados, al frente y fondo y entrecruzado en planta: dos adelante y uno atrás; uno adelante y dos atrás.

El último nivel es generado por el “corte”, dejando la estructura del techo a la vista, logrando cerrar el conjunto hacia la terraza exterior. Estos lugares multiuso, junto con las expansiones y las parrillas, tratan de cualificar la estructura de las unidades, haciéndolas más libres, más estimulantes, más próximas a un ambiente de vivienda unifamiliar.

La obra obtuvo Mención en la categoría Vivienda multifamiliar de baja densidad, en el Premio Bienal CAPBA 2007.

OBRAS - SEDE MAR DEL PLATA
65
Plantas y Corte

FICHA TÉCNICA

Proyecto y dirección: ef.arq

Equipo:

Eugenio Mario Fernández, Ana María Macchi, Pablo Palauro e Ireneo Niz.

Gestión de obra: Eugenio Cepeda.

Colaboradores: José Itxassa, Iván Brankevich, Álvaro Duffard, Ramiro D´Elía.

Ubicación:

Funes 1880 - Mar del Plata

Superficie cubierta: 1.320,00 m2

Superficie semicubierta: 56,50 m2

Año: 2010-2012

RESIDENCIAL

Edificio Tanagüe I

Mar del Plata

El solar

El terreno fue elegido por un propietario del barrio, que vive y desarrolla su actividad comercial en él y lo considera una apuesta al futuro. El lote es una esquina, de 13 x 26 ubicado en la intersección de las calles Belgrano y Funes, bien orientado, en el barrio de la vieja estación de trenes, actual ferro-automotora. La calle Belgrano, con dirección hacia el centro, es de tránsito dinámico en tanto la calle Funes es más tranquila.

A la manzana la cruzan las vías del tren de la ruta a Miramar. Un laurel en su interior y algunos plátanos en las veredas son el testimonio de un ambientepaisaje en extinción. El contexto urbano es variado. Conviven en él residencias (individuales y colectivas), comercios, talleres y depósitos, algunos de los cuales están en desuso, como la construcción abandonada que existía en el terreno donde se implanta el edificio. El tejido del sector es de densidad media con alta ocupación del suelo y alturas cambiantes.

El proyecto

La implantación enfatiza el encuentro esquinero con cuerpos cerrados que avanzan sobre las veredas y así se obtiene un espacio libre, de expansión y estacionamiento, que preserva el laurel añoso, destaca el edificio como exento y cualifica el vacío.

66 Especial Aniversario CABPA 30 años

El programa incluye un local comercial (rubro pinturería), oficinas, depósito, ocho viviendas y un SUM.

Se volcó el acceso al local sobre calle Belgrano para ganar frente comercial, y se decidió colocar la estructura circulatoria de las viviendas sobre calle Funes.

Sobre estas decisiones, se desarrolló una idea que conjuga la búsqueda expresiva, la propuesta espacial y la solución constructiva.

Las viviendas contenidas en dos volúmenes se unen y se desplazan en altura para generar el vacío del local comercial y enfatizar la relación con el espacio urbano. Dicho desplazamiento jerarquiza el acceso comercial sobre calle Belgrano, la más transitada, y el volumen sobre calle Funes marca el ingreso a escala humana de las viviendas.

El local comercial se resuelve en tres niveles. En planta baja funciona la atención al público, en el entrepiso las oficinas de la empresa y en el subsuelo el depósito. Entre la planta baja y el entrepiso se plantean tres vacios, dos de ellos se articulan en altura a modo de transición con el exterior. El tercer vacío aporta una doble altura interna al hall de las viviendas que se visualiza desde la gerencia.

Se accede a las viviendas por una galería inundada de luz, color, y con visuales hacia el barrio. Las viviendas de 1, 2 y 3 dormitorios maximizan las caras libres y el perímetro aumenta con el avance de los cuerpos cerrados.

La envolvente del edificio juega con el contrapunto entre lo pesado, brutalista y vertical de los elementos de hormigón visto por un lado y con la sucesión horizontal, lo liviano, permeable y mutante de los límites de las viviendas. El edificio se expresa articulado y contundente.

Las mallorquinas corredizas que aportan el carácter mutante de la fachada, se adaptan adecuadamente a la búsqueda de atenuar la incidencia solar de la orientación norte-noroeste, definen el carácter velado del edificio hacia el exterior y aportan una cálida atmosfera en el interior. Este recurso que plantea un juego variado de luces y sombras, de ver sin ser visto, tiene precedentes en las persianas de influencia hispano-árabe muy usadas en las viejas casas del barrio. En este punto es justo decir que reconocemos una influencia de algunas obras catalanas como el ISM de Coderch o muchas de las obras más recientes de Ferrater (OMB) y de Clotet y Paricio.

ARQUITECTURA. OBRAS - SEDE MAR DEL PLATA
Planta Sum 67
Corte Planta Comercial Planta Viviendas 1º Planta Tipo Viviendas 2º a 4ª

FICHA TÉCNICA

Generación del proyecto global (idea, convocatoria, formación de la Cooperativa, gestión del crédito, etc.):

Arq. Osvaldo Mario Cedrón

Proyecto y Dirección Ejecutiva:

Arq. Osvaldo M. Cedrón y Arquitectos Asociados.

Colaboradores en distintas etapas:

Arqs. Diego Javier Barella, Jorge Abate, Gustavo Parrota y Gustavo Priolo.

Aporte financiero:

Instituto de la Vivienda de la Provincia de Buenos Aires, más aporte de cada familia de acuerdo a sus posibilidades.

Ubicación:

Pirán y Sagastizábal: 15 viviendas. Mugaburu y Zubiría: 4 viviendas. Storni y Calasanz: 3 viviendas. Aguirre y T. de Vera y Aragón: 9 viviendas.

Año: 1993-1995

RESIDENCIAL

Vivienda Social

31 casas en Caisamar Mar del Plata

El emprendimiento buscó crear un ejemplo para la construcción de viviendas de sectores sociales bajos y medios, puesto que, dichos sectores sociales no tenía posibilidad de obtener un crédito en el Estado Nacional, Provincial ni Municipal para concretar su vivienda propia, ni siquiera en los bancos estatales o privados, ya que los intereses eran usurarios.

El arquitecto Cedrón se propuso demostrar que con esta modalidad, era posible triplicar la cantidad de viviendas necesarias para la comunidad con el aporte financiero del Estado, usando mejor y más equitativamente los recursos que aporta el pueblo para la construcción de viviendas.

Entre los objetivos destacaba el de crear un modelo que permitiera generar fuentes de trabajo, no sólo para los obreros de la construcción y los productores de insumos, sino también para los pequeños y medianos corralones instalados en la ciudad. En el emprendimiento los profesionales de la Arquitectura, la Ingeniería, la Agrimensura, y técnicos también estaban incluidos, en forma de cooperativa para el trabajo. La idea impulsada por el ‘Cholo’ Cedrón hacía al mismo tiempo, hincapié en que los recursos aportados se invirtieran dentro de la ciudad.

68 Especial Aniversario CABPA 30 años

Los diversos diseños de prototipos racionalizaban al máximo las decisiones de diseño de manera de economizar (por ejemplo: agrupamiento de las instalaciones, mínimo perímetro, diseño compacto) pero sin perder calidad y comodidad. Permitían al mismo tiempo pensar en futuros crecimientos a medida que las necesidades de las familias cambiaran.

Al mismo tiempo la propuesta de insertar las viviendas en barrios existentes pretendía evitar la segregación social y también favorecer la posibilidad de adaptación de las viviendas a las características ambientales de cada ubicación en la ciudad.

ARQUITECTURA. OBRAS - SEDE MAR DEL PLATA
69
Plantas Prototipos A, B y C

FICHA TÉCNICA

Proyecto:

Arq. Gustavo Daniel Perales, Arq. Sergio Omar Simonelli, Arq. Mauricio Walter Teti, Arq. Diego Martín Agusti, Arq. Claudio Gastón Granda, Arq. Damián de Lellis.

Colaboradores:

MMO Claudio Marcelo Diez

MMO Diego Eduardo Rodríguez.

Año: 1999

RESIDENCIAL

Vivienda Evolutiva Tecnología en seco Mar

del Plata

Como resultado de un concurso municipal convocado en 1999 para la creación de un Proyecto de Viviendas Individuales Evolutivas, los ganadores idearon cuatro prototipos de ejecución con tecnología en seco con estructura de perfiles de acero galvanizado, que obtuvieron distinción en el Concurso de Viviendas Evolutivas: Primer premio en la Categoría A I “Modelo y serie de viviendas entre medianeras y semiperímetro libre en planta baja” y Primer premio en la Categoría B I “Modelo y serie de viviendas en perímetro libre en planta baja”.

La elección de la tipología en semiperímetro libre, radicó en las ventajas que ofrece la misma, fundamentalmente en la disposición de los ambientes a partir de su orientación, ya que permite el agrupamiento de los locales de servicio sobre la pared medianera (con el consiguiente beneficio de acoplamiento de instalaciones, economía de cañerías, etc.) y el aprovechamiento integral de las mejores orientaciones por parte de los ambientes servidos. Cabe destacar que la flexibilidad de esta implantación brinda la posibilidad de desarrollar el prototipo sobre cualquiera de las parcelas de una manzana tipo, sin perder ninguna de las cualidades orientativas anteriormente descriptas. En consecuencia, para el desarrollo del prototipo se partió del concepto de flexibilidad que permita acceder indistintamente por cualquiera de los frentes de una parcela tipo.

70 Especial Aniversario CABPA 30 años

El diseño de la vivienda se desarrolló a partir de una trama cuyo módulo 0.60 m x 0,60 m está definido por la estructura de acero galvanizado portante de los muros interiores y exteriores, que genera un prototipo de dimensiones adaptables a diferentes anchos de parcela. La vivienda consta de dos ejes ordenadores. Un eje interior que actúa como espina circulatoria, que articula los espacios de servicio (patio de servicio, cocina en planta baja y baño en planta alta) con los espacios servidos (estar, comedor en planta baja y dormitorios en planta alta). El otro eje exterior y paralelo al anterior, virtualizado con una pérgola de madera, permite avanzar sobre la vivienda desde dos frentes, según la propuesta a realizar y la vincula con la expansión y el sector de guardacoches, además de generar el acceso a la misma. La circulación vertical está situada dentro del bloque de espacios de servicios, complementando sin alteraciones el sistema circulatorio.

El futuro crecimiento está planificado con la incorporación de un dormitorio y un baño en planta baja y un dormitorio en planta alta, ubicados en ambos casos al final de la espina circulatoria. Para esta propuesta de crecimiento se pensó fundamentalmente en el rendimiento integral y la economía de superficie que permite sumar dos ambientes, potenciando la idea base del proyecto. Los materiales elegidos fueron seleccionados en función de su calidad, economía y práctica colocación, para los materiales de la envolvente, además se plantearon diferentes opciones en función de lograr una flexibilidad tal que permita la

Plantas

incorporación del modelo desarrollado a los diferentes entornos urbanos y tipos de clima donde puedan llegar a implantarse.

− Materialidad base: Platea de hormigón.

− Muros: Compuestos por una estructura formada por placas de roca de yeso “Placo” de 12,5 mm. de espesor fijadas sobre una estructura de acero galvanizado “Siderar” y un panel exterior fenólico de 12 mm., con aislación termoacústica de lana de vidrio. En los locales húmedos se utiliza la placa “Placomarine” de 12,5 mm.

− Cielorraso: Compuestos por una estructura formada por placa de roca de yeso “Placo” de 9 mm. de espesor fijadas sobre una estructura de acero galvanizado.

− Terminaciones y revestimiento interiores (opcional): Empapelado. Pintura. Revestimientos cerámicos en locales húmedos.

− Revestimiento exterior (opcional). Diferentes combinaciones de los siguientes materiales: Placa “Superboard”. Tingladillo plástico. Ladrillo a la vista. Laja. Piedra.

− Cubierta (opcional): Teja francesa. Chapa galvanizada ondulada. Pizarra.

− Carpintería (opcional). De medidas estandarizadas con respecto al diseño del prototipo y al aprovechamiento máximo de su uso.

ARQUITECTURA. OBRAS - SEDE MAR DEL PLATA Planta Baja
71
Planta Alta

FICHA TÉCNICA

Proyecto y Dirección:

Arq. Esteban Rossi

Colaboradores:

Arqs. Graciela Leis, Mario Giménez; Ing. Rubén Muñoz; Sres. Raúl Jugon, Gustavo Aranguren, Fernando Mainfredini

Ubicación:

Catamarca 3644

Año de terminación: 1996

EDUCATIVO

Instituto Albert Einstein

Mar del Plata

La zona se ha consolidado con características residenciales a solo 15 cuadras del microcentro de la ciudad de Mar del Plata en pleno barrio parque Chauvin. Con chalets de planta baja o planta baja y un piso. También comienzan a aparecer ciertas edificaciones singulares de mayor altura. Ubicado en una zona con lomadas posee importantes desniveles en los bordes que lo delimitan, generando posibilidades de ingreso a distintos niveles.

El proyecto

Trata de sintetizar las características del sitio y los requerimientos del programa. A tal fin el proyecto se estructura a lo largo de una calle interna con accesos en distintos niveles por las calles La Rioja y Catamarca y que congregan todas las actividades de talleres, administrativas, los accesos a las áreas educacionales y deportivas. Congrega también las actividades de extensión como de expresión de los alumnos mediante exposiciones. También aglutina, informalmente las actividades de expansión de biblioteca y buffet como corazón del área común. Las áreas educacionales de aulas comunes contemplan la estructura formativa prevista en primario, intermedia y superior, generándose un escalonado que se apoya sobre la calle interior y gana las expansiones hacia la “buena orientación”.

72 Especial Aniversario CABPA 30 años

Los sectores de aulas se arman en torno a un espacio central propio y en relación a la expansión.

Sobre el otro extremo de la calle se arma en contrapunto el área deportiva compuesta por pileta y gimnasio.

Entre ambos bloques se conforman el patio principal, corazón de las expansiones, bien asoleado y al abrigo de los vientos. El acceso sobre Catamarca, próximo al área de aulas comunes, se conforma con elementos livianos prolongándose la cubierta de la calle peatonal y la presencia de árboles añosos existentes.

El acceso sobre La Rioja se genera por el ahuecamiento del muro existente hacia la calle estructuradora del proyecto. El muro persiste como memoria del sitio cumpliendo una función de contención y cobijo y generando la expectativa de lo oculto. El edificio emerge por detrás.

El lenguaje del ladrillo persiste como en todo el edificio y juega alternativamente por delante y por detrás de la trama

estructural. La estructura genera una zona de transición entre exterior e interior y es soporte de los parasoles.

La aproximación de la línea de estructura a las líneas municipales, es producida para generar la mayor densificación de espacio libre en el centro del edificio (patio). Sin embargo la distancia parquizada entre la estructura y el muro produce un ablandamiento de la relación de borde con el entorno.

El patio se encuentra en relación al nivel de escuela primaria y buffet. A su vez se vincula mediante la escalera exterior a las terrazas de los demás niveles educativos.

La resolución técnica

Dentro de un marco de sistemas constructivos tradicionales, se desarrolló bajo conceptos básicos de sistematización y racionalización, a fin de garantizar la factibilidad de la obra. Es así que se sistematizaron medidas y soluciones técnicas de estructuras, cerramientos e instalaciones, lo que redundó en un considerable ahorro de tiempo y ejecución.

Basados en estos conceptos es que la estructura de hormigón se sistematizó tanto modularmente como formalmente, las ventanas modulares de hormigón con sus combinaciones de múltiplos y submúltiplos resuelven todo el sistema de aventamiento, el sistema de bandejas de distribución eléctrica se integra con la fuente lumínica, la carpintería interior se resuelve mediante marcos de chapa pintada de color uniforme para toda la obra mientras que el color de las hojas identifican cada nivel del edificio.

Todo esto a su vez redundó en economía de mantenimiento, rápido aprendizaje de uso e identidad del Instituto a nivel urbano.

ARQUITECTURA. OBRAS - SEDE MAR DEL PLATA Planta Nivel 1
73
Planta Baja Planta Nivel 2

FICHA TÉCNICA

Proyecto y dirección:

Carlos Mariani y María Haydee Pérez Maraviglia

Asesor estructural:

Ing. Enrique Petersen

Asesor de iluminación:

Ing. Rodolfo Rodríguez

Superficie cubierta: 900 m2.

Ubicación:

Avda. Edison 2851 - Mar del Plata

Año de proyecto:

1997

Año de construcción:

2000

CULTO

San Benedetto Martir y Jesús Niño

Mar del Plata

La obra forma parte de un proceso basado en el reconocimiento de una estructura urbana consolidada y en la respuesta a condiciones bioclimáticas de exigencia regional.

El edificio plantea el equilibrio entre lo simbólico del espacio sacro y la realidad urbana existente en el barrio de Mar del Plata donde fue construida.

El proyecto materializa la idea de crear un espacio para el encuentro de la comunidad, donde conviven actividades religiosas y de extensión ciudadana. Por ello la idea base fue la de desarrollar dos espacios, uno cubierto y uno descubierto, como núcleo del proyecto. El espacio cubierto, el templo, se duplica en un espacio descubierto que a la vez de actuar como atrio funciona como el espacio de encuentro de la comunidad. Este espacio cubiertodescubierto está rodeado por una galería que ya como espacio interior, conecta capillas laterales y remata en ábside. A su vez dos volúmenes que se manifiestan como un semicírculo hacia el espacio urbano permiten ubicar las dependencias parroquiales y las salas para catequesis de niños. Como dos brazos cierran las galerías, que abrazan a su vez al espacio central del encuentro.

74 Especial Aniversario CABPA 30 años

La relación entre lo público y privado está marcada por una planchada que atraviesa un espejo de agua, que permite llegar al espacio de encuentro contenido por los volúmenes semicirculares, a través del símbolo de la puerta de agua del bautismo.

La forma intenta expresar lo esencial de la idea generadora, haciendo prevalecer lo conceptual, evitando el derroche en recursos y anécdotas, tratando que el diseño haga legible la idea de partida.

La arquitectura permite crear atmósferas sensoriales, transmitir experiencias totalizadoras, mediante la utilización de ciertos elementos como escala, luz, agua, color, texturas. Estos elementos tomados de la tradición del lugar y la comunidad son los realmente capaces de transmitir un sentido a la arquitectura. En el interior de la iglesia el uso de la luz natural en diferentes horas fue un elemento clave para la definición del proyecto.

ARQUITECTURA. OBRAS - SEDE MAR DEL PLATA

La utilización de materiales del lugar como el ladrillo y la piedra Mar del Plata y la incorporación de mano de obra de artesanos del puerto que aportaron su capacidad y su técnica para los trabajos de madera, de herrería y en soga, permitieron optimizar los recursos provistos por la donación de astilleros de la zona.

La envolvente de ladrillo enrasado, resultado de una búsqueda de solución bioclimática al ambiente marino, que materializa cámaras de aire indispensables en el lugar, garantiza calidad de vida en los ambientes interiores, control en los costos de mantenimiento y una adecuada permanencia de lo construido.

La obra fue donada por el Astillero Federico Contessi y Cia. S.A, en celebración a San Benedetto Martire, patrono de la ciudad de San Benedetto del Tronto, Ascoli, Piceno, Italia.

75
Planta y Vistas

FICHA TÉCNICA

Proyecto y dirección:

Arqs. Carlos O. Mariani, María H. Pérez Maraviglia.

Ubicación:

Alem y Av. Juan José Paso

Superficie del terreno:

6.617 m2.

Superficie construida: 30.314 m2.

Año del proyecto: 1989/91.

Año de inauguración: 1997

HOTELERÍA

Sheraton Mar del Plata Hotel

Mar del Plata

El emprendimiento respondió a una nueva etapa del crecimiento de la ciudad, que a las áreas propias de hotelería de nivel cinco estrellas anexó: Centro de Convenciones, Áreas para entretenimiento, SPA y equipamiento deportivo. El edificio se ubica en una parcela localizada frente al mar, al puerto y al campo de golf.

La propuesta parte de establecer dos sectores de uso diferenciado: por un lado, el hotel en sí mismo con sus propios núcleos de circulación para huéspedes y personal, que incluye 180 habitaciones y 30 suites; por otro, las áreas públicas que se han diferenciado claramente por su volumen e importancia, y han sido provistas de su propio núcleo de circulación vertical que vincula el estacionamiento en subsuelo, el salón de convenciones para 3000 personas, salones para 50 a 200 personas, Auditorium, salones de fiestas y reuniones en los dos últimos pisos y sectores gastronómicos (restaurantes, snack, piano bar y jardines).

Un espacio central o atrio con luz natural cenital, relacionado con el clima distendido de las vacaciones, vincula los dos sectores funcionales convirtiéndose en un ámbito para el encuentro. Los dos planos blancos que determinan el atrio como espacio interior, se proyectan al exterior en ambos extremos intersectando el volumen de habitaciones y salones materializado en ladrillo a la vista.

76 Especial Aniversario CABPA 30 años

Los halls de accesos a las áreas públicas se materializan en un cilindro vidriado que se pone de manifiesto exteriormente en el basamento y en los dos últimos pisos que conforman el remate del edificio.

La forma intenta expresar lo esencial de la idea generadora, haciendo prevalecer lo conceptual, evitando el derroche en recursos y anécdotas.

La arquitectura permite crear atmósferas sensoriales, que se producen por la utilización simultánea de ciertos elementos

como la luz, el agua, el color, las texturas. Estos elementos, tomados para esta obra de la tradición del lugar y de la comunidad, son los realmente capaces de transmitir sentido a la arquitectura.

La obra recibió el Premio Anual Arquitectura, Urbanismo, Investigación y Teoría 1998, otorgado por el Consejo Superior Colegio de Arquitectos de la Provincia de Buenos Aires. Asimismo, el estudio Mariani – Pérez Maraviglia mereció el Primer Premio MNBA-Air France-Garnier a obras construidas.

ARQUITECTURA. OBRAS - SEDE MAR DEL PLATA
77
Planta Tipo 1º piso

FICHA TÉCNICA

Proyecto y Dirección:

Arq. Gustavo Fabbri

Empresa constructora:

Constructora Fabbri S.A.

Ubicación:

Belgrano 3417/Jujuy 1885 Sup. Cubierta obra nueva:

COMERCIO

Pescadería Victoria

Mar del Plata

Nos encontramos con la propuesta de ampliar y remodelar un comercio tradicional de la ciudad de Mar del Plata. Un emprendimiento familiar con más de 20 años de trayectoria comercial, que pretendía la renovación de su local por la calle Belgrano y la necesidad de expansión no sólo espacial sino también comercial en una propiedad adquirida por la calle Jujuy.

La búsqueda se orientaba en ganar metros de superficie en cámaras de frío y renovarlas, lograr mayor lugar de exhibición tanto en productos frescos como congelados, incorporar la elaboración y comercialización de productos de mar (paella, cazuela, tartas, etc.), encontrar mayor comodidad y seguridad en sector de carga y descarga, centralizar oficinas administrativas, facilitar la higiene y controlar olores en todo el local.

En consecuencia, ante estas consignas y en función de la implantación de los terrenos pertenecientes a la familia (uno con acceso por calle Belgrano y el nuevo con acceso por calle Jujuy) se propone como idea inicial la unificación de las parcelas para “ganar” comercialmente las dos calles. Así, el planteo queda definido como un local en “L” con entrada y salida por ambas calles, unidas por un plano de mampostería curvo, que hace de nexo de las dos parcelas, dividiendo el lugar público del privado (sentido transversal), y “cociendo” material y visualmente ambos accesos y sus diferentes actividades (sentido longitudinal).

156.70
Cubierta
275.65
Sup. Cubierta Total: 423.35
Año de Ejecución: 1999 78 Especial Aniversario CABPA 30 años
m2 Sup.
Remodelación:
m2
m2

Además, este plano propone la idea de continuidad y recorrido del local. Es el soporte de los exhibidores de pescado fresco (de río o de mar) y hace de respaldo de la isla de fileteado al público (tradición realizada por sus dueños) desde la que se visualizan y controlan los dos accesos. Por último, este plano comienza su recorrido por calle Jujuy (popa) y termina en forma de quilla de barco por la calle Belgrano (proa).

Algo que siempre condicionó el proyecto fue la idea de mejorar la higiene y así evitar olores. Para ello se diseñaron todos los exhibidores en acero inoxidable, tratando en lo posible de evitar la mayor cantidad de juntas o uniones por soldadura, para que no se junten restos de mercadería y a su vez que fueran de simple lavado. Estos a su vez están conectados a todo un sistema de drenaje embutido y recolección de líquidos que recorre toda la pescadería y terminan en cámaras desgrasadoras con rejillas descamadoras antes de verterlos a la red pública.

Esta idea a su vez se vio reforzada por la colocación de un equipo de extracción y circulación de aire muy poderoso, absorbiendo los olores del salón y del sector de fileteado enviándolos al exterior y renovando el aire en el interior.

Respecto al diseño de todos los elementos interiores y exteriores, el “leiv motiv” es la analogía con elementos del puerto o la pesca. Así resaltan las formas curvas (exhibidores, estantes, piletones, isla de fileteado, mostradores), y los colores primarios (cielorrasos, columnas, conductos de aire). Las fachadas, que representan el estereotipo de un pez, apoyado sobre una bandeja, se juega en este caso con el movimiento o relieve de los distintos planos, integrando el interior con el exterior, utilizando la cartelería como elemento de diseño.

Por último, nos encontramos en planta alta con los vestuarios para el personal, sala de máquinas, depósito de cajones, la oficina administrativa y la cocina de elaboración y preparación de productos que se comercializan en planta baja (paella, cazuela, tartas, etc.)

La obra recibió el Primer premio en la categoría Locales Comerciales, Instancia Distrital del Premio Anual de Arquitectura, Urbanismo, Investigación y Teoría, año 2000.

ARQUITECTURA. OBRAS - SEDE MAR DEL PLATA Planta Baja
79
Planta Alta

FICHA TÉCNICA

Proyecto y dirección:

Arq. Guido Tedesco

Colaboradores:

Arq. María Silvia Luenzo

Sr. Germán Sittner

Equipamiento:

D.I. Adrián Lemme

Iluminación:

Amelia Antonucci

Ubicación:

Café Divina Gula

Mar del Plata

La vivienda preexistente consistía en una modesta casa con galería apoyada sobre su medianera larga, en un lote de esquina orientado al Norte, dejando su semiperímetro libre. Posteriormente la galería semicubierta fue cerrada y se le adicionó un depósito en el ángulo interior de la parcela. Éste es el punto de partida con el que se llevó adelante la refuncionalización de la vivienda en cuestión, con la necesidad de proyectar un café bar y la consigna de buscar una fuerte dualidad entre el día y la noche y, a su vez, en cada una de estas instancias lograr dos climas diferenciados: uno más intimista y el otro más hacia fuera.

La intervención se planteó además, los problemas de falta de intimidad y la sensación de excesiva escala que producen las grandes dimensiones de los locales. A partir de éstas consideraciones se definieron la necesaria formalización de una serie de pequeños ámbitos de dimensión más abarcable, pero relacionadas entre sí.

El proyecto genera cinco zonas fáciles de reconocer:

- El local de acceso, correspondiente con la ampliación, ocupa el retiro original sobre la calle Avellaneda, hasta agotar el FOS permitido, vinculando el patio de acceso con el patio interior y relacionando el local con la acera y con la calle.

COMERCIO
80 Especial Aniversario CABPA 30 años

- El local lateral a la barra, intencionalmente larga y reforzada en su geométrica vocación de abandono de paralelismos con el resto de los muros.

- La zona de servicios que reutiliza los servicios existentes de la vivienda.

- Los patios exteriores: uno netamente público, relaciona la esquina, el acceso y el retiro sobre la calle Jujuy , el otro, interior, resuelve a su vez el acceso de servicio a la cocina, el tránsito a los sanitarios y queda enmascarado por la fachada sobre Avellaneda.

Para la materialización de la obra se procuró recuperar los pisos, las aberturas y los cerramientos de la vivienda original, utilizando materiales austeros para la intervención, generando un espacio también austero donde el color y la luz son la esencia.

Se recurrió a la chapa ondulada en sentido horizontal con las babetas de cierre en chapa galvanizada y ventanas de hormigón con aberturas de hierro para componer la fachada sobre la calle Avellaneda, logrando un carácter expresivo muy fuerte, compatible con la imagen comercial buscada. Se buscó también una cierta evocación a las casillas de la periferia marplatense, contemporáneas con la vivienda de origen.

Fue intención permanente el tratamiento del espacio y el equipamiento que lo conforman, trabajando la caja, el volumen interior, el ambiente, el sitio, los materiales, el color, el diseño del equipamiento y las luminarias, para satisfacer el placer sensorial de la clientela potencial.

La obra recibió Mención en el Premio Anual de Arquitectura, Urbanismo, Investigación y Teoría 2000, en la Instancia Distrital.

ARQUITECTURA. OBRAS - SEDE MAR DEL PLATA
81
Planta Comercial Vistas y Corte

FICHA TÉCNICA

Promotor:

Municipalidad de Gral. PueyrredónSecretaria de Salud

Proyecto:

Arq. Martín Rosales

Arq. Gabriela López

Colaboradores: Arq. Pablo Balado, Arq. Gustavo Lódola, Arq. Adrián Olivero, Arq. Natalia Weigand, Ing. Alberto Arano, Ing. Marcelo Paolini

Empresa Constructora:

SADDEMI S.A – La Plata

Ubicación:

Calle Pehuajó e/ Gaboto y El CanoMar del Plata.

Superficie Cubierta:6500m2

Inicio de Obra: año 2009

Finalización: año 2012

Centro de Especialidades Médicas Ambulatorias

El CEMA, fue implantado en un terreno fiscal (Ex Terminal de Cargas), sobre la Calle Pehuajó entre El Cano y Gaboto, un sector céntrico en la ciudad, de fácil acceso, que permite un futuro crecimiento y a su vez es estratégico con relación a la mayoría de los usuarios del sistema de salud municipal y de los Hospitales Públicos de la ciudad.

Para el estudio arquitectónico de la propuesta se priorizaron las siguientes Palabras Clave: “dinámico, flexible, sustentable, confortable y viable”.

Se adoptó entonces, una tipología de “edificio contenedor” de 6.500m2, dispuestos en tres niveles, Subsuelo, Planta Baja y Primer piso, para alojar todo el programa requerido, (Áreas de Esterilización, Imágenes, Endoscopias, Oncología, Infectología, Odontología, Pediatría, Oftalmología, Cardiología, Consultorios de distintas especialidades Médicas, Farmacia, Laboratorios y sector de Extracción, Docencia e Investigación, Biblioteca, Sector Administrativo, SUM, etc.), al cual se puede acceder mediante escaleras, ascensores y rampas, pretendiendo como premisa fundamental una arquitectura accesible.

CEMA
del
82 Especial Aniversario CABPA 30 años
Mar
Plata SALUD

También se estableció durante el proyecto, que el nuevo edificio debía ser ambientalmente responsable y en este sentido, aparecen el HºAº, el vidrio y el aluminio anodizado, (“materiales verdes”, por su alta capacidad de reciclarse) como los principales componentes de su imagen.

El diseño previó además la modulación de los elementos de la construcción a fin de asegurar el ensamblaje in situ, y una estructura de HºAº, capaz de asimilarse y/o adaptarse a los avances tecnológicos y médicos, la misma se planteó con una modulación de 7,20m x 7,20m, que facilita la subdivisión y la conexión entre las unidades y permite alojar y modificar la gran diversidad de locales que contempla el programa, tanto en el momento actual como a futuro.

La relación Interior - Exterior fue fundamental, un sistema de frente integral y cubierta vidriada en un espacio de doble altura, como así también la incorporación de un gran patio interior en el corazón de la zona pública, son utilizados para capturar la luz y energía térmica del sol, mientras que la incorporación de una doble piel de aluminio en gran parte de su envolvente, se utiliza para proteger los ambientes de los rayos solares, los fuertes vientos y proporcionar mayor seguridad contra actos de vandalismo en las caras más expuestas. Esta piel, permite además, el tendido de algunas de las instalaciones en forma externa (sanitarias, pluviales, gases medicinales, etc.) facilitando el acceso y reduciendo los costos de mantenimiento del edificio.

ARQUITECTURA. OBRAS - SEDE MAR DEL PLATA
83
Planta Nivel Accesos

FICHA TÉCNICA

Proyecto y dirección:

Nelson Quarati – Roberto Jakubowicz

Arquitectos asociados:

C. Mariani – M. Pérez Maraviglia

Colaboradores:

Arq. Guillermo de Paz

Arq. Miguel Rótolo

Asesor estructural: Ing. Felipe Otárola

Asesor iluminación: Ernesto Diz

Ubicación:

Balcarce esq. Salta, Mar del Plata

Superficie cubierta:

6.600 m2

Año: 1994

ADMINSTRACIÓN

Edificio O.A.M.

Mar del Plata

La Obra Asistencial Mutual para Agentes Municipales necesitaba un edificio que diera respuesta a un programa de diferentes funciones para el desarrollo de actividades sociales, de servicios, educacionales, de salud y deportivas, actividades que la entidad sostiene hoy en diversos edificios aislados.

Para lograr este objetivo el edificio proyectado para la nueva sede fue lo suficientemente flexible para dar cabida a estas funciones, a la vez que propuso una imagen totalizadora que permitió identificar a la institución dentro de la comunidad.

Las funciones con usos más solicitados se ubicaron en las plantas de acceso directo: área educativa por un lado y por el otro el área operativa y de servicios; en el subsuelo se ubicaron las cocheras, depósitos y salas de máquinas.

El jardín de infantes y jardín maternal, tuvieron su acceso bien diferenciado sobre la calle Balcarce mediante una rampa de suave pendiente que concluía en la cabecera administrativa actuando como pivot entre ambas áreas. En los lados de mayor longitud se dispusieron las aulas logrando excelente nivel de iluminación. Tanto el jardín de infantes como el maternal fueron pensados cada uno con su propio sector de usos múltiples dimensionado y acondicionado para dar respuestas a las diferentes actividades cotidianas:

“Obra Asistencial Mutual Municipales”
84 Especial Aniversario CABPA 30 años

recreación, comedor, etc. y para las ocasionales (actos, fiestas). Los espacios libres exteriores se trataron como patios de juegos, huertas y jardines en desnivel recreando un paisaje propio.

Los sectores operativos y de servicios se ubicaron en el nivel +1,40m, de mayor movimiento, con acceso desde la esquina, encontrándose la atención a los asociados en relación al sector de servicio administrativo y los locales comerciales de accesibilidad interior juntamente con el bar. En el hall de entrada, los sistemas de vinculación vertical, escalera y ascensores, que junto con los servicios sanitarios generan en todos los niveles los accesos a las diferentes actividades.

El sector administrativo y cultural con aulas y biblioteca se ubicaron en el primer piso cuyo hall funcionó como espacio para exposiciones.

En las plantas superiores se pensaron las actividades de esparcimiento. En el nivel +8,00m, el gimnasio no sólo como escenario de actividades deportivas sino con capacidad para albergar acontecimientos culturales; en el nivel +11m pasarela para el público y vestuarios y en el nivel

+16m dos salones para reuniones sociales con posibilidad de unificarse con expansiones en la terraza.

El edificio fue concebido con un criterio de totalidad para que funcionara simultáneamente con distintas actividades, habiéndose proyectado plantas de perímetros libres que garantizan la eficaz iluminación de los locales. Asimismo el planteo permite mantener un alto nivel de flexibilidad para los posibles ajustes de las funciones en el tiempo. Se proyectaron dos núcleos de circulación vertical; uno para el público en el sector de acceso y otro de uso interno, criterio que permite discriminar claramente los usos públicos y privados.

Se previó un crecimiento que mantendría vigente el edificio para la institución durante un prolongado período. Los materiales utilizados garantizan un adecuado nivel de costos de inversión y mantenimiento.

Actualmente en el edificio ya no funciona la sede administrativa de O.A.M. sino que desde hace algunos años fue adoptado por el P.A.M.I., Instituto Nacional de Servicios Sociales para Jubilados y Pensionados.

ARQUITECTURA. OBRAS - SEDE MAR DEL PLATA
85
Plantas, Corte y Vistas

FICHA TÉCNICA

Autores:

Arqs. Carlos O. Mariani

María Haydee Pérez Maraviglia

Colaboradores:

Arqs. F. Mendizábal y G. Moser

Asesores:

Marine Entertainment Consultant Inc., Miami, Florida, EE.UU. - Estructura: Ings. Felipe Otaola, Enrique Petersen, Luis Rateriy - Estudio de suelos: Ing. Adrián Pol - Paisajismo: Ings. Agrs. Gonzalo Belloq, Carlos Thays - Sistemas de infraestructura: INGAM SA.

Empresa constructora:

Nicolás Dazeo SACIFI

Ubicación:

Faro Punta Mogotes - Mar del Plata

Superficie del terreno: 96.700 m2

Año proyecto: 1990/1991

Finalización de obra: 1993

RECREACIÓN

Mar del Plata Aquarium

Mar del Plata

Sobre una superficie de arena y rocas de fuerte pendiente, entre el Faro Punta Mogotes y el mar, los arquitectos imaginaron un paisaje según la costa pampeana. Dada la necesidad de integración con el mar de las actividades del Oceanario, el parque marino se desarrolla en una parcela que constituye un verdadero escenario natural dentro del litoral marítimo marplatense. Esto permite la ubicación de las especies en su hábitat, convirtiendo el paisaje en parte esencial del atractivo.

El concepto de paisaje no es aquí el de panorama para contemplar, que actúa como fondo de las obras del hombre. En un contrapunto natural-artificial, el paisaje y la arquitectura son uno, lo natural se construye culturalmente y lo artificial se genera naturalmente del suelo, la vegetación, el clima y la fauna. Los médanos, fijados con la vegetación característica de la costa actúan como vínculo de la arquitectura propuesta basada en edificios de ladrillo visto que se incorporan al medio natural generando un diálogo que permite revalorizar un significativo paisaje que ha sido sistemáticamente degradado en la costa marplatense.

86 Especial Aniversario CABPA 30 años

El recorrido está pautado por nodos de encuentro materializados en plazas, que ofician como nexos entre las distintas actividades propuestas. Una calle integradora de servicios permite la eficaz atención de todos los sectores.

La arquitectura es todo el espacio que puede abarcar la mirada; empieza en el horizonte, sigue en el cielo que techa los estadios, da vuelta con el cuerpo que se mueve entre las dunas, que ofician tanto de elementos de arquitectura cuanto de pantallas de ladrillo o cúpula de vidrio.

Para fundar sólidamente hubo que retirar y luego reconstruir médanos, asentarlos y luego replantar especies autóctonas, orientarlos y disponerlos parando lo vientos y abriendo visuales. De esto nacen las trazas de los senderos, los huecos de las lagunas, la ubicación de anfiteatros y tanques de gran profundidad. El resultado son formas onduladas, naturales, emplazamientos lógicos como si los edificios siempre hubieran estado allí.

En el Acuario el océano es el protagonista derivado de la lógica: frente-mar, fondo-servicios. El programa es amplísimo: estacionamiento, plaza de entrada, Teatro del Mar, laguna pampeana, estanques con diversas especies, acuario de tiburones, rambla, mirador, patio de comidas y shopping, hábitat y estadio de lobos marinos y delfines, pingüineras, laguna de esquí acuático y patio de juegos de aventura. Zonificada junto a los servicios de apoyo se desarrolla la actividad formativa y de investigación, con biólogos y otros especialistas; se recuperan animales heridos que luego se devuelven al mar, y se atienden contingentes de escolares.

Los arquitectos logran un justo equilibrio entre arquitectura y el espíritu de show. Aciertan con una arquitectura contenida que no llega a ser pesada ni solemne y con una escala bien ajustada. En la antinomia ciudad-campo, donde lo urbano es lo artificial y lo no urbano es lo natural, esta obra se ubicaría para el lado natural.

ARQUITECTURA. OBRAS - SEDE MAR DEL PLATA
87
Imágenes de los diferentes sectores

FICHA TÉCNICA

Proyecto y dirección:

Arqs. Susana Mastaglio y Rubén Zoppi

Colaborador:

Arq. Gonzalo Morandi

Ubicación:

Boulevard Marítimo Peralta Ramos esq. L. Alem. MdP

Destino original:

Vivienda unifamiliar

Destino actual:

Bar-Restaurante Piazza Caffè

Superficie terreno: 1476, 44 m2.

Superficie cubierta: 695,79 m2.

Año de construcción original:

1929

Año de reciclaje y ampliación: 1999

PATRIMONIO

Piazza Café

Antigua residencia patrimonial de la Familia Ezcurra Mar del Plata

Sobre el paseo costero de Mar del Plata, en el sector de la Bahía Varese entre el Torreón del Monje y Cabo Corrientes, justo en el encuentro de la calle Alem y el Boulevard Marítimo, se levanta la antigua residencia de la Flia. Ezcurra, “Villa Varese” proyectada en el año 1929 por los arquitectos Acevedo, Becú y Moreno, y construida por Arturo Lemmi y Hnos., declarada como edificio de Interés Patrimonial por la Municipalidad de Gral. Pueyrredón Ord. 10075

Con el correr de los años la villa fue “sufriendo” varias remodelaciones y cambios de uso hasta el momento en que la firma Piazza Caffè encomendó el desarrollo de un proyecto de remodelación y ampliación para el desarrollo de un Bar-Restaurante. El proyecto general contempla dos instancias de intervención: una la conjunción de la volumetría existente con la necesidad de una ampliación y otra la remodelación de la “Villa” y su puesta en valor.

El desnivel natural del terreno (más de 6.00 mts. en los extremos) y la ubicación de la residencia en su parte superior, fueron los puntos de partida para la concepción de la idea base: enmarcar el bien a preservar (“Villa Varese”), lo cual se materializa a través de una composición que consta básicamente de dos partes, una horizontal, el “basamento” y otra vertical, la “placa”.

El basamento está constituido esencialmente por una terraza mirador, balcón urbano sobre el sector costero, incluida en un 70% en el talud verde, que emerge hacia la esquina de Alem, formando un pórtico, dando lugar a un local comercial (ampliación propuesta). La terraza de 4.30 mts. de ancho por 43 de largo, propone disfrutar de las mejores vistas de la bahía.

88 Especial Aniversario CABPA 30 años

La horizontalidad de este plano es reforzada por un hilo de agua, fuente, que se desliza por todo el frente de la terraza hasta culminar en un espejo de agua, donde ésta queda flotando. La placa, por su parte, toma el eje del espacio urbano que enfrenta sobre el boulevard, formado por el ensanche de la vereda de la avenida costera, estableciendo un singular diálogo entre este espacio y el retiro producido en la esquina, a la vez que limita tanto por su posición como por su altura a la residencia, conformando así un marco contemporáneo a la construcción de principios de siglo.

El juego que establece el plano horizontal de la terraza reforzado por el hilo de agua y el plano vertical destinado en su parte superior a alojar el nombre de la firma, enmarcan y destacan la presencia de la villa, otorgándole una nueva impronta al sitio.

En cuanto a la intervención propiamente dicha sobre la residencia, la misma se centra en mantener y revalorizar en su máxima expresión los elementos persistentes de la construcción original, adecuándola a los nuevos usos de la manera menos agresiva, pero a su vez significativa.

Se revalorizó la utilización de los dos accesos que la villa poseía, uno a nivel, por la calle Alem, donde se propone el ingreso a través de un patio de acceso vehicular (court d’honor), y otro por el boulevard, esencialmente peatonal y con una diferencia de nivel de más de 4.50 mts. salvada por una escalera de hormigón martelinado que se desplaza paralelamente a la terraza y atraviesa ésta para llegar al acceso propiamente dicho, el antiguo “porche” de la residencia, transformado hoy en recepción.

Con el objeto de articular los espacios existentes en planta baja y planta alta, se perforó la losa para vincular “controladamente” los dos niveles a través de una doble altura marcando así el sentido de circulación y centrando la intervención interior en este nuevo espacio vertical. Para ello se eligió contraponer los nuevos planos concebidos como elementos separados de los muros existentes, de claro lenguaje moderno, blancos, al tratamiento más conservador que se imprimió a los salones principales, que mantienen sus características espaciales, más cálidas e intimistas, sumado a la horizontalidad de sus proporciones.

Se puso especial énfasis en la restauración de la escalera principal construida en madera de roble, como así también en el recupero de los pisos originales de madera de roble y pinotea, la estructura del techo de pino Oregón, escondido dentro de los cielorrasos de yeso, se dejó ahora a la vista, las carpinterías de hierro existentes se sustituyeron por aluminio anodizado adecuándose al cambio de uso, pero manteniendo las dimensiones de los vanos.

En síntesis, el desarrollo de la propuesta se basa en la articulación entre lo antiguo y lo nuevo, proponiendo que cada una de las partes conserve las características que le son propias a la vez que dialoguen tiempos distintos de intervención.

La obra recibió el Primer Premio en la categoría Reciclado en Obras No Residenciales, en el certamen Premio Bienal de Arquitectura, Urbanismo, Investigación y Teoría 2003, organizado por el CAPBA.

ARQUITECTURA. OBRAS - SEDE MAR DEL PLATA Planta Baja Vista frente Planta Alta
89
Vista lateral

FICHA TÉCNICA

Denominación Original y Actual: Asilo Unzué

Instituto Nacional Saturnino E. Unzué.

Autor: Luis Faure Dujarric / Constructor: Mauricio Cremonte.

Año: 1908 -1910. Inauguración oficial: 1912.

Ubicación: 2 manzanas e/ calles Jujuy, Santa Cruz, 20 de Septiembre y Chacabuco.

Propietario Actual: Secretaría Nacional de Niñez, Adolescencia y Familia. Ministerio de Desarrollo Social.

Declaratorias: Monumento Histórico Nacional Decreto N° 437/97, Monumento Histórico Provincial Ley 11242/92, y de interés patrimonial por Ordenanza Nº 10075/95 del Concejo Deliberante de General Pueyrredon.

Intervinientes en el proceso de gestión e intervención patrimonial: intersectorial para convenios entre la Dirección Nacional de Arquitectura, la Comisión Nacional de Museos, Monumentos y Lugares Históricos, el Ministerio de Planificación Federal, Inversión Pública y Servicios y la Facultad de Arquitectura, Urbanismo y Diseño de la Universidad Nacional de Mar del Plata, a través de su Maestría en Gestión e Intervención en el Patrimonio Arquitectónico y Urbano y el Grupo Patrimonio del Centro de Estudios Históricos y Urbanos.

PATRIMONIO

Instituto Saturnino Unzué

Mar del Plata

El patrimonio cultural de la ciudad está constituido por el conjunto de las creaciones realizadas por nuestro pueblo a lo largo de su historia, obras que nos distinguen de los demás pueblos y nos dan nuestro sentido de identidad. Al conjunto (pabellones, oratorio y parque) del Instituto Saturnino E. Unzué declarado Monumento Histórico Nacional, se le han reconocido a lo largo del tiempo (106 años de vida) no sólo su función social, base fundamental de su existencia, sino también la calidad de su proyecto y construcción, el uso de sistemas constructivos tradicionales, el empleo de materiales nobles, y ser representativo de un estilo arquitectónico singular en la ciudad.

El eclecticismo modernista se desarrolló en nuestro país a inicios del siglo XX. Asimilado por sectores cultos abarca innumerables obras, cuyo lenguaje delata la procedencia, formación y/o adscripción del autor. En la Argentina, en general esta corriente encontró entusiastas partidarios y en Mar del Plata en particular motivó la concepción de una obra que por sus características particulares, sobresalió (y aún hoy lo hace) del común denominador de la época.

Louis Faure Dujarric, arquitecto francés que proyectó y dirigió el edificio del Instituto entre 1908 y 1910 debe buena parte de su inspiración a los lineamientos de la Secesión. En tal sentido, proyecta un edificio de características singulares, no sólo por el emplazamiento, tamaño y uso, sino fundamentalmente por sus particularidades formales. Construido frente al mar en dos manzanas donadas por las hermanas Unzué y alejado del núcleo central de la ciudad, el edificio se desarrolla sobre dos ejes compositivos evidentes, una propuesta formal definida con el Oratorio, como elemento distintivo ubicado en el centro de la composición. Bajo estas premisas, el

90 Especial Aniversario CABPA 30 años

valor simbólico del emplazamiento prevalece, continúa siendo dominante y permanece como un hito de referencia en el paisaje urbano costero de la ciudad.

El conjunto está instalado en la memoria colectiva de la comunidad, en tanto exponente del patrimonio arquitectónico de la ciudad, pues constituye una representación objetiva y simbólica del nacimiento de la “modernidad” en Mar del Plata.

GESTIONES

La adecuación a los temas de accesibilidad, higiene y seguridad para el uso comunitario en general, y la magnitud y estado del conjunto edilicio generaron una serie de acuerdos con varias instituciones comprometidas en la restauración, puesta en valor y refuncionalización del bien. La comunidad, especialmente la Cooperadora de la institución, se han acercado a la Facultad de Arquitectura, Urbanismo y Diseño, pidiendo apoyo para la gestión de la recuperación del monumento y su uso comunitario, lo que luego generó un impulso importante en la gestión por parte del Grupo Patrimonio de la FAUD-UNMdP.

Desde 1992 y hasta la fecha, el proceso de gestión e intervención llevado adelante mediante los convenios bilaterales posibilitaron la realización de propuestas parciales y del proyecto integral de restauración y refuncionalización del edificio. Las tareas encomendadas a la Facultad de Arquitectura se relacionaron con la puesta en valor y restauración, y fueron plasmadas en convenios interinstitucionales según cambios en función proyectados para el edificio:

− 1º Convenio 1993 – 1995 para la puesta en valor del Oratorio de la Inmaculada Concepción.

− 2º Etapa 1997 – 1998 reconocimiento y diagnóstico.

− 3º Convenio 2005 – 2006 propuesta recuperación integral del Conjunto.

− 4º Convenio 2006 – 2012 restauración pabellones calle Río Negro, plantas bajas y altas y anexos, ejecutadas en su totalidad.

− 5º Convenio 2012 –en continuidad, refuncionalización de sectores dormitorios y sanitarios.

EL PROYECTO DE RESTAURACIÓN

Las investigaciones desarrolladas permitieron el reconocimiento preciso del edificio, las variables de estudio tanto en lo artístico –arquitectónico, como en lo tecnológico y ambiental permitieron la toma de decisiones en el proyecto de restauración. Los más de cien años de vida del edificio, con insuficiente mantenimiento, un emplazamiento tan expuesto al severo clima marino y la complejidad tecnológica de la obra (fundamentalmente en la torre del oratorio), han sido factores cuya combinación produjeron lesiones que, de no haber sido intervenidas hubieran provocado daños irreversibles. Las premisas consideradas fueron basadas en el respeto a los valores estéticos e históricos del monumento, tendiendo a consolidar su estabilidad y recuperar su calidad espacial, aportando a la imagen general del conjunto, a la identidad del mismo, a su originalidad y autenticidad.

Hoy es posible gracias a las acciones de restauración que se están realizando, que el conjunto se ponga nuevamente en función, cobijando en sus amplios espacios a niños y adultos mayores en sus momentos de recreación y actividades culturales. Hoy desde la FAUD y el Grupo Patrimonio se trabaja arduamente en el intento de recuperar valores basándonos en la investigación histórica, evolución social, marcos teóricos, metodologías de intervención y transformaciones materiales que hemos profundizado con estas investigaciones.

ARQUITECTURA. OBRAS - SEDE MAR DEL PLATA
91
Imágenes de los espacios restaurados.

FICHA TÉCNICA

Proyectista:

Arq. Alejandro Bustillo - Año: 1938-1949

Declaratoria: Conjunto Histórico Nacional - Decreto 349 P.E.N 1999 / Interés Patrimonial Ord. Mpal. 10075/95

Equipo de Trabajo Restauración

Coordinación: Arqs. Alejandro Novacovsky, Felicidad París Benito

Arquitectos: Cristian Andreoli, Silvia Roma, Alejandra Domínguez, María de las Nieves Rizzo, Melecia Granero, Romina Fiorentino, Bruno Bianco, Eduardo D’Amico, Néstor Machado, Viviana Mastrogiácomo, Fabián Pignatelli, Pablo Huberman, Cristina Fernández. Ingenieros: Ismael Nifuri, Luis Pietra. Alumnos: Julio Guerrero, María José de la Fuente, Valeria Burkhard. Unidad Ejecutante: Maestría en Gestión e Intervención en el Patrimonio Arquitectónico y Urbano. Grupo de Extensión: Preservación del Patrimonio, Identidad Regional y Cultural.

Ubicación:

Bv. Marítimo P. Peralta Ramos entre Rivadavia y Las Heras - Mar del Plata

Ejecución: 2005-2009

PATRIMONIO

Complejo Casino-Hotel Provincial

Consolidación y puesta en valor de las fachadas y cubiertas

Mar del Plata

Previo a la realización de Cumbre de Presidentes en Mar del Plata, año 2005, se realizó una gran movilidad de parte del gobierno nacional y provincial en busca de escenarios acorde para el evento internacional. La Bahía Bristol y sus edificios fueron elegidos como sede de las actividades. La inquietud de las autoridades comenzó al visualizar, el estado de deterioro del sector y especialmente de sus edificios más emblemáticos. Años sin mantenimiento e intervenciones parciales desacertadas se habían sumado creando un estado general de degradación, que afectaba gravemente a más de un subsistema constructivo. La imagen general el conjunto se hallaba altamente degradada, por superposición de cartelería, cableados, graffiti en los muros de piedra y en las esculturas, falta de iluminación, invasión vehicular en la plazoleta seca, tugurización de espacios en las recovas, entre otros inconvenientes.

Esto dio lugar a dos convenios:

− 1º Convenio de Asesoramiento y Asistencia Técnica, para el Relevamiento y Diagnóstico de Fachadas Edificios Hotel Provincial y Casino – Mar del PlataBuenos Aires - 2004/05, entre la Secretaría de Turismo de la Provincia de Buenos Aires y la Facultad de Arquitectura, Urbanismo y Diseño, UNMdP; y

92 Especial Aniversario CABPA 30 años

− 2° Convenio de Asesoramiento y Asistencia Técnica, entre el Ministerio de Infraestructura de la Provincia de Buenos Aires y la Facultad de Arquitectura Urbanismo y Diseño de la UNMdP, para el Proyecto: puesta en valor y consolidación de fachadas y espacios perimetrales edificios Casino y Hotel Provincial de Mar del Plata.

Dada la magnitud de la obra y la evaluación de riesgos y urgencias se organizaron las tareas y los proyectos en tres etapas, cada una con su respectivo llamado a licitación y pliego. La 1º Etapa de Proyecto respondió a la urgencia, por dos aspectos de diferentes prioridades, por un lado el riesgo de desprendimiento de materiales de las cornisas y mansardas, y por el otro el encuentro que se realizaría en Mar del Plata en octubre del 2005 relacionado con la Cumbre de los Presidentes. Esta etapa, finalizada en septiembre de ese año, comprendió la puesta en valor y consolidación de las fachadas del edificio del Hotel, sus recovas y espacios perimetrales. Se realizaron tareas de limpieza, eliminación de agregados, consolidación del revestimiento de piedra, hidrofugación de fachadas, tratamiento integral de la carpintería metálica y de madera, cuyo objetivo principal fue el resguardo de los peatones, la protección al edificio y la recuperación para el uso de los espacios adyacentes.

Se recuperaron las recovas, incluyendo tareas en la carpintería de bronce, en el revestimiento de mármol, en las columnas, en las escalinatas, en las farolas originales del Boulevard,

la marquesina y la puesta en función de la totalidad de los desagües y eliminación de agregados. Además se realizaron tareas de restauración en las esculturas de los Lobos Marinos de Fioravanti, a cargo de especialistas y se completaron los faltantes en farolas y pisos de la plazoleta Alte. Brown, que articula el conjunto monumental.

La 2º Etapa, implicó responder a la necesidad de la recuperación integral de las fachadas sobre el Boulevard, Plazoleta Alte. Brown, sobre la Rambla y sobre Pileta Cubierta. Se trabajó en la consolidación de la totalidad de los sistemas componentes de las fachadas del edificio, en sus diferentes tramos y niveles de estudio, incluyendo la solución de los problemas de mayor gravedad de las cubiertas de pizarras, zinguería, las dieciséis chimeneas ornamentales, desagües, terrazas y monumento de la plazoleta Alte. Brown.

La 3º Etapa implica la recuperación integral de las fachadas del edificio del Casino. Incluye el tratamiento de las mansardas, zinguería, chimeneas, la recuperación de la marquesina similar a la original, de las farolas, entre otras tareas. En cuanto a los espacios libres en esta etapa se incluye la recuperación de las recovas, la iluminación en los cielorrasos de estas, de las explanadas, pisos y escalinatas de piedra, muretes de borde, ornatos de piedra y la provisión de bolardos de contención para evitar la circulación de vehículos en los espacios públicos.

93
ARQUITECTURA. OBRAS - SEDE MAR DEL PLATA

FICHA TÉCNICA

Proyecto y dirección:

Arq. Juan Manuel Rodríguez Llanos

Ubicación:

Calle 36 e/43 y 45, Barrio Las Retamas Balcarce

Equipo:

Juan Manuel Rodríguez Llanos

Leonardo Sabalza

Año: 2011

Superficie: 110 m2

RESIDENCIAL

Casa Cacho

Vivienda-Estudio con vistas a la sierra Balcarce

Para la realización de la vivienda Casa Cacho, situada en la ciudad de Balcarce, se tuvieron dos objetivos principales. El primero, enmarcar la Sierra “La Barrosa”, que por su proximidad al lote, es la gran protagonista del lugar. El segundo, ocupar los 16 metros lineales del predio, para que el mínimo programa requerido, 80 m2 cubiertos interiores, no condicionara negativamente la imagen de la vivienda a la hora de su implantación.

Para ello, se proyectó una cubierta en forma de “V” despegada de la caja muraria para así tener una mayor perspectiva del interior hacia las vistas. Los muros, espontáneamente se fueron dibujando, bajaron, subieron, se inclinaron, de acuerdo a la necesidad de privacidad, sol, paisaje…, llegando a su punto límite en la esquina del estar–comedor, donde cubierta y muros, nos brindan la gran apertura hacia el objeto a mirar.

Para el segundo objetivo se tomó la decisión de que esta forma de cubierta con imagen definida tomase todo el ancho del lote, posándose en ambas medianeras, dando protección y sombras donde fuese necesario.

De formas puras, con líneas que la recorren, blanca en su totalidad, juega a los opuestos, en blanco y negro, con la antigua sierra de granito gris intenso.

94 Especial Aniversario CABPA 30 años
ARQUITECTURA. OBRAS - DELEGACIÓN BALCARCE
Planta Baja
95
Corte

FICHA TÉCNICA

Proyecto y Dirección:

Arq. Eduardo A. Manzaneda

Arq. Jorge Roberto Trivigno

Ubicación:

Calles Dardo Rocha esq. Mitre - Balcarce

Sup. Terreno: 2.540,00 m2

Sup. Cubierta: 4.984,00 m2

Año de Proyecto:

1981 - Inauguración

1ª Etapa año 1986 - Inauguración

2ª Etapa año 1998

Comitente:

Comisión Municipal Pro-Museo Juan M. Fangio

Análisis de Suelos: Ing. Adrián Pol. Estructuras: Ing. Rodolfo Bramante, Ing. Omar Montoni. Estéreo Estructura: Beta Ingeniería. Acústica: Ing. Roberto Salvioli. Luminotecnia: Philips Argentina; Instalaciones: Pirelli Argentina. Aluminio: Aluar Argentina. Museografía: Arq. Hans Mertz, Ing. Max Von Pein. Museóloga: Ursula Wehinger - Daimler Benz AG. Comunicación Visual: Lic. Sasha Lobbe - Daimler Benz AG. Construcción: Raúl Echarte Constructora.

Comisión Pro - Museo Municipal de Balcarce. Colaboradores Ad Honorem: Juan Papadopulos, Carlos Barboni MMO, Marisa B. del Campo. Colaboradores: Graciela Binetti, Guillermo Blanco, Antonio Mandiola, Arqs. Daniel Garavano, Patricia Paget, Viviana Thompsen.

CULTURAL

Centro Tecnológico Cultural y Museo Del Automovilismo Juan M. Fangio Balcarce

Partiendo del análisis del predio y la implantación en él del edificio original de 1906, de corte académico, se estudiaron sus múltiples ampliaciones, otras tantas mutilaciones y su estado de conservación. También debieron atenderse una serie de requerimientos por parte de la Comisión Municipal Pro-Museo del Automovilismo Juan M. Fangio (el Comitente), entre ellas:

• La toma de decisión respecto de la conservación -o no– del edificio original

• La posibilidad de recuperar dentro del predio, el ámbito del Concejo Deliberante de Balcarce para cuando volviese la Democracia (ya que hasta la intervención militar funcionaba en el lugar)

• La resolución del Programa de necesidades de un Museo dedicado a un deportista del Automovilismo camino a convertirse en un ícono histórico del Ser Nacional

• La ponderación del futuro crecimiento del museo para albergar un acervo creciente

La primera decisión fuerte fue mantener únicamente la fachada en ‘L’ del edificio de 1906, en precario estado de conservación. Difícil y controvertida decisión en ese momento. A partir de ella comenzaron a tomar forma cuatro cuestiones que definirían globalmente el proyecto, adoptando un esquema de partido basado en éstas premisas:

96 Especial Aniversario CABPA 30 años

El Concepto: la idea fue concebir un Complejo Cultural emparentado conceptualmente a los Parques Temáticos (había en los años ‘80 muy pocos casos a nivel internacional), que fuera diferente a los museos tradicionales y su sucesión de salas de exposición. La búsqueda se basó en lograr un espacio que fuera abierto espacialmente y a la vez que todas las áreas surgentes del programa de necesidades -incluyendo un potente y significativo hall central- resultaran interconectadas entre sí y flexibles funcionalmente.

Los Accesos: se respetó como acceso principal al Complejo el mismo acceso del edificio original. Se crearon accesos diferenciados para el futuro Concejo Deliberante y sus distintas áreas. Se diseñaron accesos y vinculaciones funcionales de las demás áreas del Complejo (administración, acceso de vehículos, boutique, cafetería, sanitarios, depósitos, etc.)

La Rampa helicoidal: surgió con la decisión de exponer el acervo en “bandejas de exposición“ semivoladas a diferentes niveles. La idea de vincularlas por medio de una rampa de hormigón armado ascendente helicoidal permitió el uso como vinculación peatonal entre bandejas de exposición para los visitantes al Complejo, tanto como para subir y bajar los vehículos de exposición. También aquí surgió el esquema estructural que utiliza las columnas de soporte de las bandejas como costillas de sujeción de los muros de la ‘L’ del edificio original. Espacio Central: se partió de la decisión de que el medio de elevación y recorrido fuese la rampa helicoidal, así se definió un espacio central amplio, potente, con carácter monumental acorde con la escala de la obra. Este espacio resultó el contenedor de las actividades extra-museográficas del Complejo.

En definitiva, puede decirse que el diseño del edificio comparte dos épocas, resolviendo la vinculación entre los muros en ‘L’ originales y el espacio construido nuevo a través de una piel de vidrio que separa las épocas y une las construcciones neutralmente. Los visitantes se emocionan al acceder por el edificio de 1906 y terminar en una arquitectura moderna, amable y singular. Versátil y sobre todo flexible. En éste Complejo se encuentra el “Espíritu de un Campeón”, se lo descubre y sobre todo, se lo enaltece. La emoción del usuario se encuentra permanentemente en ejercicio. Los turistas, estudiantes, patrocinantes, la Fundación Fangio que administra el lugar, los vecinos de la Ciudad e Instituciones de toda índole del país y del extranjero son permanentemente usuarias del Complejo. En él se realizan exposiciones transitorias, presentaciones de vehículos y productos, desfiles de modas, conferencias, congresos, cenas de gala, etc.; todos usos posibles sustentados por la flexibilidad de diseño.

ARQUITECTURA. OBRAS - DELEGACIÓN BALCARCE
Corte
97
Planta

FICHA TÉCNICA

Proyecto y Dirección:

Arq. Osvaldo Cobos

Ubicación:

Av. Costanera e/ Rosas y Ramos Mejía

Localidad:

Mar de Ajó

Terreno:

1930 m2

Superficie cubierta:

1700 m2

Superficie semicubierta:

300 m2

RESIDENCIAL

Sabina del Mar Sitio Turistico

La Costa

El desarrollo de este proyecto se fundó en la obtención del mejor resultado posible para un conjunto turístico de mediana escala, manteniendo como eje principal, el concepto de sitio turístico / apart-hotel. Esto implica ofrecer un servicio diferenciado que resulte de la combinación de un departamento (sitio privado con el confort suficiente para desarrollar en forma autónoma todas las actividades esenciales diarias de un núcleo familiar) y la atención de servicio y utilización de espacios semipúblicos que brinda un hotel. Un factor determinante para tomar partido, fue la ubicación del terreno, con frente a Avenida Costanera y fondo a calle paralela J. Newbery, lo que permitió proveer de un acceso general de público y servicio desde la calle J. Newbery y un acceso exclusivo desde y hacia la playa desde la Av. Costanera para los usuarios, poniéndolos así en contacto permanente con el principal atractivo turístico.

La disposición en semicírculo se adoptó con la doble intención de generar un espacio amplio común de recreación, que abierto a una generosa zona de estar, desayunador, lobby y usos múltiples, termina constituyéndose en

98 Especial Aniversario CABPA 30 años

protagonista principal de las actividades del conjunto; y también procurar el mayor aventanamiento con vistas al mar, al multiplicar la superficie ofrecida hacia este.

Otro recurso utilizado para obtener una óptima relación público-privado, fue la distribución en escala secuencial de los departamentos que concurren al espacio común, pero en pequeños grupos, desde circulaciones horizontales y verticales separadas.

La determinación de no interferir las actividades propias del ocio, descanso y esparcimiento con el estacionamiento vehicular que se resolvió en un terreno contiguo, permitió minimizar este uso a lo indispensable para el servicio o emergencia.

En lo que refiere al diseño, se adoptó una articulación volumétrica, que repite una secuencia de estructura y color, que ritma el desarrollo envolvente del espacio central.

Asimismo las torres de remate de escaleras, otorgan una impronta que identifica a la obra, y la cubierta cumple el rol de unificar al conjunto.

99
ARQUITECTURA. OBRAS - DELEGACIÓN LA COSTA Planta Conjunto

FICHA TÉCNICA

Proyecto y Dirección:

Arq. Nelson Feijoo

Ubicación:

Calle 19 e/ Calle 1 y Costanera

Localidad:

San Clemente del Tuyú

Superficie: 953 m2

Paseo Portal del Sol Centro Comercial La

Costa

El lugar en donde se realizó la obra fue el edificio de uno de los primeros cines de la localidad. Al momento del encargo del actual proyecto, ya había sido modificado y en él funcionaba un estacionamiento.

La superficie existente era de 750 m2, quedando con las modificaciones y ampliación con un total de 953m2.

La intención del comitente fue la de generar un espacio comercial diferente que no existía hasta ese momento en la ciudad. Este marco ayudó a la propuesta, ya que dejaba en un segundo plano la fase especuladora tan propia de estos lugares de turismo (como lo es construir la mayor cantidad de locales posibles dejando de lado la categoría) y propiciaba, en cambio, la calidad y diversidad de situaciones espaciales, conseguidos en esta idea.

COMERCIAL
100 Especial Aniversario CABPA 30 años

El proyecto se puede contar fácilmente describiéndolo como una sumatoria e integración de distintos espacios. Entre ellos:

− un claro ingreso a un ambiente amplio que cumple las funciones de hall recibidor;

− una circulación a modo de pasaje comercial en el que se encuentran distintos locales con frentes que evocan fachadas urbanas. Los frentes fueron estructurados con un ángulo tal que permitiesen desde el acceso observar la totalidad de los locales, dando una interesante perspectiva que nos conduce a otro espacio que vincula y unifica, tomando las características del patio;

− el espacio vinculante patio-plaza que integra y amplía las visuales generando con sus dimensiones la sensación buscada;

− un lugar de encuentro que nos relaciona y alimenta, planteado en dos niveles, que permite observar la totalidad y participar de la integración que la idea nos plantea.

ARQUITECTURA. OBRAS - DELEGACIÓN LA COSTA Planta Baja Vistas Planta Alta
101
Planta Cielorrasos

FICHA TÉCNICA

Proyecto y Dirección:

Arq. Enrique Malbrán

Ubicación:

Calle 9 de Julio 1401 esq. Diag. Fortunato de la Plaza

Categoría: local comercial minorista

Superficie terreno: 110 m2

Sup. Cubierta: 192 m2

Sup. Semicubierta: 190 m2

Sup. Total: 382 m2

Ejecución: octubre a diciembre 2002

COMERCIAL

VAN DYKE Bar -Restó

Miramar

Este local gastronómico está emplazado en un sector de una parcela mayor, de uso predominantemente comercial. Se encuentra sobre el vértice sur de la manzana 111, que delimitada por las calles 9 de Julio, 30 y Diagonal Fortunato de la Plaza, conforma un valioso triángulo urbano de la ciudad de Miramar que a lo largo de los años, por su proximidad a la Plaza Cívica Malvinas Argentinas y la Municipalidad local, ha sido escenario de las más variadas manifestaciones populares.

El sector intervenido se asemeja sintéticamente a un triángulo formado por 2 líneas municipales con vereda y un tercer lado interno al resto de la parcela. En este predio, se construyó en 1924 el “Grand Hotel”, de un sencillo pero sólido estilo italianizante. La consolidación de la calle 9 de Julio como principal arteria comercial de la ciudad, desplazó poco a poco la exclusiva actividad hotelera proyectada originariamente. Así, sus propietarios y en muchos casos sus propios inquilinos, re-funcionalizaron progresivamente, casi siempre sin planificación alguna y hasta de forma precaria, sectores importantes del viejo edificio, convirtiéndolos en pequeños locales comerciales y vivienda particular. En estas sucesivas adaptaciones se demolieron peligrosamente tabiques, se unificaron habitaciones, se ampliaron las superficies cubiertas en detrimento de los patios y jardines internos y se abrieron grandes vanos que debilitaron y deformaron peligrosamente las gruesas fachadas. Hacia los años

102 Especial Aniversario CABPA 30 años

70, a este verdadero “pastiche” constructivo y de estilos, se le adosó como marquesina, un moderno plegado de hormigón armado iluminado con neón, que terminó de desdibujar lo que quedaba del primer edificio.

Al momento de proyectar, surgieron las premisas de ‘limpiar’ lo mencionado generando una fachada que, además de ser constructivamente segura, identificara el nuevo bar–restó. Se propuso el máximo aprovechamiento de la luz natural, las espaciosas veredas, su proximidad al Palacio Municipal y las importantes visuales que brinda la inmejorable orientación del lote en forma de quilla sobre la Plaza Cívica. Se decidió entonces demoler las marquesinas, los restos de las viejas y peligrosas fachadas y eliminar los cielorrasos de yeso armado rescatando sólo la estructura original de los techos. El volumen edificado exteriormente respeta las 2 líneas municipales y la altura del edificio pre existente pero eleva notablemente su espacio interior hasta la estructura de la propia cubierta.

Las nuevas fachadas que se plantearon como ‘transparentes’, se materializan con una estructura integral de madera y vidrio tonalizado que para garantizar la ventilación del salón, intercala franjas de paños fijos vidriados con hojas de ventana guillotina y ventanas a balancín. La estructura del techo original a dos aguas, también de madera a la vista, se extiende en forma de “alas”, desde una altura menor hacia una altura mayor desde y desde adentro hacia afuera, para generar en las veredas los nuevos espacios semi cubiertos sobre las mesas al aire libre. Cuando el clima lo permite con la apertura de toda esta carpintería vidriada de gran altura se logra la integración de los espacios interiores y exteriores como un único gran patio de comidas urbano.

La ochava se materializa en una gruesa pared que si bien al elevarse se distorsiona notablemente de forma asimétrica, también reconstruye el carácter sólido del vértice de la parcela–manzana triangular. Esta pared contiene, además de un elevado ventanal cuya altura fue determinada por el deseo de ver entero desde el punto más interno del resto bar a un añoso cedro ubicado en la plaza de enfrente (que luego irónicamente fue podado), una pantalla led publicitaria y un gran reloj back light que refuerzan el carácter urbano de la parcela. Una importante viga reticulada de metal ya existente en el edificio original vincula constructivamente esta ochava con una pared detrás del fondo de barra, el que a su vez repite esta silueta distorsionada en forma proporcional.

Para sacar mejor provecho de las privilegiadas visuales de la plaza, se anuló el anterior acceso a la parcela desde la esquina, la que se utilizó para la ubicación destacada de las mesas, por dos nuevos accesos, uno en cada una de las fachadas.

En la planta baja, el gran organizador de la circulación interna se materializó con la instalación estratégica de una llamativa pecera-asiento que corre desde una puerta de acceso a la otra separando el sector exclusivo de mesas, sobre la esquina vidriada, del de la barra cafetera y pileta lava copas, que se recostó sobre las paredes internas. Internamente, se construyeron en la ampliación del viejo subsuelo, los baños públicos y de personal, la cocina y el depósito con acceso desde la calle. Este nivel de servicio se comunica con el de planta alta mediante la instalación de un monta cargas.

ARQUITECTURA.
-
MIRAMAR 103
OBRAS
DELEGACIÓN

FICHA TÉCNICA

Proyecto y Dirección:

Héctor Luis Bermúdez y Jorge Oscar Soria, arquitectos

Ubicación:

Avenida 23 (Mitre) esq. Calle 22Miramar

Superficie del terreno:

2.245m2

Superficie construida:

1.646m2

Comitente:

Ceremi S.A.

Empresa Constructora:

Reynoso Hnos.

Ejecución: de junio a diciembre de 1993

COMERCIAL

Down Town

Plaza Centro Comercial Miramar

El Down Town Plaza, paseo de compras ubicado en el centro de la ciudad balnearia de Miramar, fue concebido, proyectado y dirigido por profesionales locales, y construido por una empresa del lugar. Se realizó gracias al aporte económico y logístico de un grupo de inversores que, residentes en Buenos Aires, son habituales turistas de estas playas.

El complejo suma 36 locales comerciales, una confitería y un anfiteatro a cielo abierto –con capacidad para 200 espectadores- en un predio de más de un cuarto de manzana, que fuera jardín de una casa con árboles de más de 30 años. El centro comercial se localiza sobre una de las avenidas de la ciudad, a media cuadra de la calle principal (peatonal).

El partido adoptado es muy simple, son dos “anillos rectangulares concéntricos” formados por tiras de locales, con una circulación de acceso organizada entre ambos. El anillo interior contiene el núcleo confiteríaanfiteatro al que se accede por cuatro diagonales que unen los vértices de los dos rectángulos. Ambos anillos de locales se ven interrumpidos por la presencia de los árboles existentes o los accesos al paseo, que son tres: uno

104 Especial Aniversario CABPA 30 años

principal por la esquina y dos secundarios junto a cada una de las medianeras. Por ellos se desemboca en la circulación del anillo exterior por el que se accede a los locales.

Esta distribución a primera vista monótona, deja de serlo al encontrar el usuario distintas situaciones producto del deseo de los proyectistas de mantener los hermosos árboles existentes (decisión aceptada por los inversores aún a costa de sacrificar cantidad de locales).

La distribución permitió aislar el bullicio del sector confitería-anfiteatro respecto de la actividad de ver vidrieras y comprar, más tranquila. Esta separación física no es visual debido a la transparencia que se adoptó en los locales del anillo interno.

Una característica muy importante del proyecto es que si bien muchos locales dan a la calle con amplias vidrieras, para acceder a ellos hay que entrar al paseo y hacerlo por la circulación interna.

Espacialmente se jugó con poca altura en los accesos y circulación a los locales, que con un techo translúcido desemboca en el espacio a cielo abierto de anfiteatroexpansión de la confitería.

Para la imagen se optó por los históricos materiales de construcción de la zona: ladrillo a la vista, madera y piedra Mar del Plata, trabajados junto a otros no tradicionales, como el policarbonato y pizarra de chapa.

Dos elementos fueron elegidos para terminar de darle el clima deseado al paseo: la forestación, se plantaron 30 árboles nuevos (abedules, liquidámbares, robles de los pantanos, etc.) y más de 300 arbustos y plantas menores; y la iluminación, en accesos y circulaciones se usó luz muy tenue con el propósito de no competir con las vidrieras de los locales. Estas fueron concebidas como cajas de cristal que sobresalen sobre la circulación, exhibiendo los productos, mientras que el resto del conjunto está iluminado con luces enfocadas a la vegetación.

Una vez inaugurado su uso y funcionamiento se transformó en un punto de encuentro para concluir el día por turistas y lugareños.

Planta Plaza y Centro Comercial 105
ARQUITECTURA. OBRAS - DELEGACIÓN MIRAMAR

FICHA TÉCNICA

Proyecto y Dirección:

Arq. Luis Horacio Arrosio

Ubicación: calle 81 bis e/10 y 20

Año de proyecto: 2009

Año de finalización: 2010

Superficie: 185 m2

RESIDENCIAL

Casa Arrosio

Necochea

Ubicada en un pequeño lote (9,4 m x 22m.), en un barrio de casas bajas, sobre una calle angosta, la casa se plantea alrededor de un patio interior, que es patio de acceso, y que le confiere un carácter particularmente reservado.

Esta disposición permite además, la iluminación y la ventilación cruzada de cada uno de los espacios que conforman la vivienda.

El estar de doble altura, permite un vínculo dinámico de los espacios, que se manifiesta especialmente en las diferentes entradas de luz durante el día y la noche.

Corte Vista 106 Especial Aniversario CABPA 30 años
ARQUITECTURA. OBRAS - DELEGACIÓN NECOCHEA
107
Planta Baja Planta Alta

FICHA TÉCNICA

Proyecto y Dirección:

Arq. Walter Pérez

Ubicación:

calle 155 nº 2356, Barrio Villa del Deportista, Necochea

Año de ejecución: 2007

Superficie: 288,87 m2

RESIDENCIAL

Villa Juana

Vivienda Unifamiliar Necochea

En la ciudad de Necochea, en un predio ubicado en la intersección de dos calles, en la denominada "Villa del Deportista" con una superficie de 3.000 metros cuadrados, se implanta la vivienda Villa Juana, cuyas características básicas se identifican con una arquitectura moderna, utilización de materiales de primera calidad y un diseño de sencilla vinculación de ambientes, dando principal relevancia a la idea de integración interior-exterior. Planteada en dos niveles, la superficie cubierta total de la construcción es de 288,87 m2 incluido el espejo de agua de la piscina.

En términos generales la vivienda cuenta con un hall de acceso como eje de distribución de la vivienda, un amplio estar-comedor con amplias ventanas para una mejor integración con el exterior, relacionado con los sectores de servicio, un único dormitorio principal en planta alta con baño en suite, cocina-desayunador-lavadero todo integrado en un solo ambiente, depósito, un subsuelo que funciona la bodega y despensa e importantes expansiones exteriores donde se encuentra la piscina, un espejo de agua, sector de horno y parrilla, cancha de futbol, comedor exterior, etc.

Predomina la utilización de materiales sólidos, sustentándose la construcción en una estructura maciza de hormigón, mampostería de ladrillos cerámicos

108 Especial Aniversario CABPA 30 años

revestida en piedra y aplicaciones cementicias, con una importante carpintería de aluminio de 2,80 metros de alto que permite la transparencia y la interrelación del afuera y el adentro en forma fluida y permanente. Los pisos interiores presentan revestimiento en porcellanato, mientras que solados y pérgolas en los aterrazados exteriores son de madera.

Al predio se lo ha dotado de una importante forestación de variadas especies, priorizando el concepto de fortalecer y preponderar los espacios verdes. Si bien la zona no cuenta

con los servicios básicos, a excepción de electricidad, se han subsanado dichas carencias con la implantación de perforaciones de bombeo para el agua, pozo absorbente y cilindros para la provisión de gas.

En síntesis, se trata de una vivienda para el uso familiar cuyo diseño y construcción han cumplido acabadamente con las necesidades y preferencias de sus propietarios, dando el uso y funcionamiento buscado como premisa para este proyecto.

ARQUITECTURA. OBRAS - DELEGACIÓN NECOCHEA Planta Baja Cortes Planta Alta
109
Vistas

FICHA TÉCNICA

Proyecto y Dirección:

Arqs. María Silvia Cáceres Monié

Gabriel Vidauli

Localidad:

Pinamar

Superficie terreno:

872 m2

Superficie total:

362 m2

Año de construcción:

2004

RESIDENCIAL

Casa en la Playa

Pinamar

Emplazamiento:

La vivienda se localiza en una playa de Pinamar, donde el protagonista desde el ingreso y en todos los ambientes, es el mar. Fue pensada y soñada con el esfuerzo conjunto de comitente y arquitectos, en base a la reflexión sobre la morfología lineal de nuestra costa, abierta, sin bahías que protejan de los vientos, sin vegetación, y con los médanos que se imponen por masa y color. La playa y el mar son los únicos e impactantes paisajes en invierno.

Asimismo existe la contradicción que deviene de la necesidad de volcarse hacia el frente que ofrece la peor orientación. Esto planteó la exigencia de adecuar los espacios exteriores para usarlos al máximo, protegiendo de los vientos del norte en verano y del sur en invierno.

En verano, la presencia de las carpas, las sombrillas y la gente cambian el paisaje y obligan al resguardo de la intimidad.

El terreno es un lote irregular, abierto hacia el mar y que fue aprovechado en todo su ancho, siguiendo la pendiente del límite hacia el sudoeste; y en toda su capacidad, de acuerdo al código de planeamiento.

Estrategia:

La casa se concibió como una gran ventana al mar y formalmente se apuntó a la obtención de una expresión estudiadamente simple, en cuanto a

110 Especial Aniversario CABPA 30 años

volúmenes y materiales, que toman el color de la arena y repiten la línea infinita del horizonte. Posee una sucesión de cajas apaisadas: el pórtico del acceso, el volumen de la circulación de dormitorios, la doble altura y la suite.

Presenta economía no en la calidad, pero sí en la cantidad de elementos en juego.

Distribución:

Todos los dormitorios y ambientes del estar se volcaron hacia el mar, priorizando esta visual. Para protegerlos, la casa fue concebida como un barco: se utilizaron grandes paños fijos y carpintería de abrir hacia afuera, de aluminio y con vidrio termopanel. Los espacios exteriores se protegieron con pantallas con vidrio y la zona de parrilla cuenta además con calefacción.

En planta baja se ubican los dormitorios en suite para huéspedes junto a la parte social, toilette y cocina.

En planta alta la suite principal con entrepiso para juegos y videos, balconea sobre el estar.

En la planta del subsuelo se ubican las cocheras, guardado, habitación de servicio, sala de máquinas.

Lenguaje:

Presenta apenas una diferencia de textura y de color entre exterior e interior, pero el mismo revoque plástico con color incorporado, –textura fina para el interior y textura mediana para el exterior–. Se empleó una paleta en gama de blanco tiza para pisos, paredes y cielorrasos. Sólo una pared roja en la circulación de dormitorios, que ilumina el frente de la casa.

Materialidad:

Todos los pisos son de cemento alisado color, con zócalos de aluminio. En baños y cocina se utilizó venecita de distintos colores para cada local. Se repitió el uso del cemento en accesos, escaleras y galerías, para dar continuidad desde el interior; y posee un deck para el solario que rodea la pileta. La galería que da al mar está cubierta por un tendido de sombra de varillas de madera. El pórtico que la cierra crea un segundo plano que refuerza la fachada y enmarca la pileta, confundida con el mar en su borde "infinito". Una pantalla con vidrio fijo protege el comedor exterior y parrilla de los vientos del sur. Otras pantallas protegen de las visuales de los vecinos.

En el frente se distingue el volumen de cocheras, a las que se accede lateralmente. Se revistió en pórfido gris cortado regular y en la parte superior un deck la convierte en terraza, con dos bancos de madera.

Las paredes son portantes con cámara de aire. Los cielorrasos son suspendidos, realizados con placas de yeso. La calefacción se efectúa mediante un sistema de piso radiante.

La obra fue distinguida con el 2º Premio en Categoría Vivienda Individual, en la Bienal de Arquitectura,

ARQUITECTURA. OBRAS - DELEGACIÓN PINAMAR
Planta Baja
111
Planta Alta
Vistas

FICHA TÉCNICA

Proyecto y Dirección:

Estudio Maneiro Vázquez

arqs. Gustavo Maneiro y Gustavo Vázquez

Ubicación:

Araucaria y Martín Pescador

Localidad:

Cariló

Superficie total:

384 m2

Año de construcción:

2011

RESIDENCIAL

Casa Martín Pescador

Pinamar

La casa está ubicada en un lote boscoso en esquina. Por su forma y orientación se decidió implantarla recostada hacia el pulmón de la manzana tratando de captar la mejor luz y las mejores vistas. Para esto se tuvo en cuenta la tranquilidad y el poco tránsito, tanto peatonal como vehicular de la zona, y algunos desniveles del terreno, los que garantizarían privacidad.

Para el proyecto fue analizada la composición familiar y el uso que la misma haría de la vivienda. Siendo una casa de fin de semana y veraneo, el matrimonio y sus varios hijos ya grandes e independientes, le darían un uso más intenso. Se consideró también que en determinadas épocas podrían estar todos al mismo tiempo. Por ello se optó por dividir la casa en dos sectores articulados por un patio central que -según las circunstancias lo requieran- garantizaría independencia e integración al mismo tiempo. Además haría más acotado el uso del espacio cuando la pareja se encontrara sola en el sector que contiene el estar-comedor-cocina. Esta área cuenta con vistas hacia el parque a través de una galería, y con un dormitorio principal con mini spa. También atelier para fotografía y pintura.

112 Especial Aniversario CABPA 30 años

Vistas y Cortes

El sector de los hijos, con varios dormitorios en suite en planta alta y un playroom-parrilla en planta baja, se conecta con los espacios principales de la casa a través de un puente vidriado que atraviesa el patio central y que hace las veces de fuelle entre ambos sectores.

ARQUITECTURA. OBRAS - DELEGACIÓN PINAMAR Planta Baja Planta Alta
113

FICHA TÉCNICA

Proyecto y dirección:

Gustavo G. Keller

Ubicación:

Alameda 206 bis y Paseo 309

Localidad:

Villa Gesell

Superficie del terreno:

2000 m2

Superficie cubierta:

2600 m2

Año: 1984-85

RESIDENCIAL

Edificio N4

Vivienda Multifamiliar

Villa Gesell

Ubicado en el Barrio Norte de Villa Gesell, sobre un alto médano, su volumetría se destaca por su recortado perfil. Se aprecian dos volúmenes, el primero, compuesto por las circulaciones verticales (escaleras y ascensor), y el otro, que contiene las unidades habitacionales. La vinculación de estos dos elementos se realiza mediante puentes semicubiertos por los cuales se llega a un hall común de los tres departamentos que componen cada planta. Cada unidad cuenta con vistas hacia las mejores orientaciones en un ángulo de 180º. Al noreste se encuentra el bosque, al norte visuales al mar y al noroeste se aprecian los grandes médanos circundantes característicos de la zona. El edificio de planta baja libre cuenta con un volumen suspendido (SUM) contenido entre los tabiques estructurales generando bajo el mismo el acceso y en su entorno diferente calidades espaciales.

114 Especial Aniversario CABPA 30 años

En el volumen principal la estructura independiente, que se manifiesta con fuerte presencia vertical, se equilibra con la horizontalidad de los puentes, cuerpos salientes y terrazas.

Con el uso del color, fundamental en este edificio, se pretende manifestar la relación existente entre los dos volúmenes antes mencionados dejando al espectador intuir el funcionamiento del mismo.

Esta obra obtuvo Premio en la Bienal Internacional, Buenos Aires 1987, al “mejor uso del color en arquitectura” junto a otra obra del estudio.

ARQUITECTURA. OBRAS - DELEGACIÓN VILLA GESELL
115
Planta Tipo

FICHA TÉCNICA

Proyecto y dirección:

Fernando Ariel Galera

Colaboradores:

Diego Ballario, Cesar Amarante, Francisco Villamil

Ubicación:

calle Camino de los Pioneros

Villa Gesell

Superficie lote:

600.00 m2

Superficie cubierta y semicubierta:

108.50 + 8.50 = 117.00 m2

Fecha de finalización de la obra: Marzo del 2015

RESIDENCIAL

Casa Pioneros

Vivienda unifamiliar Pro.Cre.Ar.

Una vivienda proyectada en Villa Gesell para ser ejecutada dentro de las pautas del plan de créditos para la vivienda PROCREAR, del banco Hipotecario. Con el fin de adaptarse al presupuesto dado por el programa, se optó por una propuesta en una sola planta rectangular y compacta, minimizando el perímetro y de este modo economizando en aislaciones, carpinterías y calefacción durante la etapa de uso.

La envolvente en forma de cinta, protege de la orientación más desfavorable, al mismo tiempo que crece y gana en altura en la zona publica, para recibir la luz del norte y participar de la calle. La cinta materializada en chapa acanalada negra, cuenta con un desfase angular respecto al contenedor, otorgando un mayor dinamismo a la forma y generando situaciones cambiantes de luces y sombras.

116 Especial Aniversario CABPA 30 años

La intención a la hora de distribuir el programa, fue generar una barrera hacia el sur conformada por los servicios pudiendo así ventilar e iluminar hacia el norte la totalidad de los ambientes de primera categoría. Este núcleo de servicios se ve interrumpido para permitir la pasante en la zona pública de la casa vinculando los patios de frente y de fondo donde la casa gana mayor altura. Esta pasante se encuentra reforzada por un plano exento de hormigón cuyos extremos en voladizo buscan unir ambos patios.

La casa se eleva con respecto al suelo respetando la topografía original del lote, buscando una situación de dominio sobre la calle y retomando el contacto con el suelo por medio de terrazas hacia el contrafrente.

ARQUITECTURA. OBRAS - DELEGACIÓN VILLA GESELL
117
Planta

Intenciones Construidas

Estudio Mariani - Pérez Maraviglia. 30 años de arquitectura y ciudad.

La arquitectura del Estudio local MPM ha dejado una enorme impronta en Mar del Plata; pero no sólo aquí, su trayectoria trascendió el ámbito local pasando al escenario nacional. Su arquitectura concebida desde el respeto por la ciudad, en búsqueda de armonía con el lugar, con un virtuoso manejo de formas y materiales que conducen a composiciones de estética notable, les han merecido infinidad de reconocimientos, publicaciones y premios.

Con vocación por los Concursos -entre los últimos destacados, el de Punta Mogotes-, son autores de los memorables edificios del Shopping Los Gallegos, la Bolsa de Comercio, el Colegio de Escribanos, la Casa Langhe y otras importantes viviendas unifamiliares, y numerosos edificios de vivienda multifamiliar. El Arq. Pablo Rescia recorre su forma de hacer arquitectura a través de tres trabajos del estudio, y analiza la experiencia arquitectónica MPM con la mirada de quien compartió proyectos con ellos.

Escribir, hablar, decir sobre MPM, es una vorágine de obras, proyectos, conversaciones, discusiones que resumen experiencias (algunas de las cuales me tocan en persona), y que confluyen en una energía creativa de pies sobre la tierra.

Esa vorágine está impulsada por la capacidad y el impulso vital de María Haydee Pérez Maraviglia y de Carlos Mariani fallecido tempranamente, y que sintetizan no una idea estilística, apriorística de la arquitectura sino una capacidad vital relacionada con entender el problema arquitectónico como algo único, con sus propias leyes, donde la solución no es una marca de autor sino la constante reinterpretación de temas que adquieren distintos significados en función de la interrelación particular que cada proyecto implica.

Estos temas e interrelaciones incluyen al cliente, al usuario, al mercado, a la ciudad, al paisaje, a la arquitectura, y es definitiva la respuesta a este conjunto heterogéneo de circunstancias.

Hay en este proceso, para nada lineal, un convencimiento de que el proyecto arquitectónico puede ensamblar este complejo rompecabezas, no desde un manierismo egocentrista, sino una voluntad de reconstruir una y otra vez las relaciones entre la arquitectura y su circunstancia.

Este devenir entre pensamiento arquitectónico y la particularidad de los encargos (incluso algunos generados por el propio estudio como el Aquarium), parten de la base que la institución “Arquitectura” posee una sintaxis propia que sólo adquiere sentido en su relación con el lugar, con las necesidades programáticas, con la íntima obligación de perdurar que tiene la arquitectura.

ARQUITECTURA. ESTUDIO DESTACADO

Hablaré de estas relaciones concentrándome en tres obras que aparecen en esta edición, y haré referencia a otras obras premiadas, o ampliamente difundidas.

CONSTRUIR CIUDAD. IGLESIA SAN BENEDETTO

El estudio MPM ha tenido un amplio desarrollo de obras y proyectos, en su mayoría relacionadas con clientes privados, en pocos casos hay proyectos para la obra pública, aunque este pequeño grupo merecería una reflexión aparte. Sin embargo sus obras son “públicas”. ¿En qué sentido podemos apreciar esto?

Cada obra es no sólo la solución a un problema de necesidades, clientes y presupuesto, sino que el pensamiento proyectual del estudio pone a la ciudad a la cabeza de la ecuación.

Así lo demuestra un proyecto como el de la Iglesia San Benedetto, en donde el punto de partida es ensamblar tres espacios que remiten a la idea de plaza, en su acepción más genérica, es decir ámbito de interacción social y cultural. En principio un plano inclinado, a modo de pontón de amarras (no olvidemos el papel de Federico Contessi constructor naval local, como promotor-hacedor en este proyecto) que es una ampliación de un vereda extensa y donde se inicia el proceso ritual. Dos planos circulares (de reminiscencias berninianas), envuelven el acceso y dan pie a la segunda plaza o atrio definida por una galería perimetral que da acceso a los salones parroquiales y la vivienda del sacerdote.

Esta sucesión termina en el interior del espacio eclesiástico, estableciéndose como el punto focal de un recorrido que empieza en la ciudad. Las cualidades de este espacio están

definidas por el masivo uso del ladrillo (esta es una de las últimas obras “ladrilleras” construidas por el estudio), por una geometría precisa, que contrasta con la carpintería central que enmarca el acceso principal desde donde se invade de luz la sala, cuya concepción parte de la idea de sintetizar algunas ideas clásicas de la arquitectura religiosa, como el rosetón, la cruz, y el campanario, en un sólo elemento escultórico.

Volviendo a la plaza, esta concepción de que un tipo urbano puede reinterpretarse en la arquitectura, es una estrategia que el estudio consolida en diversas obras y proyectos, que avanza sobre el sentido más primigenio del concepto de tipología, llevándolo a una síntesis temporal de siglos de sabiduría y enseñanza sobre el uso del espacio en términos amplios, no sólo funcionales, sino también culturales, sociales y en este caso religioso.

CONSTRUIR EL PAISAJE. AQUARIUM

Mar del Plata no es una ciudad fácil. “Ciudad Impiadosa” dice Roberto Fernández, en un texto sobre el estudio MPM, aparecido en la revista Summa hace ya algunos años.

Sin embargo la ciudad es portadora de una belleza capaz de soportarlo todo.

La posibilidad de unir belleza y dificultad es la síntesis del proyecto del Aquarium. Cómo construir un paisaje saliendo de los habituales convencionalismos sobre los espacios exteriores, “adornados” de naturaleza, sino más bien estructurando un nuevo paisaje que surge de la combinación de especies vegetales propias de la costa atlántica, acordes a nuestro clima marítimo, sin necesidad de recurrir a especies florales frágiles, que implicarían un paisaje impropio.

122 Especial Aniversario CABPA 30 años

Lo mismo sucede con la arquitectura, de materiales nobles, con formas de geometrías curvas que hilvanan en su continuidad el recorrido necesario para una combinación de experiencias basadas en la reflexión sobre la naturaleza con el mar como telón de fondo.

Los edificios aparecen y desaparecen en el paisaje, sin más condición que la de hitos en el recorrido, no aparecen aquí geometrías ortogonales, no hay ejes estructurantes del espacio, sino una articulación donde el clima marítimo parece ser más benévolo, menos “impiadoso” por la habilidad de “construir” amparo y abrigo sin perder vistas excepcionales.

Este proyecto es una reflexión sobre la relación arquitectura, ciudad y naturaleza desde el aquí y ahora, desde nuestras propias condiciones, sin concesiones globalizantes.

Esta obra ha inaugurado una forma de relacionar la ciudad con su naturaleza costera, su continuidad en el proyecto ganador del concurso para Punta Mogotes, lamentablemente inconcluso; permite construir un discurso desde nuestros problemas, con nuestras soluciones.

CONSTRUIR EL ESPACIO INTERIOR. HOTEL SHERATON.

Podríamos hablar sobre el Sheraton Hotel desde su relación urbana, donde su escala esbozó anticipadamente la escala que luego tendría la calle Alem.

O podríamos hablar de su materialidad, totalmente pertinente, haciendo caso omiso a las volumetrías foráneas tendientes al brutalismo expresivo o a las pieles de vidrio indeterminadas, monótonas que esta cadena hotelera despliega en todo el mundo.

Mucho antes de la dicotomía local-global, ya estaba planteado el problema por la capacidad de profundizar, hurgar, investigar desde la arquitectura los problemas de la cultura. Cultura propia de nuestros tiempos “líquidos”, más que un problema estético.

Sin embargo, es otra vez la voluntad de traslado, de trasvase entre tipos urbano y arquitectónicos hace que la mirada se pose en la conformación del atrio interior que da vida, a los espacios impersonales habituales de estos hoteles.

La primera estrategia diferencial es la de construir “fachada” sobre el vacío interior, es decir los “pasillos” de las habitaciones ya no son extensiones lineales superpuestas, sino espacios de “fuelle” entre la fachada y el atrio, entre el “espacio urbano” y el espacio privado de las habitaciones.

Estas fachadas interiores, son de algún modo, herederas del espacio interior del edificio; para la Bolsa de Comercio, cuya estrategia es la articulación entre un chalet y un edificio nuevo, donde el eje de esa articulación es el antiguo hogar de la vivienda que se transforma en fachada interior del atrio de acceso de doble altura.

ARQUITECTURA. ESTUDIO DESTACADO

Estas fachadas cambian de ritmo en los primeros pisos, se hacen permeables, para acoger los espacios de relación propios de la hotelería, restaurant, piano bar, cafés, sala de conferencias etc.

Una escalera suspendida vincula estos niveles con una geometría circular que le imprime una complejidad al espacio longitudinal del atrio, que se traslada el espacio exterior y da forma a los remates de las habitaciones y a la volumetría del remate del edificio en relación a la esquina urbana.

No es un dato menor que este espacio tenga una geometría sesgada, debida al hecho de que el edificio se abre hacia la esquina de la Av. Paso y esa geometría se traslada al interior evitando un paralelismo monótono en la “fachadas” interiores.

Este espacio recibe luz cenital acentuando la intención de convertirlo en un espacio exterior, con las calidades de confort de un interior.

Los extremos de este lugar fuertemente longitudinal son los núcleos circulatorios verticales, también caracterizados de forma diferencial. Por un lado ascensores panorámicos que enlazan los salones públicos del hotel, y por otro los que abastecen las habitaciones, tamizados por una fachada verdes de especies vegetales colgantes.

Si bien este tipo de espacios interiores de gran altura, pertenecen a la tradición de los grandes hoteles, el valor de este caso radica en su nueva mirada, una visión despreocupada por el “parecerse a”, sino más bien ocupada en la experiencia de usuarios y visitantes transitorios, buscando en esa experiencia cristalizar un recuerdo de la singularidad de nuestra ciudad, de su horizonte, de su clima cambiante, escapando del ofrecimiento de postales genéricas y universales.

PENSAMIENTOS FINALES .

Podríamos decir que este pequeño comentario sobre las obras de MPM, sin ambiciones teóricas, pretende dilucidar y hacer consciente una realidad del estudio, basada en el hecho de conjugar “intenciones” con pensamientos construidos.

Intenciones que representan el valor de una postura, pero también la inocencia de enfrentarse a cada proyecto como se mira un paisaje desde una ventana que se abre por primera vez.

Pero esta intención es “construida”, con todo el peso y la carga que las demandas sociales, requieren de la arquitectura; sin olvidar que esta va más allá, que construye raíces, cultura, visiones del mundo.

Esta interrelación de vigor profesional y entusiasmo juvenil, que desde hace algún tiempo incorpora la impronta de Jerónimo Mariani y de Oscar Cañadas, sumados a María Haydee, aportan a nuestra ciudad un caudal de intensas intenciones, y su contrapartida, la cara de un realismo necesario para construir un pensamiento de arquitectónica permanencia.

UNMdP
124 Especial Aniversario CABPA 30 años

Impronta

CAPBA IX

“Tomar la iniciativa exige algún tipo de visión, algún nivel por alcanzar, alguna mejora que lograr. Exige disciplina al hacerlo. Exige poner en ello todo el corazón y la pasión y hacerlo de un modo regido por la conciencia o los principios para alcanzar un fin que merezca la pena”.

Stephen Covey

(1932-2012) Escritor y profesor estadounidense

El CAPBA IX ha logrado presencia distintiva en la comunidad en sus 30 años de vida, dejando su impronta institucional. Aquí repasamos algunas iniciativas particulares y labores que posicionan al Colegio como referente y enriquecen a la comunidad.

“Emprender no es ni una ciencia ni un arte. Es una práctica.”

Peter Drucker

(1909-2005) Abogado austríaco, tratadista y filósofo de la administración

La labor del Centro Documental Capba IX

Diariamente se realiza una importante y silenciosa labor desde el Centro Documental del Distrito IX, que funciona en Mar del Plata, en la sede del Colegio de Arquitectos.

Primeramente conocido como “la Biblioteca”, el Centro fue aumentando paulatinamente las actividades, abarcando mucho más que la colección de libros y hemeroteca en papel: se convirtió en un centro de procesamiento y archivo de documentación digital, en enclave desde donde parte la información institucional y también asumió la custodia de un Archivo Histórico.

El Centro Documental CAPBA IX es una Unidad de Información Especializada en Arquitectura y Urbanismo ubicada en las instalaciones del Colegio de Arquitectos de la Provincia de Buenos Aires Distrito IX.

Dentro de las actividades que se realizan en el Centro Documental se distinguen varios ejes:

• Operaciones sobre Archivos Históricos de los primeros Arquitectos marplatenses

• Difusión del accionar del CAPBA IX que incluye: Diseño y actualización de Sitio Web institucional - Diseño y Emisión de Gacetillas Informativas - Plataforma IssuuYoutube - etc.

• Edición de publicaciones referidas a Arquitectura Marplatense

• Biblioteca - Hemeroteca - Archivos Multimedia

Nos referiremos en esta nota a los Archivos de los primeros Arquitectos de Mar del Plata que ejercieron su profesión entre las décadas del ´30 al ´70 y que el CAPBA IX tiene en custodia. Estos fondos documentales han sido otorgados por familiares de los profesionales en algunos casos a través de la gestión de colegas, en otros por referencias de nuestro accionar.

ACONDICIONAMIENTO DE ESPACIOS EN ARCHIVO HISTÓRICO

Después de realizar un diagnóstico de la situación de los archivos recibidos y teniendo en cuenta que los documentos en soporte papel sufren constantes cambios en su composición física y que las condiciones ambientales hacen propicio la aparición de agentes adversos, se realizaron intervenciones edilicias con el objetivo de controlar estas situaciones y garantizar la perdurabilidad de los acervos documentales.

En el sector del Centro Documental CAPBA IX destinado a Archivo Histórico se aplicaron revestimientos elásticos exteriores en paredes, se colocaron placas interiores, se incorporaron

extractores de funcionamiento automático con el fin de mantener un microclima controlado, se cubrió con filtros las ventanas cuya superficie es mínima para evitar la irradiación solar directa. El sistema de aire es independiente al de las oficinas, con temperatura y humedad controladas.

La temperatura dentro del depósito documental no fluctúa más de 5° por día y los rangos de humedad relativa son apropiados para que el papel conserve sus propiedades de flexibilidad y resistencia.

Fondos Documentales del Arq. Alberto Córsico Piccolini – Arq. Auro Tiribelli – Arq. Raúl Camusso

Los fondos documentales de Arq. Córsico Piccolini – Arq. Auro Tiribelli y Arq. Raúl Camusso reúnen más de 1000 obras realizadas en la ciudad de Mar del Plata y región desde la década del ´30. Se ha organizado el material siguiendo los principios fundamentales de la Archivística.

Puede individualizarse cada obra en su correspondiente Carpeta donde se incluye no sólo Plano Municipal, Plantas, Cortes, Detalles constructivos, Plano de Instalaciones, Estructuras, etc. sino también Pliegos de Condiciones, Contratos y Presupuestos. En algunos casos se acompaña la documentación con una serie de fotografías que debieron ser asociadas con las obras en análisis posteriores ya que no tenían identificación y que muestran las obras contextualizados en su entorno urbano de época.

OPERACIONES SOBRE LOS ARCHIVOS HISTÓRICOS

Desde el Centro Documental se realizan un conjunto de operaciones sobre los Archivos Históricos que incluyen:

• Registro e Inventario. Identificación de Planos - DibujosEsquemas - Fotos – Carpetas

• Conservación: se evalúa el estado de cada Archivo para proceder a su almacenamiento en condiciones que garanticen su perdurabilidad

IMPRONTA CAPBA IX
129

• Digitalización: los Scanners de planos de última generación convierten el documento físico en Archivo Digital y se almacena en soportes electrónicos

• Difusión: el Centro Documental CAPBA IX no es un depósito de Archivos. Tiene una misión fundamental: recoge y procesa la información con el propósito de conservarla y difundirla

• Estadísticas: se realiza seguimiento para medir repercusiones sobre la documentación publicada o subida a la web.

DIGITALIZACIÓN Y SISTEMATIZACIÓN DE INFORMACIÓN

Se procedió a la digitalización del material siguiendo los criterios normativos y técnicos internacionales.

En los Archivos digitales de imagen se insertó una marca de agua consistente en el logo del Colegio de Arquitectos a los efectos de identificación de su procedencia.

Las imágenes obtenidas con los Scanners - Smartworks de última generación son posteriormente intervenidas para mejorar su calidad, comprimir, etc.

La Digitalización permite tener disponibles los archivos para consulta evitando el manipuleo.

CAPACITACIÓN PERMANENTE - DIFUSIÓN - COMPROMISO

La gran repercusión e impacto provocado por la difusión en nuestros Sitios Web de las publicaciones sobre los Archivos de Obra de los primeros Arquitectos Marplatenses es medible estadísticamente. Se cuenta actualmente con varias líneas de trabajo generadas a partir de la publicación de los archivos.

El Centro Documental CAPBA IX renueva su compromiso de organizar - proteger - informatizar - el material que custodia para posibilitar el acceso a esta valiosa información patrimonial.

Este año se ha dado inicio a una Colección denominada Arquitectura de Mar del Plata en la que se publicarán los avances del trabajo realizado sobre los archivos históricos del Centro Documental. Esta publicación se realizará en doble formato papel y virtual.

Mar del Plata es ciudad turística por excelencia que ha sido visitada por tantas generaciones de argentinos. Estos Archivos que el CAPBA IX custodia recorren cinco décadas de la Historia de la Arquitectura de Mar del Plata bajo la denominación que los profesionales les otorgan: Chalet Californiano, Moderno, Chalet de Veraneo, Chalet de dos Plantas, Casa Habitación, Edificio de Renta, de Departamentos, Propiedad Horizontal, etc.

Mantener este fondo documental plenamente preservado, protegido y permitir que sea accesible para todos de manera permanente y sin obstáculos contribuirá a sostener la memoria colectiva de toda la comunidad y contribuir a la formación de nuestra identidad.

Arq. Alicia Inés Paris
130 Especial Aniversario CABPA 30 años
Gerente Centro Documental CAPBA IX

El CAPBA IX y la comunidad

Participación, compromiso y acción para el bienestar general

“Democracia no es una forma de gobierno, sino la esencia misma de todos los gobiernos republicanos o instituidos para el bien de la comunidad o de la asociación. La democracia es el régimen de la libertad fundado en la igualdad de las clases”.

Esteban Echeverría, escritor y poeta argentino

Desde su creación, y aún antes de ello, el Colegio de Arquitectos ha mantenido un profundo compromiso con la región, su territorio, su comunidad, las instituciones que la representan y con los profesionales que nuclea. Es por ello, que realizar una semblanza de este aspecto vincular entre el CAPBA IX y la comunidad es complejo y a la vez inescindible de las prácticas democráticas recuperadas desde el “83.

Desde sus inicios, el CAPBA IX adoptó formas de participación que le permitieron emitir y formar opinión sobre problemáticas referidas a la protección del patrimonio urbano arquitectónico, los conflictos urbanos y el reconocimiento social de los arquitectos. En ese sentido, vale reconocer que la preponderancia “aún sin ser suficiente- de la opinión y labor de los arquitectos en la comunidad ha permitido ganar cada vez más terreno tanto en el ámbito del ejercicio liberal de la profesión como en la función pública, lo que se ve reflejado en la diversidad de áreas de gestión que cuentan con la dirección de colegas en toda la región.

La conformación de diferentes comisiones de trabajo permitió el abordaje de iniciativas y propuestas generalmente destinadas al beneficio y bienestar del matriculado. La implementación de la entrega de medallas a los colegas que cumplían 25 años en la profesión, la instancia distrital del premio a la obra construida, los concursos de arquitectura, la creación de la biblioteca, entre otras iniciativas, caracterizaron la primer década.

A partir del año 1996, el CAPBA IX propició la creación de su Instituto de Estudios Urbanos y, a partir de ello, abordar con profesionalismo, pertinencia disciplinar y amplitud de criterio las diferentes problemáticas del desarrollo urbano de la zona. Asimismo, comenzaron los estudios sobre las

normativas urbanas de la provincia y la región, que luego dieron paso a los encuentros de “Región y Territorio“ y las publicaciones derivadas de estas acciones que se extendieron durante la segunda década.

El Proyecto Atalaya, encarado desde la comisión de patrimonio del CAPBA IX, permitió trabajar con los vecinos que habitaban el conjunto en un proyecto tendiente a su puesta en valor y recuperación de identidad tanto arquitectónica como social de este sector de la ciudad.

“Para ser realmente grande, hay que estar con la gente, no por encima de ella.”

Montesquieu, cronista y pensador político francés.

Luego, con un programa de necesidades elaborado con los vecinos que participaran de las reuniones y encuentros, el CAPBA IX convocó un concurso para la puesta en valor del frente de las propiedades y de la Plaza Rocha que integra el contexto urbano del conjunto.

Sobre fines del año 2001, surge como iniciativa de las instituciones de la ciudad de Mar del Plata, ante la profunda crisis que transitan el país, la provincia y la ciudad, el Plan Estratégico de Mar del Plata (PEM), un espacio de trabajo horizontal con amplia participación ciudadana que dio origen a la Junta Promotora del PEM, donde el CAPBA IX fue uno de los miembros fundadores.

“La única forma posible de que perduren valores tales como la confianza y la prudencia, es a través de un estrecho contacto”. Winston Churchill, político y estadista británico.

IMPRONTA CAPBA IX

Han transcurrido 15 años desde la conformación del PEM y el CAPBA IX ha trabajado incansablemente en sus diferentes etapas, ha mantenido una conducta comprometida, construyendo confianza entre las diversas entidades que lo integran y ha actuado con prudencia tanto para avalar iniciativas como para efectuar críticas al proceso de planificación estratégica. Al tiempo transcurrido hay que añadirle el paso de 5 gestiones municipales -contado la que se encuentra en curso- lo que opone circunstancias variables, sin embargo nuestra institución ha permanecido constantemente con diferentes representantes y el mismo espíritu participativo.

En esta última década, en el ámbito de las delegaciones que componen el CAPBA IX también se ha propiciado la participación institucional en espacios y convocatorias de participación ciudadana, más vinculado tal vez a la iniciativa de los estados locales ya sea en comisiones de trabajo municipal o en el tratamiento de proyectos de ordenanzas. En este proceso ha sido fundamental el rol de los Delegados del CAPBA IX, los colegas que en diferentes etapas han tenido la responsabilidad de actuar como responsables de cada delegación se han involucrado en mayor o menor medida en estas acciones comunitarias, pero sin duda alguna no han sido indiferentes.

Más recientemente, la creación de espacios de participación tales como la Red de Monitoreo Ciudadano o en Foro Sectorial de la Construcción de Mar del Plata, se han transformado en ámbitos donde la voz y la opinión del CAPBA IX son esperadas y respetadas. En estos nuevos espacios se reclama la participación activa de nuestro colegio profesional que, junto con otras entidades, marcan las acciones futuras necesarias para la concreción de misiones y funciones preestablecidas en las actas fundacionales de cada organización.

“¿Por qué debo esperar a que alguien haga algo? ¿Por qué tengo que esperar que nos ayude el gobierno, ejército? ¿Por qué no alzo yo mi voz? ¿Por qué no defendemos todos nuestros derechos?

Malala Yousafzai, activista y bloguera pakistaní

Finalmente, el CAPBA IX es una institución que, además de honrar sus responsabilidades y atribuciones de Ley, promueve una visión proactiva sobre las problemáticas del medio social en el que le toca actuar. Ha tenido permanentemente una vocación comprometida con el "hacer" de la ciudad y se ha generado los espacios propicios para impulsar y motivar a otros agentes de la comunidad sin los cuales no sería posible hoy desarrollar muchas de las acciones que componen la agenda comunitaria del sector.

Isabel Allende, escritora chilena.

“Memoria selectiva para recordar lo bueno, prudencia lógica para no arruinar el presente, y optimismo desafiante para encarar el futuro”.
134 Especial Aniversario CABPA 30 años

Semblanzas

“Somos nuestra memoria, somos ese quimérico museo de formas inconstantes, ese montón de espejos rotos”.

Jorge Luis Borges (1899-1986) Escritor argentino.

Por la función de la memoria humana retenemos datos. Si la intensidad de las experiencias pasadas nos hacen revivir emociones, entonces creamos un recuerdo.

Siempre un recuerdo nos sensibiliza. Seguramente es porque la palabra “recordar” (re cordis) significa ‘volver a pasar por el corazón’. En estos 30 años del CAPBA queremos recordar, volver a pasar por el corazón, al menos a un arquitecto de cada Delegación y de Mar del Plata, para evocar sus historias, sus logros, sus huellas. Son pocos de quienes hablamos aquí, sin embargo representan a cientos y cientos de colegas que en cada lugar silenciosamente entretejen su vida con la arquitectura.

“Lo había recordado y, detrás de ese recuerdo, vinieron todos los demás”.

ARQ. OSVALDO ‘CHOLO’ CEDRÓN

Mar del Plata

“Hay secretos, y hay cosas que todo el mundo sabe y que todo el mundo ha escrito, y sin duda volverá a escribir” … Prefacio de Ernest Hemingway, que cabe para estas líneas y este Arquitecto, Militante, Artista y Amigo, quien también solía citarlo en momentos difíciles con la frase “para colmo el mal tiempo se nos venía encima”.

Muchos de los que compartimos un trabajo, una clase, un café, podemos decir algo de él que seguramente resultará una mirada completa sobre Osvaldo “Cholo” Cedrón, porque era de una sola pieza, sin rincones oscuros ni en su personalidad, ni en su arquitectura.

Cholo era arquitecto, de los buenos; poeta, artista, compañero también de los buenos.

Participé junto con otros profesionales en un equipo de trabajo al que cariñosamente llamaba “la armada Brancaleone”, la que dirigió en trabajos de diversas escalas y destinos, siempre con el mismo compromiso y pasión: desde un hospital de alta complejidad hasta lo que podríamos denominar “una instalación”- una gran lona como único techo, que en realidad era una verdulería ubicada sobre la calle Alem en el corazón de Playa Grande, exenta de cualquier tipo de habilitación, de la que vivieron algunas familias hasta que fue finalmente clausurado (se llamaba La Quinta de Beethoven)-.

En todas sus intervenciones se sentía representando al Estado, es decir se hacía cargo de dar soluciones aun cuando no contaba con el respaldo del verdadero Estado, pero decía con orgullo que nunca dejó a nadie en la estacada.

Esta forma particular de entender la justicia, lo llevó en oportunidades a completar personalmente los aportes de quienes no podían hacerlo para acceder a su vivienda, lo que resultaba gravoso para su economía familiar. Nunca reclamó las deudas al Estado y menos a los beneficiarios de su generosidad…

Probablemente la vivienda haya sido el tema central a lo largo de su carrera, desde la mítica Villa 7 en Mataderos, a los conjuntos de vivienda cooperativa en Mar del Plata. Cada trabajo, único y a su vez universal, ensayó alternativas de gestión, tecnológicas, morfológicas… de vida. Participó siempre intentando ampliar el rol del arquitecto, en el Colegio Profesional, en el incipiente gremio de Docentes Universitarios, como docente de la institución. Enseñó no sólo a sus alumnos sino a sectores, que organizados, encontraron en la Universidad un nexo entre las organizaciones de base y el gobierno Municipal, Provincial o Nacional, tres esferas en las que trabajó en distintos gobiernos.

Madrugador incorregible, peronista silvestre –como le gustaba a él mismo definirse-, la lealtad ocupaba un lugar central en el altar de sus valores. Compartía con su familia el mandato de hacer obras: de arte, cine, teatro, música, arquitectura… su dedicación al ejercicio de una disciplina no lo limitó para desarrollar diversas tareas/acciones, al modo de un profesional renacentista comprometido con repensar las expresiones del arte como una de las maneras genuinas de expresión de una sociedad.

Antiliberal en sus obras y su vida, nunca se ocupó de lo políticamente correcto sino de lo socialmente justo.

SEMBLANZAS 137

ARQ. ENRIQUE ‘PETE’ ECHARTE

Balcarce

Enrique Rubén Echarte nació en Balcarce y fue alumno de la Escuela Nº1 ‘Domingo Faustino Sarmiento’ e integrante de la primera promoción de egresados del Colegio Nacional –hoy Escuela Secundaria Nº3 ‘Carmelo Sánchez’, en 1961. Cursó la carrera universitaria en la Facultad de Arquitectura de la Universidad Nacional de Mar del Plata, donde fue docente en diversas cátedras a las que accedió por concursos públicos de oposición y antecedentes. Hoy balcarceños que fueron estudiantes recuerdan sus clases por su idoneidad y conducta, valores por los que siempre será recordado.

Pete –como cariñosamente todos lo llamaron y así lo recordarán- llevó adelante una destacada carrera acompañado por su esposa Mirta Novoa, también arquitecta, y últimamente por su hijo Ramiro, el tercer profesional de esta disciplina en la familia. Mirta murió en enero de 2015, y además de la actividad en su estudio cumplió una variada labor docente, fue investigadora, participó en cursos y numerosos proyectos de obras.

Desde décadas atrás distintos profesionales han sido autores de proyectos que se distinguieron en el crecimiento urbano de Balcarce: uno de ellos fue Pete Echarte, quien falleció en septiembre de 2016.

Asistió a cursos de especialización, hizo de trabajos de extensión e investigación, además de actividades en la administración pública. Su mano firmó muchos proyectos de obras levantadas en Balcarce, Mar del Plata, Sierra de los Padres, Lobería y Tandil, como también concursos de anteproyectos en esas ciudades y Bahía Blanca.

Su productiva labor tiene que ver con el surgimiento de edificios de propiedad horizontal en Balcarce, que siguieron a otros en el radio céntrico. El primero fue Finantrade I en la cuadra de calle 19 entre 20 y 22, con 4.500 m2. Más

adelante diseñó el Finantrade II (calle 17 entre 20 y 22) con mayor volumen: 6.500 m2. Pete con Mirta imaginaron y concretaron las viviendas de varias familias balcarceñas: Eyherabide, Pavàn, Lorenzo, Latorre, Rodríguez, Erbity, Mennone, Iturburu, Vitale y otras, además del edificio Villa Escolástica.

Su obra pública relevante es la escuela Nacional de Comercio (actual Secundaria 3) junto al ingeniero Edgar Darío Sánchez, en avenida Suipacha (32) entre Cereijo (31) y 33. Figuran además en esta trayectoria el anteproyecto de remodelación de nuestro Hospital Municipal y obras de la empresa Sierramat, la estación de servicio Y.P.F. de Flego S.A., el Café de la Plaza y el Hotel de la Plaza. En el rubro de reciclados están la Financiera Bonanza S.A., Aero Balcarce y la Concesionaria de Romera Hnos. (Wolskwagen) en avenida Kelly. Otros proyectos son el barrio parque Las Retamas y el estudio del contador Felipe Ridao.

En Mar del Plata se agregan viviendas y reciclados comerciales: el Café Francés, La Nueva Jockey Club, Geo, Inmobiliaria Coste y Freuler, Rossi y Pérez, y hotel del Banco Oceánico Cooperativo.

Enrique y Mirta fueron padres de tres hijos, hoy profesionales en distintas disciplinas: Ramiro, arquitecto; Laura, doctora en ciencias agrarias, que ganara en 2007 el Premio Internacional L’Oreal UNESCO; y Tomás, ingeniero con desempeño en una empresa pesquera. Los tres estudiaron en la Universidad Nacional donde fueron docentes Enrique y Mirta. Cuando Echarte partió, uno de sus alumnos –hoy arquitecto- lo definió en Internet con sentidas palabras: “el gran Pete, mi querido y mejor profesor”.

Agradecemos a:

Diario La Vanguardia de Balcarce y Familia Echarte

138 Especial Aniversario CABPA 30 años

ARQ. DANIEL HUGO FALVELLO

La Costa

“…Llegó a la zona 38 años atrás, se desempeñó en la profesión con un importante número de obras ejemplarmente realizadas, y al mismo tiempo como histórico visador del CAPBA, es recordado por todos como el colega que resuelve los problemas y asesora a todos.

De trato amable y afectuoso y además un referente que se encarga siempre de conseguir que se reúnan y contacten todos los colegas y amigos….” Arq.

Podríamos escribir un día entero sobre nuestro amigo y colega, y aun así no terminaríamos de decir todo lo que representa para los colegas de La Costa y todo lo que su vida envuelve de interesante: su profesión, el incansable aporte al colegio, sus actividades personales “hobbies”, su forma de ser valorada porque siempre podés contar con él. Padre sustituto, hermano, tío, confidente de aquel que abra esa puerta de amistad y confianza, sea joven o sea viejo, incansable trabajador del optimismo y compañero por sobre todo.

En la profesión se dio el gusto de hacer lo que quiso, propio y ajeno. Domina el lápiz del buen gusto y el equilibrio económico, fundamental para sentirse realizado; seguro no queda nada pendiente.

Para el CAPBA, un ejemplo y para nosotros los colegas de La Costa, una institución en su propia persona. Resolutivo y ejecutivo, fue el primer visador, el actual y el único en 30 años del colegio, vio pasar mucha agua bajo el puente.

Moscas y uvas se disputan el segundo puesto de sus pasiones, amante de la pesca con mosca y del buen vino. Militante y estudioso de estos géneros desde hace años, no hay trucha que se escape y bodega sin conocer.

Vaya a saber por qué -nunca se lo pregunté- no tuvo hijos, pero créanme a más de uno adoptó como tal, a quien pregunte por él la respuesta siempre será buena. Siempre con una palabra de aliento, despejándote dudas, motivando a que te embarques en aquel sueño que tantas noches no te dejó dormir, siempre firme al pie del cañón, sea por lo que sea, compañero de una y mil variadas aventuras, con uno o con otro, siempre lo encontrarás dispuesto.

Celebramos el tenerte como amigo y colega, brindamos por tu felicidad amigo querido Daniel Hugo Falvello.

Arq. Cristian Lopez Rivolta Delegado La Costa
SEMBLANZAS 139

ARQS. GUILLERMO GABRIEL LINARES Y HÉCTOR LUIS BERMÚDEZ

Miramar

Guillermo Linares nació en Buenos Aires el 13 de agosto de 1921. Allí estudió en las Escuelas Nacional y Superior de Bellas Artes, y en 1946 egresó de la FAU de la UBA. Siendo titular de la Dirección de Acción Cultural en la Municipalidad de Buenos Aires, proyectó con lonas y estructuras de andamios de obra el "primer teatro carpa", dirigido por Francisco Petrone, en Parque Lezama, Belgrano, Plaza Irlanda, Chacarita y Retiro. En 1965 hizo construir el Teatro Caminito. Paralelamente a esta destacada actividad municipal ejerció la docencia universitaria en la UBA. El golpe militar que derrocó al Presidente Illia en 1966, lo separó abruptamente de todas sus actividades. Entonces, en 1973 se radicó en el Barrio Parque Bristol de Miramar, con su compañera Marta Pisoli Olsen, artista plástica. Aquí, pudo desarrollar y sintetizar junto a ella sus singulares conceptos acerca del "hábitat ecológico” y humano, construyendo artesanalmente el grupo arquitectónico de su “casa-cúpula", su “estudio-torre" y el “Atelier” de Marta. En 1980 de manera generosa, sencilla y respetuosa con el medio ambiente, proyectó y dirigió en el Vivero Dunícola F. Ameghino, un espacio de encuentro con Dios en el silencio, que con planos mínimos refugia la imagen de la Virgen de Lourdes. Lo hizo con piedras llevadas por feligreses desde la costa y troncos del propio vivero cruzados a dos aguas como manos en oración.

Tuvo tres hijos, Guillermo y Pablo, arquitectos como él y Laura, periodista. Falleció con apenas 67 años de edad, luego de 15 años de desarrollo profesional en Miramar, en abril de 1988.

Héctor Bermúdez, más conocido como “el negro” Bermúdez, nació en Miramar y desde que se recibió de arquitecto en la FAU de la UBA, en 1975, desarrolló su profesión en el partido de General Alvarado y especialmente en su ciudad natal. Se destacan en él sus condiciones personales, un desempeño profesional que con esfuerzo y dignidad, mantuvo siempre una línea de conducta ética. Durante estos más de 40 años, en los que trabajó en forma constante, ha podido desarrollar el proyecto y la dirección de variados programas de arquitectura: viviendas, el jardín de infantes “El Principito”, la galería comercial “Down Town”. También fue Director de Obras en la Municipalidad de General Alvarado.

Consciente de la importancia ambiental-ecológica y recreativa del Vivero Dunícola Florentino Ameghino de Miramar, como integrante en los años ´70 y ´80 de las Comisiones Directivas de su Asociación Cooperadora -entidad que inclusive llegó a presidir-, se negó a proyectar en dicho predio, un camping, aun en contra de sus propios intereses económicos y profesionales.

Junto a la Asociación de Arquitectos de General Alvarado, entidad que presidió a mediados de los años noventa, integró el equipo que proyectó la peatonal de Miramar.

Arq. Enrique Malbrán Miramar
140 Especial Aniversario CABPA 30 años

ARQ. MANUEL CARLOS ADOLFO ROSSO

Necochea

El arquitecto Rosso nació el 11 de junio de 1930 en Capital Federal y se recibió de arquitecto en la UBA el 11 de julio de 1956. Se radicó en Necochea en 1959 y con su esposa Blanca Rasmussen tuvieron siete hijos.

Fue el fundador y primer presidente del Centro de Profesionales de la Ingeniería (CPI) de Necochea, que nucleaba a arquitectos, ingenieros y maestros mayores de obra, previo a la formación del CAPBA. Su labor arquitectónica la desarrolló mayormente con el diseño de viviendas particulares. Era un enamorado del barroco americano (arte colonial), y esta pasión se refleja en algunos de sus proyectos.

Entre sus obras públicas se destacan la Escuela Técnica Nº 2, la restauración y remodelación del interior del templo Santa María del Carmen de Necochea, el diseño de los templos de la Sagrada Familia (calles 73 y 72), de la Inmaculada Concepción (calles 74 y 47) y Santa Teresita (calles 55 y 96).

También fue asesor técnico del Banco Hipotecario hasta su jubilación, al tiempo que se desempeñó como profesor en varios establecimientos de la ciudad, destacándose en la

Escuela Técnica Nº2, en la modalidad de Maestro Mayor de Obra. Trabajó, asimismo, como asesor ad honorem del Obispado de Mar del Plata supervisando los proyectos de los templos y controlando que se adecuaran a la liturgia del culto católico. También es recordado por haber sido secretario de obras públicas de la Municipalidad de Necochea.

Fue una persona inquieta y preocupada por la comunidad en aspectos sociales, integrando comisiones, cooperadoras y organizaciones políticas, al tiempo que un cristiano católico practicante, fuertemente comprometido con la Iglesia.

Este gran padre de familia, recordado por ella también como esposo amoroso, falleció el 6 de marzo de 2010, en la ciudad de Necochea. Fiel a sus principios, de carácter vehemente, convencido de sus ideales, era curioso y ávido de conocimiento, un gran lector. Así lo demuestran su gran biblioteca personal -que abarcaba artes, música, literatura y ciencia- y sus numerosos viajes por todo el país, Latinoamérica, y algunos lugares de Europa y Asia.

SEMBLANZAS
Marina Rosso Artista plástica, hija del Arq. M. Rosso
141

ARQ. RICARDO ALEJANDRO SCHULZ

Pinamar

Elegir un colega destacado de la delegación no es tarea fácil. Nombres como Alicia Álvarez Iturregui o Gabriel Vidauli, con obras relevantes y participación activa y extensa en instituciones de la comunidad -y en el caso de esté último, también en política- son de destacar, al igual que tantos colegas de generación intermedia con obras de importante relevancia.

No obstante esto, me quiero detener en la figura de Ricardo Schulz, quien acaba de cumplir 40 años de arquitecto, con más de 200 obras construidas que han trascendido nuestro partido –ubicadas en provincia de Buenos Aires, CABA y el interior del país-.

Hablar de Ricardo es hablar del amor a la obra construida, la búsqueda de la exquisitez constructiva, el detalle, la calidad en todas sus facetas de la obra de arquitectura. Es destacar también el crecimiento del estudio, con la incorporación de sus tres hijos arquitectos, convirtiéndose en empresa familiar y con la producción de obras de diversa escala sin perder por ello la búsqueda de calidad, sello de la marca Schulz.

Es deber resaltar también el continuo aggiornamento en su extensa trayectoria, a partir de los cambios de la

producción arquitectónica que el mercado demanda y la evolución que la disciplina va marcando. El lenguaje original del estudio ha ido mutando y enriqueciéndose con propuestas de diversa escala y estilo.

También se destaca la participación del arquitecto Schulz en la comunidad: fue el primer presidente del Honorable Concejo Deliberante local en la vuelta de la democracia, allá por el año 1983; así como también el estudio que él integrara, donó los anteproyectos para la ENET Nº1 y la Terminal de Ómnibus, no construidos.

Destacar un colega es identificar los espejos en los cuales pueden reflejarse los colegas más jóvenes: el no perder las ganas de superación, el aprendizaje constante, la búsqueda del lenguaje que nos represente en nuestro trabajo, la necesidad de sostener valores de vida que se transmiten en la obra construida, la participación comunitaria brindando a nuestro medio el mejor saber para colaborar en una sociedad en constante crecimiento y con conflictos permanentes, entre tantas otras cosas.

Que el rescate de figuras como la de Alejandro nos sirva a los colegas para saber mirar al otro, para encontrar en cada uno la faceta que lo destaca. Todos somos necesarios, los de la actividad privada y los del Estado, los de la facultad y los concurseros, los de obra y los de tablero. Gracias a todos.

Arq. Ramón Uranga Delegado Pinamar
142 Especial Aniversario CABPA 30 años

ARQ. CARLOS ALBERTO DEFELICE

Villa Gesell

Recibido en la U.B.A. en los años ‘60, Carlos Defelice fue uno de los primeros arquitectos residentes en “La Villa” y se destacó por ser el proyectista de: La Terminal de Ómnibus, un edificio realizado con bóvedas de cañón corrido, en hormigón armado, construido por Silvio Gesell (Buby), El primer Acuario de Sudamérica, piletas redondas combinadas por un acceso y un anfiteatro al aire libre que proponía un recorrido sencillo y sensual definido por las curvas que caracterizan el proyecto; El edificio de apartamentos “Palodu”, con balcones en ladrillo visto y terminación con techos de tejas con reminiscencias de mansardas francesas; y gran cantidad de refacciones y ampliaciones en hotelería y viviendas unifamiliares.

Carlos demuestra una extraordinaria sensibilidad que se refleja en toda su obra, además de ser uno de los primeros en darle definición a la arquitectura de los años dorados de la “Villa”. Su obra es original y rica formalmente, además los temas arquitectónicos que se le proponían, eran de una gran relevancia para nuestra incipiente villa turística.

Su formación académica, la influencia del movimiento moderno, el profundo respeto y conocimiento de los materiales, hacen de Carlos Defelice uno de los referentes indiscutibles de la arquitectura gesellina, que llega “sabiendo lo que tenía que hacer”, y formando a otros colegas a través de su trabajo y de su prédica docente.

El entusiasmo por el lugar que visitó de niño, y el conocimiento de la familia Gesell determinaron que una vez recibido de arquitecto, se viniera definitivamente a vivir y formar su familia aquí.

Fuimos a buscarlo. Hoy tiene 82 años y algunos problemas de memoria, lo que no le impidió darnos una breve entrevista (8/11/2016) cálida y llena de sabiduría.

- ¿Cómo fue la realización del proyecto de la Terminal de Ómnibus?

- “La terminal fue más un proyecto concebido por Don Carlos. Entonces, hice los dibujos. A él le gustaba imponer sus ideas y yo le planteaba los problemas arquitectónicos. Por eso quedó como él pensaba que tenía que quedar más mal que bien”.

- ¿Quién le encomienda el Acuario?

- “Don Carlos. Es un proyecto simple. Lo pensamos mucho juntos, teníamos la idea de las piletas redondas, y bueno, tuve libertad para proponer, a él le gustaba hablar conmigo y a mí me gustaba hablar con él. Tenía una pileta y habíamos hablado de un lugar para los peces y yo pensaba en un “camino de personas entre esas piletas” así se fue conformando el proyecto”.

- El movimiento moderno ya estaba en conocimiento de los arquitectos de la época cuando se recibió. ¿Cómo se veía a sí mismo como arquitecto?

- “Sí, sí. Ya me gustaban los dos grandes, Wright y le Corbusier.

- Pero, ¿su relación con la modernidad no fue a través del uso del hormigón armado?

- No, acá no era un lugar para empezar con eso. Me gustaba mucho el ladrillo en ese sentido siempre fui medio hortelano, yo creé las formas nada más, pero los materiales me gustaron siempre naturales.

- ¿Cómo se describe, qué es lo fundamental para usted en la realización de un proyecto?

- “Siempre fui muy detallista. Me parecía que una obra tenía que tener un significado, decir algo de lo que pasaba allí adentro. No lo pensé como modernismo, pensé en qué había que hacer normalmente; siempre pensé que la forma en que el hombre trabaja las cosas… tiene que ver con la forma en que el hombre hace las cosas….”

- ¿Siempre le gustó dibujar?

- “Siempre fui un buen dibujante, eso habla de lo que tenés adentro. La creatividad sale de ahí, partís de lo que ves; el entorno es muy importante”.

- ¿Sigue proyectando?

- “No, ya no más; pero siempre está la cabeza llena de ideas. Si me dieran un proyecto aún podría empezar, sigo teniendo claro los primeros pasos: qué es lo primero, lo segundo y lo tercero…”

- Y ¿qué es lo primero?

- “El terreno, el entorno, su contexto…”

Arq. Marcela Di Marco

Villa Gesell

SEMBLANZAS
143
N. de la. R.: pocos días después de la entrevista y mientras esta revista estaba en proceso de edición y diseño (mes de diciembre), el Arq. Defelice falleció.

Perspectivas

“La mayor recompensa de nuestro trabajo no es lo que nos pagan por él, sino aquello en lo que nos convierte”

John Ruskin

(1819 - 1900) Escritor, crítico de arte, sociólogo, artista y reformador social británico

Desde su creación el CAPBA IX ha forjado lazos con la comunidad en forma constante y permanente. Fruto de esa vocación es el reconocimiento que diferentes instituciones brindan cotidianamente a nuestro colegio profesional, lo que permite el desarrollo de acciones conjuntas en temas de mutuo interés.

En esta ocasión, la Facultad de Arquitectura, Urbanismo y Diseño de la UNMdP, la Cámara Argentina de la Construcción Delegación Mar del Plata y el Centro de Constructores y Anexos de Mar del Plata expresan en la pluma de sus máximas autoridades mensajes, saludos y reflexiones por el 30º Aniversario del CAPBA.

“La felicidad está en la alegría del logro y la emoción del esfuerzo creativo”

32º

FACULTAD DE ARQUITECTURA, URBANISMO Y DISEÑO 30 años del CAPBA

Celebrar los 30 años del CAPBA es una fiesta. Pero también significa compartir, valorar y reconocer el aporte que, como organismo de Ley, ha brindado a los matriculados, a la provincia y, en el caso del Distrito IX a las ciudades que lo integran. Significa también reconocer los esfuerzos de nuestros primeros graduados que junto a muchos otros arquitectos de toda la provincia fueron explorando formas de asociarse, de defender y de dignificar la profesión. No ha sido obra de la casualidad que no fue sino hasta la recuperación de la democracia en que se halló un formato definitivo. Tres décadas en la historia de una profesión antiquísima, es sólo un comienzo. Es apenas un peldaño en el tiempo. Debe servir para mirar más lejos.

La historia de la Facultad de Arquitectura de la Universidad Nacional de Mar del Plata es equivalente. Nuestra facultad en abril de 1986 también tuvo un hito fundante. Si bien ya contaba con unas quince promociones de graduados, aquella fue la primera vez que pudimos elegir democráticamente a nuestras autoridades para consolidar un proyecto de excelencia académica comprometido con los problemas centrales de nuestra sociedad. Proyecto que fue generando los relevos en cada ciclo, para afrontar nuevos desafíos acerca de cómo construir y reproducir conocimientos, cómo formar profesionales capaces de abordar con solvencia los problemas del territorio, la ciudad, la arquitectura y el diseño con un hondo contenido humanístico. Por eso la relación entre el Colegio y la Facultad también transitó estos mismos 30 años, en ocasiones coincidiendo, en otras perdiendo proximidad, pero siempre interactuando. Son organismos bien diferentes, con propósitos diferentes y modelos organizacionales también muy diferentes, pero con principios comunes. Cualquier balance o recorte que hagamos demostrará que ha prevalecido la cooperación y el fortalecimiento mutuo. Construir una sociedad mejor implica formar a quienes problematizan, a quienes proponen y a quienes hacen, con una mirada tan crítica como creativa. En esas 3 dimensiones el Colegio y la Facultad han coincidido permanentemente en una agenda que se nutrió de múltiples perspectivas y acciones que permitieron confrontar ideas para cumplir cada institución con su cometido.

La huella de los arquitectos formados en nuestra facultad agrupa calidades variables y lenguajes en clave contemporánea. Son muchos los proyectos y obras premiadas, abundantes las publicaciones especializadas que recogen ejemplos de buena arquitectura e intervenciones urbanas, así como la exploración de lógicas de producción del hábitat desde la función pública, desde el ejercicio liberal o desde la participación en puestos claves de las empresas constructoras de la región. Sin embargo, todavía falta mucho para sentirnos satisfechos. Hemos sido contemporáneos a un proceso que afianzó las libertades democráticas al tiempo que produjo y consolidó desigualdades sociales que han encontrado todas las formas posibles de ser representadas por la arquitectura. Convivimos con gruesas contradicciones, con frustraciones, acumulando batallas perdidas en términos ambientales, de planificación urbana, de preservación patrimonial, de acceso a la tierra, de calidad urbana y edilicia, pero seguimos dando pelea. Porque los desafíos de cara al futuro tienen la misma complejidad que la sociedad en la que vivimos. No podemos corregir el pasado, pero podemos hacer mucho por aprender de los errores y generar el marco institucional que garantice la prevalencia de nuevos caminos, predominantemente virtuosos. Hacer ciudad y arquitectura como expresión de la búsqueda por revertir los procesos que envilecen la calidad de vida de muchos ciudadanos en favor de unos pocos, requiere renovar el compromiso social de los arquitectos, desde la excelencia académica, hasta el ejercicio profesional. Sin dudas el gran título de la agenda de trabajo que habremos de compartir entre la Facultad y el Colegio en los próximos años.

PERSPECTIVAS
145
Arq. Guillermo Eciolaza Decano FAUD UNMdP

CÁMARA ARGENTINA DE LA CONSTRUCCIÓN Mensaje

A través de estas breves líneas deseo saludarlos por el nuevo aniversario del Colegio de Arquitectos de la Pcia. de Buenos Aires, Distrito IX. Es un 2016 que en cierta forma nos encuentra a ambas entidades de festejos, porque vuestro 30º aniversario se da en el marco de nuestro 40º aniversario como Delegación de la Cámara Argentina de la Construcción en la ciudad, lo que marca un paralelismo histórico de trabajos en común y un recorrido de muchos avatares cíclicos de la industria. Pero sin duda, es un año festivo para ambos.

Mar del Plata es un ejemplo notable y contundente de cómo la Construcción ha permitido amalgamar un área de grandes atractivos naturales con una verdadera ciudad pujante, moderna, agradable y atractiva todo el año. Y esa transformación se plasmó por el trabajo de cada uno de los actores de la cadena de valor de la industria, del cual los arquitectos son protagonistas relevantes a través de su conducción colegiada, que con una visión integral y estratégica supieron trabajar por los derechos del sector que representan.

En estos 30 años de vida Institucional sus profesionales han tenido que afrontar con creatividad y empuje las crisis de la industria, pero siempre lo han hecho con responsabilidad y adaptabilidad a los cambios. Queda mucho por hacer aun, porque los cambios de los niveles de actividad han deteriorado las estructuras productivas vigentes que deben ser ampliadas y modernizadas de cara a un nuevo concepto de sustentabilidad. Y es nuestro sector el que deberá concretar la construcción de los puentes, las fábricas, las viviendas, los caminos, las escuelas y todo el tejido social que requiere el desarrollo y el progreso sostenido en un ambiente sustententable.

Las proyecciones de crecimiento para el año próximo de las partidas para inversión en obras públicas, incluidas en el proyecto de Ley de Presupuesto acompañan el crecimiento de los indicadores de actividad privada futura que son los permisos de construcción. Así esperamos que esto contribuya a la consolidación de la expansión, y la promoción de soluciones para el financiamiento de la vivienda para los sectores sociales más vulnerables.

Debemos seguir en el camino del trabajo compartido del Foro Sectorial de la Construcción, y estar preparados, no sólo en lo profesional, sino también en la capacitación y la adquisición de nuevos conocimientos para nuestros trabajadores, porque se vislumbran años de actividad intensa y protagonismo creciente.

Por ello queremos ratificar y poner a disposición de ustedes toda la experiencia y el conocimiento que tiene la Cámara Argentina de la Construcción y que brinda desde su Delegación Mar del Plata, para que se sientan acompañados, con tecnología, cursos de capacitación y herramientas competitivas.

Los 30 años del Colegio de Arquitectos es mucho tiempo y también los 40 de nuestra Delegación, pero no son tantos si son observados dentro del mandato histórico al que la actividad de la construcción ha sido llamada, y es el de convertirse en la industria del bienestar humano.

En nombre de la Cámara Argentina de la Construcción Delegación Mar del Plata, y de su Comisión Directiva, les hago llegar un fraternal saludo y un especial reconocimiento a los Directivos, a sus matriculados y desearles lo mejor para los años venideros.

146 Especial Aniversario CABPA 30 años
Cámara Argentina de la Construcción Delegación Mar del Plata

CENTRO DE CONSTRUCTORES Y ANEXOS Como en la Obra…

“El arquitecto es el hombre sintético, el que es capaz de ver las cosas en conjunto antes de que estén hechas”. Antonio

“La arquitectura es el punto de partida del que quiera llevar a la humanidad hacia un porvenir mejor.”

“Los problemas que se ponen hoy a la arquitectura son sobre el futuro de nuestras ciudades, y el reto es hacerlas más humanas”

“La arquitectura es una profesión compleja, es un servicio público, es un arte”.

Estas palabras de grandes maestros de la arquitectura enmarcan la profesión en un sendero humanista, artístico y pragmático. Es indudable que cada arquitecto tiene una mirada sobre su profesión, pero ésta está siempre íntimamente relacionada con el hacer para el otro, característica que tienen como factor común quienes trabajan en el sector de la construcción.

Desde el Centro de Constructores consideramos que los arquitectos son una pieza fundamental dentro del proceso de una obra, ya que con ellos se inicia la concreción de un sueño. Vemos a la obra de construcción como un conjunto de actividades artesanales, técnicas y profesionales que se complementan para hacer realidad un diseño. Todos aportan para hacer realidad un proyecto, y es ahí donde comienza la labor de la edificación de un espacio en el que descansarán, trabajarán, se divertirán, estudiarán, sanarán y transcurrirá la vida de diferentes personas. Nuestras vidas transitan en torno a esos espacios.

Creemos que todo se inicia en la intención que tiene alguien de hacer algo, el arquitecto luego interpreta y expresa en una actividad creativa ese deseo, y a partir de esto, múltiples actores aportan su trabajo, experiencia y técnica para hacerlo realidad. Así como esto se da en una obra, el mismo entramado está presente en el conjunto de entidades que representan al sector, con las distintas participaciones que cada una tiene en la construcción.

Este entramado se ha ido formando a medida que la actividad fue creciendo y los distintos actores fueron encontrando su representatividad a través de diferentes instituciones. Estamos convencidos que uno de los hitos que marcaron el curso de la historia del sector de la construcción en nuestra ciudad fue la creación de la Facultad de Arquitectura. Este hecho no fue casualidad, se veía la necesidad de crear la carrera en Mar del Plata, la ciudad que crecía exponencialmente. Sin dudas esto impulsó a uno de los dirigentes más importantes en la historia del Centro de Constructores a formar parte de aquel grupo de diez empresarios que propiciaron que Mar del Plata tuviera una Universidad pública.

Otro de los hitos trascendentes de la rica historia de la construcción en la ciudad, fue la apertura del Distrito IX del Colegio de Arquitectos en Mar del Plata, como consecuencia de la

sanción de la Ley 10405. El 1 de julio último, se cumplieron treinta años de la institucionalización de la profesión de arquitecto, que se dio a partir de la creación del Colegio de Arquitectos de la Provincia de Buenos Aires.

Estos dos grandes acontecimientos (la creación de la Facultad de Arquitectura y el establecimiento del Colegio de Arquitectos) fueron una bisagra en la historia profesional de esta actividad, y también lo fueron en el desempeño institucional del sector de la construcción en la ciudad. No sólo porque posibilitaron la jerarquización de la profesión y aportaron institucionalidad y organicidad al ejercicio de la arquitectura, sino porque también permitieron completar y enriquecer la representatividad del sector.

En este marco, hace mucho tiempo que se inició un proceso de trabajo en común entre el Colegio de Arquitectos y el Centro de Constructores y Anexos, teniendo su punto de partida en aquel evento organizado en forma conjunta hace casi veinticinco años, el exitoso Seminario de Gerenciamiento en la Construcción. Luego siguieron participaciones del Colegio en Expo-construcción y distintas actuaciones conjuntas encaradas a partir de cuestiones que afectaron al sector. Llegando finalmente a la actual y activa relación que se mantiene en distintos espacios comunitarios y en especial a través del Foro de la Construcción, junto a todas las entidades de la Industria de la Construcción de nuestra ciudad.

El Centro de Constructores reconoce al Colegio de Arquitectos de la Provincia de Buenos Aires, como una entidad que ha sido protagonista en las cuestiones comunitarias de nuestra ciudad en los últimos treinta años. Creemos también que su aparición en la vida institucional ha permitido completar el entramado de actores en la representación orgánica del sector.

Desde hace tres décadas la realidad institucional cuenta con todos los actores de la obra. Ahora estamos todos presentes y listos para construir. En ese contexto las coincidencias y diferencias nos permitirán avanzar como hasta ahora, y seguramente discutiremos como en la obra, pero a sabiendas que nuestro norte persigue un mismo objetivo: ¡CONSTRUIR!

148 Especial Aniversario CABPA 30 años

Turn static files into dynamic content formats.

Create a flipbook
Issuu converts static files into: digital portfolios, online yearbooks, online catalogs, digital photo albums and more. Sign up and create your flipbook.