InfoCAPBA IX

Page 1

Camino a los 30 años

El Colegio de Arquitectos de la Provincia de Buenos Aires acaba de cumplir 29 años desde su creación mediante la sanción de la Ley 10405 el día 27 de junio de 1986. El CAPBA plasma, en los albores de la reciente etapa de la democracia argen na, el esfuerzo que muchos colegas en todo el territorio de la Provincia de Buenos Aires hicieron para conseguir pasar de las Asociaciones de Arquitectos a una Colegiación que los agremiara y representara tanto en la regulación de su ac vidad como en la defensa de sus intereses y problemá cas.

En ese sen do, el camino que nos llevará a celebrar los 30 años del CAPBA nos propone repensar el rol de nuestro colegio, así como reconocer los cambios tanto a nivel social como en el ejercicio de nuestra profesión, para reforzar junto con nuestros matriculados la estructura de las próximas décadas para nuestra Ins tución.

En esta edición de Info CAPBA IX compar mos temá cas que inciden en nuestro ejercicio profesional, difundiendo los nuevos valores referenciales para el cálculo de los honorarios mínimos de referencia, las modificaciones que introduce el nuevo Código Civil y Comercial de la Nación, nuevas norma vas colegiales, así como modificaciones en los subsidios CAPBA y temas vinculados a asuntos previsionales desarrollados en profundidad para el conocimiento de los matriculados.

Como siempre, compar mos obras desarrolladas por colegas del Distrito y las estadís cas que muestran el desarrollo de nuestra ac vidad en la región del sudeste de la provincia. Además de ello, se detalla alguna de las acciones realizadas en defensa de las incumbencias profesionales de los Arquitectos.

La ges ón del desarrollo urbano sustentable cuenta con ar culos en su sección que muestran el complejo escenario en el que los arquitectos operamos, estudiando diferentes procesos urbanos, así como promoviendo la realización de concursos públicos de arquitectura y urbanismo, difundiendo el patrimonio arquitectónico, la evolución de diferentes herramientas aplicables al uso eficiente de los recursos y por supuesto los aspectos que hacen a una ciudad inclusiva y accesible.

Sin embargo, existen temá cas a abordar que se encuentran estrechamente relacionadas con el reconocimiento a los colegas que han realizado un valioso aporte a la construcción del acervo cultural y profesional de nuestra Ins tución. La derogación de la resolución provincial que ins tuía la figura del matriculado vitalicio ha sido un retroceso en la vida ins tucional que debemos rever r y logar los medios que nos permitan afianzar la inclusión y par cipación aún después de haber dejado la plena ac vidad profesional sin que ello signifique resignar su condición disciplinar y el reconocimiento de su Colegio Profesional.

Finalmente, compar mos con todos nuestros colegas el logro de la Ins tución en su conjunto en la ampliación de los medios de comunicación, con la propuesta audiovisual de Espacio 9 TV. Este nuevo proyecto, acercará a la ins tución y a sus matriculados a la comunidad, mostrando su quehacer y las problemá cas urbano sociales que nos preocupan y ocupan. Como siempre invitamos a nuestros colegas a sumarse a esta inicia va y otras que se desarrollan desde la ges ón distrital.

EDITORIAL
capba IX 01

Publicación Ins tucional del Colegio de Arquitectos de la Provincia de Buenos Aires

Distrito IX

Distribución Trimestral Gratuita

Edición 2.100 ejemplares

Año 4 | Nº 11 | Junio de 2015

ISSN 2346-9595

capba IX

Los ar culos publicados expresan los puntos de vista de sus autores y no necesariamente representan los de la Ins tución. Los ar culos sin firma son conocidos por el Consejo Editor y su responsabilidad úl ma recae en el Director a cargo.

Se autoriza la reproducción total o parcial de los ar culos contenidos en la misma con el compromiso de citar la fuente.

Si desea auspiciar en esta publicación, comunicarse a bole n.capba9@hotmail.com ó bole n.capba9@gmail.com o bien consultar en la Sede del CAPBA DIX, Dorrego 1657 de la ciudad de Mar del Plata, tel (0223) 473-3031, 473-8282 o 474-3944, donde se le brindará todas las referencias de contacto.

DIRECTOR

Arq. Julia Romero

CONSEJO EDITOR

Arq. Daniel Monzón

Arq. Bruno Mazzini

Arq. Analía Benítez

COLABORADORES

Arq. Laura Romero

Arq. Alicia París

Arq. Adriana Olivera

Sra. Analía Flores

ARTE Y DISEÑO

Valeria Burkhard

FOTOGRAFÍA

Karina Beltran

LOGÍSTICA, PUBLICIDAD Y MARKETING

Cepei Comunicación SRL

INTRO

01| EDITORIAL.

02| SUMARIO. STAFF.

EJERCICIO PROFESIONAL

04|HONORARIOS PROFESIONALES. Nuevos Valores Referenciales.

05|MEDIOS DE PAGOS HABILITADOS. Reclamos de deuda.

06|NORMATIVA. REPRESENTACIÓN TÉCNICA. Los roles profesionales en licitaciones públicas o privadas en la Provincia de Buenos Aires. RESOLUCION Nº 49/14.

10|LEGISLACIÓN. GPS DE ARQUITECTURA LEGAL. Aplicación del nuevo Código Civil y Comercial de la Nación. Dr. Daniel Butlow.

14|OBRAS EN EL DISTRITO IX. Biblioteca Central de la UNMdP. Arq. Daniel Villalba.

20|OBRAS EN EL DISTRITO IX. Vivienda mul familiar. Arq. Juan Mar n Romero Mezzadra.

GESTIÓN DEL DESARROLLO

URBANO SUSTENTABLE

26|URBANISMO. Urbanizaciones cerradas. “Contenedores” de la expansión urbana de la ciudad de Mar del Plata. Arq. Adriana Olivera.

30|ACCESIBILIDAD. La accesibilidad urbano-edilicia en la ciudad de Mar del Plata. Arq. Héctor Bonavena

34|SUSTENTABILIDAD. MAPAS INTELIGENTES. La evolución de la cartogra a tradicional. Arq. Horacio Goyeneche.

40|CONCURSOS. ENTREGA DE PREMIOS. Concurso de Ideas y Anteproyectos para la puesta en valor urbano y reacondicionamiento del predio de la Planta de Pretratamiento de Efluentes “Ing. Alberto Baltar” en Mar del Plata.

48| PATRIMONIO. El período rús co (1935-1945) de Córsico Piccolini. Arq. Manuel Torres Cano.

ASUNTOS PREVISIONALES

52|ASUNTOS PREVISIONALES. Contribución Previsional por obras

capba IX 02

Publicación Declarada de Interés por :

sin permiso. El Art. 29º de nuestra actual Ley de Previsión. Arq. Roque Nóbile.

55|PRESTAMO HIPOTECARIO CAAITBA. El Consejo Superior acepta un préstamo de la Caja de Previsión.

SOCIAL Y GREMIAL

58|NUEVOS MATRICULADOS. Acto de entrega de credenciales.

59|DÍA DEL ARQUITECTO. El 1º de Julio se homenajea a los arquitectos en Argen na.

60|CICLO DE ARTES PLÁSTICAS EN EL COLEGIO DE ARQUITECTOS. Arte y Arquitectura.

62|SISTEMA DE SUBSIDIOS DEL FONDO DE SALUD CAPBA. Ampliación de la cobertura de salud.

64|ARQUITECTOS VITALICIOS. Fue derogada la resolución provincial que preveía este reconocimiento.

CAPACITACIÓN Y ACTUALIZACIÓN PROFESIONAL

66|CAPACITACIÓN EN TODO EL DISTRITO Promediando el año, las ac vidades se intensifican y se suman nuevas propuestas.

70| PRESENTACIÓN DE CONFERENCIAS DE ARQUITECTURA 2015 “Construir Ciudad, Hacer Arquitectura”.

71| CICLO DE CONFERENCIAS DE ARQUITECTURA 2015. Conferencia Arq. Pablo Pschepiurca.

PROGRAMA

COMUNICACIONAL

78|HOMENAJE. Frei O o, el señor de las tenso-estructuras. 2015, Primer Premio Pritzker, póstumo.

80|INTERNACIONAL. La n America in Construc on: Architecture 1955–1980. El reconocimiento internacional a la Casa sobre el Arroyo.

82|ESPACIO 9 TV. El CAPBA IX inauguró un nuevo espacio de comunicación.

INSERCIÓN PROFESIONAL

84|LA ACTIVIDAD PROFESIONAL EN EL CAPBA IX DURANTE EL 2014. Análisis de la performance desarrollada.

86|INCUMBENCIAS TÍTULO DE ARQUITECTO. Reclamo ante OSSE para la intervención en tareas de ges ón ambiental.

FORTALECIMIENTO Y VÍNCULOS

INTERINSTITUCIONALES

88|DELEGACIONES. BALCARCE. Taller de Trabajo Urbano.

91|DELEGACIONES. VILLA GESELL. Convenio Interins tucional con el Municipio.

92|DELEGACIONES. NECOCHEA. Reinauguración de la Delegación.

94|DELEGACIONES. MIRAMAR. Bienal internacional de Arte.

96|#NI UNA MENOS. El Colegio de Arquitectos adhirió a la convocatoria.

SUMARIO capba IX 03

Honorarios Profesionales

Nuevos Valores Referenciales

Como sucede en los úl mos años, los valores referenciales para la determinación de aportes previsionales por honorarios profesionales conforme lo resuelto por Asamblea Anual de Representantes de la CAAITBA, sufren modificaciones en dos oportunidades: los meses de marzo y sep embre. Desde el 1º de marzo de 2015 los valores se rigen por Resolución CAAITBA nº 571-15, y los mismos cambiarán a par r del 1º de sep embre del corriente año. Es por esto que en la presente edición exhibimos los Valores Referenciales de ambos períodos. Cabe señalar que al cierre de este número, las resoluciones correspondientes tanto de la CAAITBA como del CAPBA no se encontraban emi das por lo que los valores exhibidos son parciales y restan aquellos que se completarán con las mencionadas resoluciones. Como siempre toda la información actualizada para la determinación de los Honorarios Profesionales se puede consultar en el si o web del Distrito IX, www.capba9.org.ar solapa Área Técnica. También se encuentran a disposición en Sede y delegaciones en formato papel las tablas desarrolladas vigentes, las que enen un formato más completo y con referencia a las Resoluciones CAPBA Nº 03-15 y 0415 que determinan los Valores Referenciales y CEP. Desde el CAPBA IX se recomienda a todos los colegas u lizar el sistema CAPBA en línea, no sólo para la confección de previsados de tareas profesionales encomendadas, sino además para la es mación previa de Honorarios Profesionales. Esto es posible simulando un previsado y guardándolo temporalmente hasta la confirmación de la encomienda profesional. Esto facilitará la tarea y agilizará los empos de visado.

Valores Referenciales desde el 1/3/2015

Valor Referencial (u. arancelaria):

$ 7.200,00

CEP Mínimo: $270,00

F.C.: 360

Honorario Mínimo:

$ 1.800,00

Medición e Informe Mínimo:

Vivienda Standard hasta 100 m2 $ 3.376,00

Resto de las Categorías $ 5.623,00

Timbrado: 12.5 ‰

Art. 29 (Caja)

10% de Proyecto y Dirección

CMAO: vigente desde 01/03/15

$ 14.400,00

Valores Referenciales desde el 1/9/2015

VR (unidad arancelaria): $ 7.800,00

CEP Mínimo: a determinar por el CS

F.C.: 390

Honorario Mín.: $ 1.950,00

Med. e Inf. Mín.: Viv. hasta 100 m2 a determ. CAAITBA

Resto Cat. a determ. CAAITBA

Timbrado: 12.5 ‰

Art. 29 (Caja)

10% de P y D

CMAO: desde 01/09/15

$ 15.600,00

capba IX 04 EJERCICIO PROFESIONAL

Medios de pago habilitados

Es mados Colegas, les informamos que con mo vo de propender a la bancarización total de los ingresos desde el 15-10-2012 no se acepta el pago de la CEP en efec vo en oficinas de la Sede Distrital ni en Delegaciones del CAPBA DIX. Asímismo les detallamos los sistemas y medios de pagos por los cuales se podrán realizar los aportes correspondientes, cuyos ckets deberán ser adjuntados a la documentación técnica al momento del visado

DEPÓSITO BANCARIO

BANCO PROVINCIA DE BUENOS AIRES

Mediante depósito en cuenta corriente Nº 11575/1 Suc. 6100 en cualquier sucursal del Banco. Consulte sucursales en h ps://www.bancoprovincia.com.ar

BANCO CREDICOOP

Mediante depósito en cuenta corriente Nº 3067-1 Filial 089 Consulte sucursales en h p://www.bancocredicoop.coop

BANCO GALICIA

Mediante depósito en cuenta corriente Nº 00002903790833 Suc. 083

TRANSFERENCIA BANCARIA

CUIT CAPBA DIX 30-68994042-7

BANCO PCIA DE BS AS. CBU 0140415301610001157512

BANCO CREDICOOP. CBU 1910089655008900306714

BANCO GALICIA. CBU 0070083220000029037937

CHEQUES

CHEQUE PERSONAL. A la orden de Colegio de Arquitectos de la Provincia de Buenos Aires.

CHEQUE DE TERCEROS. A la orden del profesional y endosado.

OTROS MEDIOS DE PAGO RIPSA PAGOS Únicamente con tarjeta personalizada que deberá retirar en sede distrital o delegaciones. Consulte centros de pago en h p://www.ripsa.com.ar. Para el pago deberá indicar al cajero el concepto por el cual se realiza el depósito (01. Matrícula, 02. CEP, 03. Cursos, 04. Compras Comunitarias, 05. SUM). Es importante recordar que la empresa RIPSA no cobra boletas de aportes previsionales de la CAAITBA.

TARJETAS DE CRÉDITO (en Sede Distrital y Delegaciones) Visa o Mastercard.

TARJETAS DE DÉBITO (en Sede Distrital y Delegaciones) Visa Electrón o Mastercard.

PROVINCIA NET Se encuentra vigente como nuevo medio de pago la tarjeta personalizada de provincia Net, la cual debe ser re rada en Sede Distrital y/o Delegaciones del CAPBA IX. La modalidad de operación es mediante código de barras en el plás co a nombre del matriculado que con ene los datos de éste y, quien deberá indicar al operador de caja el importe y el concepto a pagar. Luego el cket original emi do debe ser anexado a la documentación a presentar o comunicarlo al área de matrícula o de tesorería según corresponda por el po de trámite. Importante: este medio de pago no es para u lizarse en sucursales del Banco Provincia, debe presentarse en agencias de pago BAPRO o PROVINCIA NET.

Reclamos de Deudas de CEP y Matrícula

Es mados colegas, les informamos que según lo instruido por el Consejo Superior del CAPBA por Resolución N° 85/14, actualmente se está no ficando las deudas en concepto de CEP y Matrícula que constan en los registros del sistema informá co.

Asimismo, les comunicamos que desde el Sistema de Autoges ón CAPBA en línea se puede acceder a la información sobre la deuda registrada, consultar su concepto y verificar su correspondencia. El acceso al sistema de autoges ón debe ser habilitado por el CAPBA para lo cual debe acercarse al Distrito de pertenecía a efectos de solicitar la habilitación de su usuario personalizado.

Los esperamos en Sede Distrital y/o Delegaciones del CAPBA IX para regularizar la deuda que le fuera informada.

Tesorería CAPBA IX

MEDIOS DE PAGO capba IX 05 EJERCICIO PROFESIONAL

Representación técnica

Los roles profesionales en licitaciones públicas o privadas en la Provincia de Buenos Aires.

A par r de la Resolución Provincial Nº 49/14 queda es pulado el rol de la “Representación Técnica” eliminando la habitual confusión con el de “Dirección Técnica de Empresa”. La Resolución establece los casos de obligatoriedad de contratación y funciones.

LA PLATA, 14 de mayo de 2014.

RESOLUCION Nº 49/14

Grupo: 3-c

VISTO la necesidad de contar con una Resolución que clarifique lo inherente a los roles correspondientes a “Director Técnico de Empresa”, “estudio y preparación de propuestas en licitaciones”, y “Representación Técnica”, con relación a la obligatoriedad de contratación por parte de todo contra sta, en el marco de las obras y suministros públicos y privados; y CONSIDERANDO que dispone con precisión el ar culo 6 de la ley 10.405 que “Toda empresa que se dedique a la ejecución de trabajos, ya sean éstos públicos o privados, a nentes a lo determinado en la presente ley, contará con un representante técnico de profesión Arquitecto que deberá reunir los requisitos exigidos en el ar culo 2°, u otros profesionales y/o técnicos habilitados por otras normas legales vigentes para la cumplimentación de la función”. Y que concordantemente disponen las leyes 10.321, 10.411 y 10.416;Que la ley de obras públicas 6.021 no alude a la “Dirección Técnica de Empresa” sino a la “Representación Técnica”, en sus ar culos 17, 24 y ccdtes.

Que, entre las pocas menciones a un Director Técnico de Empresa (por lo demás, infrecuente y/o inexistente en otras jurisdicciones provinciales y en la legislación nacional) puede citarse el decreto reglamentario de la ley 6.021, donde por ejemplo se alude a él mencionándolo indis ntamente junto con los Representantes Técnicos). Debiéndose puntualizar que a la fecha de sanción de la ley 6.021 se encontraba vigente la ley 4.048, que en su ar culo 6 disponía en el mismo sen do que las cuatro (4) que la derogaron -citadas en el primer considerando-, estableciendo con carácter obligatorio el rol de Representante Técnico. Es decir que nunca un decreto reglamentario pudo válidamente disponer en contra del bloque de legalidad;

capba IX 06 EJERCICIO PROFESIONAL

Que desde an guo, el ex Consejo Profesional de la Ingeniería ha decidido (en uso de su competencia reglada por la ley 5.140 y por el art. 21 del tulo I del decreto 6964/65) que la tarea de representación técnica comienza con el estudio de la documentación respec va (Res. C.P.I.B.A. 2868/81). Es decir, resulta exigible desde la primera presentación de un contra sta en el marco licitatorio, con prescindencia de que el mismo sea o no adjudicado. Y aún para aquel empresario que únicamente re rarse los pliegos y planos y, luego de estudiarlos, decidiese no ofertar; Que en orden a lo expuesto, la figura de “Director Técnico de Empresa” provee a los fines registrales establecidos en reglamento del ar culo 15 de la ley 6.021, de donde se colige que el rol únicamente provee lo necesario para otorgarle capacidad técnica y, a lo sumo, puede admi rse que una empresa, con su solo concurso, adquiera los pliegos de licitación.

Que el CAPBA ha decidido, mediante Resolución 17/10, que la labor iden ficada como “estudio y preparación de propuestas en licitaciones” integra la Representación Técnica.

Que por lo expuesto, y con prescindencia de que medie o no relación de dependencia, cabe calificar a la Dirección Técnica de Empresa como una tarea profesional a veces dis nta (si el Director se limita a prestar su concurso al solo efecto de la inscripción registral a que alude la ley 6.021), y, a veces en parte superpuesta con la del Representante Técnico, ya que no se advierte incompa bilidad alguna para que un mismo profesional figure en el registro creado por el reglamento de la ley 6.021, e intervenga en representación del contra sta en el proceso de selección generado en el marco de una licitación determinada;

Que la disposición contenida en el ar culo 16 de la Ley 6.021 debe entenderse implícitamente derogada por las leyes posteriores y especiales citadas en el primer considerando. Es decir, que siempre (aun cuando se trate de un contra sta oferente en el marco de una licitación rela va a un contrato de suministro) se debe contar con un representante técnico conforme al ar culo 6 de la Ley 10.405 para realizar ofertas. Y, desde ya, para realizar el plan de trabajos, y conducir el proceso construc vo;

Que la Representación Técnica resulta obligatoria tanto en el régimen de las obras públicas provinciales y municipales regidas por la Ley 6.021, la Ordenanza General 165/73 y la Ley Orgánica Municipal, como en las nacionales regidas por la Ley 13.064 y el Decreto 1023/01 (estas, siempre que se realicen en un establecimiento de u lidad nacional implantado en jurisdicción de la provincia de Buenos Aires, cfme. ar culos 75 inciso 30) y 121 de la Cons tución Nacional, y Res. CAPBA 81/11). Y, por supuesto, en las regidas por el derecho civil;

Que el Decreto 6964/65 (ra ficado por la Ley 10.405 -art. 79 -2do párrafo- y por los Decretos 4691/89 y 1726/09) establece que también deben contar con la debida Representación Técnica las empresas proveedoras de equipos, máquinas y materiales de construcción o para la industria, tanto en obras públicas como privadas (cfme. arts. 1 y 2 del tulo V del arancel ra ficado). Lo cual incluye, obviamente, a los contratos administra vos de suministro;

Que conforme a lo expuesto, la obligación legalmente impuesta rige tanto en representación de contra stas totales como parciales, tanto para la realización de trabajos realizados en el si o de obra como en fábrica, tanto en contratos de locación de obra como en contratos de suministro, y tanto para obras públicas como privadas. Dicho de otro modo, no existe ningún supuesto de realización de obra, o suministro de productos, que requieran para su realización la supervisión por profesionales de la Arquitectura (implícita o explícitamente incluidos en la Res. M.E.C. y T. 498/06 y la Res. CAPBA 47/02, entre otras normas) que no deba contar obligatoriamente con un representante técnico;

Que a lo precedente debe adunarse que la ley 12.490 dispone en sus ar culos 2, 31 y 32 que siempre que un arquitecto, ingeniero, maestro mayor de obra, agrimensor, etc., suscriban cualquier documento que importe ejercicio de dichas profesiones, dicho soporte material deberá llevar, como condición para darle curso, el visado colegial (debiendo ser rechazado in límine en caso contrario). Y estatuye la responsabilidad solidaria por la evasión o elusión de todo funcionario o empleado que así no lo hiciese.

Lo dispuesto por el ar culo 247 –primer párrafo- del Código Penal, especialmente con relación a lo reglado en el Anexo V de la Res. M.E.C. y T. 498/06, en su similar 254/03, y en el ar culo 43 de la Ley 24.521; Que más allá de que todas las leyes precitadas revisten carácter de orden público y ciertamente son de cumplimiento obligatorio por imperio de lo dispuesto por el ar culo 1 del Código Civil de la Nación, puede agregarse que mediante Decreto 770/08 el Poder Ejecu vo provincial ha aprobado convenios que establecen la inclusión obligatoria en los pliegos de licitación de obras públicas la obligatoriedad de cumplimiento de la Ley 12.490. Y otro tanto ha hecho a través de la sanción del

NORMATIVA COLEGIAL
capba IX 07 EJERCICIO PROFESIONAL
NORMATIVA

Decreto 1726/09. En ambos supuestos –en cuanto aquí interesa- aludiendo a los Representantes Técnicos;

Que con prescindencia del nombre que se asigne al rol, e incluso de la naturaliza del vínculo que el profesional tenga con la contra sta, este CAPBA interpreta que si el profesional a cargo del rol de Director Técnico de Empresa, además de prestar su concurso a los fines registrales, desempeña las tareas que la ley pone a cargo del Representante Técnico, debe percibir la sumatoria de sus emolumentos por ambos desempeños. Pero, como fuere, ya que de la Representación Técnica a cargo de aquel, o se bifurque en un profesional dis nto, en ningún caso exime del visado colegial (cfme. Resoluciones CAPBA 24/91, 159/08, 81/11, y en los ar culos 3 y 26 inciso 23) de la ley 10.405);

Lo dispuesto en las Resoluciones CAPBA 101/09, 17/10, y 67/10;

Que la retribución del ejercicio de la Arquitectura en relación de dependencia no es, como regla -salvo que así lo pacten entre las partes de la relación laboral, o se exceda el objeto de tal vínculoretribuida mediante honorarios (cfme. ar culos 5 y 6 del Título I, y ar culos I y II del Título V, todos del Decreto 6964/65, en la interpretación dada en la obra “Arancel profesional para la profesión de arquitecto. Doctrina oficial del Colegio de Arquitectos de la Provincia de Buenos Aires. Decreto 6964/65 y normas complementarias, comentado y concordado. Autor: Dr. y Arq. Sergio O. Bertone”, declarada como interpretación autén ca del ente de la colegiación. Pero ello resulta indiferente con relación al visado previo –que siempre se requiere-, al pago de la contribución parafiscal denominada “CEP” –ídem-, y, según fuere, a los aportes previsionales; Que siendo cierto que una provincia no puede regular aspectos de las relaciones laborales regidas por el derecho público o por el privado, también lo es que quienes sí pueden hacerlo son los Jueces competentes, por ejemplo en los supuestos de los ar culos 1 inciso e) y 56 de la ley de contrato de trabajo 20.744. Por lo cual el ente que custodia el ejercicio de la profesión y resulta competente para proyectar un nuevo arancel y ges onar su aprobación por los poderes públicos, interpretar el arancel vigente, y asesorar al Estado sin limitaciones de ninguna especie –incluso gozando de una garan a de rango cons tucional respecto de tal desenvolvimiento-, puede válidamente recomendar a los Jueces la adopción de determinados criterios para remunerar la Arquitectura ejercida en relación de dependencia (cfme. ar culo 26 –incisos 7), 8), 12), 20) y 21)- de la ley 10.405; ar culo 21 del Título I del decreto 6964/65, y ar culo 41 de la Cons tución provincial). Lo cual se en ende de manifiesta u lidad, toda vez que se registran, en el desempeño de los roles precitados, frecuentes fraudes laborales –ar culo 14 ley 20.744-; lesiones obje vo subje vas –ar culo 954 del Código Civil-, y, raramente, los profesionales cuentan con documentación que les permita acreditar lo pactado y la verdadera extensión del objeto de los contratos celebrados; Por ello el CONSEJO SUPERIOR DEL COLEGIO DE ARQUITECTOS DE LA PROVINCIA DE BUENOS AIRES, en sesión del día de la fecha,

R E S U E L V E

Art. 1°- La Representación Técnica de los oferentes es obligatoria en el marco de toda licitación pública nacional, provincial o municipal, trátese de obras o suministros, siempre que sean rela vos a cosas muebles o inmuebles ubicadas o licitadas en jurisdicción de la Provincia de Buenos Aires, incluyendo los establecimientos de u lidad nacional implantados en la misma. Todo ello, como requisito para el re ro de los pliegos o acto equivalente. La sola infracción a lo precedente causa la responsabilidad personal –sin perjuicio de la refleja- legislada en los ar culos 1109, 1112 y 1113 del Código Civil, el ar culo 32 de la ley 12.490, y el ar culo 194 de la Cons tución de la Provincia de Buenos Aires.---------------------------------------

Art. 2°- La Representación Técnica de los contra stas es exigida, también desde un primer momento, en toda obra privada ejecutada en la jurisdicción mencionada.-------------------------------------------------------------

Art. 3°- Cuando una ley o reglamento aludan a la “Dirección Técnica de Empresa”, se entenderá que ella suple la exigencia de la Representación Técnica exclusivamente en cuanto a los aspectos registrales. No obstante, si el profesional a cargo del rol de “Director Técnico de Empresa”, además, estudiara la licitación, concurriera a presentar la oferta y/o realizara el plan de trabajos y/o condujera las obras encomendadas a su representada, será considerado como Representante Técnico, es decir, a cargo del desempeño de un rol de complejidad y responsabilidad muy superior. Sin perjuicio de ello, la Representación Técnica también puede ser contratada para obras determinadas o indeterminadas, y, por ende, como locación regida por el derecho civil o en relación de dependencia.------------------------------------------------------------------------------

Art. 4°- En cualquiera de los supuestos descriptos por los ar culos 1 a 3, se requiere el visado previo de este C.A.P.B.A., tanto cuando el profesional fuese contratado en carácter de “Director Técnico de Empresa”, como si lo fuere en el de ”Representante Técnico”; tanto cuando el profesional estuviera en

capba IX 08 EJERCICIO PROFESIONAL
NORMATIVA

relación de dependencia como en caso contrario. Aplicándose lo dispuesto en las Res. CAPBA 17/10, 24/91 y 81/11, cuando corresponda. Es decir, queda vedada la recepción de una oferta en cualquier licitación pública sin la firma de un profesional a cargo de la tarea de Representación Técnica, y sin la per nente intervención colegial plasmada en el acto de visado previo. Ello con total prescindencia de que el profesional haya registrado ante el Colegio su vínculo como “Director Técnico de Empresa”, o de que se trate de profesionales dis ntos.------------------------------------------------------------------------------------------------Art. 5°- En cumplimiento de la Res. CAPBA 159/08, el monto de la contribución parafiscal CEP será, en todos los casos, determinado con respecto al costo referencial de la obra o suministro en cues ón (o el mayor que surgiera de los pactos celebrados inter partes), con total prescindencia de cuál sea la naturaleza jurídica del vínculo profesional – comitente. Es decir, será el costo presunto –obtenido a través de la aplicación de tablas referenciales- el que se u lice como base para determinar el monto de CEP a abonar, con prescindencia de los honorarios o salarios que correspondan al profesional. Con más precisión, el CAPBA no dis nguirá, al momento de la percepción de CEP, entre profesionales en relación de dependencia y aquellos que no lo están, ni entre obras públicas o privadas, para la percepción de los recursos con los que el Legislador dotó al ente para funcionar (ar culo 58, ley 10.405). Debiendo abonarse CEP en todos los supuestos.------------------------------------------------------------------------------------------------------

Art. 6°- Dis nta es la situación en materia de aportes previsionales, en los que se registran numerosas excepciones, que se detallan acto seguido.-----------------------------------------------------------------------------------

Art. 7°- Primera excepción: si el arquitecto se encuentra en relación de dependencia con un contra sta privado que realiza obras privadas, y lo acredita ante el Colegio mediante documentación respaldatoria emanada de la Caja en los términos del ar culo 27 de la ley 12.490, no deberá realizar aportes previsionales. A falta de acreditación fehaciente de la situación descripta, el CAPBA requerirá del profesional el pago de los aportes por los honorarios devengados o percibidos, como condición para visar.-----------------------------

Art. 8°- Segunda excepción: si el arquitecto se encuentra en relación de dependencia con un contra sta privado que realiza obras públicas o suministros, y lo acredita mediante documentación respaldatoria emanada de la Caja en los términos del ar culo 27 de la ley 12.490, tampoco deberá realizar aportes previsionales (es decir, no resulta de aplicación lo dispuesto por el decreto 1726/09). A falta de acreditación fehaciente de la situación descripta, el CAPBA requerirá del profesional el pago de los aportes por los honorarios devengados o percibidos, como condición para visar.------------------------------------------------------

Art. 9°- En los supuestos descriptos en los ar culo 7 y 8, no si se presentara la documentación respaldatoria a que allí se alude, pero el profesional sí acreditara encontrarse en relación de dependencia mediante un documento emanado de su empleador con la firma de este cer ficada por notario, aunque no con aportes a otro régimen previsional, no deberá entenderse que no han de realizarse aportes previsionales de ley 12.490, sino que el pago de los aportes, basado en la aplicación de las escalas referenciales, y como condición para otorgar el visado, será exigido al empleador, por aplicación de lo dispuesto en los ar culos 26 -inciso m)- y 32 de la ley 12.490, los ar culos 14 bis y 125 de la Cons tución Nacional, y los ar culos 39 y 40 de la Cons tución Provincial. -----------------------------------------------------------------------------------------

Art. 10°- Por el contrario, si el arquitecto no se encuentra en relación de dependencia con un contra sta privado, y celebra un contrato de representación técnica en el marco de una obra pública, son a su cargo los aportes previsionales (ar culo 26 inciso a) de la ley 12.490, y decreto 1726/09). ----------------------------

Art. 11°- En cualquier supuesto, si un arquitecto se representa técnicamente a sí mismo (es decir, a su propia ac vidad empresaria) asumiendo simultáneamente la calidad de empresario constructor y representante técnico ante la administración y los terceros, debe efectuar los aportes de ley 12.490.-------

Art. 12°- En supuestos de relación de dependencia, cuando se le requiera judicialmente al Colegio es mar el salario correspondiente a la Dirección Técnica de Empresa y/o a la Representación Técnica, se u lizarán los criterios de valores horarios dentro o fuera de la localidad, operaciones discu das, informes, consultas, y demás parámetros contenidos en los Títulos I, II y V del Decreto 6964/65, conforme a la doctrina oficial del ente plasmada en la obra aludida en los considerandos de la presente, que la integran en su parte resolu va.---------------------------------------------------------------------------------------------------------------------------

Art. 13°- Comuníquese a los Distritos y ARCHIVESE.------------------------------------------------------------------------

NORMATIVA COLEGIAL
capba IX 09 EJERCICIO PROFESIONAL
Arq. SANTIAGO PEREZ Arq. ADOLFO CANOSA Secretario Presidente
NORMATIVA

GPS de Arquitectura Legal

Aplicación del nuevo Código Civil y Comercial de la Nación.

Ante la próxima puesta en vigencia del nuevo Código Civil y Comercial de la Nación el Dr. Daniel Butlow, quien ha visitado nuestro Colegio en diversas oportunidades, comparte un ar culo donde vincula el nuevo ar culado norma vo con temá cas inherentes al ejercicio de nuestra profesión. Agradecemos la colaboración del Estudio Arquitectura Legal en la figura del Dr. Butlow.

Como lo señalé en la introducción a uno de mis úl mos libros, lo que hoy llamamos y conocemos como “Arquitectura Legal”, es el resultado del fatal e inevitable encuentro entre el Derecho y la Arquitectura.

El encuentro es permanente, pero este año 2015 será único y extraordinario porque la ley 26.994 y su decreto promulgatorio 1795/2014, aprobó el nuevo Código Civil y Comercial de la Nación que regirá a par r de 1° de agosto y se aplicará incluso a las consecuencias de las relaciones y situaciones jurídicas existentes (art. 7).

Junto con el equipo de abogados, arquitectos e ingenieros que integran el Estudio, hemos analizado las nuevas normas desde 2012, cuando la Comisión de Reformas designada por decreto 191/2011 entregó su proyecto que luego fuera modificado por el propio Poder Ejecu vo y finalmente por la Comisión Bicameral, antes de ser publicado en el Bole n Oficial del 8 de octubre de 2014.

El resultado de nuestro estudio, deja más preguntas que respuestas y un mar de incógnitas y dudas, pero como decía Rafael Bielsa, cuando no hay nada, necesario es empezar por algo y nosotros empezamos construyendo una brújula (hoy sería un GPS), que ayudará a los profesionales de la construcción a entender de que se tratan las novedades y no perderse en un laberinto desconocido y poco señalizado.

Las siguientes, son 15 cues ones cruciales:

1-USOS, PRÁCTICAS Y COSTUMBRES: Desde su primer ar culo, el Código se refiere permanentemente a ellos, que pasarán a regir las relaciones con sus clientes en temas tan importantes como precio (art. 1255), plazos de garan a (art. 1272) y prueba (art. 1019). Bastará que sean ampliamente conocidos y regularmente observados en el ámbito en el que se celebra el contrato para que se integren al mismo (art. 964 inciso “c”), como ley de las partes.

2- EJERCICIO PROFESIONAL: La ac vidad del profesional liberal está sujeta a las reglas de las obligaciones de hacer (art. 1768), pero ella puede consis r en: a) realizar cierta ac vidad con la diligencia apropiada, independientemente de su éxito, b) procurar cierto resultado concreto con independencia de su eficacia y c) procurar al acreedor el resultado eficaz prome do (art. 774). En cada caso, las responsabilidades son dis ntas, porque un resultado concreto no es igual a un resultado eficaz.

capba IX 10 EJERCICIO PROFESIONAL

3- LLAVE EN MANO: La ambigua, vaga y muy usada clausula “llave en mano”, pasa a transformarse en obligación de resultado eficaz (art. 774 inciso “c”). Un resultado eficaz, es el que según el diccionario de la lengua produce el efecto deseado. La eficacia también dirime las dudas sobre la calificación del contrato entre servicios o de obra (art. 1252).

4- INOPONIBILIDAD DE LA PERSONALIDAD JURIDICA. SOCIEDADES DE UN SOLO SOCIO: La actuación que esté des nada a la consecución de fines ajenos a la persona jurídica, cons tuya un recurso para violar la ley, el orden público o la buena fe o para frustrar derechos de cualquier persona, se imputa a quienes a tulos de socios, asociados, miembros o controlantes directos o indirectos, la hicieron posible, quienes responderán solidaria e ilimitadamente por los perjuicios causados (art. 144). Por el contrario, cuando la actuación es lícita la ley permite las sociedades de un solo socio, es decir, unipersonales, que solo se podrán cons tuir como anónimas (art. 1, ley 19.550, reformada según ley 26.994, anexo II).

5- FIRMA. MEDIOS ELECTRÓNICOS: En contra de la disposición contenida en el art. 1012 del Código de Vélez Sarsfield y de lo que él había señalado en la nota al art. 3.639, la firma debe consis r en el nombre del firmante o en un signo. En los instrumentos generados por medios electrónicos, el requisito de la firma de una persona queda sa sfecho si se u liza una firma digital que asegure indubitablemente la autoría e integridad del instrumento (art. 288).

6- FORMA Y PRUEBA DE LOS CONTRATOS: Se man ene la libertad de formas para los contratos de obras y servicios (arts. 284/ 1015 y 1017), pero contra lo dispuesto por el Código de Vélez (art. 1633 bis), ahora no se exige permiso por escrito del dueño, para variar el proyecto (art. 1016). El comitente, puede introducir variantes al proyecto,

siempre que no impliquen cambiar sustancialmente la naturaleza de la obra (art. 1264 in fine). La prueba es amplia y generosa (art. 1019) y se considera principio de prueba instrumental, cualquier instrumento que emane de la otra parte, que haga verosímil la existencia del contrato (art. 1020 in fine).

7- PROYECTO: Se lo reconoce como obra intelectual (art. 1251) pero en la exposición de los fundamentos del proyecto del nuevo Código, se señala que la obra intelectual se rige por la ley 11.723 (Propiedad Intelectual) y subsidiariamente por las disposiciones comunes. Por razones cons tucionales, rige en primer término el Tratado de Berna, administrado por la OMPI (Organización Mundial de la Propiedad Intelectual) y ra ficado por Argen na.

8- PRECIO: El precio se determina por el contrato, la ley, los usos o en su defecto por decisión judicial. Las leyes arancelarias, no pueden cercenar la facultad de las partes de determinar el precio de las obras o de los servicios. Cuando dicho precio, debe ser establecido judicialmente sobre la base de la aplicación de dichas leyes, su determinación debe adecuarse a la labor cumplida por el prestador. Si la aplicación estricta de los aranceles locales, conduce a una evidente e injus ficada desproporción entre la retribución resultante y la importancia de la labor cumplida, el juez puede fijar equita vamente la retribución (art. 1255).

9- MODO DE EJECUTAR LA OBRA: El contra sta, goza de discrecionalidad técnica para ejecutar la obra (art. 1256, inciso “a”), pero debe aplicar los conocimientos razonablemente requeridos por el arte, la ciencia y la técnica correspondientes a la ac vidad desarrollada. A falta de ajuste sobre el modo de hacer la obra, antes regía la costumbre y el precio (art. 1.632), ahora, la libertad (art. 1.253).

capba IX 11 EJERCICIO PROFESIONAL

10- DESISTIMIENTO UNILATERAL: El comitente puede desis r del contrato por su sola voluntad aunque la ejecución haya comenzado; pero debe indemnizar al prestador todos los gastos y trabajos realizados y la u lidad que hubiera podido obtener. El juez puede reducir equita vamente la u lidad si la aplicación estricta de la norma conduce a una notoria injus cia (art. 1.261, que reitera el derogado art. 1.638). El nuevo art. 1078 y sus concordantes (arts. 1.081, 1.086 y 1.088), rigen las disposiciones generales para la ex nción por declaración de una de las partes y el emplazamiento en casos de clausula resolutoria implícita (art. 1.088, inciso “c”).

11- DIRECCION DE OBRA: La ac vidad del profesional liberal, no está comprendida en la responsabilidad por ac vidades riesgosas (art. 1.768), pero si de las circunstancias de la obligación, o de lo convenido por las partes, surge que el deudor debe obtener un resultado determinado (concreto o eficaz), como por ejemplo, la fiel interpretación de los planos de proyecto, su responsabilidad es obje va (art. 1.723/1768), lo que significa que el responsable solo se libera demostrando la causa ajena (art. 1.722).

12- VICIOS O DEFECTOS OCULTOS: En el Código de Vélez, la responsabilidad por vicios ocultos en la locación de obra, se incluyó en 1968 a través del ar culo 1.647 bis (ley 17.711), los vicios redhibitorios tenían un régimen especial (art. 2.164 y ss.) y dis nto, incluso en materia de prescripción (art. 4.041). En el nuevo Código, las normas generales sobre responsabilidad por vicios o defectos ocultos, se aplican a las diferencias en la calidad de la obra (art. 1.271) y se ex enden a los vicios redhibitorios solo cuando los defectos hacen a la cosa impropia para su des no por razones estructurales o funcionales o disminuyen su u lidad a tal extremo que, de haberlos conocido, el adquirente no la habría adquirido o su contraprestación hubiese sido significantemente menor (arts. 1.051/1.052). La caducidad, se rige por el art. 1.054 y a nuestro juicio, no ene una prescripción autónoma

(art. 2564), como sucede con la ruina o los vicios redhibitorios.

13- RUINA: La ley acepta la ruina funcional, además de la material y ex ende la responsabilidad al empresario inmobiliario (art. 1.274 inciso “a”) y según la causa del daño al subcontra sta, proyec sta, director de la obra y a cualquier otro profesional ligado al comitente por un contrato de obra de construcción referido a la obra dañada (ruina total), o a cualquiera de sus partes (ruina parcial) (art. 1.274 inciso “c”). La acción, no solo es para el comitente, sino también para el adquirente (art. 1.273).

14- FIDEICOMISO INMOBILIARIO: Los arts. 1 a 26 de la ley 24.441, han sido derogados. Siento alivio, porque yo había sido uno de los padres de esa extraña criatura. Ahora rigen las disposiciones de los ar culos 1.666 a 1.689. Hay cambios sustanciales que merecen un estudio profundo pero a modo de ejemplo, puede resaltarse que de aquí en más el fiduciario podrá ser beneficiario y que solo podrán ofrecerse al público para actuar como fiduciarios las en dades financieras autorizadas a funcionar como tales, sujetas a las disposiciones de la ley respec va y las personas jurídicas que autoriza el organismo de contralor de los mercados de valores, que deben establecer los requisitos que deben cumplir (art. 1.673).

15- SEGUROS: El patrimonio, sigue siendo la prenda común de los acreedores, pero el nuevo Código Civil y Comercial, refuerza la solvencia, exigiendo nuevos seguros obligatorios. Es el caso del fiduciario en el fideicomiso, que sin perjuicio de su responsabilidad, ene la obligación de contratar un seguro contra la responsabilidad civil, quien cubra los daños causados por las cosas objeto del fideicomiso, los riesgos y montos por los que debe contratar el seguro, son los que establezca la reglamentación y, en defecto de esta, las que sean razonables (art. 1.685). También, es el caso de la pre-horizontalidad, ya que la ley establece, que para poder celebrar contratos sobre unidades construidas o proyectadas bajo el régimen de la propiedad horizontal, el tular del dominio del inmueble, debe cons tuir un seguro a favor del adquirente para el riesgo del fracaso de la operación y cuya cobertura, comprenda el reintegro de las cuotas abonadas con más un interés retribu vo o, en su caso, la liberación de todos los gravámenes que el adquirente no asume en el contrato preliminar (art. 2.071). Otra forma de reforzar la solvencia con seguros, será la de otorgar las llamadas “garan as de cumplimiento a primera demanda”, que consigna el art. 1.810 del nuevo cuerpo legal, que pueden emi r las compañías aseguradoras (art. 1.811, inciso “c” y 1.812). Tal vez en el futuro, la insolvencia deje de ser una epidemia.

capba IX 12 EJERCICIO PROFESIONAL

CONCLUSIONES

En estos días, mi viejo y querido Código Civil cumple 45 años. Aunque pasaron volando, son muchos para un libro tan usado, transportado, discu do y leído. Necesita descansar

Me lo regaló mi padre cuando en 1970, después de aprobar Derecho Romano, comencé mis estudios de Derecho Civil en la Facultad de Derecho de la Universidad de Buenos Aires y con recortes pegados, mucha paciencia y apos llas, lo he mantenido actualizado.

He leído y estudiado decenas de versiones de este Código, pero este ejemplar es dis nto: conserva gotas secas del sudor que recogió mientras trataba de comprenderlo, algunas lágrimas de risa y otras del dolor causado por la impotencia, rayitas de dis ntos colores de todas y cada una de las lapiceras que me acompañaron y algunas manchas no buscadas de mate y café, que hicieron menos solitario el camino.

En este réquiem de despedida, siento nostalgia por lo que parece una pérdida irreparable, aunque tengo el presen miento de que poco a poco, podré superar la

ARQUITECTURA LEGAL SEGÚN BUTLOW

Dr. Daniel E. Butlow - Dr. Ricardo A. Butlow

Dra. Luciana Butlow – Dra. Estefanía Butlow Abogados U.B.A.

Guido 1551, 1º Piso – Recoleta Ciudad de Buenos Aires, Argen na Telefax: (54 11) 4816-1914 (líneas rota vas) arquitecturalegal@sion.com | consultas@arquilegal.com

www.arquilegal.com | www.artelegal.com.ar

desconfianza y el desconocimiento del nuevo Código y finalmente, también, seremos buenos amigos dure lo que dure y cueste lo que cueste.

Dr. Daniel Enrique Butlow Abogado y Profesor Titular Honorario de Arquitectura e Ingeniería Legal.

fuente: www.arquilegal.com

LEGISLACION
13

FICHA TÉCNICA

PROYECTO

Arq. Darío Lemmi

Arq. Eduardo Oxarango

Arq. Pablo F. Rescia

INSPECCIÓN

Departamento de Obras UNMDP

CATEGORÍA

Equipamiento

UBICACIÓN

Calle Rodríguez Peña esq. Dean Funes, Mar del Plata.

SUPERFICIES

Remodelación Casa Navarro existente: 243 m2

Ampliación de Casa Existente: 215 m2

Biblioteca Planta Baja: 875 m2

Biblioteca Planta Alta: 860 m2

Subsuelo Máquinas: 95 m2

Entrepiso Técnico: 56 m2

Sala de Tanques Elevados: 30 m2

Pór co Semicubierto de Acceso Ext.: 115 m2

AÑO PROYECTO

2006

AÑO EJECUCIÓN

2007-2010, 1º Etapa

2012-2013, 2º Etapa

2014, 3º Etapa

EQUIPAMIENTO EDUCATIVO

Biblioteca Central

Universidad Nacional de Mar del Plata

MEMORIA DE LA GESTIÓN DE OBRA

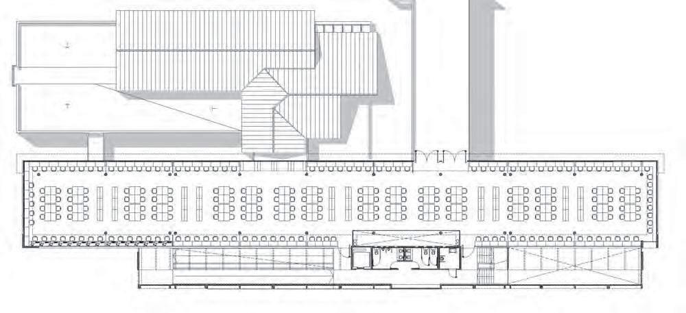
El año 2015 podría ser clave para el anhelado traspaso de la Biblioteca Central de la Universidad Nacional de Mar del Plata, de actual funcionamiento en el Edificio del Complejo Universitario “Manuel Belgrano” -Dean Funes 3350-, a su nuevo edificio ubicado en la Manzana Navarro; en la intersección de las calles Dean Funes y Rodríguez Peña, de Mar del Plata.

El largo y complejo proceso de ges ón conducente a la concreción de la obra, comenzó en 2006 con la convocatoria a Concurso de Anteproyectos. En la oportunidad, el anteproyecto ganador fue el ideado por los arquitectos Darío Lemmi, Eduardo Oxarango y Pablo Rescia. A raíz de este concurso, la Universidad contrató a los ganadores para el desarrollo del proyecto y del pliego ejecu vo para el llamado a licitación, que fue resultado del trabajo en conjunto con el Departamento de Obras de la U.N.M.d.P.

El programa de la Biblioteca incluye sala de estudio parlante, de lectura, hemeroteca, depósito de libros, boxes abiertos, baterías de sanitarios, oficinas y demás locales de servicio, en dos plantas libres

capba IX 14 EJERCICIO PROFESIONAL

que se es ma estarán terminadas a fines de 2016. Los autores mencionan en la memoria que “el proyecto se basa en la redefinición de la biblioteca como secuencia de bandas flexibles, de accesibilidad colec va (donde el encuentro con el libro se da en forma directa), y espacios con nuos donde se experimente, tanto la búsqueda, la lectura y el debate de la información, tanto en lugares interiores como exteriores.”

La primera etapa de obra concluida en 2010 y que involucró 1.000 m2 aproximadamente, fue ejecutada por la empresa PLANTEL, ganadora de la licitación, y el financiamiento -$3.800.000- provino de fondos propios.

A través de una ges ón iniciada en octubre de 2012, la SPU (Secretaría de Polí cas Universitarias, Ministerio de Educación) proveyó el dinero para los 800 m2 de la segunda etapa. La obra esta vez estuvo a cargo de la constructora Pablo Rosarno, ganador de la licitación para este segundo avance que implicó $ 2.000.000.

En todas las etapas de construcción, la inspección la realizó el Departamento de Obras, dependiente de la Secretaría de Obras de la UNMDP.

La etapa 3, posible gracias al financiamiento del Ministerio de Planificación Federal, consis ó en la provisión de equipamiento (mesas, estanterías) y fue concluida en 2014. Como parte de esta etapa también se incluyeron obras complementarias menores que permi eran garan zar el traslado de la biblioteca en el transcurso de 2015. Estas obras menores que se están licitando por separado con proveedores del Estado y con mano de obra de coopera vas, a modo de ensayo mixto, corresponden a pintura, electricidad y tabiquería en seco.

Lograr el traslado durante este año no implicará que la obra esté 100% finalizada, ya que falta concluir la planta libre superior de la biblioteca donde funcionará la sala de lectura silenciosa. Para ello se están preparando los nuevos pliegos de obra, para la que se es man

OBRAS EN EL DISTRITO
CORTE LONGITUDINAL CORTE LONGITUDINAL
capba IX 15 EJERCICIO PROFESIONAL
CORTE TRANSVERSAL
FACHADA
PLANTA ACCESO 1°
ETAPA
capba IX 16 EJERCICIO PROFESIONAL
PLANTA ALTA 1° ETAPA

Planes

OBRAS EN EL DISTRITO
capba IX 17 EJERCICIO PROFESIONAL
especiales para arquitectos en

necesarios entre 6 y 8 millones de pesos que se ges onarán ante el Ministerio de Planificación Federal.

El marco general es el “Proyecto de Infraestructura y Equipamiento Universitario – Plan Maestro”. El plan surgió de retomar los planes de ges ones anteriores para el Complejo, la manzana Navarro, la estación de cargas y el desarrollo del Polo Cien fico y Tecnológico en Av. Colón y calle 248. La Biblioteca Central, en este marco, es un equipamiento complementario del que se nutren todas las unidades académicas. También la Sede Anexa de Arquitectura se considera complementaria, así como el caso del INTEMA, fruto del apoyo que se ha dado a las áreas tecnológicas mediante subsidios.

Se debe contar además, una serie de 3 edificios de doble dependencia (CONICET y UNMdP), como el Ins tuto de Inves gaciones Marinas y Costeras, el de Inves gaciones Biológicas y el Ins tuto de Inves gaciones Físicas. Ellos están dentro del Plan y avanzados, por corresponder a la 1º etapa del Plan cien fico y Tecnológico. Forman parte también de estas obras, el anteproyecto para el edificio de la Facultad de Ingeniería y el anteproyecto para Ciencias Exactas. Estos casos se tramitan con una línea de financiamiento de la “Corporación Andina de Financiamiento” de la que se está tratando de conseguir fondos para construir 2000 m2 de aulario para Ingeniería, dado que el espacio no alcanza para las nuevas carreras y se debió recurrir a edificios anexados provisoriamente, como el ex Patronato de la Infancia.

PLANTA DE TECHOS E IMPLANTACION capba IX 18 EJERCICIO PROFESIONAL
Mar del Plata
OBRAS EN EL DISTRITO 19

FICHA TÉCNICA

PROYECTO Y DIR. DE OBRA

Arqs. Fernando Sandoval y J. Martyn Romero Mezzadra

COLABORADOR

Arq. Juan Pablo Cor

CATEGORÍA

Vivienda mul familiar

UBICACIÓN

Calle Alvarado 1459

Mar del Plata

SUPERFICIES

TERRENO: 300 m2

SUP. CUBIERTA: 1350 m2

SUP. SEMICUBIERTA: 217 m2

SUP TOTAL: 1567m2

AÑO EJECUCIÓN

2010-2011

FOTOGRAFÍA

Juan Martyn Romero Mezzadra

RENDERS

arquitecturapc

VIVIENDA MULTIFAMILIAR

Edificio DARIMA III

Mar del Plata

MEMORIA DESCRIPTIVA

El edificio surge como encargo de un comitente que requiere en el programa de unidades entre 65 y 90 m2, destacando la premisa de que la mayoría de los ambientes reciban iluminación y ven lación directas.

La obra se encuentra ubicada sobre la calle Alvarado, entre Alsina y Olavarría, en zona del centro comercial Güemes y en cercanías de la vieja Estación Terminal en recuperación, donde se combinarán pronto dis ntas ac vidades, culturales, comerciales, gastronómicas y de viviendas. Este edificio, llamado Darima III, se proyectó entre medianeras, con un terreno de solo 8.66 m. de frente y 34m. de profundidad.

Desde el estudio tratamos de darle una imagen renovada a los emprendimientos y también aportar una lectura clara de los procesos de cambio que se dan en la ciudad, entendiendo a la vivienda como un lugar más ligado a la calidad de vida y el bienestar, que a la actual austeridad de un espacio concebido tan solo como por mera necesidad social.

capba IX 20 EJERCICIO PROFESIONAL

El edificio consta de dos torres de vivienda con seis (6) pisos de altura separados por un núcleo ver cal (escalera y ascensor) que ar cula las mismas, cada una en su bloque. Estas torres están desplazadas entre sí, desarrolladas con un sistema de medios niveles, para lograr de esta manera una mayor privacidad entre los habitantes de cada unidad generando un espacio de iluminación y ven lación intermedio con balcón/parrilla, intentando recrear el espíritu de la casa familiar pero en altura y en una zona central de la ciudad.

Las unidades son de 2 ambientes al contrafrente y de 3 ambientes al frente, todas con palier individual de acceso al departamento. También se caracterizan por

tener balcones privados generando lugares de encuentro donde disfrutar del sol y el aire libre.

En cuanto a la imagen exterior del edificio se pensó en u lizar un especie de cinta de hormigón armado, que juega con los volúmenes del balcón y el estar comedor, creando dis ntas sensaciones de profundidades y vacíos, generando espacios más abiertos de luces y sombras, dándole un movimiento al frente en búsqueda de una riqueza espacial acorde a una escala urbana barrial. Parte del interés consis ó en garan zar la sensación de descubrir arquitectura y vivir espacios naturalmente amplios y luminosos.

OBRAS EN EL DISTRITO
capba IX 21 EJERCICIO PROFESIONAL
OBRAS EN EL DISTRITO
PLANTA NIVEL 1.40 C OCHERAS PLANTA NIVEL ACCESO PLANTA NIVEL 1° AL 5° PISO PLANTA NIVEL 6° PISO
capba IX 23 EJERCICIO PROFESIONAL
PLANTA NIVEL TERRAZA
Saro Arquitectura Tel.: 054 0223 491-3174 - 1º Junta 2492Mar del Plata www.saroarquitectura.com capba IX 24 EJERCICIO PROFESIONAL
OBRAS EN EL DISTRITO 25
Nuestro nuevo local: Edison 1690 esq. Soler. Mar del Plata. También en Pinamar, Villa Gesel, Madariaga y Ostende.

Urbanizaciones cerradas

“contenedores” de la expansión urbana de la ciudad de Mar del Plata

“Gente de una misma clase social aunque heterogénea, compar endo un espacio con sus propias leyes, unidos en torno a un des no similar. Estos enclaves garan zan que mundos sociales diferentes se encuentren lo menos posible en el espacio urbano: cerrar el barrio implica también cerrar el azar y la diferencia”.

ANTECEDENTES DEL “FENÓMENO” URBANO

El fenómeno de localización de las urbanizaciones cerradas1 (UC) inició en nuestro país, en la década del ´90, como forma de escapar de la violencia y la inseguridad urbana, por los sectores más beneficiados por las polí cas y el modelo económico imperante; y generaron profundas transformaciones en el tejido social y un nuevo proceso de segregación urbana como consecuencia, muy dis nto del que hasta ese momento se había conocido en el país. Varios especialistas han desarrollado desde diferentes miradas esta problemá ca. Los estudios pueden agruparse en aquellos que indagan en las costumbres de sus des natarios, el nivel socio económico y/o ambiciones sociales;2 a otros, en que los relacionan con el retraimiento del rol del Estado en el período neoliberal y el avance del mercado global. Todas estas miradas lo analizan sin que se expliciten en demasía las razones por las que los Municipios aprueban este po de emplazamientos. (Nora

Libertún de Duren)3

En un contexto de crisis de la década del ´70 se fueron resignificando las formas de poder polí co, dominación y explotación, y así es que en la década del ´90 el Estado,

1 Existen diferentes denominaciones según el país que se analice. En Estados Unidos son gated communn es, en Chile condominios y en Argen na countries. En lo que respecta a las denominaciones en la comercialización pueden ser: Barrio Cerrado, Club de Campo, Club de Chacras, Condominios y Country. www.guiacountry.com.

2 Uno de los primeros trabajos más significa vos desde la perspec va del proceso de la producción social del espacio, fue el de Horacio Torres (2006): “El mapa social de Buenos Aires (1940- 1990)”, en Serie Difusión Nº 3º. Dirección de Inves gaciones, Secretaría de Inves gación y Posgrado. Facultad de Arquitectura, Diseño y Urbanismo. Universidad de Buenos Aires. Disponible en: h p://www. fadu.uba.ar/publicaciones/cat_dif_n03.pdf.

3 Libertún de Duren Nora (2007): El ar culo “Barrios cerrados como estrategia de desarrollo Municipal”, es un extracto de: Gated communi es as a municipal development strategy, publicado en Housing Policy, Debate 18/3. Directora de Planeamiento en el Departamento de Parques y Recreación de Nueva York.

superado por las crecientes demandas sociales y polí cas, y como forma de contraerse, inició un proceso de transformación en su accionar, librando algunas de ellas a la intervención del mercado; ya que la conceptualización liberal sostenía que la intervención estatal no es era sólo ineficiente, sino también injusta, y posiblemente que fallara más que el mercado. En los años subsiguientes dicho proceso muestra un punto de inflexión, cuando el Estado central retoma el control y accionar sobre estas crecientes demandas, e inicia un proceso de transformación librando algunas de ellas a la intervención del mercado, pero desdoblando el proceso. Por un lado, conservará el control sobre los procesos de ges ón; y por el otro, delegará en instancias inferiores los procesos de administración, provocando una revalorización de los gobiernos locales. En síntesis, se puede decir que sí en la primera reforma se promueve un achicamiento y re ro del Estado y mayor desarrollo del mercado, en los de la segunda reforma se promueve una ar culación entre Estado, mercado y sujetos. 4

Las polí cas del poder central de reducir el aparato estatal era la forma “ideal” de reducir el gasto público “delegando” funciones en otros niveles de gobierno, sin que ello implicara transferencia de fondos, a la vez que se promovía un fortalecimiento de los sujetos. Inmediatamente el modelo fue adoptado por la Provincia “delegando” en los regímenes municipales ciertas funciones. Primero lo hará en materia de salud, luego serían educación, la concesión de los espacios públicos (balnearios), norma va urbana, etc. Esta descentralización también se traslada a la planificación, y la consecuencia será un cambio en el modelo, convir éndose en estratégica.5 Esta nueva ver ente, basada en principios

4 Murillo, Susana (2006) coord: Banco Mundial. Estado, mercado y sujetos en las nuevas estrategias frente a la cues ón social. Cuadernos de Trabajo. Departamento de Polí ca y Sociedad. Ediciones CCC, Centro Cultural de la Cooperación Floreal Gorini. Buenos Aires, junio.

5 Las etapas de los modelos de planificación ha sido desarrollado

Antropóloga Social e inves gadora del Conicet “Para los chicos de los Countries”
capba IX DESARROLLO URBANO SUSTENTABLE 26

adoptados del marke ng, presenta un cambio de obje vos con respecto a los anteriores modelos. Fundamentalmente los pilares son los de la par cipación de la sociedad civil en el marco de la democracia local como motor del desarrollo local.

LAS URBANIZACIONES CERRADAS EN LA ARGENTINA, Y LOS PARTIDOS DE GENERAL PUEYRREDON, GENERAL ALVARADO Y MAR CHIQUITA

Torrado cita que para el año 2010 en el Conurbano Bonaerense los espacios privados sumaban un total de 434 emprendimientos, diferenciados en: 252 barrios privados; 139 countries; 36 chacras (asentamientos privados de carácter semirural); y 7 megaemprendimientos (pueblos o pequeñas ciudades privadas). Siguiendo a la autora, el número de familias residentes en este po de urbanizaciones alcanzaba a 1.450 en 1994; 4.000 en 1996; 13.500 en agosto de 2000 y que actualmente, un total de medio millón de personas residen en una superficie de 323 kilómetros cuadrados, o sea, en un territorio urbanizado igual a 1,6 veces la superficie de la Ciudad de Buenos Aires (la que, en 2001, tenía 2.800.000 habitantes).

Mientras que las UC para la base tributaria de ARBA de la PBA las incorpora como unificaciones por hechos existentes y en ese caso suman, a la fecha (10-jun-15), un total de 911 UC, de las cuales los Par dos que más concentran son los de Pilar con 191 UC (20,97%); Tigre con 209 UC (11,96%); Escobar con 73 UC (8,01%) y con 43 UC cada uno los Par dos de Luján y San Isidro (4,72%). El registro anterior, realizado en jun-12, contabilizaba un total de 232 UC para toda la PBA. En lo que respecta a los datos obtenidos en páginas especializadas en las que se comercializan par cularmente emprendimientos de este po, el país cuenta con una oferta total de 1.049 UC, estando localizados en el ámbito de la PBA un total de 687 UC, de las cuales 36 se emplazan en la Costa Atlán ca; y en el resto del país las otras 356 UC. Por lo que en total la oferta tuvo un crecimiento del 3,5% en el úl mo año (37 UC). Es observable que en el mismo lugar se comercializan las UC localizadas en el Uruguay.

por el arq. D. Medina (2013) en Apuntes de Cátedra para Urbanismo II “A”, FAUD- UNMDP.

URBANIZACIONES CERRADAS EN EL LA REPÚBLICA ARGENTINA

Par do UC en la RA Par do UC en la RA Jun-14Jun-15Jun-14Jun-15

Zona Norte GBA 392408 Mendoza5252

Zona Sur GBA 143156 San Luis912

Zona Oeste GBA 8587 La Rioja22

Río Negro1819Entre Ríos1010

Neuquén4141San Juan55

Chubut88Tucumán2020

Costa Atlán ca3636Catamarca33

Córdoba 124126 total 1.0121.049

Santa FéRosario 5151

Salta1313Uruguay7171

Fuente: elaboración propia en base a datos obtenidos en h p://www. guiacountry.com/ y otras páginas individuales.

En la costa del Sudeste bonaerense, en el arco que se ex ende desde el Par do de La Costa hasta Bahía Blanca, conglomera actualmente un total de 35 UC (3,84%), siendo el Par do que más UC ene el de La Costa, con 7. No teniendo en este arco UC los Par dos de San Cayetano y Lobería. (ver Cuadro de UC en el Arco Costero del Sudeste Bonaerense)

Bahía Blanca34Monte Hermoso 11

Coronel Rosales11Necochea33

General Alvarado22Pinamar55

General Pueyrredon

55Tres Arroyos11

La Costa77Villa Gesell44

Mar Chiquita22 total 1035

Fuente: elaboración propia en base a datos de Cartogra a ARBA.

Un relevamiento detallado del Par do de General Pueyrredon y sus vecinos: los Par dos de General Alvarado y Mar Chiquita, indican a priori, que existe una mayor oferta, los que los que se diferencian por las instancias de aprobación o no en que se encuentran. Por un lado están las UC convalidadas, otras se encuentran en etapa de convalidación en el ámbito de la Provincia de Buenos Aires y, por úl mo, se han detectado otras sin convalidar en instancias de difusión y comercialización, sin que a la fecha se hayan podido obtener mayores datos fehacientes de la instancia en la que se encuentran.

En total, entre convalidados, en proceso de aprobación, y en instancias de comercialización, abarcan un total de 322 has., y con enen 1.925 lotes.

En el cuadro, que se adjunta, se diferencia en que un solo emprendimiento está convalidado por la PBA en el Par do de General Pueyrredon, y es Rumencó, el que está conformado por 4 barrios: Los Pinos, Los Álamos, Los Sauces y Los Tilos; y en proceso de convalidación en la PBA Arenas del Sur, que en las instancias locales ya ha realizado la Audiencia Pública (nov-2013), y en otra categoría aquellos que ya lo completaron o por lo menos ARBA los reconoce como unificaciones por hechos existentes. En total en el arco las UC son las siguientes:

DESARROLLO URBANO
Par do UC en la PBA Par do UC en la PBA Jun-12Jun15 Jun-12Jun-15
URBANIZACIONES CERRADAS EN EL ARCO DEL SUDESTE BONAERENSE
capba IX DESARROLLO URBANO SUSTENTABLE 27
Barrancas de San Benito, Chapadmalal

PARTIDO / URBANIZACIONES CERRADAS CONVALIDADOS EN LA PBA RECONOCIDOS POR ARBA (unificaciones por hechos existentes) CON TRÁMITE PROVINCIAL INICIADO CON PROMOCIÓN DE COMERCIALIZACIÓN

Arenas del SurArenas del Sur

Alto la Sierra

Club de Golf Los Acan lados

Country del Golf

El Marquesado

Finca de Peralta Ramos

General Pueyrredon

Barrancas de San Benito

Marayuí

Mar Chiquita

General Alvarado

Rumencó (4 Bº)

Tierra & Mar

Costa del Sol

Lagos del Mar

Haras del Mar

Las Prunas

Paseo del Bosque

Pinares de Santa Clara

Los Teros

Cardón Miramar LinksLas Lomas de Miramar

Las Brusquitas

La Trinidad

Lomas de Miramar

SubTotal 1811

Total 20

Fuente: elaboración propia en base a datos de Cartogra a ARBA, página especializadas y relevamiento.

en por lo menos la de contar, como mínimo, con Zonificación de Usos (art. 75º, inc. 2 DL 8912) y fija otros requerimientos necesarios, contar con una Secretaria de Planeamiento; realizar una Audiencia Pública, otorgar la Convalidación Técnica Preliminar o prefac bilidad y la Defini va o fac bilidad, y no transfiere la potestad de aprobar el proyecto hidráulico y la subdivisión del suelo.

Los Acan lados

EL PROCESO DE DESARROLLO URBANO EN LA PBA

En el marco del Programa de descentralización Administra va la Provincia le otorga la potestad a los Municipios de aprobar las UC, que comprende a los clubes de campo y a los barrios cerrados, mediante el Decreto PBA 1727/02, en el marco del art. 70º del DL 8912/77, por el cual se le atribuía la responsabilidad primaria del ordenamiento territorial a los Municipios, pero deben realizarse Convenios Específicos para su puesta en vigencia.6 La posibilidad de aprobación debía estar enmarcada

6 Al 31-ene-10 los Par dos que han firmado Convenios específicos son: Tigre, Lujan, E. De La Cruz, Bahía Blanca, Campana, San Fernando, Cañuelas, Berazategui, Pilar, Zarate, General Pueyrredon, General Rodríguez (Solo para las urbanizaciones que se localicen en el ámbito territorial y demás regulaciones establecidas por la Ord. N° 1481/86- “Zona Club de Campo”-), Brandsen, Florencio Varela, San Nicolás, Moreno, Ezeiza. h p://www.gobierno.gba.gov.ar/cdi/ barrios_cerrados/barrios_cerrados1.html.

En concomitancia con las polí cas de descentralización es que se producen las migraciones que fueron consolidando los “suburbios” de la ciudad de Buenos Aires al anillo de Par dos del conurbano bonaerense7, a semejanza del modelo de expansión americana.8 Estas polí cas les garan zaban a los municipios atraer “recursos”, no por los incrementos en la recaudación de las tasas, sino por los consumos de bienes y servicios que estos sectores generan, así como la creación de empleos en servicios vinculados a estos emprendimientos.

El modelo de las UC imperante y sus derivaciones, se fueron ubicando en sectores rurales, en los bordes del tejido urbano residencial existente, y en el caso de las par cularidades que presentan ciudades como la nuestra, en la desarrollarse la ciudad frente al mar y otros recursos hídricos que cons tuyen fuertes atractores urbanos de localización, son los espacios que mayoritariamente se prefieren. (Ver Plano Nº 1)

7 Varios especialistas analizan el fenómeno de estas migraciones en los que los Par dos en los que más impacta estos nuevos asentamientos son los más pobres.

8 Enhebrados por una vía estructurante que les garan zaba en viajes no mayores a una hora vincularse con la CABA.

capba IX DESARROLLO URBANO SUSTENTABLE 28

CONSIDERACIONES FINALES

Si bien en el PGP se han desarrollado dos instancias de planificación estratégica y par cipa va, el Plan Estratégico de Mar del Plata y el Par do de General Pueyrredon, a pesar de las diferencias en los modelos de acción propuestos entre ambos en su desarrollo, poco tratan el tema en par cular. El primer PEM, del arq. Monteverde, 2004-2006. En el documento base del Plan de Ordenamiento Territorial (POT/06) se fija en el marco de las cuatro líneas de actuación y establece como una de las premisas básicas la de “contener el crecimiento sico de la ciudad, propiciando el crecimiento interior por sobre la expansión”… “densificar las áreas urbanas, consolidando el espacio sico de la cuadricula, racionalizando accesibilidad, infraestructura y equipamiento urbano.” (Documento base POT, 2005: 13) Mientras que el del arq. Pesci, 2013-2015, detecta como uno de los conflictos de la ciudad sustentable por el impacto nega vo del emplazamiento de las urbanizaciones cerradas en la periferia (Tomo 1- El Plan, Plan Estratégico Mar del Plata 2013- 2030, 2015:40) y detalla que debe realizarse un freno en la expansión periurbana comprendiendo los procesos migratorios (id, 2015:46).

En el caso en par cular del Par do de General Pueyrredon (PGP), y desde la Secretaría de Planeamiento Urbano, viene argumentándose que la posibilidad de emplazamiento y aprobación de las UC en el Par do se limita a ubicarse en

lo que serían los límites de la Planta Urbana Construida (PUC), como forma de contenerla. Estos emprendimientos predominantemente han elegido emplazarse hacia el sur del ejido en proximidad al mar u otros recursos hídricos de calidad paisajís ca. (Ver Plano de ubicación de urbanizaciones cerradas)

En el marco del proceso de planificación en que se encuentra actualmente el Par do de General Pueyrredon, sería oportuno promover el control de la expansión urbana. Este po de emprendimientos en áreas con bajo valor del suelo que fueron apropiadas por los sectores más beneficiados (Svampa)9 durante el úl mo período y considerados como “tapón”, en realidad “condenan” a que los sectores con menores posibilidades de acceso deban asentarse “más allá”, con las consecuencias en la deseconomía que trae aparejada al gobierno local y que solo enfa za el modelo de ciudad dispersa con altos consumos de suelo urbano en vivienda individual.

DESARROLLO URBANO
Arq. Adriana B. Olivera Coordinadora IEU9 Zona Centro CAPBA IX 9 Maristella Svampa (2011): Los que ganaron. La vida en los countries y barrios privados. Editorial Biblos. Rumencó Plano Nº 1- Localización de las Urbanizaciones Cerradas Duna de las Pampas
capba IX DESARROLLO URBANO SUSTENTABLE 29
Master Plan de Arenas del Sur

La accesibilidad urbano-edilicia

En la ciudad de Mar del Plata

A través del arquitecto Bonavena, protagonista en la elaboración de la norma va sobre accesibilidad del Municipio de Gral. Pueyrredon, recorremos el proceso que llevó a gestar las Ordenanzas Municipales vigentes, los organismos y comisiones par cipantes, planes e instrumentos.

Hacia el año 1985 fui convocado por el entonces Secretario de Obras y Servicios Públicos. Al concurrir a su oficina me dijo: “Comunicate con el Sr. Hasbany a este teléfono, porque ene una propuesta para construir una rampa. Fijate cómo hacerla para personas que andan en silla de ruedas.”

El Sr. Elías Hasbany, fallecido hace pocos años, fue un notable y entusiasta precursor de la accesibilidad urbano-edilicia. Luego de comunicarme con él, tuve el gusto de conocerlo y en tal oportunidad me describió su inicia va, consistente en una rampa de ingreso a la Municipalidad.

Sin demasiada dificultad, mediante prác cas in situ, se diseñó y ejecutó la rampa existente actualmente des nada al ingreso al hall central del Palacio Municipal. Con ella, es posible franquear la escalinata de acceso ubicada sobre la calle Hipólito Irigoyen. Tal vez, esta sencilla acción fue una de las primeras intervenciones gubernamentales, relacionadas con la accesibilidad edilicia en la ciudad de Mar del Plata.

Desde fines del siglo XX, la comunidad marplatense par cipa de un proceso de concien zación colec va acerca de la necesidad de contribuir a facilitar la circulación y permanencia de Usuarios con Movilidad y/o comunicación Reducida (UMR) en espacios urbanos y edilicios de uso público. En este ar culo se tratará de describir algunas etapas de dicho proceso y sus consecuentes dificultades.

MAR DEL PLATA CIUDAD FELIZ

Desde mediados del siglo XX, la instrumentación de polí cas nacionales sustentadas en la incen vación del consumo popular y el turismo masivo vigorizaron la función turís ca de la denominada “ciudad feliz”. En el año 2001, dicha ciudad contaba con 564.056 habitantes estables. En plena crisis económica, social e ins tucional de nivel nacional, Mar del Plata recibió a 2.570.580 visitantes durante el periodo invernal 2001 y a 2.953.556 turistas durante la temporada es val 2001/021 .

Según estándares internacionales, el 7 % de la población presenta caracterís cas de UMR. Luego, sobre un total de 6.088.192 habitantes residentes y visitantes, había 426.173 UMR que disponían de innumerables obstáculos para su desplazamiento en hoteles, unidades balnearias, sectores urbanos de alta centralidad y espacios de uso público, así como para su traslado en transporte público colec vo de

capba IX DESARROLLO URBANO SUSTENTABLE 30
1 Datos estadís cos: OFICINA DE INFORMACIÓN ESTADÍSTICA. MUNICIPALIDAD DEL PARTIDO DE GENERAL PUEYRREDON.

pasajeros. Para esta significa va población, Mar del Plata resultaba escasamente feliz.

A mediados del año 1997, el Secretario de Planeamiento Urbano trajo a mi escritorio un conjunto de libros sobre accesibilidad sico-espacial. La mayoría eran actos norma vos sancionados por autoridades de centros urbanos europeos e iberoamericanos. Me dijo: “La ciudad necesita legislación sobre accesibilidad. Leete esto y comunicate con el Arq. Benvenuto. Tratá de elaborar un proyecto de Ordenanza sobre este tema para un congreso que se hará en Mar del Plata.”

Mediante estudio de antecedentes, adecuación de legislación específica y consultas con el Arq. César Benvenuto, integrante del entonces CONSEJO DEL DISCAPACITADO, fue posible confeccionar los considerandos y el ar culado de la requerida Ordenanza. Posteriormente, fue presentada en calidad de ponencia en el IV CONGRESO INTERDISCIPLINARIO SOBRE BARRERAS

ARQUITECTÓNICAS Y URBANÍSTICAS, convocado a fines del año 1997 en instalaciones del Estadio José María Minella.

Con posterioridad a la ponencia en el mencionado Congreso, el DEPARTAMENTO EJECUTIVO envió al HONORABLE CONCEJO DELIBERANTE el proyecto de Ordenanza, el cual fue conver do en la Ordenanza Municipal Nº 13007 el 25/11/1999. Dicha Ordenanza fue promulgada mediante Decreto Municipal Nº 2825/99 e incorporada a la SECCIÓN VI del REGLAMENTO GENERAL DE CONSTRUCCIONES (RGC).

En la Ordenanza Municipal Nº 13007 se dispone la obligatoriedad ejecutora de componentes para accesibilidad urbano-edilicia y se especifican las caracterís cas que deberán presentar los mismos, clasificándolos en intraedilicios (Puertas y pasillos, Escaleras, Rampas, Ascensores, Locales sanitarios y Estacionamiento cubierto) y en extraedilicios (Vías públicas, Pa os, jardines y plazas y Estacionamiento descubierto).

Mediante el ar culo 2º, de dicha Ordenanza, se creó la COMISIÓN MIXTA PERMANENTE DE BARRERAS

ARQUITECTÓNICAS Y URBANÍSTICAS (COMIBAU). Tal comisión “tendrá por finalidad efectuar el seguimiento

ACCESIBILIDAD
31

de la aplicación de la presente Ordenanza y asesorar a los organismos municipales y demás en dades públicas o privadas”. La COMIBAU fue designada por el Departamento Ejecu vo y comenzó a sesionar en febrero del año 2000, con nuando su labor hasta el presente. Hacia el año 2003, dicha Comisión presentó un proyecto de Ordenanza para actualizar algunos ar culos de la Ordenanza Municipal Nº 13007, referidos a rampas de esquina. Posteriormente, el Departamento Ejecu vo envió la propuesta modificatoria al Honorable Concejo Deliberante, el cual procedió a su ins tucionalización el 11/03/2004 mediante sanción de la Ordenanza Municipal Nº 15992, promulgada por el Departamento Ejecu vo mediante Decreto Municipal Nº 417/04. Entre otras acciones de asesoramiento a en dades públicas y privadas, la COMIBAU convocó a tres talleres temá cos des nados a la difusión de ambas Ordenanzas en organismos municipales de aplicación. En ellos, fueron expuestos los contenidos de las disposiciones norma vas per nentes y atendidas las consultas efectuadas por inspectores y autoridades de las actuales DIRECCIONES GENERALES DE OBRAS PRIVADAS y de INSPECCIÓN GENERAL.

Sin embargo, persisten dificultades en la aplicación de la aludida legislación. Entre otros ejemplos, es posible mencionar el incumplimiento del ar culo 6.2.2.4 de la Ordenanza Municipal Nº 13007, por el cual se prohíben las escaleras compensadas. A 15 años de vigencia de la mencionada ordenanza, todavía son aprobados edificios mul familiares con escaleras con nuas y sin rellanos, contribuyendo a maximizar la rentabilidad de los espacios parcelarios en detrimento de la accesibilidad y la seguridad edilicia.

MAR DEL PLATA CIUDAD ACCESIBLE

Disponer de legislación sobre la materia no implica la mágica e inmediata materialización de componentes accesibles en la ciudad de Mar del Plata y en las demás áreas urbanas del Par do de General Pueyrredon. En la actualidad, una reciente mamá (UMR), conduciendo el coche de su bebé, encuentra numerosos obstáculos circulatorios e impedimentos para transitar en el área central de la ciudad, así como excesivas dificultades para el ingreso, permanencia y egreso en espacios de uso público.

capba IX DESARROLLO URBANO SUSTENTABLE 32

Para obtener una ciudad accesible e incorporar a UMR al consumo y/o a la producción, se requiere: decisión polí ca y recursos públicos, actualización de la legislación municipal, compromiso de los organismos gubernamentales en la aplicación de la legislación vigente, progresiva adecuación de las obras civiles existentes, obras públicas que consideren la accesibilidad al medio sico y condiciones adecuadas para acceso generalizado de UMR al transporte público colec vo intraurbano de pasajeros. Tales estrategias de actuación deben desarrollarse en un plan integral de accesibilidad.

En el año 2006, la COMIBAU y la entonces DIRECCIÓN GENERAL DE PROMOCIÓN DE LA IGUALDAD propuso al Departamento Ejecu vo la confección de un Plan de Accesibilidad urbano-edilicia. Al año siguiente, la MUNICIPALIDAD DEL PARTIDO DE GENERAL PUEYRREDÓN firmó convenio de colaboración recíproca con la COMISIÓN NACIONAL DE DISCAPACIDAD (CONADIS), a efectos de contribuir a la elaboración de dicho plan

Con tal inicia va y la colaboración del Gobierno Nacional, en el año 2008 la COMIBAU confeccionó el proyecto de Ordenanza des nado a la elaboración del sugerido Plan. Dicho proyecto fue ingresado al Honorable Concejo Deliberante, con el cual el 29/11/2009 se sancionó la Ordenanza Municipal Nº 19183 promulgada por Decreto Municipal Nº 1084/09 del Departamento Ejecu vo. Con tales actos administra vos se ins tucionalizó el PLAN MUNICIPAL DE ACCESIBILIDAD (PLAMAC), cuyo obje vo central es la producción de estrategias, propuestas y proyectos des nados a facilitar a UMR el acceso a ámbitos urbanos y edilicios.

Para cumplir con tal obje vo, mediante el ar culo 3º de la Ordenanza Municipal Nº 19183 se crea la COMISIÓN DEL PLAN MUNICIPAL DE ACCESIBILIDAD (COPLAMA), des nada a asegurar la puesta en marcha, elaboración, implementación y actualización del PLAMAC. En el ar culo 4º se establece que el COPLAMA

estará cons tuido por tres organismos: LA UNIDAD DE COORDINACIÓN, EL CONSEJO ASESOR y EL EQUIPO TÉCNICO. Los demás ar culos establecen las funciones, asignadas a los mencionados organismos, así como las dependencias públicas y las en dades privadas que los conformarán.

En pocos meses, es posible producir el PLAMAC con convocatorias a instancias de par cipación ciudadana y ejecutarlo en sucesivas etapas considerando un periodo aproximado de 8 años, en los cuales se asegure progresivamente la accesibilidad urbanoedilicia en ámbitos cons tu vos del área central, del litoral marí mo, de unidades turís co-balnearias, de los principales espacios de uso público y del transporte urbano de pasajeros.

Sin embargo, desde el año 2009, la población marplatense y las autoridades municipales dispusieron otros intereses par culares y prioridades estaduales. En la actualidad, el PLAMAC es sólo una Ordenanza vigente y olvidada en el devenir burocrá co. Una expresión texto-conceptual desprovista de decisiones polí cas, de recursos gubernamentales y de par cipación ciudadana. Mar del Plata ciudad accesible será un obje vo posible y necesario si se comprende nuestra condición de seres biológicos, inmersos en las con ngencias de la existencia humana. Será posible y necesario si se admite que las circunstancias vitales, las enfermedades, los accidentes y la vejez forman parte integrante de nuestras vidas. Será posible y necesario si se internaliza que dichas con ngencias tendrán consecuencias reductoras de desplazamiento y/o sensorialidad. Será posible y necesario el día que camines por una vía pública, veas una rampa de esquina y pienses que dicho componente urbano no es “…para personas que andan en silla de ruedas”. Es para vos.

ACCESIBILIDAD
capba IX DESARROLLO URBANO SUSTENTABLE 33
Arq.

Mapas inteligentes inteligentes

La evolución de la cartogra a tradicional

En la edición nº 10 de Info CAPBA IX, junto con el Director del Ins tuto de Desarrollo Sustentable, comenzamos a abordar la temá ca referida al concepto de “inteligencia” aplicado a las ciudades. En este número, profundizamos sobre una de las herramientas indispensables para la planificación y la ges ón eficiente e inteligente del territorio. Comprender y conceptualizar la u lidad y potencialidad de los mapas inteligentes permi rá desarrollar nuevos campos de actuación para los profesionales de la arquitectura y el urbanismo.

Los mapas inteligentes o “Smart Maps” son la úl ma frontera en la evolución de lo que normalmente conocemos como cartogra a tradicional, en este caso representada por El Theatrum Orbis Terrarum de Ortelius1 , (fig 1) un ejemplo paradigmá co de la cartogra a an gua. Aunque si debiéramos definir en la actualidad y de una manera tradicional, ¿qué es un mapa? deberíamos decir “es una representación plana de la superficie de la Tierra”. En la actualidad la cartogra a ha sido impactada por los avances y desarrollos tecnológicos, todos ellos originados a par r de los años 60´. Los inicios del Siglo XXI se caracterizaron como la era de la consolidación del mundo digital, los grandes avances en el diseño y construcción de computadoras, el desarrollo de programas (so wares), bases de datos relacionales, sistemas de posicionamiento global (GPS), para culminar con los desarrollos provenientes desde la tecnología espacial. Además de la puesta en órbita de satélites con sensores remotos instalados, que orbitan la erra en forma permanente recolectando información sobre la superficie de la Tierra (fig 2). Miles de datos son generados en forma con nua sobre todo po de acontecimientos que se desarrollan en la superficie de la erra y es a par r de la generación de estos datos, que son u lizados en forma combinada mediante las tecnologías de análisis y procesamiento provenientes desde los Sistemas de Información Geográfica (S.I.G.)2. No se pueden concebir los mapas Inteligentes si no es comprendiendo que son una combinación estratégica con los S.I.G. No se pueden pensar el uno sin el otro ya que los mapas inteligentes son, en realidad, un producto emergente

1 El Theatrum Orbis Terrarum de Ortelius es considerado como el primer atlas verdadero, en el moderno sen do del término: una colección de hojas cartográficas. Siglo XVI.
fig 1 fig 2 fig 3
2 S.I.G. Sistemas de Información Geográfica. / G.I.S. en inglés Geographical Informa on System.
capba IX DESARROLLO URBANO SUSTENTABLE 34

de los S.I.G. En la actualidad se han conver do en unos de los instrumentos indispensables para la planificación y ges ón en las denominadas “ciudades inteligentes” 3 y son una herramienta indispensable para la planificación y ges ón del territorio.

Hemos mencionado, cartogra a, tecnología digital, sensores remotos, satélites, etc. Pero ¿en qué consisten los mapas inteligentes? ¿Cómo pueden ayudarnos en nuestros trabajos?

¿En qué se diferencian estos mapas de los S.I.G.? ¿Son instrumentos similares, o tal vez complementarios?

ANTECEDENTES

Tal vez indagando en la historia de los S.I.G. podamos comprender en forma más precisa en qué consisten y como los podemos u lizar en nuestras inves gaciones.

Los S.I.G. surgen en la década del 60 a par r de los trabajos de inves gación realizados por Roger Tomlinson4 (fig 3) para el gobierno Canadiense.

Cuando R. Tomlinson, en sep embre de 1962, conoce circunstancialmente en un vuelo comercial al Director del Inventario de Tierras de Canadá (CLI) Lee Pra , ninguno de los dos imaginó la trascendencia de dicho encuentro. Es allí donde ambos conversan sobre las posibilidades de aplicar el desarrollo tecnológico que R. Tomlinson estaba realizando para Spartan Air Services, de O awa, y cuyo obje vo era realizar cartogra a por computadoras. Nunca imaginaron que estaban generando el primer sistema de información geográfica de la historia.

Las dificultades y desa os con que se encontró R. Tomlinson en el desarrollo e implementación del sistema y las soluciones encontradas, fueron aportando potencialidades de análisis y procesamiento que no fueron pensadas inicialmente.

DEFINICIONES S.I.G.

De todas las definiciones disponibles sobre S.I.G. tal vez estas tres nos pueden dar una comprensión general, no defini va, para comprender que hacen y para qué sirven los S.I.G.:

“Aunque surgió del trabajo de geógrafos, los S.I.G. han sido siempre u lizados para la resolución de problemas socio-espaciales en una gran diversidad de ciencias y por una amplia variedad de cien ficos, por lo cual, desde sus inicios, se los consideró una herramienta interdisciplinaria.

3 Ciudades Inteligentes. Revista Info CAPBA IX, pág. 24 a 27, marzo 2015.

4 Roger F. Tomlinson , 1933/2014, fue un geógrafo inglés residente en Canadá y principal ar fice de los modernos Sistemas de Información Geográfica (SIG) Está considerado a nivel mundial como “el creador de los SIG”.

Esta situación hace que existan múl ples visiones al momento de brindarles una definición.”5

“Un SIG no es simplemente un sistema informá co para hacer mapas, aunque pueda crearlos a diferentes escalas, en diferentes proyecciones y con dis ntos colores. Un SIG es una herramienta de análisis. La mayor ventaja de un SIG es que permite iden ficar las relaciones espaciales entre caracterís cas de varios mapas. Un SIG no almacena un mapa en sen do convencional, ni almacena una imagen concreta o vista de un área geográfica. En vez de ello, un SIG almacena los datos a par r de los cuales se puede crear la escala deseada, dibujada para sa sfacer un producto. En suma un SIG no con ene mapas o gráficos, sino una base de datos. El concepto de las bases de datos es central para un SIG, y es la principal diferencia entre un SIG y un simple graficador o sistemas informá co de cartogra a, que solo puede producir buenos gráficos. (UNDERTANDING GIS, 1995-traducción de Torres Alfosea, 1995)”.

“Sistema digital para el análisis y manipulación de todo po de datos geográficos a fin de aportar información ú l para las decisiones territoriales (TOMLINSON, 1984)”.

CAPACIDADES DE LOS S.I.G.

¿Qué pueden realizar?

Uno de los aspectos esenciales que presentan los S.I.G. es su gran capacidad para el manejo de la complejidad de temas e información. La cues ón de la complejidad en las problemá cas que se abordan en la actualidad, planificación, ges ón, sustentabilidad, vulnerabilidad, etc. es una par cularidad intrínseca a los mismos, donde lo complejo no se interpreta como complicado sino más bien como denso e interrelacionado con muchas variables a estudiar y las mismas funcionando de manera interdependiente, dando al conjunto la caracterís ca de funcionamiento sistémico; es decir que la alteración de una variable trae como consecuencia el cambio de las otras y lo que es más importante, cambios en el funcionamiento del sistema en general.

ARCHIVO Y OPERACIÓN DE GRANDES VOLÚMENES DE INFORMACIÓN.

Manejo de Bases de Datos.

Cuando R. Tomlinson concibe inicialmente el S.I.G. lo hace desde la idea de relacionar un mapa con una base de datos y con esa simple idea revolucionó los cimientos de la cartogra a y la geogra a de los años 60, creó los Sistemas de Información Geográfica. (S.I.G.)

SUSTENTABILIDAD capba IX DESARROLLO URBANO SUSTENTABLE 35
5 Buzai, G. Sistemas de Información Geográfica y cartogra a temá ca. Cap II pág. 19; 2008 Ed. Lugar. Buenos Aires. Argen na.

Los nuevos avances disponibles para la inves gación de cualquier problemá ca urbano-ambiental generan una gran can dad de información. Esta información es materializada en miles de datos. La operación de estos volúmenes de información puede tener complicaciones no previstas inicialmente. El archivo y operación, sobre todo la búsqueda de esa enorme can dad de datos, en principio se convir ó en un trabajo lento y poco funcional. Ya que la indagación de algún dato específico en un océano de información se podía transformar en algo complejo y escasamente redituable.

Los grandes volúmenes de datos provenientes del estudio de estas nuevas problemá cas, se han tratado con los modelos tradicionales de análisis que dejan de ser ú les, siendo reemplazados por los nuevos modelos teóricos provenientes desde la complejidad ambiental. Los datos son archivados en formato digital sin importar su formato de origen; textos, fotos, imágenes satelitales, grabaciones de audio o video, todo es transformado en sistema binario, quedando disponible para la consulta en cualquier momento con cualquier secuencia de búsqueda dirigida o aleatoria.

Análisis Espacial

El análisis espacial se define como el conjunto de conceptos y metodologías u lizadas para abordar el estudio de la estructura y las lógicas de relación del

territorio, a par r del conocimiento de la posición geo-referenciada de las en dades geográficas y las caracterís cas de las variables seleccionadas para su estudio.

La u lización de S.I.G. en el análisis de datos ene por finalidad descubrir estructuras espaciales, asociaciones y relaciones entre los datos, así como para modelar fenómenos ambientales. Los resultados reflejan la naturaleza y calidad de los datos así como la per nencia de los métodos y funciones aplicadas.

El proceso convierte los datos en información ú l para conocer un problema determinado.

Las funcionalidades de los programas SIG son variadas, mientras que algunos solamente disponen de funcionalidades para realizar mapas temá cos, otros, en cambio, pueden actuar sobre los datos en todas las etapas, desde la captura y edición, pasando por sofis cados métodos de análisis espacial y de visualización.

Ahora, no solamente se puede representar digitalmente el evento en su real magnitud, sino que se puede responder a preguntas tales como:

a. ¿qué sucede?

b. ¿dónde sucede?

36

c. ¿cuál es la magnitud del evento?

d. ¿el fenómeno es dinámico?

e. ¿se modifica en el empo?

La caracterís ca de disponer de toda esta información rela va al evento u objeto de estudio, influye en nuestra capacidad de tomar decisiones, de generar planificaciones, planes de mi gación, etc. ya que si conocemos mejor al problema, podemos comprender mejor su funcionamiento sistémico y por lo tanto podremos implementar mejores soluciones.

TECNOLOGÍAS COMPLEMENTARIAS

Como mencionamos anteriormente, a los sistemas de información geográfica se ensamblan o acoplan, ciertas tecnologías que complementan la calidad y la can dad de información. Los Sensores Remotos6 y los Sistemas de Posicionamiento Global (GPS) añaden a los mapas inteligentes caracterís cas de calidad y precisión.

Los sensores remotos fueron, a través de la historia, disposi vos instalados inicialmente en diferentes pos de vehículos, terrestres o aéreos, tales como, globos aerostá cos, zeppelines, aviones y finalmente en satélites que orbitan la Tierra. Desde las primeras fotos aéreas de la historia, registradas desde un globo aerostá co, hasta las úl mas imágenes satelitales tomadas sobre fenómenos o eventos naturales se ha modificado sustancialmente la manera de observar y entender el mundo. La observación de la superficie de la Tierra desde un punto de vista diferente para cada

6 Traducción del término en inglés Remote Sensing y se comprende como la técnica de adquisición y posterior procesamiento de datos de la superficie terrestre desde sensores instalados en plataformas espaciales.

época ha colaborado en nuevas definiciones y nuevas formas de comprender el mundo, como por ejemplo el concepto de “nave erra” o “Earthship” 7

En 1858 Gaspar Félix Tournachon, cuyo pseudónimo era Nadar, un periodista, ilustrador, caricaturista y fotógrafo francés, se subió con su cámara fotográfica a un globo aerostá co “El Gigante”, y sacó la primera foto aérea de la historia sobre los tejados de las casas del pueblo Pe tBecetre en Francia. (fig 4 y 5). Dicha fotogra a no se ha conservado hasta la actualidad por lo tanto la foto aérea más an gua que se conserva hoy es la de la Ciudad de Boston8 (fig 6).

Recientemente han surgido novedosos disposi vos aéreos de pequeño tamaño y alto rendimiento denominados drones (fig 7) y que son capaces de realizar vuelos de baja y media altura, obteniendo “información instantánea”. Estos equipos están equipados con cámaras de alta sensibilidad y son capaces de obtener imágenes de muy alta calidad (HD)9. Los antecedentes de estos artefactos, no por su tecnología sino por su tamaño y versa lidad, deberíamos rastrearlos en la historia y relacionarlos con las experiencias realizadas con palomas voladoras equipadas con cámaras de fotogra a (fig 8) Las palomas fueron u lizadas durante la 1ra. Guerra Mundial y realizaban observaciones fotográficas sobre las líneas enemigas (fig 9 y 10). En la actualidad los drones han tenido un desarrollo y u lización expansiva,

7 Earthship vocablo inglés que significa nave erra.

8 La fotogra a aérea más an gua que se conserva corresponde a la sacada por el fotógrafo estadounidense James Wallace Black en 1860, sobre la ciudad de Boston.

9 La alta definición, HD o HQ (del inglés High Defini on o High Quality) es un sistema de vídeo con una mayor resolución que la definición estándar, alcanzando resoluciones de 1280 × 720 y 1920 × 1080 píxeles.

SUSTENTABILIDAD
fig 4 fig 5
capba IX DESARROLLO URBANO SUSTENTABLE 37
fig 6

básicamente debido a su prac cidad y bajo costo opera vo comparándolo con las fotogra as aéreas o imágenes satelitales tradicionales. Estos artefactos aéreos han demostrado ser de suma u lidad para la realización de cierto po de mapas temá cos tales como por ejemplo: mapas del delito, relevamientos catastrales, preliminares, relevamientos agrícolas, inundaciones urbanas, incendios forestales, etc., cuya dinámica y monitoreo requieren de la u lización de medios muy versá les, de fácil manejo y de bajo costo opera vo.

El sistema de posicionamiento global (GPS)10 es un sistema que permite determinar la posición de un objeto (una persona, un vehículo) con una precisión de hasta cen metros (si se u liza GPS diferencial), aunque lo habitual son unos pocos metros de precisión. El sistema fue desarrollado, y empleado por el Departamento de Defensa de los Estados Unidos. Para determinar las posiciones en el globo, el sistema GPS está cons tuido por 24 satélites y u liza la trilateración11.

La u lización conjunta de estos desarrollos y tecnologías ha transformado al tradicional mapa en una sofis cada herramienta digital capaz de operar en forma interac va con el operador y suministrar a demanda todo po de información, como así también construir una gran variedad de análisis mul variado y mapas temá cos que son indispensables para la ges ón y monitoreo de las “ciudades inteligentes”.

Así como anteriormente definimos a un mapa como una representación plana de la superficie de la Tierra, ahora deberíamos realizar una definición preliminar de “un mapa inteligente”,

“es una representación plana, geo-referenciada, de la superficie de la Tierra realizada con tecnología digital y que puede brindar información interactuando con el usuario, sea este experto o circunstancial”. 12

10 El sistema de posicionamiento global (GPS) es una tecnología que permite determinar en cualquier parte del mundo la posición exacta de un punto u objeto, una persona, un vehículo, etc. con una precisión de hasta cen metros (si se u liza GPS diferencial), aunque lo habitual son unos pocos metros de precisión.

11 La trilateración es un método matemá co que permite determinar las posiciones rela vas de objetos usando la geometría de triángulos de forma análoga a la triangulación.

12 Fuente: elaboración propia.

MSc. Arq. Horacio Goyeneche Director Ins tuto de Desarrollo Sustentable - CAPBA IDS@capba.org.ar
SUSTENTABILIDAD
fig 7 fig 8
capba IX DESARROLLO URBANO SUSTENTABLE 39
fig 9 fig 10

Concurso de Ideas y Anteproyectos para la puesta en valor urbano y reacondicionamiento del predio de la Planta de Pre-tratamiento de Efluentes “Ing.

Entrega de Premios de a los ganadores

El Municipio de General Pueyrredon, junto a OSSE y el Colegio de Arquitectos de la Provincia de Bs. As D. IX realizaron la ceremonia de entrega de premios a los ganadores del Concurso Provincial de ideas y anteproyectos para el reacondicionamiento de las instalaciones del Emisario Submarino y de la actual planta de pre-tratamiento cloacal, la que será desac vada y demolida cuando comience a funcionar la nueva Estación Depuradora de Aguas Residuales (EDAR).

La ceremonia fue presidida por las autoridades de las Ins tuciones que promovieron la inicia va: el Intendente municipal, CPN Gustavo Pul , el Presidente del Directorio de OSSE Mar del Plata- Batán, ing. Mario Dell’ Olio y la Presidente del Colegio de Arquitectos D. IX, Arq. Julia Romero. Además, estuvieron presentes el vicepresidente, el director y la síndico Mabel de Obras Sanitarias, concejales, vecinos e invitados especiales, entre otros referentes de los organismos par cipantes.

El Intendente Pul reconoció, al empo que mencionó la concreción del Emisario Submarino entre las “contundentes cancelaciones de temas pendientes”, que donde había contaminación y olores “se sigue trazando un desarrollo de envergadura”. “Vamos cancelando cues ones pendientes -subrayó- además del emisario ya funcionando, el emprendimiento cultural y comercial donde operaba la vieja estación terminal de ómnibus, el futuro Centro Cívico o lo que se hará en el actual palacio comunal, seguimos cerrando temas que hacen a la proyección de Mar del Plata. Este proyecto es viable porque con el Emisario Submarino comenzamos a saldar una deuda fuerte, a par r de una de las más grandes inversiones que se han realizado en lo ambiental”.

Por su parte, el ingeniero Dell’ Olio no dudó en catalogar al proyecto como “un paso trascendental hacia delante” e hizo especial hincapié en que nada es casualidad, sino que “nos propusimos llegar a esta instancia como un obje vo de ges ón”. Al respecto, enfa zó: “Con el Intendente Pul fijamos siempre a lo ambiental como prioritario. Emisario, calidad recrea va de las

capba IX DESARROLLO URBANO SUSTENTABLE 40

playas, frente costero y la próxima Estación Depuradora de Aguas Residuales (EDAR), que en breve estaremos cristalizando con la rúbrica del contrato iniciador, son eslabones de la cadena ambiental que queremos para la ciudad. Levantar la zona y revalorizar el paseo costero son las metas en este aspecto”. Asimismo, ante la nutrida audiencia, señaló que “cada inversión debe ser en sen do ordenado” y que se espera wdel espacio proyectado “un punto aprovechable en los casi 40 mil metros cuadrados de superficie en erra y los 14 mil en playa”.

A su turno, la tular del Colegio de Arquitectos, Julia Romero, consideró: “Ha sido un honor que el Ingeniero Dell’ Olio y el equipo de Obras Sanitarias hayan confiado en los profesionales de la Provincia” atento a que, dijo, “trabajamos con pasión y esmero en la inicia va”.

A propósito de los trabajos, el arquitecto Pablo Rescia, ganador del Concurso, ensayó una suerte de recorrido por

la obra trazada para el sector costero norte, indicando la intención madre de “mantener el perfil urbano par cular de la ciudad”. Además, informó que se trabajó en dos conceptos fundamentales: un “conector urbano costero” y un “parque educa vo y recrea vo”, insis endo en la intención de lograr que la ciudad ejerza en el lugar un “aprendizaje permanente sobre el medio ambiente”. Es de destacar que en todo momento el jurado respetó la premisa de que los proyectos guardaran estricto cumplimiento de las condiciones resultantes del Estudio de Impacto Ambiental para la construcción de la Nueva Estación Depuradora Aguas Residuales señalándose en forma taxa va la necesidad de “preservar ámbitos arquitectónicos y paisajís cos y todos aquellos aspectos que tengan relación con el ordenamiento territorial, como así también la opinión de los vecinos ver da en la Audiencia Pública.”

CONCURSOS
41

1° premio

1º PREMIO

Autor: Arq. Pablo Fidel Rescia, Mat. CAPBA Nº 11659 (D IX)

Colaboradores: Arq. Jennifer Fernández, Mat. CAPBA Nº 24980 (D IX), María José Díaz Varela, Guadalupe Bahl, José Manuel Álvarez, Eduardo Arrepol, Carlos Roldán, Patricio Bellagamba.

DE LA MEMORIA DESCRIPTIVA

“Más allá de la arquitectura se encuentra el paisaje. Seguramente también la atracción irresis ble del vacío, donde los hechos suceden desde nuestro punto de vista, pero también desde la perspec va del hecho social, público y colec vo. Hoy, la dis nción tranquila entre ciudades y paisajes, entre territorio ar ficial por el hecho de ser construido y el natural por referirnos al medio que nos precede y nos acompaña, ha desaparecido. Y es en este “más allá”, es en esta disolución de las fronteras donde vuelven a nacer los jardines. Unos jardines insurgentes para unas ciudades mejores”.

Mar del Plata ya está lejos de ser una ciudad “para el turismo popular”; es una ciudad compleja y diversa, y el sector norte del frente marí mo es uno de los más pujantes áreas de expansión de la ciudad. Sin embargo no cuenta con espacios públicos de envergadura similar a los que podemos encontrar en otros tramos del corredor costero: algunos de más an gua data, y otros más recientes y cercanos al predio (como el caso del sector de Punta Iglesia o el museo MAR).

capba IX DESARROLLO URBANO SUSTENTABLE 42
CONCURSOS capba IX DESARROLLO URBANO SUSTENTABLE 43

2° premio

2º PREMIO

Autores: Arq. Omar Calviño, Mat. CAPBA Nº 4405; Ar. Alejandra Inés Camerano, Mat. CAPBA Nº 4406.

Asociado: Arq. Mauro Omar Calviño.

Colaboradores: Rodrigo A. Jorge, Naymé L. Calviño.

Asesores: Estructuras Estudio H. Delaloye y Asociados

DE LA MEMORIA DESCRIPTIVA

“El proyecto propone de esta forma una modificación del paisaje costero existente, en la medida que se instala como ordenador de su mismo paisaje y asumiendo la complejidad del si o.

Se modifica el paisaje en la medida que resuelve desde la primera etapa sector A el conflicto hoy presente entre el mar y las construcciones de muros y volúmenes edificados que lo obturan; recuperando la visibilidad del mar desde la costa y la ruta que la barranca brindaba, como cons tu vo de un territorio costero, incorporando al propio mar como dinamizador en un nuevo paisaje propuesto para la totalidad del espacio, que incluye desde la vieja planta 400m, el área de obrador 220m, la arenera 100m. que si bien no es parte directa de este proyecto según las bases, pero que la propuesta lo integra, los comprende, porque pensamos que sería prudente y necesario, como parte de la memoria de un proceso reconvenido de reparación y cuidados ambientales del barranco, sus bajadas históricas suelo aire agua y el espacio que delimita la RPN11 Hasta parque Camet 2300m que conforma hasta el acceso EDAR este parque costero al norte de la ciudad.”

capba IX DESARROLLO URBANO SUSTENTABLE 44

3° premio

3º PREMIO

Autores: Arq. Nicolás Picón Fernández, Mat. CAPBA Nº 24047; Arq. Nicolás Rosales, Mat CAPBA Nº P04283.

Colaboradores: Arq. Sebas án Marsiglia, Carolina Mardones, Valeria Roa.

Asesores : Ing. Sebas án Berdichevsky (estructuras), Paisajismo: Arq. Natalia Galdo Novo.

DE LA MEMORIA DESCRIPTIVA

“Se propone la construcción de un paisaje, en donde la integración diluya la contraposición entre lo natural y lo ar ficial. Implantados en una serie de terrazas naturales alternadas los edificios son consecuencia del paisaje y no un objeto ajeno a este. Los locales se manifiestan mimé cos y socavados en la topogra a dejando un gran frente protegido, de visuales amplias e ininterrumpidas hacia el mar. La forestación y el paisajismo con especies na vas potencian la idea de del regreso de la naturaleza al si o. La vegetación cubre los edificios y acompaña las circulaciones. La materialidad del ambiente construido reproduce esa condición natural donde priman la madera, la piedra y el hormigón que nuevamente transcribe la huella de la madera.

La resignificación de esta idea la materializa el espacio de exposiciones que en su singularidad, navega o sobrevuela la suave geogra a verde que desciende hacia el mar. Se direcciona en busca de horizontes amplios, grandes perspec vas y de visuales privilegiadas al paisaje construido. De un lenguaje sobrio y abstracto, y con una materialidad más delicada, el espacio de exposiciones se implanta en una ubicación estratégica para poseer al mismo empo una vinculación visual franca con el mar, la escollera y el muelle, como elementos propios del recorrido museís co, y funcional con el área de exposiciones exterior, que configura también una plaza de acceso al parque temá co”

CONCURSOS
capba IX DESARROLLO URBANO SUSTENTABLE 45

1° mención

1º MENCIÓN

Autor: Arq. Javier Curros, Mat. CAPBA Nº 25687

Colaborador: Arq. Guadalupe Ciocole o

DE LA MEMORIA DESCRIPTIVA

“La idea general del conjunto parte de una premisa sencilla: aprovechar la morfología par cular del si o para generar situaciones espaciales y paisajís cas determinadas, que le aporten un valor agregado al conjunto más allá de la mera resolución funcional, tecnológica y esté ca de cada edificio. Este punto de par da es clave para entender la decisión de semi-enterrar el edificio gastronómico, pues más que un edificio gastronómico es una explanada de aproximación al mar. El balconeo propuesto sobre el área de la futura marina, abre las visuales al mar abierto y hacia el Sur permite tener una panorámica única del centro de la ciudad, la playa y los acan lados.

Todas las decisiones tomadas durante el diseño del conjunto responden, por un lado, a la convicción personal sobre el uso de los espacios públicos, como espacios de interacción cultural, integración y desarrollo social, y por otro a la voluntad del promotor de devolver a la ciudad, al vecino, un espacio costero negado y relegado durante años. Ambas voluntades convergen en la necesidad de tratar el espacio público, de acceso libre, gratuito, accesible y universal como eje principal de la propuesta, al cual luego se le incorpora el equipamiento necesario para su uso, entendiendo como equipamiento no sólo el mobiliario y las luminarias, sino los propios edificios (gastronómico, de exposición, de acceso, etc.)”

capba IX DESARROLLO URBANO SUSTENTABLE 46

2° mención

2º MENCIÓN

Autor: Arq. Pablo Mar nez, Mat. CAPBA

Nº 22373

Colaboradores: León Nilsson, Magalí Satelier, Carolina Guerra, Florencia Cotone.

DE LA MEMORIA DESCRIPTIVA

“Se logró un alto nivel de síntesis. No solo en los edificios sino que también en el orden general del parque temá co. Este logra cubrir las expecta vas del promotor de amalgamar ac vidad e historia a través de los corredores temá cos interac vos propuestos por nosotros, dichos corredores son la pieza fundamental de orden general que se adaptan a las diferentes necesidades y jerarquías que el terreno y el parque representan.

Los edificios resaltan por su carácter extrover do y urbano fusionándose siempre con las diferentes ac vidades que su alrededor se desarrollan. Los semicubiertos, los aventanamientos, los gestos formales fueron siempre puestos en pos de lograr la retroalimentación del edificio con su contexto.”

CONCURSOS
capba IX DESARROLLO URBANO SUSTENTABLE 47

El arquitecto Torres Cano recorre el trabajo de este primer marplatense en obtener el tulo de arquitecto, en dos partes. En este número presentamos un primer período en la obra del reconocido profesional, caracterizado como ‘período rús co’.

El arquitecto Alberto Córsico Piccolini actuó en Mar del Plata por casi cincuenta años, desde su llegada como profesional en 1933 y hasta su fallecimiento en 1981. En este extenso período, tanto la ciudad, la sociedad, cuanto la profesión, sufrieron profundas transformaciones que él asumió modernizando su arquitectura y su forma de trabajo en una actualización que pocos profesionales asumieron.

La arquitectura más reconocible y reconocida de Córsico Piccolini, son sus viviendas individuales para turistas y para marplatenses, sus chalets “Es lo Mar del Plata” del que fue uno de los hacedores principales entre los años 1938 y 1945.

En estas residencias -de las que construyó un gran número-, el uso de los materiales y componentes es lís cos, el emplazamiento y el lenguaje individual, lo cons tuyeron en un referente y es considerado el profesional más representa vo de estas construcciones.

También podemos afirmar observando compara vamente las viviendas pintorescas de Córsico Piccolini y las de sus contemporáneos, que elaboró a par r de sus obras anteriores más heterodoxas, una expresión personal. La composición y diseño de las partes, el tratamiento y ar culación de los materiales con cuidado obsesivo, y un lenguaje con signos par culares hacen reconocibles y dis nguibles esta serie de viviendas.

El arquitecto Córsico Piccolini se aproxima a la arquitectura pintoresquista marplatense en los años inmediatos a su graduación e instalación en la ciudad. El

contexto del año 1933 mostraba que la crisis económica se había instalado agudamente en el país y Mar del Plata estaba inmersa en la misma.

LOS CHALETS DE PIEDRAS Y TRONCOS: EL PRIMER “ESTILO MAR DEL PLATA”

En relación a las residencias turís cas, que ya eran un consenso local, y que descendían de las experiencias pintoresquistas en la ciudad, el panorama a principios de los años treinta era el siguiente:

“En la década del 30 apareció el híbrido conocido vulgarmente como “es lo Mar del Plata”. La designación popular, aun en uso, lo refiere a un po par cular de chalet de dimensiones moderadas, con partes de piedra y partes de revoque blanqueado, techado con tejas coloniales, por lo general con un pequeño jardín al frente”.

“En la década del 40 imperó el “hachado”, la carpintería, puertas de entrada, dinteles, falsas vigas exteriores e interiores, repisas de chimenea, reves mientos, todo se “hachaba” o se “hachaba y arrancaba”, al uso del arquitecto Alberto Rodríguez Etcheto”.1

El mes zo “Es lo Mar del Plata”, que genérica y popularmente denomina a las casas individuales con imagen pintoresca, encubre diversos discursos, autores, variaciones y lenguajes.

co
capba IX DESARROLLO URBANO SUSTENTABLE 48
1 GÓMEZ CRESPO, Raúl A. y COVA, Roberto O., Arquitectura Marplatense El Pintoresquismo, Editorial Ins tuto de Inves gaciones de Historia de la Arquitectura y el Urbanismo, Resistencia, 1982.
(1935 - 1945)

Esta corriente es lís ca tuvo una época de vigencia y dos etapas lingüís cas y proyectuales, que fueron desde mediados de la década treinta y duraron hasta mediados de los cuarenta. La primera se iden fica con el “chalet californiano” y la segunda con los chalets blancos “Cape Cod”, que se desarrollan en la década siguiente hasta 1955.

Los nombres de los arquitectos: Alberto Córsico Piccolini, Auro Tiribelli, Gabriel Barroso, José Coll, Alberto Marshall (este úl mo en su juventud colaborador de Alula Baldassarini) y Raúl Camusso. Los ingenieros: Carlos Della Paolera, Felix Rabino y Julio Ratery, dan cuenta del espectro profesional local.

Quizás quien ene un lenguaje es lís camente más consecuente, personal y elaborado en cuanto al diseño y los componentes empleados en estas residencias “Es lo Mar del Plata”, es el arquitecto Alberto Córsico Piccolini. Desarrolla desde mediados de los años treinta una variante personal de estas casas, elaborando un lenguaje, una sintaxis y una imagen de vivienda reconocible, de gran éxito, y que lo convir ó en el más representa vo y reproducido proto po de vivienda “Es lo Mar del Plata”.

El arquitecto Córsico Piccolini, denomina a sus casas pintorescas de este período, 1935 –1945, como “chalet canadiense”, o “chalet californiano”, denominaciones que revelan una consciente apropiación de los materiales y lenguajes de esos orígenes. También ponen de manifiesto, la indagación en fuentes americanas dentro de su arquitectura pintoresquista.

Estas viviendas construidas en general en pequeños lotes urbanos, aun cuando el arquitecto prefería y buscaba la implantación en terrenos en esquina, configuraron una fórmula personal para resolver las viviendas pintorescas. Estas casas que fueron medianas y pequeñas en sus orígenes (años 1938-1939), fueron haciéndose de mayor tamaño y representa vidad, como la casa de Alber esquina Independencia, de gran tamaño y con una resolución par cular de galería de arcos de piedra en su perímetro.

Córsico Piccolini procuró mul plicar en un programa de baja y mediana superficie los puntos de vista en escorzo, desarrollando una ar culación fragmentada del frente, y una gran variedad de materiales y volúmenes quebrados, perspec vas y encuentros, recursos que trabajados sistemá camente, dieron por resultado un reconocido lenguaje y sintaxis personal. Sus proyectos para estas obras, buscan desplegar una gran variedad de quiebres y volúmenes y cambios de materiales en la fachada, por lo que privilegia el uso de los lotes en esquina, los que le dan mejores más variadas y cambiantes visuales exteriores.

Esta producción de series de chalets con lenguaje personal, es publicada en “La Construcción Marplatense”, donde sus obras son reconocidas al punto de conver rse la casa de Alber e Independencia, en la tapa del Nº 43 de esta revista, en julio de 1940. También son publicadas estas obras en la “Revista de Arquitectura” y en suplementos de casas marplatenses.

PATRIMONIO
Arquitecto Alberto Córsico Piccolini, Falucho Nº 102 construida en 1941. Residencia de Leonardo A. Fernández y Lydia Esther Fernández (Pocho y Perla). Foto del autor.
capba IX DESARROLLO URBANO SUSTENTABLE 49
Arquitecto Alberto Córsico Piccolini, Chalet Watson, gran residencia en esquina con excelente estado de mantenimiento. Calles Olavarría y Castelli. Foto del autor.

El Centro de Documentación y Biblioteca del CAPBA IX resguarda el Archivo Profesional del Arq. Córsico Piccolini recibido en donación. Se trata del archivo completo de las obras realizadas por el Arquitecto en Mar del Plata desde el año 1933 a 1973.

Los detalles lingüís cos que definen la imagen de la vivienda se concentran en la fachada, dado que el frente es la parte más representa va y trabajada de estas casas: “Reves miento de piedra manchada de Chapadmalal dispuesto en aparejo po ‘escallas’ con mampuestos de altura reducida y juntas rehundidas de 1,5 cm, para el zócalo se emplearán piedras de mayor tamaño; solias de piedra en las aberturas ubicadas en muros de piedra o revocados”.2

También fueron rasgos reconocibles en su lenguaje personal, algunas resoluciones de partes, por ejemplo las plantas bajas reves das en piedra de coloración variada con predominio de ocres y marrones, de aparejo trabado y variedad de tamaños en las piezas, que se alzaban en forma de columnas en las chimeneas verdaderas o falsas. También ensayó las esquinas en piedra y el uso de piedras sueltas.

Una parte de estas fachadas, resuelta con notable voluntad expresiva, es la rela va a la puerta de garage, la que se planteaba como un importante arco de piedra de medio punto de diversos e intensos colores, en el que las dovelas construían esta notable curva semicircular de virtuosismo artesanal.

Las puertas de estos garages, de tablas de madera “hachadas”, verdaderas puertas de entrada de un cas llo o gran residencia, se complementaban con bisagras de herrería, las que especifica en el pliego: “las aberturas del frente llevarán herrajes de hierro ba do, bisagras aparentes, manijones, etc.”

2 CÓRSICO PICCOLINI, A., Pliego de especificaciones del chalet de Catalina A. de Martínez y Hortensia M. de Morteo, calle Colón esquina Córdoba. Año de construcción 1941.

Las chimeneas cons tuían más un recurso volumétrico y composi vo en fachada que una respuesta funcional. Así en las fachadas se alzaban dos o más chimeneas, aun cuando sólo una funcionaba realmente como tal. En sus dibujos de fachada muestra humo sólo en la chimenea “verdadera”.

En los sectores de frente revocados ensayaba superficies con texturas rugosas, chorreados, escamas, abullonados y otros. También ensayó sistemá camente un recurso geométrico-ornamental en bajorrelieve con un tema geométrico, en forma de triángulos o más frecuentemente de cuadrados y rombos formando ras ver cales.

Del mismo modo, en sectores de la planta alta, como paños o volúmenes que individualizaran una habitación, remates de techos, etc., colocaba aparentes troncos dispuestos horizontalmente, que se encontraban en esquina generando interesantes remates. Estos rús cos troncos de superficie hachada, armonizaban con columnas de madera redondas o recuadradas, dinteles y zócalos, maceteros y aleros de techos.

Las cubiertas de tejas coloniales, que daban una textura gruesa y colorida, tenían una gran can dad de quiebres y faldones acompañando la fragmentación volumétrica del frente, y la mul plicación pintorescamente variada del quiebre resultante en las esquinas. Los aleros sin frente, dejaban a la vista su armadura.

En la casa Fernández, con un pequeño terreno entre medianeras, fuerza un desarrollo de la fachada u lizando una organización en diagonal quebrada, como criterio de planta. Esta decisión sacrifica el espacio de pa o posterior reducido a un aire-luz de servicio. La planta baja de espacios de estar y garage, se desarrolla según el

Arq. Córsico Piccolini, Chalet Watson, calles Olavarría y Castelli, vista sobre la calle Olavarría. Residencia en esquina con los elementos lingüís cos del chalet es lo Mar del Plata. Dibujo de fachada Alberto Córsico Piccolini
capba IX DESARROLLO URBANO SUSTENTABLE 50

Arquitecto

citado criterio de escalonamiento y diagonal, al igual que los dormitorios. El resultado es una composición variada, dinámica y pintoresquista, con un aprovechamiento riguroso de la escasa superficie. Los elementos exteriores, basamento y chimeneas de piedra ocre con aparejo de bastón roto, el volumen de dormitorio y balcón de troncos aparentes, el porchegalería de madera y troncos hachados, y la ventana esquinero, componen una fórmula bien usada, de detalles cuidados, que será su modo personal de construir.

En esta esté ca de chalet californiano o canadiense, donde la rus cidad y la ejecución artesanalmente virtuosa de detalles de piedra, revoque con textura, madera, hierro forjado y tejas coloniales, era dominante, algunos arquitectos buscaron dejar su impronta individual, su marca personal.

Arq. Manuel Torres Cano Titular del Taller Ver cal de Historia de la Arquitectura y Pensamiento Contemporáneo FAUD - UNMdP

PATRIMONIO
Alberto Córsico Piccolini, Chalet Watson, calles Olavarría y Castelli, plantas.
51

Este polémico ar culo se encuentra inserto en la Ley Nº 12490 -que sus tuyera a las Nº 5920 y Nº 12007– y que diera origen a nuestro actual régimen de Previsión bajo la denominación de Caja de Previsión Social para Agrimensores, Arquitectos, Ingenieros y Técnicos de la Provincia de Buenos Aires; este artículo a su vez fue modificado por la Ley Nº 13753. En esta nota abordamos sus caracterís cas, temas a tener en cuenta y su reglamentación para que los colegas puedan conocer sus detalles.

ALGUNOS COMENTARIOS SOBRE ESTA CONTRIBUCIÓN

La contribución determinada en el mencionado ar culo se proyectó con dos obje vos fundamentales: como mecanismo de recaudación de la CAAITBA, dirigido a paliar el déficit del Fondo de Recomposición del cual actualmente se abonan los beneficios jubilatorios y de pensión, y en segundo término, con el obje vo de desalentar la construcción de obras e instalaciones, en el ámbito la Provincia, llevadas a cabo sin los controles per nentes o ejecutadas sin intervención profesional alguna y que luego son regularizadas mediante la presentación de mediciones con o sin informes técnicos.

Cabe señalar que ello obliga a los Profesionales afiliados a la CAAITBA a suplir el rol de contralor que deben efectuar los Entes oficiales y actuar como responsables de un blanqueo de la construcción o instalaciones clandes nas donde no exis ó un Profesional a cargo del proyecto y la dirección de obra. Asimismo, si bien la Caja de Previsión percibe el importe que hubieran aportado los profesionales en obras a construir, mientras los municipios perciben derechos de construcción con alícuotas diferenciadas y multas por la contravención come da, los principales perjudicados por esta modalidad son los profesionales que en vez de intervenir en el desarrollo completo de la obra son incorporados casi en un concepto administra vo para la regularización de las construcciones.

Por otro lado, si bien la legislación es clara respecto de la obligatoriedad del propietario de la obra del pago de tal contribución, se observa el equívoco criterio que u liza la Caja: el reclamo –en caso de diferencias en la liquidaciónestá dirigido con nuamente a los Profesionales responsables de la Medición e Informe Técnico. En ese sen do, adver mos que resulta inapropiado tal reclamo ya que la intervención colegial en oportunidad del visado de la documentación implica el control de aportes previsionales y, por otro lado, las diferencias de reclamos deberían estar dirigidas a los comitentes.

Sin embargo, si bien el aporte de esta contribución es derivada al Fondo de Recomposición Previsional, a par r de la promulgación de la Ley Nº 13753 -que modificó tal artículo- es posible que el afiliado que no hubiera cubierto su Cuota Mínima Anual Obligatoria (CMAO) y tuviera contribuciones registradas por el mencionado Ar culo 29º en el transcurso de ese año, se le acreditaran dichos importes hasta cubrir la Cuota Mínima Anual Obligatoria.

Este en sí, es un aspecto importante que deben tener en cuenta los colegas, ya que llegado cada fin de año en forma automá ca la Caja efectúa las acreditaciones en cada caso.

Contribución Previsional por obras sin permiso
capba IX ASUNTOS PREVISIONALES 52
El Art. 29º de nuestra actual Ley de Previsión

DATOS ACTUALES

Hoy en día la contribución ingresada a la Caja por aplicación del Art. 29º se sitúa en valores significa vos, representando el 15% del total de ingresos, según cifras que arroja el Balance correspondiente al año 2014 –casi unos $ 88.000.000- de los cuales los Arquitectos enen un porcentaje que supera más del 50% comparado con las otras profesiones.

Esto último también demuestra la importante can dad de obras e instalaciones efectuadas sin intervención profesional en la Provincia de Bs. As., lo que a su vez implica, en muchos casos, una competencia muy desleal que perjudica seriamente a nuestros colegas, echando por erra el segundo obje vo de este ar culo.

CARACTERÍSTICAS DEL ARTÍCULO 29º

A con nuación se transcribe el Art. 29º Modificado por Ley Nº 13753, el mismo consta de dos partes claramente diferenciadas, la primera determina de dónde surge la Contribución, responsabilidades, etc.; en la segunda se refiere a la posibilidad de u lizar las contribuciones por el colega para completar la CMAO.

o Primera parte

“En las tareas profesionales necesarias para la regularización de obras o instalaciones llevadas a cabo sin control y/o autorización del organismo per nente en cada caso y ejecutadas sin intervención de profesional habilitado para la encomienda, corresponderá el pago de una contribución a la Caja, equivalente al valor que resulte de la aplicación de las normas arancelarias por Proyecto y Dirección vigentes al momento de la antes citada regularización. Dicha contribución se acreditará íntegramente al Fondo de Recomposición Previsional y será principalmente responsable el “dueño de la obra” o “beneficiario” de la misma de acuerdo a la modalidad de contratación que lo vincule con el profesional, y su efec vo pago será previo, en todos los casos, al momento de la intervención colegial correspondiente”.

o Segunda parte

“Las autoridades de la Caja, llevarán un registro especial de las tareas encuadradas en el presente ar culo de los matriculados que presentaron la regularización de obras efectuadas sin intervención del profesional habilitado y de los Entes de la Colegiación, que se hayan encargado de regularizar o empadronar estas construcciones, con el fin de verificar el último día del año o en caso de fallecimiento del afiliado, cuando esto se produjera, si estos afiliados alcanzaron a cubrir la Cuota Mínima Anual Obligatoria, y en caso de no haber completado la misma, con los aportes efectuados, se tomará de lo ingresado al Fondo de Recomposición Previsional en

concepto de contribución por parte del “dueño de la obra” o “beneficiario” de la misma, un monto de pesos que se des nará a cubrir la parte faltante de la Cuota Mínima Anual Obligatoria, para que el afiliado la complete ese año o la incremente hasta donde alcanzare”.

Ahora bien, ¿qué debemos tener en cuenta sobre el Art. 29?:

o No están alcanzadas aquellas obras e instalaciones ejecutadas antes de día 4/11/1958 (fecha en la cual entró en vigencia la Ley Nº 5920 );

o El monto correspondiente a la Contribución por el Art.29º de la Ley Nº 12490, modificado por Ley Nº 13753, se liquidará conforme los Valores Referenciales y las escalas actualizadas para la Determinación de Aranceles;

o La contribución se calculará con los valores en juego vigentes al momento de la regularización o firma del Contrato Profesional con fecha cierta, sin contemplarse depreciación alguna;

o Su cálculo se basa en es mar los Honorarios que hubieran correspondido por Proyecto y Dirección de la obra a regularizar y sobre los mismos luego aplicar el porcentaje por aportes previsionales (10%). Dicho importe compone la Contribución por Art. 29º, que debemos depositar en boleta especial;

o Se u lizará para hacer efec vo el pago de la Contribución, la Boleta digital con ese fin emi da a través de la pagina web de la CAAITBA;

o Se podrá u lizar para el cálculo la Planilla Anexa I incorporada a la Resolución Nº 263;

o Se puede acceder a una financiación en cuotas de la Contribución, pero debiendo completas el pago de todas las cuotas previo al Visado de la documentación (Resolución CAAITBA Nº 401);

o No hay excepciones por obras de carácter precario;

o En caso de que surjan deudas por Contribuciones, se aplicarán las normas vigentes y pautas similares a deudas por Aportes de Contratos (Resolución Nº 585/2015);

o La mora se contará a par r de la fecha de Visado;

o La CAAITBA efectuará un control y llevará un Registro Especial de aquellos afiliados que presentaron tareas de Regularización por Art. 29º Ley Nº 13753;

o A fin de cada año, en caso de no completarse la Cuota Mínima Anual Obligatoria, y de haberse efectuado Contribuciones por al Art. 29º, la CAAITBA debe transferir dichos fondos para completar la CMAO del colega. La CAAITBA concreta esta operación en los primeros días del mes de abril de cada año.

ASUNTOS PREVISIONALES
capba IX ASUNTOS PREVISIONALES 53

MARCO REGLAMENTARIO

A con nuación transcribimos un detalle de las dis ntas Resoluciones de la CAAITBA que reglamentan el mencionado Ar culo. Observando las mismas se puede apreciar las marchas y contramarchas que ha tenido reglamentariamente esta contribución.

Debemos decir que este es un criterio –el reglamentar los ar culos de la ley- que el CAPBA no comparte, ya que por medio de Resoluciones Reglamentarias, la Caja en ocasiones legisla sobre el Ejercicio Profesional, función esta que es exclusiva de los Colegios y Consejos Profesionales.

Resolución Nº 21 del 13-06-2001: Derogada por Resolución

Nº 159 del 4-05-2005

Resolución Nº 159 del 04-05-2005: Derogada por Resolución

Nº 179 del 4-01-2006

Resolución Nº 161 del 15-06-2005: Derogada por Resolución

Nº 179 del 4-01-2006

Resolución Nº 166 del 07-09-2005: Derogada por Resolución

Nº 179 del 4-01-2006

Resolución Nº 179 del 04-01-2006: Derogada por Resolución

Nº 263 del 26-12-2007

Resolución Nº 239 del 19-09-2007: Fija modos de pago y financiación de deudas por contribución de Art. 29º y la fecha desde la cual se tomará la mora. Vigente.

Resolución Nº 240 del 19-09-2007: Derogada por Resolución Nº 263 del 27-12-2007

Resolución Nº 263 del 26-12-2007: Modificada parcialmente por Resolución Nº 271 del 05-03-2008 y Resolución Nº 297 del 16-09-2008. Vigente con modificaciones.

Resolución Nº 271 del 05-03-2008: Modifica el Art. 2º y deroga Art.4º de la Resolución Nº 263 del 05-03-2008. Vigente.

Resolución Nº 297 del 16-09-2008: Sus tuye la Planilla Anexa I aprobada en la Resolución Nº 263 Art. 9º. Vigente.

Resolución Nº 376 del 23-04-2010: Eximición de la contribución según Art. 29º a aquellas tareas complementarias que están incluidas dentro del Proyecto y Dirección como así también a la Medición e Informe técnico. Vigente.

Resolución Nº 401 del 15-12-2010: Reglamenta la posibilidad del pago en cuotas de la Contribución fijada por el Art. 29º. Vigente.

El texto de las resoluciones enunciadas se encuentra disponible en el si o web de la CAAITBA: www.caaitba.org.ar, sección resoluciones.

Arq. Roque Nóbile Comisión de Asuntos Previsionales, CAPBA IX

54

El Consejo Superior acepta Superior un préstamo

En la Asamblea de la CAJA (CAAITBA), del 7 de junio de 2012, se aprobó ofrecer préstamos a los Colegios Profesionales que la integran, el que ha sido tomado por los Colegios de Técnicos e Ingenieros. El pasado 8 de abril, en la sesión ordinaria del Consejo Superior, se aprobó por el voto de la mayoría de sus miembros aceptar dicho ofrecimiento.

Previsión

El Consejo Superior del Colegio de Arquitectos ha decidido aceptar, luego de dos años, un préstamo originado previo a la decisión de los Entes que componen la CAAITBA de disolver esta Caja Previsional. Por ello, desde el CAPBA IX nos vemos en la necesidad de compar r con nuestros matriculados la opinión distrital, que fue deba da en el seno del Consejo Direc vo para que nuestro Delegado al Consejo Superior expusiera ante el consejo provincial.

En la sesión del CS en la que se dio tratamiento al tema, fue expuesta la propuesta del CAPBA IX, lo que originó un intenso debate, sin que se lograra que la mayoría del Consejo aceptara su revisión. Por ello, con el voto nega vo de los Distritos V, IX y X, el Consejo Superior aprobó el proyecto de Resolución sin modificaciones que permi rá aceptar el préstamo ad referéndum de la Asamblea Provincial de noviembre.

Cabe señalar, que el proyecto de resolución que sería deba do en la sesión del miércoles 8 de abril fue remi do a los distritos en úl mo día hábil de Semana Santa, por lo que se tuvieron tan sólo 2 días para analizarlo.

En los fundamentos ver dos en el proyecto de Resolución, se enumera que el préstamo sería u lizado para la culminación de la obra de ampliación de la Sede del Consejo Superior en la ciudad de La Plata, la compra de nuevos inmuebles para el funcionamiento de la futura Caja Previsional Propia y la adquisición y/o tenencia de la Casa Curuchet, cuya expropiación ha sido aprobada por Ley Provincial. Aunque ante la falta de recursos económicos de la Provincia de Buenos Aires, el CAPBA entregaría el importe necesario a cambio de la tenencia del bien.

Del análisis efectuado en el CAPBA IX se adver a que, si bien pareciera un préstamo de po hipotecario con condiciones convenientes respecto a plazos, tasas y condiciones de devolución -préstamo equivalente a U$S 2.500.000 conver dos a pesos, que se re raría parcialmente conforme las necesidades, con una tasa de interés que se aplicaría sobre lo que efec vamente se re re- existen diversos aspectos que debían ser deba dos con mayor profundidad que nos permi rían evaluar acerca de la necesidad de tomar un endeudamiento -considerando que del úl mo balance presentado el CAPBA ene una considerable reserva en diferentes inversiones- explicitar correctamente los términos de referencia y tomar recaudos sobre algunos aspectos que nos dejaban con muchas incer dumbres, pero fundamentalmente para compar rlos y deba rlos con nuestros colegas.

PR[ESTAMO HIPOTECARIO CAAITBA
de la Caja de
n Se trata de 22 millones de pesos para la obtención de bienes a ser explotados por el Consejo Superio del CAPBA
capba IX ASUNTOS PREVISIONALES 55

Texto de la Resolución de aceptación del préstamo hipotecario:

RESOLUCION N° 25 /15

Grupo 5-c

LA PLATA, 8 de abril de 2015.

VISTO la línea de créditos aprobada y otorgada por Resolución Asamblearia de la CAAITBA n° 27 del 7/6/2012 para todas las Ins tuciones colegiales que la conforman; y

CONSIDERANDO que este CAPBA requiere de fondos para el financiamiento de la obra Sede CAPBA CONSEJO SUPERIOR actualmente en ejecución y también para la adquisición y/o tenencia de la denominada “Casa Curutchet”, como así de otros bienes inmuebles necesarios para su funcionamiento y posible sede opera va de la Caja Propia.

Que el tema ha sido expuesto, deba do y acordado en numerosas reuniones plenarias de este Consejo y en reuniones con los Presidentes de Distrito.

Que todos los Colegios que componen la CAAITBA han adoptado igual decisión respecto a la toma de estos créditos.

Que la tasa de interés fijada para estos préstamos, tasa “BADLAR” (Buenos Aires Depósitos de Grandes Importes), es mada en 20% anual, a la fecha de la presente, resulta ventajosa para esta Ins tución.

Que la devolución del crédito queda planteada a 10 años mediante pagos anuales.

Que si bien el préstamo corresponde a valor dólar estadounidense, el mismo queda pesificado a la co zación oficial al momento de la solicitud. Importando la suma en U$S 2.500.000.

Que dichos fondos serán des nados a mejoras y/o adquisición de bienes inmuebles, incrementando así el patrimonio del CAPBA.

Que los re ros de fondos pueden hacerse en forma parcial, conforme a las necesidades de financiamiento y por lo tanto no devengan intereses hasta su efec va acreditación.

Que la garan a hipotecaria sobre el préstamo se conforma con los bienes propios de este Consejo Superior.

Por ello, este CONSEJO SUPERIOR DEL COLEGIO DE ARQUITECTOS DE LA PROVINCIA DE BUENOS AIRES en sesión de la fecha

RESUELVE

Art. 1°) Aprobar ad referéndum de la Asamblea Anual Ordinaria el crédito con garan a hipotecaria entre este CAPBA Consejo Superior y la CAAITBA.-----------------------------------------------------------------------

Art. 2°) El monto final acordado con la CAAITBA, conforme a la co zación de la fecha, asciende a la suma de $ 22.000.000. (pesos vein dós millones).----------------------------------------------------------

Art. 3°) La tasa de interés aplicada es la denominada “BADLAR”, fijada por el BCRA.----------------------------------------------------------------

Art. 4°) Queda fijado el plazo de devolución hasta en diez (10) años.-

Art. 5°) El dinero otorgado solo podrá tener como finalidad la obtención de bienes a ser explotados por este Consejo Superior del CAPBA. -------------------------------------------------------------------------

Art. 6°) Comuníquese a los Distritos. Publíquese en el Bole n Oficial y ARCHIVESE.

Arq. San ago PEREZ Arq. Adolfo CANOSA Secretario Presidente

Texto de la Resolución de aceptación de donación de honorarios profesionales para la tasación de inmuebles del Consejo Superior:

RESOLUCION N° 45 /15

Grupo 5-c

LA PLATA, 10 de junio de 2015

VISTO que por Resolución 25/15 se aprobó ad referéndum de la Asamblea Anual Ordinaria el crédito con garan a hipotecaria entre este CAPBA Consejo Superior y la CAAITBA;

Que dichos crédito será des nados a mejoras y/o adquisición de bienes inmuebles, incrementando así el patrimonio del CAPBA; y

CONSIDERANDO que la garan a hipotecaria sobre el préstamo se deberá conformar con los bienes propios de este Consejo Superior;

Que para ello se encomendó la tasación de los inmuebles de calle 54 n° 312 y 314 de la ciudad de La Plata, propiedad del Consejo Superior, a los Arquitectos Ramón ROJO (2068) y Daniel DELPINO (1758)

Que los profesionales citados han manifestado su voluntad de cumplir con aquello que interpretan como su derecho-deber, de Colaborar con el Colegio en el desarrollo de su come do, contribuyendo al pres gio y progreso de la profesión , conforme a lo dispuesto por el ar culo 14 inciso 7) de la Ley 10.405. Por

lo cual proponen al Consejo Superior no percibir sus honorarios, realizando las ac vidades precitadas a tulo gratuito;

Que la presente se dicta en uso de la competencia dispuesta por los ar culos 43 y 44 -incisos 4), 15) y 25)- de la Ley 10.405

Por ello, este CONSEJO SUPERIOR DEL COLEGIO DE ARQUITECTOS DE LA PROVINCIA DE BUENOS AIRES, en sesión del día de la fecha

RESUELVE

Art. 1) Aceptar el ofrecimiento de los Arquitectos RAMON ROJO (2.068) y Daniel H. DELPINO (1758) de realizar sus trabajos a tulo gratuito en la obra de referencia, en favor del CAPBA.----------------Art. 2) Agradecer por intermedio de la presente a los Arquitectos citados precedentemente. Publicar en el Bole n Oficial. Cumplido, ARCHÍVESE.-----------------------------------------------------------------------

capba IX ASUNTOS PREVISIONALES 56

En ese sen do, luego del tratamiento en el Consejo Distrital y aprobado por la mayoría de sus miembros, el CAPBA IX propuso que la Resolución fuera prorrogada en su tratamiento hasta que:

o Se efectúe una reunión de Presidentes de Distrito con la Mesa Ejecu va Provincial, lo que permi ría deba r los aspectos de este préstamo, para luego en cada Distrito darle tratamiento en Consejo Direc vo o Asambleas, según cada ges ón;

o Se definan par cularizadamente las inversiones y los mecanismos de control de las ejecuciones presupuestarias, comisión de seguimiento de obras, comisión de tasaciones, etc.;

o Se ofrezca a los Distritos una proporción de dicho préstamo, a efectos de que se financien mejoras y/o adquisición de bienes al igual que a nivel provincial;

o Se determine con precisión los bienes que serán ofrecidos en garan a hipotecaria, lo cual debiera proteger los inmuebles adquiridos en base a presupuestos distritales y que se encuentran escriturados a nombre del Colegio de Arquitectos de la Provincia de Buenos Aires.

En este caso, el tratamiento el pasado 10 de junio de una Resolución sobre la donación de honorarios profesionales para la tasación de inmuebles a ofrecer en garan a ha determinado que serían los que hoy u liza el Consejo Superior. Es oportuno aclarar a los colegas que se esgrime como argumento que el tema ha sido “ampliamente deba do”

y se cita la “reunión de presidentes”, ello es inexacto ya que los actuales presidentes han par cipado de una sola reunión -aquella en la que discu éramos el tema de CAJA propia- por lo que resultaría oportuno deba rlo. Además de ello, pese a la falta de debate sobre el tema en su conjunto, vemos que este préstamo sólo podrá ser u lizado para “la obtención de bienes a ser explotados por este Consejo Superior del CAPBA”, por lo que se deja afuera a los Distritos. En ese sen do, algunos Distritos podrían tener proyectos de mejoras en sus sedes, concluir obras en curso, o la adquisición de inmuebles que podrían ser parcialmente financiados con este crédito. Todas posibilidades que han quedado excluidas de la consideración en el texto de la Resolución. Finalmente, reiteramos que la posición del CAPBA IX ha sido la de prorrogar el tratamiento para evaluar la necesidad de tomar un préstamo, deba rlo con los matriculados y mejorar la redacción de los términos de referencia. Sabemos que, tanto desde la conducción provincial, como desde la oposición distrital intentarán descalificar la postura de este Distrito, distorsionar nuestras actuaciones y expresiones para confundir a la matrícula y despres giar una ges ón que se lleva adelante con esfuerzo, seriedad, compromiso con los colegas del Distrito IX y sobre todo con espíritu crí co y construc vo.

Como siempre, las puestas del CAPBA IX se encuentran abiertas para todos los matriculados de este Distrito, para que acerquen sus opiniones y contribuyan al desarrollo de diferentes acciones. Los esperamos. Saludos cordiales.

PRÉSTAMO HIPOTECARIO CAAITBA 57
Mesa Direc va CAPBA IX

Nuevos matriculados

Acto de entrega de credenciales

El pasado lunes 13 de Abril en Sede del Colegio de Arquitectos de la Provincia de Buenos Aires Distrito IX, se realizó un nuevo Acto de Entrega de Credenciales a profesionales Arquitectos recientemente colegiados.

Durante la ceremonia los nuevos profesionales matriculados realizaron la jura del Código de É ca, y escucharon las palabras de bienvenida de las autoridades del Colegio de Arquitectos Distrito IX. También fueron informados de las ac vidades del Distrito, capacitaciones, servicios, deberes y derechos, entre otros temas considerados de importancia.

LOS NUEVOS PROFESIONALES QUE SE INCORPORAN A LA MATRÍCULA SON:

Arq. AFFONSO, Mariano Ariel

Arq. ALONSO, María Eugenia Paola

Arq. ANDINA, Gustavo Daniel

Arq. AVOLIO, Florencia

Arq. BERNARDINO, Emilio Nicolás

Arq. CAPITOLI, Pablo

Arq. CHILETTO, So a

Arq. DORNALETCHE, César Ariel

Arq. FERRARI, Sergio Adrián

Arq. FOGLIA, Cecilia

Arq. GAUNA, Ignacio Rubén

Arq. GRAZIANO, Julia

Arq. MICHIELLO, Julieta

Arq. OLAZAGARRE, Le cia Marisol

Arq. SAVELLI, Lautaro

Arq. SELICKI, Sergio Mar n

Arq. SUERO, Paula

Arq. ULLOA MONZÓN, Ariel Federico

58

Día del Arquitecto

El 1º de Julio se homenajea a los arquitectos en Argen na

El Colegio de Arquitectos de la Provincia de Buenos Aires Distrito IX saluda a todos sus matriculados en el Día del Arquitecto Argen no, y desea a los colegas que se desempeñan en los diversos campos del ejercicio profesional, que cada día pueda conver rse en un desa o para la creación de una arquitectura bella, representa va, amable e inclusiva.

Que siempre acompañe a los arquitectos el espíritu crí co, pero a la vez construc vo y proposi vo, que permita hacer del contexto en que nos toca desempeñarnos, un espacio mejor. ¡Feliz día del arquitecto!

Originalmente los arquitectos celebraban su día el 8 de noviembre, en coincidencia con el Día Internacional del Urbanismo, que conmemora la reunión del Congreso Internacional de Arquitectura Moderna (C.I.A.M.), realizado en Atenas en 1933.

De forma posterior se celebró internacionalmente el 1º de julio como Día del Arquitecto, fecha que ene su origen en 1985, cuando la Unión Internacional de Arquitectos (UIA) dispuso establecerla como Día Internacional de la Arquitectura, recordando así la fecha de creación de esta en dad: en Suiza, el 1° de julio de 1949.

Pero en 1996, una nueva asamblea de la UIA decidió trasladar el festejo del Día Internacional de la Arquitectura. La celebración recaló en el primer lunes de octubre, con el objeto de hacerla coincidir con el Día Internacional del Hábitat, intentando con ello fortalecer la responsabilidad de los arquitectos en la construcción de ciudades y comunidades más saludables.

El primer lunes del mes de octubre quedó establecido entonces, el Día Internacional de la Arquitectura y el Hábitat Humano.

No obstante este cambio a nivel internacional, la Federación Argen na de En dades de Arquitectos

(FADEA) decidió mantener en nuestro país, el Día del Arquitecto Argen no el 1º de julio, por hallarse ya enraizado en el Calendario Fes vo Local.

Dentro de los eventos previstos para celebrar nuestro día este año se encuentra la tradicional ceremonia de entrega de credenciales a nuevos matriculados, la inauguración de una nueva muestra del Ciclo Expresiones de Arquitectos, en esta oportunidad para compar r la obra de la Arquitecta Cecilia Di Bas ano, y el brindis y lunch de camaradería en la sede Distrital. Mientras que, en cada Delegación, los profesionales se reunirán en encuentros y cenas organizadas por los Delegados del CAPBA IX.

Además de las ceremonias y cenas, este año hemos previsto recuperar una sana ac vidad y se trata de promover encuentros depor vos que permitan par cipar en eventos distritales y/o provinciales a los colegas de nuestro colegio. Por ello, se ha desarrollado un encuentro depor vo por el Día del Arquitecto y que tuvo además por objeto una causa noble en la colecta de pañales que luego sería donados al Hospital Materno Infan l de Mar del Plata. Todo ello será desarrollado en detalle en la Edición nº 12 de Info CAPBA IX.

EFEMÉRIDES capba IX SOCIAL Y GREMIAL 59

Miguel Paz: “Mi acercamiento a la pintura fue de forma intui va y autodidacta, acompañándome a lo largo de mi vida como una necesidad expresiva. Esta nueva mirada que me otorgó la pintura me acercó y me introdujo a la arquitectura, reconociendo en ésta ma ces, jerarquías, lenguajes y expresiones. La pintura como la arquitectura son necesidades humanas que nos ayudan a interpretar lo real, son espacios o imágenes que impactan en nuestros recuerdos y olvidos, y nos ayudan a recrear nuestra realidad”.

María Celeste Siccardi: “La arquitectura es una de las expresiones del arte y desde ese lugar la relación para mi entendimiento y forma de sen rla esta intrínsecamente relacionada. Sobre todo en el espacio sico geográfico que me corresponde actuar, construyendo en Cariló y Pinamar, Mar de las Pampas y balnearios de la zona atlán ca, donde las viviendas son aisladas y deben ser concebidas como parte del paisaje, la mejor forma de entenderlas es ideándolas como verdaderas esculturas en el Bosque”.

Dante Mandagarán: “¿En qué lenguaje nos habla una obra que no está al servicio de la figuración? La búsqueda consiste en encontrar un modo personal de expresarnos y darnos a conocer. La elección central de un uso par cular de lo cromá co y sus variaciones, en la serie de pinturas, son formas representa vas de lo abstracto”.

Silvio Salerno: “La artesanía digital es una consecuencia de aplicar a mis trabajos profesionales, texturas, objetos, ambientes decorados, etc., etc. Como el escultor elige la piedra para esculpir, yo genero imágenes, capturo texturas o de algún elemento visualmente abstracto y lo transformo. (En este caso podemos hablar de una imagen intervenida). Es como decir que el escultor no hizo la piedra, la estudió y eligió para una determinada obra”.

Julio Alaniz: “A decir de Hegel, la arquitectura es la primera de las artes. Pensaba entonces, ¿qué es lo común entre la fotogra a, la pintura, la escultura, la arquitectura o cualquier otro arte? Y la respuesta es, por lo menos para mí, “la búsqueda”. La búsqueda de lo que conecte tensiones interiores y su reflejo -recortado o creado- en el exterior”.

Héctor De Schant: “La arquitectura es un arte comprome do con una función ú l, en todas sus escalas, es cobijo en el caso de un edificio y componente de un escenario en lo urbano, las artes no comprome das o libres son para el realizador una necesidad, la noción de “arte por el arte” y mucho lo prac camos simplemente “por amor al arte”. Lo que une a la arquitectura y el arte verdadero es la voluntad creadora y el sen do esté co”.

El Arte y la Arquitectura sin dudas están relacionados. Sin embargo, a veces se hace di cil explicar esa relación. Más allá de la vinculación que podamos expresar racional y conceptualmente, está esa otra relación, casi inexplicable, esencial, que la experimenta quien cul va ambas facetas, la de ar sta y la de arquitecto.

Durante el Ciclo “Expresiones de Arquitectos” han expuesto su trabajo ar s co gran can dad de profesionales que cul van ambas disciplinas. A través de sus palabras nos intentan explicar esa ín ma y vital relación, y también la convivencia en sus vidas, de ambos mundos: el ar s co y el arquitectónico.

Ciclo de Arte “Expresiones de Arquitectos” 2015 Declarado de Interés Cultural por la Secretaría de Cultura de la Municipalidad de General Pueyrredón.

Curaduría: Ar sta Plás co Cris an Dalgaard y la Arquitecta Julia Romero.

Coordinación del ciclo: Arq. Romina E. Chocou. Consultas: expresiones.arq@capba9.org.ar

Elba Sambueza: “La relación entre el arte y la arquitectura es una relación profunda y no pueden ir por separado, ya que el arte se vive desde adentro y la arquitectura se nutre de esa misma fuente. La vivencia de los espacios tanto interiores como exteriores están ligados en la sensibilidad de comunicar los sen mientos y emociones en igual forma al proyectar un espacio como al realizar una obra de arte”.

Mario Marchelli: “Me preguntan por qué pinto, me pregunto, yo también, ¿por qué pinto? Es, obviamente, una ac vidad muy dis nta a otras transitadas ( ) Parece ser, entonces que, en mi caso par cular, pintar se reduce a expresarse, a como dé lugar, con o sin des natario final; y en el caso par cular de la pintura, darle forma y color a un estado de ánimo, al amor por los míos, un recuerdo, una fantasía o lo que fuere, sin otra pretensión que sa sfacer una necesidad personal”.

Manuel Torres Cano: “Dibujo y pinto desde chico, antes de pensar en ser arquitecto, por lo cual es un modo de expresión innato, que fue es mulado por la educación (…) Me preocupa la buena pintura, la técnica, el color, la representación. Creo que la factura de un cuadro debe tener oficio, manejo del color y compromiso con la técnica y con el tema”.

Ka a Zaccan : “Siempre parto del mundo que me interesa. Todo el mundo. Interior y exterior. Así las imágenes se crean dentro de mí. Desde siempre, aún desde antes de hablar. Fui descubriendo que cada línea piensa. Que el trazo es huella. Que separa ese mundo en dos, el propio y el que puedo expresar. Encontré el espacio para ejercer la libertad. Y toda mi vida me ha acompañado este juego cromá co, de procedimientos, líneas, asociaciones, formas y emociones”.

Laura Romero: “La fotogra a ha sido en mi vida una manera de expresar mis profesiones, de ayudarme a captar la esencia de los objetos, de los espacios y de las personas”.

Alicia Pellerano: “Mi obra en general trata de denunciar al sistema, causante de que los seres humanos, en su mayoría, hayan sido modificados en sus atributos de humanos, para pasar a ser objetos o cosas”.

Carlos Ronda: “Todos los arquitectos son ar stas. El desa o es que no pierdan nunca esa locura interior

Daniel Materazzi: “Mi relación con el arte nació cuando ¡empecé a ¡¡sen r!!. Cuando me di cuenta que a través de mis sen dos entraban sensaciones . algunas iban a mi cerebro y otras a mi corazón .”

capba IX SOCIAL Y GREMIAL 60

Sistema de subsidios del del Fondo de salud CAPBA

Ampliacion de la cobertura de salud

Como consideración previa, es oportuno recordar a los colegas que el CAPBA cuenta con un sistema de Subsidio de Salud que se encuentra sustentado por el aporte que todos los matriculados realizamos mediante la cuota de ejercicio profesional al presentar legajos de tareas profesionales en el CAPBA.

Según la Resolución Nº 37-09, ar culo 3º, el Fondo de Salud, se Integra con el 3% de la recaudación Provincial de la CEP. Por ello, cada distrito gira al Consejo Superior el importe correspondiente con la copar cipación de cada mes, así como los fondos correspondientes a otros des nos tales como el Fondo Compensador, el fondo del Ins tuto de Inves gación, Desarrollo e Innovación (ID+i), entre otros conceptos.

Asimismo, el Distrito IX ha solicitado en diversas oportunidades la revisión del nomenclador de prác cas comprendidas en el Subsidio de Salud, ya que entendemos que así como evoluciona la medicina y las prác cas prescriptas para diversas patologías, esta cobertura debe acompañar estos cambios. Por ello, consideramos un avance la resolución que a con nuación se transcribe:

LA PLATA, 8 de abril de 2015 VISTO que el Subsidio de Salud de Alta Complejidad establecido por Resolución Nº 173/07 y ampliado por R. 9/11 y 41/11 presenta limitaciones en función de los pedidos de subsidios por prác cas médicas solicitados por los matriculados y que no pueden ser cubiertas según el nomenclador establecido en la misma; y

CONSIDERANDO que el actual listado de prác cas, cirugías y trasplantes de órganos es suscep ble de ser ampliado mediante la incorporación de nuevas prestaciones para atender las prác cas de diagnós co de alta complejidad; Que el subsidio de salud debe contener premisas de solidaridad y equidad con el objeto de ampliar la actual cobertura;

Que la Secretaría de Salud del CAPBA realizó un estudio en el que se modifican los montos de los subsidios de acuerdo a la complejidad de las prestaciones y se incorporan numerosas prác cas excluidas en el sistema vigente;

Por ello, el CONSEJO SUPERIOR del COLEGIO DE ARQUITECTOS DE LA PROVINCIA DE BUENOS AIRES, en sesión de la fecha R E S U E L V E

Art. 1º) Derogar las Resoluciones 9/11 y 41/11.------------------------------------

Art. 2º) Ampliar la cobertura del Sistema de Subsidios del Fondo de Salud CAPBA para la atención de la salud de los arquitectos matriculados regulares y que se encuentren con la matrícula al día, que no posean obra social o no hayan tenido reconocimiento del 100% de la prác ca requerida. El sistema actual cubre la asistencia en casos de necesidad de transplantes de órganos y/o prác cas de alta complejidad terapéu ca (resolución de la patología)----------------------------------------------------------------------------------

Art. 3º) Los subsidios del Sistema serán otorgados para hacer frente a las prestaciones reconocidas en el Nomenclador de Prác cas incluidas en los Anexos III y IV de la presente, por los importes determinados en los mismos con el módulo de matrículas profesionales anuales CAPBA El tope máximo a otorgar por matriculado en casos extraordinarios será el valor dinerario equivalente a sesenta (60) matrículas CAPBA por matriculado y por toda prescripción médica. En estos casos se debe contar con el dictamen favorable del médico auditor y la Secretaría de Salud. El otorgamiento del mismo se realizará por disposición de la Mesa Ejecu va. Dicha disposición deberá ser convalidada por Resolución del Consejo Superior.------------------

RESOLUCION Nº 23/15

Art. 4º) Se toma como parámetro para la evaluación de los eventuales subsidios los valores indicados en el Nomenclador que u liza IOMA en la Provincia de Buenos Aires. ---------------------------------------------------------------

Art. 5º) No se considerará en los subsidios a otorgar bajo ningún concepto ningún gasto de hotelería. ---------------------------------------------------------------

Art. 6º) Con el mismo criterio no se considerará ningún gasto emergente de cirugías esté cas, excepto en el caso de accidentes deformantes, hasta el tope dinerario indicado en la presente Resolución.----------------------------

Art. 7º) El carácter del subsidio a otorgar es universal, para todos los arquitectos matriculados en el CAPBA, por lo cual el mismo es por arquitectos, no por patología, ni por empo. Los subsidios enen un carácter excepcional y único, por lo cual no puede solicitarse reintegros por lo mismo en diferentes años, ni solicitar un subsidio bajo la designación de dis ntas patologías. Cada Arquitecto podrá entonces acceder a un máximo equivalente al valor dinerario de 60 matrículas, ya sea en diversas oportunidades que sumadas representen este total o por única vez, si la misma llegará a este tope equivalente al valor dinerario de 60 matrículas. Asimismo, dado el carácter de subsidio antes indicado, no existen derechos por casos precedentes, por cuanto cada solicitud presentada por un matriculado del CAPBA se tramitará en función de la per nencia de lo requerido, la gravedad de la patología médica en cues ón y las disponibilidades económicas del Fondo de Salud. ---------------------------------

Art. 8º) Toda solicitud de Subsidio deberá realizarse según el formulario detallado en Anexo I de la presente. --------------------------------------------------

Art. 9º) Aprobar la nueva reglamentación del Fondo de Salud detallada en el Anexo II, de la presente. --------------------------------------------------------Art. 10º) El monto establecido será efec vizado mediante el libramiento de un cheque de la Tesorería del Consejo Superior, girado al Distrito correspondiente con recibo para ser entregado al interesado y/o persona autorizada. Los recursos dinerarios necesarios para hacer frente a las erogaciones de los subsidios a otorgar se obtendrán del Fondo creado de acuerdo a lo dispuesto al art. 4º Resolución 75/09.-----------------------------Art. 11º) Comuníquese a los Distritos, publíquese para su difusión y ARCHIVESE.----------------------------------------------------------------------------------

capba IX SOCIAL Y GREMIAL 62

pasado 8 de abril, el Consejo Superior del CAPBA,

la Resolución Nº 23-15 mediante la cual se amplía la cobertura de prác cas de salud alcanzadas por el sistema de subsidios del CAPBA. En la presente nota transcribimos para conocimiento de los matriculados la resolución recientemente aprobada y sus anexos reglamentarios.

La mencionada Resolución ha sido reglamentada según lo dispuesto en el Anexo II de la misma y que a con nuación se resume en los siguientes puntos:

o Para el otorgamiento del Subsidio es condición que el profesional se encontrara como matriculado del CAPBA con el pago de la matrícula profesional al día en el momento de la realización de la intervención objeto de la solicitud de subsidio;

o El Subsidio es para los matriculados del CAPBA no alcanzando a su grupo familiar;

o El Subsidio podrá ser percibido por el matriculado en forma personal o por la persona designada como Apoderado expresamente por el arquitecto en el momento de la solicitud del beneficio;

o Las solicitudes del Subsidio deben referirse exclusivamente a aquellas patologías de salud, que están descriptas en los Anexos III y IV del reglamento;

o La Alta Complejidad que se cubría hasta la fecha era la Terapéu ca además de Trasplantes, a par r de la aprobación de este reglamento se amplía la Alta Complejidad a los aspectos de Diagnós co, para cubrir los estudios previos y posteriores de Alta Complejidad;

o Las prestaciones cubiertas taxa vamente están detalladas en los anexos III y IV de la presente Resolución;

o Cuando una prestación no esté pificada en los anexos antes indicados, la Secretaría de Salud con el asesoramiento del Médico Auditor, podrá homologar la misma a otra prác ca médica que si lo esté;

o La solicitud del Subsidio deberá ser presentada por el matriculado o por el Apoderado designado por el matriculado, en las dependencias del CAPBA. A tales efectos se completará una planilla po de solicitud de Subsidio, debiendo comprometerse a prestar la información que le sea requerida por el asesor médico o la ins tución colegial;

o El presentante ingresará junto con la solicitud de Subsidio la documentación requerida pudiendo designar un apoderado y/o representante (en forma expresa), para tramitar y/o cobrar el beneficio, en la delegación del CAPBA que corresponda al domicilio del mismo;

o El Distrito verificará la presentación, entregando al presentante, copia con fecha de ingreso de la solicitud presentada por el CAPBA, con detalle de la documentación acompañada. La solicitud y la documentación acompañada se elevarán al Consejo Superior. Una vez recibida en la sede del Consejo Superior se dejará constancia administra va, verificando los datos del matriculado y si se ha adjuntado la documentación necesaria;

o Si el pe cionante reúne los requisitos formales, se dará traslado de la documentación a la Secretaría de Salud y al auditor médico, pudiendo efectuar una solicitud de ampliación del plazo en caso de ser necesario, fundando la pe ción;

o El auditor médico a través de la Secretaría de Salud del CAPBA podrá solicitar al matriculado pe cionante la información que necesite para dictaminar;

o Con el dictamen médico y el despacho de la Secretaría de Salud del CAPBA, la Mesa ejecu va, se elevará la totalidad de la documentación, informe médico y conclusiones, al Consejo Superior para su consideración;

o Se establece en plazo de 180 días corridos a par r de la fecha de la intervención médica para efectuar la presentación de la solicitud de Subsidio, ante el CAPBA, vencido dicho plazo se dará por prescripto el derecho del matriculado regular para solicitar el Subsidio;

o En el posible caso que un matriculado solicitase un Subsidio de Salud y posteriormente falleciese, mientras administra vamente se estaba tramitando el reintegro del mismo, la Secretaría de Salud del CAPBA procederá a su liquidación conforme a los procedimientos indicados y el importe del subsidio se le entregará al deudo, que solicitase al CAPBA el subsidio de fallecimiento;

o Tendrán una carencia de seis (6) meses los arquitectos que se reincorporen en la matricula y/o la rehabiliten a contar de la fecha de regularización.

Para mayor asesoramiento sobre el procedimiento y otorgamiento de este y otros subsidios vigentes del CAPBA, les recordamos a los colegas que deben comunicarse con el área de matrícula del CAPBA IX con la Sra. Stella Rizzardi, matricula@capba9.org.ar, o a las Delegaciones del Distrito IX.

El
aprobó
SALUD
capba IX SOCIAL Y GREMIAL 63

Arquitectos vitalicios del CAPBA

Fue derogada la resolución provincial que preveía este reconocimiento

El pasado 8 de abril, el Consejo Superior derogó la Resolución nº 107-01 modificatoria de su similar del año 1988, mediante la cual el CAPBA creaba la figura del “Arquitecto Vitalicio”. Desde el CAPBA IX hemos acompañado la solicitud de un colega para ser beneficiado por esta resolución por lo que en esta nota exponemos las diferencias con la derogación establecida.

En los inicios de la democracia muchos han sido los colegas que contribuyeron y par ciparon ac vamente en las acciones que permi eron la sanción de la Ley Provincial Nº 10405 mediante la que se creara nuestro Colegio Profesional.

Como resultado de ese reconocimiento, en el año 1988 el CAPBA crea la figura del Arquitecto Vitalicio, intentando salvar una omisión del texto sancionado de la Ley de Colegiación. Esa resolución luego fue derogada por la Resolución 107-01, la que permaneció vigente hasta este año, donde se determinaba con claridad que: “Los Arquitectos matriculados en el Colegio de Arquitectos de la Provincia de Buenos Aires, que revistan en condición de jubilarse en el régimen de la Ley 12.490 (derogatoria y sus tu va de las Leyes 5920, 12.007 y 12.490 o la que en el futuro la reemplace) y hubieran requerido la cancelación de la matricula por tal mo vo, serán considerados integrantes del Colegio en carácter de Arquitectos Vitalicios”. Los profesionales serían beneficiados por la eximición del pago de la Matricula Anual manteniendo todos los derechos y obligaciones que derivan del Art. 14° de la Ley 10405, con excepción de los enunciados en los incisos 1) -Ser defendido a su pedido y previa consideración de los organismos del Colegio, en todos aquellos casos en que sus intereses profesionales, en razón del ejercicio de sus ac vidades, fueran lesionados-, 5) -Emi r su voto en las elecciones y ser electo para desempeñar cargos en los órganos direc vos del Colegio-, 8) -Sa sfacer con puntualidad las cuotas de colegiación a que obliga la presente Ley- y 9) -Cumplir estrictamente las normas legales en el ejercicio profesional, como también las reglamentaciones internas, acuerdos y resoluciones

emanadas de las autoridades del Colegio-. En relación a lo previsto por el Inc. 10) del mencionado ar culo, sólo quedaban exceptuados del derecho a voto en las Asambleas Distritales.

Este reconocimiento no ha sido solicitado frecuentemente. Sin embargo, en febrero de 2015 el Distrito IX ha acompañado una pe ción de un colega que ha solicitado la cancelación de su matrícula para acceder a la Jubilación bajo el régimen de la Ley Nº 12490 y que por tanto ha dejado de pertenecer al Cuerpo Único de Jurados y Asesores del CAPBA. Este pedido, previo a la derogación de la resolución, aún no ha tenido respuesta por parte del Consejo Superior.

En los fundamentos de la pe ción del colega, compar dos por el CAPBA IX, se hacía mención a la pre-existencia de un marco norma vo según Resolución Nº 107-01 y a lo determinado por Resolución CAPBA Nº 99-01, mediante la cual el CAPBA ha adoptado “como propio, en cumplimiento del Art. 26 inc. 13 de la Ley de Creación 10.405, el Reglamento de Concursos de la Federación Argen na de En dades de Arquitectos (FADEA) dictado con fecha 7/12/96 por Asamblea Anual Ordinaria de dicha Federación”, y que dicho reglamento establece en su Art. 25º.- “Para ser Jurado de la Federación es condición ser Arquitecto habilitado por la En dad y socio ac vo o vitalicio o matriculado de alguna En dad adherida, con dos años de an güedad como tal y acreditar tener cinco años en el tulo”.

En ese sen do, también debemos señalar que en los úl mos años han sido varios los colegas que han debido dejar dicho cuerpo por cancelaciones de matrícula

capba IX SOCIAL Y GREMIAL 64

inducidos por la imposibilidad de sa sfacer la exigencia de la CMAO. Situación que desde el Colegio debemos reflexionar.

Consideramos que, el espíritu de la Resolución Nº 10701 buscaba reconocer la trayectoria de los matriculados del CAPBA, pero a la vez mantener un vínculo con los profesionales en otra etapa de sus vidas y en la que podrían realizar aportes a la Ins tución que durante su pleno ejercicio profesional no han podido desarrollar.

Comprendemos el argumento ver do sobre la falta de previsión sobre dicha figura en la Ley de Colegiación y en las sucesivas modificaciones o proyectos de modificación que se deba eran, pero consideramos que derogar la resolución, sin arbitrar otros medios para salvar la falta de jurisprudencia, ha sido retroceder en la vida ins tucional de nuestro Colegio Profesional. Paradójicamente, aún sin ser reconocidos como parte de la matrícula, a los arquitectos jubilados de la CAAITBA en la Ley Nº 10405, desde el año 2013, el CAPBA les otorga con recursos propios un complemento a su jubilación a través del Subsidio CAPBA 25 años.

Finalmente, consideramos que en sus casi treinta años de existencia el CAPBA ha acrecentado su acervo ins tucional y profesional, comprendido en buena medida por la experiencia y aporte que sus matriculados han realizado a la Ins tución, que resulta imprescindible conservar y proteger, por lo que desde el Distrito IX trabajaremos para lograr restaurar este derecho a ser parte de nuestra Ins tución.

RESOLUCIÓN Nº 24/15

Grupo: 3-f

LA PLATA, 8 de abril de 2015.

VISTO el contenido de la Resolución CAPBA 107/01 y los fundamentos brindados oportunamente para su dictado; y CONSIDERANDO que este Consejo Superior, procediendo al examen exhaus vo tanto de la precitada, como de su antecedente (esto es, su similar 7/88), este CS en ende que las bases jurídicas oportunamente esgrimidas violan el bloque de legalidad, en tanto el CAPBA no puede reglamentar la Ley 10.405 desnaturalizándola con excepciones que ella no prevé, lo cual está vedado incluso al tular del Poder Ejecu vo provincial (art. 144 inc. 2) de la Cons tución de la Provincia de Buenos Aires);

Que la Ley 10.405 no permite inferir, de una paciente lectura de la totalidad de su ar culado, que el Legislador haya siquiera insinuado la posibilidad de que el ente que ella creara contara con matriculados vitalicios;

Que este Consejo Superior ya ha hecho uso de su competencia aprobando dos proyectos de ley para ser remi dos a la Legislatura, proponiendo la modificación de la Ley 10.405 (mediante la sanción de las resoluciones CAPBA 139/08 y 14/14) y en ninguna de esas oportunidades ha previsto la condición de Arquitecto vitalicio. Por lo cual correspondería entender, incluso (por imperio de lo dispuesto en los arts. 914 a 920 del Código Civil) que ya desde la sanción de la primera de las citadas (Res. CAPBA 139/08) se produjo la derogación tácita de la Res. 107/01. Ello así, pues toda norma posterior y de igual jerarquía deroga a la anterior en todo aquello en que esta se le oponga;

Que, sin perjuicio de ello, corresponde dar certezas al respecto;

Que todos los derechos dispuestos por el ar culo 14 de la Ley 10.405, corresponden –como el mismo tulo lo enunciaa los arquitectos colegiados. Llamando especialmente la atención lo dispuesto por el ar culo 3 de la Res. 107/01, el que permi ría entender –ya que sólo los exceptúa de votar en las asambleas distritales- que los llamados “Arquitectos vitalicios” podrían, por ejemplo, votar en una asamblea del CAPBA, a la par de un matriculado que ejerce profesión reuniendo los requisitos establecidos por el ar culo 2 de la Ley 10.405. Lo cual conduciría, entre otros supuestos fác cos, a facultar a un arquitecto que no ejerce para incidir en cues ones tales como, v.gr., el monto de la cuota de matriculación anual, y, en general, en crear obligaciones que deben cumplir los colegiados que ejercen. Dicho de otro modo, quien no ejerce profesión podría contribuir a la sanción de normas que no se aplicarían a él.

Por ello, en uso de su competencia reglada, el CONSEJO SUPERIOR DEL COLEGIO DE ARQUITECTOS DE LA PROVINCIA DE BUENOS AIRES, en sesión del día de la fecha

R E S U E L V E

Art. 1º) Derogar la Resolución CAPBA 107/01.--------------------Art. 2º) Comuníquese a los Colegios Distritales, publíquese, y ARCHIVESE.------------------------------------------------------------------

MATRÍCULA
capba IX SOCIAL Y GREMIAL 65

El Distrito IX cuenta con una clara vocación en el desarrollo de propuestas de capacitación y actualización profesional, esto permite explorar con nuamente nuevas posibilidades y ar cular acciones con otras en dades y u lizar diversos formatos para su dictado. En este ar culo repasamos brevemente las ac vidades desarrolladas y adelantamos la agenda para la segunda mitad del año.

CHARLAS Y CURSOS REALIZADOS EN SEDE DISTRITAL

Las ac vidades de capacitación comenzaron este año con el “Curso: Introducción al sistema construc vo CASSAFORMA”. La misma se desarrolló el día 15 de abril en el SUM de la Sede Distrito IX y dicha ac vidad contó con la par cipación de más de 70 colegas. El curso abordó las siguientes temá cas: Introducción al Sistema construc vo-elementos componentes, materiales y herramientas. Técnicas construc vas en obras par culares. Proyectos especiales. Técnicas construc vas par culares. Detalles par culares. U lización del sistema en construcciones existentes. Combinación con otros sistemas construc vos. Aspectos legales de su uso. Cer ficaciones. Recomendaciones de uso, terminaciones, performance térmica y acús ca. Los asistentes realizaron diversas consultas sobre el sistema construc vo que permi eron ampliar los contenidos ver dos por los disertantes. Con nuando con la capacitación en herramientas que ayudan a mostrar la arquitectura con ojos profesionalizados es que reeditamos el “Curso de fotogra a para arquitectos” a cargo de los fotógrafos Romina Giménez - Julián Cragnaz, el que va por su tercera edición y que ha permi do que muchos de nuestros colegas se encuentren incursionando en técnicas, composición y postproducción.

Durante los días viernes 29 y sábado 30 de mayo se realizó el “Curso de capacitación tasaciones inmobiliarias” con amplia concurrencia de colegas y que tuvo como docente a la Arq. Myriam Pinto, Especialista en Tasaciones Inmobiliarias. Se pudieron abordar temá cas referidas a: Tasación y Economía. Los mercados. El entorno de un inmueble. Tasación de terrenos urbanos. Las fracciones aptas para desarrollos inmobiliarios. Inmuebles en Propiedad Horizontal. Tasación de inmuebles en construcción. Durante una de las jornadas se realizó una ac vidad prác ca que permi ó plasmar los conceptos ver dos en la clase en el desarrollo de un trabajo concreto.

Durante el mes de Junio se realizaron diferentes ac vidades que tuvieron como obje vo seguir ampliando la formación y capacitación de los colegas. En este sen do, miércoles 24 de junio en una jornada con amplia concurrencia se llevó a cabo la “Clínica de Especialización en Construcción Sustentable” la que tuvo como disertantes a Arq. Pablo Azqueta - Consultor técnico de la AAPE - Asociación Argen na del Polies reno Expandido y Arq. César Aquilano - Responsable técnico de VASA. Dicha capacitación abordo temá cas tales como: Obras Nuevas Residenciales “La CasaE”, “Retrofit” de Obras Existentes y Racionalidad y Eficiencia Energé ca en Obras Corpora vas y Singulares.

Capacitación en todo el distrito
66 capba IX CAPACITACION Y ACTUALIZACION PROFESIONAL
“Promediando el año, las ac vidades se intensifican y se suman nuevas propuestas”

CHARLAS Y CURSOS REALIZADOS EN DELEGACIONES

Como parte del desa o de lograr una mayor integración, la designación de un Coordinador de Capacitación en Delegaciones ha permi do programar y organizar los siguientes cursos, fortaleciendo así, el plan de acción tendiente a op mizar la capacitación con nua y permanente de los colegas pertenecientes a cualquier sector del Distrito. Entre los cursos que se han desarrollado, podemos indicar:

Entre los meses de marzo y mayo se desarrolló el “Curso de fotogra a para arquitectos” en la Delegación Miramar, organizado por el Delegado y dictado por el Arq. Julio Alaniz.

En el mes de mayo se realizó las “Jornadas sobre prevención de riesgos laborales en la industria de la construcción” conjuntamente con la Delegación Villa Gesell y Pinamar. Dicha ac vidad estuvo a cargo de la Esp. Arq. Marisa Troiano colega de nuestro distrito y docente de la FAUD-UNMdP quien abordó las problemá cas más frecuentes en la construcción y las norma vas vigentes relacionadas a la prevención de riesgos laborales.

Además, se realizó en la Sede de la Delegación de Pinamar la “Charla Técnica sobre grifería de alta tecnología” que abordó temas sobre válvulas, diferentes pos de duchas, sistemas de instalaciones y soluciones inteligentes en relación a los productos fabricados por la Empresa FV.

Mientras que en la Delegación de Necochea, se ha realizado un “Safari fotográfico en NECOCHEA” a cargo del Arq. Julio Alaniz.

Dicha ac vidad se realizó a par r de la recorrida por la ciudad con el obje vo de captar aquellos objetos, espacios, personas, animales y arquitectura que fueran consideradas relevante para los matriculados y consecuentemente, posibles de fotografiar. A par r de la selección de fotos se realizó una exposición en la sede de la Delegación de Necochea que fuera inaugurada por las autoridades del CAPBA DIX en oportunidad de sesionar el consejo direc vo en dicha ciudad.

Asimismo, durante el mes de junio dio comienzo en la delegación Necochea el “Curso de fotogra a” a cargo del Arq. Julio Alaniz en la que par cipan varios colegas.

En el si o web de la Comisión de Capacitación del CAPBA IX se puede acceder al material audiovisual de los cursos y charlas desarrollados, allí también se encuentran disponibles fichas técnicas y material acercado por los disertantes.

http://capacitacioncapba9.wix.com/ capacitacion-capba9

Planes especiales para arquitectos en

CAPACITACIÓN Y ACTUALIZACIÓN
67 capba IX CAPACITACION Y ACTUALIZACION PROFESIONAL

AGENDA DE ACTIVIDADES JULIO DICIEMBRE

La Comisión de Capacitación trabaja en la organización de ac vidades que permitan acercarse a problemá cas disciplinares frecuentes como así también, a temas que hoy en día necesitan de mayor nivel de profundización. Dichas capacitaciones se desarrollan en las dis ntas delegaciones del CAPBA según la siguiente agenda:

14 JULIO:

CURSO DE INICIACIÓN A LA PRÁ CTICA PROFESIONAL

Comienza martes 14 de julio (8 encuentros) según calendario de cursada.

Disertante: colegas invitados

Realización: en Sede Distrito IX

17 JULIO: CHARLA TÉCNICA SOBRE INS TALACIONES ELÉCTRICAS

Viernes 17 de julio

Disertante: Ing. Jorge Caracassis, funcionario del Área de Control Técnico de Instalaciones Eléctricas de la Municipalidad de General Pueyrredon.

Realización: en Sede Distrito IX

13 AGOSTO:

SEMINARIO DE SEGURIDAD EN OBRAS DE LA CONSTRUCCIÓN

Jueves 13 de Agosto, Viernes 14 de Agosto, Jueves 20 de Agosto y Viernes 21 de Agosto (4 encuentros)

Disertantes: Esp. Arq. Marisa Troiano y Esp. Arq. Néstor Machado Susseret, colegas del Distrito IX y docentes FAUD-UNMdP

Realización: en Sede Distrito IX

14 AGOSTO:

SEMINARIO INTRODUCTORIO A LOS PROCESOS PATOLÓGICOS DE LA CONSTRUCCIÓN.

Viernes 14, 21, 28 de Agosto y Viernes

04, 11 y 18 de Sep embre (6 encuentros)

Disertantes: Arq. Lelis Fernández y Mag. Arq. Emilio Polo Friz, colegas del Distrito IX y docente FAUD-UNMdP.

Realización: en Delegación

Miramar Distrito IX

18 AGOSTO:

CHARLA DE SUBMURACIÓN Y ME CÁNICAS DE SUELO

Martes 18 y 25 de Agosto y Martes 01 y 08 de Sep embre (4 encuentros)

Disertante: Ing. Rubén Muñoz, docente FAUD-UNMdP.

Realización: en Sede Distrito IX y CD en las delegaciones.

24 SEPTIEMBRE:

CHARLA TÉCNICA SOBRE INS TALACIONES SANITARIAS

Jueves 24 y Viernes 25 de sep embre

Disertante: Arq. Alejandro Pozzobon, a cargo del Gerente Comercial OSSEMGP.

Realización: en Sede Distrito IX

16 OCTUBRE:

CHARLA CAPACITACIÓN USO DE INS TRUMENTALES BOSCH EN EL MARCO DE LA PRESENTACIÓN DE LOS EQUIPOS ADQUIRIDOS POR EL CAPBA DIX.

Viernes 16 de octubre

Disertante: representante Empresa BOSCH.

Realización: en Sede Distrito IX

CAPACITACIÓN Y ACTUALIZACIÓN 69 capba IX CAPACITACION Y ACTUALIZACION PROFESIONAL

Ciclo de conferencias “Construir ciudad, hacer arquitectura”

El Colegio de Arquitectos Distrito IX organiza por segundo año consecu vo el Ciclo de Arquitectura en el MAR. Una propuesta que ene como obje vo compar r dis ntas perspec vas sobre “Construir ciudad, hacer arquitectura”.

El CAPBA DIX ha confiado la coordinación del 2° Ciclo de Arquitectura a los Arq. Ariel Magnoni y Arq. Pablo Rescia.

Dicho Ciclo de Conferencias sobre Arquitectura está des nado a colegas, estudiantes de la carrera de arquitectura y público en general con el objeto de acercar experiencias de estudios profesionales unipersonales y de equipos.

A par r de éxito con el cual se desarrollará el Primer ciclo de reflexiones y debates sobre arquitectura en el año 2014 es que consideramos oportuno dar con nuidad a la misma. Es importante destacar que el Ciclo fue ganando un espacio vacante en la ciudad que permi era al conjunto de la sociedad disfrutar de experiencias y teoría sobre la arquitectura.

Esta ac vidad pretende ser un escalón hacia el debate de la profesión y la importancia de la arquitectura en la construcción del entorno construido de nuestras ciudades. Esperando promover una opinión crí ca de la arquitectura a par r de las reflexiones y debates que proporciona compar r experiencias de profesionales de reconocida trayectoria profesional, formación académica y/o quienes se encuentran desarrollando una arquitectura de vanguardia en La noamérica

Este Ciclo está Declarado de Interés por: Municipalidad de General Pueyrredón | Defensoría del Pueblo de General Pueyrredón | Honorable Concejo Deliberante de General Pueyrredón | Ente Municipal de Turismo | Secretaría de Cultura de la Municipalidad de General Pueyrredón y Facultad de Arquitectura, Urbanismo y Diseño FAUD-UNMdP.

FECHAS DE CHARLAS CICLO DE ARQUITECTURA:

29 Mayo | Buenos Aires | Arq. Pablo Pschepiurca

11 Junio | Córdoba | Arq. Mariano Faraci

| Arq. Juan Ignacio Barrionuevo

06 Agosto | La Plata | Arq. Alberto Sbarra

27 Agosto | Asunción | Arq. José Cubillas

03 Sep embre | Montevideo | Arq. Mar n Gualano | Arq. Marcelo Gualano

17 Sep embre | Rosario | Arq. Mario Corea

08 Octubre | Mar del Plata | Arq. Juan Fontana

Para acceder a las charlas, jornadas y seminarios podrán realizarlo en las dis ntas plataformas de la Comisión de Capacitación:

Página web: h p://capacitacioncapba9.wix.com/capacitacion-capba9

Canal de Youtube:

https://www.youtube.com/view_all_ playlists?sa=1&vmo= tle_desc&sf=name

Arq. Laura Romero Comisión de capacitación CAPBA Distrito IX

70 capba IX CAPACITACION Y ACTUALIZACION PROFESIONAL

INICIO DEL 2º

CICLO DE CONFERENCIAS DE ARQUITECTURA 2015

“Construir ciudad, hacer arquitectura”

Arq. Pablo Pschepiurca

El pasado 21 de mayo dio comienzo el segundo Ciclo de Conferencias de Arquitectura, en el Museo MAR de la ciudad de Mar del Plata. Bajo el lema “Construir Ciudad, Hacer Arquitectura” estas charlas abiertas y gratuitas, están des nadas a arquitectos, estudiantes de arquitectura y a la comunidad en general.

Iniciando las charlas de este año, pudieron escucharse las palabras de la Arq. Julia Romero, Presidente del Colegio de Arquitectos Distrito IX quien dirigió un mensaje de bienvenida y agradecimiento, y del Arq. Guillermo Eciolaza, Decano de la Facultad de Arquitectura, Diseño y Urbanismo de la UNMdP. El arquitecto Ariel Magnoni coorganizador del Ciclo 2015, por su parte, inauguró las charlas y señaló que el Ciclo está enfocado a ‘repensar la ciudad a par r de su construcción y desde la prác ca co diana de la arquitectura (...) Las experiencias argen nas y la noamericanas que se presentarán a lo largo del Ciclo, ayudarán a discu r y redefinir con mirada crí ca el quehacer de la disciplina en la ciudad”.

Finalmente el Arq. Pablo Rescia, coorganizador, dio a conocer los mo vos de la elección de los conferencistas de este año, mencionando en el caso de esta primera charla, a la producción del Estudio Aisenson y su representa vidad, construyendo ciudad a través del proyecto y la dirección de obra, par cipando en concursos, y teniendo un “lado B” referido a la reflexión sobre ideas y proyectos, en pos de la construcción de conocimiento con inves gación y discusión.

“ARQUITECTURA Y CIUDAD”

Bajo este tulo inició luego su charla el Arq. Pablo Pschepiurca, quien mostró al auditorio sectores urbanos de Buenos Aires que desde 1996 en adelante sufrieron un proceso de “arquitecturización”, y que sirvieron para exponer la relación ‘arquitectura y ciudad’ en dis ntas escalas, sin hacer diferencias tajantes entre arquitectura y urbanismo.

El expositor destacó su pertenencia al Estudio Aisenson (1934), uno de los primeros estudios de arquitectos de la ciudad de Buenos Aires, fundado hace más de 80 años, y que se inició con una impronta racionalista de importante inserción en el mercado.

CONFERENCIAS
71 capba IX CAPACITACION Y ACTUALIZACION PROFESIONAL

A par r de los años 90, el estudio incursionó no sólo en la vivienda suntuaria en la que venía trabajando, sino también en vivienda social, y conjuntos de edificios de oficinas, tanto en la Capital, como en ciudades del interior y también en Paraguay. Ya desde los ’60, los edificios en altura fueron la parte más visible de su producción, y por supuesto esto hizo que se adentraran en la discusión sobre las torres, su per nencia, su historia, y el desarrollo de la pología.

Entre los conceptos que ver ó en la sala, rescató como puntos de par da proyectual, la densidad, el tejido y la manzana para el caso de la ciudad de Buenos Aires. La manzana desde el punto de vista histórico y plás co, y con él la preocupación respecto de la ciudad histórica, ya que observa la discon nuidad producida luego de los años ´30 y ‘40, cuando el crecimiento se dio de manera caó ca y generó anomalías urbanas.

Consideró a Buenos Aires como ‘ciudad de medianeras’, y por ello éstas se convierten en tema fundamental para el trabajo arquitectónico. La torre, contemplada recién en el código del año ´57, produce situaciones graves de medianeras, iniciadas con la Ley de Propiedad Horizontal, y que se comenzaron a estudiar y a mejorar a par r de los cambios de códigos de los ‘80. A pesar de la tardanza de los códigos destacó que no debe olvidarse la tradición del rascacielos en Buenos Aires: el Palacio Barolo, los edificios Kavanagh, Comega, Alas, etc., fueron generando un perfil fortalecido luego por la decisión de construir Catalinas Norte en los ‘60 y por el concurso Peugeot, que no se concretó, pero ocasionó fuerte debate.

CON EL FOCO EN LAS TORRES

Pschepiurca se declaró rossiano, refiriéndose a Aldo Rossi como referente, a quien tuvo la oportunidad de conocer en 1978 y con quien pudo incluso trabajar un empo en Milán. La impronta de esos años, asegura que marca su trabajo, como aconteció en forma par cular con la primera obra que mostró, el edificio de Iberá esquina Vuelta de Obligado, de 1982. Allí la idea fue recuperar una arquitectura no estridente, que responda a situaciones urbanas, que reflexione sobre las

carpinterías ver cales de tradición en Buenos Aires y que recuperase la idea de “loggia”.

Rememoró que ocho años después de aquella obra, el estudio recibía el 3º premio del concurso para el desarrollo de Puerto Madero, donde propusieron también equipamiento para un parque al sur con áreas depor vas, culturales, educa vas, etc. mientras que al norte se concentrarían el sector terciario y de servicios de alta densidad. Finalmente se ejecutó un proyecto producto del trabajo de 3 equipos, al que describió extensamente, junto con la problemá ca de lograr que la inversión virara hacia el este, al otro lado de los diques. En esa búsqueda el estudio construyó el edificio Malecón, puerta de entrada a Bs. As. desde el sur.

En la recorrida por las obras del estudio tuvieron gran protagonismo las torres. Por ejemplo, la Torre Bouchard Plaza (2001), torre con basamento, que intenta recomponer un zócalo urbano frente sobre Plaza Roma, en un sector tradicional de oficinas en Bs. As. El edificio se apoya sobre lo que eran las oficinas del Diario La Nación, con una capacidad de carga remanente excepcional que se decidió aprovechar.

También expuso la oportunidad excepcional que recibió el Estudio de realizar 3 conjuntos de torres en 3 manzanas con guas en 3 décadas sucesivas. Estas fueron las Torres de Canning, en los años ‘70; luego Torres Las Plazas, de los años ‘90 (durante el auge de programas mixtos y referentes norteamericanos), y finalmente al centro, entre ambas manzanas, la Torre Bellini en los años 2000.

A través de estos desarrollos se refirió a algunos cambios ocurridos, como por ejemplo, que durante los años en que se realizó el primer conjunto mencionado, el tema de la inseguridad no representaba un problema. No había necesidad de rejas y bastó un pequeño talud para separar el parque privado de la vereda y con eso alcanzó para conectar espacios de forma no agresiva y no invasiva. Mientras que las úl mas décadas ya exigen incluir la seguridad, lo que involucra diseñar también estos elementos. Sobre la Torre Bellini rescató el logro que fue ampliar la vereda para hacer un aporte al espacio público que a la vez mejore la calidad del

72 capba IX CAPACITACION Y ACTUALIZACION PROFESIONAL
1, Torres Le Parc Puerto Madero - 2, 3 y 4, Conjunto Las Plazas

emprendimiento, vinculando así tejido urbano y pología. Este criterio fue llevado también a la Torre Bellini San Mar n, en construcción actualmente. Se trata de dos torres de dis ntas alturas, que se abren como un libro y proponen un espacio abierto al público de 1500 m2 con mantenimiento por parte del privado, que potencia la zona comercial.

Son torres de fuerte presencia en la ciudad, de lenguaje neutro, en área degradada pero neurálgica, y con uso de vidrio reflejante para que ‘desaparezcan’ la mayor parte del día durante las horas de sol.

MIRADA CRÍTICA

Uno de los puntos fuertes de la conferencia fue la reflexión de Pschepiurca sobre las áreas de concentración de torres en la ciudad de Buenos Aires, propiciadas las úl mas décadas. Consideró que la torre fuera de la trama ene una postura an urbana, a la que comparó con la utopía urbana de un barrio cerrado.

Razonó que el conjunto de torres construidas los úl mos años no redundan en un buen tejido, y que por el contrario, se generó un paisaje aberrante, no sostenible, con sombras urbanas importantes y visuales solapadas. Al agrupar torres por un lado y bloques por otro, no se logró un tejido armónico y con adecuadas relaciones pológicas, más bien resultó poco vivible y amigable, como escaso intercambio social.

Pschepiurca abordó el caso de las Torres Le Parc Puerto Madero, obra del Estudio, con su lenguaje austero y remate reconocible; con buena visión de la ciudad, del río y el horizonte, pero a la que no es mó como una buena resolución desde el punto de vista urbanís co.

Asimismo, otra de las pologías de Puerto Madero que surge de la norma va para el sector, es el bloque, inspirado en la experiencia catalana pero sin las mismas medidas saludables.

Sobre los bloques hizo notar que los pa os internos no son de proporciones aptas ya que enen menor ancho que una calle de la ciudad, pero con igual altura en sus fachadas internas.

La lucha por la altura fue otro punto de dura crí ca, un “disfrute fálico que sufrimos en carne propia” recalcó. Un ranking de “altura y frivolidad” que pretende sortear las complicaciones de los Códigos y al que ilustró con una anécdota sobre un proyecto que realizó junto al arquitecto español Mangado para una torre de oficinas y hotel en Puerto Madero.

En ese proyecto la única condición puesta por el inversor era que debía ser el edificio más alto de Buenos Aires. Siendo que el código de la ciudad -en razón de la alturaindicaba que debían duplicarse los núcleos ver cales y las salidas, la planta no rendía, era an económica la obra y se conver a en un despropósito que finalmente no se concretó.

Para Pschepiurca este tema ilógico es una competencia que existe y la impone el mercado, pero que lamentablemente existe también en las revistas de arquitectura y en la mente del arquitecto, volviéndose entonces una cues ón de é ca profesional.

Del mismo modo crí co con que reflexionó sobre las torres, también lo hizo sobre la materialidad y su influencia en la lingüís ca y la morfología actuales. Hizo notar al auditorio cómo con el paso del empo, los arquitectos que venían construyendo con materiales nobles, ladrillo, piedra, madera y buena aislación, terminaron por ennoblecer al hormigón armado, una material que aísla mal, transpira y ene una serie de problemas complejos, pero al que sin embargo, se lo incluye en todos los edificios más caros y nuevos de Buenos Aires.

RECORRIDA POR LAS OBRAS

Siguiendo el recorrido por las obras del Estudio Aisenson, le llegó el turno al Palacio Bellini, en Palermo. Obra que tuvo en cuenta el entorno de forma par cular, ya que el vecino de en frente se trataba de “La Colorada”, un edificio patrimonial, y al lado un edificio “invivible” de renta, pero con aires afrancesados, denominado “El Palacio de los Patos”.

CONFERENCIAS
73 capba IX CAPACITACION Y ACTUALIZACION PROFESIONAL
1, Palacio Bellini - 2, Torre Bellini - 3, Torres Canning - 4, Edificio Malecón

La propuesta fue entonces la de un enrase de alturas que no estaba contemplada en el Código para tanta extensión de fachada, por lo que debieron trabajar con la municipalidad, los vecinos y los desarrolladores para lograr cambiar la idea original que tenían los inversores sobre la morfología del emprendimiento. El resultado fue una obra que dialoga con El Palacio de los Patos, que ene una entrada-portal de escala urbana, rescatando el gesto palaciego y que permi ó desarrollar un área gastronómica fuerte. El arquitecto puntualizó que también este era un “palacio” falso, pero con gran mejora de calidades del espacio central y con carácter hotelero en los espacios comunes.

El caso de Nuevo Núñez, una remodelación de una fábrica para conver rla en viviendas también fue expuesto. Consiste en un edificio bajo des nado a clase media joven en un tejido urbano donde por el contrario, la excepción es la torre, y por lo tanto la terraza se recupera como espacio de esparcimiento mucho más vivible y agradable. El público también pudo conocer la renovación del viejo frigorífico La Pampa, un bloque sobre la utopista en un lugar muy complejo, con un programa mixto de viviendas y oficinas.

LO NUEVO EN LO VIEJO

La obra de ampliación sobre edificios patrimoniales también estuvo presente en la charla. En la opinión del arquitecto, “hasta hace diez años el tema del patrimonio era cues ón de especialistas, luego comenzó la apertura a través de los concursos, con criterio más innovador antes que restaurador”.

Los casos presentados fueron la Ampliación de la sede del Colegio de Arquitectos de Córdoba, España, un Centro Cultural para la Universidad Nacional de Córdoba, Argen na, enfrentado a la histórica manzana jesuí ca, y el completamiento de la Manzana de las Luces en Buenos Aires

En el primer caso se trató de un edificio patrimonial que debía rescatarse, pero con un programa que duplicaba la superficie. La propuesta con la que llegaron a ser finalistas del concurso fue un edificio pegado contra medianeras pero separado del volumen patrimonial existente, más una superficie agregada sobre el volumen patrimonial.

En el segundo caso, la Universidad Nacional de Córdoba convocó a pensar un centro cultural frente a la manzana jesuita, en la esquina diagonal al Colegio Montserrat, tomando un edificio de es lo pero no catalogado como patrimonial. Allí también trabajaron sobre una propuesta de enchapado de las medianeras sin tocar el edificio existente. El primer premio otorgado, sin embargo, proponía la demolición del edificio lo que ocasionó un escándalo.

En el tercer caso, el Estudio recibió el 1º premio por su propuesta para la Manzana de las Luces de Buenos Aires. Un completamiento de la manzana con muchos condicionantes: mantener los túneles históricos, un subsuelo existente, el acceso a túneles, respetar las dimensiones del pa o en función de los pa os existentes en la manzana, y mantener las medianeras históricas de ladrillo visto sin ser tocadas. Sumado al peso de estar rodeados por la Iglesia de San Ignacio, el Colegio Nacional, y la sede de la CNMMLH en funcionamiento. Todo esto determinó un volumen sin fachada que abrió paso a una discusión interesante en el estudio: cómo reemplazar la pica propuesta de fachada de vidrio para esos casos, trabajando la modulación rítmica, recomponiendo la línea de borde en mimesis con el edificio existente, pero a la vez diferenciándose.

Ya fuera del terreno patrimonial, Pablo Pschepiurca contó los proyectos para alojar la Casa de Gobierno Metropolitana en el Banco Ciudad, el proyecto del Banco de Galicia, Banco de Córdoba, Concurso para la urbanización de Playa Ferroviaria Liniers, proyectos

74

urbanos Pro.Cre.Ar. en Rosario, San ago del Estero y Córdoba, y finalmente el concurso en el que están trabajando en este momento para Chile, sobre un corredor urbano de transporte.

LA CIUDAD FRAGMENTADA

El segundo momento de reflexión y crí ca fuerte de la charla estuvo dado por el caso del Parque de la Ciudad como pieza central del Parque del Sur, retomado recurrentemente a lo largo de la historia de Buenos Aires, con la idea de ser un parque-paisaje compensador del desequilibrio urbano, que hasta el momento es de nulo cumplimiento. Su tan prolongada postergación permi ó que la ciudad se desarrollara con una alta concentración de recursos al Norte y promesas vanas al Sur dejando un territorio vacío que, paula namente, ha sido apropiado por quienes no disponían de suelo urbano.

La propuesta del Estudio para el concurso englobó tres obje vos principales:

1. La apertura al público de un parque de uso intensivo con un diseño centrípeto y de alta calidad ambiental basado en la puesta en valor de la arboleda y lagos existentes. 2. La construcción del núcleo central del PARQUE DEL SUR de forma, dimensión y des no finalmente definidos, en contacto total con una trama urbana de densidad y límite acabadamente regulados. 3. Poner en la agenda el desa o de pensar el PARQUE DEL SUR como un Parque Metropolitano en relación no solo a los actuales usuarios, provenientes de los populosos barrios y asentamientos aledaños, sino también en relación a los habitantes de Lanús, Lomas de Zamora y Avellaneda.

El cerrado Parque de la Ciudad, aislado hoy de su entorno por avenidas rápidas, no es el único espacio de triste historia en el área: en condiciones similares de abandono o precariedad están las erras del Parque Indoamericano, el predio de la UTN, el Campo de Golf José Jurado, el Parque de las Victorias, y numerosos predios más. Esto fundamentalmente genera una tensa presión sobre el espacio vacío, ya que en las inmediaciones sobreviven miles de habitantes de la Villa Los Piletones, Conjunto

Solda , Villa Calacita, Villa 3, Villa 6, Villa Diamante, Asentamiento bajo Autopista, y Villa 20. Por todo esto el Parque de la Ciudad dentro del proyecto extensivo Parque del Sur es una pieza indisolublemente para vincular ciudad y conurbano en el área sur.

En la mirada del conferencista, que los funcionarios públicos sepan esto desde hace décadas, que haya propuestas urbanas posibles presentadas, como las surgidas del concurso, y no trabajar para su concreción, es evadir la responsabilidad social del planeamiento y propiciar los estallidos, tal lo acontecido por la toma del Parque Indoamericano empo atrás.

MINI BIO

El arquitecto Pablo Pschepiurca nació en 1953 y obtuvo su tulo en 1978 por la Universidad de Buenos Aires. Realizó tareas de docencia, conferencias e inves gación en dis ntos centros académicos de la Argen na entre los cuales pueden contarse: el Ins tuto Di Tella, el Ins tuto de Arte Americano, la Facultad de Arquitectura y Urbanismo de la UBA, el Centro de Estudios de la SCA, el Centro de Estudios de Arquitectura Contemporánea de la Universidad Torcuato Di Tella.

Ha publicado diversos ar culos sobre temas de historia de la arquitectura en Summa, Summa Temá ca, Materiales, DA Informa ons, etc. Es coautor del libro “La Red Austral”, editado en 2008, sobre las relaciones entre Le Corbusier y la Argen na.

Desde 1996 es socio tular del estudio Aisenson y Director de la Oficina de Proyecto ASN/nOISE. Obtuvo dis nciones en concursos nacionales de anteproyectos, como: Playa Ferroviaria de Liniers, Banco de Córdoba, Manzana de las Luces, Parque de la Ciudad, Manzana 20 de Córdoba, Dique La Florida, etc. Su par cipación en proyectos como Torre La Nación, Torres Le Parc Puerto Madero y Le Parc Figueroa Alcorta, Edifico Malecón, Edificio Bellini, Palacio Bellini, Puerto Pampa, conjuntos urbanís cos del Pro.Cre. Ar. en Córdoba, Rosario y San ago del Estero, es altamente reconocida.

CONFERENCIAS
75 capba IX CAPACITACION Y ACTUALIZACION PROFESIONAL
1, Conjunto Nuevo Núñez - 2, Torre La Nación - 3, Edificio Malecón

FREI OTTO el señor de las tenso-estructuras

2015, Primer Premio Pritzker póstumo

El anuncio del Premio

Pritzker tuvo este año una triste par cularidad. El Jurado escogió al arquitecto alemán Frei O o como el cuadragésimo ganador, y se convir ó en el segundo alemán en ser reconocido con el galardón. Sin embargo, O o lo recibió de manera póstuma.

A sus 89 años, llegó a conocer que recibiría la dis nción en pocos días más, y expresó su felicidad, pero la muerte, implacable, lo visitó el lunes 9 de marzo, 15 días antes del acto de premiación. Por este mo vo los organizadores decidieron adelantar la entrega del premio al 15 de mayo.

“Estoy ahora tan feliz de recibir este premio y quisiera agradecer al Jurado y la familia Pritzker. Nunca he hecho algo para obtener este premio. Mi mo vación era diseñar nuevos pos de edificios para ayudar a la gente pobre, especialmente después de desastres naturales y catástrofes.... Tienen acá a un hombre feliz”, había dicho ante la Directora Ejecu va del Premio Pritzker quien lo visitó en su casa cerca de Stu gart para informarlo del reconocimiento.

O o fue arquitecto, visionario, utopista, ecologista, pionero de la liviandad de los materiales, protector de los recursos naturales y generoso colaborador de arquitectos, ingenieros, biólogos, ambientalistas, ar stas, historiadores, y naturalistas, entre otros. Se dis nguió como maestro y autor, y fue pionero en el uso de modernas estructuras es lo “carpa” con bajo peso y ú les para múl ples propósitos.

Se sen a atraído por los valores ecológicos y económicos. Creía que era posible un uso eficiente y responsable de los materiales, con mínimo impacto en el ambiente. Frei O o fue un utopista que nunca dejó de creer que la arquitectura podía hacer un mundo mejor para todos.

Había nacido en Siegmar y crecido en Berlín. Su padre y abuelo fueron escultores y él trabajaba como aprendiz de escultor en las vacaciones escolares. Su nombre de pila, Frei significa “libre” y bajo esa libertad moldeó su carácter.

Su hobby era fabricar pequeños aviones planeadores y con esta ac vidad despertó el interés por las membranas tensadas en marcos livianos que podían responder adecuadamente a la aerodinamia.

El Premio Pritzker fue creado en 1979 por Jay A. Pritzker y su esposa. Su propósito es honrar anualmente a un arquitecto en ac vidad, cuyas obras demuestren combinación de cualidades: talento, visión y excelencia, y que aporten contribuciones consistentes y significantes a la humanidad y al ambiente construido a través del arte de la arquitectura. Cada año un laureado recibe cien mil dólares y una medalla de bronce.

En 1943 quiso comenzar la universidad para estudiar arquitectura pero fue llamado al servicio militar y entrenó como piloto hasta que un año después, devino en soldado de infantería. Fue capturado cerca de Nürnberg y tomado prisionero en 1945. En un campo de prisioneros de guerra cerca de Chartres en Francia, estuvo cau vo por 2 años. Luego trabajó como arquitecto de campaña y aprendió a construir estructuras con cualquier material con el que fuera posible. Después de la guerra retomó sus estudios en Berlín, en 1948.

Su arquitectura fue una reacción a los pesados edificios, profusos en columnas y ‘construidos para la eternidad’, picos del Tercer Reich en Alemania. Sus obras, por el contrario, eran livianas, abiertas a la naturaleza, democrá cas, de bajo costo e incluso, algunas veces, temporarias o e meras.

78 capba IX PROGRAMA COMUNICACIONAL

Palabras para O o Shigeru Ban, ganador del Premio Pritzker 2014:

“Louis Kahn preguntó al ladrillo, ‘en qué te quieres conver r’? El ladrillo respondió, ‘quiero conver rme en arco’. Creo que Frei O o fue un arquitecto que con nuó preguntándole al ‘aire’ en qué se quería conver r. Se preguntaba cómo envolver el ‘aire’ o el ‘espacio’ con el mínimo de material y energía”.

Jacques Herzog & Pierre de Meuron, ganadores del Premio Pritzker 2001: “Pensamos que Frei O o debió haber recibido un Premio Pritzker empo atrás. Su trabajo fue muy nuevo y diferente en su empo, del po del modernismo op mista que está faltando a la seriedad ecléc ca de hoy. ¡El trabajo de Frei O o sigue fresco e inspirador!”

En 1950 obtuvo una beca y par ó en viaje de estudio a Estados Unidos, donde conoció de cerca el trabajo de Frank Lloyd Wright, Erich Mendelsohn, Eero Saarinen, Ludwig Mies van der Rohe, Richard Neutra, Charles and Ray Eames, entre otros. En ese empo estudió sociología y urbanismo en Virginia. Luego se convir ó en arquitecto independiente y fundó su estudio en Berlín, obteniendo un doctorado en ingeniería civil en 1954.

Ese mismo año comenzó su trabajo en estructuras temporarias mínimas, hechas con telas de algodón.

A lo largo de su carrera siempre construyó maquetas analógicas para determinar los comportamientos óp mos de las formas. Los ingenieros de su estudio fueron de los primeros en incorporar computadoras para el análisis estructural, sin embargo, la información inicial para los cálculos siempre par a de los modelos y maquetas tradicionales.

A par r de 1958 fundó varias ins tuciones dedicadas a las estructuras livianas, como el Ins tuto para el Desarrollo de Construcción Liviana. Enseñó periódicamente en los EEUU (Washington, California, Massachuse s, etc.) creó el grupo de inves gación “Biología y Construcción” en la Universidad Tecnológica de Berlín y así dio el puntapié inicial para el trabajo colabora vo entre arquitectos, ingenieros y biólogos. Se convir ó en director de varios ins tutos y publicó su mayor obra: “Estructuras tensadas: Diseño, Estructura y Cálculo de Construcciones de Cables, Redes y Membranas”.

Con la obra del Pabellón Alemán en la Exposición Universal de 1967 en Canadá, se catapultó internacionalmente y mostró la exper cia ingenieril alemana y las tecnologías innovadoras alcanzadas por el país.

En 1972, otra obra resulta mundialmente famosa. Se trata del Estadio Olímpico de Múnich: las cubiertas a gran escala combinaron ligereza y fuerza, convir éndolo en un verdadero desa o que muchos creyeron imposible de alcanzar en la época.

Además de las obras ya mencionadas, fue de extenso reconocimiento el pabellón Japonés en la Expo 2000 en Hannover, Alemania, realizado con Shigeru Ban.

Sus inves gaciones lo llevaron a escribir sobre las propiedades del bambú, los crustáceos, las burbujas de jabón y los entramados de madera. Avanzó en el uso del aire como material estructural y la teoría neumá ca. Ganó muchos premios, fue nombrado profesor emérito y miembro honorario de asociaciones de arquitectos e ingenieros.

Según el fallo oficial del Jurado del mayor premio de arquitectura a nivel mundial, Frei O o “toma inspiración de la naturaleza y los procesos naturales encontrados ahí. Descubrió nuevas maneras de usar las mínimas can dades de materiales y energía para generar espacios. Prac có, desarrolló y avanzó ideas de sustentabilidad, incluso antes de que la palabra fuera acuñada” (...) “ha producido espacios y construcciones imagina vos, frescos y sin precedentes. También ha creado conocimiento. En esto reside su profunda influencia: no en formas a ser copiadas, sino a través de los caminos que fueron abiertos por su inves gación y descubrimientos. Sus contribuciones en el campo de la arquitectura no son sólo cualificadas y talentosas, sino también generosas. Por sus ideas visionarias, su mente inquisidora, su convicción de compar r libremente conocimientos e invenciones, su espíritu colabora vo y la preocupación por el uso cuidadoso de los recursos, el Premio de Arquitectura Pritzker 2015 es otorgado a Frei O o”.

El presidente del Jurado pronunció palabras significa vas en memoria de O o: “Frei significa Libertad; libre y liberador como un pájaro en vuelo, revoloteando y remontándose en elegantes y alegres arcos, desatado de los dogmas del pasado, y cau vador en su economía de líneas, en la improbabilidad de su ingeniería tanto como se pueda imaginar, dando a la unión de forma y función, la invisibilidad del aire que respiramos, y la belleza que vemos en la naturaleza”.

HOMENAJE
79 capba IX PROGRAMA COMUNICACIONAL

La n America in Construc on: Construc Architecture 1955–1980 1955–1980

El reconocimiento internacional a la Casa sobre el Arroyo

Con una duración de cuatro meses, entre el 29 de marzo y el 19 de julio de 2015 el Museo de Arte Moderno de Nueva York (MoMA) ha organizado una exposición dedicada a la arquitectura la noamericana. No es la primera vez que este pres gioso museo posa su mirada en la producción de los arquitectos de sur y centro América.

América La na en Construcción intenta mostrar a través de una interesante reevaluación histórica cómo los arquitectos de la región abordaron los retos de la innovación formal, urbanís ca, programá ca y su actualidad ante desa os de nuestra época. La muestra evidencia cómo América La na está nuevamente proporcionando arquitectura emocionante y desafiante, con respuestas a cues ones urbanas en el marco de modernización y desarrollo en muy diferentes contextos económicos y polí cos.

Bajo el tulo La n American Architecture since 1945, durante la década del 50, el MoMA realiza su primera aproximación a la temá ca produciendo una muestra fotográfica sobre la arquitectura moderna en la región. Ella abrió una mirada y registro inicial sobre la prolífica acción de tantos profesionales que en sus respec vos países desarrollaron visiones originales. Sesenta años después de aquella exhibición, el Museo propone “reexaminar las soluciones que encontraron los arquitectos a los problemas que se registraban en sus dis ntos países desde su producción en La noamérica,” según nos dice Patricio del Real, uno de los comisarios de la puesta.

Hoy, La n America in Construc on: Architecture 1955–1980 compila una gran can dad de materiales originales que nunca antes se habían reunido y, en su mayor parte, rara vez se exhiben incluso en sus países de origen.

80

La muestra vuelve a considerar la región ofreciendo un complejo panorama de las posiciones, debates, y la crea vidad arquitectónica del período. La exposición presenta dibujos, modelos arquitectónicos, fotogra as de época y fragmentos de películas junto a maquetas y fotogra as, y acompañan asimismo dos importantes publicaciones: un catálogo y una antología de textos primarios traducidos del español y el portugués. Resulta impactante ingresar a las salas del museo e iniciar el recorrido de la exhibición a par r de un inmenso mapa de La noamérica dibujado en el piso.

“Recoloca al visitante obligándole a verlo desde el sur, no desde la perspec va de los países del Norte”, explica Barry Bergdoll, comisario jefe. Este Historiador del Arte se plantea cómo, en toda su formación desarrollada en el país del norte, no había tenido acceso a conocer la arquitectura la noamericana. Ello le hizo plantearse la necesidad de reenfocar la mirada: “desde nuestra perspec va americana, reinsertar la arquitectura la noamericana en la historia del Modernismo y la modernización de la arquitectura”.

Es así que con este disparador, Barry Bergdoll inicia desde el MoMA, una profunda inves gación que demandó 7 años de trabajos y recolección de obras y documentos que debió coordinarse con equipos de Argen na, Brasil, Colombia, Cuba, Chile, Méjico, Perú, Puerto Rico, República Dominicana, Uruguay, Venezuela. Esa tarea monumental permi ó compilar más de 500 proyectos originales, muchos de ellos inéditos, que pueden conocerse a través de planos, dibujos, fotogra as y videos. Sorprende encontrar las maquetas a escala que el museo produjo para representar a algunos de los edificios más icónicos que componen la exhibición.

La exposición ha sido organizada por fenómenos arquitectónicos que se dieron en el período de 1955 a 1980 en la mayoría de los países de América La na. Se accede a ellos por una amplia antesala en las tres décadas anteriores de la evolución arquitectónica de la región, presentaciones del desarrollo de varios campus universitarios clave en las ciudades al igual que la Ciudad de México y Caracas, y un vistazo a la evolución de la nueva capital de Brasil en Brasilia.

Es allí donde nos encontramos, tan pronto se traspone la sala, con un corte original de la Casa sobre el Arroyo de Amancio Williams y fotogra as de dis ntos ángulos de la obra.

Cabe destacar que el proyecto y construcción de la misma fueron realizados por Amancio Williams entre 1942 y 1947 y los curadores consideraron per nente incluirla en la muestra, como un antecedente significa vo en el guión museográfico a la hora de representar las potencialidades de los creadores la noamericanos.

Una comisión conformada por el mismo Barry Bergdoll, Patricio Real, asistente curatorial del Departamento

de Arquitectura y Diseño del MOMA, Carlos Eduardo Comas, curador invitado de la Universidade Federal do Rio Grande do Sul, Porto Alegre, Brasil; y Jorge Francisco Liernur, curador invitado de la Universidad Torcuato di Tella, Buenos Aires, Argen na, se hicieron presentes a principios de 2013, apenas iniciado el Museo Municipal, para recorrer el conjunto y decidir si la Casa sobre el Arroyo de Mar del Plata, a pesar de no corresponder exactamente al período, tenía méritos suficientes para par cipar de la extensa muestra.

Fue emocionante, al recibirlos un domingo a la mañana en el si o, ver la admiración de estos expertos, al recorrer y descubrir las caracterís cas excepcionales de la obra y definir, encantados, su inclusión. Asimismo, se exhiben en otro sector de la muestra, justamente en el úl mo tramo, otras propuestas de Amancio Williams consideradas de vanguardia, como el proyecto de Bóvedas Cáscara 1951-1952, Tres Hospitales en Corrientes 1948-1953, el Edificio Suspendido de Oficinas, 1946 y Concurso del Edificio Unión Industrial, 1968.

Manifiesta Bergdoll que espera que el proceso de aprendizaje que le ha supuesto la organización de esta gran muestra antológica, sirva ahora para “recalibrar la historia del arte del siglo XX” y “reintroducir a La noamérica en la conversación.”

Desde ese punto de vista, cabe destacar en el contexto citado, la importancia de la valoración de una obra como la Casa sobre el Arroyo.

La visión integral de Amancio Williams, su compromiso irreduc ble con respecto al país, con la técnica de su empo y con el futuro, se han plasmado en nuestro espacio urbano. Ello nos inspira y compromete a su vez como marplatenses, a la conservación de esta obra, referente único, tes monio excepcional del siglo XX.

MUESTRA INTERNACIONAL
81
IX PROGRAMA COMUNICACIONAL
Arq. Graciela Di Iorio Directora General Museo Casa sobre el Arroyo Secretaría de Cultura MGP
capba

FICHA TÉCNICA

Periodicidad: semanal

Director Editorial:

Arq. Julia Romero

Coordinación Contenidos:

Arq. Analía Benítez

Colaboración Externa

Filmación y Edición:

Sr. Eduardo Bonoris

Diseño Ar s co:

Cris an Dalgaard

Marcelo Chiaramonte

Producción Publicitaria:

Cepei Consul ng

El CAPBA IX inauguró un nuevo espacio de comunicación.

Según lo previsto en el Plan de Acción Distrital, desde el lunes 1º de junio nuestra Ins tución cuenta con un nuevo medio de comunicación. Se trata de un programa de televisión del CAPBA IX denominado ESPACIO 9 TV.

Este proyecto, ha sido gestado como una herramienta que permita acercar la ac vidad de nuestros profesionales y la Ins tución a la comunidad de la región, complementa los diversos medios que ya u liza el CAPBA IX: su revista distrital que ha llegado al 3º año de publicación -que hoy se encuentra produciendo su número 11- la Gace lla Electrónica que ha superado las 400 publicaciones, la par cipación en redes sociales y la permanente presencia en diarios, radios y programas televisivos de toda la zona.

En ese sen do, dada la consolidación de la publicación distrital y observando la falta de propuestas televisivas que aborden desde una perspec va disciplinar e ins tucional la comunicación que por medios audiovisuales le llegan a la comunidad, se propuso coordinar las acciones tendientes a desarrollar un Programa Televisivo a emi r por señal de cable y por TV Digital.

82 capba IX PROGRAMA COMUNICACIONAL

En forma semanal Espacio 9 TV será emi do los días lunes a las 21.30 hs. por la señal de Canal 2 de Mar del Plata, con repe ciones los días viernes a las 18.30 hs. y domingos a las 12hs.

La señal ene repe doras en la región sudeste y centro de la Provincia de Buenos Aires con cabecera en la ciudad de Mar del Plata y enlaces en Chapadmadal, Miramar, Necochea, Santa Clara, Tandil, Pinamar y Ostende. En ese sen do, los avances en la comunicación 2.0 nos permiten sociabilizar este producto mediante el canal Youtube de la ins tución accediendo a: h ps://www.youtube.com/ user/capbadistrito9 .

Avanzaremos en las ges ones para el crecimiento de este proyecto comunicacional en formato audiovisual, para lograr:

o Alcanzar con entrevistas y cobertura de eventos a toda la región de competencia del CAPBA IX;

o Elaborar programas especiales, del po documental, que contribuyan a difundir la prác ca profesional, el patrimonio urbano arquitectónico, la producción teórica de colegas e ins tuciones afines, entre otras temá cas;

o Suscribir un convenio con la UNMdP a efectos de logar un espacio en la grilla de programación de la señal de Televisión Digital que dicha Ins tución posee;

o Realizar la producción comercial para lograr los auspicios que permitan solventar los costos de realización de este proyecto.

Agradecemos el apoyo de muchos colegas que colaboran para que este proyecto pueda ser desarrollado, a quienes ya han aportado su granito de arena con las entrevistas que se emi rán en los primeros programas y convocamos a todos los matriculados del CAPBA IX para que acerquen sus propuestas, obras y temas para ser desarrollados en éste y otros medios de comunicación.

PROGRAMA DE TV Espacio 9 TV. Lunes 21.30 hs. por la señal de Canal 2 h ps://www.youtube.com/user/capbadistrito9 83 capba IX PROGRAMA COMUNICACIONAL

La ac vidad profesional en el CAPBA IX durante el

2014

Análisis de la performance desarrollada

Habiendo culminado el año 2014, podemos analizar el volumen de expedientes ingresados a las áreas técnicas del CAPBA IX y en función de los honorarios convenidos en cada encomienda de trabajo, es fac ble inferir el cumplimiento de las obligaciones previsionales de los colegas.

Durante el año, 1.651 matriculados del distrito IX han ingresado legajos por diferentes tareas profesionales, representando el 91% del padrón de matriculados regulares del CAPBA IX. Sin embargo, el volumen de honorarios que dichas encomiendas implican no resulta suficiente para que la totalidad de los colegas en ejercicio profesional alcancen a cumplir con las obligaciones previsionales determinadas por la Ley 12490.

Considerando que la totalidad de matriculados en condiciones de ejercer la ac vidad profesional es de 1.818 matriculados y que 167 no han declarado ninguna encomienda profesional, mientras que 857 de quienes sí han presentado legajos no llegan a completar la CMAO, vemos que el 56% de los arquitectos del Distrito se encuentran en frágiles condiciones profesionales.

Elaboración:

Arq. Bruno Mazzini

Arq. Claudia Noto

Estadís cas: datos propios capba

EJERCICIO PROFESIONAL EN LA REGIÓN

La elaboración de un cuadro compara vo de las superficies presentadas en el 2º semestre del año y los montos de obras originados por estas superficies permiten visualizar la demanda de servicios profesionales en cada municipio, agrupados por su Delegación del CAPBA IX de pertenencia, lo cual denota además los niveles de control de cada municipalidad e indica la necesidad de implementar acciones futuras desde nuestro Colegio Profesional.

Gráfico. Legajos presentados y cumplimiento de CMAO de matriculados del CAPBA IX. Fuente: Elaboración propia en base a datos del CAPBA. Arq. Bruno Mazzini - Arq. Claudia Noto
INSERCIÓN PROFESIONAL 84
IX

Tabla. Superficie y montos de obra por Municipio y Delegación del CAPBA IX.

Fuente: Elaboración propia en base a datos del CAPBA. Arq. Bruno Mazzini - Arq. Claudia Noto

Vemos que la delegación Mar del Plata concentró el 55% de la superficie presentada, con lo cual corresponde a General Pueyrredon el 95% de esa superficie.

Por otro lado, la can dad de la superficie en construcción en el Par do de Mar Chiquita ha incrementado significa vamente, ubicando a ese municipio con una mejor performance que otros de mayor población y superficie.

La Delegación La Costa ha presentado en el primer semestre del año un movimiento que aporta el 11% del total ingresado en el Distrito IX, no obstante ello resulta preocupante los datos de municipios como General Lavalle y General Guido que prác camente no existen legajos presentados por obras en jurisdicción de ambos municipios, aunque en el caso de General Lavalle hubo presentaciones puntuales.

Tabla. Superficies presentadas en 1º y 2º semestre de 2014 por Delegación del CAPBA IX.

Fuente: Elaboración propia en base a datos del CAPBA. Arq. Bruno Mazzini - Arq. Claudia Noto

La delegación Pinamar ha incrementado el porcentaje individual respecto del volumen general de tareas presentadas, con una fluctuación mes a mes con grandes al bajos lo que se empieza a estabilizar en los úl mos meses del semestre. Por otro lado la Delegación Villa Gesell ha mantenido un nivel regular destacándose el punto más bajo de la ac vidad en el mes de noviembre.

Hacia el sur del Distrito las Delegaciones de Necochea y Miramar, junto con la Delegación Balcarce hacia el centro, muestran los niveles más bajos de ac vidad nucleando todas ellas el 12%. Esto resulta preocupante en virtud de agrupar 5 municipios y el 15% de la matrícula del Distrito IX, lo que implica la necesidad de ampliar esfuerzos tendientes a contribuir a una mayor inserción profesional de nuestros colegas.

ESTADÍSTICAS DE TAREAS PROFESIONALES
EVOLUCIÓN POR SEMESTRE EN M 2 capba IX INSERCIÓN PROFESIONAL
858585

Incumbencias del Título de Arquitecto

Reclamo ante OSSE para la intervención en tareas de ges ón ambiental

A par r de la solicitud de intervención del CAPBA IX efectuada por una colega ante el desconocimiento de las incumbencias en tareas de ges ón ambiental las en ges de la Empresa Obras Sanitarias Sociedad de Estado Mar del Plata-Batán, se de del iniciaron las ges ones que derivaron en la resolución del tema puntual y el resolución puntual el abordaje de acciones futuras. futuras.

ANTECEDENTES

Con fecha 12/03/15 una colegiada presentó una nota ante nuestra Ins tución, por el desconocimiento de la incumbencia profesional del tulo de Arquitecto para asumir la responsabilidad de los aspectos ambientales, en par cular de la confección del plan de ges ón ambiental, de su aplicación y de su control, en nombre de la Empresa Constructora adjudicataria de la Licitación Pública Nº 0814 cuyo objeto fuera la obra del Centro de Abastecimiento Tucumán (CAT).

Se verificó que la Empresa había comunicado mediante orden de servicio “que el profesional propuesto para la confección del Plan de Ges ón Ambiental, su aplicación y control, no reúne las caracterís cas requeridas en el art. 20, párrafo 4, de las especificaciones legales par culares”.

A par r de ello, se consultó el Pliego Condiciones Par culares de la LICITACIÓN PÚBLICA Nº: 08/14, EXPEDIENTE Nº: 788 - O - 2013, cuyo objeto es la construcción del “PMIS - CENTRO DE ABASTECIMIENTO TUCUMÁN”, y se advir ó que en el Ar culo 20º se enuncia: PERSONAL ESENCIAL: El personal esencial que deberá afectar el Contra sta para ejecutar el contrato es:

o 1 (Un) Representante Técnico conforme al Ar culo 9.2. del Pliego de Bases y Condiciones para Contratación de Obras Públicas, con 5 años de experiencia en obras de similar envergadura y naturaleza.

o 1 (Un) Ingeniero Jefe de Obras con incumbencia profesional en el po de obra a ejecutar, con 2 años de experiencia en obras de naturaleza y complejidades

similares según el ar culo “Antecedentes en Obras Similares” del presente pliego, siendo de aplicación lo consignado en el Ar culo 9.3. del Pliego de Bases y Condiciones para Contratación de Obras Públicas.

o 1 (Un) Asistente Técnico en Electromecánica y Electrónica, que deberá ser un ingeniero con incumbencias en electromecánica y electrónica, con 2 años de experiencia en obras de naturaleza y complejidades similares según el ar culo “Antecedentes en Obras Similares” del presente pliego, siendo de aplicación lo consignado en el Ar culo 9.3. del Pliego de Bases y Condiciones para Contratación de Obras Públicas.

o 1 (Un) Ingeniero Especialista en Ingeniería Ambiental, que deberá ser un ingeniero con incumbencias en la materia, con 2 años de experiencia en obras de naturaleza y complejidades similares, el que será responsable de los aspectos ambientales, en par cular de la confección del Plan de Ges ón Ambiental, de su aplicación y de su control.

o 1 (Un) Ingeniero en Seguridad e Higiene con 2 años de experiencia en obras de naturaleza y complejidad similares, quien será responsable de la confección del Plan de Seguridad e Higiene, de su aplicación y de su control.

El Oferente deberá presentar el personal antes consignado en el ANEXO “F” de su Oferta, detallando de cada uno de ellos sus antecedentes”.

capba IX INSERCIÓN PROFESIONAL 86

OPINIÓN E INTERVENCIÓN DEL CAPBA IX

Ante la advertencia que el Pliego de Condiciones Par culares enunciaba con determinación poco frecuente la nómina de profesionales actuantes desconociendo que, para diferentes tareas, existen dis ntas profesiones con incumbencias suficientes para la intervención profesional más allá de las ingenierías, el CAPBA IX remi ó nota aprobada por el Consejo Direc vo a la Empresa Obras Sanitarias, a la Municipalidad de General y a la colega requirente de la intervención colegial. En dicha nota se señalaba:

 Que la profesional presentaba antecedentes en la realización de Planes de Ges ón Ambiental, su aplicación y control, en obras de diferentes envergaduras;

 Que la Arquitecta se encontraba inscripta en el Registro de Profesionales del Organismo Provincial de Desarrollo Sostenible, Resolución Nº 195/96;

 Que con fecha 26 de agosto de 2013, por Resolución Nº 182-2013, el Organismo Provincial para el Desarrollo Sostenible (OPDS) -Autoridad de aplicación ambiental en la Provincia de Buenos Aires según Ley Nº 11723- ha otorgado la DECLARACIÓN DE IMPACTO AMBIENTAL (D.I.A.) declarando el Proyecto del Centro de Abastecimiento Tucumán (C.A.T) como AMBIENTALMENTE APTO;

 Que el Pliego de Licitación de la Obra prevé que la Contra sta elabore un PGA teniendo en cuanta las recomendaciones del OPDS;

 Que se ha recomendado que se establezcan Programas Mínimos del PGA a instrumentar por el Contra sta, verificando: Ges ón de Residuos, Control de Ruido, Control Calidad de Aire, Protección del Recurso Hídrico y Drenaje, Control de Excavaciones y Rellenos, Protección del Suelo, Protección de la Vegetación, Control de Productos Químicos, Control del Transporte, Seguridad e Higiene, Restauración del Paisaje;

 Que conforme el espíritu de las Leyes ambientales de aplicación, la Evaluación de Impacto Ambiental, sus planes de ges ón y medidas de monitoreo, tanto para su confección como su aplicación implican la actuación interdisciplinaria de profesionales con incumbencias que sa sfagan el abordaje según la complejidad específica de cada caso;

 Que, más allá del ítem referido al tema ambiental, la clara preferencia que en el Pliego de Condiciones Par culares de OSSE se hace hacia las ingenierías resulta en detrimento de la libertad de trabajo de profesionales de diferentes disciplinas con incumbencias, condicionando la contratación que los adjudicatarios de Licitaciones Públicas pudieran realizar;

En ese sen do, con la firma de su Presidente y su Secretario, el Consejo Direc vo de nuestro Colegio entendió per nente expresar y solicitar que:

A. El tulo de Arquitecto habilita a realizar la confección de Planes de Ges ón Ambiental, su aplicación y control, debiendo constatarse que dicha confección involucre la intervención de un equipo interdisciplinario conforme la complejidad de la obra a realizar;

B. Solicitar la reconsideración de OSSE MGP sobre el tema de referencia y se acepte la intervención de la arquitecta como responsable ambiental en la obra comprendida por la Licitación Pública Nº 08-2014.

C. Solicitar la conformación de una mesa de trabajo, convocando áreas municipales de Planeamiento, Obras Públicas, Recursos Turís cos, Legislación, entre otras, y Colegios Profesionales, tendiente a la revisión y modificación de las condiciones establecidas en pliegos de contratación y de condiciones par culares de OSSE SA MDP-BATÁN con el objeto de garan zar la intervención de profesionales con incumbencias sin la preferencia explícita o implícita de las Ingenierías como en la actualidad se desarrolla.

D. No ficar a OSSE y al presentante de la nota de la presente.

E. Archívese y publíquese a los efectos de poner en conocimiento de todos los colegiados”.

La nota aprobada por el CD se remi ó a la Empresa Obras Sanitarias y a la colega requirente de la intervención colegial. Con fecha 25 de Marzo de 2015, OSSE emi ó la Resolución nº 246-15, admi endo la intervención de la colega como responsable del Plan de Ges ón Ambiental para la Empresa Constructora en el Centro de Abastecimiento Tucumán. Se ha remi do copia de la ges ón ante OSSE al Sr. Intendente Municipal, con el objeto de incluir en una agenda de temas el emergente de los pliegos de licitación de la Empresa. A la fecha resta acordar la conformación de la mesa de trabajo interins tucional para la revisión de pliegos.

INCUMBENCIAS PROFESIONALES capba IX INSERCIÓN PROFESIONAL 87

Taller de trabajo urbano Balcarce

Convocado por el Delegado del CAPBA IX Balcarce, el miércoles 20 de mayo a las 18 hs. se realizó en la sede de la Delegación un Taller de Trabajo donde se deba eron temas relacionados con norma va municipal y la zonificación urbana de esa localidad.

A par r de los proyectos de Ordenanza que la Municipalidad de Balcarce, a través de su Dirección de Obras Privadas, some dos a consulta de la Delegación Balcarce del CAPBA IX, se organizaron acciones para su estudio.

En ese sen do, previa sociabilización de la documentación a analizar, el Arq. Jorge Trivigno invitó a colegas para el estudio del proyecto de modificación del Código de Edificación de ese Par do y la incorporación de nuevas temá cas relacionadas con el proyecto y ejecución de obras. Del encuentro par ciparon profesionales de la Delegación y responsables de la Dirección de Obras Privadas de la Municipalidad de Balcarce, colegas del IEU9, de la Comisión de Asuntos Norma vos y Autoridades Distritales.

Cabe señalar, que el fortalecimiento del vínculo interins tucional entre el Municipio y el CAPBA IX ha propiciado que las norma vas cuenten con una mirada que trasciende la administración y aporta perspec vas disciplinares y del ejercicio profesional.

DESAFÍOS DEL CRECIMIENTO PLANIFICADO DE BALCARCE

Resulta evidente el proceso de transformación que esta ciudad está atravesando y que la someten a escenarios futuros relacionados a la provisión de infraestructuras, la redefinición de usos y ocupación del suelo en diferentes zonas, así como la fac bilidad de la ampliación de zonas urbanas o la densificación de las existentes, entre otros aspectos urbanos a considerar y que preocupan a los matriculados de esa Delegación.

Esta ciudad, en términos de norma va urbana, cuenta con una enorme deuda por falta de un Código de Ordenamiento Urbano; habiendo a la fecha sólo determinado una ordenanza de zonificación preliminar de usos, situación compar da con la mayoría de los Par dos de la Provincia de Buenos Aires.

trabajó conjuntamente con autoridades municipales 88 capba IX FORTALECIMIENTO Y VÍNCULOS INSTITUCIONALES
Se

Sin embargo, en el año 2011 se ha realizado un Plan Estratégico denominado “Balcarce 2020: ciudad inclusiva, región integrada” que estuvo a cargo del Arquitecto Guillermo Tella. Aunque no ha sido difundido a nivel local, este Plan Estratégico ha sido registrado en una publicación sobre la cual su autor expone:

“Las ciudades atraviesan por un proceso de crecimiento acelerado que pone en crisis los marcos regulatorios vigentes. Los gobiernos locales enden a emprender una serie importante de acciones que no alcanzan la suficiente visibilidad pública. Desde esa perspec va, la formulación de un plan estratégico permite definir las acciones a emprender y ordenarlas en el mediano y en el largo plazo, donde el proceso de construcción de consensos torna a la ciudad más justa, más eficiente, más equita va y más compe va.

El plan le ofrece mayor coherencia y visibilidad a la ges ón, y define un horizonte de crecimiento consensuado a corto y mediano plazo. Asimismo, contribuye a posicionar regionalmente al municipio y a generar un espacio eficiente para la toma de decisiones. Hoy la ciudad necesita posicionarse compe vamente y para ello debe definir y acordar el rumbo de su crecimiento.

Y este po de planeamiento flexible se presenta como un instrumento potente de negociación polí ca para favorecer la orientación y promoción de inversiones públicas y privadas.

Plan Estratégico Balcarce 2020: Ciudad inclusiva, región integrada expresa este conjunto de tensiones en juego para iden ficar desa os a sortear y posibles temá cas a abordar en un municipio de tamaño medio de la provincia de Buenos Aires situado en la pampa austral. En esta lógica, se sinte zan los resultados alcanzados por el equipo técnico, el gabinete de gobierno y las diferentes organizaciones de la comunidad local que, en conjunto, han asumido un fuerte compromiso en favor de una ciudad más equita va, más diversa, más sostenible. Desde la Delegación Balcarce, con el aporte del Ins tuto de Estudios Urbanos del CAPBA IX, se con nuará trabajando en los estudios, diagnós cos y propuestas que permitan avanzar en la revisión de la norma va urbana, la creación de un código de ordenamiento urbano y la determinación de horizontes de mediano y largo plazo para el desarrollo de la ciudad y el par do, mientras que desde la comisión de asuntos norma vos se contribuirá en la revisión del Reglamento de Edificación.

DELEGACIONES. BALCARCE
89

ges ones con Nuevas con municipios de la región

Se celebró un Convenio de Colaboración entre el CAPBA IX y la Municipalidad de Villa Gesell

En un encuentro en la Sede de la Municipalidad del Par do de Villa Gesell, desarrollado el pasado 7 de Mayo, las autoridades de ambas Ins tuciones suscribieron un Convenio de Cooperación Técnica y Cien fica que permi rá iniciar acciones conjuntas en la ciudad.

A par r de las ges ones realizadas por el Delegado del CAPBA IX en Villa Gesell, Arq. Mauricio Villa e, se elaboró el documento que suscribieron el Sr. Intendente Municipal, Dr. Gustavo Barrera y la Presidente del Colegio de Arquitectos de la Provincia de Buenos Aires Distrito IX, Arq. Julia Romero. En la oportunidad se compar eron temas de mutuo interés sobre el desarrollo de la ciudad, su medio ambiente, el patrimonio local y los aportes que desde la formación profesional pueden realizar los Arquitectos.

Del encuentro por el CAPBA IX par ciparon además su Secretario, Arq. Daniel Antonio Monzón; su Tesorero, Arq. Bruno Mazzini; el Delegado de Villa Gesell, Arq. Mauricio Villa e; el Delegado de Pinamar y Vocal del Consejo Direc vo, Arq. Ramón Uranga y la Coordinadora de la Zona Centro del IEU9, Arq. Adriana B. Olivera.

Con este acuerdo la Municipalidad y el CAPBA IX adoptarán Programas de Coordinación y Cooperación para la ejecución conjunta de estudios y/o proyectos de inves gación para la formación, capacitación y desarrollo del ejercicio profesional, intercambio de información cien fica y técnica y toda otra ac vidad que resulte de mutuo interés. Por ello, en la medida de sus posibilidades y atribuciones legales, presupuestarias y administra vas, ambas Ins tuciones se comprometen a:

I) Actuar en el asesoramiento y consultoría, de las partes, en áreas de problemas de su competencia;

II) Contribuir al entrenamiento, capacitación y perfeccionamiento de los Profesionales de ambas ins tuciones;

III) Establecer los canales y métodos que faciliten el fluido intercambio de información en relación a los temas de incumbencias de las partes;

IV) Copar cipar en acciones que contribuyan a la promoción de los temas de interés para las partes;

V) Ges onar en forma conjunta convocatorias a concursos de Arquitectura y Urbanismo, en las modalidades que cada caso par cular requiera;

VI) Auspiciar aquellas acciones que signifiquen apoyo al desarrollo de la comunidad, en temas de interés para ambas partes.

La conducción actual del Colegio de Arquitectos Distrito IX promueve la par cipación y colaboración permanente en acciones que acercan los saberes profesionales para la solución de los problemas locales en toda la región. En esa labor la tarea de sus Delegados merece el mayor de los reconocimientos, así como la colaboración que brinda los matriculados de la Delegación, para apoyar su tarea, acercar opiniones y fortalecer su ges ón.

Nuevas
91 DELEGACIONES. VILLA GESELL capba IX FORTALECIMIENTO Y VÍNCULOS INSTITUCIONALES

Reinauguración de la sede de la Delegación del CAPBA IX en Necochea del Puesta en valor patrimonial del inmueble

Recientemente los Colegios de Arquitectos e Ingenieros, que comparten el inmueble donde funcionan sus respec vas Delegaciones en la Ciudad de Necochea, han realizado un importante esfuerzo para la puesta en valor arquitectónico de la an gua casona propiedad de la Caja de Previsión Social.

El chalet compacto de dos plantas es lo pintoresquista con elementos Tudor, fue construido en 1936 por Juan Busse y Cía., para su propietario original, el Capitán Armando Pirone , primer prác co del Puerto. Este inmueble declarado de interés patrimonial por ordenanza municipal Nº 823/95 del Par do de Necochea, fue el protagonista de la velada.

Las tareas realizadas para la restauración de la casona, incluyeron la recuperación las instalaciones eléctricas que por su an güedad no cumplían con las normas de seguridad vigentes, trabajos de reparación en techos y terrazas, carpintería, revoques y mamposterías, además de pintura.

92

La arquitecta Julia Romero, presidente del CAPBA, Distrito IX, señaló que “nuestra idea es poder comprar la sede para que la casa sea propiedad defini va de los Colegios de Arquitectos e Ingenieros y este es un proyecto en el que trataremos de aunar esfuerzos ambos colegios para poder llevarlo adelante”.

Por su parte Francisco Nardelli, presidente del Colegio de Ingenieros Distrito I, explicó que “en su momento la casa estuvo en venta, intentamos comprarla, pero no pudimos hacerlo en esas condiciones. Ahora hemos estado hablando nuevamente con los arquitectos y también con nuestro representante en el Consejo Superior, por lo menos, vamos a hacer un intento de ofertar, porque creemos indispensable que esta casa se conserve para los profesionales de la arquitectura y la ingeniería. Es una casa muy emblemá ca y la gente rápidamente asocia estas dos profesiones”.

Con mo vo de la inauguración de esta obra tuvo lugar en el inmueble de Av. 59 nº 2063, un encuentro de camaradería que se celebró el lunes 18 de mayo pasado, junto con la inauguración de una muestra fotográfica. Dicha muestra tuvo por obje vo exponer una selección de imágenes tomadas durante un safari fotográfico que organizó el CAPBA IX para incen var y mo var a los colegas de la delegación ante el inicio de un curso de fotogra a para arquitectos.

Horas antes de este encuentro, en la Sede de la Delegación Necochea se llevó a cabo la sesión nº 534 del Consejo Direc vo del CAPBA IX. En la oportunidad, además de los temas de tratamiento previstos, se compar ó con

colegas de esa ciudad algunas problemá cas de Ejercicio Profesional que afectan la ac vidad de los matriculados. El tema de mayor debate se centró en la problemá ca de la aplicación de la Resolución Municipal mediante la cual se exige la cobertura del responsable de la construcción en obras de diferente escala que se presentan ante el municipio. Como conclusión, entre las acciones acordadas, se decidió instar al municipio a recepcionar la documentación técnica que presente sólo la tarea de proyecto y darle tratamiento, mientras que en relación al responsable de la construcción se decidió con nuar el diálogo con las autoridades municipales a efectos de clarificar la aplicación de la norma va.

DELEGACIONES. NECOCHEA
93
10 % de descuento nombrando la revista infocapba IX

II Bienal Internacional de Arte Internacional en Miramar

Tras la I Bienal realizada en 2013, Miramar sumó a su patrimonio 28 obras es lo monumento que le dieron vida al Paseo de los Murales, un novedoso espacio público en formato radial a la vera del arroyo El Durazno y que es único en su po en Argen na. Dos años después, el pasado mes de abril, tuvo lugar la II Bienal Internacional de Arte en Miramar, que congregó a ar stas argen nos y extranjeros, y al público general bajo el lema “Arte por la Paz-Encuentro con la erra”.

Entre el 17 y el 26 de abril pasado, ar stas llegados desde México, Mozambique, Bolivia, Italia y Canadá, junto con los créditos locales, realizaron durante diez días en vivo frente al público y al aire libre, en el Parque Cultural de la Bienal, seis esculturas en diversos materiales y diez murales bajo las técnicas de esgrafiado y mosaiquismo. Entre los ar stas se contaron: de Buenos Aires, Florencia Delucchi, Sol Ramos y Juan Bauk; los jujeños Carlos Miranda, Fabiana Guevara y Ariel Rafael Rioja; la neuquina Elisa Algrana ; los tucumanos Patricia Nader y Daniel Ruiz Holgado; Kike Yorg, de Chaco; la marplatense Jorgelina Galicer y, de Miramar, Wanda Malmierca.

Del exterior par ciparon de la Bienal Moisés Zambo, de Mozambique; la boliviana Rosario Molina Mitru; los mexicanos Pancho Cardena y Mar n Rojas Hernández; el escultor canadiense Alberto Cerritos, el italiano Maurizio Bovernatori y el paraguayo, Juan Pis li.

94

La ceremonia inaugural se realizó en el Ins tuto Superior de Formación Técnica N°194 (ITEC) ubicado en la Diagonal Fortunato De la Plaza esquina 17, con la presencia de las autoridades municipales. Dentro de las ac vidades programadas hubo un taller gratuito de alto relieve a cargo del ar sta catamarqueño Raúl Guzmán, des nado a interesados con o sin formación ar s ca, charlas, capacitaciones, visitas guiadas educa vas y eventos a cargo de ar stas plás cos en diversos espacios de Miramar.

María Eugenia Bove, Secretaria de Turismo, Cultura y Deportes de Miramar, destacó en los medios que la Bienal centrada en murales al aire libre “surgió gracias a la ar sta local, Marité Svast, una muralista muy conocida que par cipa en encuentros en todo el mundo; su padre -que ya murió y fue un gran constructor de la ciudadsiempre pregonó la idea de un hacer un parque en esa zona, en la entrada de la ciudad, que estaba en desuso”.

Con esta propuesta Miramar está mostrando una faceta ar s ca a la que acompaña de entorno natural, paseos a través de bicisendas y el ya tradicional veraneo familiar.

La funcionaria también dio a conocer que los negocios sobre la peatonal que cierran sus puertas en invierno y tapian las fachadas, dejando un camino desierto, por ordenanza municipal deben tapiar ahora con fenólico blanco, para que sean intervenidos por ar stas locales. Se trata de una idea dinámica -con pinturas y graffi sque busca cambiar la cara de la ciudad.

Del mismo modo, el proyecto “Murales en Refugios de Pasajeros”, lanzado en noviembre pasado impulsa a ar stas plás cos miramarenses a poner en valor los refugios de tránsito de la ciudad y los ubicados en la ruta Interbalnearia N° 11 que une Miramar con Mar del Plata.

DELEGACIONES. MIRAMAR
95

El Colegio de Arquitectos adhirió a la convocatoria

Ante la convocatoria de movilización ciudadana, prevista para el día miércoles 3 de junio, bajo el lema “Ni una menos” el Colegio de Arquitectos de la Provincia de Buenos Aires Distrito IX expresó su adhesión al espíritu y fundamentos de dicha convocatoria con un comunicado que a con nuación se transcribe.

Dado el evidente incremento de los hechos de violencia de género que se registran en nuestro país, los que incluso pueden llegar al femicidio, nuestra Ins tución considera per nente promover la reflexión y el debate social sobre los valores y conflictos que dan origen a diferentes formas de agresión. En ese sen do, destacamos la necesidad de poner en valor el aporte que, desde diferentes perspec vas, hacen hombres y mujeres en la construcción colec va de una sociedad más justa, equita va e inclusiva, la que no debería albergar, ni aceptar indiferentemente, tales actos de barbarie.

Asimismo, vemos que mucho ha evolucionado la legislación nacional e internacional en materia de protección de los derechos humanos, situación que puede verificarse en leyes, tratados y acuerdos, e incluso las polí cas de género son hoy un aspecto que demuestra el progreso y la inserción de las mujeres en diferentes ámbitos. Sin embargo, nuestra sociedad es tes go de frecuentes hechos de violencia que muestran los ves gios de una cultura que estereo pa y relega el rol de la mujer, resguarda la concepción de que el hombre aún man ene una condición de privilegio sobre ella y consiente diferentes formas de some miento y subordinación.

Por ello, expresamos que:

o Adherimos a la marcha “Ni una menos”, cuyo epicentro será la Plaza del Congreso de la ciudad Autónoma de Buenos Aires, así como los encuentros que se realicen en el resto del país;

o Repudiamos todo acto de violencia de género, en sus diferentes formas;

o Instamos a instrumentar mayores acciones que des erren los prejuicios culturales que dan origen a la violencia de género, a través de la educación, la cultura y la igualdad de oportunidades;

o Expresamos la convicción que deben ampliarse los recursos públicos des nados a garan zar el cumplimiento de la legislación vigente en la materia;

o Acompañamos la labor que diferentes organizaciones del Estado, así como no gubernamentales, realizan co dianamente para lograr la equiparación de oportunidades de género, así como trato igualitario dentro de la sociedad.

Finalmente, destacamos el rol protagónico que las mujeres han desarrollado en nuestra sociedad actual, la valen a y coraje para enfrentar situaciones que otrora estuvieran des nadas a los varones y ello, por sobre todos los aspectos, sin resignar la noble condición de compañeras de ruta, de proyectos, de trabajo y de desa os que han sabido ocupar en las úl mas décadas

Colegio de Arquitectos Distrito IX

96 capba IX FORTALECIMIENTO Y VÍNCULOS INSTITUCIONALES

Turn static files into dynamic content formats.

Create a flipbook
Issuu converts static files into: digital portfolios, online yearbooks, online catalogs, digital photo albums and more. Sign up and create your flipbook.