InfoCAPBA IX

Page 1

Publicación Institucional Distribución Gratuita Edición 1700 ejemplares Año 7 | Nº 24 | Octubre 2018

CRONOGRAMA

CIERRE DE CONSULTAS 26 de octubre de 2018

CIERRE INSCRIPCIÓN PARTICIPANTES 26 de octubre de 2018

APERTURA DE LA RECEPCION DE TRABAJOS 29 de octubre de 2018

LIMITE PARA LA RECEPCIÓN DE TRABAJOS 09 de noviembre de 2018

FALLO DEL JURADO

PREMIO CAPBA

OBRA EJECUTADA / 2018

CATEGORÍAS

CategoríaA/Arquitecturaconstruida

1.ViviendaIndividualadosadaaejesmedianerosparcialototal.

2.ViviendaIndividualaislada.

3.ViviendaMultifamiliar (PByhastatresniveles).

4.ViviendaMultifamiliar (másde4niveles).

5. Edificios no residenciales. Edificios administrativos, EquipamientosComerciales,Arquitecturaefímera,etc.

6. Intervenciones en Obras de Valor Patrimonial. Trabajos de rehabilitación o reforma, en los que se valorará el respeto y conservación de los valores arquitectónicos e históricos del edificioreformado.

7. Viviendas PRO.CRE.AR. Cualquiera de las operatorias planteadasporelProgramaparaampliaciónuobranueva. *En todas las subcategorías se admitirán ampliaciones y/o remodelaciones.

CategoríaB/ObraconstruidapromovidaporelEstado

1. Vivienda pública. Conjunto financiado por el estado, obras de reconstrucción de barrios, intervención en conjuntos preexistentes,etc.

2. Edificios no residenciales. Edificios públicos administrativos,escuelas,equipamientoensalud,etc.

3. Obras en el espacio público y/o de infraestructura. Plazas, vialidades, mobiliario urbano, señalética pública, etc. CategoríaC/Propuestaurbanísticaformalizada

Se considerarán las subcategorías que determine el Jurado en función de los trabajos presentados. A modo indicativo, se indican las siguientes temáticas: Planes territoriales, Planes urbanos,Proyectosurbanosodeintervenciónsobreunsector urbano,PlanesMaestrosdeurbanizacionescerradas,Códigos UrbanosyNormativaurbanística.

PREMIOS

PrimerySegundoPremiodetodaslascategorías

Estatuilla, medalla y diploma para el/los arquitecto/s autor/es.

Menciones

Diplomaparael/losarquitecto/sautor/esdelaobra.

Consulta de Bases: www.capbacs.com/premio-capba

En los casos de Primer Premio de la Categorías A, se entregará una plaquetaparacolocarenlaobra,coneltexto“PREMIOCAPBA2018”, laCategoríadeparticipaciónyelnombredelosautores.

Se otorgará un diploma para las autoridades del organismo estatal bajo cuya responsabilidad se ejecutaron los trabajos de las Categorías B y C. Si en los equipos premiados hubiese integrantes no matriculadosy/odeotrasprofesiones,selesentregarándiplomas.

concursos

19 de noviembre de 2018
ENTREGA DE PREMIOS 27 de noviembre de 2018

Experiencias del quehacer profesional, Producción disciplinar y el CAPBA IX como articulador de espacios interinstitucionales

Nos encontramos cerrando el tercer cuatrimestre del año y en esta nueva edición de la Revista Info CAPBA IX abordamos diversidad de temáticas que reflejan el complejo entramado de ámbitos y asuntos en los que tanto nuestros colegas como la propia institución trabajan cotidianamente.

En ese sentido, en la sección Ejercicio Profesional, hemos incorporado un nuevo apartado que nos permita compartir con colegas algunas experiencias profesionales al frente de tareas menos frecuentes o poco tradicionales del ejercicio. Esta propuesta se suma a la habitual publicación de obras en el distrito, lo que permite expresar con mayor precisión las múltiples facetas de nuestra disciplina.

En esta edición encontraremos noticias sobre proyectos de colegas que han merecido reconocimientos en concursos, encuentros disciplinares o distinciones personales por su trayectoria. Nos enorgullece permanentemente la producción de nuestros colegas, por ello, nos alegra poder ser agentes multiplicadores de tales méritos y reconocimientos.

El CAPBA ha convocado a un encuentro para compartir experiencias relevantes de articulación entre Colegios provinciales de arquitectos y municipios. El Distrito IX estuvo presente y quedó ratificado que el rol del CAPBA en el contexto actual es sumamente relevante posicionándonos como un referente regional en la materia. Sin duda, para ello, es necesario profundizar las acciones tendientes a diseñar los instrumentos de gestión que permitan un rol más activo acompañando los procesos a nivel local desde cada Distrito del CAPBA. El escenario socio productivo de la región nos presenta serias preocupaciones, no sólo por la merma en la actividad profesional advertida en los registros de obras

presentadas en las áreas técnicas, sino, además, por la inestabilidad económica que ofrece una percepción negativa para la industria de la construcción. Ante ello, durante el año se han intensificado las propuestas de actualización profesional, se reeditó el curso de iniciación a la práctica profesional y se articuló con otras instituciones para optimizar recursos y esfuerzos en esta misión. Otra estrategia en curso, es la segunda edición de la Muestra “Arquitecturas del Sudeste Bonaerense”, un espacio de visibilización de la producción disciplinar de nuestros colegas que se expone abiertamente a toda la comunidad en toda la región. Sesenta trabajos de obras realizadas, donde trabajaron noventa arquitectos.

Finalmente, pero no menos importante, es la permanente cooperación del CAPBA IX en ámbitos de participación ciudadana. Por ello, compartiremos avances en el 1º Encuentro Internacional Ciudades, Territorio y Patrimonio Cultural, con las conclusiones de todos los ejes de trabajo, y en la Red de Monitoreo Ciudadano próximo a concluir su segundo informe. Como así también el acompañamiento en el Foro de la Construcción y en el Foro de Colegios y Consejos Profesionales.

Desde el CAPBA IX nos encontramos trabajando cotidianamente en atender las demandas de nuestros colegas, así como en promover acciones que repercutan positivamente ante las dificultades de nuestro quehacer profesional. Encontramos que, además de requerir la colaboración permanente de nuestros matriculados, debemos afianzar vínculos con instituciones afines tanto del ámbito público como del privado. Estos son los lineamientos en los que continuaremos depositando esfuerzos.

EDITORIAL
capba IX 01
“Creo que los no que vas recibiendo te hacen más perseverante. Podría haber tirado la toalla, pero no lo hice porque sabía que había mucho por desenterrar, por descubrir. Interpreté cada no como un sigue adelante, un desafío” Arq. Zaha Hadid [1950-2016]

Publicación Institucional del Colegio de Arquitectos de la Provincia de Buenos Aires

Distrito IX

Distribución Trimestral Gratuita

Edición 1.700 ejemplares

Año 7 | Nº 24 | Octubre de 2018. ISSN 2346-9595

capba IX

Los artículos publicados expresan los puntos de vista de sus autores y no necesariamente representan los de la Institución. Los artículos sin firma son conocidos por el Consejo Editor y su responsabilidad última recae en el Director a cargo.

Se autoriza la reproducción total o parcial de los artículos contenidos en la misma con el compromiso de citar la fuente.

Si desea auspiciar en esta publicación, comunicarse a boletin.capba9@hotmail.com ó boletin.capba9@gmail.com o bien consultar en la Sede del CAPBA DIX, Dorrego 1657 de la ciudad de Mar del Plata, tel (0223) 473-3031, 473-8282 o 474-3944, donde se le brindará todas las referencias de contacto.

INTRO

01| EDITORIAL.

02| SUMARIO. STAFF. EJERCICIO PROFESIONAL

04|VALORES REFERENCIALES. Reclamos de deuda.

05|MEDIOS DE PAGOS HABILITADOS.

GESTIÓN DEL DESARROLLO URBANO

SUSTENTABLE

30|CONCURSOS. Concurso Solidario. Concurso de Ideas Vivienda Social Sustentable, propuestas premiadas de colegas del CAPBA IX.

36|DESARROLLO URBANO. Día mundial del hábitat. 2018 Manejo de Residuos Sólidos Municipales

38|PATRIMONIO. Circuito Salamone Andante. Recorrida por la obra del Arq. Salamone en el Partido de Balcarce.

DIRECTOR

Arq. Daniel Monzón

CONSEJO EDITOR

Arq. Analía Benítez

Arq. Bruno Mazzini

Arq. Julia Romero

COLABORADORES

Arq. Alicia París

Arq. Adriana Olivera

ARTE Y DISEÑO

Arq. Valeria Burkhard

FOTOGRAFÍA

Fotog. Karina Beltrán

LOGÍSTICA, PUBLICIDAD Y MARKETING

Cepei Comunicación SRL

Impreso en Imprenta El Faro

06|DOCTRINA COLEGIAL. Monto de obra por presupuesto. Nueva Resolución Colegial para la presentación de liquidaciones por cómputo y presupuesto

08|DOCTRINA COLEGIAL. Procedimiento de ética. Nuevo proceso interno.

10|ASESORAMIENTO TÉCNICO. AIRBLOCK. Pinturerías DRAP.

14|EJERCICIO PROFESIONAL. La práctica profesional en la gestión pública. Historias en primera persona.

22|OBRAS EN EL DISTRITO IX. Casa Dos Ángulos. Mar del Plata.

26|OBRAS EN EL DISTRITO IX. Pileta y centro de entrenamiento. Mar del Plata.

40|NORMATIVA URBANA. Código de ordenamiento urbano de General Pueyrredon. Estímulos al desarrollo de la industria de la construcción, incremento de los indicadores básicos en distritos urbanos.

46|PLANIFICACIÓN URBANA. Articulacion entre Colegios Provinciales de Arquitectos y Municipios. Reflexiones en torno a experiencias relevantes.

50|PATRIMONIO. 1° ENCUENTRO INTERNACIONAL. Ciudades, Territorio y Patrimonio Cultural.

60|BIENAL INTERNACIONAL DE ARQUITECTURA ARGENTINA [BIAAR] 2018. “Situaciones”.

capba IX 02

ASUNTOS PREVISIONALES

64|ASUNTOS PREVISIONALES. PREVISIÓN SOCIAL. ¿Qué sabemos sobre el concepto y su sistema?

SOCIAL Y GREMIAL

66|NUEVOS MATRICULADOS. Ceremonia de entrega de credenciales. El CAPBA IX recibió nuevos colegas matriculados en el distrito.

68|DEPORTES. Olimpiadas Interprofesionales. Profesionales de la Provincia de Buenos Aires compitieron en diversas disciplinas.

CAPACITACIÓN Y ACTUALIZACIÓN PROFESIONAL

70|INICIACIÓN PROFESIONAL. CURSO DE INICIO AL EJERCICIO PROFESIONAL. Se desarrolló la edición 2018 del tradicional curso distrital Reservadas y Alcances del Título de Arquitecto.

Publicación Declarada de Interés por :

72|ACTUALIZACIÓN. El desafío de la actualización profesional. La realización de charlas técnicas como articulación entre los matriculados y las empresas proveedoras de la industria de la construcción.

PROGRAMA COMUNICACIONAL

74|DISTINCIONES. María Haydeé Pérez Maraviglia recibió reconocimiento por su trayectoria. La Revista Architector entregó premio a 12 mujeres, arquitectas y emprendedoras.

76|EXPOSICIONES. Arquitecturas del Sudeste Bonaerense II. Se desarrolla en todo el territorio distrital una nueva edición de la muestra de arquitectos del Distrito IX.

80|CIUDADES EN EL CINE. Costa Rica: Pura Vida. Las ciudades en los medios audiovisuales.

INSERCIÓN PROFESIONAL

86|ESTADÍSTICAS. Actividad profesional en el distrito en el 1° semestre del año. Monitoreo de la presentación de legajos y tareas profesionales.

FORTALECIMIENTO Y VÍNCULOS INTERINSTITUCIONALES

90 |FAUD-UNMDP. Arquitectos en la región del sudeste bonaerense. Incidencia de los graduados de la Facultad de Arquitectura de la Universidad Nacional de Mar del Plata.

94 |MONITOREO CIUDADANO. 2° Informe de Monitoreo Ciudadano. Se realizó una reunión con profesionales y entidades que colaboraron en la edición de un nuevo informe.

GUÍA DE PROVEESORES

96 | Auspiciantes Info CAPBA IX.

SUMARIO
capba IX 03

VALORES REFERENCIALES MÍNIMOS

Valores Referenciales vigentes desde el 1° de octubre de 2018

Valor Referencial

(vigente a partir del 01/10/18)

(unidad arancelaria):

$ 17.000,00

CEP Mínimo:

$ 637,50

F.C.: 850

Honorario Mínimo:

$ 4.250,00

Timbrado: 12.5 ‰

Art. 29 (Caja)

10% de Proyecto y Dirección

CMAO: vigente a partir del 01/10/18

$ 32.400,00

Podés retirar las tablas en versión papel en la sede del CAPBA IX y en las delegaciones. Para consultar la versión digital: http://www.capba9.org.ar/AreaTecnica.html

A partir del 1º de octubre de 2018 regirán nuevos valores referenciales para la determinación de honorarios profesionales conforme lo resuelto por el Consejo Superior en su Resolución 55/18. También se establece nuevo valor de CEP mínima y Factor de Corrección [F.C.].

Asimismo, conforme lo resuelto por la Asamblea Extraordinaria de Representantes de la CAAITBA en la sesión de fecha 06 de junio de 2018, los valores de la CMAO se modifican bajo la Resolución CAAITBA Nº 771-18.

Como siempre toda la información actualizada para la determinación de los Honorarios Profesionales se puede consultar en el sitio web del Distrito IX, www.capba9.org.ar solapa Área Técnica. También se encuentran a disposición en Sede y delegaciones, en formato papel, las nuevas tablas desarrolladas vigentes, las que tienen un formato más completo y con referencia a las Resoluciones que determinan los Valores Referenciales y CEP.

Desde el CAPBA IX se recomienda a todos los colegas utilizar el sistema CAPBA en línea, no sólo para la confección de previsados de tareas profesionales encomendadas, sino además para la estimación previa de Honorarios Profesionales. Esto es posible simulando un previsado y guardándolo temporalmente hasta la confirmación de la encomienda profesional. Esto facilitará la tarea y agilizará los tiempos de visado.

Reclamos de Deudas de CEP y Matrícula

Estimados colegas, les informamos que según lo instruido por el Consejo Superior del CAPBA por Resolución 85/14, se está notificando las deudas en concepto de CEP y Matrícula que constan en los registros del sistema informático.

Asimismo, les comunicamos que desde el Sistema de Autogestión CAPBA en línea se puede acceder a la información sobre la deuda registrada, consultar su concepto y verificar su

correspondencia. El acceso al sistema de autogestión debe ser habilitado por el CAPBA para lo cual debe acercarse al Distrito de pertenecía a efectos de solicitar la habilitación de su usuario personalizado.

Los esperamos en Sede Distrital y/o Delegaciones del CAPBA IX para regularizar la deuda que le fuera informada.

Tesorería CAPBA IX

capba IX 04 EJERCICIO PROFESIONAL

Medios de pago habilitados

Estimados Colegas, les informamos que con motivo de propender a la total de los ingresos desde el 15-10-2012 no se acepta el pago de la CEP en efectivo en oficinas de la Sede Distrital ni en Delegaciones del CAPBA DIX. Asímismo les detallamos los sistemas y medios de pagos por los cuales se podrán realizar los aportes correspondientes, cuyos tickets deberán ser adjuntados a la documentación técnica al momento del visado

DEPÓSITO BANCARIO

BANCO PROVINCIA DE BUENOS AIRES

Mediante depósito en cuenta corriente Nº 11575/1 Suc. 6100 en cualquier sucursal del Banco. Consulte sucursales en https://www.bancoprovincia.com.ar

BANCO CREDICOOP

Mediante depósito en cuenta corriente Nº 3067-1 Filial 089

Consulte sucursales en http://www.bancocredicoop.coop

BANCO GALICIA

Mediante depósito en cuenta corriente Nº 00002903790833

Suc. 083

TRANSFERENCIA BANCARIA

CUIT CAPBA DIX 30-68994042-7

BANCO PCIA DE BS AS. CBU 0140415301610001157512

BANCO CREDICOOP. CBU 1910089655008900306714

BANCO GALICIA. CBU 0070083220000029037937

CHEQUES

CHEQUE PERSONAL. A la orden de Colegio de Arquitectos de la Provincia de Buenos Aires.

CHEQUE DE TERCEROS. A la orden del profesional y endosado.

OTROS MEDIOS DE PAGO

RIPSA PAGOS Únicamente con tarjeta personalizada que deberá retirar en sede distrital o delegaciones. Consulte centros de pago en http://www.ripsa.com.ar. Para el pago deberá indicar al cajero el concepto por el cual se realiza el depósito (01. Matrícula, 02. CEP, 03. Cursos, 04. Compras Comunitarias, 05. SUM). Es importante recordar que la empresa RIPSA no cobra boletas de aportes previsionales de la CAAITBA.

TARJETAS DE CRÉDITO (en Sede Distrital y Delegaciones) Visa o Mastercard.

TARJETAS DE DÉBITO (en Sede Distrital y Delegaciones) Visa Electrón o Mastercard.

PROVINCIA NET Se encuentra vigente como nuevo medio de pago la tarjeta personalizada de provincia Net, la cual debe ser retirada en Sede Distrital y/o Delegaciones del CAPBA IX. La modalidad de operación es mediante código de barras en el plástico a nombre del matriculado que contiene los datos de éste, quien deberá indicar al operador de caja el importe y el concepto a pagar. Luego el ticket original emitido debe ser anexado a la documentación a presentar o comunicarlo al área de matrícula o de tesorería según corresponda por el tipo de trámite. Importante: este medio de pago no es para utilizarse en sucursales del Banco Provincia, debe presentarse en agencias de pago BAPRO o PROVINCIA NET.

MEDIOS DE PAGO
05

Con el objeto de unificar criterios para la determinación de monto de obra en liquidaciones presentadas por “Cómputo y Presupuesto” el Consejo Superior del CAPBA ha sansionado una nueva resolución que establece nuevas modalidades. Compartimos el texto de la Resolución N° 64-18 que ya se encuentra vigente.

06
MONTO DE OBRA POR PRESUPUESTO Nueva Resolución Colegial para la presentación de liquidaciones por cómputo y presupuesto

RESOLUCION N° 64-18

LA PLATA, 8 de agosto de 2018

VISTO los planteos efectuados por los “Visadores CAPBA” sobre las liquidaciones presentadas por cómputo y presupuesto de obra, y

CONSIDERANDO que al momento del visado suelen suscitarse distintas interpretaciones sobre los montos resultantes de los presupuestos para realizar las pre-liquidaciones de Tasa de Visado (CEP) y aportes ante la CAAITBA.

Que en muchos casos el mayor de los inconvenientes se da, en la interpretación sobre los valores de tareas presupuestadas en obras “interiores” sin superficie cubierta o semicubierta determinada.

Que establecer una única solución para dar respuesta a la multiplicidad de situaciones que se presentan ante el visado resulta de materia muy difícil.

Que no obstante este CAPBA debe dar las herramientas para poder establecer lo más claro y ecuánime posible los montos finales resultantes para pre-liquidar Tasas de Visado (CEP) y aportes ante la CAAITBA.

Que mediante la presente se trata de establecer un marco reglamentario y de referencia, tratando de adecuarla a las herramientas disponibles bajo el sistema CAPBA en línea.

Por todas las razones anteriormente detalladas, este CONSEJO SUPERIOR DE ARQUITECTOS DE LA PROVINCIA DE BUENOS AIRES, en uso de su competencia reglada, y en sesión del día de la fecha

RESUELVE

Art. 1. Las presentaciones de tareas de obra sometidas a Visado por la modalidad de cómputo y presupuesto deberán ser acordes a la seriedad profesional que dicha presentación requiere, los valores expresados en los presupuestos tendrán el mayor rigor científico consignándose fuentes de información precisa, confiables y verificables, debiendo tratarse de medios especializados de suficiente credibilidad y trascendencia.

Art. 2. Cuando se realizan tareas que estén consignadas en las tablas de “valores referenciales para realizar anticipos de aportes y CEP” (Res. CAPBA 101/09, y art. 26 inc. b, Ley 12.490), el costo de obra establecido por el cómputo que se presenta a visado, no podrá ser menor al que daría por la “tabla” aplicado a la superficie involucrada.

Art. 3. Para las tareas que no están consignadas como superficie en las “Tablas de Valores Referenciales” precitada, se procederá de la siguiente manera:

o Se determinará primeramente el monto total, por superficie y por tarea conforme a la “Tabla de Valores Referenciales” vigente al momento del visado.

o Sobre ese total se determinará el porcentaje a liquidar bajo esta modalidad, determinado el mismo, con el acompañamiento respaldatorio de una declaración jurada debidamente firmada por el profesional actuante, para el caso de obra nueva o de un acta de estado de obra, refrendada en idéntica manera, para los casos en donde se trate de obras en ejecución.

o Una vez determinado el porcentual de actuación, se completará el campo correspondiente en el sistema CAPBA en línea calculándose a continuación los valores en forma habitual.

Art. 4. Se deberá tener especial atención que en la documentación presentada a visado y adjuntada en el expediente archivo de este CAPBA, además de lo habitual, no deberán faltar debidamente firmada por el profesional, los siguientes documentos:

o Cómputo y presupuesto de las tareas.

o De corresponder conforme al Art. 3°, el acta de estado de obra tomada como declaración jurada del profesional.

Art. 5. Deróguese el art. 9° de la Resolución 70/02.

Art. 6. Publíquese en el Boletín Oficial, en las páginas web del Consejo Superior y de los Colegios de Distrito. Cumplido, archívese.

DOCTRINA COLEGIAL
Arq. María J. BOTTA Secretaria
07
Arq. Adela M. MARTINEZ Presidenta

PROCEDIMIENTO DE ÉTICA

Nuevo proceso interno

El Consejo Superior del CAPBA ha dispuesto mediante Resolución 63/18 la nulidad de la Resolución 78/17 con el objeto de asegurar la posibilidad de diligenciar algunas instancias del proceso interno de tratamiento de faltas de ética en el ámbito de los distritos. Además de ello, ha determinado la necesidad de revisar el código vigente que cuenta con 30 años desde su sanción.

RESOLUCION N° 63/18

LA PLATA, 8 de agosto de 2018.

VISTO lo dispuesto en la Resolución CAPBA 78/17; y CONSIDERANDO que, tras un nuevo y pormenorizado análisis de la misma, se ha advertido que contiene errores insalvables de derecho, los que pueden comprometer la responsabilidad colegial, atentan contra la estabilidad de las sentencias pronunciadas por el Tribunal de Disciplina, e infringen los derechos constitucionales de los matriculados;

Que, ejemplificativamente, y en aras a demostrar lo antedicho, puede citarse que en el Anexo II que por ella se aprueba, bajo el título “VERIFICACIÓN POR PARTE DEL DISTRITO Y TRATAMIENTO POR LA COMISIÓN DE ÉTICA”, se ha dispuesto en la resolución citada que, si un matriculado no se presentase a retirar la denuncia en el plazo de 72 hs., y no la contestare dentro de los diez días posteriores, será declarado rebelde, cuando:

a) por aplicación del art. 10 del Código de Ética, para brindar explicaciones y ofrecer prueba, se estatuye un plazo único de diez (10) días, no dos plazos diferentes y que, además, se computan distinto, ya que uno es en días y otro en horas (art. 68 Dcto. Ley 7647/70 y art. 6 del C.Civ. y Com.); b) claramente, los arts. 10 y 17 del Código de Ética aluden a una facultad del denunciado (v.gr “…pedido de explicaciones…” “…que considere pertinentes…”, “…pudiendo…acompañar elementos”), porque de lo contrario, se lo obligaría a declarar, y podría hacerlo contra sí mismo, violándose sus garantías constitucionales. Lo cual es cuestión bien distinta a la oportunidad que se le brinda de ejercer su defensa y ofrecer prueba, etapa procedimental que solo tiene lugar ante el Tribunal de Disciplina, nunca ante un órgano distrital (arts. 20 y 21, Código de Ética); c) por lo demás, se establece en la Res. 78/17 que, si el denunciado no cumple con lo requerido en jurisdicción distrital (a lo cual, además, se lo califica inexplicablemente de “descargo”, cuando surge de la sistemática del Código de Ética que, para que haya tal descargo, primero deben formulársele cargos -es decir, imputarlo, detallándole precisa y exactamente de qué se le acusa, y en qué consiste la prueba en su contra. Lo cual, por imperio del Código vigente, es competencia exclusiva del Tribunal de Disciplina-) será declarado rebelde en sede distrital, cuando, en primer lugar, ni la Ley 10.405, ni el Código de Ética, facultan a ello, sino que, por el contrario, este último dispone que únicamente el Tribunal de Disciplina es competente para declarar la rebeldía del imputado, y que, para ello, este debe revestir esta condición –es decir, ser imputado por el Tribunal-, lo cual es distinto a ser meramente denunciado (art. 26 del Código de Ética);

capba IX 08 EJERCICIO PROFESIONAL

Que por lo demás, se alude a una verificación y tratamiento” de todo lo antedicho por parte de una “comisión de ética”, cuando tanto la Ley 10.405 (art. 20) como el Código de Ética (arts. 11, 12 y cddtes.), disponen que esa competencia corresponde a los Consejos Directivos de los Colegios de Distrito. Y es principio recibido en derecho administrativo, que un órgano no puede delegar ni renunciar a la competencia que la ley le ha impuesto, bajo sanción de nulidad absoluta (arts. 3 y 103 del Decreto ley 7647/70);

Que, además, se prevé en el punto 2.5 de ese Anexo II, un traslado al denunciante en jurisdicción distrital, para que amplíe prueba. Traslado que no está previsto en el Código de Ética vigente, y, además, no corresponde, dado que –por su conducto- el denunciante no es parte en las actuaciones, de donde no han de conferírsele otros traslados que los que él expresamente dispone (art. 8 del Código de Ética);

Que lo antedicho no agota los desaciertos plasmados en la Res. CAPBA 78/17, que podrían resumirse afirmando que en ella se ha dispuesto contra normas de superior jerarquía normativa (entre ellas, la Ley 10.405 y el Código de Ética aprobado por la Asamblea), y desconociendo, además, expresas garantías constitucionales;

Que nada de lo antedicho obsta para sostener que el Colegio debe actualizar sus instrumentos normativos. Tal como ocurre con el Código de Ética profesional, que ha quedado visiblemente obsoleto a aproximadamente treinta (30) años de su sanción, frente a nuevas manifestaciones del ejercicio profesional. Lo cual viene siendo advertido por este Consejo Superior desde hace más de una década, como lo evidencian su Res. 139/08 –que sancionaba un cuerpo normativo que lo derogaba-, y también su Res. 14/14 -en la oportunidad de tratar una reforma integral a la Ley 10.405 que incluía numerosas cuestiones con ello relacionadas-. Debiéndose puntualizar que, en semejante lapso, se han producido nada menos que extensas y sustanciales reformas a los textos constitucionales provincial y nacional, se ha sancionado un nuevo Código Civil y Comercial, y se ha creado y puesto en funcionamiento el fuero contencioso administrativo provincial, entre otros cambios monumentales; Que se ha expedido favorablemente el asesor legal del Consejo Superior; Que, en su virtud, la Mesa Ejecutiva, en uso de su competencia reglada por el art. 32 -incisos a), f) y g)- del Reglamento de Funcionamiento del Consejo Superior, somete a consideración del cuerpo el presente proyecto de resolución. El que, en virtud de la disposición contenida en el art. 18 inciso a) del mismo reglamento, y no siendo la cuestión de competencia de Comisión alguna en virtud de la importancia, trascendencia y urgencia de la cuestión tratada y su evidente naturaleza institucional, debe ser considerado de su autoría, suficientemente fundamentado en los vistos y considerandos de la presente, y aprobado o rechazado por mayoría simple;

Por ello, el CONSEJO SUPERIOR del COLEGIO DE ARQUITECTOS DE LA PROVINCIA DE BUENOS AIRES, en sesión del día de la fecha

RESUELVE

Art. 1°: Declarar la nulidad absoluta e insanable de la Res. CAPBA 78/17.

Art. 2°: Facultar a la Mesa Ejecutiva para someter a aprobación del Consejo Superior el proyecto de un nuevo Código de Ética. Quedando los Colegios de Distrito habilitados para someter a la misma, concretos y completos proyectos, para su evaluación.

Art. 3°: Comuníquese a los Distritos. Cumplido ARCHIVESE.

DOCTRINA COLEGIAL
Arq. María J. BOTTA Secretaria Arq. Adela M. MARTINEZ Presidenta
capba IX 09 EJERCICIO PROFESIONAL

HCCA Hormigón Celular Curado en Autoclave

Los ladrillos de HCCA Airblock reemplazan la mampostería tradicional mejorando la performance y calidad de los muros y costos totales de obra

Los ladrillos de HCCA (Hormigón Celular Curado en Autoclave) Airblock son fabricados con materias primas de origen mineral (arena, cemento, cal, yeso, un agente expansor y agua), con una huella ecológica muy baja.

El HCCA en Argentina tiene más de 17 años, Airblock es hoy la fábrica más moderna de Sudamérica y una de las mayores en la región por su capacidad productiva, la cual asciende a 150.000 m3 anuales, triplicando así la oferta de HCCA en el país.

VENTAJAS DEL HCCA:

o MENOR DENSIDAD

o MAYOR ESTABILIDAD DIMENSIONAL

o MEJOR RESISTENCIA A LA COMPRESIÓN

o TIEMPO DE CURADO MUCHO MENOR

o MEJOR AISLACIÓN TÉRMICA

capba IX 10 EJERCICIO PROFESIONAL

MÁS

LIVIANO QUE EL AGUA Y

NO REQUIERE REVOQUE GRUESO

Densidad (relación masa-volumen) de distintos sistemas constructivos:

MÁS M2 ÚTILES

Análisis de m2 útiles en dos obras tipo, sin equiparar la aislación térmica de ambas alternativas:

LADRILLOS UTILIZADOS EN EL CÓMPUTO

MACIZO

Airblock es un ladrillo macizo con una gran resistencia a la rotura por compresión: 4MpA = 40,79 Kg/cm2

Utilizando un sistema de fijaciones adecuado (Lpo fisher, pasante, etc) podrán colgarse sin inconvenientes cuadros, alacenas, televisores, etc.

Capacidad auto-portante: aplica a ladrillos Airblock de espesores ≤ 15cm. Esto permite:

o Apoyar losas y techos

o Edificar hasta 2 plantas sin necesidad de una estructura independiente (excepto zona sísmica).

Su uso estructural implica un gran ahorro en:

o Hierro y hormigón (previstos para la estructura independiente)

o Tiempos y mano de obra (se estima entre un 2030% menor)

AHORROS EN TIEMPOS DE EJECUCIÓN Y LOGÍSTICA

Tiempos de obra para una vivienda tipo de 200m2: meses

Sistema tradicional (ladrillo cerámico hueco)

Los ahorros de tiempos construyendo con el sistema Airblock se deben a:

o Una mayor productividad en obra: por su trabajabilidad, bajo espesor de juntas (3mm) que disminuye los Lempos de fraguado, y permite la elevación de muros sin límites de altura (como si ocurre con los sistemas tradicionales)

o Revoques de menor espesor, mayor velocidad en su preparación y ejecución que el tradicional

o Menor cantidad de ladrillos necesarios por m2: HCCA necesita 8,33, mientras que el tradicional tijolo necesita 17 ladrillos)

o Revestimientos se pegan directamente sobre el muro.

o Disminuye notablemente el movimiento de áridos y otros materiales.

ASESORAMIENTO TÉCNICO
Exterior Interior Sec. Húmedo S. Tradicional18 cm12 cm12 cm Airblock15 cm10 cm12,5 cm
0 2
4 6 81012
Sistema HCCA Airblock
capba IX 11 EJERCICIO PROFESIONAL

OTRAS VENTAJAS:

o Mayor limpieza

o Menor espacio de almacenamiento necesario para acopio

o Mayor control de materiales en obra.

MENOS DESPERDICIOS Y MÁS SUSTENTABILIDAD

Los ladrillos HCCA Airblock son 100% reutilizables: Los cortes, resultado de la modulación de los mismos, son reutilizables.

Los desperdicios pueden triturados y reutilizados para rellenar suelos o alivianar losas (uso similar a la leca).

IGNÍFUGO = MAYOR SEGURIDAD

Los materiales constructivos se clasifican según su reacción al fuego (incidencia en el desarrollo y propagación de un incendio)

Los ladrillos de HCCA corresponden a la euroclase A1: MATERIAL INCOMBUSTIBLE sin necesidad de ensayo de (Normativa UNE-EN771-4) debido a su composición mineral y su gran resistencia térmica, y es de clase “0” en relación a la expansión de flama en la superficie

El HCCA Lene baja sensibilidad a los choques térmicos en caso de incendio:

o No se fisura

o No estalla

o No genera emanación de gases tóxicos.

PROTECCIÓN TÉRMICA

¿Porque es importante la aislación térmica de los materiales?

o Cuidar del medio ambiente: evitar la contaminación ambiental por combustión de combustibles orgánicos

o Reducir consumo de energía utilizada para refrigerar o calefaccionar ambientes.

o Mejorar el confort

o Evitar la condensación que generan patologías constructivas y son perjudiciales para la salud.

La pérdida de calor de un elemento constructivo depende del valor de su conductividad térmica, de su espesor del elemento y de la diferencia de temperatura entre el interior y el exterior.

Los muros exteriores en una vivienda representan aproximadamente un 40 % del total de la envolvente por lo que es de muy importante utilizar un sistema constructivo que ofrezca una alta protección térmica.

Coeficiente de conductividad térmica

W/mK = λ

Representa la cantidad de energía que atraviesa un m2 de material, de 1m2 de espesor cuando la diferencia de temperatura entre ambas caras es de 1K

Es una característica constante, intrínseca y propia de cada material, expresa la aptitud del material para dejar pasar mayor o menor calor a través de él.

1,00

2,00

Resistencia térmica: depende del espesor del material y de su conductividad térmica = R = e/λ

Ladrillo HCCA Airblock
Ladrillo cerámico hueco
Ladrillos macizos (común)
Hormigón
MATERIAL CONSTRUCTIVO DEL MURO: ESPESOR (METROS)
0,16
0,88
capba IX 12 EJERCICIO PROFESIONAL

Ej. De espesores necesarios de distintos materiales para lograr la misma resistencia térmica: 1,25 m2K/W - transmitancia térmica 0,8 (w/m2K)

Conocé más del producto en:

www.airblock.com.ar

Todo el asesoramiento para la adquisición y uso de este producto en tu obra, podés encontrarlo en todos los locales DRAP.

Transmitancia térmica= relación inversa de la resistencia térmica: K = 1/R ó λ/e.

Su unidad de medida es: W/ m2 K

Norma IRAM 11.605 indica valores máximos admisible para distintos climas y elementos constructivos

obras@drap.com.ar

Belgrano 3997 | Av. Constitución 5601

Juan B. Justo 2392 | Victoriano Montes 2060

MEJORAR LA PROTECCIÓN TÉRMICA Y ACÚSTICA PARA UNIDADES EXISTENTES CON PLACAS DE REVESTIMIENTO DE AIRBLOCK

Las placas de revestimiento Airblock (5x20x60cm) pueden ser usadas para revestir interior o exteriormente muros y estructuras existentes para mejorar sus prestaciones.

A continuación, compartimos un análisis sobre la mejora térmica que estas placas pueden ofrecer utilizándolas para revestir interiormente distintos tipos de muros:

* (A) Sin revestimiento no cumple la verificación de puentes térmicos.

SISTEMA CONSTRUCTIVO TRANSMITANCIA TÉRMICA (W/m2K) REVESTIDO INTERIORMENTE CON Airblock –TRANSMITANCIA TÉRMICA (w/m2K) MEJORA (A) Muro divisorio de ladrillo cerámico hueco 18x18x25* 1,64 0,97 40% Estructura portante –columnas (A)* 2,71 1,38 50% (B) Muro divisorio de ladrillo macizo común de 20cm espesor 2,19 1,14 48% Estructura portante – columnas (B) 2,58 1,33 48% (C) Muro medianero de ladrillo macizo común de 30cm espesor 1,88 1,05 44% Estructura portante – columnas (C) 1,81 1,11 39%
ASESORAMIENTO TÉCNICO capba IX 13 EJERCICIO PROFESIONAL

LA PRÁCTICA PROFESIONAL EN LA GESTIÓN PÚBLICA

Historias en primera persona

Desde el CAPBA IX impulsamos permanentemente una visión amplia del campo de actuación profesional que, en el marco del alcance de nuestro título, los arquitectos desarrollamos en diferentes ámbitos. En esta edición de Info CAPBA IX compartimos, en primera persona, las experiencias del Arq. Martín Sarasíbar al frente de la Secretaría de Planeamiento y Medio Ambiente de la Municipalidad de Necochea entre los años 2003 y 2011.

“…también yo he pensado en un modelo de ciudad de la cual deduzco las otras. Es una ciudad solo hecha de excepciones, impedimentos, contradicciones, incongruencias, contrasentidos. Si una ciudad así es cuánto hay de más improbable, disminuyendo el número de elementos fuera de la norma aumentan las posibilidades de que la ciudad verdaderamente sea…”1

Contexto y desafíos

Comienzo por el final, de hecho, no puedo hacerlo de otra manera, ya que este escrito buscará referir sintéticamente a lo vivido desde el área de planeamiento y medio ambiente durante las dos gestiones del Intendente Dr. Daniel Molina. Intentaré realizarlo desde una mirada objetiva pero crítica dado este un posicionamiento ulterior describiendo, como dice Solari, noticias de ayer.

A 15 años de haber asumido las funciones de gobierno, interpreto de una manera distinta las problemáticas que afrontamos, aquellas que imaginamos y fueron objeto de análisis allá por el año 2001; momento en el cual comenzamos a delinear nuestros proyectos e ideas.

En aquel posicionamiento, lo propuesto debía entrelazar soluciones y respuestas a problemas complejos en materia de gestión pública, de diversa escala, dimensión, y de manera inevitablemente improvisada en la constitución del equipo de trabajo2 Éramos un equipo en general joven, inexpertos algunos en la función pública, pero homogéneo en la adhesión a los principios, valores y objetivos de nuestro espacio político.

Ahora bien, ¿por qué considero que en las funciones públicas se deben interpretar problemáticas y dar soluciones? Había dos respuestas. La primera prescripta, expresada en la misma Constitución provincial, en sus alcances generales, en tanto definitoria de nuestros derechos y obligaciones como funcionarios públicos.

La segunda respuesta se fue revelando en el devenir, y se expresaba en la utilidad y efectividad misma del planeamiento como herramienta transformadora del status quo. En este sentido, la problemática se circunscribía en el seno mismo del modelo técnico adoptado y esto representaba, además, una controversia continua en el día a día. Podemos reconocer así dos dimensiones específicas que ilustran esta idea: una técnico-utilitaria, en tanto uso y aplicabilidad de esta herramienta como ordenador del destino de la comunidad; y otra política, en tanto garantes de la implementación de un modelo de gestión diferente al existente.

1 Calvino Italo, “las ciudades invisibles”, Minotauro, 1974. Cartas de Marco Polo relatando sus encuentros con Kublai Kan.

2 Volveré más adelante sobre este tema, pero considero que todo tiempo es escaso en la conformación de un equipo de trabajo; clave en toda gestión pública.

capba IX 14 EJERCICIO PROFESIONAL

En este marco, la decisión de crear un área específica que promoviera el planeamiento como política de estado no iba a ser sencilla. Fueron varios factores los que influyeron en la misma. Cumplir con la promesa electoral de elaborar un proceso de planificación estratégica dada la palpable demanda social de determinar consensos, en particular en la comunidad de Necochea-Quequén. Redirigir este proceso teniendo en cuenta que ya hubo una experiencia previa fallida producto de la controversia ideológico-política del gobierno anterior. Reposicionar Necochea, en tanto ventaja comparativa adeudada, dado lo realizado por otras experiencias regionales competitivas como Mar del Plata, Bahía Blanca o Rosario –todas ciudades Puerto-. Pero fundamentalmente, aplicar aquellas herramientas que nos garanticen implementar el modelo de gestión que imaginábamos y cumplir con aquello de lo que estamos convencidos: para decidir, debíamos conocer la realidad, establecer consensos y acordar metas y objetivos.

Antes de continuar quisiera detenerme en un punto que considero relevante. En la idea de establecer consensos en Necochea-Quequén y reposicionarla subyace un componente sintomático que sobrevuela a nuestra comunidad hace más de tres décadas.

Para los gobiernos locales bonaerenses, desde la década del 90, los cambios fueron drásticos: asumieron nuevas responsabilidades y funciones, pasaron de ser meramente burocráticos a administradores de problemáticas heredadas, sin que le fueran provistos recursos ni herramientas; haciéndose cargo de los principales efectos generados por la crisis socioeconómica. El modelo político asumido por el gobierno de turno y el creciente “corrimiento” del rol estatal dejaron signos significativos en la ciudad, como la administración conjunta de la estación marítima entre el estado y las empresas agroexportadoras, relegando los intereses comunes del medio urbano para ceñirse a los estrictamente funcionales a la actividad; y la municipalización los bienes públicos provinciales, como Obras Sanitarias, el Parque Miguel Lillo, las unidades balnearias, el Complejo Casino, entre otros.

Pero sin duda el aspecto más significativo de las consecuencias de la política conservadora fue la necesidad, por parte de los gobiernos locales, de asumir el liderazgo de la crisis social. En este sentido, en nuestra comunidad, el signo más evidente de esta problemática es la estatización del sistema de salud local. Como efecto de estos cambios, en las funciones y deberes locales, se fueron progresivamente relegando las principales incumbencias de los municipios en materia de obras, servicios públicos, infraestructura y mantenimiento de espacios públicos. En este contexto, el modelo a seguir debía focalizar al estado municipal como único gestor activo de su territorio; y si bien, como efecto de las regresiones vividas bajo el paradigma neoliberal se volvió a la idea de un estado fuerte, por el contrario, la falta de financiamiento continuó signando la sostenibilidad de los municipios.

Pero este escenario trajo como consecuencia el agravamiento de un estigma crónico en quienes habitamos en el Partido de Necochea: la dificultad de administrar y gestionar nuestro territorio.

Escenario socio urbano de Necochea-Quequén

Desde diversos puntos de vista, -geográfico, territorial, urbanístico e incluso socio-ambiental-, Necochea y Quequén son ciudades que constituyen un único sistema urbano. De hecho, para el INDEC desde el censo ‘91, ambas constituyen una misma ciudad: Necochea-Quequén. Esta encrucijada nos marca y divide hasta el día hoy.

Necochea-Quequén poseía más de 1.200 has. de espacios públicos3, la mayoría vinculados al soporte litoral costero, de extrema vulnerabilidad y escenario de constantes disputas entre las dos principales actividades económicas de nuestra región: el turismo sol y playas y el complejo agroexportador;

3 Indicador habitantes por hectárea en ciudades cabecera en relación a los espacios públicos a gestionar: Necochea-Quequén: 75 hab/ha; Tandil: 240 hab/ha; Mar del Plata: 812 hab/ha; Tres Arroyos: 1000 hab/ha; y Lobería: 1250 hab/ha.

EJERCICIO PROFESIONAL 15

− Su red de infraestructuras tenía en promedio más de 50 años de antigüedad, en particular el sistema cloacal se diseñó en la década del 60 considerando a ambas ciudades como una unidad;

− Es la única ciudad bonaerense de rango intermedio que se estructura alrededor de una estación marítima activa4, en este sentido, las consecuencias son de elevada gravedad, en particular en Quequén donde la disfuncionalidad entre usos urbanos y actividades productivas se disputan palmo a palmo hectáreas del finito territorio;

− Es la segunda ciudad del país con mayor capacidad de acopio de cereal y fertilizantes en su sistema, con 2.4 millones de toneladas. Esta oferta y la operatoria portuaria generan un movimiento de más de 200.000 camiones anuales que ingresan y egresan al sistema suscitando importantes impactos urbano ambientales;

− La estructura urbana de Necochea-Quequén es dispersa y el modelo de gestión territorial promovido alentó además la extensión indiscriminada, agravando las externalidades que este presenta. En consecuencia, posee una baja densidad poblacional, lo cual es sumamente disfuncional y costoso, agravando principalmente la realidad de los sectores mas vulnerables de nuestra comunidad. Pero, además, en tanto sistema de rango intermedio, presenta una peculiaridad -común en las ciudades costeras-: es policéntrica, diversificando así la inversión en materia de ofertas de servicios y comercios;

− Como corolario a este contexto, las áreas públicas de gestión territorial -planeamiento y medio ambiente-, habían perdido progresivamente relevancia funcional en el organigrama municipal. Indudablemente, la ausencia de reglas de juego, beneficiaba a quienes poseían más privilegios, poder o vínculos con las autoridades de turno. Termino esta breve descripción con una anécdota. En el año 2008 ya próximos a efectuar las primeras tutorías correctivas del nuevo “Código de Desarrollo Sostenible del Partido de Necochea” (CODES)5 ante las autoridades provinciales, uno de los agentes asignados para esta actividad se sinceró ante nosotros y nos dijo: “el trabajo que están haciendo es sumamente loable, tanto por hacerlo desde el mismo municipio con equipo propio sino, y principalmente, porque el desafío es descomunal. Esta ciudad (sic), perdónenme, es inviable”.

Planificar con metas sostenibles

En la Secretaría de Planeamiento y Medio Ambiente fijamos una agenda de trabajo que permitiera ser flexibilizada en el transcurso de la gestión. Establecimos superar cinco etapas: establecer una agenda de trabajo permanente; constituir un

4 En materia urbanística tradicionalmente las ciudades-puerto poseen amplias áreas de sacrificio afectadas a la logística portuaria. Las conocidas refuncionalizaciones y recuperaciones que se desarrollaron en las grandes estaciones marítimas europeas, o en nuestro caso en Rosario o Buenos Aires, de sus sectores centrales-históricos de apertura e integración al área urbana son operaciones interligadas de costos inviables para el caso local. Además, en nuestro caso, el área portuaria es exigua, de imposible deslocalización y posee una lógica territorial expansiva.

5 Instrumento de gestión territorial-ambiental del Partido de Necochea. Producto técnico síntesis del proceso de planificación que aspiraba a reemplazar la mayoría del corpus normativo existente.

equipo interdisciplinario municipal; generar la base de datos e información; desarrollar el Instrumento de gestión estratégico y determinar el modelo de política territorial del distrito a través de un sistema de instrumentos de gestión. Este recorrido metodológico exigía al menos desarrollarse durante dos períodos de gobierno. Por lo tanto, el objetivo inicial, en la primera gestión, era finalizar con la instancia estratégica; y en la segunda gestión, abordar los primeros programas y proyectos consensuados.

o Establecer la agenda de trabajo.

La agenda otorga una fuerte cooperación al desarrollo del planeamiento ya que su principal cometido es la instancia preparatoria. Ordenando de abajo hacia arriba el diagnóstico, y permitiendo así identificar perfiles de trabajo previamente caracterizados por esta. Este orden previo, sistematiza los diferentes problemas ambientales y de sostenibilidad percibidos, permitiendo también identificar actores sociales, su territorialización y las discrepancias o conflictos de intereses que allí se presenten.

La agenda de trabajo presentada en el año 2003, adecuada año a año a los vaivenes coyunturales de la administración pública municipal, se implementó de acuerdo a los objetivos previstos y en la materialización en el año 2011 del CODES, se finalizó con su producto técnico final.

o Constituir un equipo interdisciplinario municipal. En el transcurso de estos años el equipo estuvo constituido por arquitectos, geógrafos, sociólogos, especialistas en gestión ambiental, profesionales en las artes gráficas y publicidad, ingenieros en sistemas, abogados, contadores, profesionales de la salud y trabajadoras sociales. Pero, además, se contó con el inestimable aporte de los agentes administrativos municipales, eslabones centrales en el funcionamiento de todas las iniciativas y gestiones que se lograron implementar. La meta de formar este grupo desde la municipalidad era una condición operativa que nos propusimos desde un principio: en ella permitiríamos constituir un equipo de trabajo desde el estado al servicio de las demandas sociales y garantizar así la implementación posterior de los nuevos instrumentos de gestión diseñados.

Ahora bien, este equipo debía estar articulado en dos dimensiones. En el seno de planeamiento y medio ambiente, pero fundamentalmente en vinculación permanente con los restantes equipos técnicos de gobierno.

o Generar la base de datos e información.

La efectividad del proceso de planificación queda siempre supeditada a la solvencia de las bases de datos e información que se posea. Por este motivo y ante el déficit en el cual se encontraba la Municipalidad de Necochea en el año 2003, se determinó poner en marcha dos acciones concurrentes: el Censo Integral de Recursos (CIR) y el Programa Sistema Municipal de Información Territorial (SMIT).

Tanto el CIR como el SMIT son experiencias innovadoras en lo local y reconocidas a nivel provincial. Se censó el 75% de la población de la totalidad de las áreas urbanas con el aporte y trabajo integral de recursos humanos municipales. Además, se sumaron los datos territoriales del medio rural que aportaron las diferentes dependencias provinciales para completar el diseño de la base cartográfica digital (GIS).

capba IX 16 EJERCICIO PROFESIONAL

Estos insumos fueron de vital importancia para el desarrollo de todo el proceso de planificación. Su actualización permanente nos permitió visibilizar las interacciones yuxtapuestas que se ejercen sobre el territorio, desde los usos del suelo, la densidad de población, la interferencia de servicios de infraestructura, las valuaciones fiscales, el monitoreo del mercado de tierras o la identificación de las denuncias ambientales, entre otros. o Desarrollar el instrumento de gestión estratégico. Las premisas establecidas en la agenda de trabajo para la política de planificación municipal determinaban una clara voluntad de implementar un proceso participativo y consensuado para un desarrollo urbano, en las acciones que se ejercerían a futuro sobre nuestro territorio. Identificar este concepto desde la denominación del nuevo instrumento de gestión también sería sumamente importante. Desde esta idea relacionamos la voluntad de ordenar las acciones que se demandan sobre el territorio con criterios de proyección temporal. Así, en el año 2006, se implementó el Plan Urbano Ambiental (PUA).

Al PUA lo integraron 200 representantes de más de 100 entidades civiles de nuestra comunidad que determinaron por consenso los lineamientos estratégicos de desarrollo para el Distrito de Necochea. Hasta diciembre del año 2011, se habían implementado más del 50% de los 135 programas y proyectos que se idearon. De estas iniciativas se acordaron dos programas estratégicos: 1-Programa A: Intervenciones Urbanas Estratégicas orientadas a la Competitividad productiva y turística; y 2-Programa B: Intervenciones Urbanas Estratégicas orientadas a la equidad6

o Determinar el modelo de política territorial del distrito a través de un sistema de instrumentos de gestión.

El modelo de política territorial del distrito debía ser asumido a través del liderazgo del estado local a través de instrumentos de gestión actualizados y en sintonía con el contexto actual. En nuestro Distrito a su vez, estos se articularon bajo los lineamientos conceptuales que determinó la comunidad en el PUA.

Desde lo procedimental, las líneas estratégicas establecieron objetivos específicos. Estos objetivos se formularon a partir de los problemas centrales identificados por la comunidad en los talleres participativos, pero teniendo muy presente la información que llevo a dicha definición, como el reconocimiento de obstáculos y la construcción del árbol de problemas.

Posteriormente se definió el menú de programas y proyectos, de los cuales algunos ya se citaron anteriormente. Este menú se basó íntegramente en lo definido tanto en los talleres participativos de diagnóstico, como en los consecuentes de lineamientos estratégicos. Para el equipo técnico del PUA, lo trabajado por la comunidad fue el insumo central e indispensable en la definición de dicho menú.

En el devenir del año 2009 se avanzó aún más de lo formulado en el citado menú y se diseñó el Código para el Desarrollo Sostenible (CODES), integrando los objetivos territoriales que determinó el PUA, en el diseño de un instrumento de gestión único, que sistematiza sobre el territorio la visión

EJERCICIO PROFESIONAL 17
Documento nº 8 del Plan Urbano Ambiental; “Programas y proyectos”.

particularizada de las diferentes componentes que regulan y promueven el modelo de desarrollo sostenible.

Integrar en un mismo sistema de instrumentos la codificación de aquellos parámetros territoriales y ambientales, significó establecer y dejar explícitas las reglas de juego que permitirán respaldar el modelo de política territorial y planificación ambiental que se ideó para nuestro distrito.

Resultados obtenidos.

Sería tedioso para este espacio enlistar todas las acciones llevadas a cabo desde la secretaría y las cuales coordiné en su mayoría junto a mi equipo de trabajo, pero intentaré sintéticamente agruparlas y contarles como fue el camino recorrido en el marco de lo descripto anteriormente:

− Las instancias preparatorias: necesitábamos conocer la situación real de todo el distrito, y de esta manera se diseñaron dos herramientas. Tanto desde el CIR como del SMIT; recorrimos lote a lote y relevamos la mayor parte del territorio rural. Los trabajos se efectuaron en el marco de estos dos instrumentos, y nos permitieron establecer un punto de partida veraz para el inicio del proceso de planificación. Posteriormente el SMIT continuó con su aplicabilidad en la digitalización permanente de toda la información generada en los ocho años de gestión.

− Las instancias programáticas: En paralelo al desarrollo del PUA, en tanto dimensión general del proceso de planificación, se desarrollaron varios programas que se dirigieron a gestionar y focalizar problemáticas particulares:

o Plan Integral Costero (PIC): Este instrumento de gestión, el primero de carácter local en la provincia de Buenos Aires, estableció fijar criterios específicos para el soporte costero, tanto ribereño como marítimo. La necesidad de determinar pautas de manejo integrado para todas las intervenciones costeras conminaba formalizarlo a través de medidas explícitas.

o Programa Presupuesto Participativo (PP): El PP pudo llevarse a cabo en fase piloto durante los años 2009-2010 y 2011. Si bien contó con un presupuesto exiguo en su primer año, el objetivo era, en particular, implementar la práctica y promover la internalización por parte de la comunidad de este instrumento de gestión, en tanto resorte para la selección del financiamiento de obras públicas del Distrito.

o Programa Refuncionalización integral de áreas municipales (RIAM): Este instrumento de gestión permitió dirimir la adecuación de la nueva estructura organizacional ingresante en el 2003 a la oferta edilicia existente.

o Medidas de gestión territorial y política de tierras fiscales: Se implementaron una importante batería de medidas de gestión y normativas en material territorial, en particular las siguientes: el relevamiento y recuperación a título municipal de las tierras de la ex ONABE7; la gestión de inmuebles en estado

7 ONABE: Organismo nacional de bienes del estado.

de abandono; el desarrollo del proyecto Catastro multifinalitario; el diseño y desarrollo del sistema GIS del Partido de Necochea a través del SMIT; el relevamiento de la totalidad de las tierras fiscales del Distrito; la creación del Banco de Tierras fiscales; entre otros.

o Programa Hábitat y Vivienda, Vivienda social por Autoconstrucción Asistida (VISAA): Este programa asociado al desarrollo de las medidas de gestión territorial en tierras fiscales, promovía la selección por parte de la Comisión de vivienda municipal del desarrollo y financiamiento de viviendas para los sectores más vulnerables de nuestra comunidad. Asimismo, su normativa soporte creaba un fondo de financiamiento permanente y establecía dos modelos de adjudicación diferentes: uno con lote y aporte de materiales y otro solo con lote. Ambos con parcelas que poseían factibilidad y existencia de los servicios de infraestructura básicos: energía eléctrica, provisión de agua potable y sistema de red cloacal.

o Plan de Manejo del Parque Miguel Lillo (PMPML): Este trabajo determinó una redefinición conceptual de la representación que el Parque Miguel Lillo posee en nuestra comunidad. Este plan dejó en manifiesto garantizar cuatro ejes: 1-mantener el dominio público del parque; 2-promover al ámbito territorial que vincula al Parque Miguel Lillo y el litoral costero colindante como una misma unidad ambiental; 2-implementar un mantenimiento eficaz; 3-promover el cuidado y respeto por la biodiversidad; y 4-establecer los medios necesarios para su sustentabilidad económica.

o Ordenamiento del complejo agroexportador: Esta iniciativa permitió regularizar el 97% de las plantas de acopio de cereal y fertilizantes del distrito, eslabones funcionales del sistema portuario. Esta medida regulatoria permitió fundamentalmente dejar establecido reglas de juego claras y previsibles.

o Programa recuperación de espacios públicos (REP): En el marco de este programa se implementaron todas las tareas de creación y mantenimiento de espacios públicos.

o Gestión ambiental: En materia de gestión ambiental, complementarias a los programas mencionados, se implementó lo siguiente: Proyecto de las plantas de tratamiento de RSU de Juan N. Fernández y Necochea-Quequén; EIA de la planta de efluentes cloacales; evaluación y declaratoria de la EIA Termas del campo; monitoreo integral de las estaciones de servicio, tintorerías, imprentas y talleres mecánicos; relevamiento y regularización de las instalaciones de RNI, elaboración de la normativa regulatoria local; monitoreo de las industrias de 2a categoría; elaboración del digesto y protocolos administrativos ambientales; entre otras acciones y medidas específicas.

capba IX 18 EJERCICIO PROFESIONAL

o Plan de manejo del recurso hídrico: En el marco del convenio acordado con el INA, y por medio de este instrumento de gestión los objetivos centrales fueron los siguientes: 1-establecer un programa de colaboración e intercambio recíproco, destinado primordialmente a la realización conjunta y coordinada de proyectos de estudio e investigación y a la capacitación de recursos humanos en el campo del conocimiento, aprovechamiento, manejo, control y preservación de los recursos hídricos y del ambiente; y 2-elaborar un plan de manejo del recurso hídrico para optimizar, gestionar y desarrollar el sistema de redes y explotación en todas las ciudades del Distrito.

o Plan de gestión estación de piscicultura: Esta medida programática se implementó en forma continua desde el año 2003. Los objetivos fueron optimizar y potenciar las capacidades productivas de la estación principalmente en su función estratégica regional.

o Gestión patrimonial cultural y ambiental: A través de la actualización normativa e implementación, por primera vez, de la Comisión de Patrimonio Cultural y Ambiental, desde la Municipalidad de Necochea se llevaron a cabo las primeras gestiones en materia patrimonial: actualización del listado de bienes de patrimonio arquitectónico; constitución de una comisión mixta donde participaron los Colegios profesionales de Arquitectos, Ingenieros, Técnicos, Agrimensores, Abogados, y Martilleros.

− Las instancias de formulación normativas: Tanto a través del Honorable Concejo Deliberante como del propio gobierno municipal, se formuló un nuevo e importante corpus normativo para soporte de las gestiones implementadas desde la Secretaría de Planeamiento y Medio Ambiente. Alrededor de 120 Ordenanzas y

Decretos reglamentarios8 además de la totalidad de los pliegos de licitación de nuevos proyectos de concesiones en espacios públicos. También participamos en el diseño de normativas extra locales como el Decreto provincial nº 3202/06 o las Normas IRAM 42100.

− Las instancias de trabajo permanente: En complementariedad con los talleres participativos del PUA, se implementaron un importante número de espacios de articulación con la comunidad para optimizar la gestión pública: Comisiones de trabajo HCD-Departamento Ejecutivo, de Vivienda, de Patrimonio, de discapacidad, de cultura, de turismo, de obras y servicios públicos, intercolegial (Colegios de Arquitectos, Ingenieros, Agrimensores, Martilleros y Técnicos), entre otros.

− Las instancias de articulación técnicas: Universidad Nacional de Mar del Plata, Universidad Nacional del Centro, Universidad Nacional de Buenos Aires, INIDEP. Instituto Nacional de Investigación y Desarrollo Pesquero, Universidad de Bolonia. Italia, con la Prefectura naval Argentina con la Universidad Tecnológica Nacional UTN, y específicamente para la elaboración de este instrumento con la Dirección de Ordenamiento Urbano y Territorial dependiente de la Subsecretaría de Urbanismo y Vivienda del Ministerio de Infraestructura de la Provincia de Buenos Aires y el Colegio de Arquitectos de la Provincia de Buenos Aires.

Reflexión y síntesis

Me resulta difícil imaginar proyectos e ideas sin planificarlos. Y menos aún que estos proyectos e ideas no hayan sido consultados ni consensuados. Sin plan no hay objetivos generales, sin participación no hay acción al servicio de los

8 Normas regulatorias técnicas, sin considerar las más de 900 ordenanzas administrativas ordinarias.

20

intereses colectivos.

Se objeta la idea que depender de los grandes agenciamientos sociales nos restringe, pero en sociedades como la nuestra donde estos evidencian una fuerte debilidad y dependencia de los efímeros personalismos de turno, nos habla de la ausencia de un estadio anterior –en tanto evolutivo- que aún no hemos vivenciado. Insistimos en extender indefinidamente esta mirada, y el principal efecto que ha generado es que varias generaciones vienen internalizando la idea de que el “estado” es de otro y que no nos involucra. Me animo a expresar que este es el mayor inconveniente y barrera con el cual se enfrenta todo funcionario público que anhele superarse en sus responsabilidades, comprometido con el deber público.

Quien duda que en tiempos de crisis y desempleo el estado debe invertir en obras públicas, movilizar el mercado, determinar facilidades crediticias y asistir racionalmente a quienes mas perjudica este momento. Pero la realidad es que estas acciones devienen de un estado fuerte, con instituciones que funcionan y fiscalizan equitativamente; donde existen reglas de juego claras y consensuadas.

Sin duda, nos faltó tiempo para develar una síntesis efectiva, materializada en acciones concretas para permitirnos constatar si el posicionamiento adoptado, tanto técnico como político era el correcto. Mejor disposición al trabajo en equipos transversales; optimizar el tiempo de los productos técnicos a los momentos políticos; otorgarle más presupuesto y priorización a las instancias programáticas; jerarquizar la importancia de la planificación estratégica como núcleo medular de la gestión pública; revisar el diseño de las estructuras organizacionales municipales; asociar experiencias con los municipios vecinos; diseñar instrumentos de gestión de financiamiento alternativos; apuntalar la dimensión política nacional y provincial; fortalecer el gobierno local garantizando sus roles esenciales como gestores, reguladores y fiscalizadores; o promover una apertura aún mayor a los otros posicionamientos políticos en miras de convalidar las metas comunes; son algunas de las cuestiones a repensar en adelante. Después de tres décadas de democracia, hay experiencia suficiente para aspirar a superar este estadío.

Emergen un sin número de revisiones posibles a las decisiones adoptadas en los ocho años de gobierno, tanto producto de la sinergia política como de los alcances disciplinares del modelo de gestión adoptado. Pero no dudaría en apostar nuevamente por fortalecer aquel modelo de gestión que permita convocar a todos, que promueva el consenso de ideas, y que establezca determinar acuerdos programáticos sobre un soporte técnico eficiente. Termino por el principio.

Arq. Martín Sarasíbar [MP N° 15739]

Mónica. “Introducción a la Administración Publica Argentina. Nación, Provincias y Municipios”, Editorial Biblos, Buenos Aires, 2007.

Secretaría de Obras, Servicios Públicos y Planeamiento. “Plan Estratégico Necochea-Quequén”, Municipalidad de Necochea, 1998-99.

Centro de Investigaciones Ambientales (CIAM), “Habitar Necochea Quequén. Diagnóstico y propuestas para un desarrollo sustentable”. UNMDP, Mar del Plata, 1996.

Calvino Italo, “las ciudades invisibles”, Minotauro, 1974. Cartas de Marco Polo relatando sus encuentros con Kublai Kan.

IEU (Instituto de Estudios Urbanos), Colegio de Arquitectos de la Provincia de Buenos Aires, “3ras. Jornadas de Región, Territorio y Normativa. Hacia una nueva normativa urbana en la Provincia de Buenos Aires”, Documento Base, Mar del Plata, 2010.

Abraham, Tomás, “La Lechuza y el caracol”, Sudamericana, 2012. Zourabichvili, Francois, “El vocabulario de Deleuze”, Atuel, 2007. Deleuze Giles y Guattari Felix, “Mil mesetas”, Pre textos, 1988.

Secretaría de Planeamiento y Medio Ambiente, “Sistema municipal de información territorial del Partido de Necochea”, Municipalidad de Necochea, 2006.

Bibliografía:

Dadon, José (editor y director), “Ciudad, Paisaje, Turismo. Frentes Urbanos Costeros”; Sarasíbar, Martín, Cap. 5, “Retrospectiva y análisis del desarrollo urbano de Necochea-Quequén”, Ediciones GEC-FADU-UBA y Nobuko. 2011.

Cao, Horacio (Coordinador) Blutman, Gustavo; Estévez, Alejandro e Iturburu,

Secretaría de Planeamiento y Medio Ambiente, “Plan Urbano Ambiental, Instrumento de gestión estratégico”, Municipalidad de Necochea, 2008.

Secretaría de Planeamiento y Medio Ambiente, “Código de Desarrollo Sostenible, sistema de instrumentos de gestión”, Municipalidad de Necochea, 2010.

EJERCICIO PROFESIONAL
capba IX 21 EJERCICIO PROFESIONAL

FICHA TÉCNICA

CASA DOS ÁNGULOS

Ubicación

Barrio Bosque de Peralta Ramos

Mar del Plata

Proyecto y Dirección

Arq. Eugenio Fernández [MP Nº 5899]

Arq. Ana María Macchi [MP N° 5202]

Arq. Pablo Palauro [MP N° 25672]

Arq. Ireneo Niz [MP N° 25673]

Colaboradores

Eugenio Cepeda

Álvaro Duffard

Fecha de inicio de obra

2016

Fecha de finalización de obra

2017

Superficie Total 187,50 m²

Superficie Cubierta

182,00m²

Superficie Semi Cubierta

11,00m²

Superficie Exterior Consolidada 82,00m²

VIVIENDA UNIFAMILIAR

CASA DOS ÁNGULOS

Mar del Plata

La reserva forestal Bosque Peralta Ramos está caracterizada por su variedad y densidad forestal, por sus aves, por el trazado irregular con calles de tierra mejoradas y fundamentalmente por los “bosqueros”, los habitantes de este barrio histórico que eligen vivir allí y lo cuidan y se cuidan entre sí.

El terreno es favorecido por estar en un “claro” que permite la implantación de la obra sin dañar ningún ejemplar relevante, y por estar frente a una gran plaza verde orientada al norte cuyas visuales son ricas en colores, formas, luces y texturas. Los espacios de la casa tienen ese contexto siempre enmarcado, a manera de postal o como cuadro, relacionándose con los árboles y con los vecinos.

La ubicación en una manzana triangular, con un terreno de figura particular que sale a dos calles, es la clave para resolver la implantación de la obra. La expresión material y morfológica de la idea, habla del encuentro entre las dos geometrías de las calles y de la relación entre lo concluso y lo inconcluso, entre lo murario y lo mutante.

Dos grillas moduladas y giradas resuelven la totalidad del sistema estructural. El muro dibuja el “cobijo” y se abre al sol. El ladrillo y su junta modulan alturas

capba IX 22 EJERCICIO PROFESIONAL

y longitudes, y también cada una de las aberturas “casi cuadradas” que encuadran las vistas a través del muro.

El hábitat interior se plantea como un vagón que ocupa una crujía y se dilata hacia el acceso y la planta alta.

La envolvente del edificio juega con el contrapunto entre la figura del muro de ladrillos, y el hormigón a la vista, ambos materiales de producción local, con canteras y hornos muy próximos.

La elección de este encuentro matérico está vinculada no solo a la existencia del recurso y a la calidad de la mano de obra local, sino a un factor ambiental y de mantenimiento. El bosque tiene un microclima húmedo y frío en invierno, por lo que la composición de los muros en capas, y las cubiertas con correctas aislaciones son un factor de sostenimiento. La luz natural, tanto en su cantidad como calidad, y en la difusión a través de las superficies interiores resulta importante para definir el

carácter de los espacios como para reducir al mínimo el encendido artificial.

El entrelazamiento material de los muros verticales, que definen el interior, y de las líneas estructurales que arman el exterior, también resuelve el vínculo espacial, simbólico y de usos de la casa.

El acceso, el recibidor, la escalera y la llegada a la planta alta, conforman un compacto y relajado dispositivo arquitectónico que favorece el recorrido acompañado de visuales seleccionadas hacia el paisaje circundante, mientras la luz reverbera en los distintos ángulos de los muros interiores.

La optimización de la orientación en la galería en doble altura, con su terraza y parrilla, actúa de espacio mediador entre interior y exterior, permitiendo diversidad de situaciones de uso a lo largo del día.

OBRAS EN EL DISTRITO
capba IX 23 EJERCICIO PROFESIONAL
Sistema

El muro ladrillero, la grilla de hormigón, la vegetación existente y completada, y la luz natural, son los elementos de composición que definen todo el sistema proyectual.

La resolución del encuentro entre las dos geometrías dominantes fue el punto donde se ancló el proyecto.

A partir de allí el muro de ladrillos se desarrolla y pliega en distintos ángulos, generando una abertura por donde entra y sale la estructura de hormigón hacia el acceso. Dos ángulos agudos de ladrillo, tres ventanas mirándose y las vigas de hormigón saliendo del muro se transformaron en la imagen de identificación de la casa.

Las búsquedas se centraron en resolver una vivienda compacta de desarrollo simple y flexible, acompañada por dos estructuras que permitan completar espacios de uso en el futuro. La estructura del frente actúa como gran porch que subraya y cubre la entrada y los autos, otorgando buena sombra en verano cuando las plantas cubran los vacíos. La estructura orientada al norte es una galería de expansión que a su vez regula la entrada de sol a la casa. La vegetación de hoja caduca –recién sembrada- y los toldos terminan de caracterizar el espacio siendo los elementos de regulación tanto de las ganancias como las perdidas en términos ambientales.

capba IX 24 EJERCICIO PROFESIONAL
OBRAS EN EL DISTRITO OBRAS EN EL DISTRITO capba IX 25 EJERCICIO PROFESIONAL

ARQUITECTURA DEPORTIVA FICHA TÉCNICA

Ubicación:

Barrio Nueva Pompeya Mar del Plata

Proyecto y Dirección:

Arq. Marina Agra [MP N° 21239]

Arq. Rodrigo Salgado Pereira [MP N° 19913]

Equipo de proyecto:

Sr. Martín Asua

Arq. Facundo Hernández

Colaboradores:

Contratista: M.M.O Francisco Cortez

Instalaciones Eléctricas: Botaya-Luerin

Instalaciones Sanitarias: Fiorrucci Hnos.

Cálculo estructural: Arq. Damián Salinas.

Asesoramiento Estructural 2da Etapa:

Arq. Fernando Redivo.

Estructuras Metálicas: Sr. Diego Visaggio.

Paisajismo Frente: Depto. de Paisajismo

Vivero Antoniucci.

Paisajista: Nicolás Antoniucci.

Superficie Cubierta:

722,00m2

Año de Construcción:

2013-2015

PILETA Y CENTRO DE ENTRENAMIENTO

Mar del Plata

El emprendimiento se ubica sobre la Avenida Libertad, con frente a la Plaza Rocha. Se desarrolla sobre lote de 10.39 x 43.30 sobre vereda de sol. En el mismo se ubicaba un importante chalet marplatense de dos plantas retirado del frente.

El perfil característico de la cuadra se caracteriza por una variedad de chalets de tejuelas y piedra Mar de la Plata de no más de dos plantas, con algunas excepciones. Un ejemplo de esto último es la vivienda, ubicada lote de por medio, de claro corte moderno, líneas rectas y una marcada horizontalidad, de la cual nos hicimos eco en el proyecto, al tiempo que buscamos también sostener y reforzar la impronta de chalet marplatense para mantener el diálogo con su entorno.

- Arquitectura Deportiva

Las funciones y usos deportivos determinados por las dimensiones de la pileta y del espacio gimnasio necesitaron de resoluciones estructurales diferenciadas, particularmente en las grandes luces de las cubiertas; esto y la atención a la iluminación natural en estos espacios fue parte crucial en el desarrollo del proyecto.

Nuevos usos en un clásico chalet marplatense que mantiene el diálogo con su entorno
capba IX 26 EJERCICIO PROFESIONAL
OBRAS EN EL DISTRITO
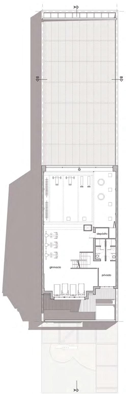
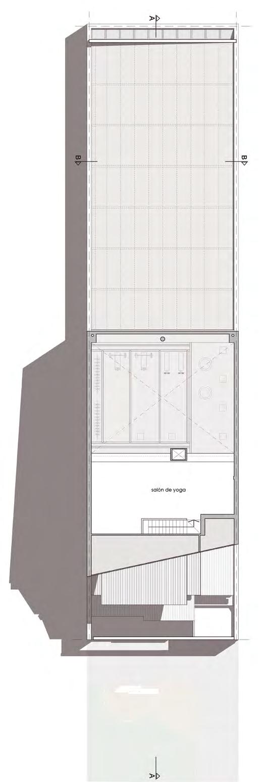
Planta nivel 0 Planta nivel 1 Planta nivel 2 Corte B-B
capba IX 27 EJERCICIO PROFESIONAL
Corte A-A

La estructura metálica que forma la cubierta de la pileta no solo resuelve el hecho de ser techo; se eleva suavemente en el corte por sobre una de las medianeras, buscando la buena orientación e iluminando el ambiente, brindándole apertura y buscando desmaterializar el limite interior – exterior. Con la misma lógica el techo nuevamente se despega de la medianera posterior, bañando de luz natural el plano medianero revestido con piedra natural.

-El Frente

Sobre el frente, proyectualmente se incorporaron las líneas y escalas preexistentes en el entorno inmediato, tratando como ya mencionamos de continuar el dialogo con las construcciones de la cuadra.

El uso del Hormigón Visto materializando el pórtico resulto apropiado en una búsqueda de neutralidad. La intervención requería incorporar un elemento estructurante y vinculante de dos etapas de usos sin producir fricciones o choques simbólicos, antes bien encontrar la justa medida de contrastes y asimetrías, que al mismo tiempo le dé un marco institucional a la propiedad sin que la misma pierda su valor. De esta manera el nuevo elemento propone un nuevo marco, alimentado de proporciones preexistentes, tanto de la construcción ya existente como del entorno inmediato. Un claro ejemplo de esta búsqueda es la forma en que la altura del mismo se ajusta a la línea horizontal fuertemente marcada de la vivienda modernista cercana, y al mismo tiempo deja que la propiedad se alce por detrás remarcando aún más todo su esplendor pintoresco.

Este mismo pórtico, a un tiempo sintagma de acceso y fachada frente a la fachada, enmarca la mirada interior del complejo sobre la Plaza Rocha, incorporando el mejor de los exteriores a la obra.

- La organización

En la readaptación funcional se propuso como condicionante, mantener la escalera original de la propiedad como elemento estructurante. Partiendo de este último punto, se trazó una espina pública que recorre la totalidad de la obra, en donde se distribuye administración, vestuarios, duchas y acceso independiente a la pileta.

La pileta, por razones funcionales, tiene un doble acceso: el utilitario a través de la batería de vestuarios-duchas, y el general por la espina pública mencionada.

En planta alta se ubica un gran espacio destinado a un gimnasio y sus distintas dependencias de apoyo, entre ellas un segundo bloque de vestuarios de menor escala. En el entrepiso superior se desarrollan actividades del mismo tipo, pero con menor intensidad física (como es el caso de pilates, yoga etc.), que requieren de menor espacio y un turno especifico

En el subsuelo, que es preexistente a la obra, se ubicó el “corazón” o sala de máquinas de todas las instalaciones necesarias para el funcionamiento del edificio.

- Las intenciones

Desde el primer momento que visitamos el lugar en conjunto con el comitente, la intención buscada fue respetar el entorno y poner en valor la escala del mismo; Poder condensar la complejidad de usos y funciones propuestos por el programa de necesidades, así como mantener el adecuado equilibrio entre el marco existente y su incorporación.

De esta manera la propuesta arquitectónica se retroalimenta tanto de sí misma como de sus aledaños.

capba IX 28 EJERCICIO PROFESIONAL
OBRAS EN EL DISTRITO capba IX 29 EJERCICIO PROFESIONAL

CONCURSO SOLIDARIO

Concurso de Ideas Vivienda Social Sustentable, propuestas premiadas de colegas del CAPBA IX

Organizado por la Sociedad Central de Arquitectos y promovido por ARQ, SCA UNE y Vivienda Digna, culminó el Concurso de Ideas de Vivienda Social Sustentable. El jurado evaluó las propuestas y el primer y segundo premio correspondieron a proyectos elaborados por arquitectos matriculados del CAPBA IX.

SCA UNE es una iniciativa que nace de un grupo de profesionales de la SCA para los sectores de mayor fragilidad social en torno al hábitat. Es una red solidaria que vincula al que necesita ayuda y a quien quiere dar, a través de fundaciones que cuentan con experiencia y eficacia en soluciones para el hábitat social entre ellas contamos con la fundación vivienda digna, quien en conjunto a BATEV, ARQ. Diario de Arquitectura, y SCA organizan éste concurso.

Vivienda Digna es una organización social que desde 1979 está comprometida con el acceso a una vivienda digna y un hábitat adecuado. Desarrollan programas de construcción comunitaria para viviendas nuevas y otorgan micro créditos para el mejoramiento de la casa propia.

OBJETO DEL CONCURSO

Según las bases de concurso1, su objeto es aportar ideas para la resolución de una vivienda social desde un marco sustentable, incorporando las nuevas tecnologías, sistemas tradicionales o combinaciones de las mismas promoviendo la participación del futuro usuario en la gestión y construcción de la vivienda, para concientizar a la sociedad y ayudar a Vivienda Digna en sus acciones solidarias.

PAUTAS PROYECTUALES Y DE EVALUACIÓN

Programa de necesidades: El programa de necesidades considera resolver una vivienda social sustentable con dos dormitorios, un baño completo, cocina y estar comedor. Con

1 http://socearq.org/2.0/wp-content/uploads/2018/04/BASES1.pdf

una superficie máxima de 60 m2 adecuada al terreno elegido. En el cómputo de las superficies, las cubiertas deberán considerarse al 100% y las semicubiertas al 50%. La vivienda debe poder crecer con un tercer dormitorio de 10 m2. El proyectista podrá plantear en una lámina opcional nuevos crecimientos del prototipo en el tiempo y, eventualmente, la resolución de las repeticiones y de las eventuales propuestas de agrupamiento de las unidades en varios lotes para evaluar el impacto urbano.

Aprovechamiento de los recursos disponibles: El jurado considerará la correcta interpretación del contexto, que contribuya a su viabilidad económica y a la selección del sistema constructivo adecuado, aprovechando los recursos del sitio. Se valorarán aquellos proyectos que consideren presupuestos sensatos, presenten soluciones cercanas a la realidad y optimicen recursos.

Materiales y sistemas constructivos: El proyectista podrá utilizar materiales y/o sistemas constructivos y también combinaciones de ambos para lograr mejores resultados en cuanto a: Economía de la obra, Condiciones de habitabilidad [Aislaciones: hidrófugas, térmicas y acústicas], Bajos costos de mantenimiento y de acondicionamiento térmico [Construcción en maderas forestales, Aceros, Sistemas mixtos de hormigón y poliestireno expandido, Ladrillos cerámicos, Materiales reciclados o reutilizables, una combinación de materiales y sistemas, libre]

Condiciones de habitabilidad: El prototipo cumplirá con las normas de habitabilidad de la Secretaría de la Vivienda de

capba IX DESARROLLO URBANO SUSTENTABLE 30

la Nación. El jurado evaluará también el nivel de propuesta e innovación con respecto a: a) Orientación; b) Vientos y brisas dominantes; Y a la utilización de soluciones como: c) Ventilaciones cruzadas; d) Pisos ventilados o suspendidos; e) Cubiertas verdes; f) Captación solar; g) Apropiado aventanamiento; h) Muros con correcta ecuación de aislación térmica; i) Aprovechamiento de la topografía del terreno.

Infraestructura: El jurado evaluará, asimismo, el uso de una infraestructura sustentable: A) Alternativas de tratamiento de aguas servidas; B) Generación de energías, y C) Recuperación de aguas grises para riego o lavados.

Construcción - Participación del futuro usuario: La propuesta del concurso es que los futuros usuarios participen tanto en la gestión como en la construcción de los prototipos. El Jurado ponderará las ideas simples e innovadoras que permitan incorporar al usuario en la construcción y mantenimiento de sus propias viviendas.

Prototipos repetibles: El Jurado valorará que las viviendas proyectadas puedan ser fácilmente replicadas o apareadas, según las necesidades, teniendo en cuenta los contextos geográficos, bioclimáticos y sociales.

COMPOSICIÓN DEL JURADO

El Jurado quedó conformado de la siguiente manera: Arq. Celeste Fisch, Presidente del Jurado, en representación de Vivienda Digna

Arq. Mario Boscoboinik, Jurado en representación de la SCA Arq. Jorge Aslan, Jurado en representación de los participantes Arq. Enrique Cordeyro, Jurado en representación de BATEV Arq. Berto González Montaner, Jurado en representación de ARQ, Diario de Arquitectura

Arq. Carolina Day, Jurado en representación de SCA UNE

RECEPCIÓN Y JURA

Se recibieron 27 (veintisiete) trabajos a través de la plataforma google drive, de los cuales 6 fueron de la Región Mesopotamia, 18 de la Región Pampeana y 3 de la Región Patagónica, que fueron evaluados por el jurado.

El jurado arribó a un dictamen unánime donde se dictaminaron los trabajos que obtuvieron premios, menciones o fueron seleccionados para integrar las muestras y exposiciones a realizar.

En ese sentido, vale mencionar que los autores de los trabajos que merecieron el primer y segundo premio son arquitectos matriculados en el Distrito IX del Colegio de Arquitectos de la Provincia de Buenos Aires a quienes felicitamos especialmente.

El Acto de entrega de premios tuvo lugar el día miércoles 23 de mayo en el MARQ, Museo de Arquitectura, de la Ciudad Autónoma de Buenos Aires.

CONCURSOS
31
capba IX DESARROLLO URBANO SUSTENTABLE 32

PRIMER PREMIO: Trabajo clave MESOPOTAMIA02

Es una propuesta de gran consistencia, carácter y belleza. Con economía de recursos da respuestas que aportan soluciones de hábitat sensibles para las condiciones sociales y ambientales del terreno elegido en la provincia de Misiones. El jurado ponderó el buen armado del prototipo, tanto por su organización funcional, sus acertadas dimensiones, como por el uso de la galería como fuelle climático y opción circulatoria. También consideró acertado el criterio utilizado para el crecimiento, generando una opción hacia el frente como tercer dormitorio o ámbito laboral o comercial en relación a la calle; y otra opción, hacia el fondo del lote.

En cuanto al criterio constructivo son valorables la utilización de un sistema de pórticos de madera para las áreas que incluyen el estar, los dormitorios y las expansiones, que le proporciona flexibilidad de armado; y, también la acertada utilización sistema mampuestos para las áreas húmedas, que incluyen cocina, lavadero y baño. Esta decisión permitiría la opción de aparear viviendas a través de sus núcleos húmedos, logrando una mayor economía y alguna variación en la propuesta urbana. El calibrado corte, permite que la vivienda esté bien ventilada, tanto por estar despegada del suelo como por la ventilación cruzada que plantea en todos sus ambientes. La imagen final, con sus necesarios aleros, galerías y pantallas parasoles corredizas, tiene un clima muy apropiado y agradable para la región.

2 http://socearq.org/2.0/wp-content/uploads/2018/04/CRITICA-DEL-JURADO.pdf

CRITICA DEL JURADO2
CONCURSOS capba IX DESARROLLO URBANO SUSTENTABLE 33

FALLO DEL JURADO

PRIMER PREMIO: Trabajo clave MESOPOTAMIA02

Autora: Arq. Laura Gabriela González [MP CAPBA N° 27575]

Colaboradores: Arq. Franco Matías Paiardini y Javier Brizuela.

SEGUNDO PREMIO: Trabajo clave PAMPEANA16

Autor: Arq. Luis Cisneros [MP CAPBA N° 29955]

Colaboradores: Rodrigo Pizá, Valentina Torreano, Ana Mengarelli, Micaela De la Fuente e Ignacio Laveaga.

TERCER PREMIO: Trabajo clave PATAGONIA07

Autor: Arq. Jorge Adolfo Mazzinghi.

Colaboradores: Eduardo Mazzinghi, Aldana Berro Vázquez y Marcos González Mazza.

MENCION: Trabajo clave MESOPOTAMIA04

Autores Arqs. Gabriel Tyszberowicz y Santiago Mussi Tiscornia.

Colaboradores: Arq. Ignacio Mussi Tiscornia, Arq. Lucas Meneghetti, Arq. Andrew Pringle

Sattui, y Arq. Tomás Meneghetti (Arquitectos Asociados); Montserrat Cadena, Manuela Berardi, Tomás Orfila y Raphael Bach.

Asesores: Nicole Michel y Roberto Alfie.

MENCION: Trabajo clave PAMPEANA19

Autores: Arqs. Pablo Esteban Murace, Lucas Gastón Rodriguez, Laura Fernanda Carnevali y Laura Marina Ramos.

Colaboradores: Arq. Mariela Piñeyro, Arq. Martín Mignona, Arq. Nicolás Silba, Lucas Mittini y Nicolás Bonavera.

Asesora: Arq. María Laura Garganta.

MENCION: Trabajo clave PAMPEANA14

Autor: Arqs. Martín Alejandro Chavarría y María Emilia Las Heras.

SELECCIONADO: Trabajo clave MESOPOTAMIA07

Autor: Arq. Néstor Lenarduzzi. Colaborador: Mauricio Costa.

SELECCIONADO: Trabajo clave PAMPEANA03

Autores: Arqs. Gabriela Sánchez y Sofía Avalos.

Colaboradores: Arqs. Laura Gorga y Nicolás Macasso. Asesoras: Arqs. Mariana Gatani y María Lucía Calvo

SELECCIONADO: Trabajo clave PAMPEANA04

Autor: Arq. Manuel Francisco Álvarez Fourcade.

Colaboradores: Joaquín Arizaga y Santiago Carrera.

SELECCIONADO: Trabajo clave PAMPEANA21

Autor: Milton Alberto Balestra.

Colaborador: Dante Andrés González.

SELECCIONADO: Trabajo clave PAMPEANA23

Autora: Arq. Bárbara Berson.

SELECCIONADO: Trabajo clave PAMPEANA26

Autor: Arq. Fernando Abelleyro.

Fuente: Sociedad Central de Arquitectos. http://socearq.org/2.0/2018/04/17/ concurso-de-ideas-vivienda-socialsustentable-concurso-solidario/

CRITICA DEL JURADO

SEGUNDO PREMIO: Trabajo clave PAMPEANA16

La propuesta consigue con habilidad y oficio un conjunto de gran urbanidad, síntesis y belleza. La generatriz de la planta del prototipo articulada en forma de “Z” le permite aparear estares, al frente; y uno de los dormitorios hacia el fondo, consiguiendo armar dos lugares exteriores bien controlados y de apropiada escala. Uno, arma el acceso y el otro crea un lugar más íntimo, con posible parrilla, como un patio que expande hacia el fondo de la casa. Cerrando el patio del frente, el proyecto propone la opción de colocar el tercer dormitorio o un local o lugar de trabajo. Otra de las virtudes de este sistema es que al aparearse las viviendas se consigue duplicar visualmente los espacios exteriores que están entre las casas.

La planta está correctamente modulada. Compatibiliza las medidas que proporcionan los materiales de construcción existentes en el mercado con las necesarias para un buen dimensionamiento funcional. Además, permite la utilización racional de sistemas constructivos en seco que necesitan una mano de obra posible en el ámbito del AMBA.

La volumetría de las casas está bien proporcionada y el contrapunto entre la envolvente en chapa prepintada blanca y algunos paños de otras materialidades genera una rica y sinética propuesta estética que, además, se potencia elevándose a unos centímetros del suelo.

En aras de mantener esta economía de recursos y maximizar la síntesis de la propuesta, el jurado objetó los cambios de nivel en los techos y la dudosa constructividad del techo verde planteado.

capba IX DESARROLLO URBANO SUSTENTABLE 34
CONCURSOS capba IX DESARROLLO URBANO SUSTENTABLE 35

Día Mundial de hábitat

2018 Manejo de Residuos Sólidos Municipales

Las Naciones Unidas han designado el primer lunes de octubre de cada año como el Día Mundial del Hábitat, para reflexionar sobre el estado de nuestras ciudades, y sobre el derecho básico de todos a una vivienda adecuada. También nos recuerda que todos tenemos el poder y la responsabilidad de dar forma al futuro de nuestras ciudades y pueblos. El tema de este año es el Manejo de Residuos Sólidos Municipales

El día mundial del hábitat fue instaurado en el año 1986 debido a su importancia, al crecimiento de la población y las condiciones del medio. Por este motivo la ONU creó una agencia especializada en la gestión y el desarrollo integral del hábitat: el Centro de las Naciones Unidas para los Asentamientos Humanos que trabaja para lograr que las personas posean un lugar donde hallen paz y dignidad, sin barreras económicas o sociales. Allí donde las diferencias existen persigue el objetivo de mejorar las condiciones de vida y de trabajo de los habitantes. Cada día mundial del hábitat se selecciona un lema distinto como guía de planificación.

El hábitat es el lugar donde un organismo halla lo que necesita para sobrevivir: alimento, protección, medios. La mitad de la población del mundo vive en ciudades por lo que se han convertido en el hábitat más importante para los seres humanos.

El Día Mundial del Hábitat es una ocasión en que el Centro de las Naciones Unidas para los Asentamientos Humanos otorga premios a instituciones o particulares que realicen aportes para solucionar los problemas del lugar de vida de los hombres que acucian al mundo entero.

El Día Mundial del Hábitat permite reflexionar sobre el estado de cada ciudad y tomar acciones para ofrecer a sus habitantes una vida mejor Las políticas contrarias generan exclusión, traducidos en asentamientos precarios y barrios de tugurios. Las oportunidades laborales y de servicios se centran en las ciudades, sobre todo en las capitales, que sumado a que la vivienda es casi inaccesible, las clases menos pudientes suelen conformar villas miseria en su contorno.

“El Día Mundial del Hábitat es el día mundial del derecho a una vivienda digna, al acceso a los servicios básicos, a la educación, a la justicia, a la seguridad y, sobre todo, a la posibilidad de vivir en armonía con el entorno”.

capba IX DESARROLLO URBANO SUSTENTABLE 36

Lema 2018: “Moldelando el futuro de nuestras ciudades y pueblos”

Las ciudades y los asentamientos humanos son el lugar donde interactuamos social, cultural, política y económicamente, y donde nos desarrollamos como seres humanos. Modelan nuestra forma de vida. Las urbes están afrontando desafíos demográficos, después de que se haya producido un traslado sin precedentes del mundo rural al urbano. Se espera que, en 2030, un 60% de la población mundial resida en áreas urbanas, especialmente en regiones de África, Asia y América Latina. En ausencia de una adecuada planificación urbana, las consecuencias del rápido desarrollo de las ciudades pueden ser trágicas.

En muchos lugares, los efectos de una mala política de urbanización se están notando ya con la falta de viviendas apropiadas y la creación de zonas deprimidas y sin infraestructuras, lo que fomenta la pobreza, el desempleo, la delincuencia, la contaminación y los problemas de salud pública, así como respuestas insuficientes ante los desastres naturales o catástrofes debidas a los efectos del cambio climático.

Teniendo estos retos en mente, los líderes mundiales crearon en 2015 el Objetivo número 11 de la Agenda 2030 para el Desarrollo Sostenible, que propone la creación de urbes inclusivas, seguras, resilientes y sostenibles.

Además, las Naciones Unidas designaron el primer lunes de octubre de cada año como Día Mundial del Hábitat para reflexionar sobre el estado de nuestros pueblos y ciudades y sobre el derecho básico de todos a una vivienda adecuada. También tiene la intención de recordar al mundo que todos tenemos el poder y la responsabilidad de moldear el futuro de nuestras ciudades y nuestros pueblos.

Manejo de Residuos Sólidos Municipales

El enfoque de las celebraciones de este año, busca concienciar acerca de las medidas para abordar los desafíos en el Manejo de Residuos Sólidos Municipales. La campaña, que tiene como eslogan "Ciudades que gestionan bien los residuos" busca, además, concertar esfuerzos y realizar actividades para:

o Crear conciencia de que la situación, de los residuos sólidos municipales, es un reto mundial que todos nosotros necesitamos abordar;

o Facilitar un entorno para desarrollar políticas, diálogos y alianzas;

o Promover la creación de soluciones innovativas al reto del manejo de residuos sólidos municipales;

o Movilizar recursos para hacer frente a los desafíos municipales de residuos sólidos.

DESARROLLO URBANO 37

Organizado por su Comisión de Servicios, el CAPBA IX inició los circuitos por las obras patrimoniales del Arq. Francisco Salamone en la Provincia de Buenos Aires.

SALAMONE ANDANTE Circuitos de Paseo Patrimonial

El pasado 25 de agosto se realizó el primer viaje de los circuitos de paseo patrimonial denominado “Salomone Andante”. En esta ocasión, se recorrieron obras existentes en el partido de Balcarce.

OBJETIVO: Aproximar a los arquitectos bonaerenses al formidable "patrimonio arquitectónico" legado por Francisco Salamone entre los años 1936 y 1940, a través del recorrido de gran parte de su obra más trascendente, en una serie de 4 itinerarios seleccionados.

CIRCUITO DE OBRAS N° 1

ESCUELA NORMAL RURAL [1938]

TRAZADO DE LA PLAZA LIBERTAD Y MOBILIARIO URBANO [1939-1945]

PORTAL DEL CEMENTERIO Y CRISTO AZUL [1938]

CENTRO CULTURAL SALAMONE [1937] [EX MATADERO MUNICIPAL]

Además, los participantes de este primer circuito de paseo patrimonial compartieron un almuerzo de camaradería en Antiguo Casco Estancia La Brava [1877]

En esta edición compartimos una breve galería fotográfica de imágenes tomadas durante el recorrido.

capba IX DESARROLLO URBANO SUSTENTABLE 38
PATRIMONIO asesores en seguros UNO asesores en seguros UNO San Martín 4255 Piso 1 | B7600GSG Mar del Plata Argentina + 54-223 154 381680 + 54-223 464 4595 | santiago@uno-seguros.com Consultor Asesor de Seguros Segmento Corporativo & Líneas Personales Santiago Sempé [M N° 82292] 39

CODIGO DE ORDENAMIENTO URBANO DE GENERAL PUEYRREDON

Estímulos al desarrollo de la industria de la construcción, incremento de los indicadores básicos en distritos urbanos

Desde el año 2003 el Consejo Deliberante del Partido de General Pueyrredon, a instancias de entidades que pertenecen a la industria de la construcción, ha aprobado ordenanzas cuyo objeto es dotar de mayor rentabilidad el suelo urbano incrementando los indicadores básicos que permiten una mayor capacidad constructiva. En este artículo, la Comisión de Asuntos Normativos del CAPBA IX realiza una cronología de la evolución de estas normas.

40

El Honorable Concejo Deliberante del Partido de Gral. Pueyrredón a través de la Ordenanza Nº 15203 promulgada con fecha 27 de enero de 2003 establece un régimen promocional a través del cual incrementa “en un treinta por ciento (30%) hasta el día 30 de junio de 2003 y en un veinte por ciento (20%) desde la fecha antes citada y hasta el día 31 de diciembre de 2003, los indicadores urbanísticos básicos referidos al Factor de Ocupación Total (F.O.T.) y a la Densidad Poblacional Neta Máxima (Dn) previstos en el Código de Ordenamiento Territorial (C.O.T.). En su artículo 6º define que “El incremento promocional autorizado por el artículo 1º será de aplicación solo en aquellos sectores que cuenten con servicio sanitario de agua y cloaca provisto por Obras Sanitarias Mar del Plata Sociedad de Estado.”

Esta normativa municipal promulgada 15 años atrás fue el punto de partida para una serie de ordenanzas que prorrogaron este régimen promocional o establecieron modificaciones o ampliaciones en parte de la misma tornando una medida de carácter transitoria en una cuasi permanente.

A continuación, un breve digesto de la evolución de este régimen hasta el día de la fecha en que tiene una aplicación diferenciada según zonas, distritos urbanos, hasta que se efectivice la actualización del código de ordenamiento urbano:

Ese mismo año con fecha 22 de septiembre la Ordenanza Nº 15598 modifica el artículo 1º que quedo redactado de la siguiente manera:

“Artículo 1º.- Increméntase en un treinta por ciento (30%) hasta el 31 de diciembre de 2003, los indicadores urbanísticos básicos referidos al Factor de Ocupación Total (FOT) y a la Densidad Poblacional Neta Máxima (Dn) previstos en el Código de Ordenamiento Territorial (COT).”

El 23 de diciembre de 2003 se prorrogó el régimen a partir de la sanción de la Ordenanza Nº15846, la cual fue derogada el 20 de agosto de 2004 según lo establece el artículo 7º de la Ordenanza Nº 16225 del 18 de enero de 2005 y prorroga la promoción de indicadores hasta el 31 de diciembre de 2004.

El 7 de enero del siguiente año la Ordenanza Nº16597 establece en su artículo 1º la prorroga hasta el día 30 de junio de 2005 y en su artículo 6º deroga la anterior norma.

El 05 de agosto de 2005 se promulga la Ordenanza Nº 16909 que establece la prorroga hasta el 30 de junio del año siguiente, el régimen se amplía hasta el 30 de junio de 2007 a partir de la Ordenanza Nº 17695

La Ordenanza Nº 17903 con fecha de promulgación 2 de febrero de 2007 modifica el artículo 3º de la Ordenanza nº 17695, que establece las condiciones para acogerse al régimen de promoción.

El 25 de julio de 2007 a partir de la promulgación de la Ordenanza Nº 18129 se establece una nueva prórroga hasta el 31 de diciembre de 2007. Establece además que no será de aplicación para los inmuebles incluidos en el Anexo I de la Ordenanza 10075 cuando fueran desafectados de la misma o demolidos.

El año siguiente se establece una nueva prórroga a partir de la promulgación de la Ordenanza Nº 18352 con fecha 4 de enero de 2008, por un plazo de seis meses. En el mismo sentido la Ordenanza Nº 18581 amplía el plazo hasta el 31 de diciembre de 2008. Lo propio establece la Ordenanza Nº 18956 y la Ordenanza Nº 19240 que prorrogan el régimen por seis meses en cada caso, hasta el 31 de enero de 2010.

La Ordenanza Nº 19605 promulgada el 17 de febrero de 2010 abroga las Ordenanzas Nº 18581, 18956 y 19240. Amplia además el incremento en un treinta por ciento (30%) hasta el día 31 de enero de 2011, los indicadores urbanísticos básicos.

Con fecha 16 de julio de 2010 es promulgada la Ordenanza Nº 19846 que modifica el artículo 2º de la Ordenanza nº 19605, referida a que la promoción será sólo en aquellas parcelas que cuenten con la infraestructura de servicios sanitarios de agua y cloaca provista por Obras Sanitarias Mar del Plata Sociedad de Estado y se hará extensiva a la totalidad de los distritos urbanos residenciales, centrales, de equipamiento e industriales contemplados en el Código de Ordenamiento Territorial, a salvedad del sector urbanístico que afecta territorialmente las parcelas frentistas al corredor de la costa (Av. Patricio Peralta Ramos- Av. Félix U. U. Camet), comprendidas entre las calles Almafuerte y Río Negro.

La Ordenanza Nº 19975 con fecha de promulgación 13 de octubre de 2010 vuelve a modificar este articulo quedando redactado de la siguiente manera: “La promoción será de aplicación sólo en aquellas parcelas que cuenten con el Certificado de Factibilidad de Servicios extendido por Obras Sanitarias Mar del Plata Sociedad de Estado y se hará extensiva a la totalidad de los distritos urbanos residenciales, centrales, de equipamiento e industriales contemplados en el Código de Ordenamiento Territorial, a salvedad del sector urbanístico que afecta territorialmente las parcelas frentistas al corredor de la costa (Avda. Patricio Peralta Ramos – Avda. Félix U. Camet), comprendidas entre las calles Almafuerte y Río Negro”.

Paralelamente a esta serie de ordenanzas, el 2 de mayo de 2011, se promulga la Ordenanza Nº 20304 que establece un criterio denominado de protección de urbana y resguardo del carácter y fisonomía morfológica; fijando indicadores más restrictivos en cuanto al Plano Límite de algunos distritos y según zona. En su art. 10º

NORMATIVA URBANA
capba IX DESARROLLO URBANO SUSTENTABLE 41

abroga las anteriores Ordenanzas 19281, 19318 ambas del año 2009, por las que se permitía hasta dos pisos más en la mayoría de los distritos, y en consecuencia también la modificatoria de éstas la Ordenanza Nº 20090 del 30 de diciembre de 2010, la cual ratificaba la posibilidad de construir dos nuevos pisos adoptando un FOS menor o igual a 0,5.

El 19 de julio de 2011 entra en vigencia la Ordenanza Nº 20437, la misma establece un régimen promocional por el término de un año y será de aplicación a los distritos urbanos residenciales, centrales, de equipamiento e industriales contemplados en el Código de Ordenamiento Territorial. El régimen permitirá el incremento en forma selectiva a partir de porcentuales aplicados a los indicadores urbanísticos básicos referidos al Factor de Ocupación Total -FOT- y a la densidad poblacional Neta Máxima -Dn- previstos en el COT. Quedan excluidos los inmuebles incluidos en el Código de Preservación Patrimonial, ordenanza 10075 y sus modificatorias.

El artículo 2º fija los incrementos, aplicables a los distintos distritos urbanísticos que define el C.O.T., en forma gradual y selectiva, quedando comprendidos entre un 10% y un 30%, dejando establecido en algunos distritos la exclusión de los mismos.

El artículo 3º autoriza, la superación del plano límite en las construcciones nuevas o a ampliar inscriptas en el presente régimen promocional, de acuerdo a parámetros establecidos referidos al F.O.S. correspondiente en cada distrito considerado en la norma.

En su artículo 7º la Ordenanza establece la forma de cálculo de los valores definitivos de los indicadores quedando redactado de la siguiente manera: “El régimen

promocional descripto, se adicionará a los valores de F.O.T. y Dn. correspondientes a los indicadores básicos de los distritos discriminados en la presente. A los valores de F.O.T. y Dn. que surjan de dicha operatoria, se les aplicarán los estímulos prescriptos en el artículo 3.2.2.7 del C.O.T. Los resultados definitivos que arroje la aplicación de dichos incrementos, en su conjunto, no deberán superar en ningún caso los máximos establecidos en el Decreto Ley Provincial Nº 8912 de Ordenamiento Territorial y Uso del Suelo.”

En su artículo 9° queda establecida la creación de un equipo técnico interinstitucional “Encomiéndase la conformación de un Equipo Técnico de carácter interinstitucional en el marco del Plan Estratégico, con el objeto de llevar a cabo los estudios pertinentes para la actualización del Código de Ordenamiento Territorial, asegurando en dicho proceso la participación de la comunidad involucrada. La propuesta a que dé lugar dicha tarea, será remitida a consideración del Honorable Concejo Deliberante por parte del Departamento Ejecutivo, sesenta (60) días antes de la finalización del presente régimen promocional.”

La Ordenanza Nº 20920, promulgada el 17 de julio de 2012 prorroga por el plazo de treinta (30) días contados a partir del 19 de julio de 2012, la vigencia del Ordenanza Nº 20.437.

La Ordenanza Nº 20951 prorroga por el plazo de un año contado a partir de la promulgación de la presente cuya fecha es 23 de agosto de 2012, la vigencia del Ordenanza Nº 20437, con algunos cambios destacándose el introducido en su Art. 8º por el cual atenúa la restricción de la misma respecto de los inmuebles declarados de interés patrimonial.

capba IX DESARROLLO URBANO SUSTENTABLE 42

En el mismo sentido la Ordenanza Nº 21414 establece, por el plazo de un año contado a partir de la promulgación de la presente de fecha 11 de septiembre de 2013, la vigencia de la Ordenanza Nº 20437 con modificaciones introducidas en la Ordenanza Nº 20951.

La Ordenanza Nº 22420 promulgada el 16 de octubre de 2015 establece la vigencia de la Ordenanza Nº 20.437 con las modificaciones introducidas en la Ordenanza Nº 20.951, hasta tanto se apruebe la reformulación y actualización del Código de Ordenamiento Territorial (C.O.T.). La que se encuentra en vigencia hasta la fecha en una parte importante de su articulado, en especial en el porcentaje de incrementos extraordinarios de FOT y Densidad habitacional.

El 10 de diciembre de 2013 se promulga la Ordenanza Nº 21597, también con el objetivo de incentivar y mejorar la competitividad del sector de la construcción en Mar del Plata, en su contenido la modificación del art. 3.2.2.4 del COT que trata sobre las superficies no computables para el FOT e introduce el criterio para considerar los espacios de “amenities”, luego modificada parcialmente por la Ordenanza Nº 22797 del 1 de septiembre de 2016, en cuanto al retiro de los mismos.

El 27 de noviembre de 2017 es promulgada la Ordenanza Nº 23425 que en el cuerpo normativo de la misma sustituye los textos de varios artículos de éstas últimas ordenanzas, principalmente la determinación del “plano limite”, la “altura de la planta baja libre” y nuevos parámetros en lo referente a las tipologías edilicias, el plano limite y los retiros obligatorios de los distritos residenciales R1, R2, R3 y R4 y de los distritos centrales C1, C1a, C1e, C2, C3, C4 y C5, de los distritos de equipamiento E1, E2 y E3 y “casos especiales” de los distritos residenciales R3, R4 y el distrito central C3. A partir de estas modificaciones, la ordenanza faculta al Departamento Ejecutivo en su último artículo a sustituir los gráficos y planos contenidos en el Código de Ordenamiento Territorial (C.O.T.) en correspondencia con lo establecido en el texto.

EVOLUCIÓN DE LA SUPERFICIE PRESENTADA

Tomando un período de 20 años [1997-2016], en el que se encuentra comprendido el segmento que contempla la aplicación del régimen de promoción, se puede apreciar la profunda crisis del sector de la construcción en los años 2001-2002 coincidente con una crisis económico financiera del país.

capba IX DESARROLLO URBANO SUSTENTABLE 44
Tabla 1. Fuente: Dirección de Obras Privadas MGP. Elaboración Propia.

El período exhibe, además, el impacto del régimen de promoción a partir del año 2003 con altibajos que tienen su correlato con medidas macroeconómicas que afectan a la industria. Asimismo, vale aclarar que el año 2011 registra datos incompletos por problemas de orden administrativo de la Dirección de Obras Privadas [DOP] que discontinuaron la carga de superficies.

Además, considerando el período 2003-2010, se advierte un promedio de superficie a construir de 130.000 m². Esa demanda de suelo urbano que permitiera el desarrollo de emprendimientos de diferente rango, fundamentalmente vivienda residencial multifamiliar, centró su atención sobre las zonas correspondientes a Distritos Urbanos de media densidad [R3-R4] que con indicadores previstos para esa densidad urbana se encontraban consolidadas como áreas de baja densidad edilicia. Este fenómeno generó un acelerado proceso de reconversión urbana con la demolición de construcciones que conformaban tejidos homogéneos y, en algunos casos, característicos de Mar del Plata, aunque con signos de degradación. El proceso de demolición de chalets del tipo pintoresquista y el cambio de perfil urbano de la ciudad originó la reacción social con un epicentro en el año 2011, provocada por una sucesión de demoliciones, que tuvo como resultado la interrupción en el otorgamiento de nuevos permisos de construcción, y la creación de una ordenanza de protección de barrios [Ord. 20304].

REFLEXIONES

El régimen de estímulo a la industria de la construcción creado en el año 2003 como paliativo a una profunda crisis que atravesaba el sector, se exhibe como una medida de impacto directo e inmediato que mejoró la ecuación económica para los emprendimientos que requerían de un mayor volumen constructivo para amortizar el precio del suelo.

Sin embargo, en una mirada crítica sobre el impacto de este régimen de promoción, se advierte una medida de carácter transitorio que deja evidentes efectos permanentes y que, más aún, ha cambiado el perfil urbano de sectores consolidados. Podemos afirmar que no existieron instancias de planificación urbana promovidas por el Estado que permitieran anticipar escenarios de conflicto como en el año 2011, en relación a las demoliciones de inmuebles, o en el año 2015, con la crisis de provisión de servicio de gas natural que hasta hoy sigue sin solución efectiva a pesar de las gestiones y obras iniciadas.

Arq. Juan Alberto Figueroa [MP N° 21707]

Arq. María Ester Morani [MP N° 3106]

Arq. María Inés Rojas [MP N° 10595] Comisión de Asuntos Normativos CAPBA IX

NORMATIVA URBANA
capba IX DESARROLLO URBANO SUSTENTABLE 45

MARCO DE LA CONVOCATORIA

Los Colegios provinciales de Arquitectos sostienen en sus estatutos o leyes de creación el interés de mantener un contacto fluido y permanente con organizaciones civiles y político-administrativas, a través de la complementación, el intercambio y la transferencia de conocimientos, con objetivos múltiples, aunque siempre con la mira puesta en la facilitación, ampliación y perfeccionamiento del ejercicio profesional.

Asimismo, es uniforme el rol que le asignamos a nuestros colegios como asesores privilegiados de los poderes públicos, en especial a las reparticiones técnicas oficiales, en asuntos de cualquier naturaleza relacionados con el ejercicio de la profesión de arquitecto junto a la vocación de involucrarnos en la resolución de los problemas concretos de nuestra sociedad en los que podemos aportar soluciones, valorizando y posicionando nuestra disciplina.

En este marco, muchos colegios han emprendido colaboraciones de todo tipo con los gobiernos locales, el nivel del Estado más próximo al ciudadano y el más estrecho interlocutor con nuestras labores profesionales, en orden a su competencia de reglamentar y fiscalizar las actividades edilicias, constructivas y urbanísticas. Sin embargo, cada una de estas experiencias no son lo suficientemente difundidas y conocidas fuera del marco provincial en el que se ejecutan, impidiendo que las más exitosas puedan replicarse en otros ámbitos o que las fallidas sirvan para extraer aprendizajes.

Sin duda que enfocar al municipio como actor privilegiado en acciones de complementación, intercambio y transferencia de conocimientos por parte de los Colegios no sólo apunta a facilitar el ejercicio profesional de sus matriculados incidiendo en el ámbito estatal de mayor impacto, considerando que posee las competencias casi

46

El pasado martes 11 de septiembre, en instalaciones del Consejo Superior del CAPBA, se llevó a cabo el encuentro “COLOQUIO CAPBA”. En la oportunidad, bajo la convocatoria del Instituto de Investigación, Desarrollo e Innovación, con el objetivo de compartir experiencias que articulan las estructuras colegiales con las del Estado Municipal.

excluyentes en matera edilicia y urbanística sino porque también es el responsable de las políticas urbanas, ambientales, de transporte y de vivienda de las cuales depende la calidad del hábitat en nuestras ciudades. Y también es espacio institucional que observa una aguda escasez de cuadros técnicos capacitados para abordar satisfactoriamente la complejidad del desarrollo urbano actual, así como insuficiente información actualizada, pertinente y confiable para la toma de decisiones en tales sentidos.

Es por todo ello que el Colegio de Arquitectos de la Provincia de Buenos Aires viene trabajando desde el Consejo Superior en acciones orientadas, por un lado, a capacitar a los colegas que acceden a la función pública a través de cursos intensivos para funcionarios municipales (GDUL) y a propiciar programas sistémicos de colaboración, y a través de los Distritos proveer de asistencias técnicas específicas, mejora en la gestión de trámites y promoción de concursos. En esta instancia, nos proponemos abrir un espacio de intercambio y reflexión sobre experiencias vigentes, orientadas hacia los mismos objetivos, entre los colegios y asociaciones de arquitectos que hagan lo propio en sus territorios.

ALCANCES Y OBJETIVOS DEL COLOQUIO

o Abordar la identificación y comprensión de instrumentos y herramientas utilizados por los colegios de arquitectos en materia de cooperación, complementación, intercambio y transferencia de conocimientos con los municipios.

o Revisar críticamente el marco jurídico-institucional en el que se desenvuelven los municipios argentinos y las demandas de todo tipo que pueden ser campo de colaboración con los Colegios de arquitectos.

o Plantear estrategias concretas para implementar iniciativas de este tipo a fin de viabilizar su

desempeño en orden a optimizar su incidencia en las políticas públicas municipales que afectan al ejercicio profesional de los arquitectos.

o Promover espacios de intercambio de conocimientos y experiencias entre las estructuras territoriales del CAPBA y las de sus pares del resto de las provincias argentinas.

Esta iniciativa se desarrolló en la jornada del 11 de setiembre de 2018 en la sede del Consejo Superior del CAPBA, en la Ciudad de La Plata, con la participación de los socios de la FADEA, en particular del Colegio de Arquitectos de Santa Fe, y de los 10 distritos en que se divide el CAPBA en el territorio provincial.

Se expusieron algunas experiencias relevantes -aquellas que tienden a ordenar un abordaje temático de manera sistémica- y otras más aisladas -que ponen de manifiesto el interés todavía no sistémico por abordar materias de interés profesional, todas ellas en pos de sistematizarlas y de abrir un debate sobre sus aportes positivos y dificultades de implementación. Y se compartieron las experiencias en materia de vínculos institucionales CAPBA – Municipios, del Distrito I, III y VII.

En el caso del Distrito I en La Plata se expusieron los alcances y resultados de la articulación inter institucional con el municipio en los denominados “Consejo Único de Ordenamiento Territorial” y de la “Comisión de Interpretación del Código de Ordenamiento Territorial”; ambas experiencias resultantes de la reciente actualización del citado instrumento de gestión. Asimismo, se comentaron las valiosas experiencias de las gestiones interjurisdiccionales (Berisso – Ensenada – La Plata) y del Consejo Asesor Profesional (CAP), ambas, con importantes efectos en el tratamiento de las herramientas de gestión territorial.

Desde el Distrito III se detallaron los procedimientos y cursogramas en vigencia en materia de registración y

PLANIFICACIÓN URBANA
capba IX DESARROLLO URBANO SUSTENTABLE 47

regularización territorial, destacándose la concreción del objetivo impulsado en la optimización y reducción de costes burocráticos desde la Municipalidad de Moreno. Desde el Distrito VII se resaltaron los alcances y acciones que se desarrollan desde la Red de Desarrollo Urbano Pampeana (ReDUP), experiencia única de escala regional que referencia indudablemente a las prescripciones que debierían tutelarse desde el artículo nº 81 del Decreto Ley nº 8912/77.

El Colegio de Arquitectos de Santa Fe reveló, desde una mirada estratégico territorial, como están gestionando los intereses locales de nuestras prácticas profesionales en aquellos municipios que aún no cuentan con presencia gremial. En este sentido, el impulso del desarrollo tecnológico ha permitido concretar gran parte de las metas institucionales previstas.

CONCLUSIONES

De lo vivenciado quedó ratificado que el rol del CAPBA en el contexto actual es sumamente relevante dada las incumbencias que nos conciernen a nuestra habilitación disciplinar: “participar en planes, programas y proyectos de ordenamiento físico - ambiental del territorio y de ocupación del espacio urbano y rural”1; por esta razón entre otras, y como institución activa en la vida política de cada municipio, reflexionar y entender sobre la efectividad y cumplimiento de las competencias públicas nos debe posicionar como un referente regional en la materia.

Como ya hemos expresado, el Distrito IX viene trabajando intensamente en el análisis y diagnosis de estas problemáticas desde hace más de 10 años. En el año 2008, en las Jornadas IEU9 “Región y Territorio”, se concluyó que las políticas públicas territoriales de los municipios costeros marítimos poseen semejanzas y peculiaridades, todas de elevada complejidad y otras incluso con injerencias extra jurisdiccionales.

Nuestra región es un territorio con características que lo singularizan. Es el escenario de localización de algunas de las ciudades con mayor crecimiento territorial del país, y asimismo representa la oferta espacial concurrente de dos de las actividades económicas más dinámicas de la economía provincial: las infraestructuras del complejo agroexportador y los servicios del producto turístico sol y playas.

Las ciudades costeras son expansivas sobre sus litorales costeros, ampliando ofertas habitacionales en áreas medanosas (no productivas para el Decreto Ley nº 8912/77) vulnerables como soporte urbano; ricas en general en recursos hídricos, pero de crítico

1  Anexo V de la Resolución nº 498/06 del Ministerio de Educación, Ciencia y Tecnología de la Nación.

mantenimiento de sus infraestructuras dado que gran parte del año deben garantizar servicios a estructuras urbanas ociosas, parceladas para 2.3 millones de habitantes donde viven -la mayor parte del año- apenas 1.2 millones.

Pero a este sino de aparente prosperidad económica y de crítica realidad ambiental, se presenta una realidad aún más compleja: la profunda debilidad de los gobiernos locales para gestionar este territorio: los conflictos urbano ambientales se agravan cuando confluyen la ausencia o deficiencia de políticas públicas adecuadas. Las políticas territoriales de los municipios de la costa marítima bonaerense están supeditadas a una rígida estructura jurídica donde el mismo sistema jurisdiccional vigente (relación provincia-municipios) condiciona su gobernanza.

Buenos Aires, es la única provincia que posee en vigencia después de 40 años una misma herramienta normativa de uso y gestión del suelo, el Decreto Ley nº 8912/77. El IEU9 identificó en nuestra región más de 700 normas concurrentes destacándose la Ley nº 11459/94 (Industria), la Ley nº 11723/95 (Medio Ambiente), la Ley nº 12257/99 (Código de Aguas), el Decreto nº 968/97 (Código de minería) y la Ley nº 14449/13 (Hábitat), todas complementarias en diferentes aspectos regulatorios al Decreto Ley nº 8912/77.

Necesariamente los instrumentos de gestión territoriales deben plantearse desde una visión integral: el enfoque estratégico, el proyectual sectorizado, y los soportes de codificación: urbanísticos, ambientales y tributarios. Para ello, es importante abordar la articulación del proceso de desarrollo urbano con las políticas territoriales de cada municipio en un contexto regional, para entender cómo se financia el modelo consensuado, como se generan los costos y donde se transfieren los beneficios de manera equitativa; en síntesis, como orientar el desarrollo bajo metas sostenibles.

En este sentido es oportuno recordar las conclusiones obtenidas en los diferentes espacios de trabajo2 que promovió el CAPBA IX en los últimos años con los municipios de la región donde en general fue ratificada reiteradamente la siguiente agenda común:

− El debate sobre el rol del Estado y de la política como herramientas de transformación;

− El debate sobre el rol de los municipios y su función reguladora ante los procesos de gestión territorial;

− La crisis de financiamiento de los gobiernos locales (recursos humanos y operativos) y del desarrollo urbano;

capba IX DESARROLLO URBANO SUSTENTABLE 48
2  IEU9, Proyecto “Región, Territorio y Normativa”, 2008-2012. CAPBA 9.

− El papel de los instrumentos de gestión territoriales (el plan, las normas, los proyectos, etc.);

− La cohesión social, la política urbana y el mercado del suelo / derecho a la ciudad y acceso de los sectores populares a suelo servido;

− La gestión del suelo urbano / calidad urbana y los conflictos ambientales, y;

− La ausencia de políticas locales y regionales de MIZC (Manejo integrado de zonas costeras).

Desde el año 2012, en clave técnico - propositivo, se viene abordando el proyecto distrital “Desarrollo Urbano Costero” (DUC), trabajo que obtuvo el primer premio en la categoría “ambiental” en el Premio Estímulo 2014. En su trayectoria se caracterizó el escenario actual, los paradigmas del “desarrollo humano y sustentabilidad” y la significativa incidencia de las “políticas públicas” vinculadas al mencionado paradigma en los contextos de los gobiernos locales de nuestra región.

Los resultados de este proyecto fueron expuestos y tratados en diferentes ámbitos institucionales y académicos donde, en general, se continuaron ratificando sus líneas de ejercicio propositivo. En sus resultados parciales se revelaron dos de los síntomas más notorios que se debaten en la actualidad en materia de las políticas públicas para la gestión ambiental y territorial: primero, la aplicabilidad e implicancias actuales que confiere para el estado el término “sustentabilidad” en referencia a los diferentes procesos de desarrollo urbano; y segundo, la gravitación del propio rol del estado, en tanto actor clave en la mediación de la transformación del hábitat.

Desde el año 2015, desde el plan de acción del Instituto de Estudios Urbanos 9, se focalizó en tres líneas de trabajo: finalizando la caracterización de los diversos componentes y modelos de gestión que existen en nuestra región sumando los perfiles serranos, rurales pampeanos y humedales del Tuyú; diseñando modelos procedimentales de asistencias y asesoramiento vincular entre el Distrito IX y los gobiernos de la región; y elaborando el listado de medidas, acciones y/o recomendaciones necesarias para el diseño de un nuevo sistema de instrumentos de gestión regional en materia de ordenamiento territorial y ambiental.

Indudablemente, escenarios de acuerdos normativos vetustos que solo alientan incertidumbres ventajosas para algunas minorías, deben conminarnos a intervenir desde nuestros saberes disciplinares; por esta razón, convencidos de que solo un estado activo y gestor con políticas sustentables permitirá otorgar las garantías mínimas para poder superar las insuficiencias que pueda presentar nuestro futuro, en particular, las de los integrantes de la comunidad en situación más vulnerable; entendemos que el CAPBA debe asumir decididamente un rol inexcusable en este vital proceso de desarrollo social y comunitario.

Confiamos en que las reflexiones que podamos concretar entre todos puedan abrir nuevos caminos de actuación en beneficio de nuestros matriculados, en una mejora del hábitat construido y como contribución al mejor gobierno de nuestras ciudades.

PLANIFICACIÓN URBANA 49
Instituto de Estudios Urbanos [IEU9] CAPBA IX

1° ENCUENTRO INTERNACIONAL Ciudades, Territorio y Patrimonio Cultural

Del 28 al 30 de junio tuvo lugar el 1º Encuentro Internacional en la FAUD, con la presencia de conferencistas y asistentes de distintos lugares del país, de España, Uruguay, Brasil, Chile y Paraguay.

El jueves 28 de junio se realizó la inauguración de este encuentro internacional organizado por el INSTITUTO DE ESTUDIOS DE HISTORIA, PATRIMONIO Y CULTURA MATERIAL [IEHPAC], con la presencia del Vicerrector de la UNMdP, Dr. Daniel Antenucci; el Decano de la FAUD, Arq. Guillermo Eciolaza; el Presidente del CAPBA IX, Arq. Daniel Monzón; la Directora de la Escuela de Artes Visuales, Solana Guangiroli; la Presidente de la Asociación Marplatenses Defensores del Patrimonio Arquitectónico y Urbano, Dña. Marita Ontañón y el director y vicedirector

del IEHPAC/FAUD, Arq. Manuel Torres Cano y Dr. Arq. Alejandro Novacovsky, respectivamente.

A su turno, cada uno de los representantes institucionales presentes en la mesa de autoridades del acto inaugural brindaron palabras de bienvenida y reflexiones sobre la relevancia del encuentro y las expectativas que ello despierta tanto en el ámbito académico como en la comunidad en su conjunto. A continuación, compartimos las palabras que, en nombre del CAPBA IX, brindó el Arq. Daniel Monzón.

50

INAUGURACIÓN 1º ENCUENTRO INTERNACIONAL

“Ciudades, territorio y patrimonio cultural”

28 de junio de 2018

Buenas tardes, gracias a las autoridades de la Universidad, de las distintas instituciones que acompañan este encuentro, a los organizadores y todos los presentes por estar aquí.

En nombre del Colegio de Arquitectos de la Provincia de Buenos Aires Distrito IX, Deseo agradecer en primer lugar al IEHPAC, por haber pensado en nuestra Institución como una de las colaboradoras en la organización de una parte de este 1º Encuentro, aquella que trata de establecer vínculo con la comunidad. Es por ello que hemos trabajado en la organización del Concurso Fotográfico "Rincones patrimoniales de la ciudad y el territorio", que se desarrolló previamente al Encuentro, entre los meses de marzo y mayo, y cuyas obras ganadoras premiaremos en pocos minutos más.

Agradecer al IEHPAC conlleva también el agradecimiento a la FAUD y a la Universidad con quienes podemos trabajar en conjunto, reflexionando sobre el patrimonio cultural, pero sobre todo para actuar en favor de su difusión y su protección.

A nuestra institución la convoca el interés por la protección del patrimonio en el marco de una política integral, coherente y equitativa que dé lugar tanto a la salvaguarda de bienes inmuebles como a la construcción de nuevos emprendimientos e inversiones del sector privado. Proteger el patrimonio y generar nuevas zonas urbanas promovidas para la construcción, Queremos ser claros: deseamos ambas cosas, y creemos que es posible.

Se puede proteger el patrimonio existente a la vez que crear nuevas obras que serán, tal vez, el patrimonio del futuro.

En nuestra ciudad contamos con un Código de Preservación Patrimonial que con más de 20 años precisa una seria revisión y actualización.

Cuando decimos "protección integral", nos referimos a una protección de la arquitectura en conjunto con la calidad ambiental y la caracterización del sitio. Es decir, la promoción que el Estado debe hacer, de un desarrollo urbano equilibrado y justo con los recursos tanto naturales como culturales, priorizando el interés general por sobre el particular.

También el Código de Ordenamiento Territorial se vuelve instrumento esencial para la protección, pudiendo determinar áreas protegidas y otras de estímulo o promoción, por eso es necesario el impulso para revisarlo. Sabemos de las experiencias de otras ciudades que implementaron áreas de protección patrimonial, con buenos resultados.

El Estado es el gran protagonista en la trama de estas decisiones, es cierto, pero la sociedad que está detrás, agrupada en diversos sectores intermedios, tiene el deber de alzar la voz, debatir y proponer con constancia y organizadamente, en especial cuando se trata de la protección de la identidad, que nos permite proyectarnos hacia el futuro.

Por eso gracias por este espacio que nos permitirá escuchar, reflexionar y proponer a lo largo de 3 días, donde los académicos, las ONGs, y los particulares, tendrán oportunidad de expresarse, recordándonos que el patrimonio es RESPONSABILIDAD DE TODOS.

La asociación estratégica de la FAUD, el CAPBA y otras entidades y organizaciones de la ciudad y la región, propone un intenso trabajo para impulsar transformaciones, pero sobre todo para lograr una mayor inserción de la comunidad con nuestro patrimonio, nuestra cultura, nuestra identidad, en síntesis, nuestras raíces. Es el desafío.

Muchas gracias.

PATRIMONIO capba IX DESARROLLO URBANO SUSTENTABLE 51

1º ENCUENTRO INTERNACIONAL. CIUDAD, TERRITORIO Y PATRIMONIO CULTURAL CONCLUSIONES DE EJES TEMÁTICOS

EJE 1. TURISMO Y PATRIMONIO CULTURAL

Coordinadores: Mg. Graciela Zuppa y Mg. José María Zingoni Durante la Jornada se presentaron 9 (nueve) trabajos. La mañana comenzó con la ponencia de la Mg. Graciela ZUPPA, sobre Imagen, memoria y turismo; aportes para la percepción de prácticas culturales, quien trabaja lo material e inmaterial en la historia urbana a partir de estudios visuales, en este caso específicamente a partir de los afiches con que se publicitaba el balneario marplatense.

A continuación, se desarrolló la ponencia Piletas al aire libre en el balneario de Mar del Plata, durante la primera mitad del siglo XX, a cargo de la Dra. Gisella KACZAN. El trabajo, el cual se encuentra en la etapa de investigación, busca Identificar aquellas obras con estas características en el medio marplatense profundizando en las experiencias sociales que se daban en estos espacios.

Acto seguido, la Guía de Turismo Victoria GAZZANEGO contó su experiencia con turistas a partir del guiado por espacios patrimoniales de Mar del Plata, revalorizando la relación entre turismo y patrimonio.

Posteriormente, el arquitecto Jorge SISTI expuso su trabajo sobre Patrimonio Moderno en Mar del Plata, exhibiendo la calidad de la obra de Antonio Bonet y la invisibilidad de la misma dentro del conjunto edilicio especulativo.

A continuación, el equipo mendocino integrado por Gloria Zamorano, Virginia Montiel, Sonia Wilde y Jonathan Charrón presentaron el trabajo Ambiente y cultura en las bodegas de Maipú. Expusieron una mirada territorial en donde el paisaje rural, la arquitectura y las prácticas sociales vinculadas con el proceso productivo del vino generan una identidad que es preservada por algunos y es reinventada por otros a partir del etnoturismo.

Por la tarde, el Arq. José ZINGONI presentó el trabajo Patrimonio, turismo y ciudad en el cual reflexiona sobre la relación entre objeto y sujeto en las obras patrimoniales y planteo de la necesidad de incorporar herramientas de gestión que permitan una recuperación efectiva de las áreas históricas.

A continuación, la Arquitecta Claudia MONTORO presentó la ponencia Santa Fe, ciudad de estudios superiores: el espacio universitario como atractivo turístico de alto valor patrimonial, donde a partir de la investigación sobre 3 universidades expuso la importancia de la vida universitaria y de cada uno de los complejos de la ciudad de Santa Fe.

La Mg. Analía BENITEZ presento su trabajo Itinerarios turísticoreligiosos en Mar del Plata, la inclusión del patrimonio retablístico local. Durante el mismo expuso el alto valor de los retablos en varias iglesias marplatenses y la propuesta de integrar circuitos turísticos con dicho patrimonio.

Finalmente, el equipo de San Luis integrado por los guías de turismo Marcela LAIÑO, Juan José BERTOLINO, Gabriel

MAGNANO, Mariano RESCHIA, presentaron su trabajo: Santa Rosa del Conlara, las potencialidades de su patrimonio cultural, donde mostraron las características del lugar, los recursos, atractivos y experiencias en gestión turística local.

Recomendaciones

− Resaltar el rol del Guía de Turismo como vigía y difusor de los valores patrimoniales, reconociendo la actividad como articuladora entre el visitante -turista o residente- y el objeto patrimonial.

− Si el turismo cultural es una herramienta ideal para los objetivos del turismo local, es necesario que se arbitren medidas que permitan programar el acceso a los bienes edilicios reconocidos para que los visitantes puedan acceder a los mismos.

− Trabajar el conjunto de obras de Bonet, como estudio y propuesta de conservación integral de sus obras, resaltando que las mismas se invisibilizan al quedar sometidas por el conjunto edilicio de la especulación inmobiliaria.

− Revalorizar la investigación histórico cultural como sustento de la preservación, tanto del objeto patrimonial como de las relaciones interpersonales registradas en fuentes visuales como cine, pintura, escultura, fotografía, literatura, entre otras.

Subrayar el valor de la visión integral del territorio, en donde el patrimonio arquitectónico se presenta vinculado a un proceso socio productivo realizado en un ambiente determinado, como el caso presentado de las bodegas de Maipú en Mendoza.

EJE 2. CIUDAD, TERRITORIO Y PATRIMONIO CULTURAL

Coordinadores: Mg. Arq. Felicidad París Benito, Mg. Arq. Alejandra Domínguez y Arq. Romina Fiorentino

Se desarrollará a continuación un breve resumen de las 14 presentaciones de esta comisión, que incluyen en sí mismas las recomendaciones del grupo de trabajo.

-La presentación (dedicada al Paisaje cultural de Mar del Plata) se preocupó por refutar premisas que se dan por sentadas sobre hechos históricos y conllevan a la pérdida de significados y valores del patrimonio cultural. Se desarrollaron los procesos de sustitución de los sitios, planteando con claridad el concepto de patrimonio dinámico.

Otro caso de interés presentó a los campus universitarios como objetos de valoración patrimonial por su relación con el paisaje, e territorio y la ciudad desde el diseño. Lo EVOLUTIVO, LO ASOCIATIVO Y EL PAISAJE URBANO (presentación de los casos de Córdoba, Cuyo, Tucumán y Santa fe).

Las leyes con respecto a la protección del patrimonio de Centros Urbanos Protegidos y Áreas de AMORTIGUACION, fueron temas de interés que trajeron profesionales del Paraguay,

capba IX DESARROLLO URBANO SUSTENTABLE 53

involucrados en el tema. Sitios urbanos y paisaje natural de ciudades de origen Franciscano y Jesuítico. Presentación de 4 casos y sus problemáticas.

Dentro de los casos de gran escala fue expuesta la situación de desamparo de la ciudad de Antofagasta en Chile, se planteó el rescate del LUGAR, como concepto a rescatar del patrimonio latino, desde la investigación histórica y el relevamiento de las permanencias en las prácticas sociales, como fortalecedoras de la identidad.

Como contraste se presentó el estudio de un material (piedra Mar del Plata), como aporte a la construcción de un paisaje urbano singular, denunciando la pérdida de caracteres originales naturales que su utilización significó por la explotación de la piedra y recomendando su conservación como parte significativa del patrimonio.

El tema fue abordado también por otro equipo, desde la perspectiva de la biogeografía, tomando como ejemplo el Parque San Martin en Mar del Plata.

Tuvimos la oportunidad de compartir los avances en el área de la investigación con alumnos de una escuela secundaria de Casilda (Santa Fé), preocupados por los valores simbólicos del patrimonio de su ciudad, ejemplificándolo en lo que ellos denominaron “Las Huellas de la Mazonería”.

Tema luego desarrollado por una investigadora, desde el estudio de los templos Masones, y su nominación como patrimonio por su singularidad y carácter de ritual espiritual. Construcciones asociadas a prácticas de diferente tipo, no populares pero que definieron historia en nuestros pueblos latinoamericanos, tanto co9mo la fundación de pueblos. Se denuncia el peligro que pasan estos templos masónicos por su falta de conservación y pérdida de partes de su contenido simbólico.

Un aspecto diferente del estudio del patrimonio se presentó con el caso de Ingeniero White, en Bahía Blanca, planteando el problema de la geografía humanística y del patrimonio vivido. Una mirada diferente desde el trabajo con grupos sociales de diferentes edades y su evaluación del Caso del puerto de White. Culmina la presentación con la idea de una Representación Patrimonial Intangible y el espacio subjetivo. Otra lectura.

Este sistema de trabajo se vio muy emparentado con otra ponencia que refiere a la mirada de los jóvenes residentes de Mar del Plata de los sitios de valor y su visión de los espacios libres públicos. Tarea realizada a través de encuestas y entrevistas a jóvenes de diferentes segmentos sociales.

Luego nos trasladamos virtualmente a San Fernando del Valle de Catamarca donde se presentó la problemática de tres museos en el espacio central de la ciudad. Se desarrolló la triada HOMBRE-ENTORNO-LEGADO HISTÓRICO alertando: “El Patrimonio Cultural está Clamando por algo que NO estamos Escuchando”.

Y en esta diversidad de temas concluimos con el estudio de casos de la arquitectura moderna en Mar del Plata, llevados de la mano de los arquitectos Corsico Picollini y Tiribelli, en una investigación de los casos que culmina en recomendaciones para su resguardo.

LA DIVERSIDAD DE CASOS VISTOS, ANALIZADOS Y DISCUTIDOS NOS REFIERE DIRECTAMENTE A TODO LO QUE AUN NOS QUEDA POR RECORRER EN ESTOS PRIMEROS PASOS POR RESGUARDAR EL PATRIMONIO LATINOAMERICANO.

EJE 3. LEGISLACIÓN, ENSEÑANZA Y DIFUSIÓN DEL PATRIMONIO CULTURAL

Coordinadores: Dra. María Luz Endere y Dra. Graciela Viñuales

1. Propiciar la comprensión del patrimonio no como objeto aislado, sino en todo su ámbito general.

2. Promover políticas de Estado que incluyan al patrimonio cultural como eje temático prioritario.

3. Desarrollar abordajes didácticos a todo nivel en donde se supere el hecho académico para llegar a estudiantes desde la niñez.

4. Concientizar a la sociedad en general sobre la importancia de la conservación del Patrimonio local.

5. Crear estrategias que ayuden a reconocer y valorar el patrimonio.

6. Buscar el incentivo para la participación de la comunidad, brindando facilidades y mecanismos para oír su voz.

capba IX DESARROLLO URBANO SUSTENTABLE 54

7. Abrir canales de difusión aprovechando las posibilidades que ofrecen las nuevas técnicas.

8. Propiciar el accionar vinculante de los informes de las comisiones de patrimonio locales.

9. Promover el compromiso entre especialistas, gobernantes, funcionarios y comunidad en su conjunto.

10. Proponer la sanción de una ley nacional de presupuestos mínimos del patrimonio cultural en cumplimiento con lo dispuesto en el art. 41 de la Constitución Nacional.

11. Incluir en la normativa legal a las comunidades locales e instrumentar mecanismos de participación comunitaria en las diferentes etapas del proceso de declaratoria y de gestión de los bienes culturales.

12. Contemplar sanciones, tanto civiles como penales, por daños contra el patrimonio que sean severas y eficaces para desalentar las conductas lesivas.

13. Impulsar la sanción de la ley especial que prevé el art. 240 del Código Civil y Comercial a fin de establecer los criterios bajo los cuales se fijen límites al ejercicio de los derechos individuales sobre los bienes para hacerlos compatibles con los derechos de incidencia colectiva y el respeto a los valores culturales y al patrimonio.

14. Reconocer la importancia del rol de los defensores del pueblo en la defensa del patrimonio comunitario.

15. Promover mecanismos para efectivizar el poder de policía de los gobiernos locales para la protección del patrimonio edificado.

16. Reconocer que el derecho al patrimonio cultural forma parte del catálogo de derechos humanos reconocidos por tratados internacionales que tienen rango constitucional.

17. Enfatizar la importancia de darle un uso social al patrimonio cultural.

PATRIMONIO 55

EJE 4. HISTORIA, INVESTIGACIÓN Y PATRIMONIO CULTURAL

Coordinadores: Dra. Adriana Collado y Dra. Arq. Lorena M. Sánchez

Este Eje convocó a la presentación de ponencias con foco en la investigación histórica y sus relaciones con el patrimonio cultural; relaciones inscriptas dentro de las ampliaciones y diversificaciones cronológicas, objetuales y sociales acontecidas desde la segunda mitad del Siglo XX. En este marco, se expusieron contribuciones que expresaron el interés por la indagación de legados modernos, paisajísticos, contextuales, institucionales y territoriales.

En este sentido se exhibieron ponencias sobre la ocupación del territorio bonaerense por parte de los alemanes del Volga; los asentamientos y la documentación de la industria del cemento en la zona de Olavarría; la arquitectura escolar tucumana durante el primer gobierno peronista y el legado de un pueblo ferroviario de la provincia de Santa Fe. Asimismo, se expusieron indagaciones sobre arquitecturas particulares, como el Mercado Norte de Tucumán, y se presentaron análisis relacionados con los entornos paisajísticos de Villa Victoria y de la Casa sobre el Arroyo de Mar del Plata. En paralelo, se exhibió un trabajo de legislación comparada en materia de instituciones patrimoniales de Argentina y Brasil y otro referido a la interpretación de archivos familiares con énfasis en su valor cultural. Las metodologías expuestas y las fuentes utilizadas en el conjunto de trabajos presentados, mostraron diferentes interpretaciones y articulaciones mediante enfoques etnográficos, historia documentalista basada en cartografías, archivos empresariales y familiares, ordenanzas, planimetrías y testimonios orales. En paralelo, los abordajes más empíricos sumaron como fuente documental al propio bien en estudio.

En las reflexiones finales, se insistió en la relevancia del conocimiento de los procesos de gestación de los bienes patrimoniales para su valoración y para lograr interpretar y fundamentar los modos de intervención sobre ellos. Se alertó que una carencia de conocimiento sistemático sobre el desarrollo de dichos bienes condiciona negativamente el avance y la profundización de otros estudios o tratamientos específicos acerca de los mismos. En este sentido, se hizo hincapié en la necesaria rigurosidad científica en relación con el tratamiento de la información, en todas las etapas de investigación. Durante las exposiciones se observaron desafíos a resolver en las articulaciones histórico-patrimoniales, en especial entre los avances alcanzados y sus materializaciones como aportes a proyectos concretos. Asimismo, se recordó que este tipo de investigaciones son competencia ineludible de los especialistas en la temática patrimonial.

EJE 5. INTERVENCIONES EN EL PATRIMONIO CULTURAL

Coordinadores: Dr. Arq. Alejandro Novacovsky y Mg. Arq.

El presente eje se proponía reflexionar sobre las diferentes prácticas de intervención. En este sentido, se esperaba que las contribuciones aportaran a la comprensión y acción referidas a la inserción de lo nuevo en áreas de valor patrimonial o en

entornos de valor, los procesos de adaptabilidad, permanencia y renovación, y el proyecto de intervención en diferentes escalas.

La jornada comenzó con una primera presentación que realizó el Dr. Arq. Alejandro Novacovsky entorno a distintas metodologías de intervención en el patrimonio, fue un recorrido conceptual que permitió llegar a una experiencia concreta de intervención: el Planetario de la Ciudad Autónoma de Buenos Aires. En este caso, se explicó y explicitó cuales habían sido los mecanismos utilizados en la intervención y las técnicas que se dieron en cada una de las etapas. Asimismo, participaron de la disertación dos integrantes del equipo de intervención explicando las acciones realizadas, particularmente por ellas, en el marco de la intervención general. La experiencia presentada dio cuenta de una clara vinculación teórica en relación a la práctica profesional.

Dentro de las exposiciones tuvimos experiencias de la ciudad de Mar del Plata, San Andrés de Giles, Cuidad Autónoma de Buenos Aires, Paraná y de nuestro país vecino, Paraguay. Los abordajes fueron sobre experiencias concretas de intervención y de distintas escalas:

− La primera exposición “Retablo de Ntra. Sra. del Rosario: San Andrés de Giles, Provincia de Buenos Aires” a cargo de la Arquitecta Daiana Noelia Vera Estecho. En primera instancia, presento la ubicación de la Capilla, en una ciudad de baja población (200 habitantes) y en la cual había que recuperar la idea del valor que tenía la capilla y puntualmente el retablo que data de 1927. Por ello, se presentó en primer lugar la fase investigativa de la intervención, donde se expresa los valores estéticos, históricos, científicos y sociales del bien como así también, el conocimiento del sistema y técnicas constructivas. Posteriormente, plantea los posibles lineamientos para la intervención sobre el retablo.

− Seguidamente, tuvimos la presentación de la ponencia “Proyecto de restauración patrimonio con sostenibilidad ambiental en la creación del Parque de la Estación” a cargo del Licenciado en Diseño del Paisaje Fabio Márquez. Una propuesta de intervención en un espacio de vacancia urbana en la Ciudad Autónoma de Buenos Aires, donde el potencial de trabajo no solo estaba en la restauración de los bienes patrimoniales de la Estación Ferroviaria sino en la gestión participativa de los vecinos de Balvanera y Almagro y el Estado. Es importante destacar el trabajo de la comunidad entorno a lo que significa intervenir en el espacio público, pero además desde lo participativo, donde los vecinos trabajaron codo a codo con distintas áreas del gobierno de la ciudad de Buenos Aires.

− La tercera ponencia fue “Capilla Norte de San Miguel Arcángel, una historia por descubrir: Paraná, Entre Ríos, Argentina” a cargo del Arquitecto Alejandro Yonson. Una capilla modesta de origen fundacional en una búsqueda casi arqueológica las características originales de la capilla. En este sentido, se realizó una indagación histórica sobre el bien para tratar de construir, tal lo expresado por Novacovsky en su disertación, los procesos metodológicos

PATRIMONIO
capba IX DESARROLLO URBANO SUSTENTABLE 57

con los cuales había que realizar la intervención. Este proyecto de restauración, refuncionalización y visibilización de la Capilla vincula al Estado provincial y el Arzobispado de Paraná en la búsqueda de preservación del patrimonio cultural.

− La cuarta ponencia denominada “Sistema constructivo en la colonia y Tres Museos Nacionales” presentado por la Arquitecta Natalia Antola Guggiari desde la Secretaria Nacional de Cultura de Paraguay. En la misma se pone en juego la necesidad de preservar los bienes culturales prestando especial atención a los tipos de construcción de la colonia sobre los cuales se debe intervenir en vinculación con el contexto actual. Asimismo, plantea las metodologías de intervención en cada uno de los bienes patrimoniales y su relación con el entorno y la función museística.

− La última ponencia, “Los Silos del puerto de Mar del Plata. Patrimonio industrial” a cargo del Arquitecto Hernán Lecce. En el mismo aborda los valores que los Silos presentan para la ciudad y para el sistema portuario dejando marcado la preocupación sobre la demolición de los mismos. En la ponencia se presentaron los valores arquitectónicos, el valor como testimonio, el valor como documento y el valor de carácter del bien. Asimismo, se remarcó el contexto histórico en el cual se crea el silo, el estado de situación actual y la preocupación de su inminente demolición que pone en riesgo parte de la identidad portuaria y de la comunidad marplatense. En

Comités del Encuentro

ese sentido, se hace explicito mecanismos tendientes a la preservación del bien patrimonial.

− Finalmente, la Mg. Arq. Laura Romero realiza un recorrido sobre la necesidad de preservar los bienes patrimoniales como testimonio histórico de sus comunidades. Como así también, la necesidad de trabajar en la gestión colectiva y participativa de la sociedad para construir un consenso social que posibilite la conservación de nuestro patrimonio cultural.

En líneas generales, estas han sido las distintas perspectivas desarrolladas en la mesa de trabajo y se llegaron a unas primeras recomendaciones producto de la participación activa de los ponentes y los coordinadores.

1. Necesidad de articulación de distintas áreas del Estado en la intervención de los bienes patrimoniales.

2. Necesidad de la gestión participativa en la intervención de áreas y bienes patrimoniales.

3. Sensibilización de la comunidad sobre el patrimonio cultural.

4. Instar y generar mecanismos de control social del Estado.

5. Construir procesos de patrimonialización.

6. Generar estrategias de comunicación a distintos niveles: a los profesionales y a toda la comunidad.

Asimismo, en relación a las ponencias se pone en evidencia la necesidad de contar con profesionales especializados en la temática que puedan atender la problemática desde una experticia propia del campo específico de formación.

Comité Científico: Dr. Arq. Ramón Gutiérrez, Dra. Arq. Graciela Viñuales, Dr. Arq. Roberto De Gregorio, Dra. Arq. Adriana Collado, Mg. Arq. Felicidad París Benito, Dra. Arq. Lorena M. Sánchez, Dr. Arq. Alejandro Novacovsky, Arq. Manuel Torres Cano, Mg. Lic. Graciela Zuppa, Dra. Arq. Gabriela Sánchez, Dra. Diana Mazzanti, Dr. Arq. Pablo Mastropasqua, Dra. DI. Gisela P. Kaczan

Comité Organizador: Dra. Lic. Laura Zulaica, Arq. Manuel Torres Cano, Mg. Arq. Felicidad Paría Benito, Dr. Arq. Alejandro Novacovsky

Comité de Apoyo Organizativo: Mg. Arq. Ana Zagorodny, Mg. Lic. Graciela Zuppa, Arq. Jorge Sisti, Arq. Marita Rizzo, Arq. Melecia Granero, Mg. Arq. Analía Benítez, Dra. DI. Gisela Kaczan, Dra. Arq. Lorena M. Sánchez, Sra. Marita Ontañón, Srita. Enriqueta Aimale, Sr. Miguel Figueroa

capba IX DESARROLLO URBANO SUSTENTABLE 58

En el Primer Foro, estuvieron presentes las siguientes asociaciones civiles, todas ellas constituidas formalmente con personería jurídica:

Asociación Civil para la Defensa y Protección del Patrimonio Urbanístico de Stella Maris (Mar del Plata) (formación en 2017)

Sra. Ana María Ferradas

Asociación Civil Foro de la Memoria de Mataderos (Mataderos, CABA) (formación en 2005)

Museóloga Zulema Cañas Chaure

Asociación Marplatenses Defensores del Patrimonio arquitectónico y urbano (Mar del Plata) (formación en 2010)

Marita Ontañon, Claudia Ramos, Claudia Roldán y Andrés Baylac

Asociación Somos Patrimonio (Paraguay) (formación en 2017)

Arq. Ana Rosa Lluis O’Hara

ICLAFI (comité científico del ICOMOS) (Comisión Internacional de Legislación, Administración y Finanzas)

Mg. Arq. María Marta Rae

Moderación por la organización

Mg. Arq. Analía Benítez / Sra. Marita Ontañon

Cada asociación expuso sobre su origen, composición, actividades, acciones realizadas ante los municipios o departamentos, cantidad de integrantes, financiamiento, intercambio de logros y dificultades.

Sobresalieron los siguientes datos:

− Las diversas formas de generación de las asociaciones: por un seminario Internacional de revitalización de centros históricos, que dio impulso a la asociación civil, con presencia luego en 10 de los 17 departamentos (Paraguay) / Ante el pedido de desafectación y demolición de un bien puntual (defensores MdP) / por libre determinación de proteger el patrimonio (Mataderos) / por un recurso legal -un amparo- para evitar la construcción de torre, primer caso judicializado por una ONG en Mar del Plata (asoc. Stella Maris)

− El financiamiento: cuotas de socios, auspiciantes, o bien sin ayuda del Estado, con los medios propios de cada miembro. En el caso de Paraguay con apoyo oficial financiando parcialmente la movilidad y actividades diversas.

− Cantidad de integrantes: entre 10 y 30 dependiendo la asociación.

− En 3 de las 4 asociaciones civiles participantes se destaca la extensión de actividades a la comunidad. En otras (caso Mataderos y Paraguay) se destaca también la formación y el asesoramiento y capacitación que reciben o han recibido para el fortalecimiento, administración y gestión de organizaciones de la sociedad civil, cursos, talleres, CIOBA, Sociedad Argentina de Jóvenes, curso de la UCA y seminarios, congresos, etc.)

− Las ONGs realizan acciones en conjunto (caso Mataderos, por ejemplo) con Cancillería, la Asociación Civil Poder Ciudadano que brinda apoyo y asesoramiento en cuestiones legales, la Interpol, etc.

− En el caso de la participación del ICLAFI, se destaca su asesoramiento técnico-científico, jurídico y económico, generando propuestas para la comunidad.

Algunas observaciones vertidas:

− La falta de nexo entre la comunidad y el gobierno (Paraguay)

− La necesidad de socializar las leyes de protección cultural del patrimonio

− La lucha actual que llevan adelante las ONGs por la preservación de bienes puntuales (como la casa mirador Salaberry, Mataderos; el chalet Ave María, MdP; etc)

Formación de la red de ONGs

− Se estableció que se creará un grupo cerrado de Facebook del Foro y una dirección de correo electrónico, donde serán administradores un representante de cada asociación presente. Será excluyente acreditar personería para formar parte. En ella cada asociación publicará información, legislación y actividades de protección del patrimonio.

− Se aspira a aumentar la cantidad de miembros sumando a las ONGs invitadas y no concurrentes en esta oportunidad, así como a nuevas organizaciones. También se les enviará la información y conclusiones producidas en este encuentro comprometiéndonos a mantener contacto.

− Periodicidad de encuentros: se propone con aceptación de todos, dar continuidad a este espacio de encuentro anual. El ofrecimiento para ser anfitrión el próximo año es de Somos Patrimonio, de Paraguay.

Trabajo por la tarde

El Dr. José Esaín, presente por la tarde junto a colaboradores de su estudio respondió preguntas generales y sobre casos concretos, clarificó los distintos tipos de impacto ambiental, conceptos sobre calidad de vida, protección del ambiente urbano, leyes ambientales y su relación con las leyes urbanas, también los institutos del derecho ambiental aplicados al marco del ambiente urbano.

Sugerencias emanadas del Foro para un próximo encuentro:

− Invitar a Interpol por su tarea en el rescate de bienes culturales.

− Que el Foro de ONGs trabaje en horario diverso del resto de los ejes, de manera tal que todos los interesados puedan participar, ya que sería interesante que los asistentes puedan conocer la acción de la sociedad civil.

PATRIMONIO
capba IX DESARROLLO URBANO SUSTENTABLE 59
Resumen y conclusiones del primer foro de ONGs para la defensa del patrimonio

BIENAL INTERNACIONAL DE ARQUITECTURA ARGENTINA [BIA-AR] 2018

Durante el mes de octubre se llevó a cabo la edición 2018 de la Bienal Internacional de Arquitectura de Argentina [BIA-AR] que, como es habitual, seleccionó entre las obras postuladas por profesionales de todo el país aquellas que a juicio de los curadores merecían ser parte de la exposición y registro gráfico de esta Bienal. Bajo el lema “Situaciones” en esta edición compartimos parte del marco teórico de la convocatoria y la obra del Estudio Möire seleccionada en el segmento prácticas profesionales.

“situaciones”

La BIA-AR 2018 propone mantener la génesis conceptual de las primeras 2 ediciones denominadas “principios” (2014) y “procesos” (2016), finalizando con: “situaciones”.

Las tres palabras ilustran el lema general -compartido internacionalmente por los centros y organizaciones profesionales de los arquitectos- que define la actividad del proyecto arquitectónico como: la conexión entre los “principios” abstractos personales con lo concreto de una “situación” edificada mediante un “proceso” constructivo.

La BIA-AR 2018 denominada “situaciones” aborda la vida, el bienestar y los rituales sociales de las personas como razón última de la arquitectura. Vida, bienestar y rituales entendidos como derechos y aspiraciones tanto individuales como colectivos, en un abanico crítico, profesional, técnico y cultural que abarca desde las urgencias y la protección hasta el placer y la trascendencia.

Segmentos

+ Práctica Profesional. Convocatoria abierta a arquitectos argentinos para postular realizaciones desarrolladas a través de su práctica profesional durante los últimos 5 años (2013 – 2018). Premiación y distinción de 40 realizaciones argentinas -1 premio y 9 distinciones en cada una de las 4 secciones temáticas- en diálogo con las realizaciones de los 5 maestros invitados y de 36 arquitectos internacionales de prestigio.

+ Prácticas Académicas. Con la participación de todas las facultades de arquitectura, públicas y privadas de Argentina, para la exposición de trabajos de taller, posgrados e investigación referidos a las secciones temáticas de la BIA-AR y el debate sobre los modelos formación en relación a la práctica profesional.

+ Prácticas Públicas. Convocatoria nacional de proyectos de arquitectura y urbanismo desarrollados por las oficinas públicas, secretarías y ministerios del territorio nacional, con el objeto de generar un panorama de los programas de ordenamiento urbano y la producción de obras de los distintos municipios, ciudades y gobernaciones.

+ Innovación tecnológica. Con la participación de las empresas que auspician la BIA-AR en carácter de sponsors, para la exposición de productos y tecnologías que, en vínculo con los arquitectos y las administraciones de la obra pública, permitan el intercambio de experiencias y la planificación de estrategias y acciones comunes.

Las realizaciones postuladas fueron valoradas por la Curaduría de la BIA-AR, distribuidas en las secciones temáticas "Sustentabilidad física y social", "Paisaje y ciudad", "Técnica, artesanía e industria" y "Política de oficio, tradición e innovación". Las realizaciones que los curadores destacaron de entre todas las presentadas fueron calificadas como: a) Seleccionadas, b) Distinguidas (9 realizaciones por cada sección temática) y c) Premiadas (1 realización por cada sección temática).

capba IX DESARROLLO URBANO SUSTENTABLE 60

Casa Cronos [Obra Seleccionada]

Segmento: Prácticas Profesionales

Sección temática: Técnica, artesanía e industria

Autores:

Arq. Mariel Cámara - Arq. Ezequiel Muñoz

Curador General: Daniel Silberfaden

Curadores Técnica Artesanía e Industria: Joaquin Alarcia y Marcelo Schmit

Ícono

La Casa Cronos busca manifestar una forma de entender y vivir una casa vacacional durante todas las estaciones del año, basada en el contacto con la luz y la naturaleza, la flexibilidad y calidad de los espacios, la nobleza de la técnica y los materiales, y la búsqueda de una imagen que refleje su propia contemporaneidad.

Contexto

Se encuentra ubicada en Pinamar, costa atlántica de la provincia de Buenos Aires. El terreno se encuentra en su estado natural, presenta una importante cantidad de coníferas características en la zona, un suelo arenoso y visuales abiertas hacia el bosque.

BIA-AR 2018 61

Materia

Franqueza Material

El proyecto se materializa con el sistema constructivo metálico Steel Frame, la envolvente se compone de diversas capas, cada una de las cuales resuelve distintas necesidades técnicas, hidrófugas, térmicas, etc.

La elección del sistema constructivo y los materiales de terminación permiten fortalecer la estética contemporánea, obtener excelentes prestaciones técnicas, menores tiempos de construcción, disminuir la generación de desechos en obra y el impacto sobre el terreno.

El cerramiento exterior tanto en las paredes como en la cubierta se resuelve con chapa acanalada blanca. Las carpinterías son de aluminio blanco. Los pisos de las áreas públicas interiores y exteriores, tal como las puertas, son de madera. Los espacios interiores se caracterizan por el contraste entre la preponderancia de los tonos neutros y los detalles en colores.

Sistema

Dialogo y contraste

La generación formal de la casa se resuelve como una adición de volúmenes que pretenden adentrarse en el bosque.

Dicha composición retroalimenta las visuales entre la casa y el paisaje.

La casa se protege de los vientos del oeste gracias a su implantación en función de los árboles.

La disposición de los ambientes permite aprovechar la luz natural y la ventilación cruzada y a su vez generar expansiones en las áreas públicas de la casa hacia las mejores orientaciones y visuales.

Vínculos

Artefacto – Paisaje.

La pureza del blanco de dichos volúmenes, irrumpe en el paisaje buscando generar un contraste que valorice tanto la naturaleza del bosque como a la artificialidad de la arquitectura.

La casa se eleva sobre pilotes separándose del terreno, fortaleciendo dicho contraste entre la casa y el paisaje, generando el menor impacto sobre el terreno.

capba IX DESARROLLO URBANO SUSTENTABLE 62

Investigación Repensar la Cabaña

Se busca conservar rasgos propios de la cabaña que evocan a la memoria a partir de la abstracción del tipo cabaña, preservando solo las características generales que pertenecen a la conciencia colectiva, el arquetipo. El resultado es un volumen abstracto de formas puras y geométricas cuyos límites se definen con un mismo material y color tanto para la cubierta como para sus muros.

Premisas para la casa vacacional.

− Propiciar la relación directa con la naturaleza.

− Definir espacios cálidos y flexibles.

− Promover el descanso y el esparcimiento.

− Relación eficiente entre tecnología y costos.

− Bajo mantenimiento.

Ficha Técnica

Área: Técnica, artesanía e industria

Autores: Arq. Mariel Cámara - Arq. Ezequiel Muñoz

Nombre del estudio/Colectivo Moirë arquitectos

Colaboradores: Arq. Vanina Manzo

Ubicación: Cronos 1410, Pinamar, Buenos Aires

Fecha: 2015

Fecha de inicio de obra: 2015

Fecha de finalización de obra: 2016

Superficie Total: 96,67 m2

Superficie Cubierta: 86,67 m2

BIA-AR 2018 63

PREVISIÓN SOCIAL

¿Qué sabemos sobre el concepto y su sistema?

Se conoce como previsión social, a las acciones que buscan atender las necesidades de los integrantes de una sociedad. El objetivo de la previsión social es lograr un mejoramiento de las condiciones sociales, económicas y humanas en general de la población.

La previsión social se encarga de brindar una protección a aquellas personas que están imposibilitadas de obtener un ingreso, ya sea de manera temporal o permanente. Estos servicios sociales, por lo tanto, contribuyen a la cobertura de las principales problemáticas: la discapacidad o la vejez.

Puede considerarse que la previsión social es una protección que la propia comunidad –los profesionales de la construcción en este caso- proporciona a sus integrantes, ya que estas medidas son financiadas por dichos profesionales mediante sus aportes a la Caja de Previsión Social para Agrimensores, Arquitectos, Ingenieros y Técnicos de la Provincia de Buenos Aires [CAAITBA]. Se trata de un mecanismo solidario, donde el sector económicamente activo ayuda a mantener a aquellos que no pueden trabajar. Sin esto no hay previsión o recepción de beneficios.

La previsión social se canaliza mediante diversas instituciones, según cada provincia o en nuestro caso la CAAITBA.

¿CÓMO SE CONFORMÓ NUESTRA CAJA DE PREVISIÓN?

A continuación, una breve síntesis de los pasos que se dieron en este sentido y las distintas Leyes sancionadas.

Ya en 1956 flotaba en el ambiente la necesidad de constituir un régimen previsional para los profesionales de la Ingeniería en la Provincia de Buenos Aires. Al punto que,

En esta oportunidad hacemos un breve repaso de conceptos que definen el objeto del sistema, sus beneficiarios y normas que regulan el sistema.
capba IX ASUNTOS PREVISIONALES 64

desde el Centro de Ingenieros, el Colegio de Agrimensores y Autoridades provinciales, presentaron un memorial al Ministro de Obras Públicas para crear este régimen.

El 22 de octubre de 1958 la Legislatura sancionó la ley 5920, siendo promulgada por el Poder Ejecutivo el 4 de noviembre, la que perduró 4 décadas como el sistema previsional de los profesionales de la arquitectura, entre otras profesiones.

En el año 1998, fue sancionada la Ley 12007 la cual tuvo un breve período de vigencia. Mientras que, el 21 de septiembre del 2000, la Legislatura de la Provincia de Buenos Aires, sanciona la Ley 12490, creando la Caja de Previsión Social para Agrimensores, Arquitectos, Ingenieros y Técnicos de la Provincia de Buenos Aires [CAAITBA]. Ésta Ley deroga sus predecesoras, la 5920 y la 12007.

Ésta Ley es la que actualmente rige los destinos en lo que a previsión se refiere de los Arquitectos y demás profesiones del sector.

Por otro lado, la Ley 12490 cuenta con modificaciones puntuales. En ese sentido, la Ley 12.949, publicada en el Boletín Oficial Nº 24.572 el día miércoles 2 de octubre de 2002, incorpora Inciso m) Honorarios y aportes profesionales por contratación por un ente privado o jurídico.

Además, la Ley 13753, publicada en el Boletín Oficial Nº 25802 el día 17 de diciembre de 2007, incorpora Inciso i) Aportes Obra Pública y Modifica Art.29

PROYECTO DE CAJA PROPIA PARA ARQUITECTOS

Este es un proyecto que se acarició desde el inicio del Colegio de Arquitectos, donde el Distrito IX tuvo una importante serie de iniciativas y que tuvo algunos intentos que fueron desde el proyecto de una Caja totalmente independiente hasta reformas de la ley actual, ya que la misma no nos favorece; entre ellos la adopción de un sistema –reparto y capitalización–que por ejemplo genera una serie de iniquidades, sobre todos a aquellos colegas que recién se inician en la profesión y se encuentran únicamente bajo el régimen del sistema de capitalización.

Ante esta situación se formalizaron como expresamos diversas propuestas desde nuestro Distrito IX que no tuvieron el eco necesario en el Consejo Superior del CAPBA. Pero el cual formalizo un proyecto de Caja independiente, no debatido suficientemente dentro de nuestro Colegio –en consenso con los Colegios de Ingenieros, Técnicos y el Consejo de Agrimensura– que fue presentado en la Legislatura Provincia obteniendo la media sanción de la Cámara de Senadores de la Provincia de Buenos Aires y luego –al no ser tratado– perdió estado parlamentario.

Este año se volvió a presentar el Proyecto, el cual nuevamente no fue debatido en los Distritos –en conjunto con el resto de los Colegios/Consejo- y se aguarda su tratamiento en las distintas comisiones en este caso de la Cámara de Diputados de la Provincia de Buenos Aires.

ASUNTOS PREVISIONALES
65
Arq. Roque Nóbile [MP N° 3760] Comisión de Asuntos Previsionales CAPBA IX

ENTREGA DE CREDENCIALES

El CAPBA IX recibió nuevos colegas matriculados en el distrito

En las instalaciones de la sede CAPBA Distrito IX de Mar del Plata se realizó el pasado 09 de abril, la ceremonia de Entrega de Credenciales a nuevos matriculados del Colegio de Arquitectos de la Provincia de Buenos Aires Distrito IX. .

En el marco de las celebraciones por el Día del Arquitecto, el pasado lunes 2 de julio, se realizó la segunda ceremonia del año 2018 donde el CAPBA IX oficializó la bienvenida a colegas que recibieron las credenciales correspondientes a su matrícula profesional. Como es ya tradicional, las autoridades distritales condujeron la solemne pero cálida ceremonia que dio inicio con la entonación del Himno Nacional Argentino.

Fue el Arq. Daniel Monzón, Presidente del CAPBA IX, quien brindó unas breves palabras a los nuevos matriculados que hicieron especial énfasis en los desafíos de la vida

profesional y en el acompañamiento que la Institución brindará durante ese largo proceso.

Durante el acto estuvieron presentes también la Secretaria de la institución Arq. Analía Benítez y el Tesorero Arq. Bruno Mazzini, quienes colaboraron con la entrega de credenciales y entregaron publicaciones que edita la institución, más un casco de obra, como obsequio a los colegas.

Finalmente, se compartió un brindis de camaradería junto a familiares y amigos presentes..

Los profesionales que recibieron las credenciales son:

AVENDAÑO, María Micaela [MP Nº 30197]

BRUNO, Virginia [MP Nº 30136]

CHAVEZ, Branko Leonel [MP Nº 30271]

DI SCALA, Anabela Soledad [MP Nº 30200]

ESNAOLA AZCOITI, Ignacio [MP Nº 30133]

GALEANO, Lucrecia Soledad [MP Nº 30130]

GIGENA AVILA, Luisina [MP Nº 30134]

GIL MENDIONDO, Julián [MP Nº 30132]

GONZALEZ LAMBERT, Néstor Iván [MP Nº 30137]

GUARESTI, Damián Edgardo [MP Nº 30128]

JAIMON, Carolina Alejandra [MP Nº 30131]

LOPEZ, Érica Sabrina [MP Nº 30196]

MANRIQUE, Sebastián [MP Nº 30269]

MELLINGER, Malena Estefanía [MP Nº 30272]

NAGEL MAC NILES, María Victoria [MP Nº 30138]

OYANGUREN, Gisela Paola [MP Nº 30270]

POPP, Marcos Rubén Alejandro [MP Nº 30198]

RIAL, Haymará Susana Beatriz [MP Nº 30195]

ROJAS, María Natalia [MP Nº 30268]

TAMAGNO, Arnaldo Agustín [MP Nº 30135]

THISTED, María Clara [MP Nº 30199]

UGARTEMENDIA, Alexis Xavier [MP Nº 30129]

capba IX SOCIAL Y GREMIAL 66
NUEVOS MATRICULADOS 67

OLIMPIADAS INTERPROFESIONALES

Profesionales de la Provincia de Buenos Aires compitieron en diversas disciplinas

Del 20 al 22 de septiembre se desarrollaron las XIV Olimpíadas Interprofesionales de la Provincia de Buenos Aires. El evento, organizado por FEPUBA, tuvo como sede nuevamente la ciudad de Miramar donde acudieron participantes de toda la provincia.

La Federación de Profesionales Universitarios de la Provincia de Buenos Aires [FEPUBA] organizó la XIV edición de las Olimpíadas Interprofesionales de la Provincia de Buenos Aires que anualmente convoca a profesionales de las entidades miembros de la Federación.

Esta edición tuvo por tercer año consecutivo como Sede la ciudad de Miramar, que durante los días 20 al 22 de septiembre recibió a competidores y familiares. El acto inaugural tuvo la presencia del Intendente Municipal Germán Di Cesare, de la Secretaria General y de Gobierno María Eugenia Bove, del Secretario de Turismo, Cultura y Deportes, Marino García, del Director de Promoción Turística, Tomas Acha y del Director de Deportes, Adolfo Ferrari, quienes dieron la bienvenida a autoridades de FEPUBA y profesionales presentes.

Como es habitual, este torneo contó con la participación de colegas del CAPBA IX quienes compitieron en diversas disciplinas. Este año, conquistaron los siguientes lugares en el medallero:

Vóley: medalla de oro. Arq. Juan Carlos Chiefari, Arq. Eduardo Layús

Truco: Medalla de oro. Arq. Juan Carlos Chiefari

Pesca: Medalla de bronce. Arq. José Manuel Gaido

Fútbol: Medalla de Bronce. Arq. Juan Carlos Chiefari

Felicitamos a todos los profesionales que compitieron en esas olimpíadas y particularmente a los colegas del CAPBA IX que nuevamente pusieron garra y pasión para brindar la mejor performance.

68

Las disciplinas y categorías de competencia fueron:

DISCIPLINA CATEGORÍAS Y LUGARES

FÚTBOL

Categoría Libres y Categoría Veteranos Estadio Municipal y Estadio Defensores

Días de juego: Viernes 21 y Sábado 22.

FÚTBOL 8 Categoría Seniors y Categoría Máster

VOLEY

GOLF

Categoría: Damas y Caballeros, un equipo por Profesión. Polideportivo de Miramar

Día de juego: Viernes 21

Torneo de 36 hoyos TORNEO MEDAL PLAY

TORNEO individual por categorías

Días de juego: 1º Viernes 21- club de Golf Tulsa y 2º Sábado 22- Club de Golf de Miramar

TORNEO DOBLES

TORNEO Individual

TENIS

PADEL

AJEDREZ

MOUNTAIN BIKE

Lugar: ARGENTINOS TENIS CLUB

Día de juego: jueves 20

Sistema de Disputa: se determina según cantidad de equipos

Lugar: PADEL MIRAMAR

Día de juego: jueves 20

Participación: Sin límite por Profesión

Lugar: CENTRO OLÍMPICO -Hotel Alto Miramar

Día de Juego: jueves 20

Participación: por categorías, (similares a Atletismo) sin límite de participantes

Lugar: circuito de tierra desde Vivero Miramar a laguna camino a Mar del Sur ida y vuelta. Recorrido de aprox 1 hora de duración.

Día de juego: viernes 21

Participación: Sin límite por Profesión Todas las Categorías.

NATACIÓN

Lugar: Natatorio Municipal

Día de juego: jueves 20 y viernes 21

Participación: Sin límite por Profesión Todas las Categorías.

Lugar: Asociación Atlética Gral Alvarado

ATLETISMO

Día de Juego: viernes 21. Posta 4x100 mts. y lanzamiento de Bala

Día de Juego: sábado 22. 400.mts y Salto en Largo

Participación: Sin límite por Profesión.

Categorías Caballeros - Damas 5.000 mts. Categoría:

MARATÓN

Acompañante: correcamina de 3000 mts.

Lugar: VIVERO MUNICIPAL

Día de Juego: sábado 22

Participación: Sin límite por Profesión

PESCA

TENIS DE MESA

TRUCO

Días de juego: 1ºdía viernes 21 y 2ºdia sábado 22. Pesca Libre-una caña por pescador – Pesca variada de mar 2 puntos por pieza y cada 10 cm 1 punto –

Participación: Sin límite por Profesión torneo individual y dobles, por categorías.

Lugar: Polideportivo de Miramar

Día de juego: viernes 21

Participación: Sin límite por Profesión

Lugar: CENTRO OLÍMPICO - Hotel Alto Miramar

Día de juego: jueves 20

DEPORTES capba IX SOCIAL Y GREMIAL 69

Durante el mes de agosto se desarrolló en la sede del Colegio de Arquitectos la 5° edición del Curso de Iniciación a la Práctica Profesional, organizada por la Comisión de Jóvenes del CAPBA IX.

CURSO DE INICIO AL EJERCICIO PROFESIONAL

Se desarrolló la edición 2018 del tradicional curso distrital

El objetivo del curso es colaborar con la inserción laboral de los nuevos matriculados a partir de la presentación de diferentes temas, directamente relacionados a los primeros pasos de la práctica laboral.

En esta edición, el curso se organizó en 7 jornadas en la sede, culminando con una última actividad de visita a obra organizada por el Arq. Pablo Monti, que permitió visualizar gestión y procesos constructivos en 2 obras de vivienda agrupada de escala intermedia del estudio de arquitectos AgüeroMarcenaro.

Los módulos dictados abarcaron una amplia gama de temas directamente relacionados a la actividad, dictados en el siguiente orden: Responsabilidades de la Colegiación, Asesoramiento Legal, Roles Profesionales, Régimen Previsional y Contable, Honorarios Profesionales, Visado Colegial, Seguridad e Higiene en Obras, Ética Profesional y Gestión de Obra.

Cabe destacar que la selección de los temas fue planificada a partir de las demandas y las opiniones vertidas en encuestas que, en ediciones anteriores, los participantes han completado al finalizar cada uno de los módulos, práctica que se ha mantenido incluso en esta edición, y nos permite establecer que inquietudes son requeridas, permitiendo modelar de la mejor forma los temarios del curso en base a demandas concretas de la nueva matrícula.

Este instrumento permite evaluar cada uno de los temarios y los disertantes a partir de 4 ejes: Exposición del disertante, tema expuesto, aporte al conocimiento, y por último en qué medida considera que aplica a la profesión.

La participación al curso estuvo abierta a toda la matrícula y a aquellos nuevos profesionales recibidos que aún no están matriculados, con el objetivo de poder comunicar la importancia de la Colegiación para poder ejercer la profesión plenamente. En esta edición se contó con la inscripción de 44 participantes que recibieron sus certificados correspondientes emitidos por el CAPBA IX.

Desde el año 2014 el CAPBA IX, a través de su Comisión de Jóvenes, desarrolla en forma ininterrumpida el Curso de Iniciación a la Práctica Profesional. Con el transcurso de los años este curso ha ganado prestigio y un mayor dinamismo, acompañando así la inserción laboral de los nuevos profesionales.

Arq. Mariano Regairaz [MP Nº 29059] | Arq. Mariana Russo [MP Nº 25331] Arq. Fernanda Verón [MP Nº 26852] | Arq. Florencia Smirnoff Arq. Florencia Spagnuolo | Arq. Anabela Di Scala [MP Nº 30200] Comisión de Jóvenes CAPBA IX

70 capba IX CAPACITACION Y ACTUALIZACION PROFESIONAL

EL DESAFÍO DE LA ACTUALIZACIÓN PROFESIONAL

de charlas técnicas como articulación entre los matriculados y las empresas proveedoras de la industria de la construcción.

Desde sus orígenes, la Comisión de Capacitación del CAPBA IX ha tenido como misión: “desarrollar y divulgar conocimientos relativos a la profesión del arquitecto”.

En este sentido, a fin de potenciar el fortalecimiento y desarrollo de estrategias tendientes a profundizar la formación continua y permanente de los matriculados durante todo el 2018, el CAPBA IX ha articulado con distintas empresas, la concreción de charlas y cursos.

Apostando al conocimiento técnico y de calidad…

Desde el Colegio de Arquitectos, como política institucional, propiciamos que las empresas presenten sus productos desde una perspectiva formativa y no solamente como información de productos a la venta. En este sentido, las charlas técnicas deben abordar la complejidad de las técnicas constructivas existentes, con el fin de jerarquizar y expandir el conocimiento de los arquitectos matriculados.

El desafío continuo de la actualización profesional Como en años anteriores, empresas y matriculados han confiado en nuestra institución.

Donde actividades como, la charla Tendencias de Color 2018, patrocinada por Alba y Del Centro -Pintureríasconvocó a más de 70 colegas.

La charla realizada sobre Nuevas Tecnologías en Impermeabilización de Cubiertas Verdes y Techos Reflectivos de la empresa Sika, contó con la presencia de 35 personas.

El curso de Diseño e Iluminación Arquitectónica dictado por la Arq. María Sol Pomphile, del que participaron más de 30 profesionales de la construcción, contó con el patrocinio de Saitech y World Leds Go.

Consideramos necesario destacar que, en esta idea de la capacitación continua, aún quedan por concretar muchas actividades para lo que queda del año, entre ellas:

- Las Jornadas sobre Piscinas a ser realizadas el 27 y 28 de septiembre y que cuentan con el apoyo de Neobind, Alba y Saitech.

- Charla sobre Sistemas en construcción en seco, patrocinada por la empresa Knauf.

- Charla sobre Terminación en Detalles, a cargo de la empresa Atrim Global.

Conocimiento en la red

La disponibilidad de plataformas que complementan los medios de e-learning (educación digital), como el canal de YouTube y la página web de la Comisión de Capacitación permiten al matriculado, acceder a la totalidad de las charlas dictadas no solo durante este año en curso, sino también a aquellas que se han realizado en ciclos anteriores.

En estas plataformas, se puede acceder a más de 80 actividades realizadas y elegir entre los más de 600 videos disponibles.

La realización
72 capba IX CAPACITACION Y ACTUALIZACION PROFESIONAL

Página Web: http://capacitacioncapba9.wix.com/capacitacioncapba9

Canal de Youtube: https://www.youtube.com/view_all_ playlists?sa=1&vmo=title_desc&sf=name

Redoblando esfuerzos

En estos tiempos que corren, donde ninguna profesión se encuentra exenta de las exigencias de la especialización técnica, la demanda de la capacitación contínua se transforma en un desafío.

Es por ello que, desde la Comisión de Capacitación, consideramos indispensable continuar profundizando el desarrollo de estrategias que potencien la participación de los colegas en las distintas actividades que lleva adelante el CAPBA IX, a fin de aportar a la jerarquización de nuestra profesión.

Arq. Amalia CORS [MP. N° 14020]

Arq. Soledad FIGUEROA MORAL [MP. N° 16544]

Arq. Roxana GERULA [MP. N° 13409]

Arq. Emilio POLO FRIZ [MP. N° 25216]

Comisión Capacitación Colegio de Arquitectos de la Provincia de Buenos Aires Distrito IX

cocinas - placares - vestidores

DISEÑO + FUNCIONALIDAD = CONFORT

Showroom- Totoras y Av. Constitución (Pinamar)

Fábrica- Malvinas 2072 (Mar del plata)

CAPACITACIÓN
Dime y lo olvido, enséñame y lo recuerdo, involúcrame y lo aprendo.
www euromueblescocinas com euromuebles cocinas
te:2235248389 73

La Revista Architector entregó su premio “Construir según las reglas 2018”, en ese marco, dentro de las categorías del premio se realizó el reconocimiento a 12 mujeres, arquitectas y emprendedoras entre las que se encontraba la colega del Estudio MarianiPérez Maraviglia-Cañadas.

El día 28 de junio, en instalaciones de la Sala de Representantes de la Manzana de las Luces, se realizó la entrega de los Premios “Construir Según las Reglas” que hace 20 años organiza y otorga la Revista Architector.

Esta edición contó con las categorías de Mujeres Arquitectas y Emprendedoras, en la resultara reconocida la arquitecta María Haydeé Pérez Maraviglia; Profesional del Año; Constructora del Año; Empresa del Año; Contratista del Año; Proveedor del Año; Mención de Honor Comitente del Año; y, Obra más sustentable.

El evento tuvo una conferencia previa sobre “Arquitectura Sustentable, Mitos y Realidades” por parte del Dr. Ing. Nuclear Luis Juanicó, investigador del Conicet y del Instituto Balseiro de Bariloche.

La apertura de la ceremonia fue realizada por el Arq. Adrián Cappetto, director de la revista Architector, quién señaló los valores, habilidades y virtudes que en cada homenajeado se reconoce con la entrega de este premio.

En primer lugar, se premiaron a 12 arquitectas reconocidas por su trayectoria

Graciela Brandariz

Mónica Fernández

Liliana Font

Sara Gramática

Silvia Hirsch

Flora Manteola

Haydée Pérez Maraviglia

Amelia Questa

Ani Rubinat

Amalia Sacch,

Fina Santos

Mabel Scarone

Luego se entregaron los premios de las categorías tradicionales:

Profesional de Año: María Teresa Egozcue; Estudio Camps Tiscornia; Guillermo Brunzini

Constructora del Año: RIVA

Empresa del Año: PHILIPS; KNAUF

74 capba IX PROGRAMA COMUNICACIONAL

Contratista del Año: CARPEAL; LOCALES COMERCIALES

Proveedor del Año: CG; ELECTROTUCUMAN; HORMACO Mención de Honor Comitente del Año: PROCREAR

A la Obra más sustentable: EDIFICIO PLAZA GALICIA

En una entrevista para Espacio 9TV, la arquitecta Pérez Maraviglia, expresó la emoción con la que recibió este reconocimiento, destacando que simboliza un reconocimiento a una vida dedicada con pasión a la arquitectura y a la producción del estudio que junto al arquitecto Carlos Mariani formaron en Mar del Plata.

Desde el CAPBA IX felicitamos a nuestra querida colega y nos sumamos al profundo reconocimiento y respeto que sentimos por ella.

Fuente: Revista Architector https://architector.calidadempresaria.net/ Espacio 9TV, https://www.youtube.com/channel/UCPsyY4clzjOtf3zuyqmpXxQ

DISTINCIONES
75

ARQUITECTURAS DEL SUDESTE BONAERENSE II

Se desarrolla en todo el territorio distrital una nueva edición de la muestra de arquitectos del Distrito IX

Desde el mes de mayo, el CAPBA IX, se desarrollan muestras en diferentes ámbitos del territorio distrital con el objeto de compartir con la comunidad la producción profesional de los arquitectos del sudeste bonaerense.

A través de los años, los arquitectos hemos tenido un rol preponderante en la conformación del hábitat del sudeste bonaerense, ofreciendo soluciones ante realidades, problemáticas y paisajes diferentes; en un territorio que se caracteriza por su extensión y la alta concentración de ocupación.

Durante el año 2016 y con motivo de celebrarse los 30 años de creación del CAPBA, se realizó la Convocatoria a la 1º Muestra de Arquitectura del Sudeste Bonaerense. Es así como se materializaron distintas exposiciones en las Delegaciones de Balcarce, General Alvarado, Necochea, Pinamar y Villa Gesell. En las mismas, se expusieron diferentes obras de los arquitectos matriculados en el CAPBA DIX pertenecientes a cada una de esas localidades, integrando una muestra gráfica colectiva.

Con el objetivo de difundir en la comunidad la producción arquitectónica y urbana de los arquitectos de la región, así como promover el reconocimiento social de la profesión es que durante el año 2018 se replicarán estas exposiciones tanto en sede distrital como en cada una de las delegaciones.

Es así que el CAPBA DIX convocó a sus matriculados a participar de la 2º Muestra de Arquitectura regional del Sudeste de la Provincia de Buenos Aires, a quienes invitó a presentar obras terminadas de arquitectura construidas en el ámbito de la Provincia de Buenos Aires en el período que va desde el 1/01/2005 al 31/12/2017.

La convocatoria adoptó las categorías del Premio CAPBA a obra construida que organiza anualmente el Colegio Provincial. Éstas son:

− Vivienda individual con límites medianeros parciales o totales;

− Vivienda individual aislada;

− Vivienda individual Pro.cre.ar.;

− Vivienda multifamiliar o conjunto habitacional de baja densidad (hasta cuatro niveles);

76 capba IX PROGRAMA COMUNICACIONAL

− Vivienda multifamiliar o conjunto habitacional de alta densidad (más de cuatro niveles);

− Edificios no residenciales: administrativos y de equipamientos;

− Edificios no residenciales: comerciales y de arquitectura efímera; y

− Espacios públicos.

Como se enunciara, las exposiciones comenzaron en el mes de mayo, previendo su continuidad hasta fin de año exhibiendo obras de los matriculados de cada Delegación y sede.

Hasta el mes de septiembre, se han desarrollado las siguientes muestras:

Delegación La Costa

Inauguración: martes 15 de mayo a las 18 hs.

Lugar: Subsede de Martilleros de La Costa. Calle 1 nº 7976, Mar del Tuyú.

Cantidad de Obras Expuestas: diez [10]

Expositores: Jorgelina Alcántara BRAIDOT - Adriana ALCÓNClever ALZU MAMANI - Osvaldo COBOS - Juan Pablo FEDERICO

- Eduardo FEIJOÓ - Cristian López RIVOLTA - Ricardo REGGIANI

Delegación Balcarce

Inauguración: viernes 29 de mayo a las 18 hs.

Lugar: Foyer del Palacio Municipal. Calle 16 nº 602, Balcarce.

Cantidad de Obras Expuestas: once [11]

Expositores: Andrea ANTONETTI - Agustín BONAFINA - Patricio

CANTANDO FLEGO - Natalia CARBALLO - Marcos FISHER -

Antonio MANDIOLA - Alejandra MASSA - Pablo SARAVIA

- María Marta MIRANDE - Rosana MESCHINO - Yanina CAZZOLA

- Juan Manuel RODRÍGUEZ LLANOS - Leonardo SABALZA - Jorge TRIVIGNO - Aldana TROGLIA

Delegación Necochea

Inauguración: martes 10 de julio a las 18 hs.

Lugar: Hall de la Municipalidad de Necochea. Calle 56 nº 2945, Necochea.

Cantidad de Obras Expuestas: trece [13]

Expositores: Agustín AROCENA - Santiago AROCENA - Anahí D´ONOFRIO - Omar DEL GIORGIO - Ismael DEL RIO - Demián GIUNTI - Mariana LARSEN - Walter PÉREZ - Pamela SERRANO

- María Emilia CASALS - Margarita GURIDI - Gabriel DIEZSandra RETAMALES - Andrés SALOMÓN - Silvina SAN MARTÍNMartín SARASÍBAR - Andrés MOLINA FAVERO - Juan José VILLA

- Estudio Willie Zorzi y Asociados [Guillermo H. ZORZI - Arq. Luis H. ARROSIO - Troels LERFERDT - José Luis RUÍZ - Andrés MURILLO - Juan GAIDO]

Delegación Villa Gesell

Inauguración: viernes 24 de agosto a las 18 hs.

Lugar: Casa de la Cultura de Villa Gesell. Av. 3 nº 874, Villa Gesell.

Cantidad de Obras Expuestas: nueve [09]

Expositores: Claudio DE POI - Facundo CATELLA - Ariel GALERA

- Cesar AMARANTE - Francisco VILLAMIL - Pablo LA FROSSIA

- Dante MUZABER - Maximiliano SACCO - Martha PÉREZ

SCHNEIDER - Mónica TRAVAGLINI - Carlos SCHIFANO - Rodolfo RAVIER - Hugo DI CATARINA - María Teresa DI CATARINA

EXPOSICIONES
77 capba IX PROGRAMA COMUNICACIONAL

Delegación Pinamar

Inauguración: 18 de septiembre a las 18.00 hs.

Lugar: Honorable Concejo Deliberante de Pinamar. Calle Tritones N° 90 entre Av. Del Mar y Odiseo, Pinamar.

Cantidad de Obras Expuestas: dieciséis [16]

Expositores: Valentín AGUILERA - Susana BEICHLaura BERNAOLA - Nicolás BRUNO - Carla CABALLERO

- Julieta OZAFRÁN - María Silvia CÁCERES MONIÉTristana CANGIANO - Leandro CAPPARELLI - Gabriel

VIDAULI - Luis CISNEROS - Rodrigo PIZÁ - Ana

MENGARELLI - Pablo LAGARZA - Esteban SEGADEAriel GALERA - Cesar AMARANTE - Francisco VILLAMIL

- Rubén GARCÍA - Roberto LADAGA - Karina RUARTEDaniel PUGNALE - María Celeste SICCARDI - Guillermo

TEISCEIRA - Mario BLANGIFORTI - Ramón URANGA

Esta nueva edición de Arquitecturas del Sudeste Bonaerense ha sido declarada de interés por el Consejo Superior del CAPBA, Resolución 47/18, y por el Consejo Deliberante del Partido de Villa Gesell, Ordenanza N° 2450/18.

Además de ello, es de destacar la colaboración de entidades de las ciudades donde se han desarrollado las muestras, quienes han cedido los salones donde pudieron montarse cada exposición, y la amplia cobertura de medios locales en cada oportunidad. Todo ello, contribuye al logro de los objetivos propuestos tendientes a instalar en el medio el rol profesional de los arquitectos y nuestra contribución a la construcción de las ciudades.

DECLARACIÓN DE INTERÉS CAPBA CS

RESOLUCIÓN N° 47 /18

Grupo:6-a

LA PLATA, 11 de julio de 2018.-

VISTO la solicitud del CAPBA Distrito IX de declaración de interés de la "2° Muestra de Arquitectura del Sudeste de la Provincia de Buenos Aires, Aportes de los arquitectos en la conformación del hábitat"; y

CONSIDERANDO que es política del CAPBA promover, entre otras, acciones fundadas en innovaciones tecnológicas.

Por ello, el CONSEJO SUPERIOR DEL COLEGIO DE ARQUITECTOS DE LA PROVINCIA DE BUENOS AIRES, en sesión de la fecha

RESUELVE

Art. 1°) Declarar de interés Institucional la "2° muestra de Arquitectura del Sudeste de la Provincia de Buenos Aires, aportes de los arquitectos en la conformación del hábitat"; organizada por el CAPBA Distrito IX entre los meses de mayo y noviembre en las localidades de Mar del Tuyú, Balcarce Necochea, Villa Gesell, Pinamar, Mar del Plata y Miramar.

Art. 2°) Difundir por intermedio de los distintos Organismos y medios de publicación CAPBA la realización del mismo para matriculados tengan conocimiento.

Art.° 3) Comuníquese a los Distritos. Publíquese en el Boletín Oficial y posteriormente ARCHIVESE.

78 capba IX PROGRAMA COMUNICACIONAL
Arq. Maria BOTTA Secretaria CAPBA CS Arq. Adela MARTINEZ Presidenta CAPBA CS

Las ciudades en los medios audiovisuales:

Costa Rica: PURA VIDA

Es la 5ª entrega de la columna que naciera por iniciativa del experto en cine Rodrigo Sabio en su programa “Siempre es tarde”, por Radio Universidad. En esta oportunidad la nota refiere a un mix entre un film y breve viaje por este sorprendente y natural país…

FILM: RUNNER RUNNER (2013) Apuesta Máxima

Director y Guionista:

Brad FURMAN

Género:

Drama, Policial, Suspenso

Protagonistas:

Justin TIMBERLAKE, Gemma ARTERTON y Ben AFFLECK

Guión:

Brian KOPPELMAN y David LEVIEN

Música:

Christopher BECK

Productora:

Via Apia, Leonardo DiCaprio y otros

País:

EEUU

Duración: 91 min

Para referirse al paisaje de Costa Rica hay que fusionar en una proporción muy desigual la naturaleza con la urbanidad.

En el film se visualizan las “haciendas” que a lo largo de ese pequeño país van conformando una geografía muy particular estructurada por una costilla montañosa central longitudinal de dirección noroeste- sureste dividida en cuatro cordilleras desde donde nacen los ríos que desembocan en las vertientes de ambos océanos.

Todos estos paisajes tienen ese doble juego de estar a la vista y ocultos a la vez, lo que permite disfrutar los más bellos y magníficos estamentos de una naturaleza casi virgen, mochila y agua en mano, caminando por varias horas o bajando 510 escalones -que después hay que subir- son factibles de contemplación por parte de quien se anima a tales travesías. Su lema, forma de saludo y hasta de bendición es: ¡¡¡¡PURA VIDA!!!! Y eso es Costa Rica, un manantial de serenidad humana.

ALGUNOS DATOS DEL PAÍS

Costa Rica se ubica en América Central y limita al norte con Nicaragua, el mar Caribe al este, Panamá al sureste y el océano Pacífico al oeste. Está compuesta por 7 Provincias que ocupan un territorio de 51.100 km2 (nuestra Jujuy tiene 53.219 km2) y en él residen 5.003.393 hab. (INEC). Está considerado como el estado más feliz, ecológico, verde y sostenible de todo el planeta, según el Happy Planet Index (2016).

La longitud del litoral es de 1.228 km, de los cuales 1.016 están en la costa pacífica, que presenta irregularidades como penínsulas, golfos y bahías, condición que facilita el establecimiento de zonas portuarias y para el desarrollo turístico. Por el contrario, la costa del Caribe es más regular, pero menos apta para este tipo de instalaciones, y se extiende por 212 km en el mar Caribe.

80 capba IX PROGRAMA COMUNICACIONAL

LA OCUPACIÓN DEL PAÍS Y SU CARACTERIZACIÓN TERRITORIAL

Cristóbal Colón llegó al actual territorio de Costa Rica el 25 de septiembre de 1502 en su 4º viaje, pero su destino era Panamá buscando el “estrecho dudoso”: un estrecho que garantizaría el acceso hacia el Océano Índico para alcanzar el Lejano Oriente. Luego vendrían otros españoles en pos de la conquista, y así se suceden: Diego de Nicuesa, Vasco Núñez de Balboa, Juan de Castañeda y Gil González Dávila. Seguirán más expediciones capitaneadas por los españoles entre 1510 y 1544, hasta que recién en 1540 Diego Gutiérrez es nombrado el 1º gobernador de Nueva Cartago y Costa Rica, la que pertenecía a la Audiencia y Cancillería Real de Panamá en Tierra Firme, hasta 1544. El territorio costarricense presenta una distribución que tiene su arraigo más incipiente en factores medulares como su ubicación geográfica regional y sus dos vertientes (Atlántica y Pacífica) las cuales han definido un eje de desarrollo económico, social y urbano a través de la historia. Este factor, aunado a las condiciones geológicas, topográficas y climáticas en el valle inter montano central del país, ha definido la apropiación del territorio al día de hoy. (MIVAH, 2010:2)

Sus ciudades crecen desordenadamente, linealmente siguiendo al recurso de la ribera las costeras tanto del atlántico como las del pacífico, y de forma más radial las mediterráneas centrales. Si bien estas últimas presentan un significativo avance de planificación con respecto a aquellas. Lo que tienen en común es que el desarrollo de las ciudades costarricenses se debe a la evolución del sistema político y económico. La primera etapa está asociada a la conquista española, por lo cual las ciudades que datan de esta época se crearon con el esquema tradicional de la cuadrícula, modelo que caracteriza el urbanismo del país en el siglo XIX y la primera mitad del siglo XX. (Secretaría Técnica PNDU, 2001).

CIUDADES EN EL CINE
81

En las décadas siguientes, ´80 y ´90, predomina un urbanismo estático y reglamentario con fuerte influencia del movimiento moderno. Explotan los procesos de urbanización, la llegada de importantes inversiones asociadas a la actividad turística y el despoblamiento de los centros urbanos. Los primeros años del siglo XXI se identifican por el renacimiento de la discusión del modelo de ciudad y nuevas propuestas de gestión urbana, en medio de una crisis de habitabilidad sin precedentes en las ciudades del país.

El país experimenta una carencia de planes de desarrollo urbano a nivel local que repercute negativamente en la calidad de vida de la población. En las últimas décadas la gestión urbana presentó pocos avances, caracterizada por la escasa aprobación de planes reguladores y regionales. Actualmente, únicamente 42 de los 81 de los municipios cuentan con algún nivel de planificación urbana y sólo la Gran Área Metropolitana (GAM) con un plan regional (INVU, 2015). Adicionalmente, un gran número de los planes reguladores vigentes se encuentran desactualizados y abarcan únicamente los centros urbanos de los cantones.

Desde el punto de vista demográfico Costa Rica mantiene un crecimiento casi nulo hasta el siglo XVIII, cuando la población no superaba los 50 mil habitantes. En el siguiente siglo se produce un violento crecimiento poblacional que termina por quintuplicar la población (Censo de 1892, Rosero, 2004).

Después de la independencia de la corona española (1821), las ciudades de Cartago, San José, Heredia y Alajuela se disputan la sede del estado costarricense hasta 1938, año en que se establece de manera permanente la capital en la ciudad de San José. En términos territoriales, en el siglo XIX predominan una serie de poblados concentrados en el valle central que aglomeran la mayoría de actividades económicas y administrativas como producto del auge de la actividad cafetalera.

En el siglo XIX y primera mitad del siglo XX, la consolidación de la oligarquía cafetalera va de la mano con la colonización y creación de poblados vinculados a las rutas comerciales. Por otra parte, el estado nacional empieza a crecer y asume cada vez más funciones que originalmente eran competencia de los gobiernos locales. En la segunda mitad del siglo XX, continúa el aumento de la población y el fortalecimiento del estado como interventor en las dinámicas urbanas y territoriales [Tabla 1 y Figura 2]. En la década de los ´80 se da un giro hacia un sistema económico más abierto que privilegia las exportaciones y la inserción del país en las dinámicas del mercado global. Se consolida la urbanización de la población costarricense que alcanza el 72% (INEC, 2011).

Población Urbana de Costa Rica

Año1950196019701980199020002010

Población urbana 268.286456.963707.6491.012.1491.539.3372.320.3823.452.158

%33,49%34,25%38,83%43,10%50%59,05%72,87%

Tabla 1. Población Urbana en Costa Rica. Elaboración con datos del INEC. Jiménez Céspedes.

El sistema hoy se conforma con el GAM, una serie de ciudades intermedias, de 50.000 a 200.000 habitantes, las que responden a centralidades regionales y actúan como polos económicos y de servicios. En el 3º orden del sistema se encuentran las ciudades pequeñas, constituidas por núcleos

urbanos con una población menor que responden a dinámicas subregionales. Se caracterizan por el desarrollo urbano sobre los ejes viales, aunque algunas cuentan con desarrollos en cuadrícula. Muchas están asociadas a la actividad agrícola o turística.

LA CIUDAD DE SAN JOSÉ DE COSTA RICA HOY

San José es una ciudad que se ha expandido sin que mediaran procesos de planificación, con una baja densidad edilicia lo que implica un alto consumo de suelo urbano, de energía, un transporte público escaso y muy deficiente dada su baja rentabilidad. El 73% del país vive en zonas urbanas el que tiene grandes zonas despobladas y que se estructura en relación al GAM, lo que ha venido acompañado de un crecimiento lineal de baja densidad y la puesta en peligro, desde lo ambiental, de importantes recursos naturales como consecuencia de estos patrones de desarrollo (Secretaría Técnica PNDU, 2001). Siendo estos uno de sus principales valores.

Acerca de la capital, Jiménez Céspedes (2017), refiere a que se estructura en 5 fases desde el año 1900. El GAM está constituida por una serie de ciudades y sub-centros conurbados en las zonas periféricas y circundantes a San José, ciudad que ha visto disminuido su papel de centralidad (Secretaría Técnica PNDU, 2001). Es el centro jerárquico del sistema, por la cantidad de población, producción y actividades que concentra. Actualmente, la zona delimitada dentro del anillo de contención urbano comprende más de 44.000 has., donde se ha centralizado el mayor crecimiento urbano y los otrora límites de las ciudades han ido desapareciendo (Diagnóstico PRUGAM, 2008)

El 1º período (1900-1948) es el de la ciudad bucólica, coincidente con un estado oligárquico y la consolidación de la república costarricense. Las ciudades fundadas en esta época siguen con la tradición del sistema español en damero con manzanas de 80x80 varas de vías y amanzanamiento y en el

CIUDADES EN EL CINE
Figura 2. Mapa del sistema de ciudades costarricense en 2011 según población. Datos del Censo Nacional de Población del 2011. Jiménez Céspedes.
83 capba IX PROGRAMA COMUNICACIONAL

centro del sistema el poder central: la municipalidad, la iglesia y en la plaza el fútbol.

La relación Atlántico-Pacífico se robustece con la aparición del ferrocarril; y como consecuencia, se establece un corredor de poblados a lo largo del eje interoceánico, con las ciudades de Puntarenas y Limón en los extremos, San José en el centro y una serie de pueblos que se consolidan gracias a la actividad económica.

En este período se ubican los primeros programas específicos para el mejoramiento de las condiciones de vivienda, enfocados desde la perspectiva de la salud pública. A principios de siglo el paisaje de las ciudades se encuentra dominado por construcciones de adobe, bahareque y otras técnicas derivadas de las tradiciones indígenas locales, por lo que en 1922 se sanciona la Ley nº 23 que procura garantizar a familias de escasos recursos el acceso a la vivienda sin pagar impuestos.

El 2º período (1968-1981) el de la ciudad proyecto. Es un período que se caracteriza por la propuesta y construcción de importantes proyectos en materia de planificación. Destaca la participación del INVU. Como consecuencia, nacen varias propuestas enfocadas en la GAM, como la construcción del anillo de circunvalación, la construcción de la carretera a Guápiles, el estudio DRENACA, los insumos del Sistema Urbano Metropolitano (SUM), el Centro Cívico y Anillo de Renovación Urbana, la Ley de la Zona Marítimo Terrestre y el primer Reglamento para el Control Nacional de Fraccionamientos y Urbanizaciones, son sólo algunos ejemplos.

En la GAM el crecimiento de la población, la migración campo-ciudad y la presión por el acceso a vivienda consolidan los procesos de transformación de suelo rural a urbano: La sustitución de cafetales por urbanización a partir de la década de los 70 fue promoviendo un proceso de conurbación alrededor de San José y de las demás ciudades del Valle Central,

y ha conformado finalmente una sola área metropolitana en donde se han ido diluyendo los límites entre centros urbanos. (Diagnóstico PRUGAM, 2008:205)

Con la Ley de Planificación Urbana el reto de los planes reguladores cantonales recae en las municipales y en el INVU, también facultado para elaborarlos. En todos los casos los planes reguladores son parciales, comprendiendo únicamente las áreas urbanas ya constituidas, dejando de lado los entornos rurales y naturales en la mayoría de los casos. Esta visión moderna -y tradicional- del urbanismo sigue vigente en numerosos planes que no han sido actualizados. Con la incursión de los conceptos de Ordenamiento Territorial -Carta Europea de OT, 1983- y Desarrollo Sostenible, esta visión empieza a ser cuestionada.

El 3º período (1982-2000) es un Período Expansivo, el de la ciudad instantánea de baja densidad, es el período de mayor expansión de la planta urbana construida, tanto la formal y en mayor medida la no formal, haciendo evidente un proceso de segregación residencial por estrato socio-económico, proceso que se agudizará en el siguiente período, en donde surgirán las urbanizaciones cerradas.

Uno de los principales promotores de este proceso de transformación es el Sistema Financiero Nacional para la Vivienda (SFNV 1986), ministerio sin cartera que a la fecha ha alcanzado más de 300 mil viviendas, que según especialistas “ha sacrificado la intervención en la ciudad por la construcción de soluciones desarticuladas”.

De la misma manera, las ciudades intermedias empiezan a experimentar un crecimiento de su población urbana. Aunque su dinámica sigue siendo primordialmente agrícola, la concentración de servicios e instituciones públicas atrae a la población en su rango de influencia. Por otra parte, la llegada del desarrollo turístico significa el inicio de importantes procesos

84 capba IX PROGRAMA COMUNICACIONAL
Figura 3. Fases de la planificación urbana en Costa Rica desde 1900 a la fecha. Jiménez Céspedes

de transformación de las costas y zonas de interés turístico. Desde la década de 1980 el desarrollo turístico en Costa Rica se ha consolidado como la principal fuente de divisas del país. Según el Consejo Mundial de Viajes y Turismo, el aporte directo del turismo al Producto Interno Bruto costarricense ascendió al 4,8% en el 2015 y alcanza el 12,6% en su contribución total. Casi tres puntos sobre el 9,8% de media a nivel mundial (Jiménez, 2016:2).

Como consecuencia de la expansión de la actividad turística, las ciudades y poblados empiezan a experimentar un importante crecimiento, siendo los cantones costeros los más impactados. El parcelamiento agrícola con fines de turismo residencial y la expansión de la infraestructura asociada a la actividad turística es la consecuencia más palpable. La planificación de la Zona Marítimo Terrestre por medio de planes reguladores costeros, se erige como la estrategia para controlar y promover el correcto desarrollo de estas zonas.

El 4º período (2000 a la actualidad) es el de la ciudad Fragmentada. Desde lo conceptual existe una escisión entre modelo de ciudad y ocupación del territorio. Chocarán en este proceso el sector público y el privado, especialmente el sector inmobiliario y el de la construcción, en torno a las iniciativas de planificación urbana y grandes proyectos turísticos.

Uno de los aspectos más negativos de este período es la expansión de la mancha urbana y la proliferación de las urbanizaciones cerradas bajo régimen de condominio. El Reglamento de Condominios (2005) eximes las cesiones para calles y áreas públicas estipuladas en la Ley de Planificación Urbana. En los primeros años del siglo, se detecta una migración interna en la GAM que beneficia el despoblamiento de los centros urbanos y la urbanización de cantones periféricos, en parte, producto de esta oferta inmobiliaria. (Barquero, J. Molina, W., 2012). Según el vigésimo primer Informe del Estado de la Nación, San José experimentó una perdida habitacional del 5% mientras que los cantones periféricos de la GAM aumentaron su población en un 15%. El auge de los centros comerciales tipo “Mall” y el despoblamiento de los centros urbanos, vienen a reforzar esta tendencia de abandono del espacio público y la vida urbana.

CASI FIN DEL VIAJE…. DEL RELATO

Quizás no tengan superestrellas a los ojos del planeta. Alguien sabe quién es Harrry Shum jr. bailarín de Glee, o Keylor Navas jugador del Real Madrid, o Franklin Chang exastronauta; pero cómo olvidar sus bellos paisajes naturales, en donde alternar playas paradisíacas, volcanes, ríos -como no destacar al “rio celeste”-. Excentricidades en frutas como el mamón chino, que todo tenga escaleras, y muchas. Mi voto a las playas del pacífico, sus parques nacionales; sus 500 volcanes -4 activosImágenes de perezosos, iguanas, monos, ardillas, cocodrilos, arañas, etc. Todo eso perdurará en mi memoria, y alguna generó más de un chillido, de ternura en algunos casos y de miedito otras. Sus puestas de sol. ¡Ese paisaje infinito colmado de naturaleza hace mal para una chica de hormigón y ciudad!

Arq. Adriana B. Olivera [MP Nº 12761]

Docente Facultad de Arquitectura, Urbanismo y Diseño UNMdP

BIBLIOGRAFÍA

BARQUERO, J., MOLINA, W. (2012). Nuevas Tendencias de la Migración Interna en Costa Rica. Hacia un Patrón de Migración Intrametropolitana en la GAM 2000-2011. San José, Costa Rica: Presentado en el Simposio Costa Rica a la luz del Censo 2011 8 y 9 de noviembre 2012.

BRENES, E. (2008). Propuesta de desarrollo urbano costarricense. Antecedentes, alternativas y desafíos. Revista Geográfica de América Central, Vol. 1.

INVU. (1982). Plan Regional de la Gran Área Metropolitana GAM. San José, Costa Rica.

JIMÉNEZ, R. (2016). El papel de la normativa en el desarrollo turístico y la protección de los recursos naturales en la Región Chorotega, Costa Rica. Investigación de Maestría en Proyecto de Arquitectura y Ciudad con Énfasis en Intervenciones Urbanas Estratégicas. Madrid, España.

JIMÉNEZ, R. (2016). “De la urbanización a la intervención urbana estratégica: Instrumentos de planificación intermedia en costa rica”, en: Revista Arquis 10, 5(2), 14-33.

MIVAH. (2010). Breve Reseña del Ordenamiento Territorial en Costa Rica. Montes de Oca, Costa Rica: Ministerio de Vivienda y Asentamientos Humanos.

MIVAH. TEC. (2014). Consejo Nacional de Planificación Urbana. Secretaría Técnica del Plan Nacional de Desarrollo Urbano. Plan de la Gran Área Metropolitana Plan GAM 2013-2030. San José, Costa Rica.

Secretaría Técnica del Plan Nacional de Desarrollo Urbano. (2008). Plan Regional Urbano de la Gran Área Metropolitana de Costa Rica. Tomo I y II: Diagnóstico Plan PRUGAM 2008-2030. San José, Costa Rica: Consejo Nacional de Planificación Urbana.

Secretaría Técnica del Plan Nacional de Desarrollo Urbano. (2001). In Brusilovsky B, Martínez T, Pujol R (Ed.), Documento final del grupo de urbanismo y uso del suelo. San José, Costa Rica: Consejo Nacional de Planificación Urbana.

NOTA: LA INFOGRAFÍA Y LA DESCRIPCIÓN DEL SISTEMA NACIONAL DE COSTA RICA HA SIDO EXTRAÍDO TEXTUAL DE: Arq. Roy Allan JIMÉNEZ CÉSPEDES (2017). Planificación Urbana en Costa Rica. Apuntes sobre nuestra forma de hacer ciudad en el último siglo

CIUDADES EN EL CINE
Figura 4. Mapa con la situación de los planes reguladores al año 2015. En base a datos del INVU. Jiménez Céspedes.
85 capba IX PROGRAMA COMUNICACIONAL

Actividad Profesional en

el Distrito IX en el 1° semestre de 2018

Comparativo interanual.

Se han elaborado las estadísticas de obra a construir, nueva o ampliación, del primer semestre del año en curso y su relación con los años precedentes, más la comparativa de la actividad con igual período del año anterior.

Primer semestre de 2018

El total de superficie de obra a construir durante los primeros seis meses del año 2018 suman 296.887m2, lo cual significa una pequeña baja respecto del año anterior, el 0.85%, pero este valor se encuentra dentro de los parámetros en que se ha desarrollando la actividad en los últimos cinco años, es decir que se viene produciendo hasta ahora una suerte de amecetamiento de las tareas profesionales presentadas en el ámbito del distrito IX.

Proyecto Tipo de Obra, en m2

Tipo de Obra m2 %

Vivienda gral. 157.96053,21

Industria 51.79517,45

Comercio 27.8089,37

Cochera 11.4803,87

Espacio Público 10.5463,55

Deporte, Cultura 9.3783,16

Salud 7.7132,60

Administración 7.4852,52

Hotelería 7.0982,39

Gastromomía 4.1181,39

Bancos y Otros 1.5060,51

Total 296.887100

Cantidad m2 por tipo de Obra

Gráfico 1. Fuente Sistema CAPBA en Línea

0 20.000 40.000 60.000 80.000 100.000 120.000 140.000 160.000 180.000
capba IX INSERCIÓN PROFESIONAL 86
m2

Proyecto Tipo de Obra monto de obra ($)

Tipo de Obra Monto Obra ($)%

Vivienda gral. 1.818.392.16964,55

Industria 283.960.22910,08

Comercio 244.977.7528,70

Hotelería 99.996.2673,55

Administración 88.595.1353,14

Salud 71.809.0872,55

Deporte, Cultura 70.798.0772,51

Cochera 59.023.4282,10

Gastromomía 48.909.8971,74

Bancos y Otros 30.720.7961,09

Espacio Público 8.578.4410,30

Total 2.817.182.837100

Gráfico 2. Fuente Sistema CAPBA en Línea

En los gráficos estadísticos de superficies y monto de obra por rubro, si bien todas las variantes de Vivienda siguen estando en el primer lugar en cuanto a cantidad de superficie (el 53,21% con 157.960 m2) ha disminuido la superficie y el porcentaje respecto de igual período del año precedente (71.80% con 214.996 m2). Asimismo, se ha producido un incremento de los otros rubros siendo los más relevantes la Industria y almacenaje (17.45% con 51.795 m2), Comercio (9.37% con 27.808 m2). En cambio, si se toma como referencia el valor en juego o monto de obra varía el porcentaje, encabezando la Vivienda en general con el 64.55%, seguido por la Industria y almacenaje con el 10.08% y el Comercio con el 8.70%.

Cantidad m2 por tipo de

Proyecto

0 200.000.000 400.000.000 600.000.000 800.000.000 1.000.000.000 1.200.000.000 1.400.000.000 1.600.000.000 1.800.000.000 2.000.000.000 Monto Obra ($) Monto Obra ($)
Vivienda, en m2 Tipo Vivienda m2% Multi + 4 Pisos 49.31731,22 Multi hasta 4 Pisos 25.41016,09 Unifamiliar A 22.81314,44 Unifamiliar C 20.16812,77 Unifamiliar B 13.6958,67 Unifamiliar D 11.8467,50 Unifamiliar E 11.6007,34 Piscinas 2.6381,67 Int. Social <70m2 2850,18 Industrializada 1880,12 Total 157.960100
ESTADÍSTICAS
Proyecto
Vivienda monto de Obra ($) Tipo Vivienda monto ($)% Multi + 4 Pisos519.933.17428,59 Multi hasta 4 Pisos316.412.27017,40 Unifamiliar C 245.618.96913,51 Unifamiliar A 214.419.96111,79 Unifamiliar D 180.726.8909,94 Unifamiliar E 173.350.4359,53 Unifamiliar B 152.363.4588,38 Piscinas 14.059.1220,77 Industrializada 1.367.0320,08 Int. Social <70m2 140.8580,01 Total 1.818.392.169100 Gráficos 3 y 4. Fuente Sistema CAPBA en Línea 0 10.000 20.000 30.000 40.000 50.000 60.000
Vivienda m2 0 100.000.000 200.000.000 300.000.000 400.000.000 500.000.000 600.000.000
($) capba IX INSERCIÓN PROFESIONAL 87
monto

En relación a los rubros de Vivienda, en primer lugar se encuentran los edificios destinados a vivienda multifamiliar mayores a 4 pisos (31.22% con 49.317 m2) sin embargo presenta una disminución considerable respecto al mismo período del año 2017 (44.78% con 102.684 m2), seguido por la vivienda multifamiliar de hasta 4 pisos (16.09% con 25.410 m2), la vivienda unifamiliar tipo A (14.44% con 22.813 m2) y la del tipo C (12.77% con 20.168 m2), por otra parte es de destacar que si se suman todas las categorías de Vivienda unifamiliar representaría en primer valor (51.02% con 80.595 m2). Esta misma clasificación por monto de obra arroja valores similares al de las superficies, multifamiliar mayor a 4 pisos (28.59%), hasta 4 pisos (17.40%), vivienda unifamiliar tipo A (11.79%), tipo C (13.51%), y la suma de todas las variantes de viviendas unifamiliares (53.24%).

Fuente de Superficie de Obra a Construir Sistema CAPBA en Línea Evolución últimos cinco años Como en otras publicaciones anteriores, se publican los m2 de superficie de obra nueva por mes de los años en donde se puede apreciar las variaciones mensuales y divididas por semestre. El valor mensual promedio es de 52.717 m2, en este primer semestre de 2018 el promedio mensual está por debajo un 6.13% comparado con el total, si bien constituye una tendencia a la baja, no dejan de ser valores que se encuentran comprendidos entre los mínimos y máximos registrados en estos cinco años, y recordando que la actividad siempre acompaña las condiciones económico-productivas generales.

Evolución últimos 57 meses en m2 MES m2 ene-14 91.343 feb-14 84.856 mar-14 129.443 abr-14 68.654 may-14 39.935 jun-14 48.227 jul-14 46.182 ago-14 44.169 sep-14 60.471 oct-14 43.616 nov-14 33.174 dic-14 60.334 ene-15 48.139 feb-15 88.509 mar-15 42.419 abr-15 49.601 may-15 42.505 jun-15 55.718 jul-15 68.466 ago-15 87.336 sep-15 64.583 oct-15 52.469 nov-15 47.829 dic-15 32.965 ene-16 32.737 feb-16 57.832 mar-16 37.628 abr-16 31.396 may-16 48.012 jun-16 40.738 jul-16 49.682 ago-16 131.397 sep-16 34.698 oct-16 35.754 nov-16 29.679 dic-16 43.561 ene-17 38.047 feb-17 37.183 mar-17 138.177 abr-17 27.097 may-17 25.775 jun-17 33.151 jul-17 40.106 ago-17 62.239 sep-17 110.451 oct-17 48.524 nov-17 54.517 dic-17 34.649 ene-18 50.839 feb-18 62.378 mar-18 80.147 abr-18 30.618 may-18 26.915 jun-18 45.990 jul-18 53.997 ago-18 34.044 sep-18 92.249 Total 3.004.857
0 20.000 40.000 60.000 80.000 100.000 120.000 140.000 160.000
Evolución ultimos 57 meses en Metros cuadrados
capba IX INSERCIÓN PROFESIONAL 88
m2 Lineal (m2) Polinómica (m2)

COMPARACION 2017-2018

Comparación 2017-2018

Según los datos del sistema CAPBA en Línea, y tomando como período de referencia los primeros seis meses de cada año, se puede apreciar que la actividad de todos los meses fue superior en 2018 respecto de 2017, con la excepción del mes de marzo, que justamente es coincidente con el cambio de los valores referenciales, a pesar de que ese punto máximo disminuyó de 138.177 m2 en 2017 a 80.147 m2 en 2018, el total de cada semestre tan solo ha producido una baja inferior al 1%, es decir que las presentaciones de legajos de obra a construir se han repartido con menos altibajos de lo habitual. Volviendo al gráfico anterior y tomando los datos del tercer trimestre, se observa una baja del 15.09% respecto del 2017, con un detrimento de 212.796 m2 a 180.290m2, ya generando una disminución más significativa. Aunque los valores cada mes se aprecian erráticos.

Arq. Bruno Mazzini [MP. Nº 10836]

Arq. Claudia Noto [MP. Nº 15671]

ESTADÍSTICAS
Gráfico 6. Fuente Sistema CAPBA en Línea
20182017 Enero
Febrero
Marzo
Abril
Mayo
Junio 45.99033.151 Totales 296.887299.430 0 20.00040.00060.00080.000100.000120.000140.000160.000 Enero Febrero Marzo Abril Mayo Junio
Primeros Semestres
50.83938.047
62.37837.183
80.147138.177
30.61827.097
26.91525.775
89

ARQUITECTOS EN LA REGIÓN DEL SUDESTE BONAERENSE

La Facultad de Arquitectura, Urbanismo y Diseño de la UNMdP tiene más de 55 años, creada en el año 1962, desde entonces su rol ha sido esencial en la formación de los profesionales que actúan en la región sudeste de la Provincia de Buenos Aires. En esta edición compartimos una breve caracterización de la composición de nuestra matrícula y la incidencia de la FAUD en ello.

El área de influencia de la Universidad Nacional de Mar del Plata, se encuentra definida territorialmente como la región sudeste de la provincia de Buenos Aires. Sin embargo, debemos reconocer que con el crecimiento de las prácticas educativas a distancia el concepto de área de influencia admite una mirada que excede lo estrictamente territorial. En este caso, a los fines de precisar el campo de análisis, y dado que la carrera de Arquitectura es presencial, se mantiene esa unidad de territorio a los efectos de graficar sus alcances.

En cuanto a la matrícula de estudiantes inscriptos a la carrera de arquitectura de la FAUD-UNMdP se observa que, aproximadamente, el 40% de los estudiantes no son residentes de la ciudad de Mar del Plata.

La carrera de arquitectura de la UNMdP tiene un impacto regional en la formación de profesionales capacitados para el desempeño de los alcances del título de arquitecto, en el marco además de las evaluaciones y procesos de acreditación que requieren las actividades profesionales alcanzadas por el artículo 43° de la Ley de Educación Superior [LES]. Los profesionales egresados de la FAUD-UNMdP tienen como principal área de inserción laboral la región del sudeste bonaerense, compuesta por los territorios de competencia de los Distritos VIII, IX y X del Colegio de Arquitectos de la Provincia de Buenos Aires [CAPBA].

CAPBA VIII

CAPBA IX

CAPBA X

Ilustración 1. Mapa Región Sudeste PBA

Cabe señalar que, actualmente la FAUD tiene dos [2] sedes de dictado de la carrera de arquitectura. La sede MdP es la única que tiene graduados a la fecha, mientras que, la Sede Tres Arroyos, donde se dictan las cohortes 2014 y 2015 de esta carrera comenzará a tener graduados a partir de fines del año 2020.

En dicho territorio, integrado por 39 Partidos de la Provincia de Buenos Aires [29%] se registran 2745 matriculados en el

Incidencia de los graduados de la Universidad Nacional de Mar del Plata
90 FORTALECIMIENTO Y VÍNCULOS INSTITUCIONALES capba IX

CAPBA VIII

[Ayacucho, Azul, Gral. Alvear, Gral. Lamadrid, Juárez, Laprida, Las Flores, Olavarría, Rauch, Saladillo, Tandil y Tapalqué]

CAPBA IX

[Balcarce, Gral. Alvarado, Gral. Guido, Gral. Lavalle, Gral. Madariaga, Gral. Pueyrredón, La Costa, Lobería, Maipú, Mar Chiquita, Necochea, Pinamar, San Cayetano y Villa Gesell]

CAPBA X

[Bahía Blanca, C. Dorrego, C. Pringles, C. Rosales, C. Suárez, González Chaves, Monte Hermoso, Patagones, Puán, Saavedra, Tornquist, Tres Arroyos y Villarino]

IMPACTO DE GRADUADOS FAUD-UNMDP EN LA REGIÓN SUDESTE DE LA PBA

FAUD-UNMDP
COMPOSICIÓN DISTRITO UNIVERSIDAD DE ORIGEN Distrito Delegación Total Matriculados UNMdP UNLP CATÓLICA LP UBA MORÓN BELGR. PALERMO Otras Nacionales Otras Extranjeras
Azul 5383101102100 Olavarría 76193301705110 Tandil 184476925523150 Ayacucho 164120000000 Las Flores 190111700000 Rauch 201160200010 Saladillo 351222701020 Benito Juárez 17681200000 TOTAL 420862026101211390
Mar del Plata 1381123348274361140 Necochea 122703101114050 Miramar 412330910050 Balcarce 574960200000 La Costa 69181812511320 Pinamar 1383929146215150 Villa Gesell 72271002453030 TOTAL 18801459145419113295340
Bahía Blanca 334551665611137251 Tres Arroyos 66233001003000 Coronel Suárez 253120901000 Carmen de Patagones200171200000 TOTAL 445812256821177251 REGIÓN SUDESTE PBA TOTAL 2745162657216374165715681
91
Tabla 1. Universidad de origen matriculados CAPBA región sudeste PBA

CAPBA de los 13936 de toda la provincia [20%]. La incidencia de la formación de grado de profesionales egresados de la UNMdP en la región de análisis es del 59%, siendo su epicentro el Partido de General Pueyrredón –cabecera del CAPBA IX y Sede Central de la FAUD-UNMdP- llegando el porcentaje de matriculación respecto de la cantidad de egresados de la FAUD al 89%; además de ello, resulta significativa en la región la incidencia de las Universidades Nacionales de La Plata y Buenos Aires, 21% y 14% respectivamente, siendo un factor importante la conectividad de las localidades con los centros de estudios, quedando el 11% restante en el ámbito de otras universidades nacionales y extranjeras.

Al mes de mayo, fecha de corte de la presente caracterización, la composición del registro de graduados de la carrera de arquitectura –según datos del sistema SIU GUARANÍ- es el siguiente:

Carrera GradoGraduados Fecha 1º graduación

Arquitectura [ARQ] 345913/06/1969

Tabla 2. Graduados carrera de Arquitectura FAUD. Fuente: División Alumnos FAUD-UNMdP, SIU Guaraní.

Los graduados de la FAUD se insertan en el medio socio productivo en diversos sitios de la región y el mundo, lo cual denota la flexibilidad y adaptabilidad del perfil de egresado para adaptarse a diferentes contextos culturales, económicos y productivos.

GRADUADOS EN EL PERÍODO 2009-2017

Según los datos relevados tanto de fuentes propias como externas, en el período se registran 823 graduados lo que representa el 24% de la totalidad del padrón de egresados de la carrera de arquitectura desde su creación y expone un índice de graduación anual de 92 graduados promedio aproximadamente.

Según la información relevada en el Colegio de Arquitectos de la Provincia de Buenos Aires, en la región de influencia de la UNMdP, de la totalidad de egresados en el período de análisis se encuentran matriculados casi el 50% de los arquitectos graduados, condición que se considera indispensable para el desarrollo de la actividad específica. Asimismo, el análisis efectuado denota que los profesionales demoran su matriculación aproximadamente tres [3] años desde la fecha de egreso.

Por otro lado, la cantidad de graduados del período 20092017 matriculados en el CAPBA [411] representa el 15% de la totalidad de matriculados en la región sudeste de la PBA [2745] y el 25% respecto de los profesionales egresados de la UNMdP en la misma región de análisis [1626].

La actividad académica de los graduados más jóvenes expone que ingresan a la docencia paulatinamente, siendo la cantidad actual de egresados entre 2009-2017 de 50 docentes que se desempeñan en diversas áreas del conocimiento y de roles docentes.

Otro ámbito de desempeño de los profesionales, considerados actividades gerenciales, resultan organismos y dependencias públicas donde ocupan cargos técnicos y/o administrativos. No se disponen datos de actividades profesionales no específicas ni otras actividades productivas de los graduados. Asimismo, la determinación de la cantidad de desocupados implicaría el relevamiento de datos que actualmente no se disponen.

− Cantidad de Graduados: Cifra Informada por Departamento de Alumnos en base a información registrada en sistema SIU Guaraní

− Actividades Específicas: Se consideran los profesionales matriculados en el Colegio de Arquitectos de la Provincia de Buenos Aires que revisten la condición de regularidad necesaria para el ejercicio profesional en la región sudeste

− Actividades No Específicas: No se disponen datos de actividades no específicas (S/D)

− Actividades Académicas: Se consideran graduados de la FAUD-UNMdP que ejercen funciones docentes en el ámbito de la UUAA tanto sea en condición de regular, a término o interino, no se contempla la adscripción a la docencia. Fuente: Departamento de Docencia de la FAUD.

− Actividades Gerenciales: Se consideran profesionales que ejercen funciones en ámbitos públicos tales como municipios, universidades, etc. Fuente: datos propios

− Otras Actividades: no se disponen datos (S/D)

− Desocupados: Se considera la diferencia entre la cantidad total de graduados por año y los registros de actividades relevadas.

420 86 otrit V s I i II D Distrito IX Distrito X 1880 1459 445 81 92 FORTALECIMIENTO Y VÍNCULOS INSTITUCIONALES capba IX
Ilustración 2. Graduados FAUD en región Sudeste PBA

ALGUNAS REFLEXIONES

Sin duda alguna, los graduados de la Universidad Nacional de Mar del Plata tienen un gran protagonismo en ámbito territorial analizado. Por ello, el CAPBA y la FAUD deben fortalecer espacios de trabajo mancomunados tendientes, entre otros objetivos, a:

- intensificar en cantidad, diversidad y calidad la oferta de actualización profesional;

- acompañar al recién graduado en el período de transición entre la culminación de la formación de grado y la inserción profesional;

- bregar conjuntamente por el respeto de los alcances de los títulos que emite la Universidad y cuyo ejercicio profesional regulan los colegios profesionales;

- promover la reducción del período de matriculación en la colegiatura; y,

- acciones sociales y gremiales que favorezcan el desarrollo de un sentido de pertenencia a ambas instituciones.

bancos, bebederos, cestos bicicleteros, pilonas, deck urbanos juegos para chicos, pergolas etc etc

FAUD-UNMDP Año Cantidad de Graduados SIU Araucano Actividades profesionales específicas Actividades profesionales no específicas Actividad académica Actividades gerenciales Otras actividades Desocupados 200982 63 S/D 7 9 S/DS/D 201074 64 S/D 2 5 S/DS/D 2011 81 57 S/D 8 7 S/DS/D 201270 47 S/D 4 1 S/DS/D 201389 47 S/D 8 1 S/DS/D 201478 40 S/D 6 0 S/DS/D 201510746 S/D 8 0 S/DS/D 201613330 S/D 5 2 S/DS/D 201710917 S/D 2 1 S/DS/D 823411 0 50 26 0 0
Tabla 2. Registro de actividad de graduados 2009-2017
equipamiento urbano +diseño www.dipo.com.ar
Arq. Julia Romero [MP. Nº 19027]
223 4710156 Mar del Plata 93

2° INFORME DE MONITOREO CIUDADANO

El pasado jueves 9 de agosto se realizó un encuentro con los 70 investigadores y especialistas que dieron forma a cada uno de los capítulos del Segundo Informe de Monitoreo Ciudadano próximo a lanzarse.

La Sede de la Delegación Mar del Plata, de la Cámara Argentina de la Construcción, fue el punto de encuentro para la convocatoria realizada por la Red de Monitoreo Ciudadano Mar del Plata Entre Todos que reunió a profesionales de diversas disciplinas e instituciones que han participado y colaborado en la edición del Segundo Informe de Monitoreo Ciudadano.

Las palabras de bienvenida y agradecimiento estuvieron a cargo del señor Patricio Gerbi, Coordinador General de la Red cuya misión es: “Monitorear y socializar información confiable para que la sociedad, sus organizaciones y el gobierno, puedan involucrarse en la mejora de la calidad de vida actual y futura de la ciudad y la región”. Vale recordar que la Red se encuentra constituida por diez [10] entidades reconocidas de la ciudad: Universidad Nacional de Mar del Plata, Universidad Fasta, Universidad CAECE Sede Mar del Plata, Asociación Empresaria Hotelera Gastronómica de Mar del Plata y zona de influencia, Bolsa de Comercio de Mar del Plata, Cámara Argentina de la Construcción Delegación Mar del Plata, Centro de Constructores y Anexos de Mar del Plata, Colegio de Arquitectos de la Provincia de Buenos Aires

Distrito IX, Colegio de Martilleros y Corredores Públicos del Departamento Judicial Mar del Plata, Consejo Profesional de Ciencias Económicas de la Provincia de Buenos Aires Delegación General Pueyrredón.

Estás entidades han creado la Red como instrumento de participación ciudadana para el monitoreo de indicadores establecidos a partir de la inclusión de Mar del Plata en la Plataforma de Ciudades Emergentes y Sostenibles. Los valores que se ponderan son: Objetividad; Sustentabilidad; Calidad de la información; Plural, no partidario; Interés por lo colectivo; y, Participación.

En el encuentro también participaron las Autoridades de la Universidad Nacional, FASTA y CAECE, quienes brindaron palabras de reconocimiento al trabajo que se desarrolla a través de la Red y sobre la importancia para la ciudad de contar con este instrumento de participación.

En este sentido, la actividad fue organizada con intención de agradecer a cada uno de los investigadores y especialistas que participaron brindando aportes significativos para comprender la situación en la que se encuentra la ciudad desde un enfoque profesional e interdisciplinario.

Se realizó una reunión con profesionales y entidades que colaboraron en la edición de un nuevo informe
94 FORTALECIMIENTO Y VÍNCULOS INSTITUCIONALES capba IX

Segundo Informe, una nueva metodología

Luego del lanzamiento del Primer Informe de Monitoreo Ciudadano, se decidió profundizar el Segundo Informe para convertirlo en una herramienta más útil y con información más valiosa y específica que permita diagnosticar lo que sucede en Mar del Plata en distintos ámbitos.

Para lograrlo, se convocó a más de 60 especialistas para que sean ellos, de manera directa, quienes analicen e interpreten la información recopilada por Mar del Plata Entre Todos a través de indicadores y los resultados de la encuesta de percepción ciudadana.

su especificidad para brindar un diagnóstico confiable e integral y lograr una mayor integración con la ciudad. Es así que el Segundo Informe no sólo profundiza los capítulos existentes con nuevos indicadores sino que también incorpora nuevos capítulos, siendo 20 en total, y adapta de esta manera la herramienta aún más a la realidad de la ciudad.

MONITOREO CIUDADANO
De esta manera, una de las principales diferencias entre el Primer y el Segundo Informe es la autoría de cada uno de los capítulos, siendo en el primer caso la Red Mar del Plata Entre Todos, y en el Segundo Informe los especialistas que más saben de cada uno de los temas. Se trata de una nueva metodología de trabajo, una transformación hacia una plataforma de participación que permite crecer en la calidad del Informe, dar un salto cualitativo en el modo de valorar la información desde 95

PINTURERÍAS

DRAP PINTURERÍAS

Belgrano 3997 /Constitución 5601

J.B. Justo 2392 / Vict. Montes 2060

EMPRESA CONSTRUCTORA CONSCA

www.consca.com

MATERIALES DE CONSTRUCCIÓN

JUAN MANUEL LANDA

Av. Champagnat 1717 MdP www.juanmanuellanda.com.ar

CLIMATIZACIÓN

FRAVAMA CALEFACCIÓN

Alberti 3737 MdP

Facebook:/ fravama

MADERERA

MADERAS MISIONES

Av. Luro 3435

Av. J.B. Justo 5808 MdP www.maderasmisiones.com.ar

MATERIALES DE CONSTRUCCIÓN

CORRALÓN LOS HORNEROS

Av. Colón 10246 MdP

Fb:/ corralon los horneros

ASCENSORES

ASCENSORES ATLAS S.A.

Victoriano Montes 1450 MdP www.ascensoresatlas.com.ar

CORTINAS METALICAS MEDIAVILLA

Gascón 6105 MdP cortinasmediavilla@yahoo.com.ar

MATERIALES ELÉCTRICOS

CASA BLANCO

Independencia 1964 / Edison 432

Av. J. B. Justo 5758 dP www.casablanco.com

Guía de Proveedores

MATERIALES DE CONSTRUCCIÓN CERROSUD

Av. Juan B. Justo 2751 MdP www.cerrosud.com

PISOS Y REVESTIMIENTOS MDQ STONE

Calle de los reservistas 646 www.mdqstone.com.ar

REVESTIMIENTOS ESSIG

Av. Libertad 4555 MdP Calle 3 s/n Pque industrial Tandil www.essig.com.ar

MADERERA

FÁBRICA FADON S.A.

José Martí 445 MdP 12 de octubre 4787 www.fabricafadon.com.ar

ALUMINIO DOBUTI

O´Higgins 1250 MdP www.dobuti.com.ar

ALAMBRES

BALAGNA

Av. Luro 6607 MdP alambresbalagna@hotmail.com

GRIFERÍAS

FV

0810 555 5300 www.fvsa.com fvresponde@fvsa.com

ABERTURAS

ALUMINIO PVC

VIDAL

Moreno 4398 www.aluminiovidal.com.ar

CLIMATIZACIÓN GELSO CALEFACCIÓN

Av. Colón 5950 MdP www.gelsocalefaccion.com.ar

ALAMBRES EMIMAR

Av. Champagnat 693 MdP Fb:/alambres.emimar

MADERERA SAN FRANCISCO

Av. Juan B. Justo 5115

SEGURIDAD ELECTRONICA BLOCK

Av. Independencia 3246 MdP www.blockseguridad.com.ar

ABERTURAS ALUMINIO GRUPO LUMIO

J.B. Justo 1920 MdP www.grupolumio.com.ar

LADRILLOS PALMAR www.palmarsa.com.ar

EQUIPAMIENTO URBANO DIPO www.dipo.com.ar

MATERIALES DE CONSTRUCCIÓN COVALTO

Av. Colón 4180 esq. San Juan www.covaltomardelplata.com

CARPINTERÍA CONTINENTAL

Av. J. B. Justo 3146 MdP

Fb:/Carpintería Continental

PINTURERIAS COLORSHOP

Fb:/colorshop mar del plata

CALEFACCIÓN MALVICA CALEFACCIÓN Alberti 3786 MdP

PINTURAS ALBA PINTURERÍAS DEL CENTRO Av. Luro 3059 y sucursales

NEGOCIOS Y PYMES BANCO GALICIA www.bancogalicia.com

AUTOELEVADORES INDIA TRANS

República de Cuba 450 Mar del Plata

MATERIALES PARA LA CONSTRUCCIÓN EASY

Ruta 2 y Av. Della Paolera www.mundoexperto.com.ar

ABERTURAS ALUMINIO C.E.B. www.cebarturas.tk

COCINAS PLACARES VESTIDORES EURO MUEBLE Showroom Pinamar Totoras y Av. Constitución Fabrica Malvinas 2072 MdP www.euromueblescocinas.com

CONSULTOR DE SEGUROS UNO SEGUROS

San Martin 4255 Piso 1 MdP santiago@uno-seguros.com

IMPRENTA EL FARO Dorrego 1401 Facebook:/ faroimp

96 capba IX GUÍA DE PROVEEDORES
El CAPBA DIX agradece a las siguientes empresas por apoyar nuestra publicación.

PREMIO ESTÍMULO A LA PRODUCCIÓN PROYECTUAL Y

concursos
Hábitat en transformación”
LANZAMIENTO DE LA CONVOCATORIA 11 de junio de 2018 CIERRE INSCRIPCIÓN PARTICIPANTES 5 de noviembre de 2018 LIMITE PARA LA RECEPCIÓN DE TRABAJOS 9 de noviembre de 2018 (12:00 hs.) FALLO DEL JURADO 30 de Octubre ENTREGA DE PREMIOS Fecha a determinar Consulta de Bases: www.capbacs.com/premio-estimulo
TEÓRICA / 2018 “
CRONOGRAMA

Turn static files into dynamic content formats.

Create a flipbook
Issuu converts static files into: digital portfolios, online yearbooks, online catalogs, digital photo albums and more. Sign up and create your flipbook.