Skip to main content

Cikidang Fish Landing Base - Thesis

Page 1


Final Architectural Design Studio

Revitalisaon of Cikidang Fish Landing Base

astheidentyofPangandaran’sFishingTourismAreawitha Approach LocalWisdom

Res Nurwinda

Supervisor :

Arif Budi Sholihah, S.T.,M.Sc.,Ph.D 17512162

REKA

Undergraduate Final Project with the tle

Revitalisaon of Cikidang Fish Landing Base

as the identy of Pangandaran’s Fishing Tourism Area with a Local Wisdom Approach

Res Nurwinda

Arif Budi Sholihah, S.T.,M.Sc.,Ph.D 17512162

Supervisor :

Universitas Islam Indonesia Department of Architecture 2022/2023 Faculty of Civil Engineering and Planning

UNDERGRADUATE PROGRAMME IN ARCHITECTURE

AUTHENTICATION SHEET

Final Architectural Design Studio Entled:

Revitalisaon of Cikidang Fish Landing Base

as the identy of Pangandaran’s Fishing Tourism Area with a Local Wisdom Approach

The original tle version: “Revitalisasi Pangkalan Pendaratan Ikan Cikidang sebagai identas kawasan wisata nelayan Pangandaran dengan pendekatan kearifan lokal”

Student’sFullName :ResNurwinda

Student’sIdenficaon :17512162

Hasbeenevaluatedandagreedon :Yogyakarta,17January2023

Supervisor

Arif Budi Sholihah, S.T., M. Sc., Ph.D

1st Jury

2nd Jury

Dr. -Ing. Putu Ayu P. Agusananda, S.T.,M.A.

Acknowledged by:

Head of Undergraduate Program in Architecture

Ir. Hanif Budiman, M.T., Ph. D

Ir. Wiryono Raharjo, M. Arch., Ph.D

STATEMENT OF AUTHENTICITY

Bysigningthisform,I:

StudentName :ResNurwinda

StudentNumber :17512162

StudyProgram :Architecture

Faculty :FacultyofCivilEngineeringandPlanning

University :UniversitasIslamIndonesia

statethatallpartsofthethesiswork/finalprojectentle: RevitalisaonofCikidang

FishLandingBaseastheidentyofPangandaran’s FishingTourism AreawithaLocalWisdomApproach

isaworkoftheauthor’sideawithinputfromsupervisorandjuries,exceptfortheworkmenonedinthereferences.Therewasnohelpfrom any other party, either in whole or in part, in the process of creang this work. The final result of this work was handed over to the DepartmentofArchitecture,IslamicUniversityofIndonesia,foreducaonalandpublicaonpurposes,whiletheintellectualpropertyrights remainwiththeauthor.

Yogyakarta, 25 January 2023 Author,

Abstract

The diversity of resources in Pangandaran Regency offers significant potenal for producve economic ulisaon. One of the key sectors influencing the income of Pangandaran Regency is the fisheries sector. However, the income from fishermen’s catches does not consistently significantly impact their earnings. This is due to several factors, including the uncertainty of fishing seasons and fish scarcity periods, extreme weather condions, unpredictable wind direcons, and inadequate facilies and infrastructure. Addionally, there is a lack of proper sales venues to support fishermen’s secondary livelihoods, such as ebi shrimp processing, handicra producon, palm sugar producon,saltedfishproducon,andmore.

The fishing village in Babakan Village emerged as a result of the 2006 Pangandaran tsunami, which destroyed several fishermen’s selements. Consequently, the current fishermen’s selements are located near the Cikidang Fish Landing Base (PPI) in Babakan Village, Pangandaran. PPI Cikidang serves as a mooring facility for fishermen’s boats. However, revitalisaon is needed to enhance the producve economic acvies of fishermen and the fishing village area. This revitalisaon aims to reinvigorate the fishing area and aract both local and internaonal tourists to the new tourist desnaon in the PPI Cikidang area. The revitalisaon approach should incorporate local wisdom to create a disncve impression and highlight the cultural characteriscs of the fishermen's area, drawing from tradional Sundanese cultural forms to strengthen the site's image. The expected outcome of this discussion is to increase the primary income of fishermen, which fluctuates due to certain factors, by providing and improving the quality of facilies and infrastructure. Addionally, it aims toboostfishermen’sincomethroughsecondaryearningsbyestablishing aproduconcentreinBabakanVillage.

Keywords:Fishermen,fishingvillage,BabakanVillage,fishlandingbase, producveeconomy,localwisdom,Pangandaran

Cover

Title

Authencaon Sheet

Statement of Authencity

Abstract

Table of Contents

List of Figures

List of Tables

Breakdown

Babakan Village as a Fishing Tourism Area of Pangandaran

Cikidang Fish Landing Base as a Supporng Element of the Fishing Tourism Area Identy in Pangandaran

Cikidang Fish Landing Base as a Fishermen's Income Sector

Sea Ritual (Hajat Laut)Tradion as a Local Wisdom Acvity

Statement of Design Issues and Limitaons

Problem Limitaons

Method of Solving Design Issues

Problem-Solving Map (Framework of Thinking)

Originality and Novelty

Study of Site Context

Site Area and Building Regulaons

Correlaon between West Coast- East Coast- Cikidang Fish Landing Base- Babakan Village

Correlaon between Cikidang Fish Landing Base- Fishing Village- PIAMARI Aquarium

Access to the Site Locaon

Site Data- wind orientaon data, average temperature data, and sun chart data

Acvity Flow of Cikidang Fish Landing Base

Exisng Site Area Situaon

Exisng Flood Control Data at the River Estuary in Cikidang Fish Landing Base

Clean Water System Data and Vegetaon Exisng

Building Exisng Size Data

Study of Fish Landing Base Building Funcons

Study of Local Wisdom

Precedent Study

Schemac Analysis of Concept Synthesis

Exisng Building Analysis

Site Analysis Data

Analysis of Acvity Paerns

Zoning and Plong Design Concept

Mass Arrangement Design Concept

Mass Arrangement Axonometry

Synthesis of Design Concept

Property Size

Situasi

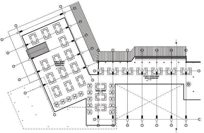
Site Plan

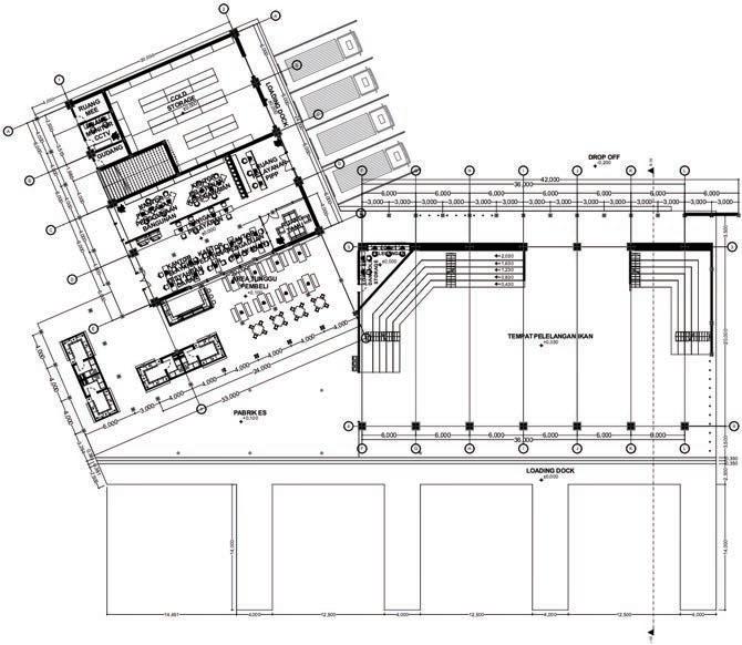
Building Plan

Building Area View

Building View

Building Secon

The Sound of Local Wisdom

Folded Plate Roof Detail- Rainwater Harvesng Process

Landscape Furniture Detail

Ulity System

Building Safety System

Barrier Free

Natural Lighng and Air Condioning Scheme

Exploded Axonometric of Cikidang Fish Landing Base

Acvity Flow at Cikidang Fish Landing Base

Annual Local Wisdom Event: Hajat Laut Fishermen's Ritual in Pangandaran

Exterior and Interior PerspecveProperty Size

Relocaon of Lighthouse Locaon

Comparison Between Exisng Lighthouse - New Lighthouse

Revitalisaon of New Tourism at Cikidang Fish Landing Base

Change of Space Funcon

Plagiarism Check Result Statement Leer - Turnin Check (Indonesian Version)

Intellectual Property e-Copyright Cerficate (Indonesian Version)

Presentaon

LIST OF FIGURES

Figure 1.1 Aerial view of Pangandaran

Source: mundomaya.travel/wisata-pangandaran, 2021

Figure 1.2

Illustraon of ebi shrimp producon

Source: infopublik.id/kategori/nusantara/492196/melihat-prosespembuatan-ebi-di-bulungan, 2020

Figure 1.3

Illustraon of palm sugar producon

Source: food.dek.com/berita-boga/d-5815652/manis-alami-begini-carabikin-gula-aren-khas-kampung-kuta-ciamis, 2021

Figure 1.4 Illustraon of salted fish producon

Source: radartasik.disway.id/read/632530/bahan-jambal-ro-dipangandaran-ternyata-dari-tegal-dan-pekalongan, 2022

Figure 1.5 Sea cras producon

Source: mesindonesia.co.id/read/news/388369/hasil-kerajinan-tanganseni-ukir-warga-pangandaran-dimina-turis-asing, 2021

Figure 1.6 Aerial view of Cikidang Fish Landing Base

Source: facebook.com/pppangandaran/, 2021

Figure 1.7 Fish Aucon

Source: Author, 2022

Figure 1.8 Navigaon and Communicaon

Source: Author, 2022

Figure 1.9 Ice Factory Installaon

Source: Author, 2022

Figure 1.10 PIAMARI Quality Development Laboratory

Source: pangandarannews.com, 2019

Figure 1.11 Office of Marine and Fisheries Resources Supervision

Source: Author, 2022

Figure 1.12 Mosque

Source: Author, 2022

Figure 1.13 Fishermen's Hostel

Source: Author, 2022

Figure 1.14 Canteen

Source: Author, 2022

Figure 1.15 Shelter/ Fishing Equipment Storage

Source: Author, 2022

Figure 1.16 Pangandaran Sea Ritual Tradion

Source: news.mypangandaran.com/berita/read/budaya/2295/hajat-lautpantai-pangandaran-digelar-1-muharram-1440h, 2019

Figure 1.17 Map of Non-Architectural Issues

Source: Author, 2022

Figure 1.18 Design Conflict Map

Source: Author, 2022

Figure 1.19 Design Thinking: A Non-Linear Process by David Kelley

Source: David Kelley with Author modificaons, 2022

Figure 1.20 Framework of Thinking

Source: Author, 2022

Figure 2.1 Macro - Micro Design Locaon Map

Source: openstreetmap.org with author modificaons, 2022

Figure 2.2 Site Area

Source: google maps with author modificaons, 2022

Figure 2.3 Correlaon between West Coast - East Coast - Cikidang Fish

Landing - Babakan Village

Source: openstreetmap.org with author modificaons, 2022

Figure 2.4 Correlaon between Cikidang Fish Landing - Fishing VillagePIAMARI (Aquarium)

Source: Author, 2022

Figure 2.5 Access to the Site

Source: openstreetmap.org with author modificaons, 2022

Figure 2.6 Wind Orientaon Data

Source: meteoblue.com

Figure 2.7 Average Temperature Data

Source: meteoblue.com

Figure 2.8 Sun Chart Data

Source: andrewmarsh.com/soware/

Figure 2.9 Acvity Flow of Cikidang Fish Landing Base

Source: Author, 2022

Figure 2.10 Schemac of Exisng Area Situaon

Source: Author, 2022

Figure 2.11 Exisng Site View

Source: Author, 2022

Figure 2.12 Flood Control Zone

Source: Google Earth with author modificaons, 2022

Figure 2.13 Jey Construcon Using Armour Stone

Source: PUPR, 2021

Figure 2.14 Dredging of River Mouth in the Cikidang Fish Landing Base

Cikidang Area

Source: PUPR, 2021

Figure 2.15 Clean Water Network System and Exisng Vegetaon

Source: Author, 2022

Figure 2.16 Building Exisng Size Data

Source: Author, 2022

Figure 2.17 Aucon Room Illustraon

Source: Ernst Neufert, Architects' Data 33rd Edion

Figure 2.18 Cashier Desk Illustraon

Source: Ernst Neufert, Architects' Data 33rd Edion

Figure 2.19 Standard Size Loading Dock Illustraon

Source: Ernst Neufert, Architects' Data 33rd Edion

Figure 2.20 Service Desk Cross-Secon Illustraon at the Fish Market

Source: Ernst Neufert, Architects' Data 33rd Edion

Figure 2.21 Fuel Pump Illustraon

Source: Ernst Neufert, Architects' Data 33rd Edion

Figure 2.22 Ice Plant System Layout Illustraon

Source: kkp.go.id

Figure 2.23 Electrical Work Measurement Illustraon

Source: Ernst Neufert, Architects' Data 33rd Edion

Figure 2.24 Cold Storage Illustraon

Source: kibrispdr.org/unduh-1/desain-cold-storage.html

Figure 2.25 Workshop Area Illustraon

Source: Ernst Neufert, Architects' Data 33rd Edion

Figure 2.26 Slipway Illustraon

Source: Sciorno, J. A., Barcali, A., and Carlesi, M. (1995)

Figure 2.27 Standard Size and Distance Between Fishing Vessels

Source: Ernst Neufert, Architects' Data 33rd Edion

Figure 2.28 Minimum Size Layout of Work Space Illustraon

Source: Ernst Neufert, Architects' Data 33rd Edion

Figure 2.29 Standard Size of Mushalla Acvies Illustraon

Source: Ernst Neufert, Architects' Data 33rd Edion

Figure 2.30 Standard Parking Size Illustraon

Source: Ernst Neufert, Architects' Data 33rd Edion

Figure 2.31 Standard Car Parking Size Illustraon

Source: Ministry of Public Works and Housing

Figure 2.32 Standard Motorcycle Parking Size Illustraon

Source: Ernst Neufert, Architects' Data 33rd Edion

Figure 2.33 Standard Bicycle Parking Size Illustraon

Source: Ernst Neufert, Architects' Data 33rd Edion

Figure 2.34 Standard Public Toilet Size Illustraon

Source: Ernst Neufert, Architects' Data 33rd Edion

Figure 2.35 Standard Disabled Toilet Size Illustraon

Source: lingkarsosial.org

Figure 2.36 Standard Culinary Tourism Table Size Illustraon

Source: Ernst Neufert, Architects' Data 33rd Edion

Figure 2.37 Fisherman's Homestead Requirements Illustraon

Source: Ernst Neufert, Architects' Data 33rd Edion

Figure 2.38 Fishermen Aer Fishing

Source: Author, 2022

Figure 2.39 Fishermen Sorng Fish

Source: Author, 2022

Figure 2.40 Fish Aucon Atmosphere at Cikidang Fish Landing Base

Source: Author, 2022

Figure 2.41 Street Vendor Atmosphere at Cikidang Fish Landing Base

Source: Author, 2022

Figure 2.42 Linear Paern

Source: Author, 2022

Figure 2.43 Centralised Paern

Source: Author, 2022

Figure 2.44 Radial Paern

Source: Author, 2022

Figure 2.45 Sundanese Tradional House

Source: Author, 2022

Figure 2.46 Sundanese Architectural Roof Paern

Source: Author, 2022

Figure 2.47 Flower Sprinkling at Sea Ritual in East Beach Pangandaran

Source: dailypangandaran.com, 2022

Figure 2.48 Ijab Dongdang Illustraon

Source: travel.dek.com/travel-news/d-5169032/hajat-laut-pangandarantetap-digelar-meriah, 2020

Figure 2.49 Kemitan Dongdang Illustraon

Source: news.mypangandaran.com/berita/read/budaya/2700/syukurannelayan-pangandaran-tradisi-turun-temurun-dari-leluhur, 2022

Figure 2.50 Kirab Dongdang Illustraon

Source: mypangandaran.com/galeri/read/175/3295/dokumentasi-hajatlaut-pantai-barat-pangandaran, 2014

Figure 2.51 Larung-Tawasul Illustraon

Source: mypangandaran.com/galeri/read/175/3293/dokumentasi-hajatlaut-pantai-barat-pangandaran, 2014

Figure 2.52 Cucurak Illustraon

Source: metropolitan.id/2018/05/tradisi-cucurak-ajang-silaturahmimenyambut-ramada/, 2018

Figure 2.53 Art Performance Illustraon

Source: mypangandaran.com/galeri/read/175/3292/dokumentasi-hajatlaut-pantai-barat-pangandaran, 2014

Figure 2.54 Acvity Flow at the Harbour

Source:3xn.com/project/sydney-fish-market

Figure2.55JaffaPortMarket

Source:Jacobs-YanivArchitects,(archdaily),2012

Figure2.56WaterfrontTavern-ShellCove

Source:MurrayFredericks,andRichardGlover,2021

Figure2.57FishingBoatHarborand'River'ofLiopetri

Source:archdaily,2012

Figure2.58SydneyFishMarket

Source:archdaily.com,2020

Figure2.59ConceptSynthesisAnalysisSchemebasedonVariableStudyAnalysis

Source:Author,2022

Figure3.1ExisngBuildingAnalysis

Source:Author,2022

Figure3.2ExisngBuildingandPlanningAnalysis

Source:Author,2022

Figure3.3CirculaonAnalysis

Source:Author,2022

Figure3.4ViewAnalysis

Source:Author,2022

Figure3.5ClimateAnalysis

Source:Author,2022

Figure3.6ZoningAnalysis

Source:Author,2022

Figure3.7AnalysisofFishermenAcvityPaerns

Source:Author,2022

Figure3.8 AnalysisofManagerAcvityPaerns

Source:Author,2022

Figure3.9 AnalysisofTraderAcvityPaerns

Source:Author,2022

Figure3.10AnalysisofVisitorAcvityPaerns

Source:Author,2022

Figure3.11ZoningandPlongDesignConcept

Source:Author,2022

Figure3.12MassArrangementDesignConcept

Source:Author,2022

Figure3.13MassArrangementAxonometry

Source:Author,2022

Figure3.14ExteriorConceptofFishAuconPlace

Source:Author,2022

Figure3.15InteriorConceptofFishAuconPlace

Source:Author,2022

Figure3.16BuildingEnvelopeConceptforCulinaryTourism

Source:Author,2022

Figure3.17FishMarketCeilingConcept

Source:Author,2022

Figure3.18Void-RampAreaConceptforFishMarketandCulinaryTourism

Source:Author,2022

Figure3.19JolopongRoofTransformaonConceptforFishAucon

Source:Author,2022

Figure3.20JulangNgapakRoofTransformaonConceptforFishMarket

Source:Author,2022

Figure3.21WaterfrontCirculaonConcept

Source:Author,2022

Figure3.22AmphitheatreConceptforSeaRitual

Source:Author,2022

Figure4.1Situaon

Source:Author,2022

Figure4.2SitePlan

Source:Author,2022

Figure4.3FloorPlanofShipMaintenanceAreaandFisherman'sHomestead

Source:Author,2022

Figure4.4FloorPlanofFishAuconPlaceandCikidangFishLandingBaseOffice

Source:Author,2022

Figure4.5FloorPlanofCraandSouvenirCentreinBabakanVillage

Source:Author,2022

Figure4.6FishMarketFloorPlanSource:Author,2022

Figure4.7CulinaryArea(Seafood)FloorPlan

Source:Author,2022

Figure4.8BuildingAreaView-West

Source:Author,2022

Figure4.9BuildingAreaView-East

Source:Author,2022

Figure4.10BuildingAreaView-North

Source:Author,2022

Figure4.11BuildingAreaView-South

Source:Author,2022

Figure4.12BuildingView-ShipMaintenanceAreaandFisherman'sHomestead

Source:Author,2022

Figure4.13BuildingView-FishAuconPlaceandSouvenirCentre

Source:Author,2022

Figure4.14BuildingView-FishMarketandCulinaryArea(Seafood)

Source:Author,2022

Figure4.15BuildingSeconS1-FishMarket

Source:Author,2022

Figure4.16BuildingSeconS2-FishAuconPlace

Source:Author,2022

Figure4.17BuildingSeconS3-Fisherman'sHomestead

Source:Author,2022

Figure4.18SoundSpotsofKolok

Source:Author,2022

Figure4.19SoundSpotsofAngklung

Source:Author,2022

Figure4.20SoundSpotsofAngklung

Source:Author,2022

Figure4.21FoldedPlateRoofDetail

Source:Author,2022

Figure4.22LandscapeFurnitureDetail

Source:Author,2022

Figure4.23UlitySystem

Source:Author,2022

Figure4.24BuildingSafetySystem

Source:Author,2022

Figure4.25Barrier-Free

Source:Author,2022

Figure4.26NaturalLighngandVenlaonScheme

Source:Author,2022

Figure4.27ExplodedAxonometryofCikidangFishLandingBase

Source:Author,2022

LIST OF TABLES

Table 1.1 Availability of Facilies for Fish Landing Base

Source: kkp.go.id with modificaons by the author, 2022

Table 1.2 Number of Fishermen and Capture Fisheries Producon for 2018

Source: Government of Pangandaran Regency, 2018

Table 1.3 Originality and Novelty

Source: Author, 2022

Table 2.1 Funconal and Supporng Facilies for the Harbour

Source: kkp.go.id, 2022

Table 2.2 Sources of Local Wisdom

Source: Meliono, I., 2022

Table 2.3 Aspects and Influences of Design in the Marine Area

Source: Muniruddin, 2002

Table 2.4 Consideraons of Physical Environmental Condions in the Marine

AreaSource: Muniruddin, 2002

Table 2.5 Sources of Local Wisdom Based on Waterfront Tavern Study

Source: Author based on local wisdom study, 2022

Table 2.6 Sources of Local Wisdom Based on Fishing Boat Harbor and 'River' of Liopetri Study

Source: Author based on local wisdom study, 2022

Table 2.7 Sources of Local Wisdom Based on 3XN’s Sydney Fish Market Study

Source: Author based on local wisdom study, 2022

Table 4.1 Requirements and Standards for Funconal Facilies

Source: Author's Analysis, 2022

Table 4.2 Requirements and Standards for Supporng Facilies

Source: Author's Analysis, 2022

Introducon // 01.

Breakdown

Babakan Village as a Fishing Tourism Area of Pangandaran

Cikidang Fish Landing Base as a Supporng Element of the Fishing Tourism Area Identy in Pangandaran

Cikidang Fish Landing Base as a Fishermen's Income Sector

Sea Ritual (Hajat Laut)Tradion as a Local Wisdom Acvity

Statement of Design Issues and Limitaons

Method of Solving Design Issues

Problem-Solving Map (Framework of Thinking)

Originality and Novelty

BREAKDOWN

a.Title :RevitalisaonofCikidang

FishLandingBase

astheIdentyofPangandaran’sFishingTourismAreawithaLocalWisdomApproach

b.TitleExplanaon :ThedesignfortherevitalisaonofCikidangFishLandingBaseaimstoprovideharbourfaciliesthatsupportfishingtourism in the Pangandaran coastal area. It also serves as a venue for local wisdom acvies for fishermen and small business operators or street vendors (PKL) in Babakan village. The definion of “Revitalisaon of Cikidang Fish Landing Base as the IdentyofPangandaran’sFishingTourismAreawithaLocalWisdomApproach”canbebrokendownasfollows:

Revitalisaon : Revitalisaon is not merely about reviving what previously existed but enhancing the structure, work mechanisms, and adapngtonewcondions.Therevitalisaonprocessofanareaincludesimprovementsinphysical,economic,andsocial aspects. It must recognise and ulise environmental potenals such as history, meaning, locaon uniqueness, and place image(Adriani,W.,2021).

FishLandingBase : A fundamental facility for fishermen to moor their fishing boats and land their catches (Pusat Informasi Pelabuhan Perikanan,2013).

IdentyoftheArea : An image formed from the biological rhythm of a parcular place or space that reflects me (sense of me) and grows rootedinthesocial,economic,andculturalacviesofthecommunityitself(Ambarwa,T.,etal.,2019).

Tourism : Economicdevelopmentby markenglandscapes,humanculturalproducts,andtransformingareasandcommuniesinto tourismproducts(Picard,M.,2006).

Fishermen : Anindividualoragroupofpeoplewhoearntheirincomefromcatchingfishorothermarineanimals(Putri,V.K.M.,2021).

LocalWisdom : Conceptual ideas exisng in society that grow and develop sustainably within the community's consciousness and funcontoregulatecommunitylife,parcularlyrelatedtosacredlife(Antariksa,2009).

Pangkalan Pendaratan Ikan Cikidang

Source: mundomaya.travel/wisata-pangandaran, 2021

Babakan Village as a Fishing Tourism Area of Pangandaran

Pangandaran Regency is one of the Naonal Strategic Tourism Areas (KSPN) in West Java Province. Pangandaran is closely associated with natural tourism, cultural arts, and fishermen's cultural acvies. One of its tourist desnaons is Babakan Village, a fishing-themed tourist village located administravely in Babakan Village, Pangandaran District. It has an area of 6.04 km² and a populaon of 11,103, with most of its residents engaged in agriculture and fishing (rice farming, secondary crops, and fishing) (Ministry of Public Works and Housing of theRepublicofIndonesia,2021).

Babakan Village consists of five hamlets, each with its unique characteriscs and features. The village offers a tourism experience by exploring each hamlet, which specialises in various products such as ebi shrimp processing, handicra making, palm sugar producon, salted fishproducon,andmore(MyPangandaran,2017).

The diversity of resources in Pangandaran Regency presents significantpotenalforproducveeconomiculisaon.However,public interest in the tradional Sundanese culture of Pangandaran has been declining, as evidenced by the low number of visits to local cultural sites, includingBabakanVillage(thefishingvillage).Thiscontrastssharplywith the high number of tourists vising natural aracons such as rivers, waterfalls, and beaches. This lack of interest has led to a diminished sense of cultural identy, with many tradional Sundanese architectural buildingsbeingabandoned.

Therefore, there is a need for cooperaon between PPI Cikidang and the fishing village community to establish commercial facilies that support the potenal of Babakan Village's local producve economic acvies. These facilies should provide tourists with an impression of the tradional Sundanese culture of Pangandaran.

Figure 1.1 Aerial view Pangandaran

Product Centre of Babakan Village

1

3

2

4 1 2 3 4

Figure1.2

illustraon of ebi shrimp producon

Source: infopublik.id/kategori/nusantara/4 92196/melihat-proses-pembuatanebi-di-bulungan,2020

Figure1.3

illustraon of palm sugar producon

Source:

food.dek.com/berita-boga/d5815652/manis-alami-begini-carabikin-gula-aren-khas-kampungkuta-ciamis,2021

Figure1.4 ilustraon of salted fish producon

Source:

radartasik.disway.id/read/632 530/bahan-jambal-ro-dipangandaran-ternyata-daritegal-dan-pekalongan,2022

Figure1.5 SeaCras

Producon

Source: mesindonesia.co.id/read/ne ws/388369/hasil-kerajinantangan-seni-ukir-wargapangandaran-dimina-turisasing,2021

Cikidang Fish Landing Base

as a Supporng Element of the Fishing

Tourism Area Identy in Pangandaran

Cikidang Fish Landing Base (Pangkalan Pendaratan Ikan) is located in Babakan Village, Pangandaran District, Pangandaran Regency, with geographic coordinates of-7.68269 S and 108.6715 E. PPI Cikidang was constructed in 2003, inially managed by the Regional Government of Ciamis Regency. The original purpose of building PPI Cikidang was to accommodate fishing boats that were overcrowding the western beach area of Pangandaran. This was part of a beach reorganisaon plan by the regionalgovernmentofCiamisRegency.

In early 2013, Pangandaran officially separated from Ciamis Regency to become a New Autonomous Region (DOB) of Pangandaran Regency, thus the management of PPI Cikidang transioned to the Pangandaran Regency Government. In 2017, the operaonal management of PPI Cikidang was taken over by the central government undertheDirectorateGeneralofCaptureFisheries(DJPT)oftheMinistry ofMarineAffairsandFisheries.

This move aligned with the third point of the government's Nawacita program, which focuses on developing Indonesia from the periphery by strengthening regions and villages within the framework of the unitary state. PPI Cikidang is one of nine locaons included in the development of priority fishery ports/bases (Pusat Informasi Pelabuhan Perikanan, 2013).

A local resident explained that PPI Cikidang is a fundamental facility for fishermen's fishing acvies and plays a crucial role in managing capture fishery resources in the eastern coastal area. Therefore, there is a need to add facilies to support the fishermen's performance. Every fisherman must have a Membership Card (KTA); hence, those who do not possess a KTA are required to pay a fee for each fishcaught(Stefani,personalcommunicaon,24August2022).

Basedonthefindings,thefaciliesatPPICikidangaresllvery limited. Thus, there is a need to add funconal and supporng facilies at PPI Cikidang, following the recommendaons set by the MinistryofMarineAffairsandFisheriesasdetailedinTable1.1.

Figure 1.6 Aerial View of Cikidang Fish Landing Base

1.15

Figure 1.7;1.8;1.9;1.10;1.11;1.12;1.13;1.14;1.15

These figures show the exisng facilies at Cikidang Fish Landing Base.

Table 1.1 Availability of Facilies for Fish Landing Base

The Availability of Funconal Facilies

1.

Fish Markeng Place (TPI), including fish market and fish packing area.

2.Navigaon and communicaon, including: telephone internet, communicaon radio, and lighthouse.

3.Supply installaons, including: , clean water supply installaon fuel oil (BBM) installaon, ice factory installaon, and electrical installaon

4.Storage facilies, such as coldstorage.

5.Boat and fishing gear maintenance area, including: workshop, dock/slipway, and net repair area.

6.Fish handling and , such as a quality processing of fish area control laboratory.

7.Office facilies, including an integrated service post and harbour administraon office.

8.K5 facilies, including: fire exnguishers, Hydrant, Amphibious vehicles, floor cleaning vehicles, Dumptruck, and temporary disposal sites.

The Availability of Supporng Facilies Fishermen’s Meeng Hall.

9.

10.Operator Dormitory.

11.Social and Public Facilies, including: place of worship, public toilets.

12.Fishermen's Homestead.

13.Shops/Cafeteria.

14.Guard Post

15.Harbour Informaon Facilies, such as videotron, and others.

16.Parking area for two-wheeled and four-wheeled vehicles. X

Source: kkp.go.id with modificaons by the author, 2022

Figure
Shelter/ Fishing Equipment Storage Source: Author, 2022
Figure 1.13 Fishermen’s Homestead Source: Author, 2022
Figure 1.7 Fish Aucon Source: Author, 2022
Figure 1.8 Navigaon and Communicaon Source: Author, 2022
Figure 1.12 Mosque Source: Author, 2022
Figure 1.14 Fishermen’s Canteen Source: Author, 2022
Figure 1.11 Office of Marine and Fisheries Resources Supervision Source: Author, 2022
Figure 1.9 Ice Factory Installaon Source: Author, 2022
Figure 1.10 PIAMARI Quality Development Laboratory Source: pangandarannews.com, 2019

Cikidang Fish Landing Base as

a Fishermen’s Income sector

One of the sectors that significantly impacts the income of Pangandaran Regency is the capture fisheries sector. The following data inTable1.2,issuedbythePangandaranRegencyGovernment,showsthe numberoffishermenandtheproduconofcapturefisheries:

Table 1.2

1. Cimerak - TPI Legokjawa - TPI Muaragatah - TPI Madasari

Cijulang

Based on the data in Table 1.2, there are 10 Fish Aucon Places (TPI) in Pangandaran Regency, with a capture fisheries producon of 2,833 tons in 2018. The coastline of Pangandaran Regency stretches for 91 km,andthereare5,311fishermen.

As an area with potenal in capture fisheries, the Local Revenue (PAD) from the fisheries sector in Pangandaran Regency is sll relavely low. According to Julyan, N. I. (2021), the income of fishermen in Pangandaran can be affected by the fishing season and the off-season. During the fishing season, fishermen's income tends to increase, whereasduringtheoff-season,theirincomedecreases.

In addion to the unpredictability of extreme weather and wind direcon, the uncertainty of the Local Revenue from fish producon is also due to inadequate fishing facilies and infrastructure. The limited knowledge and skills of the fishermen, who sll rely on tradional methods,furtherhinderthemarkengoftheirmarineproducts.

The poor quality of fisheries infrastructure is another factor contribung to the low the Local Revenue. Good quality fisheries infrastructure can create opportunies to support capture fisheries producon and improve the living standards (economy) of fishermen, including those in the fishing village of Babakan. Fisheries infrastructure includes Fish Aucon, fishing gear and auxiliary equipment, boat landing places, coastal safety structures, and fishermen's safety facilies (Government of Pangandaran Regency, 2018). Singkawijaya, E. B., & Hilman, I. (2021) state that the lack of management of fish landing ports impacts the community's economy and the low human resources for managingnaturalresources.

The previously menoned factors contribung to the low living standards of fishermen are in stark contrast to the policy direcon of the Pangandaran Regency government, which aims to boost the growth rate of the fisheries sector to increase local fishermen's income. Soluons provided include facilitang access to capital for fishermen, improving fishing facilies and infrastructure, and enhancing the role and involvementoffishermenandfishfarming(GovernmentofPangandaran Regency,2018).

Therefore, there needs to be cooperaon between the local community from Babakan Village and Cikidang Fish Aucon in developing the management and markeng of capture fisheries products in the harbour area. This will create opportunies to enhancethequalityofCikidangHarbour,bothintermsoffaciliesand the development of new tourism potenals, so that the income of Pangandaranfishermenisnotsolelydependentoncapturefisheries.

Number of Fishermen and Capture Fisheries Producon for 2018

Sea

Ritual (Hajat Laut)

Tradion

as a Local Wisdom Acvity

The sea ritual, Hajat Laut, is a means for fishermen and local residents to express their gratude by celebrang a tradion passed down from their ancestors, conducted in the sea area. Hajat Laut, also known as the Sea Fesval (Fishermen's Gratude Ceremony), is an annual event held in the month of Muharram (first month of the Islamic lunar calendar), specifically on the Thursday before the Javanese calendar'sFridayKliwon.TheFishermen'sGratudeCeremony is intended as an expression of gratude to God Almighty for providingthemwithsustenanceandsafety.

Unfortunately, the Hajat Laut tradion is carried out in the western beach area, which is designated for tourists who wish to swim and surf, potenally disrupng tourist acvies (MyPangandaran,2022).

There is an opportunity to develop tourism in the PPI Cikidang area by organising Hajat Laut acvies, including art performances (based on the Hajat Laut acvity flow), which need to be facilitated with structures such as a stage oramphitheatre,andsimilarfacilies.

Figure 1.16 Pangandaran Sea Ritual Tradion Source: news.mypangandaran.com/berita/read /budaya/2295/hajat-laut-pantai-pangandaran -digelar-1-muharram-1440h, 2019

Statement of Design Issues and Limitaons

a.GeneralProblem

- How can the facilies at Cikidang Fish Landing Base be designed considering the aspects of fishing tourism and the cultural identy of the local fishermeninPangandaran?

b.SpecificProblems

- Howcananareabedesignedtohaveadisnctidentybyrespondingtothesitecontextbasedonthethemeoflocalwisdom?

- How can the area be designed to accommodate the facilies at Cikidang Fish Landing Base based on the acvies of the fishermen, small business operators,streetvendors,andtourists??

c.ObjecvesandTargets

The objecve of this design is to revitalise the Cikidang Fish Landing Base area, a coastal fishing tourism zone that reflects the cultural identy of the fishermen and Sundanese heritage. The design aims to create buildings that accommodate the acvies at Cikidang Fish Landing Base using a localwisdomapproach.

Thetargetstobeachievedinthisplanare:

-RevitalisaonofCikidangFishLandingBase.

- Typology of spaces and buildings that respond to the main community/actors, namely fishermen, fishing villages, and small business operators or streetvendors.

-Developingthepotenaloflocalwisdomandthenaturalmarineenvironment.

d.ProblemMap

Babakan Village Area Fishing Tourism

as Pangandaran’s

Designing commercial facilies that accommodate the potenal producve economic acvies of Babakan Village, providing tourists with an impression of the tradional

Sundanese culture

of Pangandaran.

as a Supporng Element

of the Identy of as a Source of

Pangandaran's

The limitaons of funconal

Cikidang Fish Landing Base Fishermen's Income

Development of new tourism as an alternave to increase the income of Pangandaran fishermen.

Expressing Fishermen's

A Venue for Local Wisdom Tradions

There is an opportunity for tourism

through annual fishermen's events facilitated at the Cikidang Fish Landing Base. unique to Pangandaran that need to be and supporng facilies at Cikidang Fish Landing Base according to the regulaons

of the Ministry of Marine

Affairs and Fisheries.

Designing facilies at the Fish Landing

Base that enhance the impression of Sundanese culture and local fishermen.

The emergence of opportunies for commercial facilies to accommodate the producve economic acvies of Babakan Village and street vendors.

Designing facilies at the

Fish Landing Base that support the needs of the community.

Designing commercial facilies

that accommodate the acvies of the fishing village.

Cikidang Fish Landing Base as a fishing tourism identy to meet user needs with a local wisdom approach

How to design funconal and supporng facilies at in shaping the site image based on fishing tourism.

Figure 1.17 Map of Non-Architectural Issues

Source: Author, 2022

Cikidang Fish Landing Base
Fishing Tourism Area

Problem Limitaon

ARCHITECTURAL OBJECT

Cikidang Fish Landing Base

DESIGN MATTER

Mass Arrangement

Building Façade

Space Layout

Circulaon

Landscape

Structure and

Infrastructure

Materials

Acouscs

So that...

PARAMETER

Babakan Village

Fishing Tourism as Pangandaran’s Area

INDICATOR

Cikidang Fish Landing

Base as a Supporng Element of the Identy of Pangandaran’s

Fishing Tourism Area

Cikidang Fish Landing

Base as a Source of

Fishermen’s Income

A Venue for Fishermen’s Local Expressing

Local Wisdom

Principles of as Site Image

Funconal and Supporng Facilies at the Fish Landing Base

Design Criteria for the Fish Landing Base

Design Criteria for the Commercial Centre

Encouraging Producvity Acvies for the Community (Fishermen and Local Residents)

1.18 Design Conflict Map Source: Author, 2022

Figure
Wisdom Tradions

Method of Solving Design Issues

a.DataCollecon

• PrimaryData:Collectedthroughdirectobservaonofthesiteandinterviewswithspaceusersaboutthephysicalcondionsoftheresearcharea andtheacviesoffishermenandanglersatCikidangFishLandingBase,Babakan,Pangandaran.

• Secondary Data: Collected data includes factors influencing the funconal and technical aspects of public space facilies in terms of anthropometry at Cikidang Fish Landing Base. Secondary data is obtained through literature studies from books, journals, the internet, e-books, andrelevantinstuons.

b.DataClassificaon

•PrimaryData

1.Physicalsitedatathroughobservaonofthedailyacviesoffishermen,streetvendors,andharbourvisitors.

2.Documentaonintheformofphotographs.

•SecondaryData

1.SitedatathroughGoogleMapsandsimilarsources,includinggeographiclocaon,boundarylimits,andmaps.

2.Literaturedataintheformofarcles,books,e-books,internetsources,relevantinstuons,andrelatedjournals.

c.DesignMethod

Fail?

Empathize Define Test Ideate Prototype Assesment

Recognising the background of architectural and non-architectural issues.

Concluding/ defining variables, parameters, indicators, and design strategies.

Succeed?

Releasing ideas for intensive thinking (Brainstorming) through precedents, and similar methods that can generate themes, concept exploraons, mass composions, and facade forms.

Small-scale tesng based on technical drawings, 3D modelling, and simulaons.

Large-scale tesng by selecng appropriate and raonal tesng tools, or through exisng examples.

Final Design.

modificaons,

d.DesignTesngMethod

Conductedthroughsmall-scaleandlarge-scaletesng.

• Small-scale tesng: Based on technical drawings, 3D modelling, and related simulaons, followed by checking the predefined parameters and indicators.

• Large-scaletesng:Basedonlogicaldesigntesngtools,orexisngprecedentexampleswithaddionalvariaons.

Figure 1.19 Design Thinking: A Non-Linear Process by David Kelley Source: with Author
2022 David Kelley

Problem-Solving Map (Framework of Thinking)

Revitalisaon of Cikidang Fish Landing Base as the identy of Pangandaran’s Fishing Tourism Area with a Local Wisdom Approach

as a Supporng Element

of the Identy of as a Source of

Cikidang Fish Landing Base Fishermen's Income as Pangandaran’s

Pangandaran's

Designing commercial facilies that accommodate the potenal producve economic acvies of Babakan Village, providing tourists with an impression of the tradional

The limitaons of funconal

and supporng facilies at Cikidang Fish Landing Base according to the regulaons

Affairs and Fisheries.

Sundanese culture of the Ministry of Marine

Cikidang Fish Landing Base Fishing Tourism Area of Pangandaran.

Babakan Village Area Fishing Tourism Expressing Fishermen's

Development of new tourism as an alternave to increase the income of Pangandaran fishermen.

A Venue for Local Wisdom Tradions

There is an opportunity for tourism

through annual fishermen's events facilitated at the Cikidang Fish Landing Base. unique to Pangandaran that need to be

The emergence of opportunies for commercial facilies to accommodate the producve economic acvies of Babakan Village and street vendors.

How to design funconal and supporng facilies at Cikidang Fish Landing Base as a fishing tourism identy to meet user needs with a local wisdom approach in shaping the site image based on fishing tourism.

Fish Landing Base

1. Funconal Facilies and Supporng Facilies of the Fish Landing Base.

2. Design Criteria for the Fish Landing Base.

3. Design Criteria for the Commercial Centre.

4. Precedent Study of Fish Landing Bases.

5. Precedent Study of Commercial Areas.

1. Study of local wisdom principles according to Meliono, I. (2011) based on Empirical Aspects, Cultural Symbols, and Knowledge Characteriscs.

1. Map and general overview of the planning locaon.

2. Map of microclimate physical properes.

3. Themac map of transportaon circulaon.

4. Site potenal data.

Figure 1.20 Framework of Thinking Source: Author, 2022

Originality and Novelty

Table 1.3 Originality and Novelty

Perencanaan dan Perancangan Ulang Fasilitas Pangkalan Pendaratan

IkandiMuncarBanyuwangi,JawaTimur

Author :Muniruddin

University :UniversitasIslamIndonesia,Yogyakarta

Year :2002

BuildingTypology :FishLandingBase

Perancangan Tempat Pelelangan Ikan Higienis dengan pendekatan

OpenBuildingdiSadeng,Gunungkidul

Author :FebriansahWijaya

University :UniversitasIslamIndonesia,Yogyakarta

Year :2020

BuildingTypology :FishAuconPlace

Muniruddin's redesign planning explains strategies for ensuring smooth operaons at the fish landing base, so that all acvies can be accommodated and support the efficiency of fishermen's acvies. The author applies Muniruddin's strategies to the design of the Cikidang Fish Landing Base, from acvity paerns to the design of supporng and funconalfacilies.

This design elaborates on the development of a hygienic concept to improve the quality of consumpon and provision at a fish aucon placethatmeetssanitarystandardswithanopenbuildingapproach.This approachresultsinadesignthatrespondstohygieniccondionsandthe effecve use of space for fishermen's movements, as well as integraon with tourist interacons. The applicaon of the open building typology concept can be adapted to the design of the fish aucon place and the fishmarketareaattheCikidangFishLandingBase.

Pemaknaan Kembali Kearifan Lokal dalam Arsitektur (Keterikatan Manusia,Budaya,danAlamNusantara

Author :ResPiutan

University :UniversitasBrawijaya,Malang

Year :2015

Desain Bangunan Pengasapan Ikan yang Higienis dan Ramah Lingkungan,Wonosari,Demak

Author : Kurnia Widiastu, S.T., M.T.; Drs. Bagus Priyatna, S.T., M.T.; Baju Arie Wibawa, S.T., M.T.; Ayu

WandiraPuspitasari,S.T.,M.T.

University :UniversitasPGRISemarang

Year :2015

BuildingTypology :FishPreservaonPlace

Res Piutan discusses the reinterpretaon of local wisdom in architecture andmodernhumanlife, as well as effortsto developit, such as preservaon and conservaon, which are necessary to maintain the balance between human life and nature for sustainability. This involves not only the physical applicaon in buildings but also the conceptual and philosophical thinking that will become the cultural identy and unique characteriscofaplace.

This design focuses on fish preservaon through tradional smoking methods while considering health aspects and environmental polluon from thick smoke that can harm health, as well as liquid and solid waste from fish cleaning processes. The author implements hygienic and environmentally friendly strategies in the fish preservaon area at the CikidangFishLandingBase.

Problem Exploraon // 02.

Study of Site Context

Site Area and Building Regulaons

Correlaon between West Coast- East Coast- Cikidang Fish Landing Base- Babakan Village

Correlaon between Cikidang Fish Landing Base- Fishing Village- PIAMARI Aquarium

Access to the Site Locaon

Site Data- wind orientaon data, average temperature data, and sun chart data

Acvity Flow of Cikidang Fish Landing Base

Exisng Site Area Situaon

Exisng Flood Control Data at the River Estuary in Cikidang Fish Landing Base

Clean Water System Data and Vegetaon Exisng

Building Exisng Size Data

Study of Fish Landing Base Building Funcons

Study of Local Wisdom

Precedent Study

Schemac Analysis of Concept Synthesis

Site Context

Pangandaran Regency

FISHERMEN’S SETTLEMENT

COMMERCIAL AREA

PIAMARI AQUARIUM

RED SITE LOCATION

BRIDGE

COMMERCIAL AREA

LODGING AREA

Figure 2.1 Macro-Micro Design Locaon Map Source: openstreetmap.org with Author modificaons, 2022

Main Actors of The Cikidang Fish Landing Base Area

Local fishermen who possess a MembershipCard.

The fishing village community in Babakan Village, including local producers (sellers or crasmen) such as ebi shrimp processors, handicra makers, palm sugar producers, salted fish makers, and others(Chapter01,page15).

The revitalisaon site is located in the eastern coastal area of Pangandaran, which is designated specifically for fishermen, precisely at the Cikidang Fish Landing Base. The geographical coordinates are7.68269 S and 108.6715 E. This locaon is on the eastern coast of Pangandaran,aregionforfishermen,whilethewesterncoastisreserved fortouristswhowanttoswim.

SITESPECIFICATIONS:

1.LocaonAddress

Cikidang Fish Landing Base, Babakan Village, Pangandaran District, PangandaranRegency,WestJava46396.

2.LandOwnership

This land is a usufruct property owned by the Pangandaran Regency Government,withthefunconofaFishLandingBase.Thecurrentsite condionincludesonlyafewfacilies,asdetailedonpage17.

Total area of exisng site: ±23.498,374 m²

Site Area and Building Regulaons

SpaalPlanningofPangandaranRegencybasedonRegionalRegulaonNo.3of2018-2038

BuildingRegulaons Descripon

•Building Setback Line a. Front setback minimum 10m. (Garis Sempadan Bangunan) b. Right and le side setbacks minimum 4m.

c. Rear setback minimum 4m.

•Green Base Coefficient 25% of the total area of the development plan. (Koefisien Dasar Hijau)

•Building Base Coefficient Maximum allowed 60%. (Koefisien Dasar Bangunan)

•Building Floor Coefficient 4,5 (Koefisien Lantai Bangunan)

•Green Open Space Arcle 43 (Ruang Terbuka Hijau) (1) Every owner and/or manager of buildings:

a. office;

b. hotel;

c. industry/factory;

d. commercial building;

e. other public buildings must provide Green Open Space.

(2) The percentage of Green Open Space as referred to in paragraph (1) includes 60% for buildings and 40% Green Open Space. The maximum allowed Green Open Space is 40%.

Figure 2.2 Site Area
Source: google maps with Author modificaons, 2022
PIAMARI

fishermen’s selement

cikidang fish landing base

fishermen’s selement

3

ACTIVITIES:

1

surfing ACTIVITIES

fishermen’s selement

swimming

fishermen

2 pangandaran

fishermen’s selement

ACTIVITIES

tsunami 2006

fishermen

fishing

Correlaon between West Coast - East Coast - Cikidang Fish Landing Base - Babakan Village

1

Inially, fishermen carried out their acvies in both the west and east coastal areas. However, to ensure the comfort and safety of tourists, these ac vi es were relocated to the east coast. In 2003, the Cikidang Fish Landing Base (PPI Cikidang) wasestablished.

2

The east coast area became the hub for fishermen's acvies and was also the fishermen's residenal area. In 2006, Pangandaran was hit by a tsunami, which destroyed the fishermen's selements.

3

The fishermen's residences and acvies were then relocated to Babakan Village and PPI Cikidang. However, some boats and selements remained in the east coast area.

N

Figure 2.3 Correlaon between West Coast - East Coast - Cikidang Fish Landing Base - Babakan Village Source: openstreetmap.org with Author modificaons, 2022

Correlaon between

Cikidang Fish Landing - Fishing Village - PIAMARI (Aquarium)

Access to the Fishing Village

Main Access

Acces to PIAMARI

Access between Cikidang Fish Landing and the previous fishing village was inially limited by a boundary wall. However, in the design plan, this access has been opened based on the background of cooperaon between the local residents of Babakan Village and Cikidang Fish Landing Base in developing management and markeng of capture fisheries products. Addionally, this allows tourists to enjoy and learn about the diverse producon centres of the fishing village in Babakan Village. The opening of this access is also based on several aspects of local wisdom in Sundanese societyaccordingtoAnwar,H.,&Nugraha,H.A.(2013),whichinclude:

1.Social

Thehouseistheprimaryplaceforsocialrelaonshipstogrow.

2.Economic

Thehousecanserveasaplaceforconducngbusiness(homeindustry).

3.Cultural

Thehousecanserveasaplaceforconducngbusiness(homeindustry).

4.Spiritual

Thehousefunconsasaplaceofworship.

CikidangFishLandingBaseislocatednearthePIAMARI(PangandaranIntegratedAquariumandMarineResearchInstute),whichservesasaplacefor touriststogainknowledgeaboutmarineecosystemsandasaqualitydevelopmentlaboratory.

Figure 2.4 Correlaon between Cikidang Fish Landing - Fishing Village - PIAMARI (Aquarium)
Source: Author, 2022

Access to the Site Locaon

city centre

culinary area

mosque red bridge

SITE

fishing village N

Figure 2.5 Access to the site

Source: openstreetmap.org with Author modificaons, 2022

Legenda :

Pangandaran Sunrise = ± 949 m culinary area ± 852 m ± 10 m ± 1.5 km ± 440 m ± 429 m ± 535 m ± 949 m

private vehicle route

public vehicle route

site locaon

mosque = ± 440 m

Pangandaran sunrise= ± 852 m

fishing village = ± 10 m = ± 1.5 km

city centre red bridge = ± 429 m = ± 535 m

The site locaon is easily accessible from the main road and can be reached by various modes of transportaon (Jalan Raya Pangandaran) via Babakan Village Road towards the east coast or vice versa, and it has two-way access. The site is very close to public facilies, the fishing village selement(fishermen'shouses),andthecitycentre.

PIAMARI
PIAMARI

Site Data

Figure 2.6 Wind Orientaon Data

Source: meteoblue.com

Figure 2.7 Average Temperature Data Source: meteoblue.com

Wind orientaon and wind speed data for the site locaon at geographicalcoordinates-7.68269Sand108.6715Eindicate:

The wind rose data (wind orientaon) shows the number of hours per year the wind blows from the indicated direcon, with the wind predominantly oriented towards the South-Southeast with an averagespeedof12-27km/h.

The "daily maximum average" (solid red line) shows the average daily maximum temperature for each month for the Cikidang Harbour area. Similarly, the "daily minimum average" (solid blue line) shows the average daily minimum temperature. Hot days and cold nights (dashed red and blue lines) indicate the average hoest day and coldestnighteachmonthoverthepast30years.

Sunchartdataisusedforoverhangdesigntominimisesolarradiaon.

Based on this data, it can be concluded that wind orientaon, wind speed, and average temperature can serve as consideraons or references for developing the site's potenal in the design, such as implemenng passive cooling systems and opmising the sound potenalgeneratedbythewindinthedesignplanningoftheCikidang FishLandingBase.

Figure 2.8 Sun Chart Data Source: andrewmarsh.com/soware/

ALTITUDE

Acvity Flow of Cikidang Fish Landing Base

Acvies of Fish Landing Base Management

- Head of the Fisheries Training and Extension Agency

- Subdivision of General Affairs

- Head of Business Development Secon

- Head of Operaonal Secon

- Funconal Posion Group

GUEST

Acvies of the Technical Implementaon Unit for Fish Aucon Place and Fish Market

- Head of Technical Implementaon Unit

- Subdivision of Administraon and Finance

- Subdivision of Purchasing and Sales

- Subdivision of Cleanliness and Security

RECEIVE GUEST MEETING ADMINISTRATION

- Subdivision of Quality Control

RECEIVE GUEST

- Auconeer, Sorter, Weigher

ADMINISTRATION

Seller/ Trader

- Acvies of Retail Traders (traders who sell fish to consumers around the Fish Landing Base)

ENTER PARKING

FISH AUCTION LIST PARTICIPATING IN FISH AUCTION PAYMENT DISTRIBUTION

- Acvies of Intercity Traders (traders who buy fish from the Fish Aucon Place and then sell it in the city)

ENTER

PARKING

FISH A UCTION LIST PARTICIPATING IN FISH AUCTION PAYMENT DISTRIBUTION

- Acvies of General Seller (resulng from the relocaon of street vendors)

ENTER PARKING

PREPARATION FOR STUFF SELLING LOADING AND UNLOADING

- Acvies of Dry/Salted Fish, ebi Shrimp, and Other Seller

ENTER

PARKING

FISH AUCTION LIST PARTICIPATING IN FISH ACTION PAYMENT DISTRIBUTION

Visitor Acvies

ENTER PARKING

SEEKING INFORMATION

ENJOYING CULTURAL ATTRACTIONS

BUYING FISH BUYING SOUVENIRS

DINING ON LOCAL CUISINE REST

GOING HOME OF GOODS

Figure 2.9 Acvity FLow of Cikidang Fish Landing Base Source: Author, 2022

Exisng Site Area Situaon

MAP KEY:

Fish Aucon

Ice Factory Installaon

Shelter/ Fishing Equipment Storage

Fishermen’s Canteen

Office Area

Lighthouse

Mosque

Illegal Canteen

PangandaranHighway

Fishermen’s Homestead

Main Gate

Site Limitaons

FIshermen’s Village BabakanVillagest.

Figure 2.10 Schemac of Exisng Area Situaon
Source: Author, 2022 N

1 2 3 4 5 6

Figure11 Exisng View Site 2.
Source: Author, 2022

Exisng Flood Control Data at the River Estuary in Cikidang Fish Landing Base

RIVER AREA CIKIDANG

Source: Google earth with Author modificaons, 2022 SITE

Based on data released by the Ministry of Public Works and Housing (PUPR) on January 4, 2021 (SP.BIRKOM/I/2021/4), flood control infrastructure has been constructed at the mouth of the Cikidang River, whichintersectswiththeCikidangFishLandingBase,toaddressflooding issues in the Fish Landing Base, Babakan Village, Pangandaran, West Java. The flood control measures aim to reduce channel siltaon caused bycoastalsediments,whichhavethepotenaltocauseflooding.

The construcon work for this flood control infrastructure includes the creaon of a jey using armour stone material along a length of 156 metres, which funcons to prevent sediment carried by sea waves from entering the river mouth, and the construcon of a protecve wall that servesasaseawavebarrier.

Source:

Addionally, the Ministry of PUPR is carrying out dredging work at the river mouth due to sedimentaon at the mouth of the Cikidang River, whichcausesfloodoverflowintheareaaroundtherivermouthupto2.5 km upstream. This sedimentaon has hindered the access and transportaon of fishing boats entering and exing the Cikidang river mouth.

Cikidang Fish Landing Base Area
PUPR, 2021
Figure 2.13 Jey Construcon Using Armour Stone Source: PUPR, 2021
Figure 2.12 Flood control zone
MAP KEY:
Jey
Cikidang river area Site
Figure 2.14 Dredging of River Mouth in the

Clean Water System Data and Vegetaon Exisng

Locaon of Water Tower between Fish Aucon and Ice Factory
Locaon of Water Tower
Figure 2.15 Clean Water Network System and Exisng Vegetaon
Source: Author, 2022
Locaon of Water Tower near office MAP
Locaon of Water Tower near office
near canteen.

Building Exisng Size Data

1

CANTEEN

The canteen is located near the ice factory and is rented out to vendors who wish to sell in the PPI area. In addion to serving as a canteen, it also funcons as a motorcycleparkingarea.

ICEFACTORY

The ice factory is situated between the canteen and the Fish Aucon Place (TPI). The locaon of the ice factory is quite strategic as it is near the TPI, facilitang the auconeers in distribung their auconedfish.

3

FISHAUCTION

The Fish Aucon is sll funconally operaonal, but the loading dock area and parking facilies are not well-developed, resulng in a disorganisedparkingareafortrucks.

BNISHELTER

There are two shelters that serve as storage places for fishermen's belongingsorasplacestotakeshelter.

Building Exisng Size Data

OfficeArea

The office area is located in the northeast part of the site and is situated close to each other. However, out of the total offices, about two are not funconing at all (painted white in figures 5 and 6), and two offices are sllfunconingwell(paintedblueinfigures7and8).

Office area that is not funconing well

Office area that is not funconing well

area that is funconing adequately

Office area that is funconing adequately

Office
Office C (MAIN OFFICE)
Office D (PSDKP PANGANDARAN)
Office A
Office B

Building Exisng Size Data

Lighthouse

The lighthouse is located near the office area to ensure easy access, management, and monitoring by the PPI management. It is sll funconing well.

MainGateofCikidangFishLandingBase

The main gate (entrance to the area) has a height of approximately 6 metres and is sll funconing well despite some minor issues, such as peelingpaintandaparallydetachedKKPlogo.

11

Fishermen’sHomesteadandMosque

The Fishermen's Homestead and Mosque are located in the northeast part of the site, near the main entrance of the PPI. Both the guesthouse and the mosque are sll funconing well, although they are situated within the Building Setback Line area as spulated by Regional Regulaon No. 3 of 2018-2038, which requires a minimum front setback of10metres.

Figure 2.16 Building Exisng Size Data Source: Author, 2022

Study of Fish Landing Base Cikidang

building funcons

A Fish Landing Base (PPI) is a place where fishermen can dock their fishing boats to land their catch or prepare for the next fishing trip (loading boat and crew logiscs). Addionally, it serves as a centre for producon acvies, markeng, processing of fish products, and communitydevelopmentforthefishingcommunity(Muniruddin,2002).

The term "fishermen" refers to individuals who earn their living from fishing at sea and not from aquaculture such as fish farming (Rosni, 2017).

FunconsoftheFishLandingBase

BasedontheRegulaonoftheMinisterofMarineAffairsandFisheriesof the Republic of Indonesia No. PER.08/MEN/2012 Arcle 3 concerning theFunconsofPPI,itisstatedthat:

1. Fish Landing Base is a facility that supports the management and ulisaon of fishery resources and their environment from preproducon,producon,processing,andmarkengstages.

2. FishLandingBasehasthefollowingfuncons:

- Governmental Funcon: This involves regulaon, guidance, control, supervision, and ensuring the safety and operaonal securityoffishingvesselsatthePPI,including:

a.Providingqualitycontrolandprocessingoffishproducts;

b.Collecngdataonfishcatchesandproducon;

c. Conducng outreach and development for the fishing community;

d.Overseeingtheoperaonalacviesoffishingvessels;

e.Supervisingandcontrollingfisheryresources;

f. Performingportauthorityfuncons;

g.Publicising the results of docking and landing services for fishing vesselsandfisherymonitoringvessels;

h.Publicisingtheresultsofmarineandfisheryresearch;

i. Monitoringcoastalareas;and

j. Controllingtheenvironment.

- Commercial Funcon: This involves providing and/or servicing fishing vessels and related services at the Fish Landing Base, including:

a.Providingdockingandmooringservicesforfishingvessels;

b.Providingloadingandunloadingservicesforfish;

c. Providingprocessingservicesforfishproducts;

d.Markenganddistribungfish;

e.UlisingfaciliesandlandattheFishLandingBase.

f. Providingrepairandmaintenanceservicesforfishingvessels;

g.Providinglogiscsandsuppliesservicesforfishingvessels;

h.Offeringmarinetourism;and/or

i. Providing and/or servicing other services in accordance with the lawsandregulaons.

FishLandingBaseCikidangFacilies

Based on the Regulaon of the Ministry of Marine Affairs and Fisheries (KKP)No.PER.20/PERMEN-KP/2014datedMay16,2014,concerningthe organisaon and working procedures of the PPI technical implementaon unit, it is spulated that PPI is a technical implementaon unit in the field of fishery bases under and responsible to the Director General of Capture Fisheries, Ministry of Marine Affairs and Fisheries. Therefore, the facilies at a PPI must meet the aspects of funconalfaciliesandsupporngfaciliestofulfiloraccommodate the needsoftheactorsinthePPICikidangareaasoutlinedinTable2.1.

Table 2.1 Funconal and Supporng Facilies for the Harbour

Funconal Facilies

Fish Markeng Place, including fish market andfishpackingarea.

Navigaon and communicaon, including: telephone internet, communicaon radio, andlighthouse.

Supply installaons, including: clean water supply installaon, fuel oil (BBM) installaon, ice factory installaon, and electricalinstallaon.

Storagefacilies,suchas coldstorage.

Boat and fishing gear maintenance area, including: workshop, dock/slipway, and net repairarea.

Fish handling and processing area, such as a qualitycontrollaboratory.

Office facilies, including an integrated service post and harbour administraon office.

K5 facilies, including: fire exnguishers, Hydrant, Amphibious vehicles, floor cleaning vehicles, Dumptruck and temporarydisposalsites.

Supporng Facilies

Fishermen's MeengHall.

OperatorDormitory.

Social and Public Facilies, including: place of worship, publictoilets. GuardPost. Shops/Canteen.

Fishermen's Guesthouse.

Harbour Informaon Facilies, such as videotron, and others.

Parking area for twowheeled and fourwheeledvehicles.

Source: kkp.go.id, 2022

Funconal Facilies

Fish Aucon

TheFishAuconPlaceisamarketwherethesaleoffish/marineproducts takesplace,eitherbyauconorotherwise,typicallylocatedwithinaFish Landing Base. The requirements for a Fish Landing Base include having a permanent building, a sales coordinator, and a permit from the relevant authority(BadanPusatStask,2013).

FunconsofFishLandingBaseinclude:

•Assisngfishermeninsellingfishquicklyandatagoodprice.

•Accommodangthefishermen'sfishcatches.

•Facilitangtheprocessingoffishcatches.

PerformanceRequirementsfortheFishAuconPlace:

•Comfortable viewing points at meeng points, created with ered seang.

•To achieve good acouscs, aenon should be paid to the ceiling's acouscreflecon.

Cashier Area

ThecashierareaisplacedclosetotheFishAuconPlace(TPI)tofacilitate easyaccessforbidders.Thestandarddimensionsforacashier'spayment area,withtheminimumsize,areshowninfigure2.16.

LoadingDockArea

The standard requirements for the loading dock area based on Architect'sData,33rdedion,volume2,are:

To meet the needs of the loading dock area, which adheres to the architect's data standards for the secon between the dock and the fish aucon place, as well as the sorng/packing area to the truck parking area,theroadwidthmustbeatleast3-4meters.

FishMarketStalls

FishMarketStallsaredistribuonpointsforfishcatchesaertheaucon process, managed by traders for selling fish. Several types of tables are speciallydesignedtostorefish

Navigaon Aids

Navigaon Aids are systems located outside the vessel, designed to enhance the safety and efficiency of vessel navigaon or marime traffic (MinistryofTransportaon,RepublicofIndonesia,2022).

FunconsofNavigaonAidsinclude:

•Determiningtheposionand/orcourseofthevessel;

•Providingwarningsofnavigaonhazardsorobstacles;

•Markingtheboundariesofsafenavigaonchannels;

• Acngastrafficseparaonlinesforvesseltraffic;

•Indicangspecialareasand/oracviesinthewaters;

•Servingasnaonalboundarymarkers.

Figure 2.17 Aucon Room Illustraon Source: Ernst Neufert, Architect’s Data 33rd Edion
Figure 2.20 Service Desk Cross-Secon Illustraon at the Fish Market Source: Ernst Neufert, Architect’s Data 33rd Edion
Figure 2.19 Standard Size Loading Dock Illustraon Source: Ernst Neufert, Architect’s Data 33rd Edion
Figure 2.18 Cashier Desk Illustraon Source: Ernst Neufert, Architect’s Data 33rd Edion

Marime Telecommunicaons

Marime Telecommunicaons are specialized communicaons for marime services, encompassing any transmission, sending, or receivingofsignals,images,sounds,andinformaonofanykindthrough wire, opcal, radio, or other electromagnec systems within marime mobile services, which are part of navigaon safety (Ministry of Transportaon,RepublicofIndonesia,2022).

FuelOil(BBM)Installaon

The presence of a fuel oil installaon in the harbour area facilitates fishermen's access to gasoline for their boats. A simple gasoline pump staonrequiresanareaofapproximately800m².

Edion

IceFactoryInstallaon

An Ice Factory Installaon is a cooling system facility designed to meet the ice needs of fishermen and for the process of procuring, storing, and distribung caught fish. The purpose of the ice factory installaon is to enhance and maintain the quality of the fish, ensuring it is fit for consumpon and retains essenal nutrients. The size of the ice blocks can be adjusted according to needs. The volume of ice required can be determinedbythenumberofsmall-sizedboats(<30GT)andthevolume of fish distributed to nearby regions (Ministry of Marine Affairs and Fisheries,2021).

SupporngEquipmentforIceFactoryInstallaonconsistsof:

1.Civilstructure;

2.Brinetank;

3.Diptank;

4.Icemakingmachine;

5.Cranehoist;

6.Fillingtank;and

7.Icechute.

SpecificaonsoftheIceFactoryCoolingSystem:

1.Framework, structure, and wall materials: strong, durable, fireresistant,andrust-resistant.

2.Mainmachinecomponentsandtechnicalrequirements:

a. Main machine components (compressor, condenser, and evaporator)meetinternaonalqualitystandards;

b. Environmentallyfriendlyrefrigerant;

c. Aer-saleswarranty;and

d. Operatortraininginboththeoryandpracce.

ElectricalInstallaon

The circulaon standards for the electrical installaon are based on the anthropometryoftheoperators.

Figure 2.21 Fuel Pump Illustraon
Source: Ernst Neufert, Architect’s Data 33rd
Figure 2.22 Cold Storage Layout Illustraon Source: kkp.go.id
Figure 2.23 Electrical Work Measurement Illustraon Source: Ernst Neufert, Architect’s Data 33rd Edion

StorageFacility(ColdStorage)

According to Sandra, A. (2021), cold storage is a specially designed room based on specific temperature condions that funcons to maintain the quality of fishermen's catch by freezing and storing the fish through a seriesofhygienicprocesses.

Figure 2.24 cold storage illustraon Sumber : kibrispdr.org/unduh-1/desain-cold-storage.html

StorageFacility(ColdStorage)

According to Sandra, A. (2021), cold storage is a specially designed room based on specific temperature condions that funcons to maintain the quality of fishermen's catch by freezing and storing the fish through a seriesofhygienicprocesses.

Thecoolingroomsavailableinclude:

1. Air Blast Freezer (ABF): A room with a controlled temperature that can reach-35°C to-40°C with an air speed of at least 3m/s. This allows thecaughtfishtobefrozentoaninternaltemperatureof-18°Cwithin 8hours,withanABFcapacityof12tons.

2. Cold Storage Freezer: A storage warehouse for frozen products with a temperature that can reach-18°C to-25°C. Products to be stored in the cold storage must be frozen with a maximum temperature of18°Candthestoragecapacityis100tons.

Stagesofacviesinclude:

Receiving raw materials

Immersion

Grading and sorng

Weighing aer processing

Arranging fish in pans/trays

Storing frozen fish in cold storage

Freezing fish in the Air Blast Freezer

Packing frozen fish

The types of fish frozen are based on the types of raw materials submied by the service users. The non-tax state revenue (PNBP) tariffs chargedarecalculatedbasedontheamountofproductandtheduraon ofstorage.

Workshop

There is a workshop area for maintaining or repairing fishermen's boats and fishing equipment in the harbour area, which is easily accessible to thefishermen.

Figure 2.25 Workshop Area illustraon

Source: Ernst Neufert, Architect’s Data 33rd Edion

Dockway/slipway

AccordingtoImron,M.,thegeneralacviesofdockingaboatinclude:

Raising the boat onto the slipway

Washing and cleaning all parts of the boat

Caulking and sealing

Repairing damaged parts of the boat, especially the woodwork

Painng the boat

Repairing the engine, anchor, and other components

Lowering the boat from the slipway

Raising the Boat onto the Slipway: The boat that is scheduled for docking is raised onto the slipway using a trolley. The slipway process involves haulingboatsashoreforcleaningandrepairs(Sciorno,J.A.,1995).

2.26 Slipway illustraon

Source: Sciorno, J. A., Barcali, A., dan Carlesi, M. (1995)

2.27 Standard Size and Distance between Fishing Vessels

Source:

OfficeArea

TomeettheofficespacerequirementsaccordingtothestandardsforPPI CikidangasoutlinedbytheMinistryofMarineAffairsandFisheries(KKP), the necessary spaces include: Cashier's Office, Customer Service Complaint Office, Ice Service Counter, PIPP Service Office, Port Authority Office, Cold Storage Service Office, Personnel Service Office, Workshop ServiceOffice,andBuildingUseServiceOffice.

Office space standards based on Architect's Data, 33rd edion, volume 2 are:

Figure 2.28 Minimum Size Layout of Work Space illustraon

Source: Ernst Neufert, Architect’s Data 33rd Edion

Figure 2.29 Standard size of mushalla acvies illustraon

Source: Ernst Neufert, Architect’s Data 33rd Edion

Figure
Ernst Neufert, Architect’s Data 33rd Edion
Figure

ParkingArea

The standard requirements for parking areas based on Architect's Data, 33rdedion,volume2,are:

Figure 2.30 Standard Parking Size Illustraon

Source: Ernst Neufert, Architect’s Data 33rd Edion

Figure 2.31 Standard Car Parking Size Illustraon Sumber : Kementerian PUPR

Figure 2.32 Standard Motorcycle Parking Size Illustraon

Source: Ernst Neufert, Architect’s Data 33rd Edion

Figure 2.33 Standard Bicycle Parking Size illustraon

Source: Ernst Neufert, Architect’s Data 33rd Edion

2.34 Standard Public Toilet Size Illustraon

Source: Ernst Neufert, Architect’s Data 33rd Edion

2.35 Standard Disabled Toilet Size Illustraon Sumber : lingkarsosial.org

Figure 2.36 Standard Culinary Tourism Table Size Illustraon

Source: Ernst Neufert, Architect’s Data 33rd Edion

Fishermen'sGuesthouseandOperatorDormitory

The availability of a guesthouse provides a place for fishermen to rest bothbeforeandaerfishing,aswellasforharbouroperators.

2.37 Fisherman's Homestead Requirements Illustraon

Source: Ernst Neufert, Architect’s Data 33rd Edion

PublicToilet
Figure
Canteen
Figure
Figure

Study of Local Wisdom

Local Wisdom is a conceptual idea that has existed and become a tradion (passed down through generaons) within a community, connuously growinganddeveloping,andfunconstoregulatethecommunity'slife,especiallyinsacredaspects(Antariksa,2009).Inanthropology,theterms"local genius"and"culturalidenty"areknownastheculturalidentyorpersonalityofanaon(local).Withinthetradionsandcustomsofhumanlife,there is also customary wisdom, which consists of specific values that uphold customs and tradions in a parcular region. Customary wisdom is understood as everything based on knowledge and recognised by reason, and considered good by religious principles because it contains goodness. Local wisdom encompassessocial,cultural,economic,andecologicalaspects.Itcangenerallybefoundinvariousformsofculturalproducts(Piutan,R.,S.T.,2015).

Inanthropology,theterms"localgenius"and"culturalidenty"areknownastheculturalidentyorpersonalityofanaon(local).Withinthetradions and customs of human life, there is also customary wisdom, which consists of specific values that uphold customs and tradions in a parcular region. Customary wisdom is understood as everything based on knowledge and recognised by reason, and considered good by religious principles because it containsgoodness.Localwisdomencompassessocial,cultural,economic,andecologicalaspects.Itcangenerallybefoundinvariousformsofcultural products(Piutan,R.,S.T.,2015).

The emergence of local wisdom originates from various ethnic knowledge in Indonesia. This manifests in different forms of knowledge that showcase specific skills and some informaon in both theorecal and praccal ways. Therefore, local wisdom is an expression of the ethnic groups in Indonesia basedontheacvies,behaviours/acons,andthoughtsofthecommunity,whichthenproducecertain(local)works(Meliono,I.,2011).Belowarethe sourcesoflocalwisdominIndonesia(Table2.2).

Basic-Element

Empirical Aspect

Symbol of Culture

Local Wisdom

Social interacon of human being Habitat or meaningfull acon

Architecture

Arts

Literary

Ritual

Local myths

Source: Meliono, I., 2022

Based on Table 2.2 regarding sources of local wisdom in Indonesia, three key elements are emphasized: empirical aspects, cultural symbols, and knowledgecharacteriscsspecifictoaparcularlocalcommunity.Theimplementaonofalocalwisdomapproachcancreateopportuniestoenhance thepotenalidentyoffishingtourismineffortstorevitalizethearea.Thefactorsforminglocalwisdomincludethelocalcommunity,nature,andculture, which introduce elements of locality into the design, both in physical form (tangible) and in values of locality. Areas with a strong sense of place identy generally succeed in aracng many visitors. With a high number of visitors, these cies can build their economies through tourism (Nuzir, F. A., et al., 2019).

Table 2.2 Sources of Local Wisdom

Study of Social Interacon of Human Being based on fishermen’s at Cikidang Fish Landing Base as Empirical Aspect

According to a fisherman named Dayat (personal communicaon, 16 August 2022),he explainedthe socialacviesorrounescarriedoutby fishermen to meet their basic needs. They usually sail out to catch fish in the middle of the night at around 03:00 AM and return to the dock at around 09:00 AM (figure 2.38). Aer catching fish, the fishermen then sort their catch (figure 2.39), and aerwards, they aucon it at the Fish AuconPlace(figure2.40).

Fishermen who catch only a small amount of fish usually do not aucon their fish at the TPI. Instead, they sell their fish around the PPI Cikidang area or along the east coast road, even though somemes not all the fish are sold on that day. Therefore, the fishermen oen cook the fish for their own consumpon; store the catch at home to sell the next day; or preserve the unsold fish using tradional methods, such as smoking or salng.

In addion to the fishermen's acvies, Stefani (a local resident, personal communicaon, 24 August 2022) claimed that every evening, street vendors or small and medium enterprises (SMEs) oen set up commercial stalls in the harbourarea from around 15:00 to 17:30 (figure 2.41). However, due to the lack of lighng in the area, the harbour becomes dark by dusk, making it uncomfortable for the street vendors, who then leave the harbour area. The presence of street vendors in the PPI Cikidang area creates an opportunity for cooperaon between PPI Cikidang and the SMEs or street vendors by providing commercial facilies such as a canteen, which is one of the supporng facilies recommendedbytheMinistryofMarineAffairsandFisheries.

Figure 2.41 Street VendorAtmosphere at Cikidang Fish Landing Base Source: Author, 2022
Figure 2.38 FIshermen Aer Fishing Source: Author, 2022
Figure 2.40 Fish Aucon Atmosphere at Cikidang Fish Landing Base Source: Author, 2022
Figure 2.39 Fishermen Sorng Fish Source: Author, 2022

Study of Marime Habitat

as Empirical Aspect

According to Muniruddin (2002), the characteriscs of the coast and their influence on architecture involve designing construcons and buildings located by the sea, on the coast, or at the border between land andsea.Thesedesignsmustconsiderseveralaspectsasfollows:

Table 2.3 Aspects and Influences of Design in the Marine Area

• Sea Condions: Including dimensions and configuraon, des,andwaterquality.

• Land Condions: Including size, configuraon, soil bearing capacity,andownership.

• Climate: Covering the types of seasons, temperature, wind, andrainfall.

• ChemicalEffects:Suchascorrosion.

• Coastline: A flat or gently sloping land area directly adjacent to water, suitable for sunbathing or sheltering under the shade of trees (such as coconut trees or other coastal vegetaon)whileenjoyingtheviewofthewaters.

• Dock: A place for boats/ships to dock, also serving as a pathway over the water connecng the land to the boats/ships.

• Bridge: A connector between land or two parts of land separatedbyariverorcanal.

• Open Space: Such as parks or plazas, designed in a network ofspacesconnectedwiththecoastalareaorbeachacvies.

• Acvies: To support the exisng physical layout, it is necessary to design acvies that support or disnguish the unique characteriscs of the meeng area between land and water.

Source: Muniruddin, 2002

Considering the natural condions of the coast and the physical environmentalelementsiscrucialinarchitecturalplanningtoensurethe strength and durability of building structures. These consideraons include:

Soil

Table 2.4 Consideraons of Physical Environmental Condions

The coast is the transional area between land and sea, influenced by seawater, featuring sandy soil condions, the presence of coral reefs, and dal changes. Coasts are formed by various natural events such as soil erosion, volcanic erupons or lava deposits, marine deposion, and so on. There are different types of coasts, including steep/cliff coasts and gentle/sloping coasts. The soil types in coastal areas include sand, hard soil, coralrocks,orlimestone.

Windsblowingonthecoastincludebothlandandseawinds.The coastal area, which is generally open and spacious, causes the wind blowing from the sea to have a higher average speed comparedtothewindblowingonland.

Factors that need to be considered in building planning include wind pressure and shear forces that cause building swaying. To avoid these, the building mass should have a small surface area facing the wind. Wind sucon can li lightweight roof and wall structures, especially with small roof angles (<15 degrees). Therefore,itisrecommendedthattheroofanglebe>30degrees. The wind blowing from the sea carries H2O (water vapor), which causescorrosionbyreacngwithmetals.

The soil in coastal areas generally contains sand and mineral parcles. Seawater intrusion is an important factor to consider when building foundaons. Seawater intrusion can cause corrosion in the foundaon and interfere with construcon acvies,suchasconcretepouring.Therefore,whenconsidering the type of foundaon and construcon methods to be used, the extent of seawater intrusion at the locaon must be invesgated first. One way to prevent seawater intrusion is by improving or compacngthesoil.

Source: Muniruddin, 2002

finion of the Coast
in the Marine Area

Typological Studies

Sundanese Architecture as a cultural symbol

Sundanese house architecture is influenced by tradion or customs. The tradional houses of the Sundanese people, which are built on slts, signify that the house should not touch the ground as a mark of respect for the deceased. The construcon materials for tradional Sundanese houses are predominantly natural, such as wood, bamboo, ijuk (sugar palmfiber),andcoconutleaves(Anwar,H.,&Nugraha,H.A.,2013).

MassDevelopmentPaern

Linear Paern: This is a selement arrangement where each house is aligned in a straight line. This form is flexible as it adapts to various environmental condions, such as topography, societal systems, river flows, highways, or coastal lines (Anwar,H.,&Nugraha,H.A.,2013).

Figure 2.42 Linear Paern

Source: Author, 2022

FormofTradionalSundaneseHouse

The materials used in Sundanese buildings include wood, bamboo, and ijuk (sugar palm fiber) to honor the deceased. Sundanese ethnic houses are built on slts, following their beliefs (Anwar, H., & Nugraha, H. A., 2013).

The architectural concept of slt houses in Sundanese society is an adaptaon of the Sundanese cosmology, which divides the universe into thefollowingthreelevels:

1. BuanaNyungcung(Heaven):Theabodeofthegods.

2. Buana Panca Tengah (Middle Earth): The realm of humans and other creatures,representedastheearth,causinghousestobeelevatedand notdirectlyontheground.

3. Buana Larang (Underworld): The place of the deceased, represented bythespacebetweenthehouseandthegroundasaformofrespect.

Centralized Pa ern : This selement group surrounds a dominant and spacious central area, such as a town square, village hall, open field, or similar spaces (Anwar, H.,&Nugraha,H.A.,2013).

Figure 2.43 Centralised Paern

Source: Author, 2022

2.45 Sundanese Tradional House Source: Author, 2022

Radial Paern: This combines both linear and centralized selement groups. In this paern, the houses are arranged like the spokes of a wheel. The design is adapted to the needs, funcons, and surrounding condions. Usually, the houses are placed lengthwise but have a focal point that serves as the central direcon (Anwar, H., & Nugraha, H. A.,2013).

Figure 2.44 Radial Paern

Source: Author, 2022

Details:

a.

Foundaon:

The Sundanese typically use stones for the foundaon. Stone is also used for the stairs leading from the outside to the terrace/veranda. These stone stairs are commonly referred to as "golodog" (Anwar, H., & Nugraha,H.A.,2013).

HouseFrame:

The Sundanese ethnic community uses wood or bamboo for the house frame(Anwar,H.,&Nugraha,H.A.,2013).

Floor:

The floor is made of bamboo (palupuh) (Anwar, H., & Nugraha, H. A., 2013).

Walls:

The walls are made of bamboo (bilik), although some combine it with wood(Anwar,H.,&Nugraha,H.A.,2013).

RoofCovering:

The roof is typically covered with ijuk or thatch (Anwar, H., & Nugraha, H.A.,2013). b. c.

Figure

The unique shape of Sundanese roofs, or suhunan, aims to honor the surroundingnature.

BadakHeuayRoof

Aroofshapethatlacksaridge,makingitresembleayawningrhinoceros.

JolopongRoof

Aroofshapewithelongatedsides,similartoagableroof.Thisstyleisalso knownassuhunanpanjangorgagajahan.

Boat-InvertedRoof(PerahuKumureb/PerahuNangkub)

Aroofshaperesemblinganinvertedboat,similartothelimasanroof.

JulangNgapakRoof

A roof shape where the right and le sides extend wider and are more sloping.

ScissorRoof(CapitGunng)

A roof shape where the upper ends meet and the raers intersect, resemblingapairofscissors.

DogSingRoof(TagogAnjing/JogogAnjing)

This roof shape resembles a sing dog. It is similar to the Badak Heuay roof but without the raised juncon, and it is also similar to Jolopong, with the difference being the varying slope angles on each side of the roof.

Figure 2.46 Sundanese Architectural Roof Paern Source: Author, 2022

Study of Hajat Laut Ritual

as a symbol of local fishing culture

The Sea Ritual, also known as Hajat Laut or Pesta Laut, is a tradional fisherman's ritual to express gratude and ensure safety while earning a livelihood at sea. This tradion, passed down through generaons, involves offering agricultural and plantaon produce to God (My Pangandaran, 2022). Some interpret it as a ritual of thanksgiving to the ruler of the southern sea, believing that the blessings of the sea are influenced by this enty. Therefore, to ensure safety while earning a livingatsea,fishermenconducttheHajatLautritualannually.

Over me, the Hajat Laut has evolved, reflecng the dynamic nature of culture. It has now become a public event with religious elements such as grand sermons and prayers by the shore. Inially, the ritualwas meant tothanktherulerofthesoutherncoast,butithasnowbeenclarifiedand agreeduponthattheintentistoexpressgratudetoGod.Therequestto the ruler of the southern coast has been reinterpreted as a symbol, preservingculturalvalues(Fadilah,A.N.,2022).

The Hajat Laut ritual is typically held annually on Kamis Wage (Thursday) beforeJumatKliwon(Friday)atthebeginningofthemonthofMuharram or Suro (Javanese calendar). The tradional acvies include ijab dongdang, kemitan dongdang, Kirab dongdang, larung dongdang, tawasul, cucurak, and culminate in a cultural performance accompanied by various compeons and fesvies (My Pangandaran, 2022).

Inially, fishermen bring dongdang (processions) with agricultural produce such as bananas, fruits, and tumpeng to the beach. These offeringsare thenplacedinboatsandtakentothemiddleofthesea.The act of larung (casng off) symbolizes gratude and devoon to God, transcending with the offering of sasajen (offerings), and relates to the onenessofGod,AllahSWT.

Hajat Laut is a cultural assimilaon originang from the east (Java). The original Sundanese culture was agricultural, but the migraon of people from the east (Java) to Pangandaran merged these cultures into a single ritual. In Sundanese, Hajat Laut can be divided into two words: Hajat, meaning desire or intenon, and Laut, meaning the vast creaon of the Almightyintheformofwater.

Figure 2.47 Sowing Sea Flowers on the East Coast of Pangandaran Source: dailypangandaran.com, 2022

Acvity Flow of Hajat Laut

Ijab Dongdang event opening process

Kemitan Dongdang Kirab Dongdang the beginning of the event (parade) walking along the coast area

Source: travel.dek.com/travel-news/d-5169032/hajat-lautpangandaran-tetap-digelar-meriah,2020

Source: news.mypangandaran.com/berita/read/budaya/ 2700/syukuran-nelayan-pangandaran-tradisiturun-temurun-dari-leluhur, 2022

Larung-Tawasul throwing offerings

Source: mypangandaran.com/galeri/read/175/3293/dokumentasi-hajatlaut-pantai-barat-pangandaran, 2014

Source: mypangandaran.com/galeri/read/175/3295/dokumentasihajat-laut-pantai-barat-pangandaran, 2014

Source: metropolitan.id/2018/05/tradisi-cucurak-ajangsilaturahmi-menyambut-ramada/, 2018 Cucurak eang together

Source: mypangandaran.com/galeri/read/175/3292/dokumentasihajat-laut-pantai-barat-pangandaran, 2014 Pagelaran Seni having fun

Study of Fisherman's Literacy

as a symbol of culture

FishAuconAcviesatFishAucons

1. Loading and Unloading Goods: Seafood is brought directly from the boats to the Fish Aucons for aucon or received from other Fish Aucons with processed frozen fish (usually large-scale producers for resale in factories). The aucon process caters to small-scale buyers.

2. FishAucon:ConductedbythemanagementatFishAucons.

3. Post-Aucon Distribuon: Fish are distributed to fish markets or restaurants. Unsold fish are stored in cold storage (for long-term storage) and factories (for short-term storage). Another tradional preservaonoponisavailable.

4. Loading and Unloading for Distribuon: Fish are distributed either by land or sea (to other Fish Aucons).Local Fishermen's Skills and Problem-Solving AbiliesLocal fishermen have developed skills and methods to preserve unsold fish to prevent waste. There are two typesofpreservedfishquality:unsoldauconfishandfreshfish.

TradionalFishPreservaonMethods(CNN,2021):

1.SaltPreservaonProcess:

•Typicallyusedforthickfishspecies,lemuru,andjapu.

•Clean the fish's internal organs, wash thoroughly to remove all blood for longer preservaon, and salt the fish thoroughly, includingthegapsintheflesh.

•Soak or boil the fish with salt using firewood for about 1-2 days (depending on fish size; larger fish require longer soaking). Small fishareusuallyboiledfor10-20minutes.

•Dry the fish. Sunlight is crucial in the salng process; the more intensethesunlight,thebeer.Dryingtypicallytakesabout5days, while small fish usually take 2-3 days. The fish should not get wet duringdryingasitaffectsquality.

•Sort the fish by quality grade (Grade A is sold at a higher price, and GradeBatalowerprice).

•Packaging.

=

2.SmokingProcess:

•Fish smoking uses coconut shell charcoal, which burns longer and doesn'teasilycharthefood.

•Cover the fish's belly with oil paper to protect it during smoking. The belly is not removed unl sold to the buyer. The smoking processtakes2-3hoursunlthefishisevenlycooked.

•Packaging.

1

2 3

4

Fish Aucon Process
Loading and Unloading Goods
Distribuon to Fish Markets and Restaurants
Distribuon

Precedent Study of Building Funcons

Responding to Social and Economic Aspects

JaffaPortMarket

Jaffa Port Market is a new shopping, culinary, and entertainment venue with kiosks offering fascinang experiences inspired by history, culture, and cuisine. It is located in the central Warehouse 1 area of the regenerated port on the Israeli waterfront.The materials used are inspired by the harbor and sea, such as fishing nets, steel structures, warehouses, and dilapidated boats docked at the pier. The material palee includes stainless steel mesh, solid wood, steel sheets, and bricks—materials that naturally weather in the salty and humid locaon. This provides a disncve yet neutral atmosphere that allows each shop ownerthefreedomtoexpresstheirculinarypersonality.

BasedontheprecedentstudyofJaffaPortMarket'sdesign,thefollowing conclusionscanbedrawn:

1. Material Use: Ulizes materials based on the local wisdom identy of fishermen's daily lives and materials that respond to the site's context.

2. Open Space Typology: Employs an open space typology in the commercialareatoallowvendorstoconnectwithoneanother.

Use of site-responsive materials

Use of site-responsive materials

Figure 2.55 Jaffa port market
Interior of Jaffa Port Market
Source: Jacobs-Yaniv Architects, (archdaily), 2012

Precedent Study of Building Funcons

Responding to Social Aspects

WaterfrontTavern/H&EArchitects

Shell Cove is a unique and expansive social hub comprising residenal, commercial, and tourist developments located on the southern coast of Wollongong,Australia.Tohonoritsmarimeseng,thedesignwasdevelopedasacontemporaryinterpretaonofwoodenboathouses,cladinAccoya wood (acetylated mber) for durability and sustainability. The roof is made of zinc, and the building is constructed on reinforced concrete. Materials were chosen for their ability to withstand the harsh marine environment, with details developed to maximize longevity. The fabricated building is intendedtobelong-lasngwithrelavelylowmaintenance(Archdaily,2021).

Exterior-Interior Waterfront Tavern-Shell Cove

Waterfront Tavern-Shell Cove

Table 2.5 Sources of Local Wisdom Based on Waterfront Tavern study

Basic-Element

Empirical Aspect

Symbol of Culture

The building's form leading to the entrance of the port serves as a welcoming sign for fishermen as they return throughtheportentrancetothedock.

Public areas face north and east to capitalize on the site's aspect and potenal views. The back-of-house area is strategically placed in the southwest corner to minimize service cross-traffic, thereby maximizing operaonal efficiency.

The north and east facades consist of hydraulically operable glass panels that allow the building to embrace the environmentwhentheweatherisfavorableandprovideproteconwhenitislessinving.

Theoperablefacadeenablesthevenuetobeermanageitsacouscimpactduringtheevening.

The social hub building connects with the village to the west, extending towards a canlever over the harbor to the east.

The interior design adopts a vernacular boathouse approach, offering soaring wooden ceilings. Furniture detailing andcarpentryhavebeendesignedtohighlightthecoastalthemeinanintriguingabstraconofthenarraveflow.The WaterfrontTavernisacontextualresponsetolocalwisdomwithamoderntouch,anditisresponsivetoitslocaon.

Source: Author based on Local Wisdom Study, 2022

Figure 2.56 Waterfront Tavern-Shell Cove
Source: Murray Fredericks, dan Richard Glover, 2021
Local Wisdom and Building Funcons

Precedent Study of Building Funcons

Responding to cultural aspect

FishingBoatHarborand'River'ofLiopetri

Architects : Iereidis Vasilis, Michael Aimilios, Zomas Alexandros, Mitakou Eleni, Raisi Alexia, Hatzopoulos Dimitris, FanouParaskevi,danLadaAnastasia.

BuildingFuncon :FishingBoatHarbor

SiteLocaon :SoutheastcoastofCyprus,betweenLarnacaandAgia Napa

SiteArea :42hectares

This design stands as a binary between experience and funcon. As a result, there is no clear boundary between the fishing harbor and the naonalpark.ThediversegeologicalcondionsandMediterraneanflora surrounding the site create a unique landscape, which greatly influences the design by exploring the environment (site) as a concept for designing. The approach to the landscape is to create a unified and integrated space that provides an experience between nature and agriculturallandscape(Furuto,A.,2012).

entrance view 01
bycycle parking
Landscape view

Fishing Boat Harbor and 'River' of Liopetri uses local wisdom strategies in its design. The precedent study based on the principles of local wisdom for FishingBoatHarborand'River'ofLiopetriisexplainedinthetablebelow:

Basic-Element

Empirical Aspect

Theuniqueterrainofthesiteareaaractsvisitors,providingadisncvecharmtothosewhocometothelocaon.

The region's flora is highly diverse across the total site area. Within a few meters of each other, visitors can appreciate thecharacteriscfloraoftheseasideenvironment,tributaries,agriculturalland,Mediterraneanshrubsgrowingfrom rocks,andcoastalpineforests.

The region's flora is highly diverse across the total site area. Within a few meters of each other, visitors can appreciate thecharacteriscfloraoftheseasideenvironment,tributaries,agriculturalland,Mediterraneanshrubsgrowingfrom rocks,andcoastalpineforests.

Symbol of Culture

Spaces are carved in the form of local cultural interpretaon, blending seamlessly with nature and creang opportuniesforvisitorstoremembertheplaceforitsdisncvefeatures.Thespacesaredesignedtoaccommodate morethanonefuncon.

The building structures use a vernacular concept, with all materials sourced from nearby the site to reinforce the senseofplaceandtheconneconbetweenlocalcustoms,socialaspects,andtheenvironment.

Source: Author based on Local Wisdom Study, 2022

Table 2.6 Sources of Local Wisdom based on study Fishing Boat Harbor and 'River' of Liopetri
Figure 2.57 Fishing Boat Harbor and ‘River’ of Liopetri Source: archdaily, 2012

Precedent Study of Building Funcons

Responding to economy aspect

Sydney Fish Market combines the tradional fish market program with contemporary features, intended to establish a strong public connecon to the waterfront at Blackwale Bay. The fish market design applies the concept of contemporary spaal percepon to the market archetype; a large semi-open space inhabited by rows of vendor stalls. The ground floor houses all funcons tradionally associated with a fish market, while an amphitheater staircase and waterfront promenade allow visitors to appreciate the inner trade and operaonalfunconsfromasafedistance.

Anamphitheater staircase leadingfrom the plaza to the public market creates a waterfront promenade and connects the localenvironmenttothecentralcommercialarea.Marketsare social hubs in cies worldwide, typically consisng of a series of open stalls covered by a canopy and located in large squares. Maintaining the authenc market feel is the main goal of this new building. Preserving this free, human-scaled atmosphere is the design's primary focus. The undulang roof form retains the essence of this typology and creates a moderniconforthewaterfront(Allen,K.(archdaily),2018).

Aerial View

Market port interior and loading and unloading of goods

Waterfront area of sydney fish market

Table 2.7 Sources of Local Wisdom based on 3XN’s Sydney Fish Market study

Basic-Element

Symbol of Culture

Tradional markets are generally open spaces, while fish markets are typically enclosed from the public due to health risks posed by machinery and processes. However, this design provides a strong visual connecon to the interior funcons and allowsforindirectpublicparcipaoninthebuilding.

Tradional markets are generally open spaces, while fish markets are typically enclosed from the public due to health risks posed by machinery and processes. However, this design provides a strong visual connecon to the interior funcons and allowsforindirectpublicparcipaoninthebuilding.

Themarketdesignencouragessustainablestrategiesbyincorporangrainwaterharvesng,greywaterrecycling,biofiltraon, andmechanicalfiltraonsystems.Thewastesystemalsopriorizesrecyclingstrategiestoreduceunnecessarywaste.

Source: Author based on Local Wisdom Study, 2022

Figure 2.58 Sidney Fish Market Source: archdaily.com, 2020

Waterfront view
Interior of supporng facilies
Interior of the Market harbor and Aucon Place
Local Wisdom and Building Funcons

Schemac Analysis of Concept Synthesis

INDICATOR VARIABEL

ANALYSIS

Building Setback Line:

Front setback min. 10m,

Site context at Cikidang Fish Landing Base

Regulaons Building Fishermen’s near from Selement

in Pangandaran and Aquarium

right and le side setbacks min. 4m,

Building Base Coefficient Max. allowed 60%; Green Base Coefficient 25%;

Building Floor Coefficient 4,5;

Green open space Max. allowed 40%.

There are a chance of the access Village and PIAMARI Aquarium

BENCHMARK SYNTESIS

Study of Fish Landing Base

Cikidang of Building Funcon

Study of Local Wisdom

Landing Base

Cikidang Fish Funcons

Fish Landing Base

Apart from supporng management

Fulfill funconal facilies and and the environment, its funcon and ulizaon of fishing resources is also as a place for tourists to enjoy at Cikidang Fish Landing Base the local wisdom of fishermen

Design criteria of and standards

Space requirements

social interacon of

supporng facilies based on of Marime Affairs and Fisheries

literary, ritual, and architecture, arts, local myths

recommendaons from the Ministry

Time Saver Standars for Building

Types; orientaon of facilies, minimizing radiaon.

Covering aspect of; human being, Habitat or meaningfull acon, and correlaon between Fishing

circulaon, opmizing view potenal,

Reference standards for the Ministry

of Marime Affairs and Fisheries; acvity stages.

Standard room layout, systems,

Empirical Aspect, and Symbol of Culture

Figure 2.59 Concept Synthesis Analysis Scheme based on Variable Study Analysis Source: Author, 2022 ARRANGEMENT

Problem Solving // 03.

Exisng Building Analysis

Exisng Building Analysis and New Building Planning Analysis

Circulaon Analysis

View Analysis

Climate Analysis

Zoning Analysis

Analysis of Fishermen Acvity Paerns

Analysis of Manager Acvity Paerns

Analysis of Trader Acvity Paerns

Analysis of Visitor Acvity Paerns

Zoning and Plong Design Concept

Mass Arrangement Design Concept

Mass Arrangement Axonometry

Synthesis of Design Concept

Exisng Buildings Analysis

MAP KEY:

Buildings to be Demolished

Buildings to be Retained

Canteen Area: The canteen area will be relocated and repurposed, but theexisngstructurewillberetainedwithanewfaçadedesign.

Ice Factory Area: The ice factory area will be maintained, with an expansiontoaccommodatetheincreasedpropertysize.

Fish Aucon House: The fish aucon house will be relocated, but its structure will be retained and adapted to the new funcon and façade design.

BNI Shelters: Both BNI shelters will be demolished, and their previous storage funcon will be relocated to a more secure locker area for fishermen.

5 4

Main Entrance Gate of PPI Cikidang: The main entrance gate will be retainedwithminormodificaonstoalignwiththenewdesign.

Fishermen's Homestead: The fishermen's Homestead will be demolished as it does not comply with the regional spaal planning regulaonsofPangandaranRegencyNo.3of2018-2038,whichrequires aminimumfrontsetbackof10meters.

Office Area: The office area will be relocated, but its structure will be retained and its façade will be redesigned. The lighthouse will be demolishedanditsfunconrelocated. 8

Residents' Canteen Shacks (illegal structures): The illegal canteen shackswillbedemolishedandrelocatedtofitthenewdesign.

Figure 3.1 Exixng Building Analysis Source: Author, 2022

Exisng Buildings and New Building Planning Analysis

Figure 3.2 Exisng Building and Planning Analysis
Source: Author, 2022

Circulaon Analysis

Based on the analysis in Chapter 2, several circulaon analisys points wereidenfied:

•The western direcon intenonally does not have public pedestrian accessasitisaprivatearearestrictedtofishermenandmanagement only.

•There is a dedicated pedestrian area for fishermen to facilitate their circulaonaerfishing.

•The parking area is located near the main public access to make it easier for users or visitors to access the buildings from both the west andtheeastdirecons.

Furthermore, the posioning of loading docks on land and at the dock is strategicallyploedtopassthroughthefishauconarea.

•The fish market area is placed close to the fish aucon house to facilitate the distribuon process and allow visitors to observe the auconprocess.

•The amphitheater is situated at the eastern end to streamline and make circulaon more efficient during the sea ritual parades from thefishingvillage.

Figure 3.3 Circulaon Analysis Source: Author, 2022 N

View Analysis

Based on the analysis in Chapter 2, several view analysis points were idenfied:

•Theserviceareaisposionedlengthwiseatthenorthernend.

•The fishermen's dormitory, fish market, and amphitheater are arranged lengthwise from west to east to opmize the potenal views, showcasing the dock area with fishermen's acvies and the scenicseaviews.

View Analysis
Source: Author, 2022

Climate Analysis

Based on the analysis in Chapter 2, several climate analysis points were idenfied:

•The buildings are oriented lengthwise from west to east to minimize solarradiaonandincorporateshadingoroverhangs.

•Considering the wind direcon at the site, the building should face perpendicular to the prevailing wind direcon. To opmize the potenal of the wind, which has an average speed of 12-27 km/h in the fish market area, the market buildings are situated at the southern end. This can also enhance the applicaon of local wisdom principles.

Climate Analysis
Source: Author, 2022

Zoning Analysis

The zoninganalysisofthepublicarea isinfluencedby thelocaonofthe fishingvillagetofacilitatevisitors'accesstothevillage.Theprivateareais locatedatthewesternend,awayfromthefishingvillageaccess.Interms of accessibility, the area near the dock includes private and semi-public zones. The semi-public zone is designed based on the design analysis to allow visitors to observe or socially interact with the acvies of the fishermen.

Figure 3.6 Zoning Analysis
Source: Author, 2022 N

Analysis of Fisherhermen Acvity Paerns

Based on observaons and the paerns formed by the fishermen's acvies, a designated plong and zoning area has been idenfied, marked in pink. This expansive zone reflects the extensive needs of the fishermen, which are dictated by their daily rounes and operaonal requirements.

Figure 3.7 Analysis of Fishermen Acvity Paerns Source: Author, 2022

Analysis of Manag

Thepaernsformedbythemanagement'sacviescloselymirrorthose of the fishermen, with the primary difference lying in the specific acvity zones. The office area, encompassing various administrave and supervisory funcons of the Fish Landing Base, is consolidated to streamlineaccessibilityforusers.

Figure 3.8 Manager Acvity Paerns Analysis of Source: Author, 2022

Analysis of Trader Acvity Paerns

The acvity paern of traders extends from the central point of the site to the eastern part, with the Fish Aucon Place strategically located at the main entrance to facilitate easy access. To the west of this area is the office where traders can conveniently register to parcipate in the fish aucon.

Figure 3.9 Trader Acvity Paerns Analysis of Source: Author, 2022

Analysis of Visitor Acvity Paerns

The orientaon of visitor pathways is strategically directed towards the Fishermen's Village. This design allows visitors to immerse themselves in local cultural tourism, experiencing tradional acvies such as handicras, fish preservaon and processing, and other authenc communitypracces.

Figure 3.10 Visitor Acvity Paerns Analysis of Source: Author, 2022

Zoning and Plong Design Concept

Based on the conceptual analysis and the study in chapter 2, several key points have been idenfied:

•The orientaon of facilies at the Fish Landing Base should be close to the dock to facilitateandexpeditethefishauconprocessforthefishermen.

•Access for fishermen to Fish Landing Base facilies should be easy, including access to maintenanceareasforboatsandfishinggear,suchasthefishermen'slodge,workshop, dock/slipway,netrepairarea,andfuelinstallaon.

•The boat maintenance area (workshop) should have direct access to the dock, with a slipway to facilitate the transportaon of boats from the dock to the workshop for repairs.

•The amphitheater should be oriented towards the water to provide scenic views, while alsobeingposionedtoavoiddirectsunlightduringcertainmesoftheday.

MAP KEY:

Site Limitaons

Fisherman and Management Zone

Trader Zone

Visitor Zone

Figure 3.11 Zoning and Plong Design Concept Source: Author, 2022 N

Mass Arrangement

Design Concept

The mass arrangement is designed in clusters to evoke the feel of a Fishing Village. This clustering is influenced by the analysis of zoning, views, climate, and ac paerns. Several structures are arranged to intersect with the dock, allowing for direct access, such as the Fish the Workshop. This ensures that users can easily move towards the dock, facilitang theflowofacvies.

Mass Arrangement Design Concept Source: Author, 2022
Parking Area
Area
Building Setback Line (GSB)
Green Base Coefficient (KDH)
Ice Factory Installaon

Mass Arrangement Axonometry

The presence of exisng buildings on the design site necessitates a selecve approach to preservaon and demolion. Structures such as the lighthouse and the main gate will be fully retained. The Fish Aucon Place, Ice Factory, Canteen, and Office Buildings will have their structures preserved, with facades updated to align with the new design. However, the BNI Shelter, Mosque, Local Canteen, and Fishermen's Lodging will be demolished as they exceed the buildingsetbacklineof10meters.

The final design form has been determined through thorough analysisanddatareviewstages.

The placement of the building masses takes into account accessibility to the fish market and culinary tourism areas in relaon to the fishing village and PIAMARI aquarium, both locatedtotheeastofthesite.Thisresultsinafunconaldivision between public areas (east) and private areas (west). Addionally, the new building masses consider the structural gridoftheexisngbuildings.

Semi Private Access

Semi Public Access

Fishermen, Management, and buyer/trader

Private Access

Fishermen Fishermen and Management

Public Access

Private Access

Management

Figure 3.13 Mass Arrangement Axonometry Source: Author, 2022

Synthesis of Design Concept Fish Aucon Concept

Based on Responses to Social Interacon of Human Being

There is transparency between the visitor circulaon area and the Fish Aucon Place, allowing visitors to observe the aucon process. This design choice also creates an opportunityforvisitorstoparcipateinthefishaucon.

To ensure comfortable viewpoints for aucon parcipants at the Fish Aucon Place, ered seang is provided. This seang arrangement also funcons to give the aucon officials (auconeer, sorter, and weigher) ample space to carry out their acvies without being disturbed by the auconparcipants.

Acvies that will be held at the fish aucon:

Figure 3.14 Exterior Concept of Fish Aucon Place Source: Author, 2022
Figure 3.15 Interior Concept of Fish Aucon Place
Source: Author, 2022

Synthesis of Design Concept Facade Concept for Culinary Tourism Area (1st Floor)

Based on Responses to and Studies Marine HabitatArt

building envelope and soundscape in the culinary tourism area. The strong winds, a combina produce sounds from the angklung. This integraon not only enhances theaesthecappealbutalsocreatesanauditoryexperiencethatreflects thelocalculturalidenty.

3.16 Building Envelope Concept for Culinary Tourism Source: Author, 2022

Figure

Synthesis of Design Concept

Ceiling Concept for the Fish Market Area (Ground Floor)

Based on Responses to and Studies Marine HabitatArt

The musical instrument Kolok (Kolotok Leuk/Kolotok Kecil/ Small Kolotok) originates from West Java, Indonesia. The material for olok is chosen from coconut shell waste, bamboo, and rope. Inially,Kolotok(inalargersize)wasusedasanecklaceforbuffaloes whileplowingfields.ThesoundproducedbyKolokisinfluencedby itssizeandisoenpairedwiththeangklung.Inthisdesign,Kolokis placed on the ceiling of the Fish Market area as a soundscape, ulizing the wind and vibraons generated from the Culinary TourismArea(1stFloor).

Figure 3.17 Fish Market Ceiling Concept

Source: Author, 2022

Synthesis of Design Concept Fish Market and Culinary Tourism Area Concept

Based on Responses to and Studies Marine HabitatArt

A coconut tree is placed in the center of the fish market areaasasymboloftheofferingsthatwilllaterbecastinto thesea.Itissurroundedbymusicalinstrumentsdesigned to ward off pests or plagues. The louder the sound producedbytheseinstruments,thebeertheprotecon againstdisasters.

Figure 3.18 Void-Ramp Area Concept for Fish Market and Culinary Tourism Source: Author, 2022

Synthesis of Design Concept Transformaon Concept of The Fish Aucon Roof

Based on Responses to Sundanese Architectural Studies Typology

Phase 1 Phase 2

The Jolopong roof's red line marker is made transparent to allow naturallighttoenterthebuilding.

The upper part of the roof is also made transparent to maximize theentryofnaturalsunlight.

Phase 3

A balcony is added to provide visitors with a space to enjoy views of the sea, the dock, and the process of unloading and auconing the fishcatch.

Figure 3.19 Jolopong Roof Transformaon Concept for Fish Aucon Source: Author, 2022

Synthesis of Design Concept Material and Structural Design Concept for the Fish Market Area

Based on Responses to Sundanese Architectural Studies Typology

ijuk (roof)

wood (column)

stone (column)

Phase 2 JULANG NGAPAK ROOF

Phase 1

Phase 3

As depicted in Figure 3.20, the materials used in the structure are based on the study of Sundanese architectural typology. The transformaon of the column and roof shapes is inspired by the Julang Ngapak roof.

The structure is situated in the area designated for processing and drying saltedandsmokedfish.Itisdesignedas an open space to allow smoke and odors to disperse outside. This design also creates an opportunity for visitors to observe and learn about tradional fishpreservaonmethods.

The materials used in the structure incorporate natural elements such as ijuk (sugar palm fiber), wood, and stone. These materials not only enhance the aesthec appeal of the design but also align with tradional Sundaneseconstruconpracces.

Illustraon of Rainwater Harvesng:

Rainwaterischanneledfromtheroofto the center of the column, where it is thenprocessedforreuse.

Figure 3.20 Julang Ngapak Roof Transformaon Concept for Fish Market Source: Author, 2022

Synthesis of Design Concept

Waterfront Circulaon Concept:

Based on Responses to Studies Social Interacon of Human Being

Thereisadesignatedseparaonbetweenthepublicpedestrianareaand the pedestrian area specifically for fishermen's circulaon. However, the laer can be accessed by the public and is located near the dock, serving as a space for fishermen to engage in acvies both before and aer fishing,suchassorngfish,arrangingnets,orrelaxingandtakingshelter. Thisdesignrespondstothekeyindicatorsofsocialinteraconinthelocal wisdomconcept.

Synthesis of Design Concept Landscape

Based on Responses to hajat laut Studies Local Myth (Ritual)

The amphitheater is posioned close to the dock, providing a natural backdrop, while ensuring it does not obstruct the fishermen's access to their boats. This amphitheater is designed to accommodate the series of acvies associated with the Hajat Laut ceremony and various arsc performances.

Acvies that will be held in the amphitheater:

Figure 3.22 Amphitheatre Concept for Sea Ritual Source: Author, 2022
Audience Perspecve

Problem Resoluon // 04.

Property Size

Situasi

Site Plan

Building Plan

Building Area View

Building View

Building Secon

The Sound of Local Wisdom

Natural Lighng and Air Condioning Scheme

Exploded Axonometric of Cikidang Fish Landing Base

Acvity Flow at Cikidang Fish Landing Base

Annual Local Wisdom Event: Hajat Laut Fishermen's Ritual in Pangandaran

Exterior and Interior Perspecve

Folded Plate Roof Detail- Rainwater Harvesng Process

Landscape Furniture Detail

Ulity System

Building Safety System

Barrier Free

Property Size

Table 4.1 Requirements and Standards for Funconal Facilies

Fish Aucon

Sorng Space

Loading dock for fish aucon

Seafood Kiosk

Non-Tradional Culinary Kiosk

Fish Market Kiosk

Non-Fish Market Kiosk

Fish Drying Room

Salted

Telephone room internet + radio communicaon (Lighthouse)

Clean water supply installaon

Fuel

Electrical installaon

Based on 2018 UPTD Pangkalan Pendaratan Ikan Pangandaran data, the number of fish traders or baskets is ± 126 people.

(Data Arsitek, Ernst Neufert)

based on exisng references

Arsitek, Ernst Neufert)

Supporng Facilies

Total Size = 13.049,086m²

(Data Arsitek, Ernst Neufert)

m²/ toilet x

(wudhu area) (Data Arsitek, Ernst Neufert)

(lingkarsosial.org)

(Data Arsitek, Ernst Neufert) adjustable adjustable

(Data Arsitek, Ernst Neufert)

(Data Arsitek, Ernst Neufert)

(Data Arsitek, Ernst Neufert) (Data Arsitek, Ernst Neufert)

Source: Author's Analysis, 2022

Situaon

PelabuhanCikidangst. BabakanVillagest.

SURROUNDINGS

The design of the Cikidang Fishing Port (Pangkalan Pendaratan Ikan Cikidang)isprimarilyorientedtowardsthePangandaranmainroad(straight from Pelabuhan Cikidang st. On the east side facing the selement of cikidang village or fishing selement and the PIAMARI aquarium (PangandaranIntegratedAquariumandMarineResearchInstute).

Babakan Village st.
BabakanVillagest. PIAMARI
Cikidang Fish Landing Base Pier
PantaiTimurst.
Babakan Village st. RedBridge East Coast
Fisherman's Village, Babakan Village
Cikidang River
Figure 4.1 Situaon Source: Author, 2022
Fisherman's Village, Babakan Village
Fisherman's Village, Babakan Village

Site Plan

MAP KEY

Fishermen's Meeng Hall

Mushalla and Toilet

Oil Refueling Vehicle Parking

Fuel Oil Installaon

Fisherman's Homestead

Ship Maintenance Place (Bengkel)

Workshop Services Office

Workshop Warehouse

Fisherman's Locker Room

Parking Area for Officers and Fishermen

Loading Dock (Land Route)

Ice Counter, Cold Storage Counter, and Fish Aucon Counter

Fish Aucon

Loading Dock (Sea Route)

Pavement - Asphalt Dark
Pavement - Porous Concrete
Pavement - Grass Block
Laminated Wood
Ceramic - 50x50 cm
Figure 4.2 Site Plan
Source: Author, 2022
Ceramic - 30x30 cm

Building Plan

Ship Maintenance Place and Fisherman's Homestead

Ground Floor Plan
Figure 4.3 Floor Plan of Ship Maintenance Area and Fishermen’s Fisherman's Homestead
Source: Author, 2022

Building Plan

Fish Aucon and Office Area

Source:

Figure 4.4 Floor Plan of Fish Aucon Place and Cikidang Fish Landing Base Office
Author, 2022

Building Plan

Babakan Village Cras and Souvenirs Centre

1st Floor
Culinary
Figure 4.5 Floor Plan of Cra and Souvenir Centre in Babakan Village
Source: Author, 2022

Building Plan

Fish Market and Culinary Seafood Area

Source: Author, 2022

Figure 4.7 Culinary Area (Seafood) Floor Plan
Figure 4.6 Fish Market Floor Plan Source: Author, 2022

Building Area View

Building Area View

Figure 4.10
Figure 4.11
Fish Aucon
Visitor Bus Parking Area
Fishermen's Meeng Hall
Fish Market and Culinary Area
Fish Market and Culinary Area
Visitor
Fishermen's Homestead
Fishermen's Meeng Hall

Building View

Ship Maintenance Place and Fisherman's Homestead

Figure 4.12 Building View of Ship Maintenance Area and Fisherman's Homestead
Source: Author, 2022

Building View

Fish Aucon Place and Souvenir Centre

Figure 4.13 Building View - Fish Aucon Place and Souvenir Centre
Source: Author, 2022
Fish Market
Fisherman's workshop and homestead
Fish Market Fisherman's workshop and homestead
NORTHWEST VIEW
SOUTHEAST VIEW

Building View

Fish Market

Figure 4.14 Building View - Fish Market and Culinary Area (Seafood)
Source: Author, 2022

Building Secon 01

Fish Market

Building Secon 01 - Fish Market Scale 1:200
Figure 4.15 Building Secon S1 - Fish Market Source: Author, 2022

Building Secon 02 Fish Aucon

Figure 4.16 Building Secon S2 - Fish Aucon Place
Source: Author, 2022
Building Secon 02 - Fish Aucon Scale 1:300

Building Secon 03

Fishermen’s Homestead

Figure 4.17 Building Secon S3 - Fisherman's Homestead
Source: Author, 2022
Building Secon - Fishermen’s Homestead Scale 1:50

The Sound of Local Wisdom

Sound Spots Plan - Kolok

The sound produced by Kolok (kolotok leuk/small), which ulizes the potenal of land and sea winds, as well as the vibraons generated from the first floor (above).

Sound Spots of Kolok at Fish Market - Ground Floor Scale 1:500
Kolok Sound Installaon Details:
Figure 4.18 Sound Spots of Kolok Source: Author, 2022

The Sound of Local Wisdom

Sound Spots Plan - Angklung

Sound Spots of Angklung at Culinary Area - 1st Floor Plan

Scale 1:500

Angklung Facade Detail Scale 1:250

The sound produced by the angklung ulizes the potenal of land and sea winds. The angklung also serves as the building'sfacadeonthefirstfloor.

Source: Author, 2022

Souvenir Centre by Babakan Village
Figure 4.19 Sound Spots of Angklung

The Sound of Local Wisdom Sound Spots - Kolok

and Angklung

The coconut tree, serving as the focal point of the building, symbolizes the offerings that will be set adri duringthe ritual of "Hajat Laut." In the voidarea, visitors can hear the soundsof angklungandkoloksimultaneously. This tradion,rooted in the mythsof the Sundanese ancestors of Pangandaran, aims to ward off pests and disasters. The louder the sounds produced, the beer it is believed to be, and the furtherawaymisfortunewillstay.

Figure 4.20 Sound Spots of Angklung Source: Author, 2022

Folded Plate Roof Detail

Rainwater

Harvesng Process

Water Pipe

Rainwater falling from the roof is collected throughguers.

rainwater is channeled through the pipe downwardsbeforeenteringthereservoir.

rainwaterenterstheleaffiltermadeofwiremesh

Water Distribution

distribuon of rainwater in each kitchen in the culinaryareaandgreenroof

Water excess rainwater in the reservoir will enter the pipeline connected to the underground infiltraonwell

Source: Author, 2022

City Water
Ground Water Tank
Rainwater
Overload
Rainwater enters the reservoir which is equipped with a fine dust/sandfilter.
Folded Plate Roof Detail - Rainwater Harvesng Process Scale 1:100
Figure 4.21 Folded Plate Roof Detail

Landscape Furniture Detail

Landscape Furniture Detail Scale 1:30
Figure 4.22 Landscape Furniture Detail
Source: Author, 2022
Figure 4.23 Ulity System
Source: Author, 2022
Ground Floor Plan

Building Safety System

1st Floor Plan
Figure 4.24 Building Safety System Source: Author, 2022
Ground Floor Plan

Barrier Free

Figure 4.25

Natural Lighng and Air Condioning Scheme

Fish Aucon and Fish Market

TRANSPARANT ROOF

FISH AUCTION

STEPPED ROOF

TRANSPARANT ROOF

The open space design of the buildingallows wind to flow through,effecvely reducing the fish odor. Transparent polycarbonate roofing is ulized to let naturalsunlightin,therebyminimizingtheneedforarficiallighngandreducingenergyconsumpon.

Figure 4.26 Natural Lighng and Venlaon Scheme Source: Author, 2022
FISH MARKET AND CULINARY AREA

Exploded Axonometric of Cikidang Fish Landing Base

Source: Author, 2022

Figure 4.27 Exploded Axonometry of Cikidang Fish Landing Base

The loading and unloading of fishermen's catch are centrally located on the site, closely adjacent to the fish aucon place. This strategic placement aims to facilitate and expedite the fishermen's accesstotheaucon.

The Fish Aucon Place serves as the central hub for transacons between sellers and fishermen,involvingthefishcaughtatsea.

The loading dock for the sea route is strategically placed near the fish aucon areaandisdesignatedforlargerfishingvessels.

The loading dock for the land route is located near the cold storage, ice factory, office area, andfishauconplacetostreamlinecirculaonanddistribuonprocesses.

Thedistribuonofauconedfishtakesplaceinthefishmarketarea,facilitatedbylocaltraders.

fish is distributed

The auconed
in the culinary tourism area- seafood, allowing tourists to enjoy freshlocalseafooddishes.

Cold storage funcons as a preservaon facility for unsold or already sold fish, ensuring the quality of thefishismaintainedbykeepingitatlowtemperatures.

Annual Local Wisdom Event: Hajat Laut Fishermen's Ritual in Pangandaran

The Hajat Laut ritual is an annual event held on Kamis Wage (a specific day in the Javanese calendar) just before Jumat Kliwon at the beginning ofthemonthofMuharamorSurointheJavanesecalendar.

The event typically begins with a communal meal shared among the localresidents.

Aer the Ijab Dongdang ritual, a parade takes place, either around the village or along the beach, before returning to the dock to perform theseaofferingritual.

Post-meal, the fesvies include tradional Pangandaran or Sundanese arts, characterized by joyous acvies and various compeons.

Similar to the opening, the event concludes with another communal meal.

Design Evaluaon // 05.

Relocaon of Lighthouse Locaon

Comparison Between Exisng Lighthouse - New Lighthouse

Revitalisaon of New Tourism at Cikidang Fish Landing Base

Change of Space Funcon

Relocaon of Lighthouse

Before Evaluaon

EXISTING LIGHTHOUSE LIGHTHOUSE

NEW SPOT OF

Aer Evaluaon

Comparison between

Exisng Lighthouse - New Lighthouse

MERCUSUAR BARU

EXISTING LIGHTHOUSE

The exisng lighthouse stands approximately 25 meters tall and is situated between the fish aucon place (le in the image) and the fish market(rightintheimage).Itcurrentlylacksabeaconlightandobstructs the view from the culinary area/fish market to the fish aucon place, whichisalsothevenuefortheannualHajatLautcelebraon.

Lampu Suar (Area Pengelola)

Area Pengunjung

+25,000

±0,000

The new lighthouse will be placed between the fish market (le in the image) and the visitor parking area (right in the image). It will stand approximately 85 meters tall, serving as a landmark visible from a great distance.Addionally,itwillbeequippedwithabeaconlighttoserveasa marine traffic signal, guiding fishermen safely to the port, especially at night.

Revitalisaon of New Tourism at Cikidang Fish Landing Base

To maximize funconality and increase local revenue, the new lighthouse will be designed as a public building. This will allow visitors to access and enjoy panoramic views of Pangandaran from the top of the lighthouse.

Revitalisaon of New Tourism at Cikidang Fish Landing Base

The culinary tourism area at Cikidang Fish Landing Base, located on the first floor, is designed to facilitate collaboraon between local traders andfishermen.Freshlycaughtfishareprocessedandpreparedintofresh seafood dishes, providing a unique and direct farm-to-table experience forvisitors.

Revitalisaon of New Tourism at Cikidang Fish Landing Base

VisitorswithoutaFisherman'sMembershipCardcansllenjoyfishingby purchasing a cket first. Aerward, they will receive instrucons from themanagementonhowtoproceed.

Change of Space Funcon

Before Evaluaon Fish Preservaon Area

The fish preservaon process involves drying the fish under direct sunlighttoensuretheyhaveahigh-qualitytaste.

Aer Evaluaon: Babakan Village Souvenir Center

To minimize the odor produced by the fish, the fish preservaon area will remain in the fisherman's village. The preserved fish products can thenbesoldatthesouvenircenteronthefirstfloor.

Aachment // 06.

Plagiarism Check Result Statement Leer- Turnin Check (Indonesian Version)

Intellectual Property e-Copyright Cerficate (Indonesian Version)

Presentaon Board

Direktorat Perpustakaan Universitas Islam Indonesia

Gedung Moh. Haa

JI. Kaliurang Km 14,5 Yogyakarta 55584

T. (0274) 898444 ext.2301

F. (0274) 898444 psw.2091

E. perpustakaan@uii.ac.id

W. library.uii.ac.id

SURATKETERANGANHASILCEKPLAGIASI

Nomor:1986645466/Perpus./10/Dir.Perpus/XI/2022

Bismillaahirrahmaanirrahiim

Assalamualaikum Wr. Wb.

Denganini,menerangkanBahwa:

Nama : 1751216

2

NomorMahasiswa : RestiNurwinda

Pembimbing :17512162

ArifBudiSholihah,S.T.,M.SC.,Ph.D.

Fakultas/Prodi :TeknikSipildanPerencanaan/Arsitektur

JudulKaryaIlmiah :RevitalisasiPangkalanPendaratanIkanCikidangsebagaiidentitaskawasanwisatanelayan Pangandarandenganpendekatankearifanlokal

Revitalization of Cikidang Fishing Port as an identity of the Pangandaran Fishing tourism Area with a Local Wisdom Approach

KaryailmiahyangbersangkutandiatastelahmelaluiprosescekplagiasimenggunakanTurnitin denganhasilkemiripan(similarity)sebesar14(EmpatBelas)%.

DemikianSuratKeteranganinidibuatuntukdapatdipergunakansebagaimanamestinya.

Wassalamualaikum Wr. Wb.

Yogyakarta,12/26/2022

Direktur

MuhammadJamil,SIP.

REPUBLIK INDONESIA

KEMENTERIAN HUKUM DAN HAK ASASI MANUSIA

SURAT PENCATATAN CIPTAAN

Dalamrangkapelindunganciptaandibidangilmupengetahuan,senidansastraberdasarkanUndang-UndangNomor28Tahun 2014tentangHakCipta,denganinimenerangkan:

Nomordantanggalpermohonan : EC00202314366,16Februari2023

Pencipta

Nama : RestiNurwindadan ArifBudiSholihah,S.T.,M.Sc,Ph.D.

Alamat : DusunGirisetraKalipucang,RT006RW003,Kel/DesaKalipucang, KecamatanKalipucang, Pangandaran, JAWABARAT, 46397

Kewarganegaraan : Indonesia

PemegangHakCipta

Nama : RestiNurwindadan ArifBudiSholihah,S.T.,M.Sc,Ph.D.

Alamat : DusunGirisetraKalipucang,RT006RW003,Kel/DesaKalipucang, KecamatanKalipucang, Pangandaran, JAWABARAT, 46397

Kewarganegaraan : Indonesia

JenisCiptaan : Arsitektur

JudulCiptaan : RevitalisasiPangkalanPendaratanIkanCikidangSebagaiIdentitas KawasanWisataNelayanPangandaranDenganPendekatanKearifan Lokal

Tanggaldantempatdiumumkanuntukpertamakali diwilayahIndonesiaataudiluarwilayahIndonesia : 16Februari2023,diYogyakarta

Jangkawaktupelindungan : BerlakuselamahidupPenciptadanterusberlangsungselama70(tujuh puluh)tahunsetelahPenciptameninggaldunia,terhitungmulaitanggal1 Januaritahunberikutnya.

Nomorpencatatan : 000447289

adalahbenarberdasarkanketeranganyangdiberikanolehPemohon.

SuratPencatatanHakCiptaatauprodukHakterkaitinisesuaidenganPasal72Undang-UndangNomor28Tahun2014tentangHak Cipta.

a.nMenteriHukumdanHakAsasiManusia

DirekturJenderalKekayaanIntelektual u.b.

DirekturHakCiptadanDesainIndustri

AnggoroDasananto NIP.196412081991031002

References

Adriani,W.(2021).RevitalisasiSecaraHarfiahnya.Availableat: hp://repository.uinbanten.ac.id/7137/4/BAB%20II.pdf [Accessed 7 September2022].

Allen, K. (2018). 3XN Unveils Sloping Design for Sydney Fish Market Available at: hps://www.archdaily.com/905316/3xn-unveils-slopingdesign-for-sydney-fish-market[Accessed6October2022].

Ambarwa, T., Wunas, S., & Arifin, M. (2019). Arahan Pengembangan Identas Kawasan Permukaan Pesisir sebagai Pembentuk Citra Kawasan.Availableat: hp://digilib.unhas.ac.id/uploaded_files/temporary/DigitalCollecon/ ZjFjYmM3YTUzMzMzZWFjNDQxYzcxNmFjNzc5YWUyMzgxODAyOTYyM w==.pdf[Accessed7September2022].

Antariksa. (2009). Kearifan Lokal dalam Arsitektur Perkotaan dan LingkunganBinaan.Availableat: hps://www.researchgate.net/publicaon/322202956_Kearifan_Lokal _dalam_Arsitektur_Perkotaan_dan_Lingkungan_Binaan [Accessed 17 September2022].

Anwar, H., & Nugraha, H. A. (2013). Rumah Etnik Sunda. Jakarta: Griya Kreasi.

Archdaily.(2021).WaterfrontTavern/H&EArchitects.Availableat: hps://www.archdaily.com/987967/waterfront-tavern-h-and-earchitects[Accessed6October2022].

Badan Pusat Stask. (2013). Pengelola Tempat Pelelangan Ikan (TPI). Available at: hps://sirusa.bps.go.id/sirusa/index.php/variabel/3531 [Accessed29September2022].

Chiara, J. D., & Callender, J. H. (1983). Time-Saver Standards for Building Types.Singapore:SingaporeNaonalPrintersLtd.

CNN. (2021). Sehari Menjadi Produsen Ikan Asin Muara Angke. Available at: hps://www.youtube.com/watch?v=tl1nCo3_LzU [Accessed 2 October2022].

Dayat,LocalFishSeller.Personalcommunicaon.(16August2022).

Fadilah, A. N. (2022). MengenalRitualHajatLautSyukuranBagiNelayan di Pangandaran, Filosofi dan Perkembangannya. Available at: h ps://www.dailypangandaran.com/ragam/pr5564115431/mengenal-ritual-hajat-laut-syukuran-bagi-nelayan-dipangandaran-filosofi-dan-perkembangannya?page=3 [Accessed 14 September2022].

Furuto, A. (2012). Fishing Boat Harbor and 'River' of Liopetri / Various Architects. Available at: hps://www.archdaily.com/267482/fishingboat-harbor-and-river-of-liopetri-various-architects [Accessed 15 September2022].

Julyan, N. I. (2021). Determinan Pendapatan Nelayan Tangkap Di Kabupaten Pangandaran (Studi Kasus Nelayan Kecamatan Pangandaran).Availableat: hps://dspace.uii.ac.id/bitstream/handle/123456789/31686/1731310 9%20Ninda%20Ika%20Julyan.pdf?sequence=1 [Accessed 12 September2022].

Meliono, I. (2011). Understanding the Nusantara Thought and Local Wisdom as an Aspect of the Indonesian Educaon. Available at: hps://journals.mindamas.com/index.php/tawarikh/arcle/view/392/ 390[Accessed17September2022].

Ministry of Marine Affairs and Fisheries of the Republic of Indonesia. (2012). Ministerial Regulaon of Marine Affairs and Fisheries of the RepublicofIndonesiaNo.PER.08/MEN/2012Arcle3.Availableat: hps://jdih.kkp.go.id/peraturan/per-08-men-2012.pdf [Accessed 29 September2022].

Ministry of Marine Affairs and Fisheries of the Republic of Indonesia. (2014). Port Facili es . Available at: hps://kkp.go.id/djpt/ppnkarangantu/page/1419-fasilitas-pelabuhan [Accessed26August2022].

Ministry of Marine Affairs and Fisheries of the Republic of Indonesia. (2021). Director General's Regulaon on Strengthening the Compeveness of Marine and Fisheries Products No. 25 of 2021 concerning Guidelines for Building Ice Plants in 2022. Available at: hps://kkp.go.id/an-component/media/upload-gambarpendukung/A_PDS2/Tahun%202022/Juknis%202022/PER%2025%20te ntang%20juknis%20pabrik%20es%202022.%20oten.pdf [Accessed 3 October2022].

Ministry of Public Works and Housing of the Republic of Indonesia. (2021). PUPR Bangun Prasarana Pengendali Banjir Muara Sungai Cikidang untuk Atasi Banjir . Available at: hps://simantu.pu.go.id/content/?id=3178[Accessed6October2022].

Ministry of Transportaon of the Republic of Indonesia. (2022). Services Available at: hp://dephub.go.id/org/disnavtanjungpinang/layanan [Accessed3October2022].

Muniruddin. (2002). Perencanaan dan Perancangan Ulang Fasilitas Pangkalan Pendaratan Ikan di Muncar Banyuwangi, Jawa Timur Available at: hps://dspace.uii.ac.id/handle/123456789/20136 [Accessed14September2022].

My Pangandaran News. (2022). Syukuran Nelayan Pangandaran, Tradisi TurunTemurundariLeluhur.Availableat: hps://news.mypangandaran.com/berita/read/budaya/2700/syukuran -nelayan-pangandaran-tradisi-turun-temurun-dari-leluhur [Accessed 27August2022].

My Pangandaran. (2017). Desa wisata nelayan Babakan. Available at: hps://www.mypangandaran.com/wisata/desa-wisata-nelayanbabakan[Accessed14September2022].

Neufert, E. (1996). Data Arsitek Jilid 1 Edisi ke-33 [Architects' Data Volume1,33rdEdion].Jakarta:Erlangga.

Neufert, E. (2002). Data Arsitek Jilid 2, Edisi ke-33 [Architects' Data Volume2,33rdEdion].Jakarta:Erlangga.

Nuzir, F. A., et al. (2019). Antologi Kota Indonesia (p. 69). Jakarta: OMAH Library.

Government of Pangandaran Regency. (2018). Rencana Strategis (RenStra) Perangkat Daerah Tahun 2017-2021 Perubahan. Available at: hps://appback.pangandarankab.go.id/public/images/opd/informasip ublik/08092019144021.pdf[Accessed12September2022].

Government of Pangandaran Regency. (2018). Laporan Kinerja Instansi Pemerintah.Availableat: hps://appback.pangandarankab.go.id/public/images/opd/informasip ublik/08092019150751.pdf[Accessed12September2022].

Peraturan Daerah (PERDA) Kabupaten Pangandaran. (2018). Rencana Tata Ruang Wilayah Kabupaten Pangandaran Tahun 2018-2038. Available at: hps://peraturan.bpk.go.id/Home/Details/142909/perdakab-pangandaran-no-3-tahun-2018[Accessed27August2022].

Picard, M. (2006). Bali: pariwisata budaya dan budaya pariwisata Jakarta:KPG.Availableat: hps://books.google.co.id/books?hl=id&lr=&id=uwPuIPTuqNMC&oi=f nd&pg=PA5&dq=pariwisata+adalah&ots=SLaI2vC2uN&sig=GOQexASn G 9 n 0qCQr5ugzsioxw0&redir_esc=y#v=onepage&q=pariwisata%20adalah&f =false[Accessed7September2022].

Piutan, R., S.T. (2015). Pemaknaan Kembali Kearifan Lokal dalam Arsitektur (Keterkaitan Manusia, Budaya, dan Alam Nusantara) Availableat: hp://digilib.mercubuana.ac.id/manager/t!@file_arkel_abstrak/Isi_A rkel_932519883212.pdf[Accessed17September2022].

PusatInformasiPelabuhanPerikanan.(2013).ProfilPelabuhan.Available at: hps://pipp.djpt.kkp.go.id/profil_pelabuhan/2425/informasi [Accessed27August2022].

Putri,V.K.M.(2021).DeskripsiPekerjaansebagaiNelayan.Availableat: hps://www.kompas.com/skola/read/2021/10/06/130000469/deskrip si-pekerjaan-sebagai-nelayan[Accessed15September2022].

Rosni. (2017). Analisis Tingkat Kesejahteraan Masyarakat Nelayan di Desa Dahari Selebar Kecamatan Talawi Kabupaten Batubara. Available at:hps://jurnal.unimed.ac.id/2012/index.php/geo/arcle/viewFile/60 38/5367[Accessed29August2022].

Rusli, R. B. (2020). Analisis Pengelolaan dan Pemanfaatan Air Bersih di Pelabuhan Perikanan Samudera Nizam Zachman Jakarta (PPSNZJ). Availableat: hps://repository.polipangkep.ac.id/uploaded_files/temporary/Digital Collecon/NDUyYzhmMWY3ZDJkMzM3Yzg0MGYwZWUxZWFkOGJkMz lhMzI5ZjRmMg==.pdf[Accessed3October2022].

Sandra, A. (2021). Pemanfaatan Cold Storage. Available at: hps://kkp.go.id/djpt/ppnkwandang/arkel/26458-pemanfaatan-coldstorage[Accessed29September2022].

Sciorno,J.A.(1995).ConstruconandMaintenanceofArsanalFishing Harbours and Village Landings . Available at: hps://www.fao.org/3/v5270e/v5270e03.htm#c [Accessed 20 October 2022].

Singkawijaya, E. B., & Hilman, I. (2021). Akfitas Keruangan Ekonomi Masyarakat Nelayan di Pangkalan Pendaratan Ikan (PPI) Cikidang Pangandaran.Availableat: hps://jurnal.unsil.ac.id/index.php/geoducaon/arcle/viewFile/4185 /1957[Accessed8September2022].

Stefani,LocalResident.Personalcommunicaon.(24August2022).

UNDERGRADUATE PROGRAMME IN ARCHITECTURE

Turn static files into dynamic content formats.

Create a flipbook