PROYECTO FINAL - CENTRO FINANCIERO

Page 1

CENTRO FINANCIERO

TALLER DE DISEÑO ARQUITECTONICO IV

CICLO 01 - 2021

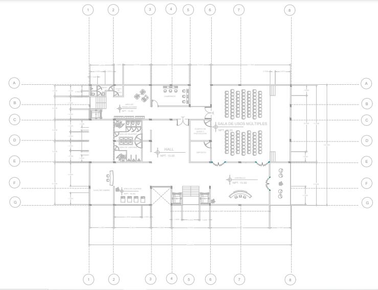
El proyecto se desarrolla en un contexto bastante comercial y con entidades bancarias anexas a esta. Ubicada en las calles Monte Rosa y Monte Grande se desarrolla una idea basada en el concepto de la estructura principal del parque basando su idea de unión y entrelazados verticales y horizontales

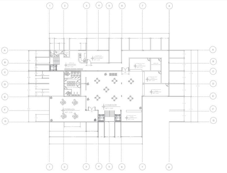
El edificio cuenta con diversas terrazas y en especial una que proyecta una vista muy expuesta al contexto de la ciudad y aledaños; además se desarrollan las plantas en base a las necesidades de los usuarios y al ordenado y exclusivo acceso del personal del centro financiero. Cuenta con amplias oficinas y áreas comunes para quienes visiten y trabajen en las instalaciones.

Voladosadheridosalatorrecentral Extraccionde volumenes Estructuralineal Volumetríamodificada concepto ARQUITECTOS OCHOA + FRANCO L1 ALUMNO: VILELA RIVAS FIORELLA
Accesoa travésde sótano subterráneo Zonacomercial

CENTRO FINANCIERO

TALLER DE DISEÑO ARQUITECTONICO IV CICLO 01 - 2021

Se plantea el sistema a porticado de vigas y columnas para estructurar el proyecto y poder alzar y generar buenas vistas y divisiones. En áreas como los servicios higiénicos y ascensores se plantean placas para ayudar a reforzar la edificación y mantener estos espacios como un pilar.

ELEVACION CORTE1
2
ARQUITECTOS OCHOA + FRANCO L1 ALUMNO: VILELA RIVAS FIORELLA
CORTE
ISOMETRIA
CORTE1 CORTE2 ARQUITECTOS OCHOA + FRANCO L1 ALUMNO: VILELA RIVAS FIORELLA
ARQUITECTOS OCHOA + FRANCO L1 ALUMNO: VILELA RIVAS FIORELLA ELEVACION ELEVACION

Turn static files into dynamic content formats.

Create a flipbook
Issuu converts static files into: digital portfolios, online yearbooks, online catalogs, digital photo albums and more. Sign up and create your flipbook.
PROYECTO FINAL - CENTRO FINANCIERO by Fiorella Vilela Rivas - Issuu