




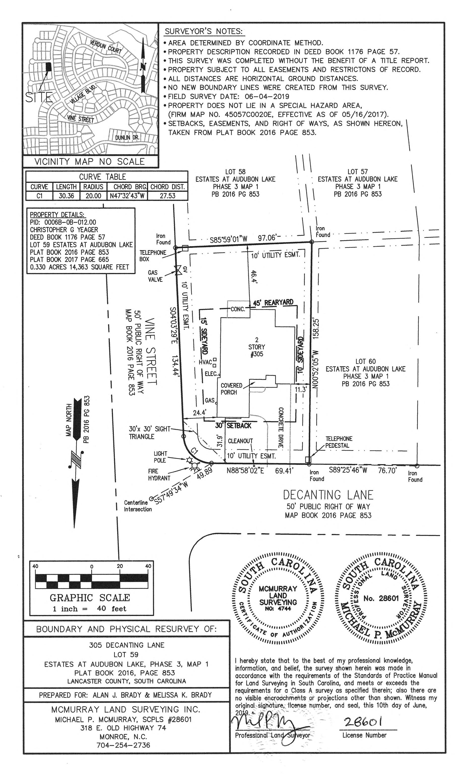
![]()





Stately brick, stone and fiber cement home in cul-de-sac with covered front porch conveniently minutes from Indian Land, Fort Mill and Ballantyne!
Fabulous open floor plan with two story foyer, sweeping staircase, wide plank floors, expansive family room with coffered ceiling, spacious modern kitchen with oversized island, tile backsplash and sunroom/ bar area overlooking, private, scenic yard!
Guest room and full bath on main level, secluded office nook, large laundry room, drop zone and butler's pantry leading to dining room perfect for entertaining! The upper level features a serene primary suite with sitting area, spa bath with rain shower, garden tub, and walk-in closet The bonus room with double doors offers great flexibility, and three additional bedrooms, two with Jack and Jill bath and walk-in attic storage complete the upper level The oversized 3 car garage offers ample parking and storage Lots of opportunity for outdoor living with fenced yard, patio and community pool!

$ 8 2 5 ,0 0 0
5 B ED RO O MS
4 B ATHRO O MS
3 ,8 4 8 SQ FT ML S # 4 2 5 5 6 72

























