1354 Vancouver Crescent

Page 1


TO 1354 VANCOUVER CRESCENT

PROPERTY INFO

• 1170 sq ft

(Total 2225 sq ft including basement)

• Bedrooms: 3+1

• Bathrooms: 2

• 2024 taxes: $4,315.31

• Roof: 2016

• Front door & some windows replaced in 2020

• Hardwood flooring on main level: 2020

• AC & furnace: approx. 2020

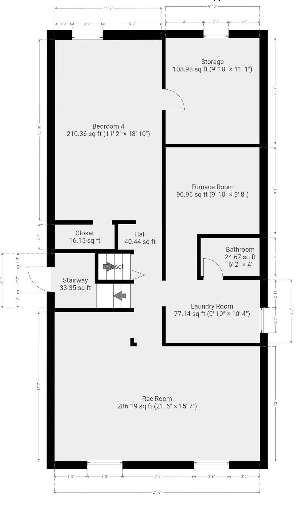
FLOOR PLANS

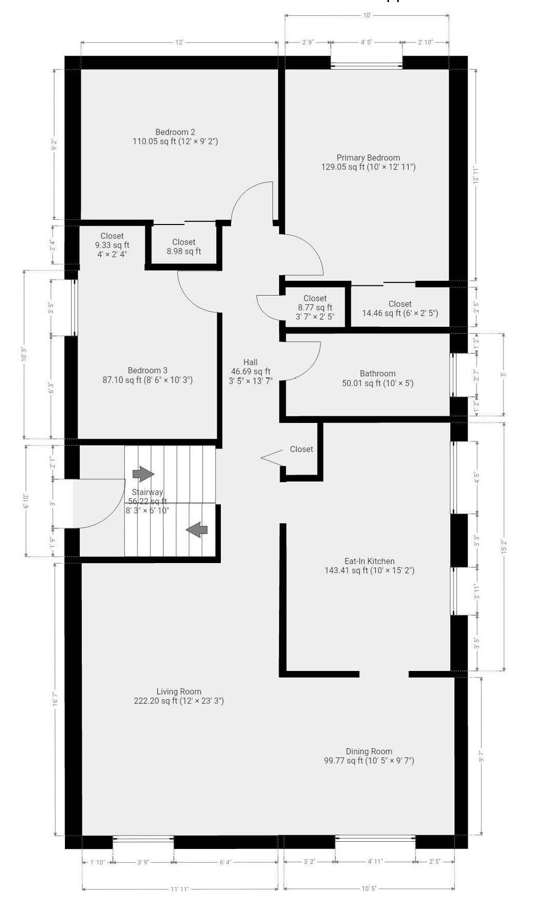
MAIN LEVEL

FRONT ENTRY

• Freshly painted in designer neutral white (2024)

• New light fixture

• Coat closet

KITCHEN

• Globe light fixtures

• Vinyl flooring

• GE SS electric stove

• Kenmore dishwasher

• White GE fridge

• LG microwave

• SS sink w/ faucet

• Eat-in kitchen

LIVING ROOM

• Hardwood flooring

• Open concept layout to dining room

DINING ROOM

• Hardwood flooring

• New chandelier

BATHROOM

• 4pc bathroom

• Freshly painted in designer neutral white

• New modern light fixture

• New mirror

PRIMARY BEDROOM

• Hardwood flooring

• New light fixture

• Freshly painted in designer neutral white (2024)

• Large window facing private backyard

BEDROOM 2

• Hardwood flooring

• New light fixture

• Freshly painted in designer neutral white (2024)

BEDROOM 3

• Hardwood flooring

• New light fixture

• Freshly painted in designer neutral white (2024)

LOWER LEVEL

BEDROOM

• Large bedroom w/ above-grade window

BATHROOM

• 3 pc bathroom

LAUNDRY/UTILITY ROOM

• Washer/dryer

• Laundry sink

• AC & furnace - approx. 2020

RECREATION ROOM

• Spacious finished rec room w/ bar

INCLUSIONS/ EXCLUSIONS

INCLUSIONS

• All appliances

• All light fixtures

• All bathroom mirrors

• Backyard shed

EXCLUSIONS

• Curtains in living/dining room

Turn static files into dynamic content formats.

Create a flipbook
Issuu converts static files into: digital portfolios, online yearbooks, online catalogs, digital photo albums and more. Sign up and create your flipbook.
1354 Vancouver Crescent by RE/MAX Aboutowne Realty Corp.,Brokerage - Issuu