

![]()


Situado en el cor entretenimiento d acceso a los mejo
Locación: Distancia Aeropuerto.
HABITACIONES 26 co ga nu SALONES.
CAPACIDAD MÁXIMA AREA TOTAL SALONES.
MÁXIMA 11 45 4 82
PARQUEO 24

GASTRONOMÍA.
4 restaurantes de concepto único Factory Steak & Lobster (Steakho Build Your Own), Tanoshii Japane auténticamente japonesa). Circo
ENTRETENIMIENTO.
WELLNESS
A pasos de la prestigiosa Zona G (Zona G), A pocos pasos del Cen cientos de tiendas, restaurantes zona Rosa de Bogotá
Presence Spa & Wellness Center productos orgánicos, locales y co Además contamos con un Gimna
VIP LOUNGE
INSTALACIONES
Nuestro exclusivo VIP Lounge un reuniones, donde se sirve desayu cortesía.
Business center, con computador reuniones que pueden ser reserva
Gimnasio, spa, piscina interior, ba Espacio para reuniones
VENTAJAS
EVENTOS
Para tus reuniones de negocios y salones versátiles con capacidad ofrecemos un delicioso menú per nuestro equipo culinario.










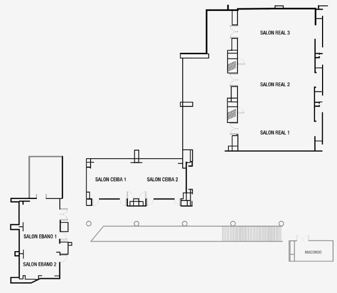
El Hotel JW Marriott Bogotá cuenta con una amplia variedad de espacios diseñados para adaptarse a cada estilo de boda. Los Salones Reales, con su imponente tamaño y elegancia, son ideales para celebraciones majestuosas y de gran escala. Para quienes buscan una atmósfera más cálida y natural.
Los salones Ceiba 1 y 2, por su parte, son espacios acogedores y refinados que se adaptan a eventos más íntimos. Además, disponemos de otros salones versátiles, ideales para ceremonias simbólicas o religiosas en entornos privados.
Nuestro equipo de eventos estará a su lado en todo momento, cuidando cada detalle y colaborando con los mejores floristas, decoradores, fotógrafos, músicos y chefs para crear una celebración verdaderamente única.




