IM | 8/1 Packer Road, Baringa | RWC Northern Corridor Group

Page 1

Information Memorandum

RWC Northern Corridor Group

8/1 PACKER ROAD, BARINGA QLD 4551

Charlee Livesey Sales & Leasing Associate 0431 135 900 charlee.livesey@raywhite.com

THE OPPORTUNITY 3 EXECUTIVE SUMMARY 5 FLOOR PLAN 6 SUNSHINE COAST OVERVIEW 7 SUNSHINE COAST MAJOR PROJECTS 10 AURA BUSINESS PARK OVERVIEW 13 AURA LOCATION HIGHLIGHTS 16 DISCLAIMER 19 Marketing Agents Contents raywhitecommercialncg.com.au

The Opportunity

Charlee Livesey of the Shadforth Commercial Property Team is pleased to present 8/1 Packer Road, Baringa to the market for sale.

Aura Business Park is nestled amongst Australia's largest master-planned communities and will put your business at the very heart of the Sunshine Coast's largest investment zone.

FEATURES

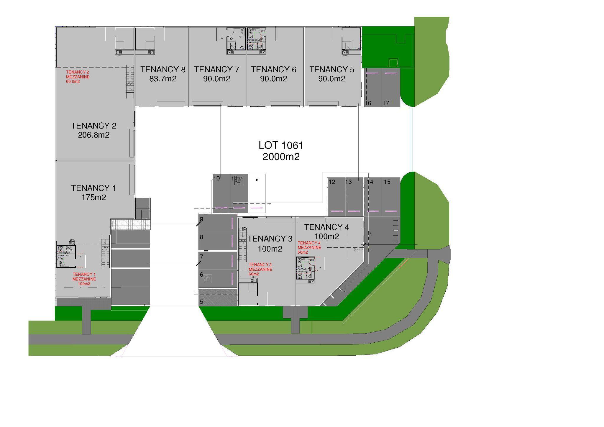
● Total area 83m2*

● Additional mezzanine 30m2*

● 2 x individual air conditioned offices

● High roller door for easy access

● Amenities include kitchenette & bathroom facilities

● Dual driveway access to the complex

● Located in Stockland’s Aura Business Park

● Low Impact Industry Zone

● Bells Creek Arterial enabling quick & convenient access to Bruce Highway

* Outline and location indicative

Executive Summary

ADDRESS 8/1 Packer Road, BARINGA QLD 4551

PROPERTY DETAILS Lot 8 on SP324420

BUILDING AREA 83m2*

LOCAL AUTHORITY Sunshine Coast Regional Council

ZONING Low Impact Industry Zone

FOR SALE Offers over $399,000 + GST (if applicable)

ESTIMATED OUTGOINGS

$10,272.24pa*

Floor Plan

Sunshine Coast Overview

IMAGE

An hour north of Brisbane, the Sunshine Coast stretching from Caloundra in the south through to Noosa/Tewantin in the north and incorporating hinterland townships to the west in between, covers an area of approximately 2,291 square kilometres with 60 kilometres of spectacular open coastline.

The Sunshine Coast is Australia’s 9th largest population centre (as of June 2021) and 5th largest in the state, with a population growth outpacing most of the nation, and one of the fastest growing regional economies.

Not only diverse geographically with stunning beaches, verdant agricultural farmland, and mountain ranges including the iconic Glass House Mountains; the economy is also diverse consisting of a variety of industries covering medical, education, technology, tourism/hospitality, finance, farming/agriculture, retail, and industrial.

Over the past several years there has been billions of dollars’ worth of investment poured into the region from both the public and private sectors, with projects including airport expansion, the building of the public and private university hospitals and health hub, SunCentral CBD in Maroochydore, the city of Aura in Caloundra South, submarine broadband connection providing fastest connection to Asia from the east coast, Bruce Highway upgrade, multiple new housing estates and associated infrastructure including schools and sporting facilities, industrial parks and more.

The Sunshine Coast comes under the governance of two local councils – the Sunshine Coast Regional Council covering the southern to central suburbs, and Noosa Shire Council. There is good connectivity across the region via road networks, rail through the hinterland townships, and bus; and the Sunshine Coast Airport now has a second runway and is open to international travel (now Australia’s fastest growing airport (traffic-wise).

Sunshine Coast Major Projects

SUNSHINE COAST AIRPORT MASTER PLAN

Maximising the economic return from the recent $334 million expansion project. The expanded airport provides a direct gateway to the region and to a greater range of locations in Australia, Asia and other international destinations. It is now the HQ for Bonza, Australia’s newest airline, which is rolling out 15 regional routes across Australia. Further development, to be delivered under the Airport Masterplan, will provide exciting and diverse opportunities in the Australasian aviation market.

SUNSHINE COAST HEALTH PRECINCT

The health and wellbeing industry is booming on the Sunshine Coast, propelled by the $5 billion Sunshine Coast Health Precinct, which is Australia’s largest health infrastructure project currently being developed.

MAROOCHYDORE CITY CENTRE

Maroochydore City Centre is Australia’s newest greenfield CBD and aims to be Australia’s first truly smart city, just 15 minutes from the Sunshine Coast Airport and 20 milliseconds from Asia via the new broadband submarine cable. Master-planned from the ground up, the new CBD will offer capital city infrastructure and has been designed for the Sunshine Coast lifestyle, with almost 18 hectares of parklands and waterways.

BRUCE HIGHWAY UPGRADE

$1.6 billion expansion and upgrade. The upgrade includes three projectsCaloundra Road to Sunshine Motorway, Maroochydore Road/ Mons Road interchanges and Sunshine Motorway to Maroochydore Road.

MASS TRANSIT SOLUTION

9,000 jobs | $3.6 billion contribution to the economy. To protect the Sunshine Coast’s enviable lifestyle as it grows, a high-quality mass transit system will be essential. Sunshine Coast Council has undertaken detailed planning for a mass transit solution over many years. In a major milestone for the project, a detailed report of mass transit options, informed by extensive community feedback, was approved by council in October 2021.

BLUE HEART SUNSHINE COAST

5,000 hectares - sustainable, adaptive floodplain management and blue

raywhitecommercialncg.com.au
The Sunshine Coast will play an integral role in Brisbane 2032 Olympic and Paralympic Games. It will be home to four key venues and several sporting events during the Olympic Games. These include football, basketball, marathon, mountain biking, cycling and kiteboarding.
CAR WASH SERVICE STATION +

Disclaimer

The information contained in this Information Memorandum and any other verbal or written information given in respect of the property (“Information”) is provided to the recipient (“you”) on the following conditions:

1. North Coast Commercial Properties Pty Ltd trading as Ray White Northern Corridor Group and or any of its officers, employees or consultants (“we, us”) make no representation, warranty or guarantee, that the Information, whether or not in writing, is complete, accurate or balanced. Some information has been obtained from third parties and has not been independently verified. Accordingly, no warranty, representation or undertaking, whether express or implied, is made and no responsibility is accepted by us as to the accuracy of any part of this, or any further information supplied b y or on our behalf, whether orally or in writing.

2. All visual images (including but not limited to plans, photographs, specifications, artist impressions) are indicative only and are subject t o change. Any measurement noted is indicative and not to scale. All outlines on photographs are indicative only.

3. The Information does not constitute, and should not be considered as, a recommendation in relation to the purchase of the property or a solicitation or offer to sell the property or a contract of sale for the property.

4. You should satisfy yourself as t o the accuracy and completeness of the Information through your own inspections, surveys, enquiries, and searches by your own independent consultants, and we recommend that you obtain independent legal, financial and taxation advice. This includes as t o whether any listing price is inclusive or exclusive of GST.

5. We are not valuers and make no comment as to value. “S old/ leased” designations show only that stock is “currently not available” – no t that the property is contracted/ settled. If you require a valuation we recommend that you obtain advice from a registered valuer.

6. The Information does not and will not form part of any contract of sale for the property. If an interested party makes an offer or signs a contract for the property, the only information, representations and warranties upon which you will be entitled to rely will be as expressly set out in such a contract.

7. Interested parties will be responsible for meeting their own costs of participating in the sale process for the property. We will not be liable to compensate any intending purchasers for any costs or expenses incurred in reviewing, investigating or analysing any Information.

8. We will not be liable to you (to the full extent permitted by law) for any liabilities, costs or expenses incurred in connection with the Information or subsequent sale of the property whatsoever, whether the loss or damage arises in connection with any negligence, default or lack of care on our part.

9. No person is authorised to give information other than the Information in this Information Memorandum or in another brochure or document authorised by us. Any statement or representation by an officer, agent, supplier, customer, relative or employee of the vendor will not be binding on the vendor or us.

10. To the extent that any of the above paragraphs may be construed as being a contravention of any law of the State or the Commonwealth, such paragraphs should be read down, severed or both as the case may require and the remaining paragraphs shall continue to have full force and effect.

11. You may not discuss the Information or the proposed sale of the property with the vendors or with any agent, friend, associate or relative of the vendor or any other person connected with the vendor without our prior written consent. We accept no responsibility or liability to any other party who might use or rely upon this report in whole or part of its contents.

12. The Information must not be reproduced, transmitted or otherwise made available to any other person without our prior written consent.

Information Memorandum The Shadforth Commercial Property Team

Michael Shadforth

Director - Commercial Principal 0488 981 076 michael.shadforth@raywhite.com

Samuel Hoy

Sales & Leasing Executive 0423 795 273 samuel.hoy@raywhite.com

David Goldsworthy

Sales & Leasing Executive 0481 996 794 david.goldsworthy@raywhite.com

Cassie Mahoney

Senior Administrator 1300 255 075 cassie.mahoney@raywhite.com

Charlee Livesey

Sales & Leasing Associate 0431 135 900 charlee.livesey@raywhite.com

Kian Mayhew

Sales & Leasing Associate 0413 084 660 kian.mayhew@raywhite.com

Joel Cashman

Sales & Leasing Associate 0400 469 209 joel.cashman@raywhite.com

Hayley Livingstone

Senior Administrator 1300 255 075 hayley.livingstone@raywhite.com

Turn static files into dynamic content formats.

Create a flipbook
Issuu converts static files into: digital portfolios, online yearbooks, online catalogs, digital photo albums and more. Sign up and create your flipbook.
IM | 8/1 Packer Road, Baringa | RWC Northern Corridor Group by Ray White Commercial Northern Corridor Group - Issuu