Portifólio Sintético Arq. Raphael Potratz

Page 1

PORTIFÓLIO SINTÉTICO

última atualização agosto de 2023

Raphael Potratz

37 anos arquiteto e urbanista Me.

Raphael Potratz é Arquiteto e Urbanista formado pela Universidade Federal do Espírito Santo (UFES) em 2015.

É mestre em Arquitetura e Urbanismo também pela UFES (20017/2019) com dissertação intitulada: “Uma pequena cidade capixaba: desafios frente a urbanização e a industrialização em Santa Maria de Jetibá/ES”.

Iniciou a carreira profissional em arquitetura e urbanismo como estagiário em Programas de Pesquisa e de Extensão (2008) em arquitetura e urbanismo na própria Universidade Federal antes de ingressar, ainda como estagiário, em escritórios particulares de arquitetura e urbanismo em Vitória/ES (a partir de 2010)

Desde 2015 exerce a atividade profissional de arquitetura, urbanismo e planejamento no escritório POTRATZ Arquitetura, no município de Santa Maria de Jetibá/ES, mas também em outros municípios, com inúmeras atividades desenvolvidas.

Algumas delas estão resumidas a seguir:

Raphael Potratz Arquiteto e Urbanista Me.

ALGUNS PROJETOS REALIZADOS

ARQUITETURA E URBANISMO

última atualização agosto de 2023

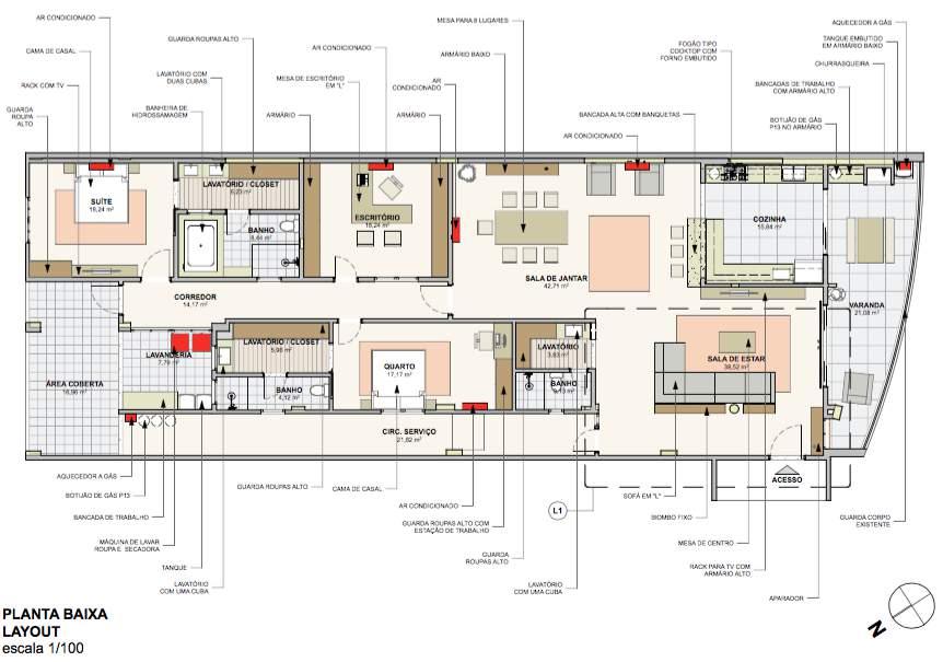
1 CASA PASTORAL 2016

Tipo Residencial unifamiliar

Local Centro, Santa Maria de Jetibá/ES

• Arquitetônico

Projetos

Cliente

• Instalações Prediais Hidrossanitárias e Drenagem Pluvial

Paróquia da Igreja Evangélica de Confissão Lutera em Santa Maria de Jetibá/ES

2

2 AMPLIAÇÃO MÔNICA e RENATO 2016

Tipo Residencial unifamiliar e comercial (misto)

Local Fradinhos, Vitória/ES

Projetos

• Arquitetônico

• Instalações Prediais Hidrossanitárias e Drenagem Pluvial

• Detalhamento

• Laudo Técnico de Habitabilidade

Cliente Mônica e Renato

3

3 AMPLIAÇÃO SIDINÉA e GILBERTO 2017

Tipo Residencial unifamiliar

Local São Luís, Santa Maria de Jetibá/ES

• Arquitetônico

Projetos

• Instalações Prediais Hidrossanitárias e Drenagem Pluvial

Cliente Sidinéia e Gilberto

4

4 APARTAMENTO PATRÍCIO e DIMITRIS 2018

Tipo Residencial unifamiliar

Local Centro Histórico, Vitória/ES

• Arquitetônico

Projetos

• Detalhamento

Cliente Patrício e Dimitris

5

5 APARTAMENTO VANESSA e JOANERSON

Tipo Residencial unifamiliar

Local Centro, Santa Maria de Jetibá/ES

• Arquitetônico

2018

Projetos

• Instalações Prediais Hidrossanitárias e Drenagem Pluvial

Cliente Vanessa e Joanerson

6

6 CASA FABIANA e ROMÁRIO 2018

Tipo Residencial unifamiliar

Local Alto Rio Possmouser, Santa Maria de Jetibá/ES

• Arquitetônico

Projetos

• Instalações Prediais Hidrossanitárias e Drenagem Pluvial

• Laudo Técnico de Habitabilidade

Cliente Fabiana e Romário

7

7 REFORMA

ZILÁ e HELMAR 2019

Tipo Residencial unifamiliar

Local Centro, Santa Maria de Jetibá/ES

• Arquitetônico

Projetos

• Instalações Prediais Hidrossanitárias e Drenagem Pluvial

• Laudo Técnico de Habitabilidade

Cliente Zilá e Helmar

8

Tipo Institucional

Local Jucutuquara, Vitória/ES

• Arquitetônico

• Instalações Prediais Hidrossanitárias e Drenagem Pluvial

• Instalações Prediais Elétricas

• Ar Condicionado

Projetos

• Lógica e Cabeamento

• Planilha Orçamentária

• Laudo Técnico de Habitabilidade

• Laudo Técnico para Viabilidade de Rampa no Passeio Público

Cliente Grupo de Apoio Fraterno

9
8 REFORMA CVV 188 2019

9 NOVO PÁTIO DE FESTAS 2019

Tipo Comercial

Local Centro, Santa Maria de Jetibá/ES

• Arquitetônico

• Instalações Prediais Hidrossanitárias e Drenagem Pluvial

Projetos

• Instalações Prediais Elétricas

• Planilha Orçamentária

Cliente

Paróquia da Igreja Evangélica de Confissão Lutera em Santa Maria de Jetibá

10

10 APARTAMENTO

GERSON E LUZIA 2020

Tipo Residencial unifamiliar

Local Centro, Santa Maria de Jetibá/ES

• Arquitetônico

Projetos

• Instalações Prediais Hidrossanitárias e Drenagem Pluvial

• Laudo Técnico de Habitabilidade

Cliente Gerson e Luzia

11

11 APARTAMENTO

DANI HOLZ 2020

Tipo Residencial unifamiliar

Local Centro, Santa Maria de Jetibá/ES

Projetos • Arquitetônico

Cliente Dani Holz

12

12 REFORMA DO TEMPLO 2020

Tipo Institucional religioso

Local Santa Luzia, Santa Maria de Jetibá/ES

• Arquitetônico

Projetos

• Instalações Prediais Hidrossanitárias e Drenagem Pluvial

• Detalhamento

Cliente Igreja de Confissão Evangélica de Confissão Luterana em Santa Luzia

13

Tipo Comercial/Residencial

Local Centro, Santa Maria de Jetibá/ES

• Arquitetônico

Projetos

• Instalações Prediais Hidrossanitárias e Drenagem Pluvial

• Detalhamento

Cliente Mônica e Helmar

14
13 NOVO FOMENTO 2020

14 SÍTIO REVIVER 2020

Tipo Residencial unifamiliar

Local Rio Possmouser, Santa Maria de Jetibá/ES

• Arquitetônico

Projetos

• Detalhamento

Cliente Luzia e Gerson

15

15 BALCÃO LOJA 2020

Tipo Mobiliário Comercial

Local Centro, Santa Maria de Jetibá/ES

• Arquitetônico

Projetos

• Detalhamento de Marcenaria

Cliente Magazine Marquardt

16

16 CONDOMÍNIO RESIDENCIAL 2020

Tipo Residencial Multifamiliar

Local Centro, Santa Maria de Jetibá/ES

• Arquitetônico

• Instalações Prediais Hidrossanitárias e Drenagem Pluvial

Projetos

• Instalações Prediais Elétricas

• Estrutural

• Planilha Orçamentária

Cliente Rita, Lusiane e Thiago

17

17 CONDOMÍNIO REINKE 2020

Tipo Uso misto

Local Centro, Santa Maria de Jetibá/ES

Projetos • Arquitetônico

Cliente Mecânica Reinke

18

18 EDIFICAÇÃO NOVA 2020

Tipo Residencial unifamiliar

Local Santa Luzia, Santa Maria de Jetibá/ES

• Arquitetônico

Projetos

• Instalações Prediais Hidrossanitárias e Drenagem Pluvial

Cliente Tatá e Leo

19

18 EDIFICAÇÃO NOVA 2020

Tipo Residencial unifamiliar

Local Alto Rio Possmouser, Santa Maria de Jetibá/ES

Projetos • Arquitetônico

Cliente Luzia e Gerson

20

18 REFORMA RESIDENCIAL 2021

Tipo Residencial unifamiliar

Local Centro, Santa Maria de Jetibá/ES

• Arquitetônico

Projetos

• Instalações Prediais Hidrossanitárias e Drenagem Pluvial

Cliente Sigrid

21

19 REFORMA RESIDENCIAL 2021

Tipo Residencial unifamiliar

Local Centro, Santa Maria de Jetibá/ES

• Arquitetônico

Projetos

• Arquitetura de Interiores

Cliente Sivaldo

22

20 REFORMA HOSPITALAR 2021

Tipo Hospitalar

Local Centro, Santa Maria de Jetibá/ES

• Arquitetônico Básico

Projetos

• Memorial Descritivo

• Aprovação junto à Vigilância Estadual

Cliente Hospital Concórdia

23

21 REFORMA RESIDENCIAL 2021

Tipo Residencial Unifamiliar

Local Ilha do Boi, Vitória/ES

• Arquitetônico

Projetos

• Detalhamento

Cliente Luciene e Fabiano

24

22 EDIFICAÇÃO NOVA 2021

Tipo Residencial Unifamiliar

Local Centro, Santa Maria de Jetibá/ES

Projetos • Arquitetônico

• Instalações Prediais Hidrossanitárias e Drenagem Pluvial

Cliente Thiara e Wesley

25

23 ARQUITETURA PAISAGISTICA 2022

Tipo Paisagismo

Local Rio Bonito, Santa Maria de Jetibá/ES

• Paisagismo

Projetos

• Arquitetônico

Cliente Creuza e Ernesto

26

24 AMPLIAÇÃO RESIDENCIAL 2022

Tipo Residencial Unifamiliar

Local São Luís, Santa Maria de Jetibá/ES

• Arquitetônico

Projetos

• Interiores

• Instalações Prediais Hidrossanitárias e Drenagem Pluvial

Cliente Sidinéia e Gilberto

27

25 PRAÇA DE MARIA ORTIZ

Tipo Público

Local Comunidade Maria Ortiz, Colatina/ES

• Arquitetônico

• Urbanístico e Paisagístico

2023

Projetos

• Drenagem e Pavimentações

• Orçamento

Cliente Vale S/A

28

27 SÍTIO HF 2023

Tipo Residencial Unifamiliar

Local Barra do Rio Possmouser, Santa Maria de Jetibá/ES

• Paisagismo

Projetos

• Arquitetônico

Cliente Teresinha e Sigmar

29

28 LOJA DE SAPATOS

Tipo Comercial

Local Centro, Santa Maria de Jetibá/ES

• Arquitetônico

2023

Projetos

• Detalhamento

• Interiores

Cliente Magazine Marquardt

30

29 AMPLIAÇÃO DO TEMPLO 2023

Tipo Institucional Religioso

Local Centro, Santa Maria de Jetibá/ES

• Arquitetônico

Projetos

• Estrutural

Cliente Comunidade Evangélica de Confissão Luterana em Córrego do Ouro

31

Turn static files into dynamic content formats.

Create a flipbook
Issuu converts static files into: digital portfolios, online yearbooks, online catalogs, digital photo albums and more. Sign up and create your flipbook.