Y2 Public Project

Page 1


The Roath Art Collective

Randa Ibrahim C22026225

Spring Architectural Design & Technology

DESIGN INITIATIVE

Nestled at the end of City Road, Cardiff. For our second Project this year my studio was tasked with housing the homless art scene in the Roath community. Providing a space where artists in the are can be based and display their work. The key objectives include establishing a welcoming space that invites local artists, residents and visitors to engage with the art, fostering a sense of community and creativity. To celebrate the spatial experience, through the use if interesting precedents, I aim to emphasise the interplay of volume, heights and levels to shape immersive experiences within the gallery. From intimate corners for reflection to expansive atriums and workshops. every space will tell a story.

TECHNOLOGY INITIATIVE

This synoptic portfolio integrates rigorous technical analysis into the development of my AD2 design project, showcasing a comprehensive understanding of architectural principles. Exercise 1 presents a thorough site and climate analysis, incorporating sun path diagrams, shadow analysis, and key climatic challenges to inform design strategies. Exercise 2 demonstrates meticulous space planning, circulation, accessibility, and exiting strategies, aligning with building regulations and program requirements. Exercise 3 delves into structural analysis, highlighting key load paths, structural systems, and innovative solutions tailored to project needs. Exercise 4 explores materials and constructional details, evaluating material choices based on sustainability, durability, and performance criteria, culminating in a detailed elevational section showcasing construction junctions, material qualities, and human inhabitation. This integrated approach ensures a robust and technically informed design process, reflecting a synthesis of architectural creativity and technical excellence.

Primer Project

Sarphatistraat Pavillion

PROJECT INFORMATION

This renovated building is the former federal warehouse of medical supplies. In 1997 it was turned into a new office space. The main structure is a four-story brick “U” merging internally with a new ‘sponge’ pavilion on the canal. While the exterior expression is one of the complementary contrasts (existing brick adjacent to new perforated copper), the interior strategy is one fusion.

Key elements

Cubic, simplistic design

perforated facade - playing with the relationship of inside vs outside

strategic openings and apertures that allow for interesting plays of light and shadow throughout the day.

Reflecting on this building, i would like to implement ideas such as the placement of windowd and the idea of a perforated facade into my design. Engaging the user with the building in a way that blends seemlessly with the art inside is what would create an interesing building.

The theme of the design is one of layering. The building skin is a three-dimensional, geometric collage of materials, shapes and colours, visually linked across staggered openings and transparent layers. The dramatic staging of open versus closed, visible versus hidden, is transformed into a play of perception through the movement and changing viewpoints of the observer.

In contrast to the red brick of the historic structure, the new addition is clad in green copper sheeting, whose nuanced colouring is the result of varying oxidation processes. The patinated, perforated sheeting forms the outer layer of the multi-layered facade construction. It is suspended some 30 cm in front of the actual solid external wall and fixed to a steel structure. Depending upon viewpoint, the observer can glimpse the veiled building volume through the small perforations. Openings of different sizes in the semi-transparent metal skin allow a view of the outer wall of the building, partially faced with coloured MDF panels and window openings.

Model and images by Khadijah Younis Debopriya Chatterjee

Primer Project

In Praise of Shadows - Junichiro Tanizaki

Sectional Thinking

How a section can be really important - example uses of sections in architecture

The section communicates depth, height variations, and human scale in a way that a plan or elevation can’t do. Adding perspective will also heighten the sense of scale that the drawing communicates.

The height of the Church is communicated best in section. Making the worshipper feel small in scale.

The elevation of the building from the ground is what is first noticed when looking at the section, the highly transparent facade is also clearly communicated.

Yale Art and Architecture Building - Paul Rudolph
Bagsværd Church - Jørn Utzon
São Paulo Museum of Art - Lina Bo Bardi
In response to Tanizaki’s In praise of shadows, ink studies showing the effect of light in a space.
Tanizaki celebrates the subtlety, intimacy, and depth found in shadows, contrasting them with the starkness and harshness often associated with Western ideals of beauty.
Images from ‘Manual of Section’ by Paul Lewis, Marc Tsurumaki and David J. Lewis

Primer Project

The Section

The section drawing serves as a means to realise the conceptual design, providing insights into the vertical dimension and human scale of architecture. The section drawing serves as a tool for synthesizing various aspects of a project, including spatial, formal, programmatic, and contextual considerations. It is instrumental in placing the project in dialogue with its surroundings and expressing the architect’s design intentions.

Making a maquette of myself to get a sense of scale in the exhibition hall. Looking at the different ceiling heights and the experience that is created from it.

Rough Section of Bute Building - Surveying the building
Human scale
Section of Bute Exhibition Hall drawn at 1:10

Primer Project

The Model

Tasked with designing a 3m x 3m space, I started by creating small maquettes looking at light and shadows and the different environment that can be created, I then combined some of these ideas into one to create a model of an exhibition space.

Reflections

Massing ideas sketches lighting studies

Experimentation with light and spatial arrangement is central to creating immersive and impactful environments. By harnessing the potential of light and shadow, I aim to craft an exhibition space that not only showcases art but also provides a memorable and transformative experience for its audience.

The Roath Art Collective

The Site

Introducing City Road

Located in front of the YMCA community centre for Roath and facing the bustling City Road, my site seems to be very exposed. The high residential towers along with rows of terraced housing surrounding my site shows a densly populated location with a high street full of restaurants, cafes and small local shops and grocers.

On rare occasion, the street would be transformed into an open festival. Along with the melting pot of ethnicities living along this road and in Roath in general. It is evident that although city road has a lot of culture and history, Its identity can sometimes feel lost.

Journey to the site

From street level

Sketch elevations of the site

Analysing the various facades of city road

What is its architectural language?

The Site

The Brief

Community Focused Art Space for the Roath Art Directive: This project integrates various art groups in Roath, such as ‘Made in Roath,’ MADE, and Albany Road Gallery. Emphasising creation over mere display, the design prioritises light and shadow play. Environmental sustainability is key, with a focus on natural shading, ventilation, and materials. The design explores both lightweight and heavyweight construction methods, and incorporates a public greenspace.

Map Highlighting foot traffic and busy areas as well as residential areas in Roath

Around the site

The YMCA

Located behind the site, the YMCA is home to clubs, shows and small markets held in the park next to the YMCA. It currenlty serves as the hub for locals.

Precedent Study

The Field TEAM_BLDG

Located at the former site of an aluminum factory in the Huli District of Xiamen, The Field Studio and Exhibition Space designed by TEAM_BLDG was initially a public bath of the old factory. In 2019, the building was partially renovated after the factory was transformed into a creative office area. Later on, the Buddha artist Jiang Sheng commissioned TEAM_BLDG to renovate the building into a new studio and exhibition space called “The Field.”

What ws interesting about this design is its playful use of levels. Using simple forms to create an interesting and dynamic yet stripped back scheme allows the art for the building to speak for itself. A journey is created while moving through the building. So although its stripped back, the building itself becomes an aer piece, with the perforated ceiling and the connections between different spaces.

The Field Ink studies of the scheme

Precedent Study

Luis Barragan

Barragan beautifulluy merges modernist and vernacular principles in his designs, he lets the surrounding context and simple structure speak for itself and its what i intend to do in my scheme. Key architecural ideas in his designs include framed views, undulating paths and long and narrow roots. these transitional spaces will be incorporated not ony in the interior of my scheme for the gally spaces but also for the entry routes into my building. Creating an interesting journey to the gallery and making spaces will enrich my building and not making it strictly a destination.

Framed

views

Long and narrow pathways

Undulating paths

Incorporating the idea of framed views into my building. This will enrich my building as not only making it a place that holds art and artist but making the structure a piece of art as well. Using thick loadbearing walls to create a frame looking onto a courtyard will create an interesting juxtaposition between inside and outside, heavy and lightweight.

Long pathways provide a sense of direction. but to make the journey more interesing I will push the circulation to the perimeter of the building instead of around the atrium space. This will encourage the user to experience the whole gallery and create a more linear journey. This idea also mimics the experience of the entrance to the building. with walls against the stairs and ramps creating a long journey down to the central courtyard

Guiding the user along the gallery through undulating paths, this creates division withoust the sense of enclosure or harshness. Implementing these types of walls in my gallery space will help create an interesting and stimulating gallery experience

Cuadra San Cristóbal equestrian estate, 1968
Cuadra San Cristóbal equestrian estate, 1968
Cuadra San Cristóbal equestrian estate, 1968
Casa Gilardi, Barragan, 1977 Casa Gilardi, Barragan, 1977

The Existing Site

Machine Mart

Working withthe existing Machine Mart structure. The building is clad in brick with a steel frame. I aim to reuse the steel frame and mimic that within the rest of my design while changing the cladding.

VereStreet

My Concept

Framed Views

An Underground Space

Upon reflecting from my precedents and site research, the best way to connect my building to the site and allow a seamless blend of inside vs outside, I will include specific gaps in my walls to frame a certain view.

The end of the journey through the gallery, a place to sit and reflect. Connected to the outside yet still isolated. Introducing the theme of inside vs outisde.

My Concept

And the YMCA

Looking at the relationship my building will have with the YMCA. Having multiple entrances to the building - on from the YMCA connects its users to the gallery. Inviting the community.

My Concept

An Experience

The continutously evolving City Road would benefit from a gallery that reflects just that. evolution, growth and development.

Atmospheric section looking at the ways that light can influence my different space

Design Development

Working in Section

Playing with levels and forms, looking at the relationship between the different spaces in my design.

Pulling my scheme below ground allows for a separation from the busy City Road - it will aid the user in entering a different realm when stepping into the gallery

Hierarchy

Hierarchy of public vs private, my scheme will surround a central courtyard open to the public but how can I blend this into my structures?

Multiple courtyards that arent fully open, enclosed by the thick walls of rammed earth that will extend from the strucutre of my building.

Design Development

Hide and Reveal

I’ve focused on the theme of hide and reveal to craft a captivating user experience. The layout guides visitors through a sequence of spaces, each strategically revealed as they move through the building. Elements like perforated floors, walls along pathways, and framed entrances create a sense of anticipation and discovery. By incorporating these features, the building itself becomes an engaging journey, where visitors gradually uncover new perspectives and experiences at every turn. This deliberate design approach ensures that the final encounter is both surprising and rewarding, offering a unique and memorable exploration of the space.

Working in section

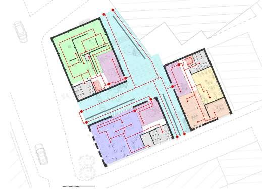
Combining all of my concept and ideas into an initial conceptual sketch. The scheme so far consists of the gallery space by the street witht the making spaces tucked behind. the machine mart will be converted into the cafe and gift shop. The Cafe will not be recessed into to the ground so to be accessible from City Road. However the rest of the structure will be embedded and only accessible from the central courtyard, encouraging the user to experience the building from the outside before entering.

1

1 Circulation (lift and stair)
Gallery space
Studios
Bridge

4

2

1

Circulation (lift and stair)
Gallery space
Resting spot
Meeting/collaboration room
Studios
Mezzanine
Left Elevation (Shakespeare Street)
Right Elevation (Vere Street)
An Atmosphere Alive with Creativity
A Space where Shadows Dance

Where Creativity and Community Intersect

Space to Craft Connections

‘Look at the shadows dancing!’

National

Museum Cardiff

Architectural Design: Lighting Design Study

Studio 5

Randa Ibrahim

Noemi Wagner-Rodriguez

Phillip Mutzek

Sophie Page

Bronwyn Wydenbach

C22026225

C23121305

C23121302

C22033718

C22030062

LIGHTING STUDY: NATIONAL MUSEUM CARDIFF

ARCHITECTS: Arnold Dunbar Smith and Cecil Brewer

LOCATION: Cardiff, Wales

PURPOSE: Museum

MATERIALS: Portland Stone (white limestone)

PERIMETER: 483m

BUILDING AREA: 8352m2

SITE AREA: 13854m2

The National Museum is a museum and art gallery in Cardiff, Wales which opened in 1927. Since then, it has undergone many upgrades and interventions that have modernised the interior.

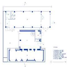
Leading on from gallery 21, a staircase guides visitors past the elevator core and up to gallery 22. Above this staircase is a series of long rectangular openings, which depending on the artwork displayed nearby, are either covered by blinds, or open to let in natural light.

PHYSICAL LIGHTING MODELLING

Interior photographs of model - Summer Solstice

Interior photographs of model - Winter Solstice

Qualitative Features

When covered by the blind daylighting devices, the openings in the ceiling facade disperse the light effectively, providing a calming ambience due to the lack of harsh, direct sunlight. The combination of softer natural lighting and artificial spotlights, allows focus to be placed upon the artwork displayed, as well as guiding the user through the area and up the stairs. Moreover, spacious double height of the room, lack of furniture and stark white painted walls, generates a more reverential atmosphere.

Site Analysis

Considering the site and its climate is of vital importance to the design. it determins the placement of the windows and certain wall placements to control winds and weathering.

The front of the building is orientated North and West meaning the building recieves a lot of daylighting. The facade facing a wide open street also means that a lot of sun is accessed through to the building. It is important for my gallery that the light is controlled, so I stuck the heavy rammed earth walls ro face the main Street. perforating the facade to allow small streaks of light to enter. this idea is mimicked throughout my whole scheme including the underground space and the Workshops/studios. however more windows have been places for the studios to allow more natural light to enter the building. This is due to the fact that more hours will be spent in the workshops and studios by its users.

Shadowing from neighbouring buildings is a revalent issue in the Winter. the site is faced with high rise residential towers which block a lot of light during the Wiinter months.

Summer Solstice (June 21)
Winter Solstice (December 21)
Summer Solstice (June 21)
Winter Solstice (December 21)
Taken from SketchUp

Climate Analysis

Wind Analysis

Wind Rose chart for Cardiff

High levels of wind are reported throughout the year in cardiff and around my site, with the average wind direction being West. the average wind speed for cardiff is 17.1kph.

Area of the site 1298m2

Machine mart 411m2

Total Area 1709m2

Strengths

- Situated on an important district - retail and mixed use

- Positioned in a densly populated residential location

- Located in a highly diverse area of cardiff

- Opportunity to represent many different cultures through my design

Opportunities

Dry Bulb x Relative Humidity Chart

Humidity Dry Bulb

Comfort Zone

Humidity levels tend to be quite high in oth the summer and winter months, this will be combatted with correct drainage systems on the roof as well as the ground to prevent the rammed earth construction from becoming wanter damaged and therefore becoming less structurally sound.

- Site has to main areas around the machine mart - opportunity to divide my scheme into two

- Using the machine mart in my design

Weaknesses

- Secondary position in relation to the prime leisure circuits of Cardiff

- The site and surrounding area is in poor condition

- Traffic and foot congestion - tight roads

- Noise Pollution - site is loacted on a very busy street

Threats

- Economic downturn - Surrounding businesses

The loction of the site is very open, on the busy and crowded City Road, Cardiff. the facade of my Site is open onto city road, and the two side streets, Vere Street and Shakespeare Street lead back to residential streets. the street right opposite the site leads also to residental streets as well as a school.

Cardiff is mostly cold with temperatures reaching as low as below 0oc in the Winter and as high as 270c in July. In gray is the daily range of reported temperatures.

Wind direction at the site
from Climate Consultant
From Weatheronline.co.uk
From Meteoblue

Exercise 2: Space planning, circulation, accesibility and

and Exits to the building

There are multiple entry points into my building for different users. The main entrance from City Road is for every day users,. people walking by wanting to access the gallery. The entrance from Vere Street is mainly for artists, the ramp and stairs take you down to the central courtyard space but mainly guide you towards the making spaces. And the entrance facing Shakespeare Street is mainly for the YMCA users, sat parallel to the YMCA, it is important for my building to fit and respond to the urban fabric of the site.

Spatial Planning, Circulation and accessibility

Looking closely at the BSI Standards Publication: Design of an accessible and inclusive built environment, to help influence my deisgn. Aiming to consider accesibility in all aspects, i designed with the intention that everyone should be able to access my building and its facilities. The guide states that entrances as well as fire exits and toilets should be easily loactable and accessible. so in most cases i made my exit and entry points wide, with the smallest one being 900mm.

Tthe minimum space for an assisted and accessible bathroom is 15m2 The dimensions of my accessible toilets are 1400mm x 2000mm which meets the mimimum requirement fot full mobility of a wheelchair user, There are 3 accessible toilets on each floor of my gallery space and cafe/gift shop as well as 2 on each floor of my studio spaces. this along with 3-5 non-accessible toilets mean each floor meets the standard of toilets.

My gallery space is very open plan allowing free movement between spaces within the exhibition. however my first floor circulation of my gallery space does feel slightly more linear and enclosed, due to the experience i am trying to create on each floor being slightly differe. although it is slightly narrower than the other floors, it is still accessible with the tightest corridor being 1500mm wide. Although it doesnt meet the minimum requirement needed for two wheelchair users to pass each other (1800mm). the route is a one way path and it opens up onto a more open space so it is still acceptable.

An elevator is also placed in both the gallery space and studio space, which takes the user to all floors of the gallery space and goes underground to reach the reflection space. And the first floor of the studio space. There is however a mezzanine that is only accessible by a stair on the first floor of the studio space. ‘the dimensional ranges for the stairs should be between 150 and 180 for the rises and between 300 and 450 for the going’. my staircases come a little steep with both the risers and going at 250, this is to account for space and circulation. There is however a landing on both sets of staircases to avoid ‘excessive strain being places on the knee, and/or hip joints of many people with mbulant mobility difficulties when descending flights of stairs’. The stairs wrap around the elevators with 900m landings. ‘It is preferred that any stair comprises straight flights, with any change of direction made on a landing’. this is whay happens in my scheme.

For my studio spaces, a lot of space has been accomodated for circulation and freedom for creating large pieces of art/scultpures, the tables are movable and are placed in a double heighted open plan studio space. tables have the cpacity to change in height depending on the needs of the user, whether for creation or for assisted needs. ‘Height of work surface specifically for wheelchair users (760mm or adjustable height) is needed to ensure the comfortable use of space’.

The cafe/gift shop is the only space in mwhole scheme that is sat on ground level, with the 2 other structures being 1500mm below ground. This means that a ramp has been placed to access the space from the central courtyard. this ramp rises 1500mm and is at a distance of 18m with meets the requirements for a ramp set by UK standards (a ratio of 1:12 for a ramp). the cafe/gift shop is also accessible from street level. The space also holds a storage room behind the counter which is 2300mmx3200mm which meets the ‘Typical distnces and requirements for ccessing storage cabinets’ ccording to the metric handbook.

Whole structure sits 1.5m below ground apart from the cafe

The cafe can be entered from street level however the rest of the strucutre is only accessible through the central courtyard, forcing the user to enter the building through the ramps or stairs.

Fire Safety Strategy

According to the metric handbook, Corridor handling capacity (Cc) in people per minute is calculated using:

Cc = 60 v DW

v = the average pedestrian speed (m/s)

D = the averge pedestrian density (people perm2)

W = corridor width (m)

Meaning that for two people passing one another, the minimum requirement is for a corridor to be between 1200 - 1400mm. the tightest spot in my scheme would be my stirs with a width of 800mm. A part from that my scheme sits to be a very open plan space. So people cam move comfortably and swiftly in an out of the building.

Lifts

Accessibility Strategy

To not take away from the experience, ive seamlessly merges my accessible routes within my design. Entrances to my building are either through ramps or stairs however both are an experience., With high walls guiding the user down to the central space, the routes to the entry of my building become an Art piece of their own

Ease of access is ensured throughout my whole scheme. not ony are the ramps sufficiently wide being 2m wide. They also meet the requirements for the accepted steepness. The Approved Building Regulations 2010 outline that ramps must have a maximum gradient of 1:12, with required handrails. and the minimum width of a ramp should be at least 1.5m.

The height that my scheme is recessed by is 1.5 metres meaning that the minimum distance for my ramps are 18m.

2 out of the three of my ramps meet the requirements for the building regulation outlined in Approved Document M. the third ramp (the one that faces Vere Street) has the least amount of distance between it and the central courtyard meaning that its ramp is slightly steeper than the rest.

Both Exits have Push to open doors to allow easy movement in case of

In order for the building to remain completly accessible, lifts have been integrated in both gallery and studio spaces. According to the London Plan Policies Inclusive Design and Fire Safety ‘Lifts should have a minimum car size of 11mm wide by 1400mm in depth (classed in BS EN 81-70:2018)’. both lifts in my spaces have a car size of 1400mm x 2000mm, which can also accomodate wheelchair users. However during fire evacuations, there is no implementation of a horizontal evacuation system.

Structural Analysis

Steel structural frame of Gallery Space

Same structure is mimicked throughout the whole building

I used a steel frame as it reflected an existing building on my site, I am reusing the Machine Mart building that is located next to my proposed site. I wasn’t able to determine the exact measurements but was aware that the building was made of a steel frame with brick cladding. my goal was to reuse the frame and mimic the structure in the rest of my building. to create an art gallery that glows ans stands out from the simple street of city road in Cardiff, I decided to use Rammed Earth as my construction material. It will serve as an aestheric facade to my building as well as holding some loadbearing properties.

Calculating the span depths of my steel beams:

Steel beams are 12m floor to roof

Steel beam for one floor is 4.5m

span depth ratio (h/d) = 7-18

so the range of depth = 1.5m - 4m

A Steel frame along with 300mm of rammed earth will prove structural support for my building. The rammed earth is loadbearing however cant fully carry its own weight so the steel structure will provide the necesarry support to hold my building. Rammed earth walls consist of:

rammed earth

insulation 100mm of rammed earth for the interior steel beam (drawn in elevation but would be tied to the rammed earth Wall ties to hold the rammed earth in place and to anchor the steel beams to the rammed earth walls

Parapet Roof

Parapet Prefinished metal Flashing (With drip edge 300mm away from parapet)

Water Control Membrane

Plywood 30mm

Spray foam Insulation 125mm

Plywood 30mm

Air Gap

Mineral Wool Insulation 100

Concrete Slab (attatched with wall ties) 250mm

Steel truss frame (attatched to concrete slab) 750mm

Wall

Prefabricated Rammed Earth 100mm

Concrete Blocks to support floors (attatched with wall ties) (500x250mm)

Cement nook to catch moisture

Mineral Insulation 200mm

Foil Backing

Prefabricated Rammed Earth 100mm

Steel I - Beam (attatched using wall ties) 250mm

Floor

Polished Concrete 100mm

Insulation 50mm

timber studs (100x150)

Concrete slab (250)

Foundation

Polished concrete finish 50mm

Screed flooring 80mm

Sound insulation 50mm

Mineral Wool Insultion 150mm

Concrete slab connected to blockwoth 145mm

Sub base of lean concrete 50mm

Concrete strip foundation 150

Soil

Parapet Roof Detail
Foundation Detail

Materiality

Rammed Earth

Environmental benefits are a strong reason as to why I chose rammed earth as a cinstruction material. it is a less carbon intensive approach than using alternatives such as concrete. Rammed earth building hav rmuch less embodied carbon than their counterparts.

Rammed Earth has high insulating properties, allowing for less a less artifically insulated building. Rammed earth structures have a high thermal mass, meaning they can absorb and store heat efficiently. When temperatures drop, the rammed eearth will absorb whatever heat there is, slowly releasing it helping to regulate indoor temperatures. The thickness of the rammed earth walls influences its insulting properties. Since i have an outer layer of 300mm loadbearing rammed earth, as well as an interior layer or 100. sandwiched between 100mm of insulation. the averged high therml mass will insulate my building sufficiently.

Reinforced Concrete

Reinforced concrete will be used in my subterrainian reflection room. This space is constructed using reinforced concrete walls to retain the weight of the roof. The roof being a perforated roof with windows for outside viewers to look down and inside viewers to look up.

Using rammed earth for my walls, as well as a small percentage of my scheme being underground will hopefully reduce the ecological footprint of my structure.

Drawbacks

A strong disadvantage of rammed earth is its moisture sensitivity, rammed earth can be quite susceptible to moisture if not properly protected. and excessive moisture could lead to major structural issues. To ensure the waterproofing of my rammed earth, rather than coat the earth in a waterproofing coating potentially reducing its insulating properties, i will ensure correct foundations, good overhangs and gutters to move the water away from the building. Raising the rammed earth from the ground using a concrete slab would prevent walls from coming into constant contact with the water. furthermore correct sloping on the parapet roof to collect the water and transfer it away from the building using a series of pipes.

U- Value Calculation

Laminated Timber

Lminted timber will be used for the interior walls of my gallery as well as timber studs s cladding for certain spaces in the studio spaces and cafe/gift shop. Timber is a renewable recource, it also requires the least energy and cost to produce compared to concrete ans rammed earth resulting in much lower carbon footprint. It’s strong acoustic properties can contribute to the gallery space and specifically the studio space, as those would be the soaces used the most. It will serve as a clean backdrop against the rt and scultpures to be placed in my gallery space.

Drawbacks

Some drwbacks about this underground space and its construction being with concrete would be minly the condensation and waterproofing challenges. humidity levels re generally higher underground.a fix of this would be to incorporte more insulation to prevent condensation from intruding and leading to mildew issues.

Recycled aggregate concrete comes from recycled material from ladfills and construction zones. It cn absorb less moisture and water compared to regular reinforced concrete which could help in exposed areas of my building like the central courtyard (the roof of my underground structure). However according to ‘The use of recylced aggregaes in structural concrete’, For buried structures with no access for inspection, the percentage of recycled aggregates to the total aggregates by mass in the concrete mix should not be in excess of 30%. Meaning it would only work for the parts of my builsing that are exposed.

Drawbacks

Timbers susceptibility to moisture and decaay could be an issue when it comes to the toilets. however using a high quality moisture resistant sealant would help eliminate this issue.

Timber has a limied span and load bearing capacity, conit should be considered heavily for the gallery. however since it is only being used mainly as partition walls, it will be carrying minimal load.

laws require the U - value of a wall to be

Both my walls and roofs fit this requirement however the walls could be construced better to make it even further below the 0.3 mark

Environmental strategy and building services

MHVR and Ventilation System Implemented

Sustainability Appraisal

Although my building is made out of rammed earth which is highly green when compared to other materials. I am still using concrete in large parts of my scheme. This means that the building must account for daylight and ventilation to leave a smalller carbon footprint

Daylighting Strategy

Alongside the multiple glazed windows and open courtyards allowing light into the space, certain areas such as certain rooms in the gallery and the studios will require constant and controlled light. with the insallation of artifical lighting this will provide lighting in the evening as well as the winter operative hours as it can get dark inside the building.

Windows

MHVR system will be implemented across the ends of the studios and gallery furtherest from the glazed windows and doors. Glazed windows facing the courtyards can be opened for passive ventilation.

The buildings orientation maximises the amount of sunlight entering however the thick rammed earth walls can sometimes block that light so installing artifical light would be a necessity.

Further reflecting from my lighting study project. The Cardiff National Gallery implemented VITRAL’s A74 Glazing system. This specific window glaze prevents any ultraviolet light from entering the building, therefore protecting the paintings and artifacts inside the museum. Since the whole wall is glazed with glass facing the courtyards, it is severly important that these windows are constructed using this glazing system to make sure nothing is damages by UV light. This system allows 0% UV light transmission and has a U-value of 1.6W/m2K.

‘BRE: Green Guide: Green Guide 2008 Ratings’. 2023. Bregroup.com <https://tools.bregroup.com/greenguide/ggelement2.

‘Cardiff 2023 Past Weather (United Kingdom) - Weather Spark’. [n.d.]. Weatherspark.com <https://weatherspark.com/h/y/37834/2023/ Historical-Weather-during-2023-in-Cardiff-United-Kingdom#FiguresTemperature> [accessed 5 May 2024]

‘Design of an Accessible and Inclusive Built Environment Part 1: External Environment — Code of Practice’.

Eurocode 1: Actions on Structures - Part 1-1: General ActionsDensities, Self-Weight, Imposed Loads for Buildings.

HM Government. 2010a <https://assets.publishing.service.gov. uk/government/uploads/system/uploads/attachment_data/ file/990362/Approved_Document_M_vol_2.pdf>

<https://assets.publishing.service.gov.uk/government/uploads/ system/uploads/attachment_data/file/990362/Approved_ Document_M_vol_2.pdf>

Metric Handbook: Planning and Design Data, Third Edition reference

Marsh, Andrew. [n.d.]. ‘PD: Dynamic Daylight’, Drajmarsh.bitbucket.io <https:// drajmarsh.bitbucket.io/daylight-box.html>

Data from - Meteoblue. (n.d.). Cardiff, United Kingdom - Climate data - Climate information - Climate models. https://www.meteoblue.com/en/weather/historyclimate/climatemodelled/ cardiff_united-kingdom_2653822

Data from - Sun Direction. (n.d.). Sun Direction - Cardiff. Retrieved May 2, 2024, from https://sun-direction.com/city/63803,cardiff

Ching, Francis D K. 2020. Building Construction Illustrated. (S.L.: John Wiley & Sons)

Turn static files into dynamic content formats.

Create a flipbook
Issuu converts static files into: digital portfolios, online yearbooks, online catalogs, digital photo albums and more. Sign up and create your flipbook.