Graduate portfolio

Page 1


Architectural Portfolio

Rajni Kathiriya

I am a highly motivated architecture student with over 4.5 years of hands-on experience in both commercial and residential design, dedicated to shaping sustainable, transformative environments. Currently serving as a Design Intern Architect in New York, I am acquiring in-depth expertise in DOB codes, residential renovations, and building inspections. My passion lies in seamlessly merging technology with design, harnessing advanced digital tools to drive innovation and sustainability. As a resourceful and collaborative learner, I am constantly expanding my knowledge of construction processes and regulatory frameworks. I am eager to bring fresh, visionary ideas, creative problem-solving, and a dynamic approach to high-impact design teams.

Email: rajnikathiriya24@gmail.com

Contact: 929-235-5262

INTERN ARCHITECT

MAY 2024 – PRESENT

Project tactical solutions I New York

• Drafted detailed roof & floor plans, elevations, and wall sections for multiple renovation projects.

• Conducted building inspections, documented conditions, and ensured DOB compliance

• Collaborated with design managers to develop proposals and oversee contractor site visits.

JUNIOR ARCHITECT

APRIL 2023 – AUG 2023

Innovatique Architects I India

• Designed efficient and functional residential projects with working drawings and elevations.

• Developed building sections and conducted site visits for accuracy verification.

• Produced detailed sketches and collaborated with architects to ensure regulatory compliance.

JUNIOR ARCHITECT

JUN 2018 – FEB 2022

Raghuvir Builders & Developers I India

• Assisted in multiple residential, commercial, interior, and façade design projects.

• Developed 2D and 3D drawings to support new proposals and presentation visuals.

• Applied knowledge of building codes and materials for finalizing designs

INTERN ARCHITECT

JUN 2017 – JUN 2017

Kuke associates I India

• Produced working drawings and conceptualized interiors/exteriors for residential projects.

• Conducted site visits and assisted with material selection for design accuracy.

Master’s in architecture

New York Institute Of Technology

New York

3.75 GPA

May 2025

Bachelor’s in architecture & town planning

Buddha college

Udaipur I India

3.25 GPA

2013 – 2018

SKILLS

Advance AutoCAD

Rhino/SketchUp

Microsoft office

Adobe Photoshop

Adobe InDesign

Lumion

Intermediate

Revit

Adobe illustrator

V-ray

LANGUAGES

English

Gujarati

Hindi

ABILITIES

Teamwork/Interpersonal skills

Physical model making Hnad drawn illistrations

3d modelling / Rendering

Organized and detail oriented

MY INTEREST

Travelling

Styling

Doodling

Photography

01 Adaptive Reuse As a catalyst for urban agriculture

Gradaute 4th sem spring 2025 (current semester going project)

03

Gradaute 3rd sem fall 2024

02 Green horizonhousing for future

Gradaute 3rd sem fall 2024

Vertical facade proposal

podsproposal

04 Splash & stretchBedford swim & fitness

Gradaute 2nd sem spring 2024

05 Play & learn kinder garten

Gradaute 1st sem fall 2023

06 Vertical garden cooper street garden

Gradaute 2nd sem spring 2024

Graduate thesis - Masters Of architecture studio

Adaptive Reuse As a catalyst for Urban Agriculture

reclaiMinG saO cristOvaO’s aGrarian leGacy

The idea behind this thesis is to explore the adaptive reuse of historical buildings in São Cristóvão, Brazil, by integrating urban agriculture to reconnect the city with its agrarian past. This project proposes repurposing heritage structures into self-sustaining cultural hubs, creating a model for food security and community engagement. By reimagining the relationship between heritage and productivity, the project hypothesizes that embedding productive landscapes within historic architecture can foster urban resilience. The goal is to establish a new paradigm that bridges tradition with contemporary sustainability, supporting an economy rooted in both cultural heritage and food sovereignty. Through innovative spatial interventions, this thesis aims to show how adaptive reuse can revitalize urban spaces while promoting sustainability, inclusivity, and community development.

4th sem, Spring 2025

Sao cristovao, rio de janeiro, Brazil

Group work with Aneesha muthuraj

Matrix Strategies for Urban Agriculture and Adaptive Reuse

Vertical gardens

Rooftop gardens

URBAN AGRICULTURE

Aquaponics

Greenhouses

Urban farming

ADAPTIVE

Warehouses Residences Cultural

Cultural Institutes Under the highway Parking lots

Combination of different types of modules

Physical models

Masters Of architecture studio

GREEN HORION -Housing for the future

This studio project focuses on affordable housing in Red hook, Brooklyn, by integrating sustainable design with the neighborhood’s industrial history. The design elevates the housing on a steel platform to mitigate flood risks while freeing up ground space for public areas. Mixed-use spaces, such as local businesses, co-working hubs, and community centers, foster economic growth and social interaction. The project incorporates sponge landscapes and oyster farming to enhance environmental resilience. Green spaces throughout the site promote well-being and ecological balance. Buildings are strategically placed to connect the street and waterfront, revitalizing urban engagement. Ultimately, the project creates a vibrant, inclusive community that balances sustainability, heritage, and climate resilience.

3rd sem, Fall 2024

Red hook, brooklyn, New york Group work with Aneesha muthuraj

Conceptual diagrams

Dividing the site into 3 parts - Hardscape, sponge landscape, marshlands

Orienting the building based on the sun and wind analysis and maximizing the views to the waterfront

Circular buildings inspired from grain silos that were found in Industrial Redhook. Staggered to maintain the connection to waterfront.

Raising the building above the flood zone and connecting them with a platform that serves as the new public realm

Site section

Increased permeability between built and unbuilt spaces

Planned wetlands

Proposed oyster farms for stromwater mitigation Raised platform for urban activities

Wetlands with viewing deck

elevation and section for residential buildings

Building section of residential unit

Building floor plan of residential unit

Social spaces near the core encourages social interactions

Reusing the materials from demolished buildings

Flexible open space that exchanges community development ans encourages social interaction

3d visualization of site

different bonds of bricks and colors indivisuality townhouses

Urban agriculture hub
Terrace farming to make the community self sustainable

Masters Of architecture - Building system

GREENSCAPE PODS

The proposed façade design for the Whitney Museum draws inspiration from the surrounding neighborhood’s artistic and architectural diversity, aiming to create a climate-responsive, visually dynamic, and sustainable structure. Expansive glass panels replace traditional exterior walls, enhancing transparency, natural light, and a connection to the environment. A multifunctional platform serves as a recreational space, while vertical green facades allow for seasonal transformation, offering a living, evolving aesthetic. The use of wood and Corten steel adds tactile contrast, enriching the building’s visual appeal. Rainwater harvesting on the platform sustains the green facades, contributing to environmental sustainability. This design seeks to blend artistic expression with functionality and ecological responsibility, enriching both the architectural experience and the urban landscape.

3rd sem, Fall 2024

Madison ave, New york (Proposal for whitney museum facade)

Group work with Devangi hinglokwala

Wooden/ corten steel cladding
Wooden/ corten steel cladding water tank I beam
I beam
planters
Glass panel
Existing beam

view from proposed floor plate

Masters Of architecture studio

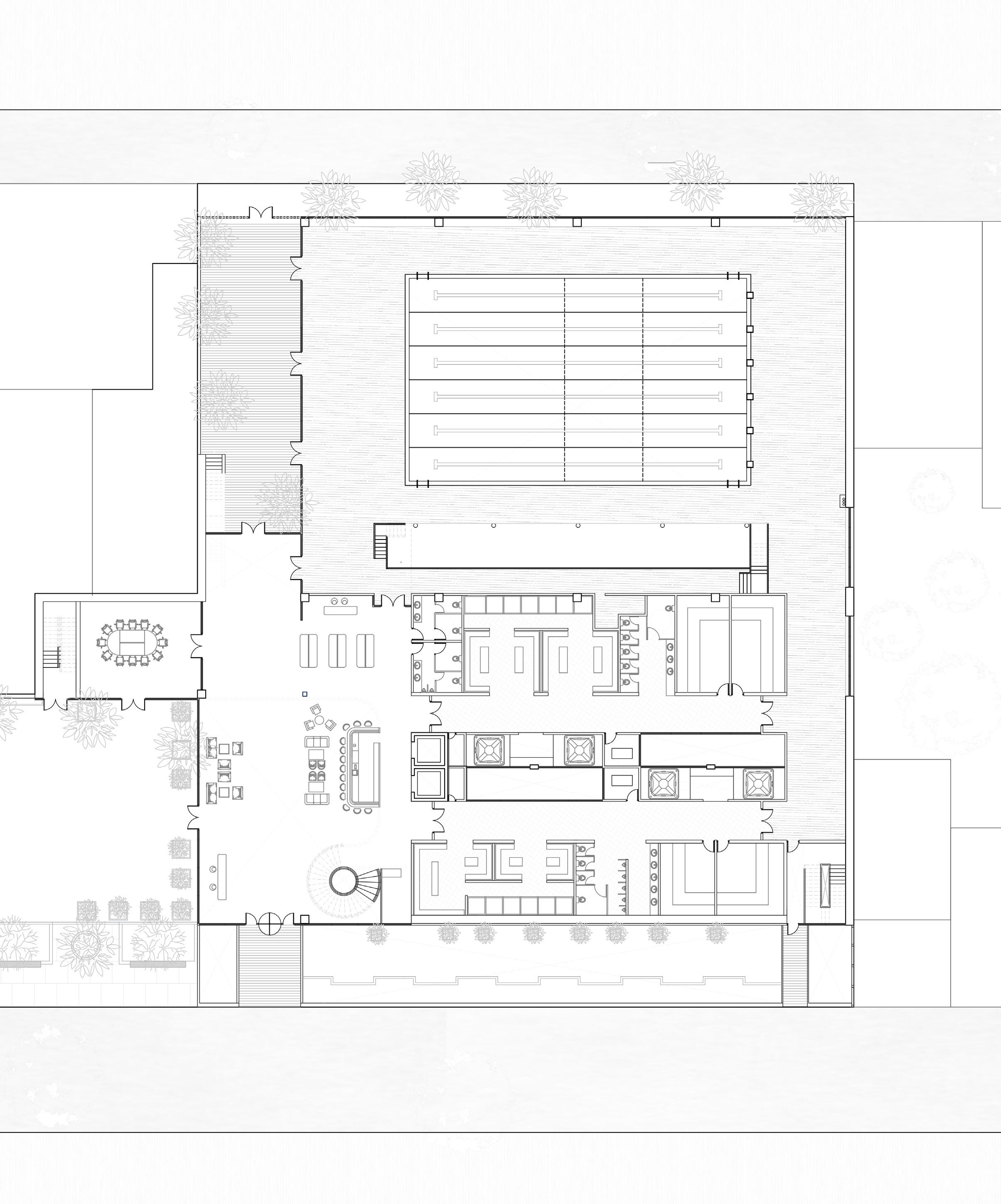
SPLASH & STRETCH - Bedford Swim & Fitness Center

The proposed design for an aquatic center featuring an Olympic-sized swimming pool and fitness center is inspired by the surrounding neighborhood context. Positioned between two streets, the design features a lobby area that connects seamlessly with both streets, enhancing accessibility and urban flow. The use of glass and concrete materials creates a modern, transparent aesthetic while providing structural strength. The layout maximizes space and views, offering a dynamic environment for both swimming and recreational activities. The project aims to create a functional, engaging space that blends architectural expression with its urban surroundings.

2ndsem, Spring 2024 Brooklyn, New york

The site is divided into two portions, creating a central open space that seamlessly connects both streets, enhancing accessibility and ensuring a smooth circulation flow for users throughout the aquatic center.

The roof garden enhances sustainability, wellness, and urban integration by providing a green retreat with native plants, seating areas, and energy-efficient features that complement the aquatic center’s design.

View from swimming pool

Masters Of architecture studio

“Play & Learn: A Kindergarten Designed for Exploration”

This kindergarten school in Harlem is designed to create a welcoming and stimulating first school experience for young children. Emphasizing an open-classroom concept, the design allows learning to extend beyond traditional spaces into the interactive lobby area. The lobby itself is transformed into a playful environment where children can sit on built-in railings, explore, and engage with their surroundings. A vibrant palette of colors and geometric shapes is integrated into both the interior and exterior, fostering creativity, cognitive development, and a sense of familiarity. The open layout encourages social interaction, movement, and handson learning, making education an immersive experience. Natural light and child-friendly materials enhance comfort and safety, creating an inviting atmosphere for both learning and play. This project aims to establish a joyful and engaging environment where children can develop foundational skills while feeling at home in their first educational setting.

1st sem, Fall 2023

Harlem, New york

Ground floor plan
3rd floor floor
Building section
Axiometric diagram

view fromPassage and open library

Building techtonics

Vertical garden - cooper street garden

As part of the project, we were tasked with designing a vertical garden for Cooper Street, beginning with the development of a prototype before assembling the final structure on-site. The process involved experimenting with different materials to determine the most suitable options for durability and aesthetic appeal. We explored various joinery techniques to ensure structural stability and ease of assembly. Additionally, we utilized a range of tools to fabricate and refine the components, gaining hands-on experience in precision cutting, fastening, and finishing. Through this project, we deepened our understanding of modular construction and sustainable design practices. The final installation aimed to enhance urban greenery while serving as a functional and visually engaging addition to the site.

2nd sem,Spring 2024

Brooklyn , new york Class group work

Turn static files into dynamic content formats.

Create a flipbook
Issuu converts static files into: digital portfolios, online yearbooks, online catalogs, digital photo albums and more. Sign up and create your flipbook.