Skip to main content

RAHULXAVIER - Portfolio 2020-2023

Page 1

2023
PORT FOLIO 2022 -

RAHUL XAVIER

STUDENT OF ARCHITECTURE

EDUCATION SOFTWARE SKILLS

present

b.arch.(3rd year)

National Institute of Technology Patna

2019

SR. SECONDARY SCHOOL

Holy Cross Matriculation Hr Sec School, Salem

72 percentage

2017

SECONDARY SCHOOL

Holy Cross Matriculation Hr Sec School, Salem

88.8 percentage

EDUCATION

2023

ANDC ( top - 50 )

Re imaginig public spaces

2023

CalciteX

Computational design

2022

VISTAVIV DESIGN (internship)

Interior design,3D Visualisation, Rendering

2020 -PRESENT VICE-PRESIDENT at expresso art and Literary club

2020 - PRESENT ARCHITECTURAL JOURNALISM

stanchion architectural magazine

Publication Club of Department of Architecture and Planning

National Institute of Technology Patna

DRAFTING

Autodesk AutoCAD

MODELLING

Autodesk REVIT

Sketchup

RHINO

RENDERING

LUMION

Adobe Photoshop

3DS MAX

V-RAY

ENSCAPE

DOCUMENTATION

Adobe ILLUSTRATOR

Adobe IN-DESIGN

itsrahulxavier@gmail.com
CONTACT : 9344347171 EMAIL :
LINKEDIN
2 HENGE HOUSE 3 SPORTS COMPLEX 1 HAELEN

4 WORKING DRAWINGS

5 FREELANCE PROJECTS

The Hospital concept reimagines the essence of the Hanging Gardens of Babylon to create a healthcare facility that prioritizes the well-being and healing of its occupants. By integrating natural elements, promoting serenity, and emphasizing sustainability, this concept offers a unique and nurturing environment where patients can heal, visitors can find solace, and medical staff can work in a rejuvenating atmosphere.

The Hospital Design concept draws inspiration from the magnificence and beauty of the Hanging Gardens of Babylon. This design aims to create a healing environment that combines the tranquility of a lush garden with the functionality and efficiency required in a modern healthcare facility. The hospital design focuses on incorporating natural elements, promoting a sense of serenity, and providing a therapeutic atmosphere for patients, visitors, and medical staff alike.

INSPIRATION

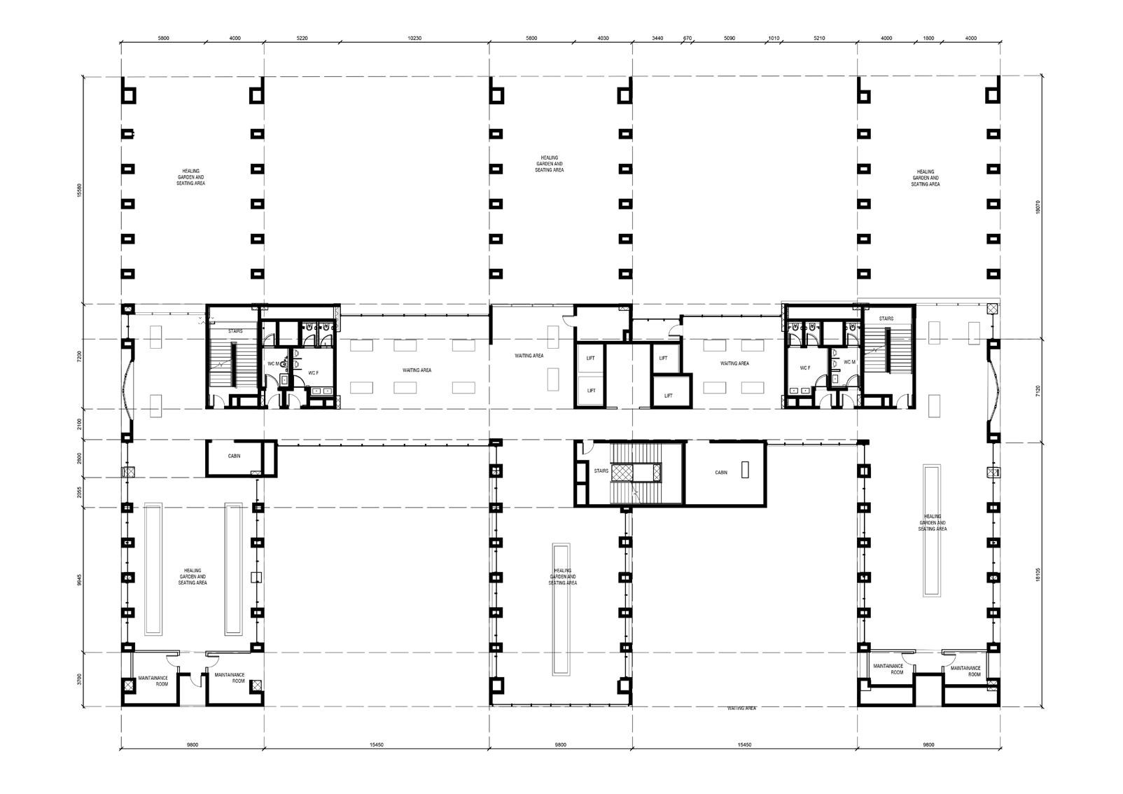
SITE PLAN

Patient rooms are designed to provide a calming and restorative atmosphere. Large windows allow for abundant natural light and provide views of the gardens, fostering a connection with nature. Soft color palettes and nature-inspired décor contribute to a soothing environment. State-of-the-art medical equipment is seamlessly integrated into the rooms, ensuring that the functional requirements of a hospital are met without compromising the aesthetic appeal.

GROUND FLOOR ELEVATION

SECOND FLOOR ( O T ) THIRD FLOOR

FOURTH

FLOOR FIFTH FLOOR

Treatment areas within the hospital also incorporate natural elements to create a healing environment. Gardens and green spaces are strategically placed near waiting areas and examination rooms to offer respite and promote relaxation. Natural light and views of the surrounding gardens are incorporated wherever possible to enhance the well-being of both patients and medical staff.

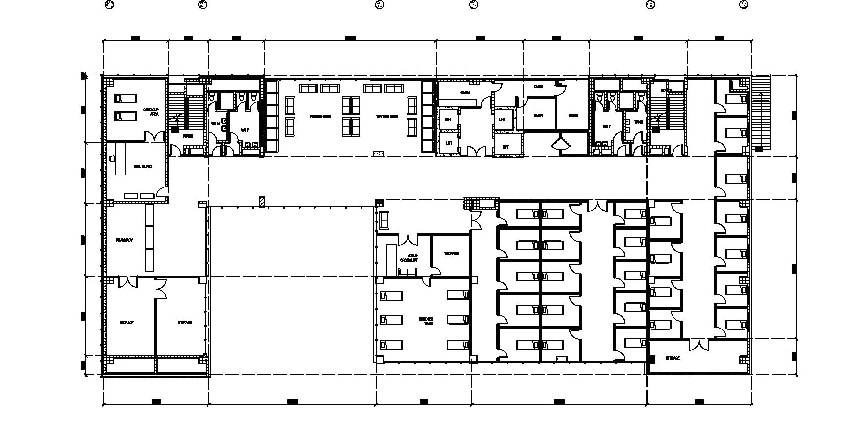
DOC CABIN WAITING AREA C.T. SCAN X-RAY ULTRA SOUND ULTRA SOUND ULTRA SOUND DOC CABIN DOC CABIN DOC CABIN DOC CABIN DOC CABIN DOC CABIN DOC CABIN MRI SCAN GENRAL WARD BILLING COUNTER GENRAL WARD DOC CABIN DOC CABIN WASHROOM (M) WASHROOM (F) WASHROOM (M) WASHROOM (F) AHU UP UP O.T.5 MEDICINE/DISPENCERRY CABIN CABIN WAITING AREA CABIN BED ICU BED ICU BED ICU BED ICU BED ICU BED ICU SR DOC BED ICU BED ICU DOC CABIN DOC CABIN BED ICU BED ICU BED ICU BED ICU BED ICU BED ICU DOC CABIN EQUIPMENT NURSE ROOM NURSE ROOM ROOM ROOM WARD BOY WARD WARD UP UP 2255 2365 2400 2400 2745 2045 6955 2460 4765 4775 2460 3640 3625 CHILDRENS WARD CHILDRENS WARD CHILDRENS WARD CHILDRENS WARD CHILDRENS WARD DOC CABIN DOC CABIN DOC CABIN DOC CABIN DOC CABIN DOC CABIN WASHROOM (M) WASHROOM WASHROOM (M) WASHROOM WASHROOM WASHROOM (M) WASHROOM (F) WASHROOM (F) STAFF AREA STAFF AREA

FIFTH FLOOR SIXTH FLOOR

HEALING GARDEN

Therapeutic Gardens and Healing Spaces:

The Babylon Garden Hospital features dedicated therapeutic gardens and healing spaces. These areas are designed to provide solace and respite for patients, their families, and medical staff. Labyrinthine pathways, aromatic gardens, meditation areas, and serene water features are incorporated into these spaces, creating a harmonious environment that promotes relaxation, stress re-

The Henge House concept harmoniously merges the ancient and the contemporary, providing a living space that inspires awe, fosters a connection with nature, and embraces sustainable living. With its striking design and innovative features, this concept reimagines the spirit of Stonehenge for modern living, creating a truly remarkable home that stands as a testament to the enduring power of architectural marvels.

Stonehenge’s iconic stone circle. The exterior facade is composed of natural stone, echoing the ancient megalithic structures. The use of local stone materials ensures a seamless integration with the surrounding environment, creating a timeless and organic aesthetic. Large, strategically placed windows allow ample natural light to enter the interior while offering breathtaking views of the surrounding landscape.

SPORTS COMPLEX

MOBIUS STRIP

The roof of the sports complex is designed as a single continuous surface, inspired by the Mobius strip. The Mobius strip is a non-orientable surface with only one side and one edge, representing an infinite loop. This architectural concept is translated into the arena roof, which seamlessly wraps around the entire structure in a continuous loop, evoking a sense of unity and connectedness.

N
SPORTS COMPLEX SITE PLAN

INDOOR COURTS

To enhance the aesthetics and functionality of the sports complex, the roof incorporates elements of transparency and natural light. Large sections of the roof are composed of translucent materials, such as glass or lightweight polycarbonate panels, allowing natural light to penetrate and illuminate the interior of the arena. This creates a vibrant and energetic atmosphere, while reducing the need for artificial lighting during the day.

INDOOR SWIMMING POOL

The Aquatic Oasis Sports Complex Swimming Pool concept offers a harmonious blend of nature-inspired design, advanced technology, and versatile functionality. By creating a serene and inviting space, integrating various water features, and providing state-of-the-art facilities, this concept transforms the swimming pool into a vibrant and immersive aquatic oasis within the sports complex.

WORKING DRAWINGS

WORKING DRAWINGS

TALL UNIT BASKETS CUTLERY SINK STORAGE STORAGE A B C D STORAGE STORAGE T5 702 PLAN A LOWER CABINET T5 702 ELE VATION A KITCHEN 7" 1'-10" 1'-10" 2' 11'-10 2 " 11'-3 4 " 7" 11'-2 4 " 2' 814 " 1'-1114 " 5" 5" 4" 2' 2" 2' 2' 1'-4" 2' 2'-212 1'-10" 3'-1" 7'-3" 2'-4" 4'-10" 1'-1012" 9" 5" 5" 3'-8" 2'-1114 " 5" 5" 9'-912" 11'-1 2 " 5" 2' 11'-10 2 " 11'-3 2 " 33'-2 4 5" 2'35 4 1'-3 7'-1 1'-112" 1'-13 4 " 2'-712 9" 1'-1012 1'-13 4 3'-1" 3'-103 4 6'-7" 5" 9'-012" 5" 1'-2" 5" 53 4 " 2'-53 4 " 9'-912"
KITCHEN DETAIL
3'-4" 8' CUTLERY CUP n SAUCER THALI BASKET CHIMNEY 8" 2'-1" 8" 3'-8" 1'-5 1'-514 " 1'-514 " 1'-03 4 " 1' 1'-11 1'-1112" 1'-11 1'-1112" 1' TALL UNIT BREAKFAST COUNTER A B C D CHIMNEY T5 702 PLAN B UPPER CABINE T AT LVL 5’ T5 702 ELE VATION D KITCHEN T5 702 ELE VATION B KITCHEN GYSER/RO TALL UNIT BREAKFAST COUNTER A B C D T5 702 PLAN C CABINET AT LVL 7’ OVER-HEAD STORAGE OVER-HEAD STORAGE O VER-HEAD S T O RA GE STORAGE STORAGE 8" 2'-1" 8" 17 4 " 1'-2" 1'-8" 4'-10" 93 4 " 1' 103 4 " 5" 1'-2" 2'-212" 1' 1' 11'-0 2 " 10 3 4 " 5" 2' 2'-8" 2' 4" 2'-2" 2" 2' 2'-10" 1'-6" 2'-8" 2' 3'-4" 11 " 9' 3'-33 4 1'-10" 11 2'-5" 3'-10" 7'-6" 1' 7" 1' 1' 1'37 4 " 1'-6" 6" 1' 2' 2'-4" 1'-2" 1'-5" 2'-7" 6'-3" 4" 2' 4" 2' 2' 1'-4" 1' 4" 2' 8" 13'-7 4 " 12'-2 2 " 9' 2' 1'-214 " 7" 3'-1" 7'-114 " 2' 2' 7'-114 " 8" 2'-1" 8" 1'-2" 2'-11 3'-614 1012 10 3 4 " 3'-2 " 2' 1'-9" 1'-9" 1'-2" 1'-914 " 1'111 4 " 4'-03 4 " 2' 3'-83 4 " 33'-1 4 " 3'-10" 7'-2 " 3'-2 " 2' 7'-2 " 5" 31'-10 4 " 5" 10'-712" 10 3 4 5" 2'-7" 3'-8" 1'-9" 8' 12'-4 4 0" 103 4 7'-114 " 1'-2" 10'-712" 1' 3'-2 " 2' 7'-2 " 5" 5" 5" 6" 612" 6 3 4 " 10 3 4 " 11'-5 2 " 17 4 3'-8" 1'-914 " 4'-10" 5" 612" 1'-9" 1'-112 1'-3"

WOODEN PARTITIONA WALL

4'-7 " 4'-7" 1'-5 " 1'-5" 2'-6 " 2'-6" 8'-6" 10" 9" WALL 1'-5 " 1'-5" 1'-1 " 1'-1" 7" 2" 8" 1'-7 " 1'-7" 7" 2" 8" 1'-7 " 1'-7" 2'-6 " 2'-6" 1'-5 " 1'-5" 2'-4 " 2'-4" 2'-3 " 2'-3" 8'-6 " 8'-6" 2'-10" 2'-10" 1'-7" 2'-6" 1'-7" 5'-8" 9' 3" 4'-3" 1'-5 " 1'-5" 1'-1 " 1'-1" 7" 2" 8" 1'-7 " 1'-7" 1'-5 " 1'-5" 1'-7 " 1'-7" 3'-1 " 3'-1" 5'-6 " 5'-6" 3' 8'-6 " 8'-6" 10" 8" 9" EL 1405 ELE VATION PART ITION SHELF 8" 2'-6" 2'-6" 8" 2'-10" 1'-5 " 1'-5" 2'-10" 10" 1'-7" 2'-6" 9" 2'-6" 8" 1'-7 1'-7" 10" 1'-5 " 1'-5" 9" 1'-7"
LVL +1 1/2" LVL +3/4" LVL +2 1/4" A B D C 1 1 2 " 3 4 " 2 1 4 EL 1405 ELE VATION - B FOYER PL 1405 PLAN FOYER 8" 8" 8" 8" 8" 8" 8" 1'-8" 5" 5'-5 5'-5" 8" 8" 8" 8" 8" 8" 8" 1'-4" 5" 8" 8" 8" 8" 8" 8" 3" 1'-10" 1'-10" 1'-10" 1'-10" 2' 8" 4'-7 4'-7" 1" LVL +1/2" LVL +1" LVL +4" LVL +9" LVL +1'2" BEAM BEAM 52" TV EL 1405 ELEVATION T.V UNIT PL 1405 PLAN T.V UNIT SB SB SB 1'-6" 1" 2'2'1 1" 1" 2'-5 2'-5" 1" 4" 8" 1" 2'-1 4 2'-6" 2'2'-9 7'-5 7'-5" 1" 7'-3" 2' 1'-6" 1'-5" 5'-5" 2' 11'-9 7" 12'-4 12'-4" 2" 2" 2" 2 2" 2" 2" 2" 2" 2" 2' 1'-1 3 4 11'-9 7" 12'-9" 2" 9" 4" 14 1'-1 2 7" 14 1' 7" 1' 1" 1'-7" 2" 2 4" 7'-1 7'-1" 1'-7" 2" 5" 10" T.V UNIT DETAIL FOYER WALL DETAIL
9' 3 eq eq 3'-614 open shelf open shelf open shelf open shelf open shelf Drawer Drawer Shirt/siut Hanger 7'-3" 3'-712 PL 1405 PLAN CLOSE T MB EL 1405 ELE VATION CLOSE T MB
WARDROBE DETAIL
eq eq eq 8" 1 1 3 4 11'-0 2 " eq eq 3'-614 4 " 11'-2 2 open shelf open shelf open shelf open shelf open shelf open shelf open shelf open shelf Drawer Drawer Shirt/siut Hanger 4" 1'-93 4 " 1'-93 4 " 1'-93 4 " 1'-93 4 " 2'-3" 2' 2'-3" 53 4 " 2'-23 4 " 1'-2" 2'-212 " 1'-012 " 8" 1'-712 " 2'-212 " 9" 1'-10 1'-101 4 " 53 4 " 1'-43 4 " 1'-212 " 8" 1'1 11 4 " 1'-214 " 1'-3" 1'-712 " 2'-23 4 " 2'-4" 1'-912 " 1'-012 " 4" 2'-212 " 2'-43 4 " 384 " 2' 1'-2" 1'-83 4 " 2'-212 " 1'-91 4 " 5" 9" 2'-114 " 1'-214 " 1'-101 4 " 13 2 " 1'-71 4 " 10 12 " 1'-012 " 11'-7 2 " 10" 2 1 6 7 3 4 8 5 1 6 2 7 3 4 8 5 6'-6" 3'-712" 3'-712" 1'-4" 7'-10" 2' 6'-6" 1'-4" 4" 12'-10 4 " 33'-7 4 " 1'-4" 10" 6'-10" 1'-4" 7'-3" 3'-712 2' 10" 1'-4" EL 1405 ELE VATION CLOSE T MB T4 1405 DETAIL CLOSE T MB T4 1405 DETAIL CLOSE T MB

WALL PANELLING DETAIL

level +11/2" 1/2" level +1/2" level +1" level +11/2" AC 1 2 3 8 7 12 9 13 17 18 14 10 19 15 11 4 5 6 16 PL 1405 PLAN SOFA BACK WALL EL 1405 ELEVATION SOFA BACK WALL SB beam down 1' false celling 1'2" 1' 2" 4" 1' 2 3 4 12 2 5" 1'-2" 31'-6 4 " 15'-10 4 " 5" 5'-6" 5" 10" 10 1'-6 212 212 1'-6 10" 10 5" 1'-6" 5'-11" 1'-6" 1'-3" 1'-3" 11'-5" 11'-5" 2'-9" 5'-11" 2'-9" 5" 10" 10 1'-6 1'-6" 5'-11 5'-11" 1'-6 10" 10 5" 1' 1' 1'-5 1'-5" 1'-5 1'-5" 5'-11" 5'-11 4" 4" 1 1 2 " eq eq eq 13'-9 2 " 2 3 4 11 2 3 4 4" 612 33 4 " 1'-614 43 4 " 1'-6 1'-612 6" 414 2 3 4 12 2 3'-6"
10" 9" 11'-2 4 " 1'-014" 1'-2 12 " 614" 1114 " 1'-4 3 4 " 1'-6 1'-61 2 " 2 2 3 4 5 7 8 9 10 11 6 12 17 13 14 15 19 18 16 1 2 3 8 7 12 9 13 17 18 14 10 19 15 11 4 5 6 16 EL 1405 ELEVATION PANELLIING DETAIL 1'-8 1'-814 " 3 3 4 1'-0 1'-01 4 " 93 4 " 194 " 612 182 " 814 " 5 3 4 " 73 4 " 51 4 " 812" 21 2 " 414 " 2" 1 2 " 414 " 11" 10 3 4 " 712" 63 4 " 61 2 " 174 " 1' 2'-1" 1'-9 34 " 612 1'-914 " 612" 1'-31 4 1'-612 39 4 " 5" 1014 " 32'-2 4 9" 1'-1 0 1'-101 2 7 12 " 412" 71 4 83 4 " 1'7 1 '-73 4 " 1'-312 " 11" 73 4 " 1'-914 " 2'-1 2'-11 2 " 1'-5 1 '-51 2 1'-6 1'-612 " 814 " 2" 9" 174 " 5" 1'-61 2 " 1'-2" 10" 10" 214 11 1 4 " 61 2 " 172 " 1'-4" 1'-4 " 3'-21 4 " 33'-9 4 " 73 4 " 1'-612 212" 414 1'-814 112" 612 3 4 73 4 2" 414 414 814 214 414 212 12 2 2 3 4 11 2 3 4 13'-9 2 2 3 4 12 2 12 2 " 2 3 4 " 3 3 4 3 4 10 3 4 3 3 4 11'-2 4 11 2 " 32'-0 4 2 3 4 " 12 2 212" 4" 612" 33 4 " 1'-614 " 43 4 " 1'-612" 6" 414 " 212" 15'-10 4 5'-11" 15'-10 4 " 5'-11"

OUT OF THE BOX FREELANCE

THEATER DESIGN

RECORDING STUDIO

RESIDENTIAL PROJECT

GARDENING PROJECT

TERRACE GARDEN DESIGN

LANDSCAPING PROJECT
RAHUL XAVIER
CONTACT : 9344347171 EMAIL : itsrahulxavier@gmail.com

Turn static files into dynamic content formats.

Create a flipbook
RAHULXAVIER - Portfolio 2020-2023 by Rahulxavier - Issuu