My first document

Page 1


C.H. WONG MSc

Education

ir. Chi Hou (Peter) Wong MSC | 25.11.1986

Registered architect 1.24119.007 peter.genero@gmail.com +31681313058

Technical University of Eindhoven TU/e | Eindhoven, NL

Master of Science (ir./MSc)

Hogeschool Rotterdam | Rotterdam, NL

Bachelor of Science (BSc)

Work experience

2021-2024 | AABNL Architect

2019-2021 | TBI-MDB Revit modeller

2017-2019 DEC | ZeroLogic architects | junior architect

2017 | Powerhouse Company | BIM Archicad modeller

2017 | Make bv civil engineering | engineer

2016 | DP architects (Shanghai office) | Senior architect

2016 | Puresight Shanghai office | Senior design manager

2014-15 | MadeMake architects (Shanghai office) | architect

2013-14 | John Portman & associates (Shanghai office) | junior architect

2010-2011 | ZeroLogic architects | assistant designer / intern

2009 | Prent & Landman architecten | technical drawer

2009 | Van Omme & de Groot bv | intern construction

2008 | Hogeschool Rotterdam | assistant tutor Archicad

2007 | Weeda architecten | internship

2005 | A3 architecten | internship

Skils

AutoCAD | advanced

SketchUP | advanced

Adobe | good

Revit | good

ArchiCAD | good

Languages

English | academic

Dutch | mothertongue Cantonese | good

Mandarin | great

PROJECTS

CONTENTS

Education

Bachelor thesis: Living Cargo | graduation project

Hogeschool Rotterdam

Master thesis: Vertical farming balconies in urban cities | graduation project

TU Eindhoven

Competition

Hangzhou Qianjiang competition design | John Portman & associates Shanghai

Residential

Shanghai Qiantan Project | John Portman & associates Shanghai

Entry passage building for residential community | MadeMake arch. Shanghai

Chongqing residential towers design | MadeMake architects Shanghai

Dalian beach masterplan project | DP architects Shanghai

Remisehof residential project | Powerhouse Company

Roof garden design | ZeroLogic architects

Villa Almere design | Zerologic architects

Interior design

Lobby interior design office project | DP architects Shanghai

Geely motors showroom design | Puresight

Several projects in the Netherlands 2019-now

Master thesis: Vertical farming balconies in urban cities

Graduation studio: Big House 2021

John Portman & associates (Shanghai) - position architect 2013-2014

Designed the facades of the three office towers in the Hangzhou Qianjiang competition. Hangzhou was holding a competition between big architectural offices such like SOM, AECOM, FOSTER and ofcourse: John Portman & Associates. The project is about to develop a financial center with offices and shopping facilities and offers a great view over the Qianjiang riverfront.

John Portman & associates (Shanghai) - position architect 2013-2014

Designed the qiantan media center masterplan project in Shanghai.

Qiantan is Shanghai’s riverfront and we were asked to do a master plan for the near the river garden of Qiantan. My master plan concept is like a necklace which wraps all the offices and hotel facilities together as a rope facing the riverside. Every office has an unique view over the garden

MadeMake architects - position architect 2014-2015 Designed the entry building for a residential community in Anhui.

MadeMake architects (Shanghai) - position architect 2014-2015

Designed the facades of the five residential towers in Chonqing, China.

This project is a big residential zone that includes apartment towers, villas and street retail over a height gap of 65 meters. My task here was to design the facades of the 5 residential towers and street retail.

DP architects (Shanghai) - position Senior architect 2016

Designed the facades of the retail pavilions alongside the beach.

The project contains a Hard Rock Hotel with a exterior and interior swimming pool, a big shopping mall surrounded by small retail shop and restaurants and the inner oval shape has luxury shops and dining.

Powerhouse Company - position bim modelleur 2017

Worked on the final drawings of Remisehof at the Laan op Zuid Rotterdam.

ZeroLogic architects - position junior architect 2017 Designed the roofgarden for the client.

ZeroLogic architects - position junior architect 2018

Designed the villa for a client in Almere.

Puresight (Shanghai) - position Senior design manager 2016 Designed the showroom for Geely motors.

GEELY MOTORS appointed us to design a EV flagship store for GEELY brand, it is a brand that unifies 3 previous brands into one. My task was to design the whole new concept, exterior and interior for the competition held in February. The concept was a box that has a part which is a grand opening in the façade facing a busy street.

DP architects (Shanghai) - position Senior architect 2016

Designed the lobby interior for an office building.

STEPHENSONSTRAAT - INTERIOR DESIGN 2021

House interior renovation

BEGANE

STEPHENSONSTRAAT - INTERIOR DESIGN 2021

House interior renovation

House extension

BERGWEG -

LUCHTFOTO LOCATIE

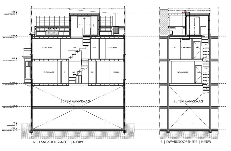
BERGWEG - RENOVATION 2021-2023

SHOWROOM WALL DESIGN 2023-2024

Showroom wall design for a sport brand

SHOWROOM WALL DESIGN 2023-2024

Showroom wall design for a sport brand

CML628 RENOVATION DESIGN 2024

House interior design

CML628 RENOVATION DESIGN 2024

House interior design

Turn static files into dynamic content formats.

Create a flipbook
Issuu converts static files into: digital portfolios, online yearbooks, online catalogs, digital photo albums and more. Sign up and create your flipbook.
My first document by pwdastudio - Issuu