Schedule at a Glance

Page 1

SCHEDULE-AT-A-GLANCE – PSATS’ 2024 Educational Conference & Exhibit Show, April 14-17

SUNDAY, APRIL 14, 2024

8 a.m.-4 p.m.

Pre-Conference Workshop Check-In — Confection Lobby (lower level)

8 a.m.-6 p.m.

Exhibitor Check-In — Great American Lobby, Information Desk, Chocolate Lobby

9 a.m.-3:30 p.m.

Workshop (additional fee required)

• PAAZO Spring Educational Seminar — Magnolia B, C & D (separate registration required at PAAZO.org)

9 a.m.-4 p.m.

Workshop (additional fee required)

• TEMA Emergency Management Seminar — Wild Rose A & B (separate registration required at tema.psats.org)

9:30 a.m.-6:30 p.m.

PSATS Store and Member Lounge — Cocoa Suites 4 and 5 New-Bee Hive — Cocoa Suite 4

10 a.m.-4 p.m.

Workshop — (additional fee required)

• What’s the Buzz? Get in the Know as a Secretary/Administrator — Cocoa Suites 2 & 3 (separate registration required at learn.psats.org)

10 a.m.-7 p.m.

Conference Check-In — Chocolate Lobby

10:30-11:30 a.m.

Non-Denominational Worship Service — Cocoa Suite 6

11:30 a.m.-2 p.m.

Lunch Service Inside — (fee) Great American Lobby

Noon-5 p.m.

Food Trucks — (fee) Outside

Noon-10 p.m.

Hotel Shuttle Buses — Chocolate Lobby portico

1-4 p.m.

Workshops

• Current Issues in Municipal Police Department Management — Cocoa Boardroom (separate registration required at learn.psats.org)

• Tips and Tricks for QuickBooks — Magnolia A (separate registration required at learn.psats.org)

1-5 p.m.

Exhibits — Great American Hall, Chocolate Lobby, and Outside

2-4 p.m.

Workshop (no additional fee)

• Roadmasters Roundtable — Crystal A

5:15-6:15 p.m.

First-Timers Meet-and-Greet — Aztec Room

6:30-8 p.m.

Exhibit Hall Reopens

Welcome Reception with Exhibitors — Great American Hall (free)

8-9 p.m.

Dessert with Dave — Aztec Room

MONDAY, APRIL 15, 2024

7 a.m.-5:30 p.m.

Conference Check-In — Chocolate Lobby, Information Desk

7 a.m.-4:30 p.m.

Exhibitor Check-In — Great American Lobby

7 a.m.-5:30 p.m.

PSATS Conference Information Desk Open — Chocolate Lobby

PSATS Store and Member Lounge — Cocoa Suites 4 and 5

New-Bee Hive — Cocoa Suite 4

7 a.m.-10 p.m.

Hotel Shuttle Buses — Chocolate Lobby Portico

7:30 a.m.

Breakfast with the Exhibitors — Great American Hall Donuts with Dave — Cocoa Suite 1 & Cocoa Terrace

7:30-10 a.m.

Breakfast Service — Outside, food truck closest to the Chocolate Lobby portico

7:30 a.m.-4 p.m.

Exhibits — Great American Hall, Chocolate Lobby, and Outside

8:30-10:30 a.m.

General Session — Chocolate Ballroom

• Opening Ceremony

• Parade of Flags

• Speakers:

– Wendell Cox, Land Use Consultant

– PSATS President A.J. Boni

– Gov. Josh Shapiro (invited)

• PSATS Excellence Awards Ceremony:

– Road and Bridge Safety Improvement Awards

– PennDOT Build a Better Mousetrap Award

– Governor’s Awards for Local Government Excellence

– Excellence in Intergovernmental Cooperation Award

– Outstanding Citizen Communication Awards

– Recognition of Graduates of the PA Municipal Government Academy (PMGA)

– President’s Leadership Awards

8:30-11:30 a.m.

Township Engineers Seminar — Magnolia A (separate registration required at engineers.psats.org)

9:30 a.m.-3:30 p.m.

Township Solicitors Seminar — Hotel Hershey, Garden Terrace Ballroom East (separate registration required at solicitors.psats.org)

10:45-11:55 a.m.

Workshop Session #1

Township Population and Managers Roundtables — Aztec, Nigerian, and Trinidad Rooms; Cocoa Terrace and Cocoa Suites 1, 2 & 3 (Check Program Book and/or Mobile App for specific locations)

11 a.m.-4 p.m.

Food Trucks — (fee) Outside

11:30 a.m.-2 p.m.

Lunch Service Inside — (fee) Great American Lobby

1:15-2:25 p.m.

Workshop Session #2

• Act 111 Arbitrations – What’s Your Message? — Cocoa Suite 1

• Best Practices in Volunteer Fire Department Management — Cocoa Terrace

• The Decider Guide: When to Use Cooperative Purchasing — Magnolia C

• Freedom of Speech & Public Officials: What Crosses the Line? — Trinidad Room

• Highway Occupancy Permit Basics for Municipalities — Empire C PMGA

• How to Impose Effective Disciplinary Action — Magnolia A

• How to Repair Roads for Half the Cost – A Panel Discussion — Aztec Room

• How to Survive – and Thrive – as a Municipal Administrator — Cocoa Suite 2

• Insurance 101: Choosing the Right Coverage — Tower Suite 1

• An Introduction to the Safe System Approach to Speed Management — Wild Rose B

• Leveraging GIS for Effective Stormwater Management — Empire D

• Livability – Blending Practical Needs and Community Wants — Cocoa Suite 6

• Planning for Agri-/Ecotourism: Barn Weddings, Trails & More — Magnolia B PMGA

• Right-To-Know Law and Sunshine Act Update — Nigerian Room

• Self-Performed Bridge Replacement: Premium Assets Under Budget — Wild Rose A

• Stormwater Management Fails: Don’t Make the Same Mistakes — Cocoa Boardroom PMGA

• Williams Makes Clean Energy Happen Safely — Tower Suite 2

2:45-3:55 p.m.

Workshop Session #3

• AI in Townships: ChatGPT and Beyond — Magnolia B

• Best Practices for Budget Preparation — Crystal A

• Best Practices in Police Department Management — Wild Rose B PMGA

• Building a Successful Retirement Plan for Your Municipality — Tower Suite 1

• Collaborative Enforcement of Posted/Bonded Roadway Programs — Magnolia D PMGA

• Crazy But True – Zoning and Enforcement From the Trenches — Cocoa Suite 2 PMGA

* Workshops in red text are eligible for PMGA credits. Consult your program for the details.

• Customized Recreation: Designing Facilities for Diverse Community Goals — Cocoa Suite 6

• EV Charging – Is Your Municipality Ready? — Wild Rose A

• Evolving Best Practices in Bid Management — Cocoa Boardroom

• Infrastructure and Public Works: The Heart of Your Township — Empire D

• New Age Necessities (and Nightmares) for Municipalities — Cocoa Terrace

• A New Normal for Disaster Recovery and the Municipal Leader’s Role — Magnolia C PMGA

• PENNVEST: Water Project Financing Overview and Updates — Empire C

• PLGIT: A Focus on Investment Safety and Service — Tower Suite 2

• QuickBooks Roundtable — Empire A

• Write This Down: Employment Documents and What Goes in Them — Magnolia A PMGA

• The Year in Review: Labor and Employment Potpourri — Cocoa Suite 1

4:15-5:25 p.m.

Workshop Session #4

• ATV Regional Trail Connector Pilot — Magnolia B (ends at 4:45 p.m.)

• Codification: An Important Building Block of Good Governance — Wild Rose B (ends at 4:45 p.m.)

• Dealing with the Habitual Leave-Taker — Cocoa Suite 1

• Funding Park Rehabilitation and Development Projects — Cocoa Suite 6

• A Guide to Outsourcing Delinquent Collections — Tower Suite 1

• Land Use & Zoning Law Update 2024 — Cocoa Terrace

• PennDOT Multimodal Transportation Fund — Empire C

• Planning for Trucks in Your Township — Magnolia A PMGA

• Proactive Planning and Its Impact on Securing Grant Funding — Magnolia C

• Speeding on Rural Township Roads — Empire A

• Taking Township Events to the Next Level — Cocoa Suite 2 PMGA

• What You Need to Know about Drones, AVs, and Other Tech — Empire D

• When ‘The Big One’ Hits Home — Wild Rose A

5:30-6:30 p.m.

First-Timers Reception with PMGA Members

— Crystal A

7-9 p.m.

Stars and Stripes Soirée — Chocolate Ballroom (additional $35 fee)

Printing sponsored by:

Agenda continues on other side Þ
NOTETHE OPENING TIME!
CHECKYOUR MOBILEAPP FORNEW INFO!

SCHEDULE-AT-A-GLANCE – PSATS’ 2024 Educational Conference & Exhibit Show, April 14-17

TUESDAY, APRIL 16, 2024

7 a.m.-5 p.m.

Conference Check-In — Chocolate Lobby, Information Desk

PSATS Store and Member Lounge — Cocoa Suites 4 and 5

New-Bee Hive — Cocoa Suite 4

7 a.m.-2 p.m.

Exhibitor Check-In — Great American Lobby

7 a.m.-11 p.m.

Hotel Shuttle Buses — Chocolate Lobby portico

7:30-10 a.m.

Breakfast Service — (fee) Outside, food truck closest to the Chocolate Lobby portico

7:30 a.m.

Breakfast with the Exhibitors — Great American Hall

7:30 a.m.-1:30 p.m.

Exhibits — Great American Hall, Chocolate Lobby, and Outside

8:30-11:30 a.m.

Township Engineers Seminar — Magnolia A (separate registration required at engineers.psats.org)

8:30 a.m.-noon

General Session — Chocolate Ballroom

• Speakers:

– David Sanko, PSATS Executive Director

– Lt. Col. George Bivens, Pennsylvania State Police Head of Operations

– Pa. House Majority Leader Matthew Bradford

– Senate Appropriations Chair Scott Martin

• Business Session: Committee Reports, Elections, and Resolutions Voting

11 a.m.-4 p.m.

Food Trucks — (fee) Outside

11:30 a.m.-2 p.m.

Lunch Service Inside — (fee) Great American Lobby

Noon-1 p.m.

Secretaries-Managers Thank-You Luncheon — Empire Ballroom and Wild Rose A (Check Program Book and/or Mobile App for specific locations) (Note Luncheon will be followed by the SecretariesManagers Q&A in Workshop Session #5.)

1:15-2:25 p.m.

Workshop Session #5

• ABCs of Liquid Fuels Tax Funds — Trinidad Room

• Are EVs Right for Your Municipal Fleet? — Magnolia C

• Case Studies in Code Enforcement — Aztec Room

• Conservation Collaboration — Tower Suite 1

• Developing a Stormwater Control Measure Compliance Program — Cocoa Suite 1

• Enforcing and Renewing Your Cable Franchise — Cocoa Suite 6

• FEMA/PEMA Hazard Mitigation Planning Update — Magnolia B

• Fire & EMS Issues in Your Township — Nigerian Room

• Getting Ready for Decarbonization — Tower Suite 2 (ends at 1:45 p.m.)

• Grid-Scale Solar: Planning for the Coming Solar Wave — Cocoa Suite 2 PMGA

• How to Strategically Approach Funding Procurement — Crystal A

• Living With Logistics — Cocoa Boardroom

• Midblock/Trail Crossing Policy and Township Applications — Magnolia D

• New Developments in Employment Law — Cocoa Terrace

• OK, I Am TIM-Trained – Am I Safe Now? — Empire D PMGA

• Secretaries-Managers Q&A — Empire A

• Zoning 101 & 201: The Why and How of Zoning — Magnolia A PMGA

1:30 p.m.

Exhibits Close

2:45-3:55 p.m.

Workshop Session #6

• 2023 Year in Review for Zoning — Magnolia A

• Avoid Costly Mistakes: Do Your Homework for Capital Projects — Aztec Room

• Bringing Innovation to the Field — Magnolia D (ends at 3:15 p.m.)

• Communicating and Navigating Through Conflict — Empire A PMGA

• COSTARS Matchmaking – Which Supplier is Right for You? — Magnolia B

• Electric Vehicles: PennDOT/DEP Updates and Resources — Cocoa Boardroom

• Fundraising & Event Planning – It’s Not as Hard as it Seems — Wild Rose A

• Grant Policy for Municipal Funding — Trinidad Room

• Increasing Local Capacity for Parks and Recreation — Magnolia C PMGA

• Let’s Make A Deal: Collective Bargaining for Municipalities — Cocoa Terrace

• Marcellus Shale: Powering Pennsylvania’s Economic and Environmental Future — Tower Suite 2

• Mock Public Meeting: Tips and Traps for Contentious Times — Crystal A PMGA

• Municipal Law Update — Nigerian Room

• PennSTART – Pa. Safety Transportation & Research Track — Empire D

• Pennsylvania MS4 Collaboration Toolkit — Cocoa Suite 1

• Promoting and Managing Broadband Expansion — Cocoa Suite 6

• Sustaining the Volunteer Fire Service Through Partnerships — Cocoa Suite 2 PMGA

• Understanding Fair Market Value for Water/Wastewater Assets— Tower Suite 1 4:15-5:25 p.m.

Workshop Session #7

• 3 Keys to Purchasing Quality Equipment for Your Community (ends at 4:45 p.m.) — Empire D

• ACRE 101 — Cocoa Terrace

• Creating a 1-Page Budget Status Report Folks Can Understand — Empire A PMGA

• The Ethics Act: A Short Guide on Staying Out of the News — Nigerian Room

• Fraud in the Workplace & Internal Controls to Prevent Fraud — Cocoa Suite 1

• GIS for Act 537 Compliance (On-Lot Sewer Disposal Systems) (ends at 4:45 p.m.) — Magnolia D

• Making Your Roads Safer Through a Positive Guidance Approach (ends at 4:45 p.m.) — Magnolia C

• PSATS Legislative Update — Trinidad Room

• Safety & Security in the Natural Gas Industry — Cocoa Suite 6

• Stabilizing Pavement Subgrades — Magnolia B

• Supervisors Have Rights, Too! — Wild Rose A

• A Township Resource: PennDOT Municipal Services (ends at 4:45 p.m.) — Crystal A

• Using Technology for Smarter Pavement Management — Magnolia A PMGA

6-7:30 p.m.

Legislative Grassroots Reception — Great American Hall (Free, but registration required. Hors d’oeuvres and beverages.)

7:45-9:45 p.m.

PSATS Bingo — Aztec Room (additional $30 fee)

WEDNESDAY, APRIL 17, 2024

7:30 a.m.

Donuts with Dave — Cocoa Suite 1 and Cocoa Terrace

8 a.m.-Noon

Conference Check-In — Chocolate Lobby, Information Desk

8-11 a.m.

PSATS Store and Member Lounge — Cocoa Suites 4 and 5 New-Bee Hive — Cocoa Suite 4

8:30 a.m.-Noon

General Session — Chocolate Ballroom

• Speaker: Jessica Shirley, Acting Secretary of Environmental Protection

• A Legislative Forum on Local Issues

– Sen. Rosemary Brown

– Sen. Wayne Langerholc

– Rep. Christine Sappey

– Rep. Paul Takac

• Youth Awards

• Scholarship Awards

• Keynote Speaker: Anthony “AB” Bourke, former F-16 fighter pilot with the U.S. Air Force, CEO and Founder of Mach 2 Consulting

Noon

Conference Adjourns (Distribution of Attendance Certificates)

Be sure to visit our exhibitors!

Don’t forget to set aside time to meet with our indoor and outdoor exhibitors.

Sunday: 1-5 p.m., 6:30-8 p.m.

Monday: 7:30 a.m.-4 p.m.

Tuesday: 7:30 a.m.-1:30 p.m.

* Workshops in red text are eligible for PMGA credits. Consult your program for the details.

Need Help Getting Around the Lodge?

Let PSATS’ Conference Ambassadors be your guide. They’re easy to find: Look for folks wearing the Ambassador ribbons.

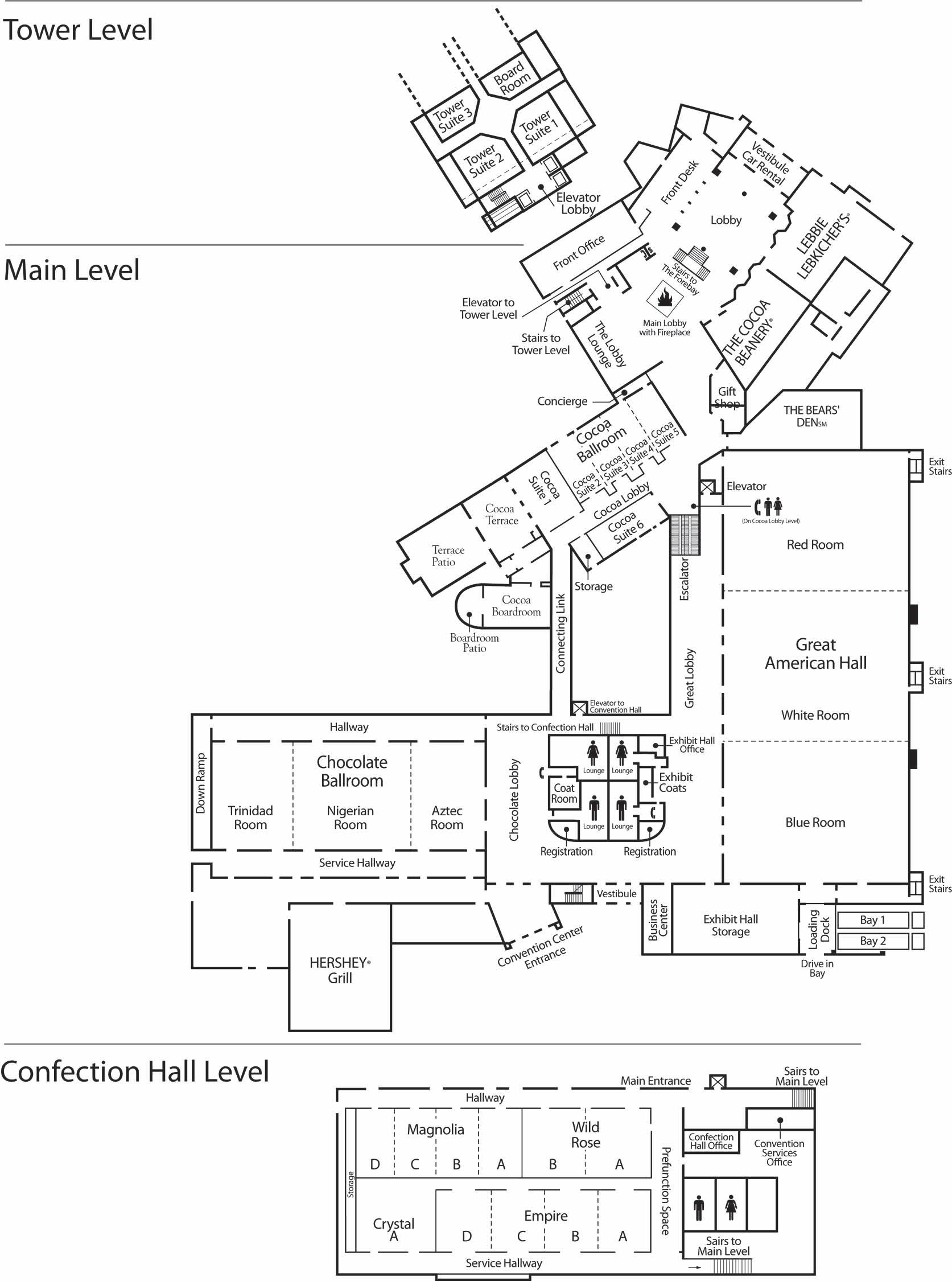
TowerSuite4

Tower Level

TOWER LEVEL

SPONSOR PRESENTATIONS

TowerSuite3

Suite1 TowerSuite2

Main Level

MAIN LEVEL

COCOA SUITES 1, 2, 3, 6 & COCOA TERRACE

COCOA SUITES

Monday & Tuesday workshops RevelryStairsto

4 & 5 PSATS Store, Bee Hive, and Member Lounge

COCOA SUITE 1 & COCOA TERRACE

Monday & Wednesday Donuts with Dave

CHOCOLATE

BALLROOM

Sunday Dessert with Dave; Monday, Tuesday, & Wednesday General Sessions; Monday & Tuesday workshops; Monday “Stars & Stripes Soirée;” and Tuesday Bingo

COUNTY EXHIBIT & CONFERENCE CHECK-IN SHUTTLE TRACKING STATION

Confection

Hall Level (Downstairs)

CONFERENCE INFORMATION DESK

The Bears’ DenSM

GREAT AMERICAN HALL Indoor Exhibits; Sunday Welcome Reception; Monday and Tuesday Continental Breakfasts; and Tuesday Legislative Grassroots Reception EXHIBITOR CHECK-IN DESK

CONFECTION HALL LEVEL (Downstairs) CRYSTAL A

D C B A B A WORKSHOPS SundayTuesday

EMPIRE SUITES

Monday First-Timers Meet & Greet with PMGA

Tuesday Secretaries-Managers Luncheon

SUNDAY PRE-CONFERENCE WORKSHOP CHECK-IN

CONFERENCE OFFICE/ CHECK-IN CocoaBeanery ® Fire& Grain
Tower
Bus. Office/ Concierge
Stairs to Main Level Stairs to Main Level
Hershey® Grill
LODGE FRONT DESK MORE EXHIBITS
ATM
Stacks
CHECKYOUR MOBILEAPP FORNEW INFO! Note: Schedule is subject to change. Information was current at presstime.

Turn static files into dynamic content formats.

Create a flipbook
Issuu converts static files into: digital portfolios, online yearbooks, online catalogs, digital photo albums and more. Sign up and create your flipbook.
Schedule at a Glance by PSATS - Issuu