
Date: 02/05/2026
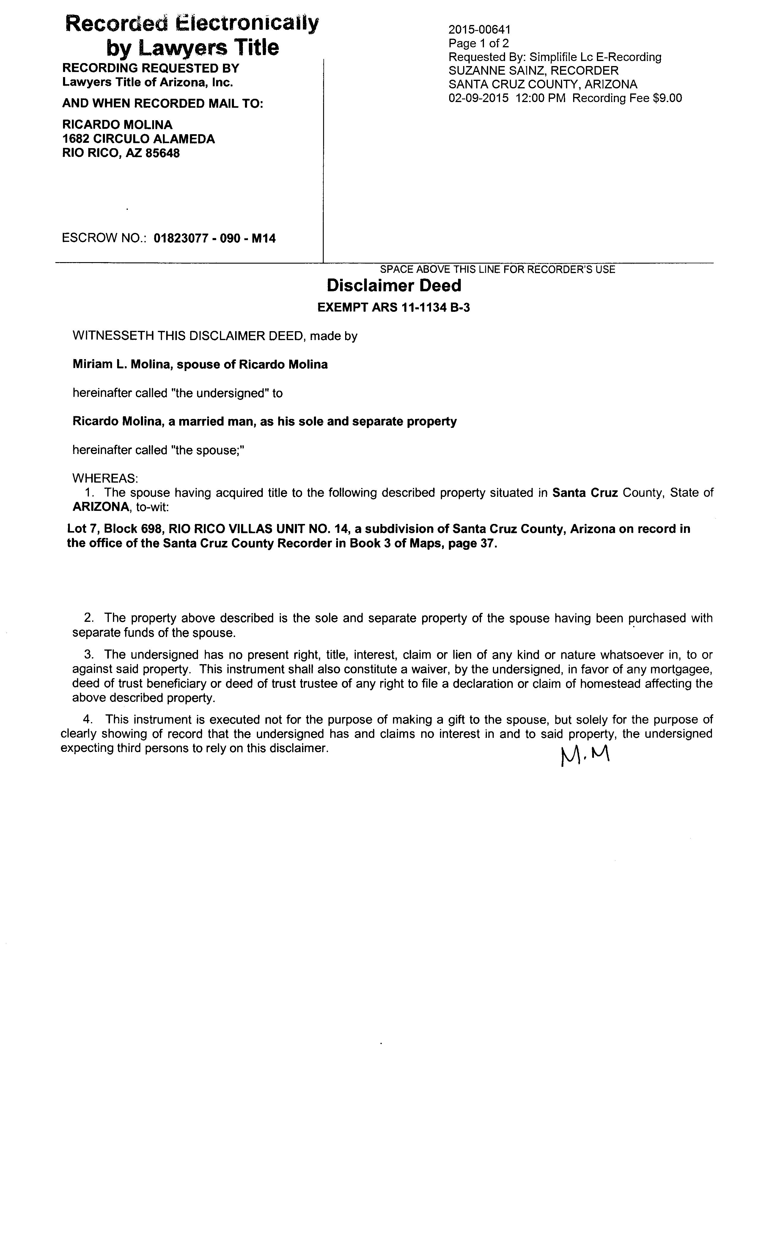
Property: 1682CIRCULOALAMEDA,RIO RICO,AZ85648-7324
APN: 125-01-294
County: SANTACRUZ
PreparedBy: FirstAmericanTitle CustomerServiceDepartment propertyresearch@firstamcom

WIRE FRAUD ALERT THINK DIFFERENTLY
Email-based, real estate fraud schemes are on the rise. One common scenario is altering wiring instructions with the intention of rerouting funds.
Keeping this in mind, First American Title is changing the way we receive payment information. It is imperative that we are familiar with the people in our transactions.
RELYING ON EMAIL ALONE IS NO LONGER AN OPTION.
Fraudsters often use email to send falsified wire instructions to unsuspecting victims. Please warn your buyers and sellers to only follow wire instructions they receive personally from First American Title.
Additionally, we will not accept disbursement instructions for seller or buyer funds via email OR from any third party (attorney, real estate agent, etc).
ALTERNATIVE INSTRUCTIONS?
If your buyer or seller receives alternative wiring instructions that appear to be from First American Title, make sure they contact their escrow officer at a trusted phone number for confirmation.
Know that our wiring instructions do not change so any communication is suspect. Our banking institution is First American Trust.
IN SHORT – wire instructions will not be accepted by email. New wire instructions must be hand-carried or uploaded to the First American Secure Portal.
Thank you for joining First American Title in fostering a secure real estate transaction process. Have questions or concerns? Please contact our office or your escrow officer.

LIMITATION OF LIABILITY FOR INFORMATIONAL REPORTS
IMPORTANT -- PLEASE READ CAREFULLY:
This report is not an insured product or service or a representation of the condition of title to real property. It is not an abstract, legal opinion, opinion of title, title insurance commitment or preliminary report, or any form of Title Insurance or Guaranty. This report is issued exclusively for the benefit of the Applicant therefor and may not be used or relied upon by any other person. This report may not be reproduced in any manner without First Americans prior written consent. First American does not represent or warrant that the information herein is complete or free from error, and the information herein is provided without any warranties of any kind, as-is, and with all faults. As a material part of the consideration given in exchange for the issuance of this report, recipient agrees that First Americans sole liability for any loss or damage caused by an error or omission due to inaccurate information or negligence in preparing this report shall be limited to the fee charged for the report. Recipient accepts this report with this limitation and agrees that First American would not have issued this report but for the limitation of liability described above. First American makes no representation or warranty as to the legality or propriety of recipient's use of the information herein.

SubjectPropertyLocation
PropertyAddress 1682CIRCULOALAMEDA
ReportDate:02/05/2026
OrderID:R208599974 City,State&Zip RIORICO,AZ85648-7324
County SANTACRUZCOUNTY
MailingAddress 1682CIRCULOALAMEDA,RIORICO,AZ85648-7324
CensusTract 966101
ThomasBrosPg-Grid
LegalDescriptionDetails LotNumber:7Block:698SubdivisionName:SUBRIORICOVILLASSec/Twn/Rng/Mer:SEC04TWN22SRNG13EBriefDescription:SUBRIORICO




SubjectPropertyLocation
PropertyAddress 1682CIRCULOALAMEDA
ReportDate:02/05/2026
OrderID:R208599975 City,State&Zip RIORICO,AZ85648-7324
AreaSalesAnalysis
TotalAreaSales/Count $3,060,748/11














SubjectPropertyLocation
PropertyAddress
1682CIRCULOALAMEDA
City,State&Zip RIORICO,AZ85648-7324
County SANTACRUZCOUNTY
MailingAddress 1682CIRCULOALAMEDA,RIORICO,AZ85648-7324
OwnerName MOLINARICARDO
ParcelNumber 125-01-294
ReportDate:02/05/2026
OrderID:R208599976


SubjectPropertyLocation
PropertyAddress 1682CIRCULOALAMEDA
ReportDate:02/05/2026
OrderID:R208599977 City,State&Zip RIORICO,AZ85648-7324
County SANTACRUZCOUNTY
MailingAddress 1682CIRCULOALAMEDA,RIORICO,AZ85648-7324 ParcelNumber 125-01-294
THISREPORTISINTENDEDFORUSEBYYOUASANENDUSERSOLELYFORYOURINTERNALBUSINESSPURPOSES.YOUSHALLNOTRESELL,RELICENSEORREDISTRIBUTETHISREPORT,INWHOLEORIN PART THEUSEOFTHISREPORTBYANYPARTYOTHERTHANYOURSELFFORANYPURPOSEISSTRICTLYPROHIBITED.THISREPORTISPROVIDEDAS-ISWITHOUTWARRANTYOFANYKIND,EITHEREXPRESS ORIMPLIED,INCLUDINGWITHOUTLIMITATION,ANYWARRANTIESOFMERCHANTABILITY,NON-INFRINGEMENT,ORFITNESSFORAPARTICULARPURPOSE.INTERCONTINENTALEXCHANGE,INC.(ICE)SHALL HAVENOLIABILITYINCONTRACT TORT,OROTHERWISEARISINGOUTOFORINCONNECTIONWITHTHISREPORT.ICEDOESNOTREPRESENTORWARRANTTHATTHEREPORTISCOMPLETEORFREEFROM ERROR.YOUUNDERSTANDANDACKNOWLEDGETHATTHEAVAILABILITY,COMPLETENESSANDFORMATOFTHEDATAELEMENTSMAYVARYSUBSTANTIALLYFROMAREA-TO-AREA.THEINFORMATION CONTAINEDINTHISREPORTISDERIVEDFROMPUBLICLYAVAILABLESOURCESFORTHESUBJECTPROPERTYORCOMPARABLEPROPERTIESLISTEDABOVEANDHASNOTBEENINDEPENDENTLYVERIFIEDBY ICETHROUGHANYFORMOFINSPECTIONORREVIEW THISREPORTDOESNOTCONSTITUTEANAPPRAISALOFANYKINDANDSHOULDNOTBEUSEDINLIEUOFANINSPECTIONOFASUBJECTPROPERTYBYA LICENSEDORCERTIFIEDAPPRAISER.THISREPORTCONTAINSNOREPRESENTATIONS,OPINIONSORWARRANTIESREGARDINGTHESUBJECTPROPERTY'SACTUALMARKETABILITY,CONDITION(STRUCTURAL OROTHERWISE),ENVIRONMENTAL,HAZARDORFLOODZONESTATUS,ANDANYREFERENCETOENVIRONMENTAL,HAZARDORFLOODZONESTATUSISFORINFORMATIONALPURPOSESONLYANDSHALLBE INDEPENDENTLYVERIFIEDBYTHEENDUSER.THEINFORMATIONCONTAINEDHEREINSHALLNOTBEUTILIZED:(A)TOREVIEWORESTABLISHACONSUMER'SCREDITAND/ORINSURANCEELIGIBILITYORFOR ANYOTHERPURPOSETHATWOULDCAUSETHEREPORTTOCONSTITUTEA"CONSUMERREPORT"UNDERTHEFAIRCREDITREPORTINGACT,15U.S.C.§1681ETSEQ.;OR(B)INCONNECTIONWITH CERTIFICATIONORAUTHENTICATIONOFREALESTATEOWNERSHIPAND/ORREALESTATETRANSACTIONS.ADDITIONALTERMSANDCONDITIONSSHALLAPPLYPURSUANTTOTHEAPPLICABLEAGREEMENT
Copyright CONFIDENTIAL,PROPRIETARYAND/ORTRADESECRET TMSM®TRADEMARK(S)OFINTERCONTINENTALEXCHANGE,INC.ANDITSSUBSIDIARIESANDAFFILIATES. ©2026INTERCONTINENTALEXCHANGE,INC.ALLRIGHTSRESERVED.













