Literature Review and Case study of a Redevelopment Project

Page 1

REDEVELOPMENT OF MACHHA BHAUDI

URBAN DECAY/ BLIGHT

PROCESS OF DECAY WHEREBY PREVIOUSLY FUNCTIONING CITY, OR PART OF THE CITY, FALLS INTO DISREPAIR AND DECREPITUDE.

URBAN REDEVELOPMENT

DEVELOPMENT ON THE SITE THAT HAS PRE EXISTING USES BY CREATING NEW URBAN STRUCTURE IN POOR QUALITY NEIGHBORHOOD WITH NEW INTERVENTIONS FOR PHYSICAL ECONOMIC, SOCIAL AND ENVIRONMENTAL IMPROVEMENT.

TYPES

OF REDEVELOPMENT

▪ URBAN INFILL: ANY NEW CONSTRUCTION ON THE SITE THAT ALREADY HAS PREEXISTING USES IS KNOWN AS URBAN INFILL.

▪ ADAPTIVE REUSE: THE PROCESS OF LAND DEVELOPMENT TO REVITALIZE PHYSICAL, ECONOMIC AND SOCIAL FABRIC OF URBAN SPACE IS KNOWN AS ADAPTIVE REUSE.

▪ MIXED- USE REDEVELOPMENT: DEVELOPMENT CONTAINING MULTIFUNCTIONAL APPROACHES THROUGH RESIDENTIAL, COMMERCIAL USES

▪ GREENFIELD- REAL ESTATE CONSTRUCTION PROJECT ON PREVIOUSLY UNDEVELOPED LAND OR RURAL AREA THAT WAS PREVIOUSLY USED FOR AGRICULTURAL OR LANDSCAPE PURPOSE.

TOOLS AND TECHNIQUES

▪ FILTRATION

▪ BOOT-STRAP STRATEGY

▪ JOINT DEVELOPMENT MODEL

▪ TOWN PLANNING SCHEME: CREATING BUILDINGS AND ENVIRONMENTS TO MEET THE NEEDS OF THE PUBLIC

INTRODUCTION TO MACHHA BHAUDI

MACHHA BHAUDI IS LOW LAND IN TERMS OF PHYSICAL DIMENSIONS DUE TO WHICH THE WASH WATER SURROUNDING USED TO GET COLLECTED AS FLASH FLOOD ALSO, IN THE PAST TIME BEFORE THE ESTABLISHMENT OF DHARAN MUNICIPALITY, MACHHA BHAUDI AREA WAS REGARDED AS THE FIRST SETTLEMENT AREA AND A CENTER FOR ECONOMIC ACTIVITIES OF DHARAN CITY BUT NOW IT IS A QUIET, LESS VIBRANT AREA WITH MORE RESIDENTIAL UNITS AND LESS COMMERCIAL ACTIVITIES APPROACHING TO MIXED USED AS A TREND OF DEVELOPMENT.

SITE INFORMATION

▪ SITE AREA: 21837.5 SQ. M

▪ ALTITUDE :310M

▪ SLOPE DIFFERENCE: 11 M

PROBLEMS OF SITE

▪ UNDEVELOPED INNER CORE CREATING CERTAIN DEAD ENDS AS INTERNAL STREETS SOLID WASTE, SEWAGE OR WASTE WATER MANAGEMENT PROBLEMS

STREETS LACKING ENCLOSURE, ACTIVITY AND MOVEMENT WITH NO PROPER FOOTPATHS AND PARALLEL PARKING SPACES.

▪ BROWN FIELD- DEVELOPMENT OF PREVIOUSLY USED FOR INDUSTRIAL PROPERTIES WHICH HAS CAUSED BOTH LAND AND ENVIRONMENTAL CONTAMINATION DUE TO HAZARDOUS WASTE

▪ GENTRIFICATION- DEVELOPMENT OF AN AREA BY DISPLACEMENT OF WORKINGCLASS RESIDENTS OF A NEIGHBORHOOD BY WEALTHIER PROFESSIONALS

▪ GUIDED URBAN DEVELOPMENT PLANS: REFERS TO SET OF GUIDELINES OR BYELAWS THAT SPECIFIES NORMS AND RULES

▪ LAND POOLING AND RECONSTITUTION: MANAGEMENT OF URBAN-FRINGE LANDS TO CONSOLIDATES A SELECTED GROUP OF LAND PARCELS FOR PROVISION OF INFRASTRUCTURE DEVELOPMENT

▪ NO. OF HOUSES- 85 INSIDE, 177 (WITHIN NEIGHBORHOOD)

PHYSICAL CONTEXT

▪ OPEN SPACE: 60%

▪ BUILT FORM: 40%

SOCIO- CULTURAL ASPECT

▪ RELIGION: HINDU, BUDDHIST

▪ CASTE MAJORITY: RAI, LIMBU,NEWAR

▪ CASTE MINORITY: BRAHMIN, CHHETRI, TAMANG

▪ POPULATION: 815 PERSON APPROX.

▪ POPULATION DENSITY:

▪ 0.0372 PEOPLE/ SQ. M

LACK OF DEDICATED PUBLIC SPACES CAUSING DECLINATION OF CULTURAL RICHNESS

OUR OBJECTIVES

▪ TO DEVELOP INTEGRATED MIX-USED DEVELOPMENT WITH PROPORTIONATE APPROACHES SOLVING THE HAPHAZARD PLANNING.

▪ TO REVIVE THE LOST CHARM OF JATRAS, EVENTS AND RITUALS PROVIDING PUBLIC OPEN SPACES AND PROPER STREETS TO PERFORM IT IN A BIGGER AND BETTER WAY

▪ TO DEVELOP SMALL SCALE COMMERCIAL ACTIVITIES OF MACHHA BHAUDI IN A MANAGED WAY TO SUPPORT INCOME GENERATING ACTIVITIES

1

COMMERCIAL PLACE REDEVELOPMENT

COMMERCIAL SPACE REDEVELOPMENT MEANS THAT MODIFING THE CURRENT STATE OF COMMERCIAL SPACES THROUGH RIGHT DESIGN ATTRITUBES MAKING SENSE OF PLACE ,THAT EHNANCE THE USEREXPERIENCE AND LEADS TO GROWTH OF ECONOMY OF LOCAL PEOPLE.

DESIGN GUIDELINES FOR COMMERCIAL PLACE

PEDESTRAIN FRIENDLY NEIGHBORHOODS

ONE OF THE DISTINCTIONS OF MOST OF OUR COMMERCIAL NEIGHBORHOODS IS THEIR USABILITY BY PEDESTRIANS

MAIN BUILDING ENTRIES

MAIN ENTRIES SHOULD OCCUR ALONG STREET SIDE OF BUILDINGS

ARCHITECTURAL COMPATIBILITY MASS, BULK, SCALE

COMMERCIAL PROJECTS SHOULD BE ARCHITECTURALLY COMPATIBLE WITH THE EXISTING FABRIC OF THE COMMERCIAL NEIGHBORHOOD. PROJECTS SHOULD INCLUDE ARCHITECTURAL STYLES AND FORMS THAT HARMONIZE WITH THE BUILDINGS THAT EXIST IN THE NEIGHBORHOOD

THE TERM MASS REPRESENTS THE OVERALL APPEARANCE OF THE BUILDING AND ITS APPARENT SIZE AND SOLIDITY MASS INCLUDES ACTUAL AND APPARENT COMPONENTS. IT DOES NOT NECESSARILY REFER TO THE ACTUAL SIZE OF A BUILDING, BUT TO THE APPARENT SIZE

MANAGING MASS AND BULK

MANAGING THE MASS AND BULK OF A BUILDING IS A FUNDAMENTAL DESIGN TASK THAT MUST BE CONSIDERED FROM THE EARLIEST PART OF THE DESIGN PROCESS. IT IS IMPORTANT THAT DESIGNERS CONSIDER THESE CRITERIA AS SOON AS PLANS BEGIN TO EMERGE AS PLANS EVOLVE, TENANT SPACE PLANS AND ARRANGEMENTS MAY CHANGE TO ACCOMMODATE EXTERIOR CONSIDERATIONS.

PARKING

STREET FRONTAGES SHOULD NOT BE DOMINATED BY PARKING AND DRIVEWAYS WHERE PARKING IS REQUIRED IT SHOULD OCCUR AT THE REAR OR SIDES OF A PROJECT.

VISUALLY PROMINENT SITES

ON VISUALLY PROMINENT SITES, THE BUILDING HAS AN IMPORTANT RESPONSIBILITY FOR DEFINING THE CHARACTER OF THE SURROUNDING NEIGHBORHOOD. PROJECTS ON SUCH SITES SHOULD CLEARLY RESPOND TO THE STREET AND TO THE ADJACENT ARCHITECTURE

VISUALLY PROMINENT SITES

PRIMARY AND SECONDARY ELEMENTS

BEYOND MAKING BUILDINGS SIMPLY SMALLER, THE VOLUME OF A BUILDING CAN BE ARTICULATED INTO PRIMARY AND SECONDARY VOLUMES. BY REDUCING THE SIZE OF THE PRIMARY VOLUME AND ALLOCATING SPACE TO SECONDARY VOLUMES, THE APPARENT MASS IS REDUCED WITHOUT NECESSARILY REDUCING SPACE.

GATEWAY SITES

GATEWAY SITES DO NOT JUSTIFY MONUMENTAL BUILDINGS HUMAN SCALE IS IMPORTANT HERE AS EVERYWHERE. GATEWAY SITES DO JUSTIFY A HIGH LEVEL OF REFINEMENT IN ARCHITECTURAL DESIGN AND DETAIL DESIGN PROFESSIONALS SHOULD CONSIDER BUILDINGS AS IMPORTANT PARTS OF A LARGER COMMUNITY.

HUMAN SCALE

A HUMAN SCALE BUILDING WILL FEEL RIGHT AND WILL BE QUITE POSSIBLY UNNOTICED. A BUILDING THAT IS OUT OF SCALE WILL SEEM LARGE AND CAN MAKE THE USERS FEEL SMALL, SOMETIMES OVERPOWERED

LITERATURE
REVIEW
THIS NOT THIS 2
THIS

HOUSING:

HOUSING IS A SOCIAL UNIT, PLANNED ON NEIGHBORHOOD OR COMMUNITY PRINCIPLE.

TYPES OF HOUSING:

CLUSTER HOUSING:

• RESULTED FROM SITE PLANNING OR NEWER ZONING

• DWELLING UNITS ARE CLUSTERED INTO RELATIVELY HIGH DENSITY UNITS.

• COST SAVING CAN BE CONSIDERABLE.

MATRIX HOUSING:

• MOST INTERESTING APPLICATION OF THE ATTACHED DWELLING WITH PRIVATE COURT. THE DWELLINGS ARE ARRANGED AROUND AN INNER COURT, AND MAXIMUM DAYLIGHT PENETRATION

• SOMETIMES CALLED CARPET HOUSING

SINGLE FAMILY DETACHED HOUSING:

• LOCATED SEPARATELY & COMPLETELY INDEPENDENT SINGLE FAMILY RESIDENCES

• IT IS OFTEN DESCRIBED AS RANCH, HIGH RANCH, SPLIT LEVEL OR TWO STORIES.

URBAN

ROW HOUSING:

• THESE ARE LINE OF DWELLING UNITS, ATTACHED AT THE SIDE OR REAR BY MEANS OF COMMON WALLS.

• THEY ARE CHARACTERIZED BY GREAT ECONOMY AND ORDINARILY ROW HOUSES ARE TWO STORIES

• THEY ARE NOT ADAPTABLE TO STEEP CONTOURS AND DEFINED EITHER AS "COURT PLANS" OR "PARALLEL ROW PLAN"

DUPLEX HOUSING:

• TWO OR MORE HOUSING UNITS FORM A GROUP AND COMMON PARTY WALLS ARE JOINTLY OWNED.

SIDE TO SIDE ATTACHED

BLOCK

• LENGTH - 100-200

QUADRUPLEX HOUSING:

• THE CONSOLIDATION OF FOUR SINGLE-FAMILY HOUSES INTO ONE STRUCTURE UTILIZING COMMON WALL

• GREATER USE OF TOTAL SITE FOR OUTDOOR LIVING IS ACHIEVED.

DENSITIES BY RESIDENTIAL UNITS :

PARTY WALL

DWELLING UNIT

COURT
UNIT
DWELLING
EACH OF 4 UNIT
NO. OF BHK AREA (SQ. M.) PLOT (RO-AA-PA-DA) 2 BHK 80 0-2-2-0 3 BHK 140 0-4-2-0 5 BHK 180 0-5-3-0
LITERATURE REVIEW HOUSING
DENSITY:
STANDARDS: (108-123) P/HA
TO KVTDC:
70% 4% 6% 20% RESIDENTIAL OPEN PLOT SERVICE PLOT ROAD LINKS
INTERNATIONAL
ACCORDING
(200-205) P/HA.
SIZE:
M.
DEPTH – 40-80 M.
SIZE:
SQ. M.
PLOT SIZE DEPTH 0-2-2-0 TO 0-4-0-0 2 X WIDTH OF PLOT 0-4-0-0 TO 0-8-0-0 1.75 X WIDTH OF PLOT 0-8-0-0 TO 0-12-0-0 1.5 X WIDTH OF PLOT TYPE OF BUILDING FAR HH/HA SINGLE FAMILY ≤0.2 ≤12 TWO FAMILY DETACHED 0.3 18 ROW HOUSES 0.5 30 STACKED TOWN HOUSES 0.8 45 3 STOREY WALK-UP APARTMENTS 1.0 50 6 STOREY ELEVATOR APARTMENTS 1.4 3
PLOT
AREA: 80
FRONTAGE: 6 M DEPTH: 30- 50 M

MIXED USED REDEVELOPMENT

INTRODUCTION :

PEDESTRIAN-FRIENDLY REDEVELOPMENT THAT BLENDS OR INTEGRATE TWO OR MORE RESEIDENTIAL, COMMERCIAL, CUILTURAL ,INSTUTUTIONAL, AND/ OR INDUSTRAIAL FUNCTIONS

EVOLUTION OF MIX USED DEVELOPMENT

❑ TYPICAL EXAMPLE OF A MIXED USE COMMUNITY IN MEDIEVAL VILLAGE.

❑ CONCEPT OF ZONING IN NEW YORK CITY IN 1916.

❑ 1926 ONWARDS, LAND USE IS SEGGREGATED INTO SEPARATE DISTINCT AREAS.

❑ CLEEVELAND UNION TERMINAL (NOW CALL TOWN CITY CENTER) OPENED IN 1930. TRUE EXAMPLE

▪ TRAIN STATION

▪ HARVEY SHOPS AND RESTURANTS

▪ DEPARTMENTAL STORE

▪ 18 STOREY MEDICAL ARTS BUILDING

TYPES OF MIXED USED REDEVELOPMENT

VETICAL MIX USE REDEVELOPMENT

COMBINES DIFFERENT USES WITHIN THE SAME BUILDING PROVIDING PUBLIC USES ON THE LOWER FLOOR & PRIVATE USES ON THE UPPER FLOORS

LIVE WORK PLAY – URBAN CONCEPT

“LIVE, WORK, PLAY” HAS BECOME THE GOAL OF THE NEW MIXED-USE DEVELOPMENT.

COMPACT MIXED USE NODES REDUCE JOURNEY REQUIREMENTS AND CREATE SUSTAINABLE NEIGHBORHOODS

NEED OF MIXED USE REDEVELOPMENT

❑ URBAN SPRAWL AND LOW DESITY EXPANSIONS

❑ LARGE SCALE DEVELOPMENT OF GREEN FIELDS

❑ CREATION OF UNSAFE NEGATIVE SPACES IN THE CITY

❑ INCREASED REQUIREMENTS OF ROADS, SEWER AND WATER SSYSTEMS

❑ LACK OF VIBRANCY AND A SENSE OF PLACE

IMPORTANCE OF MIXED USE DEVELOPMENT

❑ IT ENSURES VITALITY THROUGH ACTIVITY AND DIVERSITY

❑ IT MAKES AREAS SAFER.

❑ IT REDUCES THE NEED TO TRAVEL, MAKING PEOPLE LESS RELIANT ON CARS

❑ WELCOME ENVIRONMENTAL BENEFITS.

STRATEGIES FOR MIXED USE REDEVELOPMENT

HORIZONTAL MIX USE REDEVELOPMENT REFERS TO THOSE WHERE EACH BUILDING HAS A DESIGNATED USE, WITHIN A COMPLEX OR DEVELOPMENT FILLED WITH BUILDINGS EACH WITH THEIR OWN ASSIGNED USE

WALKABLE MIX USE REDEVELOPMENT PROVIDING ALL THOSE MIXED USED FUCTIONS AT WALKABLE DISTANCES. IT CAN BE FOUND ON BOTH THE VERTICAL AND HORIZONTAL MIX USE REDEVELOPMENT

MAINTAIN EXISTING VEHICULAR ACCESS, RELOCATE DRIVES AS NEEDED, SHARE ACCESS WHERE POSSIBLE, AND DISCOURAGE ADDITIONAL VEHICULAR ACCESS TO AN ARTERIAL STREET.

ENCOURAGE A HIGHER FLOOR AREA RATIO FOR COMMERCIAL REDEVELOPMENT AND SUPERMARKETS OR SPECIALTY GROCERY STORES

INCORPORATE A VARIETY OF RESIDENTIAL USE TYPES SUCH AS ROW HOUSES, APARTMENT BUILDINGS, APARTMENTS IN MIXED USE BUILDINGS, LIVE-WORK UNITS, AND SPECIAL NEEDS HOUSING. THESE BUILDINGS COULD ALSO SERVE AS A TRANSITION TO THE EXISTING NEIGHBORHOOD.

CREATE PUBLIC/SEMI-PUBLIC GREEN OR OPEN SPACES SUCH AS PARKS, PLAZAS, OR COMMUNITY GARDENS.

ESTABLISH OR REESTABLISH AN INTERNAL PUBLIC OR PRIVATE STREET NETWORK WITHIN THE NODE THAT HAS SUBSTANTIAL CONNECTIVITY TO ADJACENT NEIGHBORHOODS.

ENCOURAGE A VERTICAL MIX OF RESIDENTIAL AND COMMERCIAL USE TYPES.

LITERATURE REVIEW
ORIENT BUILDINGS TO THE STREET, ESPECIALLY CORNERS
4

DESIGN GUIDELINES FOR MIXED USE :

BUILT FORM :

➢ FOCUS ON HUMAN SCALE DESIGN USING PODIUM AT GROUND FLOOR TO ACHIEVE A HUMAN SCALE WITH AN ATTRACTIVE AND ACTIVE STREET EXPERIENCE

➢ EFFECTIVE FAÇADE DETAILING AND ARTICULATION IMPROVE STREETSCAPE MINIMISING THE PERCEIVED SCALE OF NEW BLDGS.

• WHERE THE STREET PROPORTIONS AND CHARACTER ARE STRONGLY DEFINED, RESPOND TO THOSE KEY FEATURES

• USE VERTICAL AND HORIZONTAL ARCHITECTURAL ELEMENTS AND SPACINGS

BUILDING FRONTAGE

➢ THE BUILDING SHALL BE DESIGNED IN A MANNER SO THAT ITS HEIGHT DOES NOT OVERWHELM THE CHARACTER AND SCALE OF OTHER BUILDINGS IN THE MIXED USED DEVELOPMENT ZONES.

➢ BUILDING HEIGHT SHALL NOT

LANDSCAPING

➢ HIGH QUALITY LANDSCAPING THAT SOFTENS BUILT FORMS AND POSITIVELY CONTRIBUTES TO URBAN AMENITY LIKE VEGETATIVE BUFFERS, OPEN SPACE.

➢ PRIORITIZE GREEN URBAN GARDENS USING PLANTING ON STRUCTURES AND GREEN WALLS IN PLACES SUCH AS BUILDING ENTRIES, ROOFTOP DECKS.

PUBLIC OPEN SPACE

➢ MINIMIZE THE IMPACT OF OVERSHADOWING ON EXISTING AND FUTURE PUBLIC OPEN SPACE

➢ MAXIMIZE PASSIVE SURVEILLANCE AND ACTIVATION OF PUBLIC OPEN SPACE. DWELLINGS AND COMMERCIAL SPACES SHOULD ADDRESS THE PUBLIC REALM.

MATERIALS, TEXTURES & COLOURS

RESIDENTIAL AREA

❑ INCORPORATE HIGH QUALITY MATERIALS, TEXTURES AND COLOURS THAT RESPOND TO LOCAL CHARACTERISTICS. FOR EXAMPLE, THE USE OF BRICK WITHIN THE STREET WALL/PODIUM TO COMPLEMENT EXISTING TRADITIONAL STREETSCAPES IS STRONGLY ENCOURAGED.

❑ MATERIALS SHOULD BE DURABLE, SUSTAINABLE AND ATTRACTIVE AND MEET ALL RELEVANT BUILDING REGULATIONS.

COMMERCIAL ZONE

BUILDING ACCESS AND PARKING

➢ PROVIDE CLEARLY VISIBLE AND WELCOMING ENTRANCE.

➢ INCORPORATE FEATURE AWNINGS, SIGNAGE OR LANDSCAPE TREATMENTS TO HIGHLIGHT ENTRIES.

➢ SEPARATE THE RESIDENT AND VISITOR ENTRIES FROM COMMERCIAL ENTRIES, SERVICE AREAS AND LOADING ZONES

PASSIVE SURVELLIANCE

➢ PROVIDE CLEARLY VISIBLE AND WELCOMING ENTRANCE.

➢ INCORPORATE FEATURE AWNINGS, SIGNAGE OR LANDSCAPE TREATMENTS TO HIGHLIGHT ENTRIES.

➢ SEPARATE THE RESIDENT AND VISITOR ENTRIES FROM COMMERCIAL ENTRIES, SERVICE AREAS AND LOADING ZONES.

➢ PRIORITISE HIGH QUALITY STREETSCAPES AND PLEASANT PEOPLE ENVIRONMENTS THROUGH CONSIDERED PARKING AND ACCESS DESIGN THAT MINIMISES VISUAL AND PHYSICAL IMPACTS

LITERATURE REVIEW
MIXED USED REDEVELOPMENT
PRIMARY FRONTGE SECONDARY FRONTAGE
5

ROADS

TYPES OF ROADS

ARTERIALS ROAD (PATH)

ROADS LAID INSIDE THE CITY OR TOWN FOR THE MOVEMENT HIGH VOLUME OF TRAFFIC

STREET ORIENTATION, PATTERN AND WIDENING

STREETS ELEMENTS

ARTERIALS ROAD

SUB- ARTERIALS ROAD

COLLECTOR ROAD LOCAL ROAD

ENCLOSER OF STREET PROPORTIONS

STREETSCAPE FOR COMMERCIAL AND RESIDENTIAL

COMMERCIAL DESIDENTIAL

STREETS/WIDE MAIN AVENUES SHOULD BE ALIGNED IN PARALLEL, OR UP TO 30 DEGREES TO THE PREVAILING WIND DIRECTION

• WIDTH – 2M (ONE WAY), 3M (TWO WAY) AND VERTICAL CLEARANCE – 2.4M

• BOLLARD OF HEIGHT MAX. 0.4M .

ORIENTATION OF STREETS GRIDS PATTERN OF STREETS GRIDS STREET WIDENING

CYCLE TRACK STREETS LAYOUT

STREET INTERSECTION AT RIGHT ANGLES

BOUNDARY PERPENDICULAR TO MAIN ROAD

FOOTPATH

• CLEAR AND UNOBSTRUCTED MIN. WALKING ZONE OF 2M HORIZONTALLY WITH 2.4M VERTICAL CLEARANCE.

RADIAL PLOTS ON RADIUL CUL-DE SACS

PROPER LOTTING POOR LOTTING

• UNIFORM HEIGHT OF MAX. 150MM ABOVE ROAD LEVEL, IF NOT POSSIBLE RAILING OR CURBSTONE TYPE SEPARATORS TO SEGREGATE FROM CARRIAGEWAY.

PROPER POOR

MORE DESIRABLE DENSE PLANNING

CORNERS HAVE HIGH LAND VALUE

WEAK BETTER

WEAK BETTER

SATISTFYING CORNER LOT LAYOUT PROVISION FOR FUTURE EXPANSION

LITERATURE REVIEW
1:1 SCALE : 1:2
: 1:3 MAXIMUM MINIMUM MINOR STREETS 1:1.5 1:1 TYPICAL STREETS 1:3 1:1.5 SQUARES 1:6 1:4
STREET SCAPE SCALE :
SCALE
CLEAR WALKING ZONE OF FOOTPATH (M) MAX. NO OF PERSONS PER HOUR IN BOTH DIRECTIONS 1.8 1350 2 1800 2.5 2250 3 2700 3.5 3150 4 3600
6

PEDESTRIAN ROAD CROSSING

• DESIGNED TO HAVE DIRECT AND SHORTER

• PROVIDED AT EVERY 150M DISTANCE, WIDTH BE LESS THAN 3M.

PLANTATION

▪ BRANCHED ABOVE 2.4M TO PROVIDE ADEQUATE WALKING CLEARANCE UNDER BRANCHES

STREET LIGHTING

• GENERALLY BE PLACED WITHIN VERGE, MUZ, CENTRAL MEDIANS, CURBSIDE OF ROADS.

• RECOMMENDED TO USE ONLY LED FOR STREET LIGHTING.

LIGHTING HEIRARCHY: MAJOR AND MINOR ROADS ARE DISTINCT, AND PEDESTRIAN ROUTES DEFINED.

WHAT TO LIGHT & WHAT NOT TO

• MINIMUM WIDTH OF REFUGE ISLAND TO BE 1M, 3M TO BE ACCESSED BY WHEELCHAIR USERS

STREET FURNITURE

TYPES

BENCH, BOLLARD, RAILLING, SIGNAGE AND KIOSKS

• PROVIDED AT SUCH LOCATIONS HAVING HIGH PUBLIC ACTIVITY AND PEDESTRIAN FLOW LDECIDED DEPENDING ON THE ADJACENT

CENTRAL MEDIAN, RAILING, BOLLARDS

• RAISED BARRIERS THAT SEPARATE THE STREET IN TWO HALVES AND DIRECT TRAFFIC FLOWS.

• RAILINGS PROVIDED TO ENSURE THAT PEDESTRIANS CAN CROSS ONLY AT THE DESIGNATED CROSSING AND ALSO PREVENT VEHICULAR MOVEMENT ON FOOTPATH.

• HEIGHT OF RAILING TO BE A MAXIMUM 1.1M. BOLLARDS

• SIZE NOT MORE THAN 2 SQ. M AT INTERVAL OF NOT MORE THAN 200M

• SHOULD NOT PLACE ON FOOTPATH, IDEALLY PLACED AT MUZ, PARKING WITH PROPER PLATFORM

PUBLIC TOILETS

• 1 TOILET BLOCK AT EVERY 1.5 KM ON MOBILITY AND FEEDER CORRIDORS. PUBLIC TOILETS SHOULD BE PROVIDED NEAR TRANSIT STATIONS AND OFF STREET PARKING AREAS.

CLEAR LIGHTING PATTERNS

GLARE REDUCTION

SURVEILLANCE OF SUSPICIOUS MOVEMENT

GARBAGE CONTAINER
DIAMETER OF TREE TRUNK MIN. SIZE OF TREE GRATE(M) UPTO 0.15M 0.6 X 0.6 UPTO 0.3M 0.75 X 0.75 UPTO 0.9M 1.5 X 1.5 UPTO 1.2 M 2 X2
LITERATURE REVIEW STREET SCAPE
7

UNIVERSAL ACCESSIBILTY AND BARRIER FREE DESIGN

SPACE ALLOWANCE

CURB RAMP AND SLOPE RAMP STREET FURNITURE AND STREET SIGNAGE

SPEED BREAKERS.

SPEED BREAKERS ARE INDUCED ELEMENTS ON THE STREETS WHOSE SOLE PURPOSE IS TO REDUCE VEHICLE SPEEDS. THERE ARE 3 TYPES OF SPEEDBREAKERS

PARKING

• PARALLEL CAR PARKING IS RECOMMENDED ON STREET WHERE PARKING IS PERMITTED . INCLINED AND PERPENDICULAR ON STREET CAR PARKING SHOULD BE AVOIDED.

• PARKING ON MOBILITY CORRIDORS DURING PEAK HOURS SHOULD BE AVOIDED .

• PARKING BAYS AT ROAD SIDE NEED NOTE BE CONTINUOUS . THEY SHOULLD BE INTERRUPTED AT MAX 22.M TO PROVIDE BULBOUT SPACE FOR STREET FURNITURE, VENDING AND PEDESTRAIN CROSSING.

RECOMMENDED MIN DIMENSION

CAR PARK = 2M X 5M PARALLEL PARKING

2 WHEELER PARKING = 1M X 2M

CYCLE PARKING = 1M X 2M

TACTILE PAVING

• DISTANCE OF 600 MM FROM THE EDGE OF FOOTPATH OR ANY OBSTRUCTION TO PLACE WARNING BLOCKS.

• 300 MM BEFORE THE BEGINNING AND END OF THE RAMPS, STAIRS AND ENTRANCES.

• 900 MM WIDE ACROSS THE ENTIRE FOOTPATH WHERE THE CROSSING OCCURS

GRADIENT NOT STEEPER THAN 1:10

WIDTH NOT LESS THAN 900 MM

DESIGN RECOMMENDATION FOR SPEED BREAKERS

RECOMMENDATIONS FOR TAMPOO STANDS.

• LOCATION NEAR 50M M AWAY FROM INTERSECTION.

• PARKING SHOULD BE MORE THEN 7 NOS, AND PALCED NEAR PLACE OF HIGH FOOT FALL.

• TAMPOO STAND SHOULD BE LOCATED AT ROAD SIDE WITH ORIENTATION ALONG THE TRAFFIC DIRECTION, 15M AWAY FROM RAISED PEDESTRIAN CROSSING

LITERATURE REVIEW STREET SCAPE
8

PUBLIC SPACE

PLACEMAKING INSPIRES PEOPLE TO COLLECTIVELY REIMAGINE AND REINVENT PUBLIC SPACES AS THE HEART OF EVERY COMMUNITY. STRENGTHENNING THE CONNECTION BETWEEN PEOPLE AND THE PLACES THEY SHARE, PLACEMAKING REFERS TO A COLLABORATIVE PROCESS BY WHICH WE CAN SHAPE OUR PUBLIC REALM IN ORDER TO MAXIMIZE SHARED VALUE.

PLAZA

KEVIN LYNCH(1981,443) SUGGESTED THAT “THE PLAZA IS INTENDED AS AN ACTIVITY FOCOUS , AT THE HEART OF SOME INTENSIVE URBAN AREAS. TYPICALLY, IT WILL BE PAVED ,ENCLOSED BY HIGH DENISTY STRUCTURES AND SURROUNDED BY STREET, OR IN CONTACT WITH THEM, IT CONTAINS FEATURES MEANT TO ATTRACT GROUPS OF PEOPLE AND TO FACILITATE MEETING.

STREET PLAZA

A STREET PLAZA IS A SMALLL PORTION OF PUBLIC OPEN SPACE IMMEDIATELY ADJACENT TO THE SIDEWALK AND CLOSELY CONNECTED TO THE STREET. LOCATION FOR STREET PLAZA :VISUALLY PREDOMINANTIAL SPACES, NODES AND JUNCTIONS.

POCKET PARKS

MAJOR USERS OF POCKET PARKS: THIS IS ALMOST EXCLUSIVELY A FAMILY PARK, MAINLY SERVING PARENTS AND YONG CHILDREN, AND GROUPS FROM NEARBY PRESCHOOLS .

SUCUSSFUL PUBLIC SPACE (POWER OF 10+)

A DESTINATION MIGHT BE A DOWNTOWN SQUARE, A MAIN STREET, A WATERFRONT, A PARK, OR A MUSEUM. WHAT MAKES EACH DESTINATION SUCCESSFUL IS THAT IT HAS MULTIPLE PLACES WITHIN IT. FOR EXAMPLE, A SQUARE NEEDS AT LEAST 10 PLACES:

LITERATURE
REVIEW
PEDESTRIANS’ BEHAVIOR IN PLAZA PLAZA
CONSIDERATIONS
BLOCK
9
THROUGH –BLOCK LOT DESIGN
MID
LOT GROUND LOT

STREET VENDOR ASPECT

• PERSON ENGAGED IN VENDING SERVICES TO THE GENERAL PUBLIC, IN A STREET, LANE, SIDEWALK, FOOTPATH, PAVEMENT, PUBLIC PARK OR ANY OTHER PUBLIC OR PRIVATE AREA.

• TEMPORARY BUILT UP STRUCTURE OR MOVING STRUCTURE INCLUDES HAWKER, PEDDLER, SQUATTER

TYPES OF VENDORS

DISPLAY SPACE FOR DIFFERENT VENDING ACTIVITIES

LITERATURE REVIEW

TYPE OF MARKET OR STREET VENDING AREA

• CITY MARKET - SELLING SPECIALIST CLOTHES OR GOODS

• NEIGHBORHOOD MARKET - SELLING DAY-TODAY GOODS, SUCH AS VEGETABLES, MEAT, OR BREAD

• STREET MARKET - SERVING PASSING TRADE, EG: WITH COOKED FOOD, VEGETABLES, ETC.

• HUB MARKET - AT BUSY PEDESTRIAN LOCATIONS, EG: A TRANSPORT NODE, RELIGIOUS PLACE, OR HOSPITAL;

• SPECIALIST MARKETS- EG: SELLING FLOWERS OR USED CLOTHES

PAVEMENTS

STREET SPACE REQUIREMENTS

ROAD SPACE

10

SITE AND SERVICES

WATER SUPPLY: THE WATER DEMAND IN NEPAL IS 135 LPCD.

• GRAVITY FLOW SYSTEM

• PRESSURE FLOW SYSTEM

• DUAL SYSTEM

LOCATION OF SUPPLY MAINS:

• UNDER THE SIDEWALK

• IN THE PLANTING STRIP

• UNDER THE STREET

DISTANCE & CLEARANCE:

SANITARY:

• GRAVITY SYSTEM ONLY.

• CONSTRUCT BACKWARDS FROM DISPOSAL UNIT TO SEPTIC TANK UNIT.

• MINIMUM 3 2M FROM THE NEAREST SEWER OR GAS MAIN.

• RECOMMENDED MINIMUM DISTANCES:

• SEPTIC TANK TO THE WATER TANK: 15.2M

• SEWER AND DRAINAGE FIELD TO THE WATER TANK: 30.5M

DIAMETER OF PIPE:

• THE MAIN PIPE LINE = 4’’

• SUB PIPE LINE: 1/2’’ RESIDENCE

• ACCORDING TO THE CUSTOMER’S REQUIREMENT = 1’’ OR 2’’ DIAMETER

• GENERAL PIPE LINE OF MAIN WATER SUPPLY =20 TO 25M

• IN EVERY 6M CONNECTION FIXTURES ARE REQUIRED.

WATER SUPPLY LAYOUT:

RING SYSTEM GRID IRON SYSTEM

DRAINAGE:

• SIZE OF PIPE 8" FOR THE MAINS, LATERAL AND 6" PIPE FOR HOUSE BRANCHES

• MANHOLES PLACED NOT MORE THAN 100 TO 150 M APART

• MINIMUM DIAMETER OF SEWER DRAINING TO STREET= 300M SEWER LINES BELOW THE WATER MAINS

• MINIMUM DIAMETER FOR THE WATER MAINS=6”

• MINIMUM DEPTH OF 2 TO 2.5M BELOW

• GROUND LEVEL IS SUFFICIENT FOR SANITARY SEWER IN PARTS OF THE CITY WHERE BASEMENTS ARE FREQUENT

RADIAL SYSTEM

ELECTRICITY: STREET LIGHTING; 10 LUX

• OVERHEAD SUPPLY

• UNDERGROUND SUPPLY HEIGHT OF POLE:

• HIGH OR LOCAL ROADS - 9.9M.

• COLLECTOR ROAD - 10.7M.

• ARTERIAL ROAD - 12.5M.

• DISTANCE BETWEEN THE POLES FOR 9.9M TO 10.7M HIGH POLE - 16.5M.

• FOR 12.5M HIGH POLES - 20M.

• HEAD CLEARANCE OF A STREET LIGHT FROM STREET SURFACE SHOULD BE A MINIMUM OF 6.85M.

• LOCATION OF THE POST TO WHICH THE STREET LIGHT IS FIXED SHOULD BE A MINIMUM OF 0.5M FROM THE EDGE OF THE STREET OR THE OUTER OF THE ADJOINING PEDESTRIAN WALKING, SHOULD THE WIDTH OF THE WALKING BE WITHIN 2M.

• OVERHEAD ELECTRICITY LINES FROM STREET LEVEL SHOULD BE A MINIMUM OF 5M.

• THE LOCATION OF A POLE (OR POST) CARRYING OVERHEAD ELECTRICITY LINES SHOULD BE A MINIMUM OF 2M FROM THE EDGE OF THE STREET

LITERATURE REVIEW
1 m min TYPE SIZE (MM) SOIL PIPE 100 WASTE PIPE (HOR) 30-50 WASTE PIPE (VER) 75 VENT PIPE 50 RAIN WATER PIPE 75
LOOP SYSTEM BRANCH SYSTEM DEAD OR TREE SYSTEM
11

Building height between 10m and 17m : 3m is for public buildings (school, high school, hospital, government, private and public limited office, cinema, multiplex, hotel, assembly hall, party hall, etc.) and 2m for other buildings (residential and residential cum commercial).

GROUND COVRAGE FAR (FOOR AREA RATIO)
LITERATURE
BUILDING
12
ROW (RIGHT OF WAY)
REVIEW
BYELAWS AND PLANNING NORMS

URBAN MORPHOLOGY

URBAN MORPHOLOGY :

RADIO-CENTRIC

FORM OF CITY

• CENTRALISED TERMINAL OR ORIGIN.

• CENTRAL CONGESTION.

• DIFFICULT BUILDING SITES.

LANDPOOLING:

GRID-IRON • RADIO CENTRIC WITH RIGHT ANGLES.

• HIGH ACCESIBILITY & EXPANSION FLEXIBILITY.

• LIMITED ADAPTABILITY TO THE TERRAIN.

LINEAR

• RESULT OF NATURAL TOPOGRAPHY OR TRANSORT SPIN.

• RESTRICTS GROWTH & LACKS FOCUS.

SATELLITE

STAR • RADIO CENTRIC WITH OPEN SPACES BETWEEN THE OUTREACHING CORRIDORS OF DEVELOPMENT.

• CONSTELLATION OF CITIES AROUND MAIN CENTER.

• DEPENDENT ON PARENT CITY BUT HAVING OWN IDENTITY.

FIGURE AND GROUND

COMMON TOOLS IN URBAN PLANNING AND DESIGN TO REPRESENT THE RELATIONSHIP BETWEEN BUILT AND UN-BUILT SPACE IN A CITY.

URBAN FABRIC

DESCRIBES THE PHYSICAL CHARACTERISTICS OF URBAN AREAS, THAT IS, CITIES, AND TOWNS

URBAN GRAIN

THE ARRANGEMENT OR PATTERN OF THE BUILDINGS AND STREETS WITHIN THE BUILT FORM

FINE GRAIN

➢ FINE GRAIN URBAN FABRIC CONSISTS OF SEVERAL SMALL BLOCKS IN CLOSE PROXIMITY.

➢ WITHIN EACH BLOCK ARE SEVERAL BUILDINGS, MOST WITH NARROW FRONTAGES, FREQUENT STORE FRONTS, AND MINIMAL SETBACKS FROM THE STREET.

COARSE GRAIN

➢ COARSE GRAIN URBAN FABRIC IS LIKE BURLAP: ROUGH, LARGESCALE WEAVES THAT ARE FUNCTIONAL, BUT NOT USUALLY COMFORTABLE.

➢ COARSE GRAIN HAPPENS WHEN SIMILAR URBAN COMPONENTS ARE CLUSTERED TOGETHER

LAND POOLING IS AN ACTIVITY WHERE A GROUP OF LANDOWNERS HANDOVER THEIR LAND PARCELS TO THE GOVERNMENT COLLECTIVELY FOR INFRASTRUCTURE DEVELOPMENT

FEASIBILITY AND CONSENSUS

INITIATION, DESIGN & APPROVAL

IMPLEMENTATION

HANDOVER

PROCESS OF LAND POOLING

EXISTING PLOTS

PLOT AND BLOCK

GUIDED LAND DEVELOPMENT

LAND ACQUISATION

➢ PLOT IS A BASIC ELEMENT IN THE PATTERN OF LAND DIVISIONS THAT WORKS AS AN ORGANIZATIONAL GRID FOR URBAN FORM

➢ BLOCK IS THE SPACE WITHIN THE STREET PATTERN OF A CITY THAT IS SUBDIVIDED INTO LAND LOTS FOR THE CONSTRUCTION OF BUILDINGS

ADVANTAGES OF LAND POOLING

➢ IMPROVISED CONSTRUCTION, OFTEN ALONG EXISTING ROADS, LEADING TO URBAN CONGESTION.

➢ PLANNED GROWTH AND DEVELOPMENT OF THE LAND

➢ GIVES AWAY THE ISSUES OF LAND AND DENSITIES

➢ INCOMPLETE OR POORLY DESIGNED INFRASTRUCTURE

CHALLENGES OF LAND POOLING

➢ MISCONCEPTION AMONG LAND OWNERS ABOUT THE IDEA OF RE-PLOTTING AND REDISTRIBUTION.

➢ THE PERCENTAGE TO BE AGREED BY LAND OWNERS IS A CHALLENGING JOB FOR PLANNERS (51%).

➢ LAND ADMINISTRATION AND CADASTRAL MAPPING SYSTEM ARE OFTEN NOT COMPATIBLE WITH EACH OTHER; SO LAND PLOTTING IS VERY DIFFICULT

LITERATURE REVIEW
13

MODELS AND PLANNING CONCEPT

BURGESS CONCENTRIC MODEL:

PIONEER: EARNEST W. BURGESS, (1925). EXPLAINS THE COMPOSITE EFFECT OF MARKET FORCE UPON LAND USE ARRANGEMENTS.

HOYT’S

SECTOR MODEL:

PIONEER: HOMER HOYT, (1939). MODIFIED CONCENTRIC MODEL TO ACCOUNT FOR THE IMPACT OF TRANSPORTATION SYSTEMS ON ACCESSIBILITY.

CENTRAL BUSINESS DISTRICT(CBD): TRANSITION ZONE:

SIR EBENEZER HOWARD, GARDEN CITY:

CONCEPT:

THREE MAGNETS CONCEPT: TOWN, COUNTRY & TOWNCOUNTRY.

EACH CITY: MAGNET, INDIVIDUALS: NEEDLES DRAWN TO THE CITY.

FEATURES:

• 1,000 ACRES >> 30000 RESIDENTS.

• 5000 ACRES PERMANENT BELT OF AGRICULTURE AS BUFFER FROM CITIES.

CENTRAL BUSINESS DISTRICT

PRINCIPLE:

• STRONG COMMUNITY.

• ORDERED DEVELOPMENT.

• ENVIRONMENTAL QUALITY.

• CONCENTRIC PATTERN >>OPEN SPACES, PUBLIC PARKS AND SIX RADIAL BOULEVARDS, 120 FT (37 M) WIDE, EXTENDING FROM THE CENTER.

• A CLUSTER OF SEVERAL GARDEN CITIES AS SATELLITES OF A CENTRAL CITY OF 250,000 PEOPLE

BLUE- COLLAR RESIDENTIAL ZONE:

INDUSTRIAL ZONE

MIDDLE RESIDENTIAL ZONE:

MULTI NUCLEI MODEL:

COMMUTER RESIDENTIAL ZONE:

BLUE- COLLAR RESIDENTIAL ZONE:

MIDDLE CLASS RESIDENTIAL ZONE

CENTRAL PLACE THEORY:

PIONEER: C. HARRIS & EDWARD ULLMAN, (1945) BASED ON THE FACT THAT MANY TOWNS AND NEARLY ALL LARGE CITIES GROW ABOUT MANY NUCLEI RATHER THAN AROUND A SIMPLE CBD. SOME OF THESE NUCLEI ARE PRE-EXISTING SETTLEMENTS, OTHERS ARISE FROM URBANIZATION AND EXTERNAL ECONOMIES.

ZONE

PIONEER: WALTER CHRISTALLER, (1933).

CENTRAL PLACE: ANY LOCATION THAT OFFERS A SERVICE OR A PRODUCT TO ITS SURROUNDING MARKET REGION. IT EXPLAINS THE NUMBER, SIZE AND LOCATION OF SETTLEMENTS IN AN URBAN SYSTEM.

CITY CENTER:

• CITY COMMERCIAL FUNCTIONS

1ST & 2ND LAYER:

• GREEN AREA WITH RECREATION ACTIVITIES.

3RD & 4TH LAYER:

• RESIDENTIAL AREA.

• BUNGALOW & TERRACE HOUSES

5TH LAYER:

• INDUSTRIAL AREA WITH RAILWAY AS MAIN TRANSPORTATION

FINAL LAYER:

• GREEN AREA WITH AGRICULTURE & ANIMAL HUSBANDRY

DEFECTS:

• MAINTAINING THE POPULATION OF A TOWN IS A CHALLENGE

• 3 MAGNETS DIAGRAM WHICH ADDRESSED THE QUESTION 'WHERE WILL THE PEOPLE GO?'

LITERATURE REVIEW
HIGH CLASS RESIDENTIAL ZONE MIDDLE CLASS RESIDENTIAL
1. CENTRAL BUSSINESS DISTRICT 2. WHOLESALE, LIGHT MANUFACTURING 3. LOW-CLASS RESIDENTIAL ZONE 4. MIDDLE-CLASS RESIDENTIAL ZONE 5. HIGH-CLASS RESIDENTIAL ZONE 6. HEAVY MANUFACTURING 7. OUTLYING BUSINESS DISTRICT 8. RESIDENTIAL SUBURB 9. INDUSTRIAL SUBURB 14

CLARENCE PERRY NEIGHBORHOOD UNIT: EMERGENCE IN SERGE OF SOCIAL LIFE AFTER DISORDER CREATED DUE TO INDUSTRIAL REVOLUTION IN LIVING, WORKING, HEALTH & RECREATION

PURPOSE:

• EARLY IDEA: PLANNING FORMULA FOR THE DISTRIBUTION OF PLAYGROUNDS IN NEW YORK REGION.

• SOCIETY: SOCIALIZE PEOPLE.

• PUBLIC SPACE: COMMON & SHAREABLE

• SAFE AND HEALTHY NEIGHBOURHOOD ENVIRONMENT

• SAFE & EFFICIENT ROAD & PEDESTRIAN ROUTE

CONCEPT:

BASIC IDEA INCLUDED THE SEPARATION OF SPACES BY FUNCTION THROUGH ZONING INTO SEVERAL CATEGORIES

RESIDENCES

“THE NEIGHBORHOOD UNIT” PUBLICATION IN (1929)

“REGIONAL PLAN OF NEW YORK & ITS ENVIRONS”

PRINCIPLES OF A NEIGHBORHOOD UNIT:

CENTRE ALL COMMUNITY SPACE:

• LOCATE SCHOOL IN THE CENTRE, SO THAT A CHILD'S WALK TO SCHOOL IS NOT MORE THAN :

¼ MILE= ELEMENTARY SCHOOL KIDS

½ MILE= MIDDLE SCHOOL KIDS

2 MILES= HIGH SCHOOL STUDENTS.

• ALL SHOULD BE ACHIEVED WITHOUT CROSSING A MAJOR ARTERIAL STREET.

BOUNDARIES:

• THE UNIT SHOULD BE BOUNDED ON ALL SIDES BY ARTERIAL STREETS, SUFFICIENTLY WIDE TO FACILITATE ITS BYPASSING BY ALL THROUGH TRAFFIC.

10 % AREA TO PARKS & OPEN SPACES

• PROVIDE SUFFICIENT PLACES FOR PLAY AND COMMUNITY INTERACTION

• INCREASES COMMUNITY SOCIALIZATION AND COMMUNITY GROWTH AS A WHOLE.

LOCAL SHOPS

ELEMENTARY SCHOOL

REQUIREMENT:

ELEMENTARY SCHOOL

ENROLLMENT (1000-1200)

STUDENTS

DEMOGRAPHY: (5000-6000) PEOPLE 10 FAMILIES PER ACRE

SMALL PARKS & PLAYGROUNDS

STATISTICS:

AREA: 160 ACRE

RADIUS: 1/4 MILE

“THE FIVE MINUTE WALK CONCEPT”

DESIGN INTERNAL STREETS

RESTRICT LOCAL SHOPPING AREA TO PERIMETER

• PREFERABLY AT TRAFFIC JUNCTIONS AND ADJACENT TO SIMILAR DISTRICTS OF ADJOINING NEIGHBORHOODS.

• EXCLUDES NON-LOCAL TRAFFIC DESTINED FOR THESE COMMERCIAL USES THAT MIGHT INTRUDE ON THE NEIGHBOURHOOD.

• USE A HIERARCHY THAT EASILY DISTINGUISHES LOCAL STREETS FROM ARTERIAL STREETS AND USE CURVILINEAR STREET.

• BENEFITS BOTH THE SAFETY AND AESTHETIC PURPOSES OF THE STREETS.

• DISCOURAGES UNWANTED THROUGH TRAFFIC & ENHANCE THE SAFETY OF PEDESTRIANS.

CRITICISM:

• MAY LEAD TO A GROUPING OF PEOPLE THAT RESULTS IN SOCIAL CLASS DISTINCTIONS

• SCHOOL AS FOCAL POINT BEING IMPRACTICAL & TOO CHILD CENTERED

• INADEQUATE COMMUNITY FACILITIES & ECONOMIC EFFICIENCY

TOWN PLANNING CONCEPT LITERATURE REVIEW 15

SONGZHUANG MICRO COMMUNITY PARK

INTRODUCTION

LOCATION : TONGZHOU, BEIJING, CHINA AREA : 5900 m2

CONSTRUCTION PERIOD : 14 MONTHS

SONGZHAUNG MICRO COMMUNITY PARK IS SITUATED ON A STREET CORNER WHICH TRANSFERRED THE SITE IN TO A PLACE FOR MEETING, GATHERING AND PLAY. THROUGHOUT EVERY DAY (7am – 8 pm).

SEQUENCE 6F SPACES

1)COMPLETELY OPEN

CASE STUDY

4)FULLY ENCLOSED BUT OPEN TO SKY

2)FORMING A PLAZZA 3)MORE DEFINED AREA WITH A SEMITRANSPARNET GREY WALL

5)LESS STRICKLY DEFINED SPACE

• MORNING-TIE CHI AND FAN DANCE

ELEMENTS USED

• GREY WALL

• TREES

• YELLOW STRIPS

• MIRROR ELEMENT

MASTER PLAN

ROOM 1 (WELCOMING ROOM)

• EVENING-RHYTHEMIC DANCERS

• OCCASIONAL PET OWNERS

3D VIEW

SECTION AA’

• RESPOND TO A RANGE OF NEEDS FROM A DIVERSE GROUP OF VIISITORS.

• INCLUSIVE DESIGN WITH VARIETY OF BRIGHT ATMOSPHERE ENCOURAGE INTERACTIONS BETWEEN ALL AGE GROUPS.

• A QUALITY PUBLIC SPACE FOR WELL-BEING AND SOCIAL ENCOUNTER.

INFERENCE

• INCLUSIVE SPACES TO ALL AGE GROUPS SOCIO-CULTURAL AND ENVIRONMENTAL REGENERATION SENSE OF PUBLIC GATHERING SPACE FOR PROMOTION OF CULTURAL ACTIVITIES AND SOCIAL HARMONY

ROOM 2 (SOCIAL ROOM)

• TRANQUIL INTERACTION

• CHESS PLAYERS AND AUDIANCES

• ELDERLY LADIES CHAT IN THE SHADOW OF TREES

• WITH COFFEE, PEOPLE TAKE SELFIE…

ROOM 3 (PLAY ROOM)

• PERFORATED WALL FOR PEAK-ABOO AND HIDE & SEEK.

• SPEAKING TUBES

• PARENTS AND CARETAKER CAN WATCH AND LISTEN CHILDREN PLAY FROM DISTANCE

ROOM 4 (EXERCISE ROOM)

• OPEN AIR GYM

• ALL MEMBER CAN FIND THEIR PLACE

1 2 3 4
1 2 3 4 5
16

JINTAI VILLAGE RECONSTRUCTION SICHUAN,CHINA

INTRODUCTION:

LOCATION : NANJIANG, BAZHONG, SICHUAN, CHINA

AREA : 4000 SQ.M

NO. OF RESIDENTIAL UNITS : 22 UNITS

TOPOGRAPHY : TERRAIN LAND

PLANNING APPROACH : NEIGHBORHOOD

PLANNING

IMPLEMENTATION AGENCY : RURAL URBAN FRAMEWORK

DESIGN : JOHN LIN, JOSHUA

BOLCHOVER

LANDSCAPE DESIGN : DOROTHY TANG

PROJECT YEAR : 2014

OBJECTIVE:

❑ TO STUDY HOW DENSE URBAN LIVING CAN BE COMBINED IN A RURAL CONTEXT

❑ TO STUDY HOW A SUSTAINABLE COMMUNITY CAN BE BUILT IN A LIMITED SITE AREA.

BACKGROUND:

❑ MAY 12TH WENCHUAN EARTHQUAKE IN 2008

❑ NEARLY 80% BUILDING AFFECTED

❑ NEARLY 5 MILLION PEOPLE AFFECTED

❑ PROTOTYPE VILLAGES CONSTRUCTED FOR AFFECTED PEOPLE

CLIMATIC CONDITION:

MAXIMUM TEMPERATURE: 31.8 ˚C

MAXIMUM DURING JUL-AUG

MINIMUM TEMPERATURE: 5 ˚C

3 TYPES OF HOUSES

TYPES OF BUILDING TYPOLOGY VARIOUS IN SHAPE ,FUNCTION, AND ROOF SECTIONS

TERRACED ROOFS FOR URBAN AGRICULTURE AND SUPPORTS SELF-SUFFICIENCY AND SMALL-SCALE FARMING.(EARNING)

COMMUNITY CENTER OPEN SPACES ON THE GROUND LEVEL ALLOW FOR INDIVIDUAL FAMILY-OWNED WORKSHOPS WITH SATISFYING SUSTAINABLE ASPECTS LIKE NATURAL VENTILATION, RAINWATER HARVESTING SYSTEMS, AND INSULATION MADE OF STRAW

SECTION OF COMMUNITY CENTER, WATER COLLECTION

NARROW ALLEYS IN BETWEEN

INFERENCE

• SUSTANABILITY FEATURES THAT CAN BE IMPLEMENTED IN OUR PROJECT .

• CREATING URBAN VILLAGE IN SMALL SPACE

• PROCESS OF CREATING SOCIAL INCLUSION.

CASE STUDY 1
PATH WAYS
17
USE OF VERTICAL COURTYARD FOR LIGHT AND VENTILATION.

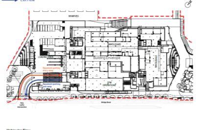
SYDNEY FISH MARKET

INTRODUCTION

LOCATION : NEW SOUTH WALES, SYDNEY

YEAR : 2023

TOTAL SITE AREA : 80000 SQ.M

ARCHITECT : STEVEN HALL ARCHITECT

OBJECTIVE

TO STUDY THE REDEVELOPMENT OF COMMERCIAL HUB IN A DIFFERENT WAY

RE DEVELOPMENT OF MARKET

✓ LOCALISED WIDENING OF BRIDGE ROAD TO PROVIDE AN IMPROVED AND WIDENED FOOTPATH

✓ MAINTAING THE HEIGHT OF THE BUILDING IN ACCORDANCE WITH THE TREES

✓ MARINE PILING FOR AND DEVELOPMENT

DESIGN CONCEPT AND PLANNING

CASE STUDY 01

VARIETY OF EXPERIENCE

URBAN PARK WITH LARGE AMPHITHEATRES FOR SOCIALIZATION AS A CURTURAL DESTINATION

INFERENCE

➢ DEVELOPING COMMERCIAL HUB AS A CUTURAL AND TOURIST DESTINATION

➢ DEVELOPMENT OF URBAN PARK PROMOTING COMMUNITY INTERACTION

➢ DESIGNING OF STREETSCAPE IN HUMAN SCALE USING VERTICAL AND HORIZONTAL ELEMENTS

➢ DEVELOPMENT AND NECESSITY OF PUBLIC WALK WAY IN PUBLIC PLACES

PROMENADE, WHOLESALE & RETAIL LOADING DUCK & RETAIL PONTOON PLATFORM TIERED SEATING PROMENADE BOARDWALK
OFFICE COOKING SCHOOL RETAIL CATERING AUCTION LOADING DUCK WHOLESALE
Open Spaces 7% Auction 10% Wholesale 15% Loading Duck 10% Catering 35% Retail 20% Office 3% PROGRAM MIX LEGENDS
TIERED SEATING IN PUBLIC PLACES TO ACCOMMODATE LEISURE TIME WIDENING OF BRIDGE ROAD TO PROVIDE NEW GREEN BOULEVARD, SHARED CYCLE PATH, LANDSCAPING. A CENTRAL BOULEYARD CONNECTING THE EAST WEST AXIS
18

FUTAKO TAMAGANA

INTRODUCTION

• LOCATION: TOKYO JHAPAN

• YEAR: 2013

• TOTAL SITE AREA : 123600M.SQ.

• ARCHITECT: STEVEN HALL ARCHITECT

AREA PROGRAMME AND PRODUCT MIX

CASE STUDY

SHIBUYA IS A MAJOR RAILWAY TERMINAL IN TOKYO AND IMPORTENT CNTER FOR TOKYO CORPORATION AS THE HOME OF THE TOKYO GROUP

REASON FOR STUDY

• MIXED USE DEVELOPEMENT PROJECT

• INTEGRATION OF BIOPHILIA

• SUCESSFUL CREATION OF LIVELY PUBLIC SPACES.

ORGANIZATION OF PROGRAM

WALK-WAY AS WELL AS SEGWAY FACILIES COVERS THE ENTIRE SITE VECHICULAR PARKING AND MOMENT IS KEPT UNDER THE GROUND TO NOT INTERFARE WITH PEDESTRIAN MOVEMENT ALSO ZEBRA CORSSING HAVE BEEN EXTENSIVELY DEPLOYED TO CONNECT AREA WITH SITE.

30-STORYOFFICE BUILDING SURMOUNTED BY 3 STORY HOTEL. 28-40 STOREYS RESIDENTAL TOWERS AS WELL AS TWO LOE-RISE RESIDENTAL BUILDINGPROVIDING A TOTAL OF 1000 HOMES ALL CONNECT TO TRAIN STATION AND CONNECT TO WALK WAY WHICH LEAD TO RIVER TAMA.

The design of the buildings, which all settle on a unifying stone plateau, responds to the changing environment on this route.

DEPATMENTAL STORE WITH SINGLE STORY AND SHOPPING COMPLEX

19

SITE PLANNING THE COMMON STREET

CELEBRATING THE TRANSITIONAL ROUTE FROM THE CITY TOWARD THE GREEN SITE ACTING AS A THRESHOLD BETWEEN CITY AND NATURE

ACTIVITY MAPPING

CASE STUDY

A OPEN SPACE AS PLACE OF BUSTLE ESTABLISH FACING COMMERCIAL FALITIES

D GALLERIA

PUBLIC SPACE

B KASHINOK OPEN SPACE

E THE OPEN SPACE

C BIRDS MALL OPEN SPACE

RELATION DIGRAM

F FOUNDATION OPEN SPACE
CONCEPT AND PLANNING 20

LOCATION

JINTAI VILLAGE RECONSTRUCTION

SICHUAN,CHINA

NANJIANG, BAZHONG, SICHUAN, CHINA

SONGZHUANG MICRO COMMUNITY PARK

FUTAKO TAMAGAWA

SYDNEY FISH MARKET

TONGZHOU, BEIJING, CHINA TOKYO JAPAN NEW SOUTH WALES, SYDNEY

TYPE OF RECONSTRUCTION

RE-CONSTRUCTION OF HOUSING

MIX USED REDEVELOPMENT COMMERCIAL

PEDESTRIAN MOVEMENT

VEHICULAR MOVEMENT

COMPARISION SHEET
SITE AREA 4000 SQ.M 5900 SQ.M 27.6/ 112000 SQ.M 8000 SQ.M
21

DETAILED PROGRAM

JINTAI VILLAGE RECONSTRUCTION SICHUAN,CHINA

SONGZHUANG MICRO COMMUNITY PARK

FUTAKO TAMAGAWA

SYDNEY FISH MARKET

BUILT UP RELATIONSHIP

COARSE GRAINED HIGH RISE BLOCKS WITH 25 % GROUND COVERAGE

COMPARISION SHEET
ZONING
42% 3% 17% 38% SPACE % RESIDENCE COMMUNITY CENTER NGO OFFICE OPEN SPACE 3%1% 15% 8% 73% SPACE % WELCOMING ROOM SOCIAL ROOM PLAY ROOM EXERCISE ROOM GREEN SPACE
22

JINTAI VILLAGE RECONSTRUCTION

SICHUAN,CHINA

SONGZHUANG MICRO COMMUNITY PARK

FUTAKO TAMAGAWA

SYDNEY FISH MARKET

MASSING

INDIVIDUAL TOWER WITH INBETWEEN SPACE ARTICULATED AS PUBLIC SPACES

OPEN AND PUBLIC SPACE

PUBLIC AREAS AT DIFFERENT GRADES

MATERIAL PALLETE EXPOSED BRICK AND COMPRESSED STRAW, CONCRETE

GLASS WALL, BRICK JALI GRAY WALLS, USE OF VIVRANT YELLOW COLOR

DIAGRID STRUCTURES WITH STRCUTURAL GLAZING

STEEL , GLASS

STRUCTURE R.C.C FRAME STRUCTURE

LOAD BEARING STRUCTURES, GREEN HILL UP SPCES

STEEL STRUCTURE AND DIAGRID STRUCTURE

STEEL STRUCTURE , R.C.C FRAME

COMPARISION SHEET
1 2 3 4
23

Turn static files into dynamic content formats.

Create a flipbook
Issuu converts static files into: digital portfolios, online yearbooks, online catalogs, digital photo albums and more. Sign up and create your flipbook.