PRIYADARSHINI NANDA - ARCHITECTURE PORTFOLIO

Page 1

PORTFOLIO

PRIYADARSHINI NANDA | ARCHITECT | BUILDING TECHNOLOGIST

CONTENTS PAGE

This portfolio contains a collection of my selected projects depicting my skills

2

05

Terrace Folly

Small scale built project made sustainable by carrying out extensive simulations to study the built form.

41

Negin Safari Park

Master thesis project done in collaboration with a NGO for the upliftment of local nomadic Iranian community based in Iran.

63

Miscellaneous works

Hands on workshop done by me during my time in TU Delft

23

Centre of Excellence

Competition entry for which I extended my building physics expertise to integrate early stage design simulations.

57 Brutalism

Exercise designed and presented by me during my teaching experience in School of Architecture Jammu.

3
4

TERRACE FOLLY

Built Project

Location : Amritsar, India

Year : 2021 Group Project

Firm : Sifti Design Studio

E-mail : office.sifti@gmail.com

5

URBAN CONTEXT

6 SITE LOCATION

This project entailed creating a private studio space for a young couple in the heart of a densely populated area in Amritsar. The functional requirements of this project were a pantry, garden area, bedroom, bathroom and service area in an area of 85sqm. The project was approached with the idea of integrating climate design into the initial design stage through use of building simulation software ladybug and honeybee for grasshopper.

Climate of Amritsar was thoroughly studied through climate consultant graphs and further the psychometric chart was used to plot and understand the aspects to be taken into account while designing the apartment. Further, The design steps were categorically divided into two parts, the first part entailed creating options of massing of the spaces and analyzing and selecting them on the basis of Daylight autonomy and Useful daylight illumination results. This was followed by a through analysis of the different passive strategies and their direct impact on the overall thermal comfort. Through

use of building simulation results in early stage design informed decisions on the design of this building have been made to achieve ideal thermal conditions which ensure an energy efficient space for the harsh periods of the year in Amritsar. The image on the left depicts the location of the studio space to be constructed in grey. The studio was located on the third floor of a residential housing facing a narrow street on one side and large green open spaces on two sides. From the psychometric chart we can decipher that the cooling dependency of buildings in this region is high and large chunk of thermal comfort is achieved through cooling and dehumidification. It was further observed a total of 36% period of thermal comfort can be achieved through use of passive strategies.

For the purpose of this thermal comfort study ASHRAE standard 55 model is used as a basis. The zone in which most people are comfortable is also calculated on the basis of the predicted mean vote.

7

VOLUMETRIC FUNCTIONAL ZONING

On the basis of the given functions 3 options of varying functional zoning was done. Further to understand their viability and potential a daylight autonomy analysis was carried out to understand the amount of light entering the space in order to aid in reduction of lighting energy use. At the same time the useful daylight illuminance study was also carried out to ensure instances of glare could be avoided

DAYLIGHT AUTONOMY ANALYSIS

Option 1

Spatial Daylight Autonomy (illumination < 300 lux for 50% of the time period) experienced in the pantry is 100% and 75% in the bedroom and bathroom

Option 2

Spatial Daylight Autonomy experienced in this space is 75%

Option 3

Spatial Daylight Autonomy experienced in this option is the lowest, which is 65%

8
Option 1
Pantry Bedroom Garden Toilet

Option 1

The percentage illuminance received in this op tion was found to be considerably high and can result in glare. Hence, shading will be required in this option.

Option 2

The percentage glare created in this option is relatively less deep.

Option 3

The percentage glare created in this option is also not very deep.

USEFUL DAYLIGHT ILLUMINANCE <2000 LUX
Pantry Pantry
Bedroom Bedroom Garden Option 2 Option 3 Garden Toilet Toilet
10 PASSIVE STRATEGIES
Model
Load Cooling Load Lighting & Electric Load Maintenance Not Applicable Not Applicable High Medium - High Low Low Cost Implication
Shades Night Flush
kWh
change
change No change
kWh
kWh
Base
Heat
Window
25
3% No
No
672
27% 9% 43
11 Medium High High Low Low Low Low Low
layer glazing
Thermal mass Lighting Power Density Overall
Double
High
No change No change No change No change 7% 7% 1% 22kWh 8% 6% 369 kWh 40 kWh

Through above passive strategies users would be annually comfortable

The users would be comfortable 34% of the time in a year within

Largest discomfort would be experienced in the bathroom, This

12 PERCENTAGE OF USERS DISSATISFIED POST APPLICATION OF PASSIVE STRATEGIES

comfortable 35% of the time in the pantry space. Maximum % of discomfort would be experienced during the summer.

% 50 45 40 35 30 25 20 15 10 <5 within the bedroom space with the time period of discomfort following a similar pattern as the pantry.

This could be due to lack of ventilation introduced in the model. Total percent of comfortable time was 27% in this area.

13

GRASSHOPPER SCRIPT FOR ABOVE SIMULATIONS

Once option 1 was considered for the building basing of the project the following steps included introduction of passive design strategies. For this purpose the psychometric chart was studied and the passive strategies which aid in thermal comfort were considered through introduction of these strategies on the built model made in grasshopper. For this purpose the building simulation was run in openstudio an the number of hours that the user feels comfortable in the space was considered as the benchmark. As per the psychometric chart the user can feel comfortable in the space for a maximum of 36% of the year using passive strategies such as external sun shading, high thermal mass, night flushing and passive heat gain.

Each strategy was applied on the model sequentially. The high thermal mass was introduced through addition of air gaps between brick walls, while the roof was made out of corrugated GFRC and insulation and a air gap was introduced between the exterior surface and interior surface. The materials were selected on the basis on it cost effectiveness and their ability to create a high thermally comfortable environment indoor. As a design intent full height windows were introduced

in the space which aid in heat gain during winters. However during summer this would result in overheated spaces. In order to tackle this several different types of overhangs and vertical shades were studied. Exterior vertical shading inform of blinds was found to be the most effective when it came to improvement of indoor thermal comfort.

Finally, ventilation through opening of windows and night flushing during the summer days was also introduced into the model. The results of these strategies was found to be very effective as it helped achieve the 36% thermally comfortable period that these passive strategies could offer.

The roof of the building blocks has also been tapered for the installation of solar panels which can further aid in the reduction of the total energy demand that the cooling of the space will create during the summer period, as indicated in the graphs generated above. Further studies are now being carried out in the built project to tally the results which were obtained from the simulation.

14
Adding
Construction details
Modeling the built forms
passive strategies ; Lighting, Night flush,

Customizing occupancy schedule HVAC system and shading device

Energy simulation through Open studio

Visualization of the energy simulation results and calculation of EUI

15
PSYCHOMETRIC CHART WITH CLIMATIC CONDITIONS OF AMRITSAR PLOTTED IN IT
16 VIEW OF
COURTYARD AND STUDY ROOM
17 FLOOR PLAN N

SECTION THROUGH BEDROOM & PANTRY

18
19
20
IMAGE OF LIGHT ENTERING INTO THE BEDROOM (left) & BEDROOM & COURTYARD CONNECTIVITY
21 CONNECTIVITY (right)
22
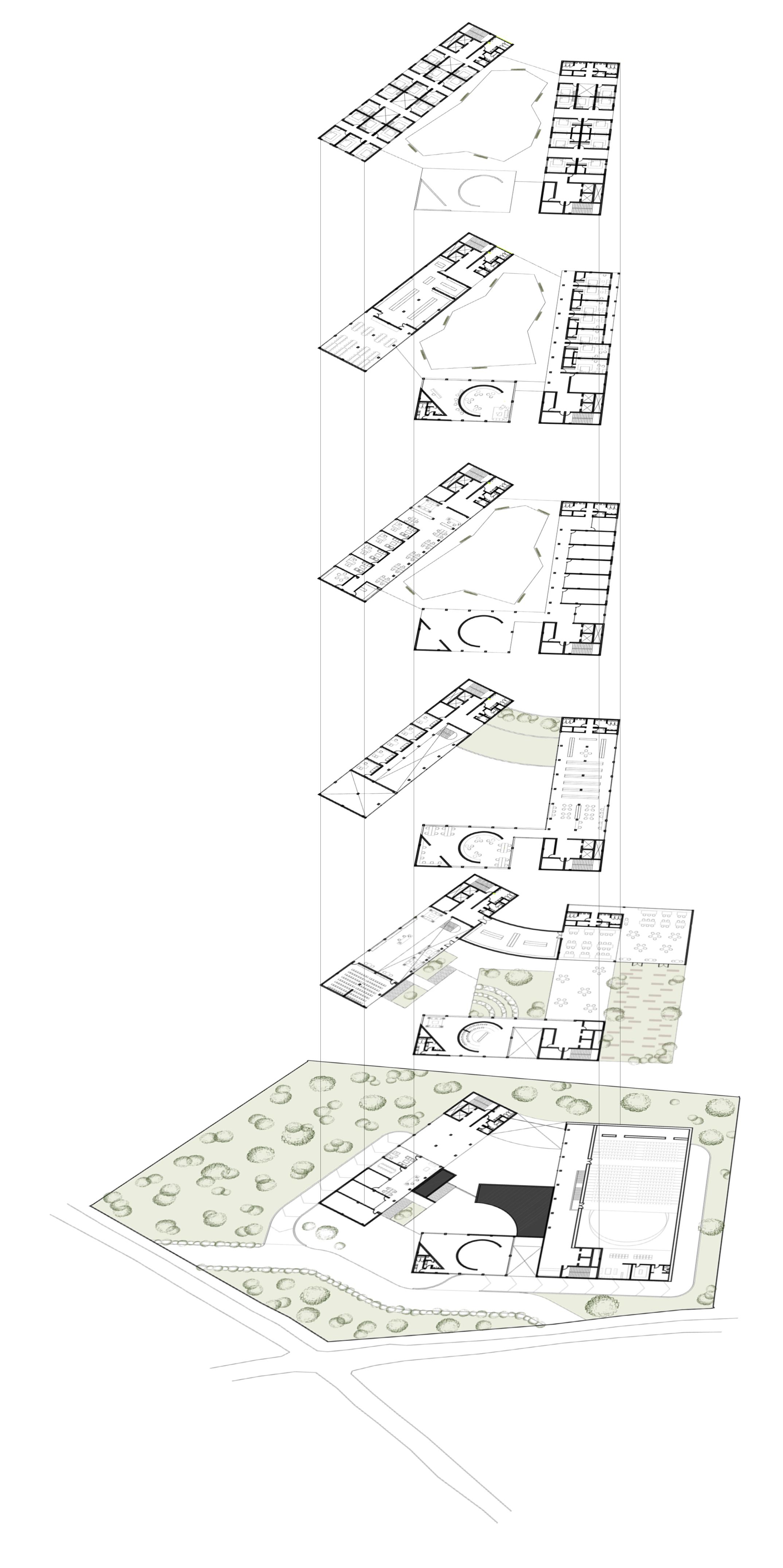
23 CENTRE OF EXCELLENCE Competition Entry Location : Bangalore, India Year : 2022 Group Project Firm : Sifti Design Studio E-mail : office.sifti@gmail.com

India houses one of the largest higher education sectors in the world with a growth of 400% since 2001. This substantial growth in capacity of this sector has been to serve India’s large college-aged cohort. However, India’s Gross enrollment ratio of 27.1% as of 2022 is much lower than that of countries like China (51%) and most of Europe and North America (80%). Additionally, for the past few years, educational campuses have been faced with multiple challenges due to the pandemic and climate crisis. The future of educational buildings needs to address these challenges by focusing on becoming a welcoming campus focused on student experience and adapting to the new forms of learning and discovery.

With this idea, Sifti Design studio approached the design competition of Excellence Centre for Council of Architecture, To be built on the lush green campus of Bangalore University. An attempt has been made to find an architectural language that would address the intense urban context of the city. Housing diverse functions such as an auditorium, labs, exhibition hall, Restaurant, Administration, and accommodation, The design is characterized by flexibility of design, allowing the building to adapt to future changes in learning needs and requirements. A central courtyard connects the functions creating an engaging environment for chance encounters and conversations amongst variegated users of this building. In order to create interest at the human scale, this courtyard has been further split into two levels which aid in creating variety and fascination at the entrance point. Through greening of the building at all levels, the design encourages bringing the experience of plants from a binocular scale to personal close proximity for the users.

To optimize and develop a human-centric form of the building, simulation study of Indoor Daylight, Wind analysis, Urban heat island effect, and indoor thermal comfort have been carried out. After identifying the maximum ground coverage and creating a building block accordingly, The study of Useful indoor Daylight helped in identifying an optimum building width of 12m with a central courtyard maximizing exterior surface areas leading to reduces chances of glare and maximum daylight entering the building. Further wind study showed breaking the building into three blocks to create entry points would promote wind circulation within the complex and could facilitate the flow of wind into the building due to the creation of low-pressure areas around the building. The universal thermal comfort index for the courtyard was calculated to understand the heat island effect of the building and explore solutions to create the courtyard thermally comfortable for a higher footfall. It was observed that through the addition of natural plantation and provision of overhead bridges the temperature conditions of the courtyard became substantially more comfortable. Finally, the indoor thermal comfort of the building block was studied and building services such as vertical circulation and toilets were placed on the east and west facade to reduce the direct solar heat gain of the building. These early-stage interventions through building simulation were done keeping in mind they would aid in reducing the energy demand of the building eventually.

24 LOCATION

Site offset as per bye laws

Modified boundary based on existing trees

Volume and main entrance to the complex

25 STEP 01 - SITE CONTEXT

Courtyard size selected on the basis of optimized UDI and surface area

26 STEP 02 - USEFUL DAYLIGHT ILLUMINANCE (UDI)

- WIND ANALYSIS

Universal thermal Climate index for extreme hot week (19/4 - 25/4)

Low wind infiltration into courtyard

Improved wind infiltration due to fragmentation of blocks

27
03
STEP

Universal thermal Climate index (UTI) for extreme hot week (19/4 - 25/4)

Universal thermal climate index of courtyard without trees

Universal thermal climate index of courtyard with trees

28 CONCEPT - STEP 04

Universal thermal Climate index for extreme hot week (19/4 - 25/4)

Universal thermal climate index of interior spaces

Universal thermal climate index of interior spaces after providing services on extreme ends of the building blocks

29 CONCEPT - STEP 05

For the reason of easy and efficient circulation, public areas such as the auditorium, exhibition hall, and conference center have been placed on the ground floor, while private functions such as the residential quarters and laboratories have been placed on the higher floors due to the lower traction of users in those functions. On the upper level, the functions are connected with bridges which create a visually interesting experience while moving from one function to another. By creating an occupantcentric design the building promotes a sustainable and joyous experience for the user.

30
31 FLOOR PLANS 1. AUDITORIUM 2. AUDITORIUM
3. EXHIBITION
4. OPEN
5. ENTRANCE
6. KITCHEN 7. RESTAURANT 8. SEMINAR
9. CONFERENCE
10. RECEPTION
11. OFFICE
12. LIBRARY 13. READING
14. LABORATORIES 15. GUEST
16.
17. TRAINEE
18.
1 3 8 4 5 7 6 9 10 11 11 14 16 15 18 17 12 13 2
ENTRANCE FOYER
AREA
TO SKY COURTYARD
FOYER
HALL
HALL
& WAITING AREA
CUBICLES
AREA
SUITES
DINING HALL & KITCHEN
ROOMS
STAFF ACCOMMODATION
32
VIEW FROM MAIN ENTRANCE
33

VIEW OF THE INTERACTIVE SPACES PROVIDED IN THE GREEN COURTYARD

34
35
36
VIEW OF THE INTERACTIVE SPACES PROVIDED IN THE GREEN COURTYARD
37

VIEW OF THE INTERACTIVE SPACES PROVIDED IN THE GREEN COURTYARD

38
39
40
41 NEGIN SAFARI PARK Post Graduation thesis project Location : Firoozabad, Iran Year : 2019 Individual Project Supervisor : I.r Frank Schnater E-mail : F.R.Schnater@tudelft.nl

URBAN WATER MANAGEMENT CHALLENGE

My final year sustainable graduation research project aimed to aid the architect in developing a design which would have a comparatively lower ecological footprint and focus on opportunistic utilization of renewable resources readily available in the context. Within the preview of the thesis the potential of developing a sustainable water management scheme for the Negin safari park located in the Fars province of Iran was studied. This Project was undertaken in collaboration with NGO Simba.

Iran is facing a situation of drought for the past few years which has had an adverse impact on the region. One of the communities to have been affected by this are the Qashqai nomads of Iran, who have been threatened with deprivation of their freedom due to the economic woes brought by drought. The Negin safari park being developed in the region aims to uplift this community and provide a platform for them to be able to share their work and culture. However, the influx of tourists due to the development of a Safari park further increases the stress on the depleting water resources in the region. In turn development of water technologies facilitating the reclamation of waste water, conservation of water

and mitigation of extreme withdrawal of resources was extensively explored. Urban water management involves massive investment for the procurement, treatment, storage, collection, re-treatment and discharge of water. Due to the singular supply point and treatment point these facilities fall short in addressing the non-binary water demand. The latent belief is that water quality is binary, either perfectly clean, or entirely dirty. A range of water qualities are required to fulfill the water demand however water once used is considered a waste and is referred to as sewage or waste water, its potential treatment and re-use is not widely considered.

The Fars province of Iran is known to face extreme summer and winter leading to situations of Drought in recent times. NASA has claimed that 70% of Iran will become a dessert and the annual rainfall will also be severely impacted. On comparing the precipitation chart with annual tourist influx we can conclude that the months during which the Fars province experiences the highest amount of rainfall is also the months during which the least tourist numbers are witnessed. This results in an imbalance of when the resource is available and when the resource is required.

42
WATER STRESS MAP (2040 PREDICTION)
ANNUAL RAINFALL VS. YEARLY TOURIST INFLUX

SITE LOCATION AND SURROUNDING

The site is located at a distance of 23.4 Km from the city of Firoozabad. As per Iranian regulations the site is to be placed 750m away from any village or establishment. The site is slightly sloped and does not have a connection to water or electricity grid. NGO Simba

Identified 7 groups on the basis of which the functions can be divided. The groups are Public park consists of a restaurant, butterfly garden, workshops and open play ground; Park w/fee consisting of authentic Qashqai tents, conference Centre, theaters, animal farm and a larger play ground; Safari park housing native animals of the region, Lodging facilities for overnight guest, staff accommodation for all staff working in the park , veterinary and Mosque. On the basis of the functions the daily water demand of the Safari park was calculated.

44
Road connecting to the city Unpaved road Watershed
Site (200 Ha) FIROOZABAD Existing Construction 750 m

Potable water consumption Potable water consumption Non-Potable water consumption

Light grey water

CALCULATED DAILY WATER DEMAND WATER DEMAND AND WASTE WATER GENERATION BASED ON WATER TYPE

Dark grey water Blackwater

45

RAINWATER MEMBRANE BIOREACTOR

CLOSED GREENHOUSE

CONSTRUCTED WETLAND

46
WATER MANAGEMENT SCHEME FOR THE NEGIN SAFARI PARK

SANKEY DIAGRAM INDICATING THE WATER MANAGEMENT SCHEME

A comprehensive water management scheme has been developed to meet the overall demand of the safari park. In the scheme, water is sourced through rainwater harvesting, Atmospheric moisture collection of closed greenhouse, Reclaimed light grey water inclusive of kitchen water and reclaimed black water. The Rainwater is harvested from the roofs of the building and in order to meet the complete potable demand the roof area has to be increase by 28%.

The waste water was divided into two categories as grey water which requires lesser energy to treat the water to better quality as compared to black water. Waste water originating from the kitchen sinks will be made to pass through a de-greaser before being combined with the rest of the grey water originating from showers, washbasins and animal wash downs. Grey water is treated through a membrane bio reactor as the loss of water in the treatment process is 20% due to backwashing and maintenance of the membrane, this is lower as compared to the constructed wetland. Additionally the effluent quality of water provided through this system meets the Iranian waste water reuse standards for laundry.

Black water is passed through a combination of Horizontal subsurface flow constructed wetland and vertical subsurface flow constructed wetland to meet the water re-use quality. However in the process 30% of the water is lost due to evapotranspiration. While the water quality generated meets the Iranian standards for re-use in flushing the water obtained from treatment of black water usually has a brownish color which can stain the pots and add to higher and regular maintenance. Hence the effluent is only used for agricultural and landscape purposes.

The above sankey diagram is one of the many diagrams which were developed to understand the feasible water loops which can be created to achieve water autarky. This loop took into account all water losses due to surface runoff and waste water treatment. It was found that the total water demand can be theoretically effectively met through the implementation of the above mentioned strategies. Following to the selection of the loop the implementation of these strategies on the design of the built form were studied.

47
48 RAINWATER GREYWATER BLACKWATER 5 6 7 1 2 8 9 10 ISOMETRIC SITE PLAN
THE WATER MANAGEMENT
A
INDICATING
SCHEME
49
1 2 3 4 A’
1. CONSTRUCTED WETLAND 2. CLOSED GREENHOUSE 3. TOURIST CENTRE 4. SAFARI PARK 5. VETERINARY HOSPITAL 6. UG RAINWATER STORAGE TANK 7. MEMBRANE BIO REACTOR 8. GUEST ROOMS 9. RECEPTION 10. LODGE

CONSTRUCTED WETLAND

CLOSED GREENHOUSE

CONSTRUCTED WETLAND 01 (horizontal flow)

Phragmites

Tank 2 Inlet Well Gravel

CONSTRUCTED WETLAND 02 (vertical flow)

Tank 5 Inlet Well

Phragmites

Liner

Tank 3 Siphon

Tank 4 Water control device

Tank 6 Water control device

Gravel

Liner

Tank 1 Primary Treatment Water From Septic Tank Water To Green House

50
CALCULATED DAILY WATER DEMAND

Water From Constructed Wetland

Tank 7 Water Storage Tank 7 Water Storage

Water From Constructed Wetland

Cooling tower

Water Collection chamber

Vegetables

Tank 8 Mineralized Water Storage

Water to WB

Cooling tower

Water Collection chamber

Vegetables

Tank 8 Mineralized Water Storage

51 CLOSED GREENHOUSE
Water to WB

SECTION AA

Detail A

Reception Block

Al-Zn corrugated roofing sheet

50x 50 mm MS perlins

150x 75 mm MS rafters

Rain water gutter with leaves filter on top

Mother slab

100 mm Ø PVS pipe to run water down

Towards underground rainwater harvesting tank

DETAIL A SHOWING THE DESIGN OF ROOF TO COLLECT MAXIMUM AMOUNT OF RAINWATER TO FALL ON IT BY INCREASED SURFACE AREA.

52

Constructed Wetland

Polycarbonate sheet

Space frame truss

Closed Greenhouse Tourist centre

Detail B

Al-Zn corrugated roofing sheet

DETAIL B SHOWING THE ROOF DESIGN OF GREEN HOUSE WITH

53

3-D VIEW OF RECEPTION BLOCK

54
55
56

Model Making Ppractices- I ( Brutalism)

Architecture Pedagogy

Location : Jammu, India

Year : 2020 Course taught Individually Course coordinator : Priyadarshini Nanda

57

WORK AT DISPLAY DURING FINAL JURY

1.

2.

This exercise was carried out individually by each student in. In order to simplify the approach to coming up with an innovative final product the steps of the exercise were divided into 5 distinct steps. At the completion of each step the work was reviewed and further help was provided to give direction to their design.

STUDY SELECT

The students were asked to study about the concept of brutalism and its history.

They were further asked to pick an architect of their liking who had built brutal buildings and identify their notable works.

58
STUDENT

3.

4. 5.

ELEMENTS

They were further asked to pick building elements made in poured concrete that they felt were challenging to build

IDEATE GFRC CASTING

Based on the selected elements the students had to further develop a compositin keeping in mind the principles of design

Their final design was built by developing moulds and casting glass fibre reinforced cement in them.

59

STUDENT WORK RESULTANT OF DESIGNED EXERCISE

60
61
62

MISCELLANEOUS PROJECTS

63

WORKING MODEL OF SHADING DEVICE

Location : Delft, Netherlands Year : 2018

Group Project (5 members)

Supervisor : Dr.ing. M. Bilow E-mail : M.Bilow@tudelft.nl

The Cluster was designed as part of the MSc 1 Building Technology course Bucky Lab Design. Partnering up with the shading company CRH Shutter and Awnings, this project focused on the development of innovative concepts to improve homes by serving shade and protection to increase the time spent in the outdoors. A sun shade was designed and a 1:10 model was built in the bucky lab workshop.

The members of the scissor (opening mechanism) were built from laser cut plexi glass modules, It was also realized that the wooden joinery designed for the connection of the arms could not take the stresses of closing and opening, hence a 3d printed joinery was used. While the casing that housed the awning was made of plywood. The awning model was constructed and assembled in the buckylab workshop within a period of 15 days.

White polyester Fabric

Fabric Connector

Angulated scissor unit

64
Ø76 x 1600 mm Deep pile foundation
Electric Motor 3520
760 930 Shutter Roller Mechanism 5mm thk steel base plate 3mm thk Stainless Steel Water Tank Capacity :800 Litre Strutural Framing Struts 80x 120x 5 mm 95 x 660 x 9 mm Channel 235 Stainless Steel 18 mm thk Spruce wood partiton shelf
Corten
top
5 mm thk
Steel
panelling Workshop
SECTION OF SUN SHADING DEVICE

MAKING OF SUN BAKED ADOBE BRICKS

Workshop

Location : Delft, Netherlands

Year : 2018

Group Project (5 members)

Supervisor : Dr.ir. P. (Pirouz) Nourian E-mail : P.Nourian@tudelft.nl

Within this workshop 15 adobe bricks were made by each group using clay, fine sand, coarse sand and water. To this additive materials such as straw, wood-chips, cardboard flakes, cardboard strips, paper and cloth were added. The bricks were then sun dried and passed through a compression strength test to identify the ideal mixture. On the basis of the ideal composition developed the design of the building was worked upon.

65
DIFFERENT COMPOSITIONS OF ADOBE BRICKS AND THEIR YIELD STRESS VALUES

NAMASTE

PRIYADARSHINI NANDA | ARCHITECT | BUILDING TECHNOLOGIST

Turn static files into dynamic content formats.

Create a flipbook
Issuu converts static files into: digital portfolios, online yearbooks, online catalogs, digital photo albums and more. Sign up and create your flipbook.
PRIYADARSHINI NANDA - ARCHITECTURE PORTFOLIO by Priyadarshini Nanda - Issuu