TORRE VELASCA, 1958

Estúdio de arquitetura e design estabelecido em Milão, fundado pelos
arquitetos: Gian Luigi Banfi, Lodovico
Barbiano di Belgiojoso, Enrico Peressutti e Ernesto Nathan Rogers.
Sua filosofia está entre tradição e modernidade;
Influeciados pelo racionalismo italiano; Buscavam respeitar o ambiente préexistente.
Localizada no centro de Milão, em seu entorno estão a Duomo Di Milano e o Castello Sforzesco.
Reproduzir a “atmosfera” de Milão, estabelecendo um diálogo com seus edifícios históricos; Representar a resposta funcional resultante da reinterpretação do Racionalismo; Referência à arquitetura medieval lombarda.
Silhueta “cogumelo”
Garagem subterrânea
Lojas
Exposições
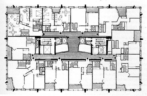
Escritórios
Escritório e residencial
Serviços
Residencial
Concreto armado com revestimento em pedra;
Fachadas pontuadas pelas nervuras
da estrutura portante que se conectam às vigas oblíquas que surgem do décimo quinto andar;
Janelas rectangulares de tamanhos iguais distribuídas nas fachadas de forma irregular;
"Janelas cegas " sugerida pela
mesma moldura estrutural das
janelas que são tamponadas por painéis pré-fabricados em cimento
e pórfiro rosa.
NIIPROGETTI. La nuova torre velasca di milano. Disponível em: https://www.niiprogetti.it/la-nuovatorre-velasca-di-milano/. Acesso em: 6 jul. 2023.
ARCHDAILY. Clássicos da AD: Torre Velasca / BBPR. Disponível em: https://architectuul.com/architect/bbpr. Acesso em: 5 jul. 2023.
ARCHEYES. Velasca Tower: The Intersection of Technology and Historicism by BBRP Architects. Disponível em: https://archeyes.com/velasca-tower-technology-vs-historicism/. Acesso em: 5 jul. 2023.
ARCHITECTUUL. Torre Velasca. Disponível em: file:///C:/Users/prisc/Desktop/Torre%20Velasca%20_%20Arquitet%C3%B4nico.html. Acesso em: 5 jul. 2023.
MEET WEEKEND. La storia del vino di Torgiano. Disponível em: https://www.meteweekend.it/luoghi/lastoria-del-vino-di-torgiano/. Acesso em: 5 jul. 2023.
O GUIA DE MILÃO. A torre Velasca em Milão. Disponível em: https://www.oguiademilao.com/a-torrevelasca-em-milao/. Acesso em: 6 jul. 2023.
PROGETTO STORIA DELL´ARTE. I BBPR e la torre velasca a milano. Disponível em: https://www.progettostoriadellarte.it/2021/05/19/i-bbpr-e-la-torre-velasca-a-milano/. Acesso em: 5 jul. 2023.
URBIPEDIA. Torre velasca. Disponível em: https://www.urbipedia.org/hoja/Torre_Velasca. Acesso em: 5 jul. 2023.
VEKUBA. Analyse_architecturale_Torre_Velasca_BBPR. Disponível em: https://vebuka.com/print/151013203557-f2afe698e139abc406f5109ade0f0fc0/Analyse_architecturale_-
_Torre_Velasca_-_BBPR. Acesso em: 5 jul. 2023.