ARCHITECTURE PORTFOLIO

UNDERGRADUATE PORTFOLIO - SELECTED WORK 2076-2079
PRASANNA PAUDEL
KAT076BAR030
UNDERGRADUATE PORTFOLIO - SELECTED WORK 2076-2079
PRASANNA PAUDEL
KAT076BAR030
ARCHITECTURE STUDENT
ABOUT
I am an undergraduate architecture student curently pursuing my Bachelors in Architecture from Kathmandu Engineering College.
PERSONAL INFORMATION
Name: Prasanna paudel
DOB: 2058-01-14
Nationality: Nepali
Hometown: Dhading,Nepal
LANGUAGE: Nepali, English
Model Making
Origami and Kirigamy
Sports Photography
CONTACT INFORMATION
Mobile No:9840007936
Email:
paudelprasanna5@gmail.com
Adress:
Yatayat,Gurjudhara,Chandragiri
EDUCATION
2019-present: Kathmandu Engineering College,Kalimati
2019: ED-MARK Academy,, Kalanki
2017: Wisdom English Academy, Kalanki
ACADEMIC PROJECTS
1st semester: Composition in design
Model of high-rise building
Lamp design
2nd semester: Form transformation
Interior design
Art and Grapgics
Book cafe
3rd semester: Residence design
Departmental store
4th semester: School design
5th semester: University design
6th semester: Urban entertainment hub
WORKSHOPS AND INTERACTIVE SESSIONS
Wood workshop
Art of living
Poem competition
Rangoli comprtitionw
Drawing competition
LTI sessions held by AKAR
Sports competition
Asian paint interactive class
SOFTWARE PROFICIENCY
1. RESIDENCE DESIGN
Kalimati, Kathmandu
2. SCHOOL DESIGN
Sunakothi, Lalitpur
3. UNIVERSITY DESIGN
Dahachowk, Kathmandu
4. URBAN ENTERTAINMENT HUB
Satdobato, Lalitpur
5. BOOK CAFE
Kalimati, Kathmandu
6. INTERIOR DESIGN
Living Room
7. MUNICIPAL DRAWING Residence
8. MISCELLANEOUS
Freehand, Art And Graphics etc
RESIDENCE DESIGN
RESIDENCE DESIGN FOR FAMILY OF 4 NEAR KATHMANDU ENGINEERING COLLEGE ,KALAMITI, KATHMANDU
INTERIOR DESIGN
BOOK CAFE
SCHOOL DESIGN
RESIDENCE DESIGN
UNIVERSITY DESIGN
Living Room
Kalimati, Kathmandu
Sunakothi, Lalitpur
Kalamiti, Kathamndu
Dahachowk, Kathmandu
PROJECT DETAIL
TOTAL LAND AREA: 6327.96 sq m
ALLOWABLE GC: 60%
GROUND COVERAGE:40.3%
FAR: 3.5
BUILDING FORM OBTAINED FROM 3*3
GRID FOLLOWING THE SENTENCE “3 IS BEST ON PLATE” WHILE SERVING
BOOK CAFE
Kalimati, Kathmandu
RESIDENCE DESIGN Kalamiti, Kathamndu
UNIVERSITY DESIGN Dahachowk, Kathmandu SCHOOL DESIGN Sunakothi, Lalitpur
MATERIAL: BRICK CLADDING, PLASTER,WOOD
USE OF CLEATS
SOUTH ELEVATION
INTERIOR DESIGN
BOOK CAFE
SCHOOL DESIGN
RESIDENCE DESIGN
UNIVERSITY DESIGN
Living Room
Kalimati, Kathmandu
Sunakothi, Lalitpur
Kalamiti, Kathamndu
Dahachowk, Kathmandu
WEST ELEVATION
BOOK CAFE
SCHOOL DESIGN
UNIVERSITY DESIGN
RESIDENCE DESIGN
Kalimati, Kathmandu
Sunakothi, Lalitpur
Kalamiti, Kathamndu
Dahachowk, Kathmandu
VIEW OF LIVING ROOM VIEW OF MASTER BEDROOMSCHOOL DESIGN
SCHOOL DESIGNED NEAR BALKUMARI TEMPLE
INTERIOR DESIGN
BOOK CAFE
UNIVERSITY DESIGN
Living Room
Kalimati, Kathmandu
Dahachowk, Kathmandu SCHOOL DESIGN
Sunakothi, Lalitpur
PROJECT DETAIL
TOTAL LAND AREA:8997 sq m
ALLOWABLE GC: 40%
GROUND COVERAGE:26.7%
FAR: 1.5
UNITY: BEST EXAMPLE TO REPRESENT UNITY CAN BE BEE. HONEYCOMB IS RESULT OF ITS EFFORT TOGETHER.
UNITY HELP IN ALL-ROUND DEVELEPOMENT OF CHILDREN SCHOOL IS A PLACE WHERE CHILDREN FROM VARIOUS CULTURE, RACES COMES TOGETHER AS A COHESIVE UNIT.
LOOSEN UP THE SPACES FOR VENTILLATION AND LIGHT
BOOK CAFE
Kalimati, Kathmandu UNIVERSITY DESIGN Dahachowk, Kathmandu SCHOOL DESIGN Sunakothi, Lalitpur
INTERIOR DESIGN
Living Room BOOK CAFE Kalimati, Kathmandu UNIVERSITY DESIGN Dahachowk, Kathmandu SCHOOL DESIGN Sunakothi, Lalitpur
WEST ELEVATION
BOOK CAFE
Kalimati, Kathmandu UNIVERSITY DESIGN
Dahachowk, Kathmandu SCHOOL DESIGN Sunakothi, Lalitpur
INTERIOR DESIGN
BOOK CAFE
Living Room
Kalimati, Kathmandu UNIVERSITY DESIGN
Dahachowk, Kathmandu SCHOOL DESIGN
Sunakothi, Lalitpur
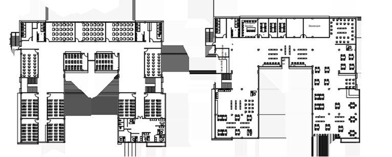
UNIVERSITY DESIGN ( GROUP PROJECT)
LIVE PROJECT FOR FUTURE BUILDING OF KATHMANDU ENGINEERING COLLEGE, DAHACHOWK, KATHMANDU
UNIVERSITY DESIGN
BOOK CAFE
SCHOOL DESIGN
UNIVERSITY DESIGN
Dahachowk, Kathmandu
Dahachowk, Kathmandu
Kalimati, Kathmandu
Sunakothi, Lalitpur
TOTAL LAND AREA:8997
ALLOWABLE GC: 50%
GROUND COVERAGE: 34.32%
FAR: 2
PARKING: 20%
COLLEGE LOGO:
TRANSFORMATION OF SWOSTIK SYMBOL TO SEPERATE PATHWAYS, BUILING BLOCKS, OPEN AREAS
INTERIOR DESIGN
BOOK CAFE
UNIVERSITY DESIGN
Living Room
Kalimati, Kathmandu
Dahachowk, Kathmandu
WEST ELEVATION
FRONT ELEVATION
INTERIOR DESIGN
BOOK CAFE
UNIVERSITY DESIGN
Living Room
Kalimati, Kathmandu
Dahachowk, Kathmandu
BOOK CAFE
Kalimati, Kathmandu UNIVERSITY DESIGN Dahachowk, Kathmandu
BOOK CAFE
Dahachowk, Kathmandu
Kalimati, Kathmandu UNIVERSITY DESIGN
AN ENTERTAINMENT HUB INCLUDING VARIOUS ACTIVITIES INCLUDING SHOPPING, GAMING, ETC
Satdobato, Lalitpur
TOTAL LAND AREA:8618.29
ALLOWABLE GC: 50% GROUND COVERAGE:39.4%
FAR: 3.5
FLUCTUATION: UPS AND DOWNS DURING THE RUNNING PERIOD OF THE HUB IN TERMS OF BUSINESS
Satdobato, Lalitpur
WEST ELEVATION
NORTH ELEVATION
SOUTH EKEVATION
Satdobato, Lalitpur
EAST ELEVATION
Satdobato, Lalitpur
BOOK CAFE NEAR KATHMANDU ENGINEERING COLLEGE, KALIMATI
INTERIOR DESIGN
BOOK CAFE
Living Room
Kalimati, Kathmandu
TOTAL LAND AREA: 1777.78 sq m
ALLOWABLE GC: 3%
GROUND COVERAGE: 39.4%
FAR: 3.5
BUILDING FORM OBTAINED FROM THE BOOK AND SIMILARLY ELEVATION TREATMENT IS ALSO GIVEN TO THE BUILDING
Kalimati, Kathmandu
NORTH ELEVATION
WEST ELEVATION
MUNICIPAL DRAWING
FIRST FLOOR PLAN
GROUND FLOOR PLAN
SOUTH ELEVATION
EAST ELEVATION
MUNICIPAL DRAWING
TOP FLOOR PLAN
INTERIOR DESIGN Living Room
MISCELLANEOUS
FREEHANAD, ART AND GRAPHICS, CUT AND PASTE,ETC
MISCELLANEOUS
FREEHAND, ART AND GRAPHICS,ETC
CUT AND PASTE
FREEHAND SKETCHING
POINTILLISM
LANDSCAPING
MISCELLANEOUS FREEHAND, ART AND GRAPHICS,ETC
CUT AND PASTE PLAN
THESIS MODEL MAKING BATCH 2073
THESIS MODEL MAKING BATCH 2071
MISCELLANEOUS FREEHAND, ART AND GRAPHICS,ETC
HIGH RISE
POINT AND LINE