Karya Tugas Akhir

Page 1

   PUTRI NURAINI 18660049 Dosen Pembimbing : 1. ACHMAD GAT GAUTAMA, M.T 2. LULUK MASLUCHA, S.T, M.Sc Program Studi Teknik Arsitektur Fakultas Sains dan Teknologi UIN Maulana Malik Ibrahim Malang 2022
 Laporan tugas akhir ini telah dipertahankan di hadapan dosen pembimbing dan diterima sebagai salah satu syarat memperoleh gelar Sarjana Arsitektur (S.Ars) di UIN Maulana Malik Ibrahim Malang Oleh: PUTRI NURAINI 18660049 Judul : Perancangan Creative Space sebagai Upaya Pemberdayaan Penyandang Tuna Daksa Tanggal Ujian : 16 Juni 2022 Disetujui Oleh : ii Perancangan Creative Space: Upaya Pemberdayaan Penyandang Tuna Daksa
 Laporan tugas akhir ini telah dipertahankan di hadapan dewan penguji dan diterima sebagai salah satu syarat memperoleh gelar Sarjana Arsitektur (S.Ars) di UIN Maulana Malik Ibrahim Malang Oleh: PUTRI NURAINI 18660049 Judul : Perancangan Creative Space sebagai Upaya Pemberdayaan Penyandang Tuna Daksa Tanggal Ujian : 16 Juni 2022 iii
Creative Space: Upaya Pemberdayaan Penyandang Tuna Daksa
Perancangan

Saya yang bertandatangan dibawah ini: Nama Mahasiswa: Putri Nuraini NIM : 18660049 Program Studi : Teknik Arsitektur Fakultas : Sains dan Teknologi Dengan ini saya menyatakan, bahwa isi sebagian maupun keseluruhan laporan Tugas Akhir saya dengan judul:

PERANCANGAN CREATIVE SPACE SEBAGAI UPAYA PEMBERDAYAAN PENYANDANG TUNA DAKSA

adalah benar-benar hasil karya intelektual mandiri, diselesaikan tanpa menggunakan bahan-bahan yang tidak diijinkan dan bukan merupakan karya pihak lain yang saya akui sebagai karya sendiri. Semua referensi yang dikutip maupun dirujuk telah ditulis secara lengkap pada daftar pustaka. Apabila ternyata pernyataan ini tidak benar, saya bersedia menerima sanksi sesuai peraturan yang berlaku.

Malang, 21 Juni 2022 Yang membuat pernyataan; Putri Nuraini NIM. 18660049

Perancangan Creative Space: Upaya Pemberdayaan Penyandang Tuna Daksa iv



Puji

Adapun tujuan penulisan dari laporan Tugas Akhir ini adalah untuk memperoleh gelar Sarjana Arsitektur (S.Ars). Selain itu, laporan Tugas Akhir ini juga bertujuan untuk menambah wawasan bagi para pembaca dan juga bagi penulis.

Penulis ucapkan banyak terima kasih kepada banyak pihak karena berkat bantuan, bimbingan, doa dan kerjasamanya, penulis dapat menyelesaikan laporan Tugas Akhir ini tepat pada waktunya. Adapun pihak pihak tersebut diantaranya :

1. Prof. Dr. H.M. Zainuddin, MA, selaku Rektor Universitas Islam Negeri Maulana Malik Ibrahim Malang.

2. Dr. Sri Harini, M.Si, selaku Dekan Fakultas Sains dan Teknologi UIN Maulana Malik Ibrahim Malang

3. Dr. Nunik Junara, MT, selaku Ketua Program Studi Teknik Arsitektur UIN Maulana Malik Ibrahim Malang

4. Achmad Gat Gautama, M.T, selaku dosen pembimbing 1 dan Luluk Maslucha, S.T, M.Sc selaku dosen pembimbing 2, yang telah memberikan banyak bimbingan, arahan, saran, koreksi, ilmu serta pengetahuan yang tak ternilai selama masa kuliah, terutama saat proses penyusunan laporan tugas akhir ini.

5. Prof. Dr. Agung Sedayu M.T dan Agus Subaqin, M.T, selaku dosen penguji yang telah memberikan saran, arahan serta pengetahuan yang tak ternilai selama masa kuliah, terutama saat proses penyusunan laporan tugas akhir.

6. Seluruh praktisi, dosen dan karyawan Program Teknik Arsitektur UIN Maulana Malik Ibrahim Malang

7. Orang tua, Keluarga serta kerabat yang telah mendoakan tiada henti, memberikan semangat, kasih sayang serta seluruh materi dan kerja kerasnya dalam menyusun laporan tugas akhir ini.

8. Teman dan Sahabat yang senantiasa mendengarkan keluh kesah, membantu, memberikan motivasi, mendoakan dan menyemangati dalam menyelesaikan laporan tugas akhir ini.

9. Last but not least, I wanna thank me for believing in me, I wanna thank me for doing all this work, I wanna thank me for having no days off, I wanna thank me for never quitting, for just being me at all times.

Penulispun menyadari, bahwa laporanTugas Akhir ini masih banyak kekurangan dan perlupenyempurnaan. Olehkarena itu, sangat diperlukanpenelitian yang berkelanjutan sesudahnya untuk menyumbangkan pengetahuan kepada penulis demi kesempurnaan laporan Tugas Akhir ini.

V

Perancangan Creative Space: Upaya Pemberdayaan Penyandang Tuna Daksa Assalamualaikum Wr. Wb. syukur kehadirat Allah SWT yang telah memberikan segala rahmat , taufik, dan hidayah Nya sehingga penulis dapat menyelesaikan laporan Tugas Akhir yang berjudul “PERANCANGAN CREATIVE SPACE SEBAGAI UPAYA PEMBERDAYAAN PENYANDANG TUNA DAKSA”. Wassalamualaikum Wr. Wb Malang, 22 Juni 2022 Penulis

Nuraini, Putri. 2021. Perancangan Creative Space Sebagai Upaya Pemberdayaan Penyandang Tuna Daksa.

Dosen Pembimbing AchmadGat Gautama, M.T dan Luluk Maslucha S.T, M.Sc Kata Kunci : Fasilitas, Penyandang tuna daksa, Creative Space

Kota Malang menduduki peringkat ke dua dengan penduduk terpadat setelah kota Surabaya di Jawa Timur. Hal tersebut membuat pemerintah kota Malang untuk meningkatkan kesejahteraan sosial masyarakatnya dengan memperhatikan kembali terkait dengan fasilitas umum, khususnya bagi para penyandang tuna daksa. Namun di kota Malang sendiri,masih terbilang kurang terkait dengan sarana dan prasarana yang mampu mewadahi para penyandang tuna daksa.Kehadiran para penyandang tuna daksa sendiri pun seringkali dipandang sebelah mata oleh masyarakat umum. Tak jarang dari mereka pun sering menganggap rendah para penyandang tuna daksa. Melihat dari kondisi tersebut, sebagian dari para penyandang tuna daksa ini lebih memilih beralih profesi menjadi gelandangan, pengamen maupun pengemis di jalanan karena tidak adanya ruang bagi mereka untuk berkreasi maupun berinovasi.

Perancangan creative space yang ditujukan bagi para penyandang tuna daksa ini, diharapkan bisa membantu keberadaan mereka untuk memenuhi sarana dan prasarana yang dibutuhkan. Terlebih lagi dengan menerapkan prinsip-prinsip arsitektur perilaku pada perancangan, diharapkan mampumenyesuaikan kebutuhan para penyandang tuna daksa sesuai dengan standar perilaku dan aktivitas dari penyandang tuna daksa itu sendiri. Selain itu, perancangan creative space ini juga menyesuaikan dengan perkembangan ekonomi kreatif di kota Malang, sehingga keberadaan creative space ini akan selalu hidup seiring dengan perkembangan zaman.

vi
Perancangan Creative Space: Upaya Pemberdayaan Penyandang Tuna Daksa 

Nuraini, Putri. 2021. Creative Space Design as an Effort to Empower People with Disabilities.

Keywords : Facility, Physically disabled, Creative Space

Malang is the second most populous city after Surabaya in East Java. This makes the Malang city government to improve the social welfare of its people by paying attention to publicfacilities, especiallyfor people with physical disabilities. However, in the city of Malang itself, it is still relatively lacking in terms of facilities and infrastructure that can accommodate disabled people. The presence of physically disabled people is often underestimated by the general public. Not infrequently they also often underestimate the physically disabled. Judging from these conditions, some of these physically disabled people prefer to switch professions to become homeless, buskers or beggars on the streets because there is no room for them to be creative or innovate.

The design of this creative space, which is intended for people with physical disabilities, is expected to be able to help their existence to meet the required facilities and infrastructure. Moreover, by applying the principles of behavioral architecture to the design, it is hoped that it will be able to adjust the needs of people with disabilities in accordance with the standards of behavior and activities of people with disabilities themselves. In addition, the design of this creative space also adapts to the development of the creative economy in the city of Malang, so that the existence of this creative space will always live in line with the times.

Ii 2 [Date] vii
Perancangan Creative Space: Upaya Pemberdayaan Penyandang Tuna Daksa

Supervisor Achmad Gat Gautama, M.T dan Luluk Maslucha S.T, M.Sc
viii
Perancangan Creative Space: Upaya Pemberdayaan Penyandang Tuna Daksa
Ii 1 [Date] Perancangan Creative Space: Upaya Pemberdayaan Penyandang Tuna Daksa                           ix                 
x Perancangan
                                                  
Creative Space: Upaya Pemberdayaan Penyandang Tuna Daksa
I PENDAHULUAN

PENDAHULUAN

STUDI AWAL

Kota Malang menjadi kota terpadat kedua setelah Surabaya dengan jumlah penduduk sebanyak 843 810 jiwaditahun2020[1]. Kotaini masih banyak kekurangan terkait dengan fasilitasnya, terutama bagi penyandang disabilitas[2]. Hal tersebut menjadikan upaya bagi pemerintah Kota Malang untuk meningkatkan kesejahteraan sosial bagi penyandangdisabilitas[3].(Undang UndangNo. 4/1997 tentang Penyandang Disabilitas dan Peraturan Pemerintah 43/1998 tentang Upaya Meningkatkan Kesejahteraan Sosial Penyandang Disabilitas).

Creative space merupakan suatu ruang/tempat, baik fisik maupun nonfisik yang menyatukan komunitas, memberi ruang dan dukungan untuk komunitas atau orang yang berkreasi mengumpulkan, mengembangkan bisnis, serta dibidang lainnya seperti kreatifitas, teknologi dan budaya. Perkembangan creative space di Kota Malang sendiri belum begitu banyak. Padahal jika dilihat dari sisi ekonominya, creative space ini merupakan salah satu penunjang dari ekonomi kreatif yang mampu meningkatkan kesejahteraan bagi penyandang disabilitas.

Di dalam banyak literatur, disabilitas sendiri tidak terlepas dari pembahasan tentang kesehatan, salah satunya penyandang tuna daksa. Tuna daksa yang menurut KBBI berasal dari kata “ Tuna “ yang berarti rugi atau kurang dan “daksa“ berartitubuh.

Kreativitas Pengguna

Creative Space

Ekonomi Kreatif

Diambil dari data dinas sosial kota Malang, penyandang tuna daksa di Kota Malang memiliki angka 130 jiwa[4]. Kecamatan Sukun merupakan peringkat pertamadiKota Malang dengan jumlah penyandang terbanyak. Dari jumlah data diatas, pemerintah Kota Malang memperkirakan masih banyak penyandang disabilitas yang tidak termasuk dalam data tersebut. Halinidisebabkan oleh argumen dari masyarakat yang menganggap bahwa disabilitas adalah sebuah aib/penyakit yang harus ditutupi.

Perancangan Creative Space: Upaya Pemberdayaan Penyandang Tuna Daksa

1
Tabel 1.1. Data Jumlah Penduduk Provinsi Jawa Timur (Jiwa), 2020 Sumber : BPS Provinsi Jawa Timur Tabel 1.2 Data Jumlah Penyandang Disabilitas Kota Malang (Jiwa), 2019 Sumber : BPS Kota Malang Diagram 1.1. Keterkaitan Creative Space dengan kreatifitas pengguna dan ekonomi kreatif

Keterkaitan dengan pendekatan yang diambil yakni “Pendekatan Arsitektur Perilaku”, kesesuaian objek terhadap perilaku dari masing-masing penyandang tuna daksa dapat terimplementasi secara maksimal. Nilai keislamandalamrancanganinidapatdilihatdalamAl Qur’ansurah Sad ayat27 yang artinya : “Dankamitidakmenciptakanlangitdanbumidanapayangada diantara keduanya tanpa hikmah. Yang demikian adalah anggapan orang orang kafir, maka celakalah orang orang kafir itu karena mereka akan masuk neraka.” (QS Sad : 27). Hal ini membuktikan bahwa dengan menerapkan pendekatan arsitektur perilaku dalam objek perancangan ini sangat bermanfaatbagi penyandang tuna daksa.

Adapun dalam Al Qur’an surah An nahl ayat 90 yang berbunyi :” Sesungguhnya Allah menyuruh (kamu) berlaku adil dan berbuat kebajikan, memberi kepada kaum kerabat, dan Allah melarang dari perbuatan keji, kemungkaran dan permusuhan. Dia memberi pengajaran kepadamu agar kamudapat mengambil pelajaran..” (QS An-nahl : 90). Dalam perancanganini pun membuktikan bahwasanya antara penyandang tuna daksa dengan manusia lainnya dapat menjalin hubungan baik tanpa melihat sisi perbedaan yang nampaksebagaimanamakhluksosialdengan nilai kebersamaannya.

Dalamsurah Al-Insyiqaq Ayat 84 yangberarti: “Hai manusia, sesungguhnya kamu telah bekerja dengan sungguh sungguh menuju Tuhanmu, maka pasti kamu akan menemui Nya.” Kitadiajarkanagar selalugiat dan bekerjakeras.

ISSUE

Masalah ekonomi Ketimpangan sosial Pengembangan potensi

FUNGSI OBJEK

"Creative Space bagi penyandang tuna daksa"

Kesejahteraan sosial Pengembangan kreativitas

Perancangan Creative Space: Upaya Pemberdayaan Penyandang Tuna Daksa

2
Creative
Economy
Diagram 1.2. Skema Issue dan Fungsi Objek

TUJUAN DESAIN

Jikamelihatdaripermasalahandiatas,fasilitas atau sarana di Kota Malang terkait dengan penyandang disabilitas masih banyak kekurangan. Kurangnya wadah untuk berkreasi dan mengembangkan potensi diri bagi penyandang tuna daksa membuat banyaknya angka pengangguran sehingga alih profesi menjadi gelandangan dan turun ke jalan adalah kunci perekonomian mereka. Ketimpangan sosial pun marak terjadi dengan keterbatasan yang dimilikinya, sehingga banyak dari penyandang tuna daksa memilih diam dirumah untuk menutupi aib yang ada.

Oleh karena itu tujuan dari perancangan ini adalahuntukmemberikanfasilitasatausaranabagi penyandang tuna daksa berkreasi, berkarya dan mengembangkan potensi dirinya. Selain itu perancangan ini juga bertujuan untuk mengatasi ketimpangan sosial yang terjadi di masyarakat dan mendorong sektor ekonomi kreatif. Diharapkan dengan perancangan objek dengan menerapkan pendekatan arsitektur ini mampu mempermudah penyandang tuna daksa untuk bebas berekspresi tanpa adanya kekhawatiran dengan keterbatasan yang dimilikinya.

TUJUAN DESAIN

Diagram 1.3. Tujuan Desain

Mewadahi aktivitasdan kreativitas penyandang tunadaksa

Tak sebatas mengedepankan pengguna, pada perancangan objek ini pun menghadirkan konsep greenandhealthybuildingyangdimodifikasisecara kreatif sehingga menghasilkan bentuk rancangan yang mempunyai nilai healthy and friendly environtment pada komponen secara mikro maupunmakro.

Menggunakan Pendekatan Arsitektur Perilaku

MATERIAL

Penggunaan material yang ramah bagi penyandang disabilitas

SISTEM PENCAHAYAAN & PENGHAWAAN

Memaksimalkan pencahayaan dan penghawaan alami dalam perancangan

KRITERIA DESAIN

Kriteria Desain perancangan ini merupakan penerapan dari pendekatan “Arsitektur Perilaku” yang mana penyandang tuna daksa ini menjadi objek dari perancangan ini. Diharapkan melalui pendekatan ini, perancangan objek mampu mengatasi permasalahan fasilitas yang ramah terhadap penyandang disabilitas, terlebih kepada penyandangtunadaksa.

Menyediakan fasilitas yang ramah bagi penyandang tuna daksa

Menyediakan tempat untuk berlangsungnya interaksi sosial

KRITERIA

Menerapkan konsepgreen andhealth building

3
Perancangan Creative Space: Upaya Pemberdayaan Penyandang Tuna Daksa Mengurangi populasi pengangguran dan gelandangan Membangun creative economy Mengatasi ketimpangan sosial yang terjadi Diagram 1.4. Skema Kriteria Desain

RUANG LINGKUP

Dalam skala pengguna dari rancangan objek ini diperuntukkan bagi masyarakat Kota Malang dan luar Kota Malang. Fokus utama rancangan objek ini lebih ditujukan kepada penyandangdisabilitaskhususnya tunadaksa, yang mana di kota Malang sendiri masih kurangnya fasilitas yang memperhatikan si pengguna. Tidak adanya batasan usia sehingga siapapun dapat menggunakan atau sekedar mengunjungi objek ini denganbebas.

Terkait dengan fungsinya yang sebagai edukasi dan pengembangan potensi, perancangan ini mencakup workspace, tempat pengembangan pelatihan, tenant untuk mewadahi umkm, dan gedung serbaguna yang digunakan sebagai tempat pertunjukanseni maupungaleri seni.

Ruang lingkup dari perancangan objek ini menggunakan pendekatan “Arsitektur Perilaku” yakni pendekatanyang sangatmempertimbangkan dari penggunanya sehingga perancangan ini tepat sasaran dan sesuai dengan kebutuhan penggunanya. Penggabungan konsep green and health building menunjang keberhasilan perancangan yang sesuai dengan kebutuhan di lokasi site.

Perancangan Creative Space: Upaya Pemberdayaan Penyandang Tuna Daksa

4
SEMUA ORANG
RUANG LINGKUP PENGGUNA PENGUNJUNG CHILDREN TEENAGER ADULT OLD PENGGUNA FASILITAS PENGELOLA PEDAGANG RUANG LINGKUP OBJEK TENANT WORKSPACE & WORKSHOP AMPITEATER Area kerjadan berkreasi AreaPengembangan Pelatihan AreaUMKM, pemasaran Karya Area untuk kegiatanberskala besar Diagram 1.6. Ruang Lingkup Objek Diagram 1.5. Ruang Lingkup Pengguna PENUNJANG Area Penunjang Ibadah, Kebutuhan Buang air, Maintenance/Service

II DATA

DATA

REFERENSI OBJEK DESAIN

Ruang kreatif atau yang saat ini dikenal dengan sebutan Creative Space merupakan ruang suatu atau berbagai komunitas sebagai cara berproses kreatif untuk memberikan sebuah motivasi, pengalaman, ilmu maupun karya kepada banyak orang [5].

Terkait dengan fungsi primernya sendiri, creative space ini menjadi wadah bagi para penyandang tuna daksa untuk menuangkan ide dan kreativitas serta menjadi ruang bagi mereka untuk berinovasi dengan kemampuan yang dimilikinya. Disamping itu, fungsi primer dari creative space ini juga dimaksudkan sebagai ruang pelatihan untuk berkarya serta mendorong sektor ekonomi kreatif di Kota Malang.

Fungsi sekunder dari adanya creative space ini membantu dari sisi psikologis penyandang tuna daksa agar lebih percaya diri untuk berkarya dan meminimalisir ketimpangan sosial yang terjadi serta sebagai area untuk memamerkan hasil karya. Fungsi tersier lainnya merupakan fasilitas penunjang lain dari creative space ini seperti maintenance, service, ibadah,maupunkegiatanbuang air.

Perancangan Creative Space: Upaya Pemberdayaan Penyandang Tuna Daksa
FUNGSI PRIMER SEKUNDER TERSIER WORKSHOP AND WORSPACE TOKO/ SHOP MAINTENANCE ROOM AMPHITEATER SERVICE  RUANG KERJA BERKREASI DAN BERINOVASI  RUANG PENGEMBANGAN PELATIHAN  AREA UKM  AREA UNTUK MEMAMERKAN HASIL KARYA KERAJINAN TANGAN BERSKALA KECIL  AREA UNTUK MEWADAHI KEGIATAN SEPERTI SEMINAR PELATIHAN, PAMERAN HASIL KARYA DENGAN SKALA BESAR MAUPUNEVENT EVENTLAINNYA.  AREA PENGELOLA  AREA SECURITY  AREA PENYIMPANAN  AREA UTILITAS  AREA PERIBADATAN  AREA PARKING Diagram 1.7. FUNGSI CREATIVE SPACE 5

REFERENSI OBJEK DESAIN

Dimensi Ruang :

Material

FASILITAS

1. WORKSHOP & WORKSPACE

Ruang kerja sekaligus ruang pelatihan yang terdapat di creative space ini merupakan ruang kerja berskala kecil yang mana hanya pekerjaan ringan saja yang dilakukan seperti membuat roti dan makanan lainnya, serta kerajinan tangan. Untuk ruang workshop dan workspace ini tergabung,halinibertujuanuntukmenarikangka minat pengunjung akan keahlian maupun ide/inovasi yang dimiliki penyandang tuna daksa serta dapat melihat dan ikut serta berpartisipasi dalam kegiatanproses pembuatan. Untukstandarkualitasruangyangharusada dalam ruangkerjainisebagai berikut:

1. Untuk ruang kerja membutuhkan penghawaan alami dan buatan yang cukup dan efektif [6]

2. Memiliki sistem pencahayaan alami dan buatanyangcukupuntukmenunjangkegiatan [6]

3. Terdapat alatuntuk pemadam kebakaran dan persediaanP3k

4. Tersedianyakualitas utilitas yangbaik

5. Ruang dengan tingkat kenyamanan dan keamanan yang tinggi bagi pengguna tuna daksa

Gambar 1.1. Dimensi Ruang kerja Sumber : Data Arsitek jilid 2

Semen Fiber

DINDING

Ringan dan Panel panel nya mudah diatur dan dilubangi Tahan api, air, Jamur dan benturan

Mampu menyerap suara dan panas dengan baik Tidak mengandung asbes sehingga aman untuk pengguna

Ringan dan terkesan rapih Tahan api, air, Jamur dan benturan

Mampu menyerap suara dan panas dengan baik Tidak mengandung asbes sehingga aman untuk pengguna

Gypsumboard

PLAFOND

MATERIAL

LANTAI

Keramik Bertekstur

Aman bagi pengguna difabel karena tidak khawatir licin Membantu keadaan thermal ruang lebih nyaman

Diagram 1.8. Jenis Material untuk bangunan workshop dan workspace

Perancangan Creative Space: Upaya Pemberdayaan Penyandang Tuna Daksa

6

REFERENSI OBJEK DESAIN

Dimensi Ruang

FASILITAS

2. TOKO/SHOP

Toko disini merupakan sebuah bangunan yang nantinya akan disewakan kepada pengguna guna melakukan kegiatan seperti berjualan dan memamerkan seni, membuka cafeshop, florist shop, barang souvenir maupun barang lain hasil kreasi daninovasi dari si penyewa.

Untuk standar kualitas ruang dari tenant ini sebagaiberikut:

1. Material yang digunakan harus aman dan sehatagarmenciptakankenyamananbagisi pengguna

2. Warna dari bangunan diberi kesan putih polos agar nantinya bangunan ini bisa di kreasikankembali olehsi penyewa

3. Memiliki bukaan yang lebar untuk memaksimalkan pencahayaan dan penghawaanalami

4. Tersedianya utilitas yang baik seperti keamananlistrik,tersedianyaalatpemadam kebakaransertaair bersih.

Gambar 1.3. Dimensi Tenant Shop

Sumber : Data Arsitek jilid 2

Gambar 1.2. Dimensi Tenant Shop

Sumber : Data Arsitek jilid 2

Perancangan Creative Space: Upaya Pemberdayaan Penyandang Tuna Daksa

7

REFERENSI OBJEK DESAIN

FASILITAS

Dimensi Ruang

3. AMPITEATER

Ampiteater ini nantinya akan digunakan sebagai wadah untuk menampung kegiatan yang berskala besar. Fasilitas yang terdapat di dalam gedungini berupaauditorium, toilet, gudang dan ruangpengelola.

Untuk standar kualitas ruang dari ampiteater inisebagai berikut : 1. Menggunakan material yang kokoh dan aman pengguna guna menciptakan kenyamanan bagi pengguna 2. Memiliki alur sirkulasi ramah penyandang tuna daksa 3. Area dibiarkan kosong dengan panggung di depannya. Tidak diberi tempat duduk permanen namun disesiakan space untuk tempatdudukdansirkulasi 4. Memaksimalkan jarak agar memudahkan para penyandang tuna daksa bergerak bebas 5. Tersedianyautilitasyangbaik 6. Karakteristik warna di dominasi oleh warna putihdan abu abuagar terkesannetral 7. Mampumenampung 50-200Orang

Terkait dengan Jarak Pandang dan Lighting.

Gambar 1.4. Dimensi Jarak Pandang dan Lighting Sumber : Data Arsitek jilid 2

Gambar 1.5. Dimensi Jarak Pandang dan Lighting

Sumber : Data Arsitek jilid 2

- Terkait dengan Penataan ruang

Gambar 1.6. Dimensi Penataan Ruang

Sumber : Data Arsitek jilid 2

Perancangan Creative Space: Upaya Pemberdayaan Penyandang Tuna Daksa

8

Gambar 1.7. Dimensi Penataan Ruang

Sumber : Data Arsitek jilid 2

REFERENSI OBJEK DESAIN

FASILITAS

4. Maintenance dan Service

Maintenance ini merupakan ruang yang terdiri atas ruang pengelola, ruang security dan ruang penyimpanan barang seperti alat kebersihan, sedangkan untuk Service sendiri merupakan ruang yang terdiri atas Toilet, MusholadanParkir Kendaraan.

Toilet Umum

Gambar 1.9. Dimensi Toilet Umum

Sumber : Data Arsitek jilid 2

Gambar 1.8. Dimensi Toilet Umum

Sumber : Data Arsitek jilid 2

Perancangan Creative Space: Upaya Pemberdayaan Penyandang Tuna Daksa
9

Toilet Penyandang disabilitas Parking area

Gambar 2.1. Dimensi Toilet Penyandang Disabilitas

Sumber : Dimensi ruang & ruang interior (Panero.2003)

Gambar 2.2. Dimensi Toilet Penyandang Disabilitas

Sumber : Dimensi ruang & ruang interior (Panero.2003)

Gambar 2.3. Dimensi Parking area

Sumber : Data Arsitek jilid 2

Perancangan Creative Space: Upaya Pemberdayaan Penyandang Tuna Daksa
10

REFERENSI OBJEK DESAIN

SIRKULASI DAN JANGKAUAN BAGI PENYANDANG DISABILITAS

Sumber : Archify

Gambar 2.4. Dimensi jangkauan

Sumber : PMPU NO : 30/PRT/M/2006 TENTANG PEDOMAN TEKNIS FASILITAS DAN AKSESIBILITAS PADA BANGUNAN GEDUNG DAN LINGKUNGAN

Sirkulasi bagi penyandang kursi roda ini harus memiliki lebar minimal 80 cm. Untuk area dengan ketinggian level yang berbeda, kemiringan ram maksimal adalah 7 derajat. Selain untuk memudahkan si pengguna, hal ini juga bertujuan untuk keamanan dan kenyamanan pengguna. ram penyandang kursi roda harus memiliki tekstur. Fungsi dari ram yang bertkstur ini untuk keamanan si pengguna agar tidak melaju sangat kencang/ tergelincir saat menuruni ram. Adapun hal ini sangat membantu bagi pengguna saat hujan turun, karena tingkat keamanan pengguna jauh lebih tinggi.

Perancangan Creative Space: Upaya Pemberdayaan Penyandang Tuna Daksa Gambar 2.4. Dimensi beda ketinggiandan jarak pandang bagi penyandang disabilitas
11

REFERENSI KEISLAMAN DESAIN

Q.S. Sad ayat 27

Artinya: “Dan Kami tidak menciptakan langit dan bumi dan apa yang ada antara keduanya tanpa hikmah. Yang demikian itu adalah anggapan orang orang kafir, maka celakalah orang orang kafir itu karena mereka akan masuk neraka”[6].

Surat An-Nahl ayat 90

Artinya: “Sesungguhnya Allah menyuruh berlaku adil, berbuat kebajikan, dan memberikan bantuan kepada kerabat. Dia (juga) melarang perbuatan keji, kemungkaran, dan permusuhan. Dia memberi pelajaran kepadamu agar kamu selalu ingat.”[7].

Q.S. Sad: 27 (Kesesuaianobjekrancangan dengantujuanpembangunan)

Tafsir Quraish Shihab

Kami tidak menciptakan langit dan bumi beserta semua yang ada di antara keduanya dengan sia sia. Itu hanya sangkaan orang orang kafir sehingga mereka semena mena memberikan keputusan sesuai hawa nafsunya. Dari itu, mereka akan memperoleh siksa yang pedih berupa api neraka[6].

Q.S. An Nahl : 90 (Nilai Silaturahmi & berbuat baik terhadap sesama)

IMPLEMENTASI KEISLAMAN DALAM DESAIN

1. Q.S. Sad ayat 27

Pada ayat tersebut terdapat kandungan nilai kesesuaianobjekdengantujuanperancangan.Hal ini memiliki tujuan desain yang mampu memenuhi kebutuhansaranadanprasaranabagu para penyandang tuna daksa. Adapun pada ayat tersebut memiliki tujuan agar desain mampu mewadahi aktivitas penyandang tuna daksa dengan aman dan juga nyaman. Implementasi desainpadaayattersebutadalahsebagai berikut:

Allah memerintahkan para hamba Nya untuk berlaku adil dalam setiap perkataan dan perbuatan. Allah menyuruh mereka untuk selalu berusaha menuju yang lebih baik dalam setiap usaha dan mengutamakan yang terbaik dari lainnya. Allah memerintahkan mereka untuk memberikan apa yang dibutuhkan oleh para kerabat sebagai cara untuk memperkokoh ikatan kasih sayang antar keluarga. Allah melarang mereka berbuat dosa, lebih lebih dosa yang amat buruk dan segala perbuatan yang tidak dibenarkan oleh syariat dan akal sehat. Allah melarang mereka menyakiti orang lain. Dengan perintah dan larangan itu, Allah bermaksud membimbing kalian menuju kemaslahatan dalam setiap aspek kehidupan, agar kalian selalu ingat karunia Nya dan menaati firman firman Nya. [7].

Q.S. Al Insyiqaq : 84 (BekerjakerasdanGiat)

Q.S. Al-Insyiqaq ayat 84

Artinya: “Wahai manusia! Sesungguhnya kamu telah bekerja keras menuju Tuhanmu, maka kamuakanmenemui Nya”[8].

Wahai manusia, sesungguhnya kamu sangat giat dalam segala usaha demi menggapai tujuan, kemudian semua akan menjumpai Tuhan dengan membawa amal perbuatanmu masing masing. Selanjutnya Allah akan memberimu balasan atas amal perbuatan itu[8].

1. Memperhatikanaksesibilitasyangamandan nyamanbagisi penggunanya,terutamabagi penyandang tuna daksa dengan kebutuhan kursi roda, 2. Menggunakan material yang aman seperti materiallantai yangtidaklicin, 3. Meminimalisir ruang sudut mati demi kenyamanan bergerak bagi penyandang tuna daksa.

2. Q.S. An Nahl ayat 90

Padaayattersebutterdapatkandungannilai silaturahmi dan berbuat adil terhadap sesama.Hal ini memiliki tujuan desain yang mampu menciptakan hubungan sosial yang baik antar sesama manusia. Implementasi desain pada ayattersebut adalahsebagai berikut:

Perancangan Creative Space: Upaya Pemberdayaan Penyandang Tuna Daksa

Diagram 1.9. Nilai Keislaman Desain Tafsir Quraish Shihab Tafsir Quraish Shihab
12

1. Memberikan space disetiap massa bangunan (outdoor space) dengan tujuan agar interaksi sosial dapat terjalin dengan bebas.

3. Q.S. Al-Insyiqaq ayat 84

Padaayattersebutterdapatkandungannilai

Giat dan Bekerja Keras.Hal ini memiliki tujuan desain yang mampu menciptakan suatu ruang yang mampu membangun rasa semangat tinggi untuk giat belajar dan bekerja keras. Implementasi desain pada ayat tersebut adalah sebagaiberikut

1. Membuat area pedagang/ kerja dengan area pengunjung berdekatan dengan tujuan terjadinya hubungan sosial yang baik sesama manusia serta mampu menghidupkan semangatuntukgiatbekerja.

2. Memaksimalkan pencahayaan dan juga penghawaan alami agar ruanganlebih terasa aman dan juga nyaman sehingga mamou menghidupkan mood untuk semangat bekerja.

Perancangan Creative Space: Upaya Pemberdayaan Penyandang Tuna Daksa
13

REFERENSI PENDEKATAN DESAIN

Pendekatan yang digunakan dalam perancangan ini adalah pendekatan Arsitektur Perilaku yang mana nantinya perancangan ini lebih fokus terhadap kebutuhan si penggunanya yakni penyandang tuna daksa. Menurut Menurut Y.B Mangun Wijaya dalambuku Wastu Citra Arsitektur berwawasan perilaku adalah Arsitektur yang manusiawi, yang mampu memahami dan mewadahi perilaku-perilaku manusia yang ditangkap dari berbagai macam perilaku, baik itu perilaku pencipta, pemakai, pengamat juga perilaku alam sekitarnya[9].

Dalam pendekatan yang digunakan dalam perancangan ini, prinsip perilaku yang diterapkan yakni ada 2 perilaku. Yang pertama, terkait dengan perilaku penyandang tuna daksa itu sendiri. Berikut ini terdapat beberapa prinsip desain menurut Carol Simon Weinstein dan Thomas G David (dalam buku Spaces for Children: The Built Environment and Child Development) antara lain:

`

Desain rancangan mampu dipahami oleh pengguna dan lingkungannya

PENERAPAN DALAM DESAIN

Desain rancangan mampu dipahami oleh pengguna dan lingkungannya

Mewadahi aktivitas pengguna dengan aman dan nyaman

Memperhatikan kondisi dan perilaku pengguna

Menyediakan fasilitas yang ramah akan penyandangtunadaksa danmendesain arealanskap sekitar bangunan menjadi tempat yang nyaman bagi seluruhpenggunafasilitas.

Mewadahi aktivitas pengguna dengan aman dan nyaman

Sedangkan yang kedua yakni perilaku pengguna fasilitas/ peminat ekonomi kreatif sebagaimana pada perancangan kali ini membahas mengenai creative space yang merupakan bagian dari sektor ekonomi kreatif.

Menggunakan material yang aman seperti material lantai yang tidak licin, Meminimalisir ruang sudut mati demi kenyamanan bergerak bagi penyandang tuna daksa, dan Memberikan space disetiap massa bangunan dengan tujuan agar interaksi sosial dapatterjalindengan bebas.

Memperhatikan kondisi dan perilaku pengguna

Memperhatikan sudut kemiringan ramp yang dibuat pada ketinggian level bangunan, memberikan jarak pandang dan jangkauan pada ruang penyandang disabilitas serta memberikan kesan berbeda di setiap massa bangunan agar pengunjungmemiliki daya tarikyangtinggi dan tidak mudahbosan.

Perancangan Creative Space: Upaya Pemberdayaan Penyandang Tuna Daksa

1 2
3
12
Diagram 2.1. Prinsip pendekatan Arsitektur Perilaku Diagram 2.2. Perilaku peminat ekonomi kreatif
1
2
3 14

STUDI PRESEDEN

1.

Kumulo Creative Compound merupakan space kreatif luar ruangan yang terdiri dari 25 toko mikro pengrajin dan pekerja kreatif yang menjunjung semangat kolaborasi. Bertempat di dalam Breeze, BSD City, ini berfungsi sebagai inkubator yang kondusif yang diharapkan akan melepaskan kreativitas tanpa batas dan memajukan merek residen dan tumbuh bersama secara sehat dan kolaboratif. Kumulo diambildaribahasalatin"cumulus"yangartinya kumpulan awan yang melambangkan impian orang orangkreatif[10] Creative Space ini memiliki konsep dengan pendekatan ekologi yang mana penataan taman dengan keadaan ruang hijau diterapkan. Adapun kelebihan lainnya yang dimiliki dari creatif space ini adalah

karakter

Perancangan Creative Space: Upaya
Pemberdayaan Penyandang Tuna Daksa
Creative
Outdoor
Space
KUMULO CREATIVE COMPOUND
Memiliki
About Project[11] FIRM : DUAStudio TYPE : Other Community& Recreation AREA SIZE : 4174 Sqm DESIGNSTYLE : Contemporary CONTRACTOR : ACCOSSA LOCATION : Tangerang Selatan STATUS : Completed YEAR : 2020 ARCHITECT Principal Architect :Ardy Hartono DesignTeam: Dimas Satria, Wilusty Tengara, MarcoVictorio, Natasha Martawijana Interior Design:byeachtenant/microshop. Gambar 2.5. Kumulo Creative Compound Sumber : Kumulo.id Gambar 2.7. Site Plan Kumulo Sumber
Gambar 2.6. Area Kumulo Sumber : Archify.com 15
: 1.
jarak tiap bangunan tenant yang dimaksudkan agar memudahkan bagi si pengguna ini bisa menghidupkan
: Kumulo.id

sendiri sehingga terlihat kreativitas dan inovasi disetiapbangunan.

2. Tempathangoutyangramahbagi pengguna sepeda

3. Menarik perhatian pengunjung khususnya bagi para remaja untuk ikut serta berkreasi di dalamnya karena konsep dari space ini milenial dan kontemporer yang banyak digemari parakaum remaja.

4. Salah satu pengembangan di sektor industri kreatiflokal

5. Kesan outdoor dengan penataan yang menarik

Namun dibalik itu, ada juga kekurangan yang terdapatpadacreative spaceini:

1. Tidak adanya tempat pengembangan pelatihan sehinggapengunjungyangdatang hanya bisa membeli produk yang dijual dan hanya bertujuansebagairekreasi saja.

2. Bangunan tenant yang cukup kecil sehinga tidakmampumenampunglebihdari5orang pengunjung tiapbangunan

3. Masih kurangnya pohon peneduh

4. Untuk area outdoor masih terbilang kurang baik penataannya, karena jika siang hari sangat panas dan kurang tepat dijadikan sebagai ruang untuk bersantai dan berdiskusi.

Sumber : Kumulo.id

Sumber : Kumulo.id

Perancangan Creative Space: Upaya Pemberdayaan Penyandang Tuna Daksa KUMULO CREATIVE COMPOUND Gambar 3.2. Tenant Kumulo Gambar 3.1. Tenant Kumulo Sumber : Kumulo.id Gambar 2.9. Tenant Kumulo Gambar 2.8. Tenant Kumulo
16
Sumber : Kumulo.id

2. Community Center ramah difabel “Yulin Alley”

About Project[12] :

Architects : Nhoow Architects

Area : 150 m²

Year : 2019

City : Chengdu Country : China

Sumber : Archdaily.com

Yullin alley merupakan sebuah space yang dibangun oleh komunitas Yulin East Road dan federasi penyandang disabilitas di Distrik Wuhou. Yulin Alley merupakan pusat komunitas untuk menciptakan lingkungan yang cocok disemua kalangantanpa adaketerbatasan sosial. Terlebihlagi bagi para penyandang disabilitas sangat didorong untuk dating dan mengambil bagian dari kegiatan ini sertamelakukanbanyakkreasi daninovasi.

Pusat Komunitas ini diangkat dari issue penyandang disabilitas yang menghindari kegiatan komunitas, karena keterbatasan yang dimilikinya[12].

Pendekatan yang digunakan dalam mendesain community center ini adalah pedekatan dari peilaku arsitektur. Kelebihan yang dimilik dari community center iniadalah :

1. Tatatletakbidangruangyaknimisalignment cekung-cembung, yang mana dimaksudkan agar ruang bebas sudut mati visual dan mengutamakan kenyamanan serta keamanan jarak bagi pengguna kursi roda dalam berputar.

2. Ditujukkan sebagai tempat yang mendukung kewirausahaan dan partisipasi penyandangdisabilitas.

3. Terkaitdenganruang& fasadnya:

a. Pemberian pohon dan kursi di bagian luar ruangan untuk menciptakansuasanayangnyaman bagi penggunauntukberinteraksi

b. Untuk memenuhi tujuan ruang terbuka dan bebas, terdapat ruang kegiatan luar, ruang kegiatan dalam dan ruang transisi antara bangunanluar daninterior.

c. lantai Ruang luar ditinggikan untuk membangun area tempat duduk di luar, membentuk ruang terbuka baru yang memecah batas antara ruanginterior daneksterior.

Perancangan Creative Space: Upaya Pemberdayaan Penyandang Tuna Daksa Client : Chengdu Yulin East Road Community Architect In Charge : Tang Zhang. Gambar 3.4. Floor Plan Yulin Alley Gambar 3.3. Yulin Alley Sumber : Archdaily.com
15 17
Gambar 3.5. Tampak Depan Sumber : Archdaily.com

4. Terkaitdengan struktur:

a. Menggunakan struktur membrane pada bagian atap dengan tujuan pengenalan dan pantulan cahaya yanglembut

b. Material kayu diterapkan pada bagian badan bangunan dan pendukunginterior.

Namun, dari kelebihan tersebut, terdapat kekurangan yangada dalam com,unitycenter ini:

1.

Akses masuk yang terdapat ramp untuk pengguna kursi roda

Akses masuk menuju ruang luar namun tidak terdapat ramp dan memiliki perbedaan level ketinggian 15 cm.

Terkait dengan akses bagi penyandang kursi roda hanya mampu diakses melalui akses yang berada di sebelah selatan saja. Sehingga apabila ada pengunjung kursi roda yang hanya ingin menikmati area luar ruangan saja harus memasuki area dalam terlebihdahulu untukmencapaiarealuar.

15 cm

Gambar 3.7. Ketinggian level area luar dengan jalan Yulin Alley

Sumber : Archdaily.com

2. Bukaan untuk ventilasi alami yangmasuk ke dalam pada ruangan di bagian utara terbilangkurang.

Gambar 3.8. Olah massa Ruang

Sumber : Archdaily.com

Gambar 3.7. Ruang Utara Yulin Alley

Sumber : Archdaily.com

Gambar 3.9. Fasad Yullin Alley

Sumber : Archdaily.com

Perancangan Creative Space: Upaya Pemberdayaan Penyandang Tuna Daksa
15
18

DATA KAWASAN

KONDISI FISIK

Secara geografis, Kecamatan Kedungkandang berada di bagian Timur dari wilayah Kota Malang. Kecamatan Kedungkandang terletak pada112o 36’14’’ 112o 40’42’’ Bujur Timur dan077o 36’38’’ – 008o 01’57’’ Lintang Selatan[3].

Administratif

Luas wilayah dari Kecamatan Kedungkandang 39,89 km2 dengan jumlah kelurahan sebanyak 12 kelurahan[3]. Adapun batas batas administratifdari KecamatanKedungkandangsendiri antaralain:

Topografi

Kecamatan ini memiliki ketinggian rata rata antara 440-660 meter dari permukaan air laut.

Kemiringandarikecamataniniterbilangcukupcuram yakni berada pada angka 15% < dari 45%. Berdasarkan dari hasil analisis kajian dokumen KLHS RPJMDKotaMalangTahun2018(2018:41 42)bahwa Kecamatan Kedungkandang menjadi salah satu lokasi tertinggi berdasarkan klasifikasi dari topografinya, yakniberada di PegununganBuring[3].

Geologi

Kecamatan KedungKandang sendiri merupakan dataran tinggi namun memiliki kondisi tanah yang cukup subur. Jenis tanah pada daerah ini merupakantanahalluvial danlitosol.

Klimatologi

Keadaan iklim pada Kecamatan Kedungkandang ini dipengaruhi oleh letaknya yang berada pada dataran tinggi dan pegunungan. Sehingga iklim yang dimiliki muson tropis dengan suhu berada pada 21o 36o Celcius dengan Kelembapanberkisar antara2000 mm 3000mm.

Perancangan Creative Space: Upaya Pemberdayaan Penyandang Tuna Daksa

KecamatanPakis, KabupatenMalang KecamatanPakisaji & Pajinan, KabupatenMalang Kec.Klojen& Sukun, Kota Malang Kec.Tumpang & Tajinan, Kab. Malang Diagram 2.3. Batas Administrasi Kecamatan Kedungkandang Gambar 4.2. Peta Administrasi Kota Malang Sumber : RPJMD Kota Malang 2020 2023 Gambar 4.1. Peta Kecamatan Kedungkandang Sumber : Google Earth 19

Sumber Daya Air (Hidrologi)

Berdasarkan hasil analisis kajian dokumen KLHS RPJMD Kota Malang Tahun 2018 (2018:42) Kota Malang memiliki CAT Brantas yang terkandungpotensi dancadanganairtanah dengan kualitas yang sangat bagus untuk bahan baku air minum. Adapun kecamatan Kedungkandangini dikelilingi olehkali Amprong.

GEOLOGI

Jumlah dan Tingkat Kepadatan Penduduk

Tingkat Kepadatan pendududk di Kecamatan Kedungkandang mengalami kenaikan 0,92% tiap tahunnya dengan jumlah penduduk 5.097 jiwa/km2 pada tahun 2014 bertambah menjadi 5344 jiwa/km2 pada tahun 2018. Berdasarkan dari persebaran penduduk pada tahun 2018, Kecamatan Kedungkandang menempati kedudukan tertinggi dengantotal 24%dari total jumlahpendudukdi Kota Malang. JumlahpendudukyangtinggaldiKecamatan Kedungkandang berjumlah 202.514 jiwa menurut badan pusatstatistikKotaMalang.

Peraturan Ruang Daerah

Menurut PERDA Kota Malang No.4 Tahun

2011 Tentang RTRW Kota Malang Tahun 2010-2030 bangunanuntukkegiatanperdagangandanjasayang terletak pada pusat lingkungan dan yang tersebar ditentukanKDB= 70 80 %, KLB= 0,7 1,6, dan TLB = 2 6lantadanRTH= 20 30%.

Fungsi Kawasan

Kecamatan Kedungkandang berdasarkan

Perda Kota Malang No.4 Tahun 2016 Tentang Rencana Detail Tata Ruang dan Peraturan Zonasi Bagian Wilayah Perkotaan Malang Timur Tahun 2016 2036 yang terkandung dalam Pasal 7 ayat (2)

huruf (b) berupa pengembangan sarana pelayanan umum dan sarana penunjang kantor serta Pasal 7 ayat (2) huruf (d) pengembangan barang dan jasa.

Strategipengembangansaranapelayananumumdan saranapenunjangperkantoranyangdimaksuddalam pasal 7 ayat (2) huruf b meliputi pengembangan sarana pelayanan umum kesehatan, olahraga, sosial budaya, dan peribadatan di masing masing kelurahan dan pusat pusat perumahan.

Gambar 4.3. Peta Rencana Tata Guna Lahan Kota Malang 2009 2029

Sumber : RTH Kota Malang 2009 2029

Perancangan Creative Space: Upaya Pemberdayaan Penyandang Tuna Daksa Tabel 1.3 Jumlah Curah Hujan berdasarkan Pengamatan dari Stasiun Kedungkandang Sumber : BPS Kota Malang
20

Sosial, Budaya & Ekonomi

Kecamatan Kedungkandang menjadi kecamatan dengan luas wilayah terbesar di kota Malang dengan jumlah penduduk yang relatif banyak. Hal ini juga mendeskripsikanbahwasanyapenyandangdisabilitasdikecamatanKedungkandang memiliki angka tertinggi selain kecamatan Sukun. Gambaran ini pun ditunjukkan dengan adanya data dari badan pusat statistik kota Malang yang memaparkan jumlah dari penyandang disabilitas di Kecamatan Kedungkandang sebanyak 136 jiwa.

Dari banyaknya jumlah penyandang tersebut, kecamatan Kedungkandang sendiri masih minim terkait dengan fasilitas yang diperuntukkan bagi penyandang disabilitas, khususnya penyandang tuna daksa. Hal tersebut tercatat dalam data RPJMD Kota Malang tahun 2018 2023 yang memaparkan isue strategi di Kota Malang sendiri terkait dengan Masih minimnya penanganan dan sarana prasarana bagi penyandangdisabilitas.

Di kecamatan Kedungkandang sendiri, dalam kurun waktu 2020 akan menjadi pusat perhatian bagi pemerintah kota Malang untuk fokus membangun ekonomi kreatif, selain dari infrastruktur pembangunannya menurut sumber berita Suryamalang. Hal ini terkait dengan akulturasi budaya yang begitu cepat, sehingga masyarakat Kedungkandang mampu mendapatkan pengetahuan dan skill baru dengan mudah. Melalui ekonomi kreatif ini nantinya diharapkan besar mampu mengurangi angka pengangguran di kecamatan Kedungkandang. Adapun konsentrasipenguatanterkaitpembangunandiKedungkandanginidilakukankarena masihbanyaklahanyang tersedia serta jauh dari katabencana.

Tabel 1.4. jumlah penyandang disabilitas di kota Malang

Sumber : Badan Pusat Statistik Kota Malang

Gambar 4.4. Peta Rencana Struktur Tata Ruang Kota Malang

Sumber : KIM Kota Malang

Perancangan Creative Space: Upaya Pemberdayaan Penyandang Tuna Daksa
21

DATA TAPAK

Lokasi : Jalan Mayjen Sungkono, Desa/Kelurahan

Buring, Kec. Kedungkandang, Kota Malang, Jawa Timur

Luas Tapak : 22.555,92 m² & Keliling : 651,18m

Bentuk Tapak : TidakSimetris

Batas Tapak

Utara : Berbatasandengan Hutan Jati, Timur : Berbatasan denganAnakkali amprong& Jalan Utama(Jalan MayjenSungkono), Selatan : Berbatasan dengan Lahan Kosong dan PerumahanThePalm Malang, Barat : BerbatasandenganLahanKosong

View

Potensi view yang terlihat bagus yakni berada di sebelah barat yang terdapat keindahan dari gunung Kawi sertaviewdari arahbaratlautyangmenghadap gunungArjuno.

Potensi Tapak

Lokasi yang strategis dan mudah diakses dan Dekat dengan berbagai fasilitas yang mampu menunjang perancanganCreativeSpace.

Issue Tapak

Sekeliling tapak masih berupa lahan kosong dan JalanmenujutapakhanyadapatdiaksesmelaluiJalan MayjenSungkono.

Perancangan Creative Space: Upaya Pemberdayaan Penyandang Tuna Daksa BARAT LAUT BARAT
PERUM GRIYA CAHAYA PERMAI
KALI AMPRONG KANTOR BNN KOTA MALANG KANTOR KECAMATAN KEDUNGKANDANG
ANAK KALI AMPRONG
PERUMAHAN
LOKASI TAPAK
JALAN MAYJEN SUNGKONO (JALAN UTAMA) BATAS TAPAK 22
TIMUR SELATAN UTARA BARAT
Diagram 2.4. Data Tapak dan Kawasan Sekitar Tapak VIEW

RENDAH

( Aktivitas binatang di sekitar tapak)

Aksesibilitas & Sirkulasi

Dalam Cakupan Makro untuk mencapai tapak mampu ditempuh dengan transportasi kendaraan bus, kendaraan pribadi, kereta api dan pesawatterbang.Estimasiperkiraanperjalanandaari surabaya menuju tapak dengan melewati jalan tol Pandaan Malang mampu ditempuh dengan waktu 1 jam 46 menit. Sedangkan dalam cakupan mikro, hanya mampu dilewati oleh kendaraan roda empat umum maupun pribadi, sepeda motor dan sepeda. Hal ini dikarenakan akses jalan Mayjen Sungkono hanyamemilikilebarjalan ±6meter yangterdiri atas 1 jalur dengan2lajur.

Kebisingan & Polusi

Tingkat kebisingan tertinggi berada di sebelah timur tapak yang berasal dari jalan utama menuju tapak. Keadaan jalan tersebut cukup ramai dilalui oleh kendaraan sepeda motor hingga kendaraan truk muatan barang sehingga mampu menyebabkanpolusi suaradanudara.

Vegetasi

Keadaan ditapak merupakan lahan bekas pertanian yang tidak terkelola, sehingga vegetasi yang dapat ditemukan hanya berupa semak liar dan rumput dengan ditumbuhi oleh beberapa tumbuhan talas. Di sekeliling tapak pun terdapat beberapa tanamanseperti pohonjati,pohonpisangdanpohon trembesi.

Perancangan Creative Space: Upaya Pemberdayaan Penyandang Tuna Daksa VEGETASI KERETA KENDARAAN PRIBADI, BUS & TRAVEL
& POLUSI TINGGI (Kendaraan dan aktivitas Jalan Raya) SEDANG (Aktivitas masyarakat perumahan) AKSESIBILITAS TOPOGRAFI 23
PESAWAT KEBISINGAN

Topografi

Pada daerah ini memiliki ketinggian rata rata antara 440 meter dari permukaan air laut dengan karakteristik tapak yang terbilang landai tanpa kemiringan curam. Jenis Tanah yang dimiliki di area tapak yakni jenistanah alluvial dantanahlitosol dengankestabilanlandasanrelatif sedang tinggi.

Utilitas

Sumber daya air bersih yang dialokasiakn atau dialirkan kepada masyarakat setempat berasal dari tandon Buring dan pelayanan dari PDAM Kota Malang[14]. Terkait dengan sumber listrik sendiri, berasal dari Perusahaan Listrik Negara (PLN) yang kemudian dialirkan kepada masyarakat sekitar. Adapun di bagian timur tapak terdapat anak kali amprongyangmerupakan tempat pembuangan grey water oleh masyarakat setempat serta mampu mengalirkan pembuangan air hujan sehingga keadaan di daerahtapaktidak terjadi banjir.

Demografi

Kondisi Masyarakat yang ada di sekitar tapak tersebar merata sesuai dengan etnis yang dianut.EtnisJawamembangunpemukimandisekitar etnis Jawa, sedangkan etnis Madura hanya denganetnis Madura. Namun, ada sebagian dari masyarakat yang mampu beradaptasi dengan baik sehingga mampu berbaur antara etnis Jawa dengan etnisMadura[13].

Kondisi Sosial dan Ekonomi

Pekerjaan penduduk sekitar merupakan seorang petani dan buruh industri[3]. Hal ini terlihat jelas pada daerah sekitar tapak dengan lahan pertaniannya yang masih luas. Tanaman yang ditanam oleh petani sekitar antara lain yakni jagung, ketelapohon, sayur mayur hinggabuah buahan.

Keadaan tapak yang masih dikelilingi oleh lahan kosong memungkinkan pencahayaan alami yang masuk sangat besar. Kondisi angin yang berhembus pada tapak yakni cenderung mengarah dari timurlautmenuju baratdaya.

Perancangan Creative Space: Upaya Pemberdayaan Penyandang Tuna Daksa
4.5. Anak Kali Amprong di sisi timur tapak Sumber : hasil pengamatan survei Perumahan The Palm Malang Lahan Pertanian Lahan Pertanian Jalan Mayjen Sungkono Gambar 4.6. Lahan Pertanian Sekitar Tapak Sumber : Google earth Tapak Tapak Gambar 4.7. Cuaca dan Arah angin di Kelurahan Buring Sumber : Windy.com Sunset : 17.40 Sunrise : 05.34 Daylight : 12.06 Gambar 4.8. Diagram Sunpath di Kelurahan Buring Sumber : Andrewmash.com Gambar 4.9. Diagram Cuaca per Minggu Kelurahan Buring Sumber : meteoblue.com 22 24
Gambar

III SKEMA PROSES & IDE DASAR DESAIN

POTENSI

SKEMA PROSES DESAIN

Issue issue yang ada di Kota Malang diangkat sebagai awal mula dari proses desain ini. Kemudian langkah yang diambil untuk mendapatkan solusi atau tujuan desain yakni dengan mencari dan menggali informasi seputar potensi yangada di wilayahKotaMalang.

Setelah mendapatkan solusi dari hasil pengumpulanissuedanpotensiyangadadiwilayah Kota Malang, proses desain akan mendapatkan pendekatan yang sesuai untuk di terapkan pada desain perancangan Creative Space ini dengan kesinambungan antara elemen integritas keislaman. Pendekatan yang diambil yakni pendekatan “Arsitektur Perilaku”, dimana nantinya dari pendekatan ini diharapkan bisa menghasilkan rancangan desain yang mampu mewadahi sesuai dengantargetpenggunanya.

Proses desain selanjutnya yakni pengumpulan data yang diambil berdasarkan hasil studi pustaka dan mencari informasi melalui internet. Tak hanya itu, data yang diambil juga berdasarkanhasil pengamatandan survey tapak ke lokasi secaralangsung.

Dari hasil data yang dikumpulkan, tahap selanjutnyayaknianalisisdankonsepyangnantinya dari pengembangan konsep mampu menghasilkan gambaran rancangan desain dan sampai ke tahap final hasil rancangandesain.

ISSUE

25
Perancangan Creative Space: Upaya Pemberdayaan Penyandang Tuna Daksa
IDE
KETIMPANGAN SOSIAL KURANGNYA FASILITAS YANG MAMPU MEWADAHI PENYANDANG DISABILITAS TINGGINYA ANGKA PENGANGGURAN DAN GELANDANGAN DIKALANGAN PENYANDANG TUNA DAKSA MENJADI DAERAH UNTUK FOKUS PEMBANGUNANEKONOMI KREATIF LOKASI YANG STRATEGIS DANDEKAT DENGAN BERBAGAI FASILITASPENUNJANG CREATIVE SPACE BAGI PENYANDANG TUNA DAKSA
MELALUI
MENYEJAHTERAKAN
PENGEMBANGANKREATIVITAS PENDEKATAN MENGGUNAKANPENDEKATAN DENGANPRINSIP ARSITEKTUR PERILAKU INTEGRITAS KEISLAMAN DATA ANALISIS KONSEP PRINSIP ARSITEKTUR PERILAKU HASIL RANCANGAN MENGURANGI
DAN
TUJUAN DESAIN SKEMA SECARA GARIS BESAR
MASALAHPEREKONOMIAN
MENINGKATKANPEREKONOMIAN
EKONOMI KREATIF
PENYANDANG DISABILITAS
ANGKA PENGANGGURAN
GELANDANGAN

Mencari issueyang Selaluadadikotabesar

Issue yang adadi Kota Malang

Pencarianissuelain sebagaipendukungsaran dari dosen

`

Pencarianmelaluidata statistik danRPJMDkota Malang

PendukungIssue untukmenguatkan gagasanideyang muncul

PENJABARAN RINCI SKEMA PROSES DESAIN

Permasalahanfasiitas disabilitas yang belum memadai

Menggali potensi daerah wilayahMalangyang sesuai denganissue

Membuatrancangan pusat terapiuntuk membantu permasalahanfasilitas bagi disabilitas

MenemukanIde dasar “Perancangan Creative Space bagi penyandang Tuna Daksa

Membacaarahan referensi dansarandari dosen pembimbing

Mencari referensi terkait denganidegagasan

Menggali informasi lebih lanjut terkait saran yang diberikan

Menentukan Tujuan dan Batasan Desain

Penentuanlokasi rancangan objek

Bimbingan denganDosen Pembimbing

Menentukan Pendekatan “Arsitektur Perilaku” denganintegritas keislaman

26
Perancangan Creative Space: Upaya Pemberdayaan Penyandang Tuna Daksa BAB PENDAHULUAN

Mencari referensi standar danukuran ruangyangdibutuhkan melaluibuku,jurnal dan internet

Membuat daftar ruang untuk creativespace

Mencari referensi terkait dengancreative space

Melakukan kajian presedendan merangkum hasil kajian

DESAIN

Mencari Standar& Kebutuhanruangbagi penyandangtunadaksa

Merangkum dan meringkas hasil referensi bacaan

Mencari Preseden creativespacebagi penyandangtunadaksa

Mengkaji dan mengcari informasi mengenai lokasi perancangan

Survei Tapak

Mencari data informasi sekitar wilayahtapak

Mencari referensi keislamandan pendekatan Arsitektur Perilaku

27
Perancangan Creative Space: Upaya Pemberdayaan Penyandang Tuna Daksa
Bimbingan denganDosen Pembimbing BAB DATA
PENJABARAN RINCI SKEMA PROSES

PENJABARAN RINCI SKEMA PROSES DESAIN

Melakukan analisisbatas area, sirkulasi dan aksesibilitas, iklim dancuacaserta utilitas ditapakmenggunakandatayang telahdiperoleh sebelumnyasertadari hasil zoneplandanblokplan.

Menerapkan Prinsip Arsitektur Perilaku

Melakukan analisisfungsi, aktivitasdanpengguna, dan kebutuhanruang di dasarkan dari data sebelumnya.

Menerapkan Prinsip Arsitektur Perilaku

Melakukan analisisbentukdan struktur mengikuti dari hasil analisissebelumnya

Membuat konsep dasar “PEDULI” dengan tagline yang telahdibuat.

Bimbingan denganDosen Pembimbing

Konsep

Analisis

Ide Dasar

Menambahkansketsa ide rancangan

Tagline “Togetherness to achieve equality” Hasil

Konsep Tapak

Konsep bentuk& Fasad

Konsep Struktur

KonsepRuang

Konsep Utilitas

Mengkaji ulangIssuedan Potensi tapak,Pendekatan yang diambil dan rancangan

Bimbingan denganDosen Pembimbing

Membuat danmenyesuaikan sertamematangkan tagline sesuai denganiderancangan

Revisi tagline karenatidak bolehmenggunakankata gantiorang pertama/kedua/ ketiga

Rancangan

28
Perancangan Creative Space: Upaya Pemberdayaan Penyandang Tuna Daksa

IDE DASAR DESAIN

KURANGNYA FASILITAS

YANG LAYAK BAGI

PENYANDANG DISABILITAS

KETIMPANGAN SOSIAL

ISSUE

KURANGNYA FASILITAS

PENGEMBANGAN POTENSI

BAGI PENYANDANG TUNA DAKSA

Proses desain diawali dengan mengangkat permasalahn di Kota Malang yang termuat dalam data RPJMD dalam bagian perumusan strategi hasil analisis SWOT mengenai masih kurangnya sarana dan prasarana yang diperuntukkan bagi penyandang disabilitas serta issue belum optimalnyaperkembanganperekonomian di sektor ekonomi kreatif. Pencarian informasi terkait potensi yang ada di wilayah Kota Malang pun menjadi salah satu proses desain untuk mencapai solusi yang tepatbagi permasalahanyangada.

space ini mampu mengatasi permasalahan ketimpangan sosial di masyarakat dengan membuktikan bahwa para penyandang tuna daksa pun mampu berkarya dan berkreasi di tengah tengah keterbatasan yang dimilikinya dan memotivasi semangat bagi siapapun untuk tetap berusaha dan bekerja keras sesuai dengan tagline yang telah dibuat yakni “Togetherness to achieve equality”.

PEREKONOMIAN

POTENSI

PENDEKATAN

Isue selanjutnya didapatkan dari lokasi yang dipilih, yakni berada di kecamatan Kedungkandang. Kecamatan Kedungkandang sendiri memiliki issue terkait jumlah penyandang disabilitas yang cukup banyak namun kebutuhan akan sarana dan prasarananya masih minim. Adapunmelihatdari rencana pemerintahsetempat yang akan menjadikan daerah di kecamatan Kedungkandang sebagai pusat pembangunan di sektor ekonomi kreatif membuat hal tersebut menjadikanpotensi untukmencapai solusi.

Diharapkan dari perancangan creative space yang diperuntukkan bagi penyandang tuna daksa ini mampu membantu program pemerintah setempat dibidang ekonomi kreatif sekaligus membantu para penyandang tuna daksa untuk mengembangkan potensi dan inovasi yang dimilikinya. Diharapkan pula,dariadanya creative

29
Perancangan Creative Space: Upaya Pemberdayaan Penyandang Tuna Daksa MASALAH
LOKASI YANG STRATEGIS DAN
DENGAN BERBAGAI
IDE DESAIN INTEGRASI
TINGGINYA
BANGUNAN MAMPU MEWADAHI AKTIVITAS PENGGUNA DENGAN AMAN DAN NYAMAN
NILAI KEISLAMAN CREATIVE SPACE BAGI PENYANDANG TUNA DAKSA GREEN AND HEALTH BUILDING
MENJADI DAERAH UNTUK FOKUS PEMBANGUNAN EKONOMI KREATIF
DEKAT
FASILITAS PENUNJANG PRINSIP ARSITEKTUR PERILAKU
KEISLAMAN
ANGKA PENGANGGURAN DAN GELANDANGAN DIKALANGAN PENYANDANG TUNA DAKSA
MEMPERTIMBANGKAN

Togetherness to achieve equality

Togetherness to achieve equality

Memiliki arti bahwa kebersamaan di dalam suatu space mampu menciptakan kesetaraan antara seluruh kalangan masyarakat. Dari tagline ini bisa membantu para penyandang tuna daksa untuk berkreasi dengan bebas agar bisa menciptakan kreasi dan inovasi sehingga mampu membuktikan kepada masyarakat sekitar bahwa di tengah keterbatasan yang dimilikinya masih mampu berinovasi dan berkreasi seperti masyarakatpadaumumnya.

CREATIVE SPACE

Ide desain lanskap bermula dari bentuk 2 orang yang sedang merangkul. Hal inimencerminkan dari nilai tagline dan juga nilai keislaman desain “nilai kebersamaan”.

Arsitektur Perilaku

IDE SASAR DESAIN

Area komunal Outdoor space

Konsep : Outdoor Creative Space

Kemudian, tiap tiap lingkaran memiliki arti saling membantu yang dilambangkan dengan kumpulan tangan yang saling menopang.

Workspace + toko Workshop

Kesimpulan:

Hasil desainlanskap utamainimenggambarkan nilai kebersamaan dan nilai kerja keras serta saling membantu. Pada area lanskap utama ini terdapat workspace dan toko yang tegabung dalam satu ruang dan workshop. Pada area belakang massa, nantinya akan dibuat outdoor space sebagaitempatterjadinyainteraksi sosialsecarabebas.

30
Perancangan Creative Space: Upaya Pemberdayaan Penyandang Tuna Daksa Pendekatan

CREATIVE SPACE

Struktur

Sedangkan

Fasad

Workspace yang berdampingan dengan toko

Workshop

Struktur yang digunakan untuk area toko, workspace dan gedung serbaguna adalah beton bertulang

Penggunaan beton dan Kayu sebagai material utama pada fasad

Konsep dari workshop ini seperti stand/ tenda yangberbentukdome.

Penggunaanbetondan Kayu sebagai material utamapadafasad

Gedung Serbaguna

Layout Landscape

Pada area taman, bagian penutup lahan & aksesbilitas akan menggunakan material beton & Batu alam yang bertekstur guna keamanan bagi penyandang kursi roda. Dan jugapenggunaanramp untukaksesmenanjakdengan lebarminimal 80cm dan kemiringan7derajat.

31
Perancangan Creative Space: Upaya Pemberdayaan Penyandang Tuna Daksa struktur untuk area workshop yakni membran

IV ANALISIS

ANALISIS FUNGSI

ANALISIS FUNGSI

Creativespaceinimemiliki beberapafungsi denganfungsiutamanyayaknisebagai wadahbagi parapenyandangtunadaksa untukmenuangkanidedankreativitassertamenjadi ruangbagi merekauntukberinovasi dengankemampuanyang dimilikinya.

Workshop area

Toko/ Shop

Sebagai wadah untuk berkreasi dan berinovasi sertapelatihan Sebagai wadah untuk mempromosikan danmemamerkankarya

SEKUNDER

Ruang Security

Ruang Pengelola dan Penyimpanan

Sebagai wadah untuk menunjang fungsi primer dan sekunder sepertikegiatanmengamankandanmenyimpan barang.

Sebagai wadah untuk kegiatan seminar pelatihan, pameran ataupun event lainnyaberskalabesar

Ampiteater

Sebagai wadah untuk menyediakan fasilitas pelayanan darifungsiprimersepertibuangair,beribadah,danparkir.

Mushola

Toilet h

h

Perancangan Creative Space : Upaya Pemberdayaan Penyandang Tuna Daksa

Tempat Parkir h

32
5
PRIMER TERSIER SERVICE

ANALISIS AKTIVITAS & PENGGUNA

ANALISIS AKTIVITAS

FUNGSI AKTIVITAS SIFAT AKTIVITAS DURASI PERILAKU AKTIVITAS RUANG

Pengunjung: Datang, duduk, mengobrol & berdiskusi, mendengarkan, berjalan normal, berjalan dengan kursi roda, berjalan dengan alat bantu, memperhatikan pemateri, mengambil cat, menuang dan mengaduk cat, melukis, beristirahat,makandanminum, pulang.

Pemateri: Datang, duduk, menyapa pengunjung, mengobrol & berdiskusi, berjalan normal, berjalan dengan kursi roda, berjalan dengan alat bantu, memberikan materi, beristirahat, makan dan minum, bersih bersih, pulang.

Pengunjung : Datang, duduk, mengobrol & berdiskusi, mendengarkan, berjalan normal, berjalan dengan kursi roda, berjalan dengan alat bantu, memperhatikan pemateri, menyiapkan bahan kue, memasak kue, menghiaskue,mengemaskue,beristirahat,makandanminum,pulang.

Penyelenggara: Datang, duduk, menyapa pengunjung, mengobrol & berdiskusi, berjalan normal, berjalan dengan kursi roda, berjalan dengan alat bantu, memberikan materi, beristirahat, makan dan minum, bersih bersih, pulang.

Pengunjung:

Datang, duduk, mengobrol & berdiskusi, mendengarkan, berjalan normal, berjalan dengan kursi roda, berjalan dengan alat bantu, memperhatikan pemateri, menyiapkan bahan, membuat latte, membuatartlatte , beristirahat, makan danminum,pulang.

Workshop

33
Perancangan Creative Space : Upaya Pemberdayaan Penyandang Tuna Daksa PRIMER Melakukan pelatihan dan mengembangkan kreativitas Melukis di media kanvas (Baju, Jaket, Celana, tas dan Sepatu) Semi Publik 1-3 jam Memasakdan menghiascake Semi Publik 1-3 jam Workshop Melukis/membuatart latte Semi Publik 15 menit1 jam Workshop

Pembelajaranseni fotografi Semi Publik 1-3 jam

Pemateri:

Datang, duduk, menyapa pengunjung, mengobrol & berdiskusi, berjalan normal, berjalan dengan kursi roda, berjalan dengan alat bantu, memberikan materi, beristirahat, makan dan minum, bersih bersih, pulang.

Pengunjung:

Datang, duduk, mengobrol & berdiskusi, mendengarkan, berjalan normal, berjalan dengan kursi roda, berjalan dengan alat bantu, melihat dan memperhatikan pemateri, memotret objek, mengedit objek gambar dilaptop,beristirahat,makandanminum, pulang.

Pemateri:

Datang, duduk, menyapa pengunjung, mengobrol & berdiskusi, berjalan normal, berjalan dengan kursi roda, berjalan dengan alat bantu, memberikan materi, beristirahat, makan dan minum, bersih bersih, pulang.

Workshop

Merangkai bunga dan belajarberkebun sertamerawat tanaman

Semi Publik 15 menit 1 jam

Pengunjung: Datang, duduk, mengobrol & berdiskusi, mendengarkan, berjalan normal, berjalan dengan kursi roda, berjalan dengan alat bantu, memperhatikan pemateri, mengambil tanah liat, membentuk tanah liatmenjadi kerajinan,menjemur tanahliat,membakar tanah liatyang sudah dibentuk, beristirahat,makan danminum, pulang.

Pemateri: Datang, duduk, menyapa pengunjung, mengobrol & berdiskusi, berjalan normal, berjalan dengan kursi roda, berjalan dengan alat bantu, memberikan materi, beristirahat, makan dan minum, bersihbersih, pulang.

Workshop

Pengunjung: Datang, melihat, bertanya dan berdiskusi, berjalan normal, berjalan dengan kursi roda, berjalan dengan alat bantu, membeli, membayar, pulang. Shop

34
Perancangan Creative Space : Upaya Pemberdayaan Penyandang Tuna Daksa
PRIMER
Mempromosikan dan menjual hasil karya  Menjualcake  Menjualgerabah/ keramik Publik 5 menit 30 menit

Menjualbaju, jaket, tas, celana dan sepatuhasil lukisan sendiri.

Mempromosikan karya artlattemelalui pemasaran caffeshop Publik 15 menit – 3 jam

Penjual:

Datang, membuka toko, bersih bersih, menata barang, berjalan normal, berjalan dengan kursi roda, berjalan dengan alat bantu, menyiapkanbarang barang,mempromosikanbarang,menjual barang, mengobrol danberdiskusi,beristirahat,mengemasbarang, makandan minum,menutup toko, pulang.

Pengunjung:

Datang, melihat, mengobrol dan berdiskusi, memesan, duduk, bersantai, berjalan normal, berjalan dengan kursi roda, berjalan denganalatbantu,membayar,makandanminum,mengerjakantugas, pulang.

Penjual:

Datang, membuka toko, berjalan normal, berjalan dengan kursi roda, berjalandenganalatbantu,bersih bersih,menatabarang,menyiapkan barang barang, mempromosikan barang, menerima pesanan, membuat art latte, membuat makanan, mengantar pesanan, mengobrol dan berdiskusi, beristirahat, makan dan minum, menutup toko, pulang.

Pengunjung:

Mempromosikanjasa

layananfotografi dan menjual hasil karya fotografi

Publik 15 menit – 1 jam

Datang, melihat, berjalan normal, berjalandengan kursi roda, berjalan dengan alat bantu, mengobrol dan berdiskusi, berfoto, menunggu, membayar, pulang.

Penjual:

Datang, membuka toko, berjalan normal, berjalan dengan kursi roda, berjalandenganalatbantu,bersih-bersih,menatabarang,menyiapkan barang barang, mempromosikan jasa, memotret, mengedit objek gambar, memberikan hasil gambar, beristirahat, makan dan minum, menutuptoko,pulang.

Shop

Perancangan Creative Space : Upaya Pemberdayaan Penyandang Tuna Daksa

35
Coffeeshop

SEKUNDER

Melakukan event berskala besar

Kegiatan seminar, pameran dan pelatihan pengembangan kreativitas.

Publik 1 – 4 jam

Pengunjung:

Datang, Duduk, berjalan normal, berjalan dengan kursi roda, berjalan dengan alat bantu, memilih tempat, mengobrol dan berdiskusi, memperhatikan dan mendengarkan pemateri, makan dan minum, bertanyadanmenjawab,mengikutirangkaianacara, pulang.

Penyelenggara:

Datang, berjalan normal, berjalan dengan kursi roda, berjalan dengan alat bantu, membersihkan area, menyiapkan peralatan, memberikan materi, mengobrol dan berdiskusi, bertanya dan menjawab, mempromosikan karya, menunjukan bakat dan keterampilan, beristirahat,makandanminum, pulang.

Security:

TERSIER

Menunjang dari fungsi primer dan sekunder

Menjagakeamanan Publik 3 – 5 jam

Datang,duduk,bersih-bersih,makan,berjalan,memeriksakeamanan, mengobrol, menjaga keamanan, beristirahat, membantu pengunjung, makandanminum, pulang

Pengelola:

Menyimpanbarang danmengeolautilitas Privat Fleksibel

Buangair besar dan buang air kecil Privat

SERVICE

Buang air, beribadah, dan parkir

5-15 menit

Beribadah, bersuci dan berdoa Publik 10 – 30 menit

Memarkirkan kendaraan Publik 5 – 10 menit

Datang, duduk, mengobrol, mengecek dan memeriksa utilitas, mengambil peralatan, bersih bersih, menyimpan barang, mengeluarkan dan mengambil barang, memperbaiki kerusakan, beristirahat,makandanminum, pulang.

Masuk, buang air kecil/besar, berjalan normal, berjalan dengan kursi roda, berjalandenganalatbantu, mencuci tangan, keluar

Masuk, berjalan normal, berjalan dengan kursi roda, berjalan dengan alat bantu, berwudhu, buang air kecil, sholat, berdoa, berdzikir, beristirahat,menyimpandanmengambil barang, berbicara,keluar

Datang, memarkirkan kendaraan, berjalan normal, berjalan dengan kursi roda, berjalan denganalat bantu, mengobrol,pulang.

Ruang Security

Ruang Pengelola danGudang penyimpanan

Toilet

Mushola

Perancangan Creative Space : Upaya Pemberdayaan

Parkir area

36
Penyandang Tuna Daksa Amphiteater

PENGGUNA

37 Perancangan Creative Space : Upaya Pemberdayaan Penyandang Tuna Daksa
Penyelenggara dan para penjual berasal dari para penyandang tuna daksa itu sendiri yang berkontribusi besar dalam creativespaceini. - Penyelenggaradanpengelolaworkshop Penyelenggarapameran Penjual/Produsen KATEGORI USIA Remaja : 13 – 21 Tahun Dewasa : 22 – 45 Tahun Lansia : 46 65 Tahun GENDER Pria Wanita DATANG PARKIR MASUK KE WORKSPACE & WORKSHOP PERGI KE TAMAN PERGI KE AMPITEATER MASUK KE TOKO PERGI KE RUANG PENYIMPANAN KE TEMPAT PARKIR MEMPROMOSI KAN BARANG/ MEMAMERKAN HASIL PRODUKSI MENYELENGGA RAKAN PELATIHAN MEMBERSIKAN & MENYIAPKAN RUANGAN PULANG BUANG AIR BUANG AIR BERDISKUSI & MENGOBROL SHOLAT Diagram 2.5. Diagram sirkulasi aktivitas penyelenggara dan penjual
ANALISIS
1. PENYELENGGARA & PENJUAL

ANALISIS PENGGUNA

2. STAFF KEAMANAN DAN PENGELOLA

38
Perancangan Creative Space : Upaya Pemberdayaan Penyandang Tuna Daksa
Staff keamanan dan pengelola ini memiliki peranan menjaga keamanan dan ketertiban, menjaga dan mengelola area/ utilitas serta memperbaiki kerusakan utilitas di Creative Space. Security Staff Kebersihan StaffPengelola utilitas KATEGORI USIA Dewasa : 21 – 45 Tahun GENDER Pria& Wanita DATANG PARKIR BUANG AIR MEMANTAU KEAMANAN MASUK KE RUANG SECURITY PERGI KE TAMAN PERGI KE AMPITEATER MASUK KE RUANG PENGELOLA KE TEMPAT PARKIR MENGECEK DAN MENJAGA KONDISI UTILITAS DI AREA MENGECEK DAN MEMPERBAIKI KERUSAKAN MEMBERSIH KAN TAMAN PULANG BUANG AIR SHOLAT MASUK KE WORKSHOP & WORKSPACE MASUK KE TOKO/SHOP MEMBERSIH KAN AREA SEKITAR Diagram 2.6. Diagram sirkulasi aktivitas security dan pengelola MASUK KE RUANG PENYIMPANAN
39 Perancangan Creative Space : Upaya Pemberdayaan Penyandang Tuna Daksa
3. PENGUNJUNG Pengunjung yang datang ini memiliki beberapa aktivitasyangberagam. Pengunjungdengan tujuanedukasi Pengunjungdengan tujuanrekreasi KATEGORI USIA Anak anak : 5 – 12 Tahun Remaja : 13 21 Tahun Dewasa : 21 – 45 Tahun Lansia : 46 – 65 Tahun GENDER - Pria& Wanita DATANG PARKIR MENGIKUTI KEGIATAN WORKSHOP MASUK KE WORKSPACE & WORKSHOP PERGI KE TAMAN PERGI KE AMPITEATER MASUK KE TOKO KE TEMPAT PARKIR MELIHAT DAN MEMBELI KARYA/ BARANG HASIL KREASI DUDUK PULANG BUANG AIR BERDISKUSI & MENGOBROL SHOLAT BUANG AIR MELIHAT PERTUNJUKAN BAKAT & PAMERAN MENGIKUTI KEGIATAN SEMINAR Diagram 2.7. Diagram sirkulasi aktivitas Pengunjung BERDISKUSI & MENGOBROL
ANALISIS PENGGUNA

ANALISIS PENGGUNA DAN AKTIVITAS

40 Perancangan Creative Space : Upaya Pemberdayaan Penyandang Tuna Daksa
Berdasarkan hasil analisis pengguna dan aktivitasnya, bisa disimpulkan bahwa terdapat pembagian zonasi antara publik dan privat. AMPITEATER RUANG PENGEMBANGAN & PELATIHAN TOKO/ SHOP MUSHOLA TAMAN TEMPAT PARKIR TOILET RUANG PENGELOLA RUANG PENYIMPAN AN AREA PANGGUNG AREA PENGUNJUNG RUANG PENGELOLA RUANG PENYIMPAN AN RUANG SECURITY TAMAN SLASAR TEMPAT WUDHU RUANG SHALAT PARKIR MOBIL PARKIR MOTOR AREA PENGUNJUNG AREA PENJUAL WORKSHOP WORKSPACE TOILET PRIA TOILET WANITA MAKRO HUBUNGAN MAKRO DAN MIKRO Service PUBLIK PRESENTASIHUBUNGANDIAGRAM 15% 35% 65% 95% RUANG SECURITY SEMIPUBLIK

ANALISIS KEBUTUHAN RUANG

ANALISIS KEBUTUHAN RUANG KUANTITATIF

Kebutuhanruangini,didasarkandari hasilanalisispenggunadanaktivitas.

1. WORKSHOP 10 ORANG

pengguna Normal 10 Orang pengguna kursi roda + Alatbantu 2 orang penyelenggara

PENGUJUNG PENYELENGGARA

DUDUK BERDIRI BERDISKUSI MENGOBROL - MAKAN/MINUM PRAKTIK BERJALAN NORMAL BERJALAN DENGANKURSI RODA BERJALAN DENGANALAT BANTU BELAJAR

1.Luasruangpengguna individunormal=(Space pengguna+Sirkulasi 50%) L =(0.5m+0,5m)=1 m 2.LuasPenggunaIndividu dengankursiroda/Alat Bantu=(Space Pengguna+ Sirkulasi 50%) L =(1m+0,5m)=1,5 m L.Total=(1x10)+(1.5x 12)+furnituremeja& Kursi+Sirkulasi50% L.Total=10+18+(28+5) +Sirkulasi50% L.Total=28+33+31=92 m2

PERATURAN MENTRI

2006

Perancangan Creative Space : Upaya Pemberdayaan Penyandang Tuna Daksa

41
No. PROTOTYPE KAPASITAS PENGGUNA POLA AKTIVITAS LUAS TOTAL SUMBER DATA
PEKERJAAN UMUM NO. 30 Th.

2. TOKO/SHOP 10 ORANG pengguna Normal 10 Orang pengguna kursi roda + Alatbantu 2 orang penjual

PEMBELI/ PENGUNJUNG PENJUAL - MENJUAL MEMBELI MELIHAT LIHAT DUDUK BERDIRI MAKAN& MINUM MENGOBROL BERDISKUSI BERJALAN NORMAL BERJALAN DENGANKURSI RODA BERJALAN DENGANALAT BANTU MEMBAYAR - BERMAIN GADGET

Luas 5 Unit =92x5=460 m2

1.Luasruangpengguna individunormal=(Space pengguna+Sirkulasi 50%) L =(0.5m+0,5m)=1m 2.LuasPenggunaIndividu dengankursiroda/Alat Bantu=(Space Pengguna+Sirkulasi 50%) L =(1m+0,5m)=1,5m L.Total=(1x10)+(1.5x 12)+furnituremeja& Kursi+Sirkulasi50% L.Total=10+18+(28+5) +Sirkulasi50% L.Total=28+33+31 L.Total=92m2 Luas 5 Unit =92x5=460 m2

PERATURAN MENTRI PEKERJAAN UMUM NO. 30 Th. 2006

Perancangan Creative Space : Upaya Pemberdayaan Penyandang Tuna Daksa

42

3. AMPITEATERTERBUKA 50 200 ORANG PENGUNJUNG PENYELENGGARA

BELAJAR BERDISKUSI MENDENGARKAN MELIHAT PRAKTIK MAKAN&MINUM MENGOBROL DUDUK

(3000m2+1000m2)x1 =4000m2

ASUMSI

4.

MUSHOLA 80ORANG PENGUNJUNG

PENYELENGGARA STAFF

SHOLAT BERDOA MENGAJI BERSUCI (400m2+100m2)x1= 500m2

5. RUANGPENGELOLA 90Orang DIREKTUR SEKRETARIS RUANGRAPAT RUANGARSIP RUANGTAMU RUANG WARTAWAN DANPERS STAFF KEBERSIHAN STAFFMEP

BERTANGGUNG JAWAB TERHADAP KEGIATANDI TAPAK MEMERIKSA KERUSAKAN MEMBENARKAN KERUSAKAN BERSIH BERSIH ISTIRAHAT

Luas Total = (13m2+4,5 m2+30m2+4m2+15 m2+15m2+40m2+24 m2+20m2+8m2+8m2 +20m2)

Luas Total = 201, 5 m2

DATA ARSITEK JILID 2

DATA ARSITEK JILID 4

Perancangan Creative Space : Upaya Pemberdayaan Penyandang Tuna Daksa

43

STAFF PERALATAN RUANGCCTV RUANGPROTEKSI KEBAKARAN RUANGIPAL

6. RUANGSECURITY& PUSATINFORMASI 4ORANG STAFFKEAMANAN MEMANTAU KEAMANAN BERJAGAJAGA (20m2+10m2)x1= 30 m2 DATA ARSITEK JILID 4

7. TOILET 20 ORANG pengguna Normal 8 Orang pengguna kursi roda + Alatbantu

SELURUH PENGGUNA BUANGAIR L.Total=ToiletPengguna Kursiroda+ToiletNormal L.Total=((4m2+2m2)x 8)+((2m2+1m2) x20)) = 88m2

DATA ARSITEK JILID 1

Perancangan Creative Space : Upaya Pemberdayaan Penyandang Tuna Daksa

44

8 PARKIRAREA 100MOTOR 50MOBIL SELURUH PENGGUNA MEMARKIRKAN KENDARAAN ((2m2+1,5m2)x100)+ ((6,5m2+5,5m2)x50)= 300+1.788=2.088m2

PERATURAN MENTRI PEKERJAAN UMUM NO. 30 Th. 2006

9. MEDICAL CENTER

2PENGELOLA 3 PENGUNJUNG

SELURUH PENGGUNA P3K

LuasTotal=25m2 Fred Lewson Luas Total Kebutuhan Ruang 7.853 m2

45
Perancangan Creative Space : Upaya Pemberdayaan Penyandang Tuna Daksa
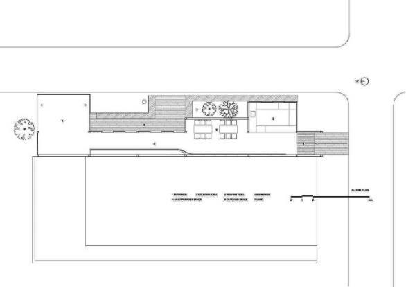
46 Perancangan Creative Space : Upaya Pemberdayaan Penyandang Tuna Daksa LT S TS V SO M CS LT S TS V SO M CS LT S TS V SO M CS ANALISIS KEBUTUHAN
AnalisamenggunakanParameterdesain Peter Zhumtor dalam Arsitektur[15]. LT:LightonThings S:SoundofSpace TS:TempheratureofSpace V:Ventilation SO:SurroundingObject/Visualization M:Material Compability CS:BetweenComposure&Seduction Sangat diperlukan Diperlukan Cukup diperlukan Kurang diperlukan WORKSHOP & WORKSPACE TOKO/SHOP MUSHOLA SERVICE AREA LT S TS V SO M CS LUX : 350 BUKAAN SEDANG LUX : 350 BUKAAN SEDANG LUX : 350 BUKAAN SEDANG LUX : 350 BUKAAN TERBATAS
RUANG KUALITATIF

ANALISIS KEBUTUHAN RUANG KUALITATIF

Jenis Ruang Antropometrik Proksemik Privasi Teritorialitas

Workshop +++ +++ + ++ Toko/Shop +++ +++ + ++ Amphiteater ++ +++ -Mushola +++ ++ +Ruang Pengelola ++ ++ +++ + Ruang Penyimpanan + - +++Ruang Security & Pusat Informasi ++ + + + Toilet +++ + +++ +++ Parkir Area ++ + -Keterangan

47
Perancangan Creative Space : Upaya Pemberdayaan Penyandang Tuna Daksa
-
+
++
+++
: Tidak diperlukan
: Cukup diperlukan
: Diperlukan
: Sangat diperlukan
48 Perancangan Creative Space : Upaya Pemberdayaan Penyandang Tuna Daksa BUBBLE DIAGRAM MAKRO & ZONE PLAN ZONE PLAN AMPHITEATHER TOKO WORKSHOP & WORKSPACE GUDANG PENYIMPAN AN R. PENGELOLA TOILET MUSHOLA PARKIR R. KEAMANAN TAMAN TOILET View View View Berjauhan Dekat berhubungan Dekat terjangkau Terjangkau BUBBLE DIAGAM RUANG PENYIMPANAN DAN PENGELOLA MUSHOLA KEAMANAN TOKO WORKSHOP & WORKSPACE AMPHITEATER

KAWASAN

CUACA & ANGIN

MATAHARI

49 Perancangan Creative Space : Upaya Pemberdayaan Penyandang Tuna Daksa
ANALISIS
LANDMARK MAIN ROAD MINOR ROAD ACCES ROAD 8 13 Meter 3 8 Meters 3 5 meters 2 lajur & 2 Jalur 1 lajur & 2 jalur 1 lajur & 2 Jalur B c A : SMAN 6 Kota Malang B : SMPN 10 Malang C : Kantor kecamatan Kedungkandang D : Dinas Komunikasi dan Informatika E : Gor Ken Arok F : Perumahan the palm A C E F AKSESIBILITAS Cuaca dan Arah angin di Kawasan Kedungkandang Sumber : Windy.com Diagram Sunpath di Kawasan Kedungkandang Sumber : Andrewmash.com Diagram Cuaca per Minggu Kawasan kedungkandang Sumber : meteoblue.com
ANALISIS KAWASAN
Aksesibilitas Kawasan Kedungkandang Sumber : Google maps Landmark Kawasan Kedungkandang Sumber : Google maps D F Peta Geografi Kawasan Kedungkandang Sumber : GEOGRAFI, IKLIM DAN LINGKUNGAN HIDUP Pemerintah Kota Malang

ANALISIS KAWASAN

S

trengths

- Kawasan berada di tempat strategis tepat di jalan Utama. Kawasan merupakan wilayah sarana pelayanan umum menurut

PERDA NO.4 Th. 2016 tentang RDTRW kota Malang Timur

W

eaknesses

KONDISI SOSIAL & EKONOMI

Pada kawasanini memilikijumlahpenyandangdisabilitas yangcukupbanyak Adapun kondisi pekerjaan penduduk sekitar merupakan seorang petani dan buruhindustry.[3]

- Masih banyaknya lahan kosong tidak terawat dipenuhi semak belukar Belum adanya fasilitas yang memadai untuk penyandang tuna daksa di sekitar kawasan

O

ppoturnitties

- Memanfaat area sebagai penyedia sarana pelayanan umum dengan lokasi yang strategis

- Membuka peluang pusat ekonomi kreatif Memanfaatkan lahan kosong menjadi area lingkungan koservasi

Tabel 1.4. jumlah penyandang disabilitas di kota Malang Sumber : Badan Pusat Statistik Kota Malang

T

reaths

- Pesatnya perkembangan ekonomi kreatif

Strengths Weaknesses Opportunitties

- Merancang Creative Space dengan didukung potensi yang ada pada tapak serta mampu menjadikannya sebagai upaya pengelolaan lingkungan binaan. Mewadahi fasilitas yang ramah difabel dan mampu membangun perekonomian kreatif.

- Membuat fasilitas workhop bagi penyandang tuna daksa untuk mengembangkan kreativitas yang nantinya mampu membangun ekonomi kreatif serta menata lanskap di tapak sebagai bentuk dari penataan lingkungan binaan.

Threaths

Menjadikan Creative space ini sebagai pelopor ekonomi creative pertama yang mampu memberikan dan memberdayakan Penyandang tuna daksa.

Menata lanskap pada tapak Memberikan fasilitas yang mampu membangn perekonomian.

50
Perancangan Creative Space : Upaya Pemberdayaan Penyandang Tuna Daksa

ANALISIS TAPAK

DIMENSI & REGULASI

BOUNDARIES

Kawasan site merupakan wilayah sarana pelayanan umum berdasarkan PERDA NO.4 Th. 2016 tentang RDTRW kotaMalangTimurdanmenjadi pusat ekonomi kreatif daam kurun waktu 2020 berdasarkan kabar beritaSuryamalang

GSB=5meter dariJalanRaya

KDB=22.555,92x40% =9.022m2

KDH = 22.555,92x60% =13.534m2

Strategi : Prinsip mewadahi aktivitas dengan nyaman dan aman

Site barrier pembatas pada area perumahan dan lahan kosong menggunakan penerapan kombinasi beton dengan vegetasi untuk menjaga privasi serta penerapan aspek desain yang ramahdannyamanakanpengguna.

ZONEPLAN

Pembagian zonasi ini disesuaikan dengan hasil analisis pengguna dan aktivitas dengan mempertimbangkan aspek teritori privasi dan aksesibilitas. Pada area utara diletakkan area service dengan tujuan untuk memudahkan sirkulasi utilitas pada tapak serta dengan pertimbangan pada area tersebutminimaktivitas. Untuk area public dan semipublic dibuat saling berdekatan untuk memudahkan akses dan mobilitas pengguna khususnya penyandang tunadaksa.

Sedangkan front barrier yang merupakan area public cukup menggunakan vegetasi peredam polusidankebisingan

Penerapan bangunan dari zonasi yangtelahditentukan

Pengklasifikasian bangunan berdasarkan zonasi ini juga didasarkan pada Comfort (kenyamanan) pengguna terkait dengan kemudahan dalam mencapaitujuansipengguna.

Strategi : Prinsip mewadahi aktivitas dengan nyaman dan aman

51
Perancangan Creative Space : Upaya Pemberdayaan Penyandang Tuna Daksa
108, 9 m
Jalan Mayjen Sungkono GSB ANAK KALI AMPRONG

ANALISIS TAPAK

TOPOGRAFI

Pada areatapakmemilikikontur yang landai dan hampir terbilang datar. Jenis tanah pada tapak merupakan jenis tanah alluvial dan tanah litosol dengan kestabilan landasanrelatifsedang tinggi.

Pada area kontur I dan II nantinya akan mengalami cut dan untuk area kontur V mengalami fill mengikuti tanahpadakonturIV.

Massing pada bangunan menyesuaikan dengan orientasi pergerakan angin dan sedikit menyesuaikankeadaantopografi.

AKSESIBILITAS

Akses keluar masuk kendaraan menggunakan system one waydengan2jaluryangberbeda untuk memudahkan sirkulasi kendaraanyangakanberkunjungdan mengurangi Crowding yangterjadi.

SIRKULASI

Sirkulasi manusia dibuat mengelilingi area dengan pusatbangunan amphitheater yang bertujuan agar destinasiseluruhareabisadikunjungioleh pengguna dan menciptakan rangsangan inderawi bagi si pengguna. Adapun sirkulasi ini juga mengurangi crowding yangterjadi didalamtapak.

Pada sirkulasi manusia, diberikan area sirkulasi prioritas bagi penyandang tuna daksa yang berada di depan area bangunan dengan pemberian handrailing untuk meningkatkankenyamanandankemanan.

Akses keluar masuk pengguna juga menerapkan one gate system untuk meningkatkankeamanansertakemudahan penggunauntukmengenalientrance.Jarak antar bangunan pun dibuat saling berdekatan dengan tujuan kemudahan aksesbagipenyandangtunadaksa.

52
Perancangan Creative Space : Upaya Pemberdayaan Penyandang Tuna Daksa KONTUR I KONTUR II KONTUR III KONTUR IV KONTUR V
AKSES KELUAR MASUK PENGGUNA AKSES KELUAR MASUK MOBIL PARKIR AKSES KELUAR MASUK MOTOR PARKIR AKSES AREA TOKO AKSES AREA MUSHOLA AKSES UTAMA AMPHITEATER
SIRKULASI PENGGUNA DARI PARKIR RODA 2 SIRKULASI PENGGUNA (AREA BANGUNAN) SIRKULASI PENGGUNA DARI PARKIR RODA 4 SIRKULASI KELUAR PARKIR RODA 4 SIRKULASI MASUK PARKIR RODA 4 SIRKULASI KELUAR PARKIR RODA 2 SIRKULASI MASUK PARKIR RODA 2
TROTOAR PRIORITAS PENYANDANG TUNA DAKSA PARKIR RODA 2 SIGN/ PENANDA TANAMAN PENGARAH Strategi : Prinsip desain
pengguna & lingkungan Strategi : Prinsip desain mampu dipahami pengguna & lingkungan AKSES AREA WORKSHOP AKSES AREA PENGELOLA SIRKULASI ANGKUTAN UMUM PARKIR RODA 4 SIRKULASI KENDARAAN AREA SERVICE SIRKULASI KENDARAAN SERVICE SIRKULASI PEJALAN KAKI
mampu dipahami

ANALISIS TAPAK (IKLIM)

SENSORI

ANGIN

Untukmeredamnoise dan polusi kendaraan, pada area utara tapak cukup diberi barrier vegetasi pucuk merah, karena sudah terdapat peredambisingalamidarianak kaliamprong.

Bangunannya pun dibuat lebih menjorok kedalam untuk memenuhi visibilitas pengguna.

MATAHARI

Orientasi bangunanselainmengikuti arahangindangariskontur, juga dihadapkan pada arah utara & selatan dengan tujuan meminimalisir terik dan panaspadasorehari demi

Diberikan barrier massive dan vegetasi rambat sebagai view dari arah selatan serta sebagai upaya privasi area dari lahan permukiman.

Posisi bangunan dan alur sirkulasi disesuaikan dengan arah anginyangberhembusdari timur laut menuju barat daya dengan tujuan menyesuaikan dengan kondisithermal setempat.

Strategi : Prinsip desain mampu dipahami pengguna & lingkungan

Strategi : Prinsip desain mampu dipahami pengguna & lingkungan

Pemberiansolarphotovoltaicroofpadaarea amphiteather berfungsi sebagai pemanfaatan dari sinar matahari yang terik menjadi sumber energy listrik. Selain itu juga sebagai peneduh area pengunjungdisianghari.

53
Perancangan Creative Space : Upaya Pemberdayaan Penyandang Tuna Daksa
WATER FEATURE
Strategi : Prinsip mewadahi aktivitas dengan nyaman dan aman

ANALISIS TAPAK

LANSKAP & VEGETASI

KOMUNAL TERBUKA

UTILITAS

AIR BERSIH

Pada utilitas air bersih, sumber air menggunakan sumber dari PDAM tandon utama kecamatanBuring `

AIR KOTOR

Pada utilitas kotoran dari septictank yang dialirkan terlebih dulu menuju sumur resapan sebelum dibuang ke saluran pembuangan yang nantinya dialirkan menuju anak kali amprong yang berada di timur tapak.

54
Perancangan Creative Space : Upaya Pemberdayaan Penyandang Tuna Daksa PEREDAM ANGIN PENEDUH & RESAPAN PENGARAH PEREDAM POLUSI TANAMAN PAGAR ANGSANA & TANJUNG KETAPANG KENCANA PUCUK MERAH HELICONIA, PALM, DAN BUNGA SEPATU CALATHEA LUTEA & DOLAR KECIL Strategi : Prinsip desain mampu dipahami pengguna & lingkungan AREA KOMUNAL TERBUKA GROUND TANK UTAMA TANGKI PENYIMPANAN TIAP BANGUNAN PDAM SEPTICTANK RESAPAN SALURANPEMBUANGAN MENUJU ANAK KALI AMPRONG AREA AIR KOTOR CLOSET AIR KOTOR NON CLOSET

ANALISIS TAPAK

UTILITAS AIR HUJAN

Pembuangan air hujan nantinya ada yang langsung dibuangkeanakkaliamprong melalui saluran pembuanga dan ada juga yang ditampung untuk digunakan sebagai sumberairhydrant.Padaarea tengah, terdapat resapan biopori dan water feature sebagai respon dari penyimpananair hujan.

ELEKTRIKAL

Sistem elektrikal bersumber dari PLN yang kemudian disimpan di genset sebelum dialirkan ke MCB Bangunan. Terdapat sumber listrik cadangan yang berasal dari solar photovoltaic roof

WASTING

Sampah yang sudahterkumpul nanyinya akan di pilah terlebih dahulu sebelum diangkut dan dibuang menuju tempat pembuangan akhir.

Sistem penanggulangan kebakaran menggunakan hydrant yang diletakan di luar bangunan dan APAR yang diletakan di dalam bangunan. Untuk titik kumpul evakuasi berada di areaparkirbagiandepan.

55
Perancangan Creative Space : Upaya Pemberdayaan Penyandang Tuna Daksa PENANGGULANGAN KEBAKARAN SALURAN PEMBUANGAN RESAPAN WATER FEATURE METERAN & GENSET PANEL SURYA PENAMPUNGAN SAMPAH TITIK KUMPUL TITIK HYDRANT TITIK PENYIMPANAN AIR PENGELOLAAN SAMPAH TEMPAT SAMPAH SIRKULASI TRUK SAMPAH TANDON AIR HUJAN

UTILITAS

KEAMANAN

Sistem keamanan di dalam tapak menggunakan CCTV dan juga pengawasan dari security untuk mengawasi kegiatan yang dilakukan di dalam tapak sekaligus mengurangi hal hal yang tidakdiinginkan.

56
Perancangan Creative Space : Upaya Pemberdayaan Penyandang Tuna Daksa

ANALISIS BENTUK

TRANSFORMASI BENTUK

MASSA

Massa bangunan disusun berdasarkanzonasinya

MASSA

Massa dipecah berdasarkan fungsinya

KONEKTIVITAS

Penambahankonektivitasruang untuk massa workshop danshop sebagai kemudahan akses dan kenyamanan mobilitas pengguna khususnya bagi penyandangtunadaksa.

ADDITION

Pada area shop dan workshop mengalami penambahan massa untuk menggabungkan tiap unit massa untuk kenyamanan dan juga keamanan pengguna khususnya penyandang tuna daksa.

SUBSTACTIVE

Massa dipecah lagi menjadi unit lebih kecil sesuai

ORIENTASI (GRID)

Massa disusun kembali mengikuti arah kontur serta arah angin yang berhembus dari timur laut menuju barat daya agar sesuai dengan kondisi thermal setempat serta mengurangi terik dan panas pada sore hari.

57
Perancangan Creative Space: Upaya Pemberdayaan Penyandang Tuna Daksa

ANALISIS BENTUK

BANGUNAN

AMPHITEATER

Bentuk amphitheater ini merupakan hasil dari analisis tapak dengan hasil akhir berbentuk melingkar. Desain ini dimaksudkan sebagai upaya meminimalisir ruang sudut mati untukkenyamananruanggerakbagi penyandang disabilitassebagai prinsip Mampu Mewadahi Aktivitas dengan Nyaman dan Aman

SUBSTRACTION (LOOP) TRANSFORMATION ADDITION

Bentuk mengalami penambahan massa pada bagian atap

SUBSTRACTION

Bentuk mengalami pengurangan dibagisan salah satu sisi mengikuti hasil dari analisis sirkulasi pada tapak

Bentuk mengalami pengurangan massa pada bagian tengah mengikuti hasil dari analisis iklim pada tapak

Kemudian bentuk mengalami pengurangan dan perubahan mengikuti pola grid pada tapak

Bentuk awal massa dibuat dengan ukuran mengikuti hasil analisis ruang

58
Perancangan Creative Space: Upaya Pemberdayaan Penyandang Tuna Daksa Strategi Desain : Memperhatikan Kondisi Perilaku dan Pengguna & Desain mampu dipahami pengguna dan lingkungan.

BANGUNAN TOKO & WORKSHOP

` Bentuk awal massa dibuat dengan zonasi dan ukuran mengikuti hasil analisis ruang

SUBTRACTION

Penambahan atap yang memiliki overstake pada bagian depan bertujuan untuk menaungi area sikulasipenggunadan mengurangi paparan sinar matahari serta percikan air hujan ke bagian fasad depan bangunan.

Strategi Desain : Memperhatikan Kondisi Perilaku dan Pengguna & Desain mampu dipahami pengguna dan lingkungan.

ADDITION

Kemudian massa mengalami penambahan volume, sebelah kiri merupakan bangunan toko dansebelahkananbangunanworkshop

Selanjutnya dua massa tadi digabung menjadi satu bangunan dengan pertimbangan kenyamanan sirkulasi dan keudahan terkaitpengguna tunadaksa

59
Perancangan Creative Space: Upaya Pemberdayaan Penyandang Tuna Daksa

BANGUNAN MUSHOLA

Bentuk awal massa dibuat mengikuti orientasi berdasarkananalisistapak

ADDITION

Massa mengalami penambahan mengikuti zonasi dan fungsi dari mushola

SUBSTRACTION

Bentuk massa mengalami pengurangan untuk sirkulasi dan pemisahan antara jamaah pria dan wanita.

ADDITION

Penambahan atap dak yang memiliki ketahanan kuat demi keamanan dan kenyamanan jamaah.

Perancangan Creative Space: Upaya Pemberdayaan Penyandang Tuna Daksa

60

BANGUNAN SERVICE SECURITY & RUANG INFORMASI RUANG PENGELOLA

ADDITION

Massa mengalami penambahan bentuk untuk bagianatap

Massa mengalami pengurangan untuk area teras

Bentuk awal massa dibuat dengan mengikuti ukuran hasil analisis ruang

Mengalami penambahan atap bagian fasad depan dan penambahan kolom sebagai penguat.

Mengalami penambahan massa ke bagianatas

Bentuk awal massa dibuat dengan ukuran mengikuti hasil dari analisis ruang

61
Perancangan Creative Space: Upaya Pemberdayaan Penyandang Tuna Daksa
SUBSTRACTION SUBSTRACTION ADDITION
62 Perancangan Creative Space: Upaya Pemberdayaan Penyandang Tuna Daksa ANALISIS STRUKTUR 1 2 3 1 2 1 2 3 STRUKTUR BAWAH STRUKTUR TENGAH STRUKTUR ATAS MATERIAL pondasi setempat pondasi setempat Kolom Baja silinder + beton Kolom& balok Beton bertulang Struktur rigid frame Pondasi menerus Struktur Space frame Struktur rangka atap beton Struktur space truss 1 2 3 1 2 1 2 3

ANALISIS STRUKTUR

STRUKTUR BAWAH STRUKTUR TENGAH STRUKTUR ATAS MATERIAL

pondasi menerus

Struktur rigid frame

Struktur atap dak beton

pondasi menerus

Struktur rigid frame

Struktur atap dak beton & green roof

63
Perancangan Creative Space : Upaya Pemberdayaan Penyandang Tuna Daksa
1 2 3 1 2
1 2 3 1 2

V KONSEP

KONSEP DASAR

KONSEP DASAR

Konsep dasar dari perancangan Creative Space ini menggunakan konsep “CARE (PEDULI)”. Konsep ini memiliki makna bahwa dengan adanya creative space yang diperuntukkan untuk memberdayakan penyandang tuna daksa ini agar mereka lebih peduli dengan kelebihan dan bakat yang dimilikinya dari pada kekurangan yang ada ditubuhnya.

Diharapkan juga dari adanya creative space ini, mampu menambah semangat hidup bagi para penyandang tuna dengan kreativitas yang dimilikinya dan mampu mengubah persepsi buruk dari masyarakat umum menjadi lebih peduli dengan para penyandang tuna daksa diluar sana agar tidak lagi dipandang sebelah mata.

Penerapan :

Q.S. Sad : 27

Kesesuaianobjek rancangan dengan tujuan perancangan

Q.S. An-Nahl : 90

NilaiSilaturahmi& berbuatbaik terhadapsesama

Q.S. Al-Insyiqaq : 84

Diajarkan untuk bekerjakeras dan giat

Saling berdekatan dengan tujuan kemudahan akses

Peduli sesama Manusia

Saling menghargai dan tolong menolong tanpa melihat sisi perbedaan Membantu perekonomian

Perancangan

Peduli Lingkungan binaan

Memberikan pengajaran ilmu atau keahlian - Pemanfaatan area hijau sebagai resapan Memanfaatkan penghawaan dan pencahayaan alami untuk mengurangi penggunaan energy berlebih

Pemanfaatan surya panel sebagai energy alternative Pemanfaatan biopori dan waterfeature sebagai respon dari hujan ke tapak.

Creative Space : Upaya Pemberdayaan Penyandang Tuna Daksa

64

-

KONSEP TAPAK

ZONING

Penerapan konsep “Peduli” pada zoning tapak ini diimplementasikan dari prinsip mewadahi aktivitas dengan aman dan nyaman yang diterapkan pada penzoningan di area tapak. Pada tapak ini dibagi menjadi 3 zona untuk memudahkan pengguna dalam mencapai tujuannya. Adapun, pembagian zona ini didasarkan pada beberapa ciri Arsitektur perilaku yang meliputi Privacy, Comfort, Aksesibilitas, Crowding, dan Visibilitas.

Zona Publik

Pada area amphitheater diletakkan lebih dekat dengan entrance dan didekatkan dengan jangkauan public untuk memudahkan akses pengguna untuk mencapainya. Selain itu juga tidak membutuhkan tingkat privasi yang tinggi.

Zona SemiPublik

Pada area Workshop, Shop dan masjid ini dibuat tidak terlalu jauh dengan area public namun masih memiliki tingkat privasi yang cukup tinggi dengan tujuan memudahkan akses pengguna khususnya

penyandang tuna daksa

Zona Service

Pada area ini dibuat searah dari timur ke barat dengan tujuan kemudahan utilitas di tapak.

65
Creative Space : Upaya
Tuna
Perancangan
Pemberdayaan Penyandang
Daksa
Zona Service A: RuangIPAL B : RuangPengelola& Penyimpanan A B L J C H C K E D F G Zona SemiPublik C : Mushola
D : Workshop E :Shop F :Toilet G :MedicalCenter Zona Publik H : Ampitheater I : Parkir Kendaraanroda 2 J : Parkir Kendaraanroda4 K :Halte/ Shelter L :PosSatpam
I

KONSEP TAPAK

SIRKULASI DAN ENTRANCE

1. MOBIL DAN MOTOR

Pada area parkir tersebut merupakan parkir khusus penyandang tuna daksa dengan tujuan untuk mewadahi aktivitas dengan aman dan nyaman bagi pengguna

ENTRANCE MOBIL

KEYPLAN

Jalur kendaraan service ini nantinya akan digunakan sebagai keluar masuknya kendaraan truck pengangkut sampah maupun pengangkut barang

Pemisahan pintu keluarmasuk kendaraan ini menerapkan prinsip mewadahi aktivitas dengan aman dan nyaman dengan tujuan untuk menghindari crowding yang terjadi.

ENTRANCE MOTOR

Entrance parkir motor ini menerapkan one gate system dan menggunakan system gerbangpalang otomatis

Entrance parkir mobil ini pun menerapkan one gate system dan menggunakan system gerbang palang otomatis.

SIRKULASI ANGKUTAN

UMUM Halte/Shelter untuk menunggu angkutan dan sebagai tempat singgah para gojek ini dilengkapi oleh stop kontak untuk mengisi daya baterai handphone

66
Perancangan Creative Space : Upaya Pemberdayaan Penyandang Tuna Daksa

SIRKULASI & ENTRANCE

2. PEJALAN KAKI

Akses masuk manusia diberi signage entrance dengan warna putih yang merupakan symbol netral yang memiliki makna siapapun yang memasukin area creative space ini memiliki kesetaraan dengan manusia lainnya.

Bentuk ini diadaptasi dari bentuk 2 tangan yang saling menggam dengan makna symbol saling peduli satu sama lain sesuai dengan Konsep Peduli.

Entrance pengunjung menuju area creative space ini menerapkan one gate system dengan lebar jalan 14 meter agar para pengunjung merasa nyaman saat bersirkulasi dan meinimalisir crowding.

Material perkerasan yang digunakan yakni beton, dan 3 jenis paving yang berbeda dengan tujuan perkerasan ini lebih ramah akan pejalan kaki.

Pada trotoar ini menerapkan material beton dan terdapat handrailing yang merupakan penerapan prinsip mewadahi aktivitas dengan aman dan nyaman dengan tujuan membantu kemudahan para penyandang tuna daksa saat berjalan menggunakan kursi roda maupun alat bantu.

TROTOAR PENGUNJUNG

DENGAN KENDARAAN RODA 2

67
Perancangan Creative Space : Upaya Pemberdayaan Penyandang Tuna Daksa TROTOAR PENGUNJUNG DENGAN KENDARAAN RODA 4 TROTOAR PENGUNJUNG DENGAN KENDARAAN UMUM JALUR PRIORITAS PENYANDANG TUNA DAKSA JALUR SIRKULASI PARA PENGUNJUNG

KONSEP TAPAK

OUTDOOR SPACE

Konsep peduli ini juga diterapkan pada outdoor space dengan tujuan adanya area ini, hubungan antar manusia dapat terjalin dengan baik akibat adanya interaksi dan komunikasi antara satu sama lain.

Outdoor space ini menerapkan prinsip mewadahi aktivitas dengan aman dan nyaman serta memperhatikan kondisi perilaku dan pengguna. Hal ini diwujudkan dari penggunaan material penutup lahan berupa paving blok yang mana memudahkan penyandang tuna daksa untuk bersirkulasi dan juga penataan kursi dan tempat duduk dengan memperhatikan space untuk bergerak

Penambahan elemen tanaman memberikan kesan natural dan sejuk pada area tersebut yang merupakan implementasi dari prinsip mampu dipahami pengguna dan lingkungan.

68
Perancangan Creative Space : Upaya Pemberdayaan Penyandang Tuna Daksa
KEYPLAN

KONSEP TAPAK

LANSKAP DAN VEGETASI

Konsep lanskap pada area tapak ini menerapkan prinsip mampu dipahami pengguna dan lingkungan yang ditunjukkan dari penerapan hardscape dan softscape pada tapak.

Konsep peduli dengan lingkungan binaan ini ditunjukkan dari fungsi utama penerapan softscape sebagai resapan, juga terdapat biopori sebagai alternative resapan di tapak yang di tanam di setiap titik tanaman peneduh.

Water feature yang berada diluar amphitheater ditujukan sebagai view dan pengarah

Water feature yang berada di area amphitheater ditujukan sebagai irigasi/ penampung air hujan yang nantinya akan dibuang ke anak kali amprong

Penambahan water feature pada tapak selain sebagai fungsi view semata, juga sebagai respon iklim ke tapak dan juga sebagai pengarah. Water feature ini nantinya difungsikan sebagai penyerap/ peminimalisir panas berlebih pada siang hari, juga sebagai penampung dan pengalir air hujan.

Konsep peduli terhadap pengguna yang diterapkan pada tapak ditunjukkan dengan penerapan material hardscape aspal dan paving blok yang mana penggunaan material ini lebih aman dan membuat nyaman pada si pengguna.

69
Perancangan Creative Space : Upaya Pemberdayaan Penyandang Tuna Daksa Pengarah Pembatas Peneduh Tanaman Rambat Tanaman penutup lahan TITIK BIOPORI

KONSEP BENTUK

BENTUK DAN FASAD

1. AMPHITEATER

Tangga & Ramp dengan kemiringan 6 derajat dimaksudkan sebagai penerapan prinsip Memperhatikan Kondisi Perilaku dan Pengguna

MATERIAL

Struktur baja dibuat zigzag berongga merupakan implementasi dari bentuk gerakan bergandengan. Penerapan ini juga dimaksudkan agar sirkulasi udara bisa bergerak bebas sebagai prinsip Desain mampu dipahami pengguna dan lingkungan.

Pada area sirkulasi ramp menerapkan material beton demi keamanan dan kenyamanan pengguna. Sedangkan untuk area tangga menggunakan batu alam lempengan sebagai prinsip Mampu Mewadahi Aktivitas dengan Nyaman dan Aman.

KEYPLAN
Pemanfaatan sinar matahari dengan memberikan solar photovoltaicdi bagianatap
70
Perancangan Creative Space : Upaya Pemberdayaan Penyandang Disabilitas

BENTUK DAN FASAD

2. SHOP & WORKSHOP

Memiliki ketinggian atap yang berbeda untuk memasukkan udara ke dalam bangunan .

Pada atap diterapkan kaca reflektif untuk membantu memasukkan cahaya matahari kedalam bangunan.

Diberikan kisi bambu sebagai pengganti dinding dengan tujuan untuk memasukkan cahaya dan penghawaan alami pada bangunan yang disesuaikan dengan prinsip desain mampu dipahami pengguna dan lingkungan.

MATERIAL

Pada sirkulasi diberikan handrailing yang disesuaikan dengan kebutuhan penyandang tuna daksa. Hal ini bertujuan untuk membantu pergerakan para penyandang tuna daksa.

Bangunan Workshop dan shop ini dibuat saling berdekatan yang dikoneksikan dengan penggabungan atap dan juga jalur sirkulasi. Bentuk bangunan ini didasarkan pada pola grid serta kebutuhan ruang.

Penerapan prinsip Memperhatikan Kondisi Perilaku dan Pengguna serta Mampu Mewadahi Aktivitas dengan Nyaman dan Aman diwujudkan dengan kemudahan akses dan mobilitas antar bangunan. Hal tersebut sangat membantu para penyandang tuna daksa saat mencapai tujuannya.

KEYPLAN
71
Perancangan Creative Space : Upaya Pemberdayaan Penyandang Disabilitas

BENTUK DAN FASAD

3. MUSHOLA

BENTUK ATAP MENJULANG KEATAS

Bentuk atap ini merupakan implementasi seoranghambauntukkembali kepadaAllah baikdisaatsenangmaupunsusah.

KISI KAYU SIRKULASI UDARA

Penambahan kisi ini dimaksudkan agar sirkulasi udara di ruangan dapat bergerak secara maksimal.

ORNAMENTASI FULL

Pemberian seni ornamentasi full tanpa entrance ini, selain menjadi nilai estetika bangunan, juga menandakan bahwa pada sisi tersebut merupakan kiblat dari musholaini. Hanya terdapat 2 akses yang berada di sisi kiri dan kanan.

KALIGRAFI

GREEN ROOF

Penerapan green roof ini sebagai respon iklim tropis di tapak.

BENTUK FASAD MENYERUPAI BANYAK PINTU DI SISI TIMUR DAN SELATAN

Selain sebagai entrance, hal ini juga difungsikan sebagai penanda bangunan mushola seperti bangunan mushola pada menambah estetika bangunan, juga menjadi penanda bangunanmusholaini.

Pemberian seni kaligrafi pada fasad bangunan selain

umumnya. Implementasi ini juga memiliki makna bahwa siapapun berhak masuk dari manapun untuk kembali beribadah kepada AllahSWT.

KEYPLAN
MATERIAL
72
Pinsip : Mampu Mewadahi Aktivitas dengan Nyaman dan Aman serta Desain mampu dipahami pengguna dan lingkungan. Perancangan Creative Space : Upaya Pemberdayaan Penyandang Disabilitas

BENTUK DAN FASAD

4. BANGUNAN SERVICE

BANGUNAN PENGELOLA

Bangunan service dibuat lebih sederhana dari bangunanlainnya,agartidakterkesanmenonjoldan tidak mengurangi daya tarik bangunan primer dan sekunder.

Pemberian sign pada bangunan pusat informasi membantu para pengunjunguntukmempermudahmengenali bangunan tersebut. Untuk bangunan pengelola sengaja dibuat dengan kesan lebih tertutup dan jauhdarijangkauanparapengunjungagarprivasidaribangunaninitetap terjagadantidakmengganggunilai fungsi dari bangunanlainnya.

Pada bangunan pengelola diberikan atap green roof dengan tujuan agar kestabilan suhu bangunan terjaga dikarenakan atap green roof mampu mengurangi suhu panas berlebih sehingga para pengelola merasa nyaman saat berada didalamnya. Penerapan ini pada bangunan juga merupakan implementasi dari prinsip Desain mampu dipahami pengguna dan lingkungannya serta mampu mewadahi aktivitas dengan nyaman dan aman.

Perancangan Creative Space : Upaya Pemberdayaan Penyandang Disabilitas

KEYPLAN
MATERIAL
73

KONSEP STRUKTUR

STRUKTUR AMPHITEATER

PENUTUP ATAP

Material Alumunium Sheet karena selain memiliki beban yang lebih ringan, juga memiliki ketahananlebih kuat.

STRUKTUR SPACE TRUSS

Material Baja sebagai struktur atap lebih memiliki ketahanan kuat sehingga cukup aman bagi kenyamanan pengguna. Selain itu, penerapan struktur truss ini juga mampu memberikan nilai estetika tersendiri bagi yang melihatnya

KOLOM BAJA SILINDER DENGAN BETON

Penggunaan kolom baja ini memiliki nilai keamanan yang kuat untuk menopang struktur diatasnya. Penambahan beton sebagai penyambung ke pondasi juga mampu memperkuat kolom untuk menopang beban diatasnya.

STRUKTUR BAWAH

Untuk penggunaan struktur bawah ini adalah penggunaan pondasi setempat.

74
Perancangan Creative Space : Upaya Pemberdayaan Penyandang Disabilitas Strategi Desain : Mampu Mewadahi Aktivitas dengan Nyaman dan Aman

STRUKTUR WORKSHOP & SHOP

PENUTUP ATAP

Menggunakan material dari alumunium sheet karena selain memilikibebanyanglebihringan, juga memiliki ketahanan lebih kuat.

STRUKTUR ATAS

Menggunakan struktur atap dari baja hollow.

STRUKTUR TENGAH

Menggunakan struktur rigid frame. Kolom dan Balok menggunakanbeton bertulang.

STRUKTUR BAWAH

Menggunakan struktur pondasi Setempat

75
Perancangan Creative Space : Upaya Pemberdayaan Penyandang Disabilitas

STRUKTUR MUSHOLA

PENUTUP ATAP

Penggunaan material Alumunium Sheet selain memiliki beban yang lebih ringan, juga memiliki ketahananlebih kuat.

Serta penerapan atap green roof dimampu untukmengurangi panasberlebihyangnantinya akanmasuk kedalam bangunan

STRUKTUR BAWAH

Penggunaan pondasi menerus ini karena memiliki daya tahan tinggi terhadap goncangan sehingga bangunan mampu mewadahi aktivitas si pengguna dengan aman dan nyaman.

STRUKTUR ATAP

Struktur yang digunakan pada atap ini menggunakan struktur Space frame dari baja ringan.

STRUKTUR TENGAH

Penggunaan Kolom dan Balok menggunakan struktur rigid frame dengan material beton bertulang.

76
Perancangan Creative Space : Upaya Pemberdayaan Penyandang Disabilitas

STRUKTUR BANGUNAN SERVICE

INFORMASI & PUSAT

ATAP

Menerapkan penggunaan dak beton STRUKTUR

TENGAH

Penggunaan Kolom dan Balok menggunakan struktur rigid frame dengan material beton bertulang.

STRUKTUR BAWAH

Selurih bangunan menggunakan pondasi menerus. Hal ini karena pondasi menerus memiliki daya tahan tinggi terhadap goncangan sehingga bangunan mampu mewadahi aktivitas si pengguna dengan aman dan nyaman.

77
Perancangan Creative Space : Upaya Pemberdayaan Penyandang Disabilitas SECURITY BANGUNAN PENGELOLA

KONSEP RUANG

Penerapan prinsip “Mampu Mewadahi Aktivitas dengan Nyaman dan Aman” serta “Memperhatikan Kondisi Perilaku dan Pengguna” ditunjukkan dari penempatan tribun bawah yang dikhususkan bagi penyandang tuna daksa dan juga lansia. pada tribun yang dikhususkan bagi pengguna kursi roda, cukup diberikan space 1 meter.

Kondisi Perilaku dan Pengguna” diterapkan pada penggunaan material batu andesit dan beton untuk penutup lantai serta pemberian handrailing yang merupakan penerapan dari prinsip sebagai upaya kenyamanan bersirkulasi bagi penyandang tuna daksa agar pengguna lebih merasa aman dan nyaman.

Pada area ramp dibuat dengan kemiringan 6 derajat.

Konsep ruang amphitheater ini menonjolkan sisi peduli terhadap lingkungan dengan kesan yang dibuat outdoor.

78
Perancangan Creative Space : Upaya Pemberdayaan Penyandang Tuna Daksa AMPITHETATER TRIBUN PRIORITAS PENYANDANG TUNA DAKSA BERJALAN DENGAN ALAT & LANSIA TRIBUN KHUSUS PENYANDANG TUNA DAKSA BERJALAN DENGAN KURSI RODA Penerapanprinsip“Mampu Mewadahi Aktivitas dengan Nyaman dan Aman” serta“Memperhatikan

WORKSHOP & SHOP

Penerapan prinsip “Memperhatikan Kondisi Perilaku dan Pengguna” diterapkan pada penggunaan beton COFFEESHOP

MEDICAL CENTER WORKSHOP TOILET

rabat sebagai penutup lantai. Penerapn lainnya juga ditunjukkan dari pemberian area istirahat dan duduk dengan pengklasifikasian antara pengguna yang berjalan dengan kursi roda dan pengguna yang berjalan dengan alat bantu/ normal.

SHOP

Penerapan prinsip “Memperhatikan Kondisi

Perilaku dan Pengguna” serta “ Mewadahi akyivitas dengan aman dan nyaman” bagi penyandang tuna daksa ditunjukkan pada penggunaan lantai parket agar pengguna merasa nyaman saat bersirkulasi. Adapun penyesuaian ketinggian furniture juga diterapkan pada ruangan agar membuat para penyandang tuna daksa merasa nyaman saat melakukan aktivitas.

Penerapan prinsip “Memperhatikan Kondisi

Perilaku dan Pengguna” serta “ Mewadahi akyivitas dengan aman dan nyaman” diterapkan pada lantai keramik bertekstur di area toilet untuk memudahkan dan memberikan keamanan penyandang tuna daksa saat bersirkulasi. Dan juga pemberian pegangan di setiap toilet khusus penyandang Tuna daksa untuk membantu memudahkan pengguna saat melakukan kegiatan buang air.

79
Perancangan Creative Space : Upaya Pemberdayaan Penyandang Tuna Daksa

MUSHOLA

TEMPAT WUDHU PENYANDANG TUNA DAKSA

TEMPAT WUDHU WANITA

TEMPAT WUDHU WANITA

TEMPAT SHOLAT WANITA

Penerapan prinsip “Memperhatikan Kondisi Perilaku dan Pengguna” diterapkan pada lantai parquet untuk memudahkan dan memberikan keamanan penyandang tuna daksa saat bersirkulasi. Selain itu juga, diberikan area wudhu yang diperuntukkan penyandang tuna daksa. Pemaksimalan penghawaan dan pencahayaan serta pemberian satir pembatas antara jamaah perempuan dan laki laki merupakan upaya dari penerapan prinsip“Mampu Mewadahi Aktivitas dengan Nyaman dan Aman”.

Perancangan Creative Space : Upaya Pemberdayaan Penyandang Tuna Daksa

80

AREA SERVICE RUANG PENYIMPANAN

RUANG
PROTEKSI KEBAKARAN RUANG WARTAWAN & PERS RUANG RAPAT
RUANG DIREKTUR & ARSIP Pemaksimalan penghawaan dan pencahayaan alami merupakan upaya dari penerapan prinsip “Mampu Mewadahi Aktivitas dengan Nyaman dan Aman”. Gambar Render Denah Security & Pusat Informasi Perancangan Creative Space : Upaya Pemberdayaan Penyandang Tuna Daksa 81
RUANG STAFF TOILET

KONSEP UTILITAS

AIR BERSIH

AIR HUJAN

Pembuangan air hujan nantinya ada yang langsung dibuang ke anak kali amprong melalui saluran pembuangan dan ada yang ditampung untuk digunakan sebagai sumber air hydrant. Terdapat resapan biopori juga sebagai respon dari air hujan pada tapak serta penambahan water feature untuk membantu mengalirkan air hujan di area amphitheater.

PIPA DISTRIBUSI TANKI PENYIMPANAN TITIK RESAPAN BIOPORI SALURAN PEMBUANGAN AIR HUJAN GROUND TANK UTAMA WATER FEATURE PIPA PENYALUR PDAM PDAM Sumberairberasaldari PDAM tandon utama kecamatanBuringyang kemudian disalurkan menuju ground tank utama sebelum didistribusikanketanki penyimpanan di tiap bangunan. PIPA PEMBUANGAN AIR HUJAN DARI BANGUNAN MENUJU TANKI PENYIMPANAN
Creative Space
Penyandang Disabilitas
TANKI PENYIMPANAN AIR HUJAN
Perancangan
: Upaya Pemberdayaan
82

AIR KOTOR

ELEKTRIKAL

Sumber listrik berasal dari PLN yang kemudian disimpan di bangunan genset sebelum didistribusikan ke tiap bangunan. Terdapat sumber listrik cadangan yang berasal dari solar photovoltaic roof yang berada di amphitheater dan juga pada area halteuntukmembantuparaojekmengecharge handphone.

Pada utilitas kotoran, dari septictank akan dialirkan terlebih dulu menuju sumur resapan sebelum dibuang ke saluran pembuangan yang nantinya dialirkan menuju anak kali amprong yang berada di timur tapak. Sedangkan untuk air yang masuk ke resapan nantinya akan digunakanuntukmenyirami tanaman sekitar.

Creative Space : Upaya
Disabilitas 83
Perancangan
Pemberdayaan Penyandang
RESAPAN SALURAN PEMBUANGAN MENUJU ANAKKALIAMPRONG SEPTICTANK KABEL PENYALUR PLN SALURAN LISTRIK PLN GARDU LISTRIK AIR KOTOR CLOSET
AIR KOTOR NON CLOSET
PANEL SURYA AMPHITEATER PANEL SURYA HALTE/SHELTER

WASTING

Terdapat titik tempat sampah untuk menampung sampah di area umum. Sistem wasting ini nantinya sampah akan ditampung untuk dipilih kembali antara organic untuk diolah kembalimaupunsampahanorganikyangakandibuangkeTPA Buring.

FIRE PROTECTION

HYDRANT PILLAR

Disetiap bangunan disediakan APAR, yakni alat pemadam portable yang berupa tabung untuk mencegah penyebaran api semakin luas. Selain itu terdapat juga HYDRANT PILLAR di beberapa sudut tapak yang berfungsi mengalirkanair ketikaterjadi kebakaran.

Perancangan Creative Space : Upaya Pemberdayaan Penyandang Disabilitas

84
PARKIR TRUK SAMPAH TITIK TEMPAT SAMPAH UMUM PENAMPUNGAN SAMPAH PENGELOLAAN SAMPAH JALUR EVAKUASI TITIK KUMPUL TITIK PENYIMPANAN AIR

KEAMANAN

System keamanan menggunakan CCTV yang dipasang di beeberapa sudut tapak dan disediakan juga di tiap bangunan yang berguna untuk mengawasi setiap kegiatan yang dilakukan di area tapak serta mencegah hal hal yang tidak diinginkan. Di tapak juga terdapat security yang selalu berjaga dan berkeliling mengawasi keamananpadatapak.

85
Perancangan Creative Space : Upaya Pemberdayaan Penyandang Disabilitas TITIK CCTV

VI HASIL RANCANGAN

HASIL RANCANGAN

DASAR PERANCANGAN

Pada sub bab ini berisi mengenai pengembangan dari konsep perancangan yang telah dibuat sebelumnya dengan mempertimbangkan beberapa aspek sehingga terdapat perubahan pada hasil rancangan creative space ini.

KONSEP DASAR

Dasar dari konsep perancangan Creative Space ini merupakan suatu wadah yang mampu menampung para penyandang tuna daksa akan kebutuhan sarana & prasarana, tempat untuk berkreasi & berinovasi serta sebuah tempat untuk membantu meningkatkan perekenomian sehingga bisa untuk meningkatkan kesejahteraan hidup. Maka dari itu muncul sebuah gagasan ide konsep “Care (Peduli)” pada rancangan yang diharapkan mampu meningkatkan kepedulian satu sama lain untuk memperbaiki kualitas hidup.

Pada konsep dasar dari perancangan ini lebih diringkas dalam penyajiannya dari konsep sebelumnya dengan tetap mempertimbangkan prinsip prinsip pendekatan arsitektur perilaku dengan nilai nilai keislaman hingga mencapai strategi desain.

Nilai keislaman Implementasi

Q.S Sad : 27

Nilai tepat guna rancangan dengan tujuan.

Q.S. An Nahl : 90

Nilai Silaturahmi & berbuat baik terhadap sesama

Q.S Al Insyiqaq : 84

Nilai Bekerja keras & Giat

Memperhatikan ruang gerak, akses dan material sesuai dengan kebutuhan penyandang tuna daksa

Penataan tata masa bangunan dengan dihadirkan space terbuka sebagai ruang berinteraksi

Tatanan ruang dan suasana ruang mampu menghidupkan semangat bekerja.

Mewadahi aktivitas pengguna dengan aman dan nyaman Kemudahan, kenyamanan & keamananan akses & sirkulasi

Menyetting ruang guna menghindari ruang sudut mati

Penataan massa bangunan guna kemudahan akses & mobilitas

Desain rancangan mampu dipahami oleh pengguna dan lingkungannya

Pembagian tata masa bangunan sesuai zonasi

Sarana penunjang kenyamanan & keamanan outdoor space

Penyesuaian fasad dengan iklim tropis tapak

Penerapan material ramah pengguna & lingkungan

Memperhatikan Kondisi & Perilaku Pengguna

Kenyamanan & Keamanan material yang digunakan Penataan Ramp di ketinggian level lantai

Sarana penyediaan parkir khusus penyandang kursi roda

Perancangan Creative Space : Upaya Pemberdayaan Penyandang Disabilitas

86

HASIL RANCANGAN TAPAK

Jl. Mayjen Sungkono, Ds/ Kel. Buring, Kec. Kedungkandang

Konsep Awal

Tata masa bangunan dan kawasan masih terlihat berantakan penataannya dan kurang sesuai dengan pola grid yang telah dibuat. Pemberian ruang hijau yang banyak sebagai area resapan serta banyaknya area outdoor space sebagai ruang terbuka yang merupakan implementasi dari konsep dasar “Care” terhadap lingkungan.

Hasil Akhir

Pada konsep hasil akhir rancangan, terjadi perubahan & perletakkan tata massa serta zoning tapak yang disesuaikan kembali denganpertimbangandankesesuaiandenganprinsiparsitekturperilaku serta pola grid yang telah dibuat. Perubahan yang terjadi berupa penataan entrance kendaraan, pengolahan kembali ruang hijau yang terlalubanyakdankosongmenjadi areaparkirpengelola&utilitas,serta penempatan parkir ojek & titik jemput angkutan umum untuk memenuhi prinsip mewadahi aktivitas aman dan nyaman, memperhatikan kondisi perilaku & pengguna serta mampu dipahami oleh pengguna & lingkungannya.

KONSEP SEBELUM

& Tata Masa

Pembagian Zonasi

Publik Semipublik Privat

Perubahan tatanan massa bangunan Workshop & Shop, Pengelola dan Mushola, disesuaikan dengan kemudahan aksesibilitas pengguna, kenyamanan dan tingkat privasi dari pengguna sehingga tatanan ini dinilai lebih efektif dibandingkan dengan sebelumnya. Terdapat penambahan juga untuk bangunan pelatihan pada tapak yang posisinya berada di samping area pengelola dengan tujuan kemudahan maintenance serta privasi dari jangkauan publik.

Perancangan Creative Space : Upaya Pemberdayaan Penyandang Disabilitas

87
HASIL AKHIR Zoning

HASIL RANCANGAN TAPAK

Sirkulasi & Aksesibilitas

Terdapat perubahan pada area entrance kendaraan pengunjung, entrance kendaraan pengelola dan utilitas, penambahan area parkir pengelola serta perubahan posisi parkir ojek dan halte untuk menunggu angkutan umum. Perubahan juga terjadi pada pola sirkulasi pengunjung yang terbagi menjadi 2 kategori, yakni pengunjung dengan kendaraan pribadi dan pengunjung dengan kendaraan umum.

KONSEP SEBELUM

Hasil Akhir

Mewadahi aktivitas nyaman & aman

Areaentrancekendaraanpengunjungdibuatsalingberdekatannamun memiliki jalur masuk yang berbeda. Hal ini bertujuan agar pengunjung dapat lebih mudah dan nyaman ketika akan mengakses area parkir. Selain itu, membuat parkir khusus bagi pengelola bisa memberikan nilai kenyamanan dan privasi bagi parastaffpengeloladan jugapengunjung.

Memperhatikan Kondisi perilaku & Pengguna

Membuat jalur masuk khusus bagi pengguna dengan kendaraan umum agar saat berjalan memasuki tapak, pengunjung bisa merasa lebih nyamandanaman tanpaterganggudenganaktivitas kendaraan pribadi.

Dapat dipahami oleh lingkungan & Pengguna

Penempatanhaltedekatdenganjalanutamamemudahkanbagi pengguna saat inginmenggunakan angkutanumum.

88
Perancangan Creative Space : Upaya Pemberdayaan Penyandang Disabilitas Sirkulasi kendaraan mobil pengunjung Sirkulasi kendaraan ojek

HASIL RANCANGAN TAPAK

Landscape

Pada landscape mengalami penambahan bangunan informasi & tiket, serta penyediaan layanan penyewaan kursi roda elektrik untuk membantu para penyandang tuna daksa saat akan berjalan mengelilingi area tapak. Terdapat penambahan area terapi alam di area dekat dengan pergola. Terapi alam ini menerapkan metode batu kerikil serta terapi dari ikan untuk melancarkan sirkulasi darah yang dapat membantu para penyandang tuna daksa.

Pada area sirkulasi dibedakan menjadi jalur khusus penyandang tuna daksa dengan pengguna umum. Pada jalur khusus penyandang tuna daksa dilengkapi dengan handrailing dan marka jalan utnuk membantu mempermudah dan meningkatkan keamanan serta kenyamanan bagi para penyandang tuna daksa.

Tempat duduk untuk terapi ikan

Terapi kerikil

Bangunan informasi & tiket

Parkir sewa kursi roda elektrik

89
Perancangan Creative Space : Upaya Pemberdayaan Penyandang Disabilitas Jalur khusus penyandang tuna daksa Red paving blok Marka Jalan Hand railing

HASIL RANCANGAN BENTUK & FASAD

Konsep Makro

Penyesuaian bentuk atap yang sesuai dengan iklim setempat serta penerapan material yang ramah penyandang tuna daksa dan ramah lingkungan.

1. Workshop & Shop

Hasil Akhir

Penggunaan atap lengkung bergelombang untuk menyesuaikan dengan iklim tropis setempat. Penggunaan atap ini pun dinilai memiliki nilai visibilitas tinggi dan dinilai mampu meningkatkan rangsangan sensorik bagi para penyandang tuna daksa. Penerapan material Baja sebagai kolom penopang atap, dinilai lebih ramah terhadap lingkungan. Permainan bata ekspos dan kayu pada fasad dinilai mampu meningkatkan stimulasi motorik dan sensorik para penyandang tuna daksa yang sesuai dengan prinsip desain mampu dipahami oleh lingkungan dan penggunanya serta memeperhatikan kondisi dan perilaku pengguna..

Konsep Awal

Penggunaan atap datar hanya sebagai penyambung 2 massa bangunan yang berbeda fungsi dengan tujuan kemudahan mobilitas pengguna khususnya bagi penyandang tuna daksa. Pada atap ini hanya meneapkan perbedaan ketinggian sebagai pembeda antara area workshop dengan shop.

90
Perancangan Creative Space : Upaya Pemberdayaan Penyandang Disabilitas

HASIL RANCANGAN BENTUK & FASAD

2. Bangunan Pengelola

Hasil Akhir

Penerapan atap pelana modifikasi dengan atap miring untuk menyesuaikan dengan keadaan iklim tropis setempat dinilai lebih efektif dibandingkan dengan atap datar. Penggunaan atap ini pun terbilang lebih efektif untuk membuat suhu dalam ruangan lebih stabil dan membuat ruangan lebih terasa nyaman dan aman, sehingga pengguna lebih merasa nyaman saat melakukan aktivitas didalam ruangan. Selain itu penerapan atap ini juga menyesuaikan dengan atap bangunan lainnya pada tapak agar terlihat kesatuannya.

Konsep Awal

Pada konsep awal, bangunan peneglola menerapkan atap green roof datar dengan tujuan agar kestabilan suhu bangunan terjaga dikarenakan atap green roof mampu mengurangi suhu panas berlebih sehingga para pengelola merasa nyaman saat berada didalamnya.

91
Perancangan Creative Space : Upaya Pemberdayaan Penyandang Disabilitas

HASIL RANCANGAN BENTUK & FASAD

3. Bangunan Amphitheater

Hasil Akhir

Perubahan pada bentuk atap yang lebih lebar dari sebelumnya memiliki tujuan untuk menghindari tampias air hujanmasuk ke area tribun pengunjung. Selain itu juga penggunaan atap membrane dinilai lebih efektif sebagai peredam bunyi karena dapat memantulkan suara dan juga lebih ramah lingkungan sehingga penerapan atap ini dinilai lebih peduli terhadap lingkungan dan juga penggunanya sesuai dengan konsep dasar “Care”.

Konsep Awal

Penerapan atap alumunium sheets dengan penambahan solar photovoltaic sebagai penambahan energy alternative pada bangunan amphitheater.

92
Perancangan Creative Space : Upaya Pemberdayaan Penyandang Disabilitas

HASIL RANCANGAN BENTUK & FASAD 4. Bangunan Masjid

Konsep Awal

Kemiringan atap ini bertujuan untuk menyesuaikan kondisi iklim tropis setempat agar suhu ruang didalamnya lebih stabil sehingga pengguna dapat merasa nyaman saat beraktivitas.

93
Perancangan Creative Space : Upaya Pemberdayaan Penyandang Disabilitas Hasil Akhir

HASIL RANCANGAN BENTUK & FASAD

5. Bangunan Pelatihan

Hasil Akhir

Bangunan pelatihan ini merupakan bangunan tambahan yang berfungsi sebagai tempat berlatih musik, seni drama dan tari untuk para pengisi acara ketika terdapat acara/ event. Pada bangunan ini menerapkan atap pelana utnuk menyesuaikan dengan keadaan iklimtropissetempat. Penggunaanatap terbilanglebihefektifuntuk membuat suhu dalam ruangan lebih stabil dan membuat ruangan lebih terasa nyaman dan aman, sehingga pengguna lebih merasa nyaman saat melakukan aktivitas didalam ruangan. Selain itu, pada fasad menerapkan permainan kayu dan juga bata ekspos agar senada dengan bangunan lainnya pada tapak.

94
Perancangan Creative Space : Upaya Pemberdayaan Penyandang Disabilitas
Sun shadding device Gewel atap dengan permainan aksen kayu

HASIL RANCANGAN RUANG

Konsep Makro

Menyetting ruang untuk menghindari sudut ruang mati. Pada ruang juga diterapkan penataan dan ketinggian ramp pada tiap ruang yang memiliki ketinggian level berbeda untuk memudahkan para penyandang tuna daksa mengakses ruangan. Penerapan material yang ramah penyandang tuna daksa sertapenambahanhandrailingpadajalursirkulasimembantuparapenyandang tunadaksalebihmerasa nyaman danaman yangmerupakanpenerapanprinsip desain memperhatikan kondisi perilaku dan pengguna serta mewadahi aktivitas dengan aman dan nyaman.

Konsep Awal

1. Ruang Workshop & Shop

HASIL AKHIR

Tidak banyak perubahan yang terjadi pada area workshop & shop ini. Hanya mengalami perubahan perletakkan ruang workshop dan shop yang dibalik penataannya serta penambahan toilet yang berada di belakang ruang workshop guna kemudahan akses bagi para penyandang tuna daksa untuk melakukan aktivitas buang air.

Pada ruang workshop & shop ini memanfaatkan memaksimalkan pencahayaan dan penghawaan alami sehingga pengguna lebih terasa nyaman saat berada di dalam ruang dan lebih ramah terhadap lingkungan. Pada ruang juga menerapkan warna warna cerah dan permainan tektur kayu sebagai upaya untuk membantu para penyandang tuna daksa untuk merangsang system sensoriknya.

95
Perancangan Creative Space : Upaya Pemberdayaan Penyandang Disabilitas

2. Amphitheater

HASIL AKHIR

Pada area amphitheater ini terjadi perubahan pada area sirkulasi. Terdapat penambahan tangga dan ramp guna kemudahan penyandang tuna daksa untuk mengakses area tribun serta penambahan area untuk pengguna kursi roda pada tribun kedua. Pada setiap tribun dilengkapi pengaman hand railing untuk menjaga keamanan dan kenyamanan pengguna. Penambahan tanda parkir bagi penyandang kursi roda menambah kenyamanan tiap pengguna.

Pada area amphitheater ini masih sama dengan konsep ruang

Konsep Awal

96
Perancangan Creative Space : Upaya Pemberdayaan Penyandang Disabilitas HASIL RANCANGAN RUANG

3. Mushola

Pada ruang mushola, terjadi perubahan tatanan tempat wudhu. Perubahan tatanan ini bertujuan guna kemudahan akses dan juga kenyamanan sirkulasi sehingga para penyandang tuna daksa merasa nyaman ketika melakukan ativitas didalamnya. Pemberian

97
Perancangan Creative Space : Upaya Pemberdayaan Penyandang Disabilitas HASIL RANCANGAN RUANG HASIL AKHIR Konsep Awal Area wudhu

4. Pengelola

Pada ruangan bagunan pengelola ini tidak mengalami perubahan pada konsep awal. Pada bangunan pengelola ini menerapkan system pencahayaan dan penghawaan alami guna kenyamanan pengguna didalam ruangan.

Konsep Awal

98
Perancangan Creative Space : Upaya Pemberdayaan Penyandang Disabilitas HASIL RANCANGAN RUANG HASIL AKHIR

Pada ruangan ini menerapkan material vinil dan juga concrete sebagai penutup lantai dengan tujuan kenyamanan dan keamanan pengguna khususnya penyandang tuna daksa. Disediakan juga area latihan outdoor serta ruang duduk/ santai semi outdoor agar para pengguna merasa lebih nyaman ketika penat berada di dalam ruangan.

Area Latihan

Area duduk semi outdoor

99
Perancangan Creative Space : Upaya Pemberdayaan Penyandang Disabilitas HASIL RANCANGAN RUANG 5. Bangunan Pelatihan HASIL AKHIR

HASIL RANCANGAN STRUKTUR

1. BANGUNAN WORKSHOP & SHOP

HASIL RANCANGAN

Pada bangunan workshop ini mengalami perubahan struktur pada bagian atap. Strutur yang digunakan yakni space truss dengan penutup atap alumunium sheets. Penopang atap yang digunakan yakni kolom baja silinder yang dinilai lebih ramah terhadap lingkungan.

Konsep Awal

Pada bangunan workshop dan shop sebelumnya menerapkan rangka atap baja ringan dengan penutup atap alumunium sheets.

RANGKA SPACE TRUSS

Perancangan Creative Space : Upaya Pemberdayaan Penyandang Disabilitas

100
ALUMUNIUM
SHEETS

HASIL RANCANGAN STRUKTUR

2. BANGUNAN PENGELOLA

HASIL RANCANGAN

Pada bangunan workshop ini mengalami perubahan struktur pada bagian atap. Strutur yang digunakan yakni menggunakan struktur space truss dengan material baja ringan dan penutup atap bitumen. Terjadi perubahan juga pada struktur bawah yakni menggunakan pondasi setempat karena dinilai memiliki ketahanan yang lebih kuat.

Konsep Awal

Pada bangunan pengelola sebelumnya menerapkan atap green roof datar.

Perancangan Creative Space : Upaya Pemberdayaan Penyandang Disabilitas

101

3. MUSHOLA

HASIL RANCANGAN

Pada bangunan Mushola ini mengalami perubahan struktur atap menjadi struktur space truss dengan material baja ringan. Penutup atap yang digunakan yakni atap bitumen. Perubahan lainnya yakni terjadi pada struktur bawah menggunakan pondasi setempat.

Konsep Awal

Pada bangunan mushola sebelumnya menerapkan material penutup atap alumunium sheets dan struktur bawah yang digunakan yakni pondasi menerus.

102
Perancangan Creative Space : Upaya Pemberdayaan Penyandang Disabilitas HASIL RANCANGAN STRUKTUR

HASIL RANCANGAN STRUKTUR

4. AMPHITHEATER

HASIL RANCANGAN

Pada bangunan Amphitheater ini tidak mengalami perubahan struktur, melainkan hanya terjadi perubahan dibagianpenutup atap yang digunakan yakni menerapkan atap membrane yang dinilai lebih efisien.

Konsep Awal

Pada bangunan amphitheater ini menerapkan material penutup atap alumunium sheets.

Perancangan Creative Space : Upaya Pemberdayaan Penyandang Disabilitas

103

HASIL RANCANGAN STRUKTUR

5. BANGUNAN PELATIHAN HASIL RANCANGAN

Pada bangunan pelatihan ini menerapkan pondasi setempat sebagai struktur bawah, rigid frame ssebagai struktur tengah dan struktur space truss dengan material baja ringan sebagai struktur atap dan penutup atap bitumen.

104
Perancangan Creative Space : Upaya Pemberdayaan Penyandang Disabilitas

HASIL RANCANGAN UTILITAS

AIR BERSIH

Terdapat perubahan perletakan ground tank untuk menyimpan sumber air yang berasal dari PDAM tandon utama kecamatan Buring. Perubahan juga terjadi pada system penyaluran air bersih akibat perubahan tatamasa bangunan.

AIR HUJAN

Pembuangan air hujan nantinya ada yang langsung dibuang ke anak kali amprong melalui saluran pembuangan dan ada yang ditampung untuk digunakan sebagai sumber air hydrant. Terdapat resapan biopori juga sebagai respon dari air hujan pada tapak serta penambahan water feature untuk membantu mengalirkan air hujan di area amphitheater.

105
Perancangan Creative Space : Upaya Pemberdayaan Penyandang Disabilitas
GROUND TANK
PIPA PENYALUR PDAM PDAM
PIPA DISTRIBUSI
UTAMA
WATER
TITIK RESAPAN BIOPORI
SALURAN PEMBUANGAN AIR HUJAN
FEATURE
TANKI PENYIMPANAN

AIR KOTOR

ELEKTRIKAL

Sumber listrik berasal dari PLN yang kemudian disimpan di bangunan genset sebelum didistribusikan ke tiap bangunan. Terdapat sumber listrik cadangan yang berasal dari solar photovoltaic roof yang berada di area halte untuk membantu para ojekmengecharge handphone.

Untuk utilitas air kotor, terjadi perubahan perletakan septictank dan resapan. Kotoran dari tapak akan dibuang dan dialirkanmenuju anak kali amprong yang berada di timur tapak setelah melewati proses pengolahan limbah. Sedangkan untuk air yang masuk ke resapan nantinyaakandigunakanuntukmenyirami tanaman sekitar.

106
Perancangan Creative Space : Upaya Pemberdayaan Penyandang Disabilitas KABEL DISTRIBUSI LISTRIK GARDU LISTRIK SALURAN LISTRIK PLN PANEL SURYA AMPHITEATER SEPTICTANK RESAPAN SALURAN PEMBUANGAN MENUJU ANAKKALIAMPRONG AIR KOTOR CLOSET AIR KOTOR NON CLOSET

WASTING

FIRE PROTECTION

Terdapat perubahan penempatan titik tempat sampah untuk menampung sampah di area umum. Sistem wasting ini nantinyasampahakanditampunguntukdipilihkembaliantara organic untukdiolahkembalimaupunsampahanorganikyang akan dibuangkeTPABuring.

Perubahan titik APAR, yakni alat pemadam portable yang berupa tabung untuk mencegah penyebaran api semakin luas. Selain itu terdapat juga HYDRANT PILLAR di beberapasuduttapakyangberfungsimengalirkanair ketikaterjadi kebakaran.

Perancangan Creative Space : Upaya Pemberdayaan Penyandang Disabilitas

107
TITIK PENYIMPANAN AIR HYDRANT PILLAR TITIK KUMPUL JALUR EVAKUASI TITIK TEMPAT SAMPAH UMUM PENAMPUNGAN SAMPAH PENGELOLAAN SAMPAH PARKIR TRUK SAMPAH

KEAMANAN

System keamanan menggunakan CCTV juga mengalami perubahan penempatan akibat dari perubahan layout dan tata massa bangunan yang berguna untuk mengawasi setiap kegiatan yang dilakukan di area tapak serta mencegah hal hal yang tidak diinginkan.

Di tapak juga terdapat security yang selalu berjaga dan berkeliling mengawasi keamananpada tapak.

108
Perancangan Creative Space : Upaya Pemberdayaan Penyandang Disabilitas TITIK CCTV POS KEAMANAN

HASIL RANCANGAN

Perancangan Creative Space ini merupakan perancangan sebuah space yang mampu mewadahi aktivitas, inovasi dan kreasi dari para penyandang tuna daksa untuk meningkatkan kualitas hidup agar lebih baik lagi. Dengan menerapkan konsep dasar disetiap aspek perancangan serta memasukkan prinsip prinsip pendekatan, diharapkan mampu menghasilkan sebuah rancangan tepat guna sesuai akan kebutuhan para penyandang tuna daksa.

Pada bab ini, akan menunjukkan gambar rancangan secara arsitektural dengan penjelasan singkat. Berikut gambar yang disajikan.

SITEPLAN

Penataan tata massa di tapak terbagi menjadi zona public, semi public dan privat yang telah dipertimbangkan tingkat privasi, kemudahan aksesibilitas, kenyamanan serta upaya untuk menghindari dari crowding yang terjadi.

109
Perancangan Creative Space : Upaya Pemberdayaan Penyandang Disabilitas Lokasi : JL. Mayjen Sungkono, Ds./Kel. Buring, Kec. Kedungkandang, Kota Malang

LAYOUT PLAN

Terdapat 5massa bangunanyang penataannya telah disesuaikan dengan polagrid yangtelah dibuat sebelumnya guna memaksimalkan lahan agar tidak terdapat ruang kosong terbengkalai.

Penerapan entrance dengan system one gate way dinilai lebih maksimal akan keamanan dan kenyamanannya.

Penggunaan system ini pun dimaksudkan agar para pengunjung dapat dengan mudah mengenali area entrance.

110
Perancangan Creative Space : Upaya Pemberdayaan Penyandang Disabilitas Lokasi : JL. Mayjen Sungkono, Ds./Kel. Buring, Kec. Kedungkandang, Kota Malang.

TAMPAK KAWASAN UTARA

Pada utara menerapkan pagar massif sebagai pembatas area creative space. Hal ini bertujuan agar pengguna di dalam tapak dapat beraktivitas dengan nyaman dan aman dari gangguan yang berasal dari utara tapak. Hal ini merupakan implementasi dari prinsip mewadahi aktivitas dengan aman dan nyaman.

111
Perancangan Creative Space : Upaya Pemberdayaan Penyandang Disabilitas

TAMPAK KAWASAN SELATAN

Pada selatan tapak juga menerapkan pagar massif sebagai pembatas dengan tujuan agar pengguna di dalam tapak dapat beraktivitas dengan nyaman dan aman serta tidakmengganggu aktivitas disisi selatan tapak yang berdekatan dengan area perumahan warga. Hal ini merupakan implementasi dari prinsip mewadahi aktivitas dengan aman dan nyaman.

112
Perancangan Creative Space : Upaya Pemberdayaan Penyandang Disabilitas

TAMPAK KAWASAN TIMUR

Pada sisi timur, terlihat signage entrance berwarna putih yang cukup besar sebagai penanda area keluar masuk pengunjung. Entrance pengunjung menuju area creative space ini menerapkan one gate system agar para pengunjung merasa nyaman saat bersirkulasi dan meinimalisir crowding yang merupakan implementasi dari prinsip mewadahi aktivitas dengan aman dan nyaman.

113
Perancangan Creative Space : Upaya Pemberdayaan Penyandang Disabilitas

TAMPAK KAWASAN BARAT

Pada bagian barat tapak merupakan area penempatan utilitas dan resapan. Hal ini dikarenakan pada area tersebut merupakan area yang jarang terjamah oleh pengunjung sehingga pengunjung tidak merasa terganggu akan aktivitas pengelola di tapak yang merupakan implementasi dari prinsip mewadahi aktivitas dengan aman dan nyaman

114
Perancangan Creative Space : Upaya Pemberdayaan Penyandang Disabilitas

POTONGAN A-A’ KAWASAN

Berikut ini visualisasi dari potongan kawasan. Terlihat potongan dari bangunan pengelola, bangunan shop dan juga amphitheater yang memiliki perbedaan level ketinggian

115
Perancangan Creative Space : Upaya Pemberdayaan Penyandang Disabilitas

POTONGAN B-B’ KAWASAN

Berikut ini visualisasi dari potongan kawasan. Terlihat potongan bangunan Amphitheater yang menerapkan system rangka space struss. Pada area tersebut juga memiliki ketinggian level berbeda di tiap tingkatan tribun. .

116
Perancangan Creative Space : Upaya Pemberdayaan Penyandang Disabilitas

DENAH

WORKSHOP & SHOP

Pada ruang workshop ini menerapkan prinsip “Memperhatikan Kondisi Perilaku dan Pengguna” serta “ Mewadahi akyivitas dengan aman dan nyaman.”

Yang ditunjukkan dari penggunaan . material parket pada lantai ruangan, keramik bertekstur dan beton untuk memudahkan dan membuat rasa aman saat para penyandang tuna daksa bersirkulasi dan bergerak.

Penyesuaian tinggi furniture, menyediakan tempat beristirahat serta penyediaan kamar mandi khusus penyandang tuna daksa cukup membantu para penyandang tuna daksa saat beraktivitas.

Perancangan Creative Space : Upaya Pemberdayaan Penyandang Disabilitas

117

DENAH

PENGELOLA

Pemaksimalan penghawaan dan pencahayaan alami, serta pemisahan toilet antara wanita dan laki-laki merupakan upaya dari penerapan prinsip “Mampu Mewadahi Aktivitas dengan Nyaman dan Aman”.

Perancangan Creative Space : Upaya Pemberdayaan Penyandang Disabilitas

118

DENAH

MUSHOLA

Ruangan Mushola ini menerapkan prinsip “Memperhatikan Kondisi Perilaku dan Pengguna” dan prinsip “Mampu Mewadahi Aktivitas dengan Nyaman dan Aman”.

Penerapan prinsip tersebut ditunjukkan dari area wudhu yang didesain khusus untuk memudahkan penyandang tuna daksa saat berwudhu, pemaksimalan penghawaan dan pencahayaan serta pemberian satir pembatas antara jamaah perempuan dan laki-laki.

119
Perancangan Creative Space : Upaya Pemberdayaan Penyandang Disabilitas

DENAH

AMPHITEATER

Amphiteater ini menerapkan prinsip “Memperhatikan Kondisi Perilaku dan Pengguna” dan prinsip“Mampu Mewadahi Aktivitas dengan Nyaman dan Aman”.

Penerapan prinsip tersebut ditunjukkan penggunaan ramp setinggi 7 derajat dengan handrailing yang cukup membantu penyandang tuna daksa untuk menaiki tribun atas. Prioritas pada tribun 1 dan2jugaditunjukkanbagi penyandangtuna daksa serta lansia.

Perancangan Creative Space : Upaya Pemberdayaan Penyandang Disabilitas

120

DENAH

Bangunan Pelatihan

Bangunan Pelatihan ini menerapkan prinsip “Memperhatikan Kondisi Perilaku dan Pengguna” dan prinsip “Mampu Mewadahi Aktivitas dengan Nyaman dan Aman”.

Dengan penerapan material concrete dan vynil pada lantai dinilai mampu memberikan kenyamanan dan keamanan bagi penyandang tuna daksa.

Disediakan juga area latihan outdoor serta ruang duduk/ santai semi outdoor agar para pengguna merasa lebih nyaman ketika penat berada di dalam ruangan.

Perancangan Creative Space : Upaya Pemberdayaan Penyandang Disabilitas

121

TAMPAK

BANGUNAN WORKSHOP & SHOP

BangunanWorkshopdanshopinidibuatsalingberdekatanyangdikoneksikandenganpenggabunganatapdanjugajalursirkulasi. Bentukbangunaninididasarkan pada polagrid serta kebutuhanruang. Penerapan prinsip Memperhatikan Kondisi Perilaku dan Pengguna serta Mampu Mewadahi Aktivitas dengan Nyaman dan Aman diwujudkandengankemudahanakses danmobilitasantar bangunan. Hal tersebutsangatmembantu parapenyandangtuna daksa saatmencapaitujuannya.

Perancangan Creative Space : Upaya Pemberdayaan Penyandang Disabilitas

122

TAMPAK

BANGUNAN PENGELOLA

Pada bangunan pengelola digunakan atap miring untuk menyesuaikan dengan iklim setempat agar pengguna saat beraktivitas di dalamnya merasa aman dan nyaman. Yang merupakan implementasi dari prinsip “Mampu Mewadahi Aktivitas dengan Nyaman dan Aman”

Perancangan Creative Space : Upaya Pemberdayaan Penyandang Disabilitas

123
TAMPAK DEPAN TAMPAK BELAKANG TAMPAK KIRI TAMPAK KANAN

. TAMPAK

BANGUNAN MUSHOLA

Implementasi prinsip Mampu Mewadahi Aktivitas dengan Nyaman dan Aman serta Desain mampu dipahami pengguna dan lingkungan, ditunjukkan dari penggunaanatapmiringyangdisesuaikandenganiklim setempat.Adapun,memaksimalkanpencahayaandanpenghawaanalami,sertamembuatbanyakaksesmasukyang bisa diakses dari sisi depan, samping kanan dan kiri.

124
Perancangan Creative Space : Upaya Pemberdayaan Penyandang Disabilitas

. TAMPAK

BANGUNAN AMPHITEATER

Implementasi prinsip Mampu Mewadahi Aktivitas dengan Nyaman dan Aman, serta Memperhatikan Kondisi Perilaku dan Pengguna diterapkan pada ramp dengan kemiringan 7 derajat dan menerapkan material beton demi keamanan dan kenyamanan pengguna. Sedangkan untuk area tangga menggunakan batu alam lempengan. Pada banguna ini juga menerapkan prinsip Desain mampu dipahami pengguna dan lingkungan dengan ditunjukkan dengan konsep bangunan semi terbuka sehinggasirkulasi udarabisa bergerakbebas danpenggunamerasa nyaman.

Perancangan Creative Space : Upaya Pemberdayaan Penyandang Disabilitas

125

. TAMPAK

BANGUNAN PELATIHAN

Penggunaan bentuk atap ini disesuaikan dengan iklim setempat. Penggunaan material bata ekspos serta permainan kayu dinilai memiliki nilai estetika tersendiri pada bangunantersebut. Selain itupermainansunshaddingpada tampakdepanbangunanmerupakanimplementasi dari desainyang ramah akan lingkungan danmampu membuat nyaman bagi pengguna ketikaberadadiruangduduk semi outdoor tersebutakibatpergerakansirkulasi angin yangbergerakbebas.

Perancangan

Creative Space : Upaya Pemberdayaan Penyandang Disabilitas

126

. POTONGAN

BANGUNAN WORKSHOP & SHOP

Permainan material kayu pada interior serta penggunaan warna cerah pada dinding, membantu merangsang motorik penglihatan para penyandang tuna daksa saat berada didalam ruangan. Penggunaan struktur bangunan rigid frame bermaterialkan beton bertulang, dinilai memiliki nilai ketahanan yang tinggi. Sehingga pengguna mampu merasa aman saat beraktivitas. Hal ini merupakan implementasi dari prinsip “ Mewadahi aktivitas dengan aman dan nyaman.”

Perancangan Creative Space : Upaya Pemberdayaan Penyandang Disabilitas

127

. POTONGAN

BANGUNAN PENGELOLA

Penggunaan pondasi menerus dinilai memiliki daya tahan tinggi terhadap goncangan. Penerapan atap bitumen dengan rangka baja ringan, memiliki daya beban bangunan yang cukup ringan serta memiliki kekuatan dan ketahanan yang lebih, sehingga bangunan mampu mewadahi aktivitas si pengguna dengan aman dan nyaman.

Perancangan Creative Space : Upaya Pemberdayaan Penyandang Disabilitas

128

. POTONGAN

BANGUNAN MUSHOLA

Permainan material kayu pada interior serta penggunaan dinding GRC bermotif ornament islami yang tujuannya selain untuk menciptakan suasana ruangan yang bernuansa islami dan hangat, juga membantu penghawaan alami masuk ke dalam ruangan. Sehingga saat pengguna melakukan aktivitas di dalam ruangan, akan terasa nyaman yang merupakan implementasi dari “ Mewadahi aktivitas dengan aman dan nyaman.”

Perancangan Creative Space : Upaya Pemberdayaan Penyandang Disabilitas

129

. POTONGAN

AMPHITEATER

Material Baja sebagai struktur atap lebih memiliki ketahanan kuat sehingga cukup aman bagi kenyamanan pengguna. Selain itu, penerapan struktur truss ini juga mampu memberikan nilai estetika tersendiri bagi yang melihatnya Penggunaan kolom baja ini memiliki nilai keamanan yang kuat untuk menopang strukturdiatasnya. Penambahan beton sebagai penyambung ke pondasi jugamampumemperkuatkolom untukmenopang beban diatasnya.

Perancangan Creative Space : Upaya Pemberdayaan Penyandang Disabilitas

130

. POTONGAN

BANUNGAN PELATIHAN

Penggunaan pondasi menerus dinilai memiliki daya tahan tinggi terhadap goncangan. Penerapan atap bitumen dengan rangka baja ringan, memiliki daya beban bangunan yang cukup ringan serta memiliki kekuatan dan ketahanan yang lebih, sehingga bangunan mampu mewadahi aktivitas si pengguna dengan aman dan nyaman.

Perancangan Creative Space : Upaya Pemberdayaan Penyandang Disabilitas

131

VII PENUTUP

PENUTUP

KESIMPULAN

Kurangnya sarana dan prasarana serta kurangnya perhatian dari pemerintah untuk menyejahterakan para penyandang tuna daksa, membuat banyaknya golongan dari mereka yang mengalami fenomena ketimpangan sosial. Sehingga banyak dari kalangan penyandang tuna daksa dikota malang ini yang beralih menjadi pengemis, gelandangan dan juga pengamen diakibatkan oleh kurangnya wadah bagi mereka berkreasi dan juga berinovasi. Hal tersebut juga mereka lakukan sebagai upayauntukmemenuhikebutuhanhidupmereka.

Creative Space merupakan sebuah tempat untuk berkreasi dan berinovasi yang menjadi objek dari perancangan ini. Tidak hanya memberikan ruang pelatihan saja, namun juga sebagai wadah bagi para penyandang tuna daksa merasa akan kebutuhan saranadanprasaranamerekaterpenuhidenganbaik.

Pendekatan Arsitektur perilaku digunakan yang mana nantinya perancangan ini lebih fokus terhadap kebutuhan si penggunanya yakni penyandang tuna daksa untuk menciptakan suatu desain yang mampu dipahami oleh penyandang tuna daksa, membuat si pengguna merasa lebih aman dan juga nyaman, serta desain mampu menyembuhkan beberapa kalangan dari para penyandang tuna daksa tersebut.

Pada tahap awal perancangan dilakukan analisa terhadap pengguna agar desain rancangan sesuai akan kebutuhan dari si pengguna. Pada tahap analisainididapatkanfungsiruangsertajumlahruang yangdibutuhkanyangnantinyapembagianfungsidan ruangtersebutakanditerapkanpadatapak.Kemudian dilakukan analisa tapak, dengan menerapkan beberapa prinsip dari pendekatan Arsitektur Perilaku, sehingga rancangan tapak yang didapatkan sesuai akan kenyamanan dan juga keamanan akses serta sirkulasidariparapenyandangtunadaksa.Selanjutnya dilakukan analisa bentuk dan struktur dengan menyesuaikandengankondisiditapak.

Dari analisa tersebut, didapatkan sebuah konsep utama perancangan yakni “Care”. Konsep ini ditunjukkan pada desain yang peduli akan kebutuhan penyandang tunadaksa.Pada konsepini menerapkan aspek aspek arsitektur perilaku, sehingga pada rancangan mampu menciptakan desain yang ramah akan penyandang tuna daksa, ramah terhadap lingkungan,sertadesainmampumenyembuhkanpara penyandang tuna daksa dari sisi sensorik dan juga motorik.

Dalam penulisan laporan Tugas Akhir ini masih terdapat banyak kekurangan dan masih perlu untuk dilakukan penelitian lebih lanjut sehingga mampuuntukdilakukanrisetpadatahapberikutnya.

SARAN

Laporan yang penulis buat ini hanya setas perencanaan perancangan dari segi arsitektur, sehingga masih perlu kajian terhadap analisa analisa perancangan, skematik alur perancangan, serta kajian dari aspek lainnya dengan tujuan diajukan kepada pemerintah kota malang sebagai upaya penyejahteraan para penyandang tuna daksa. Makadari itu, penulissangatmengharapkan kritik dan saran yang membangun guna kelengkapan serta kesempurnaan pada perancanganini

Perancangan Creative Space : Upaya Pemberdayaan Penyandang Disabilitas

132 1

DAFTAR PUSTAKA

[1] Badan Pusat Statistik Provinsi Jawa Timur, “Jumlah Penduduk Provinsi Jawa Timur (Jiwa)” Dipublikasi pada 29 Oktober 2018. Tersedia: https://jatim.bps.go.id/indicator/12/375/1/jumlah penduduk provinsi jawa timur.html. [Diakses pada 15 Februari 2021]

[2] Slamet Thohari, “Pandangan Disabilitas dan Aksesibilitas Fasilitas Publik bagi Penyandang Disabilitas di Kota Malang,” Indonesian Journal of Disability Studies, Vol. 1 Issue 1, pp. 27 37, June 2014

[3] P. P. I. D. D. K. MALANG, RENCANAPEMBANGUNANJANGKAMENENGAHDAERAHKOTAMALANG 2018 2023, KOTAMalang:WALI KOTAMALANG, 2019.

[4] Sunaryo, KOTA MALANG DALAM ANGKA 2020 (Malang Municipality in Figures 2020),Kota Malang: ©BPS KOTA MALANG, 2020. Hal. 162

[5] Ernawati, R. Nirwana Sari, Representasi Kesadaran Budaya Lokal Perupa Dalam Penciptaan Karya Seni Rupa Dan Desain Di Era Kontemporer, Indonesia: Penerbit Qiara Media, 2020. Hal. 193

[6] Javanlabs, “Tafsir Quran Surah Sad Ayat 27,” Tafsir Al Quran Online. [Online]. Tersedia : https://tafsirq.com/38 sad/ayat 27 [Diakses 19 Mei 2021].

[7] Javanlabs, “Tafsir Quran Surah An Nahl Ayat 90,” Tafsir Al Quran Online. [Online]. Tersedia : https://tafsirq.com/49 an nahl/ayat 90#tafsir quraish shihab [Diakses 19 Mei 2021].

[8] Motivasee,” QS. Al Insyiqaaq (Terbelah) surah 84 ayat 6 [QS. 84:6]”, Risalah Muslim. Tersedia: https://risalahmuslim.id/quran/al-insyiqaaq/84-6/ [Diakses 19 Mei 2021]

[9] Dwi Eka, Wiwik W., dkk, “Arsitektur Perilaku Pada Desain Wadah Sosial Anak Jalanan di Bandung, Jawa Barat,” Prosiding Seminar Nasional Sains dan Teknologi Terapan, Hal 308, 2020.

[10] Admin, “WHAT IS KUMULO,” Kumulo Creative Compound, Dipublikasi: Juli 2020. [Online]. Tersedia : https://kumulo.id/what is kumulo [Diakses 03 Maret 2021]

[11] BCI Media Group Pty Ltd,” Kumulo creative Compound ‘The Breeze Bumi Serpong Damai’”, Archfy Dua Studio, Dipublikasi: Juli 2020. [Online]. Tersedia: https://www.archify.com/id/project/kumulo-creative-compound [Diakses 03 Maret 2021]

[12] HAN Shuang, ” Yulin Alley / Nhoow Architects”, Archdaily, Dipublikasi: 11 Desember 2020. [Online]. Tersedia: https://www.archdaily.com/952947/yulin alley nhoow architects [Diakses 04 Maret 2021]

[13] Meviana, I., Huda, R., & Ware, Y, “KARAKTERISTIK INTERAKSI SOSIAL ANTARA WARGA ASLI DENGAN WARGA PENDATANG DI KELURAHAN BURING KECAMATAN KEDUNGKANDANG KOTA MALANG”, JPIG (Jurnal Pendidikan dan Ilmu Geografi),Vol. 1 No.1. September 2016

[14] Shaleh, C., & Angguntiana, A. D. “Studi Evaluasi dan Pengembangan Jaringan Distribusi Air Bersih PDAM Kota Malang pada Kecamatan Kedungkandang”, Media Teknik Sipil, Vol.14 No.1, Februari 2016

[15] Jean S.P., & Alvin J.T, “Atmospheres – Parameter Desain Peter Zumthor dalam Arsitektur”, Media Matrasain, Vol. 9 No. 2, Agustus 2012

Perancangan Creative Space: Upaya Pemberdayaan Penyandang Tuna Daksa

133

 Yang bertanda tangan dibawah ini : Dengan ini menyatakan bahwa : Nama Mahasiswa : Putri Nuraini NIM : 18660049 Judul : Perancangan Creative Space sebagai Upaya Pemberdayaan Penyandang Tuna Daksa Telah melakukan revisi sesuai dengan catatan revisi sidang tugas akhir dan dinyatakan LAYAK cetak berkas/ laporan Tugas Akhir 2022. Demikian layak cetak ini disusun untuk digunakan sebagaimana mestinya. 134
Creative Space: Upaya Pemberdayaan Penyandang Tuna Daksa
Perancangan

LAMPIRAN GAMBAR ARSITEKTURAL, PERSPEKTIF & DETAIL

LAMPIRAN GAMBAR KERJA

PRODITEKNIKARSITEKTUR

FAKULTASSAINS&TEKNOLOGI UNIVERSITASISLAMNEGERIMAULANA MALIKIBRAHIMMALANG

JUDULPERANCANGAN:

PERANCANGANCREATIVE SPACESEBAGAIUPAYA PEMBERDAYAAN PENYANDANGTUNADAKSA

LOKASIPERANCANGAN: JL.MAYJENSUNGKONO,KEL. BURING,KEC.KEDUNGKANDANG, KOTAMALANG,JAWATIMUR

DIRANCANGOLEH: PUTRINURAINI 18660049

DOSENPEMBIMBING1 Ach.GatGautama,M.T 197604182008011009

DOSENPEMBIMBING2 LULUKMASLUCHA,S.T,M.Sc 198009172005012003

JUDULGAMBAR DENAHWORKSHOP SKALA 1:500

NO.GAMBAR &SHOP A B C D G F E 1 2 3 4 567 89 10 11 12 POT. 2 B POT. 2 B POT1 A POT1 A

TAMPAKDEPAN

PRODITEKNIKARSITEKTUR

FAKULTASSAINS&TEKNOLOGI UNIVERSITASISLAMNEGERIMAULANA MALIKIBRAHIMMALANG

JUDULPERANCANGAN:

PERANCANGANCREATIVE SPACESEBAGAIUPAYA PEMBERDAYAAN PENYANDANGTUNADAKSA

LOKASIPERANCANGAN: JL.MAYJENSUNGKONO,KEL. BURING,KEC.KEDUNGKANDANG, KOTAMALANG,JAWATIMUR

DIRANCANGOLEH: PUTRINURAINI 18660049

DOSENPEMBIMBING1

Ach.GatGautama,M.T 197604182008011009

DOSENPEMBIMBING2 LULUKMASLUCHA,S.T,M.Sc 198009172005012003

JUDULGAMBAR DENAHWORKSHOP SKALA 1:500

NO.GAMBAR &SHOP
TAMPAKBELAKANG

TAMPAKKIRI TAMPAKKANAN

PRODITEKNIKARSITEKTUR

FAKULTASSAINS&TEKNOLOGI UNIVERSITASISLAMNEGERIMAULANA MALIKIBRAHIMMALANG

JUDULPERANCANGAN:

PERANCANGANCREATIVE SPACESEBAGAIUPAYA PEMBERDAYAAN PENYANDANGTUNADAKSA

LOKASIPERANCANGAN: JL.MAYJENSUNGKONO,KEL. BURING,KEC.KEDUNGKANDANG, KOTAMALANG,JAWATIMUR

DIRANCANGOLEH: PUTRINURAINI 18660049

DOSENPEMBIMBING1 Ach.GatGautama,M.T 197604182008011009

DOSENPEMBIMBING2 LULUKMASLUCHA,S.T,M.Sc 198009172005012003

JUDULGAMBAR DENAHWORKSHOP SKALA 1:500

NO.GAMBAR &SHOP

PRODITEKNIKARSITEKTUR

FAKULTASSAINS&TEKNOLOGI UNIVERSITASISLAMNEGERIMAULANA MALIKIBRAHIMMALANG

JUDULPERANCANGAN:

PERANCANGANCREATIVE SPACESEBAGAIUPAYA PEMBERDAYAAN PENYANDANGTUNADAKSA

LOKASIPERANCANGAN: JL.MAYJENSUNGKONO,KEL. BURING,KEC.KEDUNGKANDANG, KOTAMALANG,JAWATIMUR

DIRANCANGOLEH: PUTRINURAINI 18660049

DOSENPEMBIMBING1 Ach.GatGautama,M.T 197604182008011009

DOSENPEMBIMBING2 LULUKMASLUCHA,S.T,M.Sc 198009172005012003

JUDULGAMBAR DENAHWORKSHOP SKALA 1:500

NO.GAMBAR &SHOP +0.10 +3.50 +4.00 +5.00 +8.50 2 3 4 5 8 9 10 11 12 ATAPALUMUNIUMSHEETS RANGKAATAPBAJARINGAN ACPWHITESHEETS KACAES GYPSUMBOARDPLAFOND GRCROOSTER POTONGANA-A' A A

PRODITEKNIKARSITEKTUR

FAKULTASSAINS&TEKNOLOGI UNIVERSITASISLAMNEGERIMAULANA MALIKIBRAHIMMALANG

JUDULPERANCANGAN:

PERANCANGANCREATIVE SPACESEBAGAIUPAYA PEMBERDAYAAN PENYANDANGTUNADAKSA

LOKASIPERANCANGAN: JL.MAYJENSUNGKONO,KEL. BURING,KEC.KEDUNGKANDANG, KOTAMALANG,JAWATIMUR

DIRANCANGOLEH: PUTRINURAINI 18660049

DOSENPEMBIMBING1 Ach.GatGautama,M.T 197604182008011009

DOSENPEMBIMBING2 LULUKMASLUCHA,S.T,M.Sc 198009172005012003

JUDULGAMBAR DENAHWORKSHOP SKALA 1:500

NO.GAMBAR &SHOP +0.10 +3.50 +4.00 +8.50 -0.05 G EC D B ACPWHITESHEETS RANGKAATAPBAJARINGAN ATAPALUMUNIUMSHEETS KACAES GYPSUMBOARDPLAFOND BAMBU POTONGANB-B' B B

PRODITEKNIKARSITEKTUR

FAKULTASSAINS&TEKNOLOGI UNIVERSITASISLAMNEGERIMAULANA MALIKIBRAHIMMALANG

JUDULPERANCANGAN:

PERANCANGANCREATIVE SPACESEBAGAIUPAYA PEMBERDAYAAN PENYANDANGTUNADAKSA

LOKASIPERANCANGAN: JL.MAYJENSUNGKONO,KEL. BURING,KEC.KEDUNGKANDANG, KOTAMALANG,JAWATIMUR

DIRANCANGOLEH: PUTRINURAINI 18660049

DOSENPEMBIMBING1

Ach.GatGautama,M.T 197604182008011009

DOSENPEMBIMBING2 LULUKMASLUCHA,S.T,M.Sc 198009172005012003

JUDULGAMBAR DENAHBANGUNAN SKALA 1:250

NO.GAMBAR PENGELOLA 123 4567 89 A C D E B POT1 A POT1 A POT. 2 B POT. 2 B

PRODITEKNIKARSITEKTUR

FAKULTASSAINS&TEKNOLOGI UNIVERSITASISLAMNEGERIMAULANA MALIKIBRAHIMMALANG

JUDULPERANCANGAN:

PERANCANGANCREATIVE SPACESEBAGAIUPAYA PEMBERDAYAAN PENYANDANGTUNADAKSA

TAMPAKDEPAN TAMPAKBELAKANG

LOKASIPERANCANGAN:

JL.MAYJENSUNGKONO,KEL. BURING,KEC.KEDUNGKANDANG, KOTAMALANG,JAWATIMUR

DIRANCANGOLEH: PUTRINURAINI 18660049

DOSENPEMBIMBING1

Ach.GatGautama,M.T 197604182008011009

DOSENPEMBIMBING2 LULUKMASLUCHA,S.T,M.Sc 198009172005012003

JUDULGAMBAR SKALA 1:250

TAMPAKDEPAN& BANGUNANPENGELOLA BELAKANG

NO.GAMBAR

PRODITEKNIKARSITEKTUR

FAKULTASSAINS&TEKNOLOGI UNIVERSITASISLAMNEGERIMAULANA MALIKIBRAHIMMALANG

JUDULPERANCANGAN:

PERANCANGANCREATIVE SPACESEBAGAIUPAYA PEMBERDAYAAN PENYANDANGTUNADAKSA

TAMPAKKIRI

LOKASIPERANCANGAN:

JL.MAYJENSUNGKONO,KEL. BURING,KEC.KEDUNGKANDANG, KOTAMALANG,JAWATIMUR

DIRANCANGOLEH: PUTRINURAINI 18660049

DOSENPEMBIMBING1

Ach.GatGautama,M.T 197604182008011009

DOSENPEMBIMBING2 LULUKMASLUCHA,S.T,M.Sc 198009172005012003

JUDULGAMBAR

TAMPAKKIRI&KANAN BANGUNANPENGELOLA

TAMPAKKANAN

SKALA 1:250

NO.GAMBAR

+5.00 +4.20 A A

PRODITEKNIKARSITEKTUR

FAKULTASSAINS&TEKNOLOGI UNIVERSITASISLAMNEGERIMAULANA MALIKIBRAHIMMALANG

+8.00

+3.00 +3.50 ATAPBITUMEN POTONGANA-A'

-0.05 +0.10

PERANCANGANCREATIVE SPACESEBAGAIUPAYA PEMBERDAYAAN PENYANDANGTUNADAKSA

JUDULPERANCANGAN: LOKASIPERANCANGAN:

JL.MAYJENSUNGKONO,KEL. BURING,KEC.KEDUNGKANDANG, KOTAMALANG,JAWATIMUR

DIRANCANGOLEH: PUTRINURAINI 18660049

DOSENPEMBIMBING1 Ach.GatGautama,M.T 197604182008011009

DOSENPEMBIMBING2 LULUKMASLUCHA,S.T,M.Sc 198009172005012003

JUDULGAMBAR SKALA

1:250
NO.GAMBAR
123 456 7 89 TALANGAIR DINDINGBATA RANGKAATAPBAJARINGAN GYPSUMBOARDPLAFOND
POTONGANA-A' BANGUNANPENGELOLA

PRODITEKNIKARSITEKTUR

FAKULTASSAINS&TEKNOLOGI UNIVERSITASISLAMNEGERIMAULANA MALIKIBRAHIMMALANG

PERANCANGANCREATIVE SPACESEBAGAIUPAYA PEMBERDAYAAN PENYANDANGTUNADAKSA

JUDULPERANCANGAN: LOKASIPERANCANGAN:

JL.MAYJENSUNGKONO,KEL. BURING,KEC.KEDUNGKANDANG, KOTAMALANG,JAWATIMUR

DIRANCANGOLEH: PUTRINURAINI 18660049

DOSENPEMBIMBING1 Ach.GatGautama,M.T 197604182008011009

DOSENPEMBIMBING2 LULUKMASLUCHA,S.T,M.Sc 198009172005012003

JUDULGAMBAR SKALA 1:250

NO.GAMBAR
EDCB ATAPBITUMEN TALANGAIRHUJAN RANGKAATAPBAJARINGAN GYPSUMBOARDPLAFOND +0.10 +3.00 +3.50 +5.00 +4.20 +8.00 POTONGANB-B' B B
POTONGANB-B' BANGUNANPENGELOLA

PRODITEKNIKARSITEKTUR

FAKULTASSAINS&TEKNOLOGI UNIVERSITASISLAMNEGERIMAULANA MALIKIBRAHIMMALANG

JUDULPERANCANGAN:

PERANCANGANCREATIVE SPACESEBAGAIUPAYA PEMBERDAYAAN PENYANDANGTUNADAKSA

LOKASIPERANCANGAN: JL.MAYJENSUNGKONO,KEL. BURING,KEC.KEDUNGKANDANG, KOTAMALANG,JAWATIMUR

DIRANCANGOLEH: PUTRINURAINI 18660049

DOSENPEMBIMBING1 Ach.GatGautama,M.T 197604182008011009

DOSENPEMBIMBING2 LULUKMASLUCHA,S.T,M.Sc 198009172005012003

JUDULGAMBAR

DENAHMUSHOLA SKALA 1:250

NO.GAMBAR 450 1300 450 300300 250300 450 950 950 200 200 300 350 800 900 450 3350 3050 123 5 7 A B D F H 200 89 4 6 C G E POT. 2 B POT. 2 B POT1 A POT1 A

PRODITEKNIKARSITEKTUR

FAKULTASSAINS&TEKNOLOGI UNIVERSITASISLAMNEGERIMAULANA MALIKIBRAHIMMALANG

JUDULPERANCANGAN:

PERANCANGANCREATIVE SPACESEBAGAIUPAYA PEMBERDAYAAN PENYANDANGTUNADAKSA

LOKASIPERANCANGAN: JL.MAYJENSUNGKONO,KEL. BURING,KEC.KEDUNGKANDANG, KOTAMALANG,JAWATIMUR

DIRANCANGOLEH: PUTRINURAINI 18660049

DOSENPEMBIMBING1

Ach.GatGautama,M.T 197604182008011009

DOSENPEMBIMBING2 LULUKMASLUCHA,S.T,M.Sc 198009172005012003

JUDULGAMBAR TAMPAKDEPAN SKALA 1:250

NO.GAMBAR MUSHOLA TAMPAKDEPAN

PRODITEKNIKARSITEKTUR

FAKULTASSAINS&TEKNOLOGI UNIVERSITASISLAMNEGERIMAULANA MALIKIBRAHIMMALANG

JUDULPERANCANGAN:

PERANCANGANCREATIVE SPACESEBAGAIUPAYA PEMBERDAYAAN PENYANDANGTUNADAKSA

LOKASIPERANCANGAN:

JL.MAYJENSUNGKONO,KEL. BURING,KEC.KEDUNGKANDANG, KOTAMALANG,JAWATIMUR

DIRANCANGOLEH: PUTRINURAINI 18660049

DOSENPEMBIMBING1

Ach.GatGautama,M.T 197604182008011009

DOSENPEMBIMBING2 LULUKMASLUCHA,S.T,M.Sc 198009172005012003

JUDULGAMBAR SKALA 1:250

TAMPAKBELAKANG
NO.GAMBAR TAMPAKBELAKANG MUSHOLA

TAMPAKKANAN

PRODITEKNIKARSITEKTUR

FAKULTASSAINS&TEKNOLOGI UNIVERSITASISLAMNEGERIMAULANA MALIKIBRAHIMMALANG

JUDULPERANCANGAN:

PERANCANGANCREATIVE SPACESEBAGAIUPAYA PEMBERDAYAAN PENYANDANGTUNADAKSA

LOKASIPERANCANGAN:

DIRANCANGOLEH: PUTRINURAINI 18660049

DOSENPEMBIMBING1

Ach.GatGautama,M.T 197604182008011009

DOSENPEMBIMBING2 LULUKMASLUCHA,S.T,M.Sc 198009172005012003

JUDULGAMBAR SKALA 1:250

JL.MAYJENSUNGKONO,KEL. BURING,KEC.KEDUNGKANDANG, KOTAMALANG,JAWATIMUR NO.GAMBAR

TAMPAKKANAN MUSHOLA

TAMPAKKIRI

PRODITEKNIKARSITEKTUR

FAKULTASSAINS&TEKNOLOGI UNIVERSITASISLAMNEGERIMAULANA MALIKIBRAHIMMALANG

JUDULPERANCANGAN:

PERANCANGANCREATIVE SPACESEBAGAIUPAYA PEMBERDAYAAN PENYANDANGTUNADAKSA

LOKASIPERANCANGAN:

DIRANCANGOLEH: PUTRINURAINI 18660049

DOSENPEMBIMBING1

Ach.GatGautama,M.T 197604182008011009

DOSENPEMBIMBING2 LULUKMASLUCHA,S.T,M.Sc 198009172005012003

JUDULGAMBAR SKALA 1:250

JL.MAYJENSUNGKONO,KEL. BURING,KEC.KEDUNGKANDANG, KOTAMALANG,JAWATIMUR NO.GAMBAR

TAMPAKKIRI MUSHOLA

PRODITEKNIKARSITEKTUR

FAKULTASSAINS&TEKNOLOGI UNIVERSITASISLAMNEGERIMAULANA MALIKIBRAHIMMALANG

JUDULPERANCANGAN:

PERANCANGANCREATIVE SPACESEBAGAIUPAYA PEMBERDAYAAN PENYANDANGTUNADAKSA

LOKASIPERANCANGAN:

JL.MAYJENSUNGKONO,KEL. BURING,KEC.KEDUNGKANDANG, KOTAMALANG,JAWATIMUR

DIRANCANGOLEH: PUTRINURAINI 18660049

DOSENPEMBIMBING1 Ach.GatGautama,M.T 197604182008011009

DOSENPEMBIMBING2 LULUKMASLUCHA,S.T,M.Sc 198009172005012003

JUDULGAMBAR SKALA

1:250
NO.GAMBAR POTONGANA-A' MUSHOLA 123 789 -0.03 +0.10 +3.50 +4.00 +6.00 ACPWOOD GRCRELIEF DAKBETON WOODCLADDING RANGKAATAPBAJARINGAN ACPWOOD ATAPBITUMEN POTONGANA-A' AA

PRODITEKNIKARSITEKTUR

FAKULTASSAINS&TEKNOLOGI UNIVERSITASISLAMNEGERIMAULANA MALIKIBRAHIMMALANG

JUDULPERANCANGAN:

PERANCANGANCREATIVE SPACESEBAGAIUPAYA PEMBERDAYAAN PENYANDANGTUNADAKSA

LOKASIPERANCANGAN:

JL.MAYJENSUNGKONO,KEL. BURING,KEC.KEDUNGKANDANG, KOTAMALANG,JAWATIMUR

DIRANCANGOLEH: PUTRINURAINI 18660049

DOSENPEMBIMBING1

Ach.GatGautama,M.T 197604182008011009

DOSENPEMBIMBING2 LULUKMASLUCHA,S.T,M.Sc 198009172005012003

JUDULGAMBAR SKALA 1:250

NO.GAMBAR
G BA +0.10 +3.50 +4.00 +8.00 +4.60 CONCRETEROOSTER GRCRELIEF DAKBETON RANGKAATAPBAJARINGAN ACPWOOD ATAPALUMUNIUMSHEETS POTONGANB-B' B B
POTONGANB-B' MUSHOLA

J I H G

A B C D E F

PRODITEKNIKARSITEKTUR

FAKULTASSAINS&TEKNOLOGI UNIVERSITASISLAMNEGERIMAULANA MALIKIBRAHIMMALANG

JUDULPERANCANGAN:

PERANCANGANCREATIVE SPACESEBAGAIUPAYA PEMBERDAYAAN PENYANDANGTUNADAKSA

LOKASIPERANCANGAN:

DIRANCANGOLEH: PUTRINURAINI 18660049

DOSENPEMBIMBING1

Ach.GatGautama,M.T 197604182008011009

DOSENPEMBIMBING2 LULUKMASLUCHA,S.T,M.Sc 198009172005012003

JUDULGAMBAR SKALA 1:250

DENAHBANGUNAN PELATIHANSENI

JL.MAYJENSUNGKONO,KEL. BURING,KEC.KEDUNGKANDANG, KOTAMALANG,JAWATIMUR NO.GAMBAR 123456

TAMPAKDEPAN

TAMPAKBELAKANG

PRODITEKNIKARSITEKTUR

FAKULTASSAINS&TEKNOLOGI UNIVERSITASISLAMNEGERIMAULANA MALIKIBRAHIMMALANG

JUDULPERANCANGAN:

PERANCANGANCREATIVE SPACESEBAGAIUPAYA PEMBERDAYAAN PENYANDANGTUNADAKSA

LOKASIPERANCANGAN:

JL.MAYJENSUNGKONO,KEL. BURING,KEC.KEDUNGKANDANG, KOTAMALANG,JAWATIMUR

DIRANCANGOLEH: PUTRINURAINI 18660049

DOSENPEMBIMBING1

Ach.GatGautama,M.T 197604182008011009

DOSENPEMBIMBING2 LULUKMASLUCHA,S.T,M.Sc 198009172005012003

JUDULGAMBAR SKALA 1:250

TAMPAKDEPAN&BELAKANG BANGUNANPELATIHANSENI

NO.GAMBAR

TAMPAKKIRI

TAMPAKKANAN

PRODITEKNIKARSITEKTUR

FAKULTASSAINS&TEKNOLOGI UNIVERSITASISLAMNEGERIMAULANA MALIKIBRAHIMMALANG

JUDULPERANCANGAN:

PERANCANGANCREATIVE SPACESEBAGAIUPAYA PEMBERDAYAAN PENYANDANGTUNADAKSA

LOKASIPERANCANGAN:

JL.MAYJENSUNGKONO,KEL. BURING,KEC.KEDUNGKANDANG, KOTAMALANG,JAWATIMUR

DIRANCANGOLEH: PUTRINURAINI 18660049

DOSENPEMBIMBING1

Ach.GatGautama,M.T 197604182008011009

DOSENPEMBIMBING2 LULUKMASLUCHA,S.T,M.Sc 198009172005012003

JUDULGAMBAR SKALA 1:250

TAMPAKSAMPING BANGUNANPELATIHANSENI

NO.GAMBAR

PRODITEKNIKARSITEKTUR

FAKULTASSAINS&TEKNOLOGI UNIVERSITASISLAMNEGERIMAULANA MALIKIBRAHIMMALANG

PERANCANGANCREATIVE SPACESEBAGAIUPAYA PEMBERDAYAAN PENYANDANGTUNADAKSA

DIRANCANGOLEH: PUTRINURAINI 18660049

DOSENPEMBIMBING1 Ach.GatGautama,M.T 197604182008011009

DOSENPEMBIMBING2 LULUKMASLUCHA,S.T,M.Sc 198009172005012003

JUDULGAMBAR SKALA 1:250
+5.00 +3.50
ATAPBITUMEN RANGKAATAPBAJARINGAN TALANGAIRHUJAN GYPSUMBOARDPLAFOND 123456 WALLPAPER POTONGANA-A' AA
JUDULPERANCANGAN: LOKASIPERANCANGAN: JL.MAYJENSUNGKONO,KEL. BURING,KEC.KEDUNGKANDANG, KOTAMALANG,JAWATIMUR NO.GAMBAR POT.A-A'BANGUNAN PELATIHANSENI +0.00-0.10 +4.00
+7.00

+7.00 B B

PRODITEKNIKARSITEKTUR

FAKULTASSAINS&TEKNOLOGI UNIVERSITASISLAMNEGERIMAULANA MALIKIBRAHIMMALANG

PERANCANGANCREATIVE SPACESEBAGAIUPAYA PEMBERDAYAAN PENYANDANGTUNADAKSA

DIRANCANGOLEH: PUTRINURAINI 18660049

DOSENPEMBIMBING1 Ach.GatGautama,M.T 197604182008011009

DOSENPEMBIMBING2 LULUKMASLUCHA,S.T,M.Sc 198009172005012003

PELATIHANSENI POT.B-B'BANGUNAN ATAPBITUMEN RANGKAATAPBAJARINGAN GYPSUMBOARDPLAFOND WALLPAPERWOODTEXTURE POTONGANB-B'

JUDULGAMBAR SKALA 1:250

-0.10 +0.10 +3.50 +4.00
JUDULPERANCANGAN: LOKASIPERANCANGAN: JL.MAYJENSUNGKONO,KEL. BURING,KEC.KEDUNGKANDANG, KOTAMALANG,JAWATIMUR NO.GAMBAR A ICEG

PRODITEKNIKARSITEKTUR

FAKULTASSAINS&TEKNOLOGI UNIVERSITASISLAMNEGERIMAULANA MALIKIBRAHIMMALANG

JUDULPERANCANGAN:

PERANCANGANCREATIVE SPACESEBAGAIUPAYA PEMBERDAYAAN PENYANDANGTUNADAKSA

DIRANCANGOLEH: PUTRINURAINI 18660049

DOSENPEMBIMBING1

Ach.GatGautama,M.T 197604182008011009

DOSENPEMBIMBING2 LULUKMASLUCHA,S.T,M.Sc 198009172005012003

JUDULGAMBAR

DENAHAMPITHEATER SKALA 1:250

LOKASIPERANCANGAN: JL.MAYJENSUNGKONO,KEL. BURING,KEC.KEDUNGKANDANG, KOTAMALANG,JAWATIMUR NO.GAMBAR

TAMPAKDEPAN

PRODITEKNIKARSITEKTUR

FAKULTASSAINS&TEKNOLOGI UNIVERSITASISLAMNEGERIMAULANA MALIKIBRAHIMMALANG

JUDULPERANCANGAN:

PERANCANGANCREATIVE SPACESEBAGAIUPAYA PEMBERDAYAAN PENYANDANGTUNADAKSA

LOKASIPERANCANGAN:

DIRANCANGOLEH: PUTRINURAINI 18660049

DOSENPEMBIMBING1

Ach.GatGautama,M.T 197604182008011009

DOSENPEMBIMBING2 LULUKMASLUCHA,S.T,M.Sc 198009172005012003

JUDULGAMBAR SKALA 1:250

JL.MAYJENSUNGKONO,KEL. BURING,KEC.KEDUNGKANDANG, KOTAMALANG,JAWATIMUR NO.GAMBAR

TAMPAKDEPAN AMPITHEATER

PRODITEKNIKARSITEKTUR

FAKULTASSAINS&TEKNOLOGI UNIVERSITASISLAMNEGERIMAULANA MALIKIBRAHIMMALANG

JUDULPERANCANGAN: LOKASIPERANCANGAN:

PERANCANGANCREATIVE SPACESEBAGAIUPAYA PEMBERDAYAAN PENYANDANGTUNADAKSA

DIRANCANGOLEH: PUTRINURAINI 18660049

DOSENPEMBIMBING1

Ach.GatGautama,M.T 197604182008011009

DOSENPEMBIMBING2 LULUKMASLUCHA,S.T,M.Sc 198009172005012003

JUDULGAMBAR SKALA 1:250

JL.MAYJENSUNGKONO,KEL. BURING,KEC.KEDUNGKANDANG, KOTAMALANG,JAWATIMUR NO.GAMBAR

TAMPAKBELAKANG AMPITHEATER

TAMPAKBELAKANG

TAMPAKKIRI

PRODITEKNIKARSITEKTUR

FAKULTASSAINS&TEKNOLOGI UNIVERSITASISLAMNEGERIMAULANA MALIKIBRAHIMMALANG

JUDULPERANCANGAN:

PERANCANGANCREATIVE SPACESEBAGAIUPAYA PEMBERDAYAAN PENYANDANGTUNADAKSA

LOKASIPERANCANGAN: JL.MAYJENSUNGKONO,KEL. BURING,KEC.KEDUNGKANDANG, KOTAMALANG,JAWATIMUR

DIRANCANGOLEH: PUTRINURAINI 18660049

DOSENPEMBIMBING1

Ach.GatGautama,M.T 197604182008011009

DOSENPEMBIMBING2 LULUKMASLUCHA,S.T,M.Sc 198009172005012003

JUDULGAMBAR TAMPAKKIRI SKALA 1:250

NO.GAMBAR
AMPITHEATER

TAMPAKKANAN

PRODITEKNIKARSITEKTUR

FAKULTASSAINS&TEKNOLOGI UNIVERSITASISLAMNEGERIMAULANA MALIKIBRAHIMMALANG

JUDULPERANCANGAN: LOKASIPERANCANGAN:

PERANCANGANCREATIVE SPACESEBAGAIUPAYA PEMBERDAYAAN PENYANDANGTUNADAKSA

DIRANCANGOLEH: PUTRINURAINI 18660049

DOSENPEMBIMBING1

Ach.GatGautama,M.T 197604182008011009

DOSENPEMBIMBING2 LULUKMASLUCHA,S.T,M.Sc 198009172005012003

JUDULGAMBAR SKALA 1:250

JL.MAYJENSUNGKONO,KEL. BURING,KEC.KEDUNGKANDANG, KOTAMALANG,JAWATIMUR NO.GAMBAR

TAMPAKKANAN AMPITHEATER

PONDASIBOREPILE KOLOMBAJAPIPE

PRODITEKNIKARSITEKTUR

FAKULTASSAINS&TEKNOLOGI UNIVERSITASISLAMNEGERIMAULANA MALIKIBRAHIMMALANG

JUDULPERANCANGAN:

PERANCANGANCREATIVE SPACESEBAGAIUPAYA PEMBERDAYAAN PENYANDANGTUNADAKSA

LOKASIPERANCANGAN:

DIRANCANGOLEH: PUTRINURAINI 18660049

DOSENPEMBIMBING1 Ach.GatGautama,M.T 197604182008011009

DOSENPEMBIMBING2 LULUKMASLUCHA,S.T,M.Sc 198009172005012003

JUDULGAMBAR SKALA 1:250

POTONGANA-A' AMPITHEATER

RANGKAATAPSPACEFRAME ATAPMEMBRAN
JL.MAYJENSUNGKONO,KEL. BURING,KEC.KEDUNGKANDANG, KOTAMALANG,JAWATIMUR NO.GAMBAR A A
PONDASIROLLAG +7.00 +13.00 +1.50 -1.50 +0.50 +1.00 POTONGANA-A'

PRODITEKNIKARSITEKTUR

FAKULTASSAINS&TEKNOLOGI UNIVERSITASISLAMNEGERIMAULANA MALIKIBRAHIMMALANG

JUDULPERANCANGAN:

PERANCANGANCREATIVE SPACESEBAGAIUPAYA PEMBERDAYAAN PENYANDANGTUNADAKSA

LOKASIPERANCANGAN:

DIRANCANGOLEH: PUTRINURAINI 18660049

DOSENPEMBIMBING1

Ach.GatGautama,M.T 197604182008011009

DOSENPEMBIMBING2 LULUKMASLUCHA,S.T,M.Sc 198009172005012003

JUDULGAMBAR SKALA 1:250

JL.MAYJENSUNGKONO,KEL. BURING,KEC.KEDUNGKANDANG, KOTAMALANG,JAWATIMUR NO.GAMBAR

PONDASIBOREPILE KOLOMBAJAPIPE RANGKAATAPSPACEFRAME ATAPMEMBRAN PONDASIROLLAG POTONGANB-B' B B
POTONGANB-B' AMPITHEATER +7.00 +13.00 +1.50 -1.50 +0.50 +1.00

Turn static files into dynamic content formats.

Create a flipbook
Issuu converts static files into: digital portfolios, online yearbooks, online catalogs, digital photo albums and more. Sign up and create your flipbook.