
1 minute read
6.7.2 Hotel Turizmi (Skampa) Elbasan, 1970
6.7.2 Hotel Turizmi (Skampa) Elbasan, 1970

Advertisement

Figure 71: Two photos up. Hotel Turizmi Elbasan (Skampa). Source: (Thomai, Nepravishta, & Boriçi, 2019) and photos from: step.mk; commons.wikimedia.org
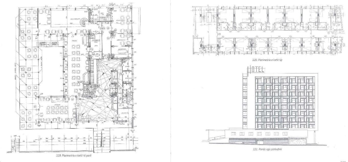
Hotel “Turizmi” Elbasan is designed in 1970 by Valentina Pistoli. Positioned in the city center of Elbasan and rises ten stores high. Being considered a High Rise Tower with platform, the platform itself consist on a wider surface, by utilizing the maximum of its parcel.
In a similar way with Rozafa Hotel, Skampa includes in the ground floor an atrium, which finishes in height in the open, with greenery aiming to go outside the platform. Columns of circle diameters carry the weight of the balcony to create a tavern, which can observe through the atrium, the ground floor. The building is laid down organically with the terrain through the platform and the adopted stairs.
In the ground floor are positioned all the services, which can be viewed from the veranda. Different stairs are used for the service area and for the private area of rooms, which are displayed in the other nine stores. The floor type is composed by a linear corridor, which distributes the fluxes into the rooms, which like in the case of Rozafa, have rooms with private bathrooms and rooms with shared bathroom.
The façade is composed by an elegant play of vertical and horizontal elements, which also act like a sunshade, by offering a harmonious and in the same time dynamic view of the facades. The materials used in the façade are prefabricated elements with granulated stone and polished white marble.
The hotel today is restored, with minimal interventions regarding architectural dimensions. The platform has been adapted to enclosed space with retailing service, while the exterior architecture has remained intact.




