sesc imperial

Diagrama de contexto Diagrama de conceito
Diagrama geral ................... diagrama de bolha ............. diagrama de sessão .........
Diagrama de atividade
diagrama de massa........... diagrama estrutural........ maquete física .......................
corte ................................................. corte ampliado ................... perspectivas ..............................
ATELIER DE PROJETO Vi 2022 PROFESSORES: Mucio DyeGO Aluna Esmeralda Pietra
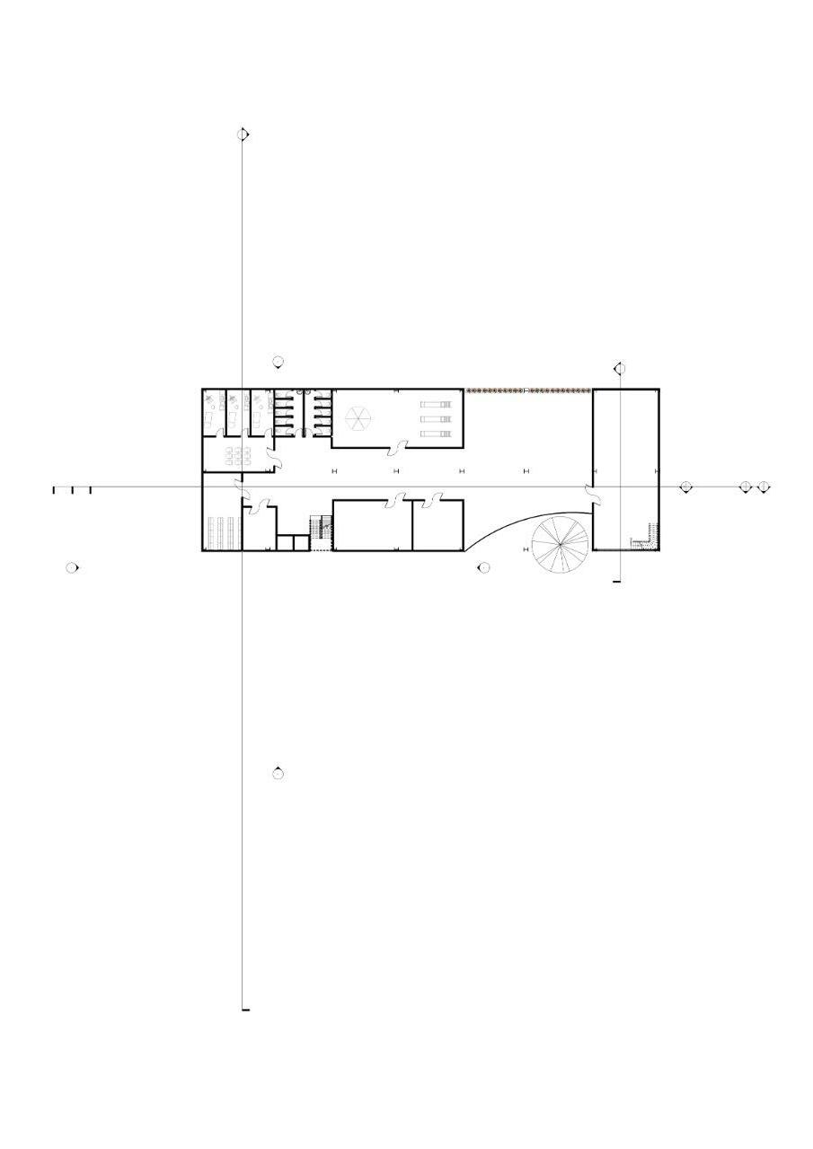
1 2 3 4 5 6
ADM Sala de atendimento Saúde Academia Biblioteca Sala de ginastica
planta baixa 1° andar
universidade católica de Pernambuco unicap arquitetura unicap docentes mucio e dyego dicente esmeralda pietra
7 Biblioteca
8 Sala de dana
9Sala de musica
10 sala de multiuso
Teatro
planta baixa 2° andar
universidade católica de Pernambuco unicap arquitetura unicap docentes mucio e dyego dicente esmeralda pietra
12 teatro 13 ginasio
planta baixa 3° andar
universidade católica de Pernambuco unicap arquitetura unicap docentes mucio e dyego dicente esmeralda pietra
14 ginasio 15 cozinha 16 restaurante
universidade católica de Pernambuco unicap arquitetura unicap docentes mucio e dyego dicente esmeralda pietra
planta baixa da coberta
universidade católica de Pernambuco unicap arquitetura unicap docentes mucio e dyego dicente esmeralda pietra
universidade católica de Pernambuco unicap arquitetura unicap docentes mucio e dyego dicente esmeralda pietra