UNIT SUMMARY

UNIT SUMMARY BY
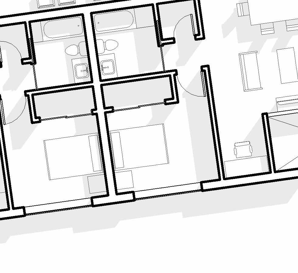
PROPOSED BUILDING



WITHIN FLOOR*CEILING ASSEMBLIES, ROOF*CEILING ASSEMBLIES, WALLS, CRAWL SPACES OR ATTICS SHALL HAVE A FLAME*SPREAD RATING NOT TO EXCEED 25 AND A SMOKE DENSITY NOT TO EXCEED 450.
17. PORTABLE FIRE EXTINGUISHERS SHALL BE INSTALLED IN LOCATIONS AS REQUIRED PER GOVERNING CODE REQUIREMENTS.
18. DUMPSTERS AND CONTAINERS WITH AN INDIVIDUAL CAPACITY OF 1.5 CUBIC YARDS OR MORE SHALL NOT BE STORED IN BUILDINGS OR PLACED WITHIN 5 FEET OF COMBUSTIBLE WALLS, OPENINGS OR COMBUSTIBLE ROOF EAVES, UNLESS AREAS CONTAINING DUMPSTERS OR CONTAINERS ARE PROTECTED BY AN APPROVED AUTOMATIC FIRE SPRINKLER SYSTEM PER GOVERNING CODE REQUIREMENTS.
19. WE HAVE DESIGNED THE CORE AND SHELL BUILDING TO FACILITATE PROVIDING SIGNAL AMPLIFICATION ON EVERY FLOOR OF THE BUILDING. (COMPONENTS USED IN THE INSTALLATION OF THE ERRC SYSTEM, SUCH AS REPEATERS, TRANSMITTERS, RECEIVERS, SIGNAL BOOSTERS, CABLING AND FIBER*DISTRIBUTED ANTENNAE SYSTEMS WILL BE SUPPORTED.
20. EMERGENCY RESPONDER RADIO COVERAGE SYSTEM (ERRCS) GENERAL NOTES:
A. THE CONNECTIONS FOR THE FEEDER AND RISER COAXIAL CABLES SHALL BE RATED AS PLENUM CABLES THAT MATCH THE BUILDING S
B. WIRING. THE WIRING SHALL BE IN METAL RACEWAYS FOR ANY INTERCONNECTING CONDUCTORS, CABLES OR