PORTAFOLIO - PEDRO UGARTE 2024

Page 1

PORTAFOLIO

ARQUITECTURA

2024
PEDRO UGARTE REJAS

Bachiller de la carrera de Arquitectura de la Universidad Peruana de Ciencia Aplicadas - UPC. Pertenecí al décimo superior de mi facultad y al Grupo de Excelencia Académica de mi casa de estudios. Mención en Tecnologías Digitales, interés por el área de diseño, además presento conocimientos sólidos en el área de gestión, planeamiento y desarrollo de proyectos de construcción, post venta y supervisión de obra. Poseo la habilidad de adaptarme a cualquier circunstancia, al trabajo bajo presión y al trabajo en equipo, de esta manera, generar un crecimiento constante en la empresa y en mi persona. Busco oportunidades donde pueda poner en práctica mis conocimientos y habilidades adquiridas.

Este portafolio es una evidencia de todo lo que he desarrollado en la Carrera de Arquitectura, en la Universidad Peruana de Ciencias Aplicadas, tiene como fin dar a concer mi evolución y como es que los Arquitectos docentes influyen en ella.

3
01. Hotel + Museo 04 02. Campus Universitario 12 03. Parque Frutícola + Mercado 24 04. Centro de Rehabilitación 32
INDICE
PRESENTACIÓN
4 5
Hotel + Museo Miraflores

01 Conceptualización del proyecto

El proyecto que se desarrollo en el taller fue un Hotel con un museo, frente a la Huaca Pucllana, en Lima. Con un terreno limitante.

El objetivo del taller, fue desarrollar la aplicación de nuevos sistemas constructivos, en las cuales se utilizo la placa bandera.

Se tomo como concepto la discontinuidad de la huaca para la volumetría del proyecto.

Render Exterior

SketchUp - Vray

6 7
01 Hotel + Museo

01 01 Materialidad del proyecto

El proyecto al estar ubicado al frente de la Huaca Pucllana, necesitaba tomar texturas de este, es por ello, que principalmente tomo el color terroso de los ladrillos de adobe.

Se estaba trabajando con un material de concreto y que mejor solución que tomar un concreto pigmentado unificando la solidez del material con el color y la textura de la Hua

ca.

8 9
-
Planimetría del proyecto + = Color Tierra Concreto Pigmentado Concreto
Photoshop SALA DE EXPO TEMPORALES CAFETERÍA SALA DE EXPO PERMANENTES ZONA DE DESCARGA ALMACEN PLAZA CTO. SERV. CTO. SERV. RESTAURANTE ESTACIÓN MOZOS LAVADO PLATOS EMPLATADO ÁREA PASTELERÍA PANADERÍA PREPARACIÓN FRÍA CÁMARA FRIORÍFICA ALMACÉN COCINA CTO. SERV. N N N N HAB HAB HAB 107 109 HAB HAB 309 HAB 310 HAB 303 301 PRODUCED BY AN AUTODESK STUDENT VERSION PRODUCED BY AN AUTODESK STUDENT VERSION PRODUCED BY AN AUTODESK STUDENT VERSION Planimetría Escala 1/500 Planta Sótano 1 Planta Típica 1 Planta Típica 2 Primera Planta
Collague

01 Estructura del proyecto

Render de Habitación

SketchUp - Vray

Detalle

SketchUp - Vray - Photoshop

Piel

Se recubre con una piel metalica la parte del frente, junto con un concreto pigmentado color tierra.

Estructura trasparente

En la parte de los destajos, el recubrimiento es con muro cortina con estructura de acero negro.

Losas

Se complementa con el esqueleto las losas, amarradas verticalmente por el nucleo de los asensores.

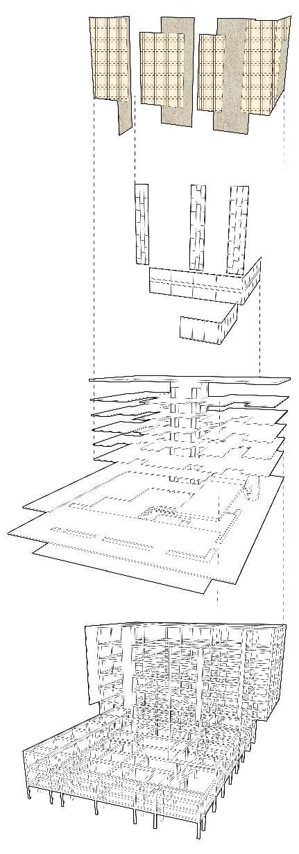
Columnas, Vigas y Placa El esqueleto del proyecto esta conformado por columnas vigas y placas, el tipo de placas es la placa bandera.

Sistema Estructural

SketchUp - Illustrator

10 11
01 Render Interior Habitación
12 13 01
Render Exterior Fachada
Render Exterior
01 Render Interior
SketchUp - Vray
Corredor
Render del Corredor SketchUp - Vray
14 15
Campus Universitario Jesus María

02 Campus

Universitario

02 Conceptualización del proyecto

El proyecto que se desarrollo en el taller fue un Campus Universitario, en Lima.

El objetivo del taller, solucionar un problema urbano con el proyecto, a su vez generar mejoras en la zona.

Se tomo como concepto la continuidad de las calles para poder generar la volumetría.

Render Exterior

SketchUp - Vray

16 17
Campo de Marte Jesus María

02 02 Render Interior Corredor

18 19
Planimetría
proyecto PLAZA TIENDA ALMACÉN SS.HH B SS.HH 2 2 5 5 7 7 9 9 11 11 13 13 A A B B C C 5.28 7.00 7.15 7.36 7.00 6.57 79.40 16.60
7.00 7.15 7.36 7.00 6.57 79.40 10.18 6.43 3 3 4 4 6 6 8 8 10 10 12 12 5.28 7.00 6.85 6.34 7.00 6.57 5.28 7.00 6.85 6.34 7.00 6.57 B PRODUCED BY AN AUTODESK STUDENT VERSION PRODUCED BY AN AUTODESK STUDENT VERSION Planta
Escala 1/250
del
5.28
1
Volumetria 3D SketchUp - Illustrator
20 21 02
Render de Corte
Corte Fugado Interior - Exterior 02
SketchUp - Vray Render de Corredor
Render Interior Corredor
SketchUp - Vray - Photoshop
22 23
02 Render Detalle
PRODUCED BY AN AUTODESK STUDENT VERSION PRODUCED BY AN AUTODESK STUDENT VERSION PRODUCED BY AN AUTODESK STUDENT VERSION PRODUCED BY AN AUTODESK STUDENT VERSION PRODUCED BY AN AUTODESK STUDENT VERSION PRODUCED BY AN AUTODESK STUDENT VERSION PRODUCED BY AN AUTODESK STUDENT VERSION PRODUCED BY AN AUTODESK STUDENT VERSION PRODUCED BY AN AUTODESK STUDENT VERSION 02
Estructural Render de detalle SketchUp - Vray - Photoshop
Render Exterior Patio
Render de Exterior SketchUp - Vray - Photoshop
24 25
Parque Frutícola + Mercado Barrios Altos

03 Parque Frutícola + Mercado

El proyecto que se desarrollo en el taller fue un parque Frutícola con actividades economicas par generar ingresos en la zona.

El objetivo del taller, rehabilitar una zona en Lima en desuso.

Para ello se utilizaron una variedad de arboles y a la elaboración de lugares públicos.

26 27
3D SketchUp - Photoshop
03 Plano Entorno Arquitectónico
Plano de entorno AutoCad - Photoshop
28 29 03
Intervención
Collague
Collague
03
SketchUp - Photoshop
Render Exterior Parque
Render de Exterior SketchUp - Enscape - Photoshop
30 31 03 Corte Detalle Fugado
Corte Fugado SketchUp - Photoshop

Centro de Rehabilitación Ancón

32 33

Juvenil en Conflictos con la Ley

Parque Industiral Ancón

Render Exterior

Sketchup + Enscape + Photoshop

04 Conceptualización del Proyecto

El proyecto que se desarrollo en el taller de tesis fue un Centro de Rehabilitación Juvenil. El objetivo principal del centro es la rehabilitación y esto se pretende lograr mediante la arquitectura In-Between, con la creación de unos espacios intermedios mediante la tension de volumenes generando espacios abiertos, los cuales se trata de reinterpretar el exterior en el interior, esto con el fin de no dar una sensación de encierro.

De igual forma con este centro se pretende cambiar el pensamiento de las personas que se tiene de estas edificaciones, con la ayuda de materiales modernos ademas de una gran espacialidad y juego de luces.

34 35 04 Centro
Rehabilitación
de
36 37 K L H K L H M N O P M N O P G G F F E E 5 6 7 13 14 15 16 17 18 19 CUADRO DE VANOS CÓDIGO ALFEIZAR ANCHO ALTO DESCRIPCIÓN P1 - 1.00m 2.10m Puerta batiente con marco de madera cm, panel contraplacado madera 3.25 bisagra de libro cerradura manilla. P2 - 0.65m 2.10m Puerta batiente con marco de aluminio perfil 5cm, panel contraplacado madera 3.25cm cerradura manilla P3 - 0.95m 2.10m Puerta batiente con marco de madera cm, panel contraplacado madera 3.25 bisagra de libro cerradura manilla. P4 - 2.00m 2.10m Puerta doble batiente con marco madera de cm, panel contraplacado madera 3.25 bisagra de libro cerradura manilla. P5 - 1.05m 2.10m Puerta batiente con marco de madera cm, panel contraplacado madera 3.25 bisagra de libro cerradura manilla. P6 - 0.90m 2.10m Puerta batiente con marco de madera cm, panel contraplacado madera 3.25 bisagra de libro cerradura manilla. M1 - 6.35m 3.40m Muro cortina con doble puerta batiente con perfil de aluminio "u" 5cm, paneles acristalados 10mm. M2 - 7.00m 3.40m Muro cortina perfil aluminio 5cm, paneles acristalados 10mm. M3 - 5.25m 3.40m Muro cortina con doble puerta batiente con perfil de aluminio "u" 5cm, paneles acristalados 10mm. M4 - 6.20m 3.40m Muro cortina con doble puerta batiente con perfil de aluminio "u" 5cm, paneles acristalados 10mm. M5 - 5.25m 3.00m Muro cortina con doble puerta batiente con perfil de aluminio "u" 5cm, paneles acristalados 10mm. M6 - 6.00m 3.00m Muro cortina perfil aluminio 5cm, paneles acristalados 10mm. M7 - 5.60m 3.40m Muro cortina perfil aluminio 5cm, paneles acristalados 10mm. M8 - 6.95m 3.40m Muro cortina perfil aluminio 5cm, paneles acristalados 10mm. M9 - 4.95m 3.40m Muro cortina perfil aluminio 5cm, paneles acristalados 10mm. M10 - 5.20m 3.40m Muro cortina con doble puerta batiente con perfil de aluminio "u" 5cm, paneles acristalados 10mm. M11 - 5.20m 3.40m Muro cortina perfil aluminio 5cm, paneles acristalados 10mm. M12 - 6.00m 3.40m Muro cortina perfil aluminio 5cm, paneles acristalados 10mm. M13 - 6.35m 3.40m Muro cortina perfil aluminio 5cm, paneles acristalados 10mm. M14 - 5.25m 3.40m Muro cortina perfil aluminio 5cm, paneles acristalados 10mm. M15 - 6.20m 3.40m Muro cortina perfil aluminio 5cm, paneles acristalados 10mm. V1 0.40m 6.45m 1.20m Ventana con perfil aluminio 5cm, doble panel acristalados 10mm para anulación ruido. V2 2.00m 3.00m 0.60m Ventana con perfil aluminio 5cm, doble panel acristalados 10mm para anulación ruido. V3 2.20m 0.50m 0.40m Ventana con perfil aluminio 5cm, doble panel acristalados 10mm para anulación ruido. V4 1.10m 5.40m 1.80m Ventana con perfil aluminio 5cm, doble panel acristalados 10mm para anulación ruido. V5 1.00m 2.00m 1.80m Ventana con perfil aluminio 5cm, doble panel acristalados 10mm para anulación ruido. V6 1.10m 4.35m 1.80m Ventana con perfil aluminio 5cm, doble panel acristalados 10mm para anulación ruido. V7 0.40m 0.75m 3.00m Ventana con perfil aluminio 5cm, doble panel acristalados 10mm para anulación ruido. PABELLON DE AÑOS PARCELAS PATIO AULA TEÓRICA AULA TEÓRICA ZONA DE VIGILANCIA ALMACÉN CONTROL DE INTERNOS CUARTO ELECTRICO PATIO COMEDOR POSTA MÉDICA FARMACIA ALMACÉN CONSULTORIO CONSULTORIO JARDÍN JARDÍN JARDÍN JARDÍN JARDÍN LOSA DEPORTIVA JARDÍN JARDÍN JARDÍN JARDÍN JARDÍN JARDÍN JARDÍN JARDÍN JARDÍN JARDÍN MONTACARGA CORREDOR DE SERVICIO DEAM MIGUEL CRUCHAGA BELAUNDE DIRECTOR MARIO SEGAMI SALAZAR ARCHITECTURE FACULTY ARCHITECTURE FACULTY Observations: Workshop: Project name: Location: Professor: Student Name: Studend Code: Class: Sector: Orientation: Scale: Date: Sheet number: Sheet name: THESIS PROJECT AR301 TVIII ARCHITECURE AN CITIES Centro de Rehabilitación Ancon Jorge Miguel Gamarra Maguiño Pedro Ugarte Rejas u201713761 AS4A 1/100 Noviembre 2023 PRIMERA PLANTA AR-07 04 04 Planimetría del proyecto Planimetría del proyecto DEAM MIGUEL CRUCHAGA BELAUNDE DIRECTOR MARIO SEGAMI SALAZAR ARCHITECTURE FACULTY ARCHITECTURE FACULTY Observations: Workshop: Project name: Location: Professor: Student Name: Studend Code: Class: Sector: Orientation: Scale: Date: Sheet number: Sheet name: THESIS PROJECT AR301 TVIII ARCHITECURE AN CITIES Centro de Rehabilitación Ancon Jorge Miguel Gamarra Maguiño Pedro Ugarte Rejas u201713761 AS4A 1/250 Noviembre 2023 PRIMERA PLANTA AR-01 GIMNASIO PARCELAS AÑOS TEÓRICA ADMISIÓN CARGA DESCARGA CONTROL MANIOBRAS ELECTROGENO ALMACÉN GENERAL FARMACIA PABELLON AÑOS COMEDOR ÁREA DE SALUD ALMACÉN ZONA VISITA INGRESO LOBBY CUARTO AGUA CONTRA INCENCIOS AGUAS DOMESTICAS MAESTRANZA CUARTO AGUAS GRISES ELECTRICO DETALLE 1:100 ALMACÉN INGRESO RECEPCIÓN 1 2 3 4 5 6 7 8 9 10 11 12 A B C D E G H J K L M N O P Q U W Y Z A B C D E G H J K L M N O P Q R S U V' W X Y Z R S T V 13 14 15 18 19 21 22 23 16 17 13 14 15 16 22 23 Planta 1 Escala 1/250 Planta 1 Escala 1/100

Renders

Interiores y Exteriores

Renders

Sketchup + Enscape + Photoshop

Corte Fugado + Tratamiento

Sostenible

38 39 04
04
Corte Fugado
Con el fin de
el
Verde Con el fin decontrarrestar los fuertes vientos Piel Metálica Con el fin de generar sombra cuando el sol da direc
to
Sketchup + Illustrator
Colchon Verde
disminuir
ruido exteior Colchon
-
40

Turn static files into dynamic content formats.

Create a flipbook
Issuu converts static files into: digital portfolios, online yearbooks, online catalogs, digital photo albums and more. Sign up and create your flipbook.