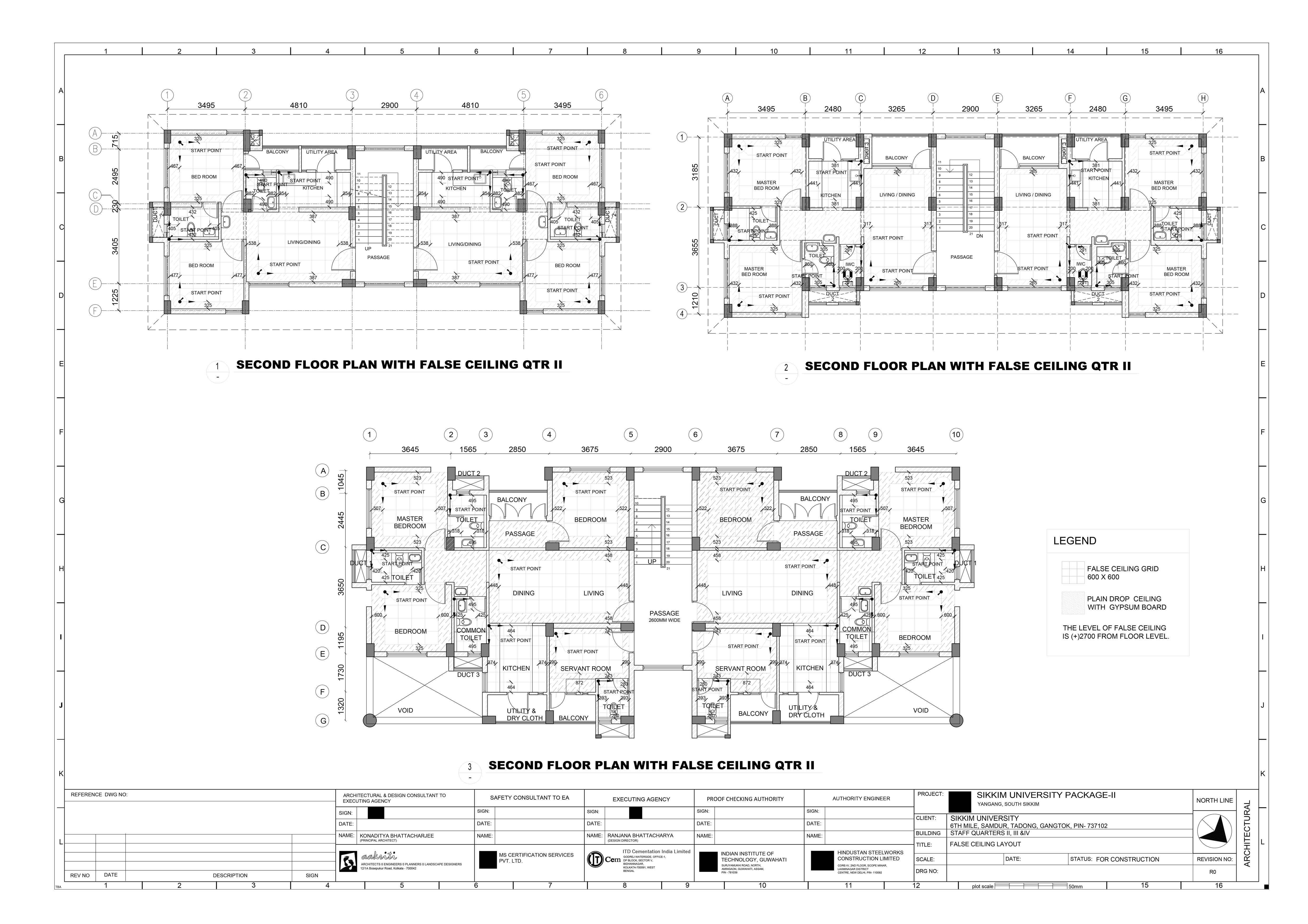
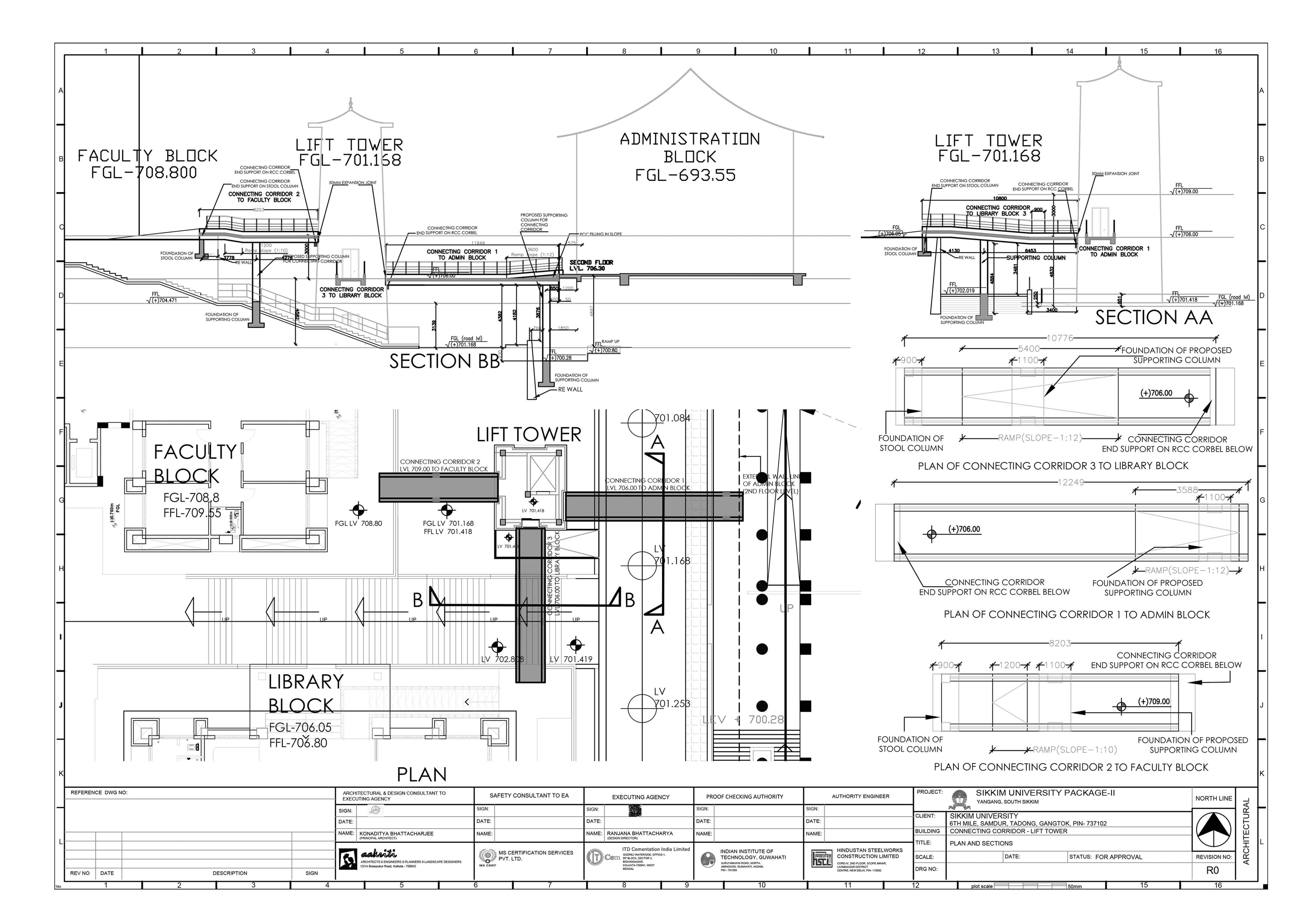
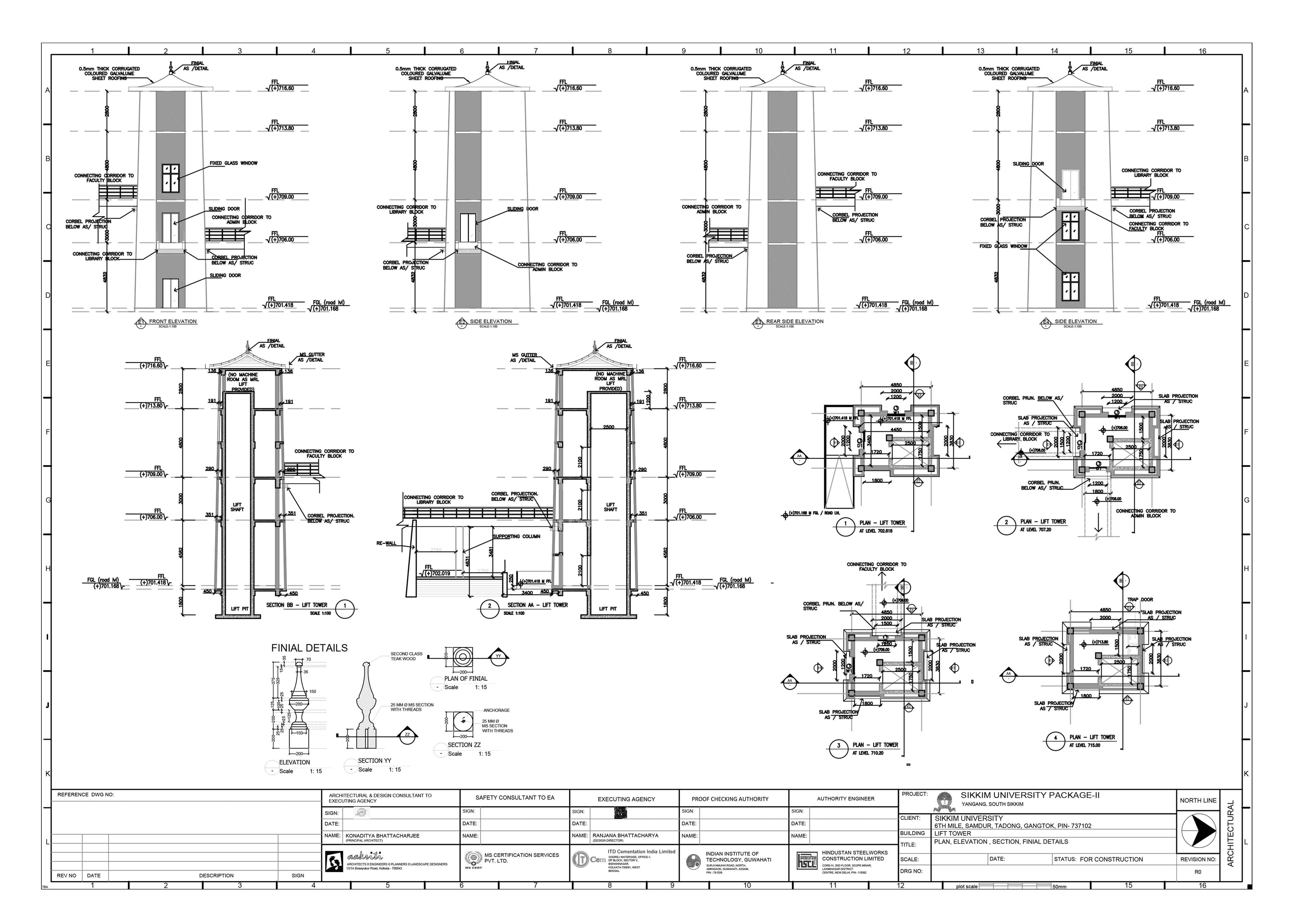
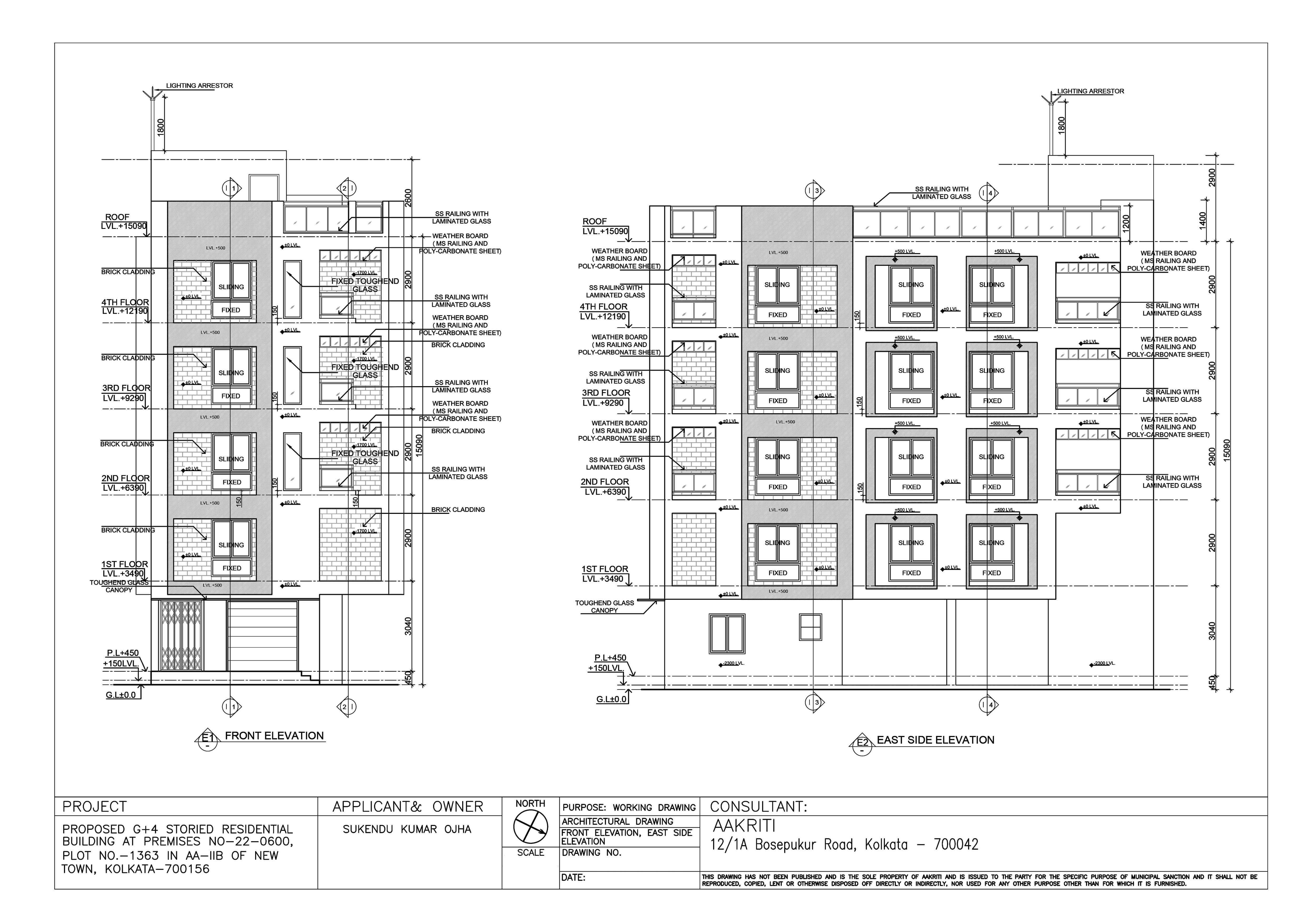
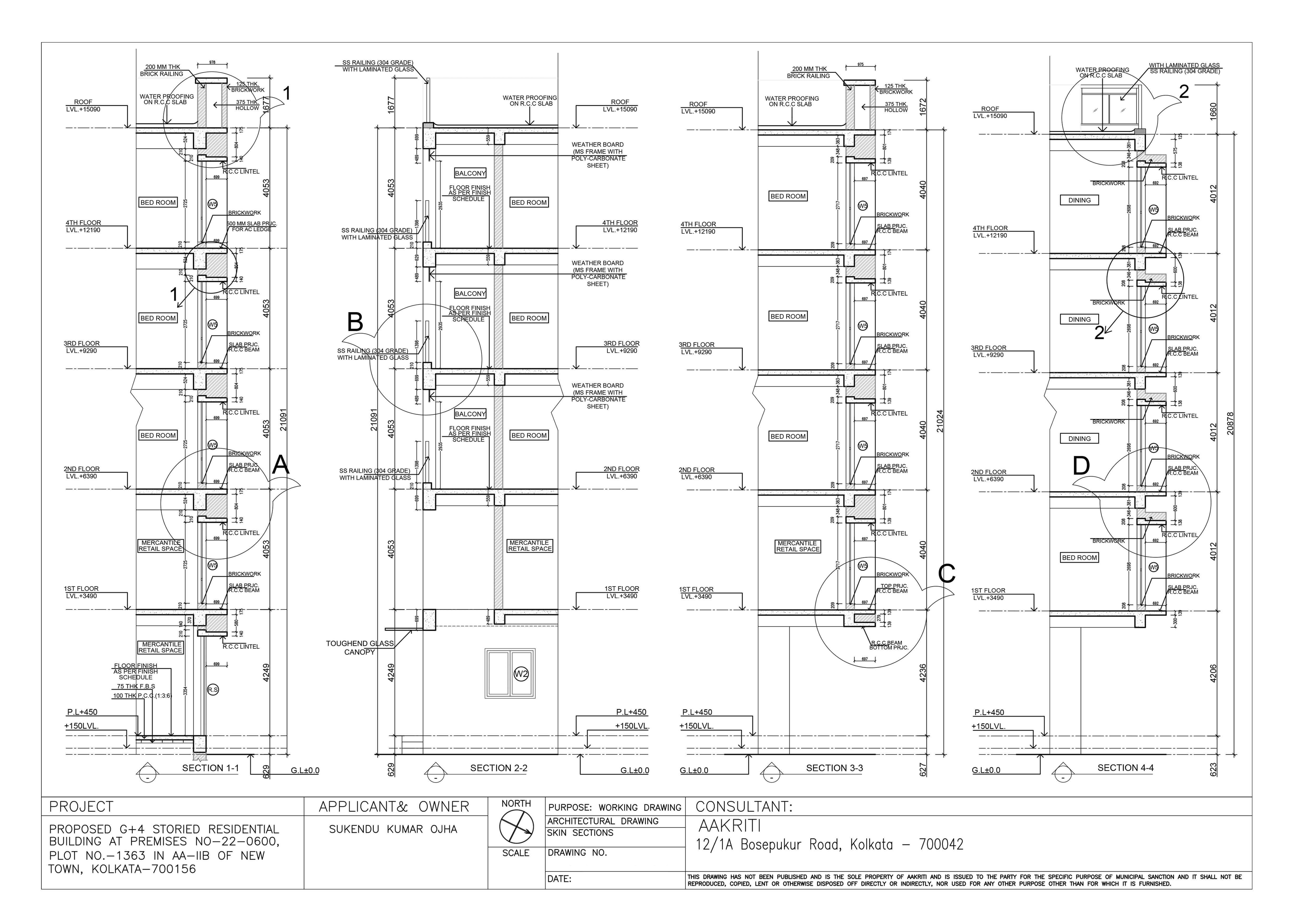
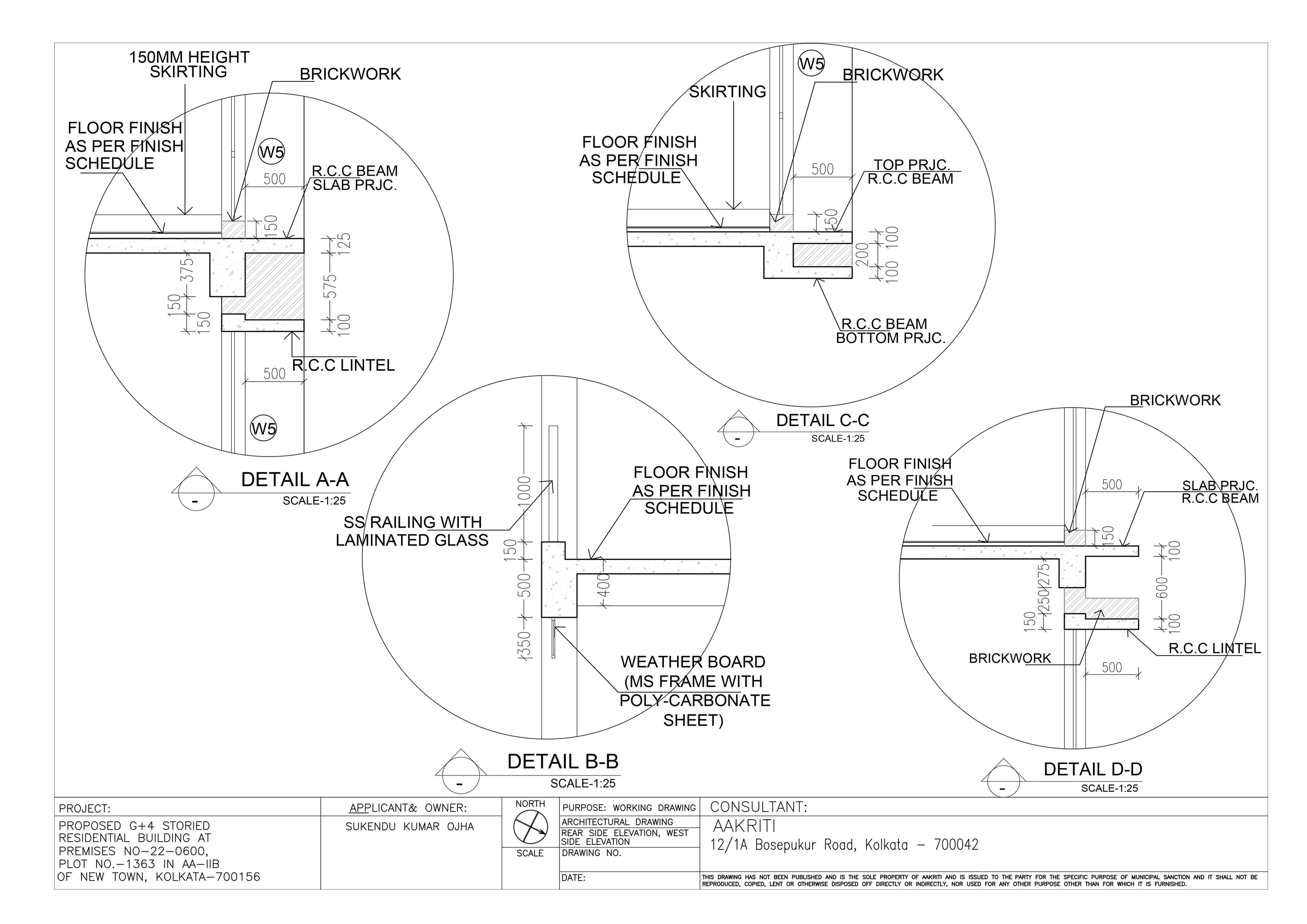
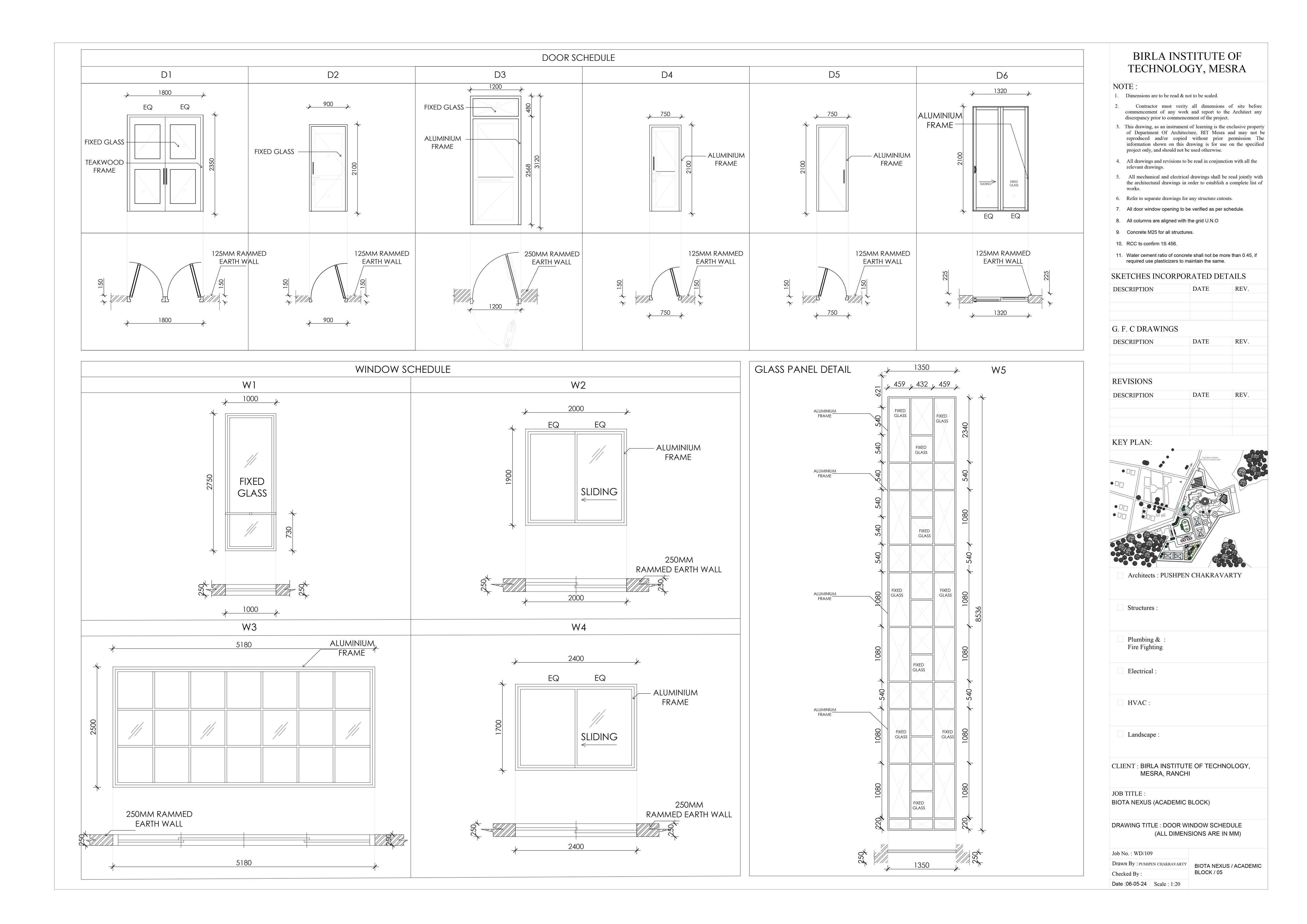
A curated collection of detailed construction drawings showcasing precision, creativity, and technical expertise. This portfolio includes floor plans, elevations, sections, and technical details, reflecting a diverse range of architectural projects from residential to commercial, demonstrating a commitment to innovative and sustainable design solutions.