Paula A. Rodriguez Architect and Dafter
Portfolio

VIEW MY WORK
ABOUT PROFESSIONAL


Five years of experience as a General Contractor, Construction Manager, and Resident Engineer, with advanced proficiency in software such as Microsoft Office, AutoCAD, Microsoft Project, SketchUp, and others. Experienced in planning, organizing, scheduling, and managing a variety of construction projects, ensuring successful execution from concept to completion.
Modeling & Rendering




3D Modeling & Rendering

Kitchen Design – Minnesota, USA, 2024
Interior Design – Minnesota, USA , 2023








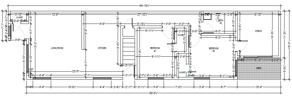
Noonan Construction- Minnesota, USA





SKILLS
• Design & Technical: AutoCAD, Revit, SketchUp, Lumion, Adobe Photoshop, Adobe Illustrator, Microsoft Project
• Project Management: Cost estimation, scheduling, budgeting, procurement, construction supervision
• Languages: Spanish (native), English (Beginer)
paulaalejarzz@gmail.com