Skip to main content

TAP AND TASTE

Page 1

Diseño de espacios gastronómicos

Arq. Aníbal Rodolico

Araque Ricardo- Balabu Patricia

bit.ly/44T39qD

proyecto tabene

Bienvenido a "TAP N' TASTE", un restaurante único en su tipo, donde la fusión entre la creatividad culinaria y la tecnología de vanguardia te sumergirá en un universo gastronómico futurista como nunca antes habías experimentado.

Concepto y Diseño: Inspirado en la evolución de la sociedad y el constante avance de la tecnología, el diseño del restaurante se destaca por una estética moderna, líneas futuristas y una iluminación ambiental cautivadora.

Automatización Culinaria: la automatización es el alma del lugar. Desde el momento en que cruzas la puerta, te sumergirás en un mundo donde las órdenes de comida se realizan a través de avanzadas terminales de autoservicio. Estos dispositivos interactivos te permiten explorar un menú diverso y emocionante, presentando una variedad de platos inspirados en distintas culturas culinarias de todo el mundo.

Sostenibilidad y Respeto al Medio Ambiente: La automatización permite optimizar los procesos y reducir el desperdicio de alimentos.

Más que un restaurante, es una experiencia de futuro. Un lugar donde la pasión por la comida y la excelencia tecnológica se unen para ofrecerte una jornada gastronómica inigualable.

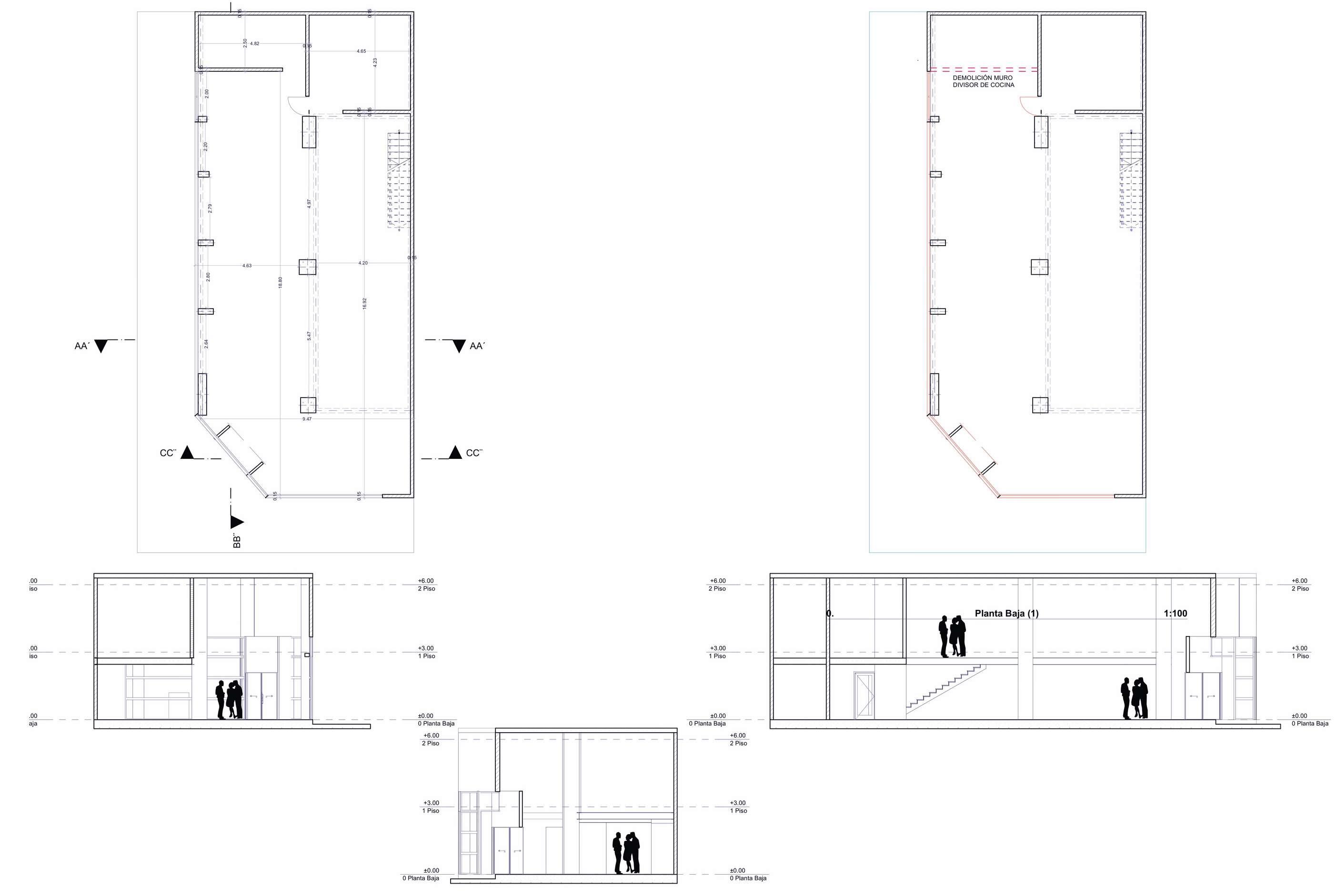
Plano inicial
relevamiento relevamiento relevamiento
PLano de demolición Diseño de Espacios Comerciales Profesor: Anibal Rodolico Alumnos: -Araque Ricardo-Balabu Patricia

planta planta planta

Diseño de Espacios Comerciales Profesor: Anibal Rodolico Alumnos: -Araque Ricardo-Balabu Patricia Esc: 1:40

plano ENTRE PISO plano ENTRE PISO plano ENTRE PISO

Diseño de Espacios Comerciales Profesor: Anibal Rodolico Alumnos: -Araque Ricardo-Balabu Patricia Esc: 1:40

plano Techos plano Techos plano Techos

Diseño de Espacios Comerciales Profesor: Anibal Rodolico Alumnos: -Araque Ricardo-Balabu Patricia Esc: 1:40

plano recorrido plano recorrido plano recorrido

Diseño de Espacios Comerciales Profesor: Anibal Rodolico Alumnos: -Araque Ricardo-Balabu Patricia Esc: 1:40

comensales comensales comensales

Diseño de Espacios Comerciales Profesor: Anibal Rodolico Alumnos: -Araque Ricardo-Balabu Patricia Esc: 1:40

cortes longitudinales cortes longitudinales cortes longitudinales

Diseño de Espacios Comerciales Profesor: Anibal Rodolico Alumnos: -Araque Ricardo-Balabu Patricia Esc: 1:40

corte transversal corte transversal corte transversal

Diseño de Espacios Comerciales Profesor: Anibal Rodolico Alumnos: -Araque Ricardo-Balabu Patricia Esc. 1:40 Diseño de Espacios Comerciales Profesor: Anibal Rodolico Alumnos: -Araque Ricardo-Balabu Patricia

SOLADO SOLADO SOLADO

Diseño de Espacios Comerciales Profesor: Anibal Rodolico Alumnos: -Araque Ricardo-Balabu Patricia

fachada fachada fachada

Diseño de Espacios Comerciales Profesor: Anibal Rodolico Alumnos: -Araque Ricardo-Balabu Patricia

cielo raso cielo raso cielo raso

Torn llos T1 autorroscantes de acero punta aguja Torn llos T2 autorroscantes de acero punta aguja Diseño de Espacios Comerciales Profesor: Anibal Rodolico Alumnos: -Araque Ricardo-Balabu Patricia

bandeja de iluminacion bandeja de iluminacion bandeja de iluminacion

PerforadaColo
BandejaPorta
Bandeja Portacables Perforada Color Negro Marca Conflex MEDIDAS: Ancho : 150mm Largo: 3 metros Ala : 50mm
Espesor: 0 70mm
Soporte grampa suspensión negro tipo G 150mm, espesor 3,2 para bandeja portacab e. Anc aje Fischer Broca Perno Hormigon Fwa 8mm X 120mm Diseño de Espacios Comerciales Profesor: Anibal Rodolico Alumnos: -Araque Ricardo-Balabu Patricia

luminarias luminarias luminarias

Lampara Colgante Triple Anillos Led 80w- Luis cálida

cuerpo: 3 anillos de 60-70-85 diametro

material: pvc y aluminio

precio aproximado: 80.000$

Diseño de Espacios Comerciales Profesor: Anibal Rodolico Alumnos: -Araque Ricardo-Balabu Patricia Diseño de Espacios Comerciales Profesor: Anibal Rodolico Alumnos: -Araque Ricardo-Balabu Patricia
mueble bebidas mueble bebidas mueble bebidas

mueble cinta mueble cinta mueble cinta

Diseño de Espacios Comerciales Profesor: Anibal Rodolico Alumnos: -Araque Ricardo-Balabu Patricia Diseño de Espacios Comerciales Profesor: Anibal Rodolico Alumnos: -Araque Ricardo-Balabu Patricia
eLECTRONICOS electronicos electronicos electronicos
Diseño de Espacios Comerciales Profesor: Anibal Rodolico Alumnos: -Araque Ricardo-Balabu Patricia Diseño de Espacios Comerciales Profesor: Anibal Rodolico Alumnos: -Araque Ricardo-Balabu Patricia

elevadores elevadores elevadores

Diseño de Espacios Comerciales Profesor: Anibal Rodolico Alumnos: -Araque Ricardo-Balabu Patricia

cabinas de retiro cabinas de retiro cabinas de retiro

Diseño de Espacios Comerciales Profesor: Anibal Rodolico Alumnos: -Araque Ricardo-Balabu Patricia

sistema de elevadores sistema de elevadores sistema de elevadores

Diseño de Espacios Comerciales Profesor: Anibal Rodolico Alumnos: -Araque Ricardo-Balabu Patricia

mueble escalera mueble escalera mueble escalera

Diseño de Espacios Comerciales Profesor: Anibal Rodolico Alumnos: -Araque Ricardo-Balabu Patricia Diseño de Espacios Comerciales Profesor: Anibal Rodolico Alumnos: -Araque Ricardo-Balabu Patricia Diseño de Espacios Comerciales Profesor: Anibal Rodolico Alumnos: -Araque Ricardo-Balabu Patricia Diseño de Espacios Comerciales Profesor: Anibal Rodolico Alumnos: -Araque Ricardo-Balabu Patricia Diseño de Espacios Comerciales Profesor: Anibal Rodolico Alumnos: -Araque Ricardo-Balabu Patricia Diseño de Espacios Comerciales Profesor: Anibal Rodolico Alumnos: -Araque Ricardo-Balabu Patricia Diseño de Espacios Comerciales Profesor: Anibal Rodolico Alumnos: -Araque Ricardo-Balabu Patricia Diseño de Espacios Comerciales Profesor: Anibal Rodolico Alumnos: -Araque Ricardo-Balabu Patricia Diseño de Espacios Comerciales Profesor: Anibal Rodolico Alumnos: -Araque Ricardo-Balabu Patricia Diseño de Espacios Comerciales Profesor: Anibal Rodolico Alumnos: -Araque Ricardo-Balabu Patricia Diseño de Espacios Comerciales Profesor: Anibal Rodolico Alumnos: -Araque Ricardo-Balabu Patricia

bit.ly/3YhXtUG

Diseño de Espacios Comerciales Profesor: Anibal Rodolico Alumnos: -Araque Ricardo-Balabu Patricia

Turn static files into dynamic content formats.

Create a flipbook