Professional training portfolio

Page 1

INTERNSHIP PORTFOLIO PARIKSHITH G CHOUHAN
01FB16AAR019

2PKM, is a family of young enthusiastic architects with novel creative path, yet having deeproots. The firm is highly noted for its innovative methods of building construction.

The journey in this firm has exposed me to the various phases of architectural practice. It provided an opportunity to explore and understand the practical world outside through the process of unlearning and learning. As an intern, it helped me develop an attitude of discipline, and having an eye towards proportions, scale and the smallest of the details that matter most.

I am thankful for giving me the opportunity to train as an intern at this firm. I have gained valuable insight into the field of architecture over the past six months. Because they gave me the opportunity to work on a variety of projects, I had the chance to observe numerous aspects of design, from ideas to execution.

ROUTINE ABOUT 2PKM ARCHITECTS

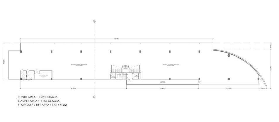
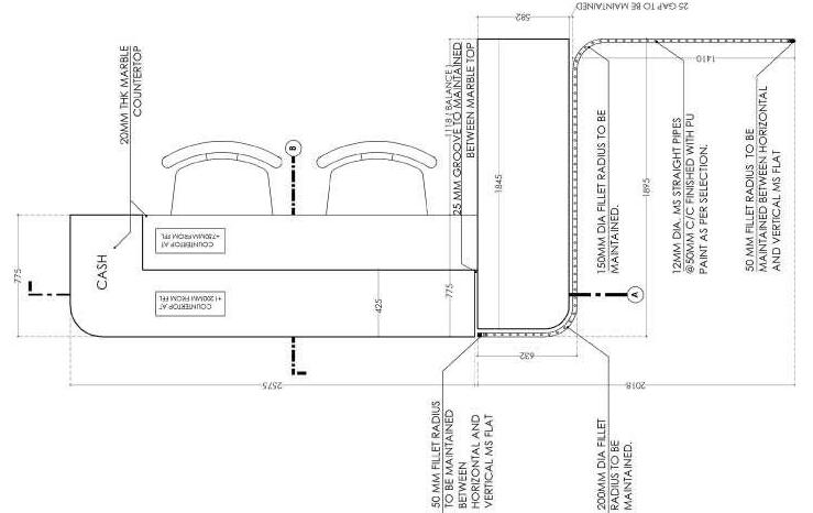
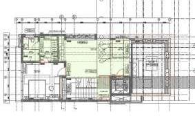
DAZZLES RETAIL | BENGALURU

Working drawings

WELLNESS CENTRE | NILLESHWARAM

Pollution control board drawing

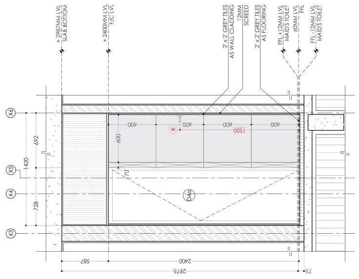
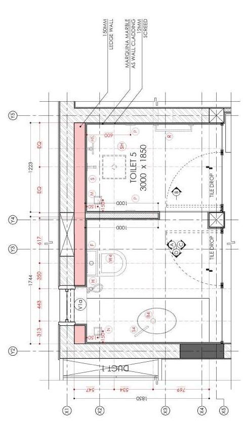
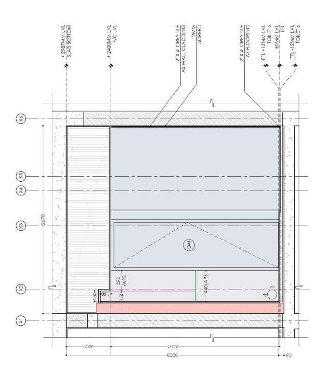
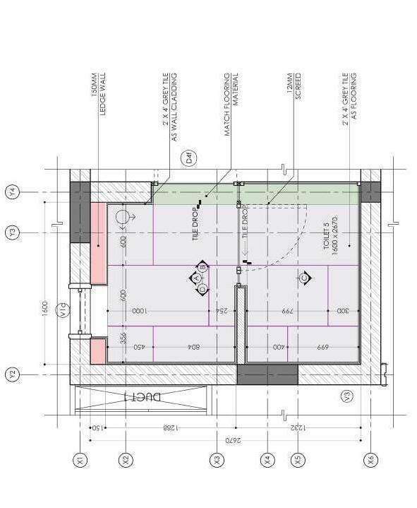
RAKESH RESIDENCE | BENGALURU

Wardrobe details and toilet drawings

SANJAY COMMERCIAL | MYSURU

Sanction drawing

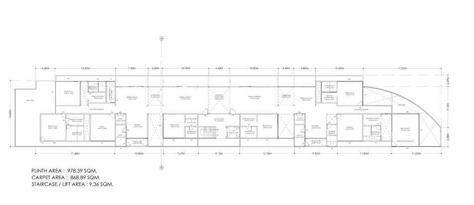
DILIP NAHAR RESIDENCE | BENGALURU

Preliminary drawings

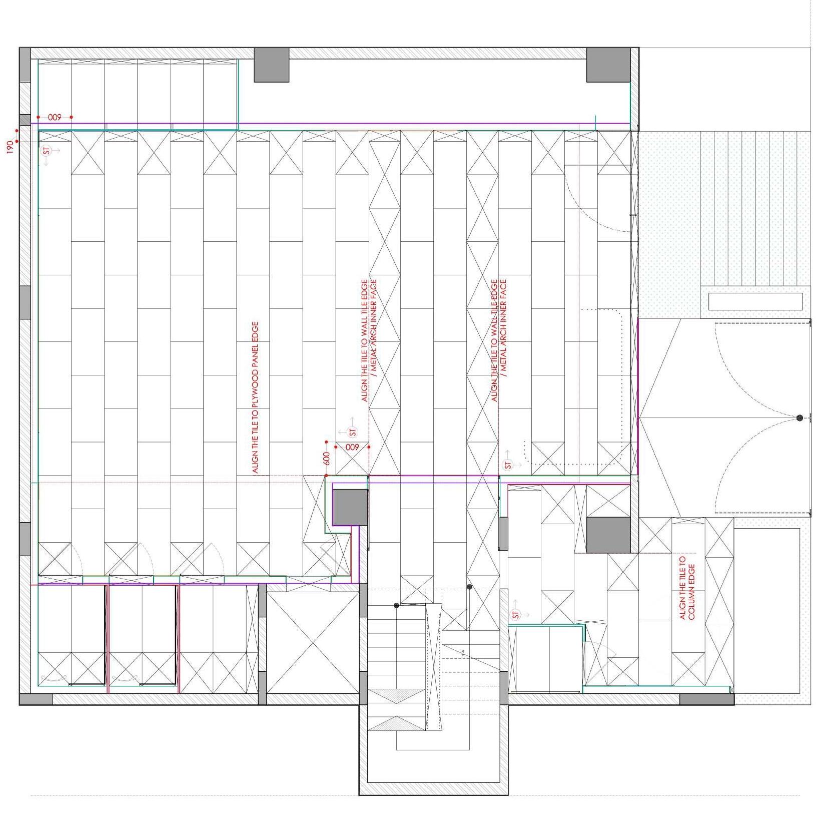
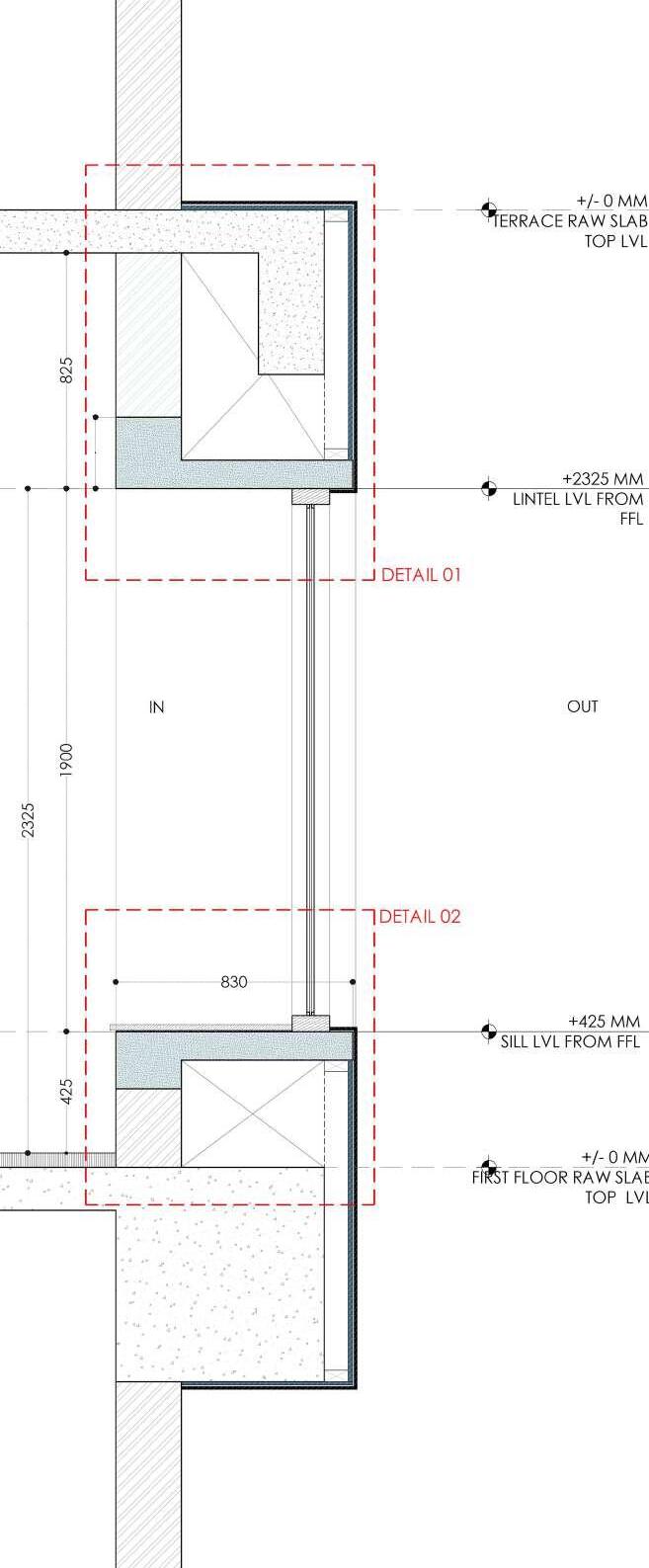
SINGAVI RESIDENCE INTERIORS | MYSURU

Working drawings and window design

IVORY EDGE RETAIL | BENGALURU

Minutes of meeting

CONTENTS
SITE VISITS PRESENTATIONS MISCELLANEOUS 01 10 02 03
08 09
04 05 06 07

DAZZLES RETAIL | BENGALURU

Wall elevation drawings

Tile flooring drawings

Shutter detail drawings

Interior fabrication drawings

01
10
15

WELLNESS CENTRE | NILLESHWARAM

02
Pollution control board drawing

RAKESH RESIDENCE | BENGALURU

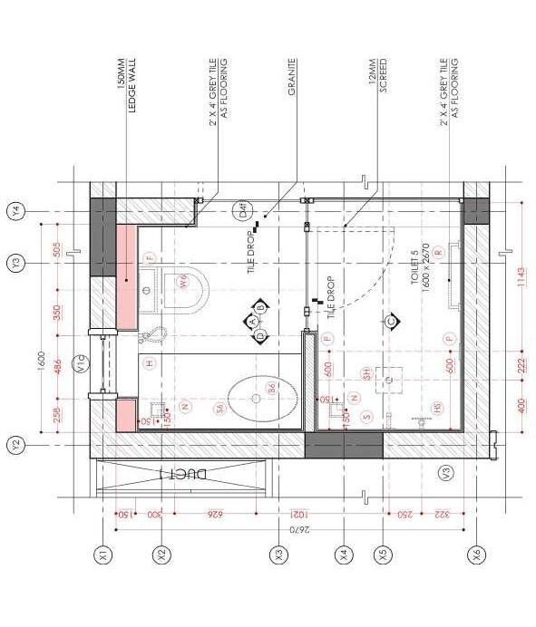
Toilet detail drawings

Wardrobe detail drawings

03
19
20
21
SANJAY COMMERCIAL | MYSURU 04
Sanction drawing

Working drawings

05
DILIP NAHAR RESIDENCE | BENGALURU

SINGAVI RESIDENCE INTERIORS | MYSURU

Lintel detail drawings

Terrace pergola detail drawings

Presentation drawings

Preliminary drawings

06
37 2 P K M A R C H I T E C T S 2/W, INDUSTRIAL ESTATE, YADAVAGIRI, MYSORE-570020 KARNATAKA, INDIA designmys @2pkm.com +91 8214193574 designmys@outlook.com PARIKSHITH G CHOUHAN 01FB16AAR019 INSTITUTION SIGN & SEAL FIRM SIGN & SEAL PRESENTATION DRAWING
38 2 P K M A R C H I T E C T S 2/W, INDUSTRIAL ESTATE, YADAVAGIRI, MYSORE-570020 KARNATAKA, INDIA designmys @2pkm.com +91 8214193574 designmys@outlook.com PARIKSHITH G CHOUHAN 01FB16AAR019 INSTITUTION SIGN & SEAL FIRM SIGN & SEAL PRESENTATION DRAWING
39 2 P K M A R C H I T E C T S 2/W, INDUSTRIAL ESTATE, YADAVAGIRI, MYSORE-570020 KARNATAKA, INDIA designmys @2pkm.com +91 8214193574 designmys@outlook.com PARIKSHITH G CHOUHAN 01FB16AAR019 INSTITUTION SIGN & SEAL FIRM SIGN & SEAL
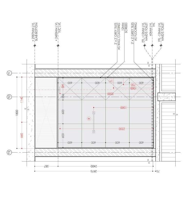
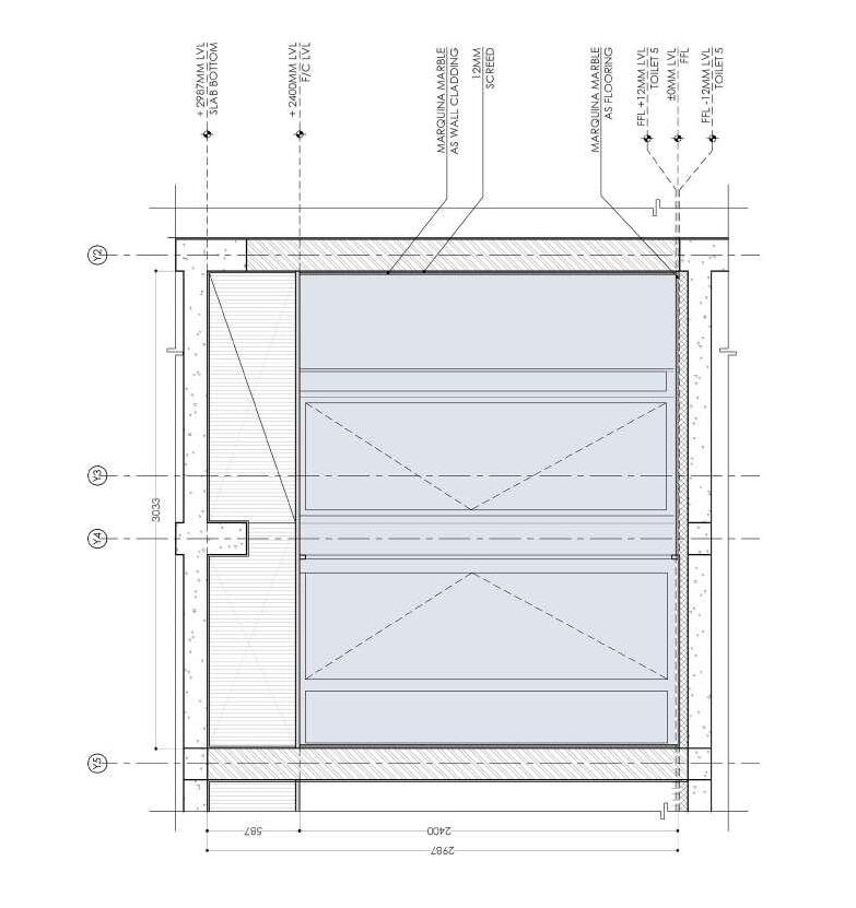
Parent’s bedroom toilet design and tiling
PRESENTATION DRAWING
son’s bedroom toilet design and tiling
40 2 P K M A R C H I T E C T S 2/W, INDUSTRIAL ESTATE, YADAVAGIRI, MYSORE-570020 KARNATAKA, INDIA designmys @2pkm.com +91 8214193574 designmys@outlook.com PARIKSHITH G CHOUHAN 01FB16AAR019 INSTITUTION SIGN & SEAL FIRM SIGN & SEAL
Powder room toilet design and tiling
PRESENTATION DRAWING
Guest’s bedroom toilet design and tiling
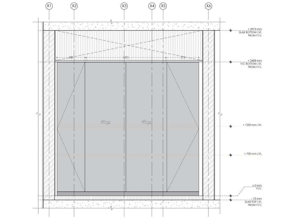
43 2 P K M A R C H I T E C T S 2/W, INDUSTRIAL ESTATE, YADAVAGIRI, MYSORE-570020 KARNATAKA, INDIA designmys @2pkm.com +91 8214193574 designmys@outlook.com PARIKSHITH G CHOUHAN 01FB16AAR019 INSTITUTION SIGN & SEAL FIRM SIGN & SEAL WINDOW GRILLS AND PERFORATION PATTERN WINDOW MECHANISM WINDOW SECTION MEZZANINE PLAN
BY
AUTODESK STUDENT VERSION PRODUCED BY AN AUTODESK STUDENT VERSION
PRODUCED
AN
STUDENT VERSION WINDOW GRILLS AND PERFORATION PATTERN WINDOW MECHANISM WINDOW SECTION MEZZANINE PLAN PRODUCED BY AN AUTODESK STUDENT VERSION PRODUCED BY AN AUTODESK STUDENT VERSION
PRODUCED BY AN AUTODESK
WINDOW
seating Rendered view Bay window Staircase
DRAWING
PRODUCED BY AN AUTODESK STUDENT VERSION SELECTED
Design section through Mezzanine floor
PRELIMINARY

IVORY EDGE RETAIL | BENGALURU

07
Minutes of meeting

SITE VISITS

Bharath residence mysore

Singavi interiors mysore

Sanjay residence mysore

08

BHARATH RESIDENCE MYSORE

SITE REPORT

SITE VISIT WITH ARCHITECT AND SITE ENGINEER

Fabrication and welding of M.S Box sections are completed

Floor scarified to expose plith beam for further tile laying.

Tiles are cladded with spacer joint in between them and stone pegs are used to elivate tile from rough wall and mortar to be poured

Gap between the glass member of clerestory is conceled with stainless metal T-profile with sealant.

M.S Box section frame work is provided to hold decking sheet for future proposal of Gazebo.

Skew in the room size was observed and remeasured for future drawing corrections.

47 2 P K M A R C H I T E C T S 2/W, INDUSTRIAL ESTATE, YADAVAGIRI, MYSORE-570020 KARNATAKA, INDIA designmys @2pkm.com +91 8214193574 designmys@outlook.com PARIKSHITH G CHOUHAN 01FB16AAR019 INSTITUTION SIGN & SEAL FIRM SIGN & SEAL

SINGAVI INTERIORS MYSORE

SITE REPORT

SITE VISIT WITH ARCHITECT AND SITE ENGINEER

Electrical line routing was done after chipping out the wall masonary

Previously proposed opening were closed with fish net mesh layer with cement plastering

Shuttering support for slab extension are provided with wooden scoffoling members.

Demolition of the lintel beam for bay window extension with reinforced rods connecting to existing structural slab.

Roller shutter above the mezzanine floor opening to be prvided with chajja extensions by ferro cement structure.

Temporary jack supports were provided above demolished lintel beam.

48 2 P K M A R C H I T E C T S 2/W, INDUSTRIAL ESTATE, YADAVAGIRI, MYSORE-570020 KARNATAKA, INDIA designmys @2pkm.com +91 8214193574 designmys@outlook.com
INSTITUTION SIGN & SEAL FIRM SIGN & SEAL
PARIKSHITH G CHOUHAN 01FB16AAR019

SANJAY RESIDENCE MYSORE

SITE REPORT

SITE VISIT WITH ARCHITECT

Metal fabrication for external fascade security was provided with welding of members together.

A Gym room was setup on top floor with using concrete blocks and cement plastering was going on.

All cables were taken out which included AC, electrical and network.

Discussion with carpenter on fixing of recessed skirting with venner door on top and hinge mechanism of the wardrobe door.

Double bullnose thread resting on metal plate were covered against the on site disaster.

49 2 P K M A R C H I T E C T S 2/W, INDUSTRIAL ESTATE, YADAVAGIRI, MYSORE-570020 KARNATAKA, INDIA designmys @2pkm.com +91 8214193574 designmys@outlook.com PARIKSHITH G CHOUHAN 01FB16AAR019 INSTITUTION SIGN & SEAL FIRM SIGN & SEAL

PRESENTATIONS

Merusri urban development project

Shambhav flat interiors

Manish Kotari residence

Sanjay residence mysore

09
51 2 P K M A R C H I T E C T S 2/W, INDUSTRIAL ESTATE, YADAVAGIRI, MYSORE-570020 KARNATAKA, INDIA designmys @2pkm.com +91 8214193574 designmys@outlook.com PARIKSHITH G CHOUHAN 01FB16AAR019 INSTITUTION SIGN & SEAL FIRM SIGN & SEAL
PRESENTATION DRAWING
MERUSRI URBAN DEVELOPMENT PROJECT
52 2 P K M A R C H I T E C T S 2/W, INDUSTRIAL ESTATE, YADAVAGIRI, MYSORE-570020 KARNATAKA, INDIA designmys @2pkm.com +91 8214193574 designmys@outlook.com PARIKSHITH G CHOUHAN 01FB16AAR019 INSTITUTION SIGN & SEAL FIRM SIGN & SEAL
PRESENTATION DRAWING
MERUSRI URBAN DEVELOPMENT PROJECT

MERUSRI URBAN DEVELOPMENT PROJECT

54 2 P K M A R C H I T E C T S 2/W, INDUSTRIAL ESTATE, YADAVAGIRI, MYSORE-570020 KARNATAKA, INDIA designmys @2pkm.com +91 8214193574 designmys@outlook.com PARIKSHITH G CHOUHAN 01FB16AAR019 INSTITUTION SIGN & SEAL FIRM SIGN & SEAL
PRESENTATION DRAWING
section through 12 meter main road

street section through the clubhouse

55 2 P K M A R C H I T E C T S 2/W, INDUSTRIAL ESTATE, YADAVAGIRI, MYSORE-570020 KARNATAKA, INDIA designmys @2pkm.com +91 8214193574 designmys@outlook.com PARIKSHITH G CHOUHAN 01FB16AAR019 INSTITUTION SIGN & SEAL FIRM SIGN & SEAL
MERUSRI URBAN DEVELOPMENT PROJECT
PRESENTATION DRAWING

SHAMBHAV FLAT INTERIORS

furniture selection and planning

57 2 P K M A R C H I T E C T S 2/W, INDUSTRIAL ESTATE, YADAVAGIRI, MYSORE-570020 KARNATAKA, INDIA designmys @2pkm.com +91 8214193574 designmys@outlook.com PARIKSHITH G CHOUHAN 01FB16AAR019 INSTITUTION SIGN & SEAL FIRM SIGN & SEAL
PRESENTATION DRAWING

SHAMBHAV FLAT INTERIORS

furniture selection and planning

58 2 P K M A R C H I T E C T S 2/W, INDUSTRIAL ESTATE, YADAVAGIRI, MYSORE-570020 KARNATAKA, INDIA designmys @2pkm.com +91 8214193574 designmys@outlook.com PARIKSHITH G CHOUHAN 01FB16AAR019 INSTITUTION SIGN & SEAL FIRM SIGN & SEAL
PRESENTATION DRAWING

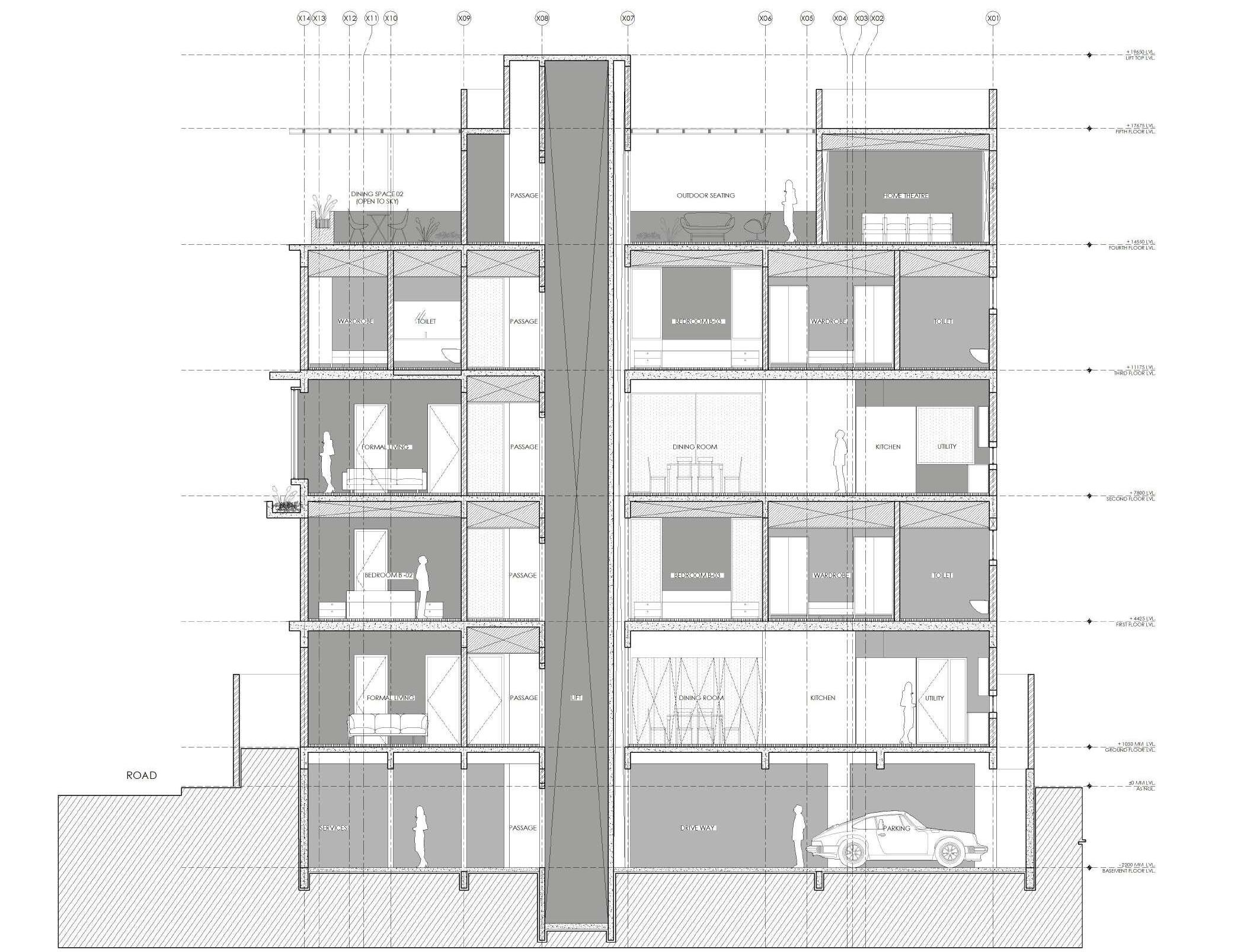
Preliminary section through the residence

59 2 P K M A R C H I T E C T S 2/W, INDUSTRIAL ESTATE, YADAVAGIRI, MYSORE-570020 KARNATAKA, INDIA designmys @2pkm.com +91 8214193574 designmys@outlook.com PARIKSHITH G CHOUHAN 01FB16AAR019 INSTITUTION SIGN & SEAL FIRM SIGN & SEAL
MANISH KOTHARI RESIDENCE
PRELIMINARY DRAWING
DAILY SKETCHES

Turn static files into dynamic content formats.

Create a flipbook
Issuu converts static files into: digital portfolios, online yearbooks, online catalogs, digital photo albums and more. Sign up and create your flipbook.