












Shipping container architecture is a modern sustainable way of adaptively re-purposing cargo shipping containers. It has increasingly used for contemporary designs of cafes, hotels and offices in the recent past and is a trend that is lauded for its sustainable, prefabricated and weath er-tight form and economic assembly.
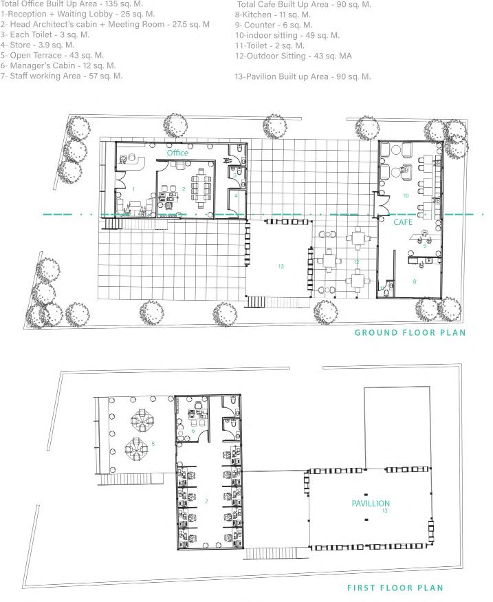
Pixels have been used as the concept of this design. The idea of pixels gave us the flexibility to play with the arrangement of the containers of size 20 X 8 ft. which helped us to bring out a colourful and vibrant design which breaks the conventional model for small office spaces. The studio has been provided with the versatile areas which can be used in different ways. The aesthetic interiors and the pleasant view through the windows create a lively atmosphere in the studio. The designer’s desk faces the window giving them a beautiful view and creating a peaceful ambience which would help them think and develop their design. The atmosphere of cafe is also playful and lively. A modu lar pavilion is given in whichh modular pixel boxes can be used as seating while music events, seminars, workshops or talk shows take place. The studio cafe and pavilion are connected by a courtyard.