A Place to Call Home: Hotel Tioga, a case study

Page 1


A PLACE TO CALL HOME

THE TIOGA

Merced, California

The Tioga, built in 1928 as the Hotel Tioga, was rehabilitated and reimagined as a 70-unit apartment building, reinvigorating downtown Merced.

Listed in the National Register of Historic Places, the Tioga is the tallest building in Merced and has hosted many luminaries, including Marilyn Monroe. The rehabilitation, completed in 2020, created market-rate residences for working professionals and UC Merced students. Page & Turnbull reimagined about 100 existing hotel rooms into studio, one-, and two-bedroom units with 20 units adaptable for persons with disabilities.

Project Highlights:

• Mix of studio, one- and two- bedroom units, with in-unit washer/dryers, operable windows, and self-regulated heat and air conditioning

• 20 units are adaptable for persons with disabilities

• Restoration of Grand Lobby into communal space

• Use of California State Historic Building Code

• Retention of character-defining features, including originally hallways and stairs, decorative elements, and details on the interior and exterior

• Inclusion of first floor retail

• Incorporation of resident amenities, such as a tenant lounge and fitness center

• Full replacement of MEP systems

• Re-creation of the original roof sign using eco-friendly LED lighting

The Tioga Hotel is significant not only for its architectural merit but for its social and cultural history. Dignitaries from all over the world would stop in Merced and stay at the Hotel Tioga before continuing their journey to Yosemite.

In its prime, the Hotel Tioga was the jewel of Downtown Merced. The Tioga has long been a symbol of Merced; a prominent feature in the city’s skyline and civic life. The Tioga has been intertwined with the history of Merced, and many residents offer fond memories of time spent in the lobby, dining hall, stores, and coffee shop.

However, at the onset of the project, the once-proud building had fallen into a state of disrepair.

A primary design consideration was restoring the ground floor and mezzanine level to their original understated elegance and openness. The Lobby had been subdivided into five spaces in the 1980s. Page & Turnbull’s design called for removing the inappropriate alterations and reintegrating the Lobby as a place where the residents and the community have opportunities to connect. Special attention was given to restoring unique elements, like the wallpaper on the ceiling beams.

THE LOBBY After the rehabilitation

Historic photo of the original lobby, late 1920s

Before the rehabilitation, view toward the mezzanine

Before the rehabilitation, view toward the main entry

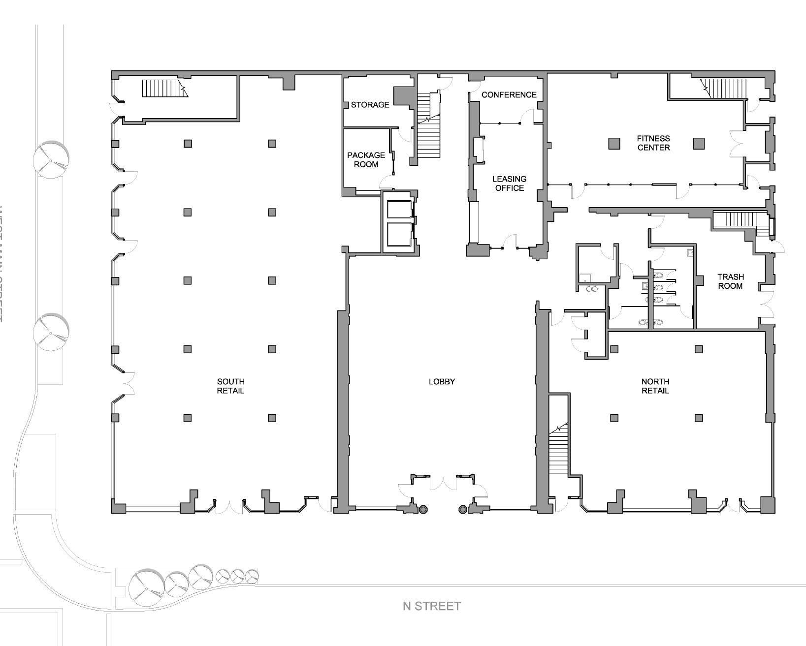
THE GROUND FLOOR recaptures the feel and intent of the original lobby while incorporating two retail spaces on N Street, one of Merced’s historic retail corridors.

TYPICAL FLOOR PLAN indicates a mix of unit types including 1 studio, 13 one-bedroom and 3 two-bedroom units. The public hallway is the same circulation path as the original, a requirement for the Tioga to obtain tax credits.

Home, Sweet Home

MAXIMIZING SPACE, UTILITY & VIEWS Studio apartments range from 260 SF to 375 SF, one-bedroom units from 405 SF to 580 SF and two-bedroom units from 465 SF to 725 SF. The outer ring of units provides views across Merced.

Built for the Future

The Secretary of the Interior’s Standards were applied to the rehabilitation of the Tioga and were enforced at the State and Federal levels as part of the Rehabilitation Tax Credit review process.

EXTERIOR All facades were restored, including replacement of existing windows with energy-efficient windows of the same style. The signature neon sign at the top of the building had long been missing and was recreated using LED lighting. Building systems—some original to the building—were replaced

INTERIOR Restoration of the historic lobby; design of 70 contemporary apartments while maintaining the historic hallways; seismic upgrade to correct a soft story condition; new leasing office and workout room; and new mechanical, electrical, and plumbing systems.

SUSTAINABILITY All plumbing fixtures are low-flow to conserve water. The air conditioning system is designed to maximize efficiency by sending refrigerant only to units that need cooling. Originally, the Tioga had no insulation at the exterior. The project team specified R-19 batt insulation at the exterior walls to help conserve energy. Similarly, insulation was added at the roof where there had been none before. New windows are dual glazed for energy efficiency and are operable for fresh air.

The Good Life

The project reinforces the commitment of the City of Merced and the developer to imaginatively reuse historic resources to play a role once again in the life of Merced. This historic building now meets contemporary and future needs as UC Merced continues to grow. Projects like the Tioga are common in large urban areas, but this rehabilitation serves as a model for projects in California’s medium-sized cities. As housing becomes an increasingly critical issue throughout the state, creatively repurposing historic buildings helps to retain a location’s history while addressing future needs.

955 POST, SAN FRANCISCO An 8-story, 73,400 s.f. mixed-use residential and commercial building

VETERANS VILLAGE, COLMA

Firm Profile

imagines change in historic and contemporary environments to cultivate thriving, sustainable, and resilient communities. We understand the past, respect our clients and their stakeholders, and revitalize historic buildings and places to benefit current and future users.

For 50 years, Page & Turnbull has led architecture, preservation, and planning projects for civic, cultural, educational, and commercial clients. Our work has impacted some of California’s most significant buildings; and, more importantly, our projects have made a difference in people’s lives. Page & Turnbull’s staff of architects, architectural historians, cultural resource planners, and materials specialists believe that preservation and adaptive reuse are about valuing a community’s stories and envisioning a better future.

One Firm, Three Studios

ARCHITECTURE + DESIGN As prime architect, architect of record, and design architect, we collaborate with clients and specialty consultants to design buildings, places, and spaces that are simultaneously contemporary and contextual.

HISTORIC ARCHITECTURE Our historic architecture team is comprised of architects, designers, and materials specialists who are experts at investigating and analyzing materials, securing entitlements, and designing for the adaptive reuse of historic buildings and places for the way we live today...and into the future.

CULTURAL RESOURCE PLANNING Architectural historians and cultural resources planners evaluate and analyze historic resources to assess their historic integrity. The studio authors a wide range of award-winning reports, develops and implements mitigation measures, and completes National Register and California Register documentation.

LEGAL NAME OF FIRM Page & Turnbull, Inc.

OFFICES

Los Angeles San Jose San Francisco Washington, DC Sacramento

HEADQUARTERS

170 Maiden Lane, 5th Floor

San Francisco, CA 94108

SIZE

50 full-time employees

ESTABLISHED / INCORPORATED

1973 / 1975

PRIMARY EXPERTISE

Architecture

Historic Preservation

Existing Buildings

Tax Credit Certification

Cultural Resources Planning & Research

Historic Documentation

Preservation Technology

Materials Conservation

Urban Planning

M/W/SBE CERTIFICATIONS

State of California Small Business Enterprise (SBE)

State of California Women-Owned Business Enterprise (WBE)

Self-Certified Federal Small Business

SAN FRANCISCO 415-362-5154

LOS ANGELES 213-221-1200

SACRAMENTO 916-662-8532

SAN JOSE 415-593-3226

WASHINGTON, DC 703-459-9528

www page-turnbull.com @pageturnbull pageturnbull

The Ferry Building

Select Awards

FIRM AWARDS

Fast Company Most Innovative Architecture Firm

Page & Turnbull was recognized as one of the most innovative architecture firms in recognition of performing equitable historic preservation.

William G. Ralston Award

In 2012, Page & Turnbull was awarded the William G. Ralston Award from the San Francisco Museum & Historical Society in recognition of decades of committed and talented architectural work towards preservation of the San Francisco Bay Area’s historical and architectural fabric

SELECT PROJECT AWARDS

St. Clare at Capitol Park, Sacramento AIA/CA Residential Design Award

Sacramento Housing Alliance Affordable Housing Development of the Year

Sacramento Business Journal Best Real Estate Project (Supportive Housing)

Engineering News Record Best Renovation/Restoration

Tioga, Merced

California Preservation Foundation Design Award

Chicago Athenaeum American Architecture Award

Society of American Registered Architects National Design Award

The Cheech Center for Chicano Art & Culture, Riverside

Urban Land Institute Top Ten Public Private Partnerships

Docomomo US Citation of Merit

Riverside Chamber of Commerce, Riverside Hero Award

The Chicago Athenaeum American Architecture Awards Honorable Mention

Washington View Apartments, Los Angeles

California Preservation Foundation Design Award

UCLA Pritzker Hall

AIA National Architecture Award

AIA LA Merit Award

LA Business Council Architecture Award

Santa Barbara African American and Black Historic Context Statement

California Preservation Foundation Cultural Resources Award

APA Central Coast Paul Davidoff Award for Advancing Diversity and Social Change

Old Orange County Courthouse, Santa Ana

California Preservation Foundation Design Award

Governor of California Historic Preservation Award

Neptune Pool, Hearst Castle, San Simeon State Park

Institute of Classical Architecture & Art, Julia Morgan Award

Annennberg Community Beach

House & Pool, Santa Monica

California Preservation Foundation Design Award

Sacramento Historic District Plans

California Preservation Foundation Design Awards

Livermore Railroad Depot, Livermore

California Preservation Foundation Design Awards

Governor’s Historic Preservation Award, Office of Historic Preservation, California State Parks

The Greek Theatre, Los Angeles

California Preservation Foundation Design Awards

Los Angeles Business Council

Architectural Awards, Renovation Category

St. Joseph’s Church, San Francisco

California Preservation Foundation Design Awards

Sacramento Valley Station

Engineering News-Record California Best Renovation/Restoration Project

AIA Central Valley Merit Award

Governor’s Historic Preservation Award

California Preservation Foundation Design Award

Carson Block, Eureka California Preservation Foundation Design Award

Governor’s Historic Preservation Award, Office of Historic Preservation, California State Parks

888 Brannan, San Francisco

San Francisco Business Times Bay Area

Real Estate Deals of the Year Award

140 New Montgomery, San Francisco

AIA San Francisco, Merit Award for Historic Preservation

Governor’s Historic Preservation Award, Office of Historic Preservation, California State Parks

California Preservation Foundation, Preservation Design Award for Rehabilitation

Engineering News-Record California Best Renovation/Restoration Project

San Francisco Business Times Real Estate Deals of the Year Best Rehabilitation/Renovation

Antelope Valley Indian Museum, Lancaster

American Association of State and Local History (AASLH) Leadership in History Award for Structural and Environmental Controls Improvement

California Preservation Foundation Preservation Design Award Preservation Award, Los Angeles Conservancy

Berkeley Art Museum & Pacific Film Archive, Berkeley

San Francisco Business Times Bay Area Real Estate Deals of the Year Award

Downtown Napa Historic Context Statement & Survey, Napa Napa County Landmarks Award of Merit in Cultural Resource Studies

Exploratorium at Pier 15, San Francisco

AIA Committee on the Environment (COTE) Top Ten Project Award

AIA San Francisco, Sustainability Commendation

AIA San Francisco, Honor Award for Energy & Sustainability

Building Design+Construction Reconstruction Awards, Gold Award

California Preservation Foundation, Preservation Design Award for Rehabilitation

San Francisco Business Times Real Estate Deals of the Year Best Rehabilitation/Renovation

Engineering News-Record California Best Green Project

Federal Building at 50 United Nations Plaza, San Francisco

AIA San Francisco, Merit Award for Historic Preservation

California Preservation Foundation, Preservation Design Award for Rehabilitation

GSA Federal Building Challenge Award

Hallidie Building, San Francisco

Governor’s Historic Preservation Award, Office of Historic Preservation, California State Parks

California Preservation Foundation, Preservation Design Award for Restoration

AIA San Francisco, Merit Award for Historic Preservation

Engineering News-Record California Best Renovation/Restoration Project

Building Design+Construction Reconstruction Awards, Platinum Award

Glendale Masonic Temple, Los Angeles

Structural Engineers Association of Southern California (SEAOSC) Excellence in Structural Engineering Award

Los Angeles Business Journal

Commercial Real Estate Bronze Award

Heritage Napa Surveys and Historic Context Statements Award of Merit, Napa County Landmark

Hoover Pavilion, Stanford University

SCUP/AIA-CAE Excellence in Architecture for Rehabilitation, Restoration or Preservation, Honorable Mention

San Jose Business Journal, Silicon Valley Real Estate, Structures Award for Best Reuse/Rehabilitation

Palo Alto Stanford Heritage (PAST) Preservation Award

Market Square, San Francisco

San Francisco Business Times Real Estate Deals of the Year Best Rehabilitation/Renovation

Martial Cottle Park, San Jose California Park & Recreation Society Award of Excellence

Placer County Contractors Association Public Works Project of Year

Monadnock Building, San Francisco

San Francisco Business Times Real Estate Deals of the Year Top Office Sale

Palega Recreation Center, San Francisco

AIA San Francisco, Honor Award

San Francisco Conservatory of Music, San Francisco

AIA San Francisco, Merit Award for Historic Preservation and Innovation in Rehabilitation

Sather Gate and Tower

Rehabilitation, University of California, Berkeley

California Preservation Foundation, Preservation Design Award

State of California Governor’s Historic Preservation Award

Multi-family Residential

St. Clare at Capitol Park, Sacramento, CA

55 Laguna Avenue, San Francisco, CA

The Landmark at the Presidio, San Francisco, CA (formerly Public Health Services Hospital)

1645 Pacific Avenue, San Francisco, CA

955 Post, San Francisco, CA

The Tioga, Merced, CA

Veterans Village, Colma, CA

Washington View Apartments, Los Angeles, CA

The Webb Schools Dormatories, Claremont, CA

Wysteria Residences, San Francisco, CA

Wyman Avenue Residences, San Francisco, CA

Financial Incentives

20% REHABILITATION TAX CREDIT

Carson Block Building, Eureka, CA

The Exploratorium at Pier 15, San Francisco, CA

The Fairmont Hotel, San Francisco, CA

The Ferry Building, San Francisco, CA

Hotel Montgomery, San Jose, CA

418-424 Jessie Street, San Francisco, CA

One Kearny Street, San Francisco, CA

The Landmark at the Presidio, San Francisco, CA (formerly Public Health Services Hospital)

Mainzer Theater, Merced, CA

Pacific Gas & Electric Headquarters, San Francisco, CA

Pier One, San Francisco, CA

Pier 1 ½, 3 and 5, San Francisco, CA

The Tioga, Merced, CA

St. Joseph’s Church, San Francisco, CA

1000 Van Ness Avenue (Don Lee Cadillac), San Francisco, CA

MILLS ACT

Chronicle Building (690 Market Street), San Francisco, CA

The Fleet House, South Pasadena, CA

Glendale Masonic Temple, Glendale, CA

Harney Residence Mills Act, Diablo, CA

1019 Market Street, San Francisco, CA

87 & 95 North Raymond, Pasadena, CA

The Strand Theater, San Francisco, CA

Turn static files into dynamic content formats.

Create a flipbook
Issuu converts static files into: digital portfolios, online yearbooks, online catalogs, digital photo albums and more. Sign up and create your flipbook.