

01A DESERT SETTLEMENTS
SUBTERRANEAN CURRENTS
AA-EMTECH | 2025
LOCATION: Sahara Desert, Egypt
DOMAIN:
KEYWORDS:
Urban Planning, Computational Architecture, Data Analysis, Material Systems
Water Infrastructure, Subterranean Architecture, Regenerative Ecological Systems
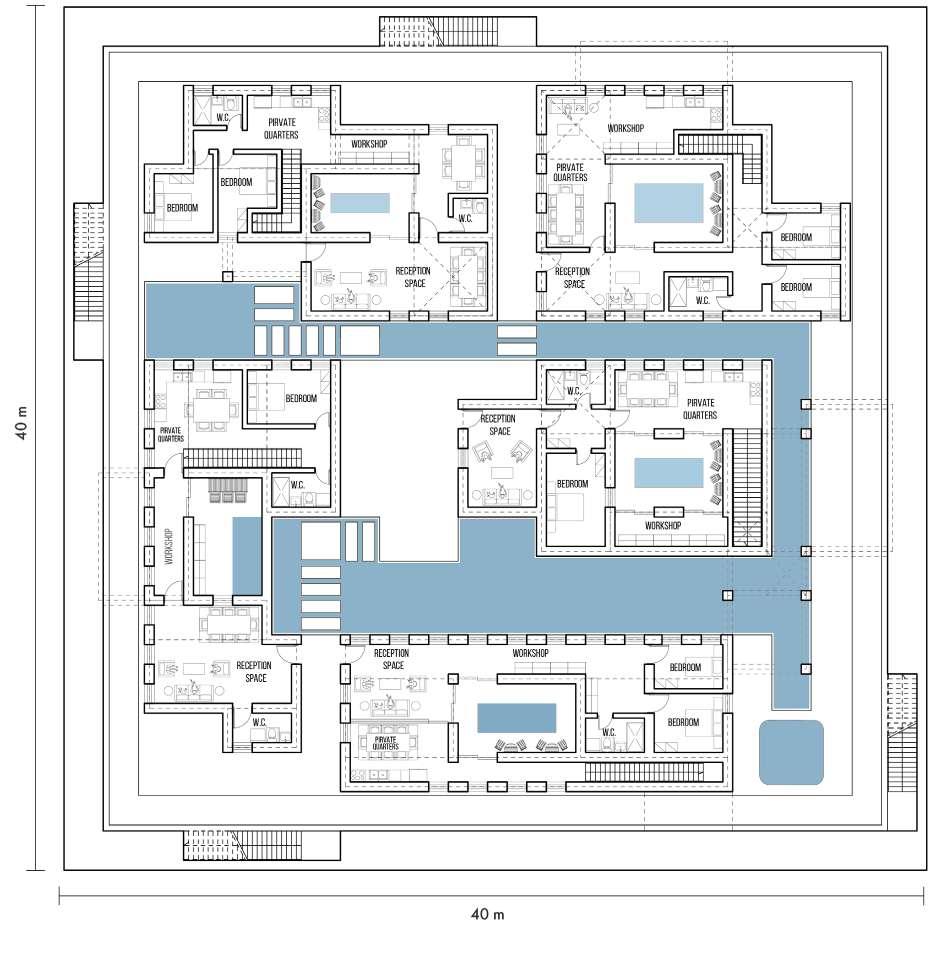
Subterranean Currents [Phase I] tackles the challenge of sustainably inhabiting arid frontiers through a case study in Egypt’s Bahariya Oasis. The project proposes a prototypical subterranean settlement sustained by a circular water network that combines extraction from the Nubian Sandstone Aquifer with atmospheric condensation systems.
These hydrological flows are computationally calibrated and embedded into the urban fabric through generative modelling, producing four interdependent typologies: housing clusters, communal cisterns, agricultural plots and condensation farms. Each typology is iterated through environmental simulation and informed by custom material systems and socio-economic parameters
Together, they form an integrated urban model that manages resource scarcity while supporting ecological regeneration—an adaptive, data-driven landscape organised through calibrated environmental and spatial metrics, with the long-term ambition of gradually conditioning (and effectively “terraforming”) the region.

AGRICULTURALPLOTS
HOUSINGCLUSTERS
COMMUNALCISTERNS






Cellular Automation Urban Masterplan

Privacy Gradients With Visibility Metrics







Radiance Simulation With Ladybug


Ventilation Metrics Using Vector Occlusions

Visibility Metrics Using Vector Occlusions











Communal Cistern Parametric Model
Formwork of Adaptive Interlocking Blocks
01B ALGEBRAIC SYNTHESIS
SUBTERRANEAN CURRENTS
AA-EMTECH | 2026
LOCATION: Sahara Desert, Egypt
DOMAIN:
KEYWORDS:
Computational Urban Systems, Custom Algorithms, Network Science
Urban Planning, Qualitative Analysis, Algebraic Synthesis, Parametric Architecture
The second stage of Subterranean Currents marks a transition from a unit-based methodology to a holistic urban framework operating at the regional scale. Architectural elements are reorganised according to qualitative performance metrics through processes of abstraction, reconfiguration and spatial re-articulation
A parametric, adaptable framework recalibrates the settlement in response to qualitative objectives, including thermal comfort, humidity regulation, visibility gradients and acoustic performance. Each metric is assessed individually, then integrated through an iterative algebraic process using network-based computational logic to correlate performance across the urban system.
The resulting system bridges territorial, urban and architectural scales within a single computational structure. The term algebraic synthesis was coined to describe this methodology: an algorithmic process initiated through conventional architectural combinatorics, producing a “clash catalogue” of spatial relationships, which was then abstracted and extrapolated into a fully parametric and automated model of urban generation, which generates a multi-layered “clash matrix”.


Algebraic Formula
Algebraic Synthesis of Neighbouring Typologies


Clash Resolution | Typology Prioritisation Algorithm
Sequential Morphological Synthesis













