


![]()



Ing. Massimo Cerri

Con oltre la metà della popolazione mondiale che vive in grandi città e con una percentuale che in Europa ha già superato il 75% diventa cruciale ripensare i modelli di crescita delle metropoli.
I cambiamenti climatici hanno trasformato le priorità delle comunità sociali e condizionato le economie globali.
I fattori di sostenibilità ESG – Environment, Social & Governance – sono divenuti un concetto imprescindibile per garantire alle future generazioni un pianeta vivibile anche nei prossimi decenni.
I governi di tutto il mondo negli ultimi anni hanno compiuto sforzi importanti, raggiungendo accordi globali senza precedenti, come l’Accordo di Parigi, in grado di cambiare le politiche di investimento in modo radicale, spingendo la trasformazione verso un’economia compatibile con l’ambiente.
Per Roma, la sfida è programmare una crescita che guardi al futuro, permettendo l’evoluzione del tessuto produttivo e lavorativo, creando opportunità di investimento.
Il rapporto 2023 sul benessere equo e sostenibile di Roma Capitale, basato su indicatori come salute, lavoro e benessere economico, ha evidenziato l’importanza di un approccio integrato per
migliorare la qualità della vita dei cittadini. In quest’ottica, è stato istituito l’Assessorato alla “città dei 15 minuti”, che mira a ridurre il ricorso al trasporto privato e a facilitare l’accesso ai servizi essenziali.
Roma, con il suo territorio vasto e complesso, deve affrontare sfide significative per realizzare un assetto urbano sopportabile.
La prossimità è un’esigenza che nasce dalla consapevolezza che occorre coinvolgere le istituzioni, le associazioni, le persone che vivono nei territori, affinchè siano attuate politiche inclusive e coerenti con gli obiettivi dell’Agenda 2030 per lo Sviluppo Sostenibile, quali istruzione di qualità, parità di genere, riduzione delle diseguaglianze, infrastrutture innovative, etc.
Io credo che dobbiamo ambire ad una Capitale moderna con una vivibilità sempre crescente, promuovendo la riconnessione tra i territori oggi separati da importanti vuoti urbani, restituendo verde e spazi pubblici alla comunità e riutilizzando il suolo, creando impianti urbani innovativi, che puntino al contrasto delle divisioni e del divario sociale tra zone limitrofe della città ed al contempo creino un contesto favorevole agli investimenti e alle opportunità di lavoro quale volano di progresso.
Ing. Massimo Cerri Presidente
Ordine degli Ingegneri della Provincia di Roma
Ing. Maria Elena D’Effremo

Veder nascere il Quaderno Speciale dedicato al “Progetto Urbano e Roma” è una grande soddisfazione.
Il Quaderno nasce grazie a una sinergia costruttiva per la nostra città tra esperti di diversa provenienza - Ingegneri, Architetti, Urbanisti, Professori - e il Comune di Roma Capitale.
A tal proposito vorrei ringraziare tutti coloro che si sono impegnati per questa importante pubblicazione, coloro che hanno fornito il loro contributo come autori, professionisti ed esperti; l’Assessore all’Urbanistica e alla Città dei 15 minuti, Maurizio Veloccia, e un curatore speciale, il Prof. Luigi Ramazzotti. A quest’ultimo va un grande ringraziamento per aver fatto da collettore, oltre che da curatore, con i suoi preziosi consigli, la sua immensa pazienza, la sua grande professionalità e competenza.
È stata una bella esperienza che rafforza la collaborazione tra Roma Capitale e l’Ordine degli Ingegneri della Provincia di Roma, in continuità con il passato e che mi auguro proseguirà in modo proficuo e duraturo anche nel futuro.
Roma con la sua storia millenaria di architettura e ingegneria, modello di riferimento per altri popoli e culture, ancora incanta con la sua bellezza che oltrepassa i secoli e vince il tempo.
Roma oggi cambia per diventare sempre più una città efficiente e pronta a rispondere alle sfide del presente; ne sono la dimostrazione i tanti cantieri inaugurati l’anno scorso e quelli per i quali si prevede l’inaugurazione nel corso del 2025. Roma, anche questa volta, nonostante la sua complessità, riuscirà ad accogliere i milioni di persone e le tante manifestazioni previste per l’anno giubilare.
Basti pensare che Roma è al sesto posto nel report “World’s best cities” del 2024 in cui si esalta l’unicità della città nell’offrire la possibilità di camminare nella storia dell’Occidente; la stessa classifica evidenzia come negli ultimi 18 mesi i lavori realizzati abbiano portato alla luce moltissime scoperte. A ciò si aggiunga che quanto offerto ai residenti e ai visitatori va oltre il turismo e questo permette di collocare la nostra città tra le Top 5 sia nell’indice di Lovability che in quello di Livability su scala globale. Non mi resta che augurarvi buona lettura, ricordandovi che nell’ottica di un approccio più agile e mirato alla condivisione, anche IO Roma si è dotata di una pagina Linkedin, “IO Roma Rivista dell’Ordine Ingegneri della provincia di Roma”, che vi invito a seguire, così come vi invito a consultare la pagina https:// ioroma.info/.
Ing. Maria Elena D’Effremo Direttrice Editoriale
Maurizio Veloccia

Un’idea di città che si compone e costruisce insieme
“Ogni città riceve la sua forma dal deserto a cui si oppone”, sono parole di Italo Calvino, uno scrittore appassionato di città e di visioni, e che non a caso è l’autore, tra gli altri, di un libro dal titolo Le città invisibili. Quella di una città che, per il suo solo esistere e prendere forma, si oppone al deserto, è un’immagine molto suggestiva. Il lavoro che stiamo facendo a Roma, in fondo, consiste proprio in questo, nel dare forma, nel rispondere al rischio del deserto -di servizi, spazi, sia privati che pubblici- attraverso una rigenerazione urbana che operi nel segno della sostenibilità ambientale e sociale.
Il nostro lavoro, si sa, richiede tempo, l’urbanistica richiede tempo: anche per questo è necessario avere una visione che preceda e anticipi i problemi, risolvendoli. Da soli, ovviamente, non possiamo farcela. Abbiamo bisogno di mettere a sistema le energie e le competenze, di unire le forze e i migliori talenti per poter dare davvero a Roma la possibilità di compiere il decisivo cambio di passo in cui tutti auspichiamo.
Non a caso, in questi anni, abbiamo lavorato per rafforzare la collaborazione con Ordini Professionali di primaria importanza rispetto al lavoro che portiamo avanti, come appunto l’Ordine degli Ingegneri o l’Ordine degli Architetti. È sempre più necessario fare sistema, lavorare in maniera sinfonica nell’obiettivo comune di migliorare la città, il tutto anche guidati sempre dalla consapevolezza che non
esistono piccoli o grandi interventi, ma che ogni intervento è importante per l’impatto che ha sulla vita di chi vive o lavora in quella strada o in quel quartiere.
Da un lato, quindi, le sfide sulle grandi opere, quelle iconiche, che danno il senso della unicità di Roma; dall’altro -e sono sfide non meno importanti o centrali- l’impegno per la quotidianità, per la vita dei cittadini, che passa per tante cose, dalla manutenzione straordinaria alle infrastrutture primarie.
In ogni caso, si tratta di grandi progetti, fondati su una precisa idea di città, che possono proiettare Roma dai suoi confini. Siamo a un giro di boa, ci giochiamo un’occasione che difficilmente si ripresenterà in questa forma. I fondi del PNRR, quelli per il Giubileo: mai come adesso, a Roma, abbiamo la possibilità di mettere in sinergia una serie di strumenti e finanziamenti pubblici per far crescere tutta la città, e non solo una parte: tutto questo ci può davvero consentire di restituire a Roma il ruolo che merita, anche su scala europea e più largamente internazionale.
Per realizzare tutto questo, è necessaria una visione, un’idea precisa, e non eterea di città, che dobbiamo essere capaci di tradurre giorno dopo giorno nel concreto dell’azione politica e amministrativa.
Senza passi falsi, senza finire col sabotarci da soli nelle secche dell’immobilismo, della mancanza di pianificazione, programmazione e progettazione.
Sono certo, in questo senso, che la collaborazione con l’Ordine degli Ingegneri andrà avanti ancora in maniera molto proficua, contribuendo insieme al raggiungimento di tanti obiettivi ambiziosi, primo tra tutti quello di rendere Roma sempre più al passo con i tempi, e con le esigenze dei cittadini.
Maurizio Veloccia Assessore all’Urbanistica e alla Città dei 15 minuti di Roma Capitale


Annarita Carotenuto
Architetto, Funzionario E.Q. Progetti Speciali, Dipartimento di Programmazione ed Attuazione Urbanistica di Roma Capitale
Si laurea in Architettura alla Università “Federico II” di Napoli con una tesi in progettazione architettonica. Dopo alcune esperienze lavorative in Italia e all’ estero, nel 2008 si trasferisce a Roma dove inizia l’attività professionale anche in collaborazione con alcuni importanti studi della città. Nel 2009, con alcuni amici e colleghi fonda Laboratorio Sottovuoti in Architettura senza frontiere Lazio Onlus, un collettivo permanente che si occupa di progettazione partecipata e codesign con l’obiettivo di sviluppare approcci innovativi ai temi urbani. Dal 2018 è Funzionario architetto presso il Dipartimento di Programmazione ed Attuazione Urbanistica di Roma Capitale. Nel 2021 consegue il diploma di Master Internazionale di secondo livello “Gestione del progetto complesso di Architettura- Management du projet d’architecture complexe” presso l’Università Sapienza di Roma. Da gennaio 2024 ricopre il ruolo di Funzionario di Elevata Qualificazione del Servizio Progetti Speciali nella U.O Rigenerazione e Progetti Speciali del Dipartimento di Programmazione ed Attuazione Urbanistica di Roma Capitale.
Vittorio Capuzza
Professore associato di Diritto amministrativo, Università di Roma Tor Vergata
Abilitato (ASN) Professore associato di Diritto amministrativo, PhD in Storia e Teoria del diritto conseguito con menzione speciale, svolge l’attività didattica e di ricerca nell’Università degli Studi di Roma Tor Vergata: fra l’altro, è titolare di Legislazione delle Opere Pubbliche presso il Dipartimento di Ingegneria Edile (DICII) – Macroarea di Ingegneria e insegna Diritto amministrativo nella Facoltà di Medicina e Chirurgia (CdL ESA); è docente titolare di Lingua e Letteratura italiana nel CdL di Psicologia. È Responsabile dell’Ufficio legale della Conferenza dei Rettori delle Università italiane (CRUI).
Marisdea Castiglione
Ingegnere, PhD presso l’Università degli Studi Roma Tre
Assegnista di ricerca presso il Dipartimento di Ingegneria Civile, Informatica e delle Tecnologie Aeronautiche (DICITA) dell’Università degli Studi di Roma Tre. Ha conseguito una laurea magistrale in Ingegneria delle Infrastrutture Viarie e Trasporti e un dottorato di ricerca in Ingegneria Civile con una tesi sulla stima dinamica della domanda di trasporto utilizzando fonti di dati innovative. Si occupa principalmente di ricerca nei campi della simulazione e pianificazione dei trasporti, con un focus su metodi data-driven applicati alla mobilità e micro-mobilità.
Giovanni Battista Cocco
Professore Associato di Composizione Architettonica e Urbana presso l’Università degli Studi di Cagliari
Professore Associato di Composizione Architettonica e Urbana presso l’Università di Cagliari. PhD in Architettura (Université Paris8), i suoi temi di ricerca riguardano la riqualificazione dei paesaggi della città storica e moderna; il riuso e la conservazione del patrimonio architettonico e urbano; il progetto architettonico del territorio e del paesaggio. Ha recentemente pubblicato i volumi “La deriva del progetto urbano. Perdere e riprendere la rotta” (LetteraVentidue) e “Bernard Huet, Elogio della continuità in Architettura. Scritti scelti” (Marinotti Edizioni).
Alessandro Fuschiotto
Ingegnere, Dirigente responsabile della Direzione Tecnica presso Roma Servizi per la Mobilità
Dirigente responsabile della Direzione Tecnica presso Roma Servizi per la Mobilità dove presidia le attività di Pianificazione Strategica, Progettazione e attuazione di sistemi e servizi di mobilità. Ha iniziato l’attività come libero professionista nel 1993; dipendente della STA (Agenzia della Mobilità del Comune di Roma) dal 1997, di ATAC dal 2005, nel 2010 è transitato nella nuova Agenzia Roma Servizi per la Mobilità, società strumentale di Roma Capitale. Ha sviluppato il proprio percorso professionale prevalentemente all’interno di organizzazioni aziendali di medie e grandi dimensioni, nell’ambito delle discipline legate alla mobilità: pianificazione ed economia dei trasporti, programmazione e controllo del trasporto pubblico, ingegneria della mobilità pubblica e privata, progettazione e attuazione di sistemi di trasporto, tecnologie per il traffico, opere di riqualificazione urbana e viabilità, innovazione e ricerca nel campo dei sistemi di supporto alle decisioni, affiancando in alcuni periodi le attività di lavoro ordinarie con incarichi di docenza universitaria.
Marialisa Nigro
Professore associato di Trasporti presso l’Università degli Studi Roma Tre
Professore associato di Trasporti presso il Dipartimento di Ingegneria Civile, Informatica e delle Tecnologie Aeronautiche (DICITA) dell’Università Roma Tre, vice-direttrice con delega alla didattica del DICITA stesso sino al 31.10.2024, consigliere presso l’Ordine degli Ingegneri della Provincia di Roma. Laurea in Ingegneria Civile con specializzazione in Trasporti, dottorato di ricerca in Scienze dell’Ingegneria Civile, pluriennale esperienza (+15 anni) in simulazione di trasporti, modelli comportamentali per l’ingegneria dei trasporti. È esperta di: pianificazione dei trasporti, soluzioni per la mobilità sostenibile (mobilità elettrica, micromobilità), stima della domanda di trasporto.
Mario Panizza
Professore ordinario di Composizione Architettonica e Urbana presso l’Università degli Studi Roma Tre, Rettore dell’Università degli Studi Roma Tre dal 2013 al 2017
Rettore dell’Università degli Studi Roma Tre dal 2013 al 2017. Professore ordinario di Composizione
Architettonica e Urbana; Direttore del Dipartimento di Architettura dell’Università degli Studi Roma Tre (2013). Ha insegnato nella Facoltà di Architettura della Sapienza dal 1977 al 1992 sui temi dell’Architettura sociale e dei Caratteri degli edifici e dal 1992 al 2019 nella Facoltà di Architettura di Roma Tre nei Laboratori di Progettazione architettonica del primo e del secondo anno. La ricerca ha riguardato lo studio comparato tra i caratteri degli edifici e i tessuti urbani consolidati.
Sergio Pasanisi
Architetto e Urbanista, Presidente del Comitato per la Qualità Urbana ed Edilizia del Comune di Roma dal 2021 al 2023
Architetto e urbanista, svolge attività di ricerca e didattica presso Università e Istituti pubblici e privati. Collabora con numerose riviste e testate giornalistiche. Tra i progetti in corso si segnalano: recupero dell’ex Macello Civico e restauro di Casa Bossi di Alessandro Antonelli, a Novara. Tra i piani urbanistici: PRG di Massa (MS) e Foggia; Piani di Sviluppo Sostenibile di SS, AP, SR; Piani Strategici di L’Aquila, Ragusa e Matera; Piano di Ricostruzione dell’Aquila; PA di ricostruzione di Camerino (MC); Masterplan di riconversione della centrale ENEL di Montalto di Castro. Tra i concorsi di progettazione: Concorso internazionale per il Masterplan dell’ex Fiera di Roma (1° class.); Concorso internazionale del Waterfront di La Spezia (3° class.); Concorso del nuovo ospedale di Siracusa (2° class.). Dal 2018 è componente, e presidente per tre anni, del Comitato per la Qualità Urbana ed Edilizia del Comune di Roma, come esperto di architettura ed edilizia.
Luigi Ramazzotti
Professore ordinario di Composizione architettonica e urbana, presso l’Università degli Studi di Roma Tor Vergata
Ingegnere, Professore ordinario (fuori ruolo) di Composizione architettonica e urbana, ha insegnato presso le Università di Ancona e di Roma “Tor Vergata”. Responsabile scientifico della Collana T+A per la Gangemi, ha diretto numerose ricerche PRIN come responsabile scientifico e come coordinatore nazionale. Ha svolto attività di progettazione e partecipato a numerosi concorsi di architettura con premi e riconoscimenti, alcuni suoi progetti sono stati realizzati. Ha scritto articoli, saggi e monografie sul progetto urbano, sulla cultura del progetto, sull’architettura e le tecniche della costruzione.
Rita Romano
Architetto, Dipartimento di Programmazione e Attuazione Urbanistica di Roma Capitale, PhD presso l’Università degli Studi di Roma La Sapienza
Architetta (2008), Funzionario Tecnico del Dip. PAU, attualmente con incarico di Elevata Qualificazione di Rigenerazione Urbana di Roma Capitale, ha conseguito il titolo di Dottore di Ricerca in Tecnica Urbanistica (2013) presso Sapienza Università di Roma dove ha svolto attività di ricerca (2009-2017). Il principale campo di interesse è rappresentato dai temi della Rigenerazione urbana, dello spazio pubblico, dei processi partecipativi e della legislazione e pianificazione urbanistica riguardo ai quali ha pubblicato saggi e articoli.
Alberto Taddei
Ingegnere, Presidente della Commissione Estimo Immobiliare ed Industriale dell’Ordine degli Ingegneri di Roma
Ingegnere, libero professionista, Valutatore Immobiliare certificato ai sensi della norma UNI 11558/2014, svolge attività di valutazione immobiliare per primari Istituti di Credito dal 1987. Consulente tecnico del tribunale di Roma, membro supplente della terza Commissione Censuaria dell’Agenzia delle Entrate, svolge attività di studio e divulgazione quale componente del Comitato Scientifico di GEOVAL e Presidente della Commissione Estimo Immobiliare ed Industriale dell’Ordine degli Ingegneri di Roma.

Direttrice responsabile
Marialisa Nigro
Direttrice editoriale
Maria Elena D’Effremo
Comitato di redazione
Sezione A
Massimo Cerri
Silvia Torrani
Micaela Nozzi
Stefania Arangio
Sezione B
Alfredo Simonetti
Amministrazione e redazione
Fabrizio Averardi Ripari Giorgio Mar tino
Michele Colletta Giovanni Nicolai
Alessandro Fuschiotto Paolo Reale
Marco Ghimenti Mauro Villarini
Piazza della Repubblica, 59 - 00185 Roma
Tel. 06 4879311 - Fax 06 487931223
Direttore creativo e progettazione grafica
Tiziana Primavera
Assistenza Editoriale
Leonardo Lavalle
Antonio Di Sabatino
Emanuela Cariani
Referente FOIR
Francesco Marinuzzi
Immagini fuori testo
Foto di Roma attuali
Maria Elena D’Effremo
Stampa Press Up
Ordine degli Ingegneri della Provincia di Roma
Piazza della Repubblica, 59 - 00185 Roma www.ording.roma.it
segreteria@ording.roma.it
editoriale@ording.roma.it
Finito di stampare: gennaio 2025
Il Quaderno IOROMA è una estensione alla rivista IOROMA
La Direzione rende noto che i contenuti, i pareri e le opinioni espresse negli articoli pubblicati rappresentano l’esclusivo pensiero degli autori, senza per questo aderire ad esse.
La Direzione declina ogni qualsiasi responsabilità derivante dalle affermazioni o dai contenuti forniti dagli autori, presenti nei suddetti articoli.
Il
Interazione tra urbanistica e trasporti:
Marisdea Castiglione, Alessandro Fuschiotto, Marialisa Nigro
Vittorio Capuzza
Il progetto dello spazio pubblico a Roma: dalle Centralità Locali ai Masterplan della Città dei 15 minuti
Annarita Carotenuto




Natura del progetto urbano
Quale progetto è oggi pensabile per la città contemporanea? Officina corale dove l’agire dei singoli si riunisce in solidale concorso, la città resta un meraviglioso paradosso. «Città s’adimanda una ragunanza d’huomini, ridotti insieme per vivere felicemente. E questo dal lato dell’inizio […], per cui la città è la sua costituzione, il suo governo, il suo regime politico: la sua politeia, cioè un modo, un modo d’essere, e non una cosa o un insieme di cose ma qualcosa di immateriale […] Allo stesso tempo l’espressione dell’Alberti già guarda verso la fine, secondo la moderna versione urbana (di cui la forma urbanistica è il compimento) per cui, esattamente al contrario, la città si presenta principalmente come una composizione materiale, una collezione di manufatti», (Farinelli, 2017).
Comprendere le regole di formazione di questa “collezione di manufatti” e progettare i dispositivi per immaginarla e governarla è stato un tema
centrale per tutto il ‘900 e drammaticamente rilevante negli anni della ricostruzione europea. Si opera in un contesto evolutivo di grande complessità. Pensare la città significa avvalersi della forbice delle idee per ritagliare nella stoffa delle sue fondate evidenze i contorni lungo i quali passeranno i piani delle nostre azioni. Significa interiorizzare il disordine che fa scintillare i frammenti di un gran numero di ordini possibili. Significa ancora misurarsi con “un’impostazione scientifica orientata più sulla natura dei problemi che sulla struttura delle discipline, sostenuta dalla capacità di ridefinire continuamente la relazione tra contesti di significato e fattori costitutivi di un problema, orientata a produrre uno sguardo capace di integrare visione di insieme e micro-dimensioni” (Squazzoni, 2003).
Il problema è la città, entità così complessa e sfuggente da non potersi più raccogliere nell’atto includente di un solo sguardo. Alla dissoluzione del suo immaginario, che non riguarda solo


la forma ma si alimenta delle intricate relazioni che la sottendono, corrisponde la tormentata ambizione di chi tenta di definirne un progetto globale sotto forma “di progetto utopico o di disegno di regole del suo sviluppo e del suo modo di organizzarsi” (Gregotti, 2011). Siamo incerti di fronte agli scenari che si annunciano per il futuro, dubbiosi sull’efficacia di categorie interpretative derivanti dall’analisi delle città del passato, consapevoli della prevedibile fragilità di un tempo a venire, nel quale vivremo. Si ha la sensazione di essere viaggiatori di passaggio, protesi verso una meta che è abbastanza chiara, mentre così chiari non sono i percorsi e i mezzi per raggiungerla. Il ricorrente accoppiamento di termini come transizione/ecologia, transizione/sostenibilità, allude, nella sua bipolarità, alle incognite di un presente in attesa, che si rispecchia nell’iperbole dell’essere in cammino, nella precarietà di un transito. Si dovrà fare qualcosa che non è mai stato fatto prima? Agire sugli spazi fisici e insieme sui comportamenti umani? Essere capaci di progettare soluzioni ispirate alla natura per reintegrarla nei contesti urbani? I progettisti delle città che abiteremo dovranno affrontare nuove sfide personificando le inedite figure di un mestiere fluido, che non può più esprimersi per specialismi e competenze separate. Secondo Elena Granata gli innovatori urbani saranno professionisti ibridi, capaci di tradurre i bisogni nella dimensione vivificante dell’immaginazione: “non sono artisti, non sono scienziati, non sono designers, non sono architetti. Sono placemakers, inventori di luoghi” (Granata, 2021).
Mentre viene messa in dubbio la tenuta dei vecchi recinti disciplinari si afferma la necessità di un superamento della sola dimensione tecnica per fecondarla con la capacità visionaria che è propria del progetto. C’è stata una stagione, in Francia tra la prima metà del ‘700 e la seconda metà dell’800, durante la quale furono proprio gli ingegneri a dare una risposta ai grandiosi programmi di riorganizzazione dello spazio fisico della Nazione, avviati dalla Rivoluzione francese e proseguiti nel primo impero. Saldamente inseriti nella macchina regolatrice dello Stato quegli ingegneri si erano formati presso l’École nationale des ponts et chaussées, divenuta poi l’École Polytechnique, incarnando le nuove figure di una professione rinnovata e divenendo presto i nuovi Corpi tecnici, efficienti e affidabili (Fortier, 1983). Si annunciavano opere di riorganizzazione del territorio, nuovi canali, attraversamenti urbani, edifici civili, nuove città di Stato (Morachiello, Teyssot, 1983). A questa emergente generazione di esperti veniva richiesta una concezione dell’opera d’arte che superasse il semplice “obiettivo tecnico per diventare strumento di organizzazione prima, di abbellimento poi del territorio” (Pinon, 1986). Quegli inge-
gneri saranno all’altezza dei programmi estesi a tutta la Nazione, dando espressione compiuta ad un nuovo immaginario territoriale, dove ogni oggetto tecnico diventa un monumento nel paesaggio e ogni monumento un’opera, che, come ogni opera d’arte dell’età classica, cerca di imitare la natura. Con progressione perfetta si arriva persino ad invertire le gerarchie del rapporto uomo-natura. Ciò traspare nelle parole di Chabrol de Volvic, ingegnere e prefetto di Montenotte sotto il Primo Impero. Il quale, nell’illustrare il suo progetto di Canale dell’Adriatico attraverso la valle del Bormida nel 1824, così scrive: «il Canale dell'Adriatico presenterà nella sua lunghezza opere notevoli. Nulla potrà essere paragonabile all’effetto della biforcazione meridionale. La valle stessa sembrerà in più punti esser stata scavata dalla mano dell’uomo per inserirvi un canale». L'ingegnere pensa ora di possedere la propria arte al punto da indurre a credere che sia la natura ad imitare l'opera dell'uomo (Pinon, 1986).
In nome di questa inedita capacità ideativa e di controllo sulle operazioni del progetto, si vengono affermando le nuove figure dell’ingegneria, impareggiabili nel controllo di strumenti disciplinari rinnovati, ma capaci anche di scatenare un potente immaginario. Il breve richiamo a questa importante stagione valga per ricordare che nella grande tradizione dell’ingegneria civile, anche la cultura tecnica può dare un significativo contributo ai problemi più urgenti dell’oggi, unendo alla padronanza dei mezzi una vivificante capacità visionaria.
Ma torniamo al nostro argomento. Va sottolineato come numerose esperienze confermino che la qualità delle singole architetture non si traduce automaticamente nella qualità complessiva della città alle varie scale. Il nesso tra organismo architettonico e città sposta l’attenzione dal singolo oggetto alle relazioni con il suo intorno (città, natura, paesaggio) pur rimandando a problemi di architettura e urbanistica che restano quelli di sempre. Tutto questo si riassume in una sola espressione: architettura urbana. Locuzione impropria ma efficace in quanto conferisce all’architettura una proprietà estensiva, ordita nelle trame della complessità, che invita a ridiscutere l’anacronistica separatezza tra architettura e urbanistica. Va anche detto che il progetto urbano è segnato da una originaria ambiguità. Lo spazio della città non è riducibile al principio unitario del suo disegno, che costituisce spesso il paradosso e l’antinomia della sua realizzazione. La capacità anticipatrice di una convincente rappresentazione, che fissa nell’atto iniziale di un codice grafico la forma di una città a venire, non ha tuttavia reali possibilità di controllo su di essa. Se le avesse, rischierebbe di perseguire qualcosa che è teoreticamente


sbagliato, perché quella forma non è immobile ma è segnata da una originaria precarietà, destinata a modificarsi nella lunga durata. Nello spazio virtuale della carta le ipotesi formalizzate giacciono immobili, autocompiacendosi nella contemplazione di un modello ideale che presentifica soltanto ciò che appartiene al desiderio dell’autore.
All’immobilismo delle istituzioni «la cultura risponde con i propri strumenti, offrendo gratuitamente alla città il proprio progetto, nella speranza di rimuovere, con adeguato battage pubblicitario, le remore che bloccano il rinnovamento dell’organizzazione urbana. Quanto esce da tale ultimo appello alla libertà concessa alla separatezza del laboratorio sperimentale è una “macchina inutile” che cerca di svincolarsi dalla propria dimensione reificata tramite appelli a codici geometrici che giacciono inutili». Il disincanto che emerge dall’improduttivo confronto con i processi reali non sfugge all’occhio dello storico, «il dibattito sollevato dalla scoperta della “nuova dimensione” e dall’individuazione del town design come autonomo strumento di configurazione è destinato a ripiegare su sé stesso, entrando ben presto in crisi” (Tafuri, 1986). A fronte della intransitabile foresta metropolitana, dell’indistinto groviglio umano degli utenti, delle difficoltà gestionali, degli irrisolti conflitti sociali, si erge il carattere didascalico di tali esperimenti. Il valore di questi tentativi si
accompagna alla coscienza di aver “vissuto e non guidato la crisi”. Malgrado ciò resta l’assertivo compiacimento del grande comporre, affidando al progettista il compito di sondare il futuro con la forza delle sue ipotesi formalizzate, anche se l’affollarsi delle immagini che vengono evocate dalle sue “rappresentazioni” finiscono per riflettersi e frantumarsi all’infinito, come nel vuoto illusorio di un caleidoscopio affollato di forme sospese. Ad esempio «l’immagine urbana trasmessa dal Gallaratese [ma queste osservazioni potrebbero valere anche per altri progetti che interpretano la città come un oggetto architettonico alla grande scala, ndr.] è talmente aderente all’idea archetipica di città, di Babele perdutamente umana, da esaurire in sé stessa, nella pura contemplazione dell’effetto-città ogni istanza ideologicamente ottativa connessa alla sua progettazione, soprattutto quella aymoniniana. La messa a punto di un’immagine diviene così l’autentica (forse l’unica?) funzione dell’architettura, che si rivela in un gioco continuo di rispecchiamenti e ribaltamenti simmetrici e speculari, di analogie contraddette … Il risultato finale attinge all’allestimento immobile di un “trasparente effetto città”, della cui prefigurazione grafica si può parlare, con ragione, soltanto di “foto di scena” per sottolinearne la sconcertante aderenza tra rappresentazione anteriore e realtà” (Conforti, 1981).
L’allestimento dello spazio urbano pone il proble-


ma della sua formatività. Si tratta di una nozione evolutiva della forma, che si apre ai tempi lenti della modificazione. Di questa “forma formante” è importante cogliere l’intima legge di coerenza, il nesso che collega le parti e il tutto, il processo che porta a risultati conclusi e aperti insieme nella loro definitezza. Piuttosto che sulla forma come atto compiuto in un solo tempo, sarà probabilmente più sensato concentrarsi sui dispositivi di formazione della città e dello spazio pubblico, sulle condizioni generali di riconoscibilità delle strutture urbane, per definire un repertorio di ipotesi insediative pensate per la collettività, nel segno di un’appartenenza condivisa. Detto in altre parole è la forma della città che non è pensabile negli stessi termini di un’architettura compiuta, così come non è valutabile con le stesse categorie operanti per l’oggetto d’arte. Ciò sollecita a ricercare quale sia lo specifico carattere dei tessuti, delle morfologie insediative e delle permanenze, al fine di realizzare un effetto città giocato nell’orchestrazione sapiente dei connettivi e dei vuoti, dei rapporti tra volumi, delle gerarchie colte nella serrata dialettica tra ciò che dà una struttura (e non è negoziabile) e ciò che invece è modificabile (Falzetti, 2018). Allo stesso tempo non possiamo immaginare un’architettura che si risolve in urbanistica ampliando la scala di intervento, senza “mutare la concezione strutturale del progetto”. L’architettura urbana è qualcosa che si distingue dall’architettura degli edifici. «È
una questione molto importante per gli architetti e credo che occorra qui eliminare un’ambiguità. Il progetto urbano è di una natura differente dal progetto di architettura. Si parla del progetto urbano e del progetto di architettura utilizzando la stessa parola perché il sapere progettuale utilizzato nel progetto urbano è ben lo stesso di quello che si utilizza nell’architettura. Esso richiede delle competenze sullo spazio che sono in effetti quelle degli architetti e dei paesaggisti e che sono state quelle degli ingegneri, all’epoca in cui questi facevano dei progetti» (Devillers, 2003).
I molti volti del progetto urbano
Gli aspetti qualificanti del progetto urbano
Nel 1990 Manuel de Solà Morales ha individuato i cinque punti qualificanti del progetto urbano. A questi fondamenti concettuali faremo riferimento, perché ci sembrano ancora validi e certamente utili per sgombrare il campo da eventuali equivoci, che sempre insorgono quando si entra nella foresta terminologica che descrive le numerose idee e strategie di intervento sulla città: rigenerazione, riqualificazione, riuso, programmi integrati, piani urbani integrati, programmi di recupero e rigenerazione, rammendo delle periferie, agopunture urbane, inventori di luoghi ecc.
I limiti disciplinari del progetto urbano, così come descritti da M. de S. Morales, sono così individuati: «1- Effetti territoriali, connessioni ol-

tre l’area di intervento. 2- Carattere complesso e interdipendente dei contenuti; superamento della monofunzionalità (parco, strada, tipologia…); mescolanza di usi, utenze, temporalità. 3- Scala intermedia da completarsi in un tempo limite di pochi anni. 4- Impegno per la definizione di un’architettura urbana, indipendente dall’architettura degli edifici. 5- Importante componente pubblica negli investimenti, usi e strategia del programma» (Morales, 1990).
Non si tratta di un semplice elenco. Vengono messi in gioco i modi di pensare il progetto per la città. Il problema è inquadrato all’interno di un modello di comprensione che avvalora il carattere prospettico ed anticipatorio delle idee, colte nel loro rapporto con la soluzione di un problema. Il sottotesto implicito rimanda a un repertorio di strumenti specializzati e alla capacità di indagare i nuovi fenomeni urbani in successione diacronica, a partire dai processi che li hanno generati e che in futuro li potranno sostenere. Ad esempio, le nozioni di tracciato e
di strada sono messe in relazione con un ordinamento di case che sono la base formativa di un tessuto, ma soprattutto con il modo stesso di concepire lo spazio urbano. Il tracciato-strada è una “forma mentale della città marcata da riferimenti ottici e d’uso […] la strada non è solo un luogo di circolazione, una planimetria di allineamento” ma uno spazio “contraddistinto da un ordinamento topologico”. L’idea di tessuto è messa in relazione dialettica con l’idea di “ordine urbano”, di “regolarità e ripetizione morfologica”, di “lettura” dei tracciati del luogo allo scopo di individuare, a partire da una ben precisata fenomenologia dell’esistente, nuovi ordinamenti urbani. E ancora, “se i tracciati e i tessuti sono temi chiave dell’attuale progettazione urbana, altrettanto importante è la sistemazione degli spazi e dei punti della città per il loro significato di spazio pubblico”, in ordine alla capacità di istituire luoghi urbani identitari, relazionali e storicamente fondati. L’interpretazione diretta del luogo è necessaria alla costruzione di una coe-


renza interna dello spazio urbano, inteso come contenuto progettuale in sé, senza riferimenti a modelli architettonici o tipologici precostituiti. È una sollecitazione a produrre progetti coerenti con la realtà costruita ad ogni scala, dove la forma della città può essere intesa come processo in atto e in continuo divenire, e dove è necessario cogliere il principio di legalità interna che giustifica quella forma. Interpretare inventando e inventare interpretando.
Masterplan e progetto urbano
Quando si parla di Progetto Urbano l’associazione al Masterplan è spesso scontata. Ma che cosa intendiamo con questo termine? Quale è la natura giuridica di questo strumento? Come controlla la forma della città e come si distingue dal Planivolumetrico? Sono molte le risposte a queste domande; dipendono dall’impostazione teorica e dalle circostanze operative nei casi concreti.
Sono passati più di vent’anni da quando Augusto Romano Burelli, nell’illustrare le esperienze di Kirksteigfeld a Potsdam e della Bahnhofsvorplatz ad Heidelberg, ha sintetizzato con efficacia alcuni aspetti strutturali del Masterplan. «Il masterplan è un progetto architettonico strategico per la città, applicato ad una sua parte. Esso è il ponte gettato sul vuoto, che si produce sempre, tra il Piano urbanistico ed il progetto architettonico. Il masterplan introduce l'idea di città e di architettura della città sin dall'inizio del processo di progettazione che esso concepisce ed avvia. Il Piano delle norme che regolano la costruzione della città (Bebaúungsplan) non è che il masterplan trasformato in norme per quella parte di città. Ma come si articola il masterplan come strumento operativo? Il masterplan definisce la "forma" architettonica di quella parte di città che intende trasformare. Tutte le decisioni sulle infrastrutture, sui percorsi, sulle dimensioni degli edifici, sui loro rapporti, sugli spazi pubblici e privati, sono già definiti dalla sua "forma". Il masterplan è un processo di progetta-




zione continua, ma non necessariamente deduttiva. Non è necessario, infatti, passare sempre dal suo progetto generale ai progetti particolari, attuabili per comparti o per "particelle", nelle quali di solito il masterplan si articola. Alle volte infatti è necessario anticipare il progetto di una parte su cui potrebbe fermarsi l'intero processo realizzativo. Il masterplan avvia una strategia di attuazione del suo vasto e dettagliato programma edilizio attraverso concorsi, gestiti dall'amministrazione insieme ai privati coinvolti ed interessati alla trasformazione dell'area. Lo stesso masterplan è il risultato di un concorso tra architetti, che di solito condividono un'idea dell'architettura della città, ma di cui danno soluzioni diverse. L'idea di architettura della città, in termini teorici generali, è quella del Baudirektor o capo ufficio per la costruzione della città e del suo gruppo di consulenza, che indice i concorsi e ne gestisce la realizzazione. Il masterplan è però anche un processo negoziale tra le istanze di trasformazione della città e le forze sociali che ne sono coinvolte, o che vogliono esserne coinvolte. Gli urbanisti (i custodi del Piano regolatore generale) vengono chiamati solo all'inizio per fornire le quantità insediabili: in abitanti, servizi, alloggi, non localizzandole però nell'area. Gli urbanisti vengono poi richiamati quando è stato scelto il progetto vincitore, per trasformare il Masterplan in norme, necessarie ad integrarlo al Piano regolatore generale» (Burelli, 2003). Si tratta in verità di una idea formale per una parte della città che deve risolvere l’antinomia di un disegno che anticipa un risultato che potrà anche cambiare nel tempo. “La rappresentazione del progetto deve dunque affrontare questa doppia difficoltà di rappresentare delle temporalità e delle spazialità differenti e di rappresentare qualcosa che non è identico al risultato finale” (Devillers, 2003).
Due culture disciplinari della tradizione moderna
Nel ‘900 il territorio della città si è misurato con due differenti culture del progetto: quella dell’architetto e quella dell’urbanista. Spesso impermeabili, ognuna contraddistinta da prospettive euristiche divergenti e dalla eterogeneità delle tecniche di intervento. L’urbanistica moderna nasce nel segno di una originaria duplicità. Gli studiosi hanno indicato le due principali linee di pensiero. La prima è riconducibile alla Carta d’Atene-Manifesto della città funzionale redatto in occasione del IV CIAM (Congresso Internazionale di Architettura Moderna) del 1933. Sarà questa la linea vincente, che lascia molti problemi irrisolti, soprattutto in rapporto alla qualità urbana e per la scarsa rilevanza assegnata allo spazio pubblico. Ciò ha sollevato numerosi interrogativi sulla reale incidenza delle pratiche disciplinari dell’urbanistica funzionale, sulla sua ideologia e i
suoi strumenti di intervento. Atteso che sarebbe semplicistico imputare alle sole competenze disciplinari dell’urbanistica razionale la crisi della città-metropoli contemporanea. La seconda linea di pensiero è minoritaria, non vincente, ma è decisiva nel processo di formazione di una contemporanea cultura urbanistica, dove è riconoscibile “un’altra tradizione moderna”. Nel 1930 Victor Bourgeois, nella sessione del CIAM di Bruxelles da lui presieduta, aveva proposto un tema di grande interesse: il rapporto tra “forme costruite” e “forme del terreno”. Sulla scena urbanistica, in alternativa all’approccio funzionale, si potevano distinguere numerose proposte per una progettazione urbana attenta alle trasformazioni del tessuto e dello spazio pubblico. La città veniva riconosciuta nella sua complessità di stratificazioni e di lente modificazioni, con le quali il progetto del nuovo avrebbe dovuto misurarsi. Ma ancora prima, nel 1918, Hendrik Petrus Berlage in occasione del Woningcongres di Amsterdam, aveva sostenuto che «la strada, la piazza, e la costruzione sono reciprocamente interagenti in ogni progetto urbanistico. Urbanistica significa creare lo spazio usando le costruzioni come materiale». L’architetto compare qui come il regista, come colui che «mette in scena i prodotti di massa in un insieme architettonico: arte dei rapporti […] Concepire e dominare unità composite in grandi masse […] esige un’abilità di gran lunga maggiore rispetto alla costruzione di una sola casa. […] L’urbanistica moderna tende verso l’individualità dell’aspetto della città, non della singola casa» (Berlage, 1918).
Si tratta, nel secondo caso, di una linea di pensiero molto stimolante per le questioni che ancora oggi ci poniamo. Non solo perché la complessità strutturale della città esistente è assunta come sfida teorica e terreno di confronto, ma anche per via di un impegno conoscitivo rivolto a definire la natura di un progetto che deve amministrare i rapporti urbani alle differenti scale, creare lo spazio pubblico, dominare unità composite in grandi masse. Negli anni ’60 e’70 saranno le ricerche della scuola italiana a dare un contributo significativo al pensiero urbano europeo. «Queste ricerche guardano la città come ‘formazione unitaria’ e in continuità col tempo. […] In esse lo strumento più interessante è la ‘pianta tipologica’, una sezione orizzontale della città con la quale si intendono leggere la sua struttura e i rapporti tra le forme. Queste rappresentazioni […] si traducono nella ricerca di un tipo ‘evoluzionista’ e ‘continuista’, un modo con cui il progetto domanda ai luoghi la ricostruzione di una nuova forma narrativa […] molto spesso il modo di interrogare ciò che già esiste si è tradotto nell’ossessiva ricerca di un ‘metodo obiettivo’, di una ‘scienza urbana’, che ha privato la trasformazione dell’esi-

stente dall’arbitrio, ovvero di una possibile libertà di scelta dell’architetto, nonostante ciò non fosse un obiettivo a priori» (Cocco, 2017).
A questo punto sono numerose le domande che attendono una risposta. Quali sono i caratteri qualitativi delle città che intendiamo progettare?
Come possiamo riconoscerli, regolarli, descriverli e articolarli nei loro attributi? Con quali strumenti possiamo immaginare e trasferire valori urbani condivisi nel lento processo della loro costruzione? Come si rappresentano i caratteri di una qualità in trasformazione, dipendente dalle differenti temporalità e da uno spazio pubblico soggetto alle stratificazioni mutevoli di processi storicizzati? L’effetto città dello spazio urbano può essere efficacemente controllato con le sole pratiche disegnative?
L’aporia del progetto urbano si perpetua in questa dialettica non risolta tra volontà di rappresentazione e l’indefinibilità di qualcosa che non coincide con il suo risultato finale.
Il carattere distintivo del progetto urbano consisterebbe allora nel pensare la forma della città non più, o non solo, come oggetto ma come processo? La questione dell’architettura e della città è ‘troppo profonda e complessa, troppo stratificata nella storia della nostra cultura specialistica’ per non richiedere una revisione del nucleo problematico che lega il progetto alla
conoscenza e la conoscenza alla soluzione. Significa ipotizzare, come sostiene Roberta Amirante, che il progetto possa essere assimilato a “un prodotto di ricerca”, e come tale risultare verificabile così come avviene nelle comunità scientifiche. Ciò significa «mettere in primo piano il procedimento progettuale che avvicina la presentazione del progetto allo svolgimento delle procedure sperimentali usate dalle scienze dure. Significa costringere almeno un po’ il progetto in quel meccanismo sequenziale che lo porta ad assumere un carattere puntualmente conoscitivo. Significa porsi il problema di rendere ripercorribile e potenzialmente falsificabile, come si è detto, il percorso/processo progettuale» (Amirante, 2018). Non più analisi «come ragione delle cose che mira a stabilire il già dato, né progetto come desiderio delle cose che presentifica ciò che non è ancora, ma circolo ermeneutico vero e proprio. Si tratta di prendere le mosse all’interno di un orizzonte di razionalità regolativa senza cadere nell’equivoco di costruire totalità illusorie» (Rispoli, 2016).
Le Centralità di Acilia-Madonnetta e Anagnina-Romanina
In uno scritto del 2012 Maurizio Marcelloni, allora Direttore dell’Ufficio del nuovo Piano Regola-

tore di Roma, ha sottolineato un aspetto rilevante del Progetto Urbano. Nelle Norme Tecniche il PU è previsto all’articolo 15 e viene definito come una “procedura finalizzata alla definizione delle previsioni progettuali di PRG”. Tale procedura è obbligatoria per le Centralità metropolitane e urbane di cui all’articolo 65. Può essere inoltre applicabile anche in altri casi, come ad esempio gli Ambiti di valorizzazione della Città storica e le Centralità locali. L’esplicitazione di tale procedura è stato uno dei «punti più discussi dell’elaborazione del piano soprattutto con i giuristi che, giustamente, ponevano la questione della definizione di ‘progetto urbano': si tratta di un nuovo strumento di attuazione del piano? In tal caso in cosa si distingue dal piano particolareggiato o dal piano di lottizzazione?
E se non si tratta di un nuovo strumento di at-
tuazione, che cosa è, come deve essere definito, quali sono le sue peculiarità, come l’amministrazione deve atteggiarsi di fronte a esso per verificarlo e approvarlo? Credo che questa sia una delle questioni più rilevanti e anche più intriganti. Non v’è dubbio che la posizione dei giuristi esprime una domanda di chiarezza e di certezza amministrativa che si oppone a una certa superficialità degli architetti-urbanisti inclini spesso all’introduzione di innovazioni poco identificate/identificabili e dunque foriere di paralizzanti contenziosi» (Marcelloni, 2012). Nel Piano Regolatore di Roma il progetto urbano non è considerato un nuovo strumento di attuazione quanto piuttosto una procedura “che alcuni progetti particolarmente complessi devono seguire per poter rendere esplicita e sottoponibile a una molteplicità di verifiche tale loro comples-


sità”. Centralità e progetti dovrebbero operare su uno spazio di influenza più ampio, oltre quello specifico a loro assegnato, e poter “comandare anche su settori extra-urbanistici: servizi sociali, localizzazione attività produttive, destinazioni d’uso, reti infrastrutturali, etc.” (Karrer, 2003). L’articolato meccanismo del PU si sviluppa in due fasi. La prima si configura come una proposta preliminare che viene avviata mediante la predisposizione di uno “Schema di Assetto Preliminare” (SAP) di iniziativa pubblica o privata. È questo forse il momento più interessante sotto l’aspetto progettuale. Si costruisce infatti una prima ipotesi di insieme che definisce le infrastrutture, i principali caratteri volumetrici, morfologici, tipologici, spaziali, funzionali… Il tutto in rapporto ad uno specifico contesto che si intende trasformare sulla base di obiettivi e indirizzi programmatici. L’intera procedura è di evidenza pubblica e viene sottoposta all’approvazione della Giunta comunale. Le norme tecniche prevedono inoltre la possibilità di ricorrere alla competizione concorsuale. La chiamata a confronto di progettisti qualificati è un fatto rilevante in quanto consente, nella competizione delle idee, di poter individuare più soluzioni e scegliere le più rispondenti agli indirizzi dell’Amministrazione e alle attese degli attori coinvolti. La seconda fase comporta la stesura di un progetto definitivo che “seguirà tutti i passaggi di un progetto di rilevanza pubblica fino all’Approvazione in Consiglio comunale”. A questo punto sorge una domanda: una volta approvato il Progetto Urbano, quest’ultimo ha valore di strumento attuativo in quanto Piano Particolareggiato di Esecuzione? E se così fosse in cosa si distinguerebbe dal Piano Particolareggiato? Il Piano regolatore ha previsto il PU come procedimento obbligatorio per le Centralità, ma allo stesso tempo ha introdotto una singolare diversificazione tra Centralità a pianificazione definita (dunque già esistenti e corredate di strumento attuativo al momento dell’approvazione del Piano del 2008) e Centralità da pianificare. È sempre Maurizio Marcelloni a sottolineare l’ambiguità di tale differenziazione: «si tratta di una distinzione strana all’interno delle norme tecniche di attuazione (quando una centralità sarà realizzata si cambiano le dizioni delle norme tecniche?) e che peraltro non dà conto né del carattere intrinseco della centralità né del suo rapporto con il contesto che appare invece l’elemento determinante» (Marcelloni, 2012).
Le Centralità previste nel 2008 sono originariamente diciotto. Tuttavia, quelle con un carattere strutturante sono in numero inferiore: Acilia-Madonnetta, Anagnina-Romanina, Pietralata, Ponte Mammolo, Torre Spaccata, Tor Vergata. Solo le prime due, Acilia-Madonnetta e Anagnina-Romanina saranno poi oggetto di un Progetto che ne ha definito l’architettura. Ma ci si è
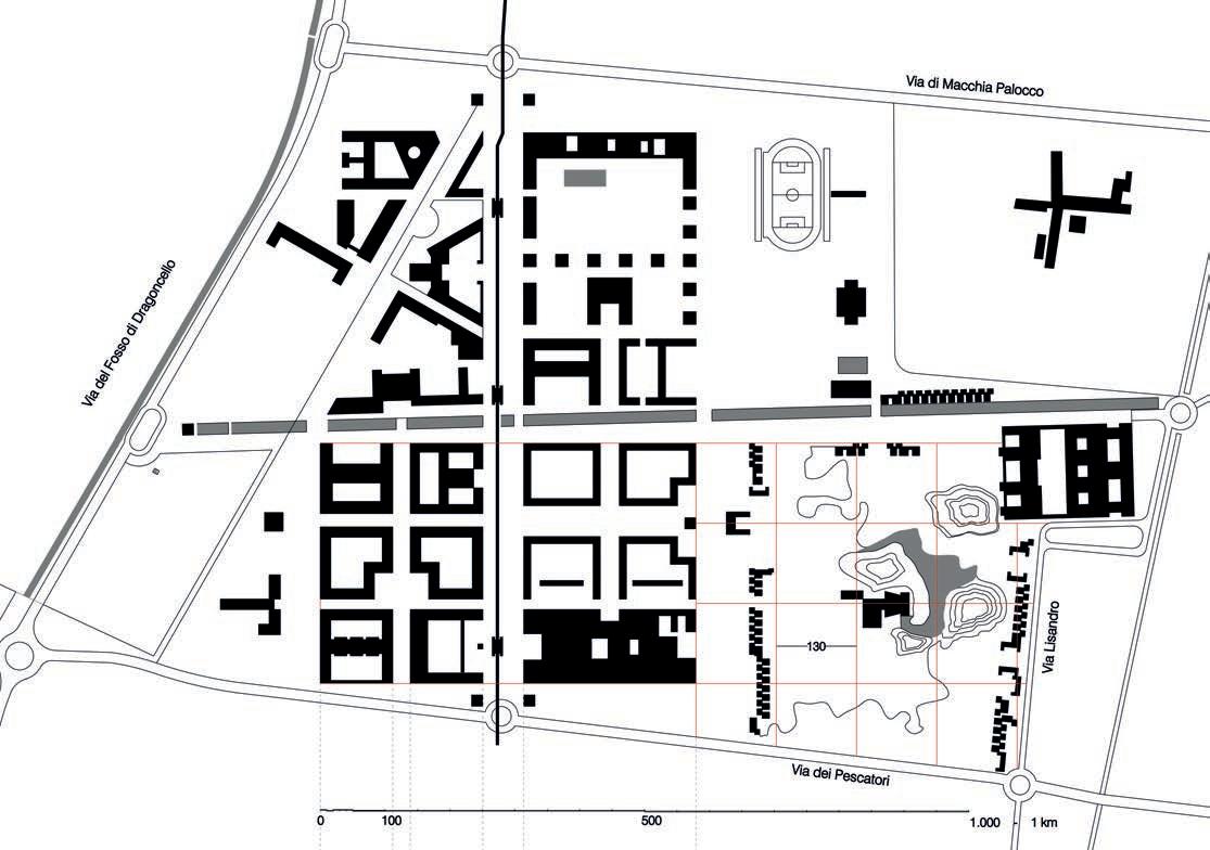
fermati agli Schemi di Assetto Preliminare che, in entrambi i casi, sono stati presentati ma mai portati avanti dall’Amministrazione. Le uniche esperienze che hanno dato una risposta architettonica compiuta al tema del PU restano comunque le due Centralità di Acilia-Madonnetta e di Anagnina-Romanina. Acilia-Madonnetta è un progetto di Vittorio Gregotti. Lo Schema di Assetto Preliminare viene sviluppato negli anni 2004-2007 per conto della società Pirelli RE, su di una superficie territoriale ST di 136 ettari, proprietaria Aree Urbane srl. La centralità si colloca nel quadrante sud-occidentale compreso tra l’EUR e Ostia. Questi i dati salienti: indice di edificabilità totale 0,25 mq/mq, superficie utile lorda totale 351.000 mq, ripartita in suolo pubblico 194.00 mq (55%) e suolo privato-residenza 157.000 mq (45%).
Il progetto di Gregotti è conseguente a una idea di città, coerente con una regola insediativa che introduce elementi di chiarezza nel quadro urbano della periferia romana. Come sostiene Franco Purini “entrare nei contenuti della proposta gregottiana non è semplice”, infatti si tratta di un progetto per Roma ma allo stesso tempo costituisce anche un modello per ogni altro insediamento urbano (Purini, 2012). Il principio insediativo è qui declinato con grande efficacia, emerge dalla lettura delle stratificazioni storiche depositate nel sito e si invera nei due assi fondativi ortogonali. Si tratta di una qualità nuova, che dialoga con la casualità di una periferia nata dalla pulsione sorda dei bisogni e refrattaria a qualunque ordinamento urbano preordinato. È lo stesso Gregotti a descrivere i criteri ordinatori dell’impianto di Acilia-Madonnetta, il cui progetto nasce dal «confronto tra l’idea di fondazione come tracciato urbano posto a fondamento degli edifici e soprattutto della loro relazione, cioè del disegno dello spazio tra le cose come spazio pubblico da cui la città è insieme guardata e vissuta […] si tratta di fare delle scelte, stabilire delle gerarchie tra i diversi tracciati che la storia ci ha consegnato. E poi di decidere come imprimere sul suolo il grande bassorilievo delle nostre geometrie: semplici, antiche, sicuramente riconoscibili anche nella misura delle eccezioni, costruire con esse la nostra prossimità, condizione dell’accoglienza e del dialogo necessario con il mondo che ci sorregge e che ci fa parte costituente delle reti di centralità che fondano il paesaggio della nuova città» (Gregotti, 2012). Nel tempo della globalizzazione Gregotti sottolinea la necessità di una “relazione dialogante” tra le differenti discipline. Su questo terreno dialogico, dove idea di architettura e idea di città si confrontano, l’architetto trova un fondamento non effimero per il proprio mestiere. «Oggi [...] in quanto architetti, proprio anche a causa delle nostre debolezze nei confronti della città e della vita urbana,

siamo legittimati anche a domandarci se esista ancora un ruolo, privato o pubblico, per la nostra disciplina nel disegno della città e delle sue parti, o se invece le decisioni sul fatto urbano e sulle sue forme siano demandate solo ad attori politici, economici e tecnologici, un tempo dialogici nei confronti dell’architettura» (Gregotti, 2011).
La lettura della soluzione gregottiana mostra la consistenza di un ordinamento basato su un principio, una disciplina morfologica e una misura urbana. Un dispositivo predisposto per la processualità e la formatività dello spazio architettonico nel tempo. La conferma di questa impostazione aperta si invera negli otto differenti Schemi di Assetto Preliminare messi a punto negli anni che vanno dal 2004 al 2007. Sono proprio queste otto soluzioni, apparentate dall’analogia nelle differenze, a dimostrare come sia possibile individuare un progetto di città innestato nel principio insediativo che lo guida, dove sono molte le declinazioni architettoniche possibili pur restando figlie di un’unica ragione.
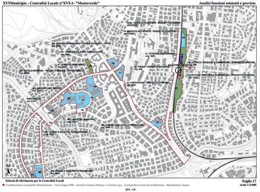
Anagnina-Romanina interessa una superficie territoriale ST di 93 ettari, proprietario gruppo immobiliare Scarpellini. La centralità si colloca nel quadrante orientale, esternamente al Grande raccordo anulare, ed è compresa tra l’Autostrada A1 Roma-Napoli (a nord) e la Tuscolana (a sud). Il progetto è il risultato di un Concorso internazionale bandito nel 2004, e articolato in due fasi. L’Ente banditore, costituito dal gruppo immobiliare Scarpellini con il patrocinio del Comune di Roma e dell’IN/Arch Roma, ha selezionato inizialmente, e a suo insindacabile giudizio, otto gruppi internazionali di progettazione. Un’apposita Commissione ha poi scelto i tre gruppi vincitori della prima fase: Avventura urbana, Carmen Andriani e Manuel Salgado. Nella seconda fase, con una nuova Commissione, viene dichiarato vincitore l’architetto portoghese Manuel Salgado, al quale è affidato anche il coordinamento dei progettisti nelle varie fasi di attuazione del progetto urbano.
L’architetto portoghese «punta sulla concretezza definendo soluzioni tradizionali con impianti residenziali a corte, aperti e chiusi, che occupano lotti rettangolari, disposti in modo regolare. Le due strade principali, si intersecano ortogonalmente generando una piazza e un sistema di spazi urbani, come un foro di impianto classico; in quelli centrali si dispongono gli edifici pubblici e le attrezzature. Sull’asse principale i piani terra sono prevalentemente porticati. Tra gli elementi maggiormente caratterizzanti l’intervento la torre di 75 metri per il Ministero dell’Ambiente, che svetta dalla media dell’edificato (5 piani).
Integrazione di servizi, residenze e attrezzature e morfologie concentrate sono le parole chiave del progetto per favorire l’aggregazione sociale. In verità la proposta, salvo scatti finali nella de-
finizione architettonica, non presenta soluzioni particolarmente interessanti; questa aggiudicazione tradisce in parte l’innovativa impostazione del problema e del bando» (Locci, 2006).
Nel 2012 il progetto viene approvato (in deroga agli art. 15-Progetto urbano e art. 65-Centralità metropolitane e urbane) sulla base dell’Accordo di Programma che costituisce “Stralcio PRG in Variante concernente il Programma Urbanistico Centralità Romanina”. I dati salienti: indice di edificabilità totale 0,65 mq/mq, superficie utile lorda totale 600.000 mq, ripartita in suolo pubblico 30.000 mq; suolo privato 148.000 mq; sul premiale 422.000 mq. Nel mix funzionale viene assegnato il 67% al comparto residenziale e il 33% al non residenziale.
Dalla comparazione tra i progetti per le due Centralità emergono significative differenze. Vuoi per le quantità in gioco (ad esempio gli indici di edificabilità totali), vuoi per gli evidenti scostamenti nei rapporti tra suolo pubblico e suolo privato-residenza (ad esempio il suolo pubblico è il 55% per Acilia-Madonnetta e il 33% per Anagnina-Romanina), vuoi per i diversi effetti territoriali, composizione e qualità delle attrezzature di interesse comune. Le procedure di formazione dei due progetti sono state inoltre significativamente dissimili, mentre resta come fattore comune, per entrambe, la disponibilità dei suoli sui quali si interviene, elemento decisivo per l’orchestrazione architettonica unitaria delle due centralità.
Sarebbe illuminante a questo punto un confronto con alcune esperienze europee, ma i limiti di questo scritto non lo consentono. Si rimanda a due recenti lavori che si distinguono per la penetrante capacità di analisi (Cocco, 2017; Ferretti, 2012). In particolare, il volume monografico di Giovanni Battista Cocco istituisce un interessante parallelo tra le vicende di Anagnina Romanina (dove si perde la rotta) e della Plaine Saint-Denis (dove si riprende la rotta). Si vedano inoltre gli approfondimenti emersi nel Convegno tenutosi a Milano nel 2014 sul tema “Urban design: la via italiana” (Bruzzese, Montedoro, Viganò, 2014). Il riferimento a queste pubblicazioni torna certamente utile a chi è interessato a capire le vicende italiane traguardandole sullo sfondo di un uno scenario internazionale. Da un esame comparativo risulta, purtroppo, che il Progetto Urbano sembra da noi incagliato nella instabilità degli indirizzi politico-amministrativi, nell’incertezza dei finanziamenti, nella dilatazione dei tempi di attuazione, nella burocratizzazione dei processi, nell’irrisolto conflitto tra proprietà pubblica e privata dei suoli, nel mancato aggiornamento di un insieme di regole urbanistiche capaci di inquadrare il problema in un contesto normativo conseguente e coerente, dal livello nazionale, a quello regionale, a quel-

Figura 4 - Manuel Salgado-Anagnina Romanina. Il progetto del 2005 e la soluzione del 2011. (Fonte: Sito Comune Roma http://www.urbanistica.comune.roma.it/images/uo_opere/centralita/anagnina-romanina/audio/3incontro/rom1502-presentazione-salgado.pdf )
lo locale. Laura Valeria Ferretti ha sottolineato come i principali impedimenti del Progetto urbano, nel caso italiano, nascano dalle grandi difficoltà della Pubblica Amministrazione ad assumere un ruolo forte di guida delle trasformazioni urbane e dalla debolezza negoziale nei confronti degli attori coinvolti. Tra i pochissimi progetti che la studiosa indica come esperimenti riusciti nella linea della progettazione urbana emergono la Spina a Torino e il progetto per Napoli orientale. Anche Roma viene citata in rapporto alle Centralità Urbane e Metropolitane e agli Ambiti di Valorizzazione. Questi ultimi hanno visto tuttavia “un’attuazione di singole parti in pendenza di un progetto di riferimento complessivo dell’area, scavalcando la procedura del Progetto Urbano”, mentre per le Centralità sono stati disattesi i principi che ne definivano la sostanza. Acilia Madonnetta e Anagnina Romanina, pur avendo prodotto progetti di grande spessore, si sono arenate in un dibattito avulso dalla valutazione della qualità degli interventi, segnato da una volontà politica incapace di governare in tempi ragionevoli il complesso meccanismo delle trasformazioni metropolitane su vasta scala, incapace ancora di opporsi alle pressioni degli operatori che hanno richiesto modifiche delle destinazioni d’uso e dei rapporti tra residenza, funzioni pubbliche e attrezzature
private. Il tutto ha significato lasciarsi sfuggire l’opportunità di “contrattare a favore della città”, rinunciando all’acquisizione di aree pubbliche previste dal piano senza che vi fosse peraltro “una strategia e una trasparenza nella scelta delle funzioni, e senza una previsione per la gestione di quanto ottenuto” (Ferretti, 2012).
Le conclusioni della XVII Conferenza nazionale SIU dedicata alla via italiana nell’ Urban design sono nella sostanza coincidenti. «In Italia, però, questo campo di pratiche appare ancora poco frequentato e la scala e il tempo intermedi di progettazione stentano ad essere riconosciuti. Le esperienze internazionali […] mostrano inoltre due differenze sostanziali rispetto alla situazione italiana: da un lato, una capacità di governo e di indirizzo, presente in molti soggetti pubblici, in grado di dirigere con altra disponibilità di mezzi e risorse i processi di trasformazione come è apparso nei casi francesi citati; dall’altro, strumenti innovativi messi al lavoro con una forte propensione alla sperimentazione, come in alcuni casi olandesi. Si tratta di elementi che alludono a direzioni di lavoro che non si esauriscono entro una riflessione propriamente disciplinare e che, al contrario, necessitano di mutamenti sul piano istituzionale e sul piano culturale dai quali non è possibile prescindere per un ragionamento sulla “via italiana” all’Ur-

ban design» (Bruzzese, Montedoro, 2014).
Tornando all’esperienza del progetto urbano a Roma ci sembrano chiarificatrici le ragionate valutazioni di Maurizio Marcelloni. Per il quale sono tre i principali nodi problematici: il rapporto pubblico-privato, la questione del non residenziale, la mancata programmazione unitaria e la distribuzione delle centralità ai vari assessorati. Per quanto riguarda la prima questione, ovvero la sperimentazione di nuove forme di rapporto tra pubblico e privato, l’operazione sui progetti urbani è rimasta impigliata nelle maglie di una visione pregiudiziale e ideologica del “tutto pubblico” o “tutto privato”, che caratterizza l’esperienza italiana a differenza di altri Paesi. La coincidenza delle figure del proprietario e del costruttore «tende a considerare inconcepibile la cessione di diritti edificatori all’amministrazione pubblica […] dall’altro lato la legislazione italiana consente la costituzione di Società di Trasformazione Urbana che implicano la preventiva cessione al Comune delle aree, che dovranno poi essere ricedute attraverso bando pubblico» (Marcelloni, 2012). Risulta evidente la precarietà di un meccanismo che prevede la cessione delle aree (in sostanza un esproprio) e non dà certezza al proprietario cedente di intervenire, in quanto dovrà in seguito partecipare all’asta pubblica per la riassegnazione delle stesse. Si può valutare positivamente una tale procedura, che tende ad annullare la figura del proprietario a favore dell’imprenditore-realizzatore, ma questa metamorfosi richiede una struttura capace di gestire le criticità dell’intera operazione e un’amministrazione decisa nel governare il conflitto-confronto con gli operatori e la struttura proprietaria. La costituzione di STU o di Società Miste, cercando di ragionare sulle forme di accordo con le proprietà, non è stata sperimentata, «l’atteggiamento è stato, ed è, che la proprietà è privata, che verranno cedute delle aree al Comune e che su questo è possibile avviare delle trattative tese a scontare i diritti dell’amministrazione in cambio di opere pubbliche […] l’insieme di queste questioni fa sì che il Comune venga meno ad alcune sue pre-
rogative centrali, lasciando che i progetti urbani delle centralità si trasformino in semplici grandi lottizzazioni al cui interno si ottiene qualche opera pubblica» (Marcelloni, 2012). Alle difficoltà dell’Amministrazione fa da singolare riscontro la struttura del settore immobiliare romano “poco incline a sviluppare una politica di marketing di livello internazionale” in quanto rimane legata alle logiche dei vecchi costruttori “poco avvezzi a comportarsi come una società immobiliare e tanto meno come una grande struttura di promozione”. Non è un caso che il settore residenziale rimanga il comparto privilegiato, che vi sia una resistenza nel predisporre bozze di accordi di programma (come previsto dalle NTA all’articolo 15 comma 7 in fase di presentazione del SAP-Schema di Assetto Preliminare) che prevedano nelle centralità funzioni con effetti territoriali e connessioni oltre l’area di intervento. Non vi è dubbio che le Centralità e il Progetto Urbano richiedano all’Amministrazione un cambio di passo, per definire formule adeguate di confronto con il mondo imprenditoriale, individuare i contenuti, organizzare nuove modalità di gestione, ad esempio con “un apposito ufficio per l’attuazione delle centralità, responsabilizzato dell’intero procedimento”. Come altre esperienze europee insegnano, sono necessarie una struttura di controllo della qualità del progetto con poteri molto forti, l’aggiornamento e il coinvolgimento delle figure amministrative che sono chiamate ad operare sui temi del Progetto Urbano. Le conclusioni di Marcelloni sono severe ma realistiche: «mi sembra di poter dire che fino ad oggi [2012, ndr.] l’esperienza romana sui progetti urbani è sostanzialmente negativa. [...] Più una procedura è innovativa e consente gradi di flessibilità, più è necessaria un’amministrazione forte, coesa, decisa a raggiungere i propri obiettivi. Se una tale amministrazione non esiste, allora è meglio una procedura rigida che non consente a nessuno di sfuggire alle proprie responsabilità». Purtroppo, l’urbanistica italiana, malgrado gli sforzi degli ultimi anni, rimane ancora un’urbanistica di regolazione, ben poco di intervento (Karrer, 2003).
Bibliografia
• Amirante R. (2018). Il progetto come prodotto di ricerca. Un’ipotesi., LetteraVentidue, Siracusa
• Bruzzese A., Montedoro L., Viganò P. a cura di (2014), “Atelier6-Urban design: la via Italiana” Atti della XVII Conferenza nazionale SIU, L’urbanistica italiana nel mondo, Milano 15-16 maggio, Planum Publisher, Roma-Milano. Pubblicazione disponibile su www.planum.net
• Burelli A. R. (2003), I rapporti tra masterplan e architettura negli esempi di Kirksteigfeld a Potsdam e della Bahnhofsvorplatz ad Heidelberg, in “Area n.70. Supplemento”.
• Carbonara L. (2006), Nuovo PRG, nuove strategie per Roma, in “AR” Anno XLI n. 64
• Cocco G. B. (2017), La deriva del progetto urbano. Perdere e riprendere la rotta, LetteraVentidue, Siracusa
• Devillers C. (2003), Il progetto urbano, in “Rassegna di Architettura e Urbanistica”, Anno XXXVII – n.

110/111, Kappa, Roma.
• Falzetti A. (2018), ISity. Dispositivi progettuali per la Statale 16 di Senigallia, Collana T+A Territori di Architettura, Gangemi, Roma
• Falzetti A., Ramazzotti L. (2012), Paesaggi da decifrare. Gli sguardi del progetto, Gangemi, Roma
• Farinelli F. (2017), Sulle forme pretopografiche di città: la città estesa, in Falzetti A. (a cura di), La città in estensione, Collana T+A Territori di Architettura, Gangemi, Roma.
• Ferretti L. V. (2012), L’architettura del progetto urbano. Procedure e strumenti per la costruzione del paesaggio urbano, Franco Angeli, Milano
• Fortier B. (1983), La nascita dell’École des Ponts et Chaussées. 1. Lo Spazio, in “Casabella” n. 495
• Fortier B. (1983), La nascita dell’École des Ponts et Chaussées. 2. Il progetto, in “Casabella” n. 496
• Gorio F. (2003), Editoriale, in “Rassegna di Architettura e Urbanistica”, Anno XXXVII – n. 110/111, Kappa, Roma.
• Granata E., (2021), Placemaker. Gli inventori dei luoghi che abiteremo, Einaudi, Torino
• Gregotti V. (2011), Architettura e postmetropoli, Einaudi, Torino.
• Gregotti V. (2012), fondazioni/fondamenti, in “ANFIONE e ZETO”, n. 24, Il Poligrafo, Padova
• Karrer F. (2003), I termini del confronto sul progetto urbano tra Francia ed Italia, in “Rassegna di Architettura e Urbanistica. Progetto urbano in Francia”, Anno XXXVII n. 110/111, Kappa, Roma
• Lanzara G.F., (1993), La progettazione come indagine: modelli cognitivi e strategie d’azione, in Rassegna Italiana di Sociologia, XXVI, 3
• Locci M. (2006), Nuove Centralità: Romanina, in “AR” Anno XLI n. 64
• Marcelloni M. (2012), Qualche riflessione sui progetti urbani a Roma, in Ferretti L. V., L’architettura del progetto urbano. Procedure e strumenti per la costruzione del paesaggio urbano, Franco Angeli, Milano
• Morachiello P., Teyssot, G. (1983), Nascita delle Città di Stato. Ingegneri e architetti sotto il Consolato e l’Impero, Officina, Roma
• Pendini S. (2014), Forme del progetto urbano: un confronto europeo, in “Atelier6-Urban design: la via Italiana”, op. cit.
• Piazzini M., Pugnaloni F., a cura di (2018), Discorsi sulla città. Zibaldone contemporaneo, Quodlibet, Macerata
• Pinon P. (1986), I canali: da strumenti di organizzazione del territorio a monumenti del paesaggio, in “Casabella” n. 525
• Purini F. (2012), Vittorio Gregotti architetto romano, in “ANFIONE e ZETO”, n. 24, Il Poligrafo, Padova
• Ramazzotti L. (2018), Modello dell’indagine e strumenti di intervento per la Città in estensione, in M. Piazzini e F. Pugnaloni (a cura di), Discorsi sulla Città, Quodlibet, Macerata
• Ramazzoti L. (2014) a cura di, Campagna urbana. La città in estensione nella bassa Sabina, Collana T+A Territori di Architettura, Gangemi, Roma
• Ramazzotti L. (2012), Esercizi di stile sul dispositivo urbano di Vittorio Gregotti per Acilia Madonnetta, in “Anfione e Zeto”, n.24, Il Poligrafo, Padova
• Rispoli F. (2016), Forma data e forma trovata. Interpretare / progettare l’architettura, Istituto Italiano per gli Studi Filosofici, Napoli
• Solá-Morales M. de (1990), Un’altra tradizione moderna. Dalla rottura dell’anno trenta al progetto urbano moderno, in “LOTUS international. L’altra urbanistica”, n°64, Electa, Milano
• Squazzoni F., (2003), La progettazione come processo euristico sperimentale e il ruolo degli strumenti tecnologici nelle organizzazioni complesse, in Gemelli G. e Squazzoni F. a cura di, NEHS/Nessi. Istituzioni, mappe cognitive e culture del progetto tra ingegneria e scienze umane, Baskerville, Bologna.
• “ANFIONE e ZETO” (2012), n. 24, Il Poligrafo, Padova
• “AR - Rivista bimestrale dell’Ordine degli Architetti di Roma e Provincia” (2006), Anno XLI n. 64, Prospettive Edizioni, Roma
• “AREA. Supplemento” (2003), n. 70
• “Atelier6-Urban design: la via Italiana”, Atti della XVII Conferenza nazionale SIU, L’urbanistica italiana nel mondo” (2014), Milano 15-16 maggio, Planum Publisher, Roma-Milano. Pubblicazione disponibile su www.planum.net
• “LOTUS international. L’altra urbanistica” (1990), n°64, Electa, Milano
• “LOTUS. Quaderni-Documents” (1999), n. 23, Electa, Milano
• “UR - El proyecto urbano I e II” (1988), nn°5 – 6, Siviglia
• “Rassegna di Architettura e Urbanistica. Progetto urbano in Francia” (2003), Anno XXXVII n. 110/111, Kappa, Roma
• “Rassegna di Architettura e Urbanistica. Piano attuativo e disegno urbano” (1982), Anno XVIII n. 53, Kappa, Roma



Il Piano Ostiense-Marconi individua un asse della città tutt’altro che unitario: presenta infatti una storia urbanistica alquanto complessa, segnata da un insieme edilizio eterogeneo, raccolto, in modo apparentemente casuale, tra Via Ostiense e Viale Marconi, due strade con caratteristiche tra loro molto difformi.
Lo sviluppo dell’area aveva pertanto bisogno di un programma articolato, capace di governare, attraverso norme e quantità opportunamente calibrate, un disegno di sintesi, destinato a raccordare tra loro preesistenze molto diverse e spazi ancora inedificati, da qualificare formalmente e destinare a nuove attività funzionali. Riassumendo, il programma doveva fondarsi su due riferimenti ordinatori: sulle indicazioni quantitative, proprie di un Progetto Urbano, e sulle linee concrete e formalizzate, che guidano un Masterplan. Di fatto, ciò significa che il piano di sviluppo si è posto come un vero e proprio processo progettuale, disposto ad aggiornarsi, con sensibilità, rispetto ai pesi urbani che, di volta in volta, si venivano a determinare. Disegno e norme dovevano sapersi rincorrere e adeguare alle esigenze generate da ogni nuova sintesi parziale. Insomma, un percorso molto difficile che, a distanza ormai di alcuni decenni, dobbiamo costatare, presenta molte discontinuità, perché non è ancora riuscito a chiarire i rtiferimenti certi e stabilizzati del suo sviluppo. I limiti vengono da molti fattori, soprasttutto finanziari legati alla carenza di investimenti garantiti, ma anche da una perenne incertezza tra le quantità, stabilite dai regolamenti, e gli esiti formali definiti dal progetto architettonico. I due momenti sono rimasti costantemente separati, affidando alla politica il compito di governare il processo. È mancato, a mio avviso, il disegno d’insieme o, meglio, il coraggio di adottarne uno e su quello promuovere la ricerca degli operatori, garantendo loro la sicurezza dei tempi di attuazione.
Dopo il trasferimento della capitale a Roma, i primi piani regolatori ipotizzano una crescita prevalente in direzione est. Quella reale, sostenuta da molteplici interessi, prende invece un’altra strada: le spinte della programmazione sono sopraffatte da altre, più consistenti, soprattutto speculative. La storia è nota e l’espansione a macchia d’olio, con dominante sud, è ampiamente documentata e, nel nostro settore, ben rappresentata dall’edilizia intensiva di Viale Marconi, sorta a partire da Piazzale della Radio.
La Via Ostiense ha invece una storia molto più antica e del tutto differente. Il tracciato romano, che inizia a Porta San Paolo e, dirigendosi verso sud, incontra la Basilica di San Paolo, scopre lungo il suo percorso, come tutte le altre Consolari, una serie di vestigia antiche, soprattutto tombe, disposte, alla quota della città romana, sui lati della strada fuori dal recinto urbano. Il carattere attuale si forma tuttavia ben dopo l’Unità d’Italia, con la costruzione degli edifici industriali: i Mer-

cati Generali; la Fabbrica del Gas; la sede della Croce Rossa; la Vetreria. A collegarli è la linea ferroviaria, che, marciando parallela all’asse Ostiense, traccia, appunto, un canale di appoggio alle strutture produttive. Tutte queste attività rimangono in esercizio ben oltre il secondo dopoguerra. A partire però dall’espansione edilizia degli anni ’60, dovuta al massiccio aumento della popolazione, proveniente soprattutto dalle regioni meridionali e dalle isole, le aree occupate dagli insediamenti industriali si ritrovano progressivamente accerchiate dalle unità residenziali.
Molti di questi impianti produttivi, dismessi per ragioni di igiene ambientale e di traffico pesante, occupano ormai isolati strategici nella prima periferia storica delle città. Quelli che non sono stati ristrutturati e destinati a una nuova funzione, subiscono un degrado che, come è noto, cresce in tempi rapidi: il degrado chiama nuovo degrado, soprattutto quando l’immobile è molto ampio e, proprio per questa ragione, il controllo sociale è quasi impossibile.
La compresenza di queste due funzioni, tra loro incompatibili, obbliga lo spostamento delle fabbriche: l’inquinamento dell’aria, il rumore, la circolazione dei mezzi pesanti non possono coesistere con l’area abitata, sempre più estesa. A ciò si aggiunga il progressivo incremento del valore dei terreni, ormai appetibili come aree fabbricabili, non comparabile con il reddito che può assicurare l’occupazione industriale del suolo. Sono zone, anche se ancora parzialmente periferiche, interessate da un fenomeno di riuso, non molto diverso da quanto è accaduto nei centri antichi dai quali sono state progressivamente espulse tutte le attività artigiane, non più competitive, per remunerazione, con le residenze e i negozi di lusso.
E’ un fenomeno, questo del decentramento delle aree industriali, che ha riguardato tutte le città europee, favorendo la trasformazione profonda di interi quartieri. I grandi capannoni industriali offrono infatti ambienti dove accogliere una grande affluenza di pubblico. Finora il riuso prevalente, quasi sempre sottoposto a vincoli tipologici e di rispetto


artistico e ambientale, ha riguardato le trasformazioni in impianti museali o in sedi universitarie e in centri commerciali o in luoghi per lo spettacolo. Per i primi due i capitali investiti sono stati per lo più pubblici, accompagnati, in alcuni casi, da contributi privati di fondazioni o strutture, comunque impegnate in attività istituzionali. Questi interventi registrano oggi un fermo a causa della debolezza delle risorse pubbliche e dello stato, purtroppo “asfittico”, degli investimenti destinati alla cultura. Gli altri due, esclusivamente privati, si fondano su un impianto economico che, tuttavia anch’esso, mostra limiti evidenti. L’epoca dei centri, con grandi aree commerciali, sembra definitivamente terminata, sia perché l’immagazzinamento nei luoghi centrali della città rappresenta un evidente spreco di denaro, sia perché la grande fetta di mercato, occupata dalla vendita on line, ha modificato prepotentemente le regole del commercio. Anche le ditte che hanno fondato il loro successo su ampie superfici di vendita, con vasti depositi di stoccaggio, oggi preferiscono separare l’esposizione dal
magazzino. Ciò obbliga a rivedere la destinazione funzionale dei grandi immobili, imponendo la costituzione di una nuova struttura di gestione, capace di prevedere la formazione di unità miste di commercio, residenza e terziario e, proprio per questo, richiede un progetto architettonico versatile che, se vincolato a superfici molto estese, sarebbe inadatto a possibili future trasformazioni. All’interno di questo quadro, che interessa l’assetto urbano di molte città europee, la situazione romana, e l’asse Ostiense-Marconi in particolare, impegna un delicato programma di interventi.
Le difficoltà risiedono nella messa a punto di un progetto che riesca a coordinare realtà eterogenee, ma, soprattutto, che non sia sopraffatto dalla indeterminatezza temporale che investe tutte le operazioni da mettere in cantiere. Singolarmente complicate, impongono inoltre, come visto, di essere risolte nel loro insieme, in quanto includono condizioni di forte rilievo e condizionano in modo determinante l’assetto generale della città.
La sperimentazione portata avanti in molte città,


soprattutto europee, ha indicato la scelta di integrare le strutture dalla tipologia specialistica con aree quasi esclusivamente residenziali, sorte a partire dagli insediamenti operai, realizzati a complemento delle fabbriche. L’attenzioine verso questa architettura si diffonde rapidamente e si impone come “archeologia industriale”. I primi recuperi trovano, come visto, un’agevole nuova destinazione d’uso: musei, sale di spettacolo, palestre scolastiche, merecati copoerti, ecc. Successivamente, nelle aree dove la presenza di edifici industriali è massiccia, gli interventi si rivolgono anche ad altre funzioni, compresa la residenza, come è accaduto in alcuni quartieri di New York. Nella nostra area, il primo intervento di recupero di un edificio industriale avviene lungo la Via Ostien-
se e riguarda la Centrale Montemartini. Sorta agli inizi del ‘900 e potenziata negli anni con nuovi motori diesel, risulta tuttavia sempre più insufficiente rispetto alle esigenze di consumo della città. Dismessa nel 1963 e abbandonata per oltre trenta anni, viene restaurata e aperta al pubblico nel 1997 come una delle sedi dei Musei Capitolini. Rappresenta un esempio riuscito di restauro architettonico e riuso funzionale, offrendo ambienti perfettamente idonei a ospitare esposizioni d’arte. Purtroppo, nonostante la partecipazione virtuosa di più Enti pubblici, non è riuscita a promuovere e incentivare, con altrettanta convinzione, il recupero del resto del patrimonio industriale presente lungo l’asse. Gli altri interventi portati a conclusione sono in gran parte collegati agli Accordi di programma tra Roma


Capitale e l’Università Roma Tre. Alcuni riguardano il recupero e la ristrutturazione di edifici esistenti. Tra questi il più impegnativo, anche dal punto di vista dimensionale, è l’ex-Alfa Romeo, che si trova all’intersezioine tra la Via Ostiense e Viale Marconi. L’edificio, dall’impianto volumetrico e distributivo molto articolato, ha permesso di ricavare al secondo livello ambienti per lo studio e la ricerca, utilizzando spazi tipologicamente alquanto “versatili”. Alla didattica e alla biblioteca sono stati destinati i locali, quelli di dimensioni maggiori, tutti posti al piano terra. Molto interessante e ben riuscito è il riuso dell’ambiente a pianta circolare – le vecchie officine – in aula magna, che, molto capiente, fin dalla sua realizzazione ospita i grandi eventi (Figura 1).
Al di là di Viale Marconi, nell’ansa di Valco San
Paolo, l’insediamento di Roma Tre si integra con il Polo scientifico. Qui le funzioni sono, in parte, ricavate dalla ristrutturazione di edifici preesistenti (ex-OMI, ex-Fabbrica di paracadute) e, in parte, da nuove costruzioni (le Torri di Piazza San Leonardo Murialdo). Un caso a sé è rappresentato dall’ex-Vasca navale, che ospita aule, studi e laboratori di Ingegneria. È stata ricostruita ex novo, ma non ancora terminata, su un sedime che mantiene la sagoma della vasca originaria, conservando quindi l’impianto a sviluppo longitudinale.
Sulla Via Ostiense, uno dei primi interventi di riuso ha riguardato la ex-Scuola Niccolò Tommaseo, progettata da Vincenzo Fasolo (1920). Subito dopo la fondazione di Roma Tre, questo edificio è servito soprattutto per risolvere le urgenze; poi









ha completato le dotazioni dell’Area umanistica. Nell’equilibrio generale dell’area rappresenta un tassello importante per il quartiere: ha restituito un po’ di controllo sociale nell’area che, intorno a Via Libetta, presentava condizioni di sicurezza alquanto difficili (Figura 2).
Lungo la Via Ostiense i due interventi di maggfior peso riguardano la prima e la seconda sede del Rettorato, entrambe nuove costruzioni. Sulle due aree insistevano strutture preesistenti, prive di valore architettonico e, soprattutto, inadeguate alle esigenze universitarie. I due edifici esprimono una qualità architettonica molto chiara sia nell’organizzazione spaziale e funzionale che nella definizione dell’immagine urbana (Figura 3).
Il primo Rettorato, progetto di Giuseppe Pasquali e Alfredo Passeri, oggi interamente destinato al Dipartimento di Giurisprudenza, offre un impianto a “L”, con il corpo circolare dell’aula magna tangente al lato ovest. Le due stecche di aule e uffici dipartimentali sono separate da un percorso longitudinale interno, illuminato dall’alto e attraversato da alcuni ponti, posti all’altezza del secondo livello. Il complesso costituisce, ancora oggi, un luogo centrale di Roma Tre, uno dei punti di maggior richiamo per l’intero quartiere (Figura 4).
Un ruolo analogo è ricoperto anche dalla nuova sede del Rettorato, progettata da Mario Cucinella e realizzata poco più a nord, sempre lungo la Via Ostiense. Questo nuovo edificio, che sostituisce la vecchia sede del Rettorato, della Direzione generale e degli uffici amministrativi e integra le dotazioni del DAMS, affaccia in un punto centrale e ampio della Via Ostiense. Una valenza ancora maggiore viene dalla posizione del lotto, passante tra Via Ostiense e Via Libetta, una strada che, come visto, rimane isolata, generando una condizione poco sicura. Il nuovo edificio, al piano stradale, trasforma profondamente l’area libera di attraversamento, rendendo vitale il transito tra le due strade grazie alla realizzazione di un’ampia piazza pedonale, peraltro parzialmente coperta. Al piano superiore è posta un’altra piazza, “privata” di Roma Tre, che, assicurando un’uscita all’esterno, protegge vaste zone sottostanti, mai soggette quindi all’effetto “garage”, perché illuminate da ampie aperture che, con le loro sagome, accompagnano il disegno degli edifici. Insieme allo sviluppo fluido dei profili planimetrici delle due torri, la continuità tra le due strade, l’idea tipologica di maggior interesse, è destinata a incidere in modo diretto sulla funzionalità urbana. È una scelta del progetto che offre alla città una soluzione, volta a costruire vantaggi per l’Ateneo e, contemporaneamente, per il Quartiere Ostiense. È questa una delle possibili interpretazioni del “terzo settore”: pensare un edificio con uno spazio pubblico vitale e costantemente frequentato per aggiungere valore concreto all’impianto urbano. Le realizzazioni portate avanti da Roma Tre costitu-
iscono gli interventi più impegnativi e, finora, anche più qualificanti. Sono quelli che per la dimensione, ma soprattutto per la ricaduta sociale, hanno inciso sul tessuto urbano. In questo caso si può descrivere l’insieme delle realizzazioni come un vero e proprio Masterplan. Il disegno dell’area, il tracciato dei percorsi e, in particolare, l’affluenza giornaliera degli studenti, hanno condizionato un riassetto generale del settore. Tutte le opere sono state regolate da quantità prestabilite che, insieme alla volumetria edificabile, hanno imposto il rispetto degli standard per i parcheggi e per le aree verdi. Attraverso questa operazione, che rientra nei contenuti degli Accordi di programma, si può rileggere anche la discontinuità che negli anni si è registrata nei confronti dell’assetto generale dell’intero quadrante. Sono mancate altre figure, istituzionali e non, che avrebbero dovuto consolidare gli interventi fatti con un riordino generale di altre aree non destinate ad attività universitaria. Alcune di esse erano libere, e quindi pronte per nuove costruzioni, altre erano invece occupate da edifici ormai dismessi. Il Progetto Ostiense-Marconi è però marcato da almeno due incompiute molto gravi, che pesano nell’equilibrio della città: gli ex-Mercati Generali e l’ex-Italgas (Figura 5).
La storia dei Mercati Generali è alquanto contorta. Il progetto iniziale di Rem Koolhas (2005) promuove un’idea affascinante e di grande presa, con un mix di cultura, commercio e spettacolo, tutto condensato in una vasta piazza destinata a catalizzare l’interesse della città. Il luogo, che si trova in una zona ormai centrale del tessuto urbano, è arricchito dalla qualità di edifici ex-industriali che, come in tutte le capitali europee, stanno determinando la personalità delle aree con la maggiore concentrazione di vita associativa.
Il percorso, che dovrebbe condurre alla realizzazione dell’opera, subisce però continue variazioni che impongono interruzioni, modifiche nel progetto e nelle destinazioni d’uso. L’impresa che deve costruire cambia negli anni e soprattutto viene sostituito il progettista. Ogni nuova soluzione, tra l’amministrazione pubblica e l’impresa, tende a comprimere le funzioni destinate alla cultura, sbilanciando progressivamente il peso dell’intervento verso una prevalente funzione commerciale. L’accordo tra il privato, che si assume l’onere dei lavori, e Roma Capitale ha una difficoltà aggiuntiva: l’impossibilità di alienare il bene – i Mercati Generali –, perché sottoposto a vincolo. Gli interessi dei due contraenti vanno pertanto misurati attraverso una valorizzazione composta, capace di soddisfare, oltre al beneficio collettivo, l’utile dell’imprenditore, che, al termine della concessione dell’area dovrà giungere all’attivo dell’impresa. Proprio la quantificazione di questo saldo continua a tenere fermi i lavori, deviando l’interesse del progetto e della sua qualità verso misurazioni quasi esclusivamente finanziarie. Il tutto si incrocia


con il succedersi delle Amministrazioni capitoline che introducono continue varianti rispetto a quanto già stabilito. I Mercati Generali sono per Roma una sorta di tela di Penelope che porta avanti, in concreto, solo le demolizioni e gli scavi, insieme a qualche ripristino di facciata del perimetro, senza avviare effettive opere di ricostruzione.
Un’altra presenza importante lungo la Via Ostiense, segnalata dai grandi gasometri, proprio di fronte agli ex-Mercati Generali, è la sede della ex-Fabbrica del Gas. Costruita nel 1911 e dismessa a partire dal 1960, rappresenta, ancora oggi, nel panorama della città, una presenza fisica e simbolica molto caratterizzante. Sicuramente positiva è stata la decisione, sebbene assunta in anni in cui la sensibilità verso l’archeologia industriale era ancora poco sviluppata, di conservare il telaio di contenimento dei cilindri che salivano e scendevano durante la giornata. Erano il termometro pubblico di quanto consumava la città.
La struttura restaurata e lucente del gasometro maggiore è la testimonianza di un’immagine storica ampiamente rappresentativa dell’iconografia cittadina, il cui segno formale viene recuperato nel progetto di Mario Cucinella per il nuovo edificio di Roma Tre, dove due alte torri non nascondono il riferimento di provenienza: due cilindri ammorbiditi e deformati da una modellazione plastica. La ex-Fabbrica del Gas non è però costituita soltanto dai due gasometri: contiene le tramogge, le torri-silos e gli uffici che affacciano su Via Ostien-
se. L’intera area, molto estesa, è stata interessata, in diversi periodi, da progetti di riqualificazione sia generali che parziali. Il più importante, anche molto vicino alla sua realizzazione, era legato all’ipotesi di trasformazione in Museo della Scienza, perseguita con molta determinazione da Antonio Ruberti. Il tutto si è interrotto dopo la sua morte nel 2000. Intervenire su quest’area non è certo semplice: richiede tempo e ingenti investimenti per bonificare, prima di ogni operazione, un terreno fortemente compromesso dall’inquinamento delle scorie del carbone, usato, per molti anni, per la produzione del gas. Il recupero dell’intero complesso rappresenterebbe una valorizzazione significativa e molto estesa; andrebbe a sommarsi all’opera di restauro già realizzata della Centrale Montemartini che costituisce uno dei musei più interessanti, anche se poco frequentati, della città. Il raggiungimento dell’insieme di queste realizzazioni porterebbe l’asse Ostiense a connotare una delle aree urbane di maggior prestigio, occupata da attività museali, ricreative e sociali, commerciali, di servizio pubblico come l’università, teatrali e per lo spettacolo in genere. A queste funzioni dovrebbe aggiungersi anche una residenza per gli studenti, prevista all’interno degli ex-Mercati Generali. L’ex-Mattatoio a Testaccio non rientra nell’asse Ostiense-Marconi; appartiene però all’insieme degli interventi che caratterizzano il settore per almeno tre ragioni: il valore industriale dell’impianto, costituito da diversi poadiglioni, tutti contraddi-

stinti da una sezione strutturale che si ripete con la stessa luce libera e con una sagoma ricorrente; la posizione lungo il Tevere che accompagna un po’ tutti questi insediamenti ex-industriali; l’appartenenza, per destinazione d’uso, al distretto culturale-formativo. Roma Tre utilizza alcuni padiglioni per la didattica, soprattutto laboratoriale, e si accinge ad avviare altri lavori per una nuova biblioteca; in altri padiglioni sono presenti istallazioni museali, sia stabili che temporanee. Manca però ancora un piano ordinatore completo che governi l’intero sistema e sappia gestire un comparto così ampio. Le singole occupazioni sono frammentate, come se si trattasse di distinte proprietà condominiali. Avendo insegnato all’interno dei suoi spazi e partecipato al progetto del luogo, comincio a temere che, a distanza di cinquanta anni dalla sua dismissione, stia serpeggiando una certa assuefazione al “mai concluso”. Al contrario gli esempi nel resto del mondo di riuso di impianti con le caratteristiche dell’ex-Mattatoio di Testaccio sono ben noti e, proprio da essi, è possibile comprendere di quale ricchezza dispone la Roma ex-industriale di cui sembra che l’Amministrazione, ma anche i cittadini, non abbiano ancora compreso appieno il reale valore (Figura 6). Nell’area un ruolo importante lo ricopree l’ex-Cinodromo, abbandonato da anni, che deve ancora trovare una sua destinazione e sistemazione. Nel frattempo, l’area è utilizzata con occupazioni più o meno temporanee e più o meno ufficiali. Insomma l’intero comparto nord di Valco San Paolo versa in una condizione di grande incertezza che potrebbe facilmente degenerare in una cronica incuria, provocando la perdita di quanto è già stato realizzato. A quanto finora presentato, ancora del tutto o parzialmente incompiuto, si devono, purtroppo, aggiungere le opere finite, ma solo parzialmente in uso. Quella di più antica data riguarda la piscina a Valco San Paolo, realizzata in occasione dei Campionati mondiali di nuoto del 2009. Alcuni errori tecnici hanno impedito di metterla in funzione. Le difficoltà per modificare le dimensioni della vasca e renderla omologabile sono comprensibili; quello che non è concepibile è perché l’impianto non venga aperto ai cittadini per il tempo libero, al di fuori dell’uso agonistico. Quindici anni sono tantissimi, soprattutto perché in questo periodo la struttura ha subito danni gravi, con cedimenti in copertura, e non pochi atti di vandalismo.
A poca distanza dall’ex-Cinodromo e dal Polo natatorio è stata realizzata, su progetto di Lorenzo Dall’Olio, con i contributi del Ministero dell’Istruzione e della Regione Lazio, una Residenza per 200 studenti (Figura 7). I lavori sono terminati già da qualche anno; l’impianto è però stato attivato in ritardo e, ancora oggi, è utilizzato solo in parte. L’edificio, un importante patrimonio pubblico, è di grande qualità, prezioso per ospitare gli studenti
fuorisede, che, al contrario, se rimane sottoutilizzato, può scivolare prematuramente in una condizione di degrado.
Le cose da fare sono quindi molte, apparentemente già decise e pronte per completare un disegno urbano che, al momento, è sostenuto, con non poca magniloquenza, dal Ponte Settimia Spizzichino che scavalca i binari all’altezza della Stazione Metro della Garbatella. La sua imponenza ha però, oggi, poco senso; anzi sembra proprio del tutto illogica: una strada a quattro corsie, con tanto di pista ciclabile, che finisce contro un semaforo, in un incrocio a “T” sulla Via Ostiense. Al di là di questa immagine paradossale, molto “muscolare”, emerge invece la debolezza di un progetto urbano che, nel suo complesso, è ancora molto sfocato. Il ponte costituisce la tessera episodica di un disegno di cui non sappiamo riconoscere l’ordine e, soprattutto, la finalità. L’unico sistema strutturato è offerto dagli edifici di Roma Tre, funzionalmente legati da un lungo percorso urbano, lineare e riconoscibile, che segue la Via Ostiense. Anche l’insieme di queste opere universitarie potrebbe essere completato con un pensiero più robusto, capace di riunire tutte le sedi in una descrizione specifica. La riconoscibilità del sistema potrebbe essere affidata anche a piccoli episodi, segnali guidati da semplici motivi grafici, utili però per unificare sotto un tema ricorrente un territorio ampio e alquanto eterogeneo. A questo livello di completamento sarà possibile tuttavia giungere gradualmente, cercando di rintracciare quei motivi ambientali che sapranno connettere i diversi nuclei edilizi, al momento, invece, poco riconducibili a una composizione unitaria. Il bilancio complessivo è molto incerto: non consente di mettere a fuoco un piano chiaro, capace di indicare lo sviluppo futuro dell’intero settore urbano. Gli interventi realizzati arrivano, anche se non sempre, a soddisfare la qualità architettonica dell’edificio, ma non tracciano le linee guida della crescita urbana; non promuovono l’architettura della città. I tasselli, separati, sono lontani dall’unificare norme e disegno su un progetto chiaro, seppure ancora in divenire. Eppure, oltre alla qualificazione dell’intera area, l’asse potrebbe finalmente assicurare la saldatura tra la città e il quartiere dell’Eur; congiungerebbe finalmente residenze e servizi locali con un’area amministrativa e burocratica che, attraverso alterne vicende e giudizi contrastanti, Roma Capitale non è ancora riuscita a nobilitare come parte integrante della ciità.
A tutt’oggi, quindi, gli interventi di maggiore concretezza del Progetto Urbano Ostiense-Marconi sono gli edifici di Roma Tre che, negli anni, hanno avviato un riordino generale. Auguriamoci che queste importanti opere possano rappresentare la spinta a rimontare l’inerzia urbanistica che, ormai da troppi anni, paralizza l’area, per non dire l’intera città.








1. Il Nuovo PRG del 2008: tra nuovi e vecchi modelli urbanistici
Tutti i piani regolatori contemporanei hanno il limite e il pregio di essere un po’ dei libri dei sogni. E molte delle progettualità sui cui il pianificatore ha trovato la migliore contemperazione possibile degli interessi all’interno di una idea di città, rimangono inattuate alla prova dei fatti dell’inesorabile confronto con due inconfutabili realtà: il mercato e la finanza (pubblica e privata).
Ciò è tanto più vero se il modello di piano, come il Nuovo PRG di Roma del 2008, è di tipo razional comprensivo, e tende a pianificare tutto, all’interno di tutto il territorio.
Di conseguenza per analizzare i contenuti progettuali del “nuovo” piano di Roma, sebbene a sedici
anni dalla sua approvazione, non si può prescindere dalla conoscenza della sua impostazione generale e delle complessità determinate non solo dall’estensione del territorio comunale (oltre 1.280 kmq), ma anche e soprattutto dalle implicazioni socioeconomiche, fondiarie e ambientali, del processo pianificatorio adottato.
Il Nuovo PRG di Roma del 2008, come noto, fu concepito e redatto sulla base del modello di piano della legge urbanistica 1150 del ’42. Partendo dalla variante generale del 1997, più nota come “Variante delle certezze” (Figura 2) si pose come obiettivo la pianificazione dell’intero territorio comunale della capitale in una logica di sistematizzazione delle precedenti scelte pianificatorie operate in base l’approccio del “pianificar facendo”. E cioè di una politica urbanistica che aveva prodotto,



oltre ad alcune varianti “puntuali”, due importanti varianti generali, entrambe adottate nel 1991 e approvate dalla Regione nel 2002: la “Variate di salvaguardia”, finalizzata principalmente alla disciplina delle aree verdi e dei parchi urbani (con l’annullamento di previsioni edificatorie per circa 40 milioni di mc), e alla nuova normativa per le zone H (Agro Romano) e per le zone D del PRG (Completamento); e la successiva “Variante per il verde e i servizi” finalizzata a evitare la decadenza dei vincoli all’esproprio per le zone destinate dal precedente piano a servizi pubblici. Il Nuovo PRG si configura quindi come un piano di tipo tradizionale, razional comprensivo, come dicevamo, “costruito sull’orizzonte del medio periodo (quindici anni) e che assume quindi lo scenario di riferimento 1997-2011, nella convinzione che tale data potesse corrispondere alla realizzabilità di una rilevante parte degli interventi strutturali
previsti (…)1” . Essendo di tipo onnicomprensivo, il piano ha un contenuto analitico e ancor di più progettuale, che spazia dalle scelte di indirizzo strategico sullo sviluppo socioeconomico della città, fino al sistema della mobilità locale, attraversando tutte le componenti spaziali territoriali: ambientale, rurale, insediativa. A testimonianza di ciò basta citare quanto indicato nel capitolo metodologico della Relazione del PRG2: «La scelta operata nella prima fase di impostare un piano con una forte connotazione di strategia urbanistica (l'ambiente, l'infrastrutturazione per la mobilità, la riqualificazione della città esistente) era sostanzialmente obbligata, date le arretrate condizioni di partenza e la necessità conseguente di definire prioritariamente le invarianti all'interno delle quali verificare ogni definizione urbanistica». Di conseguenza il piano è dotato, in conformità all’approccio fondativo, di un apparato normativo particolarmente articolato

e complesso, determinato anche dall’ambizioso obiettivo, che tuttavia, come vedremo successivamente è risultato in gran parte illusorio, di voler pianificare e controllare tutto, sia l’espansione insediativa della città che la riqualificazione dell’esistente. A supporto di ciò è stato introdotto un complesso sistema di articolazione delle aree della città, che si sovrappone alla tradizionale zonizzazione delle zone omogenee di cui al DM 1444/68, e di classificazione dei tessuti urbani, con queste principali tipizzazioni: a) Città storica, b) Città consolidata, c) Città da ristrutturare, d) Città della trasformazione). Al riguardo si deve segnalare l’estensione del perimetro della Zona A (Centro storico) anche alle aree ottocentesche e novecentesche, e l’introduzione di una disciplina di controllo della qualità degli interventi attraverso due strumenti: la Carta per la Qualità e i Comitato per la Qualità Urbana ed Edilizia.
Per quanto riguarda il dimensionamento il piano, sebbene impostato come non espansivo3, di fatto fu dimensionato per una città che avrebbe dovuto crescere, demograficamente e spazialmente, con una previsione residenziale di circa 200.000 nuove stanze di cui 51% di non residenziale, oltre a 166 ettari per insediamenti “per attività” oltre a 740 ettari degli Ambiti a pianificazione particolareggiata definita4
Inoltre, si è applicato “un nuovo approccio alle relazioni fra intervento pubblico e privato”5, attraverso tre strumenti: a) la perequazione urbanistica; b) le compensazioni edificatorie6, già introdotte con la Variante delle certezze; c) il contributo straordinario di urbanizzazione7, una innovativa modalità di contemperazione degli interessi tra pubblico e privato attraverso l’attribuzione a favore del comune di gran parte della valorizzazione fondiaria degli interventi. Tutto ciò premesso, il “parco progetti” del PRG, coerentemente gli ambiziosi obiettivi generali e particolari, è molto complesso e, in coerenza con esso e per facilità interpretativa, si è qui ritenuto di articolarlo in tre componenti: 1) il sistema insediativo (progetti urbani), 2) il sistema ambientale e agricolo, 3) il sistema delle infrastrutture e della mobilità urbana.
2. I progetti urbani
Sul tema dei grandi progetti urbani il Nuovo PRG ha innanzitutto sistematizzato i diversi interventi, precedentemente assentiti secondo la filosofia del “pianificar facendo”8: i piani particolareggiati in variante delle c.d. “Centralità a pianificazione definita” (Tabella 2 - Nuove centralità urbane pianificazione definita), le aree degli ex comprensori direzionali

(Pietralata, Tiburtino, Casilino), il parco archeologico di Centocelle, i progetti urbanistici come quelli di Bufalotta, di Parco Talenti, del Polo tecnologico, del Campus biomedico, i progetti urbani complessi come quello dell’area Ostiense-Marconi, i programmi di riqualificazione urbana (art.2 legge 179/92) e quelli di recupero urbano (art.11 legge 493/93), il programma Urban ed i progetti dei Prusst dell’asse della Tiburtina e del PRUSST dei Castelli romani, i progetti per le stazioni ferroviarie più importanti, i progetti puntuali relativi ad aree o manufatti esistenti, come ad esempio il recupero della Pantanella, della Meccanica Romana, della Birreria Peroni, dell’Ara Pacis, del Mattatoio. Inoltre, il piano recepisce le varianti conseguenti
alla cosiddetta “manovra di completamento” del II PEEP, realizzata per far fronte alla crescente domanda abitativa sociale, con la quale nel marzo 2006 erano state individuate le nuove aree da destinare a programmi di edilizia residenziale pubblica. Per comprendere contenuti e modalità d’intervento è bene considerare gli strumenti previsti per ciascuna zona della città, secondo la classificazione operata dalle NTA e sintetizzata nella Tabella 3 “Strumenti di intervento previsti nel piano”. Il primo gruppo di progetti da pianificare di rilevante interesse urbano, ubicati nella Città storica, sono gli Ambiti di valorizzazione di cui all’art.43 delle NTA del piano. Si tratta di ben 53 progetti articolati in tre tipi:



a) spazi aperti di valore ambientale caratterizzati dalla presenza di emergenze naturali;
b) ambiti costituiti da tessuti, edifici e spazi aperti, caratterizzati da incoerenze e squilibri di tipo morfologico e funzionale, nei quali operare con progetti di completamento/trasformazione;
c) ambiti costituiti da aree dismesse e insediamenti prevalentemente non residenziali nei quali si opererà con progetti di completamento/trasformazione;
d) ambito relativo all’area di Ostia lido, caratterizzato dall’esigenza di riqualificare il fronte-mare.
Nella Città consolidata e nella Città da ristrutturare il piano prevede invece di intervenire, in particolari ambiti con i Programmi integrati. Questi ultimi sono disciplinati dall’art. 14 delle NTA, quale evoluzione dell’impostazione introdotta dal legislatore nazionale con i c.d. “Programmi complessi” e, in particolare, i Programmi di riqualificazione urbana di cui all’art. 2 della legge 179/92, i Programmi di recupero urbano di cui all’art. 11 della legge 493/93 e ai Programmi integrati di intervento di cui all’art. 16 della legge 179/92 e trattati per competenza nella legge regionale 22/97.
Ma la vera “manovra” urbanistica del piano si concentra nella Città della trasformazione che viene articola nelle seguenti componenti: a) Ambiti di trasformazione ordinaria; b) Ambiti a pianificazione particolareggiata definita; c) Ambiti per i Programmi integrati.
Altri importanti iniziative sono i “Progetti strutturanti” al Capo 6° delle NTA art. 63, vengono definiti come segue: “I Progetti strutturanti sono relativi: a parti di città fortemente caratterizzate da insiemi di elementi e tracciati archeologici, storici e natu-
rali; ad ambiti di trasformazione strategici rispetto al futuro assetto della città; a luoghi centrali dotati di forte identità locale. Per tali parti di città, ambiti e luoghi, il PRG prevede, alle varie scale, interventi di riqualificazione e di trasformazione definiti con le procedure del Programma integrato o del Progetto urbano, di cui agli articoli 14 e 15, ovvero affidati a progetti di intervento per la qualificazione degli spazi pubblici e la realizzazione di attrezzature pubbliche e di interesse pubblico.”
I Progetti strutturanti sono articolati in tre tipologie: a) Ambiti di programmazione strategica; b) Centralità metropolitane e urbane; c) Centralità locali. Gli Ambiti di programmazione strategica sono: a) il Tevere; b) il Parco dei Fori e dell’Appia antica; c) le Mura; d) il Tracciato Flaminio-Fori-EUR; e) la Cintura ferroviaria.
Mentre le Centralità invece si configurano come il principale motore del piano, grandi progetti urbanistici da sviluppare su aree di proprietà di grandi operatori immobiliari, pubblici e privati, poste in periferia o al di fuori del GRA (nelle zone tipizzate nell’ambito della Città della trasformazione). Si tratta di n.10 interventi disciplinati con specifiche schede, indicati nella Tabella 4 esposta in precedenza. Interventi che hanno suscitato molte critiche, sulla base della considerazione che dietro l’obiettivo di creare una struttura urbana policentrica con capacità di riqualificazione delle adiacenti periferie, in contrasto con quanto dichiarato espressamente nel piano9 di voler arrestare il “consumo del suolo extraurbano”, si mal celavano invece dei tradizionali interventi di espansione urbana in gran parte su aree greenfield
Inoltre, conseguentemente il piano individua e disciplina due specifiche procedure “Per favorire, anche mediante incentivi, l’integrazione e il coordinamento progettuale, finanziario, attuativo e gestionale, tra interventi diretti, tra interventi indiretti, tra interventi




diretti e indiretti, tra interventi pubblici e privati”10:
• il “Programma integrato”, di cui all’art. 14 delle NTA di cui all’art. 14 delle NTA, quale evoluzione dell’impostazione introdotta dal legislatore nazionale con i c.d. “Programmi complessi” e, in particolare i Programmi di riqualificazione urbana di cui all’art. 2 della legge 179/92, ai Programmi di recupero urbano di cui all’art. 11 della legge 493/93 e ai Programmi integrati di intervento di cui all’art. 16 della legge 179/92 e trattati per competenza nella legge regionale 22/97;
• e il “Progetto urbano”, di cui all’art. 15 delle NTA, definito come “lo strumento procedurale che rende conseguibile l’obiettivo della qualità progettuale”11 e obbligatorio per gli interventi nelle Centralità metropolitane e urbane.
3. I progetti sulle aree verdi e sull’agro romano
Per quanto riguarda il sistema ambientale il piano
oltre a sistematizzare, come sopra indicato, i contenuti pianificatori e progettuali delle precedenti varianti generali, la Variante di salvaguarda e la Variante per il reperimento di aree per servizi e verde pubblico, recepisce i Piani regionali dei parchi e delle riserve, tra i quali i parchi Litorale, Veio, Valle dei Casali, Insugherata e con delibera CC dell’1 agosto 1996 n. 162 i parchi del complesso lacuale Bracciano-Martignano, Arrone-Castel di Guido, Marcigliana, Valle dell’Aniene, Decima-Malafede, Monte Mario, Tenuta dei Massimi, Laurentino-Acqua Acetosa.
Inoltre, il piano recepisce le aree vincolate ex lege 431/85 e 1497/39 e ridetermina e ri-norma le aree agricole dell’agro romano, con la sostanziale riduzione delle capacità edificatorie previste nel precedente piano.
Nel complesso la “manovra” urbanistica sul sistema ambientale costituisce, per dimensioni e qualità, una delle principali componenti del piano, riguardando circa 2.500 ettari di aree edificabili,

che ha comportato l’eliminazione di una volumetria realizzabile per oltre 17 milioni di metri cubi edificabili, oggetto di compensazioni urbanistiche. Ne consegue che il sistema ambientale copre, con i suoi circa 1.028 kmq, l’80% del territorio comunale, costituito dalle seguenti componenti:
• verde urbano, che copre una superficie di circa 43,6 kmq (5% del sistema del verde);
• aree naturali protette (Riserve naturali regionali, Parchi regionali urbani, Monumenti naturali, Area naturale marina protetta, Parchi naturali regionali e Riserve naturali statali) e i parchi agricoli, 415 kmq di estensione (40% del sistema del verde);
• aree agricole, 565 kmq, pari al 55% del sistema del verde.
Il verde urbano è suddiviso in:
• grandi parchi urbani (ad es. Pineta di Castelfusano, Parco del Trullo, Corviale, Monte Mario, Tor di Quinto, Inviolatella; per complessivi 18,1 kmq);
• verde attrezzato di quartiere (per complessivi 11 kmq);
• verde storico archeologico (tra cui Villa Ada, Villa Pamphilj, Villa Chigi, Villa Torlonia, Villa Borghese, Villa Glori, Parco Nemorense, Ca-
stel Sant’Angelo, il Pincio, Colle Oppio, Villa Sciarra, i Giardini di piazza Vittorio; per complessivi 5,7 kmq);
• arredo stradale (2,9 kmq);
• aree di sosta (per complessivi 1,7 kmq);
• verde speciale (Bioparco, Scuola Giardinieri, il Roseto Comunale, il semenzaio di San Sisto Vecchio, il cimitero comunale della Parrocchietta; per complessivi 0,3 kmq).
4. I progetti per la mobilità urbana
Uno dei temi centrali del Nuovo PRG di Roma, è senz’altro il sistema della mobilità12. Infatti il piano armonizza i propri contenuti e le proprie previsioni con gli strumenti di pianificazione e programmazione settoriale e in particolare:
a) il Piano generale del traffico urbano (PGTU) del 1998,
b) il Programma integrato per la mobilità (PROIMO),
c) il Piano urbano parcheggi (PUP).
Tutti strumenti ispirati dalla politica infrastrutturale battezzata la “cura del ferro”, finalizzata a riequilibrare la ripartizione modale a favore del trasporto collettivo contrastando nello stesso tempo la con-


gestione delle strade, l’incidentalità, l’invasione dello spazio pubblico.
Sul tema della mobilità il piano è ricchissimo di progetti e interventi che si concentrano sul trasporto pubblico locale: sulla rete ferroviaria, sulla rete metropolitana con un incremento da 37 a 76 km di rete e da 49 a 94 stazioni, sui corridoi del trasporto di superficie in sede propri, sui “nodi di scambio”. Ma non manca un cospicuo numero di interventi sulla rete viaria, sulla viabilità extraurbana di tipo autostradale, sulla viabilità extraurbana esterna al GRA. A cui si aggiungono interventi per le piattaforme logistiche (centri merci, interporti, ecc.). Nella tabella qui di seguito esposta sono indicati i progetti principali suddivisi per le varie tipologie.
Da un solo sguardo e considerata la complessità, l’articolazione e la numerosità degli interventi, si comprende come i progetti per la mobilità costituiscano una sorta di “piano nel piano”, ridisegnando completamente il sistema di relazioni tra città e
regione, tra citta ed area metropolitane, tra le varie parti di città e all’interno degli stessi singoli quartieri. Venendosi a configurare come una sorta di “trama linfatica” del piano. In questo settore, forse ancor di più che negli altri due precedenti insiemi progettuali, siamo al cospetto di una aspirazione progettuale a dir poco ciclopica, comprendendo anche interventi che esulano le competenze comunali, come nel caso delle reti FS, ANAS o regionali, ma sui quali sono stati sottoscritti impegni con gli enti competenti. Ma anche gli interventi di competenza comunale sono particolarmente importanti, e non solo per quanto riguarda la mobilità pubblica e, in particolare, quella della rete metropolitana, ma anche il sistema viario, con ben 7 nuovi ponti (dei quali solo uno ad oggi realizzato, il Ponte Flaminio o “della musica”) e 5 importantissimi tunnel urbani (dei quali nessuno ad oggi realizzato) , anche di notevoli dimensioni, tra i quali il tunnel sotto l’Appia Antica e l’interramento



7 - Nuovo PRG di Roma - 2008 - Infrastrutture per la mobilità
dell’attuale sopraelevata in corrispondenza di San Lorenzo. Ma altra questione molto rilevante è la interdipendenza di alcuni dei progetti urbani molto importanti con i progetti infrastrutturali, uno per tutti la nuova centralità urbana di Acilia Madonnetta, la cui attuazione è subordinata alla realizzazione di una linea metropolitana mai finanziata.
5. Piano e progetti di piano: un bilancio impossibile
Oggi Roma è notevolmente diversa dal 2008 e ancor di più dal 2003, anno di adozione del Nuovo PRG, ma lo è anche il nostro Paese. E lo è anche l’economia sia della città che della nazione, come le dinamiche sociali e, più in generale, le esigenze dei cittadini. Dal 2008 ad oggi abbiamo assistito ad accadimenti eccezionali e imprevedibili. Basti ricordare la crisi finanziaria del 2007 con la suc-
cessiva “Grande recessione” del 2008, la crisi generata dalla pandemia del 2020 e in ultimo, ma non ultimo, la più recete crisi energetica del 2022 determinata dall’invasione russa in Ucraina. L’effetto di tutto ciò è che i valori immobiliari a Roma sono, praticamente, gli stessi del 2008. Ma, come ci dice il CRESME anche il prodotto interno lordo, popolazione e natalità tardano a crescere, contrariamente alla popolazione anziana. Nel 2031 gli oltre 64 anni saranno più del 30% della popolazione totale.
Inoltre anche a causa deli eventi sopra citati, in Italia e in Europa si sono definitivamente affermate politiche urbane completamente diverse dalle precedenti. Improntate ai principi di sostenibilità ambientale, rigenerazione della città esistente e contenimento dell’uso di nuovo suolo. Tali politiche hanno ispirato ben due leggi regionali urbanistiche derogatorie:

• il “Piano casa” della L.R. n. 21/2009, varata immediatamente dopo l’approvazione del piano per favorire interventi di sostituzione edilizia nella città consolidata;
• la successiva L.R. n. 7/2017 sulla “Rigenerazione urbana”, evoluzione del precedente provvedimento.
E sono stati approvati diversi provvedimenti legislativi nazionali, tra i quali:
• l’adozione, in sede di Intesa tra Stato, Regioni e ANCI, raggiunta nel 2016, del Regolamento Edilizio Tipo (RET);
• il testo unico sull’edilizia di cui al D.P.R. n. 380/2021 che, anche con le successive modifiche, ha introdotto notevoli semplificazioni procedurali in particolare per interventi di demolizione e ricostruzione assimilati alla ristrutturazione edilizia e pertanto assentibili con semplici SCIA;
• e, in ultimo, i provvedimenti c.d. "Salva Casa" e "Salva Milano" del 2024.
Provvedimenti che si sono sovrapposti alla disciplina di piano e, in particolare alle NTA che, come noto, anche per queste innovazioni legislative, il comune di Roma ha deciso di aggiornare e adeguare. Sulla base di queste brevi premesse, il solo pensare oggi a un bilancio sull’attuazione del PRG del 2008, anche se il pianificatore - si potrebbe dire “generosamente” - lo ritenesse già attuato nel 2011, fa tremare i polsi e poi, comunque, sarebbe sbagliato quanto inutile. E sarebbe troppo ingeneroso rispetto a chi allora lo pensò e lo approvò, un po’ troppo tempestivamente forse, rispetto alle nuove teorie e alle nuove pratiche che si stavano affermando nell’accademia e nella disciplina. Che tendono al

superamento del modello razional comprensivo, dai contenuti e con una progettualità così complessi che, come dimostra il caso di Roma, sono in gran parte irrealizzabili, e lo erano in gran parte fin dal loro concepimento, per l’assenza di due condizioni essenziali per la loro attuazione: la domanda di mercato e la finanza. E questo vale sia nel caso di progetti pubblici (verde, mobilità e servizi) che privati (progetti immobiliari, ma non solo).
Se quindi facessimo una verifica di attuazione dei progetti sia urbani che su verde e mobilità precedentemente citati, non potremmo che constatare in buona parte l’ineffettualità dell’azione pianificatoria. E ciò sarebbe particolarmente evidente per quanto riguarda l’enorme parco dei progetti pubblici, a iniziare dal verde, per i quali è evidente l’affanno in cui si trova il comune nel sostenere la spesa correte anche per la sola manutenzione ordinaria. Il problema è enormemente ingigantito per quanto riguarda gli investimenti e, in particolare, quelli infrastrutturali irrealizzati e irrealizzabili per le scarse risorse locali disponibili. A dimostrazione di ciò basti pensare che solo una piccola parte di essi sono stati realizzati o sono in corso di realizzazione, ma ciò è potuto avvenire quasi esclusivamente attraverso il ricorso a finanziamenti statali (come nel caso della linea C della metropolitana) o, più recentemente, con i fondi europei o del PNRR.
Ma in situazione analoga si trovano anche le nuove grandi progettualità urbane localizzate in aree periferiche oramai poco apprezzate dal mercato e dove i bassi valori immobiliari e l’incremento dei tassi di interesse rendono gli investimenti poco convenienti.
Inoltre l’assenza di risorse e di crescita economica, mali nazionali più che locali, hanno ulteriormente indebolito la vision strategica del piano,

Figura 8
Nuovo PRG di Roma - 2008
Progetti per il trasporto pubblico
Figura 9
Nuovo PRG di Roma - 2008
Progetti di infrastrutture stradali

rendendola totalmente incoerente rispetto ai nuovi bisogni sociali emergenti (basti pensare alle nuove povertà e alla nuova domanda abitativa), e rinunciataria rispetto all’auspicabile aspirazione della città ad assumere una leadership internazionale da capitale europea. Ragione per la quale il co-
mune ha recentemente avviato il progetto per una nuova visione sul futuro della capitale, demandata al “Laboratorio Roma50” coordinato da Stefano Boeri13. Un piano quindi, quello del 2008, con molte luci ma con almeno altrettanto ombre.
Note
1. Pag. 3 punto 1.2. “Che tipo di piano” Relazione del Nuovo Piano Regolatore di Roma – 2008
2. Pag. 9 punto 2.1. “Un laboratorio urbanistico” del Cap. 2 “La Metodologia” Relazione del Nuovo Piano Regolatore di Roma – 2008
3. Cfr Cap. 7 “Le dimensioni del piano” della Relazione del Nuovo Piano Regolatore di Roma – 2008.
4. Cfr pag. 92 Punto 7.3. “L’offerta” nel Cap. 7 “Le dimensioni del piano” della Relazione del Nuovo Piano Regolatore di Roma – 2008.
5. Cfr: Pag. 7 Cap. 1.2.2. “Un piano per il governo del territorio delle trasformazioni urbane” Relazione del Nuovo Piano Regolatore di Roma – 2008
6. Cfr: “La compensazione edificatoria” nel Cap. 1.2.2. “Un piano per il governo del territorio delle trasformazioni urbane” Relazione del Nuovo Piano Regolatore di Roma – 2008
7. Art.20 delle N.T.A del Nuovo Piano Regolatore di Roma – 2008
8. Cfr: a cura di Piero Salvagni “Roma Capitale del XXI secolo – la città metropolitana policentrica” Palombi Editore - 2005
9. Cfr: pag. 26 punto 4.2 “I principio di sostenibilità” dl Cap. 4 “Le cinque opzioni del nuovo piano” della Relazione del Nuovo Piano Regolatore di Roma – 2008. Dove si legge: “Per quanto riguarda la risorsa suolo, il piano garantisce innanzitutto l’arresto del consumo di suolo extraurbano”
10. Punto 7 dell’art. 13 “Norme generali per g interventi indiretti” delle NTA del Nuovo Piano Regolatore di Roma – 2008
11. Punto 3.4. “Un piano per la qualità” nel Cap. 3 “I connotati del nuovo piano urbanistico” Relazione del Nuovo Piano Regolatore di Roma – 2008
12. Cfr: pag. 31 punto 4.5 “Il sistema della mobilità” del Cap. 4 “Le cinque opzioni del nuovo piano” della Relazione del Nuovo Piano Regolatore di Roma – 2008.
13. Vedi : https://www.comune.roma.it/web/it/notizia.page?contentId=NWS1157740




Ripercorrere la storia del progetto urbano, con la finalità di comprendere le vicende che hanno caratterizzato la modificazione della città e dei suoi paesaggi, è certamente un’operazione complessa, che rimanda all’approfondimento delle numerose declinazioni teoriche sul tema.
In ambito europeo, l’origine degli studi sul progetto della città è maturata nella seconda metà del Novecento, esprimendo esiti differenti nei processi di diffusione e di adattamento alle diverse geografie. In Italia, ad esempio, la maggiore produzione teorica sull’argomento è riconducibile proprio a questo periodo storico con gli scritti dei maestri Giuseppe Samonà, Vittorio Gregotti, Aldo Rossi, Carlo Aymonino, Gianfranco Caniggia e Gian Luigi Maffei, Giorgio Grassi, solo per citarne alcuni1, che ancora oggi riconosciamo come fondamentali contributi sulla nascita e sull’evoluzione di una cultura urbana moderna.
Tuttavia, è certamente d’interesse capire per quale ragione si avverte la necessità di ritornare su questo argomento, in un momento in cui, per riprendere le parole che Bernardo Secchi riporta sulle pagine di Casabella2, “le condizioni
sono cambiate”, ovvero i principi su cui oggi è fondata la “costruzione della città” non sono più quelli che hanno caratterizzato il passato, nel corso del quale, come è noto, al paradigma “Architettura-costruzione” è subentrato quello “Architettura-città”, sostituito, successivamente, dal binomio “Architettura-paesaggio”; quest’ultimo suggerisce scale differenti, fa appello a molteplici discipline, richiama relazioni prima inespresse, mette al centro l’uomo abitante e la sua consapevolezza di essere artefice di una definita costruzione spaziale.
Ma se gli esiti delle azioni del progetto contemporaneo sull’esistente sono ancora metaforicamente descritte dalla figura dell’Angelus Novus, disegnato da Paul Klee e descritto da Walter Benjamin, che, con la faccia rivolta al passato e le ali spiegate, è spinto dal vento verso il futuro - se, dunque, il progetto del presente fonda le sue ragioni nel passato - allora il bisogno di riprendere questa lezione dimostra che non tutto è stato pienamente compreso. Gli argomenti che seguono attraversano alcuni testi - già pubblicati da chi scrive - supportati da nuove considerazioni a partire da un'analogia.


Gli antefatti
Quando Max Weber viene invitato a Monaco in occasione del ciclo di incontri, organizzato dalla sezione di studenti democratici, dal titolo “Lavoro intellettuale come professione”, egli argomenta sui temi “La scienza come professione” (1917) e “La politica come professione” (1919), descrivendo del profondo disequilibrio creatosi nel modo in cui l’uomo è interprete del mondo. Il sociologo ragiona sull’incedere di un processo d’intellettualizzazione dei fenomeni operato dalla scienza che ha generato un profondo e generalizzato ‘disincantamento’. In architettura, questa visione weberiana è riconducibile al periodo della ricostruzione post-bellica, ovvero a quei processi di ricostruzione dello spazio della città nei quali «il progetto moderno, teorizzando la tabula rasa, per liberarsi dai vincoli di un passato inattuale, ha contestualmente generato i germi del suo fallimento e del suo rapido esaurirsi in un presente senza passato, ma anche senza futuro»3. Questa costruzione spaziale è incapace di trasmettere quelle emozioni che riconosciamo all’Architettura come forma ge-
neratrice della città. In altre parole, per ritornare al pensiero weberiano, la perdita del ricorso a entità misteriose (trascendenti), con le quali spiegare i fenomeni naturali, non permette di dare risposta alla domanda sui modi con cui dobbiamo vivere, e, nello stesso tempo, allontana l’atto creativo dalle forme dell’immaginazione poetica, necessarie all’architettura come ragione della sua stessa sopravvivenza. Non c’è dubbio, dunque, che la modernizzazione e la razionalizzazione dei processi abbiano generato numerosi ostacoli nella ricerca di risposte al senso morale, filosofico e sociale dei modi di abitare.
Ciononostante, facendo riferimento alla “teoria dei contrari”, il ‘disincanto’ presuppone la presenza del ‘reincanto’, anzi, l’uno esiste in ragione dell’altro, come fatti inscindibili e interdipendenti, come si avrà modo di descrivere meglio in seguito. La crisi del moderno, riferibile alla rinuncia alla costruzione dello spazio pubblico, alla mono-funzionalità degli interventi – nonché alla loro ripetizione e isolamento – ai processi di banalizzazione dello spazio pubblico e alla mancata proiezione dell’architettura sulla città, ha governato il progetto degli


anni Cinquanta del Novecento, nel quale il disegno urbano era costituito dalla sommatoria di parti autonome, senza alcun riguardo alla composizione come strumento di relazione di un’unità di figura nella quale ciascun elemento non ha ragione di esistere per se stesso, ma è in grado di esprimere il suo maggior valore nell’appartenenza al tutto.
La risposta alla crisi di questa siffatta immagine urbana – per richiamare l’analogia precedentemente descritta – ha portato verso forme d’intromissione e d’innesto, con l’intento di ricondurre la modificazione della città nei solchi della continuità storica; ovvero, i percorsi di ‘reincanto’ possono essere ricondotti ai percorsi con cui Ernesto Nathan Rogers nel 1955 descrive le “Preesistenze ambientali”4, sostenendo che i processi immaginativi del progetto contemporaneo, non possono più appartenere a fatti meramente quantitativi, ma devono maturare nell’interpretazione dell’esistente, con cui si è capaci di generare collisioni temporali prima imprevedibili, in grado non solamente di accompagnare il passato nel presente, ma anche di riportare hic et nunc le ragioni di un altrove.
Il progetto urbano come pensiero creativo
Quando, trentaquattro anni dopo lo scritto di Rogers, Manuel de Solà Morales tratteggia, sulle
pagine della rivista Lotus, il progetto urbano moderno, egli prende le distanze da quei percorsi di ‘disincantamento’ generati dall’applicazione degli aridi principi della Carta d’Atene, per descrivere la costruzione della città a partire da cinque punti, tutti ugualmente validi e necessari affinché l’intervento stesso possa dare piena espressione all’architettura urbana. Egli, infatti, scrive: «[…] per definirli progetti urbani potremmo fissare cinque punti:
1. effetti territoriali oltre la loro area d’intervento;
2. carattere complesso e interdipendente dei contenuti; superamento della monofunzionalità – parco, strada, tipologia, ecc. – mescolanza di usi, utenze, ritmi temporali, e orientamenti visivi;
3. scala intermedia, da completarsi in un tempo limite massimo di pochi anni;
4. impegno volontariamente assunto di adottare un’architettura urbana, indipendentemente dall’architettura degli edifici;
5. importante componente pubblica negli investimenti e negli usi collettivi del programma»5 Si ritiene che questa definizione sia ancora pienamente valida. Essa, infatti, è stata considerata nel 2017 come base delle riflessioni del volume “La deriva del progetto urbano. Perdere e riprendere la rotta”, pubblicato da chi scrive per i tipi LetteraVen-


tidue. Nel testo, uno degli ultimi scritti che in Italia riprende le teorie sul progetto della città attraverso la comparazione tra gli studi italiani e quelli francesi, si avanza l’ipotesi che il Progetto urbano sia da considerare una ‘opera aperta’, alla quale associare quattro ragioni, ancora pienamente efficaci. La prima riconosce questo carattere nella sua natura processuale, ovvero nel suo farsi nel tempo; la seconda rimanda alla teoria dell’indeterminazione per la quale vi è una mancanza di certezza nella corrispondenza tra obiettivi che ci si prefigge e risultati che si ottengono; in tal senso il progetto ha la possibilità di aprirsi a situazioni imprevedibili che gli assegnano una nuova struttura nel presente. La terza riguarda la molteplicità delle narrazioni possibili, che possono raccontare differenti modi di modificazione dei contesti. Infine, la quarta interpretazione riguarda l’attitudine del progetto di essere concordanza di discordanze, in relazione alla quale ciò che è successivo in termini temporali non ha sempre un valore deterministico, ma interpretativo. Ciò appare più chiaro se consideriamo i modi con cui l’atto creativo matura nell’arte cinematografica. Questo aspetto è stato affrontato durante la bella lezione che Gilles Deleuze propone nel 1987 agli studenti Fémis, presso l’École Nationale Supérieure des Métiers de l’Image et du Son, nella quale egli s’interroga sul rapporto tra Filosofia e Cinema a partire
dal concetto di “atto creativo”, mostrando, attraverso l’analogia tra Arte e Cinema, come la modificazione dei luoghi sia esito di uno sguardo critico in ogni “parte del presente concreto”6, facendo riferimento a un percorso di costruzione dell’opera che è risultato delle relazione di materiali della realtà e del sogno (di continuità e d’invenzione). In tal senso, il Cinema esprime il proprio processo creativo attraverso blocchi di 'movimento/durata”, con i quali procede nella costruzione narrativa attraverso il montaggio (strumento compositivo), così come la Pittura avanza nelle proprie figure attraverso l’elaborazione di blocchi di “linee/colore”. Ora, ricorrendo ancora a un’analogia, è possibile descrivere la creatività architettonica attraverso blocchi di ‘forme/usi’, «con i quali si offre una personale interpretazione del mondo, accordando l’idea (il pensiero) con l’atto (l’azione)», a partire da un ‘tema’, capace «di mettere ordine rispetto a una condizione iniziale carica d’imprevedibilità e d’indeterminazione»7 Questo incedere del progetto non si dà attraverso la sommatoria di fatti, ma attraverso la loro collisione (il loro prodotto), in grado di esprimere una costruzione di senso compiuto. In questo contesto, dunque, parlare del progetto per la città come strategia del ‘reincanto’ significa operare nella costruzione di relazioni tra fatti urbani, immaginando il paesaggio come conseguenza


dell’architettura: un percorso del pensiero creativo – una scoperta del nuovo nel vecchio – che genera smarrimento e ‘deriva’ verso mondi sconosciuti, col desiderio di rivelare ciò che è in procinto di essere scoperto, appropriandosene pienamente8
Il progetto urbano come ‘opera aperta’
Per evitare inutili fraintendimenti, il carattere di ‘opera aperta’ è un fatto radicato nel progetto e, per questa ragione, esso è difficile da contrastare; ciò non significa che le azioni di modificazione dell’esistente godano di un’aura d’indeterminazione, ma, al contrario, esse sono fatti deterministici e certi. Tuttavia, come è facile osservare, una volta raggiunta la composizione dei suoi elementi le figure e le forme si predispongono per accettare un nuovo cambiamento. Questo percorso creativo non è mai lineare, quanto piuttosto carico di ‘derive’, di ‘cambiamenti di rotta’, che non costituiscono un aspetto negativo apriori. In alcuni casi, la perdita della direzione apre verso scenari inaspettati che permettono di costruire un nuovo presente. In altri casi, quando l’approdo non costituisce un felice scenario, è necessario mettere in essere tutte le forze per riprendere la narrazione precedente, quella nella quale “il passato aveva riposto piena fiducia di redenzione, esprimendo il proprio diritto a far parte del presente”9 Due esempi possono contribuire a dare un’efficace spiegazione di quanto finora esposto: il progetto della centralità metropolitana Romanina a
Roma e quello della Plaine Saint-Denis a Parigi. La scelta di questi interventi non è certamente casuale. È noto che nel corso della storia del Novecento la cultura urbana italiana e quella francese hanno avuto diversi momenti di confronto reciproco. Infatti, quando Aldo Rossi pubblica nel 1966 il libro “L’Architettura della città” fa esplicito riferimento alle ricerche condotte da Pierre Lavedan che, nell’introduzione agli studi “Histoire de l’Architecture urbaine”, pubblicato a Parigi nel 1926, già si esprimeva sulla necessità di un progetto che doveva assegnare importanza straordinaria al piano d’insieme, non tanto attraverso la sommatoria di piccoli “fatti urbani”, quanto, piuttosto, con entità pensate nella loro autonomia e costituite da ‘architetture urbane’. Successivamente, il numero monografico «Italie 75» della rivista «L’Architecture d’Aujourd’hui», diretta in quegli anni da Bernard Huet10, fa transitare le teorie italiane in Francia. Ciò detto, mentre il progetto urbano in Francia, anche attraverso il contributo delle riviste, ha avuto la forza di consolidarsi e di evolvere in modo proprio, in Italia la sperimentazione procede con molta lentezza creando dei disequilibri tra pensiero e azione che negli anni difficilmente si sono colmati. È d’interesse, dunque, osservare che l’influenza della cultura urbana italiana in questo territorio d’Oltralpe, abbia poi proseguito in senso inverso proprio in considerazione di questi due interventi. Quando, nell’anno accademico 2004-2005, nell’ambito dell’attività didattica del Diplôme d’Études Approfondies : “Théorie et dispositive”

(DEA) presso l’École Nationale Supérieure d’Architecture de Belleville, Yannis Tsiomis – in qualità di direttore di studi – invita Maurizio Marcelloni a tenere una lezione sul progetto urbano a Roma, lui ripercorre i concetti dei suoi ultimi due libri: “Pensare la città contemporanea. Il nuovo Piano Regolatore di Roma” (2003) e “Questioni della città contemporanea” (2005), mostrando come il progetto della Plaine Saint-Denis sia stato il riferimento principale dell'esperienza romana.
A Parigi, la presenza del Boulevard Périphérique non ha costituito un limite all’espansione urbana, proponendosi come elemento lineare di mediazione tra il tessuto denso della città centro e quello più sfrangiato della sua immediata periferia industriale. Già lo stesso Schéma Directeur d’Aménagement Urbain (SDAU), risalente al 1965, prevedeva la costituzione di cinque ville nouvelle attorno alla città, in direzione parallela alla Senna. Quando questa proposta si concretizza appare subito evidente il carattere di questi territori marginali attorno alla città: da una parte, quelli più prossimi al centro, aspirano a una qualità più elevata rispetto a quelli isolati e sfrangiati in area metropolitana, il cui breve tempo di realizzazione non ha permesso di generare l’urbanità sperata. Così, quando lo Schéma Directeur de la Région Île de France (SDRIF, 1994) propone come territori strategici di sviluppo quelli de La Défense, di Billancourt, di Seine-Amont e di Saint-Denis, contemporaneamente si palesa un sistema policentrico nel quale la Plaine riveste un ruolo particolarmente
strategico. Essa è una vasta zona industriale di 660 ettari a nord della città di Parigi, estesa su tre differenti comuni: Saint-Ouen Saint-Denis e Aubervillers, che, per mancanza di nuovi investimenti tra la seconda metà degli anni Sessanta e gli anni Ottanta, attraversa una crisi profonda che genera un territorio in completo abbandono, privo di qualità nello spazio pubblico. La riqualificazione di questo contesto matura a valle della legge sulla decentralizzazione amministrativa del 1983 e in seguito alle indicazioni dello stesso SDRIF che promuove un nuovo disegno territoriale capace di migliorare l’abitare attraverso l’incremento della popolazione residente (fino a 50.000 nuove unità) e un massiccio intervento nel trasporto pubblico, con l’obiettivo di avvicinare questo pezzo di città alla capitale. Si costituisce un Syndacat Mixte Intercommunal-Plaine Renaissance, organo finanziato dallo Stato, poi Societé d’Economie Mixte (SEM), che avvia una prima consultazione ad inviti alla quale partecipano gli architetti Pierre Riboulet, Reichen et Robert, Yves Lion e Christian Devillers. Le proposte sono rilette in un unico disegno urbano, coordinato da Yves Lion attraverso la collaborazione di tre delle cinque équipe riunite in un unico raggruppamento denominato Hippodamos. L’intervento proposto assume i caratteri di un processo di preverdissement (Figure 1-2-3-4), che migliora la qualità dello spazio aperto, fondando il disegno sull’individuazione di punti notevoli nel territorio e propone la costruzione di trasversalità urbane, viali e strutture verdi che, nel predi-

sporre lo spazio a futuri interventi, suggeriscono forme e caratteri della nuova architettura. «Come affermerà Michel Corajoud, l’azione sulla Plaine più che un progetto appare come una strategia, che rifiuta l’apparato legislativo (un progetto che precede il piano, n.d.r.) per orientare l’intervento verso la costruzione dello spazio pubblico e del paesaggio urbano: tutti elementi che concorrono a costruire un’idea di città prescindendo dai programmi e dagli elementi tipologici aprioristici. In tal senso, questa forma di urbanità futura, questa trama vegetale che uniforma e regola lo spazio, permetterà all’abitante di ritrovare un sufficiente grado di appartenenza (al tutto, n.d.r.)»11. In altre parole, questo progetto introietta la temporalità, assumendola come elemento generativo, e, accettando le scritture successive, dà corpo a un ‘processo di figuratività’, o meglio, a un territorio di possibilità future che non tarderanno a concretizzarsi: la proposta per il Grand Stade de France in occasione dei mondiali del 1998, la riqualificazione dei Magazzini Generali del 2011, la candidatura ai Giochi Olimpici del 2012, per ricordarne alcuni, fino alla realizzazione del Villagio Olimpico per i giochi del 2024 realizzato da Dominique Perrault. In tal senso, la Plaine Saint-Denis dimostra di aver “ritrovato la rotta” dopo aver attraversato i territori dello sperdimento, avendo ben chiare, però, le azioni per il ‘reincantamento’ dei luoghi urbani. Meno felice appare, invece, l’intervento per la centralità metropolitana di Romanina a Roma, nonostante i presupposti dettati dalla norma siano stati particolarmente aperti verso un intervento che doveva possedere un carattere analogo (Figure 5-6-7-8-9). Anche in questo caso, la necessità di rinnovare il Piano Regolatore Generale della città, risalente al 1962, così come la volontà di ridurre gli effetti dell’eccessivo incremento edilizio, porterà all’adozione del Nuovo Piano Regolatore Generale che prevede la scelta di una struttura policentrica, attraverso la realizzazione di 18 nuove centralità di rango urbano e metropolitano, divise in due categorie: 'a pianificazione definita' e 'da pianificare'. Per attuare queste polarità il piano fa ricorso al Progetto Urbano, così come definito dall’art. 16, comma 1 delle Norme Tecniche di Attuazione: «Il progetto urbano è una procedura finalizzata alla definizione progettuale delle previsioni del PRG, in relazione alla parti di città interessate direttamente o indirettamente da interventi di rilievo urbano; tale procedura consente, anche confrontando soluzioni alternative, un’accurata verifica della sostenibilità urbanistica, ambientale, economica e sociale delle iniziative proposte, che devono assicurare altresì elevati livelli di qualità urbana ed ambientale e di partecipazione democratica», a cui seguono ulteriori 15
commi di maggiori specifiche. L’area in esame, la cui superficie è di 92,8 ettari, appartiene all’immobiliare Scarpellini; essa è caratterizzata da un insieme di borgate ex-abusive su cui gravitano due funzioni metropolitane: a sud-ovest il centro IKEA; a nord il complesso universitario di Tor-Vergata; mentre a nord-est un’ampia area archeologica. Il concorso, bandito nel 2004, procede attraverso una fase preliminare e una definitiva. La proprietà, secondo una procedura ristretta, individua i gruppi da invitare nella prima fase: MVRDV (Amsterdam, Alessandro Anselmi (Roma), Francesco Venezia (Napoli), 5+1 (Genova), Bruno Fortier (Parigi), Avventura Urbana (Torino), Carmen Andriani (Roma) e Manuel Salgado (Lisbona). Questo primo momento si conclude con la selezione di tre gruppi di progetto, a cui sono state date numerose prescrizioni per la seconda fase, vinta in seguito dall'architetto portoghese Manuel Salgado. La sua proposta appartiene alla grande scuola italiana del progetto urbano, dalla quale si evince una chiara volontà di costituire un’unità architettonica e urbana densa, impostata su cardo e decumano. Ciò è particolarmente evidente anche negli schizzi, che mostrano una dimensione di grande scala, in contrasto con le immagini fotorealistiche che ricercano sempre una dimensione di spazio pubblico strettamente legata agli edifici più rappresentativi.
La difficoltà con cui si attua l’intervento – la “perdita di rotta” che il progetto esibisce – è imputabile alla prevalente dimensione quantitativa, a cui è possibile associare ulteriori ragioni. La prima è certamente l’eccesso di fiducia che lo strumento urbanistico ripone nei confronti della struttura comunale e dell’imprenditore privato. La seconda ragione è certamente la mancata volontà di gestione dell’intervento da parte di una Società di Trasformazione Urbana, come accaduto nel caso parigino. Non è da sottovalutare, inoltre, la natura speculativa che spesso è associata a questo genere d’interventi, orientati più alla costruzione di residenze che di attività di servizio. In altre parole, ciò che appare in un primo momento è un «[…] progetto urbano pensato come una grande lottizzazione con qualche opera pubblica, come hanno sostenuto sia Maurizio Marcelloni che, successivamente, Laura Valeria Ferretti»12
In conclusione, per ritornare alle considerazioni iniziali, il progetto urbano come forma di ‘reincanto’ rimanda alla capacità di pensare la qualità piuttosto che la quantità, di costruire quel senso poetico associato all’architettura (urbana) e ai suoi spazi, capace non solamente di nutrire i paesaggi, ma anche di richiamare le proprie memorie incarnate per rievocate le emozioni di ciascuno, ma anche le capacità di giudizio nei confronti dei modi del buon Abitare il presente.















Bibliografia
• Amirante R. (2018). Il progetto come prodotto di ricerca. Un’ipotesi., LetteraVentidue, Siracusa
• Cocco G. B. (2017), La deriva del progetto urbano. Perdere e riprendere la rotta, LetteraVentidue, Siracusa
• Corti E.A. (2008), «Progetto/Paesaggio», in Girot C., Siddi C. (a cura di), Santa Gilla. Una laguna nel paesaggio metropolitano di Cagliari, Gangemi, Roma, pp. 32-33.
• Devillers C. (2003), Il progetto urbano, in “Rassegna di Architettura e Urbanistica”, Anno XXXVII – n. 110/111, Kappa, Roma.
• Gregotti V. (2014), Il disegno come strumento del progetto, Christian Marinotti, Milano.
• Gregotti V. (1995), Progetto urbano e pianificazione un dialogo necessario, in “Urbanistica”, 104,
• giugno, pp. 126-128.
• Gregotti V. (1984), Modificazione, in “Casabella”, 498-499, gennaio/febbraio 1984, pp. 2-7.
• Huet B. (2024), Elogio della continuità in Architettura. Scritti scelti. Cocco G.B. (a cura di), Christian Marinotti edizioni, Milano.
• Marcelloni M. (a cura di, 2005), Questioni della città contemporanea, Franco Angeli, Milano, 2005.
• Marcelloni M (2003), Pensare la città contemporanea. Il nuovo piano regolatore di Roma, Laterza, Milano, 2003.
• Rogers E.N. (1955), Le preesistenze ambientali e i temi pratici contemporanei, in «Casabella-Continuità», 204, febbraio-marzo, pp. 3-6.
• Secchi B. (1984), “Le condizioni sono cambiate”, Casabella, n. 498-499, ora in id. 1989c, pp. 48-56.
• Secchi B (1982), L’architettura del piano, in “Casabella”, 478, marzo, pp. 16-17.
• Solà Morales M. de (1989), Un’altra tradizione moderna. Dalla rottura dell’anno trenta al progetto urbano moderno, in “Lotus”, 64, ottobre/dicembre, pp. 8-14.
Note
1. Ciascuno ha offerto una differente declinazione del tema: Giuseppe Samonà, in continuità con Saverio Muratori, ha introdotto l’interesse degli studi tipomorfologici (L’urbanistica e l’avvenire della città negli Stati europei, 1959); Vittorio Gregotti si è interrogato sulla scala antropogeografia dell’intervento architettonico, sulla figuratività del segno e sulle strutturazioni formali del paesaggio come patrimonio dell’architettura (Il territori dell’architettura, 1966); Aldo Rossi sul rapporto tra città e monumento (L’architettura della città, 1966); Carlo Aymonino sulla relazione tra città e tessuto (Origini e sviluppo della città moderna, 1965; Lo studio dei fenomeni urbani, 1977), così come Gianfranco Caniggia e Gian Luigi Maffei (Composizione architettonica e tipologia edilizia, 1979); Giorgio Grassi sulla genealogia del razionalismo e sulla dimensione analitica dell’architettura nella città (La costruzione logica dell’architettura, 1967). Cfr. Giovanni Battista Cocco (2017), La deriva del progetto urbano. Perdere e riprendere la rotta/The urban project adrift. Losing and finding the route, LetteraVentidue, Siracusa.
2. Secchi B., 1984, Le condizioni sono cambiate, Casabella, n. 498-499, ora in id. 1989c, pp. 48-56.
3. Corti Enrico A., Progetto/Paesaggio, in Cristophe Girot, Cesarina Siddi (a cura di), Santa Gilla. Una laguna nel paesaggio metropolitano di Cagliari, Gangemi, Roma 2008, pp. 32-33.
4. Rogers Ernesto Nathan, Le preesistenze ambientali e i temi pratici contemporanei, in «Casabella-Continuità», 204, febbraio-marzo 1955, pp. 3-6.
5. Manuel de Solà Morales, Un’altra tradizione moderna. Dalla rottura dell’anno trenta al progetto urbano moderno, in “Lotus”, 64, ottobre/dicembre 1989, pp. 8-14.
6. Vittorio Gregotti, Modificazione, “Casabella”, n. 498-499, p. 35.
7. Cfr. Cocco Giovanni Battista (2023), Comporre lo spazio e il tempo/Composing space and time, in Cocco Giovanni Battista, Giannattasio Caterina, Architetture liberate. Il carcere storico di San Sebastiano. Architettura e video/ Liberated architecture. The historic prison of San Sebastiano in Sassari. Architecture and video, Gangemi Edizioni, Roma, pp. 160-181.
8. Cfr. Giovanni Battista Cocco, La deriva del progetto urbano. Perdere e riprendere la rotta/The urban project adrift. Losing and finding the route, p. 101, op. cit.
9. Cfr. Giovanni Battista Cocco, La deriva del progetto urbano. Perdere e riprendere la rotta/The urban project adrift. Losing and finding the route, p. 17, op. cit.
10. Per maggiori approfondimenti su questo maestro si rimanda al volume Bernard Huet (2024), Elogio della continuità in architettura. Scritti scelti. Cocco G. B. (a cura di), Christina Marinotti edizioni, Milano.
11. Giovanni Battista Cocco, La deriva del progetto urbano. Perdere e riprendere la rotta/The urban project adrift. Losing and finding the route, p. 131, op. cit.
12. Giovanni Battista Cocco, La deriva del progetto urbano. Perdere e riprendere la rotta/The urban project adrift. Losing and finding the route, p. 112, op. cit.


Ing. Marisdea Castiglione, Ing. Alessandro Fuschiotto, Prof.ssa Marialisa Nigro


Il Piano Regolatore Generale (PRG) è il fulcro della pianificazione urbana, uno strumento fondamentale che delinea il futuro assetto del territorio, la disposizione delle infrastrutture e la distribuzione dei servizi essenziali. In questo quadro, la pianificazione dei trasporti assume un ruolo cruciale, influenzando direttamente la mobilità cittadina, l'accessibilità ai servizi e, di conseguenza, la qualità della vita urbana. Un'integrazione efficace dei trasporti nel tessuto urbano è fondamentale per sviluppare una rete che risponda alle esigenze di spostamento dei cittadini e minimizzi l'impatto ambientale, attraverso la progettazione di infrastrutture viarie, sistemi di trasporto pubblico, piste ciclabili e percorsi pedonali.
Nonostante l'importanza di questa integrazione, la relazione tra pianificazione urbanistica e dei trasporti non è sempre stata armoniosa. Spesso, questi due ambiti hanno seguito percorsi paralleli, se non conflittuali, anziché sinergici. Questa mancanza di coordinamento ha generato nel tempo inefficienze e criticità nella mobilità, problemi che avrebbero potuto beneficiare di un approccio più integrato. Superare queste barriere è essenziale per un vero sviluppo urbano sostenibile, promuovendo una pianificazione che armonizzi le diverse esigenze e ottimizzi le risorse. Questo articolo esplora il rapporto tra urbanistica e trasporti nella città di Roma, focalizzandosi sul ruolo dei trasporti negli strumenti di pianificazione. Inizialmente, esamineremo gli strumenti di pianificazione urbana adottati nel tempo a Roma, valutando come abbiano influenzato la rete dei trasporti. Successivamente, analizzeremo l'efficacia delle politiche attuate, studiando il divario tra le previsioni dei piani regolatori e le realizzazioni concrete. Saranno identificati sia gli interventi di successo che quelli mancati, evidenziando le cause delle discrepanze riscontrate. Infine, discuteremo le opportunità emergenti nella pianificazione dei trasporti urbani.
Attraverso questa analisi, l'articolo intende offrire una visione dello stato attuale della pianificazione dei trasporti a Roma, proponendo riflessioni per migliorare le strategie future e contribuire allo sviluppo di una città più efficiente e vivibile.
Dai Primi Piani Regolatori alle Sfide Future
La pianificazione urbana a Roma ha subito significative trasformazioni nel corso degli anni, guidata da vari strumenti normativi e strategici che hanno cercato di rispondere alle esigenze di una popolazione in crescita e ai cambiamenti socio-economici. Analizzare la cronologia di questi strumenti permette di comprendere come le politiche adottate abbiano influenzato l'assetto urbano attuale e la rete di trasporti.
Il Piano Regolatore Generale del 1962 (PRG 62) rappresenta uno dei primi tentativi strutturati di pianificazione urbana a Roma, sviluppato in risposta al boom dell'edilizia dovuto alla crescita della popolazione. Sviluppato in un'epoca di rapida crescita automobilistica, il piano si concentrava sulla creazione e l'ampliamento delle reti stradali per facilitare la mobilità individuale, prevedendo la realizzazione di grandi arterie urbane e periferiche, ampie infrastrutture di parcheggio e una chiara separazione delle zone residenziali, industriali e commerciali. Nonostante fossero presenti alcune considerazioni per il trasporto pubblico, il piano non integrava efficacemente questo sistema nel tessuto urbano, riflettendo la dominante cultura automobilistica dell'epoca del boom economico italiano.
Tuttavia, il contributo al decadimento del trasporto pubblico e la promozione del trasporto privato hanno origini che risalgono agli anni '30 con Mussolini, il cui regime iniziò a modellare la città con un'accentuata preferenza per il trasporto privato. Questa tendenza fu poi portata avanti dal PRG del 62, il cui disegno emerse già nel dibattito nell'immediato dopoguerra, nella prima commis-

sione del 1946, attraverso una ricercata rottura con le buone idee della pianificazione precedente. Il PRG ha quindi istituito un apparato normativo e una trama territoriale che si sono rivelati deboli nel contrastare la rendita e l'abusivismo edilizio, ma forti nell'improntare il modo di pensare e di gestire il territorio fino ai giorni nostri.
Questa mentalità ha guidato per oltre settant’anni la trasformazione della capitale. L’enfasi sulle automobili, con la creazione di infrastrutture dedicate come parcheggi e strade ampie, promuoveva una netta distinzione tra le diverse zone della città, incrementando la dipendenza dalle auto per gli spostamenti quotidiani e favorendo un'espansione urbana verso le periferie. Questo approccio ha avuto impatti negativi sull'ambiente e sulla coesione sociale, generando una dipendenza che è stata oggetto di critiche per i suoi effetti a lungo termine sulla qualità della vita urbana.
Le politiche urbane adottate a seguito del Piano Regolatore Generale del 1962 hanno dovuto affrontare gli effetti di una pianificazione che privilegiava la mobilità privata, orientando gradualmente la strategia verso la sostenibilità e l'integrazione dei sistemi di trasporto pubblico. Il PRG del 1962, infatti, non aveva anticipato il ruolo cruciale che il trasporto pubblico avrebbe assunto nella pianificazione urbana moderna ed equilibrata, e questa consapevolezza ha ispirato numerose revisioni e modifiche nei piani regolatori successivi. Nonostante l'introduzione di un nuovo documento urbanistico nel 2008, l'impronta del vecchio PRG continua a dominare le scelte urbanistiche di Roma. I miglioramenti introdotti nel piano del 2008 sono principalmente il risultato delle divergenze rispetto al PRG del '62, mentre gli aspetti negativi emergono dalla continuità con le sue politiche. Le cosiddette "centralità" (ideate nel PRG ma mai realizzate), hanno rafforzato una struttura urbana centripeta, in contrasto con il principio di policen-
trismo che mirava a contestare, aggravando ulteriormente il carico sul Grande Raccordo Anulare (GRA) senza integrarlo adeguatamente nei nuovi piani di sviluppo urbano. Questo ha portato a considerare il nuovo Piano di Roma come un'ulteriore estensione del persistente PRG/62. Nonostante ciò, il nuovo piano rifletteva una crescente consapevolezza delle esigenze di un sistema di trasporto più integrato e focalizzato sul trasporto pubblico di massa. Questa nuova consapevolezza è stata evidenziata dalla significativa attenzione data allo sviluppo dei sistemi di trasporto pubblico nel PRG del 2008. Contrariamente all'approccio del 1962, che privilegiava il trasporto privato, il piano aggiornato ha posto una maggiore enfasi sulla necessità di un sistema di trasporto pubblico ben connesso e capillare, che potesse servire efficacemente l'intera metropoli. L'obiettivo era di ridurre la dipendenza dall'automobile, promuovendo alternative sostenibili come il trasporto su ferro e incrementando l'accesso a metropolitane, tram e autobus. Questo cambio di paradigma mirava non solo a migliorare la mobilità urbana, ma anche a contribuire alla riduzione dell'impatto ambientale, evidenziando un impegno verso una pianificazione urbana più sostenibile e responsabile. Tuttavia, la persistenza di elementi del vecchio PRG ha limitato la piena realizzazione di questi obiettivi, dimostrando come le inerzie storiche possano complicare la transizione verso modelli urbani più moderni e sostenibili.
Sebbene la sostenibilità ambientale non fosse ancora l'obiettivo principale, il piano ha comunque generato effetti positivi in tal senso.
L'evoluzione continua con il Piano Urbano della Mobilità Sostenibile (PUMS), che ha ulteriormente sviluppato il tema della sostenibilità. La Legge di Bilancio del 2016 ha reso obbligatoria la redazione del PUMS per accedere ai fondi nazionali per il

trasporto rapido di massa, segnando un impegno formale verso una pianificazione della mobilità più coerente con i principi di sostenibilità ambientale, economica e sociale. Il PUMS di Roma, e successivamente quello della Città Metropolitana, hanno mirato a migliorare la qualità dell'aria, ridurre i tempi di viaggio e incrementare l'uso del trasporto pubblico, della bicicletta e della mobilità pedonale. L'estensione del PUMS alla Città Metropolitana ha coordinato la mobilità su una scala più ampia, migliorando la connettività tra Roma e i comuni vicini, ottimizzando l'uso delle infrastrutture esistenti e sviluppando nuove soluzioni di mobilità integrata. L'introduzione dell'obbligatorietà del PUMS ha stimolato molte città italiane a ristrutturare le loro politiche di mobilità, portando a iniziative innovative come l'espansione delle reti di trasporto pubblico e l'installazione di infrastrutture per biciclette. Nonostante le sfide, la legge ha incentivato le amministrazioni locali a sviluppare piani di mobilità efficaci e sostenibili, contribuendo a una trasformazione progressiva delle realtà urbane in direzione di una maggiore sostenibilità e vivibilità.
La Complessità della Pianificazione Urbana e dei Trasporti a Roma
L'excursus negli strumenti di pianificazione urbana di Roma evidenzia una serie di tematiche critiche che richiedono un'attenzione particolare.
Una delle più significative è la storica mancanza di sinergia tra il piano regolatore urbanistico e il piano della mobilità. Sebbene ci siano stati tentativi nel PRG vigente per colmare questa lacuna, l'integrazione tra i due ambiti è rimasta insufficiente. Inizialmente, urbanistica e trasporti erano trattati come aspetti distinti negli strumenti di pianificazione: da una parte il PROIMO (Programma Integrato della Mobilità), focalizzato specificamente sui trasporti, e dall'altra il piano regolatore urbanistico. Il PROIMO era stato infatti concepito per ripensare la mobilità urbana di Roma, contrapponendosi al piano regolatore allora corrente. Tuttavia, ha introdotto uno scenario insolito in quanto è diventato uno strumento di riferimento senza mai però ricevere un'approvazione formale.
Durante l'adozione del PRG vigente, è stato necessario un lungo periodo di negoziazione per armonizzare le differenze tra i piani. Questo processo ha infine prodotto un documento congiunto, risultando nel piano regolatore finale. Questa situazione sottolinea la complessità e la natura spesso controversa del rapporto tra pianificazione urbanistica e dei trasporti. L'integrazione di questi due ambiti è essenziale per garantire lo sviluppo di una mobilità urbana sostenibile e armonica con la crescita della città, assicurando che le infrastrutture di trasporto e lo sviluppo urbano siano pianificati congiuntamente.
La disconnessione tra la pianificazione delle in-


frastrutture di trasporto e lo sviluppo urbano ha spesso, infatti, comportato un'espansione disordinata, con nuove aree residenziali sviluppate senza un adeguato supporto di trasporto pubblico. Il concetto di centralità urbana, in particolare, ha occupato un posto centrale nelle politiche di pianificazione urbana e trasportistica degli ultimi decenni. A Roma, una città caratterizzata da una struttura storica complessa e una rete di trasporti in continua evoluzione, questo concetto ha assunto forme peculiari.
La centralità urbana si basa sull'idea di creare attività e residenze attorno a nodi di trasporto strategici, con l'obiettivo di decongestionare il centro storico e distribuire uniformemente la densità abitativa e le attività economiche. Tuttavia, l'implementazione pratica di queste politiche ha presentato sfide significative, portando a risultati contrastanti in termini di mobilità e distribuzione socio-economica.
Nel dopoguerra, Roma ha vissuto una rapida espansione urbana durante la quale si sono cominciati a intravedere i primi tentativi di decentralizzazione. La necessità di ricostruire e riqualificare le infrastrutture distrutte o danneggiate dalla guerra ha portato alla creazione di nuove aree residenziali ai margini della città e alla costruzione di strade e ferrovie per collegare queste zone con il centro storico. Negli anni '70 e '80, poi, il concetto di centralità urbana si è formalizzato con la piani-
ficazione di aree metropolitane e locali attorno a nodi di trasporto. L'idea era quella di creare poli attrattivi fuori dal centro storico, integrando residenze, attività commerciali e servizi pubblici. Un esempio emblematico è il Sistema Direzionale Orientale (SDO), immaginato come uno dei principali poli di centralità urbana. Lo SDO doveva rappresentare un progetto urbanistico integrato per la riorganizzazione e ricollocazione delle infrastrutture direzionali pubbliche della città di Roma al di fuori del centro storico. Questo centro direzionale avrebbe dovuto essere realizzato a partire dagli anni Sessanta del XX secolo, ma dopo successivi rinvii e revisioni, non fu mai attuato e fu di fatto accantonato alla fine degli anni Novanta per lasciare il passo a progetti più settoriali.
Negli anni '90 e 2000, le politiche di decentramento si sono intensificate con la costruzione di nuove linee metropolitane, il potenziamento della rete ferroviaria regionale e lo sviluppo di infrastrutture stradali. L'obiettivo era rendere più accessibili le aree periferiche e creare nuove centralità urbane che potessero alleggerire il carico sul centro storico. Tuttavia, l'efficacia di queste politiche è stata limitata da vari fattori, tra cui la resistenza delle attività economiche a trasferirsi fuori dall'anello ferroviario e la difficoltà di attrarre investimenti nelle nuove aree periferiche.
Le politiche di delocalizzazione hanno quindi visto un parziale successo nel trasferimento delle






residenze, ma la mancanza di servizi e attività economiche sufficienti ha limitato l’attrattività dei diversi poli decentralizzati, non raggiungendo mai l'equilibrio sperato tra abitazioni e luoghi di lavoro. Il trasferimento parziale delle residenze senza un equivalente spostamento delle attività economiche ha creato quindi un quadro urbano disequilibrato, con periferie residenziali e un centro storico sovraccarico di funzioni economiche.
Di conseguenza, la maggior parte degli uffici e delle attività economiche è rimasta concentrata all'interno dell'anello ferroviario, creando una situazione in cui i residenti delle periferie sono costretti a spostarsi quotidianamente verso il centro per lavoro, aggravando così la congestione del traffico e aumentando i tempi di pendolarismo. Inoltre, la mancanza di servizi e attività economiche nelle aree periferiche ha avuto impatti negativi sulla qualità della vita dei residenti. Le periferie, pur offrendo abitazioni più economiche e spaziose, mancano spesso delle infrastrutture necessarie per supportare una vita quotidiana equilibrata e autosufficiente.
Questo squilibrio ha avuto conseguenze significative. Le giovani coppie, spesso alla ricerca di abitazioni più economiche e spaziose, si sono trasferite nelle periferie, modificando significativamente la composizione demografica del centro storico. La popolazione residente all'interno dell'anello ferroviario è diventata progressivamente più anziana, con una riduzione della popolazione attiva economicamente. Questo ha comportato una diminuzione del dinamismo economico e sociale del centro, influenzando negativamente il mercato immobiliare e riducendo le opportunità di crescita per le attività economiche locali.
Sfide Mancate e Future opportunità nella Pianificazione Urbana di Roma
La mancanza di integrazione tra pianificazione urbanistica e trasporti a Roma ha prodotto conseguenze significative per lo sviluppo urbano sostenibile. Storicamente, si è notata una netta divisione tra chi gestiva la pianificazione urbanistica e chi quella della mobilità, con le infrastrutture stradali e i lavori pubblici affidati a settori distinti. Questa separazione ha generato numerose problematiche. Col tempo, questa distinzione è diventata meno marcata, a causa dell'esigenza di integrare questi due ambiti in termini di pianificazione, ma ciò ha portato a una sovrapposizione di competenze e a una perdita di coerenza e direzione nella realizzazione delle infrastrutture pianificate. Un problema strutturale emerso è l'assenza di un dialogo efficace tra urbanisti e trasportisti, i quali operano spesso in modo isolato senza una reale collaborazione o integrazione delle competenze. Questo isolamento reciproco ha condotto a una pianificazione frammentata e inefficace. Di conse-
guenza, nel corso degli anni, la pianificazione della mobilità nella città ha sofferto di una cronica mancanza di coordinamento tra i vari attori coinvolti, nonostante la realizzazione di grandi infrastrutture richieda un coordinamento meticoloso e una visione strategica a lungo termine. La frammentazione delle responsabilità e l'assenza di una leadership chiara nei processi di pianificazione e realizzazione delle opere pubbliche hanno ostacolato lo sviluppo di progetti di grande impatto. Gli elementi di mobilità di significativo valore strategico risultano difficili da individuare all'interno del piano regolatore e molte delle proiezioni ideate restano solo teoriche, senza mai concretizzarsi.
Negli anni, il focus sulla costruzione di grandi tunnel stradali ha spesso trovato spazio solo sui documenti ufficiali. Per esempio, nel piano regolatore erano rappresentati tre progetti per tali infrastrutture, di cui due completamente abbandonati e uno solo parzialmente realizzato. Tra questi, il progetto di un bypass da via Latina attraverso la Colombo e l'Ostiense fino all'altra parte del Tevere, che, sebbene incluso nel piano regolatore, non è mai stato realizzato. Allo stesso modo, un altro progetto ancora più ambizioso era il sottopasso dell'Appia Antica, il cui costo proibitivo ha dissuaso i pianificatori dal procedere oltre la fase di progettazione.
Durante le iniziative del 2015-2016 per la “cura del ferro”, la condizione delle infrastrutture ferroviarie di Roma ha mostrato una realtà allarmante: la lunghezza totale della rete ferroviaria era addirittura inferiore a quella registrata nel 2000, aggravata dalla soppressione di alcune linee, come quella della Roma-Pantano. Questo regresso nell'espansione delle infrastrutture ferroviarie riflette una stagnazione nell'innovazione e sviluppo di nuove strutture strategiche per la città. L'unico progetto significativo di quel periodo riguardava il potenziamento delle ferrovie regionali in preparazione al Giubileo; oltre a questo, tuttavia, non sono stati previsti interventi di grande rilievo, evidenziando la persistente difficoltà di realizzare interventi strategici e di ampio respiro nelle infrastrutture romane. Un altro esempio emblematico delle sfide infrastrutturali della città, discusso ampiamente sin dai primi anni 2000, è quello della chiusura dell’anello ferroviario. Originariamente proposto per creare spazi di stazionamento per i treni durante le ore di morbida, questo progetto mirava ad aumentare la frequenza dei treni diurni senza impatti notturni. Le stazioni dell'anello, ristrutturate nel periodo, insieme all’anello stesso, dovevano supportare questa operazione. Tuttavia, si sono incontrate molteplici problematiche, tra cui i costi proibitivi, la complessità tecnica del progetto e un bilancio dei benefici insoddisfacente che non giustificavano l'intervento. Una delle sfide più significative era sicuramente la costruzione di un ponte sul Tevere, essenziale per completare l'anello, la cui complessità tecnica ha aggiunto ulteriori difficoltà. Nonostante questi


ostacoli, la questione della chiusura dell'anello ferroviario continua a persistere nel dibattito sulla mobilità urbana di Roma, con l’impegno di RFI a portare avanti il progetto, tuttavia con tempi ancora non definiti.
Nel contesto di questi sforzi infrastrutturali, la stazione di Vigna Clara emerge come un ulteriore simbolo delle difficoltà incontrate nella pianificazione e realizzazione delle infrastrutture cittadine. Inaugurata durante i Mondiali di calcio del 1990, la stazione rimase inutilizzata dopo l'evento a causa della sua posizione periferica e la sua scarsa accessibilità, diventando così un simbolo di spreco infrastrutturale. Nonostante fosse completamente nuova, funzionante e pronta all’uso, la stazione di Vigna Clara è rimasta deserta per quasi trent'anni. I tentativi di riportare in esercizio la tratta, anche in funzione della chiusura dell’anello ferroviario, si sono scontrati con i ricorsi al Tar di cittadini e attività della zona, riflettendo le preoccupazioni dei residenti sull'impatto della riattivazione di una linea pensata decenni fa su un quartiere nel frattempo mutato. I continui rinvii e la mancata realizzazione di progetti essenziali sottolineano una cronica inefficien-
za nella gestione delle infrastrutture della città, aggravata da cambiamenti politici, fluttuazioni nei costi dei materiali, evoluzioni tecnologiche e la mancanza di coordinamento efficace tra le varie autorità. Nel quadro delle sfide infrastrutturali di Roma, emerge la cosiddetta "stagione dei ponti", simbolo di una serie di progetti ambiziosi che però sono stati in larga parte sospesi o non realizzati. Questi ponti erano concepiti inizialmente come parte dei corridoi di mobilità, ideati per migliorare il trasporto pubblico creando spazi dedicati esclusivamente ai mezzi di trasporto collettivo. L'idea era di disegnare corridoi destinati al trasporto pubblico all'interno delle previsioni del piano urbanistico, lasciando varchi urbani per il passaggio di infrastrutture di trasporto, come alternativa alla costruzione di nuove linee metropolitane. Un esempio emblematico è il ponte Settimia Spizzichino, situato sopra la ferrovia della metropolitana di Garbatella. Era stato progettato per supportare un carico tramviario come parte di un corridoio di mobilità che includeva la costruzione di un tunnel sotto la tangenziale interrata da Via Cilicia sul Tevere fino alla Centrale Montemartini. Tuttavia, nonos

tante le progettazioni avanzate, la realizzazione di queste infrastrutture non è mai avvenuta, influenzata da altri eventi e priorità che hanno modificato le decisioni in corso. Con l'abbandono del progetto del tunnel e del ponte sul Tevere, il ponte Settimia Spizzichino è quindi rimasto isolato e sottoutilizzato, con la segnaletica stradale configurata in modo da limitare il traffico sul ponte e prevenire ulteriori congestioni sull'Ostiense.
Situazioni simili si riscontrano con il Ponte della Scienza e il Ponte della Musica, entrambi progettati per supportare il carico tramviario. Il Ponte della Musica, originariamente progettato per collegare l'Auditorium e lo stadio Olimpico attraverso una linea tramviaria specificamente pianificata, non ha mai visto la realizzazione di tale linea. Analogamente, il Ponte della Scienza collega due aree lungo il Tevere che attualmente non ospitano infrastrutture significative, rendendolo di fatto inutile per il trasporto pubblico.
Questi corridoi di mobilità, pur essendo una visione innovativa per il trasporto pubblico, si sono tradotti principalmente in corsie preferenziali limitate, e molti dei progetti infrastrutturali più ampi non sono stati realizzati. L'unico intervento significativo nel settore tramviario negli ultimi anni è stata infatti la realizzazione della linea 8 su viale Trastevere, che ha comportato il prolungamento di una linea già esistente fino ai due capolinea attuali. Un discorso a parte deve essere fatto per il Ponte dei Congressi che, per motivi differenti, è un po' il simbolo degli effetti negativi sulle grandi infrastrutture nel caso di tempistiche eccessive associate alle procedure amministrative: un progetto verificato e validato dopo anni di revisioni e finalmente pronto per l'appalto, ma che ha incontrato ostacoli insormontabili a causa dell'aumento del costo dell'acciaio, dovuto certamente a dinamiche geopolitiche, ma anche ai tempi legate alle procedure. Con i costi incrementati di circa 30 milioni di euro
rispetto all’importo a base di gara, il progetto è divenuto finanziariamente insostenibile e quindi la sua procedura di affidamento è stata prudenzialmente sospesa.
Il confronto tra Roma e altre metropoli europee come Londra, Parigi e Berlino evidenzia sfide uniche nella pianificazione e realizzazione delle infrastrutture di trasporto nella capitale italiana. Mentre queste città hanno completato progetti di metropolitane e tram in tempi ragionevoli grazie a una pianificazione efficiente e a una collaborazione efficace tra enti, la città di Roma si trova spesso impantanata in un labirinto di complessità amministrative e operative che ne rallentano i progressi. Roma presenta una complessità territoriale unica, dovuta non solo alla vastità della città ma anche alla presenza di numerosi siti archeologici. Questo contesto richiede un'attenta gestione da parte delle sovrintendenze, le quali hanno il compito di preservare il patrimonio storico mentre si valutano le proposte infrastrutturali. Le normative e le procedure attuate dalle sovrintendenze sono essenziali per garantire che ogni innovazione sia bilanciata con la conservazione del patrimonio, anche se ciò rende più complesso ogni tentativo di innovazione infrastrutturale. Un esempio emblematico di queste problematiche è rappresentato dalla stazione della metro di Piazza Venezia, un cantiere che, secondo le previsioni, potrebbe concludersi solo nel 2030. I tempi di realizzazione delle metropolitane a Roma sono notoriamente lunghi e richiedono investimenti ingenti, spesso aggravati da una tendenza al "gigantismo" nelle costruzioni delle stazioni metropolitane. La stazione di Piazza Venezia, la cui costruzione comporterà spese enormi per le finanze cittadine, è solo un esempio. La tendenza al sovradimensionamento è evidente in tutta la rete metropolitana di Roma, come dimostrano la stazione Malatesta sulla linea C e le profonde stazioni della linea B1, dotate di complesse strutture


di pozzi e contro-pozzi che complicano l'uso quotidiano e la manutenzione. Al contrario, è immediato il confronto con città, come Londra, che al gigantismo ha preferito approcci più pragmatici e meno invasivi, privilegiando in molti casi l'uso di ascensori diretti eliminando la necessità di vasti scavi.
La visione futura della mobilità e delle infrastrutture di trasporto a Roma richiede invece un approccio realistico e pragmatico. Un primo passo fondamentale consisterebbe in una manutenzione sistematica dei tram e delle infrastrutture esistenti, un intervento apparentemente semplice ma fondamentale per garantire un sistema di trasporto più efficiente e affidabile. In tal senso solo negli ultimi due anni sono state stanziate adeguate risorse per la manutenzione della rete tram esistente e per il rinnovamento delle metropolitane. Tra i vari progetti discussi negli ultimi decenni, poi, l’automatizzazione della linea A della metropolitana emerge come un'opportunità realizzabile in tempi ragionevoli, sempre ostacolata da percezioni di complessità e di costi elevati che hanno portato a continui rinvii senza alcuna realizzazione concreta. In realtà, l'ottimizzazione dell'esistente per renderlo più funzionale non è poi un'operazione così complessa, ma deve essere trainata da una volontà decisiva di agire che in verità si sta concretizzando solo recentemente. Per affrontare le sfide logistiche attuali e future, è fondamentale non solo migliorare e mantenere ciò che già esiste, ma anche perseguire una pianificazione coordinata e sostenibile. Superare queste sfide implica un impegno politico forte e continuativo e richiede una strategia integrata che tenga conto delle evoluzioni normative e tecnologiche. In questo contesto, l'interazione efficace tra urbanisti e trasportisti si rivela cruciale per il successo di progetti di mobilità significativi. Una maggiore coesione tra gli enti e un impegno strategico a lungo termine sono essenziali per trasformare Roma
in una città moderna e sostenibile, migliorando la funzionalità dell'intero tessuto urbano. Queste azioni sono supportate dal Piano Urbano della Mobilità Sostenibile (PUMS), che funge da strumento di pianificazione strategica per sviluppare una visione sistemica della mobilità. Il piano mira a migliorare l'efficacia e l'efficienza del sistema di mobilità, integrandolo con l'assetto territoriale e gli sviluppi urbanistici su un orizzonte temporale di lungo periodo. Progettato per guidare lo sviluppo della mobilità metropolitana, il PUMS include monitoraggi regolari e valutazioni dei risultati, permettendo l'adozione di correttivi in un "piano processo" strutturato e dinamico. Questo approccio è pensato per garantire continuità ed efficacia delle strategie, rispondendo alle complessità di una metropoli arcipelago come Roma, con la sua varietà di contesti urbani, dalle città storiche e industriali ai porti e alle aree rurali. Il PUMS adotta una prospettiva di sviluppo che bilancia pragmaticamente l'obiettivo di una città più sostenibile nel breve e medio termine con la pianificazione di grandi opere necessarie per raggiungere gli standard europei. Questo equilibrio tra miglioramenti immediati e investimenti a lungo termine in infrastrutture di vasta scala è vitale per assicurare che Roma, non solo risponda efficacemente alle esigenze attuali, ma si posizioni anche come leader in sostenibilità e innovazione a livello europeo, delineando un futuro in cui la città eterna si rinnova continuamente per mantenere la sua storica grandezza in un contesto moderno e sostenibile.
Ringraziamenti
Si ringrazia l’Arch. Massimo Mengoni, Direttore della Direzione Tecnica di Risorse per Roma S.p.A., per il prezioso confronto e il contributo apportato in merito alle tematiche trattate in questo articolo.




Per occuparci della valutazione immobiliare relativamente ad un intervento di trasformazione urbana, dobbiamo necessariamente comprendere la tipologia di intervento che andremo a valutare, le modalità di finanziamento, la durata nonché le percentuali di equity e di debito ed infine le modalità di stima, in funzione dello scopo della stima stessa. Innanzitutto, vediamo cosa è la trasformazione urbana, di seguito TU.
La TU è riqualificazione di parti di città per:
• eliminare/ridurre il degrado urbano causato dall’abbandono di porzioni di territorio ovvero di ex agglomerati industriali, caserme ecc.;
• valorizzare il patrimonio immobiliare pubblico e privato;
• migliorare la qualità della vita urbana, ivi compresa la mobilità, il verde pubblico;
• contenere il consumo di suolo non ancora costruito;
• migliorare (anche con iniziative di Partenariato Pubblico Privato - PPP) la gestione di sanità, istruzione, cultura, sport, etc., il mondo del lavoro (uffici, negozi, fabbriche, etc.) e le abitazioni.
La TU è pertanto un intervento di grandi dimensioni, non limitato alla riqualificazione di interi fabbricati, ma teso alla riqualificazione di aree estese e di porzioni di quartieri, con l’intento di migliorare l’aspetto urbanistico e quello sociale, per il mag-
gior impatto sulla popolazione e per la necessità di un ampio consenso fin dalla sua ideazione. Possiamo suddividere gli interventi di trasformazione urbana in tre categorie, in funzione del ritorno che lo stesso avrà, non solo in termini economici:
• nella prima categoria possiamo inserire gli interventi di TU che generano un ritorno positivo per la collettività e per l’imprenditore. Questa viene generalmente considerata la soluzione ottimale in quanto coniuga gli interessi legittimi dell’imprenditore con quelli della collettività, in un mix che è anche frutto di una mediazione tra le parti sociali interessate;
• nella seconda categoria vi sono gli interventi nei quali il ritorno per l’imprenditore è massimo mentre quello per la collettività è minimo se non addirittura assente;
• nella terza categoria possiamo inserire infine gli interventi dove il ritorno dell’imprenditore è molto limitato (se non addirittura in perdita), mentre per la collettività è prevalente.
Esaminando le tre categorie, in funzione del ritorno complessivo, possiamo osservare come la prima sia la soluzione ottimale per una trasformazione urbana, in quanto apporta benefici per tutte le parti coinvolte nell’operazione e non genera contrasti di tipo sociale (proteste, blocchi del cantiere ecc), mentre per la seconda categoria, dove il ritorno per la collettività è minimo se non addirittura nullo, po-

tremmo trovarci di fronte alla mancanza di consenso generale; potrebbero innescarsi tensioni sociali con un conseguente calo di consensi del partito al governo del territorio interessato. In ultimo la terza categoria, nella quale l’utile dell’imprenditore è limitato, potrebbero verificarsi fermi anche prolungati nell’attività edilizia con prolungamento dei tempi di esecuzione complessivi: rischio di fallimento e di non completamento della TU.
Identificare in quale delle tre categorie sopradescritte è posizionato l’intervento oggetto di valutazione immobiliare è essenziale per addivenire ad una stima quanto più puntuale possibile, che valuti non solo il costo delle opere ma anche il loro impatto sociale e le tempistiche, che nel caso della TU non possono che essere di lungo periodo. Indicativamente possiamo assumere, in funzione delle categorie sopra indicate, le seguenti finestre temporali di durata delle iniziative, anche alla luce della pregressa esperienza:
• prima categoria, dai 10 ai 20 anni;
• seconda categoria, dai 5 ai 10;
• terza categoria, oltre 20.
L’esperienza delle TU concluse e di quelle in itinere non fornisce tempistiche migliori, anche se di norma nelle intenzioni dei promotori di queste iniziative le tempistiche sono sfidanti.
Va da sé che il rischio di default dell’iniziativa è tanto maggiore quanto più lunga sarà la durata complessiva per l’ultimazione e commercializzazione delle opere.
Va inoltre tenuto in debito conto l’avvicendarsi delle Amministrazioni comunali che potrebbero rappresentare interessi diversi rispetto a quelli dell’amministrazione durante la quale l’iter amministrativo è iniziato e che potrebbe (la nuova amministrazione) richiedere di apportare modifiche al piano, modifiche che si tradurrebbero inevitabilmente in un aumento della tempistica e dei costi. È sotto gli occhi di tutti i cittadini romani come sia difficile nella capitale portare a termine iniziative importanti di riqualificazione della città, essendo importante la presenza delle molteplici e fatiscenti strutture abbandonate. Quindi è necessario ottenere il giusto mix di coinvolgimento del pubblico in tali iniziative al fine di evitare allungamenti della tempistica legati anche alla burocrazia.
Analizziamo quindi le modalità di finanziamento di una trasformazione urbana, al fine di comprendere le modalità di valutazione dell’iniziativa:
1. finanziamento interamente privato; 2. finanziamento interamente pubblico;
3. finanziamento pubblico più privato (in % variabili tra loro);
4. finanziamento bancario (in percentuale variabile, anche mediante l’intervento di un pool di banche);
5. finanziamento da Fondo di Private Debt;
6. club deal;
7. crowdfunding.
Le varie forme di finanziamento sono quindi intuitivamente comprensibili e permettono la realizzazione dell’intervento in funzione dei soggetti attuatori.
Per quanto ovvio la valutazione dell’iniziativa sarà sempre necessaria ma, come per tutte le stime, l’oggetto della stima è essenziale per adottare le corrette metodologie estimative:
1. nel caso, ad esempio, di un finanziamento totalmente privato l’oggetto della stima sarà quello di conoscere i costi complessivi dell’iniziativa ed i ricavi conseguenti e di norma la metodologia utilizzata sarà quella della trasformazione mediante il D.C.F. (discounted cash flow) o analisi dei flussi di cassa, nonché l’utilizzo del metodo dei costi per la sua realizzazione;
2. nel secondo caso, quello di un intervento interamente pubblico, interesse dell’Ente attuatore è conoscere i costi, ai quali potrà far fronte anche mediante l’assunzione di un finanziamento pubblico (es. tramite Cassa Depositi e Prestiti), ma il calcolo del ritorno economico non è di norma previsto, a meno che tale intervento non venga successivamente posto sul mercato. Sempre nel caso pubblico una trasformazione urbana posta in atto da un ente pubblico è di norma indirizzata al soddisfacimento di un bisogno pubblico (creazione di abitazioni a basso costo es.) e di conseguenza l’eventuale ritorno economico, basato su canoni di locazione convenzionati, non copre assolutamente costi ed eventuali finanziamenti richiesti per la realizzazione dell’iniziativa;
3. caso diverso quando abbiamo un finanziamento misto, e pertanto è necessario che vi sia un ritorno economico quantomeno per gli stakeholder privati. In questo caso la valutazione dovrà prevedere sia l’utile complessivo dell’iniziativa che il tasso di rendimento del capitale investito, al fine di confrontare i dati e verificare la bontà dell’operazione;
4. il finanziamento bancario è la modalità di reperimento delle risorse economiche maggiormente praticata, dove a fronte di un finanziamento bancario, a volte anche mediante un pool di Istituti di Credito che finanziano per quote l’iniziativa, l’imprenditore (o il pool di imprenditori) riesce a realizzare la trasformazione urbana;
5. con il termine Private Debt si indicano tutti gli strumenti di debito sottoscritti attraverso canali extra-bancari da investitori istituzionali quali fondi pensione, compagnie assicurative ed edge fund. È una forma di finanziamento alternativo flessibile;




6. il “club deal” dall’inglese - club degli affari - è una forma associativa creata da imprenditori facoltosi al fine di acquisire, in comproprietà, quote di partecipazione in determinate società o in singoli asset, nei quali si apportano, oltre ai capitali, anche le proprie skills e conoscenze. È una metodologia attualmente poco utilizzata nel nostro paese;
7. crowdfunding: banalmente tradotto come “raccolta fondi” è una metodologia di finanziamento che consente a molti imprenditori di raccogliere denaro per le proprie iniziative mediante la sottoscrizione di un contratto o l’acquisto di azioni. È un canale alternativo al finanziamento bancario (erogato di norma da un solo soggetto) che si basa sulla forza dell’idea da finanziare e sulla capacità dell’imprenditore di convincere i finanziatori della bontà dell’iniziativa. I due tipi di crowdfunding più diffusi sono il lending-based crowdfunding che prevede il prestito di denaro ai promotori di un progetto attraverso la sottoscrizione di un contratto di finanziamento e l’l'equity crowdfunding dove i finanziatori acquistano quote della società da finanziare.
Poiché lo scopo del presente articolo è quello di fornire un esempio della modalità di stima di un intervento di trasformazione urbana, andremo ad analizzare la principale modalità di finanziamento di queste iniziative che è quello mediante l’intervento di uno o più Istituti bancari (in funzione anche dell’importo richiesto) che concedono un finanziamento (di norma) ipotecario ai sensi dell’art. 138 del Testo Unico Bancario, il quale prescrive, per il mutuo fondiario, che il finanziamento non possa superare l’80% del valore dell’immobile. La policy di molti istituti bancari, per queste tipologie di iniziative, prevede una quota di debito pari al 60% contro una quota del 40% di mezzi propri, al fine di non assumere la quasi totalità del rischio dell’iniziativa.
Ovviamente il valore dell’immobile, come tutti i beni, è soggetto ad oscillazioni e quindi, al fine di determinare l’osservanza delle disposizioni del TUB, è necessario che la valutazione di tali beni sia inattaccabile.
Questo perché nel corso degli anni il superamento della percentuale di finanziamento ha portato i tribunali italiani e la suprema Corte a considerare che i finanziamenti erogati oltre l’80% “non godevano del privilegio stabilito per i mutui fondiari”1 e addirittura “considerare nullo il contratto di credito fondiario stipulato in presenza di una percentuale mutuo/valore superiore a quello di cui alla norma citata”2, l’Associazione Bancaria Italiana (ABI) ha ritenuto di dotarsi di linee guida che consentissero di effettuare della valutazioni immobiliari quanto più possibile veritiere.
Le linee guida ABI sono norme prescrittive per le

banche aderenti, così come gli Standard Internazionali ed Europei che regolano le valutazioni immobiliari lo sono per i valutatori immobiliari. Pur con qualche distinguo il coacervo di norme indica quella che è la regola per le valutazioni immobiliari, le metodologie di stima da utilizzare in funzione dei dati disponibili e del fine della stima stessa. Individuano inoltre la figura del valutatore immobiliare, le caratteristiche peculiari, le capacità e conoscenze e soprattutto dispongono l’obbligo della formazione continua sulla materia specifica. I valutatori immobiliari nell’ordinamento italiano possono essere professionisti, regolarmente iscritti ad un albo professionale ed al quale per legge sia consentita la redazione di stime immobiliari.
Le linee guida ABI, emanate nel 2011, sono oggi arrivate alla quarta edizione rilasciata in data 5 aprile 2022, e sono il punto di riferimento per che intende redigere valutazioni immobiliari per conto di istituti di credito aderenti all’ABI.
Anche le valutazioni effettuate secondo le linee guida ABI, oltre ad essere in linea con gli standard di valutazione internazionali ed europei, devono tener conto dei fattori ESG – acronimo di Environmental (ambiente), Social (società) e Governance - e dei fattori di rischio dei territori ove gli immobili oggetto di valutazione sono edificati. Nel settore delle costruzioni (e non solo) sono essenziali il rispetto dell’ambiente, quindi edifici con ridotti consumi energetici, e realizzati con materiali rispettosi dell’ambiente, sia durante la costruzione che successivamente nella demolizione e smaltimento, ma anche l’attenzione ed il rispetto della società come un insieme di individui che utilizza gli immobili, il Social come viene indicato sopra. Orbene per quanto riguarda la valutazione di immobili già costruiti sicuramente dovremo tenere in conto gli indici di prestazione energetica ed i fattori di rischio, diversamente dalle nuove costruzioni che invece devono sottostare alle normative attuali più stringenti (in termini di risparmio energetico, posizionamento sul territorio e mitigazione del rischio sismico), mentre diversamente sarà sempre più necessario valorizzare la S di Social, l’impatto sociale che queste costruzioni hanno o avranno per la popolazione, come questa costruzione (o insieme di costruzioni) impatterà a livello sociale, se allargherà la base di fruizione come un edificio pubblico o un parco ovvero, progettato per un uso esclusivo, questo diventerà una enclave classista. Non ha giovato all’ambiente ed alla società l’aumento dei tassi di interesse, che con il conseguente aumento del costo dei mutui ha di fatto impedito ad una ampia platea di persone, soprattutto giovani, di acquistare immobili nuovi ed “ecologici” che, ancorché non abbiano subito incrementi di valore/prezzo, non riuscivano ad essere finanziati in virtù dell’aumento delle rate. Solo per fare un esempio banale, l’aumento di 1 punto percentuale per un finanziamento di 100.000
euro si traduce in un aumento della rata di 1.000 euro l’anno. Per ottenere lo stesso incremento del salario/stipendio (al fine di coprire la differenza di rata) sarebbe necessario che lo stesso aumenti del 10% circa. L’Europa che da una parte ci chiede giustamente di contenere i consumi energetici, dall’altra parte con l’aumento ed il mantenimento di alti tassi di interesse riduce di fatto l’accesso al credito rallentando di conseguenza la possibilità di acquisto di nuovi immobili ovvero la riqualificazione dell’esistente.
Attualmente mentre si sono messe in pista nuove metodologie estimative per stimare i consumi energetici, gli indici di prestazione energetica, gli interventi di mitigazione del rischio (alluvionale, sismico ecc), si inizia oggi a parlare della componente Social, come questa possa influire sul valore degli immobili e soprattutto sulle modalità di stima della stessa.
Attualmente la componente social nel campo della valutazione immobiliare e del real estate in generale è vista e intesa in funzione degli interventi di edilizia economico/popolare o di housing sociale. Tali interventi, il più delle volte imposti dall’amministrazione a latere di iniziative di edilizia libera, possono influire negativamente sulla commercializzazione della porzione di edilizia libera da vincoli (in termini di prezzo o canone di locazione imposto dal comune), in quanto la presenza di nuclei di persone tutelate/fragili all’interno di complessi immobiliari con unità immobiliari di housing sociale potrebbero creare elementi di disturbo, episodi di intolleranza ecc. Si continua a ritenere la realizzazione di edifici di housing sociale un “impoverimento” del quartiere in quanto piuttosto che attrarre acquirenti li allontanano. Nel recente passato con la deliberazione n. 76 del 2019 Roma Capitale imponeva ai soggetti attuatori di interventi di housing sociale alcune prescrizioni che regolavano la realizzazione degli interventi. In particolare, veniva inserito la garanzia della contemporaneità di realizzazione degli interventi di housing sociale con quelli di edilizia libera nonché il divieto di delocalizzazione e di monetizzazione. Valutare un complesso immobiliare alla luce di questa norma diviene quindi più complesso, non dovendo stimare solo il costo “della calce e dei mattoni” ma anche quello che sarà l’apprezzamento dei potenziali acquirenti nei confronti del prodotto offerto. E quindi la grande sfida che ci attende come progettisti prima e come valutatori poi è comprendere come questa S di social possa essere intesa, come possa essere sviluppata armoniosamente e di conseguenza il suo impatto eventualmente negativo sul valore delle unità immobiliari venga minimizzato.
Negli esempi che seguiranno verrà data particolare evidenza alle tempistiche di realizzazione, che insieme ai tassi di sconto da utilizzare rappresenta sempre un driver importante.


Andremo a stimare la riqualificazione di un’area urbana di circa 80.000 mq, di estensione regolare, che sulla scorta della variante al PRG presentata e del planivolumetrico consentirebbe la realizzazione di SUL per 5.000 mq ad uso ricettivo (suddivisa in 20 residenze diffuse e un albergo a 4 stelle di 50 camere) e di un complesso commerciale di 3.000 mq, oltre alla realizzazione di spazi verdi attrezzati, viabilità, aree comuni.
Per quanto attiene le previsioni dei ricavi si è fatto riferimento ai comparabili reperiti su web (canoni di locazione) per la destinazione commerciale, tasso di occupazione e ADR sulla scorta dei dati reperiti sui portali di settore.
Per la fase di cantiere, i costi di realizzazione sono stati desunti dal business plan fornito dal cliente e verificati tramite gli appositi database. Tali costi comprendono Hard Costs, Soft Costs, Oneri di Urbanizzazione e costi per gli arredi in merito alla destinazione ricettiva.
Per gli immobili ultimati e a regime, i costi non recuperabili sono di natura previsionale e sono stati forniti dal cliente.
I tre scenari svolti mostrano come a parità di costi, ricavi, tasso di uscita e tasso di sconto (scenario A e B), il variare delle tempistiche di realizzazione vada ad incidere sul Valore di Mercato As Is dell’area.
Lo scenario A prevede che la fase di realizzazione duri 2 anni.
Nello scenario B e C la fase di cantiere dura 4 anni, con una fase di stallo all’anno 2.
Lo scenario C è il medesimo del B in termini di tempistiche, ma si differenzia da quest’ultimo per
l’utilizzo di un tasso di sconto più alto che internalizza il “maggior rischio cantiere”.
L’analisi delle precedenti tabelle evidenzia come il medesimo lotto di terreno possa sviluppare un valore as-is (valore all’attualità) profondamente diverso in funzione degli scenari ipotizzati e delle assunzioni sottese alla stima, diverse per ciascuno dei tre esempi.
In sintesi, quindi l’eccessiva durata temporale di realizzazione di queste tipologie di interventi pone un forte interrogativo da parte degli investitori nell’impegnarsi in tali iniziative, con la possibilità di trasformare una vantaggiosa iniziativa immobiliare in un clamoroso insuccesso.
La cronaca recente ci riporta di un mercato delle costruzioni a Milano attualmente in affanno, stante l’iniziativa della Procura di verificare la regolarità di molti cantieri, realizzati con procedure amministrative “semplificate” e che i magistrati ritengono non corrette.
Al di là delle indagini in corso personalmente ritengo che per interventi importanti, con finanziamenti bancari di importo rilevante, debbano essere utilizzati titoli abilitativi forti, quali il Permesso di costruire e non altri che, pur riducendo notevolmente la tempistica di inizio cantiere, possono produrre interventi di annullamento in autotutela da parte del comune con conseguente fermo cantiere. Ecco, quindi, che la valutazione di una iniziativa edilizia non può prescindere anche e soprattutto da una accurata due diligence immobiliare, che vada a verificare l’effettiva possibilità di rilascio delle autorizzazioni edilizie in funzione delle Norme Tecniche, dei Regolamenti Edilizi e della Legge.



B

Scenario C Note




1. Le ragioni di un aggiornamento della normativa locale sull’urbanistica
La trasformazione fisica e funzionale dell’urbanistica in un territorio costituisce la ragione principale dell’esistenza di ciascun Ente locale. Trasformare significa modificare l’assetto visibile e l’assetto delle destinazioni. Quanto al primo ambito, si possono riconoscere i seguenti parametri e le relative classificazioni: grandezze urbanistiche (superfici territoriale e fondiaria, densità arborea, isolato, unità edilizia e immobiliare); grandezze edilizie (ad es. volumi del costruito e del fuori terra, distanze, superfici utili) e indici (di edificabilità, di copertura, di permeabilità); le categorie di intervento urbanistico – edilizia (recupero edilizio mediante manutenzione, restauro e ristrutturazione; nuova costruzione, comprendente la distruzione e il rifacimento; le trasformazioni urbanistiche) e quelle di in-
tervento ambientale (risanamento, ripristino, restauro ambientale, mitigazione dell’impatto, valorizzazione, miglioramento bio-energetico).
Nel secondo ambito, quello, per così dire, teleologico, rientrano le previsioni normative sulla cd. destinazione d’uso, declinabile in: abitativa, commerciale, dei servizi, turistico-ricettiva, produttiva, agricola, parcheggi.
In questo nucleo essenziale per l’attività comunale s’ascrivono, come linfa nuova, le esigenze di recupero e riqualificazione del patrimonio edilizio in un’ottica che l’Unione Europea definisce di rigenerazione urbana integrata, riguardando il verde, l’ambito sociale, l’economia (Spasiano, 2022; Primerano, 2023). Questa visione complessa vede nella Dichiarazione di Toledo del 2010 il modello aggiornato e gli strumenti operativi o procedimentali da seguire, secondo gli interventi regolamentari del soft law. Non è ancora certo in dottrina (Di Giovanni, 2023, 87)


se tale quadro configuri una espressione della funzione amministrativa – quella cd. d’ordine, mediante il governo del territorio – (Dipace, 2017; Chiti, 2017), ovvero un servizio pubblico (Favaro, 2020) o una tecnica operativa del governo del territorio.
Nel quadro costituzionale della legislazione concorrente, la l.r. Lazio n. 7 del 2017 nasce nello spirito della Dichiarazione di Toledo, puntando alla programmazione di interventi di rigenerazione, specie nelle periferie e nelle aree con maggior disagio socio-economico (Di Giovanni, 2023, 91). È proprio in forza di questi importanti cambiamenti, oltre alla moltiplicazione di nuove normative nazionali, che il Comune di Roma, nello specifico, ha inteso metter mano al proprio Piano Regolatore Generale, aggiornando (come variante al Piano) le Norme Tecniche d’Attuazione (NTA) e puntando anche alla semplificazione delle procedure. Infatti, le

NTA del PRG di Roma risalgono al 2008, non recependo pertanto tutto il sistema di disposizioni frattanto intervenute in materia urbanistica (si pensi solo alle modifiche operate dal 2008, specialmente nel periodo della pandemia, nel d.P.R. n. 380/2001), né quello emanato in ambito europeo: le attuali NTA 2008 di Roma (approvate con Deliberazione Consiliare n. 18 del 12 febbraio 2008) si fermano alla Carta di Lipsia del 2007, ma non ai suoi aggiornamenti del 2020 e non contengono riferimenti alla Carta Urbana Europea del 2008, né tantomeno alla citata Dichiarazione di Toledo del 2010. Sicché, la Giunta Capitolina con deliberazione n. 120 del 14 aprile 2022 ha avviato, mediante l’istituzione di un gruppo di lavoro interdipartimentale, le attività volte a una revisione e attualizzazione delle NTA del PRG comunale, nonché alla loro semplificazione e coordinamento con la normativa statale e regionale. Tra le novità presentate nel giugno 2023 compaiono: la semplificazione nell’attuazione urbanistica con l’adeguamento delle categorie d’intervento al TU Edilizia (art.9 NTA); l’introduzione del permesso di costruire convenzionato (art. 12 NTA); la semplificazione delle misure d’attuazione in Città storica e consolidata (artt. 25-49 NTA); la riqualificazione delle periferie (artt. 52 e 53 NTA) e cambi di destinazione d’uso (art. 6 NTA). Come è possibile constatare, rimane pressoché intatto il quadro normativo riferito al Programma integrato e al Progetto urbano. Su quest’ultimo occorre ora far riferimento, osservandolo dal versante giuridico.
2. Il Progetto urbano fra gli strumenti d’attuazione del Piano Regolatore Generale
Lo sguardo si pone nel contesto dei procedimenti amministrativi e delle procedure previste nelle NTA; di per sé, la modifica delle sole sequenze che compongono gli uni o le altre non comporta variante urbanistica: lo dispone l’art. 2, comma 3 NTA; a meno che non muti il quadro sottostante alle procedure medesime. In quanto espressione del principio di legalità, ogni azione procedimentale è regolata dalla legge (lo sono anche le norme del NTA) e l’eventuale devianza dal paradigma che indirizza, nei singoli istituti, l’agire dell’amministrazione determinerebbe sul piano ammnistrativo uno o più vizi di legittimità (eccesso di potere, violazione di legge, incompetenza relativa). Da lì, s’arriverebbe all’illegittimità del provvedimento e quindi al suo potenziale annullamento (in autotutela o in sede giurisdizionale).
Le modalità con le quali può trovare attuazione il PRG sono indicate nelle NTA al PRG di Roma (art. 12), ordinandole in due categorie: interventi diretti e indiretti. I primi poggiano su uno schema

di causa-effetto: se l’intervento avviene seguendo le previsioni legali pre-viste, allora esso è direttamente realizzabile (art. 12, comma 4); per i secondi, d’iniziativa pubblica o privata, è presupposta una pianificazione o una programmazione, per valutare ab ovo l’interesse pubblico al tipo d’intervento richiesto1: si pensi agli ambiti di valorizzazione della Città storica, a quelli del recupero urbano, alle Aree naturali protette, ai Progetti strutturanti (art. 12, comma 5 NTA).
Gli interventi indiretti, a loro volta, hanno una relativa attuazione che avviene mediante due strumenti principali e alternativi: mediante la procedura del Programma integrato (art. 14 NTA), oppure per mezzo del Progetto urbano (art. 15 NTA).
In quest’ultimo istituto, il sintagma espressivo è chiaro: il peso specifico sta sulla parola ‘progetto’, trattandosi dunque di un elaborato nel quale vanno a cristallizzarsi le idee formate, raccolte, percepite, istruite, discusse previamente, anche mediante la partecipazione di quei cittadini che costituiscono la componente soggettiva capace di rappresentare la comunità locale interessata. In questo, dando così attuazione concreta al principio di sussidiarietà e anticipando quel che dovrà accadere necessariamente, quando con le dovute accortezze sorrette da principi ordinanti e codici di condotta, troveranno spazio nelle nuove forme di governo indicate nella Dichiarazione di Toledo (Di Giovanni, 2023, 89)


anche le “pratiche creative promosse solo dal basso e autonomamente dai cittadini, che si discostano dall’urbanistica formale e che sono fondate sulla partecipazione, la solidarietà, la gratuità, la reciprocità”, (Mari, 2021, 57). E la forma ormai classica di partenariato pubblico-privato, fondata sullo schema concessorio è la finanza di progetto, una della matrice sulle quali si sviluppano, a mano a mano, altri modelli, fino a quelli indicati dalla Dichiarazione del 2010. A ben vedere, la struttura del Project financing è infatti già alla base del Progetto urbano, nel quale rientrano anche le comunità locali nella formazione del primo livello progettuale previsto. Occorre andare con ordine.
3. Classificazioni e procedure del Progetto urbano:
• Finalità. L’istituto esaurisce una funzione: quella di definire progettualmente le previsioni del PRG, relativamente alle parti della città interessate a interventi di particolare rilevanza (art. 15, comma 1 NTA). Il Progetto urbanistico rappresenta una prima applicazione del principio della rigenerazione integrata urbana voluta dall’Unione europea, atteso che, come lo stesso comma 1 dell’art. 15 indica espressamente, la procedura consente soluzioni alternative, anche messe in confronto, e una verifica della sostenibilità urbanistica,


ambientale, economica e sociale;
• Attuazione. Indicato il fine, bisogna passare alla sua attuabilità: per il Comune è obbligatorio adottare la procedura del Progetto urbano per definire gli interventi nelle Centrali metropolitane e urbane, per le quali opera il successivo art. 65 NTA. In altre parole, tali Centralità mirano ad essere il risultato di una nuova organizzazione multipolare del territorio della città, anche mediante una connessione incisiva con le reti di comunicazione, specie quella del trasporto; sono classificabili a loro volta in Centralità definite e da pianificare: l’art. 65, ai commi 4 e 5 ne elenca le relative aree romane (di certo, in aggiornamento). Inoltre, in combinato con l’art. 15, l’art. 65 NTA al comma 2 precisa che il Progetto urbano per attuare le Centralità è esteso all’intero perimetro e interviene anche all’esterno del perimetro ai fini della connessione con il sistema della mobilità e dell’integrazione (torna tale qualificazione) con il contesto sociale. La procedura del Progetto urbano è poi indicata come facoltativa (art. 15, comma 2 NTA) per le Centralità locali (si tratta di luoghi rappresentativi dell’identità locale e sono spazi urbani dove il PRG lo-
calizza le relative funzioni; sono individuate negli elaborati 2 e 3 e trova attuazione una volta definito un Progetto pubblico unitario d’intervento – art. 66 NTA), per gli Ambiti di valorizzazione della Città storica (ovvero, i luoghi della Città storica che non hanno i caratteri d’identità definiti nell’art. 24 NTA e sono declinati in tipologie, “A”, “B”, “C”, “D”; il richiamo al Progetto urbano quale procedura d’attuazione è nel comma 3 dell’art. 43 NTA) e per favorire l’integrazione e il coordinamento progettuale, finanziario, attuativo e gestionale tra interventi diretti, tra interventi indiretti, tra interventi diretti e indiretti, tra interventi pubblici e privati (art. 12, comma 7 NTA);
• Iniziativa pubblica e privata. Quanto ai soggetti che hanno titolo a promuovere il Progetto urbano, l’art. 13, comma 5, ultimo periodo delle NTA precisa che può essere avviato su iniziativa pubblica o privata, con la precisazione che per i Piani di recupero nella Città storica, in generale l’iniziativa è privata, mentre per i Progetti unitari delle Centralità locali (per cui, come s’è anzidetto, è facoltativo l’uso del Progetto urbano), in generale l’iniziativa è pubblica. Completa il quadro della disciplina il comma 3 dell’art.


15 NTA secondo il quale per le finalità indicate nell’art. 12, comma 7 o per il coordinamento e la promozione di più ambiti del PRG ad intervento indiretto, il Progetto urbano è ad iniziativa pubblica;
• Procedura. Il Progetto urbano è strutturato su due livelli documentali: il primo, che gli dà avvio, è lo Schema di assetto preliminare (SAP), che, in forza del comma 5 dell’art. 15 NTA, può estendersi anche ad aree e infrastrutture esterne agli ambiti indicati nel precedente comma 2 (cioè, degli istituti descritti negli artt. 65, 66 e 43). Si tratta di elaborati grafici, normativi e descrittivi dai quali è possibile compiere la valutazione propria del Progetto urbano; tali documenti devono contenere le indicazioni preliminari (art. 13, comma 11 NTA, per gli strumenti di intervento indiretto) con attenzione particolare rivolta ai sei aspetti indicati nelle lettere a) - f) del comma 7, art. 15 NTA. Il Comune, in forza del comma 13 dell’art. 15 NTA ha possibilità di ricorrere, per tutte le fasi di definizione del progetto degli interventi del Progetto urbano, a concorsi di idee o di progettazione, secondo le norme vigenti in materia di contratti pubblici (nel d.lgs. n. 36/2023 entrambe le tipologie sono previste nell’art. 46).
Il SAP può essere presentato, come s’è detto, su iniziativa anche privata: se così avvenisse, il SAP dovrebbe allora essere presentato al Comune dai soggetti che rappresenterebbero, in quanto proprietari o aventi titolo, la maggioranza assoluta (i.e., ‘metà più uno’) del valore catastale degli immobili ricadenti nel proposto intervento e delle previsioni edificatorie attribuite dal PRG ai proprietari (così, il comma 4, art. 15). Se il SAP è d’iniziativa pubblica, l’Amministrazione comunale lo predispone mediante i propri uffici; se d’iniziativa privata, il Comune deve istruire quel documento; a prescindere dalla natura del soggetto che presenta l’iniziativa, lo Schema preliminare deve tenere conto degli elaborati gestionali del PRG. Una volta predisposto o istruito, il SAP è approvato dalla Giunta, previo parere del Municipio; quindi, è depositato e pubblicato per trenta giorni. Nei successivi trenta giorni (dunque, dal 31° al 60° dalla pubblicazione) può essere corroborato o discusso mediante il deposito di contributi partecipativi relativi all’assetto urbano proposto. Per l’iniziativa privata, è previsto che i proprietari diversi dai soggetti promotori (comma 4, art. 15) con la pubblicazione (a valle quindi dell’approvazione della Giunta comunale) siano sollecitati dal Comune a presentare formale


adesione all’iniziativa.
Il SAP, i contributi partecipativi e le adesioni possono avere ulteriore incremento grazie a eventuali osservazioni o prescrizioni adottate in Conferenza dei servizi.
Tutto questo risultato porta, infine, alla redazione del Progetto urbano nel suo assetto completo, anche con il risultato dei contenuti minimi indicati nell’art. 13, comma 11 NTA.
Questo documento finale si struttura sulla base dell’incartamento ora richiamato ed è approvato dal Consiglio comunale mediante deliberazione. Qui si apre un duplice, parallelo scenario:
1. laddove l’iniziativa sia stata pubblica, allora tale Progetto rimarrebbe sottoposto alla procedura di pubblicazione sancita nell’art. 15 della L. n. 1150/1942 (la cd. legge urbanistica), già valida per i piani particolareggiati: è previsto lo stesso ritmo binario fissato nel comma 9 dell’art. 15 NTA e, in particolare, il deposito del documento nella Segretaria comunale per la durata di trenta giorni consecutivi; fino a trenta giorni dopo la scadenza del periodo di deposito potranno essere presentate opposizioni dai proprietari di immobili e osservazioni da parte delle Associazioni sindacali interessate. Trova espressa attuazione l’art. 1 della l.r. 2 luglio 1987, n. 36 (sull’attività urbanistico – edilizia, modificata a sua volta con diversi e anche recenti interventi), specialmente i tempi scanditi dal comma 3 per decidere sulle eventuali osservazioni e opposizioni pervenute (novanta giorni, prorogabili una sola volta per ulteriori novanta). Se il Progetto urbano richiede la partecipazione coordinata di più soggetti pubblici (a valle), il Sindaco ha possibilità di promuovere Accordi di programma, applicando l’art. 34 del TU Enti locali;
2. nel caso, invece, di iniziativa privata a monte del Progetto urbano, l’approvazione Consiliare del medesimo Progetto sarebbe subordinata alla costituzione del Consorzio dei proprietari che soddisfino i requisiti di rappresentanza fissati nel sopra ricordato comma 4, art. 15 NTA; inutile oramai il rinvio che fa l’art. 15 nel comma 10 (ultimo periodo) alle disposizioni dell’art. 2 della l.r. n. 36/1987: quest’ultime sono state abrogate dalla l.r. 13 agosto 2011, n. 10 (art. 5, comma 20). Sic transeant leges.
Gli ultimi due commi dell’art. 15 NTA delineano una procedura che si basa sullo schema del
Project financing previsto per le opere pubbliche. Se ne possono individuare alcune contiguità.
4. Paradigmi del Project financing per le concessioni di opere pubbliche
La procedura di Project financing trova la sua attuale disciplina nell’art. 193 del d.lgs. n. 36/2023, cioè nel terzo Codice dei contratti pubblici: è derivata dall’esperienza del Common law; prima è stata disciplinata dagli artt. 37-bis e ss. della l. n. 109/1994 e successivamente dagli artt. 153 e ss. del d.lgs. 163/2006 e 183 del d.lgs. n. 50/2016. Con tale istituto, gli operatori economici possono presentare agli enti concedenti proposte relative alla realizzazione in concessione di lavori (o servizi). Ciascuna proposta contiene un progetto di fattibilità, una bozza di convenzione, il piano economico-finanziario asseverato e la specificazione delle caratteristiche dei lavori e della gestione dell’opera calda. Il piano economico-finanziario comprende l'importo delle spese sostenute per la predisposizione della proposta, comprensivo anche dei diritti sulle opere dell'ingegno. La procedura del project, come affermato dal Consiglio di Stato (sez. V, 31.01.2023 n. 1065) individua due serie procedimentali strutturalmente autonome, ma biunivocamente interdipendenti sotto il profilo funzionale; la prima di selezione del progetto di pubblico interesse, la seconda di gara di evidenza pubblica sulla base del progetto dichiarato di pubblica utilità, quest’ultima a sua volta distinta nelle sub fasi di individuazione dell’offerta economicamente più vantaggiosa e di eventuale esercizio da parte del promotore del diritto di prelazione (così anche Cons. Stato, V, 19 giugno 2019, n. 4186).
In tale ambito, la giurisprudenza ha ripetutamente riconosciuto:
1. che la fase preliminare di individuazione del promotore, ancorché procedimentalizzata, è connotata da amplissima discrezionalità amministrativa, tale da non potere essere resa coercibile nel giudizio amministrativo di legittimità (Cons. Stato, III, 20 marzo 2014, n. 1365; III, 30 luglio 2013, n. 4026; 24 maggio 2013, n. 2838; V, 6 maggio 2013, n. 2418), essendo intesa non già alla scelta della migliore fra una pluralità di offerte sulla base di criteri tecnici ed economici preordinati, ma alla valutazione di un interesse pubblico che giustifichi, alla stregua della programmazione delle opere pubbliche, l’accoglimento della proposta formulata dall’aspirante promotore (Cons. Stato, V, 31 agosto 2015, n. 4035);

2. che lo scopo finale dell’intera procedura, interdipendente dalla fase prodromica di individuazione del promotore, è l’aggiudicazione della concessione in base al criterio dell’offerta economicamente più vantaggiosa (Cons. Stato, V, 14 aprile 2015, n. 1872; VI, 5 marzo 2013, n. 1315).
Il TAR Lazio (Sez. Prima Bis, n. 4338/2023) si è pronunciato sul cd. diritto di prelazione, che opera nella seconda fase, secondo il seguente ritmo: viene indetta una gara, alla quale è invitato il promotore, sulla base del progetto di fattibilità approvato, e si prevede che se il promotore non risulta aggiudicatario, può esercitare, entro quindici giorni dalla comunicazione dell’aggiudicazione, il diritto di prelazione e divenire aggiudicatario se dichiara di impegnarsi ad adempiere alle obbligazioni contrattuali alle medesime condizioni offerte dall’aggiudicatario. Se il promotore non risulta aggiudicatario e non esercita la prelazione ha diritto al pagamento, a carico dell’aggiudicatario, dell’importo delle spese per la predisposizione della proposta. Se il promotore esercita la prelazione, l’originario aggiudicatario ha diritto al pagamento, a carico del promotore, dell’importo delle spese per la predisposizione dell’offerta. Il paradigma è riproposto nel d.lgs. n. 36/2023, all’art. 193, comma 8.
L’Adunanza plenaria del Consiglio di Stato ha avuto modo di approfondire il rapporto tra le
suddette fasi della procedura della finanza di progetto nella sentenza n. 1 del 2012, formulando il principio di diritto in base al quale «nel procedimento di project financing, articolato in più fasi, la prima delle quali si conclude con la scelta, da parte della stazione appaltante, del promotore, l’atto di scelta del promotore determina una immediata posizione di vantaggio per il soggetto prescelto e un definitivo arresto procedimentale per i concorrenti non prescelti; tale atto è pertanto lesivo e deve essere immediatamente impugnato dai concorrenti non prescelti, senza attendere l’esito degli ulteriori subprocedimenti di aggiudicazione della concessione». Secondo quanto chiarito dalla giurisprudenza, il diritto di prelazione del “promotore”, nell’ambito della procedura della finanza di progetto spetta esclusivamente “se il promotore non risulta aggiudicatario”. Tale diritto è quindi implicitamente subordinato alla presentazione, da parte dell’operatore, di un’offerta ammissibile, effettivamente comparata con le altre e collocata nella graduatoria finale in una posizione diversa dalla prima (Cons. Stato, Sez. V, 10 febbraio 2020, n. 1005; Id., 5 dicembre 2022, n. 10627). In altri termini, «la partecipazione alla procedura selettiva e la valutazione della sua offerta [cioè, dell’offerta del “promotore” concorrente] costituiscono condicio sine qua non per poter, eventualmente, esercitare il diritto di prelazione, ancorché lo stesso promotore non sia aggiudi-

catario della gara. Se così non fosse, se cioè si prescindesse dall’ammissione alla gara e dall’utile collocazione in graduatoria, si stravolgerebbe invero il senso e la portata prescrittiva» delle disposizioni del Codice dei Contratti pubblici, (così Cons. Stato, n. 10627 del 2022, cit.).
5. Simmetrie procedimentali tra il Project financing e il Progetto urbano
È possibile operare un confronto tra i due istituti, con la conseguente validità delle linee ermeneutiche elaborate sul Project, esaminando il comma 14 dell’art. 15 NTA al PRG di Roma, che dettano una disciplina valida per gli interventi a iniziativa privata di soggetti promotori aventi i requisiti fissati dal comma 4 (rappresentatività) e il SAP si riferisca alle Centralità urbane e metropolitane (art. 65, per le quali è obbligatorio il Progetto urbano).
Tra le norme generali previste per gli interventi indiretti (art. 13 NTA) è stabilito, in linea con quanto vige in materia di contratti pubblici, che il Comune subordini o promuova le iniziative mediante atti d’indirizzo e programmazione; in particolare, sono espressamente subordinati a tali atti i Progetti urbani, di cui all’art. 15 (lo prevede il comma 3, art. 13). Tali atti di programmazione urbanistica costituiscono indirizzo vincolante per la programmazione dei lavori pubblici, come ora stabilito dall’art. 37 del vigente Codice dei contratti pubblici. Ora, in forza del comma 14 dell’art. 15 e ferma restando la necessaria previsione negli atti di programmazione, se nell’ambito appena richiamato la proposta di SAP avanzata dai soggetti promotori non soddisfacesse l’Amministrazione in quanto non pienamente adeguata negli aspetti progettuali ed economici, allora il Comune stesso, così come avviene nella procedura generale del Project financing, dovrebbe indire una gara ad evidenza pubblica. Nella procedura comparativa si avrebbe un confronto tra più soluzioni progettuali e più operatori economici imprenditori, compresi i soggetti promotori; all’esito della gara, i soggetti promotori sarebbero chiamati –entro il termine indicato nel bando o prima ancora nell’atto di programmazione – ad adeguarsi alla migliore proposta selezionata dalla Commissione giudicatrice, riconoscendo ai titolari il rimborso spese. Così, esercitando un diritto di prelazione, come s’è visto nel Project. Laddove tale adeguamento non avvenisse, il Comune avrebbe titolo a intervenire in forma specifica, in virtù del paradigma legale contenuto nell’art. 13, comma 7 NTA (relativo ai casi di inerzia dei proprietari rispetto ai termini stabiliti negli atti di programmazione), aggiudicando e quindi assegnando le aree al soggetto titolare della migliore proposta selezionata.
6. Conclusioni
Un fatto recuperato dal lontano passato può essere ancora illuminante: Pisa, 3 luglio 1178. Il collegio di Pubblici Arbitri esamina la questione relativa alla costruzione di un cavalcavia, fatto eseguire dai chierici della Chiesa di S. Pietro in Vincoli su una strada dietro all’immobile (Wickham, 2000, 226-231). Un gruppo di vicini abitanti s’era opposto all’edificazione e aveva adito gli arbitri, in forza delle competenze di quest’ultimi previste dal Constitutum usus 43: fra le materie rientrava quella sull’ostruzione di strade. Un’altra fonte, il Breve consultum del 1162, sanciva parallelamente che i cavalcavia “dovessero essere rimossi se vi fosse stata l’opposizione della maggior parte degli abitanti della zona interessata”, (Wickham, 2000, 227). La causa fu comunque vinta dai chierici - visto che il ponte è ancora lì - in forza di argomentazioni improntate sul diritto romano (Cortese, 2003); ma rilevante è il fatto che la legge speciale, vigente allora, riconosceva (pur se appariva più come un privilegio concesso) agli abitanti un titolo per esercitare la correlata azione in giudizio; sulla base di quest’ultima poteva quindi essere richiesta (a prescindere dall’esito dell’istanza promossa) la rimozione e la restitutio in pristinum delle costruzioni (stradali e ad esse sovrastanti) che a livello urbano non avessero soddisfatto quella collettività, rappresentata dalla maggior parte dei proprietari della zona. Frasi simili, s’è visto poc’anzi nelle NTA al PRG di Roma, riecheggiano anche oggi in diverse previsioni legali relative all’edilizia e alla gestione del territorio urbano. Tuttavia, dopo diversi secoli dai fatti di Pisa, è variata (o s’è rafforzata) la ragione alla base del riconoscimento delle istanze della collettività.
Siamo abituati ancora a considerare la legge seguendo un’ottica, in verità, obsoleta, tuttavia non ancora passata: la normativa ci appare onnisciente, frutto d’un assolutismo giuridico sorto in epoca moderna (Grossi, 2003, 18). Invece, ci troviamo immersi nello scorrere di una nuova epoca, quella della post-modernità giuridica, iniziata nel ‘900; essa è caratterizzata per aver riguardo alle istanze valoriali che si sono formate in seno alla collettività e che sono custodite nella società, concependo un volto della storia rivolto al presente, non a ricostruire le cose trascorse. In questo diverso scenario del diritto (civile e amministrativo), le leggi mostrano tutta l’incapacità di raccogliere e di star dietro alla vita quotidiana; s’affacciano perciò nuovi protagonismi: una diversa funzione degli interpreti (giurisprudenza e scienza giuridica), che passano dalla mera esegesi del testo legale, alla ‘scoperta’ di ciò che il diritto già possiede; una tecnica legislativa che muove dai princìpii (Grossi, 2017) e non da disposizioni fagocitanti, minuziose tutta-

via imperfette, con la pretesa di ordinare tutto dall’alto. Dai princìpii discendono poi le singole norme giuridiche, che di essi sono frammenti e che sono interpretate nei fatti, secondo categorie ordinanti, non dogmatiche (Grossi, 2017), alimentando così altre regole di valenza legale. È proprio nel risultato di questa dialettica sempre in moto che si possono individuare quelle aperture verso la società, l’ambiente, la cultura e il paesaggio che nella legge scritta (di qualunque fonte normativa, europea e nazionale) sono oggi necessariamente postulate. Così si può allora meglio riflettere sulle ragioni che, nello specifico, hanno raccolto l’istanza valoriale della rigenerazione urbana integrata e hanno aperto verso nuove forme di governo del territorio, capaci finalmente di ricomprendere in esse, man mano e in un tempo non lontano, anche le prassi sorte a livello locale; così, sul
fondamento della gratuità e della reciprocità solidale e tra le forme tradizionali dell’urbanistica, vengono portate (‘da giù a su’) tra le ‘forme’ urbanistiche, le attuali ‘informalità’.
In questa prospettiva, altresì, si comprendono meglio le volute attivazioni del processo di partecipazione dei cittadini alle decisioni relative agli strumenti urbanistici di pianificazione e ai progetti di trasformazione, così come ha con lungimiranza previsto l’art. 13, comma 9 delle NTA al PRG della Capitale, a cui fa eco proprio l’art. 15, comma 6 sul Progetto urbano, nel valorizzare la collettività locale nelle iniziative dei privati alla formazione del SAP.
Tutto questo rappresenterà allora un valido motivo di costante aggiornamento, legato alla post-modernità giuridica, che non è affatto un’idea platonica.
Note
1. riguardo alle norme in tema di Project financing (su cui si dirà a breve, ponendo l’istituto in parallelo con il Progetto urbano), può essere interessante richiamare a mo’ di glossa il fatto che, come pure di recente ha ribadito il Consiglio di Stato (sez. III, 24.04.2024 n. 3747), nel Codice dei contratti pubblici del 2016 la disciplina di tale istituto, a differenza di quelle anteriori, non richiede più, con espressione se non generica, quantomeno astratta, una valutazione in termini di pubblico interesse della proposta di partenariato, ma qualifica in modo più specifico l’attività di cui è investita l’Amministrazione. Si richiede, infatti, un accertamento non tanto o non solo limitato alla rilevanza pubblicistica dell’iniziativa, che certamente pure deve sussistere, ma, penetrando sin da subito il dettaglio tecnico ed economico in cui è declinato il progetto, al fine di rilevarne la sua piena appetibilità per il mercato settoriale e, in definitiva, la sua realizzabilità, non solo in astratto, ma in concreto (TAR Lazio, sez. I-quater, 11 maggio 2017, n. 5702). La modifica operata nel 2016 è stata confermata anche nell’attuale art. 193, comma 11, del d.lgs. 31 marzo 2023, n. 36 (vigente Codice dei contratti pubblici);
Bibliografia
• Chiti E. (2017), La rigenerazione di spazi e di beni pubblici: una nuova funzione amministrativa? in Di Lascio, F., Giglioni, F. (a cura di), La rigenerazione di beni e spazi urbani. Contributo al diritto delle città, Il Mulino, Bologna, pp. 18 e ss;
• Cortese E. (2003), Meccanismi logici dei giuristi medievali e creazione del Diritto comune, in Il diritto fra scoperta e creazione. Giudici e giuristi nella storia della giustizia medievale, Jovene, Napoli, pp. 329-331;
• Di Giovanni L. (2023), Rigenerazione integrata europea e rigenerazione urbana nazionale: due modi diversi di intendere la trasformazione del territorio, in “DPCE online”, saggi, n. 1, pp. 81-104;
• Dipace R. (2017), Le politiche di rigenerazione dei territori tra interventi legislativi e pratiche locali, in “Istituzioni del Federalismo”, n. 3, pp.625 e ss;
• Favaro T. (2020), Verso la smart city: sviluppo economico e rigenerazione urbana, in “Rivista Giuridica di Urbanistica. Diritto e Territorio”, n. 2, pp. 87 ss;
• Grossi P. (2003), Prima lezione di diritto, Laterza, Bari-Roma;
• Grossi P. (2017), L’invenzione del diritto, Laterza, Bari-Roma;
• Mari C. (2021), Rigenerazione urbana e città informale nel contesto europeo: profili evolutivi, vantaggi e criticità, in “Federalismi.it”, n. 27;
• Primerano G.A. (2022), Il consumo di suolo e la rigenerazione urbana. La salvaguardia di una matrice ambientale mediante uno strumento di sviluppo sostenibile, Editoriale Scientifica, Napoli;
• Spasiano M. R. (2022), Riflessioni in tema di rigenerazione urbana, in “Rivista Giuridica di Urbanistica. Diritto e Territorio”, n. 2, pp. 394 e ss;
• Wickham C. (2000), Legge, pratiche e conflitti. Tribunali e risoluzione delle dispute nella Toscana del XII secolo, testo italiano a cura di Bonaccorsi, I., Sennis, A.C., Viella, Roma 2000, pp. 226-234.




In ambito urbanistico, negli ultimi anni si è andata via via sempre di più affermando un’esigenza legata alla riqualificazione urbana e rigenerazione degli spazi esistenti, più che alla regolamentazione di un’espansione territoriale che ha perso nel tempo l’interesse degli investimenti sia pubblici che privati e ha reso evidente la fragilità delle politiche di gestione urbana di frange metropolitane sempre più remote ed inconsistenti. Il tema della rigenerazione, declinato nelle numerose fattispecie legislative regionali, pone al centro del proprio interesse il rinnovo di quegli elementi che conferiscono qualità ad un determinato ambito urbano, sia esso periferico o centrale, che, per svariate ragioni, risulta aver perso nel tempo la propria funzione ed il proprio significato all’interno della città ed il cui rinnovato valore ha ricadute positive anche in termini economici di interesse privato nei contesti in cui si inserisce. Per questo motivo la ricerca e la sperimentazione in Urbanistica hanno posto, negli ultimi anni, al centro del proprio interesse e dei temi legati alla pianificazione tutti quegli elementi in grado di garantire, attraverso nuove strategie, strumenti e meccanismi di attuazione, i caratteri che connotano la qualità urbana e ambientale: lo spazio pubblico e le attrezzature collettive come struttura di riferimento per la socialità e l’integrazione culturale (Borja 2001), la valorizzazione e la fruizione dell’ambiente naturale come specificità e risorsa delle città mediterranee (Fallanca 2010), la conservazione dell’identità storica come valore civile del proprio territorio e campo privilegiato dell’innovazione progettuale (Gambino 2010; Ravagnan, Poli 2017).
Il Piano Regolatore Generale di Roma Capitale, approvato nel 2008 con Delibera di Consiglio Comunale n.18, rappresenta un caso emblematico di strumento pianificatorio che si pone a cavallo tra due “stagioni” urbanistiche. Se da un lato, infatti, risulta fortemente legato al precedente Piano del ’63 e recepisce le principali attuazioni urbane attive in quegli anni che possiamo considerare ancora “tradizionali” negli obiettivi trasformativi e nelle politiche di insediamento, dall’altro contiene in nuce alcune strategie pianificatorie sperimentali con approcci innovativi.
In particolare, l’assetto del Piano si basa su una struttura decentrata e policentrica che si estende oltre i confini comunali a comprendere un più ampio orizzonte metropolitano, con l’obiettivo primario di garantire, attraverso la costruzione della città pubblica, a tutte le comunità locali, il “diritto alla città” (Ricci 2009). In pratica propone un ripensamento della struttura del Piano basato su una riconfigurazione del rapporto tra “centro” e “periferia” attraverso una riorganizzazione del sistema ambientale, insediativo e della mobilità.
Nell’ambito di questo processo di decentramento che mira da ampliare i poteri in ambito urbanistico dei municipi (decentramento mai veramente at-
tuato, come sappiamo), il PRG di Roma Capitale individua il sistema delle centralità urbane e metropolitane e le centralità locali. Queste ultime sono definite come i luoghi più rappresentativi dell’identità locale e corrispondono agli spazi urbani dove il Piano intende localizzare le funzioni in grado di rivitalizzare e riqualificare i tessuti circostanti, oltre ai principali servizi necessari per la migliore organizzazione sociale e civile del municipio. (NTA di PRG, art.66)
È evidente già da questo primo enunciato quanto siano cruciali nel nuovo Piano i temi come l’identità urbana, la riqualificazione di spazi esistenti e la dotazione di funzioni pubbliche che abbiano una ricaduta positiva sul contesto. In aggiunta riconosciamo i concetti di comunità e socialità quali elementi valoriali necessari e riferibili a tutti agli ambiti territoriali in cui è suddiviso il PRG (città storica, città consolidata, città da ristrutturare e città della trasformazione).
Le centralità locali sono localizzate nelle parti di città caratterizzate da una struttura morfotipologica atta a garantire un buon livello di scambio sociale, dotate di un’adeguata accessibilità pedonale e di servizi integrati nel tessuto edilizio e per le quali è prevista un’alta qualità degli spazi pubblici (Relazione elaborato I2 del PRG di Roma, D.C.C.18/2008)
Il PRG individua 61 perimetri di Centralità locali rappresentati graficamente nell’elaborato prescrittivo 2 sistemi e regole e comprendono gli immobili e le aree cui si attribuisce una potenzialità trasformativa e riqualificante del contesto. (Figura 1)
In particolare, all’interno del loro perimetro ricadono:
• aree con destinazione a Verde pubblico e servizi pubblici da livello locale;
• aree per i Servizi pubblici di livello urbano;
• tessuti per attrezzature pubbliche o di uso pubblico;
• spazi pubblici da riqualificare;
• aree per Infrastrutture per la mobilità.
Gli spazi pubblici da riqualificare sono indicati con apposita campitura gialla all’interno del perimetro definito per ciascuna centralità e su di essi, come indicato nelle Norme tecniche di attuazione, si concentrano specifici interventi che mirano alla sistemazione degli spazi scoperti pubblici e privati, ed il potenziamento dei fronti commerciali al piano terra degli edifici per la localizzazione di pubblici servizi, negozi di vicinato e attrezzature locali, oltre al ridisegno e alla sistemazione della sede stradale (corsie automobilistiche, marciapiedi, zone pedonali, piste ciclabili) e le sistemazioni a verde di arredo urbano.
Ciascuna centralità locale individuata nel PRG è puntualmente descritta in elaborati indicativi come Schemi di riferimento identificati da un toponimo e da una numerazione, inquadrate all’interno del territorio municipale. Ciascuna scheda definisce “la situazione attuale e lo sviluppo previsto”, attra-

verso l’analisi delle funzioni esistenti e previste e l’esplicitazione degli obiettivi di progetto.
L’assetto delle centralità locali è definito da un Progetto pubblico unitario avente valore di strumento urbanistico attuativo, anche nelle forme del programma integrato o del progetto urbano, su proposta pubblica o privata ed elaborato sulla base dei contenuti degli schemi di riferimento che possono essere periodicamente aggiornati. (Figura 2)
A differenza dei programmi integrati (Print) e del progetto urbano definiti nel procedimento e nei contenuti, rispettivamente agli art. 14 e 15 delle NTA del PRG di Roma, e in questa modalità applicabili in tutti gli ambiti territoriali in cui sono previsti, il Progetto pubblico unitario non appare analogamente descritto nelle norme di Piano lì dove previsto (art.66 centralità locali e art.83 Servizi pubblici).
La valenza urbanistica sembra essere una peculiarità del Progetto pubblico unitario attribuito alle centralità locali quando, su iniziativa pubblica o privata, si debbano prevedere (Figura 3):
• la sistemazione degli spazi pubblici da riqualificare;
• la realizzazione delle nuove attrezzature pubbliche e la conferma o riuso di quelle esistenti;
• a localizzazione della quota di edificabilità privata conseguente all’acquisizione pubblica, mediante cessione compensativa ai sensi dell’art.22, delle aree avente destinazione a verde pubblico e servizi pubblici di livello locale e Servizi pubblici di livello urbano;
• la realizzazione di nuovi spazi urbani pubblici ad integrazione di quelli già individuati nell’elaborato “Sistemi e Regole” 1:10.000;
• la realizzazione di parcheggi pubblici e privati ad integrazione della dotazione di standard.
Ad oggi, tuttavia, a quasi vent’anni dall’approvazione dello strumento urbanistico comunale, nessun Progetto pubblico unitario riferito ad una Centralità locale è stato ancora approvato, sebbene non siano mancati tentativi sia di iniziativa pubblica che privata.
Ma non è complicato risalire alle cause che possano aver portato alla mancata attuazione delle


previsioni del piano regolatore per gli ambiti delle Centralità locali.
Tra le motivazioni principali vi è sicuramente l’aspetto procedurale: la valenza urbanistica attribuita al progetto pubblico unitario come strumento attuativo prevede un iter approvativo articolato che oltre alle consultazioni pubbliche necessita di attività eso ed endoprocedimentali che allungano i tempi già incerti di approvazione. Il secondo elemento di difficoltà è economico e progettuale: trattandosi di uno strumento pianificatorio della “città pubblica” più che di quella privata, necessita spesso di un importante impegno economico che grava nel bilancio dell’Ente, investimenti importanti e onerosi che fino al PNRR erano impensabili per le strutture territoriali. Il Piano economico-finanziario da elaborare è molto complesso da comporre se, oltre ai benefici connessi alla valorizzazione immobiliare, si considerino anche le ricadute positive sugli aspetti sociali, culturali, ecologici e di salubrità pubblica, molto difficili da quantificare. Anche la possibilità dell’applicazione della cessione compensativa di cui all’art.22 delle NTA di PRG, non ha stuzzicato l’interesse privato all’ investimento. La terza criticità riscontrabile è sicuramente dimensionale: i perimetri delle Centralità sono molto spesso ampi e articolati riferendosi a “città” diverse e sono, quindi, molto complessi da comporre (pensiamo a quella di Monteverde o di Casal Monastero) (Figura 4). Anche un’attuazione per stralci funzionali, sostenuta da chi scrive, non

è mai stata presa in considerazione dagli uffici comunali che hanno sempre fatto riferimento “all’intero perimetro della Centralità”.
Tuttavia, le Centralità con il Progetto pubblico unitario hanno avuto il merito di aver posto quale tema centrale anche della pianificazione urbanistica il progetto dello spazio pubblico, la “qualità urbana”, “la prossimità della città pubblica”, la programmazione e il coordinamento dei servizi territoriali, temi ancora attuali che hanno trovato nel tempo nuove declinazioni.
Ma all’ attualità, gli stravolgimenti dell’evento pandemico appena trascorso, nonché i mutamenti tecnologici, politici ed economici dovuti alle guerre e ai nuovi assetti geopolitici internazionali hanno avuto un impatto importante sul modo di concepire e di vivere lo spazio pubblico introducendo nuove funzioni e necessità che solo qualche anno fa erano inimmaginabili.
La carta dello spazio pubblico del 2013 definisce lo spazio pubblico come un “… luogo di proprietà pubblica e di uso pubblico accessibile e fruibile a tutti gratuitamente o senza scopi di lucro. Gli spazi pubblici sono elementi chiave del benessere individuale e sociale, i luoghi della vita collettiva delle comunità, espressione della diversità del loro comune patrimonio culturale e naturale.”
Lo spazio, quindi, rappresenta il configurarsi delle forme sociali: assume un significato sociologico in quanto simbolo delle relazioni collettive. La città nasce dalle esigenze sociali degli uomini e del vivere insieme: è luogo di promozione dei rapporti sociali, della vita di relazione e di scambio. Queste esigenze diventano leggibili nelle strutture insediative, nelle morfologie fisiche e nella configurazione spaziale dei luoghi, nei segni e nei sedimenti storici che l’impianto urbano possiede (Carrà 2014). Tuttavia, appare di difficile definizione il concetto stesso di “qualità urbana” il quale appare legato all’insieme di relazioni complesse ed interdipendenti tra componenti materiali ed immateriali, più che alla declinazione di elementi fisici e quantitativi. Quindi più che chiedersi quali siano gli elementi di definizione della qualità urbana, sembra più opportuno maturare un approccio metodologico che permetta di valutare di volta in volta le necessità/i bisogni cui il progetto dello spazio pubblico deve rispondere in un determinato contesto. Il rinnovato bisogno di qualità nella configurazione spaziale dei luoghi, in cui si svolgono le principali attività degli abitanti passa attraverso meccanismi e processi in cui le modificazioni dello spazio e gli esiti formali devono corrispondere alle effettive esigenze degli abitanti. E quindi potrebbe essere utile, a questo punto, spostare l’attenzione sul legame tra disponibilità di servizi e benessere dei cittadini, per cui gli investimenti pubblici di qualità migliorano le condizioni generali di contesto in cui vivono e operano i cittadini e le loro articolazioni sociali ed economiche. L'inadeguata disponibilità di servizi








colpisce particolarmente chi non ha condizioni di reddito sufficienti per ricorrere ad alternative, mentre la non disponibilità di servizi di base costituisce essa stessa un fattore di povertà e di esclusione. Questo implica che servizi inadeguati aggravano direttamente le condizioni di marginalità e di esclusione, e che dunque un intervento deciso sul miglioramento di diffusione e qualità dei servizi contribuisce direttamente alla riduzione dell'esclusione sociale e della povertà.
Ai temi della sostenibilità ambientale, del risparmio energetico, quindi, se ne sono aggiunti altri a definire la qualità urbana, come quelli che attengono la sfera sociale che rimettono al centro delle trasformazioni urbane le persone che vivono la città e i suoi servizi, le cui esigenze nel corso del tempo mutano a seconda anche delle fasi della vita.
Tali riflessioni si collocano all’interno di un sistema culturale e disciplinare che ha visto, negli ultimi anni, il consolidamento di nuove teorie e di nuove metodologie di attuazione, attraverso sperimentazioni progettuali e procedurali innovative che suscitano sempre più l’interesse delle Amministrazioni locali, dei Governi e della Unione Europea e che stanno portando, sebbene ancora in modo non del tutto strutturato, verso la revisione di alcuni aspetti procedurali e normativi della pianificazione.
Le “Linee Programmatiche 2021-2026 per il Governo di Roma Capitale” del Sindaco, appro-
vate dall’Assemblea Capitolina nella seduta del 19.11.2021 con deliberazione n. 10, individuano nel recupero, riuso e rigenerazione urbana i punti cardine del programma di rigenerazione previsto per la città, anche al fine di usare in maniera sinergica e coerente gli incentivi nazionali, la legge regionale sulla rigenerazione urbana e i fondi del PNRR anche per la transizione verde. Ispirandosi alle esperienze maturate nella città di Parigi e poi riprese in Italia anche dal Comune di Milano, le suindicate Linee delineano quale obiettivo previsto i “Servizi al territorio per la Città dei 15 minuti” in esito alle quali si prevede di riorganizzare gli spazi urbani in modo che la cittadinanza possa trovare, in un arco temporale prossimo ai 15 minuti a piedi o in bicicletta dalla propria abitazione, un ampio ventaglio di servizi e strutture utili per la migliore fruizione del proprio quadrante territoriale, con l’ottimizzazione dei caratteri identitari dello stesso, in un’ottica di ricucitura unitaria della città (Linee programmatiche del Sindaco, DAC n.10/2021) (Figure 5 - 6 - 7 - 8 - 9)
In coerenza con gli obiettivi sopra descritti, con la deliberazione di Giunta Capitolina n.332 del 22.09.2022, l’amministrazione ha approvato il “Programma 15 progetti per la Città dei 15 minuti - Progetti di riqualificazione degli spazi aperti dei 15 Municipi” ed ha congiuntamente elaborato i Documenti di indirizzo alla progettazione per lo sviluppo di Ma-

sterplan in ciascun municipio di Roma Capitale. Il suddetto programma, seguito dalla Unità Organizzativa Rigenerazione e Progetti Speciali del Dipartimento di Urbanistica, prevede di realizzare una prima serie di 15 interventi (uno per ogni municipio), inseriti all’interno di ambiti territoriali appositamente definiti per il programma attraverso un lungo percorso partecipativo e consultivo con i municipi. Il teorico della Città dei 15 minuti è il professore colombiano Carlos Moreno, docente alla Sorbona di Parigi, che ha proposto una nuova concezione dell’idea di prossimità all’interno delle città, per cui, in un contesto urbano, gli spazi di lavoro, quelli commerciali, i servizi scolastici e assistenziali, ma anche la cultura ed il divertimento dovrebbero essere idealmente raggiungibili entro i quindici minuti da casa propria, a piedi o in bicicletta. «È tempo di passare dalla pianificazione urbanistica alla pianificazione della vita urbana. Ciò significa trasformare lo spazio della città, ancora altamente mono-funzionale con le sue diverse aree specializzate, in una realtà policentrica, basata su quattro componenti principali -vicinanza, diversità, densità e ubiquità- per offrire a breve distanza le sei funzioni sociali urbane essenziali: vivere, lavorare, fornire, curare, imparare e godere» (Moreno, 2019).
Accanto a vecchie e consolidate richieste di una città efficiente, funzionale, produttiva, accessibile a tutti, quindi, sono sorte nuove esigenze espresse a più livelli della società che hanno come oggetto la bellezza, la varietà, la fruibilità, la sicurezza, la capacità di stupire e divertire, la sostenibilità, la ricerca di nuove identità, aspetti che esprimono il desiderio di vivere e di godere una città “a misura d’uomo”. Una città in cui ad una prossimità funzionale ne corrisponda una relazionale, grazie a cui le persone abbiano più opportunità di incontrarsi, sostenersi a vicenda, avere cura reciproca e dell’ambiente, collaborare per raggiungere assieme degli obiettivi. In definitiva, una città costruita a partire dalla vita dei cittadini e da un’idea di prossimità abitabile in cui essi possano trovare ciò che serve per vivere e per farlo assieme ad altri (Manzini, 2021)
Il tema della città della prossimità non è nuovo, nella sua sostanza, ed è stato declinato anche in passato in esperienze pianificatorie/progettuali sia in Italia che in Europa con esiti molto diversi ed alle quali dobbiamo riferirci se vogliamo superare il gap tra questioni concettuali ed operative sempre più complesse.
Ma il punto di forza della teoria della “Città dei 15 minuti” è la capacità di portare a sintesi molte questioni oggi in agenda, in risposta alle crisi pandemica e ambientale: prossimità, mobilità dolce e accessibilità degli spazi dell’abitare, del lavoro e delle attrezzature pubbliche; ruolo delle tecnologie nell’avvicinare e mettere in rete risorse, persone e dotazioni; dimensioni ecologiche come leva del riassetto di formazioni insediative e stili di vita. (Marchigiani, 2021)
Ed aldilà delle dispute tra sostenitori e detrattori della teoria, infatti è a questa capacità di sintesi tra tematiche differenti e in continua evoluzione cui si è fatto riferimento per l’elaborazione di una vera e propria Metodologia che possa superare le rigidità e le problematiche applicative degli strumenti esistenti (vedi il Progetto pubblico unitario delle Centralità locali del PRG di Roma) e possa essere declinato in una varietà di ambiti territoriali mantenendo al contempo l’unitarietà del Programma. L’approccio metodologico scelto dalla città di Roma è quello di procedere alla definizione di una Masterplan per ciascun ambito territoriale di ogni municipio. Ai progettisti incaricati è stato dato un programma di contenuti e di obiettivi quali: la riduzione delle aree pavimentate, l’aumento delle superfici drenanti e delle aree verdi, eliminazione delle isole di calore, riconnessione dei sistemi ambientali e di mobilità, incremento delle piste ciclabili e delle aree pedonali, migliorare le connessioni e la sicurezza dei collegamenti con gli ambiti territoriali contigui, razionalizzare il sistema dei parcheggi e della sosta, aumentare le superfici per le attrezzature sportive e ricreative, razionalizzare e incrementare il sistema dei servizi territoriali. (Figure 10 -11) Per la definizione dei Masterplan si è partiti da una ricognizione di tutti gli interventi pubblici e privati programmati nell’ambito, previsti da soggetti pubblici e privati e dagli uffici dipartimentali e territoriali dell’Ente, e si è proceduto ad una loro integrazione e coordinamento attuativo. Tale attività ha permesso di indirizzare le realizzazioni pubbliche verso gli obiettivi del Programma della Città dei 15 minuti, evitando sovrapposizioni in un disegno urbano più unitario e coerente. Infine, è stato individuato un intervento prioritario da realizzare nel breve periodo (entro la fine del 2025) che possa essere il volano per l’attuazione dell’intero programma di interventi previsto per ciascun ambito municipale.
A differenza dei Progetti pubblici unitari delle Centralità locali dell’art. 66 delle NTA di PRG, lo strumento del Masterplan non ha valore di strumento urbanistico attuativo ma rappresenta un importante indirizzo politico di azione territoriale. La prevista approvazione da parte della Giunta Capitolina, in tal senso, serve non solo a sancire l’impegno dell’Organo esecutivo dell’Ente ma anche quello di stanziare in bilancio gli impegni economici per l’attuazione degli interventi, rendendo, quindi, il programma direttamente operativo. Se da un lato questa semplificazione procedurale è volta a rendere immediatamente esecutive le scelte strategiche dell’amministrazione, dall’altro permette comunque di mantenere la flessibilità e una capacità incrementale delle soluzioni proposte. È quindi possibile aggiornare le previsioni ed il disegno urbano del Masterplan che può ospitare nuovi progetti, adattarsi a nuove esigenze, orientarsi verso nuove strategie.
Anche se è ancora presto per operare un bilan-



cio ed una valutazione razionale sull’efficacia ed efficienza dei Masterplan e di questa nuova metodologia attuativa del progetto dello spazio urbano, tuttavia ad oggi l’approccio progettuale in luogo di quello pianificatorio ha costituito un indubbio vantaggio procedurale che, possiamo auspicare, si confermi anche nelle successive fasi esecutive. Ad oggi l’amministrazione è in possesso di circa 14 Masterplan per ambiti centrali e periferici della città. Per ciascuno ha già ottenuto 14 progetti di spazio pubblico caratterizzati da una forte valenza sperimentale, volti al raggiungimento degli obiettivi comuni al programma della città dei 15 minuti. Seppur fortemente orientati dalle scelte strategiche dell’amministrazione, sorprende la varietà delle soluzioni progettuali proposte, sempre “cucite su misura” degli ambiti territoriali in cui sono inserite ed innovative rispetto ai programmi di intervento sullo spazio pubblico anche condotti di recente dall’amministrazione. Così una scala di riconnessione urbana diventa anche una piazza di quartiere e spazio per eventi, un parcheggio a
servizio di una scuola può diventare uno spazio ludico nelle ore pomeridiane e ospitare il mercato settimanale nei giorni festivi, una sistemazione di spazi verdi può servire da cavea per spettacoli ed eventi: gli spazi progettati sono caratterizzati da una flessibilità funzionale che permette loro di assumere nuovi significati e diversi usi nell’arco della giornata. (Figure 12 -13 - 14)
Le città rappresentano la struttura di organizzazione socio-territoriale più antica e resiliente, sopravvissute a regni e imperi, a rivoluzioni e guerre, alle più diverse crisi e a ogni altra circostanza avversa (Moreno, 2024). Le città sono la rappresentazione fisica delle forme associative che gli abitati hanno determinato ed in cui si riconoscono. Ad antiche necessità ed esigenze, oggi è necessario rispondere con nuove soluzioni che richiedono, da parte di chi “gestisce la città”, una competenza adattiva e creativa, che consenta di trovare “nuovi modi” di governare le “permanenti sfide”, dimostrando capacità di immaginazione e sperimentazione.






Bibliografia
• II BIENNALE DELLO SPAZIO PUBBLICO, Carta dello Spazio Pubblico, INU, 2013.
• BASSO S., GERUNDO R., MUNARIN S., RENZONI C., FALLANCA C., SELICATO F., Workshop 4, Urbanistica e/è azione pubblica per le dotazioni territoriali e la qualità urbana, Planum Publisher, 2017:
• BATTISTI A., MUSSINELLI E., RIGILLO M., Spazio Pubblico e Qualità Urbana, TECHNE n. 19, 2020
• CAROBBI P., FONTI L., MODIGLIANI D., POLI I., RAVAGNAN C., Periferia pubblica e Centralità locali. I luoghi della rigenerazione a Roma, In Urbanistica Informazioni, INU, 2015
• CARRA’ N., Configurazione spaziale dei luoghi, significato sociale dello spazio e qualità urbana, In Urbanistica Informazioni, INU, 2015
• MANZINI E., PAIS I., Abitare la prossimità. Idee per la città dei 15 minuti, Ed Egea, 2021
• MARCHIGIANI E., Il progetto della ‘città dei 15 minuti’: esercizi critici di prospettiva e di memoria, in Urbanistica Informazioni, INU, 2021
• MORENO C., La Città dei 15 minuti, ADD Editore, 2024
• POLI I., RAVAGNAN C., La rigenerazione urbana nel Piano Regolatore Generale di Roma. Tra attuazione e innovazione, in Ciudades 20, 2017
• RICCI L., La Città da Ristrutturare e la Città della Trasformazione. Il nuovo Piano Regolatore di Roma, in Urbanistica n. 116 (numero monografico), 2001
• RICCI L., Piano locale e ... Nuove regole, nuovi strumenti, nuovi meccanismi attuativi, FrancoAngeli, 2009
• TALIA M., Un nuovo ciclo di pianificazione tra tattica e strategia, Planum Publisher, 2016
• Norme Tecniche di attuazione del PRG di Roma Capitale, Deliberazione di Consiglio Comunale n.18/2008
• Relazione elaborato I2 Schemi di riferimento per le Centralità locali del PRG di Roma, D.C.C.18/2008
• Linee programmatiche del Sindaco, Delibera di Assemblea Capitolina n.10/2021
• Deliberazione di Giunta Capitolina n.332 del 22.09.2022




1. Principali strumenti urbanistici per la riqualificazione urbana
Agli strumenti di pianificazione urbana tradizionali, negli anni ’90, sono stati affiancati, con diversi dispositivi normativi, i cosiddetti Programmi Complessi.
La loro caratterizzazione è individuabile nella loro stessa definizione. Essi sono denominati “Programmi” in quanto si basano su uno specifico programma temporale, nonché su un determinato programma di sostenibilità economico-finanziaria e si fondano su un rapporto di reciproci intenti tra pubblico e privato.
Il termine “complessi” sta ad indicare, invece, non solo la complessità dell’interazione dei soggetti partecipanti alla attuazione delle previsioni di tali strumenti, ma anche le caratteristiche dei territori per i quali essi vengono proposti. Infatti, i Programmi Complessi interessano solitamente parti di città che presentano un particolare stato di degrado non solo fisico, ma anche sociale, economico, ambientale e culturale.
Gli strumenti complessi, dunque, non mirano tanto alla previsione di inedite pianificazioni degli ambiti urbani, quanto piuttosto alla loro riqualificazione, interessando parti di città solitamente già edificate ed urbanizzate.
Tra i Programmi Complessi vengono annoverati i Programmi Integrati (PRINT) ex L.179/92 art.16, i Programmi di Recupero Urbano (P.R.U.) ex. L.493/93, art.11, i Programmi di Riqualificazione Urbana (P.Ri.U.) ex L.179/92, art.2, i Programmi Integrati di Riqualificazione delle Periferie (P.I.R.P.) ex L.R. n.20/2005 art.13, i Programmi di Riqualificazione Urbana e di Sviluppo Sostenibile del Territorio (ex. DM 8 ottobre del 1998). Ognuno di essi si differenzia per gli specifici obiettivi che si pone di raggiungere, per il contesto di intervento, per la tipologia di opere pubbliche di cui prevedono la realizzazione, nonché per le finalità di riqualificazione (Corrado, Romano, 2009) (Figura1).
Il Piano Regolatore Generale vigente di Roma, nel perseguire obiettivi di riqualificazione urbana, in aggiunta ai suddetti programmi complessi, prevede il ricorso anche e tra l’altro, per determinati ambiti urbani, al “Progetto urbano” di cui all’art. 15 delle Norme Tecniche di Attuazione. Esso è finalizzato alla individuazione dell’assetto urbano di determinati ambiti, coordinandone le scelte progettuali, le previsioni economico-finanziarie attraverso dinamiche di concertazione pubblico-privato, nonché l’attuazione di interventi diretti e indiretti e di interventi pubblici e privati.
2. Limiti delle strategie di riqualificazione e genesi del concetto di Rigenerazione urbana
Nonostante i citati strumenti complessi possono essere considerati come una importante, oltre
che necessaria ed irrinunciabile integrazione alla strumentazione urbanistica prevista dalla ormai obsoleta Legge 1150/1942, tuttavia, anche essi hanno mostrato nel tempo diversi limiti e criticità nella loro applicazione.
Il limite attuale più considerevole può essere individuato nella difficoltà di tali strumenti di confrontarsi con dinamiche inedite di trasformazione della città contemporanea, ed in particolare con quella della diffusione urbana.
La diffusione urbana, difatti, è un fenomeno che ha indebolito fortemente la ricerca e la costruzione della qualità della città, in particolar modo, nel suo rapporto con l’ambiente e il paesaggio.
La principale e più deleteria conseguenza della diffusione urbana è stata, infatti, il consistente consumo di suolo.
È proprio nel tentativo di considerare e arginare tale fenomeno che trova la sua genesi il concetto di “Rigenerazione urbana”.
Il termine “consumo” implica un carattere di negatività e di distruzione. Esso, infatti, significa propriamente «processo o atto mediante cui i beni economici sono utilizzati e, nel caso di beni materiali, integralmente o parzialmente distrutti per appagare un bisogno (c. di godimento) o per produrre nuovi beni (c. produttivo o riproduttivo)» (Treccani.it). All'interno delle dinamiche di consumo di suolo, le cancellazioni più gravi riguardano i valori del suolo e del territorio che viene inteso come «spazio vuoto». Lo spessore naturale e culturale dell’ambiente viene ridotto a «puro contenitore», mentre il paesaggio è considerato spesso come “mero rivestimento formale degli edifici e degli spazi aperti delle nuove offerte immobiliari” (Lanzani, 2012).
Il fenomeno è stato denominato in diversi modi: città diffusa, città sconfinata, città dispersa, città dilatata, città continua, città infinita, sprawl urbano, metropolizzazione, periurbanizzazione (Indovina, 1990; Calzolari, 1999).
Città diffusa: due parole che nel loro affiancarsi si caricano del riferimento ad un universo. Un universo articolato, policromo, ibrido, sfuggevole e complesso.
La diffusione urbana è da intendersi non soltanto come edificazione puntuale e non organica sul territorio di edifici a carattere prevalentemente residenziale, ma anche come disseminazione sul territorio di elementi di diverso genere (da quello insediativo alle infrastrutture, alle attività produttive, commerciali, …) secondo una modalità priva di quei nessi tra gli stessi elementi e tra essi e il territorio necessari per formare un sistema urbano ponderato, organico, organizzato e strutturato. Sotto il profilo morfologico la città diffusa si configura per lo più come un insieme di grani e frammenti (Colarossi, 2013). La sua matrice compositiva è costituita dall'aggregazione individualistica della casa unifamiliare che riconosce l'unico spazio

di socialità all' ambito familiare e non più a quello urbano (Magnelli, 2013). Data la non continuità del tessuto insediativo, la città diffusa si mostra come un alternarsi di parti costruite e spazi non edificati che in questa nuova dimensione urbana non possono essere più considerati altro dalla città, ma parte integrante di essa (Piazzini, 2012). Molte di queste aree spesso conservano ancora un carattere agricolo sullo sfondo di un paesaggio urbano in cui non è più possibile dire dove finisca la città e dove inizi la campagna.
E in questa dinamica, sembra pericolosamente invertirsi il rapporto tra l'architettura e la dimensione urbana: il processo in atto in questi ambiti non riesce ad essere più la strutturazione del sistema insediativo ad opera dell'urbano, ma diviene la destrutturazione dell'urbano da parte del sistema insediativo.
La complessità della città diffusa non si esaurisce in questo inedito rapporto in cui si perde la riconoscibilità dei tradizionali limiti tra città e campagna, ma si mostra anche nel suo essere legata ad altre importanti dimensioni, come quella delle trasformazioni socio-economiche e produttive, e alle ripercussioni di queste sul territorio (Pavia, 2012).
Le politiche di espansione urbana sopra descritte, comportano spesso fenomeni di dismissione e di abbandono di luoghi che restano sospesi in uno stato di avanzato degrado. Questo contamina l’ambito urbano circostante che diviene, a sua volta, terreno fertile per nuove ed ulteriori edificazioni e ulteriore consumo di suolo (Figure 2 e 3).
L’altro notevole fenomeno urbanistico in cui la Rigenerazione urbana ha trovato la sua necessità di genesi e sviluppo è rappresentato, dunque, dal fenomeno della dismissione di edifici e di interi ambiti urbani. Dismissione causata non soltanto dalle sopra descritte modalità di espansione della città contemporanea, ma anche dalle importanti trasformazioni socio-economiche che hanno investito le nostre città e Roma in particolare. La città contemporanea ha subito, con una notevole velocità, una serie consistente di modificazioni di tipo spaziali, di approcci alla vita, di modalità di vivere gli spazi della città. Ciò ha condotto progressivamente ad uno slittamento tra le tradizionali categorie rappresentative di composizione delle consolidate forme di strutturazione e composizione urbana e le reali dinamiche di trasformazione della città. Roma mostra con chiarezza, anche per la storicità che la caratterizza, fenomeni di abbandono e condizioni di sospensione non solo di ambiti urbani, ma di veri e propri elementi connotativi della storia della città: fabbricati di archeologia industriale, sedi storiche di uffici ed istituzioni pubbliche, casali, torri, percorsi poderali, viali alberati, strade storiche. Osservando questi spazi si può notare che la loro indeterminatezza e il loro degrado costituiscono un elemento di privazione di qualità urbana non solo dei luoghi in cui essi stessi sono, ma anche
delle aree ad essi adiacenti. Inoltre, le aree urbane e gli edifici in dismissioni, spesso, rischiano di diventare dei veri e propri muri che fanno da barriera all'integrazione prima fisica e poi sociale dei nuovi quartieri rispetto alle parti più consolidate. Il loro stato insito di indeterminatezza diviene esso stesso il motivo per cui, più facilmente, queste aree vengano individuate come luoghi in cui rifugiarsi in caso di emarginazione sociale o di attività illecite aggravando l'esclusione di parti sociali già isolate di per sé, dando luogo così a vere e proprie azioni di ghettizzazione.
Da una parte, i consistenti processi di dismissione sono il frutto di dinamiche di abbandono conseguenti al declino di alcune attività e funzioni o della loro non sostenibilità in contesti temporali differenti da quelli in cui sono nati. Ci sono poi una serie di altre dinamiche, nella città di Roma, in cui il processo di dismissione è stato involontariamente incrementato da alcune politiche di governo del territorio, come quella delle “Centralità”. L’espansione pianificata della Città è stata, infatti, fortemente caratterizzata, negli ultimi dieci anni, dalla costruzione di nuovi ambiti incardinati sulla realizzazione di residenze e grandi luoghi del consumo. Questi ultimi hanno svuotato, sovente, la capacità funzionale dei negozi di vicinato di alcuni quartieri, innescando processi di dismissione e abbandono di spazi commerciali originariamente integrati negli ambiti insediativi della città storica e consolidata.
3. Le basi normative della Rigenerazione urbana
La Comunità europea, già a partire dal 1972 con la Carta europea del suolo e soprattutto dal 2000 in avanti, ha focalizzato l’attenzione direttamente sul tema del suolo, inteso come risorsa scarsa e non rinnovabile, caratterizzata da velocità di degrado e processi di formazione e rigenerazione estremamente lenti: risorsa peraltro essenziale per la vita e salute delle persone, per l’equilibrio dell’ecosistema naturale e anche per la produzione agricola, indispensabile allo stesso tempo per le sue funzioni sociali ed economiche ma anche per rendere lo sviluppo sostenibile. Constatato che le conseguenze negative di un eccessivo uso del suolo per costruirvi edifici ed infrastrutture sono ormai maggiori, anche dal punto di vista strettamente economico, rispetto alle utilità, date dalla sua urbanizzazione, la Commissione europea ha adottato nel 2006 una “Strategia generale per la protezione del suolo”. Questa è caratterizzata dai princìpi guida della prevenzione, conservazione, recupero e ripristino della funzionalità del suolo, articolata in interventi ai diversi livelli di governance, secondo il principio di sussidiarietà, inteso sia in senso verticale che orizzontale, dato che il suolo è visto come un esempio evidente della necessità di pensare in termini globali e di agire poi a livello locale.



Figura 1 - Città pubblica e Programmi complessi
Fonte: Mattogno C., Romano R. (a cura di), Dalla casa al paesaggio: edilizia residenziale pubblica e mutamenti dell'abitare a Roma, Gangemi Editore, Roma, 2019.
Questa strategia ha trovato attuazione nel 2011 con altre iniziative della stessa Commissione che, entro un più ampio contesto volto a ottimizzare l’uso delle risorse in un’economia di tipo circolare, hanno fissato l’obiettivo di arrivare entro il 2050 a “quota zero” nell’occupazione di nuovo suolo ed hanno sollecitato orientamenti a buone pratiche per limitare, mitigare e compensare l’impermeabilizzazione del suolo.
Seppure ancora non esista un testo di legge nazionale definitivo (attualmente ancora in corso di definizione e approvazione) dedicato alla Rige-
nerazione urbana, il principale riferimento quadro legislativo è costituito dalla Legge n. 106 del 12 Luglio 2011 di conversione del Decreto-legge n. 70 del 2011.
Nella Regione Lazio è attualmente in vigore la Legge 7 del 2017 che, in attuazione della legge 106/2011, è finalizzata a limitare il consumo di suolo, razionalizzare il patrimonio edilizio esistente, riqualificare aree degradate e caratterizzate da funzioni eterogenee e tessuti edilizi incompiuti, migliorare la sicurezza statica, la sismicità e l’efficienza energetica degli edifici esistenti, nonché

favorire la realizzazione di nuove opere pubbliche ed il completamento di quelle previste.
Il principio posto alla base della norma di Rigenerazione è da individuarsi principalmente nella possibilità di incentivare la trasformazione degli immobili dismessi o dismissibili, promuovendo attraverso di essa il recupero, la riqualificazione, la valorizzazione di manufatti architettonici e del contesto circostante, nonché urbano. Essa si rivolge a tutti i soggetti che operano nella città:
• soggetti pubblici;
• soggetti privati singoli e collettivi;
• soggetti economici.
Tra i principali obiettivi che la Rigenerazione urbana si pone, possiamo senz’altro individuare:
• contrastare fenomeni di diffusione urbana e consumo di suolo, nell’intento di preservare la tutela dell’ambiente e del territorio consentendo, al contempo, lo sviluppo della città in termini di riqualificazione e recupero dei manufatti e delle aree dismesse o che faticano a mantenere la loro originaria funzionalità;
• la valorizzazione di ambiti di intervento che esprimono una potenzialità di trasformazione in grado di offrire qualità urbana;
• il riequilibrio funzionale dei centri urbani impoveriti e con ampie aree dismesse e degradate a causa dei cambiamenti delle attività oggi predominanti e riguardanti l’attività lavorativa, l’attività produttiva, il tempo libero e la socialità; basti pensare al sempre crescente utilizzo dello smart working, come anche il grande impiego dei social media, nonché al proliferare delle attività logistiche per comprendere la differenza di funzioni che la città oggi si trova ad accogliere rispetto a quelle per le quali era stata progettata;
• indirizzare gli interventi edilizi a divenire occasioni di processi rivolti alla ricerca di una nuova identità dei contesti urbani o al recupero dell’esistente, con la finalità di consegnare alla città elementi che ne promuovano o valorizzino la qualità urbana;
• considerare, nella pratica della progettazione, non più come optional, ma come parte centrale di essa, l’attenzione agli aspetti ambientali, energetici, strutturali, oltre che culturali e sociali.
4. L’attuazione della Rigenerazione urbana nel territorio di Roma Capitale
Nell’ambito dell’attuazione della Legge regionale di Rigenerazione urbana, appare evidente come, a quasi sette anni dall’emanazione della stessa, nell’ambito territoriale di Roma Capitale, si sono attuati in prevalenza interventi in attuazione diretta
e di carattere specificatamente edilizio e puntuale ai sensi dell’art. 6 della LR 7/2017, rispetto agli interventi più strutturali e di carattere urbanistico previsti, invece, dall’art. 2 “Programmi di rigenerazione urbana” e dall’art. 3 “Ambiti territoriali di riqualificazione e recupero edilizio” (LR 7/2017).
Ciò è facilmente comprensibile, in quanto tali ultime tipologie di interventi, determinando una trasformazione urbanistica del territorio nella sua completezza e complessità, presuppongono la considerazione di aspetti non solo squisitamente edilizi, architettonici e funzionali, ma anche e soprattutto economici, sociali, ambientali nella ricerca di un delicato equilibrio tra interessi pubblici e privati. Gli interventi di cui ai sopra citati articoli 2 e 3 sono ammessi esclusivamente all’interno del cosiddetto “territorio urbanizzato” come definito dalla Legge Regionale e specificato in apposite Linee Guida e costituito da:
• tessuto urbano consolidato o oggetto di pianificazione, non ricadente negli insediamenti Urbani Storici (come indicati nel PTPR e nelle aree naturai protette);
• aree naturali protette classificate dal PTPR come Paesaggio degli Insediamenti Urbani, salvo quanto previsto dal piano dell’area naturale protetta e dalla legge regionale 6 ottobre 1997, n. 29;
• zone agricole classificate come Paesaggio degli Insediamenti Urbani;
• paesaggio degli Insediamenti in evoluzione del PTPR.
Con la Determinazione Dirigenziale n. 1805 del 15 dicembre 2022, quindi, il Direttore del Dipartimento di Programmazione e Attuazione Urbanistica di Roma Capitale ha preso atto degli elaborati cartografici predisposti dalla Società in house Risorse per Roma. Questi sono finalizzati all’individuazione del territorio urbanizzato di cui all’art. 1 commi 2 e 7 della Legge Regione Lazio n. 7/2017, in cui sono ammessi gli interventi di cui ai suddetti artt. 2, 3, oltre che 4, 5 e 6 della stessa norma (Figura 4).
Il Programma di Rigenerazione Urbana, come disciplinato all’art. 2 della L.R. 7/2017, costituisce uno strumento urbanistico unitario di coordinamento degli interventi pubblici e privati di trasformazione urbana, da realizzarsi in modo sistematico ed organico.
Ferme restando le valutazioni alla base dell’ammissibilità e dell’opportunità delle proposte di intervento, la loro realizzazione, ai sensi dell’art. 2, è subordinata a specifiche condizioni, tra cui:
• l’esistenza, l’adeguamento, la realizzazione delle Opere di Urbanizzazione Primaria;
• il reperimento degli standard di cui al DM 1444/1968 in base ad eventuale nuovo carico urbanistico;
• per gli interventi di sostituzione edilizia si de-



vono realizzare gli impianti previsti dall’art. 135 bis del DPR 380/2001 e ss.mm.ii.;
• gli interventi di bonifica, a carico dei titolari delle aree interessate, in particolar modo dei siti industriali dismessi, devono essere ultimati inderogabilmente prima di qualsiasi cambio di destinazione d’uso e/o di rilascio del titolo abilitativo edilizio;
• devono essere previsti specifici interventi per le attività speciali ed economiche a favore delle attività di comunicazione ed innovazione tecnologica e di promozione sociale;
• per le finalità di sostenibilità ambientale si devono applicare le disposizioni di cui alla legge regionale n.6 del 2008 e successive modifiche nonché il Protocollo Itaca Regione Lazio, raggiungendo livello minimo di punteggio 3 relativo alla migliore pratica corrente;
• raggiungimento della classe energetica A1 di cui al decreto del Ministro dello sviluppo economico 26 giugno 2015;
• sempre per le finalità di sostenibilità, si deve prevedere l’utilizzo di materiali di recupero derivanti dalle demolizioni di opere e manufatti di edilizia civile, ove possibile.
I Programmi di Rigenerazione urbana devono, tra l’altro, così come stabilito dal comma 4 dell’art. 2 della LR 7/2017, individuare:
a) la strategia localizzativa e di promozione sociale nonché le correlazioni e le ricadute rispetto alle previsioni dello strumento urbanistico generale vigente, evidenziate in uno schema d’inquadramento;
b) gli obiettivi di riqualificazione urbana, di sostenibilità ambientale, sociale ed economica che si intendono conseguire attraverso la riduzione dei consumi idrici, energetici e della impermeabilizzazione dei suoli;
c) le prescrizioni da seguire nella progettazione degli interventi;
d) le premialità per il rinnovo del patrimonio edilizio esistente, per la realizzazione di opere pubbliche e/o per cessioni di aree aggiuntive in misura non superiore al 35 per cento della superficie lorda esistente;
e) le destinazioni d’uso consentite nell’ambito del programma di intervento;
f) la quota di alloggi da destinare all’edilizia residenziale pubblica e nel caso di edilizia sociale una quota non inferiore al 20 per cento;
g) le opere di mitigazione e compensazione ambientale;
h) le opere pubbliche o di pubblico interesse da realizzare;
i) le aree verdi e verdi attrezzate;
j) le politiche pubbliche, in particolare abitative, sociali, urbanistiche, paesaggistico- ambientali, culturali che concorrono al conseguimen-
to degli obiettivi di riqualificazione urbana;
k) il programma dettagliato delle iniziative per la partecipazione civica e per il coinvolgimento di enti, forze sociali, economiche e culturali interessati ai programmi di rigenerazione;
l) i soggetti pubblici, sociali ed economici che si ritiene utile coinvolgere nell’elaborazione, attuazione e gestione dei programmi di rigenerazione e le modalità di selezione dei soggetti privati;
m) una relazione di fattibilità contenente il quadro economico ed i criteri per valutare la fattibilità dei diversi interventi.
La premialità del 35% della superficie lorda esistente per il rinnovo del patrimonio edilizio per la realizzazione di opere pubbliche e/o cessioni di aree aggiuntive può essere aumentata del 5% nel caso in cui la superficie di suolo coperta esistente sia ridotta di almeno il 15 per cento a favore della superficie permeabile.
Inoltre, qualora l’intervento di rigenerazione urbana comporti la delocalizzazione con trasferimento delle relative cubature, il progetto di ricollocazione deve contenere anche quello relativo alla sistemazione e alla bonifica, ove necessaria, delle aree liberate dalla demolizione, da adibire ad utilizzazioni coerenti con finalità di interesse pubblico.
Così come specificato al comma 6 dell’art. 2 della LR 7/2017, i Programmi di Rigenerazione urbana si approvano, se in variante allo strumento urbanistico generale vigente, con le procedure di cui all’articolo 4 della legge regionale 2 luglio 1987, n. 36 (Norme in materia di attività urbanistico-edilizia e snellimento delle procedure) e successive modifiche ovvero mediante Accordo di Programma. Nel caso di programmi conformi allo strumento urbanistico si applicano, invece, le procedure di cui all’articolo 1 della LR 36/1987 e ss.mm.ii.
L’adozione dei Programmi di Rigenerazione urbana da parte dei comuni è subordinata allo svolgimento di specifiche attività di informazione e partecipazione civica secondo quanto dettato dai relativi regolamenti comunali. Nei provvedimenti approvativi devono essere documentate le fasi relative alle procedure di partecipazione nelle modalità stabilite dall’amministrazione comunale.
I Programmi urbanistici di cui all’art. 2 della LR 7/2017 si attuano attraverso i Programmi Integrati di Intervento o di Recupero di cui alla LR 22/1997 e successive modifiche (comma 6 art. 2).
In fase di rilascio dei titoli abilitativi delle opere previste dal programma, l’Amministrazione comunale ha il compito di verificare, tra l’altro, l’esistenza delle condizioni per l’applicazione di quanto disposto dall’art. 16, comma 4 del DPR 380/2001 e ss.mm.ii. relativamente al contributo per il rilascio del Permesso di Costruire.
Come per gli Ambiti per i Programmi di Rigenerazione, anche la perimetrazione degli Ambiti di


Rigenerazione e recupero edilizio di cui all’art. 3 della LR 7/2017 avviene ad esito delle valutazioni sull’ammissibilità e sull’opportunità delle proposte di intervento ai sensi dell’art. 8 della stessa Legge regionale, e la loro realizzazione è subordinata alle seguenti specifiche condizioni:
• l’esistenza, l’adeguamento, la realizzazione delle Opere di Urbanizzazione Primaria;
• il reperimento della dotazione dei parcheggi di cui all’art. 41 sexies della L. 1150/1942;
• il reperimento degli standard di cui al DM 1444/1968 in base ad eventuale nuovo carico urbanistico;
• eventuale monetizzazione degli standard urbanistici da reperire nel caso in cui non sia possibile procedere alla cessione delle aree a standard e se le aree da cedere sono inferiori a 1.000 mq.
L’art. 3 della LR 7/2017, in sintesi, consente interventi di “Ristrutturazione edilizia o urbanistica” per:
• cambio di destinazione d’uso degli edifici tra quelle previste dal PRG;
• cambi di destinazione d’uso tra quelle che la stessa legge di rigenerazione urbana definisce compatibili e complementari come di seguito individuate:
o residenziale, turistico ricettivo, direzionale, servizi, commerciale di vicinato;
o produttivo, direzionale, servizi, commerciale medie e grandi strutture di vendita;
• premialità del 30% del volume o della superficie lorda preesistente con trasferimento totale o parziale della SL-Volume anche con cambio d’suo su altre aree trasformabili interne all’ambito territoriale con possibilità di cessione, anche a titolo gratuito dell’area rimasta libera, con bonifica ambientale dei siti inquinati, se necessaria e obbligatoria al rilascio del Permesso di Costruire.
La legge prevede, infine, una ulteriore premialità del 5% se gli interventi vengono realizzati mediante concorso di progettazione. Per gli interventi di cui all’art. 3 della LR 7/2017, è prevista l’opportunità, ma non l’obbligatorietà, di svolgere percorsi partecipativi. Nel caso in cui vengano svolti, essi dovranno essere documentati nei provvedimenti approvati.
L’individuazione degli Ambiti di Rigenerazione e Recupero edilizio, come specificato al comma 1 e al comma 4 dello stesso articolo, si approvano attraverso una o più Delibere di Consiglio Comunale, ai sensi dell’articolo 1, comma 3, della LR 36/1987.
Tali delibere dovranno, tra l’altro, oltre che individuare gli ambiti di territoriali urbani di riqualificazione e recupero, prevedere la possibilità di trasferimento delle SL/volumi e le modalità attuative dell’intervento.
Le modifiche delle destinazioni d’uso comportano automaticamente la modifica della destinazione d’uso dell’area di pertinenza dell’edificio, nonché delle aree a standard.
È compito dei Comuni, ogni cinque anni, prendere atto degli interventi proposti ed aggiornare le cartografie dello strumento urbanistico.
5. Le opportunità della Rigenerazione urbana
Con particolare riferimento al contesto romano, l’applicazione degli artt. 2 e 3 della Legge di Rigenerazione urbana ha come minimo comune denominatore, nonché come elemento innovativo rispetto ai programmi complessi e agli strumenti di progettazione urbana tradizionale, quello di non essere esito di una pianificazione predefinita, nascendo al di fuori del Piano Regolatore Generale e sovrapponendosi ad esso, modificandone anche le previsioni.
Proprio questa flessibilità consente ai Programmi di Rigenerazione, così come all’individuazione degli Ambiti di Rigenerazione e di Recupero edilizio, di adattarsi alle dinamiche sempre mutevoli che investono velocemente la città contemporanea e di attualizzare i contenuti delle previsioni urbanistiche allineandoli alle contingenti esigenze socio-economiche della città.
Inoltre, rispetto agli strumenti di progettazione e programmazione urbanistica previsti dal PRG vigente, i Programmi di Rigenerazione possono essere attuati in conformità alle previsioni urbanistiche generali ed essere approvati ai sensi dell’art. 1 della LR 36/1987. Quando sono in variante allo strumento urbanistico generale essi sono approvati ai sensi dell’art. 4 della stessa legge regionale. Anche per gli Ambiti di Rigenerazione urbana, la legge regionale contempla la possibilità di prevedere il cambio della destinazione d’uso nonché il superamento degli indici edificatori prescritti dallo strumento di pianificazione generale, seppure la norma preveda che siano da approvare ai sensi dell’art. 1 della LR 36/1987. Queste possibilità di potersi discostare dalle predette previsioni urbanistiche di piano regolatore generale, attribuisce senz’altro alle procedure individuate dalla LR 7/2017 l’opportunità di poter intervenire sui territori valutando, al momento stesso dell’attuazione, le esigenze funzionali e quantitative da considerare prioritarie.


Figura 4 - Dall’Elaborato “TAV. 18 – Territorio in cui è consentita l’applicazione degli artt. 2 e 3 della LR 7/2017 ai sensi dell'art. 1”. Fonte: Sito Roma Capitale

Bibliografia
• Calzolari V. (1999), Cambiamenti e preesistenze, Calzolari V. (a cura di) in Storia e natura come sistema. Un progetto per il territorio libero dell' area romana, Argos, Roma.
• Colarossi P. (2013), Intervento al Convegno Pensare la città diffusa. Dalla descrizione al progetto, Roma 12 Marzo 2012.
• Corrado R., Romano R. (a cura di) (2009), Innovazione del piano e valutazione delle trasformazioni, INU Edizioni, Roma.
• Gemmiti R. (2012), Relazione La diffusione urbana. Il quadro delle dinamiche in Italia in XXXII Conferenza italiana di Scienze Regionali
• Magnelli S. (2012), Villette, in Fantin M., Morandi M., Piazzini M., Ronzato L. (a cura di), La città fuori dalla città, Inu Edizioni, Roma.
• Indovina F. (1990), La città diffusa, IUAV Venezia.
• Lanzani A. (2012), L' urbanizzazione diffusa dopo la stagione della crescita, in Papa C. (a cura di), Letture di paesaggi, , Guerini, Milano.
• Pavia R. (2012), Densificazione della città diffusa, in Fantin M., Morandi M., Piazzini M., Ronzato L. (a cura di), La città fuori dalla città, Inu Edizioni, Roma.
• Piazzini M. (2012), Uno sguardo sulle differenze, in Fantin M., Morandi M., Piazzini M., Ronzato L. (a cura di), La città fuori dalla città, Inu Edizioni, Roma.
Sitografia
• Voce Consumo, in Enciclopedia on line Treccani.it, [online] consultabile all' indirizzo: http://www.treccani.it/enciclopedia/consumo.


ORDINE DEGLI INGEGNERI DELLA PROVINCIA DI ROMA
Piazza della Repubblica, 59 - 00185 - Roma
Tel. 06.487.93.11 - Fax: 0.487.931.223
Cod. Fisc. 80201950583
Orario di apertura al pubblico degli uffici
Lunedì 09:30-12:30 14:30-17:30
Martedì 09:30-12:30 14:30-17:30
Mercoledì 09:30-12:30 14:30-17:30
Giovedì 09:30-12:30 14:30-17:30
Venerdì 09:30-12:30 chiuso
L'Ufficio cassa è aperto
Lunedì 09:30-12:30 14:30-17:30
Martedì 09:30-12:30 14:30-18:30
Mercoledì 09:30-12:30 14:30-18:30
Giovedì 09:30-12:30 14:30-18:30
Venerdì 09:30-12:30 14:30-18:30
Sabato 09:30-12:30

L’Homepage
https://www.ording.roma.it

L'Albo degli iscritti
https://www.ording.roma.it/albo-iscritti

L'Area degli iscritti
https://area-iscritti.ording.roma.it

I seminari
https://www.ording.roma.it/formazione

Sito della rivista
https://ioroma.info

Elenco delle Commissioni
https://www.ording.roma.it/servizi-agli-iscritti/ commissioni

