on site review 45: housing

Page 1


ON SITE

r e v i e w houses + housing fall 2024 45

Vivian Colliery and surrounding houses on

L S Lowry, Hillside in Wales, 1962, painted from notes and sketches made near Abertillery.

Abertillery, in the Ebbw Fach valley, Monmouthshire, Daily Herald, February 1965.

John Petherick, Abertillery tin works, Monmouthshire, 1854.
hillside, Abertillery. Postcard, circa 1905.
© Webster, Daily Herald, Abertillery. Mirrorpix
Tate T00591
© Amgueddfa Cymru - Museum Wales
© Amgueddfa Cymru - Museum Wales

Jean-François Pirson, Cahiers de Beyrouth Bruxelles: La Lettre Volée, 2009

ISBN 978-2-87317-360-0

https://lettrevolee.com courtesy of Darine Choueiri

On Site review is published by Field Notes Press, which promotes field work in matters architectural, cultural and spatial.

For any and all inquiries, please use the contact form at https://onsitereview.ca/contact-us

ISSN 1481-8280

copyright: On Site review. All rights reserved.

The use of any part of this publication reproduced, transmitted in any form or by any means, electronic, mechanical, photocopied, recorded or otherwise stored in a retrieval system without the prior consent of the publisher is an infringement of Copyright Law Chapter C-30, RSC1988.

Each individual essay and all the images therein are also the copyright of each author.

back issues: www.onsitereview.ca

these are listed in the website menu in three groupings: issues 5-16, 17-34 and 35-39 , 40-45

editor:

Stephanie White

design: Black Dog Running printer: Kellen Printing, Calgary Alberta

subscriptions: libraries: EBSCO On-Site review #3371594 at www.ebsco.com individual: www.onsitereview.ca/subscribe

houses + housing

On Site review, in balmier times, did two issues on housing; we felt it was critical to revisit housing now, given a housing crisis in Canada brought on by decades of zealous quotas for refugees, immigrants, temporary workers and foreign students, the arrogation of the sector by development, real estate and housing markets and the exit of the federal government from the actual physical provision of housing through CMHC, once the bread and butter for Canadian architects. Drastic as these changes have been, the housing crisis does not seem to have been foreseen.

The response to the call for articles was strangely muted. Either the subject, housing, which affects us all whether architects or not, is too small an issue, or too large. What have we seen this past few years on the news every evening? tent cities, the obliteration of both apartment blocks and cottages in Ukraine, the total destruction of high-density urban fabric in Gaza. Rubble and ruins; housing and all the people for whom it was built consigned to oblivion.

Housing is the people who live in it. Without housing, people must live short and primitive lives on the ground with tarps against the weather, without security, safety or tenure. Is our project to design a better tent? Hardly. We are paralysed; the lack of housing is not a design problem, it is a political problem. I think this realisation has fried our architectural brains.

All this said, we have an issue here with housing ranging from the most intimate to the most ambitious. Let’s just say the old paradigms, including how we talk about architecture, have been thrown out, new ones are waiting to be born.

contributors contents

masthead

Angela Silver

Lisa Rapoport

Francesco Martire

José Neves

Stephanie White

Graeme Bristol Ron Wickman

Suzanne Steele

Rafael Goméz Moriana

Silver

contributors and contents house as conduit what we take and what we leave old shells, new trajectories pinheiros bravos houses, images and memory human right to housing housing for all our home when climate matters reconceptualising urban housing upcycled objects

on site 46: architecture and travel Abertillery, 1854-2024

F

the house as a conduit for superstitious beliefs

A table holding construction tools quickly became an ad hoc exhibition space of the numerous superstitious artifacts we found while renovating our 1880s Seaview farmhouse. The items laid out on the table included a woman’s brown leather shoe next to a child’s shoe, a white corset rusted at its ribbing, a piece of cloth with rudimentary stitching, twine, a seashell, a toddler’s jumper with its pocket detached. An envelope with the house’s address, a series of broken glass dishes and a glass bottle marked Ozone is Life and, on the other side, The Ozone Co. of Toronto. Research online revealed the 1800-century Ozone Company produced a sulfuric drink claiming to cure ailments ranging from eczema to inflamed ovaries.

We were euphoric the day we discovered the house’s structural mortise and tenon connections joined as in a ship, without nails. Pencilled numbers marking its assembly on the ceiling joists offered a poetic connection to its builders. Before finding the protective items, I lamented the gutting of the ground floor. Any personal portrait of its previous inhabitants seemed elusive despite removing layers of wallpaper, lath and horsehair plaster, walls, seven stacked layers of flooring, and three strata of ceilings. A sense of the former occupants could not be gleaned from a few white glass buttons, pennies, a Queen Victoria coin and a handwritten list of phone numbers on a layer of wallpaper.

ANGELA SILVER
all images © Angela Silver

This changed when we discovered four distinct caches of protective items concealed within the home’s architectural cavities. I found the woman’s collection under the sill on the southfacing wall while my partner found a three-foot-long barn augur stamped Thompson Glasgow with a large wooden plank in the same area. It is expected that superstitious caches will be found during renovations to houses in Nova Scotia. Concealing objects in the structural cavities of houses is formally known as immurement In many cultures, the house was frequently used as a conduit for superstitious prevention practices to ward off evil spirits and to bring good luck. Following traditional belief, items were best placed at entryways, near doorways, or windows within the walls and below the sills. Pieces of textiles cut from clothing and shoes, especially favoured for their increased protective powers, were placed inside the walls to bring its inhabitants good luck and to prevent malicious spirits entering the house.

all images © Angela Silver

I discovered the cache of a man’s items in the cavity to the right of the woman’s objects. The immured talismans were individual acts performed in unison, offering us an intimate portrait of a couple bound by superstition, a promissory note against wraiths in the form of their earthly possessions: the man chose a steel butter knife, the handle half wood on one side, bone on the other embossed Sylvester & Co Sheffield; a worn, black wool-lined leather boot, the cut collar of a white dress shirt stamped 15½, a child’s brown leather boot, a seashell and a net mending tool.

Our most recent finding, consisting of a child’s boot with a separated sole and a piece of rope, was found between posts on the staircase to the second floor.

all images © Angela Silver

I am familiar with the practice of immurement through my own family’s history. My paternal ancestors were part of a wave of Protestants of German origin, with twenty-seven families sent to settle the Lunenburg area for Britain circa 1753. Numerous renovations to houses in the Lunenburg area have illustrated how frequently original settlers practiced immurement, with their houses a conduit for these protective beliefs. A beloved heirloom I now possess, a tintype of my paternal great, great grandmother Ella Maria Fraser, her likeness preserved in silver halide crystals, was most likely concealed in her ancestral house due to superstitious beliefs. How this photograph came to light is astonishing.

My grandmother Evelyn and her cousin used to spend each summer at their family’s house and farm on the LaHave River in Lunenburg County. When they revisited it and while reminiscing about the times they had spent there as children, a woman emerged from the house asking if everything was all right as their prolonged discussion had attracted her attention. Once they explained their ancestral ties to the property, the woman disappeared into the house. She returned with a tintype and handed it to my grandmother. The image showed a young woman holding a book, seated in a plush chair, her hair a river cascading to her waist. A wave of petticoats flares out where her long hair ends, surrounding her legs in a current of ruffles. The woman explained that the tintype had been discovered during a renovation to the kitchen under nine layers of wallpaper, held by its original pin to the wall. My grandmother saw her long-deceased grandmother as an eighteen-year-old girl. To wallpaper over Ella’s tintype was most likely rooted in the superstitious belief that doing so would bring good luck and not tempt fate.

ANGELA SILVER, PhD, is a visual artist whose most recent work is being realised at Place des Montréalaises, a public commemorative space honouring the women of Montreal. Her work can be found at angelasilver.com

found tintype. collection of Angela Silver
Ella Maria Fraser circa 1880, Lunenburg, Nova Scotia

what we take and what we leave

LISA RAPOPORT

Over the last six months, both of my parents have died. I am at an age where most of my friends are experiencing the same, with anxiety about how to move a parent from their home to assisted living, or worrying about what am I going to do with all of their stuff? What did they think is home? Will my siblings want the same things? What are the things that matter? What sums up your parents in their things rather than in your memory? How do you think about their home as your home?

My parents had chosen to stay in the family home – my dad was still full of energy and strength in his 90s and my mother infirm. Because of my mother’s lack of mobility, we had a hospital bed for her in the open plan living/dining room and she had enough mobility just to get to the kitchen, living room, and front porch until even the one

step down with someone holding her was too much. Her world was quickly reduced to the ground floor of the house that we had lived in since 1962. My mother was a photographer, and suddenly the only thing she could explore was what she could see from her bed. Her artwork had a strong sense of collage and surprise and so her vivid imagination could see ‘great pictures’ in the way that one part of kitchen cabinets kind of looked like a kimono from the right angle. In her minds’ eye she was shooting it.

Although my parents who both had art practices and many, many interesting things in the house including a significant art collection, neither were nostalgic. They liked telling stories about things they had as a kind of prompt (when it was interesting), but did not express deep attachment to the things themselves.

the painting

After my dad died (though the much healthier one, he suddenly died first) my mom was left with caregivers, and my sister embarked on the project of moving her from Montreal to Toronto to assisted living. My mother had always said she wanted to stay home until the end – that way she would not have to ever sort through her ‘stuff’ (thanks ma!). But, with my sister and I both in Toronto, it was very difficult for us to provide any consistent support. The search for a place for her brought up many questions about what home is. Nurses told us that if you move the elderly, it is best to bring as many things as possible that make it as much the same as where they came from – the position of the bed, the carpet, the curtains, the orientation. The familiar combats anxiety. The new apartment needed to be small enough that it would not frustrate her lack of mobility, but also had to have a seriously large wall directly facing the bed. She did not care very much about looking at the pictures of the future apartment, or the 3D fly through, she just said – as long as I can wake up every morning and look at ‘that’ picture, all will be good.

That picture is a large abstract painting by the Quebec artist Guy Montpetit (from the Sex Machine /OU Êtes vous donc Series C No 3 1969/1970). It faced her when she was lying in bed (which was a lot of the time) and as she could not move her head to the side very well, this was the straight on view at the foot of the bed.

She said she saw in it two people about to hug (separately my father said the same thing, though not sure they ever talked about it). I think that she also saw it as something that was endlessly fascinating – it captured her imagination. It was not the thingness of it, or the ownership, or the story of how it was bought; it was not about memory, instead, it was about its capacity to be changeable, curious, compelling. About other things in the room – she was detached. They were things, but they were not what defined her home.

Lisa Rpoport

the plants

Along the front window sill was a collection of succulent plants. My mother could not keep a plant alive if her life depended on it, but loved succulents. She read all about them, but my green thumb dad was commandeered to satisfy this need. The line up at the cash of their favourite Chinese restaurant was lined with rubber plants – she would elbow my dad into breaking off a leaf as she was the shy one in the couple, and they started a short career in leaf nipping (succulents root from any leaf), my mother commanding, my dad complying.

Building on successful looting, their succulent garden grew mostly from scratch all along the sill – and was their shared indoor garden. Soon people would trade cuttings and the garden got variety. My mother loved the strong profiles, the way the light came through — and I am sure, she saw pictures in these too — as another part of her photo oeuvre was a series of abstract views of plants at the Montreal Botanical Gardens. After my dad died, the caregivers were given the task of ensuring these stay alive – it was as though they both lived in that set of plants. As we were planning the move, the size of the windowsill and orientation of every apartment we looked at were critical.

My mother died before making it to the new apartment in Toronto. I have yet to go through the stuff in the house. There are things of ‘value’, there is an interesting art collection and the extensive archives of their own artworks. All of this we will go through in due time. But in the meantime I brought the plants to my studio in Toronto — and in nurturing them there I am surprised to discover how much it feels like my parents are with me. Like I brought them home with me. To my home.

coda

Over the last few decades, real estate speak has replaced the word house with home. I don’t think you can sell homes. Homes are what you make — whether that is your room in a rooming house, or the grand pile — it is something you make.

A s a design practice, we most often work with clients who have character, they collect things or make things (which could be as simple as being GREAT cooks) –they need a house that will accommodate exactly who they are. Our most winceinducing question from a client is — would that idea be good for resale? One of the first questions we ask people – is this your terminal house? What we mean by that is — are you doing this for you? or to satisfy some future buyer? The projects we do are for people who want things not because they have seen them before, but because they need their actual life to be supported and celebrated – to make it their home.

Sometimes that means their too-muchstuff, or that ugly clock they got from their grandma, but it is what it makes it feel like home to them.

You buy a house, you make a home.

LISA RAPOPORT is a founding member of PLANT, an architecture and landscape architecture studio in Toronto, working across Canada and internationally. https://branchplant.com

Lisa Rpoport

uncover | recover old shells | new trajectories

Whether Georgian, Edwardian or Victorian, there is an extensive supply of old housing stock in Toronto typified by thick shells of double wythe load-bearing masonry walls and timber-framed shapely roofs. It is a specific method of construction containing a substantial amount of embodied energy and a level of craft invested over a hundred years ago. A combination of poor thermal envelopes, antiquated programs such as servants’ quarters, and outdated mechanical systems call for a rethinking of this building type. These heavy masonry shells can be repurposed and revitalised for a new set of requirements framed by contemporary living. Through a kind of interior excavation, the addition of light weight wood framing and gypsum board, and the use of windows and light, a new relationship with the architecture transcends property values and iconography. It breeds a love for new space that prolongs the existence of these shells which become a scaffold both shaping and supporting current material technologies and ways of living. Deep care for a space establishes relationships between family and house that is foundational to the true sustainability of architecture. The life of these masonry buildings can be extended by designing tailored solutions for new and evolving inhabitants.

unCover / reCover House is a full renovation of an 1890 Victorian semi-detached single-family dwelling in the west end of Toronto. The house was layered with several modifications over its 130-year history and most recently had sustained damage from a small fire. We peeled away the interior to the exterior load-bearing masonry walls, and reconfigured and layered a set of contemporary spaces tailored for a married couple with two active young children within the existing envelope. The house takes its name from the process of removing the interior lining of lath and plaster and uncovering the spatial potential hidden behind previous layers of inhabitation. The shell of the building, both its load-bearing masonry walls and its multi-faceted shaped roof, remains largely unchanged. Uncovered interior volumes become active participants in the recovered space. The interior demolition uncovered many opportunities to reshape the volume and recover disused space within the building shell. A hidden service stair was found, removed and its volume recovered for the galley kitchen. The removal of a flat ceiling on the third floor uncovered a beautiful series of triangulated sloped surfaces revealing a new spatial volume. Old interior interventions were removed to reveal forms already embedded in the shell waiting to be discovered and brought forward to engage in a new reading of the house.

large [medium] design office
doublespace photography

Connecting the three floors plus basement is a new series of staircases, framed by a scalar interpretation of Victorian ornament, the era in which the house was built. The sequence of staircases is a choreographed interplay of materials, textures and colour constantly modified by ever changing conditions of natural light spilling into the space of the stair. Pristine plumb white planes meet the textured imperfections of the existing masonry demising wall in an interplay of form, texture and light.

doublespace photography
large [medium] design office

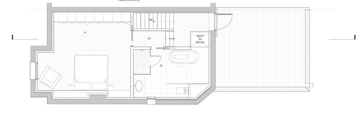
The floor plans, left and photographs, right, from attic descending to the basement, show a large bedroom and ensuite occupying the entirety of the third floor. The attic was opened to increase the volume of this floor, revealing a beautifully sculpted series of surfaces created by the intersection of the gabled main and dormer roofs.

Two bedrooms sit on the second floor flanking a family washroom. A family room that occasionally doubles as a guest bedroom is at the front of the house delineated by a large sliding barn door used to modulate the space. Closed, the barn door reveals a collection of books and separates the front room from the rest of the floor for movie watching, video game playing, and reading. While open, the room participates in the activities, spaces, and daylighting of the rest of the second floor.

These two floors are connected with floor opening with glazed guards on the open side to bring natural light into the corridor of the second floor, an otherwise dark hallway.

The ground floor is a continuous set of layered spaces moving from entry, to living, to dining, to a galley kitchen, bringing you to a large window and sliding door to a back porch and garden. This large aperture stretches wall to wall and floor to ceiling, linking the interior to the outside, brightening the kitchen end of the ground floor with brilliant morning sunlight. It is the only place where a small portion of the original masonry wall was removed to acknowledge a more contemporary way to occupy a house.

this page, left, from top:

Top floor under the roofs

Se cond floor, the family floor

Ground floor, living, dining and kitchen floor

Basement, a rec-room and work-from-home office

Longitudinal section, showing where on the stairwell side of the house, the original double wythe brick walls (the constraining shell) are revealed.

facing page, from the top:

Third floor attic bedroom,

The second floor family room with its sliding barn door that when closed reveals bookshelves and separates the room from the rest of the floor, including the childrens’ bedrooms. With the door open, the room is an extension of the family-oriented second floor.

The ground floor facing toward the street: living room at the front, dining in the middle, working kitchen at the back: degrees of public to private family life.

The Victorian façade with its proportions and composition of openings is maintained throughout. High-performance operable windows inserted into the existing openings keep existing stone lintels and sills and the subtle brick detailing around these openings intact. Three existing stainedglass units were salvaged, refurbished and installed neatly in their original positions on the street-facing façade. Afternoon sunlight shines through the coloured glass painting the walls and floors.

Sitting within the shell is a layer of light wood stud construction containing the materials of modernity; updated electrical wiring, data cables, and thermal, vapour and air barriers, all concealed behind a new skin of gypsum board.

The new interior represents a moment of exchange between the house’s history and its future, a moment of discourse between existing shells and new trajectories. The past is present, its influence is felt. New forms, materials, and uses build enduring relationships between people and the architecture that houses them. This is where we can achieve sustainability.

unCover / reCover House

architecture, interior design, landscape architecture: large [medium] design office

structural: Blackwell Structural Engineers

mechanical: Elite H.V.A.C. Designs

photography: doublespace photography

drawings and diagrams: large [medium] design office

FRANCESCO MARTIRE is an architect, landscape architect and co-founder of large [medium] design office, a multi-disciplinary practice based in Toronto, Ontario.  He is also Associate Professor, Teaching Stream at the Daniels Faculty of Architecture, Landscape and Design, University of Toronto.

https://largemdo.com

doublespace photography

pinheiros bravos

house of the wild pines 2014-2022

Site: a small plateau on a heavily creased ridge line which visually dominates the landscape of Melides Mountain, in Alentejo, Portugal.

Program: a single open space designed for living, working, reading, playing, dancing, cooking and eating.

Client likes: exposed concrete.

Organisation: The house is located on this small plateau and is organised into three parts:

1. A 35-metre wall, 0.25m thick and 4.20m high, folded and punctured by well-placed openings, forms a kind of fortress which provides the entrance to the house, and contains the bathrooms, ample storage and three bedrooms designed as alcoves, each connected to an intimate courtyard.

2. A low pavilion-like volume contains the living room, slightly sunken in relation to the surrounding ground level and opened to the landscape in a panoramic view of 180 degrees.

3. A narrow volume connecting the bedrooms and the living room, contains the space for cooking and dining – the heart of the house.

Materials: The outer walls are pigmented exposed concrete. Interior walls are either covered with lacquered wood (corridor, rooms and closets), with handmade tiles (bathrooms), or with exposed French oak (alcoves) as a kind of comfortable jacket lining. The walls of the patios are covered with painted plaster up to the ceiling height of the interior spaces. The roof is a garden terrace; together with the climbing vegetation planted along the walls of the patios, its seasonal changes and growth delicately mark the passing of time.

Place: Porches control the solar incidence during the summer, while extending the living room to the surrounding garden, protected from the predominantly northeast winds given the orientation of the living room.

The entrance to the house presents itself as a fortress wall, behind which are the bathrooms, storage and three bedrooms, each connected to an intimate courtyard. Passing laterally through the house one finds the living room with a near unobstructed view of the open landscape.

The wall, 35m long, 0.25m thick and 4.2m high, folded and rigorously cut out in places, shelters

https://www.joseneves.net

the inner life of this house.
Daniel Malhão
atelier José Neves
land concrete beauty

Construction sample of the pigmented concrete compared with local stone and a piece of grey plain concrete. The pigmented concrete is compared with the trunk of a cork oak.

The living room is like a blanket that rests on the floor in a carefully chosen place to have a picnic, looking out at the landscape.

All the

The

Design Team

Architecture: José Neves

Collaborators: Fernando Freire, André Matos, José Tavares, André Martins (project phase); Diogo Amaro, Inês Oliveira, João Tereso, Carlos Almada (construction phase); João Pernão, Maria Capelo (colour consultants)

Contractor: Matriz - Sociedade de Construções, Lda.

JOSÉ NEVES opened his office, Gabinete de Arquitectura, in 1991. Teaching since 1988 he is currently in the Department of Architecture and Urbanism of ISCTE.

A branch of the cork oak leans over the wall into one of the bedroom patios.
Daniel Malhão
Daniel Malhão
atelier José Neves
atelier José Neves
edges of the walls of the corridor (left) that crosses the house from end to end, patio to patio, are rounded, with no visible door trims.
bedrooms (right) are designed as alcoves, like cozy hammocks that stretch between trees to sleep in the shade.

houses and housing

There are a few house images, years old, lodged in the back of my mind, that have become touchstones for how I think about houses. They are part of a photographic and drawing archive: not quite present unless I decide to examine them, which I have, for this essay on remembering and interpretation.

1 A 1929 500 ft 2 CPR worker’s house in Calgary next to the CPR mainline. There are dozens of these same houses in the neighbourhood: a gabled box with a covered porch on the front and steps to the ground at the back, 4’ foundation wall, chimney on the original back wall serving the back kitchen and the rest of the house. Mine was renovated in 1964 by Bruno and Maria, part of the 1960s exodus from Italy to Canada, who excavated a basement by hand, Bruno shovelling and Maria carrying the sandy silt out with buckets. They walled in the front porch, extending the front room and put in a picture window. They added a bedroom on the back. It became 865 ft 2 . They had five children.

I bought this house in 1981 and spent the first year removing layers and layers of carpet, thick paint, v/a tiles, linoleum, wallpaper and flimsy drywall walls and closets, doors, the entire kitchen, plywood rooms in the basement, and went back to the foundation wall, the original floors, stripped old fir trim. It became very light

At their best, houses are eternally additive and reductive, they can be changed, and will be, something that rarely factors in the design of houses or housing today where the house is less of a skeleton in which to build a life, and more a financial commodity to be produced, bought and sold, a particularly first world twentyfirst century luxury.

With my sixty cents on the dollar career in architecture (my era not a particularly kind or equitable one for women) I did not aspire to build (expensive), but to remove (cheap). The startling economies of vernacular architecture taught me much. Not just economy of means, but how much can be done with hand tools, ordinary materials and years of time.

site: Canada: medium city, old neigbourhood, near downtown.

2 Cloud’s Hill, a cottage in Dorset that T E Lawrence lived in in the 1930s before he died in a motorcycle accident in 1938. Because of his archaeological interests and political contacts throughout Arabia, Mesopotamia and Syria, Lawrence was involved in the 1921-22 peace conference in Cairo, whereby post-Great War victors, mainly France and Britain, mapped, seemingly at random, the region into new entities leading to a state of ongoing war that continues today, including the long-standing displacement of the Palestinian peoples. After all this high-powered political manoeuvring, Lawrence joined the RAF in 1922 under an assumed name, was outed in 1923, joined the Tank Corps in Bovington, Dorset, took this nearby cottage, left the army and rejoined the RAF in 1925, eventually buying the cottage and renovating it to suit, which was ascetic in the extreme.1 He appears in none of the images of this cottage, introverted extrovert that he was. His life here was measured in material things: in 1933 he wrote to a friend, ‘I have lavished money these last . . . months upon the cottage, adding a water-supply, a bath, a boiler, bookshelves, a bathing pool (a tiny one, but splashable into): all the luxuries of the earth. Also I have thrown out of it the bed, the cooking range: and ignored the lack of drains. Give me the luxuries and I will do without the essentials.’

It was quite small, this cottage: two rooms up and two down. Upstairs, the book room, was opened into one room completely lined with bookshelves. The downstairs became the music room. He was delighted by its austerity and self-sufficiency: ‘...books and gramophone records and tools for ever and ever. No food, no bed, no kitchen, no drains, no light or power. Just a two-roomed cottage and five acres of rhododendron scrub. Perfection, I fancy, of its sort.’ Perfection, but also a kind of punishment, but perhaps he had lived too much and needed something elemental out of life and house.  It is curious, one’s house should not be one’s life, yet it inevitably is.

site: England: rural

1 https://telsociety.org.uk/about-lawrence/

https://divisare.com/projects/280780-elemental-alejandro-aravena-lo-espejo

3 Alejandro Aravena’s Elemental project. circa 2015. 2 This was a well-reported project at the time, in the mid-2010s. Housing cores: a half-house on the ground floor, a two-storey apartment above with an empty slot between the apartments meant to be built into, when time and money permits. A 70-unit housing project in Santa Catarina near Monterrey, Mexico, used government funding for the expensive part of any development: access, roads, sewer systems, busses and other infrastructural elements necessary for a community; and for house services — plumbing, wiring, stairs, foundations, party walls and roof.  This is the first half.  The second half is occupation and the eventual building out of the space between these cores.

Similar Elemental projects have been built in Chile, with less money and for poorer people.  It is a case of putting whatever funds are available where they are most useful, and leaving the rest to individuals who have some building skills and often innovative ways of occupying space, but not the wherewithal to build a strong structure, a kitchen and bathroom, or to connect them to utilities infrastructure.

Formally-built social housing all over the world is a landscape of regimentation; in contrast, informal barrios and slums all over the world are landscapes of desperate invention.  Elemental ’s model combines both: safe building standards and people’s participation in their own dwellings, which become an ongoing project. This is the basic idea, which I really like, but must admit I quail at a drone video of Villa Verde in Constitución, Chile, a company town built in partnership with COPEC, a Chilean Oil Company, showing an island of Elemental houses in a plantation sea of green forest, as harsh a contrast as any raw subdivision carved out of the woods.

site: Chile, cleared sites for projects

2 Elemental plans are open source. Download the working drawing packages for four Incremental Housing Types here: https://www.elementalchile.cl

https://www.rushdixon.com/rush-dixon-architects-blog/2020/2/3/place-matters-thearchitecture-of-wg-clark

4 Croffread House, James Island South Carolina, by Clarke and Menefee, 1989.3 A cube, in concrete, big windows. Looks like a SoHo loft from the 1970s, stacked and transported to the steamy, estuarine, hurricane-prone climate of the South Carolina coast. Which is the romance of it — not the climate, but its loft-like nature, where one is given large concrete spaces and industrial glazing and then left to get on with assigning places for various functions, which, in the end, comes down mostly to furniture. Less than a quarter of each floor plate is given a function and only because that is where the plumbing is stacked.

This is a vault of a house, sitting like a Scarpa erratic in what I wish was a landscape something like Sea Island in Julie Dash’s Daughters of the Dust: immoveable, accruing moss and meaning over a very long time. Maybe it does, maybe not, but it is possible. The architecture makes it possible.

The photograph is what tells me about possibility: I’ve not been there, I’m vaguely interested in W G Clarke, I see something in this image which is possibly not there but tells me something about how to live.

site: USA, expensive neighbourhood, lots of architect-designed houses, beachfront.

3 https://www.rushdixon.com/rush-dixon-architectsblog/2020/2/3/place-matters-the-architecture-of-wgclark

As always when writing, the idea starts channelling other material, other ideas and notes, which may or may not be coherent. Reading Dan Hicks, an archaeologist who writes extensively on material culture quotes Susan Sontag, ‘Photographs are valued because they give information. They tell one what there is; they make an inventory. To spies, meteorologists, coroners, archaeologists, and other information professionls, their value is inestimable. But in the situations in which most people use photographs, their value as information is of the same order as fiction.’ 1 Hicks himself:

‘In Barthes’ terms, the ‘essence’ (noeme) of the archaeological photograph is not ‘what has been’ (ça-a-été ), but ‘as if’ (comme si ), not fixed on the remnant, but at once both scientific and imaginary.’ ...As if a photograph were not a still ...As if human life were a blur....As if archeology could be more than interpretive, and less than representation. As if the past were more than ruins.‘ 2

These are images, Croffead, Cloud’s Hill, Elemental and one lived house, another lens through which to see such houses. My mind sheds each image’s context, its socio-economic reality, climate, cost. They exist, for me, as photological images of architectural form, perhaps their most reductive presentation and more powerful for it.

These are all basic houses, whether by design, tradition, relative poverty or some other minimalist desire. How much house do we actually need?

Three things. New subdivision developer houses are absolutely complete, for ever; everything chosen and installed before going on the market, nothing to be done, which means the occupant need make no personal investment in the house or apartment other than money.

The second thing, and this applies to Elemental, is the critical limit to which replication of an idea is effective. One half-house is an idea; 100 of them makes a homogenous community of aftermarket builders. Is this homogeneity desirable? Would 25 be better? or 10? Fifty years on, will clusters of 300 Elemental houses in varying states of augmentation be economic ghettos of an early twenty-first century idea of participation or will they be a rich tapestry of housing history?

Zoning favours homogeneity over the heterogeneous mixing of classes, peoples, possibilities. Zoning is efficient for construction and services, but cuts off eccentricity, agency, difference. How does one plan and build for difference?

Third, as long as bigger equals better, we will always have a housing crisis as small comes with massive stigma and the smallest market return. If capital accumulation is the goal, whether space or things, then staying still in a small dwelling isn’t progressive; hardly worth it.

is a still from a promotional video for

the forest

be a plantation, so

2 Dan Hicks, ‘Memory and the photological landscape.’ in S. De Nardi, H. Orange, S. High and E. Koskinen-Koivisto (eds) The Routledge Handbook of Memory and Place. New York: Routledge, 2020. pp. 254-260.

company

it. The sharp demarcation between housing and plant life indicates something mat-like about both. This doesn’t appear to be an organic relationship between housing and environment, but a rather brutal collage of two distinct kinds of capital accumulation.

W G Clarke, a Habitat for Humanity multi-unit complex designed for a SECCA (Southeastern Center for Contemporary Art) competition in 2010. From an unattributed (possibly SECCA) Clarke quote on an archived blog: ‘His intention is to form a community (as opposed to a neighborhood) with different size options to accommodate different sized households and a variety of design choices available to the residents. A green structure, power would be supplied by photovoltaic strips on the roof, which is slanted so water runs off into a channel in the central courtyard to be collected into a reservoir. This water is used for irrigation of the communal vegetable beds that take the place of lawn. The structure seems to sum up what Clark is about: low impact, democratic and stripped down to the bare essentials. It is a triumph of graceful design.’

Google aerial of Inglewood, Calgary, with its main street cutting through from downtown to an industrial and transportation hinterland, ringed by railway lines and the Bow River. Originally a CPR neighbourhood, very diverse, four churches within two blocks of my house, including one for the CPR porters and their descendants. Strong community, resists erasure every couple of decades, now re-zoned to medium (12 storey) multi-family housing. Losses: access to the fertile floodplain soil which supports tree cover and gardens; access to sun at ground level; access to diverse peoples who are priced out of participation.

1 Susan Sontag, On photography, New York: Farrar, Straus and Giroux, 1973
This
Vila Verde, Chile. A
town,
appears to
uniform is

house: the one-off place in which one lives, full of your stuff, your status or lack of it, your address; as small as a room, as large as a palace.

houses: collectively make a neighbourhood where standards are set and maintained through variable social pressure, from the most forgiving to the most restrictive. One’s autonomy bends a bit.

housing: where the typology of house is subsumed in an arithmetic calculation of site, cost, zoning, market, product and precise demography. One’s security is dependent on all these factors.

There is an axis, or a gradient, of freedom and self-actualisation here which is deeply embedded in history and place. The discussion that applies to Calgary or Houston, is not the discussion one has in Marseilles or Kharkiv. Nor is it the one taking place in Lagos or the abandoned new cities in China. What everyone across the world has, or wants to have, is secure tenure: their own place, no matter how it is found, or built, or paid for. This is the starting point. Beyond this it is all theory.

The photo-essay on the front and back covers of this issue of On Site review speaks to the longevity of housing, and the anonymity of any one unit in a housing project. It started with a postcard which has been on my wall for years, of L S Lowry’s small 1962 drawing of two housing terraces on a hill in Abertillery, Wales: smooth hills, the isolated crenellation of roofs and flat fronts. I looked up Abertillery to see if this line of houses still existed. It does, joined by other lines of houses, which turn out to be streets built in fields as if they were in a town. These are typical nineteenth century Welsh mining towns, either coal or tin — company towns. The joined-up repetition of a basic house unit is a synecdoche for the miners and their families. All different, but also all the same to the company.

A street view of one of the Abertillery roads shows how literally it terraces the hillside. There are shops, there is a bus stop, no doubt a pub; each street a small community. Lisa Rapoport concludes her essay on page 8 with this: ‘ You buy a house, you make a home.’ We could also say, you build a house, someone else makes a home out of it, followed by someone else making a different home, and on and on. If we were designing with this long horizon in mind, our houses would be much simpler, more reductive, more open to change.

At the same time if we are looking for aesthetic solutions with the political clarity modernity demands, we are in danger of overlooking the richness of messy everything, everywhere, all at once-ness that finds houses and housing everywhere, anywhere. In an unregulated space there is opportunity for many, many ways of living: new social relationships, new material and architectural formations.

STEPHANIE WHITE, editor of On Site review, practiced architecture, studied the influence of literary theory on architecture, taught many, many architectural design studios, and did a PhD in urban geography. Quelle vie

the human right to housing

GRAEME BRISTOL

housing is a right

Article 25 of the Universal Declaration of Human Rights identifies access to medical care, education and housing as rights. In Canada, we can thank the persistence of Tommy Douglas for our ongoing access to universal health care. We are sorely in need of another Tommy to push us towards acting on the right to housing. It’s not only the right to housing, though, that needs attention. There is an ongoing crisis – one that requires more than talk. In 1987 United Nations held the International Year of Shelter for the Homeless. Nearly 40 years later we still can’t define ‘affordability’ much less build it. Politicians, planners and architects keep talking as the bottom falls out and the citizenry responds with tent cities which are almost daily torn down by authorities.

As a now-retired architect, I have been thinking and researching this ongoing crisis in housing since my glazed student eyes were opened when the world came to Vancouver in 1976 for the first United Nations-Habitat conference.1 After returning to Canada from a long career abroad, I became involved in a response to the housing crisis in British Columbia. It is a story that begins in hope.

microhousing, perhaps

In Victoria, BC, nearly a decade ago, newly elected mayor Lisa Helps addressed the growing crisis in housing in a series of workshops on microhousing — groupings of stand-alone houses, each 300 ft 2 or less. She brought in an architect from Portland and a housing activist from Eugene, Oregon who were having some success in building microhousing communities, and who followed the principle that the right to housing should first be directed towards people who were well outside the housing market (hint: if we continue to think of housing as a ‘market’ we will fail to understand it as a right). After a week of workshops and seminars, local activists and supporters organised to see if microhousing should be implemented locally.

Guided by the principle of ‘nothing about us, without us’, meetings were held at Our Place in Victoria, a community centre and shelter for the homeless. At least half of the participants were people who had been or were currently homeless, many of whom were using Our Place as shelter. A steering committee collected and exchanged information about the common search for access to land, financing, basic requirements for units and for the community (design parameters), criteria for membership in the community and other such vital factors.

It met once a month, subcommittees met bi-weekly, reporting their progress to the steering committee. Microhousing Victoria was registered as a BC non-profit, a legal entity that could open a bank account. Seed money was provided by the City to help pay for the ongoing expenses of the committees.

1 ‘Participation is a right’ was recognised in the Vancouver Declaration at the first UN Habitat conference in 1976.

To garner support from potential funders, providers of access to land, the planning and building departments and City Council, the steering committee needed something to show. An architect was hired to provide presentation material; out of that came sketches, PowerPoint presentations, renderings and provisional costs.

In the meantime no actual housing was built. The committee had, though, developed design criteria for housing which were little different from that for any tenant or homeowner – close to services, access to nature, privacy. There was little on their list that would differentiate these residents from any other citizen.

Two key issues that did stand out were harm reduction and autonomy. Harm reduction in drug use is critically connected to decriminalisation and direct access to relevant services. Autonomy is something a typical homeowner assumes – variations of ‘my home is my castle’. However, this is not an assumption that can be made by the homeless and those living day to day in shelters or in tent cities. Having a place of one’s own is an undelivered and deeply desired dream which must be recognised.

From the listed criteria, preliminary designs were prepared, reviewed and amended by the people who planned to live in them. Microhousing Victoria had provisional approvals from the building department, the fire department, the planning department, and the majority of City Council. However we had no land on which to build. We talked about parking lots, land left vacant awaiting development, unused city land, church land.

While the search for land continued, one of the steering committee members, Peter Gould, borrowed the use of a workshop and built a prototype on his own with scrap materials and his own money.

It was a successful temporary mobile shelter, no bigger than a shopping cart that unfolded to provide the length of a bed; lockable so it was possible to store some belongings and small enough and light enough to be pulled or attached to a bicycle.

Peter Gould’s selfcontained mobile sleeping unit. process obstacles agency
Graeme Bristol

Peter’s prototype of temporary and extreme microhousing was a hit on the local news. Here was the homeless addressing the crisis in their community by building something themselves while the planners, politicians, and experts talked – something of an instructive parable of the housing crisis writ large. What are slums, after all, but the efforts of the poor to stake a place in the city, a leverage point for opportunity. Peter had addressed an alternative access to shelter built with what little he had. He gave it to a woman he knew who had been evicted from shelter space because she was disruptive as a result of ongoing mental issues. She found a place to put it where she felt at least a little bit safe. Of course, one of the problems with her use of the mini-microhouse was that she was now isolated from the community. In part, she wanted to be away, but it was hardly safe behind a bush in a park.

Around this time, the city offered a piece of land for a prototype cluster of microhouses. The steering committee felt confident that a door was finally opening, the first of many to come.

However, there was a little hitch.

As the site was used for tenant parking for an adjacent house, if Microhousing Victoria used the site, the tenants would have to use street parking which only allowed hourly parking, not overnight, which meant the bylaw for that particular area would have to change – a change that would have to go through the processes of City Hall with final approval from Council.

The other hurdle was the proposed lease between the City of Victoria and Microhousing Victoria. Lawyers for the City were concerned that Microhousing Victoria had no history of managing housing for the homeless. They could only agree to the lease if it partnered with a local organisation having a trustworthy record of such management. One of their sticking points was that irate neighbours would call the City at four in the morning to deal with these prospectively unruly neighbours. As noisy neighbours and disputes are part of life in any neighbourhood, rich or poor, why should these tenants be treated any differently? Nevertheless, liability is an issue for any landowner, in this case the City itself.

In their attempt to meet these requirements, Microhousing Victoria approached several local organisations with whom to partner. These pointed out that they already had their hands full and were only funded for their current responsibilities. Microhousing Victoria would have to find additional funding to be able to pay staff to undertake such management – management the steering committee wanted to avoid or at least minimise, considering the importance the committee membership placed on self-management.

These were obstacles Microhousing Victoria was unable to overcome. The Steering Committee dwindled to an ‘executive committee’. The only productive result was Peter’s minimicrohouse, self-financed, self-built and entirely outside the system. And yet, the ‘system’, the City Council, the Mayor, the planning department and the building department were entirely supportive of microhousing. It was an initiative promoted by the mayor: everyone was behind it. Volunteer construction workers, architects and social workers were on the steering committee as technical support to a broader community of people seeking homes in the city. With all that support, how could it fail?

If there is a hero in this story, it is Peter who designed, financed and built a tiny shelter for one person, while the experts listened and talked and planned.

This is not to say that planning for the execution of a larger idea of housing is pointless. It isn’t. But there must be clear steps forward, action to make the words, the planning, mean something in the world. Can there be a crisis without an immediate response?

There were lessons learned. Eventually the City took some of the ideas coming out of the steering committee and built temporary housing in the Royal Athletic Park in Victoria. The many months of talk resulted in something that was built, but not by Microhousing Victoria. A City project managed by Our Place opened in 2021 as temporary housing, closing in the fall of 2023 when the residents of ‘Tiny Town’ moved into permanent housing. It reopened in the spring of 2024 — a notable success that in the continuum of housing, this is a viable and needed form of transitional housing.

A few other lessons run deeper. Direct action is not just an anarchist slogan. Direct action is critical to solidarity. Solidarity is bound by a vision which must be visible. Visibility is created through direct action in and by the community. Peter’s effort was visible. It was on the local news; it was a morale booster for us and for the community. However, Microhousing Victoria was not able to build on Peter’s first step.

Another underlying issue is that this is all temporary housing. Land was sought that could be used on an interim basis. Everyone knew, even from the design parameters, that this housing would relocate. In the back of everyone’s mind was the threat of yet another eviction. Although more permanent and more like a house than a tent, it was still temporary and at the whim of the development sector and their economic imperatives.

It doesn’t much matter if it’s the police telling you to ‘Move along’ or if it’s urban land economics saying the same: You don’t belong here. There is a higher and better economic use for this piece of land. In due course you will need to be out of sight, out of mind, out of the market, and out of our policy initiatives.

Samuel Beckett said: ‘No matter. Try again. Fail again. Fail better.’ I thought this nihilistic when I first read it, now I find some resonance. We learn with each failure and each of those failures helps to move us forward and solidarity can grow. There is a vision statement in the Universal Declaration of Human Rights and its first article: ‘All human beings are born free and equal in dignity and rights. They are endowed with reason and conscience and should act towards one another in a spirit of brotherhood.’

This crisis is about dignity and solidarity. There must be an embracing architecture of belonging, of hope, not quite achieved by a tent.

c oda

A few weeks after the photograph of Peter with his prototype was taken, the little blue mini-microhouse was stolen and never seen again.

GRAEME BRISTOL is the founder of the Centre for Architecture and Human Rights https://architecture-humanrights.org He practiced architecture in Vancouver and Papua New Guinea after which he taught architecture in Bangkok.

housing for all

RON WICKMAN

Affordable housing is a complex issue and so difficult to achieve. While a history of racial and social discrimination can be highlighted in obvious ways, with urban planning and architecture it occurs in much more subtle ways. Bureaucratic and free market system beliefs, including zoning bylaws and strategic community planning have a history of frustrating effective affordable housing. Add accessibility and the challenges become greater. Too many people live in poverty, especially true of those with disabilities. Simply put, there is an urgent need to have more housing stock that sits outside the market economy.

For architects, affordable and accessible housing can only effectively work when we want to learn more and get better at our craft in this area of design. I spend every day speaking to, and working with, at least one person with a disability. My practice focuses on small projects where the end users participate in the design process; they are not just asked to comment on prototypes or fait accomplis from the architect. The beauty in this architecture comes from recognising as many people as possible working with an experiential design process for a better architecture. Fundamentally, a well-designed built environment must create a framework for people to live their best lives.

accessible architecture is just good design

We cannot rely on accessibility guides, standards and codes alone if we are to create an architecture that is more accessible and inclusive for anyone and everyone. This is not just a technical issue but one that offers us the choice to invest ourselves emotionally in a design philosophy that focuses on the toughest populations with a range of disabilities to make the most accessible built environment possible.

Specific everyday users, site conditions and the cultural context of a particular region, plus the history and unique characteristics of accessible architecture, will move us on from the medical model of disability which is to fix individuals so that their disabilities appear normal. Instead they point to a social model that tailors built environments to meet everyone and anyone’s needs, including those with physical, visual, hearing and sensory limitations. At its most basic, curb ramps, no-step building entrances, good interior lighting, acoustics and wayfinding strategies should be the barest of minimums.

I have been around disability my entire life – in architecture school, in my mind, I would wheel through my designs. My father was a paraplegic and used a manual wheelchair; he was a City of Edmonton councillor for nine years and a Liberal MLA for 12 years at a time when there was no accessibility in the built environment and very few human rights for a person with disabilities. He and his colleagues often acted out of desperation to force change, knowing that the political climate is not always on the side of social

identity care place

justice. He became a political leader and decision maker to help those most marginalised in our society. We both consider poverty and low social status as disabilities. Affordable housing struggles to accommodate either persons with disabilities or those who are homeless. Our most vulnerable people are left behind in the accomodation of the needs of a perceived majority. We must work hard to shake the current order of society where wealth and power dictate.

what is normal?

Building standards and requirements are too often based on the idea of a normal person who is inevitably a young able-bodied man with excellent overall mobility. A better understanding of people would include those who use mobility devices such as a manual or power wheelchair, people with visual and hearing limitations, people who are neurodivergent, people who are ill, and finally our aging population who may have any combination of these conditions.

The idea of sustainable built environments gathered strength when a critical mass of architects started educating themselves to work on positive solutions to environmental issues, focussing on design solutions that not only create green living but best provide people with positive experiences. We now need a critical mass of architects to promote these same positive experiences for persons with fragilities. Although society relies on architects to focus on accessibility, aesthetics and sustainability, unfortunately law-makers, political decision-makers and investors – from banks to shareholders – are wary of change and new ideas. Profit often comes before people. And yet, paradoxically, architects are the ones challenged by decision-makers and investors to present innovative design solutions. Ultimately it is architects with the power to create this change. Therefore, to get the right answers, we need to ask the right questions about fundamental practices:

1 Accessible architecture commits to participation in the built environment by everyone, despite their age and abilities. Inclusive and sustainable design means social inclusion for everyone, and are integral to the design process right from the start. For example, a compact urban environment, accessible and sustainable, understands that not everyone can drive a car. Accessible architecture offers everyone choices for independent movement.  Living on equal terms with everyone else, starts here. When we think about housing design, choices for how we want to live are essential.

2 Architects are trained to be problem solvers and to think outside the box — we can come up with practical and beautiful solutions no matter what the design issue is. For this to happen, especially when it comes to affordable and accessible housing, we need to understand culture and society, not just science and technology. Education is the key. We can start by encouraging

such thinking in schools of architecture and other design disciplines. Frankly, we must emotionally invest more of ourselves in truly affordable and accessible housing that benefits us all — not just us as individuals, but us as a society.

3 The best design projects start with great collaborations. This means that those who control the design project must be willing to take a leap of faith design journey with the architects and designers committed to producing a beautiful building or space that accommodates the largest community possible. Hope and energy are at the core of this design philosophy.

case studies

I’m showing here two affordable and accessible housing projects where I was the architect. Both projects were funded in part through government grants and both projects have been designed primarily for persons who are First Nations.

Ambrose Place in Edmonton (Off-Reserve) primarily serves individuals and couples who are experiencing homelessness and are of Aboriginal descent.

Métis Community Elder’s Housing in Lac Ste. Anne (On-Reserve), is designed to afford local residents safety and independent access to housing as they age in place.

We worked very closely with the client communities reinforcing their active engagement right from the beginning of the design process and beyond.  Both projects focused on three key building design features as the starting point: no-step entrances, accessible vertical circulation and wheelchair accessible bathrooms. Further design development considered the needs of as many people with differing disabilities as possible allowing us to develop overall solutions that are not only functionally effective but more affordable.

These two affordable and accessible housing examples featured on the following pages demonstrate that things only need to be slightly different to be more inclusive. They highlight that meaningful participation by all of those involved is the most effective way to positive outcomes. This requires a deeper understanding of the issues important not only to the architects but to the people who will occupy the building including individuals with disabilities, to those responsible for development and building code requirements, and to those funding the project. It takes the collective creativity and willpower of a community to build a community.

Ambrose Place, Edmonton, Alberta
Métis Community Elder’s Housing, Lac Ste Anne, Alberta
Ron Wickman Architect

ambrose place

Ambrose Place is a four-storey apartment building containing 42 dwellings and a Ceremony Room that is central to the design concept and the most decorated and detailed part of the building. All 42 dwellings have bathrooms designed as wetrooms with curbless shower areas that can accommodate any number of residents, including those who use wheelchairs. Kitchens have adaptable features such as the 10 dwellings that have countertops that can be easily adjusted to differing heights.

The building is strategically located in the inner city close to many important amenities and services which are part of the individual residents’ daily lives. It was also designed at a scale to fit within in urban context. Greater affordability was achieved through simple and straightforward design and the elimination of overly fussy and complicated construction details. Most importantly, the housing design focused upon improving the quality of an individual’s life, health and well-being, looking beyond the labels of addiction or disability to look at the whole person including their history, culture and their mental, physical and spiritual needs. The beauty of this project is not just visual, but lies in its ability to allow its residents to live with grace, safety and confidence.

Ron Wickman Architect

lac ste anne métis elders community

The Lac Ste Anne Métis Elders Community is located approximately an hour away by car from Edmonton. The community is designed to be constructed in phases – currently under construction are eight single family houses and two duplexes. When complete, the community will house 30 residents in single family houses, duplexes and in a long-term care residence, with a gathering hall at the centre of the community. The Elders Community is close tor the core of the Lac Ste Anne Settlement area, allowing Elders to continue their involvement in social and community events, to be nearby other language speakers, and to benefit from traditional land use and cultural practices such as fishing and hunting. The design intent honours the community’s collective history and culture as stewards of the land, and it looks to sustainable design principles that focus on critical strategies, from fire-protection to allowing Elders to age in place.

Collaboration with engineers and contractors began at the design stage, especially with the civil engineers. As great attention was given to the need for no-step entrances to the dwellings, the land was sculpted in gently sloping sidewalks everywhere. Just as in Ambrose Place, all bathrooms are wetrooms with wheelin, curbless shower areas, and all kitchens are designed to be adaptable to easy modifications for individuals who may use wheelchairs. Affordability was considered a long-term issue and therefore extra expenses were made at the initial construction phase to save money in the future. For example, the heating and cooling system is not powered by gas, but electricity, and the building envelope uses prefabricated panels that provide high levels of insulation value.  The adaptable and accessible design features for the dwellings added very little extra cost (maybe 1% extra) but will save thousands of future dollars and energy waste by not requiring major modifications for accessibility.

is an Edmonton architect, engaged locally and internationally with participatory and inclusive design. www.ronwickmanarchitect.ca

RON WICKMAN
Ron Wickman Architect

nutr mayzoon [our home]

SUZANNE STEELE

Portable, my pocket carries home.

Open this, hear the songs tales of sinew, silver needles, silk threads, glass beads the prayers rising from wolf willow rosary — all is prairie smoke these languages of all my beloveds, my befores: Kaashki kwaashonaan lii roozh faroosh

[We sew wild roses] avek di sway ipi lii riban Japonaise, [with silk threads and Japanese ribbons] li perl en vit di Venice —

[Glass beads from Venice] vraa bleu, vayr, zhoon, lapis lazuli, opal blaan, mazarine, celestial, cornelian, turquoise, horentin...

Ikwewak niinawind, ninanaan da wii kemin, meh en do taa mung. [we women, this is what we do]

Ga Gashkiwaaso min, shi koo ni nookwezomin, di zhitoomin yah ka maanaaduck chi onizhishing [sew and smudge, make the ugly beautiful] Oo taa pi naan, webin nig aa naan, oo shi toon mino pimatisiwin.

[take scraps of life, create good life]

This little pocket, this little purse, with you I carry my millennia, my centuries, with you I am at home.

Michif kinscape purse/pocket, circa 1890s, maker unknown* Soft doeskin, lined with cotton, trimmed with velvet, decorated with glass beads.

* We of the Michif (Red River Métis) prairie kinscapes come from a portable culture, one that moved frequently with the buffalo hunt in spring and summer, settling in hivernants for winter. Our women decorated EVERYTHING — match holders, picture frames, tapis (dog blankets) and especially our men’s and children’s clothes — head to toe! The roses, the buds, the leaves, the tendrils, the berries on this purse are found in most Michif kinscape beading designs. It is said that our patterns were based on embroidery patterns from the French nuns.

I was given this little pouch 25 years ago, along with the green trade bead which is probably from the seventeenth century. The dish holds Venetian beads, off-cuts from Murano, given to me by Michif artist Corinna Wollf-Burgo who lives near Venice. The blue and turquoise beads are contemporary, mass-produced. The wolf willow rosary was given to me by one of the Michif translators, Lorraine Coutu, with whom I worked on my opera.

The languages in this poem are Southern Michif, French Michif, and Anishinaabemowin; some are from my opera, Li Keur, Riel’s Heart of the North. The translators I worked with include: Madame Vera DeMontigny of Brandon (Michif), Honorary Doctorates June Bruce, Lorraine Coutu and Agathe Chartrand of St Laurent, Manitoba (French Michif); Mesdames Donna Beach and Debra Beach Ducharme of Animo-ziibiing [Lake Manitoba First Nation] (Anishinaabemowin) and Elder Rose Richardson, Knowledge Keeper of Medicines (Michif).

Any mistakes in translation are entirely mine.

DR SM STEELE, an award-winning poet, scholar, installation artist and librettist, is Red River Métis (Gaudry/Fayant families). She traces her roots to the first families, Anishinaabek and French, of our nation of nations, Canada. www.etchedinsteele.com

Suzanne Steele

when climate matters

RAFAEL G Ó MEZ-MORIANA

The urban architecture of the European city has traditionally been shaped more by aesthetic notions of urbanity and decorum than by performative factors such as climate. Street symmetries and hierarchies of front versus back have usually outweighed factors such as solar orientation or cross-ventilation in the design of high-density urban housing, resulting in many dwellings that do not take maximum advantage of natural climatic conditions. How might European urban architecture be reconsidered in this regard?

For this hypothetical exercise, I selected a standard urban block in Barcelona’s Eixample, the urban expansion planned by the reformist civil engineer Ildefons Cerdà in 1859. This urban plan was revolutionary in its day for its scientific basis and the priority it placed on human health and well-being over urban monumentality and aesthetics. It turned out much more densely built-up in the end due to property speculation, of course, but its characteristic standard square block with chamfered corners has long proved talismanic to architects in this city.

If Cerdà’s Eixample plan sought to ensure better personal and familial well-being in a time of rampant industrialisation and urbanisation, in the context of today’s climate emergency it is planetary wellbeing that needs to be addressed.

Today’s typical Eixample building, often more than 20 metres deep, depends on lightwells to bring light and air to many of the bedrooms, and uses internal vertical service cores to reach either double-aspect dwellings that are awkwardly elongated or else single-aspect dwellings that are without natural cross-ventilation. Although Cerdà ingeniously rotated his grid 45° so that no edge of a block would ever be completely without sun, many Eixample dwellings today do not receive adequate daylight in winter while other dwellings receive too much solar heat gain in summer.

The Eixample, Barcelona

top: Ildefons Cerdà’s original plan, expanding on three sides around Barcelona’s old centre.

above: this aerial view shows just how dense each block has become over a century and a half. Buildings of such depth, up to 20m from front to back, suffer from both a conflicted prospect and little air movement. The proposed block maintains the street scale while opening the centre of the block to air and light.

all images and drawings: Rafael Gomez-Moriana

This project reconsiders the Cerdà block with a new generic building type based on a housing system whose dwelling units each contain a generous private outdoor entrance porch always situated on the sunny side of a perimeter block building, whether it faces out toward the street or inward to the courtyard of the block.

This entrance porch is an outdoor space large enough to accommodate outdoor seating, clothes drying racks, bicycles, and is situated between a communal outdoor walkway providing access to a small number of dwellings on every floor, and to the central kitchen/dining room of every dwelling. It is at once both an intermediary social filter between the communal and the private realm, as well as an intermediary climatic realm: the private porch can be closed in winter by means of a polycarbonate sliding partition that captures passive solar energy, or it can simply be left open in summer. On the outside, a parallel sliding shutter with horizontal louvres provides security and visual privacy while permitting natural ventilation. The choice of which sliding partition to enclose the porch with rests entirely with occupants of the dwelling.

Each of these entrance porches has glass sliding or folding doors into a kitchen and dining room within the unit — a central space from which all other rooms are accessed. These rooms, some of which face onto the south-orientated porch while others face north, are roughly equal in size and do not have programmatic uses assigned to them. Residents use them as they see fit, whether as a double or single bedroom, a living room, a home office, a room in a shared flat, or for whatever is needed. In a shared flat all generic rooms can be used as bedrooms, with the kitchen/ dining area and connected porch being the main social spaces.

The concept of generic rooms has been previously explored by architects such as Peris+Toral, HArquitectes and MAIO (among others), while the idea of the porch as a filter between a communal access walkway and a private dwelling has been previously explored by architects such as Data AE and Narch. The innovative precedents realised by these architects for social housing promoters such as IMPSOL in the Barcelona metropolitan area have opened exciting new ground for the architectural exploration of new, more flexible and climatically responsive kinds of dwelling units for housing.

all images and drawings: Rafael Gomez-Moriana

The project is comprised of five dwelling unit types of varying sizes, ranging from a two-room unit of 47 m2 to a large sixroom unit of 125 m2 for use by either large or extended families, or as a co-living arrangement. Units can be combined to form a classical perimeter block, a perimeter block bisected by a laneway, or simple slabs, all of which are typical conditions in the Eixample. As is also typical throughout this district, the ground floor is exclusively reserved for commercial retail units and entrance lobbies to the residential storeys above. It is important to note that in Europe, single stairs are generally permitted in multi-family residential buildings as long as certain size limitations are adhered to. The generic five dwelling unit types in this proposal are neither highly luxurious nor minimal, making them suitable for varied forms of tenancy, typical in Spanish urban housing.

Outdoor stair and elevator cores serving Outdoor access walkways and entrance porches are always situated on the sunniest side of every building, shading sun-exposed façades in summer when the sun angle reaches up to 70°. The private entrance porches are thus shaded by the access walkways, while, depending on surrounding building heights, lower winter sun angles penetrate deep into the porches, bringing light into the centre of the unit.

The way the five unit types are distributed means that there is a mix of sizes sharing each stairwell/ elevator shaft and open public lobby. These are the intermediaries between the public realm on the street and the public walkways leading to each unit’s entrance porch.

drawings: Rafael Gomez-Moriana

2 rooms/47m2

3 rooms/62m2

On these unit plans furniture indicates merely the size of each room, rather than assigned function. How each room is used is fluid, dependent on what kind of family or other relationships choose to occupy the unit.

4 rooms/76m2

5 rooms/100m2

6 rooms/125m2

January 1, 11:30 am March 19,3:30 pm

January 16, 11:30 am January 16, 3:30 pm

The porches and walkways change light levels throughout the day as well as throughout the seasons. In the winter the porch acts as a lens bringing light deep into the unit directly, or acting as a bright room from which the rest of the unit can borrow. At high noon, high summer, the overhanging walkways shade south-facing building walls, cutting out solar gain.

The density of this building type is somewhat lower than that of much of the Eixample, mainly owing to a reduced, shallower building depth now required by law.

Although Barcelona’s Eixample grid is almost entirely consolidated, there is no reason why Cerdà’s urban pattern cannot continue to be used today. It provides sufficient flexibility for a variety of approaches and uses, as this design project seeks to show. o

RAFAEL GÓMEZ-MORIANA

runs the Barcelona term-abroad program for the University of Calgary School of Architecture, Planning and Landscape; is a Spain correspondent for The Architectural Review and Bauwel t; and designs housing systems just for the hell of it. rafagomo.com @rafagomo

all images and drawings: Rafael Gomez-Moriana

reconceptualising urban housing

Time Space Existence, Venice 2023

editorial prologue

‘Reconceptualizing Urban Housing’, an exhibition for Time Space Existence at the 2023 Venice Architectural Biennale, collected nine practices, led by women, from around the world with new work within the typology of urban housing that considers diversity, climate, economy, culture and social and environmental sustainability. These factors break into a more granular set of conditions: the balance of shared and private spaces, and the enabling of social connection, identity and agency have become drivers of form, not just hopeful ambitions.

Natural light and air movement, landscape and food production embed each project in a specific local condition and demographic. Each urban housing project is thought of as a collective, not just assuming that a community will readily form in a housing project. The two are different: a collective is facilitated by design; a community forms between people despite architecture, viz. Grenfell which literally denied both individual agency, collective action and liveability to its inhabitants.

1 Alison Brooks Architects, London, UK

Alison Brooks Architects ‘... advocate[s] for community building, designing for increased social engagement and fostering a sense of civic pride to promote inclusiveness and social diversity.’ This is a wish list. How is it actually done?

Unity Place (2021) is part of a 20-year regeneration plan for South Kilburn in London NW: 240 apartments in three 6-storey blocks, a reinterpretation of the London mansion blocks in the area, to replace two derelict 1960s tower blocks. There is a communal garden overlooked by residents, ground-level entrances, porticos and balconies. Apartments are dual aspect, with windows on both sides, optimising cross ventilation, natural light and views. Ceilings are 2.6m, windows full height. Much is made of being family-friendly and a safe environment, while being threaded into adjoining streets and buildings through gardens and trees.

Unity Place, three 6-storey blocks with clear street fronts and an inflected inner courtyard. All units have balconies, some full width, oriented to catch sun, something reflected in the way the blocks are sited. Balconies and the two story porticos allow both identity and delineation.

Extracted text and drawings from https://www. reurbanhousing.com/alison-brooks-architects where there are more images, text and diagrams. See also https://www.alisonbrooksarchitects.com

How do the architects in this exhibition do this? How much agency does each architect take within the envelope of client, budget and program?

The nine architects in this exhibition presented at least one built project and one in construction in 2023. Despite all of them being much awarded and recognised, this exhibition is not about laurels as much as it is about looking forward through their work.

The difficulty in collapsing a fairly major exhibition of at least 18 projects, videos, interviews and presentations, is that this is a magazine with limited pages. Out of their statements, I’m choosing and paraphrasing the sentences that go beyond program. Perhaps out of this we can compile a new list of actions that address resilient and sustainable urban housing.

This exhibition has been well published and has an extensive website, containing all the projects, interviews and videos: https://www.reurbanhousing.com/

It is also worth looking at the individual websites of each architect: such valuable work going on in this world.

2 Adengo Architecture, Kampala, Uganda

This is a research-based architectural practice grounded in multi-disciplinary collaboration with a two-fold goal: ‘that architects and urban planners can improve people’s everyday lives and can help cities to develop sustainably.’ In the context of rapid urbanisation throughout Africa, Adengo’s housing schemes advocate for local populations who build their own houses.

Affordable Housing I, Gayaza, Uganda (unbuilt) is a project for young urban residents with a small but stable income, not enough for access to high quality housing. Small semidetached one storey houses are deployed across a sloping site. The design approaches that offer resiliency and selfsufficiency are shared community facilities, solar energy, rainwater-harvesting systems. Flexible floor plans offer a variety of sizes of houses, expandable in the future. Shared spaces allow this new community to come together for support and shared activities.

Affordable Housing II, also in Gayaza and in progress, consists of seven 3-storey apartment blocks again fitting the topography to minimise excavation. Stairs are in separate spaced-brick open towers connected to the blocks with open bridges to open corridors, all of which optimise thermal mass and airflow in the towers and transparency and light in the dual-aspect apartments. Local labour and the production of compressed raw-earth brick spur the local economy. Community spaces, sport facilities and retail space for local vendors on site addresses both this development and surrounding communities.

from the top: Affordable Housing II Overall plan

Composition of a single block

Stairs are linked to open corridors that lead to the residential units, which feature windows on both sides

Stair structures are made from alternating bricks, enabling natural light and air to circulate

Extracted text and drawings from https://www.reurbanhousing.com/adengo-architecture See also https://www.architecture.yale.edu/news/doreen-adengo

3 Dubbledam Architecture + Design, Toronto

This is a research-informed practice very much situated in building, including Missing Middle housing typologies and pilot projects placed in the gap between single-family houses and apartment buildings — mid-rise and middle-scaled multiunit dwellings which expand housing options in established neighbourhoods and address the restrictive zoning policies found in many Canadian urban centres.

In-Vert Apartments, Toronto (unbuilt), develops the typical postwar 3-storey walkup by adding two additional storeys set back from the street, maintaining the original shell and carving openings that access semi-private outside areas — inverted outdoor spaces in a middle ground between private and public. These inverted spaces are greened, giving each unit a garden, the main appeal of a single-family house on a lot, and much more than a narrow balcony on an apartment block.

In-Vert: Within the original footprint of the apartment block, a two-storey volume is added to the top of the building, set back from front and sides to create space for roof gardens. The setback reinforces the three-storey scale of the neighbourhood.

Incremental Density, also in Toronto (in progress) is an alternative to high rise construction that is more integrated with traditional single-family housing: 4 to 6 storeys, commercial at grade, a large central opening on each level serving as a shared backyard. Private balconies, units large enough for families. 4-6 storey multiplexes are already allowed on single residential lots, so this is a model that needs no zoning changes, or density and height challenges. Slowly, the neighbourhood evolves, slowly increasing density and height.

houses + housing images and text drawn from https://www.reurbanhousing. com/dubbeldam where there are more images, text and diagrams. See also https://dubbeldam.ca/

Incremental Density: a zoned 4-6 storeys in a traditional neighbourhood, These mid-rise apartments occupy a single lot, increasing the number of units from one house, of possibly 3 units to 11 units plus retail on the street.

4 Fernanda Canales Arquitectura, Mexico

City

Fernanda Canales re -focuses the relationship between housing and the city through renewing existing or abandoned structures, promoting mixed-use and multi-purpose buildings and community-centric design. Buildings weave into existing fabric, using simple materials, natural light, cross ventilation, re-densifying Mexico’s urban centres. Informal housing, 70% of Mexico’s buildings, is validated as a typology.

Vecindad Monte Alban, Mexico City, 2020. In 2020 Mexico had nine million households in need of adequate housing and five million abandoned homes. Vecindad Monte Alban fits 24 units with six configurations on three levels into an established neighbourhood with considerable vacancies. This is an interpretation of traditional vecindades where apartments surround a central patio where amenities – kitchens and bathrooms – are shared. Each unit has alternative access points, circulation space is through common patios and terraces, and skylights open dwellings in four or even five directions.

top: different types of apartments, the six unique typologies range from 70m2 to 90 m2

right: unused or abandoned sites of odd configurations into which housing can be placed, increasing density and thus contributing to hollowed-out neighbourhoods

images and text drawn from https://www.reurbanhousing.com/ fernanda-canales-arquitectura where there are more images, text and diagrams.

See also https://fernandacanales.com/

5 Studio Gang, Chicago plus New York, San Francisco, Paris

This is an architecture and urban design practice that collaborates with a wide range of disciplines both inside and outside traditional design fields. Design is used as a medium to connect people with each other and their environment.

City Hyde Park, Chicago, 2016 is located in a neighbourhood evolving from a suburb to something of greater density. It is a mixed-use, mid-rise 12-storey residential tower with an interesting structure: stacked concrete panels form columns, bays, sunshades and balconies. Loads are taken to the ground in a series of stems, from which balconies are like leaves extending living space and introducing a visual open-air social/ spatial network across the façades.

images and text drawn from https://www.reurbanhousing.com/studio-gang where there are more images, text and diagrams. See also https://studiogang.com/

The building’s balcony stems act as columns that take gravity loads to the ground.

6 Meyer-Grobruegge, Berlin

This firm, always questioning the staus quo, looks for simple architectural expression for complex problems through reduction: reduction of form, material and resources. Sustainability is a given; size, materials and openness are as important as function.

Kurfürstenstrasse, in collaboration with Sam Chermayeff Office, Berlin, 2022: 25 units in six adjoining towers question the traditional boundaries between apartment dwellers and their neighbours by sharing living space: no interior walls or hallways except for bathrooms, living space throughout each tower is continuous, without clear boundaries. Privacy and connection come from level changes, corners and sightlines; a radical co-living approach that stresses flexibility for residents to sort out what can actually be shared and what they want to keep private.

images and text drawn from https://www. reurbanhousing.com/meyer-grohbruegge where there are more images, text and diagrams. See also https://www.meyer-grohbruegge.com/ projects/kurfuerstenstrasse-142

7 Mecanoo, Delft

Founded in 1984 and led by Francine Houben, Mecanoo has a considerable portfolio of work at all scales, focusing on complex multifunctional projects acknowledging that functions of any building will change over time, and preparing for it. Their social housing centres on affordable living spaces defined by flexibility, the right balance of private and communal spaces, mixed housing types and a connection with the environment. Amstel Design District, in collaboration with KettingHuls, Amsterdam (in progress) emphasises a flexible framework to ensure long-term resiliency through a range of amenities and functions that build a sustainable, inclusive and varied community: social and market housing, office and retail space, communal facilities and a design museum. Young creatives, young urban residents: the city is their living room, housing is both a departure point and a place of relaxation. This project integrates and enhances spaces-between where chance and heterogeneity can occur.

images and text drawn from https://www.reurbanhousing. com/mecanoo where there are more images, text and diagrams. See also https://www.mecanoo.nl/

1 insulated metal roofing and louvred skylight

2 bamboo roof rafters & battens

3 bamboo composite flooring system

4 bamboo structure

5 prefabricated modular bathroom units

6 bamboo screens

7 composite bamboo wall systems

8 glazing panels in bamboo framing

9 prefabricated bamboo staircase structure

10 engineered bamboo treads and risers

11 masonry party wall

12 raft foundation

8 Eleena Jamil Architect, Malaysia

This is a practice that stresses engagement with Asian cities and their nuances, rooting projects in place with a specificity and an engagement with local communities, whether private, public or thirdsector clients. Local building form, materials and construction methods using local materials and processes focus on environmental, economic and social sustatinability.

Use of bamboo in domestic architecture is generally limited to two extremes: either as temporary lowcost homes in poor, mainly rural areas, or as one-off houses located almost invariably in beautiful exotic sites and locations. In this proposal, the underlying idea is to demonstrate that it is possible to build permanent and comfortable contemporary homes in urban and suburban areas for the masses using local natural material such as bamboo. It intends to propel the idea of bamboo as a modern and everyday construction material just like bricks, steel or concrete.

from the top: Unit components, a combination of prefabrication and on site construction

Bamboo Terrace Homes (in progress) uses bamboo as a primary building material. Terraced houses with 22’-wide street fronts have bamboo frames prefabricated off-site; fire-rated masonry walls separate units, bamboo columns and beams span between them; exterior walls are bamboo composite board systems. Bamboo houses are not temporary or regressive, but rather they modernise traditional tropical design, prioritising quality of life through outdoor space at every level.

reinforcement

images and text drawn from https://www. reurbanhousing.com/eleena-jamil where there are more images, text and diagrams. See also https://ej-architect.com/

The
of a community that derives from the terrace housing typology

9 Manuelle Gautrand Architecture, Paris

Recent work of this firm actively works against climate change and pollution in projects that are tailored to specific sites and contexts, using locally sourced low-carbon materials, bioclimatic and passive energy systems.

Edison Lite, Paris (2020) is a 12-storey building of 21 apartments, a daycare and a medical office. Innovations here are the involvement of residents in the design of their apartments (customised and flexible), ample space for communal areas (20% of the building in what are usually considered highend areas) and landscaping (established during construction) as a fundamental permaculture design element: 290 large planters or 14 per unit – large enough for food production and filled with 6,000 plants well before occupation.

Folie Mauguerra (in construction and in collaboration with Estebe-Cathala Architectes) is a housing project in the Mediterranean city of Montpellier, consisting of five towers between 8 and 11 storeys. The project’s design philosophy draws on the local history and natural surroundings. It prioritises environmental and social sustainability by incorporating multi-level landscaping, creating ample communal spaces, implementing passive sustainable systems, and repurposing the 12,000 m3 of soil excavated for the parking garage. It maximises the use of local materials and construction methods, passive sustainable systems and, by repurposing the excavated soil as rammed earth walls, develops a new local construction sector, stimulating the local economy. It is a manifesto for passive sustainable systems, local materials and construction methods.

the project as a manifesto on earth

At the beginning, there is the earth: the exploration of what is already there, this magnificent raw material made of the living and minerals encounter

The project takes inspiration from geological cores to build and reveal the richness of the soil: making the invisible visible.

Insert the vegetation, highlighted in this core of poured and sculpted earth

Insert unique living spaces that benefit from this rediscovered link between the earth and nature

images and text drawn from https://www.reurbanhousing. com/manuelle-gautrand where there are more images, text and diagrams.

See also http://manuelle-gautrand.com/

above: Edison Lite below: Folie Mauguerra

reconceptualising urban housing afterword

There has been much press notice about Reconceptualising Urban Housing, usually focussing on the diversity, the geographic reach and the gender of the participants. No doubt one could find nine male architects doing sensitive work, but the framing would be different: not about gender, but about that which draws together nine much-awarded, critically-favoured architects at the top of their game engaged in radically re-thinking housing that solves both its shortage and its ability to empower its residents.

My ruthless weeding of the statements describing their ambitions that each architect has written for Reconceptualising Urban Housing has taken out all the worthy generalities that everyone shares – building community, being sustainable. Instead, I’ve picked out the phrases and sentences that seem to be instructive examples of provocative lateral thinking. There are very particular ways that these designers, all women, approach urban housing so that it is instrumental, progressive, full of agency. Each project is a thesis, even a manifesto, on how to proceed for a better, inclusive future.

There is a shared language in this exhibition, and the sense that there are shared goals. Like-mindedness formed groups such as CIAM, the Situationists, or Team 10; the act of grouping like-minded artists and architects is not new. What is new is the claiming of attention and space by women who are saying that they, as women, collectively have something specific to say. If I count my career in architecture from my first year in an architecture school, I have seen 55 years of women in architecture, how they work, how they are presented, what they bring to the table whether acknowledged or not. Athough architects all have the same training, what women were allowed to do was different from what they wanted to do and what they could do.

In Reconceptualising Urban Housing, certain words, phrases and qualities keep occuring: heterogeneity, diversity, open access, agency, community and safety. Sustainability of materials, systems, community and use. Surveillance not as police presence but as eyes on the street; privacy when desired. Housing plus the incorporation of retail, shared spaces, gardens, daylight, breezes, shade, trees, neighbours, families that grow and shrink, lives that are in flux; these things are the givens, the non-negotiables in reconceptualising urban housing. These are the things that must be made to fit into budget, site and density calculations, not just blown away as idealistic in the early stages of a project. And the nine architects and 18 projects of Reconceptualising Urban Housing, almost all either built or in progress, demonstrate possible ways to do this.

1. Context is treated as if it is full of clues, rather than as a set of tight rules. An urban building plot is literally a palimpsest of its history; one is free to select aspects, as has Alison Brooks in Unity Place, but not to throw them away entirely: they can be used to advantage. Other geometries, other materials can be used, street walls do not need to be walls, they can be zones. Fernanda Canales uses the fact of abandoned buildings within existing neighbourhoods as an existential context. Context is used where it supports the goal of identity and commonality.

2. Landscape is not generic green space, but appears as gardens – which need tending, and which are seamless parts of shared neighbourly access points: an entry, either to a building or to a unit is not just a hallway to the elevator but rather a porch on the street: semi-private, semi-communal. At ground level, gardens are parks and playgrounds: meeting points, not simply visual green.

3. Materials are often linked to labour and industry: local materials whether the rammed earth of Manuelle Gautraud’s Folie Mauguerra or Eleena Jamil’s use of bamboo as a structural material, or Adengo’s proposal to set up a compressed brick industry that supports her affordable housing — these link the means of production to a very local set of conditions.

4. The number of assemblages of buildings is striking, sitedependent but with an eye to staged development: Mecanoo, Dubbeldam, Canales, Adengo all show projects where the dwelling units are not subsumed in a comprehensive envelope, but rather assemble themselves according to rates of construction, specificities of site condition, to program elements beyond the dwelling units that contain supplemental public uses. The glue that holds a community together is given physical identity.

5. Ambiguous boundaries, stated explicitly in Meyer-Grobruegge’s Kurfürstenstrasse, abound in all this work, and this includes the central condition of house as refuge and housing as community: one enters a project through a public part of the city: a sidewalk, a road, a civic plaza. Then one passes through a part of the project that might be retail, might be services, might be park. Then one enters a circulation system of stairwells, elevators and walkways that is public to the project, private to the outside world. Then many of these projects use porches and decks as communication devices, literally in shared entries, as in Dubbeldam’s Incremental Density, or visually as with Studio Gang’s angled balconies on City Hyde Park. Again, this ambiguity is given unambiguous form.

There is a sense of some rather marvellous collective here, developing a vocabulary, a syntax and a direction while showing it isn’t just theoretical — almost all of these projects are built or in construction. Progressive, in a lateral way.

STEPHANIE WHITE is editor of On Site review. www.onsitereview.ca

the house as an upcycled object

For several years the house had been a husk, uninhabited and without upkeep. Coastal storms had reduced the roof to a series of holes. Rather than tearing it down, a local man had agreed with the owner that he would dismantle the house in exchange for its building materials, which he planned to upcycle. There was a slowmotion tempo to his labour through the building’s erasure joistby-joist, day-by-day. Concurrently, I was trying to salvage an older coastal house whose north-facing side sloped eight inches lower than its south side.

Compelled to stop at this house, I asked the man deconstructing the structure whether he had found any talismans within its cavities given that I had discovered four caches of immured objects in my renovation project — a superstitious practice to ward off evil spirits and bring good luck to its inhabitants. He shook his head, laughed and showed me the bedpan he had found, and then gave me a tour of the house. There were a few mirrors and some picture frames, but damp had destroyed much of the interior. A square piano still stood on the main floor; he offered it to me and I declined. The soundboard had rusted and fused and, like much else in the house, the wood had rotted from the years of rain falling through the roof. I thanked him for his time, and as I left, he said I was welcome to come back and look around.

all images Angela Silver

I returned to the house a few times, lamenting the building as it vanished. The piano, however, was a consolation for it conjured up my paternal grandmother, Evelyn, a graduate of the New England Conservatory of Music, folding her body over her keyboard, her fingers spanning and soaring on its keys. Knowing the piano was destined for the landfill, I cajoled my husband to the house to retrieve its piano keys; the man happened to be there and helped as we pried out keys and hammers.

As we disentangled them from the soundboard, the wires eventually loosened and an interwoven photographic negative was released. The darkness of the negative made it difficult to see, but I could make out human figures. Returning home, I found an online app to reverse it. The photograph reveals a family preserved, a woman smiling with her children, a gathering of men standing around on the Nova Scotia beach; a century onward, we can feel the sun’s warmth. Despite the lack of folkloric objects hidden in the walls of this house, the negative is a fortuitous talisman. o

all images Angela Silver
found negative, collection of Angela Silver

call for articles: 46 travel

Why do we travel? Is it to see new things? to rack up a gazillion photographs? to touch something elemental about unfamiliarity? to leave the quotidian behind for a while?

What, historically, did travel bring to architecture?

What do studios abroad, obligatory offerings for any self-respecting architecture school, bring to the study of architecture?

Does travel always imply distance?

Is travel a challenge or a pleasure? Is a challenge a pleasure? Is pleasure a challenge?

Is there anything essentially imperialistic about travel?

Is emigration travel or displacement? What does travel displace?

Peter Cook once titled a lecture: ‘I travel to find what I already know’. Is this the promise, or the danger, of travel?

Francis Towne, Castel Madama, above the River Aniene, near Tivoli, 1781.

Pen and grey ink and watercolour, on laid paper with a fragmentary watermark; signed, dated and inscribed verso: Castello Madamo / No. 2. / April 22. 1781 / Light coming in from the right hand. / Francis Towne.

At auction at Sotheby’s 2021

This was a product of what was known as The Grand Tour, where British men of means travelled throughout Europe sampling its history, its architecture and cities, and often recording what they found in this very particular watercoloured way.

Find an entry point in this topic, and send ideas or proposals for this issue any time up to November 11, 2024, final submissions will be due January 15, 2025, give or take a couple of days – just aim for the middle of January.

Include a brief text description outlining what you wish to say, posssible images and how your submission addresses the overall theme of this issue. Please use our website contact form:

www.onsiterevioew.ca/contact-us. This form does not accept images, but send your proposal text, we will get back to you instantly by email, and then you can send any images. If you don’t get an immediate response, it means your proposal did not arrive. Please send it again.

Please forward this link –www.onsitereview.ca/callforarts to anyone you feel might be interested in contributing to this or any of our discussions.

https://fojournal.org/

https://drawingmatter.org/journal/

Toby G. Driver, RCAHMW, 2008 https://coflein.gov.uk/en/archive/6459406

Vivian Colliery, Abertillery, postcard circa 1905.

Abertillery, the largest town of the Ebbw Fach valley in what was the historic county of Monmouthshire, now Gwent county. 17th February 1965. © Daily Herald, Mirrorpix DH 1965 492

Abertilley townscape, from the west. Royal Commission on the Ancient and Historical Monuments of Wales aerial survey, 2008.

2-bedroom terrace house on Walter Street, £140,000, Abertillery, Gwent, 2024 Because of the hillside terracing, these are often one-sided streets, looking over the backs of the next street down the hill.

© Daily Herald, Mirrorpix DH 1965 492
© Amgueddfa Cymru - Museum Wales

Turn static files into dynamic content formats.

Create a flipbook
Issuu converts static files into: digital portfolios, online yearbooks, online catalogs, digital photo albums and more. Sign up and create your flipbook.