The Real Estate Book of The White Mountains of Arizona - Vol 23#8

Page 1

THE WHITE MOUNTAINS OF AZ HOME & LIFESTYLE GUIDE Volume 23 Issue 8 RealEstateBook.com Publisher Stephen Morris, 480-255-8861 Request FREE digital magazine from treb.neaz@gmail.com LISTED BY: Crystal White Realty Executives Arizona Territory 928.242.4134 Crystalwhitesellsthemtn@gmail.com Meticulousy Maintained located in Snow Creek Cover Details on Page 31

VERNON $620,000

Excellent and well cared for 2 bedroom, 2.5 bath home on 5.1 acres. Enjoy the sweeping panoramic views that surround this wonderful Vernon home from the large front or back covered decks. Open great room floor plan with a wood fireplace. Deluxe wood looking laminate plank floors have been recently upgraded. With the new flooring and wood ceilings bring a level of comfort to the home. Upgraded cabinetry and granite counter tops makes the kitchen a pleasure to work in. Two master suites and another half bath for guests. Owner has converted the two car garage to a man cave, garage is insulated, dry walled and painted for year-round use. Garage doors are installed and fully functioning and can be easily converted back to a two car plus garage. Text RBJRRMF to 52187

PRICEREDUCED

SHOW LOW $467,500

Beautiful home, 2.5 acres of panoramic views, suitable for horses and your toys. Private well with new pump. Needs some TLC. Seller is very motivated. MLS#246823

Text RBJTTTR to 52187

SHOW

for a brand new home? Want to customize it? This home is in the Bluffs subdivision, foundation has been laid. It needs you to be completed. MLS#246563

Text RBJTFQG to 52187

VERNON $295,000

Adorable site built home on 2.30 acres .. 2 bedrooms, 1.5 baths, new roof, newer flooring, very well maintained home. MLS#246926

Text RBJVBTS to 52187

List your home with your CENTURY 21 Real Estate Agent!

SNOWFLAKE $220,000

Adorable cabin, 19.12 acres, fully fenced, own well, horse corrals, tack room & barn, hiking, scenic views, flat ornate rock, everything picturesque. MLS#246923

Text RBJVBTR to 52187

SHOW LOW $159,000

Sierra Pines Subdivision. 1.63 acres, Well treed, end of a cul-de-sac, ready for you to build your dream home! MLS#247223

Text RBJVVNP to 52187

SHOW LOW $52,999

Beautiful lot perfect for a rental, summer get away, or full time living. All utilities are to the lot line. Located right behind the community college. MLS#245944

Text RBJRPWM to 52187

“Providing excellent service, real estate is our business.” 928.537.7121 69 West Deuce of Clubs • Show Low, AZ 85901 e-mail: cliffc21broker@gmail.com website: sunshinerealty.c21.com • century21.com Cliff Pettingill, GRI Broker/Owner 928.537.7121
Looking
LOW $445,000
We will create a marketing plan that will make it easier to sell your home at the best price possible in the shortest amount of time. Call us today!!
Page 2

JENNIFER KNAUST GRI

928-242-0556

realtor.jennifer@yahoo.com

www.Jennifer.WhiteMountainHomeFinder.com

SHOW LOW NEW CONSTRUCTION!!

Hurry, you can still pick your nishes! Soaring vaulted ceilings, wall of windows. Open split bdrm r pln, stone fplc, ss appliances, granite counter tops and other high end nishes. You will LOVE this area!!

MLS#241884 $754,800

PINETOP TOWNHOME IN THE GATED AND HIGHLY DESIRABLE PINETOP CROSSING NEIGHBORHOOD. 3br/2.5ba home has been freshly painted throughout the interior, has new stainless steel appliances, and comes fully furnished! This log-sided cutie has cabin features throughout. MLS#247428 $500,000

SHOW LOW TOWN HOME WITH LUXURIOUS FINISHES THROUGHOUT 3br/2ba Incredibly well crafted single level home with luxurious nishes throughout and detached garage. Spacious/open great room w/vaulted ceilings & large windows & more.. Located in the sought after Bison Retreat Villas. MLS#247633 $499,000

SHOW LOW INCREDIBLE, PANORAMIC VIEWS!!! The best views of the whole area on the expansive back deck. This 3br/2ba lovely home sits in the desirable, gated 55+ community of White Mtn. Lake Vistas w/access to facilities. Light & bright open great-rm concept, vaulted ceilings, large kitchen & so much more. MLS#247584 $480,000

SHOW LOW THIS IS WHAT YOU'VE BEEN SEARCHING FOR! Incredibly well crafted single level 3br/2ba home with luxurious nishes throughout & detached garage. Spacious/open great room w/vaulted ceilings & large windows & so much more.

MLS#247678 $499,000

SNOWFLAKE COUNTRY LIVING AT ITS FINEST with panoramic views during the day, and in the evening a stargazers paradise!! This impeccable 3br, 3ba home on 26.6 fully fenced acres, has so much to offer. A must see to appreciate! MLS#247281 $354,000

DOWNTOWN SHOW LOW - FANTASTIC COMMERCIAL STOREFRONT BUILDING Highly visible from the main thoroughfare of the Deuce of Clubs & a great opportunity for your successful business in the growing town of beautiful Show Low! MLS#246925 $255,000

CONCHO INCREDIBLE VIEWS AND NO HOA! Two 36 ac parcels. One direction you see the entire White Mtn Range, in the other you can see to the Petri ed Forest/Painted Desert area. Several different gorgeous homesites & room to farm. MLS#245339 $252,000

SHOW LOW IN THE PINES! 3br/2ba *Lower unit* You can't beat the price for the living space & the updated touches through out the home. Conveniently located just steps away from the laundry facilities & clubhouse. Some furnishings convey MLS#247653 $200,000

SHOW LOW ABSOLUTELY GORGEOUS!! 2br/2ba condo is fully remodeled, comes fully furnished with kitchen ware decor etc. and ready to enjoy! Everything from oor to ceiling and wall to wall is new and with luxury nish materials MLS#247650 $199,500

316 W. White Mountain Blvd., Ste A Lakeside, AZ 85929 © Let our TEAM work for you! JENNIFER KNAUST GRI 928-242-0556 realtor.jennifer@yahoo.com www.Jennifer.WhiteMountainHomeFinder.com Text the mobile ID# to 52187 for more information and photos 19.1.indd 13 3/6/19 11:13 AM
Text RBJBCNV to 52187 Text RBJWXNR to 52187 Text RBJWYPJ to 52187 Text RBJWYPS to 52187 Text RBJXBPT to 52187 Text RBJWTWH to 52187
Text the moble ID# to 52187 for more information and photos
Your boutique brokerage
Text RBJQBZZ to 52187 Text RBJVYRD to 52187 Text RBJVBTQ to 52187 OWC Text RBJWJMK to 52187
Page 3

PREPARING YOUR HOME FOR Fall

Page 4

As the vibrant colors of summer begin to fade and a gentle chill creeps into the air, it’s time to turn your attention to preparing your home for the cozy embrace of fall. Fall is a season of change, and with a little proactive effort, you can ensure that your home is ready to welcome the autumn months with warmth, comfort, and style.

EXTERIOR TOUCH-UPS

Before the weather takes a turn, take some time to spruce up the exterior of your home. Clean out gutters and downspouts to prevent clogs from fallen leaves. Inspect the roof for any damage that could lead to leaks during autumn rains. Touch up exterior paint, repair cracks in walkways, and ensure that your home’s entryway is inviting with a seasonal wreath or some potted mums.

GARDEN AND LANDSCAPING

As the growing season winds down, tend to your garden and landscaping. Trim back overgrown plants, remove dead vegetation, and plant fall-blooming flowers for a burst of color. onsider mulching your garden beds to protect them during the colder months. If you have a lawn, aerate and fertilize it to ensure a lush carpet of green next spring.

HEATING SYSTEM MAINTENANCE

Before you turn on the heat for the first time, schedule a professional inspection and maintenance for your heating system. Clean or replace filters, chec for any issues, and ensure that your furnace or heating system is in optimal working condition. This not only keeps your home warm but also improves energy efficiency.

COZY INTERIOR DECOR

Embrace the spirit of fall by incorporating cozy interior decor. Swap out lightweight summer fabrics for soft throws and warm, textured pillows. Consider introducing warm color tones like deep oranges, rich browns, and earthy greens into your home’s decor. Candles and soft lighting can create an inviting ambiance during the longer evenings.

FIREPLACE AND CHIMNEY MAINTENANCE

f you’re luc y enough to have a fireplace, now is the time to get it ready for use. Schedule a professional chimney sweep to remove creosote buildup and ensure proper ventilation. est your fireplace to ensure that it’s wor ing safely, and stoc up on firewood for those chilly nights when a crac ling fire is ust what you need.

INSULATION AND WEATHERPROOFING

Inspect your windows and doors for drafts and apply weatherstripping or caulk as needed to keep warm air in and cold air out. Consider adding heavier drapes or curtains to help insulate your home. Inspect your attic insulation and make any necessary updates to eep your home co y and energy-efficient.

FALL CLEANING

Channel your inner Marie Kondo and tackle a thorough fall cleaning. Clean and store summer gear, declutter spaces, and organi e closets. ay special attention to high-traffic areas, as fall often means more time spent indoors. A clean, organized home provides a calming atmosphere during the bustling fall season.

As the leaves begin to fall and a sense of change permeates the air, preparing your home for fall is a labor of love that sets the stage for a season of comfort and togetherness. By tending to both the exterior and interior of your home, you’re creating a haven where you and your loved ones can relish the beauty of autumn, cocooned in warmth and surrounded by the sights and scents of the season.

Page 5

De

ASSOCIATE BROKER, REALTOR Alpine DeLex Realty

Meadows Edge Cabins White Mountain Retreat

A successful nightly rental cabin business in Alpine (the Alps of Arizona).

Property consists of 3 (1br, 1 ba, living room/kitchen, approx 450' each) mountain cabins, laundry facilities, shed and well house. Nestled amongst the tall pine trees with meadow views. The cabins have recently been remodeled and are in immaculate condition. They are fully furnished and are rental ready. The owner has taken extreme pride in her cabins. MLS#243789 $630,000

Cabin 1 Cabin 2 Cabin 3

krearley135@gmail.com
520-401-6641
www.Karenearley.delexrealty.com Karen Earley
Page 6
Located in the Alpine Country Club Estates overlooking the No. 9 Fairway and Green on a 1.59 forested acre parcel with mountain views. 3 bd/ 2ba 3597 sqft home Features a Living Room/Family Room with a double-sided fireplace with a wood burning insert on one side and a wood burning fireplace on the other side; kitchen/dining room combination; library with a wet-bar area; large recreation/pool table room with fireplace; utility/pantry room. Detached 3 car garage with storage room. Covered front porch; and enjoy the views from the covered back deck. MLS#247417 $799,900

"Your Local Alpine Realtor"

Kim Sargent

480-737-3728

Kim@KimSargentAZ.com

KimSargentAZ.com

Apachecountysoldfast.com

RV HOOKUP & NO HOA

BEAUTIFUL LOT

BUSINESS AVAILABLE

Beautifully Remodeled Manufactured Home tucked away in the heart of Alpine. 2bd, 1ba cozy little hidden gem w/lrg family rm addition perfect for entertaining. The kitchen has beautiful hickory cabinets, gas range, a lrg prep area, and plenty of storage, including a co ee bar. brkfst bar, as well as a separate dining area. Large patio & so much more.

MLS#247287 $229,990

CAN SPLIT!

WOW...The Location!

Aspen, pine, oak, douglas & white fir... Big mixed timber yet open & spacious. Easy access for summer or winter holidays in the mountains.Snuggle into this 2bd, 1.5ba cozy cabin w/dbl gar. Wood for, AZ rm, fplc insert & more. A million acre National forest surrounds the area MLS#242212 $349,000

BORDERS USFS

Unique and rare business opportunity you can't miss! Hidden Gem Located in the Heart of Alpine, AZ. Thriving restaurant & saloon since the opening in 2013. The Foxfire at Alpine o ers indoor & outdoor open-air seating w/amazing views for casual dining. The well established clientele makes this a successful opportunity for the white mountain minded person. All furniture & equipt incl. MLS#242105 $849,900

CUSTOM HOME LOT

2.44 acres with Mountain views of Escudilla, a wilderness area. Bring Your RV, Motor Home or Tiny Cabin.Just a few minutes away from National Forest with miles and miles of adventure at your reach. 2 horses or mules ok. Great high country get away to spend your cool summers. Refer to listings MLS 246963 and 244540 if puchasing seperatly. MLS#246965 $41,900

Bring Your RV, Motor Home or Tiny Cabin. Mountain views of Escudilla, a wilderness area. Just a few minutes away from National Forest with miles and miles of adventure at your reach. And 2 horses or mules ok. Great high country get away to spend cool summers at. Discover, live, love our paradise. *two lots included* # 86 & 87 MLS#244540 $20,950

Rare 17.25 AcresLocated apx 12 miles south of Alpine o Forest Road 26. Fantastic setting nestled deep in National Forest, yet easily accessible. Homes only & upgraded restrictions to protect your investment. This can be your piece of paradise, and an ideal family retreat. Elec & ph. avail. Hand dug spring fed well. New buyer can split 5 ac minimum. RV OK on portion across the road. Discover, live, love our paradise!

MLS#239420 $610,000

Apachecountysoldfast.com
Scan with your mobile device for more listings Protect Your Investment Pinetop 928.358.1159 Show Low 928.537.2941 Snowflake 928.536.7778
Services
Escrow and Title
REALTOR Alpine DeLex Realty De KIM SARGENT
Page 7

AZ

2974 LOOKOUT LANE / 239147 Beautiful ponderosa pine trees adorn this .58 acre lot in popular Forest Trails subdiv. Site built homes only area has county maintained paved rds, undergrnd elec & water to the lot, 2 culverts installed & a 1,000 gal. septic sys already in. Bring your building plans! $89,900. Text RBHMXDL to 52187

2218 PUTTER PLACE / 245055

Fantastic treetop views from this 3BD 2BA + loft cabin. The wall of windows offers a light & bright great room & open floorplan can accommodate the entire family! Set up for full time or great for a weekend getaway with master BR with ensuite on main level & 2 Bd w/ full bath + loft upstairs & more. Exterior has been meticulously maintained. $529,900. RBJPHVM to 52187

1586 GREENTREE CIR / 243607 Privacy & room galore in this multi-level log sided cabin with metal roof for low maintenance. Super location at end of cul-de-sac, backing greenbelt for the ultimate in PRIVACY & SECLUSION. 4BR, 3 1/2 BA has room for the entire family. Perfect for all seasons. $599,900. Text RBJHVRQ to 52187

2302 SHANGRI-LA LANE / 246960 Impeccably maintained describe this 3 BR, 2 BA log sided chalet in the gated Resort of Overgaard Springs Ranch. A tranquil setting sitting by or gazing at the pond just steps from your front deck while you relax & enjoy the cool temps that Overgaard has to offer. Interior boasts exposed beams, accent walls, vaulted T&G ceiling, hrdwd flrs, stone faced gas fplc give it a true cabin feel & more. $379,900. Text RBJVDSB to 52187

It’s Simple ~ I Listen 1973
Diane Dahlin DESIGNATED BROKER/OWNER/REALTOR ® , ABR, CRS, GRI 928.240.1316 Cell email: diane@pinerimrealty.com www.HeberOvergaard.com
Red Deer Run • Overgaard
PENDING
REDUCED
REDUCED
Page 8

DiAnna Elmer – 928-245-3139

DiAnnaElmersellsaz@gmail.com

LaDonna Rather – 928-246-0864

LaDonnaR01@msn.com

Richard Ayres – 928-245-3579

cwbRichard@hotmail.com

Heidi Gardner – 928-651-3437

Heidi@PonderosaRealty.com

JoLyn Ayres – 928-245-8485

jolynayres@gmail.com

St. Johns, AZ • $220,000

Off Grid Ready!!! Over 40 acres of varied terrains with a 12x40 Weatherking Cabin, 3 40' high cube connex's on a 190x100sqft fully graded pad , septic system, new well with pump and generator. These features are fenced in and gated on two ends. MLS# 247842 Call DiAnna

PonderosaRealty.com

Brenda Ciminski Owner/Broker 928-245-1818

River Springs Ranch Lots

Great opportunity to own acreage in River Springs Ranch. Total of 7 lots avail ranging from 36-40 acres each. Two lots have the Little Colorado River running through them. All have open views w/good access. Peace & quiet, yet close to Springerville and Eagar. Call DiAnna for details and a map.

Eagar, AZ • $409,000

Magnificent 4 bd 2 ba home is a true haven of comfort, style, & outdoor bliss. Located on a corner lot w/undeveloped acreage to the North. Lrg open flr pln that offers functionality & style. Primary suite feat. a lrg walk-in closet, garden tub, dual vanities. 2 car garage & more. MLS# 246537 Call Heidi

Eagar, AZ

Beautiful home on .53 acres in the southern part of Eagar, 3 bed/2ba, freshly painted interior & exterior, relax & enjoy the views from the covered deck & covered porch. Home overlooks the 26 Bar area – John Wayns’s old Homestead. 2-car gar, & more. This furnished home is a must see, call Richard

Eagar, AZ • $399,000 Eagar, AZ • $599,000

DELUX HORSE PROPERTY located on 2.5 acres next to Flat Top Mtn. You can leave from your back yard & enter the nonmotorized USFS. Huge 3,520sqft metal barn w/inside stalls & turn out stalls outside. Guest/Rental studio apart, tack rm & huge shop, 2 additional outbldgs & more. Call LaDonna.

Come find comfort and style in this 4 bd 2..5 ba home. Primary suite incl. a walk in closet w/dressing area & a ba that was custom designed. Kitchen features a dbl oven, granite countertops trimmed in stainless steal. 3 bd & full bath upstairs. Nice finishing touches throughout.

Page 9

ESSENTIAL STEPS TO TAKE BEFORE THE END OF THE YEAR

FIRST-TIME HOMEBUYER’S GUIDE
Page 10

Embar ing on the ourney to homeownership for the first time is both exciting and filled with important decisions. s the year draws to a close, there’s no better time to lay the groundwor for your dream of owning a home. his comprehensive guide is designed to empower first-time homebuyers with a clear roadmap, helping you navigate the process and ma e informed choices before the calendar turns. By following these steps, you’ll be well on your way to turning the ey to your very own front door.

ASSESS YOUR FINANCIAL HEALTH

Before diving into the homebuying process, ta e a close loo at your financial situation. alculate your budget, including your monthly income, expenses, and potential mortgage payments. btain a copy of your credit report and wor on improving your credit score if needed, as a strong credit history can positively impact your loan terms.

DETERMINE YOUR PRICE RANGE

Based on your financial assessment, determine a realistic price range for your prospective home. se online mortgage calculators to estimate monthly payments and factor in additional costs li e property taxes, insurance, and maintenance. his will help you set expectations and narrow down your search.

SAVE FOR A DOWN PAYMENT AND CLOSING COSTS

tart saving for a down payment, which is typically a percentage of the home’s purchase price. esearch various loan programs that cater to first-time homebuyers, as they often offer lower down payment options. dditionally, set aside funds for closing costs, which can include appraisal fees, title insurance, and attorney fees.

GET PRE-APPROVED FOR A MORTGAGE

onnect with a reputable mortgage lender and get pre-approved for a mortgage. re-approval not only strengthens your bargaining position but also gives you a clear understanding of how much you can afford. his step streamlines your home search and positions you as a serious buyer.

PRIORITIZE YOUR NEEDS AND WANTS

reate a list of your must-haves and nice-to-haves in a home. onsider factors li e location, number of bedrooms, proximity to schools or wor , and amenities. aving a clear vision will help you focus your search and ma e more informed decisions.

ENGAGE A REAL ESTATE AGENT

artnering with a nowledgeable real estate agent can greatly simplify the homebuying process. n experienced agent in this maga ine can provide valuable insights, guide you through negotiations, and help you navigate the paperwor .

Becoming a first-time homebuyer is a significant milestone that re uires careful planning and preparation. emember that patience, research, and a strong support system, including a s illed real estate agent and lender, will pave the way for a smooth transition into homeownership. s you embar on this exciting ourney, rest assured that your dedication and informed decisions will lead you to the doorstep of your new home.

Beautiful 4.55 acre parcel with no restrictions, just east of alpine business on Mainstreet. Alpine water & sewer already stubbed out at the property; would require hkup fees. Close enough to walk to nearby businesses, but in the open & room to spread out. Wildlife views are amazing. Driveway needs development from highway & may require adot standard. MLS#245661 $122,500

A hunter's dream: this mobile w/large additions has room for all and is tucked in the heart of Alpine. Home is affixed. Mobile is on a permanent foundation, metal roof over entire structure & wood siding all around. Lovely T&G detail in several rooms; pantry/laundry directly off spacious kitchen. Extra lg addition. Lrg covered front deck. Backyard has covered patio. Furnished. Yard completely fenced. MLS#243999 $255,000

Quick and easy getaway tucked in the trees. Nicely landscaped w/multiple planting areas. 40x10 concrete covered deck. 2014 Clayton MDF home w/ concrete block skirting, dual pane windows, metal roof, plus gutters, downspouts & snow breaks. Additional RV hkup. Water from shared well sys for seven properties; 2500 gal. MLS#242068 $315,000

Lovingly maintained mountain home w/unique geodesic dome flr plan. Nice light & expansive living in this energy efficient home w/all the amenities inside & out. Formal entry foyer leads you into the living area w/soaring vaulted ceiling & wide stairway to the upstairs living area w/bonus rm for office, etc. Beautiful & private location. MLS#247019 $439,900

Beautiful custom-built cabin nestled in the tall pines. Custom wood interior incl. wood flooring, wood blinds, wood doors & trim. Slate tile flooring & counter tops. Open & expansive flrplan. Gas fplcs in most rooms. Jacuzzi tub in master w/walk-in tile shower. Lrg loft leads the way to additional master, extra office or craft rm, & extra pantry storage & more. MLS#247298 $832,500

Wonderful barn-domenium on 13.11 acres of meadow & timber. Property borders N. Forest on the east for ease of hiking & horseback riding. Upstairs home is 1728 SF w/upgraded finishes incl. engineered wood flooring, granite countertops, barn wood details throughout, slate matt appls, recessed lighting. Open & airy flrpln. Downstairs barn has 3 stalls on one side, 3 work areas across the middle isle, 13 ft doors & more. MLS#246153 $875,000

Protect Your Investment Pinetop 928.358.1159 Show Low 928.537.2941 Snowflake 928.536.7778 Escrow and Title Services Text
RBJQYXS to 52187
Alpine , 42716 US HIGHWAY 180
Text RBJKJFY to 52187
Alpine , 240 COUNTY ROAD 2311
REDUCED
Text RBJBTGN to 52187 Nutrioso , 41383 HWY. 180 Text RBJVHST to 52187 Nutrioso , 10 COUNTY RD. N2113 Text RBJVZPC to 52187 Alpine , 5 COUNTY RD. 2042 Text RBJRZRT to 52187 Nutrioso , 8 COUNTY RD. N2182
Page 12
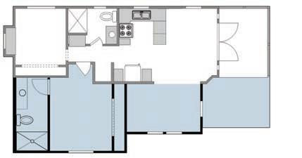
Covered Deck Covered Deck Kitchen Dining Living Bedroom 2 Bath 2 Closet Closet Bedroom 1 Laundry Bath 1 We reserve the right to make changes at any time to floor plans or options, without notice or obligations. * 928-242-9326 | woodfieldrv.com homes@woodfieldrv.com 3851 Vacation Village Dr. Show Low, AZ Ponderosa – Floor Plan A Test Drive Life at Woodfield by booking at stay at woodfieldrv.com/try! VERY SPECIAL LIMITED TIME OFFER! For a limited time, the next 3 buyers to purchase a NEW Luxury Park Model Home at Woodfield will receive 5 years of free space rent! Includes water, sewer, trash and Wi-Fi. But you'll want to act fast. Call to book a tour today! YES, you read that right! 1 Bed, 1 Bath Homes – From $139,900 2 Bed, 2 Bath Homes – From $234,900! Page 13

GET THE RIGHT APPRAISAL BY

TAKING THE PROPER STEPS

Whether you’re a buyer or a seller, getting an accurate appraisal of a home’s worth is critical before proceeding with a sale. When it comes to knowing the alue of a purchase, your home is the bottom line.

In today’s market, lots of factors can contribute to an appraisal coming in lower than expected, some of which might include the lack of recent comparable home sales in the area, or using an appraiser from another town or region. Want to know if your home is being appraised properly?

FOR SELLERS:

y Get an appraisal before you list your home for sale. Use it, along with your real estate agent’s expertise to set the right price for your home.

y See what similar houses are selling for or are valued at.

y Maintain a file of all the improvements, upgrades made, and tax documents related to your house.

y If you don’t like the appraisal, question it. Maybe there is some information you can provide or something that you can point out that the appraiser missed.

Also, if you’re selling your home, before you get an appraisal, do your best to make the most of your home’s features. Obviously, your home won’t transform from a single-family to a palatial estate overnight, so some things in the appraisal (square footage, number of rooms, etc.) won’t change. But you can make sure that things are clean, everything in the house appears maintained and functional, and knock out any DIY projects you’ve been putting off.

Following these tips will go a long way towards helping you get the appraisal you want.

Page 16
Holbrook Linden Snowflake

JustReduced

LINDEN AMAZING SUNSETS! 2.85 TREED ACRES of beautiful land that is part of a SHARED WELL with picturesque views of a charming meadow that even backs the National Forest. Located in a peaceful cul-de-sac of Linden in Show Low, AZ. And NO HOA! Make building your dream home a reality! Bring your horses too! OWNER WILL CARRY! MLS# 245738. Call or Text for more information…(928) 205-8466.

Linden

LINDEN Almost 3 SCENIC ACRES, on a corner lot of land, that is already part of a SHARED WELL. Relish all 4 Seasons of the White Mountains here! All you have to do is build it. This property is located towards the very end of a peaceful street, in the serene country neighborhood of Linden, right at the beginning of Show Low, AZ. It's just waiting for Y-O-U. Plus, NO HOA! MLS# 243586 Call or Text for more details - (928) 205-8466.

Residential & Commercial Parcel Concho

WHITE MOUNTAIN LAKES Get your fishing poles ready! This cute little parcel of land allows you special privileges to use this Community's lake that is located just up the road. This 0.15 acre parcel is just the right size for building a home, or just simply camping with an RV. Mfd Homes allowed too. PLUS, you can have horses & all of your other pets as well! Located about 10 minutes from the heart of Show Low. Price just lowered to $10K. MLS# 245647 Call or Text for more details (928) 205-8466.

WML
Page 17

928-532-5000

Lakeside

Newly renovated 5 bdrm, 3 bath home on over 1/2 acre of land in Lakeside! Enjoy the 4 seasons of the White Mountains. This is your chance to get out of the heat and into a nice, affordable home with room to breathe. Mature fruit trees on site. Tall pines all around. Granite countertops, stainless steel appliances. Must see!

MLS#243216 $349,000 Text RBJGQRQ to 52187

Snowflake

Beautiful new home with awesome backyard sunsets. Property is near the golf course on a divided roadway in one of the nicest areas in town. Lrg lot, side-entry gar, w/lots of upgrades, including: granite countertops, lrg pantry, open flrpln, & more. Listing agent is a principal of the owner LLC and builder LLC. MLS#244796 $585,000 Text RBJNFWS to 52187

Show Low

A charming look & feel of a ''Mountain Log Cabin'' w/log siding, huge front covered deck, lrg shed w/workbench & newer washer/dryer. Back fenced area. Kitchen w/ dishwasher & garbage disposal, lrg dining area. Quality furniture makes this park model ''move-in'' ready. Juniper Ridge Resort, a 55+ Active Community in the cool

Show Low REDUCED

LOCATION!!! Well maintained Park Model next to an open space & backs up to the greenbelt w/lovely shade trees & sunset views. New siding is being installed & new owner can select color. Back deck is the perfect summer outdoor living space. AZ room is bright with lots of windows. Quality furnishings & decor' are tastefully done. 55 Plus Community. MLS#246652 $199,000 Text RBJTLRF to 52187

Show Low

Brand new home in Taylor AZ. Upgrades incl. granite CNTPS, easy-close solid wood cabinetry & drawers, spray foam insulation, new ss appls, lifetime dimensional shingles, laundry sink & cabinetry, tankless water heater, & walk-in closet in master. Front yard hardscape is installed w/gravel driveway. Listing agent is owner of record. MLS#244680 $299,000 Text RBJMVRL to 52187

Great opportunity for someone looking for a fixer upper to live in or investment property. 1 bed 1 bath Park Model/RV w/addition built on to it. Private shared well with it's own pump house & meter. Also a box storage unit. Please call for more info or to schedule a viewing. Buyer to verify all material facts during inspection period. MLS#246356 $120,000 Text RBJSSWJ to 52187

#11 CR N3164 PO Box 117 Vernon,
85940
AZ
Mike Rodriguez BROKER Kenneth D Crewse, Jr REALTOR® Karen Perry REALTOR®
REDUCED
REDUCED
Taylor
Protect Your Investment Pinetop 928.358.1159 Show Low 928.537.2941 Snowflake 928.536.7778 Escrow and Title Services Protect Your Investment Pinetop 928.358.1159 Show Low 928.537.2941 Snowflake 928.536.7778 Escrow
Page 18
and Title Services

Never question the unparalleled reach and value you receive when you advertise with The Real Estate Book . Qualified listings are posted daily to this portfolio of luxury partners.

at its nest

Listings $1,000,000+ qualify

Listings $750,000+ qualify

Listings $1,000,000+ qualify

Listings $1,000,000+ qualify

Listings $450,000+ qualify

Listings $500,000+ qualify

Listings $450,000+ qualify

Page 19
Listed for $730,000 Listed for $730,000 Independently owned and operated Ernest Matkin cell: 928-240-4776 email: ernestmatkin@ymail.com http://www.ernestmatkin.com Listed for $530,000 Listed for $689,000 Listed for $659,000 Listed for $830,000 Page 20

928-243-0832

Matthew Clark, Sales

Frontier Estates Custom Home

Large custom home w/great views front & rear from a private lot! Main floor benefits from a lrg living rm w/wood burning fplc, formal music/dining rm, spacious eat in kit w/hard surface counter tops, newer stove & sink, lrg walk-in pantry. Extra dining area off the kit. Spacious master down & unique Jack & Jill set up in the 2 guest beds. Upstairs w/full bath, 3 lrg bonus rms/beds. Lrg game rm & more. MLS 245471 $575,000 Text RBJQLZW to 52187

Cute remodeled older home w/3 beds, 2 baths, living rm/dining rm, separate brkfst rm, laundry rm. Plenty of storage. Living rm w/wood burning fplc & gas fplc. Swamp cooler & window unit in the Mbdrm. Recently re-plumbed, newer windows installed, re-finished hrdwd flrs, freshly painted. Back yard has storage shed/small shop, garden area & water feature, fruit trees. Close to schools and shopping. MLS 247829 $198,000 Text RBJXKXW to 52187

Great location backing to the Cottonwood Wash. Horses allowed. Lrg Cul De Sac lot w/nice landscaping. Paved rds, natural gas. Open flrpln w/vaulted clngs, office/den could be a 4th bdrm. RV Prkg. Newer roof installed in 2021, fenced dog run. MLS 247134 $380,000

Located on almost 18 fenced acres, private well, septic and 'on-grid' power, 3 bed, 2 bath home. Recently updated with new flooring, paint, appliances. Move in ready home located approx. 30 minutes from Snowflake in Apache County. MLS 247840 $275,000 Text RBJXLZL to 52187

Associate 928-457-8562 Independently owned and operated 80 S Main St Snowflake, AZ 85937 JoAnne Guderian, Associate Broker 928-243-0832 joanneg@westusa.com jgsellshomes.com Consistent Top 25 in Homes Sales in the White Mountains. Let Me Help You Sell or Buy Your Dream Home. 8/19/20 6:42 PM 'Experience That Counts', over 20+ years helping buyers and sellers achieve their dreams. Mother & Son Team jgsellshomes.com Holbrook Gem Taylor - 1.11 acres Concho - Country Living Great location off County maintained road, panoramic views are fabulous! Nicely laid out mfd home, spacious kit area, living rm, split bdrms. Decks off front & rear. Extremely quiet & peaceful. 2 lrg Quonset huts one w/fplc great shop/gar area (24x36) other houses livestock (36x60). Fenced & cross fenced. Well goes into the Coconino aquifer. Home completely off grid, w/back up generator. MLS 246846 $340,000 Text RBJTVVM to 52187 Blue Diamond Ranch Protect Your Investment Pinetop 928.358.1159 Show Low 928.537.2941 Snowflake 928.536.7778 Escrow and Title Services Page 21
www.realestatebook.com Page 22

TOP 5 REASONS YOU NEED A REALTOR, RATHER THAN AN i BUYER

REALTORS HAVE MARKET KNOW HOW

Agents have a much better understanding of your market and how it works.

REALTORS WILL NEGOTIATE THE DETAILS

Selling your house through an agent is the best way to ensure you keep the equity your home has earned.

i BUYER PREMIUMS ARE ALMOST DOUBLE THAT OF A REALTOR’S COMMISSION

REALTORS WILL MARKET YOUR HOME TO POTENTIAL BUYERS TO GIVE YOU TOP DOLLAR

· iBuyers are buying your home site unseen for a price that’s likely less than what your property is worth.

YOU WILL BUILD A RELATIONSHIP WITH A MARKET EXPERT

Working with a Realtor means you’re connected with a market expert for the next time you need to buy or sell.

Page 23

Located in Arizona’s White Mountains, Creekside at Eagle Mountain is within the Show Low City limits. Creekside is a private community surrounded by tall pines yet close to shopping and amenities. Creekside features an attractive gated entry with access from Highway 260. Of the 51 homesites in Creekside, over half back to either US Forest Service property or the central greenbelt area. Lot sizes vary from around 8,000 square feet to 25,000 square feet. Creekside lots are fully improved including paved streets, City water, City sewer, City trash service, cable tv and natural gas.

3361

e roo fi e h

IMMEDIATE OCCUPANCY & $5,000 BUYER ALLOWANCE is split floorplan wit 3rd B or office, onderosa lus Model sits on re n s o Fully featured wit ig ualit finis es, rear covered deck, metal roof, granite countertops, fireplace, air conditioning, and natural gas heating. The garage has an additional 6ft width for extra storage, and so much more! ere

es Cree r e roo h

h se o s ro re i e oose from our floor plans ranging from , to 2, s ft. Homes can be modified to add e tra widt or t ird car garage and ot er features. Our full featured omes include metal roofs, granite countertops, large two car garages, paver driveways and more. Included in our standard pricing are a wide variety of ualit finis es. ou can select all of t e finis es including flooring, cabinetr , plumbing fi tures and electric fi tures.

3420

Choose your finishes for t is 2, s ft split floorplan ome with a r r e is open floor plan offers a larger mas ter bdrm and master bat . t includes our ig end finis es, paver drivewa , lrg covered deck, metal roof, A/ , fireplace, granite countertops, custom cabinets and more The o s o ores er i e ere

3341

Rear Porch

ro Porch

New ome under construction a open floor plan wit a larger master bedroom and larger master bath. It includes our ig end finis es, paver drivewa , large covered back deck, metal roof, A/ , fireplace, granite countertops, custom cabinets and much more! ere

IMMEDIATE OCCUPANCY & $5,000 BUYER ALLOWANCE is split floorplan, t e onderosa, s ft, . acre lot is on the green- belt. Fully featured with high quality finis es, rear covered deck, metal roof, granite countertops, fireplace, air conditioning, natural gas eating and so muc more. ere e n rr n e onsu ion i h our in house ons ru

928-532-0532 info@arizonarealty.net AVAILABLE NOW
N Eagles Creek Dr
o
i e
s en o ores er
N Eagles Creek Dr e roo h N Eagles Creek Dr e roo h
Page 24

now reek is a secluded area in ow Low. now reek features t e securit of a gated communit toget er wit im proved walking trails t roug out. t s one of t e fastest growing communities in t e ite ountains. e development as eas access to all t e amenities t at t e town of ow Low as to offer. mprovements include paved streets, and underground utilities, including power, natural gas, cable, , cit water & sewer.

2121

S. Snowy Ridge Loop

3 Bedroom / 2.5 Bath / 2385 Sq. Ft. is open floor plan on t e tree covered . Ac lot is a single level ome w/no steps. ome of t e man upgrades incl. kitc enaid appls, knott alder custom cabinets & ft knott alder doors t roug out, premium finis granite counters & full granite backsplas . reat rm boasts a rare knott beetle kill pine vaulted clng. lr to clng rock face gas fplc & custom mantel. ba w/soaking tub, walk in s ower, 2 vanities, stone vessel sinks & granite counters, oversize 36'x36' (3) car gar, water softener & /O s s, 2 enerac enerator, & lrg back covered deck w/ knott pine ceiling. There are extensive extras in this custom home that pictures can't capture, come view this home in person to see for yourself! Offered at $949,000.

1810 S Outback Way

3

Bedroom / 2.5 Bath/ 2302 Sq Ft

Choose your finishes for t is 2,3 2 s uare foot split floor plan home with a 3 car garage. e open floor plan offers a large master bedroom and master bat . t includes our ig end finis es, paver drivewa , large covered decks, metal roof, A/ , fireplace, granite countertops, custom cabinets and more . e . Ac lot as eas access to t e now reek trail s stem. Offered at $879,000

1041

N 35th Ave, Show Low

3 Bedroom / 2.5 Bath / 1821 sq ft is open floorplan ome is currentl under construction. ome of t e selections can still be c osen so make t is our special dream ome. eatures include great room wit vaulted ceiling, large master bedroom & large master bat wit a double vanit & tile walk in s ower, pantr wit a barn door, utilit room, large covered back deck, and covered front deck wit & , A/ , attac ed 2 car garage and muc more Offered at $579,000

We represent the largest developer of lots and new homes in the White Mountains.

For more info visit: WWW.ARIZONAREALTY.NET

AVAILABLE NOW
E C R R STERE A CH EG AR U IZON S JACOB HOFF BODELL 54820 expires 09/30/25 5/12/2023 RG ATTIC ACCESS GAS WATER HEATER Living Room Kitchen Utility Closet M Bath Master Bedroom Bedroom 2 Closet Bath 2 Bedroom 3 Dining Rear Porch Garage Closet Front Porch Powder Pantry Juniper Model Liveable: 2,302sf Garage: 880sf Front Porch 88sf Rear Porch: 372sf
construction company to build your dream house on any lot. Service NOW available in Creekside.
Page 25
COUNTRY CLUB ESTATES

928.243.0313

kevindunn222@gmail.com

On the fence about selling?

Off-grid living is a lifestyle characterized by a desire for independence and self-reliance Solar power is very popular in our area with many experts for help and advice. Living sustainably is quite easy. I have extensive experience listing and selling off grid properties in the White Mountains of North Eastern Arizona. Interested??? Give me a call, text or email.

On the fence about selling?

FOR THOSE WANTING THE FREEDOM OF SELF SUFFICIENCY, this 1BD/1BA home on 19.41 acres is all set up to live comfortably & sustainably. Quiet peaceful area. Private well into the Coconino Aquifer. Home is very comfortable, cozy, & functional. Lots of storage, including 2 lo s & 3 outbuildings. 48 volt solar system. Property fully fenced with additional backyard privacy fence & more. Call for an easy to show appointment. $166,900 MLS#245910

FOR THOSE WISHING THE FREEDOM OF SELF SUFFICIENCY, PRIVACY, SECLUSION, & GORGEOUS VIEWS... THIS OFF GRID PROPERTY MIGHT BE FOR YOU.

Live sustainably w/your own power (solar), your own water (private well), w/back up generators, fully fenced w/multiple fenced animal structures. 3BD/2BA, 1352 sq home on 36 ac. Good maintained roads to property. Home in good condition w/tape/textured walls, newer appliances, good roof, fiber board skirting & tied down. 35 min to gas/groceries (Bashas) @ Sanders & 1hr 20 min to Home Depot, Tractor Supply, Walmart, in Gallop or Show Low. Outback solar inverter/controller, 12 new ba eries, & 2800 gal water holding tank (well runs on solar). Many outbuildings for work shop, storage, & tack. Dog runs (fencing) don't convey (overhead cover does). Well reg # 55-217715. Garage is 14 x 20. Call for an easy to show appointment. $319,000 MLS#247418

Kevin Dunn REALTOR ®
Price
Unsure how to begin the home selling process? Get your home sold fast by enlisting a professional real estate agent f ound in The Real Estate Book.
On the fence about selling?
Unsure how to begin the home selling process? Get your home sold fast by enlisting a professional real estate agent f ound in The Real Estate Book.
Page 26

Talk about georgous views!!

This 3/2 home is among tall pines and centrally located. Downstairs kit, DR, Lrg LR w/wood burner, BR, BA, laundry rm & more. 2 car garage. Upstairs is a sitting room with great forest views 2 BRs and BA.

MLS#246721 $495,000

This open floor plan has a gas fireplace, vaulted ceilings with plant shelves & architechtural designs. The large covered deck has amazing views for you to site & enjoy the mountain weather. Beautiful home & pride of ownership shows. MLS#247306 $549,000

Excellent little 3/2 home, with an office that could be used as another bedroom, is centrally located to schools, hospital and shopping. Chain link fenced big yard for kids to play and enjoy the mountain air. This one will not last long, Call TODAY for a showing!! MLS#247796 $199,999

This 3/2 home is bright and cheery. Centrally located to shopping and activities. Relaxing water fountain feature amongst many lrg pine trees and a paved fire pit area. Kitchen, DR & a bathrm remodeled in 2021. MLS#247185 $300,000

Show Low

Parcel 210-59-007 ............... 3.72 acres

Parcel 210-73-004 .93 acres

Parcel 210-73-001 1.86 acres

Parcel 210-59-004 3.87 acres

Parcel 210-59-003A 1.0 acres

Available all together or induvidually at $4/sq ft

MLS#246795 $2,000,0000

Cute 2 bed/2 bath Golf Villas has lots of upgrades! T&G ceilings, knotty hickory cabinets, laminate flooring throughout, plumbing fixtures & more! Gas fplc in the LR & a back deck that is private and peaceful Includes the great ammentities Torreon has to offer. MLS#247251 $424,000

Hold onto your hat because there is is A LOT of house. Main house has 4br + loft, 2.5 ba, 2 kitchens, 2 living spaces & storage. Part of the 1000SF gar is in the process of being converted into a 500 SF Mste. 3 fplcs, cathedral ceilings, & more. MLS# 246798 $795,000

This cute 3/2 home is ready for you to plant your roots. Centrally located in Show Low, close to schools, shopping, hospital and more. Site on almost a an half acre with mature trees.Owner is a licensed agent in the state of Arizona MLS#247322 $300,000

Vernon 40 acres MLS# 246613 $350,000

Text RBJWCBR to 52187 Text RBJXJRK to 52187 Text RBJTJFC to 52187 Text RBJVTPH to 52187 Text RBJTSRW to 52187 Text RBJTSSS to 52187 Text RBJVXYM to 52187 Text RBJTSSS to 52187 Text RBJWBDR to 52187
See more listings
Nicks
928-242-8136
realtor.julienicks@gmail.com Need Advice? or just want to talk? Call us Scan with your mobile device to visit our website UNDER CONTRACT Price Price Price
Barry Nicks REALTOR 928-521-2557 Julie
REALTOR LIC. ASSTISTANT
barry@barrynicks.com

8 SUMMER ITEMS YOU NEED TO CLEAN AT T HE END OF THE SEASON

Page 28

pring isn’t the only season that calls for deep cleaning. Thankfully, tidying up at the end of summer is more straightforward — and less messy — than cleaning gutters or tackling your dryer vent. As the weather cools, your to-do list should be all about storing summer essentials without the dirt and grime of the season trailing along for the ride.

Don’t fret if many of these tasks aren’t already on your cleaning schedule. Once you start prepping for another summer of swimming, grilling, and chilling, you’ll be glad you had the foresight to give these items a good scrub.

Plus, the better care given to these items, the longer they’ll last. Not having to unstick mower blades coated with grass and dirt after more than half a year in the garage is a bonus. To avoid a smelly fate next spring, read on for all the summer items that you should be cleaning.

endeavor, we’ve pulled together a guide to cleaning outdoor furniture that breaks down the best strategy for each material. To help protect outdoor furniture from the elements, consider investing in furniture covers that can be used in the off-season.

5 OUTDOOR CUSHIONS

The good thing about outdoor cushions is that they can usually be safely stored inside during cold weather. But before bringing them in, make sure you wash them to remove any stuck-on stains or debris. If you can remove the covers, wash per the label’s instructions. If that’s not an option, you should still be able to get your cushions and pillows clean with a homemade cleaning solution and a little elbow grease.

1

GRILLS Your grill puts in some major mileage each summer. Between the burgers, kebabs, juicy steaks and sweet corn for your now-famous street corn dip, it has earned its time off. But before you store it away for the seasons ahead and pull out the old slow cooker, you’ll want to give your grill a deep clean so it’s ready to fire up during those first warm days next year. Be sure to follow the proper cleaning technique for your grill, whether it’s charcoal, gas, or electric.

6 WINDOW SCREENS Depending on the climate where you live, window screens might be something that you put away each year on the Tuesday after Labor Day, while others might still get some mileage well into November. Either way, it’s a good idea to clean your screens at the end of the summer, even if you’re just putting them back on the windows for a few more months. You can use a similar process to clean your window screens as you would porch screens (which you should also consider cleaning at this time if you have them).

2

POOL TOYS

Before you set out to clean all of your pool toys, start by giving them all a good inspection. If there are toys that are broken, cracked, or have holes, mold, or other issues, you should probably go ahead and toss them. After all, some items might not be intended for numerous summers of rough wear and tear. Give the ones worth saving a good scrub (and plenty of time to dry) before stowing them away for the season.

3

BEACH TOWELS During the high season, we’re likely to skip a few washes between towel uses — particularly pool towels. But those who have let a lake-soaked towel simmer in a boat bag overnight won’t make that smelly mistake twice. Run your towels through the washing machine on a hot cycle after your last beach or pool day of the season. Do a close inspection to determine if all of the towels are up for another summer in the sun or if they should be demoted to the doggy towel stash.

4 OUTDOOR FURNITURE To keep your porch and patio furniture looking its best for another season, proper care must be taken before winter weather hits. To help take the guesswork out of this

7 LAWN MOWERS When the lawn slows its growth and your mower has made its last cut of the season, be sure to thoroughly clean it before storing it in your shed or garage for the winter. If you wait on this task, you’ll be met with a much more tedious and time-consuming to-do once spring hits. Exactly how you go about winterizing your mower will depend on what kind you have as well as manufacturer recommendations, but start by scrubbing all grass, dirt, debris, and oil from the machine and blades. You’ll also want to remove the filter and battery, sharpen the blades, drain the gasoline, replace the oil, and cover the machine for the season.

8CEILING FANS To maximize the efficiency of your home’s heating and cooling, it’s best practice to switch the rotation of your fan with the seasons. But before you flip the switch from counterclockwise to clockwise, give your fan a good clean while you’re up there. Ideally, clean your fan blades more than just twice yearly, but go ahead and seize the opportunity for a more thorough wipedown than your ceiling fan usually sees.

S
©2023 Dotdash Meredith. All rights reserved. Used with permission. Distributed by Tribune Content Agency, LLC.
Page 30

CALL TODAY FOR YOUR CUSTOM BUILD

This Stunning Modern Luxury Mountain Home in Torreon Will Not Disappoint! 4br/4ba, 3250sqft handcrafted home with attention to detail and designer finishes. No expense spared with this build. $1,690,000 Call for details

BEAUTIFUL LOG HOME

''One of a Kind'' Majestic Mountain Whole Log Home 3br/2ba, on 5 acres w/pond & creek forest views, private well & septic, NO HOA. MLS#239504 $1,130,000 Text RBHPLHN to 52187

Cover Home

Beautifully appointed home 3br/2.5ba, Nestled in the tall pines with long range views off both front/back covered decks, landscaped, Smart Siding, paver driveway & sidewalks.MLS#246794

$789,000 Text RBJTSQY to 52187

LOCATION, LOCATION LOCATION

This home is packed full of sizzle! ''The Quintessential Cabin'' in the pines! CONVEYS COMPLETELY FURNISHED. 3br/2.5ba, Boasting flr to clng stack stone FP in great rm & Master suite. MLS#246406 $649,900 Text RBJSVPD to 52187

GORGEOUS CABIN

"Fairway Views" Located on the 17th hole backing the Bison Ridge Golf Course. 2br/2ba home listed below appraisal. Shows pride of ownership. Nestled on an oversized lot. $525,000 Call for details

CHARMING COZY CABIN

Located on an interior corner lot in Torreon a gated Troon community with amenities! 2br/2ba will be sold completely furnished. Nestled in the Tall Pines, offering an expanded covered deck. MLS# 247821 $449,900 Text RBJXKVN to 52187

NESTLED IN A PARK LIKE SETTING

Charming Home. NO HOA. All city services. Offering dreamy kitchen w/high end cabinetry, granite & more. Gas FP in living rm, separate den/office, mature landscaping with fencing & room to park your toys. $412,500 Call for details

AWESOME CURB APPEAL

This Charmer awaits you 2br/2ba in Hacienda Pines 55+ gated community. Wrap around covered deck, landscaping, privacy & views. Interior offers Living Rm/Den/ Office, Lg kit w/island & more. MLS#246663 $399,000 Text RBJTMHM to 52187

Home shows pride of ownership inside and out! Centrally located with all city services & no HOA. Offers low maintenance siding, expansive back deck, covered front porch, GR + Den & more. MLS#246276

$399,000 Text RBJSMDC to 52187

CLOSE TO FOOL HOLLOW LAKE

Show Low CC Charmer with 3 full baths! NO HOA. Offering split flrpln, wood burning FP, garage can easily be converted back or used as a 4th bd, granite counter tops in kitchen, AZ rm & more. MLS#245275

$360,000 Text RBJPXSZ to 52187

CHARMING CABIN

Overgaard nestled in the ''Whispering Tall Pines'' Corner lot with NO HOA. This 3br/1ba beauty offers an expansive covered front deck, metal roofing, covered back deck, carport and more! MLS#245670

$325,000 Text RBJQZTH to 52187

CHARMING HOME

Shows pride of ownership inside and out! 2br/1ba home centrally located with all city services. No HOA. Room to park RV and toys with a beautiful garden area. You will love the character this home has. MLS# 247824

$275,000. Text RBJXLFXto 52187

Crystal White “Exceeding Expectations” 928.242.4134 Crystalwhitesellsthemtn@gmail.com www.CrystalWhiteSellstheMtn.com When it Comes to Marketing Your Property the Choice
1413 E. White
Each office independently owned and operated
is "CRYSTAL CLEAR"
Mtn. Blvd.Pinetop, AZ 85935
''PARK PLACE CHARMER.''
''LUX MOUNTAIN HOME'' SNOW CREEK GATED COMMUNITY
Page 31

dream home with private lake access, nestled in the heart of nature at White Mountain Lakes Recreation District. Exceptional property spans across two expansive lots, providing ample space. 2 bed, 2 bath, open-concept design seamlessly connects the living, dining, & kitchen areas. Four-car garage & more. MLS#246611 $415,000

FMI Text RBJTJCH to 52187

Looking for a little mini ranch, horse property, look no more. Very well kept 3 bed 2 baths home with an abundance of pride is waiting for you & your horses. Property has field fencing all the way around, plus cross fenced in several areas. Open floor plan with a VERY efficient pellet stove. 80 x 12 Barn, beautiful views & more. MLS#245885 $425,000

FMI Text RBJRLNL to 52187

Nestled in the cool air and tall pines of Show Low, Arizona you’ll find a private golf community like no other — Torreon. Offering 36 holes of championship golf, a modern fitness center, clubhouse pool, fine dining, and activities for the entire family, Torreon is the perfect blend of luxury and small town charm.

Nested away in a quiet cul de sac, this 2 bed 2 bath cabin has so much charm. Beautiful wood fplc in living area for those cool winter nights. Vaulted T&G ceilings make it feel like a real cabin. Kitchen, Living & Dining Rm combo with the sliding glass door leading out to the patio make this cabin a great place to entertain. MLS#246603 $435,000

Nestled in the cool air and tall pines of Show Low, Arizona you’ll find a private golf community like no other — Torreon. Offering 36 holes of championship golf, a modern fitness center, clubhouse pool, fine dining, and activities for the entire family, Torreon is the perfect blend of luxury and small town charm.

Come see why we say Torreon is a fair way from ordinary.

Come see why we say Torreon is a fair way from ordinary.

Enjoy the cool mountain air in this spacious 3 bed 3 bath Plus a large loft Townhouse. Built in 2021 has it looking modern, bright and new. Sitting deck on upper level as well and level. Backs up to a very quiet, 5+ acre City Park which is seldomly used but you can see deer, elk and other wildlife there on a regular bases. MLS#246516 $555,000

FMI Text RBJTHVW to 52187

FMI Text RBJSZYG to 52187

TORREON REAL ESTATE INQUIRIES
R. Cedarblade, Designated Broker | lrc@torreon.com
ANOTH ER FINE DE VELO PM EN T OF DESE RTT ROO NCOMPA NIE S
Linda
928-532-3030 torreon.com
A fair way from ordinary.
TORREON REAL ESTATE INQUIRIES
R. Cedarblade, Designated Broker | lrc@torreon.com
ANOTH ER FINE DE VELO PM EN T OF DESE RTT ROO NCOMPA NIE S A fair way from ordinary. REALTY TORREON REAL ESTATE INQUIRIES ANOTHER FINE DEVELOPMENT OF DESERT TROON COMPANIES Linda R. Cedarblade, Designated Broker | lrc@torreon.com 928-532-3030 torreon.com/realty Discover your
Linda
928-532-3030 torreon.com
Reduced
SOLD Pending

Turn static files into dynamic content formats.

Create a flipbook
Issuu converts static files into: digital portfolios, online yearbooks, online catalogs, digital photo albums and more. Sign up and create your flipbook.