Internship Portfolio 2020-2021

Page 1

Design Workshop Lonavala, Maharashtra. Ar. Shabbir Unwala

OFFICE INTERSHIP PORTFOLIO 05 AUGUST 2020 - 05 JANUARY 2021

NISHIT GANDHI IU1743000015

Joining Letter And Completion Letter

Monthly Report
Monthly Report

Monthly Report And Work

Authenticity Letter

Design Workshop, plot no. 13, Bohri Society, Lonaval, 410401, Maharashtra e-mail:contact@designworkshop.co Contact: +919623568610

Ar. Shabbir Unwala CA/1988/11512

3.
4.
ii.
5.
6.
7.
Content: 1. Talegaon-Dabhade Municipal Council 2. Lonavala Hospital
Septic tank and Ugt tank Drawings
i. Beze Cottage - Option 1
Beze Cottage - Option 2
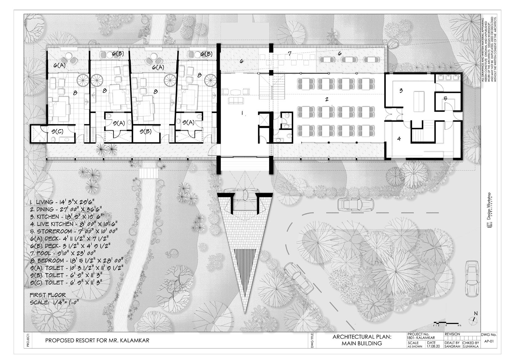
Kalakmar Resort
Natures Paradise Resort
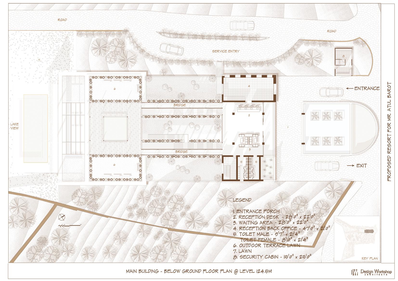
Atul Barot Resort
2003- Maval Development
Done • Designing • Making Architectural Drawings
Sheeet Rendering • 3d Rendering • Resolving Structure • Muncipal Drawings
Talegaon Dabhade Municipal Council Work

SCALE: 1:1000

(A)

DEDUCTIONS FOR AMENITY SPACES,

6.

PREMIUM.

(B)

(C)

(B)

BALCONY AREA STATEMENT T.D.R PARKING STATEMENT

LOADING UNLOADING SPACES

SQ.M L = 3.23 X 5.17 = 16.70SQ.M

AREA CALCULATION FOR FIRST FLOOR

A = 45.16 X 28.57 = 1290.221 SQ.M B = 7.24 X 16.07 = 116.346 SQ.M

C = 4.19 X 13.63 = 57.109 SQ.M

D = 3.05X 15.08 = 45.994 SQ.M

E = 4.06 X 08.14 = 33.048 SQ.M

F = 2.74X 08.08 = 22.139 SQ.M

G = 4.57 X 14.80 = 67.636 SQ.M

H = 2.65 X 06.32 = 16.748 SQ.M

I = 2.50X 12.34 = 30.85 SQ.M

J = 3.23X 5.17 = 16.700 SQ.M

TOTAL FIRST FLOOR AREA = A - (B + C + D + E + F + G + H + + J) = 883.651 SQ.M

A = 45.16 X 28.57 = 1290.221 SQ.M B = 7.24 X 16.07 = 116.346 SQ.M

AREA CALCULATION FOR SECOND FLOOR C = 4.19 X 13.63 = 57.109 SQ.M D = 5.92 X 6.32 = 37.540 SQ.M E = 7.31 X 09.07 = 66.301 SQ.M

F = 7.70 X 9.07 = 13.72 SQ.M

G = 1.83 X 3.68 = 6.73 SQ.M

H = 3.23 X 5.17 = 16.700 SQ.M

TOTAL SECOND FLOOR AREA = A (B + C + D + E + F + G + H) = 975.775 SQ.M

A = 15.46 X 29.49 = 455.915 SQ.M

B = 3.30 X 6.58 = 21.714 SQ.M

AREA CALCULATION FOR TERRACE C = 6.07 X 4.00 = 24.280 SQ.M D = 3.48X 14.34 = 49.903 SQ.M

E = 1.83 X 3.68 = 6.734 SQ.M

TOTAL TERRACE AREA = (A + B + C + D) E = 544.205 SQ.M

A = 6.35 X 15.46 =98.171 SQ.M B = 4.27 X 8.69 = 37.106 SQ.M

4753.01

0.00 0.00 0.00 NILL

4753.01

4765.13 4753.01 5228.31 0.00 3853.2 0.81 294.00 1028.00

00 0.00

1.1

NILL NILL

AREA STATEMENT 3853.2 SCALE: 1:500

0.00 412.50 137.20

EXISTING 18.00 W. W. D.P. ROAD TO TALEGAON EXISTING STRUCTURE TO BE DEMOLISHED SECURITY ENTRY EXIT -----EXISTING 9.00 M WIDE D.P. ROAD ---------ADJ.NALA----9.51 6.00 8.35 50.82 SCALE- 1:250 SITE PLAN 14.17 9.00 9.00 NATURAL SLOP FIRST FLOOR 6.00 12.68 9.00 15.46 4.19 13.63 59.74 28.72 33.74 19.51 70.18 38.37 86 CYCLE STAND FOR 120 CYCLE 63.31 87 84 DRIVEWAY SEWAGE TREATMENT PLANT 92 53 93 99 100 54 55 56 53 58 53 59 61 64 65 67 68 69 70 71 74 75 76 77 78 79 80 82 89 83 85 88 94 22 95 98 23 104 102 105 33 103 112 120 119 CYCLE STAND FOR 120 CYCLE 14 20 25 26 28 31 27 30 34 89 88 94 98 93 104 47 48 117 49 52 53 54 56 58 60 72 74 75 76 77 79 80 81 82 83 84 86 87 92 108 97 106 105 102 110 109 120 113 MOTORVEHICLE STAND FOR 120 CYCLE MOTORCYCLESTANDFOR120CYCLE MOTORVEHICLESTANDFOR120CYCLE PAVED AREA DRIVE WAY NATURAL SLOP DRIVE WAY DRIVE WAY DRIVE WAY NATURAL SLOP DRIVE WAY 4.77 4.77 6.85 30 29 32 31 33 34 35 36 37 38 45 44 40 38 37 108 109 110 24 25 26 27 28 39 40 6.00 6.00 6.00 16.63 14.19 LAYOUT SHOWING EXISTING STRUCTURE EXISTING STRUCTURE TO BE DEMOLISHED EXISTING STRUCTURE TO BE DEMOLISHED EXISTING STRUCTURE TO BE DEMOLISHED PLOT AREA CALCULATION FOR TRIANGULATION ADDITIONS
TOTAL PLOT
NET B.UP AREA=3927.57 sq.m. Water Storage Capacity Calculations (Municipal Council Bldg.) PROVIDED CAPACITY OF U.G.W.T. (1.50 TIMES) PROVIDED CAPACITY OF OVERHEAD TANK ADD WATER REQUIRED FOR FIRE FIGHTING PURPOSE = 10,000 Liters TOTAL REQUIRED CAPACITY OF OVERHEAD TANK = 24,805.00 Liters = 24,805.00 Liters = 17640.00 1.5 TOTAL REQUIRED WATER TANK CAPACITY = 17640.00 lts WATER REQUIRED
FIRE FIGHTING
TOTAL
15.81 60.74 42.94 67.22 21.92 73.24 26.29 26.98 39.57 11.13 59.59 28.65 33.62 4.50 10.42 04 -----EXISTING 9.00 M. WIDE ROAD ----MAIN ROAD TO DEHU ROAD TO TALEGAON -----ADJ.NALA----6.73 1. FLOOR PROPOSED F.S.I. STATEMENT (IN SQ .M.) LIFT AREA AREA SR. NO. GR. COVERGE B/U AREA 442.63 FIRE STAIRCASE 869.68 16.70 LOWER GROUND FLOOR 3. 2. 883.65 1121.93 GROUND FLOOR 975.77 FIRST FLOOR 16.70 5. 4. 16.70 6. TERRACE FLOOR 137.22 SECOND FLOOR MAZZNINE FLOOR 544.20 16.70 TOTAL 3853.2 66.80 6.73 1121.93 PROPOSED MUNICIPALITY BUILDING EXISTING STRUCTURE TO BE DEMOLISHED LAYOUT SHOWING PROPOSED STRUCTURE NET B.UP AREA /10 =3927.57/10 = 392.75 SAY 392 NOS CONSIDER 197 MALES & 195 FEMALES Sanitation Requirement For (Municipal Council Bldg.) 01 PER 25 01 PER 25 01 PER 25 MALES REQUIRED BY RULES NO.s TOTAL PROVIDED 01 PER 25 01 PER 25 01 PER 25 REQUIRED PARKING SCOOTERS CARS Proposed Parking Statement For (Municipal Council Bldg.) TYPE OF CYCLES PROPOSED PARKING 3 3 TOTAL PARKING AREA REQUIRED SCOOTERS CARS CYCLES Prop. B/UP Area 3290.18 sq.m. AREA 98 98 33 W.C W.B URINAL W.C W.B URINAL 23 52 17 33 12.50 = 412.50 98 3.00 =294.00 98 1.40 =137.20 843.70 sq.m. 98 98 33 40 3 1 120 120 40 40 12.50 =500 120 x 3.00 =360.00 120 1.40 =168.00 1028 sq.m. 120 120 40 68 120 120 120 CYCLE TOTAL OPEN AREA LOWER GROUND 2-WHEELER 4-WHEELER PROPOSED PARKING STATEMENT FOR COMMERCIAL USE 100.00 SQ.M. BUILT UP AREA. 8 8 8 24 20 9 01 PER 15 01 PER 15 FEMALES NO.s W.C W.B URINAL 8 8 LOCATION PLAN 534 381 4732 4779 4738 4780 4768 4737 4767 4783 4717 4746 4765 4716 4769 4747 4764 4745 4785 4748 4763 4786 4744 4763 4761 4762 4714 4787 4749 4752 4740 4760 4713 4742 4759 4753 4789 4741 4758 4754 4751 4756 SANCHALIT ADARSH VIDYA MANDIR NAGAR PALIKA MAVAL PRATISHTHAN SHIKSHAN ISLAND 380 A = 15.86 X 8.33 = 128.781 SQ.M B = 21.38 X 14.68 = 313.858 SQ.M AREA CALCULATION FOR LOWER GROUND FLOOR TOTAL LOWER GROUND FLOOR AREA = (A + C) = 442.639 SQ.M D B C A E A = 42.85 X 28.58 = 1224.653 SQ.M B = 7.30 X 13.69 = 99.937 SQ.M AREA CALCULATION FOR GROUND FLOOR C = 4.19 X 12.11 = 57.100 SQ.M D = 3.05X 11.02 = 33.611 SQ.M E = 4.06 X 11.18 = 45.390 SQ.M F = 2.44X 06.12
SQ.M G =
X
SQ.M H =
X
SQ.M TOTAL GROUND FLOOR AREA = A - (B + C + D + E + F + G + H + + J + K + L = 869.688 SQ.M = 1.50 X 2.86 = 4.360 SQ.M J = 3.66 X 8.95 = 32.75 SQ.M K = 1.83 X 3.68
B A C E 16.19 6.12 6.12 11.02 D F G H J 11.02 K L 13.63 39.28 16.07 15.46 B A C D E F 6.02 G H 6.07 B A C E D F G H J
01) 70.00 X 15.81 X 0.50 = 553.35 02) 60.74 X 42.94 X 0.50 = 1304.09 03) 67.22 X 21.92 X 0.50 = 736.73 04) 73.24 X 26.29 X 0.50 = 962.74 05) 73.24 X 26.98 X 0.50 = 988.01 06) 39.57 X 11.13 X 0.50 = 220.22
AREA 4765.13
PER DAY = 45 LIT/P/DAY = 45 392 = 26460.00 LITS NO. OF OCCUPANTS=3927.57 10= 392.75 SAY 392 Nos. TOTAL REQUIRED WATER TANK CAPACITY ADD WATER REQUIRED FOR
PURPOSE = 10,000.00 Liters = 36460.00 ITS
REQUIRED WATER TANK CAPACITY Maximum floor area = 1121.93 sq.m Ground Covrage Statement (Municipal Council Bldg.)
= 14.932
1.22
15.40 = 18.788
4.03
06.12 = 24.663
= 6.734
E F A B C D
TOTAL MAZZENINE AREA = ( A + B ) = 137.227 SQ.M B A AREA UNDER CHAMFER 01) 4.50 X 9.00 X 0.50 = 20.25 DEDUCTION 0.00 a) 10.42 X 1.17 X 2 /3 = 8.13 NET AREA UNDER CHAMFER 20.25 - 8.13 = 12.12 CTS No. Area Of CTS Ownership REMARK Area Under Proposal 4937.90 Remaining Area sq.m 4751 4937.90 sq. m - Council Talegaon Municipal LAND AREA STATEMENT STAMP OF APPROVAL LAYOUT SCALE DATE DRAWN BY CHECKED BY SHEET NO. NISHIT ARCHITECTS: FOR 'TALEGAON DABHADE MUNICIPAL COUNCIL 10.12.20 S.UNWALA ADMINISTRATOR BLDG AR. SHABBIR UNWALA CA/1988/11512 OWNER'S SIGNATURE: FOR SUBMISSION & APPROVAL DRAWING STATUS: 13, WORKSHOP DWELL, VAJIHI CO-OP HOUSING SOCIETY, KHAKKAR MARG, LONAVLA, 410401 Ph: 02114-275462,273157 Email:contact@designworkshop.co AS SHOWN C 2018 COPYRIGHT ALL DRAWINGS AND WRITTEN MATERIAL APPEARING HEREIN CONSTITUTE ORIGINAL AND UNPUBLISHED WORK OF THE ARCHITECTS 'DESIGN WORKSHOP'. AND MAY NOT BE DUPLICATED, USED OR DISCLOSED WITHOUT THE WRITTEN CONSENT OF THE ARCHITECTS. ADVANCE COPY OFFICE RECORD EXECUTION ON SITE STRUCTURAL DESIGN MUNICIPAL SUBMISSION TENDER DRAWINGS DWG TITLE: BUILDING: PROJECT: REVISION FOR SUBMISSION & APPROVAL PROPOSED MUNICIPAL COUNCIL BUILDING AT S.NO. 534 P, C.T.S. NO. 4751, TALEGAON DABHADE,TAL-MAVAL,DIST-PUNE. MUNICIPAL COUNCIL,TALEGOAN JOB NO 1 3 CHIEF OFFICER 1. AREA OF PLOT AS PER DEMARCATION LOADING/UNLOADING REQUIRD (A) PERMISSIBLE (D) TOTAL PARKING PROVIDED CYCLE (C) GARAGES PROPOSED C. F.S.I. (AS PER B(C) BELOW) (c) ANY RESERVATION 5. NET AREA OF PLOTS PLOT (b) PROPOSED ROAD (DP) 2. DEDUCTIONS FOR 7. TOTAL AREA(5+6) *8
*9. PERMISSIBLE
A.
3. GROSS
CAR (a)
12. EXCESS
(B)
CAR PERMISSBLE
D.
*14.
PER
11.
(A)
10.
*13.
AREA CALCULATION FOR MAZZENINE
NORMAL F.S.I PERMISSBLE+F.S.I
BUILT-UP AREA
SQ.M.
AREA OF PLOT(1-2) 4.
ROAD ROAD ACQUISITION AREA
BALCONY AREA TAKEN IN SCOOTER/MOTAR CYCLE
GARAGES PERMISSIBLE
WITH PAYMENT OF
*E
F.S.I. CONSUMED (13/7)
FLOOR (TOTAL A+B+C)
PROPOSED BUILT-UP AREA B.
PARKING REQUIRD
EXISTING BUILT AREA.
TOTAL BUILT-UP AREA(10+11+12)
ADDITION OF AREA FOR F.S.I.,IF ANY (C) (B) (A) FLOOR
EXCESS BALCONY AREA (TOTAL)
PROPOSED TO BE UTILISED CYCLE SCOOTER/MOTAR CYCLE TOTAL LOADING/UNLOADING REQUIRD
PETPERMISSIBLE BALCONY AREA
PROPOSED BALCONY AREA PER
AREA OF PLOT AS PER PRC 4937.90 MINIMUM AREA CONSIDERED 4765.13 AREA UNDER CHAMPER 12.12 REMEANING PLOT AREA 4753.01 500.00 168.00 360.00 *CERTIFICATE OF AREA LICENSED ENGINEER/STRUCTURAL SIGNATURE OF ARCHITECT/

SCHEDULE

WINDOW DOOR

D1 0.92 X 2.40 D2 1.10X 2.40

W8 3.00X 1.50

V1 0.6X 0.6 CHIEF OFFICER

BASEMENT PARKING BASEMENT PARKING NATURAL SLOP LIFT HEALTH TAX ESTABLISHMENT NAGAR RACHNA CABINS CHAIRMENS CABIN VICE CHAIRMENS CABIN PASSAGE PASSAGE PASSAGE PASSAGE PASSAGE PLINTH LEVEL +1.2M SECOND FLOOR LEVEL +4.9M +9.1M +13.0M FIRST FLOOR LEVEL TERRACE LEVEL 3.81 3.81 2.90 3.81 3.81 15.24 3.81 3.81 3.81 18.29 TERRACE TERRACE GL GL +16.9M TERRACE LEVEL 3.81 4.11 4.90 BASEMENT PARKING STORE ROOM TAX WOMENS TOILET ESTABLISHMENT CABINS WOMENS TOILET WOMENS TOILET +13.0M +19.00M PLINTH LEVEL +1.2M SECOND FLOOR LEVEL +4.9M +9.1M ROOF LEVEL TERRACE LEVEL FIRST FLOOR LEVEL 3.81 3.81 3.81 11.43 3.81 3.81 3.81 TERRACE 1.22 GL LOWER GROUND FLOOR PLINTH LEVEL +0.6M GL 28.57 28.58 10.50X9.25 WATER DEPARTMENT 8.55X9.60 HEALTH DEPARTMENT 7.45X11.45 TAX DEPARMENT 8.76X13.25 BANK DEPARTMENT 5.40X9.30 INWARD OUTWARD 4.50X5.30 PANTRY 9.80X14.25 RECEPTION LOBBY 2.00 WIDE PASSAGE W1 D1 2.55X3.00 STORAGE FIRE STAIRCASE NATURAL SLOP BUILDING LINE UP UP BANK ENTRANCE ENTRANCE PORCH 42.72 42.72 2.45 3.66 GROUND FLOOR PLAN SCALE 1:200 15.46 4.19 6.07 13.63 8.14 2.06 11.02 2.92 3.26 4.30 2.44 6.12 15.46 9.33 1.50 16.19 2.86 9.53 13.63 3.66 8.95 3.40X3.55 FEMALE TOILET 3.40X5.30 MALE TOILET 1.60X1.73 LIFT 1.60X1.73 LIFT 1.60X1.83 ELECTRIC ROOM R=0.15 T=0.30 14131211 2425262728 22 21 15161718 R=0.15 T=0.30 1.22 1.68 PLINTH LEVEL +1.2M SECOND FLOOR LEVEL +4.9M +9.1M +13.0M +19.00M FIRST FLOOR LEVEL TERRACE LEVEL ROOF LEVEL GL 4.19 13.63 LOWER GROUND FLOOR PLAN 7 4 9 6 5 3 2 23 28 30 31 32 18 4 5 8 10 12 13 14 15 19 20 21 22 SCALE 1:200 29 7.70X14.40 LOBBY 33 34 35 36 37 38 39 40 24 25 10.00X10.20 STORE ROOM 10.20X10.50 RECORD ROOM 43.26 10.49 32.77 21.38 10.49 7.71 42.78 28.57 1.60X1.73 LIFT 1.60X1.73 LIFT 1.60X1.83 ELECTRIC ROOM 8 10 12 13 14 15 16 17 19 20 21 22 23 2 3 16 17 18 26 41 42 43 44 45 46 47 48 49 50 51 52 NATURAL SLOP NATURAL SLOP R=0.15 T=0.30 FIRE STAIRCASE R=0.15 T=0.30 1.50X1.80 TOILET 1.50X1.80 TOILET PLINTH LEVEL +1.2M SECOND FLOOR LEVEL +4.9M +9.1M +13.0M FIRST FLOOR LEVEL TERRACE LEVEL +19.00M ROOF LEVEL GL SCALE DATE DRAWN BY CHECKED BY SHEET NO. NISHIT ARCHITECTS: FOR 'TALEGAON DABHADE MUNICIPAL COUNCIL 10.12.20 S.UNWALA ADMINISTRATOR BLDG AR. SHABBIR UNWALA CA/1988/11512 OWNER'S SIGNATURE: FOR SUBMISSION & APPROVAL DRAWING STATUS: 13, WORKSHOP DWELL, VAJIHI CO-OP HOUSING SOCIETY, KHAKKAR MARG, LONAVLA, 410401 Ph: 02114-275462,273157 Email:contact@designworkshop.co AS SHOWN C 2018 COPYRIGHT DRAWINGS ISSUED FOR: ALL DRAWINGS AND WRITTEN MATERIAL APPEARING HEREIN CONSTITUTE ORIGINAL AND UNPUBLISHED WORK OF THE ARCHITECTS 'DESIGN WORKSHOP'. AND MAY NOT BE DUPLICATED, USED OR DISCLOSED WITHOUT THE WRITTEN CONSENT OF THE ARCHITECTS. ADVANCE COPY OFFICE RECORD EXECUTION ON SITE STRUCTURAL DESIGN MUNICIPAL SUBMISSION TENDER DRAWINGS DWG TITLE: BUILDING: PROJECT: REVISION FOR SUBMISSION & APPROVAL PROPOSED MUNICIPAL COUNCIL BUILDING AT S.NO. 534 P, C.T.S. NO. 4751, TALEGAON DABHADE,TAL-MAVAL,DIST-PUNE.
MUNICIPAL CORPORATION,TALEGOAN
W1 1.50X 1.50 W2 5.50X 1.50 W3 7.30X 1.50 W4 6.40X 1.50 W5 2.70X 1.50 W6 11.00X 1.50 W7 4.60X 1.50 JOB NO 2 3
D3 .70X 2.40 STAMP OF APPROVAL LAYOUT
2003- Maval Development
• Designing
Making Architectural Drawings
Sheeet Rendering • 3d Rendering • Resolving Structure
Lonavala Hospital Work Done
6.08 10.00 ENTRANCE LOBBY WAITING 12.50 16.40 6.00 X 3.00 E.O.G 6.00 4.85 OFFICE 6.00 X 3.15 OPTHO ROOM AYUSH/ UNANI ROOM 6.00 3.00 PREPARATION ROOM 6.00 6.27 NURSES STATION MEDICINE STORE CLEAN UTILITY 3.00 4.80 POST-OPERATION ROOM 6.00 X 6.30 3.00 WIDE PASSAGE SEMI-STERILE ZONE MEDICINE STORE CLEAN UTILITY/ 3.00 3.10 TOILET NURSES STATION PANTRY 3.15 3.00 NURSES STATION PANTRY 3.00 3.00 NURSES STATION MEDICINE STORE CLEAN UTILITY 3.00 X 3.00 MEDICINE STORE CLEAN UTILITY NURSES STATION 3.00 3.00 DOCTORS ROOM 3.85 4.90 NURSING STAFF 3.08 X 4.97 RECORD ROOM 6.00 X 7.90 ADMIN AND STAFF AREA 6.00 6.30 WASH ROOM(UTENSILS) 7.00 3.00 GROUND LEVEL +00M FIRST LEVEL +4.60M SECOND LEVEL +8.60M THIRD LEVEL +12.60M FOURTH LEVEL +16.60M ROOF
SECTION AA' 30 AP 01 VOID VOID VOID 6.00 3.00 DOCTOR'S ROOM 18 SQ.M 3M WIDE PASSAGE 6.50 X 6.23 AUTOPSY ROOM 40.49 SQ.M TWO WHEELER PARKING 44 NO. FOUR WHEELER PARKING NO.12 6.00 3.00 MINOR O.T 18 SQ.M 14.77 6.00 CASUALTY WARD 88.62 SQ.M 20.60 0.60 4.00 4.00 4.00 4.00 4.00 0.53 3.85 1.05 3.85 3.85 3.85 3.85 1.75 20.60 16.00 20.00 12.15 3.85 3.85 3.85 3.85 1.05 3.85 3.85 D1 W3 W3 W1 W14 W19 D2 W25 W5 W32 W5 W5 D6 W8 W8 W8 W3 W3 W1 D1 W27 W23 W18 W18 W18 W6 W6 W7 W7 ENTRY ENTRANCE LOBBY WAITING 12.50 16.40 205 SQ.M. 3M WIDE PASSAGE 6.18 3.00 METRON 3.00 WIDE PASSAGE 3.00 3.00 STAFF (FEMALE) CHANGING ROOM 3.00 WIDE PASSAGE STORE ROOM 6.00 3.00 3.00 WIDE PASSAGE STAFF REST ROOM 6.18 3.00 3.00 M WIDE PASSAGE RECORD ROOM 6.35 10.25 6.20 X 9.25 ORTHO WARD SECTION BB' 31 AP 01 VOID VOID GROUND LEVEL +00M FIRST LEVEL +4.60M SECOND LEVEL +8.60M THIRD LEVEL +12.60M FOURTH LEVEL +16.60M ROOF LEVEL +20.60M PLINTH LEVEL +0.60M W27 W18 D1 W6 W6 W6 W7 W7 W2 W5 W2 W1 0.60 4.00 4.00 4.00 4.00 4.00 9.85 17.65 21.89 1.23 3.85 3.85 10.46 2 - WHEELER PARKING DOCTOR'S ROOM 3.20 3.00 9.60 SQ.M. 3M WIDE PASSAGE CT SCAN 9.62 6.00 3.00 WIDE PASSAGE 7.10 9.25 P.N.C. WARD EQUIPMENT STORE 3.35 3.00 4.95 X 3.00 COUNSELING ROOM 3.00 WIDE PASSAGE COUNSELING ROOM EQUIPMENT STORE 4.90 3.00 3.35 3.00 3.00 WIDE PASSAGE NURSING STAFF 4.90 6.25 3.00 M WIDE PASSAGE SECTION CC' 32 AP 01 GROUND LEVEL +00M FIRST LEVEL +4.60M SECOND LEVEL +8.60M THIRD LEVEL FOURTH LEVEL +0.60M +20.60M +12.60M ROOF LEVEL +16.60M PLINTH LEVEL W23 W10 W11 D1 4.00 4.00 4.00 4.00 4.00 24.60 0.60 4.00 4.00 4.00 4.00 4.00 4.00 1.70 3.85 6.28 3.85 C 2018 COPYRIGHT REVISIONS: DRAWINGS ISSUED FOR: SIGN 13, WORKSHOP DWELL, VAJIHI CO-OP HOUSING SOCIETY, KHAKKAR MARG, LONAVLA, 410401 Ph: 02114-275462,273157 Email:contact@designworkshop.co LONAVALA HOSPITAL SECTIONS ALL DRAWINGS AND WRITTEN MATERIAL APPEARING HEREIN CONSTITUTE ORIGINAL AND UNPUBLISHED WORK OF THE ARCHITECTS 'DESIGN WORKSHOP'. AND MAY NOT BE DUPLICATED, USED OR DISCLOSED WITHOUT THE WRITTEN CONSENT OF THE ARCHITECTS. DATE OF ISSUE: LONAVALA HOSPITAL 2003- MAVAL DEVELOPMENT 2003-MAVAL DEVP. GENERAL NOTES: 1.ALL THE DIMENSIONS ARE IN METRIC UNLESS OTHERWISE NOTED. 2.ALL DIMENSIONS ARE FROM UNFINISHED SURFACE TO UNFINISHED SURFACE UNLESS OTHERWISE NOTED 3.THE DRAWING SHALL NOT BE SCALED. ONLY WRITTEN DIMENSIONS SHALL BE FOLLOWED. THE CONTRACTOR SHALL REQUEST, FROM THE ARCHITECT, NECESSARY DIMENSIONS NOT SHOWN ON THE DRAWINGS. 4.ALL FINISHES ARE AS PER DETAILS & SPECIFICATIONS. 5.ALL LEVELS ARE WITH REFERENCE TO BENCH MARK AS ESTABLISHED ON THE SITE.i.e.TOP OF CENTER OF ADJOINING ROAD 6.THE CONTRACTOR SHALL CHECK AND VERIFY ALL LEVELS, DATUMS AND DIMENSIONS ON SITE AS PER ARCHITECTURAL DRAWINGS AND SHALL REPORT ANY DISCREPANCIES OR OMISSIONS TO THE ARCHITECT, PRIOR TO START OF WORK DURING THE CONSTRUCTION PHASE 7.ARCHITECTURAL DRAWING TO BE READ AND UNDERSTOOD IN CONJUNCTION WITH WITH DETAILS,LARGE SCALE DRAWINGS STRUCTURAL, ELECTRICAL,PLUMBING,AND ANY OTHER CONSULTANT/S DOCUMENTATION. AS MAY BE APPLICABLE TO THE PROJECT PRIOR TO START OF WORK & IT'S DURATION 8.ALL LARGE SCALE DETAILED DRAWINGS SHALL SUPERSEDE SMALLER SCALE DRAWINGS AND NOTES. 9.R.C.C WORK LIKE COLUMNS,BEAMS ARE NOT TO BE CHISSELED/BROKEN FOR: a) LIFT INSTALLATION b) PLUMBING SANITATION c) ELECTRICAL CONDUITING d) LEVELLING OF SURFACES e) ANY OTHER PROJECT: BUILDING: DWG TITLE: 07.01.21 MUNICIPAL SUBMISSION STRUCTURAL DESIGN ADVANCE COPY OFFICE RECORD EXECUTION ON SITE TENDER DRAWINGS REV.NO: DATE: REVISED FOR: PROJECT NO. SCALE DATE NORTH AS SHOWN 07.01.21 AS SHOWN DEALT BY CHKED BY DRG No. SHEET No. 1 1 AP 30,31,32 S.UNWALA NISHIT
LEVEL +20.60M PLINTH LEVEL +0.60M
3'X3' MANHOLE WITH C.I. COVER RCC
SLOPE Opening 1'6"X1'6" 3'-4" INLET 9" 2' 4" 3' 9" 4" THK. BRICK
9" BRICK WALL BOTH SIDE PLASTERED WITH WATER PROOFING MATERIAL 6" Ø SWG INLET PIPE OUTLET 9" 7' 9" 9" 3' 4" 6" Ø SWG OUTLET PIPE 6' 6' 0.10 Ø VENT PIPE 0.10Ø SWG
HONEYCOMB BRICK WORK BRICK BATS BRICK
BRICK WORK 5'-4" 4" 8'-6" 11'-6" 3'-6 3 4 1'-6" 1'-6 1 4 2'-1 5 8 6" 1' 4'-0 3 4 " 5' PCC (1:4:8) 9"
4.5"
SCALE 3/8" = 1'-0" PLAN OF SEPTIC-TANK 00 ST 01 SCALE 3/8" = 1'-0" PLAN 00 ST 01 SCALE 3/8" = 1'-0" LONGITUDINAL SECTION 30 ST 01 SCALE 3/8" = 1'-0" SECTION SOAK
DETAIL 31 ST 01 GENERAL NOTES: 1.ALL THE DIMENSIONS ARE IN METRIC UNLESS OTHERWISE NOTED. 2.ALL DIMENSIONS ARE FROM UNFINISHED SURFACE TO UNFINISHED SURFACE UNLESS OTHERWISE NOTED 3.THE DRAWING SHALL NOT BE SCALED. ONLY WRITTEN DIMENSIONS SHALL BE FOLLOWED. THE CONTRACTOR SHALL REQUEST, FROM THE ARCHITECT, NECESSARY DIMENSIONS NOT SHOWN ON THE DRAWINGS. 4.ALL FINISHES ARE AS PER DETAILS & SPECIFICATIONS. 5.ALL LEVELS ARE WITH REFERENCE TO BENCH MARK AS ESTABLISHED ON THE SITE.i.e.TOP OF CENTER OF ADJOINING ROAD 6.THE CONTRACTOR SHALL CHECK AND VERIFY ALL LEVELS, DATUMS AND DIMENSIONS ON SITE AS PER ARCHITECTURAL DRAWINGS AND SHALL REPORT ANY DISCREPANCIES OR OMISSIONS TO THE ARCHITECT, PRIOR TO START OF WORK & DURING THE CONSTRUCTION PHASE 7.ARCHITECTURAL DRAWING IS TO BE READ AND UNDERSTOOD IN CONJUNCTION WITH WITH DETAILS,LARGE SCALE DRAWINGS STRUCTURAL, ELECTRICAL,PLUMBING,AND ANY OTHER CONSULTANT/S DOCUMENTATION. AS MAY BE APPLICABLE TO THE PROJECT PRIOR TO START OF WORK & IT'S DURATION 8.ALL LARGE SCALE DETAILED DRAWINGS SHALL SUPERSEDE SMALLER SCALE DRAWINGS AND NOTES. 9.R.C.C WORK LIKE COLUMNS,BEAMS ARE NOT TO BE CHISSELED/BROKEN FOR: a) LIFT INSTALLATION b) PLUMBING & SANITATION c) ELECTRICAL CONDUITING d) LEVELLING OF SURFACES e) ANY OTHER REVISIONS: DRAWINGS ISSUED FOR: SIGN 13, WORKSHOP DWELL, VAJIHI CO-OP HOUSING SOCIETY, KHAKKAR MARG, LONAVLA, 410401 Ph: 02114-275462,273157 Email:contact@designworkshop.co ALL DRAWINGS AND WRITTEN MATERIAL APPEARING HEREIN CONSTITUTE ORIGINAL AND UNPUBLISHED WORK OF THE ARCHITECTS 'DESIGN WORKSHOP'. AND MAY NOT BE DUPLICATED, USED OR DISCLOSED WITHOUT THE WRITTEN CONSENT OF THE ARCHITECTS. DATE OF ISSUE: PREMAL PARIKH 2009-PREMAL PARIKH DATE: REVISED FOR: REV.NO: ADVANCE COPY STRUCTURAL DESIGN MUNICIPAL SUBMISSION TENDER DRAWINGS EXECUTION ON SITE OFFICE RECORD DWG TITLE: BUILDING: PROJECT: C 2018 COPYRIGHT SCALE PROJECT NO. AS SHOWN 19.11.20 DATE NORTH AS SHOWN DRG No. SHEET No. 1 1 ST 00 S.UNWALA CHKED BY DEALT BY NISHIT 27.05.19 SEPTIC TANK & SOAK PIT SEPTIC TANK & SOAK PIT Septic Layout
SLAB
WALL
INLET PIPE
BATS HONEYCOMB
THK. BRICK WALL
THK. BRICK WALL DISCONNECTION CHAMBER
OIT

6" THK CAST IN-SITU M20 (1:1.5:3) R.C.C SLAB EXCAVATION LINE

EXCAVATION LINE

6" THK CAST IN-SITU M20 (1:1.5:3) R.C.C SLAB

6" THK CAST IN-SITU M20 (1:1.5:3) R.C.C PARDI

19' 14'

3" THK BOX WATERPROOFING

6" THK CAST IN-SITU M20 (1:1.5:3) R.C.C PARDI

3" THK BOX WATERPROOFING 00 ST B

CONSOLIDATED MURUM BACKFILLING

3" THK BOX WATERPROOFING

6" THK CAST IN-SITU M20 (1:1.5:3) R.C.C SLAB 9" THK RUBBLE SOLING

00 ST B 00 ST A 00 ST A

16' 11' 18'

10'

11'

14'

15'

15'

15' 10' 16'

18' 13' 19'

SCALE 1/4" = 1'-0" BOTTOM PLAN OF UG TANK 00 ST 01

6" 6'

15' 6"

1'

19' 14' 00 ST B

18' 13' 19'

14'

15'

18'

00 ST B 00 ST A 00 ST A SCALE 1/4" = 1'-0"

CONSOLIDATED MURUM BACKFILLING

3" THK BOX WATERPROOFING

TOP PLAN OF UG TANK 00 ST 01 1'-6"

6" 6' 6" 1'

6" THK CAST IN-SITU M20 (1:1.5:3) R.C.C SLAB 9" THK RUBBLE SOLING

SCALE 1/4" = 1'-0" SECTION A-A 00 ST 01 SCALE 1/4" = 1'-0" SECTION B-B 00 ST 01

T8Ø @
T8Ø
T8Ø @ 6"
T10Ø @ 6" c/c T10Ø @
T8Ø @ 12" c/c T10Ø @ 6" c/c T8Ø @ 8" c/c
8" c/c
@ 12" c/c
c/c
8" c/c
T8Ø
T8Ø
T8Ø
T10Ø
T8Ø @ 12" c/c T10Ø @ 6" c/c T8Ø @ 12" c/c T8Ø @ 8" c/c
@ 8" c/c
@ 12" c/c
@ 6" c/c
@ 6" c/c T10Ø @ 8" c/c
DATE OF PLOT : GENERAL NOTES: 1.ALL THE DIMENSIONS ARE IN METRIC UNLESS OTHERWISE NOTED. 2.ALL DIMENSIONS ARE FROM UNFINISHED SURFACE TO UNFINISHED SURFACE UNLESS OTHERWISE NOTED 3.THE DRAWING SHALL NOT BE SCALED. ONLY WRITTEN DIMENSIONS SHALL BE FOLLOWED. THE CONTRACTOR SHALL REQUEST, FROM THE ARCHITECT, NECESSARY DIMENSIONS NOT SHOWN ON THE DRAWINGS. 4.ALL FINISHES ARE AS PER DETAILS & SPECIFICATIONS. 5.ALL LEVELS ARE WITH REFERENCE TO BENCH MARK AS ESTABLISHED ON THE SITE.i.e.TOP OF CENTER OF ADJOINING ROAD 6.THE CONTRACTOR SHALL CHECK AND VERIFY ALL LEVELS, DATUMS AND DIMENSIONS ON SITE AS PER ARCHITECTURAL DRAWINGS AND SHALL REPORT ANY DISCREPANCIES OR OMISSIONS TO THE ARCHITECT, PRIOR TO START OF WORK & DURING THE CONSTRUCTION PHASE 7.ARCHITECTURAL DRAWING IS TO BE READ AND UNDERSTOOD IN CONJUNCTION WITH WITH DETAILS,LARGE SCALE DRAWINGS STRUCTURAL, ELECTRICAL,PLUMBING,AND ANY OTHER CONSULTANT/S DOCUMENTATION. AS MAY BE APPLICABLE TO THE PROJECT PRIOR TO START OF WORK & IT'S DURATION 8.ALL LARGE SCALE DETAILED DRAWINGS SHALL SUPERSEDE SMALLER SCALE DRAWINGS
NOTES. 9.R.C.C WORK
FOR:
PLUMBING
ELECTRICAL CONDUITING
LEVELLING
SURFACES e) ANY OTHER REVISIONS: DRAWINGS ISSUED FOR: SIGN 13, WORKSHOP DWELL, VAJIHI CO-OP HOUSING SOCIETY, KHAKKAR MARG, LONAVLA, 410401 Ph: 02114-275462,273157 Email:contact@designworkshop.co STRUCTURAL DRAWING FOR UG TANK ALL DRAWINGS AND WRITTEN MATERIAL APPEARING HEREIN CONSTITUTE ORIGINAL AND UNPUBLISHED WORK OF THE ARCHITECTS 'DESIGN WORKSHOP'. AND MAY NOT BE DUPLICATED, USED OR DISCLOSED WITHOUT THE WRITTEN CONSENT OF THE ARCHITECTS. DATE OF ISSUE: 16.09.20 2009-PREMAL PARIKH DATE: REVISED FOR: REV.NO: ADVANCE COPY STRUCTURAL DESIGN MUNICIPAL SUBMISSION TENDER DRAWINGS EXECUTION ON SITE OFFICE RECORD DWG TITLE: BUILDING: PROJECT: C 2018 COPYRIGHT SCALE PROJECT NO. AS SHOWN 19.11.20 DATE NORTH AS SHOWN DRG No. SHEET No. 1 1 ST 00 S.UNWALA CHKED BY DEALT BY NISHIT PREMAL PARIKH RESIDENCE 19.11.20 UGT Layout
AND
LIKE COLUMNS,BEAMS ARE NOT TO BE CHISSELED/BROKEN
a) LIFT INSTALLATION b)
& SANITATION c)
d)
OF

2009- Beze
Cottage - Option 1
Work Done • Designing
• Making Architectural Drawings
Sheeet Rendering
3d Rendering
Resolving Structure.
2009- Beze Cottage
Option 2
Architectural
-
Work Done • Designing • Making
Drawings
Rendering
• Sheeet
Rendering
• 3d
• Resolving Structure.

Resort Work Done:

• Sheet Rendering.

• Resolving Structure.

2009- Kalamkar

Resort Work Done • 3d Rendering

2009- Natures Paradise
2009- Atul Barot Resort Work Done • Designing • Making Architectural Drawings • Sheeet Rendering • 3d Rendering • Resolving Structure •Concept Drawings EVOLUTION OF COTTAGE B EVOLUTION OF COTTAGE C EVOLUTION OF COTTAGE D STAGGERING OF MASS TWISTING BOTTOM FLOOR CHANGING THE AXISES FROM VERTICAL TO HORIZONTAL STAGGERING OF MASS TO ACHIEVE TERRACE GARDEN ON VIEW SIDE TWISTING BOTTOM FLOOR CREATING TERRACE GARDEN ON VIEW SIDE CHANGING AXISES CREATES TERRACE GARDEN AT VIEWING SIDE PARTITION WALL FOR CREATING PRIVERCY PARTITION WALL FOR CREATING PRIVERCY PARTITION WALL FOR CREATING PRIVERCY FINAL FORM FINAL FORM FINAL FORM

Turn static files into dynamic content formats.

Create a flipbook
Issuu converts static files into: digital portfolios, online yearbooks, online catalogs, digital photo albums and more. Sign up and create your flipbook.