Дадлага - Зураг төсөл

Page 1

Шинжлэх ухаан, технологийн их сургууль

Барилга архитектурын сургууль

Инженерийн байгууламжийн салбар АВТО ЗАМЫН БАРИЛГЫН ИНЖЕНЕР ЗУРГИЙН ТӨСЛИЙН ДАДЛАГА
УДИРДСАН БАГШ ОЮУТАН С.АМАРБУЯН Д.НИНЖБАДАМ (B201350904) 2023 он
(A.RB394)

Агуулга

- 2 -
“Аварга зам” ХХК-ийн тухай товч танилцуулга...............................................................................................................4 1. Дадлагын зорилго, зорилт 5 2. Зураг төслийн дадлага гүйцэтгэсэн тухай 5 ЗУРАГ ТӨСЛИЙН КОМПАНИЙН ЧИГ ҮҮРЭГ судалсан нь ..................................................................................................5 ЭРХ ЗҮЙН БАРИМТ БИЧГИЙН СУДАЛГАА хийсэн нь 5 АВТО ЗАМ, ЗАМЫН БАЙГУУЛАМЖИЙН ЗУРАГ ТӨСӨЛ БОЛОВСРУУЛАХ ПРОЦЕСС судалсан нь 6 Зураг төслийн иж бүрэн материалтай танилцсан нь..................................................................................................8 Бусад хийж гүйцэтгэсэн ажлууд 9 3. Ном зүй 9 4. Дүгнэлт................................................................................................................................................................................................9 5. Өдрийн тэмдэглэл ба зураг схем 10 III/06-08: 10 III/09-10: ..............................................................................................................................................................................................10 III/15-16: 11 III/17-18: 11 III/19-20: ...............................................................................................................................................................................................11

- ТАЛАРХАЛ -

Авто зам, замын инженерийн байгууламжийн зураг төслийн салбарт тогтвортой 22 дахь жилдээ үйл ажиллагаа явуулж буй шилдэг компани болох

Монгол Улсын Зөвлөх инженер Г.Чинтөгс захиралтай “Аварга зам” ХХК-ийн

хамт олонд, энэхүү мэргэжлээр суралцаж буй оюутан надад онол болон

практикийн мэдлэг туршлага хуримтлуулах боломжоор хангасан явдалд

гүн талархаж буйгаа илэрхийлье.

Ялангуяа Авто замын төлөвлөлт хийх онолын болоод практик зөвлөмжөөр

тогтмол хангаж, IndorCAD, IndorPavement гэх мэт системүүдийг хэрхэн

ашиглах талаар зааж сургасан, мөн цэвдэгтэй хөрсөнд авто зам төсөллөх талаар мэдлэг туршлагаа харамгүй хуваалцсан Монгол Улсын Зөвлөх инженер, компанийн Ерөнхий инженер С.Батсүхэд тусгайлан талархаж байна.

Мөн дадлагын явцад зөвлөж, чиглүүлж ажилласан Геодезийн инженер Э.Батболд, Гүүр хоолойн мэргэшсэн инженер М.Мөнх-Оргил нартаа БАЯРЛАЛАА.

- 3 -
~~o0o~~

“АВАРГА ЗАМ” ХХК-ИЙН ТУХАЙ ТОВЧ ТАНИЛЦУУЛГА

Тус компани нь 2002 онд байгуулагдаж, үүссэн цагаасаа Авто замын салбарт тогтвортой, амжилттай үйл ажиллагаа явуулж буй Үндэсний зөвлөх үйлчилгээний компани юм.

Компанийн үйл ажиллагааны үндсэн чиглэл Авто зам, гүүр, аеродромын хайгуул, зураг төсөл

шинжилгээ судалгаа, Зөвлөхийн хяналтын үйлчилгээ, Геодезийн байрзүйн зураглал, хэмжилт хийх боловсруулах юм.

Зураг төсөл боловсруулсан болон хяналт хийсэн авто зам, инженерийн байгууламжийн тоон

үзүүлэлтийг харуулбал:

Замын урт ТЭЗҮ Төмөрбетон гүүр Аеродромын зураг Зөвлөхийн хяналт

Тус компани нь гүйцэтгэх захирал МУ-н зөвлөх инженер Г.Чинтөгс, Зөвлөх МУ-ын зөвлөх инженер, ТУны доктор У.Пүрэвжав, Ерөнхий инженер, МУ-ын зөвлөх инженер С.Батсүх, Гүүр хоолойн мэргэшсэн

инженер М.Мөнх-Оргил тэргүүтэй 10 гаруй инженер техникийн ажилтнуудтай үйл ажиллагаа явуулж байна.

Тус компани гадаад, дотоодын мэргэжлийн байгууллагуудтай хамтын ажиллагаа, харилцаа холбоотой ажилладаг. Тухайлбал:

Гадаад: Австралийн Зөвлөх “SMEC Mongolia”, Германы Зөвлөх “Lahmeyer International”, “Decon”, Канадын “SNC-LAVALIN International Inc”, Австралийн "Leightonasia" LLC, Францын “Egis international” Ink гэх мэт. Дотоод: Монголын “MSC”, “MONNIS” групп, “Гео-Үндэс” ХХК, “Топ Сүрвэй” ХХК, “Энх-Өрнөлт” ХХК, “Гурван Тэс” ХХК, “Гидрофонтан” ХХК, “Арбэл-Алтай” ХХК, “Дукат” ХХК г.м

Үзүүлж буй үйлчилгээ: ❖ Авто замын зураг төсөл, Зөвлөх үйлчилгээ ❖ Гүүрийн зураг төсөл, Зөвлөх

үйлчилгээ ❖ Аэродромын зураг төсөл, Зөвлөх үйлчилгээ ❖ Техник эдийн засгийн үндэслэлийн судалгаа ❖ Геодези, байрзүйн зураглал ❖ Хяналтын Зөвлөх үйлчилгээ ❖ Зохиогчийн хяналт ❖ Авто зам, гүүрийн ашиглалтын судалгаа ❖ Авто зам, гүүрийн шинэчлэлт, засварын судалгаа ❖ Ус зайлуулах байгууламжийн зураг ❖ Үерийн хамгаалалтын байгууламжийн зураг ❖ Хөдөлгөөн зохион байгуулалтын судалгаа ❖ Норм дүрэм стандарт боловсруулалт

- 4 -
3000км+ 500км+ 1200м+ 3ш 300км+

1. ДАДЛАГЫН ЗОРИЛГО, ЗОРИЛТ Энэхүү дадлагын ажлын зорилго нь: Оюутан дадлагын ажлын төлөвлөгөөний дагуу дадлага удирдагч багшийн тусламжтайгаар мэргэжлийн хичээлүүдийг үзэж судалсны үндсэн дээр оюутны авсан онолын

мэдлэгийг практикт бататган авто замын эрэл хайгуулын ажлын бүтэц, зохион байгуулалт, зам-цаг

уур, геодези, инженер геологи, гидрогеологийн судалгаа, авто замын зураг төсөл боловсруулалт, замын барилгын ажлын тоо хэмжээний тооцоо, авто замын төсөвт өртөг боловсруулалт, зураг төслийг захиалагчид хүлээлгэн өгөх, магадлан шинжлэх үйл ажиллагаатай танилцаж, авто замын зураг төсөл боловсруулах дадал эзэмшүүлэхэд оршино.

Харин энэхүү зорилгыг хангах хүрээнд миний бие дараах зорилтуудыг тавьсан болно. Үүнд:

1. Зураг төслийн компанийн чиг үүрэг, процессыг ойлгох;

2. Ажлын зураг, төсөв хийхэд гар бие оролцох;

3. Авто замын эрх зүйн баримт бичиг, норм нормативын сантай болох;

4. Авто замын төлөвлөлт хийхэд суралцах, тооцоо болон зураглалын системүүдээ хангалттай

ашиглаж сурах;

5. Мөнх цэвдэгтэй бүс нутагт авто зам төсөллөх талаарх судлах;

6. Компанийн ажилтнуудтай танилцах, салбарын талаарх мэдлэгээ өргөжүүлэх зэрэг болно.

2. ЗУРАГ ТӨСЛИЙН ДАДЛАГА ГҮЙЦЭТГЭСЭН ТУХАЙ Миний бие Авто зам, замын байгууламжийн зураг төслийн дадлагыг “Аварга зам” ХХК-д III/06-20-ны

хооронд Ерөнхий инженер С.Батсүх, Гүүр хоолойн инженер М.Мөнх-Оргил, Геодезийн инженер Э.Батболд нарын удирдлага, чиглүүлэг дор хийж гүйцэтгэсэн болно.

ЗУРАГ ТӨСЛИЙН КОМПАНИЙН ЧИГ ҮҮРЭГ СУДАЛСАН НЬ

Зураг төслийн зөвлөх үйлчилгээ үзүүлэгч компаниуд Авто зам, замын байгууламжийн тусгай

зөвшөөрлийн хүрээнд дараах үндсэн чиглэлийн үйл ажиллагаа явуулж байна.

Техник - Эдийн засгийн үндэслэл (ТЭЗҮ)

Иж бүрэн зураг, төсөв боловсруулах

Зөвлөхийн хяналт хийх

боловсруулах

Судалгаа, шинжилгээ болон бусад холбогдох ажил үйлчилгээ үзүүлэх зэрэг болно.

Компанийн товч танилцуулгад дурдсанчлан “Аварга зам” ХХК нь эдгээр чиг үүргийг бүгдийг хэрэгжүүлдэг болно.

ЭРХ ЗҮЙН БАРИМТ БИЧГИЙН СУДАЛГАА ХИЙСЭН НЬ

• Салбарын хууль: Авто замын тухай хууль г.м 3+ хууль

• Дүрэм журам: Авто зам, замын байгууламжийн зураг төсөлд магадлал хийж, дүгнэлт гаргах; Авто замын салбарын мэргэжилтэй ажилтан бэлтгэх, давтан сургах, мэргэжлийн зэрэг олгох журам г.м 8+ дүрэм журам

• Бодлого хөтөлбөр: Алсын хараа 2050 г.м 2+ бодлого, хөтөлбөр

• Норм норматив: Төлөвлөлт, Угсралт, Арчлалт, Төсөв үнэ бүрдлийн 20+ норм норматив

• Стандарт: 200+ стандарт Эдгээр эрх зүйн баримтуудаар цахим болон

Бүрдүүлсэн баримтын жагсаалтыг хавсралтаас харна уу.

- 5 -
цаасан сан үүсгэж, цаашид ажилдаа ашиглахад хялбар дөхөм болгосон.

АВТО ЗАМ, ЗАМЫН БАЙГУУЛАМЖИЙН ЗУРАГ ТӨСӨЛ БОЛОВСРУУЛАХ ПРОЦЕСС СУДАЛСАН НЬ

Процессын хувьд үндсэндээ Монгол Улсын Авто замын тухай хууль, ЗТХС-н 2018 оны 168 тоот тушаалаар батлагдсан “Авто зам, замын байгууламжийн зураг төсөлд магадлал хийж, дүгнэлт гаргах

журам”-н хүрээнд хийж гүйцэтгэж байна. Энэхүү журмын дагуу үндсэндээ дараах процессын дагуу

ажил явагдана.

• Зураг төсөл боловсруулах үе шат

Зураг төслийг нэг эсвэл хоёр үе шаттай хийж болох бөгөөд нэг үе шаттай зураг төслийг

“Инженерийн нарийвчилсан зураг төсөл”, хоёр үе шаттай зураг төслийг “Техникийн зураг төсөл ба Инженерийн нарийвчилсан зураг төсөл” гэж аж.

Захиалагч байгууллага хэдэн үе шаттай хийхийг “Зураг төсөл боловсруулах ажлын даалгавар”, “Зураг төслийн байгууллагатай байгуулах гэрээ”-нд тусгадаг байна.

• Бэлтгэл ажил

ТЭЗҮ, Инженерийн нарийвчилсан зураг төсөл боловсруулах ажлыг захиалагч тал, хөрөнгө оруулагчийн хамт хариуцаж хийх бөгөөд шаардлагатай тохиолдолд холбогдох зам ашиглагч байгууллага болон аж ахуйн нэгжүүдээс санал авч болно. Энэхүү ажлын даалгаврыг Авто замын асуудал хариуцсан төрийн захиргааны төв байгууллага (Зам, тээврийн хөгжлийн яам…) баталдаг.

• ТЭЗҮ ба Зураг төслийн иж бүрдэл

ТЭЗҮ: Инженерийн судалгааны ажил, Эдийн засгийн судалгааны ажлыг харгалзан “Авто зам төсөллөх”

нормын 3-5 ба 3 дугаар хавсралтад заасны дагуу хийж гүйцэтгэнэ. Энэ хүрээнд:

1. Авто замын нийгэм, ЭЗ-н судалгаа Нийгмийн үр ашиг тооцох

Эдийн засгийн үр ашиг тооцох

ажлуудыг хийж гүйцэтгэх ба бодит тоон үзүүлэлтүүд (хөдөлгөөний эрчмийн судалгаа, хөдөлгөөний эрчмийн хэтийн төлөв, тэнхлэгийн ачааллын судалгаа, тэнхлэгийн ачааллын тооцоо)-ээс гадна мэдрэмжийн дүн шинжилгээ хийдэг.

2. Авто замын байр зүйн хайгуул, судалгаа Урьдчилсан хайгуул судалгаа Авто замын трасс ба хэмжилтийн ажил

Замын трассын хянатын цэгүүд ба тохируулах хүчин зүйлс Геодезийн хэмжилт буюу байр зүйн зураглал хийх Замын тэнхлэгийг эцсийн байдлаар тодорхойлох зэрэг ажлууд багтана.

3. Замын материал ба түүний хайгуул судалгаа Трассын дагуух замын ул хөрсний судалгаа Далан ба суурийн доод үед хэрэглэх материал Хөрс, чулуун материалын орд газрын төсөллөлт ба ашиглалт Геотектил ба хөрс бэхжүүлэгч, Битум, Бетон гэх мэт хиймэл материал зэрэг судалгааны ажлууд энэ бүлэгт хамаарна.

Инженерийн нарийвчилсан зураг төсөл: Зураг төслийн баримт бичгийн иж бүрдэл нь “Авто зам төсөллөх” нормын 8-р хавсралт болон холбогдох норм, дүрэм, стандартын дагуу хийгдсэн байна.

1. Тайлан (Товч тайлан ба судалгааны тайлангууд)

- 6 -

2. Ажлын зураг (Замын тойм дэвсгэр зураг; Трассын нарийвчилсан дэвсгэр зураг; Дагуу огтлол; Хөндлөн огтлол; Газар эзэмших байдлын зураглал; Ус зайлуулах байгууламжуудын тооцоо, нарийвчилсан зураг; Дохио, тэмдэг, тэмдэглэгээ, хамгаалалтын ажлын нарийвчилсан зураг г.м)

3. Үнэ өртөг, зардлын тооцоо зэрэг орно.

• Техникийн шаардлага, Тайлбар бичиг, Төсвийн тооцоо

Техникийн шаардлага: Хэрэгжиж буй төслийн онцлог, газар нутгийн нөхцөл байдал, онцлогт

тулгуурлан Техникийн шаардлагыг төсөл болгонд тусгайлан боловсруулах бөгөөд “Авто зам, замын байгууламжийн барилгын ажлын жишиг техникийн шаардлага” болон бусад холбогдох норм, дүрэм, стандартад нийцсэн байхаар боловсруулна.

Тайлбар бичиг: Төслийн танилцуулга, төсөл хэрэгжүүлэх үндэслэл, байгаль цаг уурын нөхцөл, трасс сонголт, далан ба хучилтын тооцоо, замын хөдөлгөөний аюулгүй байдал, газар олголтын шийдвэр, инженерийн шугам сүлжээний нөхцөл ба шийдэл, мөн зураг төсөл боловсруулахтай холбоотой уулзалт, хурлын тэмдэглэл, албан тоот, акт, ажлын даалгавар, магадлалын ерөнхий дүгнэлт болон бусад зураг төсөл боловсруулахтай холбогдох мэдээллийг багтаасан байна.

Төсвийн тооцоо: Төсөвт өртгийг тодорхойлохын тулд Ажлын тоо хэмжээг тодорхойлох бөгөөд “Авто зам төсөллөх” нормын 7-р хавсралтын дагуу ажлын тоо хэмжээг тооцож, “Авто замын барилгын ажлын төсвийн жишиг норм”, “Төмөр бетон гүүр, хоолойн барилгын ажлын төсвийн жишиг норм”, “Зам, замын байгууламжийн барилга, засварын ажлын төсөв бодох заавар”-ын дагуу Төсөвт өртгийг тооцоолно.

• Зураг төслийн баримт бичиг боловсруулахад тавигдах шаардлага

Зураг төслийг Эрх бүхий байгууллагаас баталсан ажлын даалгавар, газрын зөвшөөрөл, норм нормативын баримт бичиг, стандарт, хэмжилтийн ажлын тайлан, техникийн нөхцөл, инженер хайгуулын судалгаанд үндэслэн боловсруулна.

Инженер-геологи болон геодезийн хэмжилтийн судалгааны тайлангийн бодит байдлыг зургийн байгууллага хариуцдаг байна.

Зураг төслийн байгууллага нь зураг төсөлд техникийн шийдэл шаардсан асуудлыг салбарын Шинжлэх ухаан, техникийн зөвлөлийн хурлаар хэлэлцүүлж, зөвлөмж гаргуулна.

• Зураг төслийг зөвшилцөх

Захиалагч, Хөрөнгө оруулагч нь Зураг төслийн байгууллагатай хамтран Зам, замын байгууламжийн чиглэлийг сонгосон хувилбарын талаар холбогдох төрийн захиргааны төв байгууллага, Тухайн замыг дайран өнгөрч буй Орон нутгийн Засаг захиргаа, бусад холбогдох байгууллагуудтай зөвшилцсөн акт, хурлын тэмдэглэл үйлдэж, тайлбар бичиг хавсаргана.

• Зураг төслийг баталгаажуулах

Тусгай зөвшөөрөл бүхий Зураг төслийн байгууллага өөрийн боловсруулсан зураг төслийн нүүр хуудсанд тэмдэг дарж гарын үсгээр баталгаажуулна.

Авто зам, замын байгууламжийн хайгуул, зураг төслийн баримт бичгийн хуудас бүрд Зураг төслийн байгууллагын дарга, гүйцэтгэсэн болон шалгасан инженер, зургийн ерөнхий инженерүүд гарын үсэг зурж, баталгаажуулсан байна.

- 7 -

• Магадлал хийх

“Авто замын тухай” хуулийн 11 дүгээр зүйлд заасны дагуу Авто замын судалгаа, шинжилгээ, хөгжлийн асуудал эрхэлсэн байгууллага (Авто замын хөгжлийн төв) Авто зам, замын байгууламжийн зураг

төсөлд магадлал хийх ажлыг зохион байгуулна.

Авто зам, замын байгууламжийн зураг төсөлд магадлал хийнэ.

Авто зам, замын байгууламжийн инженерийн шугам сүлжээний нарийвчилсан төсөл

Барилгын ажлын төсөвт өртгийн тооцоо

Инженер-геологийн судалгааны тайлан

Зураг төслийн байгууллагаас магадлал хийлгэхээр ирүүлсэн хүсэлтийг үндэслэн, зураг төслийн

хяналтын хуудасны дагуу хүлээн авч, гэрээ хийнэ. Улмаар магадлал хийх эрх бүхий экспертүүдийг

томилж, экспертүүд магадлал хийн экспертийн дүгнэлт гаргах бөгөөд эдгээр дүгнэлтэд үндэслэн

Магадлалын ерөнхий дүгнэлт гаргана.

Зураг төслийн магадлал хийхээс өмнө Инженер-геологийн дүгнэлт магадлалаар баталгаажсан байна.

Шаардлагатай тохиолдолд магадлалын дүгнэлтийн дагуу холбогдох өөрчлөлт сайжруулалтыг төслийн баримт бичигт тусгуулна.

Магадлалын ерөнхий дүгнэлт нь экспертийн дүгнэлтийг хавсаргаснаар хүчин төгөлдөр болох бөгөөд энэхүү дүгнэлт нь “Авто зам, замын байгууламжийн төлөвлөлт, инженерийн шийдлүүдэд өгөх мэргэжлийн үнэлгээ” байна.

ЗУРАГ ТӨСЛИЙН ИЖ БҮРЭН МАТЕРИАЛТАЙ ТАНИЛЦСАН НЬ Дадлага хийхээр томилогдон ирэхэд тус компани нь “Сэлэнгэ аймгийн Баруунбүрэн – Орхонтуул –Цээл чиглэлийн хатуу хучилттай авто замын зураг төсөв (Сэлэнгэ, Төв)” хийх төслийн ажил ид хийгдээд дуусаж байсан. Энэхүү төсөл нь

• Геодези, байр зүйн зураглалын ажлын тайлан (А4, 98х)

• Инженер-геологийн судалгааны тайлан (А4, 175х)

• Боть I. Тайлбар бичиг (А4, 155х)

• Боть II. Ажлын зураг (А3, 291+170+260=721х)

• Боть III. Техникийн шаардлага (222х) зэргээс бүрдэнэ.

Энэхүү төслийн Ерөнхий гүйцэтгэгчээр “Аварга зам” ХХК ажилласан бөгөөд туслан гүйцэтгэгчээр дараах компаниуд ажилласан болно.

• Инженер-геодези, байр зүйн зураглал – “Топ сүрвэй” ХХК

• Инженер-геологи, материалын судалгаа - “Энх-Өрнөлт” ХХК

• Гэрэлтүүлэг, цахилгаан хангамжийн зураг төсөл - “Арбэл-Алтай” ХХК

Замын трассыг хуучин хөрсөн замуудтай газар дээр нь харьцуулж, судалсны үндсэн дээр дараах байдлаар сонгосон байна.

№ Хэсгийн нэр Замын урт, км Замын ангилал Тайлбар

1. Сэлэнгэ аймгийн БаруунбүрэнОрхонтуул-Цээл хүртэл

2. Төслийн замаас Орхонтуул сум

нутгийн чанартай, хот суурингийн гудамж

- 8 -
107.6 2А – Хрз-ЗХГ-2-80
Улсын чанартай
2.2 2А – Хрз-ЗХГ-2-60 Орон
зам
хүртэл

БУСАД ХИЙЖ ГҮЙЦЭТГЭСЭН АЖЛУУД

• Тайлбар бичгийн форматыг сайжруулах ажлыг хийж гүйцэтгэсэн.

• Техникийн шаардлагад агуулгын бус үг үсгийн техникийн хяналт хийж засварласан.

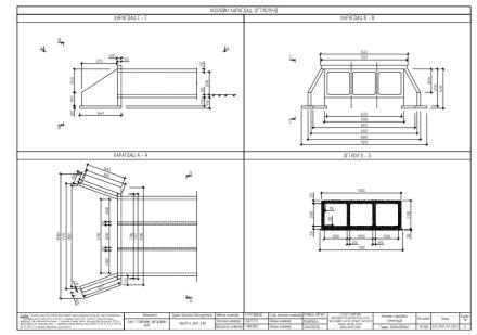
• AutoCAD систем дээр Төмөрбетон хоолойн зураг төслийн форматыг сайжруулах хүрээнд Компанид зориулсан тэмплэйт боловсруулж, 3 нүхтэй дөрвөлжин хоолойн зургийг тэмплэйт-н дагуу сайжруулсан болно.

• Мөн “Аварга зам” ХХК-ийн Ажлын зураг боловсруулах процессыг судлахад тус компани нь IndorCAD, IndorDRAW системийг ашиглаж хурдтай гүйцэтгэх өөрийн аргачлалтай бөгөөд зураг

төсөл нь норм дүрэмд тавьсан шаардлагаас давсан баялаг агуулгатай, авто замыг барих гүйцэтгэгч угсралт гүйцэтгэхэд шаардлагатай өгөгдөл мэдээллийг хангалттай өгдөг гэж

хувьдаа дүгнэсэн. Форматыг цаашид илүү сайжруулж явах талаар санал өгсөн

3. НОМ ЗҮЙ

1. ЗТХС-ын 2018 оны 168 тоот тушаал Авто зам, замын байгууламжийн зураг төсөлд магадлал

хийж, дүгнэлт гаргах журам.

2. ЗЗБНбД 22-004-2016. Авто зам төсөллөх

3. Бусад холбогдох норм ба дүрэм

4. ДҮГНЭЛТ Зураг төслийн дадлагын хугацаа хэдий богино 2x7 хоног байсан ч тавьсан зорилго зорилтдоо хангалттай хүрсэн гэж үзэж байна. Учир нь,

• Авто зам, замын инженерийн байгууламжийн бодит кэйс, иж бүрэн баримттай нарийвчлан танилцаж, түүнийг ойлгох, хэрхэн боловсруулсан талаар мэдээлэл зөвлөгөө авсан.

• Зураг төслийн компани ямар чиг үүрэгтэйгээр хэрхэн ажилладгийг бодитоор мэдэрсэн.

o Зураг төслийн явцад оролцогч талууд болох Захиалагч, Хөрөнгө оруулагч, Гүйцэтгэгч, Туслан гүйцэтгэгч, Төрийн болон орон нутгийн байгууллагуудын чиг үүрэг болон ажлын уялдаа холбоог ойлгох

o Зураг төсөл боловсруулах процессыг ойлгох

o Ашиглах багаж хэрэгсэл, зураг төсөл боловсруулах программ хангамжууд

o Баримтлах Норм дүрэм, стандарт, сурах бичгүүд, нээлттэй эх сурвалжуудийг тодорхойлох

гэх мэт.

• Төсөл боловсруулж буй инженерүүд “Авто зам төсөллөх” болон бусад нормуудыг зураг төсөл боловсруулах явцад тогтмол ашиглаж, мөн нэмэлт судалгаа хийж буй нь энэхүү норм, салбарын бусад эх сурвалжуудаас мэдээлэл авах дадал хэвшилтэй болгосон.

• Мөнх цэвдэгтэй хөрсөнд авто зам төсөллөх талаарх судалгааны ажлыг Авто зам төсөллөлт IIн лекц, Г.Чинтөгс инженерийн “Мөнх цэвдэгтэй бүс нутагт баригдах авто замын уян хучилтын бүтээц, хучилтын тооцоo” Зөвлөх инженерийн зэрэг горилох судалгааны материалыг судалснаар цаашид судалгааг үргэлжлүүлэх сайн эхлэл болсон гэж үзэж байна.

• Дадлагын явцад IndorCAD, IndorDraw, IndorPavement зэрэг системүүдийг хэрхэн ашиглах талаар сургалт зөвлөгөө авч, дадлагатай болсон.

• Салбарын бодлогын баримт, норм нормативын сантай болж, байнга орж харж байх нээлттэй эх сурвалжуудтай болсон байна.

Цаашид мэргэжлийн Орос хэлний мэдлэгээ сайжруулж, ОХУ-н авто замын салбарын мэргэжлийн материалыг чөлөөтэй ашиглах чадвартай болох шаардлагатай гэж үзэж байна. Мөн норм дүрмээ дахин дахин сайтар судлах шаардлагатай байгаа болно.

- 9 -

5. ӨДРИЙН ТЭМДЭГЛЭЛ БА ЗУРАГ СХЕМ

III/06-08:

Саяхан хийгдээд дуусаж буй “Баруунбүрэн-Орхонтуул-Цээл чиглэлийн хатуу хучилттай авто замын

зураг төсөл, төсөв”-ийн Геодезийн тайлан, Инженер геологийн тайлан, Ажлын зургийн ботиуд, мөн

Тайлбар бичиг, Техникийн шаардлагуудтай танилцав.

Техникийн шаардлагын үг үсгийн алдаа шалгах, багавтар формат сайжруулах (Баруунбүрэн-Орхонтуул-Цээл чиглэлийн хатуу хучилттай авто замын зураг төсөл, төсөв) ажлыг Ерөнхий инженер С.Батсүхийн удирдлага дор хийж гүйцэтгэв.

III/09-10:

Тайлбар бичгийн агуулгатай нарийвчлан танилцаж, улмаар албан баримтын стандартаар форматлах (Баруунбүрэн-Орхонтуул-Цээл чиглэлийн хатуу хучилттай авто замын зураг төсөл, төсөв) ажлыг Ерөнхий инженер С.Батсүхийн удирдлага дор хийж гүйцэтгэв.

- 10 -
С.БАТСҮХ
С.БАТСҮХ

III/15-16:

• Салбарын эрх зүйн баримт, хөгжлийн бодлого, норм дүрмийн судалгаа, цуглуулах, жагсаалт үүсгэх ажил хийж гүйцэтгэв.

• Ажлын зураг судлах, ялгааг олох, сайжруулах шинэ санал дэвшүүлэх ажлыг Геодези, Авто замын инженер Э.Батболдын удирдлага дор хийж гүйцэтгэв.

• Ховд хотод барихаар төлөвлөж буй Хотын замын зурагтай танилцав.

III/17-18:

Э.БАТБОЛД

• Хоолойн жишиг зургийг форматлаж, AutoCAD template бэлтгэх ажлыг Гүүр, хоолойн мэргэшсэн

инженер М.Мөнх-Оргилын удирдлага дор хийж гүйцэтгэв.

М.МӨНХ-ОРГИЛ

III/19-20:

Зөвлөх инженерийн зэрэг горилох сургалтын хүрээнд, МУ-н зөвлөх инженерийн зэрэг горилогч Г.Чинтөгсийн Зөвлөхийн судалгааны тайлан болох “Мөнх цэвдэгтэй бүс нутагт баригдах авто замын уян хучилтын бүтээц, хучилтын тооцоо” сэдэвт тайлангийн материалтай

танилцаж, өөрийн дипломын ажлын онцлох хэсэг болох Мөнх цэвдэгтэй бүс нутагт авто зам төсөллөх судалгааны хэсгийг эхлүүллээ.

Энэхүү бүтээл нь Авто замчдын холбооноос эрхлэн гаргадаг “Авто зам, гүүр” сэтгүүлийн 2022 оны 02-р хэвлэл буюу 42 дэх хэвлэлд хэвлэгдсэн бүтээл юм.

Судалгааны ажлын хүрээнд, “Хатгал-Хүзүүвчийн шил чиглэлийн авто зам” цэвдэгтэй бүс нутагт төсөллөх энэхүү төслийн Уян хучилтын геотор бүхий шийдэл боловсруулж, тооцоог жишээгээр үзүүлсэн байна. Г.ЧИНТӨГС Хянасан,

- 11 -
УДИРДАГЧ БАГШ С.АМАРБУЯН

Turn static files into dynamic content formats.

Create a flipbook
Issuu converts static files into: digital portfolios, online yearbooks, online catalogs, digital photo albums and more. Sign up and create your flipbook.
Дадлага - Зураг төсөл by Ninjbadam Dorjsuren - Issuu