Cover for The Vision

3 minute read

The Vision

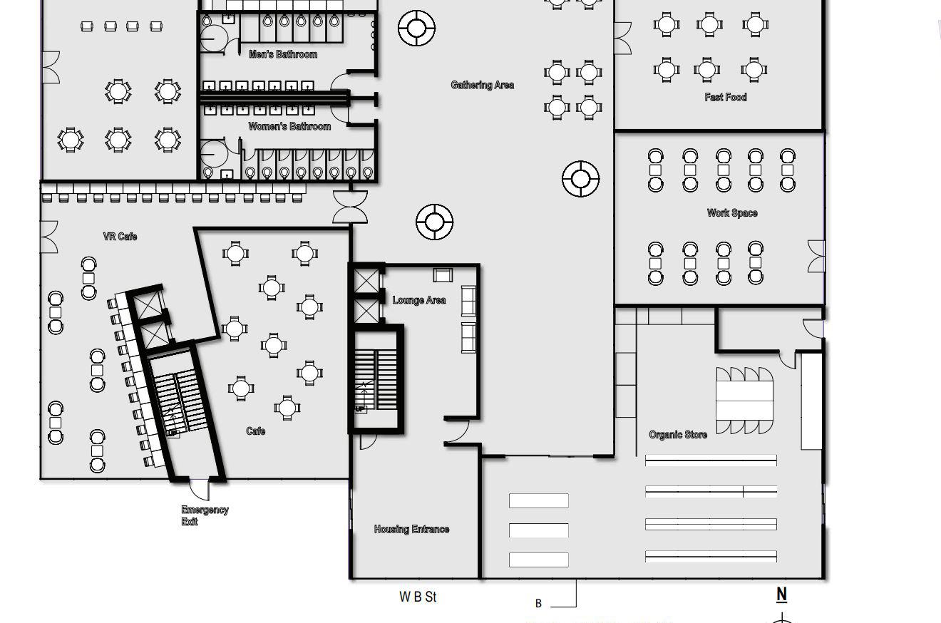
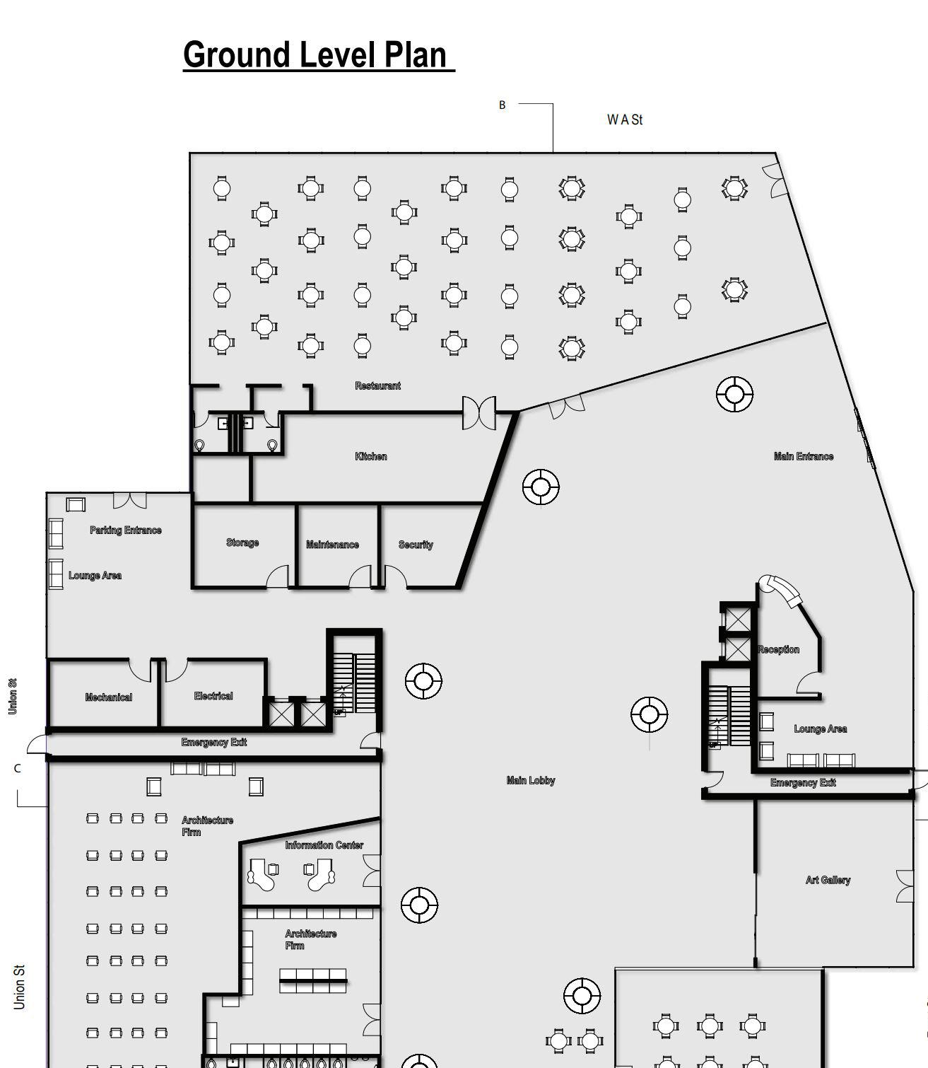
Cultivating connection and removing barriers to public access, this collage emphasizes the creation of a space that is active at all times. All five senses are utilized inactivating the space to create memorable user experience and aid in providing a strong identity for this area. Both visually and physically connecting to other hubs in the downtown area such as the waterfront, convention center, little Italy, and aslamp, a harmony is created between the existing architectural contexts. A balance is created between, commercial, residential, and government sectors to encourage positive social gatherings and healthy activities to strengthen the sense of community.

Advertisement

The lack of connectivity between parts of downtown creates a disconnection from the community and the main functional blocks or entities of a system. There is a lack of ease of access to public transportation and barriers to public access. This disrupts the circulation of connective function which is essential to capture the experience of moving our bodies around a building, three-dimensionally and through time. The exterior facade of some of the buildings lack, daylight, appearance and shading.

Outdoor Healing Garden

Outdoor Cinema & Recreation Area

Larger openings promote more interaction, longer user space occupation, and allows more curiosity to the user by giving them a range of areas to examine and notice what they have maybe not before. Frame views of the landscape and sky.

Smaller platforms and passageways are typically used for circulation with faster movement taking place. slower movement happens when the area is covered and users are given a stronger sense of protection from the elements

Bridge Gathering Area Level 8 South Portion

Longer passageways with large ceiling height promote stronger feelings of comfort, slower circulation, and feelings of familiarity

Customizable Study Space Level 5

Texture and rhythm on facades and interior walls generates interest, allows for more user presence, and facilitates slower navigation with users being more attentive to their surroundings.

Art School Circulation

Main Building

1. Slanted Column: 14x14x1/2

2. Secondary Column: 12x12x1/2

3. Cross Bracing: HSS Round Structural Tubing 6x0.500

4. Primary Beam: 21x111

5. Secondary Beam: W14x159

6. Primary Column: 14x14x1/2

7. Pile Cap-9 Pile: 150”x150”x40”

Bridge (Warren Truss 11 Panel Standard)

8. HSS Hollow Structural Section 12x12x1/4

9. Primary Beam: W21x111

10. Secondary Beam: W14x159

1. Building covers half of lot (150’ x 200’ x 250’).

2. Stepback of 25’ along C street, plus two asymmetric setbacks to create covered outdoor spaces and better ventilation.

3. Large ADA sloped floor to floor area created for circulation, with bridge on exterior.

4. Southwest corner delegated as slanted indoor garden and circulation area to minimize heat.

5. Slanted, tapering atrium created for access to greenspace and natural light/ventilation.

6. Smaller front bridge, wrapping around building to promote collaboration and interaction.

7. Overhangs added to south-facing bridge and upper facade for rhythm of angled forms.

8. Glass stairwell connects to community bridge for diverse circulation.

9. Overhangs on north facade for contrast and more square footage.

10. Slanted roof for direct sunlight and better drainage.

1. Building covers half lot (150’ x 200’ x 250’).

2.Stepbacks and asymmetrical setbacks create covered outdoor spaces and better ventilation.

3. Large sloped area for circulation, with bridge on exterior.

4. Slanted, tapering indoor garden and circulation area in southwest corner to minimize heat.

5. Slanted, tapering atrium for access to greenspace and natural light/ventilation.

6. Smaller front bridge for collaboration between structures.

7. Overhangs shield south-facing bridge and upper facade for rhythm of angled forms.

8. Glass stairwell area for diverse circulation and play of light/shadow.

9. Overhangs on north facade for contrast and more square footage. Inviting entrance.

10. Slanted roof for direct sunlight and better drainage.

Users enjoy having height over others. Users can be seen spending longer time alone at vantage points above a main gathering area or even sit and interact with their environment more when they can see from above

Smaller openings draw brief, specific user attention. These instances usually frame a view or particular point of interest and causes user to stay in a that spot for longer time or move on faster

Skylights at ground level promote higher levels of comfort, safety, and curiosity with more natural light and a way to judge the entire scale of the building they are navigating through

Density promotes feelings of comfort and familiarity

Longer passageways with lower than average ceilings promote faster circulation as users feel a sense of discomfort.

Longer, brighter passageways facilitate slower, more observant navigation. These spaces promote pausing and interaction. Shading methods are also fundamental for the success of this.

Architectural Factors that Directly Affect Creativity

-Landscaping

-Greenspaces

-Informal Learning Spaces

-Space Flexibility

-Visual Connections to Nature

-Blending Outdoor + Indoor

-Spaces for Exercise

Varied Size of Spaces

When people sit on the ground, they are comfortable in the space. Use materials that are conducive to this.

Cognitive and Environmental Drivers for Creativity

-Social Interaction

-Mental Health Practices

-Fresh Air

-Somatosensory Engagement

-Sensory Interaction

-Sense of Ownership of Space

-Adaptable Teaching Methods +

Openings + Materiality

Larger openings spanning entirety of building up to sky break typical user sightlines while framing the sky uniquely. This promotes slower circulation and sparks user curiousity about their environment.

Keep human scale in mind

The Reticular Activation System (RAS) processes all incoming info into brain. Novelty and creativity is triggered through environmental shifts.

The Reticular Activation System (RAS) processes all incoming info into brain. Novelty and creativity is triggered through environmental shifts.

Warmer materials create more comfort than cooler typically. We can relate to materials that remind us of our own form

Pink has been shown to amplify emotions while things covered in green tend to be ignored more often. Blue leads to feelings of comfort

This article is from: