Skip to main content

Architecture Portfolio 2024 | Nikitha Audrey D'Souza

Page 1

SELECTED WORKS

2024 | SELECTED WORKS 1
PORTFOLIO. NIKITHA AUDREY D’SOUZA
2024 ARCHITECTURE

NIKITHA AUDREY D’SOUZA

Hello! My name is Nikitha. I’m a 4th year architecture major with a keen interest in design, architecture journalism, and research. My passion for architecture stems from the idea of creating spaces that shape experiences and memories.

I have worked on multiple group and individual projects which have helped me multitask, think critically, and collaborate. I am an enthusiastic, self-motivated, and reliable team worker and can adapt to challenges.

+91 9945758253

nikithaaudrey@gmail.com

LinkedIn : Nikitha Audrey D’Souza

SOFTWARES

LANGUAGES

SOFTSKILLS

HOBBIES

AUTOCAD | SKETCHUP | LUMION | ENSCAPE | REVIT | VRAY | ADOBE PHOTOSHOP | ADOBE ILLUSTRATOR | ADOBE INDESIGN |

ENGLISH | FRENCH | HINDI

VERBAL & VISUAL COMMUNICATION | COLLABORATION | PROBLEM SOLVING | ATTENTION TO DETAIL | ADAPTABILITY |

ART | MUSIC | WRITING | DEBATE | VIDEO EDITING | PHOTOGRAPHY |

NIKITHA AUDREY D’SOUZA | PORTFOLIO 2

EDUCATION

2006 - 2018

2018 - 2020

SACRED HEART GIRLS’ HIGH SCHOOL (ICSE)

ST JOSEPH’S BOYS’ HIGH SCHOOL (ISC)

2020 - PRESENT PES UNIVERSITY (BACHELORS OF ARCHITECTURE)

WORK EXPERIENCE

JULY - AUGUST 2023

SUMMER INTERN AT STUDIO CAMARADA

JULY 2023 - PRESENT EDITOR FOR THE NATIONAL EDITORIAL & DESIGN TEAM AT NASA INDIA

UNIVERSITY CLUB INVOLVEMENT

2021 - PRESENT

2020 - 2023

SEPTEMBER - DECEMBER 2023

ACAPELLA CLUB HEAD (2023) FOR THE MUSIC CLUB OF PESU

DEBATE SOCIETY OF PES UNIVERSITY

IEEE CLUB REMOTE ROBOTICS LABORATORY COLLABORATION

COMPETITIONS

COA INTERNATIONAL ESSAY COMPETITION 2021

THIRD PLACE

URBAN SCRIPTS DWELLING JOURNALISM

COMPETITION 2023

TOP 15

SHORTLISTED ENTRIES

RAMAIAH INSPIRIT ARCHITECTURE JOURNALISM

TROPHY 2023

SECOND PLACE

NASA WRITING ARCHITECTURE TROPHY 2022

SHORTLISTED ENTRY

SOLAR DECATHLON 2022

DESIGN FOR A NET-ZERO OFFICE BUILDING

COA CENTRE OF EXCELLENCE BENGALURU

DESIGN COMPETITION 2022

CONCEPTUAL DESIGN FOR A RESOURCE CENTRE

VOLUME ZERO: TINY HOME 2024

MICRO HOME DESIGN FOR RESEARCHERS IN ANTARCTICA

VOLUME ZERO: DWELLING 2023

COMMUNITY HOUSING DESIGN IN AN URBAN SETTING

2024 | SELECTED WORKS 3
NIKITHA AUDREY D’SOUZA | PORTFOLIO 4 SEMESTER 6 PERFORMING ARTS UNIVERSITY
6 - 17 SEMESTER 7 TRANSPORT TERMINAL
18
23 SEMESTER 4 COMMUNITY HOUSING
24 - 29 03. 02. 01. FACE
SUN
VISTA
RESONANCE
Page
Page
-
Page
THE
HOUSING
BUS TERMINAL
UNIVERSITY
2024 | SELECTED WORKS 5 SEMESTER 5 RESTAURANT INTERIOR DESIGN Page 30 - 35 . SEMESTER 6 & 7 3BHK RESIDENCE WORKING DRAWINGS & FURNITURE DETAILS Page 36 - 45 . MISCELLANEOUS PROJECTS A COLLECTION OF COMPETITION PROJECTS AND EXTRA CURRICULAR WORK Page 46 - 49 . .06 .05 .04 WORKING DRAWINGS
SPACE LABORATORY
THE
1A.

RESONANCE UNIVERSITY.

SEMESTER 6 | PERFORMING ARTS CAMPUS | 2023

A blend of dynamic curves and timeless brick facades creates the basis for Resonance University, a performing arts campus that spans 22 acres across a contoured site. Located off Kanakapura Road, the university houses dedicated schools for music, dance, and theatre for over 400 students, along with a resource centre and dormitories for students and faculty

NIKITHA AUDREY D’SOUZA | PORTFOLIO 8 AUDITORIUM 1 2 3 1 2 3 5 4 7 6 8 9 10 11 12 ADMINISTRATION OFFICE SCHOOL OF MUSIC MASTERPLAN RESONANCE UNIVERSITY 4 SCHOOL OF THEATRE 5 SCHOOL OF DANCE 6 RESOURCE CENTRE 7 LIBRARY 8 STAFF HOUSES 9 STAFF APARTMENTS 10 STUDENT DORMITORIES BASKETBALL COURT 12 FOOTBALL FIELD 11

RESONANT WAVES AND CONCENTRIC CIRCLES

CONCEPT & FORM DEVELOPMENT

Soundwaves move radially outward in concentric circles and each block acts as a point source of sound

The balance between the land and the built form is based on a resonant wave.

SCHOOL OF MUSIC

LOCATION: BANGALORE | BUILT UP AREA: 3600 SQMT

The school of music houses has 120 students with 40 students per class. There are 12 music studios, 3 Lecture Rooms, and a 200-seater seminar hall. The faculty room seats 12 faculty members along with a lounge, a meeting room, and a private room for the Head of Department. The studios are placed away from the lecture halls to minimise noise.

2024 | SELECTED WORKS 9

FOURTH LEVEL PLAN

SCHOOL OF MUSIC

TERRACE 4

MEETING ROOM - 30 SQMT

LIGHTING STUDIO - 35 SQMT

MUSIC STUDIOS - 40 SQMT

HEAD OF DEPARTMENT CABIN - 35 SQMT 5

THIRD LEVEL PLAN

SCHOOL OF MUSIC

1

SECOND LEVEL ENTRANCE

LECTURE ROOMS - 75 SQMT 2

DIGITAL STUDIO - 35 SQMT 3

MUSIC STUDIOS - 40 SQMT

STAFF ROOM - 65 SQMT 5

RECORDING STUDIO - 30 SQMT 6

SECOND LEVEL PLAN

SCHOOL OF MUSIC

1

SECOND LEVEL ENTRANCE

MUSIC STUDIOS - 40 SQMT 2

OFFICE - 25 SQMT

4 STORAGE ROOM - 18 SQMT 3

FIRST LEVEL PLAN

SCHOOL OF MUSIC

1

FIRST LEVEL ENTRANCE

SEMINAR HALL LOBBY 2

SEMINAR HALL - 270 SQMT 3

NIKITHA AUDREY D’SOUZA | PORTFOLIO 10
1 2 4 3 2 3 1
1
4
2 3 4 5 6 1
2
3
1 2 3 4 5

Exterior View: The curved shape of the building follows the lines of concentric circles and the natural contours to create its form. To improve the acoustics for the music studios, lecture rooms, and seminar halls , this gives them non-parallel walls to prevent unwanted flutter while recording

TOILETS

RECORDING

2024 | SELECTED WORKS 11
SEMINAR HALL LECTURE ROOM
SECTIONAL PERSPECTIVE RESONANCE UNIVERSITY
ROOM

UNIVERSITY ADMINISTRATION BUILDING

SEMESTER 6 | PERFORMING ARTS CAMPUS | 2023

The building dedicated to the administration office of Resonace University is shaped like a ring with a double height central courtyard. This creates a calming, well-ventilated space for students, faculty, and visitors along with inbuilt seating around the landscaped courtyard.

NIKITHA AUDREY D’SOUZA | PORTFOLIO 12
1B.
2024 | SELECTED WORKS 13
NIKITHA AUDREY D’SOUZA | PORTFOLIO 14 FIRST LEVEL PLAN ADMINISTRATION BUILDING SECOND LEVEL PLAN ADMINISTRATION BUILDING 1 DEAN’S OFFICE - 40 SQMT 2 DIRECTOR’S OFFICE - 60 SQMT 4 MAINTENANCE ROOM - 24 SQMT 3 REGISTRAR’S OFFICE - 40 SQMT 1 2 3 4 5 5 STORAGE ROOM - 18 SQMT 1 2 4 3 5 1 2 3 4 7 6 5 6 7

ADMINISTRATION BUILDING

Located close to the campus entrance, the Administration Building of Resonance University is a ring shaped building with a brick and glass facade. Concrete floors break of the patterns and fluted glass adds texture and dimension to the overall building. Its signature landscape design helps shape its identity.

2024 | SELECTED WORKS 15 SECTION - AA’ ADMINISTRATION BUILDING
LOCATION: BANGALORE | BUILT UP AREA: 3600 SQMT | GROUND COVERAGE: 2100 SQMT
NIKITHA AUDREY D’SOUZA | PORTFOLIO 16
2024 | SELECTED WORKS 17
Waiting Lounge: A View from the ground floor waiting lounge with seating facilities outside administration counters and a view of the central courtyard.

VISTA BUS TERMINAL

SEMESTER 7 | BUS TERMINAL & TRANSPORT HUB | 2023

Located in the heart of the city of Bnagalore, the Vista Bus Terminal acts as a node connecting people from all over the city using different modes of transport. Inspired by the concept of a Window seat, a traveler’s preferred choice of seating, the building offers views into the gardens and well lit atriums.

02.

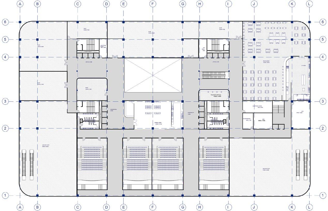
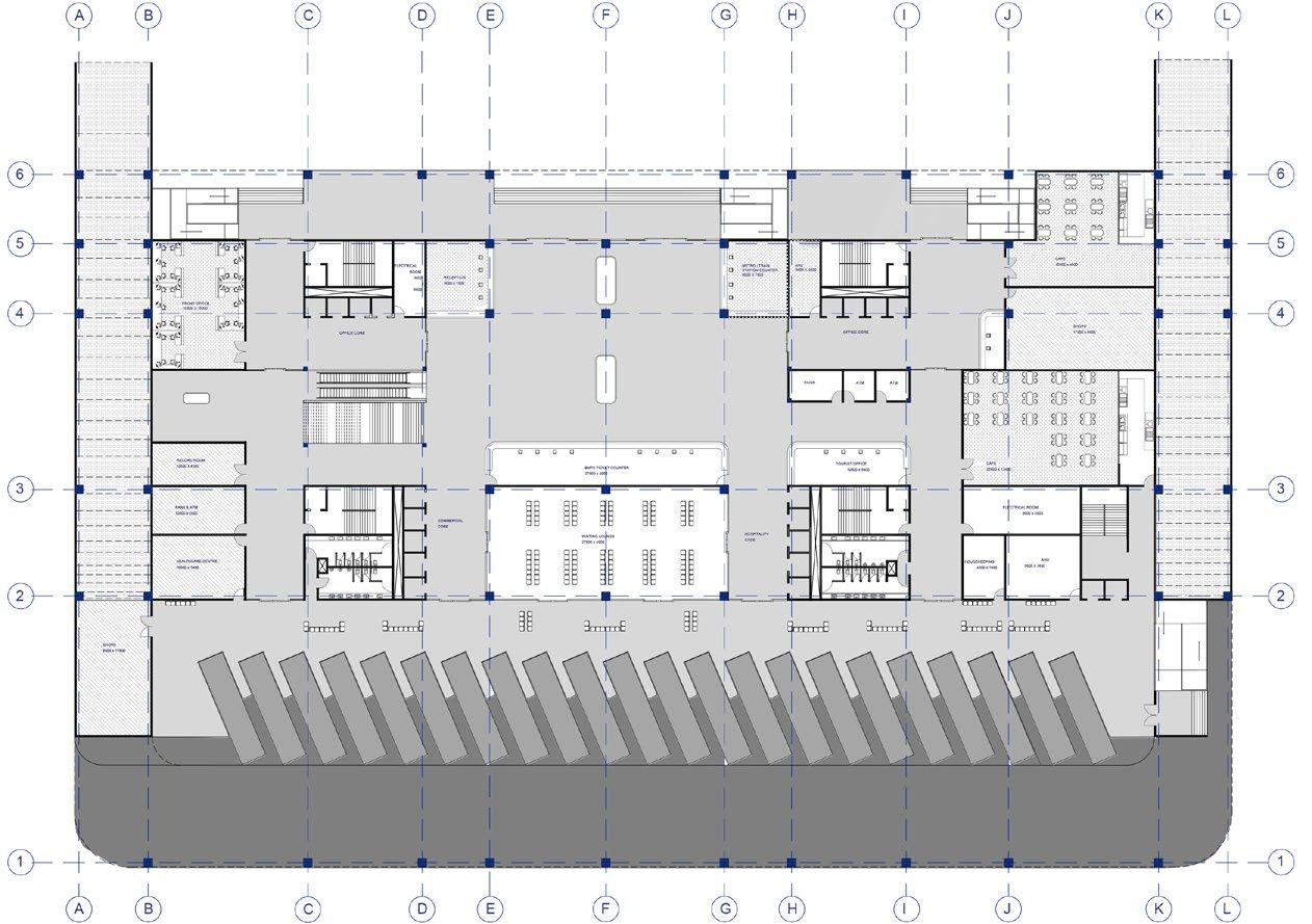
VISTA BUS TERMINAL

LOCATION: BANGALORE | BUILT UP AREA: 1,28,000 SQMT | GROUND COVERAGE: 10,200 SQMT

Located close to the Nayandanahalli Metro Station, the Bus terminal has a total of 40 bus bays, offering both inter and intra city travel facilities on two separate floors. Above the terminal floors, commercial, office, and hospitality accomodations are offered in this 14 storeyed building

1

BUS TERMINAL

VEHICULAR ENTRANCE

2 3 BUS ENTRANCE

BUS TERMINAL MASTERPLAN

4 MAINTENANCE YARD

5 DROP OFF ZONE

6 IDLE BUS PARKING

7 SEWAGE TREATMENT PLANT

8 SECURITY CABIN

NIKITHA AUDREY D’SOUZA | PORTFOLIO 20
1 2 3 4 5 6 7 8

LOWER TERMINAL PLAN (GROUND FLOOR)

COMMERCIAL FLOOR (FOURTH FLOOR)

2024 | SELECTED WORKS 21
OFFICE ENTRANCE 1 MAIN ENTRANCE HOTEL ENTRANCE UPPER MULTIPLEX PLAN
FLOOR) 2 3 CAFE - 52 SQMT 4 2 1 3 9 8 4 5 6 7 SHOPS - 160 SQMT 5 RESTAURANT - 340 SQMT 6 PLATFORMS & BUS BAYS WAITING LOUNGE - 140 SQMT 7 8 TICKET COUNTER 9 FRONT OFFICE - 170 SQMT 10 10 ANCHOR SHOP - 1200 SQMT 1 THEATRE - 330 SQMT CINEMA LOBBY - 330 SQMT 2 3 ANCHOR SHOP -1000 SQMT 4 RESTAURANT - 1200 SQMT 6 SHOP - 510 SQMT SHOP - 300 SQMT 7 8 1 2 3 4 5 6 7 8 SHOP - 720 SQMT 5
(THIRD
ANCHOR SHOP - 1200 SQMT 1 FOODCOURT - 2560 SQMT KIOSKS TYPICAL OFFICE FLOOR 2 3 RESTAURANT - 1200 SQMT 4 SHOP - 720 SQMT 5 SERVICE CORRIDOR 6 SHOP - 510 SQMT SHOP - 300 SQMT 7 8 OFFICE - 2800 SQMT 1 CABIN - 45 SQMT MEETING ROOM - 50 SQMT 2 3 SEMINAR HALL - 230 SQMT 4 RECREATION ROOM - 180 SQMT 6 CAFETERIA - 650 SQMT 5 1 7 8 2 3 4 5 2 3 4 5 6
NIKITHA AUDREY D’SOUZA | PORTFOLIO 22 SECTION - AA’ BUS TERMINAL
2024 | SELECTED WORKS 23
Waiting Lounge: The bus terminal concists of two consecutive floors with intercity and intracity buses on respective floors with a ramp connecting them. The building uses strong rectangular linear shapes softend at the corenr by curves.

FACE THE SUN COMMUNITY HOUSING

SEMESTER 4 | SOCIAL HOUSING | 2021

Individual clusters of houses are based on the structure of constellations. The houses are the star-like similar elements that when combined form constellations. Just as how constellations are unique, each cluster orientation is different from each other, creating a strong sense of identity for each home.

03. 2024 | SELECTED WORKS 25

EWS APARTMENT

LOCATION: BANGALORE

INDIVIDUAL UNIT AREA: 45 SQMT

The unit uses an open plan system, with thin partition walls that separate activities.

The bathroom is divided into three separate parts to allow more people to use it simultaneously. A balcony doubles up as a utility space and brings in welcome ventilation.

NIKITHA AUDREY D’SOUZA | PORTFOLIO 26
2024 | SELECTED WORKS 27
EWS
PLAN EWS APARTMENT
SECTIONAL PERSPECTIVE
APARTMENT CLUSTER

LIG APARTMENT

LOCATION: BANGALORE

INDIVIDUAL UNIT AREA: 80 SQMT

Designed with the intention of addressing privacy and good utilisation of space, the apartment has two bedroom units with open plan living rooms, dining rooms, and kitchens.

Pocket doors and sliding windows help save space and allow for more freedom of movement.

NIKITHA AUDREY D’SOUZA | PORTFOLIO 28
2024 | SELECTED WORKS 29
LIG APARTMENT CLUSTER PLAN LIG APARTMENT
SECTIONAL PERSPECTIVE
NIKITHA AUDREY D’SOUZA | PORTFOLIO 30

THE SPACE LABORATORY

SEMESTER 5 | RESTAURANT INTERIOR DESIGN | 2022

In collaboration with Valli Ramanathan, Preetha G, Mahaalakshmi SP, and Niharika Ajayapal

The Space Laboratory is a restaurant that invites you onboard for a (g)astronomical experience. The restaurant acts like a spaceship and offers its passengers a view into the wonders of outer space with galaxies, comets, and constellations right outside its windows.

04. 2024 | SELECTED WORKS 31
NIKITHA AUDREY D’SOUZA | PORTFOLIO 32 FLOOR PLAN THE SPACE LABORATORY SECTION - AA’ THE SPACE LABORATORY SECTION - BB’ THE SPACE LABORATORY MOODBOARD THE SPACE LABORATORY
2024 | SELECTED WORKS 33
Booth Seating & Aquariums: Large glass aquariums act as medians between the booths. They offer a glimpse into another ecosystem while also providing privacy for customers.

Seating Options: The restaurant offers a variety of seating options including high and low seating at tables, a bar counter and a nitrogen bar counter, large booths, and a wall of inbuilt small booths. This allows for flexibility and the variety enhances the mood for customers.

NIKITHA AUDREY D’SOUZA | PORTFOLIO 34

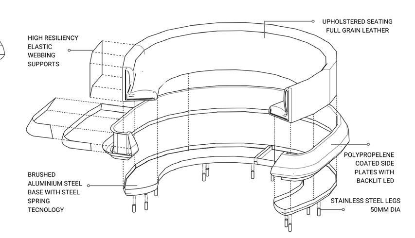
BOOTH SEATING

FURNITURE DETAILS

Furniture Description: The seating booth for 8 people is made of brushed aluminium hardware and propelene coating. Fine grained leather upholstery is surrounded by polypropelene coating and backlit by an LED light.

LONG SEATING FURNITURE

DETAILS

Furniture Description: The furniture set includes a table with space inspired chairs. The base consists of a metal plate with recessed LED lights and another base which holds the steel parts in place. Grey leather adorns the chair upholstery.

2024 | SELECTED WORKS 35 EXPLODED
VIEW
PLAN FRONT ELEVATION BACK ELEVATION BRUSHED ALUMINIUM COOL GREY LEATHER POLYPROPELENE STAINLESS STEEL COOL GREY LEATHER BRUSHED STEEL POLYPROPYLENE SECTION - AA’ SECTION - BB’ EXPLODED VIEW PLAN LED DISPLAY DETAIL SECTION - AA’ SECTION - BB’ SECTION - CC’ FRONT ELEVATION SIDE ELEVATION

Technical drawings for a 3BHK Residence with plans, its schedule of openings, sections, elevations, and toilet details. Furniture details for the house include a crockery unit and a wardrobe unit. 05.

GUEST BEDROOM 5000 x 4200 W2 W3 A A 1 3 2 4 400 1200 400 1200 200 450 200 2000 200 5300 5300 1300 1800 100 3100 200 200 1300 450 50 950 200 2450 450 1300 5200 5340 2240 4360 5200 200 200 5000 200 5000 12100 SCHEDULE SL NO SYMBOL SILl HEIGHT SIZE TYPE 1 MD 0 1200 x 2100 PINE WOOD 2 D 0 1000 x 2100 PINE WOOD 3 D1 0 900 x 2100 PINE WOOD 4 D2 0 900 x 2100 PINE WOOD 5 W 900 3600 x 1200 UPVC SLIDING GUEST BEDROOM 5000 x 4200 W2 W3 A A 1 3 2 4 400 1200 400 1200 200 450 200 2000 200 5300 5300 1300 1800 100 3100 200 200 1300 450 50 950 200 2450 450 1300 5200 5340 2240 4360 5200 200 200 5000 200 5000 W4 12100 SCHEDULE SL NO SYMBOL SILl HEIGHT SIZE TYPE 1 MD 0 1200 x 2100 PINE WOOD 2 D 0 1000 x 2100 PINE WOOD PANELS 3 D1 0 900 x 2100 PINE WOOD FLUSHED 4 D2 0 900 x 2100 PINE WOOD WITH 5 W 900 3600 x 1200 UPVC SLIDING GROUND FLOOR WORKING DRAWING WORKING DRAWINGS
SEMESTER 6 & 7 | 3BHK RESIDENCE | 2022-2023
NIKITHA AUDREY D’SOUZA | PORTFOLIO 36
2024 | SELECTED WORKS 37 CHILDREN'S BEDROOM 5000 x 4300 BATHROOM 1800 x 2700 BATHROOM 1800 x 2700 MASTER BEDROOM 4500 x 6400 BALCONY 4600 x 1800 BALCONY 3200 x 1800 D D1 D1 W W W2 W2 W2 W4 W3 V UP 400 1200 400 1200 200 450 200 2000 200 12100 5300 5300 1300 1800 400 900 600 200 600 900 300 200100 900 1800 800 200 200 4500 200 1800 200 1800 100 3100 200 12100 12100 200 6500 200 200 2300 3600 600 200 200 1300 450 50 950 450 3650 1200 200 1800 200 450 1000 450 200 1200 850 450 200 2450 200 450 1300 4700 2000 5200 5300 2200 4400 5200 2000 4700 2500 450 1000 450 2000 200 2200 5300 4850 450 12100 200 400 100 200 5000 200 5000 A A B B C C D D 1 3 2 4 1 3 2 4 D2 D2 4400 SCHEDULE OF OPENINGS (FIRST FLOOR) SL NO SYMBOL SILl HEIGHT SIZE TYPE NUMBER 1 MD 0 1200 x 2100 PINE WOOD 1 2 D 0 1000 x 2100 PINE WOOD PANELS 1 3 D1 0 900 x 2100 PINE WOOD FLUSHED 3 4 D2 0 900 x 2100 PINE WOOD WITH GLASS 0 5 W 900 3600 x 1200 UPVC SLIDING WINDOW 1 6 W1 900 2400 x 2100 UPVC CASEMENT WINDOW 1 7 W2 900 1800 x 1200 UPVC SLIDING WINDOW 2 8 W3 900 1200 x 1200 UPVC FIXED WINDOW 2 9 W4 2400 1200 x 2100 UPVC FIXED WINDOW 1 10 V 1500 900 X 900 UPVC LOUVERED VENTILATOR 2 SL NO SYMBOL SILL HEIGHT SIZE TYPE NUMBER LIVING ROOM 6500 x 5100 DINING ROOM 4700 x 3500 UTILITY 1500 x 2600 KITCHEN 2900 x 2700 BATHROOM 1800 x 2700 BATHROOM 1800 x 2700 MD D1 D1 D1 W W2 W3 W3 B B C C D D 1 3 2 4 UP DOWN 0.00 + 0.60 0.00 + 0.60 UP UP 100 300 900 600 200 600 900 300 200 500 2400 100 600 900 200 200 4500 200 1800 200 1800 100 12100 12100 200 6500 200 200 2300 3600 600 200 450 3650 1200 200 1800 200 4501000 450 200 1200 850 450 200 4700 2000 5200 5200 2000 4700 2500 450 1000 450 2000 200 2200 4400 5300 4850 450 12100 5000 5000 V OF OPENINGS (GROUND FLOOR) NUMBER 0 PANELS 2 FLUSHED 2 WITH GLASS 2 SLIDING WINDOW 2 6 W1 900 2400 x 2100 UPVC CASEMENT WINDOW 0 7 W2 900 1800 x 1200 UPVC SLIDING WINDOW 3 8 W3 900 1200 x 1200 UPVC FIXED WINDOW 1 9 W4 2400 1200 x 2100 UPVC FIXED WINDOW 1 10 V 1500 900 X 900 UPVC LOUVERED VENTILATOR 2 SL NO SYMBOL SILL HEIGHT SIZE TYPE NUMBER LIVING ROOM 6500 x 5100 DINING ROOM 4700 x 3500 UTILITY 1500 x 2600 KITCHEN 2900 x 2700 BATHROOM 1800 x 2700 BATHROOM 1800 x 2700 MD D D1 D1 D1 W W1 W2 W3 W3 V B B C C D D 1 3 2 4 UP DOWN 0.00 + 0.60 0.00 + 0.60 UP UP 100 300 900 600 200 600 900 300 200 500 2400 100 600 900 200 200 4500 200 1800 200 1800 100 12100 12100 200 6500 200 200 2300 3600 600 200 450 3650 1200 200 1800 200 4501000 450 200 1200 850 450 200 4700 2000 2000 4700 2500 450 1000 450 2000 200 2200 4400 5300 4850 450 12100 V OF OPENINGS (GROUND FLOOR) NUMBER 0 PANELS 2 FLUSHED 2 WITH GLASS 2 WINDOW 2 6 W1 900 2400 x 2100 UPVC CASEMENT WINDOW 0 7 W2 900 1800 x 1200 UPVC SLIDING WINDOW 3 8 W3 900 1200 x 1200 UPVC FIXED WINDOW 1 9 W4 2400 1200 x 2100 UPVC FIXED WINDOW 1 10 V 1500 900 X 900 UPVC LOUVERED VENTILATOR 2 SL NO SYMBOL SILL HEIGHT SIZE TYPE NUMBER CHILDREN'S BEDROOM 5000 x 4300 BATHROOM 1800 x 2700 BATHROOM 1800 x 2700 MASTER BEDROOM 4500 x 6400 BALCONY 4600 x 1800 BALCONY 3200 x 1800 D D D1 D1 W W W2 W2 W2 W4 W3 V V UP 400 1200 400 1200 200 450 200 2000 200 12100 5300 5300 1300 1800 400 900 600 200 600 900 300 200100 900 1800 800 200 200 4500 200 1800 200 1800 100 3100 200 12100 12100 200 6500 200 200 2300 3600 600 200 200 1300 450 50 950 450 3650 1200 200 1800 200 450 1000 450 200 1200 850 450 200 2450 200 450 1300 4700 2000 5200 5300 2200 4400 5200 2000 4700 2500 450 1000 450 2000 200 2200 5300 4850 450 12100 200 400 100 200 5000 200 5000 A A B B C C D D 1 3 2 4 1 3 2 4 D2 D2 4400 SCHEDULE OF OPENINGS (FIRST FLOOR) SL NO SYMBOL SILl HEIGHT SIZE TYPE NUMBER 1 MD 0 1200 x 2100 PINE WOOD 1 2 D 0 1000 x 2100 PINE WOOD PANELS 1 3 D1 0 900 x 2100 PINE WOOD FLUSHED 3 4 D2 0 900 x 2100 PINE WOOD WITH GLASS 0 5 W 900 3600 x 1200 UPVC SLIDING WINDOW 1 6 W1 900 2400 x 2100 UPVC CASEMENT WINDOW 1 7 W2 900 1800 x 1200 UPVC SLIDING WINDOW 2 8 W3 900 1200 x 1200 UPVC FIXED WINDOW 2 9 W4 2400 1200 x 2100 UPVC FIXED WINDOW 1 10 V 1500 900 X 900 UPVC LOUVERED VENTILATOR 2 SL NO SYMBOL SILL HEIGHT SIZE TYPE NUMBER CENTRELINE PLAN FIRST FLOOR CENTRELINE PLAN WORKING DRAWING 2024 | SELECTED WORKS 37
NIKITHA AUDREY D’SOUZA | PORTFOLIO 38 SECTION - AA’ WORKING DRAWING 6500 5100 DINING ROOM 1500 2600 2900 2700 BATHROOM 1800 2700 0.00 0.00 0.60 UP CHILDREN'S BEDROOM MASTER BEDROOM 4500 6400 4600 1800 3200 x 1800 A SEC SEC A’ B B’ SEC SEC B B’ SEC SEC 1050 450 900 1200 450 900 1200 1800 450 150 75 300 150 75 GROUND FLOOR 450 SFL FIRST FLOOR 3450 SFL TERRACE 6450 SFL ROAD LEVEL GROUND FLOOR 450 SFL FIRST FLOOR 3450 SFL TERRACE 6450 SFL W4 W4 D1 W2 W2 600 MASTER BEDROOM DINING ROOM & KITCHEN SECTION B-B' GROUND FLOOR 450 SFL FIRST FLOOR 3450 SFL TERRACE 6450 SFL GROUND FLOOR 450 SFL FIRST FLOOR 3450 SFL TERRACE 6450 SFL 900 1200 150 75 300 1200 900 750 450 900 300 900 ROAD LEVEL 1200 TOILET FIRST FLOOR RAILING LIVING ROOM D2 SECTION A-A’ SCALE - 1:175 SECTION B-B’ SCALE - 1:175 1050 450 900 1200 150 75 GROUND FLOOR 450 SFL 3450 SFL ROAD LEVEL GROUND FLOOR 450 SFL 3450 SFL W4 D1 W2 600 MASTER BEDROOM DINING ROOM & KITCHEN SECTION B-B' GROUND FLOOR 450 SFL FIRST FLOOR 3450 SFL TERRACE 6450 SFL GROUND FLOOR 450 SFL FIRST FLOOR 3450 SFL TERRACE 6450 SFL 900 1200 150 75 300 1200 900 750 450 900 300 900 ROAD LEVEL 1200 TOILET FIRST FLOOR RAILING LIVING ROOM SECTION A-A’ SCALE - 1:175 SECTION B-B’ SCALE - 1:175 SECTION - BB’ WORKING DRAWING GROUND & FIRST FLOOR KEY PLAN
2024 | SELECTED WORKS 39 GROUND FLOOR 450 SFL FIRST FLOOR 3450 SFL TERRACE 6450 SFL GROUND FLOOR 450 SFL FIRST FLOOR 3450 SFL TERRACE 6450 SFL FIRST FLOOR 3450 SFL TERRACE 6450 SFL FIRST FLOOR 3450 SFL TERRACE 6450 SFL 2000 600 2850 150 2850 150 900 900 900 SOUTH ELEVATION SOUTH ELEVATION SCALE - 1:175 NORTH ELEVATION SCALE - 1:175 150 2850 150 900 900 900 ROAD LEVEL GROUND FLOOR 450 SFL FIRST FLOOR 3450 SFL GROUND FLOOR 450 SFL FIRST FLOOR 3450 SFL GROUND FLOOR 450 SFL FIRST FLOOR 3450 SFL TERRACE 6450 SFL GROUND FLOOR 450 SFL FIRST FLOOR 3450 SFL TERRACE 6450 SFL ROAD LEVEL NORTH ELEVATION 2000 600 2850 150 900 SOUTH ELEVATION SOUTH ELEVATION SCALE - 1:175 NORTH ELEVATION SCALE - 1:175 2000 600 2850 150 2850 150 900 900 900 ROAD LEVEL SOUTH ELEVATION WORKING DRAWING
ELEVATION WORKING DRAWING Exterior Views: Stone-clad wall facades with wooden framed windows Interior Views: Balcony View
NORTH
NIKITHA AUDREY D’SOUZA | PORTFOLIO 40 FLOORING PATTERN PLAN WALL FINISHES LAYOUT TOILET FIXTURES LAYOUT 1000 200 200 2700 3100 600 200 200 2700 3100 800 300 100 900 450 200 WF1 WF3 500 F02 F04 600 600 WF2 F06 MASONRY LEGEND FLOOR FINSHES LEGEND WALL FINISHES LEGEND TOILET FIXTURES LEGEND F01 F02 F03 F04 MASONRY WALL COLUMN CERAMIC TILES CONCRETE SHOWER HEAD JAQUAR BATHROOM FIXTURES WHITE CERAMIC WATER CLOSET KOHLER CERAMIC HAND HELD BIDET JAQUAR BATHROOM FIXTURES WHITE CERAMIC SINK KOHLER CERAMIC F05 STAINLESS STEEL TOWEL RACK KOHLER BATHROOM FIXTURES F06 STAINLESS STEEL TAP KOHLER BATHROOM FIXTURES WF1 WF2 WF3 GREY CERAMIC TILES GREY MOSAIC TILES EMULSION PAINT 450 100 200 1800 2100 F05 600 200 900 200 2700 3100 800 300 300 1000 200 900 200 200 2700 200 3100 100 300 900 600 200 200 1800 100 2100 600 200 900 200 200 2700 200 3100 800 300 300 100 900 450 200 500 300 450 100 200 1800 2100 B’ B SEC SEC A SEC SEC A’ B’ B SEC SEC A SEC SEC A’ WALL FINISHES LAYOUT TOILET FIXTURES LAYOUT 1000 200 900 200 200 2700 200 3100 100 300 900 600 200 200 1800 100 2100 600 200 900 200 200 2700 200 3100 800 300 300 100 900 450 200 WF2 WF1 WF2 WF2 WF3 500 300 WF2 450 100 200 1800 2100 F05 600 200 900 200 200 2700 200 3100 800 300 300 FLOORING PATTERN PLAN TOILET FIXTURES LAYOUT F01 F03 F02 F04 600 600 600 600 600 600 F06 MASONRY LEGEND MASONRY WALL F05 FLOORING PATTERN PLAN TOILET FIXTURES LAYOUT F01 F03 F02 F04 600 600 600 600 600 600 F06 MASONRY LEGEND MASONRY WALL F05 FLOORING PATTERN PLAN WALL FINISHES LAYOUT TOILET FIXTURES LAYOUT 1000 200 200 200 200 800 100 900 450 200 F04 600 600 WF2 F06 MASONRY LEGEND FLOOR FINSHES LEGEND WALL FINISHES LEGEND TOILET FIXTURES LEGEND F01 F02 F03 F04 MASONRY WALL COLUMN CERAMIC TILES CONCRETE SHOWER HEAD JAQUAR BATHROOM FIXTURES WHITE CERAMIC WATER CLOSET KOHLER CERAMIC HAND HELD BIDET JAQUAR BATHROOM FIXTURES WHITE CERAMIC SINK KOHLER CERAMIC F05 STAINLESS STEEL TOWEL RACK KOHLER BATHROOM FIXTURES F06 STAINLESS STEEL TAP KOHLER BATHROOM FIXTURES WF1 WF2 WF3 GREY CERAMIC TILES GREY MOSAIC TILES EMULSION PAINT 450 100 200 1800 2100 600 200 200 2700 3100 800 300 300 1000 200 900 200 200 2700 200 3100 100 300 900 600 200 200 1800 100 2100 600 200 900 200 200 2700 200 3100 800 300 300 100 900 450 200 500 300 450 100 200 1800 2100 B’ B SEC SEC A SEC SEC A’ B’ B SEC SEC A SEC SEC A’ FLOORING PATTERN PLAN WALL FINISHES LAYOUT TOILET FIXTURES LAYOUT 1000 200 900 200 200 2700 200 3100 100 300 900 600 200 200 1800 100 2100 600 200 900 200 200 2700 200 3100 800 300 300 100 900 450 200 WF2 WF1 WF2 WF2 WF3 500 300 F01 F03 F02 F04 600 600 600 600 600 600 WF2 F06 MASONRY LEGEND FLOOR FINSHES LEGEND WALL FINISHES LEGEND TOILET FIXTURES LEGEND F01 F02 F03 F04 MASONRY WALL COLUMN CERAMIC TILES CONCRETE SHOWER HEAD JAQUAR BATHROOM FIXTURES WHITE CERAMIC WATER CLOSET KOHLER CERAMIC HAND HELD BIDET JAQUAR BATHROOM FIXTURES WHITE CERAMIC SINK KOHLER CERAMIC F05 STAINLESS STEEL TOWEL RACK KOHLER BATHROOM FIXTURES F06 STAINLESS STEEL TAP KOHLER BATHROOM FIXTURES WF1 WF2 WF3 GREY CERAMIC TILES GREY MOSAIC TILES EMULSION PAINT 450 100 200 1800 2100 F05 600 200 900 200 200 2700 3100 800 300 300 1000 200 900 200 2700 200 3100 100 300 900 600 200 200 1800 100 2100 600 200 900 200 200 2700 3100 800 300 300 100 900 450 200 500 300 450 100 200 1800 2100 B SEC A SEC B’ B SEC SEC A SEC SEC A’ TOILET FIXTURES TOILET DETAILS FLOORING LAYOUT TOILET DETAILS TOILET LAYOUT TOILET DETAILS WALL FINISHES TOILET DETAILS WALL FINISHES LAYOUT TOILET FIXTURES LAYOUT 1000 200 900 200 200 2700 200 3100 100 300 900 600 200 200 1800 100 2100 600 200 900 200 200 2700 200 3100 800 300 300 100 900 450 200 WF2 WF1 WF2 WF2 WF3 500 300 WF2 450 100 200 1800 2100 F05 600 200 900 200 200 2700 200 3100 800 300 300 FLOORING PATTERN PLAN WALL FINISHES LAYOUT TOILET FIXTURES LAYOUT 1000 200 200 2700 3100 600 200 200 2700 3100 800 300 300 100 900 450 200 WF2 WF1 WF3 500 300 F03 F02 F04 600 600 600 WF2 F06 MASONRY LEGEND FLOOR FINSHES LEGEND WALL FINISHES LEGEND TOILET FIXTURES LEGEND F01 F02 F03 F04 MASONRY WALL COLUMN CERAMIC TILES CONCRETE SHOWER HEAD JAQUAR BATHROOM FIXTURES WHITE CERAMIC WATER CLOSET KOHLER CERAMIC HAND HELD BIDET JAQUAR BATHROOM FIXTURES WHITE CERAMIC SINK KOHLER CERAMIC F05 STAINLESS STEEL TOWEL RACK KOHLER BATHROOM FIXTURES F06 STAINLESS STEEL TAP KOHLER BATHROOM FIXTURES WF1 WF2 WF3 GREY CERAMIC TILES GREY MOSAIC TILES EMULSION PAINT 450 100 200 1800 2100 F05 600 200 900 200 200 2700 200 3100 800 300 300 1000 200 900 200 200 2700 200 3100 100 300 900 600 200 200 1800 100 2100 600 200 900 200 200 2700 200 3100 800 300 300 100 900 450 200 500 300 450 100 200 1800 2100 B’ B SEC SEC A SEC SEC A’ B’ B SEC SEC A SEC SEC A’ MASONRY LEGEND FLOOR FINISHES LEGEND WALL FINISHES LEGEND TOILET FIXTURES LEGEND

TOILET DETAILS

Technical drawings for the Ground floor Toilet with flooring details, toilet fixtures, and a wall finish layout. Plans are 4supported with four elevations of the same toilet.

2024 | SELECTED WORKS 41 SECTION B-B' 450 2850 150 1500 850 WF1 SHOWER HEAD WHITE CERAMIC WATER CLOSET A-A' 900 WF2 WF3 MIRROR WHITE CERAMIC WATER CLOSET HAND HELD BIDET WATER CLOSET SECTION B-B' SECTION D-D' 450 2850 150 1500 850 450 2850 150 1200 WF1 WF2 WF3 SHOWER HEAD WHITE CERAMIC WATER CLOSET STAINLESS STEEL TAP SECTION A-A' SECTION C-C' 450 2850 150 900 850 2100 900 WF1 WF1 WF2 WF3 WF3 MIRROR WHITE CERAMIC WATER CLOSET HAND HELD BIDET STAINLESS STEEL TOWEL RACK WATER CLOSET 450 2850 150 1200 WF2 SECTION A-A' SECTION C-C' 450 900 WF1 WF3 STAINLESS STEEL TOWEL RACK 450 2850 150 1200 WF2 SECTION B-B' SECTION D-D' 450 2850 150 1500 850 450 2850 150 1200 WF1 WF2 WF3 SHOWER HEAD WHITE CERAMIC WATER CLOSET STAINLESS STEEL TAP WATER CLOSET SECTION - AA’ TOILET DETAILS SECTION - DD’ TOILET DETAILS SECTION - CC’ TOILET DETAILS SECTION - BB’ TOILET DETAILS WALL FINISHES LAYOUT TOILET FIXTURES LAYOUT 1000 200 200 200 200 800 300 100 900 450 200 WF1 WF3 WF2 450 100 200 1800 2100 600 200 900 200 2700 3100 800 300 300 1000 200 900 200 200 2700 200 3100 100 300 900 600 200 200 1800 100 2100 600 200 900 200 200 2700 200 3100 800 300 300 100 900 450 200 500 300 450 100 200 1800 2100 B’ B SEC SEC A SEC SEC A’ B’ B SEC SEC A SEC SEC A’ TOILET KEY PLAN

UPPER CABINET DOOR OF SIZE 450 X 600 X 20 MADE OF 19MM

UPPER CABINET DOOR OF SIZE 450 X 600 X 20 MADE OF 19MM

PLYWOOD FINISHED IN 1MM OAK WOOD VENEER

PLYWOOD FINISHED IN 1MM OAK WOOD VENEER

UPPER CABINET DOOR OF SIZE 450 X 600 X 20 MADE OF 19MM

PLYWOOD FINISHED IN 1MM OAK WOOD VENEER

OPEN SHELF OF SIZE 450 X 180 X 390MM MADE OF 19MM PLYWOOD

OPEN SHELF OF SIZE 450 X 180 X 390MM MADE OF 19MM PLYWOOD

FINISHED IN 1MM OAK WOOD VENEER

FINISHED IN 1MM OAK WOOD VENEER

OPEN SHELF OF SIZE 450 X 180 X 390MM MADE OF 19MM PLYWOOD

FINISHED IN 1MM OAK WOOD VENEER

2MM RATAN INLAY

2MM RATAN INLAY

2MM RATAN INLAY

4MM FLUTED GLASS INLAY

4MM FLUTED GLASS INLAY

4MM FLUTED GLASS INLAY

OVERHEAD CABINET DOOR OF SIZE 450 X 600 X 20 MADE OF 19MM PLYWOOD FINISHED IN 1MM OAK WOOD VENEER

OVERHEAD CABINET DOOR OF SIZE 450 X 600 X 20 MADE OF 19MM PLYWOOD FINISHED IN 1MM OAK WOOD VENEER

OVERHEAD CABINET DOOR OF SIZE 450 X 600 X 20 MADE OF 19MM PLYWOOD FINISHED IN 1MM OAK WOOD VENEER

140MM BACKBOARD WITH STRIP LIGHTING

CABINET HANDLE OF HEIGHT 160MM AND DIAMETER 10MM IN BRASS

CABINET HANDLE

CABINET HANDLE

DRAWER 0F SIZE 450 X 410 X 200 MADE OF 19MM PLYWOOD FINISHED IN 1MM OAK WOOD VENEER

DRAWER 0F SIZE 450 X 410 X 200 MADE OF 19MM PLYWOOD

FINISHED IN 1MM OAK WOOD VENEER

X 410 X 200 MADE OF 19MM PLYWOOD

FINISHED IN 1MM OAK WOOD VENEER

OPEN SHELF OF SIZE 510 X 180 X 390MM MADE OF 19MM PLYWOOD

FINISHED IN 1MM OAK WOOD VENEER

OPEN SHELF OF SIZE

X 180 X 390MM MADE OF 19MM PLYWOOD FINISHED IN 1MM OAK WOOD VENEER 140MM BACKBOARD WITH STRIP LIGHTING DRAWER 0F SIZE

MM SKIRTING IN PLYWOOD LOWER CABINET DOOR OF SIZE

X 600 X 20 MADE OF 19MM PLYWOOD FINISHED IN 1MM OAK WOOD VENEER

NIKITHA AUDREY D’SOUZA | PORTFOLIO 42 ELEVATION SCALE - 1:30 410 20 450 20 4700 450 450 450 450 650 450 450 450 450 450 LONG CABINET DOOR OF SIZE 450 X 2100 X 20 MADE OF 19MM PLYWOOD FINISHED IN 1MM POLISH OVERHEAD CABINET DOOR OF SIZE 450 X 600 X 20 MADE OF 19MM PLYWOOD FINISHED IN 1MM POLISH UPPER CABINET SHELVES OF SIZE 650 X 380 X 390 MADE OF 19MM PLYWOOD FINISHED IN 1MM POLISH 200MM THICK MASONRY WALL 20 20 20 20 20 20 200 SECTION - BB' SCALE - 1:30 SECTION - AA' SCALE - 1:30 410 20 450 20 4700 450 450 450 450 650 450 450 450 450 450 20 LONG CABINET DOOR OF SIZE 450 X 2100 X 20 MADE OF 19MM PLYWOOD FINISHED IN 1MM POLISH DRAWER 0F SIZE 330 X 330 X 140 MADE OF 19MM PLYWOOD FINISHED IN 1MM POLISH CABINET HANDLE OF HEIGHT 160MM AND DIAMETER 10MM IN BRASS OPEN SHELF OF SIZE 650 X 180 X 20MM MADE OF 19MM PLYWOOD FINISHED IN 1MM POLISH 200MM THICK MASONRY WALL 20 20 20 20 20 20 20 200 450 450 450 450 20 20 20 20 20 20 20 450 450 450 450 510 450 4700 560 20 20 20 200 610 20 50 2100 450 450 450 20 450 20 510 20 450 160 160 160 200 200 205 205 900 600 600 160 20 180 180 20 20 LONG CABINET DOOR OF SIZE 450 X 2100 X 20 MADE OF 19MM PLYWOOD FINISHED IN 1MM OAK WOOD VENEER
50
450
40 B SEC A SEC B' PLAN A' PLAN A' SEC B' SEC B PLAN A PLAN ELEVATION SCALE - 1:30 410 20 450 20 4700 450 450 450 450 650 450 450 450 450 450 LONG CABINET DOOR OF SIZE 450 X 2100 X 20 MADE OF 19MM PLYWOOD FINISHED IN 1MM POLISH OVERHEAD CABINET DOOR OF SIZE 450 X 600 X 20 MADE OF 19MM PLYWOOD FINISHED IN 1MM POLISH UPPER CABINET SHELVES OF SIZE 650 X 380 X 390 MADE OF 19MM PLYWOOD FINISHED IN 1MM POLISH 200MM THICK MASONRY WALL 20 20 20 20 20 20 200 SECTION - BB' SCALE - 1:30 SECTION - AA' SCALE - 1:30 410 20 450 20 4700 450 450 450 450 650 450 450 450 450 450 20 LONG CABINET DOOR OF SIZE 450 X 2100 X 20 MADE OF 19MM PLYWOOD FINISHED IN 1MM POLISH DRAWER 0F SIZE 330 X 330 X 140 MADE OF 19MM PLYWOOD FINISHED IN 1MM POLISH CABINET HANDLE OF HEIGHT 160MM AND DIAMETER 10MM IN BRASS OPEN SHELF OF SIZE 650 X 180 X 20MM MADE OF 19MM PLYWOOD FINISHED IN 1MM POLISH 200MM THICK MASONRY WALL 20 20 20 20 20 20 20 200 450 450 450 450 20 20 20 20 20 20 20 450 450 450 450 510 450 4700 560 20 20 20 200 610 20 50 2100 450 450 450 20 450 20 510 20 450 160 160 160 200 200 205 205 900 600 600 160 20 180 180 20 20 LONG CABINET DOOR OF SIZE 450 X 2100 X 20 MADE OF 19MM PLYWOOD FINISHED IN 1MM OAK WOOD VENEER
OF HEIGHT 160MM AND DIAMETER 10MM IN BRASS 50 MM
IN PLYWOOD
OF SIZE 450 X 600 X 20 MADE OF 19MM PLYWOOD
IN 1MM OAK WOOD VENEER
SKIRTING
LOWER CABINET DOOR
FINISHED
450
510
40 B SEC A SEC B' PLAN A' PLAN A' SEC B' SEC B PLAN A PLAN ELEVATION SCALE - 1:30 410 20 450 20 4700 450 450 450 450 650 450 450 450 450 450 LONG CABINET DOOR OF SIZE 450 X 2100 X 20 MADE OF 19MM PLYWOOD FINISHED IN 1MM POLISH OVERHEAD CABINET DOOR OF SIZE 450 X 600 X 20 MADE OF 19MM PLYWOOD FINISHED IN 1MM POLISH UPPER CABINET SHELVES OF SIZE 650 X 380 X 390 MADE OF 19MM PLYWOOD FINISHED IN 1MM POLISH 200MM THICK MASONRY WALL 20 20 20 20 20 20 200 SECTION - BB' SCALE - 1:30 SECTION - AA' SCALE - 1:30 410 20 450 20 4700 450 450 450 450 650 450 450 450 450 450 20 LONG CABINET DOOR OF SIZE 450 X 2100 X 20 MADE OF 19MM PLYWOOD FINISHED IN 1MM POLISH DRAWER 0F SIZE 330 X 330 X 140 MADE OF 19MM PLYWOOD FINISHED IN 1MM POLISH CABINET HANDLE OF HEIGHT 160MM AND DIAMETER 10MM IN BRASS OPEN SHELF OF SIZE 650 X 180 X 20MM MADE OF 19MM PLYWOOD FINISHED IN 1MM POLISH 200MM THICK MASONRY WALL 20 20 20 20 20 20 20 200 450 450 450 450 20 20 20 20 20 20 20 450 450 450 450 510 450 4700 560 20 20 20 200 610 20 50 2100 450 450 450 20 450 20 510 20 450 160 160 160 200 200 205 205 900 600 600 160 20 180 180 20 20 LONG CABINET DOOR OF SIZE 450 X 2100 X 20 MADE OF 19MM PLYWOOD FINISHED IN 1MM OAK WOOD VENEER
OF HEIGHT 160MM AND DIAMETER 10MM IN BRASS 50 MM SKIRTING IN PLYWOOD LOWER CABINET DOOR OF SIZE 450 X 600 X 20 MADE OF 19MM PLYWOOD FINISHED IN 1MM OAK WOOD VENEER
SHELF OF SIZE 510
180 X 390MM
OF 19MM
1MM
OPEN
X
MADE
PLYWOOD FINISHED IN
OAK WOOD VENEER 140MM BACKBOARD WITH STRIP LIGHTING
40 B SEC A SEC B' PLAN A' PLAN A' SEC B' SEC B PLAN A PLAN FRONT ELEVATION CROCKERY UNIT PLAN - AA’ CROCKERY UNIT PLAN - BB’ CROCKERY UNIT

200MM MASONRY WALL

200MM MASONRY WALL

OPEN SHELF OF SIZE 450 X 160 X 390MM MADE OF 19MM PLYWOOD FINISHED IN 1MM OAK WOOD VENEER

OPEN SHELF OF SIZE 450 X 180 X 390MM MADE OF 19MM

PLYWOOD FINISHED IN 1MM OAK WOOD VENEER

140MM BACKBOARD WITH STRIP LIGHTING

140MM BACKBOARD WITH STRIP LIGHTING

200MM MASONRY WALL

LONG CABINET DOOR OF SIZE

LONG CABINET DOOR OF SIZE

450 X 2100 X 20 MADE OF 19MM

450 X 2100 X 20 MADE OF 19MM

PLYWOOD FINISHED IN 1MM OAK WOOD VENEER

PLYWOOD FINISHED IN 1MM OAK WOOD VENEER

OPEN SHELF OF SIZE 900 X 360 X 390MM MADE OF 19MM

OPEN SHELF OF SIZE 900 X 360 X 390MM MADE OF 19MM

PLYWOOD FINISHED IN 1MM OAK WOOD VENEER

PLYWOOD FINISHED IN 1MM OAK WOOD VENEER

OPEN SHELF OF SIZE 430 X 390 X 380MM MADE OF 19MM PLYWOOD FINISHED IN 1MM

50 MM SKIRTING IN PLYWOOD DRAWER

DRAWER 0F SIZE 370 X 370 X 140 MADE OF 19MM PLYWOOD FINISHED IN 1MM OAK WOOD VENEER

CABINET HANDLE OF HEIGHT 160MM AND DIAMETER 10MM IN BRASS

CABINET HANDLE OF HEIGHT 160MM AND DIAMETER 10MM IN BRASS

50 MM SKIRTING IN PLYWOOD

OPEN SHELF OF SIZE 430 X 390 X 380MM MADE OF 19MM PLYWOOD FINISHED IN 1MM OAK WOOD VENEER

CABINET HANDLE OF WIDTH 160MM AND DIAMETER 10MM IN BRASS

CABINET HANDLE OF WIDTH 160MM AND DIAMETER 10MM IN BRASS

OPEN SHELF OF SIZE 430 X 390 X 410MM MADE OF 19MM

OAK WOOD VENEER

PLYWOOD FINISHED IN 1MM OAK WOOD VENEER

50 MM SKIRTING IN PLYWOOD

CROCKERY UNIT

A contemporary take on traditional rustic materials, this crockery unit combines a simple oak wood veneer with ratan inlays and fluted glass to create an amalgamation of textures and shades.

Furniture Description: The crockery unit consists of open shelves, pull out drawers and full length shelves with hinged cabinet doors with either ratan or fluted glass inlays.

2024 | SELECTED WORKS 43
VENEER CABINET
OF DIAMETER 10MM IN BRASS 19MM PLYWOOD 1MM OAK WOOD VENEER 50 MM SKIRTING IN PLYWOOD SECTION A-A’ SCALE - 1:30 SECTION B-B’ SCALE - 1:30 360 20 20 180 20 140 600 140 20 20 50 900 2100 360 410 50 2050 2100 20 160 20 180 180 140 380 400 380 140 140 140 20 20 20 20 40 80 80 80 80 200 80 80 80 800 40 DETAIL OF SKIRTING SCALE - 1:20
OF
SCALE
CROCKERY UNIT WORKING DRAWING 05
19MM PLYWOOD 1MM OAK WOOD
HANDLE
DETAIL
DRAWER
- 1:20
140 MADE
19MM PLYWOOD
1MM OAK WOOD VENEER
SHELF OF SIZE 450
160
390MM MADE OF 19MM PLYWOOD
1MM OAK WOOD
390MM
PLYWOOD
OAK WOOD VENEER
SHELF OF SIZE 430
390 X 410MM MADE OF 19MM PLYWOOD FINISHED IN 1MM
0F SIZE 370 X 370 X
OF
FINISHED IN
OPEN
X
X
FINISHED IN
VENEER OPEN SHELF OF SIZE 450 X 180 X
MADE OF 19MM
FINISHED IN 1MM
OPEN
X
1MM OAK
VENEER CABINET HANDLE
DIAMETER 10MM IN BRASS 19MM
1MM OAK WOOD VENEER 50 MM SKIRTING IN PLYWOOD SECTION A-A’ SCALE - 1:30 SECTION B-B’ SCALE - 1:30 360 20 20 180 20 140 600 140 20 20 50 900 2100 360 410 50 2050 2100 20 160 20 180 180 140 380 400 380 140 140 140 20 20 20 20 40 80 80 80 80 200 80 80 80 800 40 DETAIL OF SKIRTING SCALE - 1:20
1:20 CROCKERY UNIT WORKING DRAWING 05
HANDLE OF HEIGHT 160MM AND DIAMETER 10MM IN BRASS 140MM BACKBOARD WITH STRIP
CABINET DOOR OF SIZE 450 X 2100 X 20 MADE OF 19MM
FINISHED IN
OAK WOOD
160MM
OAK WOOD VENEER 50 MM SKIRTING IN PLYWOOD 200MM MASONRY WALL 19MM PLYWOOD
WOOD
OF
PLYWOOD
DETAIL OF DRAWER SCALE -
CABINET
LIGHTING LONG
PLYWOOD
1MM
VENEER 200MM MASONRY WALL CABINET HANDLE OF WIDTH
AND DIAMETER 10MM IN BRASS
OF 19MM PLYWOOD FINISHED IN 1MM OAK WOOD VENEER OPEN SHELF OF SIZE 450 X 160 X 390MM MADE OF 19MM PLYWOOD FINISHED IN 1MM OAK WOOD VENEER OPEN SHELF OF SIZE 450 X 180 X 390MM
OAK
50 MM SKIRTING IN PLYWOOD DRAWER 0F SIZE 370 X 370 X 140 MADE
MADE OF 19MM PLYWOOD FINISHED IN 1MM
WOOD VENEER
OAK
OPEN SHELF OF SIZE 430 X 390 X 410MM MADE OF 19MM PLYWOOD FINISHED IN 1MM
WOOD VENEER
900 X 360 X 390MM MADE OF 19MM PLYWOOD FINISHED IN 1MM OAK WOOD VENEER OPEN SHELF OF SIZE 430 X 390 X 380MM MADE OF 19MM PLYWOOD FINISHED IN 1MM OAK WOOD VENEER 50 MM SKIRTING IN PLYWOOD 200MM MASONRY WALL 19MM PLYWOOD 1MM OAK WOOD VENEER CABINET HANDLE OF DIAMETER 10MM IN BRASS 19MM PLYWOOD 1MM OAK WOOD VENEER 50 MM SKIRTING IN PLYWOOD SECTION A-A’ SCALE - 1:30 SECTION B-B’ SCALE - 1:30 360 20 20 180 20 140 600 140 20 20 50 900 2100 360 410 50 2050 2100 20 160 20 180 180 140 380 400 380 140 140 140 20 20 20 20 40 80 80 80 80 200 80 80 80 800 40 DETAIL OF SKIRTING SCALE - 1:20 DETAIL OF DRAWER SCALE - 1:20 CROCKERY
WORKING DRAWING 05 SECTION - AA’ CROCKERY UNIT SECTION - BB’ CROCKERY UNIT DETAIL OF DRAWER CROCKERY UNIT DETAIL OF SKIRTING CROCKERY UNIT
OPEN SHELF OF SIZE
UNIT

UPPER LOFT SHELF OF SIZE 360 X 300 X 600 MM MADE OF 19MM

PLYWOOD FINISHED IN 1MM WALNUT VENEER

LED STRIP LIGHTING

CLOTHES HANGER ROD OF DIAMETER 10MM

HANGER SHELF OF SIZE 990 X 260 X

600 MM MADE OF 19MM

PLYWOOD FINISHED IN 1MM WALNUT VENEER

DRAWER DOOR OF SIZE 520 X 210

MM MADE OF 19MM PLYWOOD FINISHED IN 1MM WALNUT VENEER

TROUSERS HANGER ROD OF SIZE 20 X 20 X 560 MADE OF STAINLESS STEEL

DRAWER DOOR OF SIZE 560 X 230 MM MADE OF 19MM PLYWOOD FINISHED IN 1MM WALNUT VENEER

B’

50 2350 1020 260 990 190 600 150 170 390

50 MM

SCALE - 1:30

NARROW SHELF OF SIZE 300 X 360 X 600 MM MADE OF 19MM PLYWOOD FINISHED IN 1 MM WALNUT VENEER

NARROW SHELF OF SIZE 300 X 360 X 600 MM MADE OF 19MM PLYWOOD FINISHED IN 1 MM WALNUT VENEER

200MM THICK MASONRY WALL

200MM THICK MASONRY WALL

200MM THICK MASONRY WALL

HANGER SHELF OF SIZE 990 X 260 X 600 MM MADE OF 19MM PLYWOOD FINISHED IN 1MM WALNUT VENEER

200MM THICK MASONRY WALL

HANGER SHELF OF SIZE 990 X 260 X 600 MM MADE OF 19MM PLYWOOD FINISHED IN 1MM WALNUT VENEER

HANGER SHELF OF SIZE 990 X 260 X 600 MM MADE OF 19MM PLYWOOD FINISHED

HANGER SHELF OF SIZE 2030 X 260 X 600 MM MADE OF 19MM PLYWOOD FINISHED IN 1MM WALNUT VENEER

HANGER SHELF OF SIZE 2030 X 260 X 600 MM MADE OF 19MM PLYWOOD FINISHED

HANGER SHELF OF SIZE 2030 X 260 X 600 MM MADE OF 19MM PLYWOOD FINISHED IN 1MM WALNUT VENEER

200MM THICK MASONRY WALL MIDDLE SHELF FOR CLOTHES OF SIZE 600 X 190 X 600 MM MADE OF 19MM PLYWOOD FINISHED IN 1MM WALNUT VENEER

CLOTHES OF SIZE 600 X 190 X 600 MM MADE OF 19MM PLYWOOD FINISHED IN 1MM WALNUT VENEER

PLYWOOD FINISHED IN 1MM WALNUT VENEER

WALNUT VENEER

NARROW SHELF FOR SHOES OF SIZE 300 X 400 X 600 MM MADE OF 19MM PLYWOOD FINISHED IN 1MM WALNUT VENEER

OF 19MM PLYWOOD FINISHED IN 1MM WALNUT VENEER

NARROW SHELF FOR SHOES OF SIZE 300 X 400 X 600 MM MADE OF 19MM PLYWOOD FINISHED IN 1MM WALNUT VENEER

NARROW SHELF FOR SHOES OF SIZE 300 X 400 X 600 MM MADE OF 19MM PLYWOOD FINISHED IN 1MM WALNUT VENEER

NARROW SHELF FOR SHOES OF SIZE 300 X 400 X 600 MM MADE OF 19MM PLYWOOD FINISHED IN 1MM WALNUT VENEER

50 2350 2500 210

600 260 400 360 190 190 190 370

X 480 MM MADE OF 19MM PLYWOOD FINISHED IN 1MM POLISH

PLYWOOD FINISHED IN 1MM POLISH

DRAWER OF SIZE 520 X 170 X 480 MM MADE OF 19MM PLYWOOD FINISHED IN 1MM POLISH

LOWER SHELF OF SIZE 390 X 1200 X 600 MM MADE OF 19MM PLYWOOD FINISHED IN 1MM POLISH

LOWER SHELF OF SIZE 390 X 1200 X 600 MM MADE OF 19MM PLYWOOD FINISHED IN 1MM POLISH

50 MM SKIRTING IN PLYWOOD

DRAWER DOOR OF SIZE 520 X 150 X 480 MM MADE OF 19MM PLYWOOD FINISHED IN 1MM WALNUT VENEER

DRAWER DOOR OF SIZE 520 X 150 X 480 MM MADE OF 19MM PLYWOOD FINISHED IN 1MM WALNUT VENEER

DRAWER DOOR OF SIZE 520 X 150 X 480 MM MADE OF 19MM PLYWOOD FINISHED IN 1MM WALNUT VENEER

DRAWER DOOR OF SIZE 520 X 150 X 480 MM MADE OF 19MM PLYWOOD FINISHED IN 1MM WALNUT VENEER

DRAWER DOOR OF SIZE 520 X 150 X 480 MM MADE OF 19MM PLYWOOD FINISHED IN 1MM WALNUT VENEER

SECTION - BB’ 50 2350

SCALE - 1:30

SECTION - BB’

50 MM SKIRTING IN PLYWOOD SCALE - 1:30

NIKITHA AUDREY D’SOUZA | PORTFOLIO 44
SEC
SEC B PLAN A PLAN
600 300 3300 600 600 1200 600 600 1200 360 90 880 190 210 230 370 50 2450 2500 360 360 90 360 400 190 190 190 210 370 190 210 230 370 880 360 90 1920 190 360 400 190 190 190 210 370
SKIRTING IN PLYWOOD SECTIONAL ELEVATION: ELEVATION WITH CLOSED DRAWERS A’
B’
SCALE - 1:30 SECTION - AA’
SCALE - 1:30 PLAN AA’ HANGER SHELF OF SIZE 600 X 990 X 260 MM MADE OF 19MM PLYWOOD FINISHED IN 1MM WALNUT VENEER
600 X 2350 X 20 MM MADE OF 19 MM PLYWOOD FINISHED IN 1 MM WALNUT VENEER
WARDROBE DOOR OF SIZE
SIZE 600 X 190 X 600 MM MADE OF 19MM
200MM THICK MASONRY WALL MIDDLE SHELF FOR CLOTHES OF
SCALE - 1:30 PLAN BB’ (WITHOUT DOORS) 200 20 560 600 20 600 300 3300 600 600 600 600 200 20 520 560 20 600 300 3300 600 600 600 600 A SEC B SEC 200MM
OVERHEAD SHELF OF SIZE 260 X 1200 X 600 MM MADE OF 19 MM PLYWOOD
1MM POLISH UPPER
OF SIZE 400 X 1200 X 600 MM MADE OF 19 MM PLYWOOD FINISHED IN 1MM POLISH UPPER SHELF OF SIZE 370 X 1200 X 600 MM MADE OF 19 MM PLYWOOD FINISHED IN 1MM POLISH MIDDLE SHELF OF SIZE 190 X 1200 X 600 MM MADE OF 19 MM PLYWOOD FINISHED IN 1MM POLISH LOWER SHELF OF SIZE 210 X 1200 X 600 MM MADE OF 19 MM PLYWOOD FINISHED IN 1MM POLISH LOWER SHELF OF SIZE 370 X 1200 X 600 MM MADE OF 19 MM PLYWOOD FINISHED IN 1MM POLISH 50 MM SKIRTING IN PLYWOOD 200MM THICK MASONRY WALL OVERHEAD SHELF OF SIZE 260 X 1200 X 600 MM MADE OF 19 MM PLYWOOD FINISHED IN 1MM POLISH CLOTHES HANGER ROD OF DIAMETER 10MM MADE OF STAINLESS STEEL OPEN SHELF OF SIZE 190 X 1200 X 600 MM MADE OF 19MM PLYWOOD FINISHED IN 1MM POLISH ACCESSORY DRAWER OF SIZE 520 X 150
THICK MASONRY WALL
FINISHED IN
SHELF
PLAN A’ PLAN 2500 SCALE - 1:30 UPPER LOFT SHELF OF SIZE 360 X 300 X 600 MM MADE OF 19MM PLYWOOD FINISHED IN 1MM WALNUT VENEER LED STRIP LIGHTING CLOTHES HANGER ROD OF DIAMETER 10MM
SHELF OF SIZE 990 X 260 X 600 MM MADE OF 19MM PLYWOOD FINISHED IN 1MM WALNUT VENEER
DOOR OF SIZE 520 X 210 MM MADE OF 19MM PLYWOOD FINISHED IN 1MM WALNUT VENEER TROUSERS HANGER ROD OF SIZE 20 X 20 X 560 MADE OF STAINLESS STEEL DRAWER DOOR OF SIZE 560 X 230 MM MADE OF 19MM PLYWOOD FINISHED IN 1MM WALNUT VENEER 50 MM SKIRTING IN PLYWOOD SECTIONAL ELEVATION: ELEVATION WITH CLOSED DRAWERS A’ SEC B’ SEC B PLAN A PLAN SCALE - 1:30 SECTION - AA’ 600 300 3300 600 600 1200 600 600 1200 360 90 880 190 210 230 370 50 2450 2500 360 360 90 360 400 190 190 190 210 370 190 210 230 370 880 360 90 1920 190 360 400 190 190 190 210 370 SCALE
PLAN AA’
HANGER
DRAWER
- 1:30
HANGER SHELF OF SIZE 600 X 990 X 260 MM MADE OF 19MM PLYWOOD FINISHED IN 1MM WALNUT VENEER
200MM THICK MASONRY WALL HANGER SHELF OF SIZE 990 X 260 X 600 MM MADE OF 19MM PLYWOOD FINISHED IN 1MM WALNUT VENEER
SHELF OF SIZE 2030 X 260 X 600 MM MADE OF 19MM PLYWOOD FINISHED IN 1MM WALNUT VENEER WARDROBE DOOR OF SIZE 600 X 2350 X 20 MM MADE OF 19 MM PLYWOOD FINISHED IN 1 MM WALNUT VENEER 200MM THICK MASONRY WALL MIDDLE SHELF FOR CLOTHES OF SIZE 600 X 190 X 600 MM MADE OF 19MM PLYWOOD FINISHED IN 1MM WALNUT VENEER NARROW SHELF FOR SHOES OF SIZE 300 X 400 X 600 MM MADE
HANGER
SCALE - 1:30 PLAN BB’ (WITHOUT DOORS) 200 20 560 600 20 600 300 3300 600 600 600 600 200 20 520 560 20 600 300 3300 600 600 600 600 A SEC B SEC
260
MADE OF 19 MM PLYWOOD FINISHED IN 1MM POLISH UPPER SHELF OF SIZE 400 X 1200 X 600 MM MADE OF 19 MM PLYWOOD FINISHED IN 1MM POLISH
SHELF OF SIZE 370 X 1200 X 600 MM MADE OF 19 MM PLYWOOD FINISHED IN 1MM POLISH MIDDLE SHELF OF SIZE 190 X 1200 X 600 MM MADE OF 19 MM PLYWOOD FINISHED IN 1MM POLISH
SHELF OF SIZE 210 X 1200 X 600 MM MADE OF 19 MM PLYWOOD FINISHED IN 1MM POLISH LOWER SHELF OF SIZE 370 X 1200 X 600 MM MADE OF 19 MM PLYWOOD FINISHED IN 1MM POLISH 50 MM SKIRTING IN PLYWOOD 200MM THICK MASONRY WALL OVERHEAD SHELF OF SIZE 260 X 1200 X 600 MM MADE OF 19 MM PLYWOOD FINISHED IN 1MM POLISH CLOTHES HANGER ROD OF DIAMETER 10MM MADE OF STAINLESS STEEL OPEN SHELF OF SIZE 190 X 1200 X 600 MM MADE OF 19MM PLYWOOD FINISHED IN 1MM POLISH ACCESSORY DRAWER OF SIZE 520 X 150 X 480 MM MADE OF 19MM PLYWOOD FINISHED IN 1MM POLISH DRAWER OF SIZE 520 X 170 X 480 MM MADE OF 19MM
200MM THICK MASONRY WALL OVERHEAD SHELF OF SIZE
X 1200 X 600 MM
UPPER
LOWER
1020 260 990 190 600 150 170 390 50 2350 2500 210 600 260 400 360 190 190 190 370 B’ PLAN A’ PLAN 2500 SCALE - 1:30 UPPER LOFT SHELF OF SIZE 360 X 300 X 600 MM MADE OF 19MM PLYWOOD FINISHED IN 1MM WALNUT VENEER LED STRIP LIGHTING CLOTHES HANGER ROD OF DIAMETER 10MM HANGER SHELF OF SIZE 990 X 260 X 600 MM MADE OF 19MM PLYWOOD FINISHED IN 1MM WALNUT VENEER DRAWER DOOR OF SIZE 520 X 210 MM MADE OF 19MM PLYWOOD FINISHED IN 1MM WALNUT VENEER TROUSERS HANGER ROD OF SIZE 20 X 20 X 560 MADE OF STAINLESS STEEL DRAWER DOOR OF SIZE 560 X 230 MM MADE OF 19MM PLYWOOD FINISHED IN 1MM WALNUT VENEER 50 MM SKIRTING IN PLYWOOD SECTIONAL ELEVATION: ELEVATION WITH CLOSED DRAWERS A’ SEC B’ SEC B PLAN A PLAN SCALE - 1:30 SECTION - AA’ 600 300 3300 600 600 1200 600 600 1200 360 90 880 190 210 230 370 50 2450 2500 360 360 90 360 400 190 190 190 210 370 190 210 230 370 880 360 90 1920 190 360 400 190 190 190 210 370
PLAN AA’
260 MM
19MM PLYWOOD
WALNUT
SCALE - 1:30
HANGER SHELF OF SIZE 600 X 990 X
MADE OF
FINISHED IN 1MM
VENEER
300
600
PLYWOOD
WALNUT
NARROW SHELF OF SIZE
X 360 X
MM MADE OF 19MM
FINISHED IN 1 MM
VENEER
IN 1MM WALNUT VENEER
SHELF OF SIZE 2030 X 260 X 600 MM MADE OF 19MM PLYWOOD FINISHED IN 1MM WALNUT VENEER
DOOR OF SIZE 600 X 2350 X 20 MM
19
PLYWOOD
IN 1 MM WALNUT
HANGER
WARDROBE
MADE OF
MM
FINISHED
VENEER
SIZE 600
190
600
19MM PLYWOOD
1MM
200MM THICK MASONRY WALL MIDDLE SHELF FOR CLOTHES OF
X
X
MM MADE OF
FINISHED IN
SCALE - 1:30 PLAN BB’ (WITHOUT DOORS) 200 20 560 600 20 600 300 3300 600 600 600 600 200 20 520 560 20 600 300 3300 600 600 600 600 A SEC B SEC 200MM THICK MASONRY WALL OVERHEAD SHELF OF SIZE 260 X 1200 X 600 MM MADE OF 19 MM PLYWOOD FINISHED IN 1MM POLISH UPPER SHELF OF SIZE 400 X 1200 X 600 MM MADE OF 19 MM PLYWOOD FINISHED IN 1MM POLISH UPPER SHELF OF SIZE 370 X 1200 X 600 MM MADE OF 19 MM PLYWOOD FINISHED IN 1MM POLISH MIDDLE SHELF OF SIZE 190 X 1200 X 600 MM MADE OF 19 MM PLYWOOD FINISHED IN 1MM POLISH LOWER SHELF OF SIZE 210 X 1200 X 600 MM MADE OF 19 MM PLYWOOD FINISHED IN 1MM POLISH LOWER SHELF OF SIZE 370 X 1200 X 600 MM MADE OF 19 MM PLYWOOD FINISHED IN 1MM POLISH 50 MM SKIRTING IN PLYWOOD 200MM THICK MASONRY WALL OVERHEAD SHELF OF SIZE 260 X 1200 X 600 MM MADE OF 19 MM PLYWOOD FINISHED IN 1MM POLISH CLOTHES HANGER ROD OF DIAMETER 10MM MADE OF STAINLESS STEEL OPEN SHELF OF SIZE 190 X 1200 X 600 MM MADE OF 19MM PLYWOOD FINISHED IN 1MM POLISH ACCESSORY DRAWER OF SIZE 520 X 150 X 480 MM MADE OF 19MM PLYWOOD
POLISH
1200
600
- 1:30
- BB’ 50
260
150
390 50
2500 210 600 260 400 360 190 190 190 370 B’
A’ PLAN 2500
1:30 UPPER LOFT SHELF OF SIZE 360 X 300 X 600 MM MADE OF 19MM PLYWOOD FINISHED IN 1MM WALNUT VENEER LED STRIP LIGHTING CLOTHES HANGER ROD OF DIAMETER 10MM HANGER SHELF OF SIZE 990 X 260 X 600 MM MADE OF 19MM PLYWOOD FINISHED IN 1MM WALNUT VENEER DRAWER DOOR OF SIZE 520 X 210 MM MADE OF 19MM PLYWOOD FINISHED IN 1MM WALNUT VENEER TROUSERS HANGER ROD OF SIZE 20 X 20 X 560 MADE OF STAINLESS STEEL DRAWER DOOR OF SIZE 560 X 230 MM MADE OF 19MM PLYWOOD FINISHED IN 1MM WALNUT VENEER 50 MM SKIRTING IN PLYWOOD SECTIONAL ELEVATION: ELEVATION WITH CLOSED DRAWERS A’ SEC B’ SEC B PLAN A PLAN SCALE - 1:30 SECTION - AA’ 600 300 3300 600 600 1200 600 600 1200 360 90 880 190 210 230 370 50 2450 2500 360 360 90 360 400 190 190 190 210 370 190 210 230 370 880 360 90 1920 190 360 400 190 190 190 210 370 SCALE
1:30 PLAN AA’
260
PLYWOOD
FINISHED IN 1MM POLISH DRAWER OF SIZE 520 X 170 X 480 MM MADE OF 19MM PLYWOOD FINISHED IN 1MM
LOWER SHELF OF SIZE 390 X
X
MM MADE OF 19MM PLYWOOD FINISHED IN 1MM POLISH 50 MM SKIRTING IN PLYWOOD SCALE
SECTION
2350 1020
990 190 600
170
2350
PLAN
SCALE -
-
HANGER SHELF OF SIZE 600 X 990 X
MM MADE OF 19MM
FINISHED IN 1MM WALNUT VENEER
NARROW SHELF OF SIZE 300 X 360 X 600 MM MADE OF 19MM PLYWOOD FINISHED IN 1 MM WALNUT VENEER
HANGER SHELF OF SIZE 990 X 260 X 600 MM MADE OF 19MM PLYWOOD FINISHED IN 1MM WALNUT VENEER
IN 1MM WALNUT VENEER
DOOR OF SIZE 600 X 2350 X 20 MM MADE OF 19 MM PLYWOOD FINISHED IN 1 MM WALNUT VENEER
THICK MASONRY WALL MIDDLE SHELF FOR
WARDROBE
200MM
SCALE - 1:30 PLAN BB’ (WITHOUT DOORS) 200 20 560 600 20 600 300 3300 600 600 600 600 200 20 520 560 20 600 300 3300 600 600 600 600 A SEC B SEC 200MM THICK MASONRY
OVERHEAD SHELF OF SIZE 260 X 1200 X 600 MM MADE OF 19 MM PLYWOOD FINISHED IN 1MM POLISH UPPER SHELF OF SIZE 400 X 1200 X 600 MM MADE OF 19 MM PLYWOOD FINISHED IN 1MM POLISH UPPER SHELF OF SIZE 370 X 1200 X 600 MM MADE OF 19 MM PLYWOOD FINISHED IN 1MM POLISH MIDDLE SHELF OF SIZE 190 X 1200 X 600 MM MADE OF 19 MM PLYWOOD FINISHED IN 1MM POLISH LOWER SHELF OF SIZE 210 X 1200 X 600 MM MADE OF 19 MM PLYWOOD FINISHED IN 1MM POLISH LOWER SHELF OF SIZE 370 X 1200 X 600 MM MADE OF 19 MM PLYWOOD FINISHED IN 1MM POLISH 50 MM SKIRTING IN PLYWOOD 200MM THICK MASONRY WALL OVERHEAD SHELF OF SIZE 260 X 1200 X 600 MM MADE OF 19 MM PLYWOOD FINISHED IN 1MM POLISH CLOTHES HANGER ROD OF DIAMETER 10MM MADE OF STAINLESS STEEL OPEN SHELF OF SIZE 190 X 1200 X 600 MM MADE OF 19MM PLYWOOD FINISHED IN 1MM POLISH ACCESSORY DRAWER OF SIZE 520 X 150 X 480 MM MADE OF 19MM PLYWOOD FINISHED IN 1MM POLISH DRAWER OF SIZE 520 X 170 X 480 MM MADE OF 19MM PLYWOOD FINISHED IN 1MM POLISH LOWER SHELF OF SIZE 390 X 1200 X 600 MM MADE OF 19MM PLYWOOD FINISHED IN 1MM POLISH 50 MM SKIRTING IN PLYWOOD SCALE - 1:30 SECTION - BB’ 50 2350 1020 260 990 190 600 150 170 390 50 2350 2500 210 600 260 400 360 190 190 190 370 B’ PLAN A’ PLAN 2500 SECTIONAL ELEVATION: ELEVATION WITH CLOSED DRAWRS WARDROBE UNIT SECTION - AA’ WARDROBE UNIT SCALE - 1:30 UPPER LOFT SHELF OF SIZE 360 X 300 X 600 MM MADE OF 19MM PLYWOOD FINISHED IN 1MM WALNUT VENEER LED STRIP LIGHTING CLOTHES HANGER ROD OF DIAMETER 10MM HANGER SHELF OF SIZE 990 X 260 X 600 MM MADE OF 19MM PLYWOOD FINISHED IN 1MM WALNUT VENEER DRAWER DOOR OF SIZE 520 X 210 MM MADE OF 19MM PLYWOOD FINISHED IN 1MM WALNUT VENEER TROUSERS HANGER ROD OF SIZE 20 X 20 X 560 MADE OF STAINLESS STEEL DRAWER DOOR OF SIZE 560 X 230 MM MADE OF 19MM PLYWOOD FINISHED IN 1MM WALNUT VENEER 50 MM SKIRTING IN PLYWOOD SECTIONAL ELEVATION: ELEVATION WITH CLOSED DRAWERS A’ SEC B’ SEC B PLAN A PLAN SCALE - 1:30 SECTION - AA’ 600 300 3300 600 600 1200 600 600 1200 360 90 880 190 210 230 370 50 2450 2500 360 360 90 360 400 190 190 190 210 370 190 210 230 370 880 360 90 1920 190 360 400 190 190 190 210 370
AA’
600
260
PLYWOOD
WALNUT
WALL
SCALE - 1:30 PLAN
HANGER SHELF OF SIZE
X 990 X
MM MADE OF 19MM
FINISHED IN 1MM
VENEER NARROW SHELF OF SIZE 300 X 360 X 600 MM MADE OF 19MM PLYWOOD FINISHED IN 1 MM WALNUT VENEER
WARDROBE DOOR OF SIZE 600 X 2350 X 20 MM MADE OF 19 MM PLYWOOD FINISHED IN 1 MM WALNUT VENEER
SCALE - 1:30 PLAN BB’ (WITHOUT DOORS) 200 20 560 600 20 600 300 3300 600 600 600 600 200 20 520 560 20 600 300 3300 600 600 600 600 A SEC B SEC 200MM THICK MASONRY
OVERHEAD SHELF OF SIZE 260
1200
600 MM MADE OF 19 MM PLYWOOD FINISHED
POLISH UPPER SHELF OF SIZE 400 X 1200 X 600 MM MADE OF 19 MM PLYWOOD FINISHED IN 1MM POLISH UPPER SHELF OF SIZE 370 X 1200 X 600 MM MADE OF 19 MM PLYWOOD FINISHED IN 1MM POLISH MIDDLE SHELF OF SIZE 190 X 1200 X 600 MM MADE OF 19 MM PLYWOOD FINISHED IN 1MM POLISH LOWER SHELF OF SIZE 210 X 1200 X 600 MM MADE OF 19 MM PLYWOOD FINISHED IN 1MM POLISH LOWER SHELF OF SIZE 370 X 1200 X 600 MM MADE OF 19 MM PLYWOOD FINISHED IN 1MM POLISH 50 MM SKIRTING IN PLYWOOD 200MM THICK MASONRY WALL OVERHEAD SHELF OF SIZE 260 X 1200 X 600 MM MADE OF 19 MM PLYWOOD FINISHED IN 1MM POLISH CLOTHES HANGER ROD OF DIAMETER 10MM MADE OF STAINLESS STEEL OPEN SHELF OF SIZE 190 X 1200 X 600 MM MADE OF 19MM PLYWOOD FINISHED IN 1MM POLISH ACCESSORY DRAWER OF SIZE 520 X 150 X 480 MM MADE OF 19MM PLYWOOD FINISHED IN 1MM POLISH DRAWER OF SIZE 520 X 170 X 480 MM MADE OF 19MM PLYWOOD FINISHED IN 1MM POLISH LOWER SHELF OF SIZE 390 X 1200 X 600 MM MADE OF 19MM PLYWOOD FINISHED IN 1MM POLISH 50 MM SKIRTING IN PLYWOOD SCALE - 1:30 SECTION - BB’ 50 2350 1020 260 990 190 600 150 170 390 50 2350 2500 210 600 260 400 360 190 190 190 370 B’ PLAN A’ PLAN 2500 PLAN - AA’ WARDROBE UNIT PLAN - BB’ (WITHOUT DOORS) WARDROBE UNIT SECTION - BB’ WARDROBE UNIT
WALL
X
X
IN 1MM

WARDROBE UNIT

A minimalist wooden wardrobe finished with a wooden veneer, and doors with thin wooden grooves. The wardrobe also includes a long mirror on it’s third door.

Furniture Description: The wardrobe includes a variety of different shelves and drawer combinations of different sizes that can accomodate all types of clothing items. It also has hanger rods and built in drawer accessory organisers.

LONG WARDROBE DOOR OF SIZE

600 X 2350 X 20 MM MADE OF 19 MM PLYWOOD FINISHED IN 1 MM WALNUT VENEER

LONG WARDROBE DOOR OF SIZE

TOP OF INTERIOR SHELF

TOP OF INTERIOR SHELF

SECTION - BB’

EXPLODED ISOMETRIC VIEW

SCALE - 1:30

WARDROBE UNIT

EXPLODED ISOMETRIC VIEW

SCALE - 1:30

600 X 2350 X 20 MM MADE OF 19 MM PLYWOOD FINISHED IN 1 MM WALNUT VENEER

LONG WARDROBE DOOR OF SIZE

600 X 2350 X 20 MM MADE OF 19

5 MM GROOVES SPACED 15 MM APART

5 MM GROOVES SPACED 15 MM APART

4 MM FLUTED GLASS INLAY OF SIZE 370 X 1970 MM

4 MM FLUTED GLASS INLAY OF SIZE 370 X 1970 MM

MIDDLE SHELF FOR SHOES OF SIZE

400 X 300 X 600 MM MADE OF 19 MM PLYWOOD FINISHED IN 1MM POLISH

MIDDLE SHELF FOR SHOES OF SIZE

400 X 300 X 600 MM MADE OF 19 MM PLYWOOD FINISHED IN 1MM POLISH

LONG WARDROBE DOOR OF SIZE

600 X 2350 X 20 MM MADE OF 19 MM PLYWOOD FINISHED IN 1 MM WALNUT VENEER

LONG WARDROBE

LONG

600

LOWER SHELF FOR SHOES OF SIZE

370 X 300 X 600 MM MADE OF 19 MM PLYWOOD FINISHED IN 1 MM WALNUT VENEER

1 MM WALNUT VENEER

FULL LENGTH MIRROR OF SIZE

540 X 2300 MM

FULL LENGTH MIRROR OF SIZE

540 X 2300 MM

80 80

CONCEALED DOOR HANDLE

CONCEALED DOOR HANDLE

19MM PLYWOOD FINISHED IN 1 MM POLISH

19MM PLYWOOD FINISHED IN 1 MM POLISH

DETAIL OF DRAWER

SCALE - 1:20

DETAIL OF DRAWER

SCALE - 1:20

DETAIL OF DRAWER

DETAIL

WARDROBE UNIT

CONCEALED DOOR HANDLE

80 7.9 40 20

CONCEALED DOOR HANDLE 19 MM PLYWOOD FINISHED IN 1 MM POLISH

19 MM PLYWOOD FINISHED IN 1 MM POLISH

DETAIL OF WARDROBE DOOR HANDLE

SCALE - 1:20

DETAIL OF WARDROBE DOOR HANDLE

SCALE - 1:20

DETAIL

DETAIL OF HANDLE

WARDROBE UNIT

2024 | SELECTED WORKS 45
OF SIZE
X 2350 X 20 MM MADE OF 19 MM PLYWOOD FINISHED IN 1 MM WALNUT VENEER
DOOR
600
OF SIZE
X 300 X 600 MM MADE OF 19 MM PLYWOOD FINISHED IN
LOWER SHELF FOR SHOES
370
80 80 80 7.9 40 20
MM PLYWOOD FINISHED IN 1 MM WALNUT VENEER
MM GROOVES SPACED 15 MM APART
MM FLUTED GLASS INLAY OF SIZE 370 X 1970 MM
SHELF FOR SHOES OF SIZE 400 X 300 X 600 MM MADE OF 19 MM PLYWOOD FINISHED IN 1MM POLISH
5
4
MIDDLE
WARDROBE DOOR OF SIZE
X 2350 X 20 MM MADE OF 19 MM PLYWOOD FINISHED IN 1 MM WALNUT VENEER
SHELF FOR SHOES OF SIZE 370 X 300 X 600 MM MADE OF 19 MM PLYWOOD FINISHED IN 1 MM WALNUT VENEER FULL LENGTH MIRROR OF SIZE 540 X 2300 MM SCALE - 1:30 EXPLODED ISOMETRIC VIEW
- 1:20
LOWER
SCALE
OF WARDROBE DOOR HANDLE TOP OF INTERIOR SHELF
DOOR HANDLE 19MM PLYWOOD FINISHED IN 1 MM POLISH
DOOR HANDLE 19 MM PLYWOOD FINISHED IN 1 MM POLISH 80 80 80 7.9 40 20
- 1:20
CONCEALED
CONCEALED
SCALE
OF DRAWER

06.

MISCELLANEOUS

VOLUME ZERO: TINY HOME 2023 | COMPETITIONS

In Collaboration with Preetha G & Valli Ramanathan.

In the icy vastness of Antarctica, a 300 sqft mobile tiny house stands as a beacon of innovation for researchers. This two-story structure, ensures seamless mobility across challenging terrains.

NIKITHA AUDREY D’SOUZA | PORTFOLIO 46

GROUND FLOOR PLAN

TINY HOME

FIRST FLOOR PLAN

TINY HOME

SECTIONAL PERSPECTIVE

TINY HOME

ISOMETRIC VIEW

TINY HOME

EXPLODED ISOMETRIC VIEW

TINY HOME

This Antarctic explorer cabin represents a paradigm shift in research capabilities, allowing scientists to navigate the continent, study its unique environment, and contribute to a deeper understanding of Earth's most extreme landscapes.

ENGINEERED HARDWOOD

INFLOOR BOARD

INSULATION BOARD

METAL DECK WITH TUBING

FLOORING DETAIL

TINY HOME

2024 | SELECTED WORKS 47
2024 | SELECTED WORKS

EVENT POSTERS

GRAPHIC DESIGN

DESIGN POSTERS

GRAPHIC DESIGN

ANIMATION STORYBOARD

DIGITAL ART

LOGO DESIGN

GRAPHIC DESIGN

MISCELLANEOUS PROJECTS

NIKITHA AUDREY D’SOUZA | PORTFOLIO 48

NASA’S PODCAST: THE ARCHADE

INTERVIEWS, SCRIPT WRITING & PODCAST EPISODE CO-ORDINATION

VIDEOGRAPHY & VIDEO EDITING

DA VINCI RESOLVE

NASA’S INDIAN ARCH 2024

ARCHITECTURE

JOURNALISM

PHOTOGRAPHY

EDITING & PHOTOGRAPHY

2024 | SELECTED WORKS 49
NIKITHA AUDREY D’SOUZA +91 9945758253
nikithaaudrey@gmail.com

Turn static files into dynamic content formats.

Create a flipbook
Architecture Portfolio 2024 | Nikitha Audrey D'Souza by Nikitha Audrey - Issuu