LTH STUDIO DESIGN 5 Y3S1, AY20242025 B.A. (ARCH)

Page 1


AR3101 DESIGN 5 STUDIO REPORT 2024

REIMAGINING TANJONG PAGAR COMMUNITY:

LIVEABILITY, COMMUNITY AND PLACE MAKING

A HISTORIC DISTRICT

Tanjong Pagar is one of the historic districts in Singapore and it is generally well known for its diverse architectural style, land use, and built density, as well as the historic conservation shophouse. The selected Tanjong Pagar study area (Refer to Fig.1.1) within the Tanjong Pagar district includes variety of land use such as residential, civic and community institution, conservation shophouses, commercial and mixed-use developments.

TANJONG PAGAR ‘PLACE AND SPACES’ + DIVERSE AND VIBRANT COMMUNITIES

As with the diverse land uses within the study area, Tanjong Pagar is home to vibrant and varied communities, including public housing neighborhoods with residents of different ages and ethnicities, office workers, tourists staying in nearby hotels, and small and medium businesses. F&B outlets, retail shops at Tanjong Pagar Plaza, Duxton@Pinnacle, and the conservation shophouses collectively contribute to its identity as a historic conservation district in Singapore, creating a unique blend of activity and character.

However, the identity of Tanjong Pagar is not merely defined by its physical structures or economic functions. It is deeply shaped by the interactions and experiences of those who live, work, recreate, or visit the area. A place’s identity goes beyond just being an address or a point on a map—it is defined by the personal and shared experiences that imbue it with meaning and significance.

Edward Relph (1976, pp. 44–62) highlights three fundamental elements that form the identity of a place: its physical setting, the activities it supports, and the meanings attached to it by people (Refer to Fig. 2.1). These elements emphasize that a place’s identity is not simply an objective quality (identity of) but also a subjective relationship (identity with). This relationship reflects how individuals and groups connect with and perceive a place—whether as insiders integrated into its daily life or as outsiders engaging with it temporarily.

(Reference: Diagram extracted from SUTD Option Studio 2024, SAA, RSP, TAt Architects)

Fig. 1.1: Tanjong Pagar Study Area (Source: Google Map)
Fig 2.1. Adapted from “Place and Placelessness” by Edward Relph

METHODOLOGY : “PARTS AND WHOLE” + SPATIAL USAGE + RELATIONSHIP

“By looking at architecture with a focus on “parts and a whole”, relationships between parts or parts and a whole entity surface and the function concept recedes in the background. Differences in such relationships become differences in architectures, and the meaning of each architecture becomes clear by relating such differences with uses and the surroundings …” 2

– Professor Tsukamoto Yoshiharu, Institute of Science Tokyo (formerly Tokyo Institute of Technology) and Co-Founder of Atelier Bow Wow

Drawing inspiration from Atelier Bow-Wow’s publications like “Made in Tokyo”3 “Commonalities of Architecture”4, “Echo of Space/ Space of Echo”5, and “Behaviorology”6, Tanjong Pagar is approached by understanding “the way they related directly to use”3 and by “treating the relation between elements as the major issue…”3. “Made in Tanjong Pagar” endeavors to establish a framework for interpreting and translating the study of urban spatial typologies into architectural interventions that echo the distinctive spatial qualities of Tanjong Pagar.

To develop this framework, the Tanjong Pagar study area is best understood through on-foot exploration of its diverse urban segments. These include a mix of historical built heritage, contemporary urban conditions, and varied spatial uses (Refer to Fig. 3.1 and Fig. 3.2 for photographs). Together, these elements serve as points of contextual and typological reference for the studio’s exploration. By analyzing these components, the studio aims to uncover a distinct “urban identity” for Tanjong Pagar, focusing on common and essential spatial typologies. These typologies not only define the quality and functionality of the physical environment but also serve as integral elements of the broader Tanjong Pagar study area.

Referring to the above photos, these Tanjong Pagar urban spatial typologies represent parts or segments of the built environment extracted from the study area. These spaces are analyzed and interpreted through various configurations of urban types and, in many cases, through the ways occupants interact with and use these spaces.

The Tanjong Pagar urban spatial typologies are organized into a taxonomy, classifying them under various spatial types such as courtyards, staircases, storefronts, corridors, parks, and thoroughfares. For example, a walkway with lush greenery between conservation shophouses functions as both a utilitarian shortcut and a scenic backdrop for restaurant diners (Refer to Fig. 4.1 – “Forested Courtyard”). An atrium at Tanjong Pagar Plaza serves as both a performance and resting space for the community (Refer to Fig. 4.2 – “A Performing Atrium”). A short-cut thoroughfare between two shophouses links to two main streets with continuous shelter at one end only (Refer to Fig. 4.3 – “Shelter Mania”), and bicycle parking that doubles as a waiting and rest area for construction workers (Refer to Fig. 4.4 – “Put Stop”). These spatial qualities within the taxonomy serve as a comprehensive design toolbox, providing a foundation for form creation, narrative development, programmatic considerations, and architectural interventions.

Refer to Fig. 4.5 for a compiled list of the Taxonomy of Spatial Typologies in Tanjong Pagar, also known as “Made in Tanjong Pagar,” developed by the studio.

Fig. 3.2: Photos from left to right: Driveway (‘bridging void space’) between Tanjong Pagar Plaza and Market and Food Centre, and driveway between Tanjong Pagar Plaza and walking through double frontage street thoroughfare at Tanjong Pagar Plaza (Photos by Lee Tat Haur)
TANJONG PAGAR URBAN SPATIAL TAXONOMY
Fig. 4.1: “Forested Courtyard” Fig. 4.2: “A Performing Atrium”
Fig. 4.3: “Shelter Mania” Fig. 4.4: “Pit Stop”
Fig. 3.1: Some examples of different urban spatial qualities at Tanjong Pagar(from left to right): Active frontage of the Tanjong Pagar Market and Food Centre, and ‘active aging courtyard community’ of Tanjong Pagar Plaza (Photos by Lee Tat Haur)
Fig 4.5: Taxonomy of Spatial Typology in Tanjong Pagar, also known as “Made in Tanjong Pagar”

SITE AND INTERVENTIONS

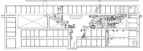
The selection of the five “Made in Tanjong Pagar” sites was influenced by factors such as site context, inherent or potential programmatic richness, and their proximity to the existing Duxton Plain Park connector network (Refer to Fig. 5.1). These sites share common characteristics related to publicness, public housing (Tanjong Pagar Plaza) communities, and placemaking, positioned at the threshold between historical and contemporary urban development. The proposed architectural interventions, primarily through adaptive reuse, aim to transform these sites into a cohesive “Made in Tanjong Pagar Community” spaces (Refer to Fig. 5.2).

Through extraction, documentation, analysis, and translation of the Tanjong Pagar urban spatial typologies, the architectural interventions showcase possibilities for enhancing interaction, stitching together spaces, and responding to the existing built environment.

The work in this studio represents the collective creation and co-creation efforts of dedicated students. These students invested time and energy into reading, researching, dissecting, and translating the spatial context and identity of the built environment. The overarching goal is to clarify how architecture and public spaces can be better defined and enhanced, creating a more meaningful built environment conducive to work, live, and recreate.

1 Relph, Edward, Place and Placelessness, Pion, London, 1976

2 Atelier Bow Wow / (2018, November 5). Part 1: Yoshiharu Tsukamoto “window behaviorology”: Series. WINDOW RESEARCH INSTITUTE. https://madoken.jp/en/series/4959/

3 Kaijima, M., Kuroda, J., & Tsukamoto, Made in Tokyo, Kajima Institute Publishing Co., Ltd, Tokyo, Japan, 2001

4Yoshiharu Tsukamoto, Momoyo Kaijima, Wan, A., Technische Universiteit Delft. Faculteit Bouwkunde, & Wouter Mikmak Foundation. (2016). Commonalities of architecture. Tu Delft, Faculty Of Architecture And The Built Environment ; Baarn.

5Atelier Bow-Wow, Echo of Space / Space of Echo, INAX Publishing, Tokyo, Japan, 2009

Fig 5.1. 300M X 300M Site Analysis Study Area (URA Master Plan 2019)
Fig 5 2 Possible Micro Site Intervention (URA Master Plan 2019)

1 Relph, Edward, Place and Placelessness, Pion, London, 1976

2 Atelier Bow Wow / (2018, November 5). Part 1: Yoshiharu Tsukamoto “window behaviorology”: Series. WINDOW RESEARCH INSTITUTE. https://madoken.jp/en/series/4959/

3 Kaijima, M., Kuroda, J., & Tsukamoto, Made in Tokyo, Kajima Institute Publishing Co., Ltd, Tokyo, Japan, 2001

4Yoshiharu Tsukamoto, Momoyo Kaijima, Wan, A., Technische Universiteit Delft. Faculteit Bouwkunde, & Wouter Mikmak Foundation. (2016). Commonalities of architecture. Tu Delft, Faculty Of Architecture And The Built Environment ; Baarn.

5Atelier Bow-Wow, Echo of Space / Space of Echo, INAX Publishing, Tokyo, Japan, 2009

6 Atelier Bow-Wow, Behaviorology, Rizzoli, New York, 2010

Acknowledgements:

Studio Tutor

Lee Tat Haur (Studio Tutor)

Guest Reviewers

Goh Yong Hui (Ar) , Index Architects

Terrence Seah , Benoy Architects

Jason Lim , SUTD

Pearl Chee (Ar), WOHA Architects

Tang Hsiao Ling, JTC Urban Planning and Architecture

Proposals

Interlude: Layers of Elevation by Charlotte Loh Jia-Ying

Ramp Through the Terrain by Yu Yuhui

Void + Void ≠ Nothing by Zhang Rui

Urban Oasis by Guo Yu Chen

Reprogramming Urban Circulation by Emily Ooi Lean Ee

Intensifying the “Void” Deck by Guilherme Araujo Regado

The Hill by Lee Jinho

The Gathering Line by Seah En Ting, Rena

Elevate @ TPP by Chan Koi Yan

The Big Bloom by Nicholas Wong Ping Han

INTERLUDE : Layers of Elevation

CharlotteLohJia-Ying

TANJONG PAGAR RD FRONTAGE
COOK ST. FRONTAGE

INTERLUDE : Layers of Elevation

The Interlude revitalises the alleyway between Tanjong Pagar Road and Tras Street, transforming it from a simple thoroughfare into a vibrant, multidimensional space. Currently, the alley primarily serves as a linear commuter path, with the occasional presence of neighbouring shop workers using the back of the shophouses for convenience. Recognizing the potential of this untapped, high-value real estate, The Interlude aims to create a more engaging experience by encouraging upward movement and multidirectional flow, guiding users to explore the space vertically.

The development, nestled between a shophouse and a building, thoughtfully integrates shophouse-inspired design elements, respecting the site’s heritage while reinterpreting them in a contemporary way. This transformed alleyway offers a unique hideaway that overlooks two streets with distinct levels of activity, accommodating both pedestrian and vehicular flows. Within this space, visitors will find zones tailored for various uses—from quiet, elevated nooks for relaxation or work, to a media resource library that serves as a creative refuge.

Central to The Interlude is an open atrium, designed as a gathering space where people can enjoy informal performances and connect with the local community. To access more secluded spaces, users navigate gentle changes in elevation, reinforcing the concept of upward movement and creating a journey of discovery throughout the space.

With interactive installations, shaded lounges, and thoughtfully framed views, The Interlude invites passersby to experience the alleyway as a destination rather than a shortcut. This intervention blends traditional and modern elements to create a serene yet dynamic urban retreat, encouraging people to pause, recharge, and enjoy their surroundings. Ultimately, The Interlude aspires to bring new life to this hidden pathway, redefining commuting as a sequence of enriching moments.

An inventory of urban conditions was created by my groupmates and I, where I gained significant interest in passageways. The quality of funneling people in through a narrow space with the potential of redircting movement upwards was something I aimed to explore as the weeks went by. Identified below are all instances where this quality of funnelling is seen throughout Tanjong Pagar.

CONDITIONS & OBSERV A TION S

SHOPHOUSE TAXONOMY

With influence from the surrounding context, I deconstructed the parts of a shophouse and implemented them throughout my design intervention. These are all in efforts of reinventing alleyways with characteristics to form a reinvented shop house.

SITE PLAN

The form of the building acts as a spine which bleeds through the narrow alleyways, connecting streets. Parts of the intervention are offset from the adjacent walls of the surrounding site context, such as to create some breathing space and pockets where visual connections can be made from the street level, to the upper floors.

The ends of the intervention face streets with different levels of activity. The end which overlooks Tras Street is more serene, with less busy roads with lower vehicular and pedestrian traffic. On the right side is a large open area with greenery. This portion of the intervention hence aims to draw people who are walking by this green area, or to direct people to this green space.

Meanwhile, the end which overlooks Tanjong Pagar Road is much more busy, with wider roads and higher vehicular and pedestrian traffic. The shophouses which are located along this stretch are mostly F&B businesses, mixed together with a residential building which extends further west

EXPLODED AXONOMETRIC

S HOPHOUSE T AXONO MY

FRONT ELE VA TION BACK ELEV AT ION

SECTIONAL PERSPECTIVE

TANJONG PAGAR RD FRONTAGE
COOK ST FRONTAGE

Through the Terrain

byYuYuhui

Ramp

Conceptual Frame work : Weaving Conceptual Framework

Envisioned as a Ramping throught the Terrain is a reimagination of the existing hawker centre to incorporate green space and a bicycle ramp, reconnecting the green corridor. The project aims to create a new ecosystem that serves as a third space between home and work, blurring the lines between residential and hawker environments while enhancing the community’s sense of belonging. This is achieved by introducing a ramp around an open, courtyard-like green space to revitalize the food centre.

Design Concept and Vision

The design concept revolves around the integration of a ramp that winds through and around the site, creating a seamless connection between the hawker centre and its surroundings. This ramp serves multiple purposes:

Reconnecting Green Spaces: The ramp links disjointed sections of the green corridor, creating a continuous flow of greenery and pedestrian pathways.Enhancing Accessibility: By accommodating bicycles and pedestrians, the ramp promotes carlite mobility and inclusivity.Fostering Interaction: The ramp’s design encourages movement and interaction, transforming the hawker centre into a hub of activity. At the heart of the design is an open, courtyard-like green space that blurs the boundaries between indoor and outdoor environments. This green space serves as a central gathering point, improving spatial quality and providing a much-needed breath of fresh air to the dense urban environment

Site Context and Challenges

The hawker centre, though centrally located, has failed to capitalize on its potential as a vibrant community hub. Critiques of its design include a lack of architectural identity, a fragmented relationship with its surroundings, and inefficient use of space. Mechanical ventilation systems, while functional, have not compensated for poor air circulation, further detracting from the user experience. Adding to the challenge is the disconnection between the hawker centre and the adjacent podiums, which house commercial spaces that suffer from low foot traffic and under-utilization. These podiums, with their proximity to residential and commercial areas, present an untapped opportunity for integration and activation.

Addressing Urban and Architectural Issues

The design addresses ventilation issues with an open courtyard for natural cross-ventilation, complemented by greenery and shading devices to reduce heat and improve comfort.Stalls feature dual-sided openings, enhancing visibility, accessibility, and interaction between vendors and visitors, fostering a stronger sense of community.Inspired by a “living landscape,” the design integrates greenery, natural materials, and organic forms to create a unique architectural character. The ramp serves as a unifying visual and functional element.The ramp extends beyond the hawker centre, connecting two adjacent podiums. Under-utilized spaces are reimagined to include pop-up markets, fitness areas, or co-working spaces, creating a cohesive urban ecosystem.The revitalized hawker centre, with its unique design, becomes a destination for food and recreation. Increased foot traffic benefits both the hawker centre and adjacent podiums, activating their spaces and boosting vitality.The central courtyard acts as a cooling mechanism, reduces the urban heat island effect, improves air quality, and supports urban biodiversity.A bicycle ramp promotes cycling and walking, reducing car dependency and encouraging sustainable mobility.

Design 1 StoreFront Perspective

Design 1 Sectional Perspective

Temporary Market ( Festive/Events)
Greenery - hawker store co existence
Greenery - Bicycle lane - Working Space Co existence Flash Market - Dinning Working Space co existence

Sectional Perspective

Bicycle Display - Greenery Coexistence
Bicycle Display - Greenery Coexistence
Dining - Bicycle Lane - Hawker space co existence A central focus on greenery

Void + Void ≠ Nothing by

ZhangRui

Reimagining the Podium Space of Tanjong Pagar Plaza

The project Void + Void ≠ Nothing reimagines voids as spaces of potential and connection within Tanjong Pagar Plaza’s podium, focusing on its underused, street-facing main entrance. While voids traditionally suggest emptiness or nullity, here they are celebrated for their flexibility, openness, and potential for community engagement. This design intervention revitalises the podium through a system of voids that enhances spatial and visual porosity, reconnecting the plaza with its surrounding urban fabric.

This approach creates a more inviting and integrated frontage, re-establishing the plaza as a hub of activity. New void typologies inspired by the existing ones include high ceilings, half walls, wall-mounted seating, and skylights, with two additional floors added above the podium to offset the loss in GFA from carvedout voids. This creates layered voids and enclosed spaces that promote social interaction through diverse spatial qualities. While the plaza currently serves commercial purposes, several shops sit vacant, with limited community spaces. To address this, the design intervention curates formal and informal spaces aimed at intergenerational connection, benefiting the plaza’s childcare centres, nursing home, residents, shop owners, workers, and visitors.

The project began with an urban analysis of Tanjong Pagar’s podium entrances, exploring successful design strategies like double-height atriums, canopies, internal thoroughfares, storefronts facing the street, and ramps or staircases for elevated access. Each strategy employs voids at varied scales and purposes, which informed a deeper investigation of voids at Tanjong Pagar Plaza.

Currently, Tanjong Pagar Plaza’s entrance feels uninviting and outdated, defined by a utilitarian canopy and a dark, deep void leading to interior shops and a courtyard. This space is isolated from the vibrant surrounding area, with a second-floor viewing deck and rooftop space remaining largely underutilised. Consequently, the plaza attracts mostly past or present residents, especially seniors, who use it as a place to rest and people-watch, infusing it with memories and local identity. Popular spaces within the plaza include two double-height atriums that divide the central void into three courtyards, frequented by seniors, workers, and visitors as gathering spots.

To enhance the podium frontage, the main entrance void is expanded and heightened to draw people in, while underutilised voids are fragmentised and reconfigured to introduce

The ground floor remains commercial but with an expanded entrance void that connects through a skylight to the upper levels, creating a welcoming market space for small businesses and popups. The second floor becomes a community hub with a double-height auditorium, maker space with an adjoining outdoor gallery void, and semi-open entertainment and mahjong spaces. Spectator voids face the market void and courtyard stage, encouraging people to gather and observe. The third floor adds a community kitchen with an alfresco void and barbecue area, featuring drop-down seating and large windows overlooking the market below. The rooftop transforms into a half-sheltered garden void, reflecting local interest in gardening, with small retail and F&B kiosks designed like stilt houses to maintain openness. Additional features include a yoga void mezzanine and enhanced circulation, such as staircases connecting childcare centres and the nursing home to community areas, fostering intergenerational activity.

This design approach extends to the other two proposed sites in Tanjong Pagar, using voids to create cohesive, vibrant, and socially engaging podium spaces.

Podium Frontages in Tanjong Pagar
Urban Oasis by GuoYuchen

URBAN OASIS

This project focuses on the Tanjong Pagar area, serving as both a functional and symbolic oasis that blends nature with urban life to redefine the static urban edge. With the area’s current edges lacking dynamism and opportunities for interaction, the project seeks to transform the central courtyard of Tanjong Pagar Plaza into an open atrium that fosters connectivity, activity, and engagement among diverse users, including residents, workers, and visitors. By breaking the boundaries of the original plaza and incorporating greenery along the urban edge, it creates a continuous flow between the plaza’s front and back green spaces, inviting a variety of activities, such as community gardens, markets, reading rooms, and spaces for relaxation. The design reimagines the plaza as an urban natural node, enhancing social interactions and enriching daily experiences.

URBAN OASIS

URBAN OASIS

Tanjong Pagar acts as a complex area comprising three distinct districts: the residential area (public housing), commercial area (shophouses), and office area. With multiple users experiencing this area daily, the current urban edge design among the districts seems to lack change. This leads to a decrease in the interest and excitement of people engaging in the area. The lack of activities results in a lack of connection among the people.

Tanjong Pagar acts as a complex area comprising three distinct districts: the residential area (public housing), commercial area (shophouses), and office area. With multiple users experiencing this area daily, the current urban edge design among the districts seems to lack change. This leads to a decrease in the interest and excitement of people engaging in the area. The lack of activities results in a lack of connection among the people.

Therefore, the urban oasis aims to enhance the active urban edges to create a more open and welcoming atmosphere that brings people together. By erasing the existing main commercial courtyard of Tanjong Pagar Plaza and replacing it with the project design to bring the courtyard to the front, the project seeks to foster interactions among different users.

Therefore, the urban oasis aims to enhance the active urban edges to create a more open and welcoming atmosphere that brings people together. By erasing the existing main commercial courtyard of Tanjong Pagar Plaza and replacing it with the project design to bring the courtyard to the front, the project seeks to foster interactions among different users.

The plaza naturally serves the function of an urban node or a cross junction where people gather. This spot brings potential opportunities for the project.

The plaza naturally serves the function of an urban node or a cross junction where people gather. This spot brings potential opportunities for the project.

At the same time, the discontinuity between the green spaces behind the plaza and the lawns in front presents the possibility of introducing greenery to the urban edges and creating connections.

At the same time, the discontinuity between the green spaces behind the plaza and the lawns in front presents the possibility of introducing greenery to the urban edges and creating connections.

parts of the plaza and surrounding the connection with surrounding tion to enhance the oasis concept

Possible Connection to the original surrounding Selected connections

Tanjong Pagar

Reprogramming Urban Circulation

Connecting Streetfront to Foothills through Linkways and Staircase Regrogramming in Tanjong Pagar:

This project investigates the circulation patterns around Tanjong Pagar Plaza (TPP), focusing on the unique topography of its site. TPP is strategically situated at the base of a gentle foothill, with elevated platforms that allow for connections to be formed to the slope of the hill. TPP encompasses the Market & Food Centre, as well as HDB Blocks 1 to 7. It faces two significant challenges: an underwhelming street frontage that does not engage the pedestrians and poor circulation from the parks to the podium. This poor connectivity is worsened by the plaza’s disruption of the green rail corridor, creating a disjointed urban flow to the parks. For example, the site lacks strong connectivity to Vanda Miss Joaquim Park, located on the hillside behind the plaza, with elevation changes further complicating pedestrian access. To resolve these connectivity issues that are imposed by elevational changes, my design strategy aims to reorganise the programme volumes into a more structured pattern in regards to the introduction of a circulation route that intersects and stitches key zones together. This will improve visibility and movement, making the space more connected and accessible for both pedestrians and visitors. Greenery has been thoughtfully incorporated to soften the visual divide between urban structures and natural landscapes. Hence, seemingly connecting the foothills of Tanjong Pagar to the pedestrian level. Through understanding the use of staircase and linkways, this project aims to engage the pedestrain to the underutilized areas in Tanjong Pagar Plaza through reprogramming urban circulation.

The study of staircase and linkways include:

1. Enclosed Dog - Legged Staircase: These stairs are abundant on-site, they effectively conceal vertical circulation and limit the expansion of activities beyond their primary function.Underutilized corners.

2. Connecting Two Large Open Space Staircase: These open spaces were imagined to hold activities but the spaces presented are dark and mostly enclosed, deterring long term activities in the spaces.

3. Sit at the Side Staircase: This staircase that is within the void is utilized with seating.

4.Unexpected Rest Areas Thoroughfare: Recessed areas in a building, serving as a seating gathering area to invite people to take a breather within a private space

5. Impromptu Elevated Rest Area: Due to the location of the stage and how it relates to its adjacencies, this space becomes a common area to sit and rest and lie down due to its elevated nature.

6. Up and Over Staircase: The bridge connecting the residential area to the marketplace is elevated solely to meet height requirements for the heavy vehicles and cars passing underneath. As a result, pedestrians must climb up and then down to cross, and the bridge is not wheelchair accessible.

7. By-the-way Sitting next to Thoroughfare: Adjacent to the pathway are sitting areas where office workers, families and visitors come together.

8. Inbetween Shophouse Thoroughfare: Isolated from the main circulation, this intimate seating area between the shophouses allows for a quiet escape from the bustling streets adjacent to it.

9. Sit - Activity - Walk Thoroughfare: Designated sitting areas are placed at least 3 metres from a sheltered walkway. This 3 metre buffer provides ample space for acitivities to occur along this pathway stretch like busking or mini exhibitions.

This study explores strategies to enhance spatial connections and circulation at the site through programmatic and design interventions. It highlights the importance of programmatic integration to establish functional connections before circulation disperses into different pathways. Sitting areas along circulation by-passes, framed by greenery and seating, are identified as key elements that blend restfulness with movement. Additionally, transitional or ambiguous pause areas are reimagined as purposeful destinations to elevate their role within the network.These interventions aim to create spaces that are not only functional but also engaging and cohesive. The scheme seeks to refine these strategies further, ensuring a more engaging streetfront.

Fundamental Concept

Reprogramming Urban Circulation

Intensifying the ‘Void’ Deck by GuillerhermeAraujoRegado

The proposal aims to improve the spaces below the residential HDBs in Tanjong Pagar Plaza (main site) Pineaccle and Blok 7. These spaces are currently left as “void” decks, hardly fulfilling any role neither for the residents from the social housing above nor for the users of the (commercial space) below. Additionally, these three sites are discon nected, both by physical distance and in terms of architectural language and atmosphere, from what makes Tanjong Pagar unique: the small, streets flanked by traditional shophouses.

To tackle the first issue, this project intensifies the “void” deck with functions that serve both the residents and at the same time the visitors of the commercial Tanjong Pagar Plaza, thus creating a threshold zone between these two programs. The link to the older, more typical Tanjong Pagar is addressed in the urban gesture of the intervention as well as in specific architectural elements. The intervention is essentially creating an new shophouse path on the podium. Recalling the experience of walking along traditional shophouses along the smooth hills of Tanjong Pagar, the project brings the visitor from the street level of the plaza up to the podium, through a zig-zagged path along shops and recreational spaces, to the park and that leads back to the existing shophouses. The intention to link the podium to the more traditional areas is also materialized in the ar chitecture itself. The intervention is created as a deconstructed shophouse, by the fact that typical elements from this typology (…) are taken apart and reassembled in different configurations.

PEDESTRIAN

Entrance block - bleacher stair, multipurpose workshop spaces

Clusters of shops along a zig-zagged path

Rectreational spaces - lounges, study spaces, screen room, children playground, kitchenette

EXPERIENCE FROM BUSY STREET TO EMPTY PODIUM

spaces forested walkway long way up up and U turn

(group work)

DESIGN STEPS

PEDESTRIAN PATH RECALLING SHOPHOUSE STREETS
PEDESTRIAN
PEDESTRIAN PATH RECALLING SHOPHOUSE STREETS GENERAL
FOOTWAY 3. PARTY WALL 4. AIRWELL
5. MEZZANINE
TRANSITION FROM SHOP TO HOUSE INCORPORATION
PITCHED ROOF
3. PARTY WALL
AIRWELL 5. MEZZANINE
TRANSITION FROM SHOP TO HOUSE

PERSPECTIVE DRAWINGS

The Hill by LeeJinho
The Gathering Line by SeahEnTing,Rena

The gathering line draws inspiration on site from the concept of urban continuity within the region. Many purely utilitarian and transient linkways can be found in tanjong pagar, these linkways are ocassionally connective without being integrated into the surroudings much. The linkwau from tanmjong pagar carpark across from the east to west of the plaza is mainly used as a transience space for connection, however there is still low human traffic in the linkway, with its main demographic being office users, whilst residents and visiotrs seldom visit the 2nd storey linkway. Tanjong pagar has undergone gentrification, indicating that there are an increasing amount of younger families in this aging estate, hence the cooncpet of a ‘linkway’ becomes not just a thoroughfare but a coomunity building throoguhfare focussed on providing its users the most efficient way in/out and yet still incorporate intergenerational activities within the plaza to encourage active living rather than static motion that is often noticed under the linkway. In order to expand the demographic of this subjectively underutilised linkway, i seek to tap on the over utilised areas of static activity like the void under the linkway and the stage area, to encourage walkability and accessibility. THe gathering line incorporates a series of activities unique to tanjong pagar itself, curated based off the spatial typologies observed in tanjong pagar. The activities consists of goals that tackle the ECDA and AID frameworks through boosting cognitive, physical, social and emotional developments of children and elderly, whilst still maintaning a degree of safety and security. The line then seeks to be continually changing where acitivites are never stagnant.

The path of the gathering line is defined through non-defined urban walkways that people take etvc ‘shortcuts’. These shortcuts were always based on one’s familirarity of the space rather than directional cues of buildings or landscaping. Hence the line creates new entries and exits that encourages people to enter through weavng their ‘shortcuts’ into the intervention. This provides a linkway that bridges people from many different demographics in the plaza whilst still maintaning its quality of a straightforward connection.

Elevate @ TPP by ChanKoiYan

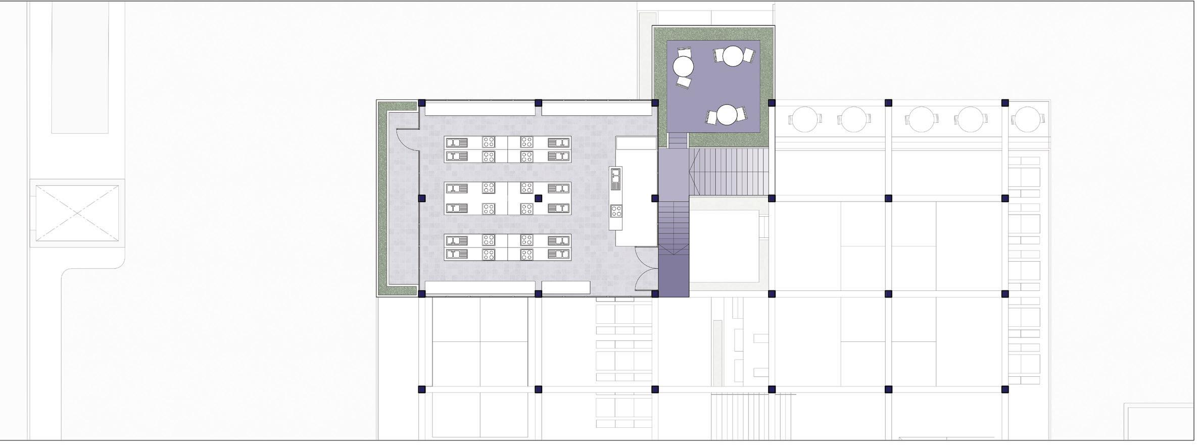
The Big Bloom

Infusing Tranquility in the Courtyards of Duxton Hill

Urban courtyards, often dismissed as back alleys or underutilized spaces, hold significant potential to redefine city living. This scheme, situated in Duxton Hill, proposes reimagining these neglected areas by integrating nature and communal activities through a farm-to-table concept, restful spaces, communal work areas, and educational workshops, using the logic of trees as a unifying strategy.

The intervention focuses on three distinct spaces: a neglected courtyard, a transitional alley, and a space between shophouses, each offering an opportunity for community engagement. These underutilized areas are characterized by high pedestrian traffic and visual disconnect, making them ideal for transformation. By strategically planting trees, these spaces will not only reconnect fragmented urban areas but also create natural microclimates, enhancing comfort and well-being.

The design envisions transforming these forgotten courtyards into vibrant, multifunctional hubs. At the heart of the concept is a farm-to-table initiative, where urban gardens integrated within these courtyards provide fresh produce to nearby cafés and restaurants. Workshops will be incorporated to teach residents about sustainable farming practices, offering hands-on experiences in growing crops, thereby fostering a deeper connection to the local food system. These areas will also serve as communal spaces for work, rest, and socializing, encouraging interactions among residents and commercial entities. In addition to seating and workspaces nestled beneath tree canopies, bicycle parks will support a car-lite movement, further enhancing connectivity. The trees serve not just as natural shade but also as living pillars that anchor these courtyards to the surrounding environment.

Design Studio [ARXXXX], AY 23/24 Department of Architecture College of Design and Engineering

Turn static files into dynamic content formats.

Create a flipbook
Issuu converts static files into: digital portfolios, online yearbooks, online catalogs, digital photo albums and more. Sign up and create your flipbook.