
1 minute read
Commercial floorplans
from Tampa Greenway


Advertisement





Perspective looking South-West from park
The mixed use tower stands 212’ tall with the first four floors allocated for retail and and office space, the fifth for ammenities, and the rest for residential. The main residential lobby faces the park with a corner restaurant and the office lobby is tucked behind the facade. Each unit comes with a few bags of seeds and planters so residents may partake in decorating the facade with green.

Oorplans












Streetside parking and bike lanes protect the outdoor seating area and pedestrian pathways. The main stairs invite you into the building beneath the overhanging assembly hall with offices overlooking the outdoor ampitheater. The automated parking garage to the South is adjacaent to elevators that connect to each office floor and also provides access for residents to go to their unit.
















Three stories of office space overlook the plaza keeping it safe it night while retail stores and cafes activate it during the day. The ground floor is shaded by the overhanding towers while letting enough sunlight through to keep it well lit and allow large planting to strive.

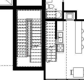
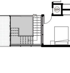
Commercial floorplans













Perspective of assembly hall looking North towards park.
The office space comes with an assembly hall where the public is invited to partake in the decision making process for the development of downtown Tampa and its surrounding communities.

Commercial floorplans












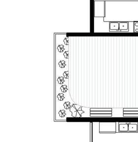
Residential floorplans

























Level 6 | Scale: 1”=20’





Interlocking residential units float above ammenity space with varying views of the city throughout each unit. Each unit is different with double height spaces in the living and dinning spaces.

Residential floorplans

























Residential towers have circulation every two floors with 12 different unit types. The circulation for each tower ends with a community garden spaces that frame different views of Tampa’s downtown.

Residential floorplans

























The interlocking unit layout provides views on different sides of the towers. Pushing and pulling parts of the mass creates shaded outdoor balcony spaces for dining and different scales of space in the unit.

Long Section
North - South | Scale: 1”= 28’
Three towers with communal garden spaces every two floors look out in every direction with bridges connecting it to the automated parking to the South.





