
4 minute read
Banks, Ann-Wesley
I strive to live my life for the purpose of loving others the way I was first loved. Purpose can also be fulfilled or found in achievements, relationships, careers, or a multitude of other things, but the foundation behind what we do is out of love for something. Patience and gentleness also stem from love and are valuable adjectives that I must embody in order to love someone genuinely. These are values I think are very important and that I try to uphold in all of my relationships. I value a life filled with balance but also spontaneity and variety. Things that can keep somewhat of a structured consistency in my life, such as church, exercise, and school routines help me find that healthy balance that I think is key to avoiding burn out and being able to find joy. Continuing to persevere when my routines get disrupted because of busy or stressful lives is something I try to do to bring growth and endurance. Having a community that pursues me during my best days of finishing big projects or making accomplishments while also encouraging me on my bad days is at the core of most of my desires. As much as I value alone time and being independent, I find that my life is healthier when the people around me respect me while also having forgiveness, mercy, and understanding for the way I am and the way I interact.
Do you have any plans after this semester?
I will be between here and Tennessee over winter break spending time with friends and family and celebrating the holidays. I hope to update my portfolio and apply for internships in the meantime!
What type of designer would you like to be?
I’m interested in hospitality design and residential. I hope to pursue an internship next summer that will cater to these interests and help me get a feel for different types of design.
Can you tell me about any problems you ran into in the studio or outside?
Occasionally, I had trouble understanding some of the coursework content and what was required of us. I also felt like a majority of the time I was overwhelmed with the amount of work expected of us without the right tools or understanding to move forward.
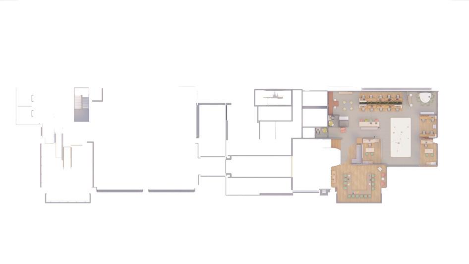
What kind of place would you like to design next?
I think a restaurant or hotel would be a really cool project!
What do you think makes a good workplace?
I think a healthy balance between work and life help to support and strengthen a good workplace. A variety of seating and work options that foster community and bring people together as well as mixing in spaces that sprinkle in some fun and purpose!
Can you tell me what evidence-based design means to you?
Evidence based design is designing with prior knowledge and research that backs up the intention for design. It uses ergonomics, environmental impact, and human factors to allow for the most usable and sustainable design experience.
Compared to previous semesters, the semester may be challenging in many ways, but you may be able to see your accomplishments. Reviewing your accomplishments, what did you learn from this studio?
I learned that I can always put in more effort, or always compare my creativity to others, but being proud of my accomplishments and exhausting my best efforts is all I can ask of myself. I have learned to keep trying, keep exploring, and to only settle when I love something.
Would you like to share anything with future students of this studio?
I would encourage them to do their best in studio but also to prioritize their well-being as much as possible. Find friends who can motivate you through the undoubtedly hard moments and encourage you in your projects!
Embracing The Life Cycle Of Design








































