Architectural Portfolio - Navya Ramesh

Page 1

ARCHITECTURAL PORTFOLIO

Navya Ramesh
01 - Temporary spaces in Urban Nodes URBAN DESIGN Content ARCHITECTURE WORK EXPERIENCE 02 - Redesign of Milan Peripheries 04 - Bridging the History 06 - Retail Showroom Design 05 - Reconstruction of Residence 03 - Historical Waterfront development in Pisa

Urban Design

01

- Temporary spaces in Urban Nodes, India

Bachelor’s Thesis

Urban cities with high densities lack open space and resources; temporary spaces used during the nomadic period when materials were light and portable allowed people to migrate easily from one location to another. Human activities and movements are essential in urban centers; understanding them via regular observation and analysis enables us to provide a better environment for them to improve their activities. When spaces are ephemeral and give future flexibility, they can be used efficiently and multi-purposely. This study examines how places change over time and adapt to their surroundings, as well as how urban interventions can make them more humane. The project aims to intervene temporary transformable spaces in potential urban nodes.

After analysis site was chosen in Bangalore, as its density is growing from past decades and there is a need for temporary spaces to use existing spaces efficiently.

Afternoon Activities at 1pm filled with large density of people, vendors and vehciles

Different moment of people at node

Evening activities at 5pm when space gets filled with food vendors and pedestrians How activities temporarily change at different times of the day and keep it interactive with people.

providing shades for pedestrians and vendors

providing shades for pedestrians and vendors

Compound wall providing space for vendors.

Node 1 landuse which majorly consists of public and commercial buildings 1
Node Morning Activities at 8am Huge foliage east indian walnut and common pod trees Huge foliage east indian walnut and common pod trees Activity taking place in the early morning at building edge where people are gathering for breakfast. Elderly people gathering at temple node for relaxtion in morning and evening. Compound wall acting as a space of relaxation and interaction Building edge providing space for selling goods. Site Analysis

Intervention

Node 1

Temple and Books

Section along Recreational area

Zoom Ins: Existing and proposed

Detail A

Redefined edges around the temple node

Temporary Pavilion with flexibility

Recreational space with existing context

Used by food van for serving people
Keeping space for food van pavilion serves as visitors and also for vendors Wall used for short interactions, eating and vending Small installations used by vendors as a resting place & better place for vendors Installations used by visitors as recreational space & better space for vendors. Plaza with interventions inviting new activities for all kind of users Wall used as vending and resting space
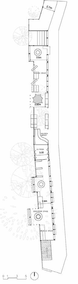
of Library module Reading Space Elevation Section
Library Plan
Concept View
Children’s

Urban Design

- Redesign of Milan Peripheries

1st semester - Polimi

The purpose of the project is to reconstruct a neighborhood with an emphasis on energy efficiency and social impact, making it more active in the surrounding area. It also attempts to address existing concerns with social housing for migrants and students.

Creating an experimental neighborhood, moving without a car, and incorporating a people-friendly concept all sought to create a self-sufficient and sustainable neighborhood. By designing a new urban corridor with social housing, a community center, and market spaces, we aim to make this district more active and lively by attracting a diverse range of people..

02

Milan surface temperature

Strategies

1. Connecting with the active Biccoca District Formal Public spaces

Public Infrastructures

Informal Public spaces Railways

Iperal Milano Iperal Milano Hospital Hospital

Community Centre Community Centre

Teatro officina Teatro officina

Kinder garden

Concept Welfare Space
Parco publico manzo Sports field Sports field Cani liberi Parco di villa finzi
Elementary School Elementary School
Pre school Pre school
Kinder garden
Cultural Centre Cultural Centre
Site
Roads Bicycle path
< 0 27.9 - 30.0 30.0 - 34.4 34.4 - 36.6 36.6 - 38.8 38.8 - 41.0 40 - 50 50 - 60 60 - 70 >70
NO2 emissions ( ug / m3 )
2. Viale monza identified has a main connecting road 3. Connecting 4 major green areas in the neighbourhood 4. Identifying the slow mobility pathways
Milan
Living Streets Urban Corridor Legend Legend Connection with Urban context Master Plan Before Before Street location Street location Public Market Public Green Area Involved Public Area Bicocca Connection Light mobility Road Light mobility Road Sharing Parking Coffee & Shops Social Housing Biccoca Student Housing + Facilities Community Art Center Library and Co-working spaces Social Housing + Commercial bewlow Urban Corridor Light Mobility Streets Living Streets Heavy Mobility Streets Bus Stops Metro Stops Welfare System Naviglio Martesana Pedestrian Path Pedestrian Path Pedestrian Path Green Area Green Area Bike Lane Commerce Commerce Pedestrian Path Slow moving lane After After
Design
4: Biccoca Student Housing & Facilities
Design Zone
5: Community Art Center & Public Buildings
6: Social Housing
commercial below
Zone 1: Public Market Zone 2: Coffee and Shops Zone 2: Social Housing Zone
Zone
with

- Bridging the History, Milan

2nd Semester - Polimi

The project aims to illuminate the extraordinary history of Plazzo Isambardi an architectural masterpiece in Milan, showcases a rich history spanning significant eras, allowing visitors to immerse themselves in Palazzo Isimbard’s ambiance. Guests will navigate a curated circuit, exploring the World War II bunker and evacuation tower, gaining a deeper understanding of the intertwined layers of history within these spaces. Against the backdrop of the splendid 20th-century reconstruction, this experience offers a profound encounter with the past. The concept was to establish a loop of sensory experiences encountered on-site, including audio, visual, tactile, and perception-based sensations for visitors to connect with the time period of the site.

04
Architecture

Roof Plan Criteria and experience

1 | the PORTAL 2 | the COURTYARD 3 | the GREEN CORRIDOR 4 | the GARDEN 5 | the BUNKER 0 6 | the BUNKER -1 7| the CORRIDOR 8| ALTERNATE EXIT 9 | the TOWER -1 10|the TOWER 0-3 11 | the TOWER 4 12 | the BRIDGE 13 | PALAZZO ISIMBARDI 14 |ROOFTOP Conceptual Section for circulation
Concept
Restore to 1940’s Restore to 1940’s Restore to 1940’s Restore to 1940’s Do Nothing Do Nothing Do Nothing Do Nothing Overall Strategy Fire Strategy Accessibility Strategy Preservation Strategy 01 02 Partially Restore Project alignment Project alignment Project alignment Project alignment Partially Restore Partially Restore Partially Restore Full transformation Full transformation Full transformation Full transformation

Design

Section AA - Along the green corridor 1. The Portal 6. Level 1 Bunker 12. The Bridge 14. Rooftop 2. The courtyard acess 3. The green corridor Master plan - Ground floor

Detail of Ribbon Intervention

Accessibility options for the tower

The existing condition makes it difficult for users to access the tower and requires a ladder for two-way circulation, which congests the area. The intervention proposes providing wheelchair accessibility for the entire bunker up to the first level of the tower, along with a way to evacuate the building before going up to the subsequent levels. The 4th level allows users to exit directly through the ribbon and connect them to the exit node. This minimal and lightweight intervention keeps the tower almost in its original condition without adding any structures to the ground and gives flexibility to remove if necessary in the future.

Design
View of the restored tower Master plan - Basement floor

- Historical Water front development in Pisa

2nd Semester - Polimi

The theme of the studio is to enhance the cultural and monumental pole in Pisa that have a huge potential for international tourism that is indeed ignored - St. Paul on the bank of the Arno and the Citadel Park. The approach is to enhance waterfront in the historical context of the world, the concept journey begins with retracing the past historical elements in order to respect the memory. Keeping this in the mind the existing bridge was redecorated to serve as a landmark and to enjoy the views of Arno river, a strong direct axis is created between the two existing towers along with the arrangement of modular student housing lineraly instead of tall buildings which is obstructing the connection presently.

03
Architecture

Proposal

History

Landscape

The location is on the western side of the historic city of Pisa, just a short distance from the Piazza dei Miracoli and the city’s central station. It was a shipyard and ponte de mare (sea entry) in the eleventh century. Later, the location became the first botanical garden, which was moved and used as an army barracks. These areas were no longer required after the war, and the site’s purpose was therefore altered once more. These aided in the recreation of some of these historical layers as a reflection of memory.

1200
1. Memory of tower 2. Staircase 3. Waterfront
1800 2000
4. Extension The landscaping is focused on the remark of past Section AA Master Plan

Design

Plan of redesigned Bridge View of redesigned Bridge from west side Roof detail Wall detail with the column Joinery detail of the column to the base 1. Fibre cement board 4. Terracotta bricks 5. Beams 2. sections 3. Aerated concrete bricks
Design
Section along the student housing

Work Experience

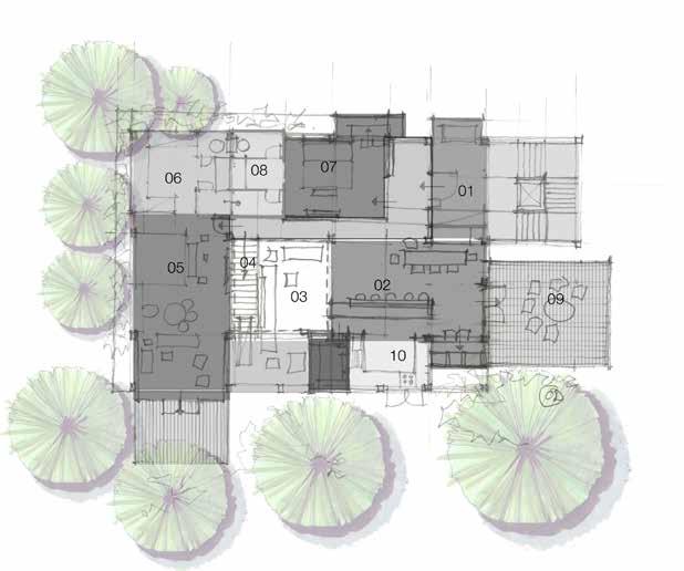
- Reconstruction of Residence, Bangalore

Pragrup Architects

It’s an adaptive reuse project that keeps the ground floor level the same while constructing new floors on top of it and improving the existing garden with Balinese landscaping. It’s a steel and timber composite construction thats light weight and simple to install and disassemble. The location is on the outskirts of Bangalore in a calm area with plenty of vegetation, The design incorportes more greenery and a garden inside the home, allowing it to blend in with nature. It aims towards sustainable projects by preserving the current contour and creating a landscape within it, as well as reusing old steel and timber. .

05

Concept

Existing

Preserving existing site features to enhance landscape and greenery.

Adding on new levels with light weight structure according to their functions.

Interconnecting the mass volumes along with the sloping roof.

First floor concept 1st floor spaces Trellis Roof Second floor concept

Work Experience

30900 4200 4200 4200 2100 4200 3000 3000 3000 3000 10 REVISIONS HOLD LIST NOTES 2999 2700 N 30900 10000 4200 4200 4200 2100 4200 3000 3000 3 3000 3000 10 2700 N REVISIONS HOLD LIST NOTES 36600 27450 30900 4000 4200 4200 4200 2100 4200 3000 3000 B C 5 3000 3000 4000 10 2000 N REVISIONS HOLD LIST NOTES 2700 36600 A 4000 B C 4000 2000 D 3300 10000 3525 3515 10340 A 4000 B C 4000 2000 D 10000 A 4000 B C 4000 2000 D 3300 10000 3525 3515 10340 A 4000 B C 4000 2000 D 3725 10000 3525 4065 11315 REVISIONS HOLD LIST 5 NOTES 6 CLIENT SHEET TITLE DWG TYPE PROJECT 11 NOTES 12 11 12 11 12 HOLD LIST REVISIONS PROJECT TYPE
Floor Section AA Wall detail at Junction Detail at A
Floor
Ground
First Floor Second
Views

Urban Design

- Retail Showroom Design, Bangalore

Mira design studio

The property is in the middle of Banglore, in a busy region with a lot of competition in the granite and tile industries. The project’s goal is to create interiors for a tile showroom that would attract all types of users and stand out among other showrooms. It was built in such a way that as many tiles as possible can be presented throughout the design by employing it on the flooring, ceiling, wall cladding, facade, and even furniture, allowing users to experience it all the way through. It was kept minimal in terms of material and colour usage.

06

Ground Floor

The showroom has two stories, with the ground floor being double height with exposed concrete beams and columns. Cable tray was used as a fasle ceiling with a grid design, each place was created for a certain display of tile, and tile itself was used as a material.

First Floor Concept Views

Concept

Phoot Shoot

Kitchen Cabinet exhibit Reception Library Unit
THANK YOU navyarameshbv@gmail.com +39 3515497018

Turn static files into dynamic content formats.

Create a flipbook
Issuu converts static files into: digital portfolios, online yearbooks, online catalogs, digital photo albums and more. Sign up and create your flipbook.
Architectural Portfolio - Navya Ramesh by Navya_R - Issuu