Architectural Portfolio For Internship 2023

Page 1

PORTFOLIO

Napoab catteeyothai (Billy) Architecture Student

2023 E-MAIL : billy.napoab@gmail.com

PROFILE

Name Napoab catteeyothai(Billy) Date Of Birth 2 September 2001 Languaes Thai-English Contact Mobile : (+66) 095-141-5549 Instragram : babyisbilly Line : billyn2 E-MAIL : billy.napoab@gmail.com Education 2016-2018 Suankularb wittyalai school 2019-Present Silpakorn university B.Arch,Faculty of Architecture Skill - Sketch up - Autocad - Revit Work Tutor (ig : themicro.studios) Photographer (ig : billycompo) - Lumion - Enscape - Adobe illustrator WORK EXPERIENCE Arch su fest 2020 : new world old town ฝ่าย staff @ห้างร้างนิวเวิลล์ แยกบางลําภู ค่ายติว เข้าวังนังติว (Kingsman the secret tect) 2020 ฝ่ายออกแบบและผู้สอน Human of flower market by archsu @ปากคลองตลาด (2021) ฝ่าย staff และช่วยติดตังinstallation ค่าย Talk ka tect 2021 แขกรับเชิญ พิธีกรเสริม ประกวดเเบบ Cotto alltopia utopia for all (2022) Unfolding city by Urban-ally hiddentemple สํารวจวัดร้าง เส้นทางและชุมชน (2022) ค่ายอาสา ”เขาน้อยเรือนลอย” (2022) ฝ่าย ออกแบบเขียนแบบ และ ฝ่ายช่าง 2020 2021 2022

CONTENT

01 03 07 11 15 17 19 22 SONGKHLA OLDTOWN APARTMENT WORKPLACE @PHAHONYOTHIN Rattanakosin Performing Art and Convention Center SILOM ICONIC HIGHRISE MIXUSE LANDSCAPE GRAPHIC AND MODEL EXPLORE THE BANPOON DEVELOPEMENT CAMP
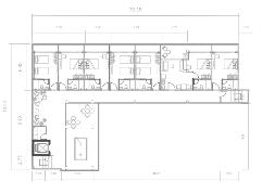
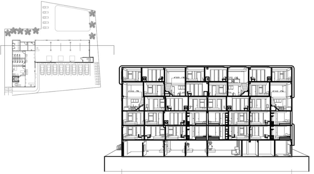
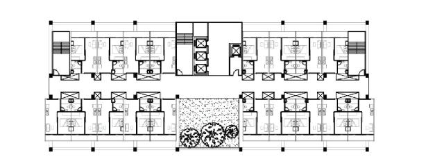
Songkhla old town Apartment โครงการอพาร์ทเมนท์ ริมทะเลสาบสงขลา ตังอยู่ในพืนทีเมืองเก่า ทีกําลังถูกนิยามว่าเมืองสร้างสรรค์ ความต้องการของโครงการ จึงต้องการให้เน้นกลุ่มเป้าหมายไปที นักลงทุนธุรกิจสร้างสรรค์ และ นักศึกษามหาวิทยาลัย ด้วยความต้องการนีจึงนํา ความเป็นพืนที เมืองเก่า องค์ความรู้เก่า ผนวกกับ คนรุ่นใหม่หัวคิดสร้างสรรค์ เพือสร้างอัตลักษณ์เก่ามุมมองใหม่ ด้วยการรับรู้ ตีความเพือ นําไป ต่อยอดในเชิงธุรกิจสร้างสรรค์ ต่อยอดภูมิปัญญา ความรู้ต่างๆให้คนสมัยใหม่ได้รู้จัก ทะเลสาบสงขลา 01
แนวความคิด ---- อัตลักษณ์เก่ามุมมองใหม่ PERSPECTIVE PLAN นําพืนทีสําหรับแสดงผลงานสร้างสรรค์ของลูกบ้านมาไว้ทีชัน1 เพือเชือมต่อกับบริบทเมือง และ จัดพืนทีห้องพักรูปแบบต่างๆให้สามารถมองเห็นวิวทะเลสาบได้ทุกห้อง นํา พืนทีส่วนกลางมาไว้โซนด้านหน้าในทางตังเพือให้เกิดการเชือมต่อกับพืนทีในเมืองเก่า โดยจัดให้รูปร่างอาคารมีความอ่อนโยนลงด้วยการลดมุม และ สร้างความเป็นมิตร พืนทีแสดงผลงานของลูกบ้านสร้างสรรค์ได้เเชร์และแลกเปลียนความคิดกัน กําเเพงเก่าเมืองสงขลา รูปเเบบของการออกแบบอาคาร มาจาก กําแพงหินเก่า ซึงเเสดงถึง การทีมี ความหลากหลายทางวัฒณธรรมทีอยู่รวมกัน สีและขนาดของหินทีแตกต่าง เสมือน ตัวเเทนวัฒณธรรมทีหลากหลาย ทีอยู่อาศัย 1 ยูนิต เปรียบเป็นหินหนึง ก้อน เมือมารวมกันจะก่อเกิดเป็น กําแพงแห่งความหลากหลายทางภูมิปัญญา
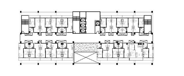
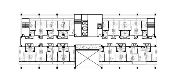
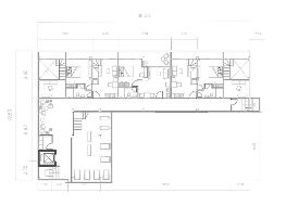
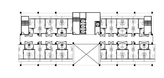
WORKPLACE @PHAHONYOTHIN PROGRAM Workplace @Phahon Yothin เป็นโครงการทีมีพืนทีสํานักงานให้เช่า ทังใน รูปแบบสัญญาระยะสันและระยะยาว รวมถึงการเข้าใช้พืนทีแบบรายชัวโมงและรายวัน โดยเจ้าของโครงการ มีวัตถุประสงค์ทีจะสร้างสรรค์พืนทีสําหรับการทํางานหลายรูปแบบ เพือยกระดับคุณภาพชีวิตของคนทํางานให้ดียิงขึน ซึง ในอดีตถึงปัจจุบัน จะเห็นได้ว่า รูปแบบการใช้สอยพืนทีมีการเปลียนแปลง และหลากหลาย หากเราเข้าใจธรรมชาติของพืนทีทํางาน และลองตังคําถามใหม่ๆ ภายใต้บริบทของปัจจุบัน เชือว่าจะสามารถ สร้างสรรค์แนวคิดที จะส่งเสริมระดับความสัมพันธ์และการใช้งาน ของพืนทีทางสถาปัตยกรรม 03
ธรรมชาติในรูปแบบต่างๆ สามารถช่วยสร้างความสัมพันธ์ และส่งเสริมสภาวะการทํางานของคน และพืนทีในรูปแบบใดบ้าง CONCEPT -WORK WITH NATURECONCEPTUAL MODEL เหนือยล้าหลังจากการทํางาน ต้องเลือกระหว่างพักเล่นและทํางาน ทําหลายอย่างพร้อมกันไม่ได้ บรรยากาศและสภาพแวดล้อมไม่เอือ ต่อสภาวะการทํางานทีหลากหลาย FOCUSCOLLABORATIONPLAYLEARNING WORKER ACTIVITIES WORKER PROBLEMS พืนทีธรรมชาติทีสามารถใช้งาน และ เชือมต่อ ผู้ใช้งานต่างๆได้

ELEVATION

WORKPLACE @PHAHONYOTHIN
SECTION
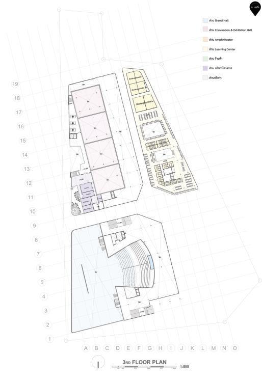
Rattanakosin Performing Art and Convention Center (RPACC) ณ-สตูดิโอ เรานัน ได้เริมทําการวิเคราะห์ความต้องการของโครงการ และได้เป็นคีเวิร์ดสามอย่าง คือในเรืองของ ความเป็นพืนที เมืองเก่า การเชือมต่อ และวัฒณธรรม โดยพืนทีนีเคยเป็นพืนทีตลาดเก่า ทีมีอายุเกิน 100ปี ซึงวัฒณธรรมทีเราตีความของทีนีคือ กิจกรรมทีเกิดขึนรอบตลาด เราพยายามเชือมต่อในส่วนของผู้มาใช้งานอาคาร ผู้คนในตลาด มาเชือมวัฒณธรรมเดิมเข้าด้วยกัน โดยเรามีมุมมองว่า การนําองค์ประกอบของตลาด มาเป็นเครืองมือในการออกแบบ จะดีกว่าการทีจะไปเปลียนวัฒณธรรม มีเอกลักษณ์เดิมของ ชุมชนตลาดมหานาคนี จึงเป็นทีมาของเเนวความคิด การแทรกตัวของกิจกรรมและชุมชน 07
พืนทีเมืองเก่า วัฒณธรรม การเชือมต่อ จากแนวความคิด การแทรกตัวของกิจกรรมและชุมชน พวกเรา นําใช้เส้นทางเก่าของตลาดและจุดทีตลาดมีผู้คนชุกชุมมาก มาสร้างแนวแกนทีตัดผ่านอาคารและรองรับด้วยพลาซ่า เพือทีจะ ดึงผู้คนเข้ามาในพืนทีไซต์ โดยส่วนพลาซ่าทําหน้าทีเป็นลานกิจกรรม ทีเชือมระหว่าง ผู้คนกับตลาด และส่วนทางเดินเพือดึงดูดคนเข้ามา ใช้พืนทีขาย ของโครงการ
SECTION B
Performing Art and Convention
แนวความคิด ---- การแทรกตัวของกิจกรรมและชุมชน
SECTION B SECTION B
Rattanakosin
Center (RPACC)

SECTION

PERSPECTIVE ELEVATION
โครงการ SILOM ICONIC จัดเป็นโครงการทีสนับสนุนและยกระดับคุณภาพชีวิต ให้กับผู้อยู่อาศัย พร้อมทังตอบโจทย์ความต้องการของตลาดคนเมืองในย่าน และ นักพัฒนาอสังหาริมทรัพย์ นักลงทุนธุรกิจ ไลฟ์สไตล์ ด้วยเอกลักษณ์ และ ความโดดเด่นของโครงการ SILOM ICONIC HIGHRISE MIXUSE 11
จากการศึกษาย่าน บริบทโดยรอบของอาคาร หรือซอยธนิยะ ออฟฟิศ บุณ-สตูดิโอ ได้สนใจในเรืองของ ความโดดเด่นของย่าน เป็นได้รับชือว่า “japanese silom” เลยนําสิงนีมาผนวกกับการ สร้างสเปซทีสัมพันธ์กับ ตัววัฒณธรรม เพือสร้างความ Iconic โดยเราได้ แยกพืนทีเป็นสามฟังก์ชันหลักตัวของโครงการประกอบ ด้วยส่วน shopping mall / office / residental ซึง อยู่ใน แนวคิดการทําให้เป็น - Future mixuse - ทีมีความ - iconicจากการจัดรูปแบบสเปซทีจะใช้ธรรมชาติมารายล้อมอาคาร และเป็น จุดทีลูกบ้านของทีพักอาศัย จะพบเห็นก่อนจะเข้า ไปในทีพัก อีกทัง ส่วนออฟฟิศและห้าง ก็สามารถใช้พืนทีธรรมชาติร่วมกันได้ โดย คิดพืนทีห้องแต่ละยูนิตนัน อ้างอิงการจัดพืนทีทีมีความพิเศษ ด้วยการนําพืนที engawa / shoji มาช่วยในการออกแบบ CONCEPT NATURE JAPAN-NESS ICONIC LIFESTYLE FUTURE MIXUSE SILOM JAPANESE พ.ศ.2513 - NOW REAL ESTATE DEVELOPER ความต้องการของตลาด ยกระดับคุณภาพชีวิต
ROOMTYPE
SECTION MODEL

EXPLORE THE BANPOON

15

LANDSCAPE

17
เส้นสาย สร้างทางสัญจร การไหล เข้ามาสู่อาคาร
SECTION

GRAPHIC AND MODEL

CARD TO JAPAN CARD TO JAPAN COLLECTION
ww2Place
Semiotic in place space art
ARCHITECTURAL
methodology in House after
for people
Japan-ness scene of Jomon or YayoiCall out message in architectureArchitecture for Spiritual

DEVELOPEMENT CAMP

22
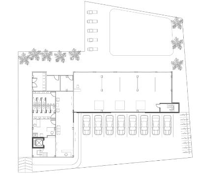
"เขาน้อยเรือนลอย" อาคารอเนกประสงค์ฝีมือค่ายอาสาฯ ทีสร้างให้ทังผู้ใหญ่และเด็ก ได้นังและเล่นในทีเดียวกัน โดย คัดเลือก โรงเรียนบ้านห้วยนําโจน ตําบลเขาน้อย อําเภอท่าม่วง จังหวัดกาญจนบุรีและได้สร้างอาคารหลังใหม่ ด้วยความตังใจให้อาคาร “เขาน้อยเรือนลอย” หลังนีเป็นทีต้อนรับแขก สําหรับโรงเรียนได้ดีพอๆ กับทีนักเรียน ทีจะใช้นังและเล่นได้อย่างสนุกสนานไม่แพ้กัน ระยะทางราว 15 กิโลเมตร จากอําเภอเมืองฯ กาญจนบุรี โรงเรียนบ้านห้วยนําโจนถูกเลือกให้เป็นสถานทีตัง สําหรับ โครงการค่ายอาสาฯ ในครังนี ส่วนหนึงด้วยขนาดและจํานวนนักเรียนราว 120 คน ทีตรงกับวัตถุประสงค์ ทางคณะฯ สภาพแวดล้อมทีสวยงาม มีลานกว้าง และฉากหลังเป็นเขาสูงใหญ่ การเป็นโรงเรียนระดับอนุบาล และประถมศึกษา ซึงช่วงวัยของนักเรียนตรงกับจุดประสงค์ของการจัดสร้างอาคารที ตอบสนองกิจกรรมการใช้งาน อาคารทีอิสระ และสนุกขึน มากกว่าการเป็นอาคารห้องประชุมหรือ ห้องเอนกประสงค์เพียงอย่างเดียว ทีสําคัญระยะทางทีไม่ใกล้ไม่ไกลจากตัว เมืองมากนัก ยังสอดคล้องกับข้อจํากัดเรืองเวลา เรืองของงบประมาณ และสถานการณ์โรคระบาด ทีส่งผลต่อระยะเวลาการดําเนินการ การเดินทางและการขนส่งวัสดุอุปกรณ์ในการก่อสร้าง ซึงข้อจํากัดนีเองทีนํามาซึงกระบวนการการออกแบบ และก่อสร้างทีเปลียนแปลงไปจากทีเคยทํามา ความง่าย และ ความเร็วในการก่อสร้างจึงเป็นหัวใจสําคัญทีสุดสําหรับค่ายอาสาฯ จึงออกแบบอาคารโดยใช้วิธีการก่อสร้าง เป็นระบบสําเร็จรูปหรือ Prefabrication โดยในท้ายทีสุด โครงการได้สําเร็จออกมาเป็นอาคารไม้โปร่งโล่งขนาด 8.5 x 4 เมตร โดยวิธีการคือนักศึกษา ได้ใช้เวลาออกแบบและประกอบชินส่วนสําเร็จรูปร่วมกันทีคณะในช่วงวันหยุดสุดสัปดาห์ราว 10 สัปดาห์ จากนันจึงยกชินส่วนไปติดตังทีโรงเรียนซึงใช้เวลาก่อสร้างทีหน้างานเพียงราว 2 สัปดาห์เท่านัน Concept/Intention - ต้องการให้อาคารนีมีลูกเล่นของการนังมากกว่าการเป็นแค่พืนทีโล่งแล้วนําเก้าอีมาจัดเรียง จึงจะเห็นได้จากในตัวอาคารทีประกอบไปด้วยลูกเล่นของดีไซน์หลายส่วน โดยนอกจากการติดตังกระดานดําไว้ ทางด้านหนึงของอาคารซึงเป็นองค์ประกอบพืนฐาน ในอาคารก็ยังมีชิงช้า ทีนังแบบตาข่าย รวมถึงทีนังต่างระดับ ทีผู้ใช้งานจะเลือกนังหย่อนขาหรือปีนป่ายปรับท่าไปนังท่าใดก็ได้ โดยองค์ประกอบทังหมดนันใช้ไม้สนขาว เป็นวัสดุโครงสร้างในทุกส่วนของอาคาร และใช้แผ่นโปร่งแสงเป็นวัสดุมุงหลังคาในตอนท้าย เพือ ต้องการให้อาคาร โปร่งโล่งให้มากทีสุดเท่าทีจะทําได้ และด้วยทีตังอาคารนันอยู่ใต้ร่มของต้นก้ามปูต้นใหญ่ จึงช่วยลดความกังวลเรือง แสงแดดและความร้อนลงได้มากจนไม่เป็นปัญหา DEVELOPEMENT CAMP work in process 19
Photo by @Billycompo

PLAN

SITEPLAN

SECTION

ELEVATION
DRAWING
FINAL 2022

THANK YOU

Turn static files into dynamic content formats.

Create a flipbook
Issuu converts static files into: digital portfolios, online yearbooks, online catalogs, digital photo albums and more. Sign up and create your flipbook.