Taboon Playbook FINAL

Page 1

Playbook

2 Taboon Playbook Introduction p. 4 Part I: The Taboon Concept Culinary Culture 5 Concept Clarity 7 Menu Template (used at all locations) 9 Menu Features 12 Logo Usage 14 Part II: Restaurant Design Dining Room Layout Design 15 Taboon Display Kitchen 17 Additional Equipment 19 Taboon Oven Operational Guide 21 Main Kitchen Layout for Support 31 Food and Cookware Display Opportunities 32 Display Standards for FOH 34 Tabletop 35 Cookbooks and Language Books 38 Part III: Culinary Standards Regional Creativity 39 Culinary Program and Standards 40 Operating Standards 41 Cookware 42 Carbonized Wood Serving Peels 43 Menu Profile 44 Standardized Spring/Summer Menu 49 Standardized Fall/Winter Menu 50 Year-Round Items 51 Recipes 52 Regional Creativity 53
Cover photo is of the Amalfi Coast in Italy.
3 Beverage Suggestions Wine 57 Spirits 57 Beers 58 Non-Alcoholic 58 Part IV: Table Service Standards Staff Interactions / Greeting 59 Upselling 62 Taboon Uniforms 63 Part V: Menu and Staffing Rotation Staffing for Independent Living Memberships 65 Watermark’s Policies and Procedures 66 Miscellaneous Operational Checklists / Forms 67

Introduction

When Watermark’s own David Freshwater set out to find the ideal cuisine for Watermark’s luxury senior living communities, it’s no surprise he landed in the Mediterranean. Encouraged by friend and health guru, Dr Andrew Weil, David and Watermark set out “to eat Mediterranean.” As the New York Times has reported, the Mediterranean diet, rich in fruits, vegetables, legumes, whole grains, nuts, seeds, lean proteins and healthy fats has become a “bedrock of heart-healthy eating, with well-studied health benefits including lower blood pressure and cholesterol, as well as a reduced risk of Type 2 diabetes.”

Through extensive recipe research, menu planning sessions and countless conversations with chefs and other professionals, the Taboon Playbook was created to ensure consistency across current and future operations throughout the Watermark family.

We need to acknowledge and thank the following individuals, their teams, and their communities for the countless hours spent researching and testing recipes, developing plate presentations, conducting tastings, documenting and photographing, and trying out the many recipes with their members. Without their energy, enthusiasm, creativity, talent and commitment, the contents of this book would not have been possible.

Hacienda at the Canyon The Watermark at Westwood Village Israel Tan, Executive Chef
4
Israel Tan, Executive Chef

A Culinary Culture

Part I: The Taboon Concept

Healthful nutrition is a key component of any senior community, but what’s often harder to find is food that tastes delicious and draws in diners with a theatrical flair. But when it comes to the culinary culture of the Taboon concept, eating well is actually engaging and entertaining, too!

Our Taboon venue is centered on the hearth oven serving a freshly prepared menu of soups, salads, appetizers, sandwiches, light lunch items, entrees, and desserts. We invite residents and guests to sit at the kitchen display counter and interact with our chefs as they watch the dining experience unfold.

Placing the oven out front provides eye-catching drama while imparting subtle, smoky flavors to one’s favorite foods.

5

The Taboon oven:

• Adds flavor enhancement.

• Bakes - roasts - sautés - smokes – sears

• Diverse menu possibilities:

o Frittatas

o Cedar plank roasted salmon.

o Proteins for salads ….. shrimp, chicken, beef

o Kebabs

o Vegetables for vegetarian soups (great flavor without bacon)

o Individual cast iron skillet dishes

• Provides limitless opportunities for menu impact.

• Employs the timeless methodology of wood-fired cooking.

• Imparts incredible flavor.

6
Erich Border, Taboon Executive Chef using the Taboon oven.

Description of the Concept Clarity

A concept clarity statement serves as a restaurant’s “true north.” The origin story it embodies is the animating principle against which all decisions from food to design to service should be measured. Successful restaurants, those which become beloved by their guests, are the ones that are continually checking in to ensure they are staying faithful to the concept clarity that inspired the restaurant.

The Concept Clarity – Taboon

Steeped in sunshine and surrounded by the sea, Mediterranean cuisines have always been firmly planted at the intersection of good health and great flavor. Taboon seeks to embody those ideals in every aspect of the restaurant, from the enticing healthy food to the captivating décor to the welcoming service. Named for the blazing open-hearth bread oven, that is the centerpiece of the space, Taboon reignites the cooking technique in a fresh way, focusing on Mediterranean and Middle Eastern flavors that pay tribute to the oven’s origins. The result is a combined cuisine that’s as healthful as is delicious — from signature entrees such as whole Branzino, to locally sourced beef, lamb, chicken, and vegetable dishes — all roasted or finished to sizzling perfection in the fire-fueled oven. Lighter items include a prize-worthy selection of well-spiced soups, savory flat breads, side and entree-sized salads. A vast selection of mezze, a mainstay of Greek dining, which continues the tradition of healthy eating for a long life well lived. Even desserts and breakfast dishes are prepared in the fire-burning oven we’re sure you’ll agree that the signature skillet cookie is well worth saving room for! A carefully curated offering of regional wines rounds out the culinary celebration of warmth and welcome inherent in the Mediterranean lifestyle.

The Concept Clarity – Taboon (short version)

Mediterranean cuisines have always been firmly planted at the intersection of good health and great flavor. Our signature restaurant, Taboon, seeks to embody those ideals in every way from enticing, healthy dining, to a captivating décor, to welcoming service. Named for the blazing, open-hearth bread oven that is the centerpiece of the space, Taboon reignites the ancient cooking technique in a fresh way, focusing on Mediterranean and Middle Eastern flavors that pay tribute to the oven’s origins. From savory entrees to mouth-watering desserts, our chef’s skills at the oven are on display every day at Taboon.

7

Map of the Mediterranean

Below are the 22 countries that make up the Mediterranean.

Gibraltar

Spain

France

Monaco

Italy

Malta

Slovenia

Croatia

Montenegro

Albania

Turkey

Republic of Cyprus

Syria

Lebanon

State of Israel

Palestine

Egypt

Libya

Tunisia

Algeria

Greece

Morocco

8

Menu Template

The sample menus shown below are optimized with the appropriate selection level for independent living communities of 51-100 members. Recommendations for smaller or larger communities are included later in this document. While the menu category headers (Starters, Entrees, etc.) would stay the same, the number of options within each category is dependent on the member population level. Please note that the main menu is intended to be a two-sided document; the coffee and dessert options though would be presented on a separate 5”x7” menu.

Lunch / Dinner Menu Specifications

Menu printing available with Classic Linen

Size: 8 ½ x 11 in lbs: 84lb Color: Gold Pearl

Size: 8 ½ x 14 in lbs: 84lb Color: Gold Pearl

iMenuPro Publishing Software contains the Taboon template. Please refer to that section.

Dessert / Coffee Menu Specifications

Size: 5 x 7 in lbs: 84lb Color: Gold Pearl

iMenuPro Publishing Software contains the Taboon template. Please refer to that section.

9
Lamb Sandwich Crema Catalana
10
Menu Front 8.5” x 11” or 8.5” x 14”
11 Beverage Menu Back 8.5” x 11” or 8.5” x 14’’
12
Dessert Menu Front 5” x 7” Coffee Menu Back 5” x 7”

Menu Features

These menus have been specially designed with the target audience in mind. Note the larger font sizes, simple and easily readable descriptions, and the prominently displayed, craveable signature offerings and popular trend items that are easy to find and order.

13
14

Logo Usage

The logo can be found in iMenuPro/Taboon.

15

Part II: Restaurant Design

Dining Room Layout Design

Overall, the design and layout of the indoor and outdoor dining spaces is a definitive departure from traditional senior housing dining venues. Taboon (and Taboon-like concepts) intentionally present as a “real-world” restaurant. Highlights include an inviting Mediterranean look and feel, and a visually exciting open kitchen that engages guests with chefs at work and the enticing open flame of the signature oven.

16
West Palm Beach Taboon
17
Rendering of West Palm Beach Taboon Dining Room Photo of view into West Palm Beach Taboon Kitchen

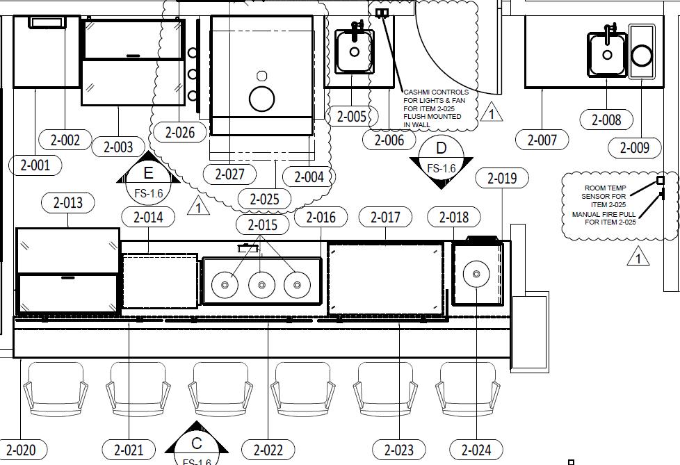
Taboon Display Kitchen

Shown below is a typical layout for a kitchen in a Taboon or Taboon-like concept. Kitchen size and equipment will vary from property to property. Cut sheets for specified equipment can be found on pages 20-21.

18
Kitchen Layout for West Palm Beach Taboon
19

Additional Equipment

20
Built-In Drawer Warmer Heated Undercounter Dish Cart
21
Built-In Heated Glass ShelfAccompaniments Hot Holding / Display
Woodstone Oven Built-In Heated ShelfHot Pick-up Window

Taboon Oven Operational Guide

The secret of stone hearth cooking is the stone itself. The single-piece floor and dome of the oven are made from specially formulated high-temperature refractory ceramic. Our unique construction method and materials produce a deep heat sink (storage) effect that guarantees floor temperature. A guaranteed floor temperature ensures consistent cooking zones and a stable product throughout the day.

The oven is known as a great pizza oven, but it does more than pizzas! Regardless of the cooking application searing/sautéing, roasting, baking breads, baking pizza it can all be done at the same time in the same oven, holding in moisture and giving your product wonderful color, flavor, and texture.

22

Wood Stone Hearth Oven

Type: Radiant Flame, Underfloor Infrared (IR) Burner, Gas-Fired or Gas/Wood Combination. Please insert your community’s Model Number below.

Model:

Cooking Deck:

Cooking Capacity:

Oven Controls

Initial Oven Start-Up Procedure

IMPORTANT: If at any time you feel that either or both burners are not operating properly, turn the oven off and call for service. Before servicing, disconnect the electrical supply at the breaker and turn off the gas supply at the appliance’s individual gas shutoff valve. In the event of a power failure, no attempt should be made to operate the oven.

23

Your oven was cured at the factory. However, during shipment, storage on site, etc. the ceramic materials will have absorbed moisture. It is critical that the procedure below be followed to ensure that this moisture is driven from the ceramic in a controlled fashion. This will minimize cracking and prevent damage to the oven that could otherwise occur by bringing the oven to temperature rapidly the first time it is used. This initial procedure need only be followed the first time the oven is fired and/or if the oven has not been used for an extended period of time.

BEFORE GETTING STARTED

1. Make sure main gas supply is on (valve parallel with gas line).

2. Make sure the switch on the Honeywell gas control gas valve (SV-2) is in the ON position. This is located beneath the oven.

3. Make sure that the venting system has been tested and approved for operation and is on.

FIRST DAY

1. Remove the Night Heat Retention Door(s). Push the ON/OFF button on Controller. It may take a while for the gas to purge all the air from the gas lines.

2. Allow oven to operate with the radiant flame at its lowest setting for one hour.

3. After one hour, raise radiant flame to 25% (~ 6-inch flame, 2 on the Flame Height Index Scale). Hold this setting for 4 hours.

4. After 4 hours at 25% flame, raise to 50% flame (3 on the Flame Height Index Scale) and hold for at least another 4 hours or until the temperature reaches 500 °F.

5. Once the temperature reaches 500 °F, the oven is ready for use. If you will be shutting the oven down, see the instructions that follow.

TURNING OFF THE OVEN

Push ON/OFF button. All gas will go off, including the pilot. Put the Night Heat Retention Door(s) in place to retain heat.

NOTE: Always wait 5 minutes before restarting the oven. Never run the oven with the Night Heat Retention Door(s)in place.

NOTE: Small “crazing” cracks will occur with normal heating and cooling. They will not affect the performance or durability of the oven. If cracks of 1/8" or more develop, contact Wood Stone for evaluation.

24

Daily Oven Operation Overview

DAILY START UP

1. Remove the Night Heat Retention Door(s).

2. Push ON/OFF button, adjust the Hearth Set Point on the Controller to the desired floor temperature.

3. Using the Flame Height Control Knob, turn the radiant flame to its highest setting.

4. Check your temperature after approximately one hour.

5. If you are close to your desired temperature, reduce your flame to the holding flame setting that corresponds to your desired temperature.

6. See the FLAME HEIGHT CONTROL section that follows to determine the proper setting that will correspond to your desired temperature.

Note: It is only possible to program the Hearth Set Point for the underfloor IR burner to temperatures from 100–800 °F. Once proper temperatures for your applications have been established, there should be little or no need to change the Hearth Set Point.

The Hearth Temperature readout will display “LO” until the oven floor reaches 100 °F.

Adjusting the Radiant (Dome) Flame

To adjust the radiant flame: The radiant flame is always on (when the oven is operating) and can be adjusted to any flame intensity between its highest and lowest setting. Simply turn the Flame Height Control Knob located to the lower left of the doorway, beneath the mantle. This burner is the primary heat source for the oven. The underfloor IR burner acts as an assist, to maintain desired floor temperatures during periods of high food production.

Flame Control Height DETERMINING THE APPROPRIATE FLAME HEIGHT

For each specific configuration of oven there is a system that determines what the desired flame height will be. Each flame height corresponds to a saturated floor temperature. Several factors need to be accounted for in order to determine this relationship for each oven. Burning wood simultaneously in the oven will influence the settings below.

USING THE FLAME HEIGHT INDICATOR SCALE

Heat Up Flame: Set Throttle Knob Pointer at “5” (highest setting) on the Flame Height Index Scale until desired temperature is reached.

25

Holding Flame: Set the flame height to “3” (~8–9" flame) on the Flame Height Index Scale for desired temperature of 570–600 °F. Set the flame height to “2” (~5–6" flame) on the Flame Height Index Scale for desired temperature of 450–480 °F.

Cooking Flame: After introducing the pizza/product into the oven, visually raise the flame to approximately 3 inches higher than the Holding Flame.

Return the Flame Height Control Knob to the Holding Flame position after removing the pizza/product from the oven.

THE COOKING FLAME HAS TWO PURPOSES:

1. To bake the top of the pizza/product as fast as the bottom of the pizza/product.

2. To help replace heat to the floor (hearth) that is lost during production cooking.

Note: The settings recommended on the Flame Height Index Scale for specific flames are based on ovens that have been installed according to specifications. Individual results may vary slightly.

For more information regarding Flame Height Control, go to the Resource Center section of our web site at: www.woodstone-corp.com

TIP: You can visually estimate flame heights using the Wood Stone utility peel, which is 8" tall when standing on edge in front of the flame. Then relate height to the corresponding number on the Flame Height Index Scale.

Videos: Start-Up, Cooking Techniques, Tools, Cleaning

All training videos are available on the Wood Stone YouTube channel

How To Start Up a Gas Oven

How to Manage Heat Easily in Your Wood or Gas Oven — Heat Management – HD

How to do Pizza Rotation in a Wood or Gas Oven

26

How to do Pizza Rotation for Multiple Pizzas in Your Pizza Oven – HD

Bubble Hook - Pizza Hook

Cleaning a Wood Stone Oven Floor

Particle Shovel Tool

Daily Shut Down

TURNING OFF THE OVEN

1. Push the ON/OFF button. All gas will go off, including the pilots.

2. Put the Night Heat Retention Door(s) in place to retain heat.

Note: Always wait 5 minutes before restarting the oven. Never run the oven with the Night Heat Retention Door(s) in place

Daily Cleaning

CLEANING THE OVEN

Clean as needed multiple times per hour depending on production. Wood Stone recommends the use of long-handled brushes for sweeping up surface debris that will accumulate on the floor of the oven during use. Use a natural fiber brush, always brushing away from the radiant burner well to the doorway where it can be easily remove with a dough cutter or spatula.

For deeper cleaning, use a brass bristled brush. The oven floor can be then clean with a damp (not wet) rag wrapped around the brush head.

Wood Stone offers an assortment of oven brushes available through your dealer. Specification sheets may be view on the Wood Stone website under Tools & Accessories.

27

NEVER PLACE ANYTHING IN OR ABOVE THE RADIANT FLAME.

NEVER SWEEP DEBRIS INTO THE RADIANT BURNER. THIS CAN CAUSE THE BURNER TO CUT OUT, DAMAGE BURNER COMPONENTS, AND/OR EFFECT BURNER PERFORMANCE.

PROBLEMS CAUSED BY DEBRIS IN THERADIANT BURNER WILL NOT BE COVERED BY THE OVEN WARRANTY.

NEVER USE ICE, EXCESSIVE WATER, ANY LIQUID, OR ANY TYPE OF CLEANING CHEMICAL ON THE OVEN FLOOR.

DOING SO CAN SEVERELY DAMAGE THE OVEN CERAMIC AND THIS DAMAGE WILL NOT BE COVERED UNDER WARRANTY.

NIGHT HEAT RETENTION DOORS

The door(s) are used for nighttime heat retention. Do not operate the oven with doors in place.

DO NOT POUR OR SPRAY LIQUIDS ONTO THE OVEN DECK OR INTO THE OVEN INTERIOR AS THIS CAN DAMAGE THE CERAMIC AND WILL VOID THE WARRANTY.

Establishing a Thermal Cleaning Schedule

Wood Stone ovens are typically operated at temperatures which preclude the need for cleaning of the interior walls and ceiling (the dome) of the oven. If, however, you routinely operate the oven at floor temperatures lower than 450 °F, you may notice a buildup on the interior walls and/or ceiling of the oven. If this is the case, use the following procedure to periodically clean the oven. The frequency of thermal cleaning will be determined by the amount of buildup experienced.

28

THERMAL CLEANING

If a Wood Stone gas-fired oven is operated at low temperatures (below 450 °F), it is possible that grease from food could condense on the walls and ceiling of the oven. To remove the grease that has accumulated on the walls and ceiling of the oven, simply turn the radiant flame to its highest setting. Monitor the floor temperature displayed on the Controller. When the floor reaches 600 °F, lower the flame slightly so as to maintain the oven floor temperature near 600 °F for about an hour. Once the oven dome appears clean, allow the oven to return to normal operating temperatures and continue normal operation

Wood – Managing the Oven Fire (if a wood oven) currently at Hacienda Canyon Only

While the oven fully works with its gas burners, wood adds subtle, smoky flavor overtones and flavor complexity to the food being cooked. The oven is approved to allow the burning of wood in the cooking chamber in addition to the gas burners. When burning wood, the fire should be placed to one side of the oven chamber, as close to the door opening as is possible (this is often described as the 8 o’clock or 4 o’clock position). Burn a maximum of 15 lbs. of wood per hour. If flames spill out of the doorway, or the oven temperature exceeds 850 °F, you are over firing the oven.

Make every effort to keep ash and other debris out of the radiant burner well. Do not use the radiant burner as a “backstop” when shoveling ash and/or coals out of the oven. Burner problems resulting from debris or ash in the burner well will not be covered by the oven warranty. Using the oven floor brush and ash shovel, move debris only toward the oven doorway and dispose of safely.

NOTE: Ovens burning solid fuel require a more frequent maintenance schedule. Call with questions regarding maintenance frequency. Wood Stone recommends cleaning and inspection at least monthly on any ventilation system serving solid fuel equipment.

29

DISPOSE OF ASH PER THE FOLLOWING:

1. Place ashes into a metal container with a tight-fitting lid.

2. Place the closed container of ashes on a non-combustible floor or on the ground.

3. Place the closed container of ashes well away from all combustible materials, pending final disposal.

4. Retain the ashes in the closed container until all the cinders have thoroughly cooled. Ashes can then be disposed of safely.

STARTING THE FIRE

Build a small kindling fire of 5–7 lbs. of heavy, hardwood. We suggest using a fire starter (paraffin/sawdust stick) to start the fire. Begin with (3) small pieces of wood (about 1–3" diameter and 14–16" in length). The fire should be located on side of the oven chamber opposite the radiant gas burner. The fire may be burned at the back of the oven at the center provided the coal bed is kept at least 12 inches away from the Radiant Burner. Wood may be burned at a rate not to exceed 15 lbs. per hour.

Use only seasoned hardwoods with a moisture content of 20% or less. Use of soft woods, such as pine, cedar, hemlock etc., and wet or “green” wood, will cause a build-up of residue throughout the exhaust system. (See the FUELWOOD FACTS section later in this manual or consult factory for information on what types of wood can be used for oven fuel.)

The fire should be ignited a couple of hours before the oven needs to be at cooking temperature. Once the oven is being used daily, the fire can be ignited using still glowing coals from the previous day’s fire.

The oven is heated more evenly and effectively by the fire positioned on the side rather than in the rear of the oven. Adding about 5–7 lbs. of wood per hour should bring the oven temperature up about 100 °F per hour (this will vary slightly depending on the type and moisture content of the wood and the size of the oven).

30

The floor temperature is indicated by the Digital Hearth Temperature Readout and should not exceed 850 °F. Once the desired temperature is reached, maintain it by the addition of wood as needed. Do not toss or throw wood against back or side walls of oven this may void the warranty. At the end of the workday, put removable Night Heat Retention Door(s) into door opening to hold heat in the oven overnight.

DO NOT OVER-FIRE THIS OVEN. IF FLAMES ARE SPILLING OUT OF THE DOOR OPENING, OR IF OVEN FLOOR TEMPERATURE EXCEEDS 850 °F, THEN YOU ARE OVER-FIRING THE OVEN.

MANAGING THE FIRE / TEMPERATURE

These suggestions will normally produce an oven floor temperature of 500–600 °F. If you need to achieve higher temperatures, use a little more wood. For lower temperatures, use a little less wood. MS-4 oven: Maintain temperature using 1 log with 6–10" of open flame working on the coal bed. MS-5 & MS-6 ovens: Maintain temperature using 1–1½ logs with 8–12" of open flame working on the coal bed. MS-7 oven: Maintain temperature using 1½–2 logs with 8–14" of open flame working on the coal bed.

IMPORTANT NOTES

• One pound of properly cured, heavy, hardwood produces the potential of 6,500 BTU/hr.

• The temperature sensor (thermocouple) is located at the center of the floor, one inch under the surface. The thermocouple will give false readings if the fire is placed on top of it.

• If at anytime the oven is allowed to cool to room temperature for an extended period of time, this heat-up procedure will need to be repeated to avoid thermal shocking of the refractory stone which can cause excessive cracking.

DO NOT POUR OR SPRAY LIQUIDS ONTO THE OVEN DECK OR INTO THE OVEN INTERIOR AS THIS CAN DAMAGE THE CERAMIC AND WILL VOID THE WARRANTY

Duct Servicing

The duct serving this oven should be inspected at least twice a month during the first two months of operation, to establish rate of creosote buildup and necessary cleaning schedule. Typically, Wood Stone recommends monthly cleaning for all solid fuel ovens.

31

Main Kitchen Layout for Support

As noted in other sections of this playbook, execution of Taboon (and Taboon-like) concepts can vary depending on the size of a community’s independent living population. The menu mix and selection level will be tied to this metric, and so will the balance between how and where menu items will be prepared and/or held. All menus will include a range of items, some of which can be prepped in the main kitchen and subsequently brought forward to be held, hot or cold, for finishing and service from the Taboon kitchen. Additionally, some items, such as pizzas and flatbreads, would be prepared and served, start to finish, from the Taboon kitchen.

32
Main Kitchen (i.e., Breads)

Food and Cookware Display Opportunities

Ample display space allows for a visually enticing opportunity to reinforce the restaurant’s Mediterranean concept. Examples include baskets, pottery, cookware, olive oil cruets and more. National retailers such as Crate & Barrel and Williams Sonoma. Housewares and home goods sections of department stores like Nordstrom and Macy’s are excellent resources to procure these display items.

$99.95

$69.98

$89.99

33
Moroccan Handmade Serving Tagine Kamsah Hand Made and Hand Painted Tagine Pot Moroccan Handmade Serving Tagine Click the items below to purchase.

Click

34
Vintage Turkish Metal Skewers Set of 8, $42.00 Vineyard Wine Crates $45.00 ea
the items below to purchase.

Display Standards for FOH

Tabletop: China glass, silver, cookbook examples

The tabletop is another opportunity to reinforce the concept and cuisine. Coordinating china, glass and silverware can be added to existing inventory to freshen the look of your Taboon. The addition of cookbooks and other conceptually relevant reading material is a novel touch that not only satisfies the appetite for knowledge common amongst seniors, but it can also conveniently serve as a welcome dining companion for the solo diner. These are some of the attributes that separate Taboon from other dining experiences in competitive senior communities

35
36
Hollowick for current pricing
Cauldron™ Votive Contact MosJos Mason Original Olive Oil Glass Bottle Set $16.99
Click the items below to purchase.
MosJos Mason Jar Salt and Pepper Shaker - Rustic Glass Condiment Dispenser Set with Metal Iron Caps $13.65
37 Vendor / Price List
38
39
Learn to Read Greek in 5 Days $11.95
Mediterranean Dish $18.75 Common French Phrases $9.95
Mediterranean Cookbook: A Regional Celebration $22.45 Conversational Hebrew Quick and Easy $12.99 The Essential Mediterranean Cookbook $13.65 Learn Arabic for Beginners $9.99 Click the items to purchase.
Complete Mediterranean Cookbook $18.80
Cookbooks and Language Books
The
The
The

Part III: Culinary Standards

Culinary Program and Standards

Offer local, regional and seasonal foods and ingredients

Breakfast

• Frittatas

• Baked breakfast breads and pastries

Lunch

• Flatbreads (entrée size)

• Protein-topped salads

• Sandwiches

• Pizzas

Happy Hour

• Flatbread appetizers

• Bruschetta appetizers

• Breads and rolls (for dinner service in all dining areas)

Dinner

• Meats, seafood and poultry entrees

• Bakes and casseroles

• Roasted vegetable and starches

Desserts

• Cobblers

• Tarts

Brunch

• Frittata

• Strata

• Omelets

40

Operating Standards

When it comes to a successful restaurant, the deliciousness is in the details! Below are a handful of best practices that should be consistently adhered to so as to maintain the highest levels of professionalism and superior guest experience.

From open to close, the oven is always the hub of activity of the Taboon dining area.

• The hours of operation 7am-7pm:

o Chefs should be preparing items for the community such as muffins, bread, roasting vegetables, flat breads meat, fish, etc.

• Amuse-bouche - provide guests at counter small complimentary appetizer tastes during mealtimes.

• Interactive Cooking Classes – schedule weekly

• Chef Tables – scheduled weekly

• Stage Management -

o Ingredients displayed with eye appeal and merchandized.

o No clutter behind the counter

o Pens, paper, wrap, food packaging is hidden from view.

o No dusty counters, shelves, ledges, light fixtures, equipment - all must be polished and shiny.

o Glass sneeze guards and supporting framework – spotless.

• Mise en Place is critical for Exhibition Kitchens (everything in its place)

• Uniform (chef coat and hat) is appropriate, clean and crisp.

• Name tag visible and easy to read.

• Pans, containers, cooking vessels, utensils, tools, and hot pads are clean, in good condition, and coordinated (match)

• Use wood (if equipped) – while the oven fully works with its gas burners, wood adds subtle, smoky flavor overtones and flavor complexity.

41

Cookware – Lodge Cast Iron

Cookware is available through US Foods.

42

Carbonized Wood Serving Peels – American Metalcraft

Equipment and tools come with your oven. Additional items may be ordered through Woodstone.

Equipment & Tools

(1) loading peel (LP-12")

(1) utility peel

(1) brush set

(1) bubble hook

(1) particle ash shovel

43

This easy reference serves as a guidance tool for developing menu selection based on IL member occupancy.

2

4 Desserts

44
IL Members Dayparts and Days Menu Profile 0 – 25 Dinner – one night
Appetizers
Salad
Sandwich
Flatbread
Entrees
Desserts
– 50 Lunch – three days Dinner – three nights
Appetizers
Salad
Sandwich
Flatbreads
Entrees
Menu Profile
2
1
1
1
3
2
26
2
1
1
2
3
Desserts 51 – 100 Lunch – five
Dinner – five nights
days
3 Appetizers
2 Salads
2 Sandwiches
3 Flatbreads
4 Entrees
100+ Lunch –
Dinner –
3 Desserts
seven days
seven nights
4 Appetizers
2 Salads
2 Sandwiches
4 Flatbreads
6 Entrees
45 IL
– One
8 1/2” x 11”
Members 0-25 Dinner
night

IL Members 26-50

Lunch – Three days

Dinner – Three nights

IL Members 51-100 Lunch – Five days Dinner – Five nights

47
8.5” x 11” or 8.5” x 14”

IL Members 100+ Lunch – Seven days

Dinner – Seven nights

48
8.5” x 11” or 8.5” x 14”

Standardized Spring / Summer Menu

These seasonal lists contain all the current selections that can be regularly featured at your Taboon community; the actual number of choices for any given property would be determined by community size. Selections from these lists would comprise 80% of your menu with the other 20% being a mix of locally sourced items, seasonal offerings, and guest preferences, all of which would be created by the chef Further information can be found in the separate links under Recipe Collections for Spring/Summer and Fall/Winter.

Note: We are continuously developing our collection of Taboon recipes. Some, but not all, of these recipes may be currently found in the Recipe Collections.

APPETIZER:

1. Bruschetta

2. Scallop St. Jacques

3. Zucchini Croquettes

4. Gazpacho

5. Hummus Trio*

6. Tabbouleh Salad*

7. Summer Quinoa Salad with Charred Pineapple

8. Caprese Salad with Crusty Baguette*

ENTRÉE:

1. Falafel

2. Lamb Sandwich

3. Lamb Gyro*

4. Lamb Burger*

5. Spicy Yogurt Marinated Chicken Sandwich

6. Kebabs- Chicken, Beef, Lamb*

7. Taboon Roasted Branzino* (Trout, Branzino, Snapper)

9. Lemon Roasted Spring Vegetables

10. Fattoush Salad

11. Antipasto*

12. Beets and Burrata

13. Mezze Sampler

14. Prosciutto Wrapped Melon

15. Blistered Cauliflower and Creamy Labneh

16. Falafel and Amba Dipping Sauce*

17. Baked Spinach and Artichokes

8. Cast Iron Seared Flank Steak Peperonata*

9. Tuna Niçoise Salad*

10. Loaded Greek Salad*

11. Alla Forno

12. Taboon Baked Cod with Caponata

13. Curried Chicken Salad/Sandwich*

* These items are Taboon Signature dishes.

49
Taboon Roasted Branzino Lamb Burger

Standardized Fall / Winter Menu

APPETIZER:

1. Grilled Wild Mediterranean Shrimp

2. Lavash with Artichoke Pesto

3. Crostini with Eggplant Tapenade

4. Bruschetta with Balsamic Glaze

5. Spiced Roasted Chickpea and Edamame

6. Citrus Marinated Cherry Tomato and Green Olives

7. Falafel with Tzatziki Sauce

ENTREE:

1. Moroccan Spice Lamb Curry over Basmati Rice

2. Lamb Kofta Shawarma

3. Chicken Puttanesca w/Orzo Pilaf

4. Harissa Spice Roasted Chicken w/ Beets Risotto

5. Roasted Chicken w/ Provencal Sauce

6. Pan Seared Salmon w/ Tzatziki Sauce*

7. Roasted Branzino w/ Pomegranate Glazed, Yukon Potatoes

8. Roasted Mahi -Mahi Sicilian Style*

9. Seared Scallops w/Lemon Caper Sauce & Cheesy Polenta

8. Roasted Cauliflower Tabouleh

9. Harissa Chicken Wings with Dill Yogurt Sauce

10. Olive and Feta Pull-Apart Bread

11. Mediterranean Spice Meatballs w/ Yogurt Sauce

12. Hummus with Crispy Mushroom and Sumac

13. Spiced Roasted Pepper Whipped Feta

14. Shakshuka w/ Grilled Baguette

15. Skillet Roasted Carrots with Zaatar Bread Crumbs

10. Kabob Trio of Beef, Chicken, Shitake w/ Basmati Rice

11. Lox over Mediterranean Salad

12. Greek Style Chicken Burger w/ Spiced Chickpeas*

13. Lentil & Orzo Salad w/ Citrus

Vinaigrette

14. Tabbouleh Stuffed Portabella Mushroom w/ Balsamic Glaze

15. Moroccan Beef, Apricot & Almond casserole

* These items are Taboon Signature dishes.

50
Pan Seared Salmon with Tzatziki Sauce Kebabs

Year-Round Items

FLATBREAD:

1. Lamehjun

2. Greek Flatbread

3. Lavash Flatbread w/ Cauliflower, Fennel, and Coriander*

4. Roasted Red Pepper Hummus

5. Steak, Goat Cheese with Brussel Sprout

DESSERT:

1. Amba Panna Cott with Rose Syrup

2. Crème Catalana

3. Poached Pear in Red Wine

4. Greek Orange Phyllo Cake

5. Tiropita Roll w Honey Glaze

6. Beignets

6. Chicken and Pesto

7. Figs, Arugula and Prosciutto Flatbread

8. Lamb Spice Flatbread with Raita Sauce*

9. Pear, Brea, and Bacon*

10. Italian Style Flatbread*

10. Spiced Pound Cake with Grand Marnier Poached Apricot

11. Tahini Ice Cream Wrap with Turkish Cotton Candy

12. Currant Cinnamon Rolls

13. Chocolate Souffle

* These items are Taboon Signature dishes.

51
Poached Pear in red wine Greek Orange phyllo cake

Recipes (SEE RECIPE COLLECTION)

This playbook includes a collection of seasonal recipes for Fall/Winter and Spring/Summer. As noted in other sections of this document, 80% of your menu will be selected from this recipe collection, while the remaining 20% should be created by the chef with careful attention paid to local and seasonal ingredients as well as guest preferences. The recipe collection includes appetizers, salads, sandwiches, entrees and desserts, and each recipe offers an easy-to-follow format that features the item name, menu description, ingredient list, preparation method and a photograph of the finished item. All recipes, including the sample below, can be found in the separate Recipe Collection books.

52
53

Regional Creativity

Each Chef will have opportunities to create dishes, that apply more to your region and locally available produce, proteins, spices, and herbs. When selecting items from your region, be sure they are applicable to the dish you are creating, or the ingredients you are using (e.g., pomegranate molasses vs. prickly pear syrup)

Daily and weekly features

As you begin to build your census, the diversity of your menu will need to increase to accommodate your members appetites and preferences. It can be a challenge to know what will be popular in your community, and therefore challenging to manage food cost and labor.

Daily and weekly specials are key to developing your menu and as a source to run additional product you may have available. Use daily specials to run additional product, while the weekly special can be used to introduce new menu items and recipes.

Special Ingredients

Special ingredients may also include:

• Garam Marsala

• Curry- Spice and Paste

• Sumac

• Aleppo

• Za'atar

• 100% Virgin Olive Oil (better quality is best)

• Lemon Olive Oil

• Pine Nuts

• Pomegranate Molasses

Information above was provided by Chef Erich Border.

54

Beverage Suggestions

Wines, spirits, and other beverage selections should complement the Mediterranean concept and pair perfectly with the menu selections. The good news is that the Mediterranean region includes Italy, France, and Greece, three countries known for producing some of the best-loved and most popular wines. Craft cocktails and nonalcoholic beverages should be designed and selected with both the concept and the membership in mind.

55
56

Click on the bottles below. Be sure to check with your beverage distributor to

Wine

For more Mediterranean wine suggestions, check out this article: Mediterranean wines: 7 wines to try at least once in a lifetime

Spirits

Find more Mediterranean spirit suggestions in this article: 5 Faves: Spirits of the Mediterranean

57
purchase.
58 Click on the bottles below. Be sure to check with your beverage distributor to purchase. Beers Non-Alcoholic Find more Mediterranean beer suggestions in this article: A Guide To The Best Mediterranean Beers. Get more Non-Alcoholic beverages from Three Cents

Part IV: Table Service Standards

Staff Interactions / Greeting

“A great restaurant is one that just makes you feel like you’re not sure whether you went out...or you came home.”

A restaurant that feels like home and all the warmth and welcome that entails, with none of the food prep and cleanup is what we are after at Taboon. Indeed, in our case our guests are, in a way, dining at home since they are Watermark’s own residents. It’s vital that our service makes members feel like we are truly glad they’re here and it’s our pleasure to serve them.

Greeting & Seating

Greeting

• Warm and friendly greeting

• Smile and always establish good eye contact.

• Always use name if known or “sir” or “ma’am”

• “Good evening Mr. & Mrs. Johnson, how are you this evening?”

• Acknowledge all residents and guests at host stand. if someone is waiting, recognize their arrival and assure. them that you will be right with them: “I will be right with you.”

Seating

• Escorting – always invite the party to follow you to the table: “All set, Johnson party please follow me.”

• Walk at an appropriate pace – escort to the table

• Assist with seating – help with chairs.

• Present menus

• Introduce the server.

• Mention to residents any menu changes.

• Valet assistive devices

59

Providing Excellent Table Service

• Greet guest with a warm smile and introduce yourself and explain the menu:

“Good evening Mr. & Mrs. Johnson [or ladies/gentleman], my name is _________, I’ll be your Server today/tonight. Let me tell you about our menu this evening and our Executive Chef’s signature dish .”

• Know your guest’s order; never auction food.

• Always use a tray to deliver menu items and tableware.

• Make sure order is complete with condiments.

• Follow the “two-bite rule.”

• Ask: “how is your ______________” and use the 4 A’s – Acknowledge, Apologize, Ask, Act

Pre-bus before the next course

• Ask: “are you still enjoying your salad?” or “may I clear that plate for you?”

• Never ask “are you still working on that fish?”

• Never respond “not a problem” to a request, rather “it is my pleasure!”

• Continue to check throughout service, read the visual clues –residents looking around, glasses half empty.

Clearing & Resetting

Clearing

• Clear within five minutes of departure

• Always use tray to clear soiled dishes and linen and remove from dining room.

• Only handle stem, handle, or base (never put fingers in glasses or plates)

• Soiled linen is loosely folded and placed on top of tray.

• Wash and dry hands before leaving dish room area.

60

Resetting

• Use reset tray or box for efficiency.

• Only handle stem, handle or base

Departure Etiquette

• Bid farewell to residents and guests, thanking them for dining with us

• Eye contact and a warm smile is just as important at Departure as it is at the Greeting. HAVE FUN AND BE

61
Click on the books below to purchase.
PROFESSIONAL

Teach Your Team to Sell

Your employees are the greatest asset for upselling, and they should be constantly aware of their ability to do that. Almost every interaction they have with a member is an opportunity to influence their purchase. Whether they’re serving guests at a counter or at the table, nothing beats the power of suggestion.

Eleanor Frisch of Foodservice Warehouse says, “Upselling should seem like good service rather than a sales pitch.”

Make sure your servers are enlightening your guests rather than harassing them. Talk to your staff about why upselling is important and coach them on how to do it gracefully. By taking a consultative approach, like, “That particular cut of steak goes really nicely with the blue cheese crumble,” or simply, “Would you like some fresh-cut fries with your sandwich?” your staff is forming a relationship with the member and doing good for the business financially.

Ongoing training, especially when new menu items emerge, is a great way to guarantee your waitstaff is comfortable upselling. Have your kitchen prepare the latest and greatest from your menu for your next pre-shift. Give each employee the chance to try the new item, making sure they’re aware of the ingredients and cooking techniques used to create the dish. Encourage them to pick a favorite item from your menu that they can describe elaborately to your guests, along with sides and drinks that pair nicely with the meal.

Motivate Your Staff to Sell

There are ways to motivate your team to land bigger checks. Run a competition to see who can sell the most Sunday specials, or keep a leaderboard for the server who sells the most add-ons. The rewards you offer in return can vary from a cash bonus to favorite shift preferences

Build Up selling Into Your Tech

Restaurant technology can help you upsell. Your restaurant POS system can complement thorough staff training by reminding employees to ask guests those crucial upselling questions.

When a member orders an entree, your POS system can prompt your employee to ask to follow up questions by suggesting on screen to add drinks or sides. This gives your employees some support, especially when they’re newer to the team.

62

Taboon Uniforms

63
Aprons are worn by FOH service associates; aprons can be worn by Taboon chefs.
64 Contact: Steve Baruch sbaruch@feuryimagegroup.com (201) 207-1498

Part V: Menu and Staffing Rotation

65
IL Members Dayparts and Days Staffing Hours/Day 0 – 25 Dinner – one night 1 Chef 1 Cook 1 Server 1 Server/Host Total Weekly 8 8 4 8 28 (0.7 FTEs) 26 – 50 Lunch – three days Dinner – three nights 1 Chef 2 Cooks 2 Servers 1 Server/Host Total Weekly 8 16 16 8 144 (3.6 FTEs) 51 – 100 Lunch – five days Dinner – five nights 2 Chefs 2 Cooks 6 Servers (4 hr. shifts) 1 Runner/Busser 1 Host Total Weekly 16 16 24 4 8 340 (8.5 FTEs) 100+ Lunch – seven days Dinner – seven nights 2 Chefs 3 Cooks 7 Servers (4 hr. shifts) 2 Runners/Bussers 1 Host Total Weekly 16 24 28 8 8 588 (14.7 FTEs)
Staffing for Taboon based on Independent Living Members Occupancy

Watermark’s Policies & Procedures

At Watermark, we are committed to creating extraordinary and innovative communities where people thrive. These Policies and Procedures accomplish this by providing extraordinary dining experiences. The foundation of extraordinary is paying attention to the 1,000 details of dining everyday: how we greet residents and guests at the door, remember and deliver their preferences, present the menu, remember what each guest orders, and always check after two bites. It is all about how we make people feel in every encounter. Our Operating Standards and Policies, as well as skills taught through Learning Experiences, provide this foundation. The following resources found on WatermarkConnect support the successful operation of Taboon:

Watermark Policies:

Cleaning Schedules (WRC-DS-P036)

Dining Comment Cards (WRC-DS-P005)

Food Production (WRC-DS-P022)

Food Safety and Sanitation Self Inspection (WRC-DS-P002)

Glove Use (WRC-DS-P026)

Handwashing (WRC-DS-P013)

Menu Publishing (WRC-DS-P021)

Person Appearance and Hygiene (WRC-DS-P003)

Production Sheets (WRC-DS-P028)

Providing Excellent Table Service (WRC-DS-P007)

Safe Food Temperatures (WRC-DS –P035)

Standardized Recipes (WRC-DS-P027)

Watermark Learning Experiences:

Basic Food Safety (WRC-DS-W170)

Dining Room Use and Maintenance (WRC-DS-W115)

Hosting (WRC-DS-W107)

Kitchen Safety (WRC-DS-W102)

Kitchen Use and Maintenance (WRC-DS-W130)

Knife Safety for Dining Services (WRC-DS-W111)

Portioning and Presenting Menu Items (WRC-DS-W145)

Providing Excellent Table Service (WRC-DS-W135)

Understanding Food Production (WRC-DS-W150)

Understanding the HACCP Food Safety System (WRC-DS-W105)

Watermark Operating Standards:

Dining Services – Culinary

Dining Services – Independent Living (includes display kitchen standards and service standards)

66

See additional Pre-Shift Suggestions from Jim Sullivan.

67
68
69
70
71
72
73
74
We can’t wait to watch you welcome our guests to the tastes of Taboon!

Turn static files into dynamic content formats.

Create a flipbook
Issuu converts static files into: digital portfolios, online yearbooks, online catalogs, digital photo albums and more. Sign up and create your flipbook.
Taboon Playbook FINAL by nakandco - Issuu