ARCHITECTURAL PORTFOLIO II

Page 1

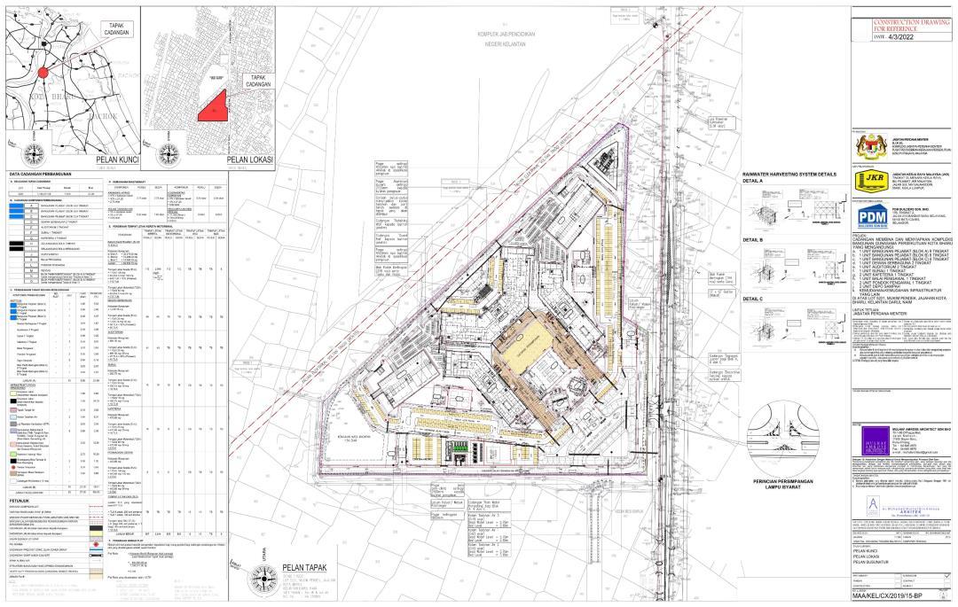
MASTER PLAN

BANGUNANGUNASAMA PERSEKUTUAN KOTA BHARU,TUNJONG

This building is built as to serve and replace the old Bangunan Wisma Persekutuan located in Kota Bharu.This 400 mil design & built project consist of 3 mains blocks, multipurpose hall, auditorium, surau, cafeteria and others ancillaries building.

Site visit from the clients (JKR) and monthly site office meeting were held to discuss on the progress of the project on site.

BLOCK A

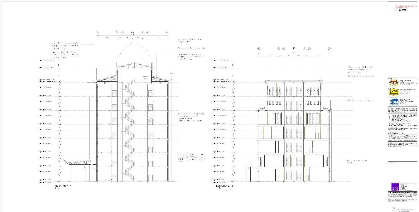
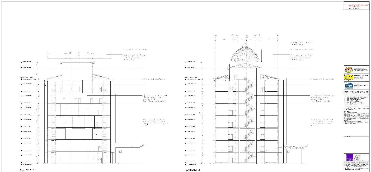
Consist of 9 floors and the centre of all 3 main buildings

BLOCK A

Consist of 9 floors and the centre of all 3 main buildings

BLOCK B

Consist of 8 floors

BLOCK B

Consist of 8 floors

BLOCK C

Consist of 8 floors

BLOCK C

Consist of 8 floors

Documentation andInspection

- Request ForWork Inspection (RFWI)

Submit RFWI (with 24 hours notice) for architecture works that are ready to be inspected by consultants.

- Request For Information (RI)

Assist architecture coordinator to submit RFI regarding any issues or problems occurred on site that requires confirmation, solutions and advices from architect.

- Receiving Material Inspection (RMI)

Submit RMI to consultant (with 24 hours notice) to inspect received materials on site with IOW.

- Mockup Inspection

Prepare mockup inspection form.

Participate in internal and external mockup inspection.

- Site Memo

Issue site memo to subcontractors for their non-compliance works/errors (e g , damaging other subcontractor’s works, completed works did not follow method statement, delayed works, etc.).

Official notice for subcontractors for rectifying works and back charge purposes.

Request For Work Inspection (RFWI) form Request For Information (RI) form

DOCUMENTATION
Site memo form Mockup Approval form form

SITE MONITORING

Site Monitoring

- Ensure architectural works are carried out according to specifications/drawing.

- Assist architecture supervisor/PIC in monitoring architecture trades at main block (Block B).

- Liaise with consultant, QAQC and subcontractors for architecture related works

- Record and update weekly architecture works progress.

- Ensure works are ready to inspect prior calling for IOW inspection.

- Assist PIC for Block B in conducting inspection for all architecture related works with IOW

- Inspect material delivered on site.

- Assist PIC to mark and check monthly claim for subcontractors.

Jkr site walk at Block B Level 6 Tiling setting out for toilet inspection Cafeteria B Skim coating inspection with the Inspector of Works (IOW) Roof structure and covering inspection at Block B Level 8 Floor tiling material received inspection at Cafeteria B Waterproofing Inspection for gutter at Block B

Turn static files into dynamic content formats.

Create a flipbook
Issuu converts static files into: digital portfolios, online yearbooks, online catalogs, digital photo albums and more. Sign up and create your flipbook.